Скачать Методическое пособие по проектированию керамзитобетонных ограждающих конструкций зданий и сооружений

Дата актуализации: 01.01.2021

Методическое пособие по проектированию керамзитобетонных ограждающих конструкций зданий и сооружений

Статус:действует
Название рус.:Методическое пособие по проектированию керамзитобетонных ограждающих конструкций зданий и сооружений
Дата добавления в базу:01.01.2021
Дата актуализации:01.01.2021
Область применения:Методическое пособие распространяется на проектирование тепловой защиты строящихся или реконструируемых жилых, общественных, производственных, сельскохозяйственных и складских зданий, в которых необходимо поддерживать определенный температурно-влажностный режим.
Оглавление:Введение
1 Область применения
2 Нормативные ссылки
3 Термины и определения
4 Общие положения
5 Требования к материалам и изделиям
   5.1 Керамзит
   5.2 Керамзитобетон
   5.3 Крупнопористый (беспесчаный) керамзитобетон
   5.4 Изделия из керамзитобетона
      5.4.1 Блоки керамзитобетонные полнотелые и пустотелые
      5.4.2 Блоки опалубки из керамзитобетона
      5.4.3 Блоки из беспесчаного крупнопористого керамзитобетона
      5.4.4 Жесткие керамзитобетонные плиты
      5.4.5 Панели зданий и сооружений
6 Конструктивные решения ограждающих конструкций из керамзита и керамзитобетона
   6.1 Конструкции стен из керамзитобетонных блоков
   6.2 Конструкции стен с использованием жестких теплоизоляционных плит из беспесчаного керамзитобетона
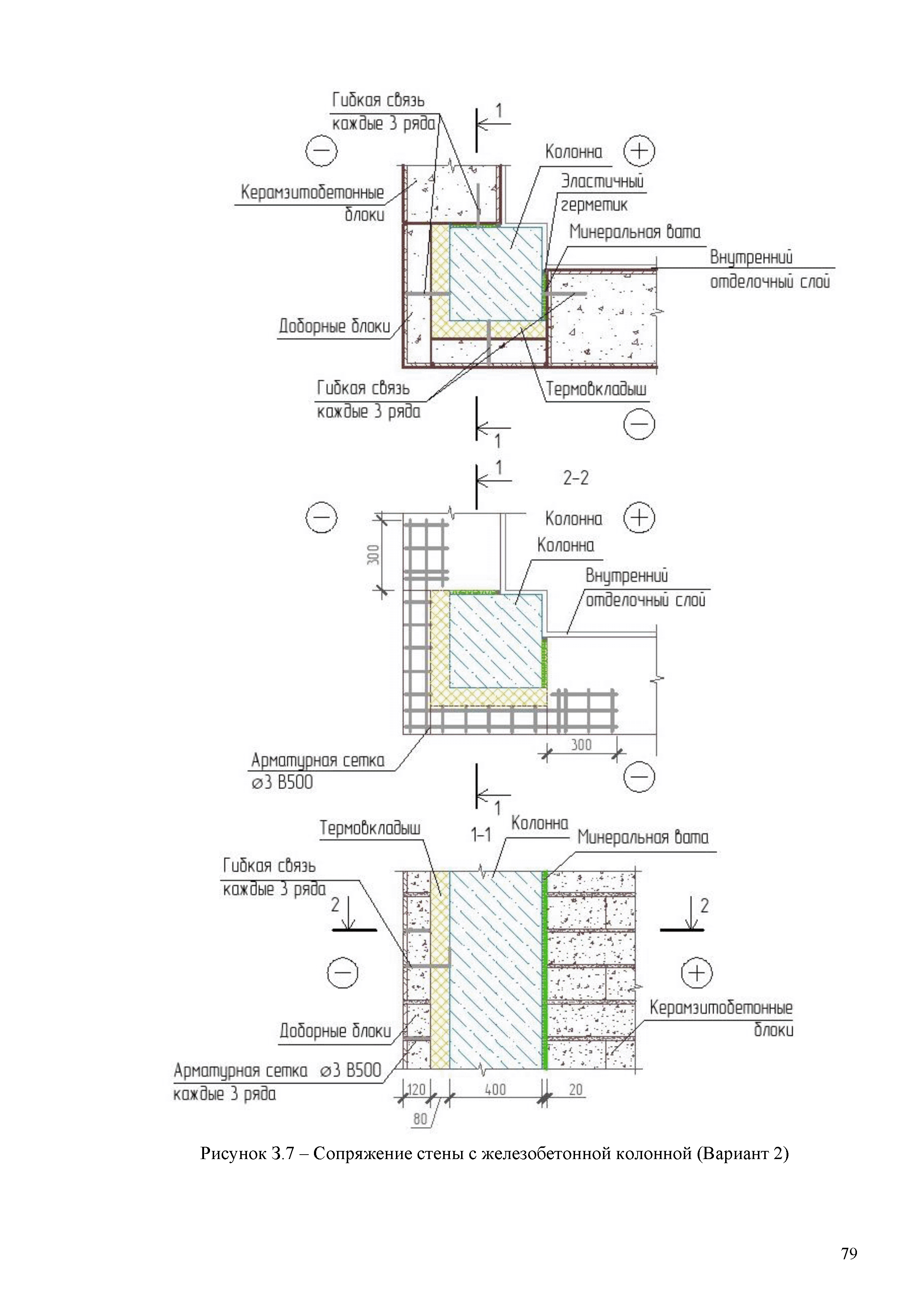
   6.3 Конструктивные решения при монолитно-панельном и сборном домостроении
   6.4 Конструкции с применением керамзита и монолитного керамзитобетона
7 Требования к обеспечению пожарной безопасности
Приложение А (Справочное) Варианты конструктивных решений наружных стен с использованием полнотелых керамзитобетонных блоков
Приложение Б (Справочное) Варианты конструктивных решений наружных стен с использованием многощелевых керамзитобетонных блоков
Приложение В (Справочное) Варианты конструктивных решений наружных стен с использованием блоков из беспесчаного керамзитобетона
Приложение Г (Справочное) Варианты конструктивных решений наружных стен с использованием жестких теплоизоляционных плит из беспесчаного керамзитобетона
Приложение Д (Справочное) Варианты конструктивных решений наружных стен при монолитно-панельном домостроении
Приложение Е (Справочное) Варианты конструктивных решений наружных стен с использованием керамзитовых засыпок и монолитного керамзитобетона
Приложение Ж (Справочное) Варианты исполнения ограждений с применением керамзита и керамзитобетона в подвальных, чердачных перекрытиях и покрытиях плоских крыш
Приложение З (Справочное) Примеры расчетов и конструирования ненесущих стен из керамзитобетонных блоков для применения в каркасных сборно-монолитных зданиях
Приложение И (Справочное) Примеры расчетов и конструирования самонесущих стен из керамзитобетонных блоков для применения в каркасных сборно-монолитных зданиях
Приложение И.1 (Справочное) Примеры самонесущих стен из керамзитобетонных блоков
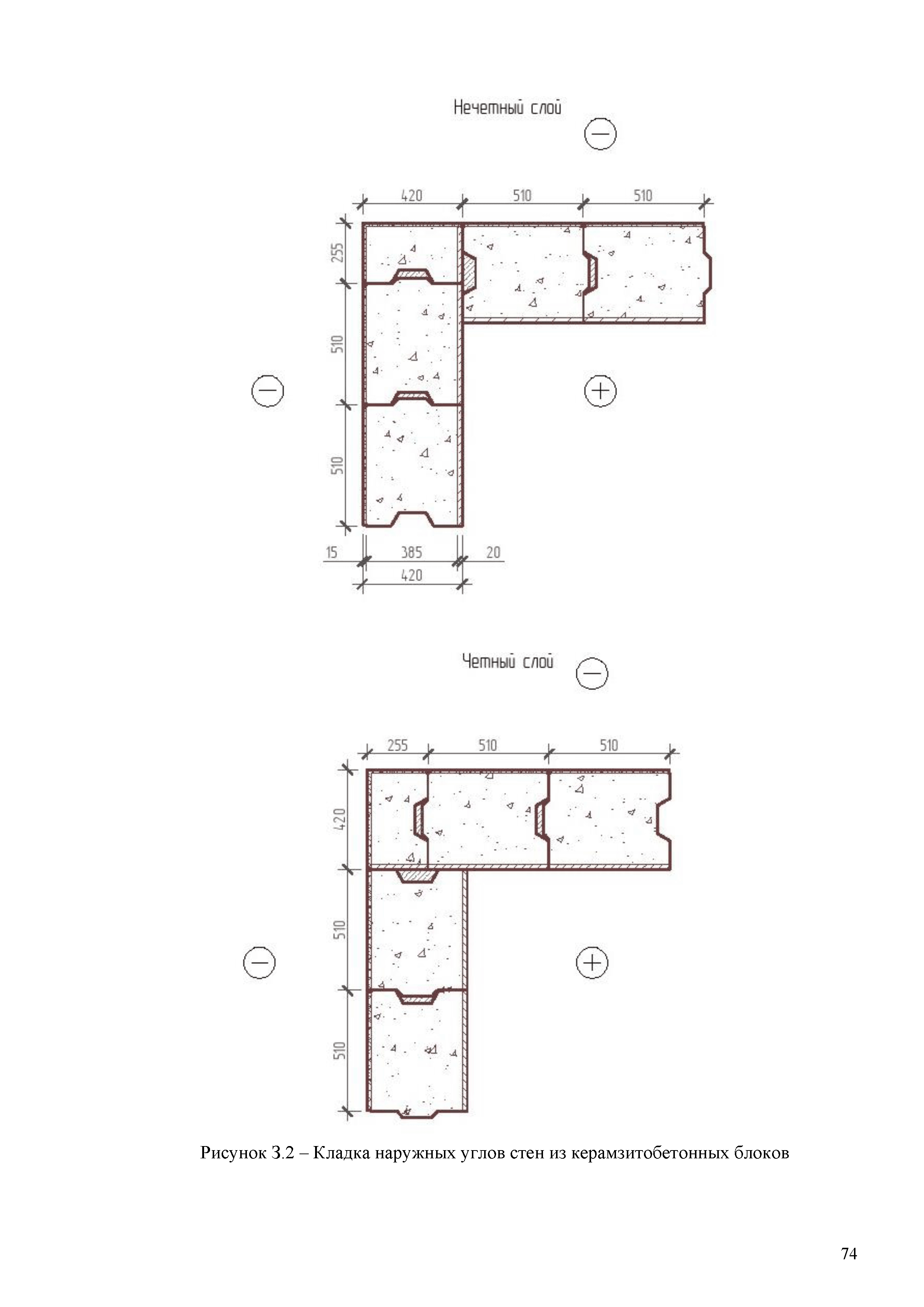
Приложение К (Справочное) Конструктивные решения несущих стен из керамзитобетонных блоков на примере трехэтажных зданий
Приложение Л (Справочное) Примеры типов, размеров, форм блоков опалубки, расположения пустот и утеплителя
Приложение М (Справочное) Примеры выполнения типовых узлов конструкций с применением блоков опалубки из керамзитобетона
Приложение Н (Справочное) Примеры теплотехнических расчетов наружных стен с применением блоков опалубки из керамзитобетона
Приложение О (Справочное) Варианты конструктивных решений наружных стен при сборно-панельном домостроении
Приложение О.1 (Справочное) Определение минимальной температуры в узлах сопряжения стеновых панелей с плитами перекрытия с учетом теплопроводных включений
Приложение П (Справочное) Методика расчета влажностного режима ограждения
Список использованных источников
Разработан: АО НИИКерамзит
Утверждён: АО НИИКерамзит
Нормативные ссылки: