Главная // Актуальные документы // Актуальные документы (обновление 2025.03.03-2025.03.29) // ПравилаСПРАВКА
Источник публикации
В данном виде документ опубликован не был.
Первоначальный текст документа опубликован в издании
М.: Минстрой России, 2016.
Информацию о публикации документов, создающих данную редакцию, см. в справке к этим документам.
Примечание к документу
Документ включен в
Перечень документов в области стандартизации, в результате применения которых на добровольной основе обеспечивается соблюдение требований Федерального
закона от 30.12.2009 N 384-ФЗ "Технический регламент о безопасности зданий и сооружений" (
Приказ Росстандарта от 02.04.2020 N 687).
Название документа
"СП 256.1325800.2016. Свод правил. Электроустановки жилых и общественных зданий. Правила проектирования и монтажа"
(утв. Приказом Минстроя России от 29.08.2016 N 602/пр)
(ред. от 29.11.2024)
"СП 256.1325800.2016. Свод правил. Электроустановки жилых и общественных зданий. Правила проектирования и монтажа"
(утв. Приказом Минстроя России от 29.08.2016 N 602/пр)
(ред. от 29.11.2024)
Утвержден и введен в действие
и жилищно-коммунального хозяйства
Российской Федерации
от 29 августа 2016 г. N 602/пр
СВОД ПРАВИЛ
ЭЛЕКТРОУСТАНОВКИ ЖИЛЫХ И ОБЩЕСТВЕННЫХ ЗДАНИЙ
ПРАВИЛА ПРОЕКТИРОВАНИЯ И МОНТАЖА
Electrical equipment of residential and public buildings.
Rules of design and erection
СП 256.1325800.2016
| | Список изменяющих документов Минстроя России от 26.12.2017 N 1721/пр, Минстроя России от 19.09.2018 N 588/пр, Минстроя России от 25.04.2019 N 238/пр, Минстроя России от 30.12.2020 N 919/пр, Минстроя России от 01.03.2022 N 129/пр, Минстроя России от 28.12.2023 N 1005/пр, Минстроя России от 29.11.2024 N 808/пр) | |
Дата введения
2 марта 2017 года
1 ИСПОЛНИТЕЛИ: Ассоциация "Росэлектромонтаж"
2 ВНЕСЕН Техническим комитетом по стандартизации ТК 465 "Строительство"
3 ПОДГОТОВЛЕН К УТВЕРЖДЕНИЮ Департаментом градостроительной деятельности и архитектуры Министерства строительства и жилищно-коммунального хозяйства Российской Федерации (Минстрой России)
4 УТВЕРЖДЕН
Приказом Министерства строительства и жилищно-коммунального хозяйства Российской Федерации от 29 августа 2016 г. N 602/пр и введен в действие с 2 марта 2017 г.
5 ЗАРЕГИСТРИРОВАН Федеральным агентством по техническому регулированию и метрологии (Росстандарт)
6 ВВЕДЕН ВПЕРВЫЕ
В случае пересмотра (замены) или отмены настоящего свода правил соответствующее уведомление будет опубликовано в установленном порядке. Соответствующая информация, уведомление и тексты размещаются также в информационной системе общего пользования - на официальном сайте разработчика (Минстрой России) в сети Интернет
Настоящий свод правил разработан в соответствии с Федеральным
законом от 30 декабря 2009 г. N 384-ФЗ "Технический регламент о безопасности зданий и сооружений"
[1].
В своде правил реализованы требования Федерального
закона от 23 ноября 2009 г. N 261-ФЗ "Об энергосбережении и повышении энергетической эффективности и о внесении изменений в отдельные законодательные акты Российской Федерации"
[2] и Федерального
закона от 22 июля 2008 г. N 123-ФЗ "Технический регламент о требованиях пожарной безопасности"
[3].
Свод правил разработан с учетом положений
СП 31-110-2003 "Проектирование и монтаж электроустановок жилых и общественных зданий".
В своде правил рассмотрены вопросы, связанные с проектированием: искусственного освещения, электроснабжения, схем электрических сетей, распределительных и групповых сетей, защиты внутренних электрических сетей напряжением до 1000 В, электрического отопления и горячего водоснабжения.
Свод правил подготовлен авторским коллективом: С.В. Ассур, В.И. Берман, канд. техн. наук А.Б. Буре, В.Н. Коротков, Л.И. Минаева, канд. техн. наук Я.Н. Осипов, М.В. Садомцева, В.В. Чернов (Ассоциация "Росэлектромонтаж").
Изменение N 4 разработано ООО "Ассоциация РЭМ" (д-р техн. наук, проф. Ю.И. Солуянов, В.И. Берман, В.Н. Коротков, канд. техн. наук А.Н. Тюрин, В.В. Чернов).
(абзац введен
Изменением N 4, утв. Приказом Минстроя России от 30.12.2020 N 919/пр)
Изменение N 5 разработано авторским коллективом Российского союза промышленников и предпринимателей (С.Л. Дубов, В.Ф. Ляшук).
(абзац введен
Изменением N 5, утв. Приказом Минстроя России от 01.03.2022 N 129/пр)
Изменение N 6 разработано ООО "Ассоциация РЭМ", ООО "Эколайт" (д-р техн. наук, проф. Ю.И. Солуянов, д-р техн. наук, проф. А.И. Федотов, В.И. Берман, канд. техн. наук А.Р. Ахметшин, канд. техн. наук А.Н. Тюрин, канд. техн. наук Н.В. Чернова, В.И. Солуянов, В.А. Халтурин, В.Н. Коротков, А.Г. Гусаров, Ф.Н. Немцов, канд. техн. наук С.Ч. Колесник, С.В. Буланенко, А.И. Павлов), ФАУ "ФЦС" (руководитель разработки - канд. техн. наук О.А. Король, Д.С. Визерский, Д.А. Кирушок, А.А. Бусахин).
(абзац введен
Изменением N 6, утв. Приказом Минстроя России от 28.12.2023 N 1005/пр)
1.1 Настоящий свод правил устанавливает правила проектирования и монтажа электроустановок вновь строящихся и реконструируемых жилых и общественных зданий в городах и сельских населенных пунктах и распространяется на электрические цепи номинальным напряжением до 1000 В переменного тока и 1500 В постоянного тока включительно, и высоковольтные цепи (более 1000 В, но не выше 35 кВ) переменного тока.
1.2 Настоящий свод правил не распространяется на проектирование электропривода и электрооборудования специальных электротехнических установок: лифтов, подъемников, кинотехнологического оборудования, вычислительных центров, лечебно-профилактических учреждений, науки и научного обслуживания, а также на проектирование устройств автоматизации санитарно-технических, противопожарных и других технологических установок.
В настоящем Своде правил использованы ссылки на следующие нормативные документы:
Ссылка исключена с 29.01.2024. -
Изменение N 6, утв. Приказом Минстроя России от 28.12.2023 N 1005/пр.
Ссылка исключена с 29.01.2024. -
Изменение N 6, утв. Приказом Минстроя России от 28.12.2023 N 1005/пр.
ГОСТ 21.607-2014 Система проектной документации для строительства. Правила выполнения рабочей документации наружного электрического освещения
(ссылка введена
Изменением N 4, утв. Приказом Минстроя России от 30.12.2020 N 919/пр)
ГОСТ 21.608-2021 Система проектной документации для строительства. Правила выполнения рабочей документации внутреннего электрического освещения
(ссылка введена
Изменением N 6, утв. Приказом Минстроя России от 28.12.2023 N 1005/пр)
Ссылка исключена с 29.01.2024. -
Изменение N 6, утв. Приказом Минстроя России от 28.12.2023 N 1005/пр.
ГОСТ 464-79 Заземления для стационарных установок проводной связи, радиорелейных станций, радиотрансляционных узлов проводного вещания и антенн систем коллективного приема телевидения. Нормы сопротивления
ГОСТ 6815-79 Шинопроводы магистральные и распределительные переменного тока на напряжение до 1000 В. Общие технические условия
(в ред.
Изменения N 8, утв. Приказом Минстроя России от 29.11.2024 N 808/пр)
ГОСТ 10434-82 Соединения контактные электрические. Классификация. Общие технические требования
(ссылка введена
Изменением N 2, утв. Приказом Минстроя России от 19.09.2018 N 588/пр)
Ссылка исключена с 01.07.2021. -
Изменение N 4, утв. Приказом Минстроя России от 30.12.2020 N 919/пр.
(ссылка введена
Изменением N 6, утв. Приказом Минстроя России от 28.12.2023 N 1005/пр)
ГОСТ 14254-2015 (IEC 60529:2013) Степени защиты, обеспечиваемые оболочками (Код IP)
(ссылка введена
Изменением N 4, утв. Приказом Минстроя России от 30.12.2020 N 919/пр)
ГОСТ 16617-87 Электроприборы отопительные бытовые. Общие технические условия
(ссылка введена
Изменением N 8, утв. Приказом Минстроя России от 29.11.2024 N 808/пр)
ГОСТ 17441-84 Соединения контактные электрические. Приемка и методы испытаний
(ссылка введена
Изменением N 2, утв. Приказом Минстроя России от 19.09.2018 N 588/пр)
ГОСТ 23366-78 Ряды номинальных напряжений постоянного и переменного тока
Ссылка исключена с 29.01.2024. -
Изменение N 6, утв. Приказом Минстроя России от 28.12.2023 N 1005/пр.
ГОСТ 28249-93 Короткие замыкания в электроустановках. Методы расчета в электроустановках переменного тока напряжением до 1 кВ
Ссылка исключена с 29.01.2024. -
Изменение N 6, утв. Приказом Минстроя России от 28.12.2023 N 1005/пр.
ГОСТ 30331.1-2013 (IEC 60364-1:2005) Электроустановки низковольтные. Часть 1. Основные положения, оценка общих характеристик, термины и определения
ГОСТ 30988.1-2020 (IEC 60884-1:2013) Соединители электрические штепсельные бытового и аналогичного назначения. Часть 1. Общие требования и методы испытаний
(ссылка введена
Изменением N 6, утв. Приказом Минстроя России от 28.12.2023 N 1005/пр)
Ссылка исключена с 29.01.2024. -
Изменение N 6, утв. Приказом Минстроя России от 28.12.2023 N 1005/пр.
ГОСТ 31604-2020 (IEC 61545:1996) Соединительные устройства. Устройства для присоединения алюминиевых проводников к зажимам из любого материала и медных проводников к зажимам из алюминиевых сплавов. Общие требования и методы испытаний
(ссылка введена
Изменением N 6, утв. Приказом Минстроя России от 28.12.2023 N 1005/пр)
ГОСТ 31818.11-2012 (IEC 62052-11:2003) Аппаратура для измерения электрической энергии переменного тока. Общие требования. Испытания и условия испытаний. Часть 11. Счетчики электрической энергии
ГОСТ 31819.21-2012 (IEC 62053-21:2003) Аппаратура для измерения электрической энергии переменного тока. Частные требования. Часть 21. Статические счетчики активной энергии классов точности 1 и 2
ГОСТ 31819.22-2012 (IEC 62053-22:2003) Аппаратура для измерения электрической энергии переменного тока. Частные требования. Часть 22. Статические счетчики активной энергии классов точности 0,2 S и 0,5 S
Ссылка исключена с 01.07.2021. -
Изменение N 4, утв. Приказом Минстроя России от 30.12.2020 N 919/пр.
ГОСТ 32126.23-2013 (IEC 60670-23:2006) Коробки и корпусы для электрических аппаратов, устанавливаемые в стационарные электрические установки бытового и аналогичного назначения. Часть 23. Специальные требования к напольным коробкам и корпусам
ГОСТ 32144-2013 Электрическая энергия. Совместимость технических средств электромагнитная. Нормы качества электрической энергии в системах электроснабжения общего назначения
Ссылка исключена с 29.01.2024. -
Изменение N 6, утв. Приказом Минстроя России от 28.12.2023 N 1005/пр.
Ссылка исключена с 29.01.2024. -
Изменение N 6, утв. Приказом Минстроя России от 28.12.2023 N 1005/пр.
Ссылка исключена с 29.01.2024. -
Изменение N 6, утв. Приказом Минстроя России от 28.12.2023 N 1005/пр.
ГОСТ 32395-2020 Щитки распределительные для жилых зданий. Общие технические условия
(ссылка введена
Изменением N 6, утв. Приказом Минстроя России от 28.12.2023 N 1005/пр)
ГОСТ 32396-2021 Устройства вводно-распределительные для жилых и общественных зданий. Общие технические условия
(ссылка введена
Изменением N 6, утв. Приказом Минстроя России от 28.12.2023 N 1005/пр)
ГОСТ 32397-2020 Щитки распределительные для производственных и общественных зданий. Общие технические условия
(ссылка введена
Изменением N 6, утв. Приказом Минстроя России от 28.12.2023 N 1005/пр)
ГОСТ 34441-2024 Лифты. Диспетчерский контроль. Общие технические требования
(в ред.
Изменения N 8, утв. Приказом Минстроя России от 29.11.2024 N 808/пр)
ГОСТ 34819-2021 Приборы осветительные. Светотехнические требования и методы испытаний
(ссылка введена
Изменением N 6, утв. Приказом Минстроя России от 28.12.2023 N 1005/пр)
ГОСТ Р 8.596-2002 Государственная система обеспечения единства измерений. Метрологическое обеспечение измерительных систем. Основные положения
(в ред.
Изменения N 8, утв. Приказом Минстроя России от 29.11.2024 N 808/пр)
Ссылка исключена с 01.07.2021. -
Изменение N 4, утв. Приказом Минстроя России от 30.12.2020 N 919/пр.
Ссылка исключена с 29.01.2024. -
Изменение N 6, утв. Приказом Минстроя России от 28.12.2023 N 1005/пр.
ГОСТ Р 50462-2009 (МЭК 60446:2007) Базовые принципы и принципы безопасности для интерфейса "человек-машина", выполнение и идентификация. Идентификация проводников посредством цветов и буквенно-цифровых обозначений
Ссылка исключена с 29.01.2024. -
Изменение N 6, утв. Приказом Минстроя России от 28.12.2023 N 1005/пр.
Ссылка исключена с 01.07.2021. -
Изменение N 4, утв. Приказом Минстроя России от 30.12.2020 N 919/пр.
ГОСТ Р 50571.4.41-2022/МЭК 60364-4-41:2017 Электроустановки низковольтные. Часть 4-41. Защита для обеспечения безопасности. Защита от поражения электрическим током
(ссылка введена
Изменением N 6, утв. Приказом Минстроя России от 28.12.2023 N 1005/пр)
ГОСТ Р 50571.4.42-2017 (МЭК 60364-4-42:2014) Электроустановки низковольтные. Часть 4-42. Защита для обеспечения безопасности. Защита от тепловых воздействий
(ссылка введена
Изменением N 4, утв. Приказом Минстроя России от 30.12.2020 N 919/пр)
ГОСТ Р 50571.4.43-2012 (МЭК 60364-4-43:2008) Электроустановки низковольтные. Часть 4-43. Требования по обеспечению безопасности. Защита от сверхтока
ГОСТ Р 50571.4.44-2019 (МЭК 60364-4-44:2007) Электроустановки низковольтные. Часть 4.44. Защита для обеспечения безопасности. Защита от резких отклонений напряжения и электромагнитных возмущений
(ссылка введена
Изменением N 4, утв. Приказом Минстроя России от 30.12.2020 N 919/пр)
Ссылка исключена с 01.07.2021. -
Изменение N 4, утв. Приказом Минстроя России от 30.12.2020 N 919/пр.
ГОСТ Р 50571.5.52-2011 (МЭК 60364-5-52:2009) Электроустановки низковольтные. Часть 5-52. Выбор и монтаж электрооборудования. Электропроводки
ГОСТ Р 50571.5.53-2013 (МЭК 60364-5-53:2002) Электроустановки низковольтные. Часть 5-53. Выбор и монтаж электрооборудования. Отделение, коммутация и управление
ГОСТ Р 50571.5.54-2013 (МЭК 60364-5-54:2011) Электроустановки низковольтные. Часть 5-54. Выбор и монтаж электрооборудования. Заземляющие устройства, защитные проводники и защитные проводники уравнивания потенциалов
ГОСТ Р 50571.5.56-2013 (МЭК 60364-5-56:2009) Электроустановки низковольтные. Часть 5-56. Выбор и монтаж электрооборудования. Системы обеспечения безопасности
ГОСТ Р 50571.7.701-2013 (МЭК 60364-7-701:2006) Электроустановки низковольтные. Часть 7. Требования к специальным установкам или местам их размещения. Раздел 701. Помещения для ванных и душевых комнат
ГОСТ Р 50571.7.702-2013 (МЭК 60364-7-702(2010)) Электроустановки низковольтные. Часть 7. Требования к специальным установкам или местам их размещения. Раздел 702. Плавательные бассейны и фонтаны
ГОСТ Р 50571.7.705-2012 (МЭК 60364-7-705:2006) Электроустановки низковольтные. Часть 7-705. Требования к специальным электроустановкам или местам их расположения. Электроустановки для сельскохозяйственных и садоводческих помещений
ГОСТ Р 50571.7.706-2016/МЭК 60364-7-706(2005) Электроустановки низковольтные. Часть 7-706. Требования к специальным установкам или местам их расположения. Проводящие помещения со стесненными условиями
(ссылка введена
Изменением N 4, утв. Приказом Минстроя России от 30.12.2020 N 919/пр)
ГОСТ Р 50571.7.710-2023 (МЭК 60364-7-710:2021) Электроустановки низковольтные. Часть 7-710. Требования к специальным электроустановкам. Электроустановки медицинских помещений
(ссылка введена
Изменением N 8, утв. Приказом Минстроя России от 29.11.2024 N 808/пр)
ГОСТ Р 50571.7.713-2011 (МЭК 60364-7-713:1996) Электроустановки низковольтные. Часть 7-713. Требования к специальным установкам или местам их расположения. Мебель
Ссылка исключена с 29.11.2024. -
Изменение N 8, утв. Приказом Минстроя России от 29.11.2024 N 808/пр
Ссылка исключена с 29.11.2024. -
Изменение N 8, утв. Приказом Минстроя России от 29.11.2024 N 808/пр
(ссылка введена
Изменением N 4, утв. Приказом Минстроя России от 30.12.2020 N 919/пр)
Ссылка исключена с 01.07.2021. -
Изменение N 4, утв. Приказом Минстроя России от 30.12.2020 N 919/пр.
Ссылка исключена с 01.07.2021. -
Изменение N 4, утв. Приказом Минстроя России от 30.12.2020 N 919/пр.
Ссылка исключена с 29.01.2024. -
Изменение N 6, утв. Приказом Минстроя России от 28.12.2023 N 1005/пр.
Ссылка исключена с 29.01.2024. -
Изменение N 6, утв. Приказом Минстроя России от 28.12.2023 N 1005/пр.
Ссылка исключена с 29.01.2024. -
Изменение N 6, утв. Приказом Минстроя России от 28.12.2023 N 1005/пр.
Ссылка исключена с 29.01.2024. -
Изменение N 6, утв. Приказом Минстроя России от 28.12.2023 N 1005/пр.
Ссылка исключена с 01.07.2021. -
Изменение N 4, утв. Приказом Минстроя России от 30.12.2020 N 919/пр.
ГОСТ Р 51324.1-2012 (МЭК 60669-1:2007) Выключатели для бытовых и аналогичных стационарных электрических установок. Часть 1. Общие требования
(ссылка введена
Изменением N 3, утв. Приказом Минстроя России от 25.04.2019 N 238/пр)
ГОСТ Р 52868-2021 (МЭК 61537:2006) Системы кабельных лотков и системы кабельных лестниц для прокладки кабелей. Общие технические требования и методы испытаний
(ссылка введена
Изменением N 8, утв. Приказом Минстроя России от 29.11.2024 N 808/пр)
ГОСТ Р 53296-2009 Установка лифтов для пожарных в зданиях и сооружениях. Требования пожарной безопасности
(ссылка введена
Изменением N 4, утв. Приказом Минстроя России от 30.12.2020 N 919/пр)
ГОСТ Р 53310-2009 Проходки кабельные, вводы герметичные и проходы шинопроводов. Требования пожарной безопасности. Методы испытаний на огнестойкость
ГОСТ Р 53313-2009 Изделия погонажные электромонтажные. Требования пожарной безопасности. Методы испытаний
ГОСТ Р 53316-2021 Электропроводки. Сохранение работоспособности в условиях стандартного температурного режима пожара. Методы испытаний
(ссылка введена
Изменением N 6, утв. Приказом Минстроя России от 28.12.2023 N 1005/пр)
Ссылка исключена с 29.01.2024. -
Изменение N 6, утв. Приказом Минстроя России от 28.12.2023 N 1005/пр.
Ссылка исключена с 29.01.2024. -
Изменение N 6, утв. Приказом Минстроя России от 28.12.2023 N 1005/пр.
Ссылка исключена с 01.07.2021. -
Изменение N 4, утв. Приказом Минстроя России от 30.12.2020 N 919/пр.
Ссылка исключена с 29.01.2024. -
Изменение N 6, утв. Приказом Минстроя России от 28.12.2023 N 1005/пр.
ГОСТ Р 53780-2010 (ЕН 81-1:1998, ЕН 81-2:1998) Лифты. Общие требования безопасности к устройству и установке
Ссылка исключена с 01.07.2021. -
Изменение N 4, утв. Приказом Минстроя России от 30.12.2020 N 919/пр.
Ссылка исключена с 29.11.2024. -
Изменение N 8, утв. Приказом Минстроя России от 29.11.2024 N 808/пр
Ссылка исключена с 01.07.2021. -
Изменение N 4, утв. Приказом Минстроя России от 30.12.2020 N 919/пр.
ГОСТ Р 58019-2017 Катанка из алюминиевых сплавов марок 8176 и 8030. Технические условия
(ссылка введена
Изменением N 2, утв. Приказом Минстроя России от 19.09.2018 N 588/пр)
Ссылка исключена с 01.07.2021. -
Изменение N 4, утв. Приказом Минстроя России от 30.12.2020 N 919/пр.
Ссылка исключена с 29.01.2024. -
Изменение N 6, утв. Приказом Минстроя России от 28.12.2023 N 1005/пр.
Ссылка исключена с 29.01.2024. -
Изменение N 6, утв. Приказом Минстроя России от 28.12.2023 N 1005/пр.
(ссылка введена
Изменением N 4, утв. Приказом Минстроя России от 30.12.2020 N 919/пр)
Ссылка исключена с 29.01.2024. -
Изменение N 6, утв. Приказом Минстроя России от 28.12.2023 N 1005/пр.
Ссылка исключена с 29.11.2024. -
Изменение N 8, утв. Приказом Минстроя России от 29.11.2024 N 808/пр
(ссылка введена
Изменением N 6, утв. Приказом Минстроя России от 28.12.2023 N 1005/пр)
ГОСТ IEC 60598-2-22-2012 (IEC 60598-2-22:1997) Светильники. Часть 2-22. Частные требования. Светильники для аварийного освещения
Ссылки исключены с 29.01.2024. -
Изменение N 6, утв. Приказом Минстроя России от 28.12.2023 N 1005/пр.
ГОСТ IEC 60898-1-2020 Аппаратура малогабаритная электрическая. Автоматические выключатели для защиты от сверхтоков бытового и аналогичного назначения. Часть 1. Автоматические выключатели для переменного тока
(ссылка введена
Изменением N 6, утв. Приказом Минстроя России от 28.12.2023 N 1005/пр)
ГОСТ IEC 60898-2-2021 Аппаратура малогабаритная электрическая. Автоматические выключатели для защиты от сверхтоков бытового и аналогичного назначения. Часть 2. Автоматические выключатели для переменного и постоянного тока
(ссылка введена
Изменением N 6, утв. Приказом Минстроя России от 28.12.2023 N 1005/пр)
(ссылка введена
Изменением N 6, утв. Приказом Минстроя России от 28.12.2023 N 1005/пр)
ГОСТ IEC 61008-1-2020 Выключатели автоматические, управляемые дифференциальным током, бытового и аналогичного назначения без встроенной защиты от сверхтоков. Часть 1. Общие требования и методы испытаний
(ссылка введена
Изменением N 6, утв. Приказом Минстроя России от 28.12.2023 N 1005/пр)
ГОСТ IEC 61009-1-2020 Выключатели автоматические, срабатывающие от остаточного тока, со встроенной защитой от тока перегрузки, бытовые и аналогичного назначения. Часть 1. Общие правила
(ссылка введена
Изменением N 6, утв. Приказом Минстроя России от 28.12.2023 N 1005/пр)
ГОСТ IEC 61439-1-2013 Устройства комплектные низковольтные распределения и управления. Часть 1. Общие требования
ГОСТ IEC 61439-2-2015 Устройства комплектные низковольтные распределения и управления. Часть 2. Устройства распределения и управления электроэнергией
(ссылка введена
Изменением N 6, утв. Приказом Минстроя России от 28.12.2023 N 1005/пр)
ГОСТ IEC 61439-3-2015 Устройства комплектные низковольтные распределения и управления. Часть 3. Распределительные щиты, предназначенные для управления неквалифицированными лицами
(ссылка введена
Изменением N 4, утв. Приказом Минстроя России от 30.12.2020 N 919/пр)
ГОСТ IEC 61439-5-2017 Устройства комплектные низковольтные распределения и управления. Часть 5. Комплектные устройства для силового распределения в сетях общественного пользования
(ссылка введена
Изменением N 4, утв. Приказом Минстроя России от 30.12.2020 N 919/пр)
ГОСТ IEC 61439-6-2017 Низковольтные комплектные устройства распределения и управления. Часть 6. Системы сборных шин (шинопроводы)
(ссылка введена
Изменением N 4, утв. Приказом Минстроя России от 30.12.2020 N 919/пр)
ГОСТ IEC 61643-12-2022 Устройства защиты от импульсных перенапряжений низковольтные. Часть 12. Устройства защиты от импульсных перенапряжений в низковольтных силовых распределительных системах. Принципы выбора и применения
(ссылка введена
Изменением N 6, утв. Приказом Минстроя России от 28.12.2023 N 1005/пр)
ГОСТ IEC 62423-2013 Автоматические выключатели, управляемые дифференциальным током, типа F и типа B со встроенной и без встроенной защиты от сверхтоков бытового и аналогичного назначения
(ссылка введена
Изменением N 4, утв. Приказом Минстроя России от 30.12.2020 N 919/пр)
ГОСТ IEC 62606-2016 Устройства защиты бытового и аналогичного назначения при дуговом пробое. Общие требования
(ссылка введена
Изменением N 3, утв. Приказом Минстроя России от 25.04.2019 N 238/пр)
ГОСТ Р 70819-2023 Инженерные сети наружные. Производство электромонтажных работ. Прокладка кабелей с пластмассовой изоляцией на напряжение до 35 кв включительно в земле (в траншее). Правила выполнения работ
(ссылка введена
Изменением N 8, утв. Приказом Минстроя России от 29.11.2024 N 808/пр)
Ссылка исключена с 01.07.2021. -
Изменение N 4, утв. Приказом Минстроя России от 30.12.2020 N 919/пр.
Ссылка исключена с 29.01.2024. -
Изменение N 6, утв. Приказом Минстроя России от 28.12.2023 N 1005/пр.
Ссылка исключена с 01.07.2021. -
Изменение N 4, утв. Приказом Минстроя России от 30.12.2020 N 919/пр.
Ссылка исключена с 01.07.2021. -
Изменение N 4, утв. Приказом Минстроя России от 30.12.2020 N 919/пр.
Ссылки исключены с 29.01.2024. -
Изменение N 6, утв. Приказом Минстроя России от 28.12.2023 N 1005/пр.
СП 1.13130.2020 "Системы противопожарной защиты. Эвакуационные пути и выходы" (с изменениями N 1, N 2)
(в ред.
Изменения N 8, утв. Приказом Минстроя России от 29.11.2024 N 808/пр)
СП 6.13130.2021 Системы противопожарной защиты. Электроустановки низковольтные. Требования пожарной безопасности
(ссылка введена
Изменением N 6, утв. Приказом Минстроя России от 28.12.2023 N 1005/пр)
СП 42.13330.2016 "СНиП 2.07.01-89* Градостроительство. Планировка и застройка городских и сельских поселений" (с изменениями N 1, N 2, N 3, N 4)
(ссылка введена
Изменением N 6, утв. Приказом Минстроя России от 28.12.2023 N 1005/пр)
СП 52.13330.2016 "СНиП 23-05-95* Естественное и искусственное освещение" (с изменениями N 1, N 2)
(ссылка введена
Изменением N 6, утв. Приказом Минстроя России от 28.12.2023 N 1005/пр)
(ссылка введена
Изменением N 4, утв. Приказом Минстроя России от 30.12.2020 N 919/пр)
Ссылки исключены с 29.01.2024. -
Изменение N 6, утв. Приказом Минстроя России от 28.12.2023 N 1005/пр.
СП 118.13330.2022 "СНиП 31-06-2009 Общественные здания и сооружения" (с изменениями N 1, N 2, N 3, N 4)
(в ред.
Изменения N 8, утв. Приказом Минстроя России от 29.11.2024 N 808/пр)
СП 131.13330.2020 "СНиП 23-01-99* Строительная климатология" (с изменениями N 1, N 2)
(ссылка введена
Изменением N 8, утв. Приказом Минстроя России от 29.11.2024 N 808/пр)
СП 134.13330.2022 Системы электросвязи зданий и сооружений. Основные положения проектирования
(ссылка введена
Изменением N 6, утв. Приказом Минстроя России от 28.12.2023 N 1005/пр)
СП 158.13330.2014 Здания и помещения медицинских организаций. Правила проектирования (с изменениями N 1, N 2, N 3)
(ссылка введена
Изменением N 6, утв. Приказом Минстроя России от 28.12.2023 N 1005/пр)
(ссылка введена
Изменением N 8, утв. Приказом Минстроя России от 29.11.2024 N 808/пр)
СП 332.1325800.2017 Спортивные сооружения. Правила проектирования (с изменениями N 1, N 2, N 3, N 4)
(ссылка введена
Изменением N 8, утв. Приказом Минстроя России от 29.11.2024 N 808/пр)
СП 423.1325800.2018 Электроустановки низковольтные зданий и сооружений. Правила проектирования во взрывоопасных зонах (с изменением N 1)
(ссылка введена
Изменением N 6, утв. Приказом Минстроя России от 28.12.2023 N 1005/пр)
СП 437.1325800.2018 Электроустановки низковольтные зданий и сооружений. Правила проектирования защиты от поражения электрическим током
(ссылка введена
Изменением N 8, утв. Приказом Минстроя России от 29.11.2024 N 808/пр)
(ссылка введена
Изменением N 6, утв. Приказом Минстроя России от 28.12.2023 N 1005/пр)
СП 484.1311500.2020 Системы противопожарной защиты. Системы пожарной сигнализации и автоматизация систем противопожарной защиты. Нормы и правила проектирования
(ссылка введена
Изменением N 4, утв. Приказом Минстроя России от 30.12.2020 N 919/пр)
СП 485.1311500.2020 Системы противопожарной защиты. Установки пожаротушения автоматические. Нормы и правила проектирования
(ссылка введена
Изменением N 4, утв. Приказом Минстроя России от 30.12.2020 N 919/пр)
СП 486.1311500.2020 Системы противопожарной защиты. Перечень зданий, сооружений, помещений и оборудования, подлежащих защите автоматическими установками пожаротушения и системами пожарной сигнализации. Требования пожарной безопасности
(ссылка введена
Изменением N 4, утв. Приказом Минстроя России от 30.12.2020 N 919/пр)
СП 522.1325800.2023 Системы фасадные навесные вентилируемые. Правила проектирования, производства работ и эксплуатации
(ссылка введена
Изменением N 6, утв. Приказом Минстроя России от 28.12.2023 N 1005/пр)
Ссылки исключены с 29.01.2024. -
Изменение N 6, утв. Приказом Минстроя России от 28.12.2023 N 1005/пр.
СанПиН 1.2.3685-21 Гигиенические нормативы и требования к обеспечению безопасности и (или) безвредности для человека факторов среды обитания
(ссылка введена
Изменением N 6, утв. Приказом Минстроя России от 28.12.2023 N 1005/пр)
Ссылка исключена с 29.11.2024. -
Изменение N 8, утв. Приказом Минстроя России от 29.11.2024 N 808/пр
Примечание - При пользовании настоящим сводом правил целесообразно проверить действие ссылочных документов в информационной системе общего пользования - на официальном сайте федерального органа исполнительной власти в сфере стандартизации в сети Интернет или по ежегодному информационному указателю "Национальные стандарты", который опубликован по состоянию на 1 января текущего года, и по выпускам ежемесячного информационного указателя "Национальные стандарты" за текущий год. Если заменен ссылочный документ, на который дана недатированная ссылка, то рекомендуется использовать действующую версию этого документа с учетом всех внесенных в данную версию изменений. Если заменен ссылочный документ, на который дана датированная ссылка, то рекомендуется использовать версию этого документа с указанным выше годом утверждения (принятия). Если после утверждения настоящего свода правил в ссылочный документ, на который дана датированная ссылка, внесено изменение, затрагивающее положение, на которое дана ссылка, то это положение рекомендуется применять без учета данного изменения. Если ссылочный документ отменен без замены, то положение, в котором дана ссылка на него, рекомендуется применять в части, не затрагивающей эту ссылку. Сведения о действии сводов правил целесообразно проверить в Федеральном информационном фонде технических регламентов и стандартов.
3 Термины, определения и сокращения
(п. 3.1 в ред.
Изменения N 4, утв. Приказом Минстроя России от 30.12.2020 N 919/пр,
Изменения N 6, утв. Приказом Минстроя России от 28.12.2023 N 1005/пр,
Изменения N 8, утв. Приказом Минстроя России от 29.11.2024 N 808/пр)
3.1.1 автоматизированная система коммерческого учета потребления энергоресурсов: Система электронных технических средств для автоматизированного дистанционного измерения, сбора, передачи, обработки и документирования результатов потребления энергоресурсов в территориально распределенных точках учета, расположенных на объектах энергоснабжающих организаций или потребителей.
3.1.1а
акцентирующее освещение: Выделение светом отдельных деталей на менее освещенном фоне. |
(п. 3.1.1а введен
Изменением N 4, утв. Приказом Минстроя России от 30.12.2020 N 919/пр)
3.1.1б агломерация городская: Территория города федерального значения, объединенная с территориями иных муниципальных образований (областями), с устойчивыми социальными, экономическими и хозяйственными связями.
(п. 3.1.1б введен
Изменением N 6, утв. Приказом Минстроя России от 28.12.2023 N 1005/пр)
3.1.2 аппарат защиты: Аппарат, автоматически отключающий защищаемую электрическую цепь при ненормальных режимах.
(п. 3.1.2 в ред.
Изменения N 8, утв. Приказом Минстроя России от 29.11.2024 N 808/пр)
3.1.3 вводное устройство, ВУ: Совокупность конструкций, аппаратов и приборов, устанавливаемых на вводе питающей линии в здание или в его обособленную часть.
(п. 3.1.3 в ред.
Изменения N 8, утв. Приказом Минстроя России от 29.11.2024 N 808/пр)
3.1.4 вводно-распределительные устройства; ВРУ: Электротехническое устройство низкого напряжения, содержащее аппаратуру, обеспечивающую возможность ввода, распределения и учета электроэнергии, а также управления и защиты отходящих распределительных и групповых электрических цепей в жилых и общественных зданиях, которая замещена в виде соответствующих функциональных блоков в одной или нескольких соединенных между собой панелях или в одном шкафу, в зависимости от типа здания.
3.1.4а визуализация: Созданное методами компьютерного моделирования реалистическое изображение освещенного фасада здания или иного объекта.
(п. 3.1.4а введен
Изменением N 4, утв. Приказом Минстроя России от 30.12.2020 N 919/пр)
3.1.4б
выходное отверстие: Отверстие в корпусе осветительного прибора или светопропускающая часть оболочки осветительного прибора, предназначенные для выводы света из осветительного прибора во внешнее пространство. |
(п. 3.1.4б в ред.
Изменения N 6, утв. Приказом Минстроя России от 28.12.2023 N 1005/пр)
3.1.5 главный распределительный щит; ГРЩ: Распределительный щит, через который снабжается электроэнергией все здание или его обособленная часть.
3.1.6
групповая сеть (цепь): Сеть (цепь) от щитков, распределительных пунктов и главного распределительного щита до светильников, штепсельных розеток и других электроприемников. |
(п. 3.1.6 в ред.
Изменения N 6, утв. Приказом Минстроя России от 28.12.2023 N 1005/пр)
3.1.7 групповой щиток: Устройство, в котором установлены аппараты защиты и коммутационные аппараты (или только аппараты защиты) для отдельных групп светильников, штепсельных розеток и стационарных электроприемников.
(п. 3.1.7 в ред.
Изменения N 8, утв. Приказом Минстроя России от 29.11.2024 N 808/пр)
3.1.8 диспетчеризация инженерного оборудования: Комплекс технических средств и устройств, обеспечивающих сбор сигналов от объектов диспетчеризации, измерение контролируемых параметров, передачу их по каналам связи на диспетчерский пункт, а также дистанционное управление инженерным оборудованием из диспетчерского пункта.
3.1.9
дифференциальный ток;  : Среднеквадратичное значение векторной суммы токов, протекающих через главную цепь устройства дифференциального тока. |
3.1.9а
дуговой пробой (дуговое замыкание): Опасная непреднамеренная параллельная или последовательная дуга между проводниками. |
(п. 3.1.9а введен
Изменением N 4, утв. Приказом Минстроя России от 30.12.2020 N 919/пр)
3.1.10
заземляющий проводник: Защитный проводник, соединяющий заземлитель с главной заземляющей шиной (неизолированные части защитных проводников, которые находятся в земле, рассматривают в качестве заземлителя). |
3.1.10а
заливающее освещение: Общее (равномерное или неравномерное) освещение всего фасада здания или сооружения или его существенной части световыми приборами. |
(п. 3.1.10а введен
Изменением N 4, утв. Приказом Минстроя России от 30.12.2020 N 919/пр)
3.1.11
защитный проводник; PE: Проводник, предназначенный для целей электрической безопасности, например, для защиты от поражения электрическим током. |
3.1.12
защитный угол (светильника): Угол, характеризующий зону, в пределах которой глаз наблюдателя защищен от прямого действия источника света. |
(п. 3.1.12 в ред.
Изменения N 6, утв. Приказом Минстроя России от 28.12.2023 N 1005/пр)
3.1.13
импульсное напряжение: Перенапряжение, представляющее собой одиночный импульс или колебательный процесс длительностью до нескольких миллисекунд. |
3.1.14
источник света; ИС: Устройство, излучающее свет в результате преобразования электрической энергии. |
(п. 3.1.14 в ред.
Изменения N 6, утв. Приказом Минстроя России от 28.12.2023 N 1005/пр)
3.1.15 канал связи: Среда связи и коммуникационное оборудование для обмена данными между различными техническими средствами.
3.1.16 квартирный (абонентский) счетчик: Счетчик, учитывающий потребление энергоресурса квартиры и предназначенный для осуществления расчетов за потребляемый энергоресурс между абонентом и энергоснабжающей организацией.
3.1.17
квартирный групповой щиток: Щиток, устанавливаемый в квартире и предназначенный для присоединения групповых цепей, причем счетчик электроэнергии располагается на этажном учетно-распределительном щитке. |
(п. 3.1.17 в ред.
Изменения N 6, утв. Приказом Минстроя России от 28.12.2023 N 1005/пр)
3.1.18
квартирный учетно-групповой щиток: Щиток, устанавливаемый в квартире и предназначенный для присоединения групповых цепей и учета электроэнергии. |
(в ред.
Изменения N 6, утв. Приказом Минстроя России от 28.12.2023 N 1005/пр)
3.1.19
комбинированное искусственное освещение: Искусственное освещение, при котором к общему искусственному освещению добавляется местное. |
(п. 3.1.19 в ред.
Изменения N 4, утв. Приказом Минстроя России от 30.12.2020 N 919/пр)
3.1.20
кривая силы светы; КСС: Графическое изображение зависимости силы света осветительного прибора от меридиональных и экваториальных углов, получаемое сечением его фотометрического тела плоскостью или поверхностью. |
(п. 3.1.20 в ред.
Изменения N 6, утв. Приказом Минстроя России от 28.12.2023 N 1005/пр,
Изменения N 8, утв. Приказом Минстроя России от 29.11.2024 N 808/пр)
3.1.21
линейный проводник; L: Проводник, находящийся под напряжением при нормальных условиях и используемый для передачи электрической энергии, но не нейтральный проводник или средний. |
3.1.21а локальное освещение: Освещение части здания или сооружения, а также отдельных элементов окружающей среды осветительными приборами с небольшого расстояния.
(п. 3.1.21а введен
Изменением N 4, утв. Приказом Минстроя России от 30.12.2020 N 919/пр)
3.1.22
местное освещение: Освещение, дополнительное к общему, создаваемое светильниками, концентрирующими световой поток непосредственно на рабочих местах. |
(п. 3.1.22 в ред.
Изменения N 4, утв. Приказом Минстроя России от 30.12.2020 N 919/пр)
3.1.22а наружное архитектурное освещение: Освещение улично-дорожной сети, фасадов зданий и сооружений, учитывающее имеющиеся источники искусственного освещения - утилитарное наружное освещение, светящиеся витрины магазинов и рекламные вывески и пр., обеспечивающее архитектурную выразительность застройки городской среды.
(п. 3.1.22а введен
Изменением N 4, утв. Приказом Минстроя России от 30.12.2020 N 919/пр)
3.1.23
нейтраль: Общая часть многофазной системы переменного тока, соединенной звездой, находящаяся под напряжением, или средняя часть однофазной системы переменного тока, находящаяся под напряжением. |
3.1.24
нейтральный проводник; N: Проводник, электрически присоединенный к нейтрали и используемый для передачи электрической энергии. |
3.1.25
низкое напряжение: Напряжение, номинальное среднеквадратичное значение которого не превышает 1 кВ. |
3.1.26
номинальный ток аппарата: Интервал рабочих токов, указанный изготовителем с учетом номинального и рабочего напряжения, номинальной частоты, номинального режима, категории применения и типа защитной оболочки (при наличии). |
(в ред.
Изменения N 6, утв. Приказом Минстроя России от 28.12.2023 N 1005/пр)
3.1.27
номинальное рабочее напряжение аппарата: Значение напряжения, в сочетании с номинальным рабочим током определяющее его назначение, на которое ориентируются при проведении соответствующих испытаний и установлении категории применения. |
(в ред.
Изменения N 6, утв. Приказом Минстроя России от 28.12.2023 N 1005/пр)
3.1.28
номинальный рабочий ток аппарата: Ток, указанный изготовителем с учетом номинального рабочего напряжения, номинальной частоты, номинального режима (продолжительный, восьмичасовой, повторно-кратковременный), категории применения и типа защитной оболочки (при наличии). |
(в ред.
Изменения N 6, утв. Приказом Минстроя России от 28.12.2023 N 1005/пр)
3.1.29
номинальный длительный ток аппарата: Значение тока, указанное изготовителем, который может проводить аппарат в продолжительном режиме. |
(в ред.
Изменения N 6, утв. Приказом Минстроя России от 28.12.2023 N 1005/пр)
3.1.30
номинальная частота: Частота тока питания, на которую рассчитан аппарат, которой соответствуют его характеристики. |
(в ред.
Изменения N 6, утв. Приказом Минстроя России от 28.12.2023 N 1005/пр)
3.1.31
номинальное напряжение электроустановки: Значение напряжения, которым обозначают и идентифицируют электрическую установку или часть электрической установки. |
3.1.32
нормальные условия: Условия, при которых все средства защиты являются неповрежденными. |
3.1.33
общее равномерное искусственное освещение помещений: Освещение, при котором светильники размещаются в верхней зоне помещения и создают равномерное распределение освещенности на рабочих местах. |
(п. 3.1.33 в ред.
Изменения N 4, утв. Приказом Минстроя России от 30.12.2020 N 919/пр)
3.1.33а
оптическая ось: Условная прямая, проходящая через световой центр или фокус оптической системы осветительного прибора и принимаемая за начало отсчета угловых координат. |
(п. 3.1.33а в ред.
Изменения N 6, утв. Приказом Минстроя России от 28.12.2023 N 1005/пр)
3.1.34
осветительный прибор; ОП: Устройство, предназначенное для освещения и содержащее один или несколько электрических источников света, оптическую систему, элементы крепления источников света внутри ОП, элементы подключения ОП к системе питания, помещенные в корпус с выходным отверстием и узлом крепления, обеспечивающий защиту источников света и оптической системы от внешних воздействий окружающей среды и защиту от прикосновения к токоведущим частям ОП. |
(п. 3.1.34 в ред.
Изменения N 6, утв. Приказом Минстроя России от 28.12.2023 N 1005/пр)
3.1.35 осветительная арматура: Устройство, предназначенное для следующих целей: пространственного перераспределения и (или) спектрального преобразования излучения источника света, устранения или снижения слепящего действия источника света и оптической системы осветительного прибора, крепления источника света внутри осветительного прибора и собственно осветительного прибора к опорной поверхности, подключения источника света к системе питания и их устойчивой работы, защиты источника света и оптической системы от механических повреждений и воздействия окружающей среды, защиты от прикосновения к токоведущим частям осветительного прибора.
(п. 3.1.35 в ред.
Изменения N 6, утв. Приказом Минстроя России от 28.12.2023 N 1005/пр)
3.1.36 освещенность: Значение светового потока, приходящееся на единицу площади освещаемой поверхности.
3.1.37
питающая сеть (цепь): Сеть (цепь) от распределительного устройства подстанции или ответвления от воздушных линий электропередачи до вводного устройства, вводно-распределительного устройства, главного распределительного щита. |
(в ред.
Изменения N 6, утв. Приказом Минстроя России от 28.12.2023 N 1005/пр)
3.1.37а поправочный коэффициент для расчетной нагрузки электроприемников квартир жилых зданий для различных регионов Российской Федерации: Коэффициент, корректирующий значение расчетной нагрузки электроприемников квартир жилых зданий в регионах Российской Федерации, полученный на основании оценки фактического электропотребления жилых зданий для конкретного региона Российской Федерации.
(п. 3.1.37а введен
Изменением N 4, утв. Приказом Минстроя России от 30.12.2020 N 919/пр)
3.1.38 потребитель электроэнергии: Предприятие, организация, учреждение, здание и т.п., присоединенные к электрическим сетям энергоснабжающей организации и применяющие энергию с помощью электроприемников.
3.1.38а прожектор: Осветительный прибор, перераспределяющий свет источника (источников) света внутри малых телесных углов и обеспечивающий угловую концентрацию светового потока.
(п. 3.1.38а введен
Изменением N 4, утв. Приказом Минстроя России от 30.12.2020 N 919/пр)
3.1.39 расчетные счетчики: Счетчики, устанавливаемые для расчетного учета.
(п. 3.1.39 в ред.
Изменения N 8, утв. Приказом Минстроя России от 29.11.2024 N 808/пр)
3.1.40 расчетный учет электроэнергии: Учет выработанной и отпущенной потребителям электроэнергии для денежного расчета за нее.
(п. 3.1.40 в ред.
Изменения N 8, утв. Приказом Минстроя России от 29.11.2024 N 808/пр)
3.1.41
распределительная сеть: Электрическая низковольтная сеть, состоящая из источника питания и линии электропередачи и предназначенная для питания электроэнергией электроустановок зданий и других низковольтных электроустановок. |
3.1.42 распределительный пункт; РП: Устройство, в котором установлены аппараты защиты и коммутационные аппараты (или только аппараты защиты) для отдельных электроприемников или их групп (электродвигателей, групповых щитков).
(п. 3.1.42 в ред.
Изменения N 8, утв. Приказом Минстроя России от 29.11.2024 N 808/пр)
3.1.43
распределение силы света: Светораспределение, выраженное в виде зависимости силы света ОП от направления, задаваемого меридиональным и экваториальным углами в некоторой системе фотометрирования, получаемой сечением фотометрического тела ОП характерными плоскостями (поверхностями) и представляемой в графической, табличной или файловой форме. |
(в ред.
Изменения N 6, утв. Приказом Минстроя России от 28.12.2023 N 1005/пр)
3.1.44 световой поток: Мощность светового излучения, воспринимаемого человеком как видимый свет.
3.1.45
сверхток: Ток, превышающий номинальный. |
(в ред.
Изменения N 6, утв. Приказом Минстроя России от 28.12.2023 N 1005/пр)
3.1.46
светильник: ОП, перераспределяющий излучение источников света внутри больших, вплоть до  , телесных углов. |
(в ред.
Изменения N 6, утв. Приказом Минстроя России от 28.12.2023 N 1005/пр)
3.1.46а световое загрязнение (неба): Вид физического загрязнения окружающей среды, при котором засвечивается ночное небо искусственными источниками света, свет которых рассеивается в нижних слоях атмосферы, мешая проведению астрономических наблюдений, изменяя цикл роста растений и биоритмы живых существ.
(п. 3.1.46а введен
Изменением N 4, утв. Приказом Минстроя России от 30.12.2020 N 919/пр)
3.1.46б световое загрязнение (светоцветовой среды города): Создание дискомфортного зрительного восприятия освещенных объектов, ослепление водителей транспортных средств и пешеходов излучением осветительных приборов прямым и отраженным светом, засвечивание камер наружного наблюдения и окон жилых домов, создание чрезмерно ярких поверхностей дорожного полотна, фасадов зданий и других освещенных объектов.
(п. 3.1.46б введен
Изменением N 4, утв. Приказом Минстроя России от 30.12.2020 N 919/пр)
3.1.46в
световой центр: Условная точка во внутренней области оптической системы осветительного прибора, при помещении в которую светового центра лампы или при заданном расположении относительно которой ламп в многоламповом осветительном приборе светораспределение последнего в наименьшей степени отличается от расчетного. |
(п. 3.1.46в в ред.
Изменения N 6, утв. Приказом Минстроя России от 28.12.2023 N 1005/пр)
3.1.47
светораспределение: Характеристика осветительного прибора, определяющая распределение светового потока осветительного прибора, выражаемое через распределение силы света по направлениям пространства или освещенности по заданной поверхности. |
(п. 3.1.47 в ред.
Изменения N 6, утв. Приказом Минстроя России от 28.12.2023 N 1005/пр)
3.1.47а светоцветовая среда: Совокупность воздействия на органы зрения всех источников искусственного освещения - наружного утилитарного и архитектурного освещения, светящихся рекламных и иных конструкций, в вечернее и ночное время.
(п. 3.1.47а введен
Изменением N 4, утв. Приказом Минстроя России от 30.12.2020 N 919/пр)
3.1.48 суммарный (общедомовой) счетчик: Счетчик, учитывающий потребление энергоресурса в целом по дому.
3.1.49
сетевая организация: Организация, владеющая на праве собственности или на ином установленном законами основании объектами электросетевого хозяйства, с использованием которых оказывающая услуги по передаче электрической энергии и осуществляющая в установленном порядке технологическое присоединение энергопринимающих устройств (энергетических установок) юридических и физических лиц к электрическим сетям, а также осуществляющая право заключения договоров об оказании услуг по передаче электрической энергии с использованием объектов электросетевого хозяйства, принадлежащих другим собственникам и иным законным владельцам и не входящих в единую национальную электрическую сеть. |
3.1.50
совмещенный защитный заземляющий и нейтральный проводник (PEN-проводник): Проводник, выполняющий функции защитного заземляющего, а также нейтрального проводников. |
3.1.51
среднее напряжение: Напряжение, номинальное среднеквадратичное значение которого превышает 1 кВ, но не превышает 35 кВ. |
3.1.52
средний проводник; M: Проводник, электрически присоединенный к средней части электрической системы постоянного тока, находящийся под напряжением и используемый для передачи электрической энергии. |
3.1.53 счетчики технического учета: Счетчики, устанавливаемые для технического учета.
(п. 3.1.53 в ред.
Изменения N 8, утв. Приказом Минстроя России от 29.11.2024 N 808/пр)
3.1.54 технический (контрольный) учет электроэнергии: Учет для контроля расхода электроэнергии внутри электростанций, подстанций, предприятий, в зданиях, квартирах и т.п.
(п. 3.1.54 в ред.
Изменения N 8, утв. Приказом Минстроя России от 29.11.2024 N 808/пр)
3.1.55
ток короткого замыкания; т.к.з.: Сверхток, появляющийся в результате короткого замыкания, вызываемого повреждением или неправильным соединением в электрической сети. |
(в ред.
Изменения N 6, утв. Приказом Минстроя России от 28.12.2023 N 1005/пр)
3.1.56
ток замыкания на землю: Электрический ток, протекающий в землю, открытые и сторонние проводящие части и защитный проводник при повреждении изоляции части, находящейся под напряжением. |
3.1.57
ток утечки на землю: Электрический ток, протекающий в землю, открытые и сторонние проводящие части и защитные проводники при нормальных условиях. |
3.1.58
точка передачи электрической энергии: Точка электрической сети, находящаяся на линии раздела объектов электроэнергетики между владельцами по признаку собственности или владения на ином предусмотренном законами основании, определенная в процессе технологического присоединения. |
3.1.59
точка общего присоединения: Электрически ближайшая к конкретной нагрузке пользователя сети точка, к которой присоединены нагрузки других пользователей сети. |
3.1.60 точка питания потребителя: Точка распределительной сети электроснабжающей организации, от которой осуществляется подача энергии потребителю.
3.1.61 точка учета электроэнергии: Точка электроустановки, выбранная для технического или коммерческого (расчетного) учета.
3.1.62 устройство защитного отключения дифференциального тока; УДТ: Механический коммутационный аппарат, предназначенный для включения, проведения и отключения токов при нормальных условиях эксплуатации, а также размыкания контактов в случае, когда значение дифференциального тока достигает заданного значения в определенных условиях.
3.1.62а
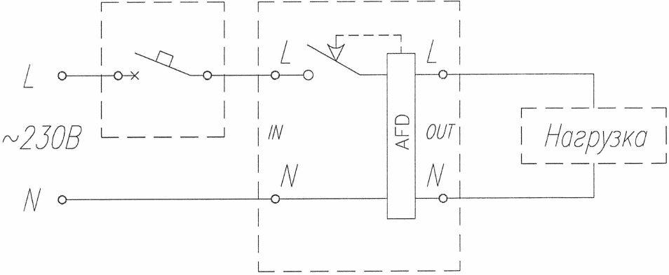
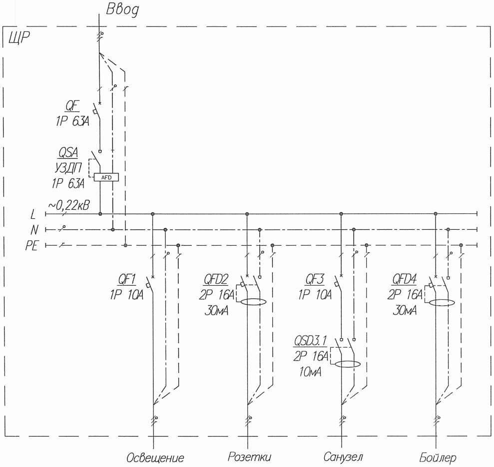
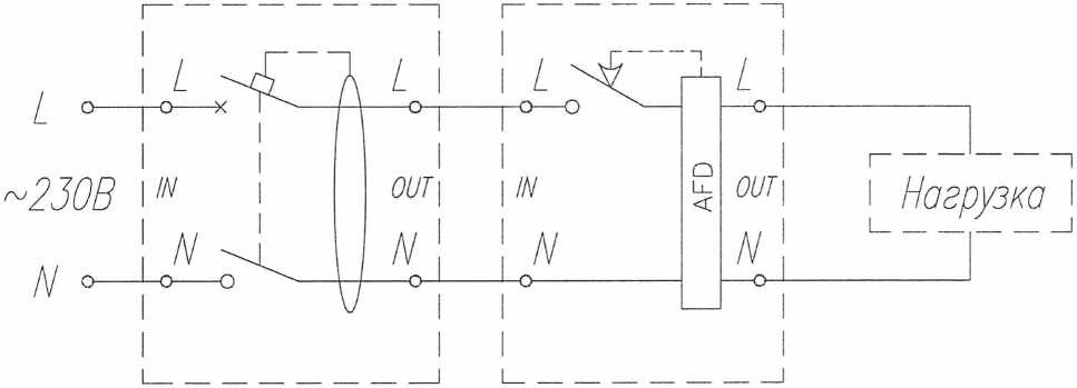
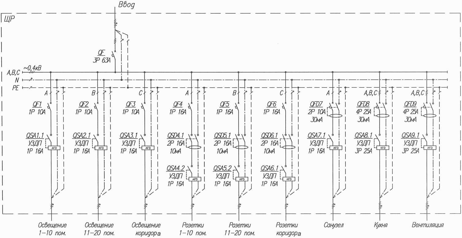
устройство защиты от дугового пробоя; УЗДП: Устройство, предназначенное для снижения эффектов дугового пробоя путем разъединения цепи при обнаружении дугового пробоя. |
(п. 3.1.62а введен
Изменением N 4, утв. Приказом Минстроя России от 30.12.2020 N 919/пр)
3.1.63 устройство сбора и передачи данных: Многофункциональное устройство в автоматическом режиме осуществляющее прием, обработку, хранение и отображение информации от счетчиков, датчиков и другого оборудования, и обеспечивающее передачу информации (по разным каналам связи) на вышестоящие уровни сбора и обработки информации, а также прием служебной информации и команд управления от систем верхнего уровня.
3.1.64
фазный проводник; L: Линейный проводник, используемый в электрической цепи переменного тока. |
3.1.65 шинопровод: Устройство предназначенное для передачи и распределения электроэнергии до 1 кВ, состоящее из системы изолированных шин, заключенных в жесткую оболочку, вместе с относящимися к нему ответвительными устройствами и поддерживающими опорными конструкциями, прошедшее тестовые испытания и поставляемое на место монтажа отдельными секциями для сборки в линию.
3.1.66
щелевой световод: Полый световод, светопропускающая часть оболочки которого выполнена в виде протяженной полосы на боковой поверхности, называемой оптической щелью. |
(п. 3.1.66 в ред.
Изменения N 4, утв. Приказом Минстроя России от 30.12.2020 N 919/пр,
Изменения N 6, утв. Приказом Минстроя России от 28.12.2023 N 1005/пр)
3.1.67 электропомещения: Помещения или отгороженная (например, сетками) часть помещения, в которой расположено электрооборудование, доступное только для квалифицированного обслуживающего персонала.
(п. 3.1.67 в ред.
Изменения N 8, утв. Приказом Минстроя России от 29.11.2024 N 808/пр)
3.1.68 электропроводка: Совокупность одного или более изолированных проводов, кабелей, шинопроводов или шин и частей для их прокладки, крепления и, при необходимости, механической защиты.
3.1.69 энергоснабжающая (ресурсопоставляющая) организация: Поставщик, оказывающий услуги по поставке энергоресурсов потребителям.
3.1.70
этажный распределительный щиток: Щиток, устанавливаемый на этаже (лестничных клетках, этажных коридорах) и предназначенный для присоединения квартирных учетно-групповых щитков. |
(в ред.
Изменения N 6, утв. Приказом Минстроя России от 28.12.2023 N 1005/пр)
3.1.71
этажный совмещенный щиток: Щиток, имеющий слаботочный отсек (для размещения устройств телефонной, радиотрансляционной, телевизионной и других слаботочных сетей). |
(в ред.
Изменения N 6, утв. Приказом Минстроя России от 28.12.2023 N 1005/пр)
3.1.72
этажный учетно-распределительный щиток: Щиток, устанавливаемый на этаже и предназначенный для присоединения квартирных групповых щитков и поквартирного учета электроэнергии. |
(в ред.
Изменения N 6, утв. Приказом Минстроя России от 28.12.2023 N 1005/пр)
3.2 Сокращения
АВР - автоматический ввод резерва;
АСКУЭР - автоматизированная система коммерческого учета потребления энергоресурсов;
АСУД - автоматизированная система управления и диспетчеризации инженерным оборудованием;
ВОЛС - волоконно-оптическая линия связи;
ВРУ - вводно-распределительное устройство;
ГРЩ - главный распределительный щит;
ЖКХ - жилищно-коммунальное хозяйство;
ЗРУ - закрытое распределительное устройство;
ИС - источник света;
КСС - кривая силы света;
КТП - комплексная трансформаторная подстанция;
ОП - осветительный прибор;
ПРА - пускорегулирующий аппарат;
СДК - система диспетчерского контроля за работой лифтов;
ТП - трансформаторная подстанция;
УДТ - устройство защитного отключения дифференциального тока;
УЗДП - устройство защиты от дугового пробоя;
(абзац введен
Изменением N 4, утв. Приказом Минстроя России от 30.12.2020 N 919/пр)
УСПД - устройство сбора и передачи данных;
ЦТП - центральный тепловой пункт.
4.1 При проектировании электроустановок жилых и общественных зданий необходимо руководствоваться требованиями действующих документов по стандартизации в области строительства, других нормативных документов, утвержденных в установленном порядке. Классификацию основных типов зданий и помещений общественного назначения следует принимать по
СП 118.13330.
(в ред.
Изменения N 6, утв. Приказом Минстроя России от 28.12.2023 N 1005/пр)
4.2 На электрооборудование и материалы, подлежащие обязательной сертификации, должны быть сертификаты соответствия и пожарной безопасности.
(в ред.
Изменения N 6, утв. Приказом Минстроя России от 28.12.2023 N 1005/пр)
4.3 Конструкция, исполнение, способ установки, класс изоляции и степень защиты электрооборудования должны соответствовать номинальному напряжению сети и условиям окружающей среды.
Все электрооборудование следует выбирать таким образом, чтобы оно не вызывало опасных воздействий на прочее оборудование и питание при нормальном функционировании, включая коммутационные переключения.
Следует предусматривать конструктивную защиту электрооборудования или конструктивных элементов от распространения пожара в окружающее пространство. Системы пожарной сигнализации и пожаротушения должны соответствовать требованиям
СП 484.1311500,
СП 485.1311500,
СП 486.1311500.
(в ред.
Изменения N 4, утв. Приказом Минстроя России от 30.12.2020 N 919/пр)
4.4 В общественных зданиях рекомендуется предусматривать отдельные помещения для хранения и ремонта светильников и электрооборудования (при числе светильников 300 и более) из расчета 10 м2 на каждые 1000 светильников, но не менее 15 м2.
Следует также предусматривать помещение для хранения технических средств для обслуживания светильников, установленных на высоте более 5 м от пола.
4.5 В архитектурно-строительных чертежах, проектах и чертежах строительных изделий по заданиям, разработанным проектировщиками электротехнической части проекта должны быть предусмотрены электропомещения, каналы, ниши, закладные детали для электропроводок, плинтусы и наличники с каналами для электропроводок.
5 Искусственное освещение
5.1 Системы и виды освещения
(п. 5.1.1 в ред.
Изменения N 6, утв. Приказом Минстроя России от 28.12.2023 N 1005/пр)
5.1.2, 5.1.3 Исключены с 29.01.2024. -
Изменение N 6, утв. Приказом Минстроя России от 28.12.2023 N 1005/пр.
(в ред.
Изменения N 6, утв. Приказом Минстроя России от 28.12.2023 N 1005/пр)
5.1.5 Исключен с 29.01.2024. -
Изменение N 6, утв. Приказом Минстроя России от 28.12.2023 N 1005/пр.
5.1.6 Для дежурного освещения вестибюлей, коридоров, конференц-залов, актовых залов и торговых залов следует применять часть светильников рабочего освещения с питанием их от самостоятельной групповой линии. Допускается применять светильники эвакуационного освещения.
Дежурное (ночное) освещение палат лечебно-профилактических учреждений следует выполнять по
СП 158.13330.
5.1.7 В учебных помещениях, спортивных залах и бассейнах школ; в групповых, игральных и комнатах для музыкальных и гимнастических занятий детских дошкольных учреждений, расположенных севернее 65° с.ш., следует предусматривать витальные (эритемные) облучательные установки для профилактического ультрафиолетового облучения.
Методические указания к проектированию облучательных установок длительного действия, а также фотариев приведены в
[5].
5.1.8 Входы в здания, мусоросборные камеры, а также номерные знаки домов и указатели пожарных гидрантов (если для них не применяются световые указатели) должны освещаться светильниками, присоединенными к сети аварийного эвакуационного освещения.
5.1.9 Огни светового ограждения следует устраивать в соответствии с
[6].
(в ред.
Изменения N 6, утв. Приказом Минстроя России от 28.12.2023 N 1005/пр)
5.2 Показатели искусственного освещения помещений
Подраздел 5.2 исключен с 29.01.2024. -
Изменение N 6, утв. Приказом Минстроя России от 28.12.2023 N 1005/пр.
5.3.1 Требования к источникам света для жилых и общественных зданий принимаются по
СП 52.13330.
(п. 5.3.1 в ред.
Изменения N 4, утв. Приказом Минстроя России от 30.12.2020 N 919/пр)
5.3.2 - 5.3.7 Исключены с 01.07.2021. -
Изменение N 4, утв. Приказом Минстроя России от 30.12.2020 N 919/пр.
5.4 Выбор и расположение светильников
5.4.1 Тип светильников следует выбирать с учетом характера их светораспределения, кривых силы света, экономической эффективности и условий окружающей среды. Условия окружающей среды, соответствующие помещения и зоны приведены в таблице 5.3.
Таблица 5.3
Классификация помещений и зон
Условия окружающей среды | Примеры помещений |
Пожароопасные класса: | |
П-I | Закрытые автостоянки, расположенные под зданиями |
П-II | Столярные мастерские |
П-IIа | Фонды открытого доступа к книгам, книгохранилища, архивы, переплетные и макетные мастерские, печатные отделения офсетной печати, светокопировальные; киноаппаратные; перемоточные; помещения для нарезки тканей, рекламно-декорационные мастерские; витрины с экспозицией из горючих материалов; помещения для хранения бланков, упаковочных материалов и контейнеров; отделения приема и выдачи белья и одежды, отделения разборки, починки и упаковки белья; пошивочные цехи, закройные отделения; отделения подготовки прикладных материалов, помещения ремонта одежды, ручной и машинной вязки, изготовления и ремонта головных уборов, скорняжных работ; фонотеки; кладовые: продуктов в сгораемой упаковке, в непродовольственных магазинах, пункта проката и спецодежды; чердаки, кладовые и подсобные помещения квартир и усадебных домов |
Пыльные | Отделы электрофотографирования |
Влажные | Фотолаборатории; дистилляторные, автоклавные; горячие, доготовочные и заготовочные цехи; загрузочные, кладовые и моечные тары, кладовые овощей; сушильно-гладильные отделения, прачечные самообслуживания, утюжные; декатировочные; санитарные узлы; тепловые пункты; охлаждаемые камеры; раздевальные в банях, душевые, насосные |
Сырые | Моечные кухонной и столовой посуды; отделения механической стирки, приготовления стиральных растворов; насосные; бассейны; сауны |
Особо сырые | Отделения ручной стирки; душевые, ванные, моечные, парильные |
Жаркие | Горячие цехи предприятий общественного питания; парильные, моечные |
Химически активные | Помещения ремонта и зарядки аккумуляторов, электролитные; отделения химической чистки |
Взрывоопасные | Помещения зарядки тяговых и стартерных аккумуляторов (в верхней зоне выше отметки 0,75 м от уровня пола) |
5.4.2 Во взрыво- и пожароопасных зонах осветительные установки должны проектироваться и выполняться с учетом требований
15.44 и
СП 423.1325800.
(в ред.
Изменения N 6, утв. Приказом Минстроя России от 28.12.2023 N 1005/пр)
5.4.3 Минимально допустимую степень защиты светильников по
ГОСТ 34819 и
ГОСТ 14254 для освещения непожаро- и невзрывоопасных помещений с разными условиями среды следует принимать по таблице 5.4.
(в ред.
Изменения N 6, утв. Приказом Минстроя России от 28.12.2023 N 1005/пр)
Таблица 5.4
Минимально допустимая степень защиты светильников
| Минимально допустимая степень защиты светильников | Тип источника света | Условия среды |
нормальные | влажные | сырые | особо сырые | химически активные | пыльные | жаркие |
1 | 2 | 3 | | 5 | | | 8 | 9 |
1 | IP20 | ЛЛ, СД | + | * | - | - | - | - | + |
2 | IP20 | ЛН, ГЛВД | + | * | | - | - | - | + |
3 | IP23 | ЛЛ, ЛН, ГЛВД, СД | (-) | + | | * | | | |
4 | IP51 | ЛН | (-) | (-) | | * | * | + | |
5 | IP53 | ЛЛ, ЛН, ГЛВД, СД | (-) | + | | + | + | + | |
6 | IP54 | ЛЛ, ГЛВД, СД | (-) | (-) | + | + | + | + | * |
7 | IP54 | ЛН | (-) | (-) | + | + | | + | |
Обозначения: "+" - светильники рекомендуются; "*" - светильники допускаются: "-" - светильники запрещаются; (-) - применение светильников возможно, но нецелесообразно. Примечания 1 Графа 4 - предпочтительны светильники с корпусами и отражателями из влагостойкой пластмассы, фарфора, покрытые силикатной эмалью; рекомендуются светильники, специально предназначенные для химически активной среды. 2 Позиция 2 графа 5 - светильники допускаются при отсутствии капель воды, падающих на них, и при наличии фарфорового патрона. 3 Позиции 3, 5 графы 5 - 7 - установка светильников со степенями защиты IP23 и IP53 с ЛН и ГЛВД запрещается, при наличии брызг воды (растворов), падающих на светильник под углом более 60° к вертикали. 4 Позиция 7 графа 7 - светильники, которые сверху могут быть залиты водой или раствором, должны быть с боковым вводом проводов. 5 Позиция 4 графы 5 - 7 - при наличии брызг воды (растворов), падающих на светильник под углом более 15° к вертикали, светильники с нетермостойким стеклом допускаются при условии установки в них ламп меньшей мощности, чем номинальная для данного светильника. 6 Графы 4 - 6 - в пыльных помещениях рекомендуется применение в светильниках ламп с внутренним отражающим слоем. 7 Позиция 3 графа 8 - светильники допускаются при ограниченном количестве пыли в зоне их установки. 8 Позиции 3, 4, 5, 7 графа 9 - рекомендуется установка в светильниках с лампами накаливания указанных степеней защиты ламп меньшей мощности, чем номинальная для данного светильника. 9 Позиция 3 графа 7 - допускаются при условии выполнения деталей светильников, контактов патронов и цоколей ламп из материала, не подверженного воздействию данной химически активной среды. |
5.4.4 В рабочих помещениях рекомендуется применять светильники прямого и рассеянного света с кривой силы света типа Л в нижней полусфере по
ГОСТ 34819.
(в ред.
Изменения N 6, утв. Приказом Минстроя России от 28.12.2023 N 1005/пр)
5.4.5 В помещениях административных и учебных зданий со светлыми потолками для уменьшения контрастов яркости в поле зрения должны применяться, как правило, светильники, направляющие в верхнюю полусферу не менее 10% - 15% излучаемого ими светового потока. Если в помещении необходимо обеспечить повышенный уровень цилиндрической освещенности, то средневзвешенный по поверхности коэффициент отражения стен должен быть не менее 40%, а потолка - не менее 50%.
5.4.6 Для создания наибольшего уровня вертикальной освещенности в осветительной установке общего равномерного освещения следует применять светильники с кривыми силы света типов Л, Д и М по
ГОСТ 34819.
(в ред.
Изменения N 6, утв. Приказом Минстроя России от 28.12.2023 N 1005/пр)
5.4.7 При устройстве акцентирующего освещения следует применять светильники со значительной концентрацией светового потока с кривыми силы света типов К и Г.
5.4.8 В учебных классах, спортивных и актовых залах учебных заведений, помещений детских дошкольных учреждений, в конструкторских бюро следует предусматривать отключение светильников рядами, параллельными световым проемам или плавное, или ступенчатое регулирование в зависимости от естественного освещения.
5.4.9 Помещения, оборудованные дисплеями, следует освещать люминесцентными и светодиодными светильниками прямого света, у которых ограничена яркость в зоне от 50° до 90° от вертикали (светильники с несветящимися боковинами и экранирующими решетками или призматическими рассеивателями).
Светильники следует располагать таким образом, чтобы исключить отраженную блескость на экранах.
5.4.10 Комплектные осветительные устройства (КОУ) с щелевыми световодами рекомендуется применять для общего освещения спортивных залов, плавательных бассейнов, торговых залов и протяженных наружных витрин магазинов и т.п., а также в больших помещениях производственного характера (склады, прачечные и т.п.). Применение КОУ должно быть подтверждено технико-экономическим расчетом.
5.4.11 В помещениях лечебно-профилактических учреждений при выборе светильников следует учитывать требования
СП 158.13330.
5.4.12 Выходные отверстия люминесцентных светильников прямого и преимущественно прямого света по
ГОСТ 34819, применяемых для освещения крытых бассейнов, должны быть перекрыты светорассеивающим материалом.
(в ред.
Изменения N 8, утв. Приказом Минстроя России от 29.11.2024 N 808/пр)
Светильники следует, как правило, располагать на потолке в зоне, удобной для обслуживания (над продольными краями ванны). Допускается установка светильников на боковых стенах в зоне 2 по
ГОСТ Р 50571.7.702-2013. При отсутствии зоны 2 высота установки нижней части осветительного оборудования должна быть не менее 2 м от нижней границы зоны 1. При установке светильников на стене или на потолке в зоне 1 осветительная сеть должна быть защищена от токов короткого замыкания и перегрузок автоматическим отключением питания и дополнительной защитой УДТ с номинальным дифференциальным отключающим током не более 30 мА.
5.4.13 Потолочные люминесцентные светильники, применяемые для освещения спортивных залов, должны, как правило, направлять в верхнюю полусферу не менее 10% суммарного светового потока.
Светильники следует располагать на потолке или в верхней части стен вдоль боковых линий спортивной площадки.
Не допускается располагать светильники на торцовых стенах зала или на потолке вдоль этих стен (за исключением светильников отраженного света).
В спортивных залах следует предусматривать меры, исключающие возможность повреждения светильников от ударов мяча.
5.4.14 Освещение книго- и архивохранилищ должно выполняться светильниками, установленными по оси проходов между стеллажами. Исполнение светильников в указанных помещениях, а также кладовых непродовольственных магазинов, ателье, в хранилищах учреждений финансирования и кредитования должно выбираться в соответствии с требованиями к светильникам, установленным в пожароопасных зонах класса П-IIа в соответствии с
[3]. Монтаж светильников должен выполняться в соответствии с требованиями
ГОСТ Р 50571.4.42.
(п. 5.4.14 в ред.
Изменения N 4, утв. Приказом Минстроя России от 30.12.2020 N 919/пр,
Изменения N 6, утв. Приказом Минстроя России от 28.12.2023 N 1005/пр)
5.4.15 В торговых залах светильники общего освещения, расположенные над кассовыми узлами, следует присоединять к сети аварийного эвакуационного освещения.
Для дополнительного освещения кассовых узлов следует предусматривать локализованное (низко опущенные над кассами подвесные светильники) или местное (светильники, укрепленные на стойках, настенные в зависимости от расположения кассы и т.п.) освещение.
5.4.16 Общее освещение витрин следует выполнять осветительными устройствами и светильниками прямого света, размещенными в верхней зоне. Дополнительное освещение для выделения отдельных товаров следует выполнять осветительными приборами с концентрированной кривой силы света с лампами накаливания, преимущественно с зеркальными и светодиодными. Осветительные приборы для дополнительного освещения следует размещать на нижних или на верхних передних кромках витрин, за импостами по высоте витрин и в витринном пространстве.
Для ограничения слепящего действия источники света, расположенные в верхней зоне витрин, должны быть защищены экранами и рассеивателями так, чтобы защитный угол в направлении наблюдения был не менее 30° для осветительных приборов, установленных на высоте более 3 м, и 45° - на высоте менее 3 м над полом помещения или тротуаром.
Источники света, установленные в средней и нижней зонах витрин (ниже 2 м над тротуаром или полом витрины), должны быть защищены экранами и рассеивателями так, чтобы светящиеся поверхности не были видны наблюдателям.
5.4.17 Во всех помещениях квартир, за исключением лоджий, должна быть предусмотрена возможность установки светильников общего освещения. Как правило, эти светильники должны подвешиваться или закрепляться на потолке. В подсобных помещениях (кухнях, передних, коридорах, холлах, кладовых), а также в дополнительных помещениях (игровой, столовой, мастерской и др.) общее освещение допускается осуществлять настенными светильниками.
(в ред.
Изменения N 6, утв. Приказом Минстроя России от 28.12.2023 N 1005/пр)
Допускается установка светильников на лоджиях и балконах на высоте не менее 2 м до низа светильника при условии применения дополнительной защиты с помощью УДТ с дифференциальным током срабатывания не более 30 мА. Рекомендуется подключать эти светильники к ближайшей розеточной сети, защищенной УДТ. Выключатели для них следует устанавливать внутри помещений. Открытая прокладка электропроводки на балконе допускается на высоте не менее 2 м.
В проектах и сметах следует предусматривать установку в жилых комнатах, кухнях и передних квартир клеммных колодок для подключения светильников, а в кухнях и коридорах, кроме того, - подвесных патронов, присоединяемых к клеммной колодке. В уборных квартир следует устанавливать над дверью стенной патрон. В ванных следует предусматривать установку светильника класса защиты 2 над умывальником на высоте не менее 2 м.
В кладовых и подсобных помещениях квартир и усадебных домов стационарное освещение следует выполнять, в помещениях класса П-IIа. Установка штепсельных розеток в этих помещениях запрещается.
При установке светильников внутри мебели необходимо выполнять требования
ГОСТ Р 50571.7.713.
В соответствии с заданием на проектирование возможны установка дополнительных светильников и применение специальных схем управления освещением квартир (например, управление с нескольких мест, кратковременного действия, сенсорного действия, в зависимости от уровня освещенности и т.п.).
5.4.18 В жилых комнатах квартир и общежитий площадью 10 м2 и более следует предусматривать возможность установки многоламповых светильников с включением ламп двумя частями. При установке в жилых комнатах общежитий нескольких люминесцентных светильников следует предусматривать возможность их раздельного включения.
Крюк в потолке для подвешивания светильника должен быть изолирован. Это требование не относится к случаям крепления крюков к деревянным перекрытиям, а также в случае применения светильников класса защиты 1.
Размеры крюков для подвеса бытовых светильников должны быть: 35 мм - внешний диаметр полукольца; 12 мм - расстояние от перекрытия до начала изгиба. При изготовлении крюков из круглой стали диаметр прутка должен быть 6 мм.
5.4.19 Приспособления (в том числе крюки) для подвешивания светильников должны выдерживать в течение 10 мин без повреждения и остаточных деформаций приложенную к ним нагрузку, равную пятикратной массе светильника. В проектах масса светильника для жилых комнат, кухонь и передних квартир принимается 10 кг.
5.4.20 Лестницы, холлы, вестибюли и коридоры жилых зданий следует освещать потолочными или настенными светильниками.
Разрешается применение светильников-блоков с люминесцентными лампами мощностью до 40 Вт без рассеивателей. Высота установки таких светильников от пола должна быть не менее 2,2 м до низа светильника.
Светильники с лампами накаливания, предназначенные для включения в ночное время, рекомендуется укомплектовывать лампами мощностью не более 60 Вт на напряжение 235 - 245 В.
5.4.21 В технических подпольях и на чердаках жилых зданий освещение должно устанавливаться только по линии основных проходов. Освещение хозяйственных кладовых с решетчатыми перегородками, находящихся в пользовании жильцов и расположенных в подвале, рекомендуется выполнять светильниками, установленными в проходах (без установки дополнительных светильников в этих помещениях). При глухих перегородках должно быть предусмотрено освещение каждой кладовой. В домах высотой один и два этажа, а также в домиках садоводческих товариществ устройство освещения чердаков может не быть. Электроснабжение домиков садоводческих товариществ должно соответствовать
ГОСТ Р 50571.7.705.
5.4.22 Шахты лифтов, а также машинные помещения, помещения верхних блоков, площадки перед дверьми шахты, проходы и коридоры, ведущие к лифту, к помещению верхних блоков и к приямку шахты, должны быть оборудованы стационарным освещением.
В остекленных или огражденных сетками шахтах выполнение стационарного освещения необязательно, если искусственное освещение вне шахты обеспечивает необходимую освещенность внутри шахты.
Аварийное освещение кабин лифтов выполняется по
ГОСТ Р 53780.
5.4.23 При проектировании осветительных установок необходимо учитывать требования эксплуатации светильников.
В строительной части проекта должны быть предусмотрены технические средства для обслуживания светильников, установленных на высоте более 5 м от пола (напольные передвижные подъемные устройства, стационарные и передвижные мостики, галереи и т.п.).
Светильники, установленные на высоте 5 м и менее от пола (принимается высота до низа светильников), обслуживаются со стремянок, приставных лестниц и тому подобных технических средств.
5.4.24 К светильникам верхнего обслуживания, встраиваемым в подвесные потолки, должен быть обеспечен безопасный доступ обслуживающего персонала. При этом прочность стационарных или передвижных огражденных мостиков должна быть рассчитана с учетом нахождения у любого из светильников двух человек с инструментом общей массой 200 кг. Зазор между верхом светильника и потолком не должен быть меньше минимального зазора, указанного на корпусе светильника или в его инструкции эксплуатации.
5.5 Наружное архитектурное освещение
(подраздел 5.5 введен
Изменением N 4, утв. Приказом Минстроя России от 30.12.2020 N 919/пр)
5.5.1 Общие требования
5.5.1.1 Архитектурное освещение должно способствовать созданию комфортной светоцветовой среды городских и сельских населенных пунктов, а также обеспечивать архитектурную выразительность освещаемых объектов.
5.5.1.2 При проектировании и монтаже архитектурного освещения должны быть предприняты меры по снижению и устранению возможного негативного влияния излучения ОП: засветки окон жилых зданий, слепящего воздействия на водителей транспортных средств и пешеходов, светового загрязнения ночного неба над городами и населенными пунктами. В качестве мер по снижению и устранению возможного негативного влияния излучения ОП рекомендуется применять защитные экраны, козырьки и т.п.
5.5.1.3 При разработке проектов архитектурного освещения следует учитывать влияние на создаваемую светоцветовую среду существующих источников искусственного освещения: утилитарного наружного освещения, светящихся витрин магазинов, рекламных вывесок и других источников света в соответствии с требованиями
5.5.5.
5.5.1.4 Оформление документации архитектурного освещения следует выполнять в соответствии с требованиями
ГОСТ 21.607,
ГОСТ 21.608.
5.5.2 Предпроектное обследование объекта освещения
5.5.2.1 На подготовительном этапе разработки проекта осветительной установки следует выполнить обследование освещаемого объекта. По итогам обследования следует получить и определить следующую основную информацию:
- места установки щитков освещения и шкафов управления (при их наличии);
- места установки антенн (при их наличии) для дистанционного беспроводного управления осветительной установкой;
- точки подключения щитков освещения (ГРЩ, ВРУ, ТП и т.п.);
- трассы прокладки распределительных сетей до щитков освещения и групповых сетей до ОП внутри и снаружи здания;
- конструкция, материалы, толщина и цвет стен;
- размеры окон и межоконных простенков;
- способы мытья окон при сплошном остеклении фасадов общественных зданий;
- наличие вентилируемых фасадов;
- наличие и места расположения деформационных швов (температурных, осадочных, антисейсмических);
- наличие и места прокладки на фасадах зданий и сооружений инженерных коммуникаций, включая их элементы.
5.5.2.2 Места размещения щитков, антенн, точек подключения, трассы прокладки кабелей требуется согласовать со службой эксплуатации объекта.
5.5.3 - 5.5.5 Исключены с 29.01.2024. -
Изменение N 6, утв. Приказом Минстроя России от 28.12.2023 N 1005/пр.
5.5.6 Выбор осветительных приборов и способов их установки
5.5.6.1 Для архитектурного освещения следует применять ОП, предназначенные для этой цели, имеющие характеристики, соответствующие условиям эксплуатации: температура окружающей среды, степень защиты от пыли и влаги.
5.5.6.2 Рекомендуется выбирать ОП комплектно с конструкциями для их крепления (кронштейнами).
5.5.6.3 Осветительные приборы для архитектурного освещения, как правило, устанавливают непосредственно на освещаемом фасаде, на опорах освещения (допускается установка ОП на существующих опорах утилитарного наружного освещения), в грунте (ландшафтное освещение).
5.5.6.4 Для архитектурного освещения рекомендуется применять ОП со светодиодными и металлогалогенными источниками света.
5.5.6.5 При выборе типов ОП для акцентирующего освещения определенных архитектурных элементов необходимо применять ОП, обеспечивающие оптимальную реализацию поставленной задачи. Например, при освещении колонн, скульптур и иных вертикальных архитектурных элементов рекомендуется применять светильники прожекторного типа, при освещении карнизов, фронтонов и иных горизонтальных архитектурных элементов рекомендуется применять линейные светильники с возможностью установки в сплошную линию.
5.5.6.6 Светодинамические ОП с возможностью управления цветностью излучения следует применять, если предусмотрен динамический сценарий освещения (изменение цветности или интенсивности излучения ОП осветительной установки).
5.5.6.7 Для ОП, посредством которых создаются протяженные светящиеся линии (например, для освещения карнизов линейными светильниками), рекомендуется предусматривать конструкции для установки ОП в линию.
Конструкция, представляющая, например, Z-образный профиль должна быть прикреплена к фасаду здания на расстоянии, обеспечивающем требуемое расстояние от оптической оси ОП до поверхности фасада здания. Для крепления конструкций на заданном расстоянии от фасада могут быть использованы кронштейны соответствующей длины.
Все секции профиля, составляющего конструкцию для установки ОП в линию, должны быть жестко соединены между собой.
Примечание - Применение конструкций для установки ОП в линию сокращает число мест сверления стен при установке крепежных конструкций (кронштейнов), позволяет избежать случаев сверления стен непосредственно над окнами зданий, а также обеспечивает эффект ровной светящейся линии на освещаемом архитектурном элементе.
5.5.6.8 Во избежание повреждения ОП наружного архитектурного освещения при проведении ремонтных работ в процессе эксплуатации следует применять меры защиты (временные ограждения).
5.5.6.9 Крепежные элементы (например, анкерные болты для кирпича или бетона) должны иметь антикоррозионную защиту для эксплуатации на открытом воздухе.
Для крепления ОП и конструкций для их установки на стенах из пустотелого кирпича следует использовать цементные растворы в соответствии с рекомендациями изготовителей крепежных элементов (анкерных болтов и т.п.).
5.5.7 Исключен с 29.01.2024. -
Изменение N 6, утв. Приказом Минстроя России от 28.12.2023 N 1005/пр.
5.5.8 Особенности освещения памятников архитектуры и культурного наследия
5.5.8.1 Осветительные приборы, конструкции для их установки, электропроводки и прочие элементы осветительной установки во избежание негативного влияния на внешний вид объектов освещения рекомендуется устанавливать за карнизами, за колоннами, в нишах и т.п. таким образом, чтобы не искажать внешний вид объектов освещения в светлое время суток.
Корпуса ОП, кронштейны, электротехнические короба, ответвительные коробки и прочие элементы осветительной установки, устанавливаемые на фасадах зданий и других освещаемых поверхностях, рекомендуется окрашивать в цвет фона поверхностей, на которых они установлены.
5.5.8.2 При проектировании и монтаже архитектурного освещения памятников архитектуры и культурного наследия следует принимать решения, обеспечивающие наименьшее механическое воздействие на объект освещения (штробление, сверление отверстий в стенах и других архитектурных элементах).
5.5.8.3 Для освещения одно- и двухэтажных зданий рекомендуется рассматривать возможность установки ОП на земле и на опорах, в том числе на существующих опорах наружного утилитарного освещения.
5.5.8.4 Заливающее освещение зданий рекомендуется выполнять с поверхности земли или с опор.
5.5.8.5 Прожекторы с узким углом рассеивания используют для локального освещения отдельных зон фасадов, а также для акцентирующего освещения архитектурных элементов.
5.5.9 Требования к электропроводкам
5.5.9.1 В электрических сетях с номинальным напряжением 220 (230) В электропроводки следует выполнять с разделенными нейтральным (N) и защитным (PE) проводниками.
5.5.9.2 Следует применять кабели с токопроводящими медными жилами или жилами из алюминиевых сплавов, не распространяющие горение.
Допускается использовать самонесущие изолированные провода на участках трасс, не доступных с земли, поверхности кровли, балкона или из окна без использования лестниц, стремянок и иных приспособлений.
5.5.9.3 Все электропроводки, расположенные внутри здания до их выхода на фасад или кровлю, следует выполнять электрическими кабелями, выбранными в соответствии с назначением здания согласно
ГОСТ 31565.
5.5.9.4 Неметаллические трубы и короба, используемые для прокладки электрических сетей, должны иметь исполнение, допускающее их применение в наружных электропроводках.
5.5.9.5 Должно быть обеспечено надежное крепление съемных крышек коробов. При необходимости следует применять дополнительные крепежные элементы. Съемные крышки коробов (в том числе неметаллических) и ответвительных коробок могут быть сняты лишь с использованием специального инструмента (отвертки, пассатижи, гаечные ключи и т.п.).
5.5.9.6 Неметаллические трубы должны иметь параметры "степень сопротивления сжатию" и "степень сопротивления удару" не ниже класса 3 (средняя) по
ГОСТ Р МЭК 61386.1.
5.5.9.7 Кабели управления к светодинамическим и иным ОП, требующим подключения к кабелям управления, должны быть проложены в отдельной трубе, в отдельном коробе или в общем коробе с перегородкой в различных секциях с силовыми кабелями. При этом короб должен иметь сплошные продольные перегородки с пределом огнестойкости не менее 0,25 ч из несгораемого материала.
(п. 5.5.9.7 в ред.
Изменения N 8, утв. Приказом Минстроя России от 29.11.2024 N 808/пр)
5.5.9.8 Следует предусматривать меры безопасности от поражения электрическим током в соответствии с
5.5.11.
5.5.9.9 Электропроводки по фасадам зданий должны быть проложены в металлических коробах и трубах, в жестких неметаллических трубах и коробах, соответствующих
ГОСТ Р 53313.
Допускается прокладка кабелей без дополнительной защиты коробами и трубами при условии выполнения требований
5.5.9.13.
Прокладку кабелей внутри вентилируемого фасада следует выполнять с учетом требований
СП 522.1325800.
(абзац введен
Изменением N 6, утв. Приказом Минстроя России от 28.12.2023 N 1005/пр)
5.5.9.10 При выборе трасс электропроводок следует учитывать имеющиеся на фасадах инженерные коммуникации, карнизы, водосточные трубы и т.п.
5.5.9.11 Электропроводки, прокладываемые в непосредственной близости от инженерных коммуникаций, должны удовлетворять требованиям ГОСТ Р 50571.5.52-2011
(раздел 528).
5.5.9.12 Трассы электропроводок и места установки ответвительных коробок рекомендуется выбирать таким образом, чтобы они не нарушали внешний вид здания.
Например, вертикальные электропроводки могут быть проложены параллельно водосточным трубам, горизонтальные - над промежуточными карнизами.
5.5.9.13 Минимальные расстояния от электрических кабелей, проложенных без дополнительной защиты коробами или трубами, до окон и балконов зданий следующие:
- при горизонтальной прокладке под балконом, крыльцом - не менее 2,5 м;
- при горизонтальной прокладке над окном - не менее 0,5 м;
- при горизонтальной прокладке под балконом, под окном (от подоконника) - не менее 1 м;
- при вертикальной прокладке до окна - не менее 0,75 м;
- при вертикальной прокладке до балкона - не менее 1 м;
- при вертикальной прокладке от земли - не менее 2,75 м.
(п. 5.5.9.13 в ред.
Изменения N 8, утв. Приказом Минстроя России от 29.11.2024 N 808/пр)
5.5.9.14 Минимальные расстояния от электрических кабелей, проложенных в коробах и трубах до окон и балконов (лоджий), следует принимать:
- при горизонтальной прокладке над балконом (лоджией) и крыльцом - 2,25 м, под окном - 0,5 м;
- при вертикальной прокладке до окна - 0,5 м, до балкона (лоджии) - 0,7 м, от уровня земли - 2,5 м.
5.5.9.15 В местах пересечения деформационных швов зданий кабеленесущие системы, расположенные по обе стороны от шва, не должны иметь между собой жесткого крепления. Металлические кабеленесущие системы должны быть соединены гибким проводником уравнивания потенциалов.
Кабели в этих местах должны иметь достаточный запас длины, обеспечивающий их целостность при смещении строительных конструкций.
5.5.9.16 Электропроводки, проложенные на кровлях зданий, не должны:
- препятствовать уборке снега;
- нарушать гидроизоляцию кровли;
- препятствовать свободному стоку дождевой воды к воронкам.
5.5.9.17 Электропроводки на кровлях зданий могут быть проложены в металлических коробах и трубах, в жестких неметаллических коробах и трубах, соответствующих
ГОСТ Р 53313, и (или) по специально сооружаемым кабеленесущим конструкциям с заземлением, соответствующим требованиям
ГОСТ Р 52868.
При устройстве кабеленесущих конструкций их низ должен возвышаться над уровнем кровли не менее чем на 150 мм и должна быть предусмотрена защита кабельных линий от механических повреждений. Допускается применение самонесущих изолированных проводов.
(п. 5.5.9.17 в ред.
Изменения N 8, утв. Приказом Минстроя России от 29.11.2024 N 808/пр)
5.5.9.18 На кровлях, к которым имеет доступ обслуживающий персонал, электропроводки должны:
- иметь защиту в такой мере, чтобы доступ к электрическим кабелям и ответвительным коробкам был исключен без использования специального инструмента (отверток, гаечных ключей и т.п.);
- не создавать препятствий для свободного перемещения людей.
5.5.9.19 На поверхности скатных крыш жилых и общественных зданий устройство электропроводок не допускается.
(в ред.
Изменения N 8, утв. Приказом Минстроя России от 29.11.2024 N 808/пр)
Минимальные расстояния от прокладываемых кабелей до подземных коммуникаций следует принимать в соответствии с
СП 42.13330.
5.5.9.21 Расстояние от электрических кабелей до стволов деревьев и до кустарников следует принимать в соответствии с
таблицей 9.1 СП 42.13330.2016.
5.5.9.22 Линии групповых сетей допускается выполнять небронированными кабелями, проложенными в неметаллических трубах, предназначенных для прокладки кабелей в земле. При этом все стыки труб должны быть загерметизированы.
5.5.9.23 Для питания установки архитектурного освещения рекомендуется предусматривать отдельный щиток (щитки) освещения.
5.5.9.24 При установке щитка освещения вне здания необходимо выполнять требования
ГОСТ IEC 61439-5.
5.5.10 Требования к системе управления освещением
5.5.10.1 Система управления архитектурным освещением должна обеспечивать возможность включения осветительной установки во всех режимах: повседневном, праздничном, вечернем, ночном.
5.5.10.2 Для обеспечения возможности дистанционного управления включением групп ОП в групповых щитках освещения рекомендуется устанавливать контакторы.
5.5.10.3 Дистанционное управление архитектурным освещением выполняют при помощи кнопочных постов управления, программируемого реле времени, фотореле (с фотодатчиком, фиксирующим освещенность вне здания), контроллеров, соединенных с компьютером в диспетчерском пункте.
Если в здании предусмотрено централизованное дистанционное управления внутренними инженерными системами, рекомендуется архитектурное освещение включать в общую централизованную систему управления.
5.5.10.4 Если для архитектурного освещения предусмотрены светодинамические осветительные приборы, с помощью которых предполагается создание различных сценариев освещения, рекомендуется для управления освещением предусматривать шкаф управления, содержащий оборудование, предназначенное для записи и реализации световых сценариев.
5.5.10.5 Если разрабатывается централизованная система управления архитектурным освещением улицы, площади или группы зданий (сооружений), то рекомендуется для реализации беспроводного дистанционного управления освещением предусматривать антенны, обеспечивающие синхронизацию включения и работы осветительной установки в целом.
5.5.11 Меры безопасности от поражения электрическим током
5.5.11.1 Все групповые линии от щитка освещения должны быть защищены от токов короткого замыкания и перегрузки в соответствии с
ГОСТ Р 50571.4.43.
5.5.11.2 Рекомендуется предусматривать дополнительную защиту посредством установки на групповых линиях УДТ с номинальным отключающим дифференциальным током, не превышающим 30 мА.
Для групповых линий, питающих ОП, доступные для прикосновения с земли без использования специальных приспособлений, например лестниц, использование УДТ с номинальным отключающим дифференциальным током, не превышающим 30 мА, является обязательным.
Примечание - Доступными для прикосновения считаются ОП, у которых расстояние от низа ОП до уровня земли менее 2,5 м.
5.5.11.3 Сечения защитных проводников и защитных проводников уравнивания потенциалов следует принимать в соответствии с требованиями
ГОСТ Р 50571.5.54.
5.5.11.4 Щитки освещения и шкафы управления, устанавливаемые в доступных для посторонних лиц местах, должны иметь прочный (антивандальный) корпус и запираемую на ключ дверцу.
5.5.11.5 Все электропроводки, расположенные на высоте менее 2,5 м, в том числе подъемы по стенам, должны быть защищены от механических повреждений, например металлической трубой.
5.5.11.6 При напряжении питания ОП ниже 50 В переменного тока и 120 В постоянного тока электропроводки, расположенные на высоте менее 2,5 м, допускается защищать от механических повреждений посредством неметаллических труб, коробов и иных погонажных электромонтажных изделий.
5.5.11.7 Защитные проводники в ответвительных коробках, предназначенных для присоединения ОП, должны быть соединены таким образом, чтобы при отсоединении ОП не нарушалась целостность цепи.
5.5.11.8 Контактные соединения в цепях защитных проводников и проводников уравнивания потенциалов должны выдерживать без разрушения ожидаемые токи короткого замыкания.
5.5.11.9 Рекомендуется в металлическом коробе с электрическими кабелями прокладывать проводник защитного уравнивания потенциалов, к которому посредством ответвительных зажимов следует подключить все секции коробов. Сечение проводника уравнивания потенциалов должно удовлетворять требованиям автоматического отключения питания при замыкании на землю в соответствии с
пунктом 411.3.2 ГОСТ Р 50571.4.41-2022, но не должно быть меньше 6 мм
2.
(в ред.
Изменения N 6, утв. Приказом Минстроя России от 28.12.2023 N 1005/пр)
6.1 Категории электроприемников по надежности электроснабжения жилых и общественных зданий следует принимать по таблице 6.1 с учетом положений нормативных документов по пожарной безопасности.
(в ред.
Изменения N 6, утв. Приказом Минстроя России от 28.12.2023 N 1005/пр)
Здания и сооружения | Категория электроприемников по надежности электроснабжения |
Жилые дома: | |
противопожарные устройства (пожарные насосы, системы подпора воздуха, дымоудаления, пожарной сигнализации и оповещения о пожаре), лифты, аварийное освещение, огни светового ограждения | I |
Зарядные станции и пункты зарядки для электромобилей | III |
(введено Изменением N 6, утв. Приказом Минстроя России от 28.12.2023 N 1005/пр) |
Комплекс остальных электроприемников: | |
жилые дома с электроплитами (кроме 1 - 8-квартирных домов) | II |
дома 1 - 8-квартирные с электроплитами | III |
дома св. 5 этажей с плитами на газовом и твердом топливе | II |
дома до 5 этажей с плитами на газовом и твердом топливе | III |
на участках садоводческих товариществ | III |
Общежития общей вместимостью, чел.: | |
до 50 | III |
св. 50 | II |
Отдельно стоящие и встроенные центральные тепловые пункты (ЦТП), индивидуальные тепловые пункты (ИТП) <1> многоквартирных жилых домов | I |
Здания учреждений управления, проектных и конструкторских организаций, научно-исследовательских институтов: | |
электроприемники противопожарных устройств, охранной сигнализации и лифтов | I |
Комплекс остальных электроприемников: | |
здания с числом работающих св. 2000 чел. независимо от этажности, здания высотой более 16 этажей, а также здания учреждений областного, городского и районного значения с числом работающих св. 50 чел. | I |
здания с числом работающих св. 50 чел., а также здания областного, городского и районного значения до 50 чел. | II |
здания с числом работающих до 50 чел. | III |
Здания лечебно-профилактических учреждений <2>: | |
электроприемники операционных и родильных блоков, отделений анестезиологии, реанимации и интенсивной терапии, кабинетов лапароскопии, бронхоскопии и ангиографии, противопожарных устройств и охранной сигнализации, эвакуационного освещения и больничных лифтов | I |
комплекс остальных электроприемников | II |
Учреждения финансирования, кредитования и государственного страхования: | |
федерального и республиканского подчинения: | |
электроприемники противопожарных устройств, охранной сигнализации, лифтов | I |
комплекс остальных электроприемников | II |
комплекс электроприемников учреждений краевого, областного, городского и районного подчинения | II |
Библиотеки и архивы: | |
электроприемники противопожарных устройств, охранной сигнализации зданий с фондом св. 1000 тыс. ед. хранения | I |
комплекс остальных электроприемников | II |
комплекс электроприемников зданий с фондом, тыс. ед. хранения: | |
св. 100 до 1000 | II |
до 100 | III |
Учреждения образования, воспитания и подготовки кадров: | |
электроприемники противопожарных устройств и охранной сигнализации | I |
комплекс остальных электроприемников | II |
Предприятия торговли <3>: | |
электроприемники противопожарных устройств и охранной сигнализации, лифтов универсамов, торговых центров и магазинов | I |
комплекс остальных электроприемников | II |
Предприятия общественного питания <3>: | |
электроприемники противопожарных устройств и охранной сигнализации | I |
комплекс остальных электроприемников | II |
Предприятия бытового обслуживания: | |
комплекс электроприемников салонов-парикмахерских с числом рабочих мест св. 15, ателье и комбинатов бытового обслуживания с числом рабочих мест св. 50, прачечных и химчисток производительностью св. 500 кг белья в смену, бань с числом мест св. 100 | II |
то же, парикмахерских с числом рабочих мест до 15, ателье и комбинатов бытового обслуживания с числом рабочих мест до 50, прачечных и химчисток производительностью до 500 кг белья в смену, мастерских по ремонту обуви, металлоизделий, часов, фотоателье, бань и саун с числом мест до 100 | III |
Гостиницы, дома отдыха, пансионаты и турбазы: | |
электроприемники противопожарных устройств, охранной сигнализации и лифтов | I |
комплекс остальных электроприемников | II |
Музеи и выставки: | |
комплекс электроприемников музеев и выставок федерального значения | I |
музеи и выставки республиканского, краевого и областного значения: | |
электроприемники противопожарных устройств, охранной сигнализации | I |
комплекс остальных электроприемников | II |
комплекс электроприемников музеев и выставок местного значения и краеведческих музеев | III |
Конференц-залы и актовые залы, в том числе со стационарными кинопроекционными установками и эстрадами в общественных зданиях всех видов, кроме постоянно применяемых для проведения платных зрелищных мероприятий | В соответствии с категорией электроприемников по надежности энергоснабжения зданий, в которые встроены указанные залы |
<1> Требование I-й категории не относится к ИТП всех зданий и сооружений, указанных в таблице. Вопрос категорийности ИТП следует рассматривать для каждого конкретного случая. <2> Для электроприемников ряда медицинских помещений, например операционных, реанимационных (интенсивная терапия), палат для недоношенных детей, может потребоваться третий независимый источник. Необходимость третьего независимого источника определяется заданием на проектирование в зависимости от типа применяемого медицинского оборудования. Переключение на третий независимый источник автоматическое, время переключения - не более 0,15 с. <3> Для временных сооружений, а также встроенных помещений площадью до 100 м 2 - III-я категория электроснабжения. Примечания 1 Схемы питания противопожарных устройств и лифтов, предназначенных для перевозки пожарных подразделений, должны выполняться в соответствии с требованиями 8.8 - 8.10 настоящего свода правил, независимо от их категории надежности. 2 В комплекс электроприемников жилых домов входят электроприемники квартир, освещение общедомовых помещений, лифты, хозяйственные насосы и др. В комплекс электроприемников общественных зданий входят все электрические устройства, которыми оборудуется здание или группа помещений. 3 Категория электроприемников по надежности электроснабжения может быть повышена по заданию заказчика. |
6.2 В зданиях, относящихся к III-й категории по надежности электроснабжения, питающихся по одной линии, резервное питание устройств охранной и пожарной сигнализации, аварийное освещение следует осуществлять от автономных источников в соответствии с
СП 6.13130,
ГОСТ Р 50571.5.56, ведомственными нормами и заданием на проектирование.
(в ред.
Изменения N 6, утв. Приказом Минстроя России от 28.12.2023 N 1005/пр)
6.3 Питание силовых и осветительных электроприемников рекомендуется осуществлять от одних и тех же трансформаторов.
6.4 В общественных зданиях разрешается размещать встроенные и пристроенные трансформаторные подстанции (ТП), в том числе комплектные трансформаторные подстанции (КТП), при условии соблюдения требований соответствующих санитарных и противопожарных норм, требований настоящего свода правил.
(в ред.
Изменения N 8, утв. Приказом Минстроя России от 29.11.2024 N 808/пр)
В спальных корпусах различных учреждений, в школьных и других учебных заведениях не допускается сооружение встроенных и пристроенных подстанций.
Размещение трансформаторных подстанций в одном пожарном отсеке с жилыми помещениями не допускается.
(в ред.
Изменения N 6, утв. Приказом Минстроя России от 28.12.2023 N 1005/пр)
6.5 Допускается размещение главных распределительных щитов (ГРЩ) за пределами помещения, смежного с помещением с трансформаторами.
(п. 6.5 в ред.
Изменения N 6, утв. Приказом Минстроя России от 28.12.2023 N 1005/пр)
6.6 Для встроенных ТП, КТП и закрытых распределительных устройств (ЗРУ) напряжением до 10 кВ необходимо предусматривать следующее:
(в ред.
Изменения N 8, утв. Приказом Минстроя России от 29.11.2024 N 808/пр)
не размещать их под помещениями с мокрыми технологическими процессами - под душевыми, ванными и уборными, за исключением случаев отделения помещений встроенных трансформаторных подстанций от помещений с мокрыми технологическими процессами техническим этажом или пространством;
(в ред.
Изменения N 8, утв. Приказом Минстроя России от 29.11.2024 N 808/пр)
выполнять надежную гидроизоляцию над помещениями ТП, КТП и ЗРУ, исключающую возможность проникания влаги в случае аварии систем отопления, водоснабжения и канализации;
полы камер трансформаторов и ЗРУ напряжением до и выше 1000 В со стороны входов должны быть выше полов примыкающих помещений не менее чем на 10 см. Если вход в ТП предусмотрен снаружи здания, отметка пола помещения ТП должна быть выше отметки земли не менее чем на 30 см. При расстоянии от пола подстанции до пола примыкающих помещений или земли более 40 см для входа следует предусматривать ступени;
устраивать дороги для подъезда автотранспорта к месту расположения подстанции.
6.7 Расположение и компоновка ТП должны предусматривать возможность круглосуточного беспрепятственного доступа в них персонала эксплуатирующей организации.
6.8 На встроенных ТП и КТП следует устанавливать не более двух масляных или заполненных негорючим экологически безопасным жидким диэлектриком трансформаторов мощностью до 1000 кВ·А каждый. Число сухих трансформаторов не ограничивается, а мощность каждого из них св. 1000 кВ·А не рекомендуется.
6.9 Подстанции с масляными трансформаторами, как правило, должны размещаться на первом этаже или в цокольной части здания (выше уровня планировочной отметки земли). Двери камер трансформаторов должны располагаться на одном из фасадов здания.
6.10 Подстанции с сухими трансформаторами допускается размещать в подвалах при условии:
исключения возможности их затопления грунтовыми и паводковыми водами, а также при авариях систем водоснабжения, отопления и канализации;
обеспечения подъема трансформаторов на поверхность земли с помощью передвижных или стационарных механизмов и устройств;
расстояние между наружными стенами и стенами подстанции должно быть, как правило, не менее 800 мм. Допускается уменьшение этого расстояния до 200 мм, при обеспечении требуемой вентиляции пространства между стенами.
При наличии технико-экономических обоснований допускается установка подстанций на верхних этажах здания, если обеспечивается возможность транспортирования трансформаторов. В этом случае отделения помещения подстанции от наружных стен не требуется.
6.11 В ТП, как правило, следует устанавливать силовые трансформаторы с глухозаземленной нейтралью со схемами соединения обмоток "звезда-зигзаг" при мощности до 250 кВ·А и "треугольник-звезда" при мощности 400 кВ·А и более.
6.12 Для включения и отключения намагничивающего тока силовых трансформаторов допускается применять трехполюсные разъединители.
6.13 Место установки устройства АВР (централизованно на вводах в здание или децентрализовано у электроприемников I-й категории по надежности электроснабжения) выбирается в проекте в зависимости от их взаимного расположения, условий эксплуатации и способов прокладки питающих линий до удаленных электроприемников.
При наличии АВР на стороне низшего напряжения встроенной ТП установка его на ГРЩ, расположенном в смежном с ТП помещении, не требуется.
В случае, когда электроприемники I-й категории не могут обеспечиваться электроэнергией от двух независимых источников, должно быть осуществлено технологическое резервирование, включаемое автоматически.
7 Расчетные электрические нагрузки
7.1 Нагрузки жилых зданий
7.1.1 Расчетную нагрузку групповых сетей освещения общедомовых помещений жилых зданий (лестничных клеток, вестибюлей, технических этажей и подполий, подвалов, чердаков, колясочных и т.д.), а также жилых помещений общежитий следует определять по светотехническому расчету с коэффициентом спроса, равным 1.
7.1.2 Расчетная нагрузка питающих линий, вводов и на шинах РУ-0,4 кВ ТП от электроприемников квартир
Pкв, кВт, определяется по формуле
Pкв = Pкв.удn + 0,9Pр.с, (1)
где
Pкв.уд - удельная нагрузка электроприемников квартир, принимаемая по
таблице 7.1 (
таблице 7.1а - для Москвы и Московской области) в зависимости от числа квартир, присоединенных к линии (ТП), типа кухонных плит, кВт/квартиру. Удельные электрические нагрузки установлены с учетом того, что расчетная неравномерность нагрузки при распределении ее по фазам трехфазных линий и вводов не превышает 15%;
n - число квартир, присоединенных к линии (ТП);
Pр.с - суммарная расчетная нагрузка силовых электроприемников квартир, кВт, определяемая в соответствии с
7.1.2а, включающая применение в квартирах электрического отопления, электроводонагревателей, бытовых кондиционеров.
Таблица 7.1
Удельная расчетная электрическая нагрузка электроприемников
квартир жилых зданий, кВт/квартиру
Потребители электроэнергии | Удельная расчетная электрическая нагрузка при количестве квартир |
1 - 5 | 6 | 9 | 12 | 15 | 18 | 24 | 40 | 60 | 100 | 200 | 400 | 600 | 1000 |
1 | Квартиры с плитами: | | | | | | | | | | | | | | |
| 4,5 | 2,8 | 2,3 | 2 | 1,8 | 1,65 | 1,4 | 1,2 | 1,05 | 0,85 | 0,77 | 0,71 | 0,69 | 0,67 |
- на сжиженном газе (в том числе при групповых установках и на твердом топливе) | 6 | 3,4 | 2,9 | 2,5 | 2,2 | 2 | 1,8 | 1,4 | 1,3 | 1,08 | 1 | 0,92 | 0,84 | 0,76 |
- электрическими, мощностью 8,5 кВт | 10 | 5,1 | 3,8 | 3,2 | 2,8 | 2,6 | 2,2 | 1,95 | 1,7 | 1,5 | 1,36 | 1,27 | 1,23 | 1,19 |
2 | Летние домики на участках садовых товариществ | 4 | 2,3 | 1,7 | 1,4 | 1,2 | 1,1 | 0,9 | 0,76 | 0,69 | 0,61 | 0,58 | 0,54 | 0,51 | 0,46 |
<1> В зданиях по типовым проектам. Примечания 1 Удельные расчетные нагрузки для числа квартир, не указанного в настоящей таблице, определяют путем интерполяции. 2 Удельные расчетные нагрузки квартир, кроме квартир повышенной комфортности, учитывают нагрузку освещения общедомовых помещений (лестничных клеток, подполий, технических этажей, чердаков и т.д.), а также нагрузку слаботочных устройств и мелкого силового оборудования (щитки противопожарных устройств, автоматики, учета тепла и т.п., зачистные устройства мусоропроводов, подъемники для инвалидов). 3 Удельные расчетные нагрузки приведены для квартир средней общей площадью 70 м2 (квартиры от 35 до 90 м2) в зданиях по типовым проектам. 4 Расчетную нагрузку для квартир с повышенной комфортностью следует определять в соответствии с заданием на проектирование или в соответствии с заявленной мощностью и коэффициентами спроса и одновременности ( таблицы 7.2 и 7.3). 5 Удельные расчетные нагрузки не учитывают покомнатное расселение семей в квартире. 6 Удельные расчетные нагрузки не учитывают общедомовую силовую нагрузку, осветительную и силовую нагрузки встроенных (пристроенных) помещений общественного назначения, нагрузку рекламы, а также применение в квартирах электрического отопления, электроводонагревателей и бытовых кондиционеров (кроме квартир повышенной комфортности). Заявленную мощность квартир повышенной комфортности принимают равной установленной мощности электрооборудования в квартире. 7 Для определения при необходимости значения утреннего или дневного максимума нагрузок следует применять коэффициенты: 0,7 - для жилых домов с электрическими плитами и 0,5 - для жилых домов с плитами на газообразном и твердом топливе. 8 Электрическую нагрузку жилых зданий в период летнего максимума нагрузок можно определить, умножив значение нагрузки зимнего максимума на коэффициенты: 0,7 - для квартир с плитами на природном газе; 0,6 - для квартир с плитами на сжиженном газе и твердом топливе и 0,8 - для квартир с электрическими плитами. 9 Расчетные данные, приведенные в настоящей таблице, допускается корректировать для конкретного применения с учетом местных условий. При наличии документированных и утвержденных в установленном порядке экспериментальных данных расчет нагрузки следует рассчитывать по ним. 10 Нагрузку иллюминации мощностью до 10 кВт в расчетной нагрузке на вводе в здание учитывать не допускается. |
Таблица 7.1а
Удельная расчетная электрическая нагрузка электроприемников
квартир жилых зданий для городской агломерации
"г. Москва - Московская область", кВт/квартиру
Потребители электроэнергии | Удельная расчетная электрическая нагрузка при количестве квартир |
1 - 5 | 6 | 9 | 12 | 15 | 18 | 24 | 40 | 60 | 100 | 200 | 400 | 600 | 1000 | 1500 | 2000 и более |
1 | Квартиры с плитами: | | | | | | | | | | | | | | | | |
- на природном газе <1> | 4,5 | 2,27 | 1,86 | 1,62 | 1,46 | 1,34 | 1,13 | 0,97 | 0,85 | 0,69 | 0,62 | 0,58 | 0,56 | 0,54 | 0,53 | 0,52 |
- электрическими, мощностью 8,5 кВт | 10 | 4,13 | 3,08 | 2,6 | 2,27 | 2,11 | 1,78 | 1,45 | 1,16 | 0,97 | 0,91 | 0,79 | 0,67 | 0,63 | 0,61 | 0,59 |
<1> В зданиях по типовым проектам. Примечания 1 Удельные расчетные нагрузки для числа квартир, не указанного в настоящей таблице, определяют путем интерполяции. 2 Удельные расчетные нагрузки квартир учитывают нагрузку освещения общедомовых помещений (лестничных клеток, подполий, технических этажей, чердаков и т.д.), а также нагрузку слаботочных устройств и мелкого силового оборудования (щитки противопожарных устройств, автоматики, учета тепла и т.п., зачистные устройства мусоропроводов, подъемники для инвалидов). 3 Удельные расчетные нагрузки приведены для квартир средней общей площадью 70 м2 (квартиры от 35 до 90 м2) в зданиях по типовым проектам. 4 Расчетную нагрузку для квартир с повышенной комфортностью следует определять в соответствии с заданием на проектирование или в соответствии с заявленной мощностью и коэффициентами спроса и одновременности ( таблицы 7.2 и 7.3). 5 Удельные расчетные нагрузки не учитывают покомнатное расселение семей в квартире. 6 Удельные расчетные нагрузки не учитывают общедомовую силовую нагрузку, осветительную и силовую нагрузку встроенных (пристроенных) помещений общественного назначения, нагрузку рекламы, а также применение в квартирах электрического отопления, электроводонагревателей и бытовых кондиционеров (кроме элитных квартир). 7 Для определения при необходимости значения утреннего или дневного максимума нагрузок следует применять коэффициенты: 0,7 - для жилых домов с электрическими плитами и 0,5 - для жилых домов с плитами на газообразном и твердом топливе. 8 Электрическую нагрузку жилых зданий в период летнего максимума нагрузок можно определить, умножив значение нагрузки зимнего максимума на коэффициенты: 0,7 - для квартир с плитами на природном газе; 0,6 - для квартир с плитами на сжиженном газе и твердом топливе и 0,8 - для квартир с электрическими плитами. 9 Расчетные данные, приведенные в настоящей таблице, допускается корректировать для конкретного применения с учетом местных условий. При наличии документированных и утвержденных в установленном порядке экспериментальных данных расчет нагрузки следует рассчитывать по ним. 10 Нагрузка иллюминации мощностью до 10 кВт в расчетной нагрузке на вводе в здание учитывать не допускается. |
При наличии в жилом здании системы кондиционирования нагрузки от системы кондиционирования Pу.с.к, кВт, следует принимать на основании расчетной холодильной мощности в период вечернего максимума потребляемой нагрузки.
При отсутствии исходных данных для расчета нагрузки от системы кондиционирования допускается выполнять расчет нагрузок от систем кондиционирования через назначение доли кондиционируемых жилых комнат по таблице 7.1б.
Таблица 7.1б
Доля кондиционируемых жилых комнат
Группа населенных пунктов | Климатические подрайоны строительства |
IА, IВ, IД | IIБ, IIВ, IIГ | IIIА, IIIБ IIIВ | IVА, IVБ, IVВ, IVГ |
1 Крупнейшие и крупные населенные пункты | 0,35 | 0,60 | 0,80 | 1 |
2 Большие, средние, малые | 0,25 | 0,45 | 0,60 | 0,75 |
Примечания 1 Климатические подрайоны строительства следует определять в соответствии с СП 131.13330. 2 Группу населенных пунктов принимают в соответствии с СП 42.13330. 3 Для климатических подрайонов строительства IБ, IГ, IIА долю жилых комнат, оборудуемых бытовыми кондиционерами, следует принимать по заданию на проектирование. |
При определении расчетной нагрузки питающих линий нагрузку от систем кондиционирования следует учитывать, как нагрузку от силовых электроприемников.
При отсутствии данных установленную электрическую мощность кондиционирования для одного помещения допускается принимать равной 0,9 кВт.
Расчетный коэффициент спроса
Kс от систем кондиционирования принимают по количеству кондиционируемых жилых помещений в соответствии с
таблицей 7.5 (строка 1), расчетный коэффициент несовпадения максимумов
Kнм принимают равным 1, расчетный коэффициент загрузки
Kз допускается принимать в диапазоне от 0,7 до 1, при этом значение
Kз = 0,7 принимают при средней площади жилых комнат до 16 м
2, значение
Kз = 1 - свыше 25 м
2, в остальных случаях значение
Kз определяют методом интерполяции.
Нагрузки от системы кондиционирования следует учитывать при определении электрических нагрузок жилых домов в период летнего максимума.
Таблица 7.2
Коэффициенты спроса для квартир повышенной комфортности
Заявленная мощность, кВт | До 14 | 20 | 30 | 40 | 50 | 60 | 70 и более |
Коэффициент спроса | 0,8 | 0,65 | 0,6 | 0,55 | 0,5 | 0,48 | 0,45 |
Таблица 7.3
Коэффициенты одновременности для квартир
повышенной комфортности Kо
Характеристика квартир | Kо при числе квартир |
1 - 5 | 6 | 9 | 12 | 15 | 18 | 24 | 40 | 60 | 100 | 200 | 400 | 600 и более |
С электроплитами | 1 | 0,51 | 0,38 | 0,32 | 0,29 | 0,26 | 0,24 | 0,2 | 0,18 | 0,16 | 0,14 | 0,13 | 0,11 |
Расчетную нагрузку питающих линий, вводов и на шинах РУ-0,4 кВ ТП от электроприемников квартир повышенной комфортности Pр.кв, кВт, определяют по формуле
Pр.кв = PквnKо, (2)
где Pкв - нагрузка электроприемников квартир повышенной комфортности;
n - число квартир;
Kо - коэффициент одновременности для квартир повышенной комфортности.
(п. 7.1.2 в ред.
Изменения N 6, утв. Приказом Минстроя России от 28.12.2023 N 1005/пр)
7.1.2а Расчетную нагрузку от силовых электроприемников жилых зданий
Pр.с, кВт, следует определять по формуле
, (2а)
где Kс - расчетный коэффициент спроса;
Kз - расчетный коэффициент загрузки;
Kнм - расчетный коэффициент несовпадения максимумов;
Pу.с - установленная мощность однотипных (одинаковых по технологическому назначению и близких по значению установленной мощности) электроприемников (кроме противопожарных устройств и резервного оборудования), кВт.
Kз, Kнм принимаются равными 1, если иное не установлено положениями настоящего свода правил или иными нормативными документами.
(п. 7.1.2а введен
Изменением N 6, утв. Приказом Минстроя России от 28.12.2023 N 1005/пр)
7.1.3 Расчетная нагрузка питающих линий, вводов и на шинах РУ-0,4 кВ ТП от общего освещения общежитий коридорного типа определяется с учетом коэффициента спроса Kс, принимаемого в зависимости от установленной мощности светильников Pу, приведенной ниже:
до 5 кВт - 1,0;
св. 5 до 10 кВт - 0,9;
" 10 " 15 " - 0,85;
" 15 " 25 " - 0,8;
" 25 " 50 " - 0,7;
" 50 " 100 " - 0,65;
" 100 " 200 " - 0,6;
" 200 кВт - 0,55.
7.1.4 Расчетная нагрузка Pр.р, кВт, групповых и питающих линий от электроприемников, подключаемых к розеткам в общежитиях коридорного типа, определяется по формуле
Pр.р = PудnрKо.р, (3)
где Pуд - удельная мощность на одну розетку, при числе розеток до 100 принимаемая 0,1, св. 100 - 0,06 кВт;
nр - число розеток;
Kо.р - коэффициент одновременности для сети розеток, определяемый в зависимости от числа розеток:
до 10 розеток - 1,0;
св. 10 до 20 " - 0,9;
" 20 " 50 " - 0,8;
" 50 " 100 " - 0,7;
" 100 " 200 " - 0,6;
" 200 " 400 " - 0,5;
" 400 " 600 " - 0,4;
" 650 " - 0,35.
7.1.5 Расчетная нагрузка питающих линий Pр.пл, кВт, вводов и на шинах РУ-0,4 кВ ТП от бытовых напольных электрических плит общежитий коридорного типа определяется по формуле
Pр.пл = PплnплKс.пл, (4)
где Pпл - установленная мощность электроплиты, кВт;
nпл - число электроплит;
Kс.пл - коэффициент спроса, определяемый в зависимости от числа присоединенных плит, должен приниматься:
1 при 1 плите;
0,9 " 2 плитах;
0,4 " 20 ";
0,2 " 100 ";
0,15 при 200 плитах.
Коэффициенты спроса приведены для электроплит с четырьмя конфорками. При определении коэффициента спроса для плит с тремя конфорками число плит следует учитывать с коэффициентом 0,75 числа установленных плит, с двумя - с коэффициентом 0,5.
Коэффициент спроса для числа плит, не указанного выше, определяют интерполяцией.
7.1.6 Расчетная нагрузка вводов и на шинах 0,4 кВ ТП при смешанном питании от них общего освещения, розеток, кухонных электрических плит и помещений общественного назначения в общежитиях коридорного типа определяется как сумма расчетных нагрузок питающих линий, умноженная на 0,75. При этом расчетная нагрузка питающих линий освещения общедомовых помещений определяется с учетом
примечания 3 к таблице 7.1.
7.1.7 Расчетная нагрузка линии питания лифтовых установок
Pр.л, кВт, определяется по формуле

(5)
где
Kс.л - коэффициент спроса, определяемый по
таблице 7.4 в зависимости от числа лифтовых установок и этажности зданий;
(в ред.
Изменения N 8, утв. Приказом Минстроя России от 29.11.2024 N 808/пр)
nл - число лифтовых установок, питаемых линией;
Pni - установленная мощность электродвигателя i-го лифта по паспорту, кВт.
Таблица 7.4
Коэффициенты спроса для лифтовых установок
| Число лифтовых установок | Kс.л для домов высотой, этажей |
До 12 | 12 и св. |
1 | 2 - 3 | 0,8 | 0,9 |
2 | 4 - 5 | 0,7 | 0,8 |
3 | 6 | 0,65 | 0,75 |
4 | 10 | 0,5 | 0,6 |
5 | 20 | 0,4 | 0,5 |
6 | 25 и св. | 0,35 | 0,4 |
Примечание - Коэффициент спроса для числа лифтовых установок, не указанных в таблице, определяется интерполяцией. |
7.1.8 Расчетная нагрузка линий питания электродвигателей санитарно-технических устройств определяется по их установленной мощности с учетом коэффициента спроса, принимаемого по таблице 7.5.
Таблица 7.5
Коэффициенты спроса для сантехнического
оборудования и холодильных машин
| | ИС МЕГАНОРМ: примечание. Сноска в таблице дана в соответствии с официальным текстом документа. | |
| Удельный вес установленной мощности работающего сантехнического и холодильного оборудования, включая системы кондиционирования воздуха в общей установленной мощности работающих силовых электроприемников, % | Kс при числе электроприемников <1> |
2 | 3 | 5 | 8 | 10 | 15 | 20 | 30 | 50 | 100 | 200 |
| 100 - 85 | 1 (0,8) | 0,9 (0,75) | 0,8 (0,7) | 0,75 | 0,7 | 0,65 | 0,65 | 0,6 | 0,55 | 0,55 | 0,5 |
2 | 84 - 75 | - | - | 0,75 | 0,7 | 0,65 | 0,6 | 0,6 | 0,6 | 0,55 | 0,55 | 0,5 |
3 | 74 - 50 | - | - | 0,7 | 0,65 | 0,65 | 0,6 | 0,6 | 0,55 | 0,5 | 0,5 | 0,45 |
4 | 49 - 25 | - | - | 0,65 | 0,6 | 0,6 | 0,55 | 0,5 | 0,5 | 0,5 | 0,45 | 0,45 |
5 | 24 и менее | - | - | 0,6 | 0,6 | 0,55 | 0,5 | 0,5 | 0,5 | 0,45 | 0,45 | 0,4 |
Примечания 1 В скобках приведены значения коэффициентов спроса для электродвигателей единичной мощностью св. 30 кВт. 2 Коэффициент спроса для присоединенных электроприемников, не указанных в таблице, определяется интерполяцией. 3 В установленную мощность резервные электроприемники не включаются. |
7.1.9 Мощность резервных электродвигателей, а также электроприемников противопожарных устройств и уборочных механизмов при расчете электрических нагрузок питающих линий и вводов в здание не учитывается, за исключением тех случаев, когда она определяет выбор защитных аппаратов и сечений проводников.
Для расчета линий питания одновременно работающих электроприемников противопожарных устройств Kс принимается равным 1. При этом следует учитывать одновременную работу вентиляторов дымоудаления и подпора воздуха, расположенных только в одной секции.
7.1.10 Расчетная нагрузка жилого дома (квартир и силовых электроприемников) Pр.ж.д, кВт, определяется по формуле
Pр.ж.д = kп.к·Pкв + 0,9Pс, (6)
где Pкв - расчетная нагрузка электроприемников квартир, кВт;
Pс - расчетная нагрузка силовых электроприемников, кВт;
kп.к - поправочный коэффициент для определения расчетной нагрузки жилого дома, принимается по
таблице 7.5а для значений
Pкв, рассчитанных по значениям из
таблицы 7.1 с количеством квартир 6 и более (для значений
Pкв, рассчитанных по значениям из
таблицы 7.1а, поправочный коэффициент
kп.к не применяется).
(в ред.
Изменения N 6, утв. Приказом Минстроя России от 28.12.2023 N 1005/пр)
Таблица 7.5а
Поправочный коэффициент для определения расчетной нагрузки
жилого дома для регионов Российской Федерации
Группа | Регион Российской Федерации | Значение kп.к |
1 | Центральный федеральный округ: Белгородская область, Брянская область, Владимирская область, Воронежская область, Ивановская область, Калужская область, Костромская область, Курская область, Липецкая область, Московская область, Орловская область, Рязанская область, Смоленская область, Тамбовская область, Тверская область, Тульская область, Ярославская область, г. Москва | 0,81 |
2 | Северо-Западный федеральный округ: Республика Карелия, Вологодская область, Калининградская область, Ленинградская область, Псковская область, Новгородская область, Мурманская область, г. Санкт-Петербург, Ненецкий автономный округ, Республика Коми, Архангельская область | 0,91 |
3 | Южный федеральный округ: Республика Адыгея (Адыгея), Республика Калмыкия, Республика Крым, Краснодарский край, Астраханская область, Волгоградская область, Ростовская область, г. Севастополь |
4 | Северо-Кавказский федеральный округ: Республика Дагестан, Республика Ингушетия, Кабардино-Балкарская Республика, Карачаево-Черкесская Республика, Республика Северная Осетия - Алания, Чеченская Республика, Ставропольский край |
5 | Приволжский федеральный округ: Республика Марий Эл, Республика Мордовия, Республика Татарстан (Татарстан), Удмуртская Республика, Чувашская Республика - Чувашия, Пермский край, Кировская область, Оренбургская область, Пензенская область, Самарская область, Саратовская область, Ульяновская область, Республика Башкортостан, Нижегородская область |
6 | Уральский федеральный округ: Курганская область, Свердловская область, Тюменская область, Челябинская область, Ханты-Мансийский автономный округ - Югра, Ямало-Ненецкий автономный округ |
7 | Сибирский федеральный округ: Республика Алтай, Республика Тыва, Республика Хакасия, Алтайский край, Красноярский край, Иркутская область, Кемеровская область, Новосибирская область, Омская область, Томская область |
8 | Дальневосточный федеральный округ: Республика Бурятия, Республика Саха (Якутия), Забайкальский край, Камчатский край, Приморский край, Хабаровский край, Амурская область, Магаданская область, Сахалинская область, Еврейская автономная область, Чукотский автономный округ |
Примечания 1 Деление регионов выполнено на основании [12]. 2 При наличии данных о фактических нагрузках, документированных и утвержденных в установленном порядке, поправочный коэффициент для вычисления расчетной нагрузки жилого дома kп.к допускается корректировать для конкретного применения с учетом региональных условий. 3 Расчет может выполняться в соответствии с утвержденными в установленном порядке региональными нормативами. |
Расчетная нагрузка при смешанном питании ТП (питающей линией) жилых и нежилых зданий (помещений) определяется в соответствии с
7.2.19.
(п. 7.1.10 в ред.
Изменения N 4, утв. Приказом Минстроя России от 30.12.2020 N 919/пр)
7.1.11 При проектировании реконструкции наружных электрических сетей в сельской местности расчетную нагрузку допускается принимать по фактическим данным с учетом их перспективного роста до 30%. При этом суммарные расчетные нагрузки не должны превышать значений, определяемых в соответствии с требованиями настоящего свода правил.
7.1.12 Питающие линии электроприемников жилых зданий и соответствующие им коэффициенты мощности приводятся ниже:
квартир с электрическими плитами .............................. 0,98;
то же, с бытовыми кондиционерами воздуха ...................... 0,93;
квартир с плитами на природном, сжиженном газе
и твердом топливе ............................................. 0,96;
то же, с бытовыми кондиционерами воздуха ...................... 0,92
общего освещения в общежитиях коридорного типа ................ 0,95
хозяйственных насосов, вентиляционных установок
и других санитарно-технических устройств ...................... 0,8
лифтов ........................................................ 0,65
Коэффициент мощности распределительной линии, питающей один электродвигатель, следует принимать по его каталожным данным.
Коэффициент мощности групповых линий освещения с разрядными лампами следует принимать по
7.2.18.
(в ред.
Изменения N 4, утв. Приказом Минстроя России от 30.12.2020 N 919/пр)
7.2 Нагрузки общественных зданий
7.2.1 Коэффициент спроса для расчета нагрузок рабочего освещения питающей сети и вводов общественных зданий следует принимать по таблице 7.6.
Таблица 7.6
Коэффициенты спроса для рабочего освещения
| Организация, предприятие и учреждения | Kс.о в зависимости от установленной мощности рабочего освещения, кВт |
До 5 | 10 | 15 | 25 | 50 | 100 | 200 | 400 | Св. 500 |
1 | Гостиницы, спальные корпуса и административные помещения санаториев, домов отдыха, пансионатов, турбаз, оздоровительных лагерей | 1 | 0,8 | 0,7 | 0,6 | 0,5 | 0,4 | 0,35 | 0,3 | 0,3 |
2 | Предприятия общественного питания, детские ясли-сады, учебно-производственные мастерские профтехучилищ | 1 | 0,9 | 0,85 | 0,8 | 0,75 | 0,7 | 0,65 | 0,6 | 0,5 |
3 | Организации и учреждения управления, учреждения финансирования, кредитования и государственного страхования, общеобразовательные школы, специальные учебные заведения, учебные здания профтехучилищ, предприятия бытового обслуживания, торговли, парикмахерские | 1 | 0,95 | 0,9 | 0,85 | 0,8 | 0,75 | 0,7 | 0,65 | 0,6 |
4 | Проектные, конструкторские организации, научно-исследовательские институты | 1 | 1 | 0,95 | 0,9 | 0,85 | 0,8 | 0,75 | 0,7 | 0,65 |
5 | Актовые залы, конференц-залы (освещение зала и президиума), спортзалы | 1 | 1 | 1 | 1 | 1 | 1 | - | - | - |
6 | Клубы и дома культуры | 1 | 0,9 | 0,8 | 0,75 | 0,7 | 0,65 | 0,55 | - | - |
7 | Кинотеатры | 1 | 0,9 | 0,8 | 0,7 | 0,65 | 0,6 | 0,5 | - | - |
Примечание - Коэффициент спроса для установленной мощности рабочего освещения, не указанной в таблице, определяется интерполяцией. |
7.2.2 Коэффициент спроса для расчета групповой сети рабочего освещения, распределительных и групповых сетей эвакуационного и аварийного освещения зданий, освещения витрин и световой рекламы следует принимать равным 1.
7.2.3 Коэффициент спроса для расчета электрических нагрузок линий, питающих постановочное освещение в залах, клубах и домах культуры, следует принимать равным 0,35 для регулируемого освещения эстрады и 0,2 - для нерегулируемого.
7.2.4 Расчетную электрическую нагрузку линий, питающих розетки Pр.р, кВт, следует определять по формуле
Pр.р = Kс.рPу.рn, (7)
где
Kс.р - расчетный коэффициент спроса, принимаемый по
таблице 7.7;
Pу.р - установленная мощность розетки, принимаемая 0,06 кВт (в том числе для подключения оргтехники);
n - число розеток.
Таблица 7.7
Расчетные коэффициенты спроса для розеток
| Организация, предприятие и учреждение | Kс.р |
групповые сети | питающие сети | вводы зданий |
1 | Организации и учреждения управления, проектные и конструкторские организации, научно-исследовательские институты, учреждения финансирования, кредитования и государственного страхования, общеобразовательные школы, специальные учебные заведения, учебные здания профтехучилищ | 1 | 0,2 | 0,1 |
2 | Гостиницы <1>, обеденные залы ресторанов, кафе и столовых, предприятия бытового обслуживания, библиотеки, архивы | 1 | 0,4 | 0,2 |
<1> При отсутствии стационарного общего освещения в жилых комнатах гостиниц расчет электрической нагрузки розеточной сети, предназначенной для питания переносных светильников (например, напольных), следует выполнять в соответствии с требованиями 7.2.1 и 7.2.2. |
7.2.5 При смешанном питании общего освещения и розеточной сети расчетную нагрузку Pр.о, кВт, следует определять по формуле

(8)
где

- расчетная нагрузка линий общего освещения, кВт;
Pр.р - расчетная нагрузка розеточной сети, кВт.
7.2.6 Расчетную нагрузку силовых питающих линий и вводов Pр.с, кВт, следует определять по формуле
Pр.с = KсPу.с, (9)
где Kс - расчетный коэффициент спроса;
Pу.с - установленная мощность электроприемников (кроме противопожарных устройств и резервных), кВт.
7.2.7 Коэффициенты спроса для расчета нагрузки вводов, питающих и распределительных линий силовых электрических сетей общественных зданий следует определять по таблице 7.8.
Таблица 7.8
Коэффициенты спроса для силовых
электрических сетей общественных зданий
| Линии к силовым электроприемникам | Kс при числе работающих электроприемников |
До 3 | Св. 5 |
1 | Технологического оборудования предприятий общественного питания, пищеблоков в общественных зданиях | | |
2 | Механического оборудования предприятий общественного питания, пищеблоков общественных зданий другого назначения, предприятий торговли | | |
3 | Посудомоечных машин | | - |
4 | Зданий (помещений) управления, проектных и конструкторских организаций (без пищеблоков), гостиниц (без ресторанов), продовольственных и промтоварных магазинов, общеобразовательных школ, специальных учебных заведений и профессионально-технических училищ (без пищеблоков) | | |
5 | Сантехнического и холодильного оборудования, холодильных установок систем кондиционирования воздуха | | |
6 | Пассажирских и грузовых лифтов, транспортеров | | |
(в ред. Изменения N 8, утв. Приказом Минстроя России от 29.11.2024 N 808/пр) |
7 | Кинотехнологического оборудования | | |
8 | Электроприводы сценических механизмов | 0,5 | 0,2 |
9 | Вычислительных машин (без технологического кондиционирования) | 0,5 | 0,4 |
10 | Технологического кондиционирования вычислительных машин | | |
11 | Металлообрабатывающих и деревообрабатывающих станков в мастерских | 0,5 | 0,2 |
12 | Множительной техники, фотолабораторий | 0,5 | 0,2 |
13 | Лабораторного и учебного оборудования общеобразовательных школ, профессионально-технических училищ, средних специальных учебных заведений | 0,4 | 0,15 |
14 | Учебно-производственных мастерских профессионально-технических училищ, общеобразовательных школ и специальных учебных заведений | 0,5 | 0,2 |
15 | Технологического оборудования парикмахерских, ателье, мастерских, комбинатов бытового обслуживания, предприятий торговли, медицинских кабинетов | 0,6 | 0,3 |
16 | Технологического оборудования фабрик химчистки и прачечных | 0,7 | 0,5 |
17 | Руко- и полотенцесушителей | 0,4 | 0,15 |
Примечания 1 Расчетная нагрузка должна быть не менее мощности наибольшего из электроприемников. 2 Коэффициент спроса для одного электроприемника следует принимать равным 1. |
7.2.8 Расчетную нагрузку питающих линий технологического оборудования и посудомоечных машин предприятий общественного питания и пищеблоков Pр.с, кВт, следует определять по формуле
Pр.с = Pр.п.м + 0,65Pр.т > Pр.т, (10)
где
Pр.п.м - расчетная нагрузка посудомоечных машин, кВт, определяемая с учетом коэффициента спроса, который принимается по
таблице 7.10;
Pр.т - расчетная нагрузка технологического оборудования, кВт, определяемая с учетом коэффициента спроса, который принимается по таблице 7.9.
Таблица 7.9
Коэффициенты спроса для предприятий
общественного питания и пищеблоков
Число электроприемников теплового оборудования предприятий общественного питания и пищеблоков, подключенных к данному элементу сети | 2 | 3 | 5 | 8 | 10 | 15 | 20 | 30 | От 60 до 100 | Св. 120 |
Kс для технологического оборудования | 0,9 | 0,85 | 0,75 | 0,65 | 0,6 | 0,5 | 0,45 | 0,4 | 0,3 | 0,25 |
Примечания 1 К технологическому оборудованию следует относить: тепловое (электрические плиты, мармиты, сковороды, жарочные и кондитерские шкафы, котлы, кипятильники, фритюрницы и т.п.); механическое (тестомесильные машины, универсальные приводы, хлеборезки, вибросита, коктейлевзбивалки, мясорубки, картофелечистки, машины для резки овощей и т.п.); мелкое холодильное (шкафы холодильные, бытовые холодильники, низкотемпературные прилавки и тому подобные устройства единичной мощностью менее 1 кВт); лифты, подъемники и прочее оборудование (кассовые аппараты, радиоаппаратура и т.п.). 2 Коэффициенты спроса для линий, питающих отдельно механическое, холодильное или сантехническое оборудование, а также лифты, подъемники и т.п., принимаются по таблице 7.8. 3 Мощность посудомоечных машин в максимуме нагрузок на вводах не учитывается (7.2.9). 4 Коэффициент спроса для присоединенных электроприемников, не указанных в таблице, определяется интерполяцией. |
Таблица 7.10
Коэффициенты спроса для посудомоечных машин
Число посудомоечных машин | 1 | 2 | 3 |
Коэффициент спроса Kс | 1 ------ 0,65 | 0,9 ----- 0,6 | 0,85 ----- 0,55 |
Примечание - В числителе приведены значения Kс для посудомоечных машин, работающих от сети холодного водоснабжения, в знаменателе - от горячего водоснабжения. |
7.2.9 Суммарную расчетную нагрузку питающих линий и силовых вводов предприятий общественного питания
Pр.с, кВт, следует определять по формуле
Pр.с =
Pр.т + 0,6
Pр.с.т, (11)
где
Pр.с.т - расчетная нагрузка линий сантехнического оборудования или холодильных машин, определяемая с коэффициентом спроса, который принимается по позиции 1
таблицы 7.9 и
примечанию 2 к таблице 7.8.
Расчетную нагрузку силовых вводов предприятий общественного питания при предприятиях, организациях и учреждениях, предназначенных для обслуживания лиц, постоянно работающих в учреждении, а также при учебных заведениях следует определять по
формуле (11) с коэффициентом 0,7.
7.2.10 Нагрузку распределительных линий электроприемников уборочных механизмов для расчета сечений проводников и уставок защитных аппаратов следует, как правило, принимать равной 9 кВт при напряжении 380/220 В и 4 кВт при напряжении 220 В. При этом установленную мощность одного уборочного механизма, присоединяемого к трехфазной розетке с защитным контактом, следует принимать равной 4,5 кВт, а к однофазной - 2 кВт.
7.2.11 Мощность электроприемников противопожарных устройств, резервных электродвигателей и уборочных механизмов следует учитывать только в части рекомендаций
7.1.9.
7.2.12 Расчетную электрическую нагрузку распределительных и питающих линий лифтов, подъемников и транспортеров следует определять по
7.1.7.
7.2.13 Расчетную электрическую нагрузку конференц-залов и актовых залов во всех элементах сети зданий следует определять по наибольшей из нагрузок - освещения зала и президиума, кинотехнологии или освещения эстрады.
7.2.14 В расчетную электрическую нагрузку кинотехнологического оборудования конференц-залов и актовых залов следует включать мощность одного наибольшего кинопроекционного аппарата с его выпрямительной установкой и мощность работающей звукоусилительной аппаратуры с коэффициентом спроса, равным 1. Если в кинопроекционной установлена аппаратура для экрана нескольких форматов, то в расчетную электрическую нагрузку должна включаться аппаратура наибольшей мощности.
7.2.15 Расчетную электрическую нагрузку силовых вводов общественных зданий (помещений), относящихся к одному комплексу, но предназначенных для потребителей различного функционального назначения (например, учебных помещений и мастерских учреждений профессионального образования, специальных учебных заведений и школ; парикмахерских, ателье, ремонтных мастерских комбинатов бытового обслуживания; общественных помещений и вычислительных центров и т.п.), следует принимать с коэффициентом несовпадения максимумов их нагрузок, равным 0,85. При этом суммарная расчетная нагрузка должна быть не менее расчетной электрической нагрузки наибольшей из групп потребителей.
7.2.16 Расчетную электрическую нагрузку питающих линий и вводов в рабочем и аварийном режимах при совместном питании силовых электроприемников и освещения Pр, кВт, следует определять по формуле
Pр = K(Pр.о + Pр.с + K1Pр.х.с), (12)
где
K - коэффициент, учитывающий несовпадение расчетных максимумов нагрузок силовых электроприемников, включая холодильное оборудование и освещение, принимаемый по
таблице 7.11;
K1 - коэффициент, зависящий от отношения расчетной электрической нагрузки освещения к нагрузке холодильного оборудования холодильной станции, принимаемый по
примечанию 3 к таблице 7.11;
Pр.о - расчетная электрическая нагрузка освещения, кВт;
Pр.с - расчетная электрическая нагрузка силовых электроприемников без холодильных машин систем кондиционирования воздуха, кВт;
Pр.х.с - расчетная электрическая нагрузка холодильного оборудования систем кондиционирования воздуха, кВт.
Таблица 7.11
Коэффициенты несовпадения максимумов
расчетных электрических нагрузок
силовых электроприемников и освещения
Наименование здания | Значение коэффициента K при отношении расчетной электрической нагрузки освещения к силовой, % |
от 20 до 75 | св. 75 до 140 | св. 140 до 250 |
1 | Предприятия торговли и общественного питания, гостиницы | 0,9 (0,85) | 0,85 (0,75) | 0,9 (0,85) |
2 | Общеобразовательные школы, специальные учебные заведения, учреждения профессионального образования | 0,95 | 0,9 | 0,95 |
3 | Детские ясли-сады | 0,85 | 0,8 | 0,85 |
4 | Ателье, комбинаты бытового обслуживания, химчистки с прачечными самообслуживания, парикмахерские | 0,85 | 0,75 | 0,85 |
5 | Организации и учреждения управления, финансирования и кредитования, проектные и конструкторские организации | 0,95 (0,85) | 0,9 (0,75) | 0,95 (0,85) |
Примечания 1 При отношении расчетной осветительной нагрузки к силовой до 20% и св. 250% коэффициент K следует принимать равным 1. 2 В скобках приведено значение коэффициента K для зданий и помещений с кондиционированием воздуха. 3 Коэффициент K1 при отношении расчетной нагрузки освещения к расчетной нагрузке холодильного оборудования холодильной станции, %: - до 15 - 1; - 20 - 0,8; - 50 - 0,6; - 100 - 0,4; - св. 150 - 0,2. 4 Коэффициент спроса для промежуточных соотношений определяется интерполяцией. В расчетной электрической нагрузке не учитываются нагрузки помещений без естественного освещения. |
7.2.17 Расчетную электрическую нагрузку общежитий учреждений профессионального образования, средних учебных заведений и школ-интернатов следует определять в соответствии с требованиями
7.1.1 -
7.1.11, а ее участие в расчетной нагрузке учебного комплекса - с коэффициентом, равным 0,2.
7.2.18 Значение коэффициента мощности для расчета силовых сетей общественных зданий рекомендуется принимать по таблице 7.12.
Таблица 7.12
Коэффициенты мощности для общественных зданий
Наименование здания и сооружения | Коэффициент мощности |
Предприятия общественного питания: | |
полностью электрифицированные | 0,98 |
частично электрифицированные (с плитами на газообразном и твердом топливе) | 0,95 |
Продовольственные и промтоварные магазины | 0,85 |
Ясли-сады: | |
с пищеблоками | 0,98 |
без пищеблоков | 0,95 |
Общеобразовательные школы: | |
с пищеблоками | 0,95 |
без пищеблоков | 0,9 |
Фабрики-химчистки с прачечными самообслуживания | 0,75 |
Учебные корпуса учреждений профессионального образования | 0,9 |
Учебно-производственные мастерские по металлообработке и деревообработке | 0,6 |
Гостиницы: | |
без ресторанов | 0,85 |
с ресторанами | 0,9 |
Здания и учреждения управления, финансирования, кредитования и государственного страхования, проектные и конструкторские организации | 0,85 |
Парикмахерские и салоны-парикмахерские | 0,97 |
Ателье, комбинаты бытового обслуживания | 0,85 |
Холодильное оборудование предприятий торговли и общественного питания, насосов, вентиляторов и кондиционеров воздуха при мощности электродвигателей, кВт: | |
до 1 | 0,65 |
от 1 до 4 | 0,75 |
св. 4 | 0,85 |
Лифты и другое подъемное оборудование | 0,65 |
Вычислительные машины (без технологического кондиционирования воздуха) | 0,65 |
Коэффициенты мощности для расчета сетей освещения следует принимать с лампами: | |
люминесцентными | 0,92 |
накаливания | 1,0 |
ДРЛ и ДРИ с компенсированными ПРА | 0,85 |
то же, с некомпенсированными ПРА | 0,3 - 0,5 |
газосветных рекламных установок | 0,35 - 0,4 |
Применение светильников с люминесцентными лампами с некомпенсированными ПРА в общественных зданиях не допускается, кроме одноламповых светильников мощностью до 30 Вт, с коэффициентом мощности 0,5. При совместном питании линией разрядных ламп и ламп накаливания коэффициент мощности определяется с учетом суммарных активных и суммарных реактивных нагрузок.
7.2.19 Расчетную электрическую нагрузку питающей линии (трансформаторной подстанции) при смешанном питании потребителей различного назначения (жилых домов и общественных зданий или помещений)
Pр, кВт, определяют по формуле
Pр = Pзд.макс + K1Pзд1 + K2Pзд2 + ... + KnPздn, (13)
где Pзд.макс - максимальная из нагрузок зданий, питаемых линией (трансформаторной подстанцией), кВт;
Pзд1 ... Pздn - расчетные электрические нагрузки всех зданий, кроме здания с наибольшей нагрузкой Pзд.макс, питаемых линией (трансформаторной подстанцией), кВт;
K1, K2, Kn - коэффициенты, учитывающие долю электрических нагрузок общественных зданий (помещений) и жилых домов (квартир и силовых электроприемников) в наибольшей расчетной нагрузке Pзд.макс, принимаемые по таблице 7.13.
Таблица 7.13
Коэффициенты несовпадения максимумов нагрузок
общественных зданий и жилых домов
Наименование здания (помещения) с наибольшей расчетной электрической нагрузкой | Коэффициенты несовпадения максимумов нагрузок для |
жилых домов с плитами | предприятий общественного питания | средних учебных заведений, библиотек | общеобразовательных школ, профессионально-технических училищ | организаций и учреждений управления, проектных и конструкторских организаций, учреждений финансирования и кредитования | предприятий торговли | гостиниц | парикмахерских | детских яслей-садов | поликлиник | ателье и комбинатов бытового обслуживания | предприятий коммунального обслуживания | кинотеатров |
электрическими | на твердом и газообразном топливе | столовых | ресторанов, кафе | односменных | полуторасменных, двухсменных |
Жилые дома с плитами: | | | | | | | | | | | | | | | | |
электрическими | - | 0,9 | 0,6 | 0,7 | 0,6 | 0,4 | 0,6 | 0,6 | 0,8 | 0,7 | 0,8 | 0,4 | 0,7 | 0,6 | 0,7 | 0,9 |
на твердом и газообразном топливе | 0,9 | - | 0,6 | 0,7 | 0,5 | 0,3 | 0,4 | 0,5 | 0,8 | 0,7 | 0,7 | 0,4 | 0,6 | 0,5 | 0,5 | 0,9 |
Предприятия общественного питания (столовые, кафе и рестораны) | 0,4 | 0,4 | 0,8 | 0,8 | 0,8 | 0,8 | 0,8 | 0,8 | 0,8 | 0,7 | 0,8 | 0,8 | 0,8 | 0,8 | 0,8 | 0,5 |
Общеобразовательные школы, средние учебные заведения, профессионально-технические училища, библиотеки | 0,5 | 0,4 | 0,8 | 0,6 | 0,7 | 0,7 | 0,8 | 0,8 | 0,8 | 0,7 | 0,8 | 0,8 | 0,8 | 0,7 | 0,8 | 0,8 |
Предприятия торговли (односменные и полутора- двухсменные) | 0,5 | 0,4 | 0,8 | 0,6 | 0,7 | 0,7 | 0,8 | 0,8 | 0,8 | 0,7 | 0,8 | 0,8 | 0,8 | 0,7 | 0,8 | 0,8 |
Организации и учреждения управления, проектные и конструкторские организации, учреждения финансирования и кредитования | 0,5 | 0,4 | 0,8 | 0,8 | 0,8 | 0,8 | 0,8 | 0,8 | 0,8 | 0,7 | 0,8 | 0,8 | 0,8 | 0,7 | 0,8 | 0,5 |
Гостиницы | 0,8 | 0,8 | 0,6 | 0,8 | 0,4 | 0,3 | 0,6 | 0,6 | 0,8 | 0,8 | 0,8 | 0,4 | 0,7 | 0,5 | 0,7 | 0,9 |
Поликлиники | 0,5 | 0,4 | 0,8 | 0,6 | 0,6 | 0,8 | 0,8 | 0,8 | 0,8 | 0,7 | 0,8 | 0,8 | 0,8 | 0,7 | 0,8 | 0,8 |
Ателье и комбинаты бытового обслуживания, предприятия коммунального обслуживания | 0,5 | 0,4 | 0,8 | 0,6 | 0,8 | 0,8 | 0,8 | 0,8 | 0,8 | 0,7 | 0,8 | 0,8 | 0,8 | 0,7 | 0,8 | 0,8 |
Кинотеатры | 0,9 | 0,9 | 0,4 | 0,6 | 0,3 | 0,2 | 0,2 | 0,2 | 0,8 | 0,7 | 0,8 | 0,2 | 0,4 | 0,4 | 0,5 | - |
Примечания 1 При нескольких нагрузках, имеющих равное или близкое к равному наибольшее значение, расчет следует выполнять относительно той нагрузки, при которой Pр получается наибольшим. 2 Для гаражей, стоянок автомобилей и тепловых пунктов жилого дома с электрическими и газовыми плитами коэффициент участия в максимуме нагрузки равен 0,9. |
7.2.20 Ориентировочные расчеты электрических нагрузок общественных зданий допускается выполнять по укрупненным удельным электрическим нагрузкам, приведенным в таблице 7.14.
Таблица 7.14
Укрупненные удельные электрические нагрузки
Характеристика здания | Единица измерения | Удельная нагрузка |
Предприятия общественного питания |
| Полностью электрифицированные с числом посадочных мест: | | |
| до 400 | кВт/место | 1,04 |
2 | св. 400 до 1000 | 0,86 |
3 | " 1000 | 0,75 |
| Частично электрифицированные (с плитами на газообразном топливе) с числом посадочных мест: | |
4 | до 400 | 0,81 |
5 | св. 400 до 1000 | 0,69 |
| " 1000 | 0,56 |
Продовольственные магазины |
7 | Без кондиционирования воздуха | кВт/м2 торгового зала | 0,23 |
8 | С кондиционированием воздуха | 0,25 |
Промтоварные магазины |
9 | Без кондиционирования воздуха | кВт/м2 торгового зала | 0,14 |
10 | С кондиционированием воздуха | 0,16 |
Общеобразовательные школы |
11 | С электрифицированными столовыми и спортзалами | кВт/1 учащегося | 0,25 |
12 | Без электрифицированных столовых, со спортзалами | 0,17 |
13 | С буфетами, без спортзалов | 0,17 |
14 | Без буфетов и спортзалов | 0,15 |
| Профессионально-технические училища со столовыми | 0,46 |
| Детские ясли-сады | кВт/место | 0,46 |
Кинотеатры и киноконцертные залы |
17 | С кондиционированием воздуха | кВт/место | 0,14 |
18 | Без кондиционирования воздуха | 0,12 |
19 | Клубы | 0,46 |
20 | Парикмахерские | кВт/рабочее место | 1,5 |
Здания или помещения учреждений управления, проектных и конструкторских организаций |
| С кондиционированием воздуха | кВт/м2 общей площади | 0,054 |
| Без кондиционирования воздуха | То же | 0,043 |
Гостиницы |
| С кондиционированием воздуха | кВт/место | 0,46 |
| Без кондиционирования воздуха | 0,34 |
| Дома отдыха и пансионаты без кондиционирования воздуха | | 0,36 |
26 | Фабрики химчистки и прачечные самообслуживания | кВт/кг вещей | 0,075 |
| Детские лагеря | кВт/м2 жилых помещений | 0,023 |
Примечания 1 Для позиций 1 - 6 удельная нагрузка не зависит от наличия кондиционирования воздуха. 2 Для позиций 15, 16 нагрузка бассейнов и спортзалов не учтена. 3 Для позиций 21, 22, 25, 27 нагрузка пищеблоков не учтена. Удельную нагрузку пищеблоков следует принимать как для предприятий общественного питания с учетом числа посадочных мест, рекомендованного нормами для соответствующих зданий, и 7.2.9. 4 Для позиций 23, 24 удельную нагрузку ресторанов при гостиницах следует принимать как для предприятий общественного питания открытого типа. 5 Для предприятий общественного питания при числе мест, не указанном в таблице, удельные нагрузки определяются интерполяцией. 6 Расчетные данные, приведенные в таблице, могут корректироваться для конкретного применения с учетом местных условий. При наличии документированных и утвержденных в установленном порядке экспериментальных данных расчет нагрузок следует рассчитывать по ним. |
(примечание 6 введено Изменением N 3, утв. Приказом Минстроя России от 25.04.2019 N 238/пр) |
7.2.21 Для потребителей с установленными суточными графиками потребления электроэнергии допускается применение накопителей электроэнергии, позволяющих обеспечить снижение расчетной присоединяемой нагрузки.
(п. 7.2.21 введен
Изменением N 6, утв. Приказом Минстроя России от 28.12.2023 N 1005/пр)
7.3 Компенсация реактивной нагрузки
7.3.1 Для потребителей жилых и общественных зданий компенсация реактивной мощности, как правило, не требуется.
В случае несоответствия синусоидальной формы напряжения сети требованиям
ГОСТ 32144 в части высших гармоник по причине значительного значения мощности гармонических искажений потребителя, следует принимать меры по приведению показателей качества электроэнергии до указанных в
ГОСТ 32144.
7.3.2 Для местных и центральных тепловых пунктов, насосных, котельных и других потребителей, предназначенных для обслуживания жилых и общественных зданий, расположенных в микрорайонах (школы, детские ясли-сады, предприятия торговли и общественного питания и другие потребители), компенсация реактивной нагрузки, как правило, не требуется, если в нормальном режиме работы расчетная мощность компенсирующего устройства на каждом рабочем вводе не превышает 50 кВАр. Это соответствует суммарной расчетной нагрузке указанных потребителей 250 кВт.
(в ред.
Изменения N 3, утв. Приказом Минстроя России от 25.04.2019 N 238/пр)
7.4 Зарядные станции и пункты зарядки для электромобилей
(подраздел 7.4 введен
Изменением N 6, утв. Приказом Минстроя России от 28.12.2023 N 1005/пр)
7.4.1 Зарядные станции и пункты зарядки для электромобилей, интегрированные в жилые и общественные здания, как приемники электроэнергии подразделяют на следующие категории:
- тип 1 - номинальный ток не превышает 16 А, номинальное напряжение 230 В при однофазном и 400 В при трехфазном подключении (бытовые зарядные станции);
- тип 2 - номинальный ток не превышает 32 А, номинальное напряжение 230 В при однофазном и 400 В при трехфазном подключении (медленные зарядные станции);
- тип 3 - номинальный ток не превышает 63 А, номинальное напряжение 400 В при трехфазном подключении (стандартные зарядные станции);
- тип 4 - номинальный ток превышает 63 А, номинальное напряжение 400 В при трехфазном подключении (быстрые зарядные станции).
7.4.2 Объединение зарядных станций и пунктов зарядки для электромобилей в групповые цепи не допускается.
Подключение зарядных станций и пунктов зарядки электромобилей типов 3, 4 следует осуществлять непосредственно от ВРУ, ГРЩ здания или РУ-0,4 кВ ТП.
Размещение зарядных станций и пунктов зарядки для электромобилей типа 4 во встроенных, пристроенных и встроенно-пристроенных помещениях жилых и общественных зданий не допускается.
Допускается подключение зарядных станций и пунктов зарядки для электромобилей типов 1, 2 от групповых осветительных или силовых щитков.
7.4.3 Зарядные станции и пункты зарядки для электромобилей типов 2, 3 следует предусматривать для стоянок персонала общественных зданий. Зарядные станции типов 1 - 3 следует предусматривать для частных парковочных мест в многоквартирных жилых зданиях и отдельно стоящих многоуровневых стоянках автомобилей.
Для гостевых стоянок автомобилей общественных зданий следует предусматривать зарядные станции и пункты зарядки для электромобилей типов 3, 4.
Применение зарядных станций и пунктов зарядки для электромобилей типа 1 следует предусматривать по заданию на проектирование для индивидуальных и блокированных жилых домов.
7.4.4 При определении расчетных нагрузок зданий зарядные станции и пункты зарядки для электромобилей следует относить к силовому оборудованию.
Количество мест для хранения электромобилей, оборудуемых зарядными устройствами для электромобилей, определяется в соответствии с
СП 42.13330, региональными нормативными правовыми актами по градостроительному проектированию и профильными нормативными документами, регулирующими правила проектирования зданий и сооружений.
При расчете нагрузок от зарядных станций и пунктов зарядки для электромобилей следует руководствоваться коэффициентами спроса Kс.з, приведенными в таблице 7.15.
Таблица 7.15
Коэффициенты спроса Kс.з зарядных станций и пунктов зарядки
для электромобилей для жилых зданий
Тип зарядных станций | Kс.з зарядных станций при числе электроприемников |
1 - 3 | 4 - 8 | 9 - 15 | 16 - 25 | 26 - 40 | Свыше 40 |
Тип 1 | 1 | 0,9 | 0,8 | 0,68 | 0,6 | 0,55 |
Тип 2 | 1 | 0,88 | 0,73 | 0,64 | 0,55 | 0,47 |
Тип 3 | 1 | 0,78 | 0,64 | 0,52 | 0,43 | 0,36 |
Тип 4 | 0,9 | 0,64 | 0,49 | 0,37 | 0,28 | 0,2 |
7.4.5 При наличии автоматизации, регулирующей отпуск свободной мощности на нужды зарядной инфраструктуры согласно графику пиковых нагрузок жилых зданий, при определении расчетных нагрузок жилых зданий нагрузку от зарядной инфраструктуры допускается принимать коэффициент несовпадения максимумов Kнм.з равным 0,25 к основной нагрузке жилых зданий.
8 Схемы электрических сетей
8.1 Схемы электрических сетей должны строиться исходя из требований, предъявляемых к электробезопасности, пожаробезопасности, электроснабжению и надежности электроснабжения электроприемников зданий. Как правило, схемы вводов, как с ручным управлением, так и с автоматическим (АВР), выполняют двухсекционными с межсекционным выключателем.
(п. 8.1 в ред.
Изменения N 4, утв. Приказом Минстроя России от 30.12.2020 N 919/пр)
8.2 Число вводно-распределительных устройств или главных распределительных щитов (ВРУ, ГРЩ), предназначенных для приема электроэнергии от городской сети и распределения ее по потребителям зданий, выбирается по соображениям обеспечения надежности электроснабжения с учетом конструкции здания и по построению схемы внешнего электроснабжения.
В жилых домах ВРУ рекомендуется размещать в средних секциях.
В общественных зданиях ГРЩ или ВРУ должны располагаться у основного абонента независимо от числа предприятий, учреждений и организаций, расположенных в здании.
8.3 В типовых проектах блок-секций жилых домов следует предусматривать планировочные решения, позволяющие изменять местоположение ВРУ при привязке проектов к конкретным условиям застройки.
8.4 У каждого из абонентов, расположенных в здании, должно устанавливаться самостоятельное ВРУ, питающееся от общего ВРУ или ГРЩ здания.
От общего ВРУ допускается при проектировании здания осуществлять питание потребителей, расположенных в других зданиях и/или сооружениях при условии, что потребители связаны функционально (например: повысительные насосные, насосные перекачки дренажных стоков и т.п.).
8.5 Нагрузка каждой питающей линии, отходящей от главного (общего) ВРУ, не должна превышать 250 А. В случае необходимости питания нагрузки свыше 250 А, должны применяться самостоятельные ГРЩ или РЩ.
8.6 Число стояков в жилых домах высотой 4 этажа и более, схемы их подключения к питающим линиям и ВРУ должны, как правило, соответствовать рекомендациям
8.2.
При превышении нагрузки стояка 250 А стояк допускается выполнять состоящим из двух линий или шинопроводами.
8.7 Линии питания лифтов для транспортирования подразделений пожарной охраны, должны соответствовать требованиям
СП 6.13130,
ГОСТ Р 50571.5.56 и прокладываться в соответствии с
8.19 и
15.12 и быть с автономным управлением с 1-го этажа (предусматривается в схемах управления лифтами).
(в ред.
Изменения N 6, утв. Приказом Минстроя России от 28.12.2023 N 1005/пр)
8.8 Категория по надежности электроснабжения для питания электроприемников противопожарных устройств должна соответствовать требованиям
таблицы 6.1 и
СП 6.13130. При применении противопожарных устройств необходимо учитывать класс функциональной пожарной опасности зданий и помещений [
3,
статья 32].
Электрооборудование систем противопожарной защиты: средств обеспечения деятельности подразделений пожарной охраны, систем обнаружения пожара, оповещения и управления эвакуацией людей при пожаре, аварийного освещения на путях эвакуации, аварийной вентиляции и противодымной защиты, автоматического пожаротушения, внутреннего противопожарного водопровода, лифтов для транспортирования подразделений пожарной охраны в зданиях и сооружениях - должно соответствовать требованиям
СП 6.13130,
ГОСТ Р 50571.5.56,
ГОСТ Р 53296.
Для предотвращения пожаров, которые могут возникнуть вследствие искрения и дуговых пробоев в электрических сетях и электрооборудовании, в числе устройств противопожарной защиты следует применять УЗДП в соответствии с требованиями приложения В и
ГОСТ IEC 62606. УЗДП могут быть комбинированными, т.е. дополнительно обеспечивать защиту от токов короткого замыкания (функция автоматического выключателя) и (или) защиту от повышенного значения дифференциального тока (функция УДТ), а также защиту от недопустимого превышения напряжения и возможность дистанционного отключения УЗДП, например по сигналу "Пожар" от систем противопожарной защиты. При этом должна обеспечиваться индикация, однозначно определяющая причину отключения комбинированного устройства.
(в ред.
Изменения N 6, утв. Приказом Минстроя России от 28.12.2023 N 1005/пр)
Все применяемые электрические и оптические кабели должны соответствовать
ГОСТ 31565.
(п. 8.8 в ред.
Изменения N 4, утв. Приказом Минстроя России от 30.12.2020 N 919/пр)
8.9 При наличии в здании электроприемников, требующих первой категории по степени надежности электроснабжения, допускается не выполнять питание всего здания от двух независимых источников с устройством АВР на вводе в случае более низкой требуемой степени обеспечения надежности электроснабжения других электроприемников в соответствии с
таблицей 6.1.
(п. 8.9 в ред.
Изменения N 6, утв. Приказом Минстроя России от 28.12.2023 N 1005/пр)
8.10 При отсутствии АВР на вводе в здание питание электроприемников I-й категории по надежности электроснабжения следует выполнять от самостоятельного щита (панели) с устройством АВР (питание аварийного освещения
8.12).
При наличии на вводе аппаратов защиты и управления (отделения) щит (панель) с устройством АВР следует подключать после аппарата управления (отделения) и до аппарата защиты.
При наличии на вводе автоматического выключателя, выполняющего функции управления (отделения) и защиты, это подключение должно производиться до автоматического выключателя.
В зданиях, относящихся к III-й категории по надежности электроснабжения, питающихся по одной линии, резервное питание электроприемников I-й категории по надежности электроснабжения следует осуществлять от автономных источников. Питание электроприемников следует выполнять от самостоятельного щита, который следует подключать после аппарата управления, и до аппарата защиты основного ВРУ.
Абзац исключен с 29.01.2024. -
Изменение N 6, утв. Приказом Минстроя России от 28.12.2023 N 1005/пр.
8.11 Исключен с 29.01.2024. -
Изменение N 6, утв. Приказом Минстроя России от 28.12.2023 N 1005/пр.
8.12 Питание и режимы работы аварийного освещения
8.12.1 Питание аварийного освещения (эвакуационного и резервного) должно быть независимым от питания рабочего освещения и в нормальном режиме обеспечиваться электроэнергией от ввода, который не применяется для питания рабочего освещения за исключением
8.12.6. В качестве независимого источника питания могут быть использованы:
- отдельный ввод электроснабжения, который независим от основного ввода;
(в ред.
Изменения N 8, утв. Приказом Минстроя России от 29.11.2024 N 808/пр)
- аккумуляторные батареи (как централизованные, установленные в отдельном помещении, так и автономные, входящие в состав светильников). Продолжительность работы светильников аварийного эвакуационного освещения при питании их от аккумуляторов должна быть достаточной для эвакуации людей из здания, но не менее 1 ч;
- генераторные установки, независимые от основного питания. Применение генераторных установок для питания сети аварийного эвакуационного освещения, как правило, следует предусматривать в случаях, если эти генераторные установки необходимы для электроснабжения и других нагрузок здания.
При наличии второго независимого ввода электроснабжения распределительная сеть аварийного эвакуационного освещения и знаков безопасности должна быть выполнена от устройства АВР (
8.12.3,
8.12.4,
8.12.5,
8.12.8).
Аварийное освещение может быть включено в постоянном режиме одновременно с рабочим освещением, и в непостоянном (автоматически включаться при нарушении питания в сети рабочего освещения с выполнением требований
СП 52.13330 ко времени включения).
8.12.2 Аварийное эвакуационное освещение, включая знаки безопасности, относится к системам безопасности зданий и должно соответствовать требованиям
[3],
ГОСТ Р 50571.5.56 и
СП 6.13130. Электропроводки аварийного эвакуационного освещения следует выполнять в соответствии с
10.6 -
10.11.
(п. 8.12.2 в ред.
Изменения N 4, утв. Приказом Минстроя России от 30.12.2020 N 919/пр)
8.12.3 В зданиях, в которых для всех нагрузок электроснабжение выполнено по I-й категории надежности и предусмотрено ВРУ (ГРЩ) с устройством АВР, распределительные сети аварийного эвакуационного освещения и аварийного резервного освещения следует выполнять отдельными линиями от данного ВРУ (ГРЩ).
8.12.4 В зданиях, в которых электроснабжение по I-й категории надежности выполнено для части нагрузок, для которых предусмотрена панель устройства АВР, распределительную сеть аварийного эвакуационного освещения следует выполнять от этой панели отдельной линией. Распределительную сеть аварийного резервного освещения допускается выполнять от распределительной панели ВРУ (ГРЩ), которая не применяется для питания рабочего освещения (с учетом
8.12.1). В случае применения односекционного ВРУ распределительную сеть аварийного резервного освещения следует выполнять от панели АВР отдельной линией.
(в ред.
Изменения N 4, утв. Приказом Минстроя России от 30.12.2020 N 919/пр)
В зданиях, в которых предусмотрено аварийное резервное освещение, применение односекционных ВРУ не рекомендуется.
8.12.5 В зданиях, электроснабжение которых выполнено по II-й категории надежности, для питания аварийного эвакуационного освещения следует предусматривать устройство АВР в соответствии с
8.10. Распределительную сеть резервного освещения следует выполнять аналогично
8.12.4.
8.12.6 При отсутствии в здании отдельного независимого ввода электроснабжения распределительная сеть питания аварийного эвакуационного освещения должна быть подключена до аппарата защиты основного ВРУ (ГРЩ). В случае нарушения электроснабжения здания питание аварийного освещения должно осуществляться от независимого источника питания (генераторной установки или аккумуляторных батарей, при этом линии должны быть проложены огнестойким кабелем).
8.12.7 Для питания аварийного эвакуационного и аварийного резервного освещения допускается применять общую распределительную сеть и совмещенные щитки аварийного освещения. В этом случае групповые линии аварийного резервного освещения должны быть выполнены огнестойким кабелем.
8.12.8 В наиболее ответственных осветительных установках для питания аварийного эвакуационного освещения могут быть предусмотрены специальные меры повышения надежности:
- применение трех независимых источников питания: двух независимых вводов электроснабжения и источник резервного питания - аккумуляторные батареи или генераторную установку (особая группа электроприемников I-й категории). К особой группе электроприемников I-й категории может быть отнесена часть светильников эвакуационного освещения здания (установленных на протяженных путях эвакуации, в которых отсутствует естественное освещение, таких как лестничные клетки, расположенные ниже планировочной отметки);
- применение двух отдельных взаимно резервирующих вводов от трансформаторной подстанции для питания эвакуационного освещения и других систем безопасности, работоспособность которых должна обеспечиваться в условиях пожара. При этом к аппаратам защиты в распределительном устройстве низкого напряжения (РУНН) трансформаторной подстанции и к линиям питания не должны быть подключены иные нагрузки, кроме эвакуационного освещения (включая знаки безопасности) и других систем безопасности зданий, работоспособность которых должна обеспечиваться в условиях пожара (за исключением
8.12.7);
(в ред.
Изменения N 6, утв. Приказом Минстроя России от 28.12.2023 N 1005/пр)
- применение дополнительного устройства АВР, который следует подключать до вводных аппаратов защиты ВРУ (ГРЩ). К устройству АВР допускается подключать другие системы безопасности зданий, работоспособность которых должна обеспечиваться в условиях пожара с учетом
8.12.7.
Применение специальных мер повышения надежности рекомендуется для:
- зданий с круглосуточным пребыванием людей;
- отдельных помещений с постоянным пребыванием людей без естественного освещения, в которых есть травмоопасные механизмы и другие источники опасности;
- протяженных путей эвакуации без естественного освещения, на которых есть перепады высоты (ступени), противопожарные перегородки, лестничные марши и другие препятствия;
- зданий, предназначенных для длительного нахождения в них маломобильных групп населения;
- иных объектов, для которых решение о применении специальных мер принято совместно с заказчиком проектных работ.
Специальные меры повышения надежности работы аварийного эвакуационного освещения могут быть приняты в любом сочетании и по отдельности.
8.12.9 Исключен с 29.01.2024. -
Изменение N 6, утв. Приказом Минстроя России от 28.12.2023 N 1005/пр.
8.12.10 Электроснабжение аварийного освещения электроустановок зданий специального назначения, для проектирования которых приняты специальные стандарты и своды правил, должно выполняться с учетом их специфики и действующих норм.
8.12.11 Исключен с 29.01.2024. -
Изменение N 6, утв. Приказом Минстроя России от 28.12.2023 N 1005/пр.
8.12.12 Если питание аварийного эвакуационного освещения и других систем безопасности осуществляется до основного узла учета электроэнергии, то необходимо для указанных нагрузок предусмотреть дополнительный узел учета.
8.13 Распределительные линии сетей рабочего освещения, витрин, рекламы и иллюминации в зданиях должны быть самостоятельными, начиная от ВРУ или ГРЩ.
8.14 Схемы электрических сетей жилых домов следует выполнять исходя из того что:
- питание квартир и силовых электроприемников, в том числе лифтов, должно, как правило, осуществляться от общих секций ВРУ. Раздельное их питание следует выполнять только в случае, когда расчетом подтверждено, что значения размахов изменения напряжения на зажимах ламп в квартирах при включении лифтов выше регламентируемых
ГОСТ 32144;
- линии питания вентиляторов дымоудаления и подпора воздуха при пожаре, установленные в одной секции, должны быть самостоятельными для каждого вентилятора, начиная от щита противопожарных устройств ВРУ. При этом соответствующие вентиляторы или шкафы, расположенные в разных секциях, допускается питать по одной линии независимо от числа секций, подключенных к ВРУ (система дымоудаления относится к системам противопожарной защиты и выполняется по
СП 6.13130 и
ГОСТ Р 50571.5.56).
К одной распределительной линии разрешается присоединять несколько стояков, при этом в жилых зданиях высотой более пяти этажей на ответвлении к каждому стояку должен устанавливаться отключающий аппарат.
Рабочее освещение лестниц, поэтажных коридоров, вестибюлей, входов в здание, огней светового ограждения и домофонов должно питаться линиями от ВРУ. При этом линии питания домофонов и огней светового ограждения должны быть самостоятельными. Питание усилителей телевизионных сигналов, как правило, следует осуществлять самостоятельными линиями от ВРУ. Питание домофонов, освещения входов в здание и огней светового ограждения рекомендуется осуществлять от сети аварийного эвакуационного освещения.
Силовые электроприемники общедомовых потребителей жилых зданий (лифты, насосы, вентиляторы и т.п.), как правило, должны получать питание от самостоятельной силовой сети, начиная от ВРУ.
8.15 В общественных зданиях от одной линии рекомендуется питать несколько вертикальных участков (стояков) распределительной сети освещения. При этом в начале каждого стояка, питающего три и более групповых щитков, следует устанавливать защитный аппарат. Если стояк питается отдельной линией, установка защитного аппарата в начале стояка не требуется.
8.16 Электроустановки торговых предприятий, учреждений бытового обслуживания населения, административно-конторских и других помещений общественного назначения, встроенных в жилые дома, следует питать отдельными линиями от ВРУ (ГРЩ) дома (
17.3 настоящего свода правил. При этом у каждого потребителя должно устанавливаться самостоятельное ВРУ.
(в ред.
Изменения N 8, утв. Приказом Минстроя России от 29.11.2024 N 808/пр)
Допускается питание указанных потребителей от отдельного ВРУ (обособленный ввод) для всех встроенных помещений и установка индивидуальных ВРУ у каждого собственника.
8.17 Питающие линии холодильных установок предприятий торговли и общественного питания должны быть проложены от ВРУ или ГРЩ этих предприятий.
8.18 Электроприемники центральных тепловых пунктов (ЦТП) должны питаться не менее чем двумя отдельными линиями от ТП. Не допускается присоединение к этим линиям других электроприемников.
Питание систем диспетчеризации и освещения коллекторов следует выполнять от щитов ЦТП.
8.19 По одной линии следует питать не более четырех лифтов, расположенных в разных, не связанных между собой лестничных клетках и холлах. При наличии в лестничных клетках или в лифтовых холлах двух или более лифтов одного назначения они должны питаться от двух линий, присоединяемых каждая непосредственно к ВРУ или ГРЩ; при этом число лифтов, присоединяемых к одной линии, не ограничивается. На вводе каждого лифта должен быть предусмотрен аппарат управления и защиты (предусматривается схемой и комплектацией лифта). Рекомендуется установка одного аппарата, совмещающего эти функции.
8.20 На вводах распределительных пунктов и групповых щитков должны устанавливаться аппараты управления.
8.21 Распределение электроэнергии к силовым распределительным щитам, пунктам и групповым щиткам сети электрического освещения следует, как правило, осуществлять по магистральной схеме.
Радиальные схемы следует, как правило, выполнять для присоединения мощных электродвигателей, групп электроприемников общего технологического назначения (например, встроенных пищеблоков, помещений вычислительных центров и т.п.), потребителей I-й категории по надежности электроснабжения.
8.22 Питание рабочего освещения помещений, в которых длительно могут находиться 600 и более человек (конференц-залы, актовые залы и т.п.), рекомендуется осуществлять от разных вводов, при этом к каждому вводу должно быть подключено около 50% светильников.
8.23 В электрических сетях низкого напряжения номинальное напряжение электропитания Uном равно 220 В (между фазными и нейтральными проводниками для однофазных и четырехпроводных трехфазных систем) и 380 В (между фазными проводниками для трех- и четырехпроводных систем).
В нормальных условиях работы сетей рекомендуется поддерживать напряжение в точке питания потребителя с отклонением от номинального значения не более +/- 10%.
Допустимые значения отклонений напряжения в точках общего присоединения должны быть установлены сетевой организацией с учетом необходимости выполнения
ГОСТ 32144 в точках передачи электрической энергии. В электрической сети потребителя должны быть обеспечены условия, при которых отклонения напряжения питания на зажимах электроприемников не превышают установленных для них допустимых значений при выполнении требований
ГОСТ 32144.
Если в здании одновременно эксплуатируются электроприемники с различным номинальным напряжением, общий диапазон допустимых значений отклонения напряжения питания на питающих линиях после ВРУ должен определяться по максимальному значению нижней границы и минимальному значению верхней границы диапазона допустимых значений совокупности электроприемников.
(абзац введен
Изменением N 5, утв. Приказом Минстроя России от 01.03.2022 N 129/пр)
В общем случае, при использовании электроприемников с номинальным напряжением 220 и 230 В нижняя граница диапазона допустимых значений должна быть не менее 230 В - 10%, а верхняя граница - не более 220 В + 10%.
(абзац введен
Изменением N 5, утв. Приказом Минстроя России от 01.03.2022 N 129/пр)
Для обеспечения требуемого диапазона в жилых и общественных зданиях с одновременной эксплуатацией электроприемников с различным номинальным напряжением допускается установка оборудования, обеспечивающего удержание напряжения в требуемом диапазоне, на распределительных панелях ВРУ или на отходящих линиях ВРУ.
(абзац введен
Изменением N 5, утв. Приказом Минстроя России от 01.03.2022 N 129/пр)
В случае если отключение или сбой в работе оборудования может повлечь опасность для жизни людей, угрозу для безопасности государства, значительный материальный ущерб, расстройство сложного технологического процесса, нарушение функционирования особо важных элементов коммунального хозяйства, объектов связи и телевидения, рекомендуется установка оборудования, обеспечивающего удержание напряжения в требуемом диапазоне, на распределительных панелях ВРУ или на отходящих линиях ВРУ.
(абзац введен
Изменением N 5, утв. Приказом Минстроя России от 01.03.2022 N 129/пр)
Суммарные потери напряжения от шин 0,4 кВ ТП до наиболее удаленного осветительного прибора общего освещения в жилых и общественных зданиях не должны, как правило, превышать 7,5%. При этом потери напряжения от ВРУ здания до наиболее удаленных светильников должны быть не более 3%, а до прочих потребителей - не более 4%.
При длине электропроводки от ВРУ здания до нагрузки более 100 м, эти потери напряжения допускается увеличивать на 0,005% на каждый последующий (более 100) метр электропроводки, но не более чем на 0,5%.
В осветительных сетях сверхнизкого напряжения (считая от источника питания, например понижающего трансформатора) изменения напряжения разрешается принимать до 10%.
Одиночные быстрые изменения напряжения на зажимах электроприемников при резких изменениях нагрузки в электроустановках потребителей, переключениях или неисправностях не должны превышать значений, установленных
ГОСТ 32144.
Примечание - Номинальное напряжение 220/230 В принято в соответствии с требованиями
ГОСТ 32144-2013. Так же действуют другие системы нормирования напряжений: в соответствии с
ГОСТ 29322-2014 номинальные напряжения равны 230/400 В, в соответствии с
ГОСТ 23366-78 номинальные напряжения принимаются: на выходах источников и преобразователей электроэнергии - 230/400 В, а на нагрузке - 220/380 В.
9 Силовые распределительные сети
9.1 Силовые распределительные пункты, щиты и щитки следует располагать, как правило, на этажах, где размещены присоединяемые к ним электроприемники.
Присоединяемые к силовым распределительным пунктам, щитам и щиткам электроприемники рекомендуется объединять в группы с учетом их технологического назначения.
9.2 В силовых распределительных сетях для питания электроприемников рекомендуется применять радиальные схемы, при насыщенности помещений однотипным оборудованием допускается применять магистральные схемы питания.
9.3 В радиальных схемах допускается присоединение шлейфом (PE-проводники должны присоединяться с помощью ответвления) второго электроприемника, если это не противоречит требованиям по подключению конкретного оборудования, при этом тип и сечение проводников перемычек должны соответствовать проводникам основной питающей линии, в обоснованных случаях допускается подключение шлейфом до трех дополнительных электроприемников, при этом суммарная нагрузка по току не должна более чем в два раза превосходить значение номинального рабочего тока вводного аппарата головного (первого) электроприемника. Не допускается совместное питание по магистральной схеме электроприемников холодильного и технологического оборудования.
9.4 В лабораториях учреждений общего и профессионального среднего образования по магистральной схеме следует питать не более трех лабораторных щитков.
В кабинетах домоводства общеобразовательных школ, в пошивочных цехах ателье и комбинатов бытового обслуживания населения число присоединяемых к одной линии швейных машин, а также машин по ремонту и отделке обуви не ограничивается.
9.5 Аппараты управления силовыми электроприемниками должны устанавливаться возможно ближе к месту расположения управляемых механизмов:
рассредоточенно или группами на специальных конструкциях в шкафах станций управления;
в напольных или навесных шкафах, устанавливаемых в нишах строительных конструкций, или открыто.
9.6 В схемах автоматического управления электродвигателями, при необходимости, должны быть предусмотрены устройства, исключающие возможность их одновременного включения (например, путем отстройки по времени их включения).
9.7 В общественных зданиях питание штепсельных розеток для подключения электрических уборочных механизмов и электрополотенец (рукосушителей) должно осуществляться от силовой сети. Допускается подключение таких электроприемников к сети электрического освещения.
9.8 В проектах электрооборудования следует также предусматривать сигнализацию о начале и окончании занятий в школах и других учебных заведениях.
(в ред.
Изменения N 4, утв. Приказом Минстроя России от 30.12.2020 N 919/пр)
10.1 Групповые линии освещения могут быть одно-, двух- и трехфазными в зависимости от их протяженности и числа присоединенных светильников. При этом в двух- и трехфазных групповых линиях запрещается применение предохранителей и однополюсных автоматических выключателей. Однофазные групповые линии следует выполнять трехпроводными, двухфазные - четырехпроводными и трехфазные - пятипроводными с отдельными N и PE-проводниками. Запрещается объединять N и PE-проводники разных групповых линий. Все применяемые электрические кабели должны соответствовать требованиям
ГОСТ 31565, а электропроводки групповых сетей -
ГОСТ Р 50571.5.52 и СП 76.13330.2016
(подраздел 6.3).
(в ред.
Изменения N 8, утв. Приказом Минстроя России от 29.11.2024 N 808/пр)
Светильники и световые указатели наружной установки, архитектурного освещения и рекламы должны подключаться к групповым сетям гибкими проводами и кабелями.
Групповые цепи архитектурного освещения фасадов зданий следует выполнять с учетом требований
5.5.9.
(абзац введен
Изменением N 4, утв. Приказом Минстроя России от 30.12.2020 N 919/пр)
10.2 В квартирах следует предусматривать отдельные линии для питания штепсельных розеток жилых комнат, освещения, штепсельных розеток электроприемников кухни и коридора. В обоснованных случаях допускается уменьшать количество линий до двух. Эти групповые линии разрешается выполнять с учетом смешанного или раздельного питания нагрузок. При смешанном питании штепсельные розетки, устанавливаемые в кухне и коридоре, следует, как правило, присоединять к одной групповой линии, а в жилых комнатах - к другой. Электропроводки в ванной комнате должны соответствовать требованиям
ГОСТ Р 50571.7.701, при наличии розетки следует предусматривать установку УДТ на ток до 30 мА.
(в ред.
Изменения N 6, утв. Приказом Минстроя России от 28.12.2023 N 1005/пр)
В жилых домах с квартирами, оборудованными электрическими плитами, должна быть предусмотрена отдельная групповая линия для питания однофазных электроплит
(15.28), которую следует выполнять проводами и кабелями с токопроводящими медными жилами сечением не менее 6 мм
2 или жилами из алюминиевых сплавов марок 8030 и 8176 сечением не менее 10 мм
2.
(в ред.
Изменения N 3, утв. Приказом Минстроя России от 25.04.2019 N 238/пр)
10.3 Исключен с 29.01.2024. -
Изменение N 6, утв. Приказом Минстроя России от 28.12.2023 N 1005/пр.
10.4 Для коммутации однофазных групповых линий применяются как однополюсные, так и двухполюсные автоматические выключатели. Если групповая линия аварийного освещения может быть подключена к источнику питания постоянного тока, то следует применять двухполюсные выключатели.
В групповых линиях освещения помещений с повышенной опасностью и особоопасных должны устанавливаться УДТ и двухполюсные автоматические выключатели.
10.5 Распределение нагрузок между фазами сети освещения общественных зданий должно быть, как правило, равномерным; разница в токах наиболее и наименее нагруженных фаз не должна превышать 30% в пределах одного щитка и 15% - в начале питающих линий.
При наличии группы однофазных электроприемников, которые неравномерно распределены по фазам, номинальная мощность эквивалентной группы трехфазных электроприемников принимается равной тройному значению мощности наиболее загруженной фазы.
10.6 Электропроводки сетей аварийного эвакуационного освещения и знаков безопасности, включая цепи управления, должны сохранять работоспособность в условиях пожара в течение времени, необходимого для выполнения их функций и эвакуации людей в безопасную зону в соответствии с [
3,
статья 82]. Питание эвакуационного аварийного освещения выполняется в соответствии с
8.12.
(п. 10.6 в ред.
Изменения N 4, утв. Приказом Минстроя России от 30.12.2020 N 919/пр)
10.7 Сети аварийного эвакуационного освещения и знаков безопасности, включая цепи управления
(10.6), должны быть выполнены огнестойкими кабелями с учетом объема горючей нагрузки кабелей в соответствии с
ГОСТ 31565. При выборе трасс прокладки сетей аварийного освещения рекомендуется избегать пожароопасных и взрывоопасных зон, а также мест, в которых в силу специфики проводимых работ могут быть повреждены кабельные линии.
Если аварийное резервное освещение применяется для аварийного эвакуационного освещения, а также, если по техническому заданию на проектирование осветительной установки аварийное резервное освещение должно сохранять работоспособность в условиях пожара, то на аварийное резервное освещение распространяются требования первого абзаца настоящего пункта.
10.8 Групповые линии аварийного освещения должны быть проложены отдельно от цепей рабочего освещения и других сетей (в отдельной трубе, коробе). При открытой прокладке рекомендуется цепи аварийного освещения прокладывать на расстоянии по воздуху в свету более 300 мм от других сетей. Допускается прокладывать линии аварийного и рабочего освещения в одном металлическом коробе, при условии разделения их сплошной металлической перегородкой.
10.9 В помещениях и на путях эвакуации людей, оснащенных несколькими светильниками аварийного освещения, групповые линии которых проходят по двум пожарным отсекам, провода к светильникам должны поочередно подводиться от двух отдельных цепей таким образом, чтобы вдоль пути эвакуации поддерживался определенный уровень освещенности даже в случае выхода из строя одной из цепей.
(п. 10.9 в ред.
Изменения N 6, утв. Приказом Минстроя России от 28.12.2023 N 1005/пр)
10.10 Групповая линия аварийного освещения, защищенная устройством защиты от сверхтока, должна содержать не более 20 светильников с суммарной нагрузкой не более 60% от номинальной нагрузки устройства защиты.
10.11 Аппараты защиты, защищающие групповые линии аварийного освещения должны выбираться так, чтобы в случае короткого замыкания в одной группе исключить отключение светильников других групп.
Рекомендуется применять для защиты распределительной сети аварийного освещения вводные автоматические выключатели щитков аварийного освещения с более длительным временем отключения при коротких замыканиях, чем автоматические выключатели, защищающие отдельные группы светильников.
(в ред.
Изменения N 6, утв. Приказом Минстроя России от 28.12.2023 N 1005/пр)
10.12 В отношении пожарной безопасности электрооборудование, включая электропроводки, должно соответствовать требованиям
[3].
10.13 В общественных зданиях, квартирах жилых домов, индивидуальных домах и т.п. для защиты групповых линий, питающих бытовые розеточные сети, должны предусматриваться УДТ с номинальным отключающим дифференциальным током срабатывания не более 30 мА. Установка УДТ для электроприемников, отключение которых может привести к ситуациям, опасным для потребителей (отключению систем противопожарной защиты, систем обеспечения безопасности зданий, систем поддержания жизнедеятельности больных, потере информации и т.п.), не допускается.
Для повышения уровня защиты от возгорания при замыканиях на заземленные части, когда значение тока недостаточно для срабатывания максимальной токовой защиты, на вводе в квартиру, индивидуальный дом и т.п. следует предусматривать установку УДТ с номинальным отключающим дифференциальным током срабатывания до 300 мА.
При установке УДТ последовательно следует выполнять требования селективности в соответствии с
ГОСТ Р 50571.5.53. При двух- и многоступенчатой схемах номинальный отключающий дифференциальный ток УДТ, расположенного ближе к источнику питания, должен быть не менее чем в три раза больше, чем у УДТ, расположенного ближе к потребителю. Также УДТ, расположенные ближе к источнику питания, должны иметь выдержку времени отключения (тип S согласно
ГОСТ IEC 61008-1 и
ГОСТ IEC 61009-1).
(п. 10.13 в ред.
Изменения N 6, утв. Приказом Минстроя России от 28.12.2023 N 1005/пр)
10.14 Для обнаружения и предотвращения пожароопасного искрения и дуговых пробоев в электрических сетях и электрооборудовании в зданиях и сооружениях, указанных в
В.1 приложения В, в целях защиты от пожаров следует применять УЗДП, которые должны соответствовать требованиям
приложения В и
ГОСТ IEC 62606.
Целесообразность применения УЗДП в зданиях и сооружениях помимо указанных в
В.1 приложения В определяют в ходе проектирования электроснабжения жилых и общественных зданий с учетом требований пожарной безопасности и задания на проектирование.
(п. 10.14 введен
Изменением N 6, утв. Приказом Минстроя России от 28.12.2023 N 1005/пр)
10.14.1 В общественных зданиях и сооружениях, указанных в
В.1 приложения В, УЗДП следует применять для защиты всех групповых сетей, за исключением групповых сетей до электроприемников, отключение которых может привести к созданию непосредственной угрозы для жизни людей: оборудования противопожарной защиты и оборудования медицинского назначения, поддерживающего жизнедеятельность больных.
(п. 10.14.1 введен
Изменением N 6, утв. Приказом Минстроя России от 28.12.2023 N 1005/пр)
10.14.2 В многоквартирных жилых домах, указанных в
В.1 приложения В, УЗДП следует применять для защиты групповых сетей каждого жилого помещения (квартиры) и мест общего пользования многоквартирного жилого дома.
УЗДП, применяемые для защиты групповых сетей жилого помещения, следует размещать в квартирном щитке или поэтажном распределительном щитке.
Применение УЗДП в жилых зданиях в каждой групповой сети обособленного жилого помещения или применение одного УЗДП для одновременной защиты нескольких групповых сетей определяют в ходе проектирования на основании задания на проектирование.
Присоединение к одному УЗДП нескольких групповых сетей, относящихся к разным жилым помещениям, не допускается.
(п. 10.14.2 введен
Изменением N 6, утв. Приказом Минстроя России от 28.12.2023 N 1005/пр)
10.15 Протяженности и сечение электропроводок групповых цепей следует определять из условия, что ток короткого замыкания на наиболее удаленном от аппарата защиты групповой линии потребителе должен не менее чем в десять раз превышать номинальный рабочий ток аппарата защиты.
(п. 10.15 введен
Изменением N 6, утв. Приказом Минстроя России от 28.12.2023 N 1005/пр)
11.1 В жилых домах высотой 3 этажа и более рекомендуется выполнять управление искусственным освещением лестничных клеток с естественным освещением, устройствами для кратковременного включения освещения с выдержкой времени, достаточной для подъема людей на верхний этаж или часть этажей многоэтажных домов. Такие устройства рекомендуется также предусматривать для управления освещением поэтажных коридоров и площадок перед мусороприемными клапанами (при необходимости).
При применении устройств кратковременного включения необходимо предусматривать светильники, которые в темное время суток включены постоянно. Эти светильники должны обеспечивать освещенность лестничных клеток не ниже норм эвакуационного освещения.
Автоматическое или дистанционное (из диспетчерских пунктов) включение освещения с наступлением темноты и отключение с наступлением рассвета должна обеспечивать система управления эвакуационным освещением, освещением лифтовых холлов, площадок перед лифтами, первого этажа, лестниц, вестибюлей с естественным освещением, подъездов и входов в дома, а также линий питания устройств кратковременного включения.
При любой системе автоматического или дистанционного управления освещением лестничных клеток должна быть предусмотрена блокировка, обеспечивающая возможность включения или отключения рабочего и эвакуационного освещения в любое время суток из электрощитового помещения или с вводно-распределительного устройства жилых домов.
Управление архитектурным освещением фасадов зданий следует выполнять с учетом требований
5.5.10.
(абзац введен
Изменением N 4, утв. Приказом Минстроя России от 30.12.2020 N 919/пр)
11.2 Управление рабочим освещением в торговых залах площадью 800 м2 и более, в актовых залах, конференц-залах, обеденных залах столовых и ресторанов с числом мест в залах свыше 300, вестибюлях и холлах гостиниц, а также в случаях, когда это требуется по условиям эксплуатации, должно быть, как правило, централизованным дистанционным.
Управление рабочим освещением лестничных клеток и коридоров с естественным освещением, а также входов в здание, световых указателей пожарных гидрантов, номерных знаков, наружных витрин и световой рекламы в общественных зданиях должно быть автоматическим. При этом оно должно быть обеспечено по программе: включение освещения с наступлением темноты и отключение с рассветом или по другой заданной программе.
В школах и учебных заведениях для подготовки кадров управление освещением коридоров и рекреаций следует, как правило, выполнять автоматическим, предусматривающим частичное отключение освещения со звонком на занятие и включение со звонком на перерыв или окончание занятий.
11.3 Централизованное дистанционное управление освещением следует, как правило, выполнять из помещения, в котором находится обслуживающий персонал или которое доступно для него.
11.4 Выбор способов и технических средств для систем автоматического дистанционного управления освещением (фотоэлектрическое в зависимости от значения освещенности, создаваемой естественным светом, или программное в зависимости от режима работы в здании) должен проводиться в проекте.
11.5 При системах централизованного дистанционного или автоматического управления освещением питание цепей управления разрешается от линии, питающей освещение.
11.6 Аппараты управления в линиях распределительной сети должны одновременно отключать все фазные проводники. В необходимых случаях допускается отключение нулевого рабочего проводника совместно с фазными проводниками.
11.7 Для помещений, имеющих зоны с разными условиями естественного освещения, управление рабочим освещением должно обеспечивать включение и отключение светильников группами или рядами по мере изменения естественной освещенности помещений.
В трехфазных групповых линиях при порядном включении светильников рекомендуется присоединять светильники каждого ряда поочередно к разным фазам электрической сети.
В учебных классах, аудиториях и других помещениях, где требуется повышенная зрительная работа, рекомендуется предусматривать плавное или ступенчатое регулирование искусственного освещения в зависимости от освещения естественным светом.
11.8 Управление освещением складских помещений, а также помещений для подготовки товаров к продаже в предприятиях торговли и общественного питания должно быть местным для каждого помещения с возможностью централизованного дистанционного отключения по окончании работы предприятий. Выключатели местного управления освещением должны быть расположены вне помещений на несгораемых конструкциях и заключены в шкафы или ниши с приспособлением для пломбирования.
11.9 Для местного управления освещением проходов и лестничных клеток, предназначенных для обслуживающего персонала в общественных зданиях, рекомендуется предусматривать устройства кратковременного включения с выдержкой времени, достаточного для прохода, подъема, спуска на любой этаж или часть этажей, при этом должна обеспечиваться возможность ручного управления освещением.
При применении устройств кратковременного включения необходимо предусматривать светильники, которые в темное время суток включены постоянно. Эти светильники должны обеспечивать освещенность проходов и лестничных клеток не ниже норм эвакуационного освещения.
11.10 Для централизованного дистанционного управления рабочим освещением разрешается применять автоматические выключатели, установленные на ВРУ или ГРЩ, распределительных пунктах и групповых щитках, а также на вводах в групповые щитки, где они устанавливаются в соответствии с
8.3.
11.11 Управление аварийным освещением осуществляется: централизованно из пунктов управления освещением с применением систем дистанционного или автоматического управления в зависимости от функционального назначения зданий и помещений и наличия в них служб эксплуатации и диспетчеризации; с групповых щитков; с распределительных пунктов; ВРУ или ГРЩ; местными выключателями, установленными в помещениях. Местные выключатели для управления аварийным освещением не должны устанавливаться в местах, доступных посторонним лицам (лестничные площадки, коридоры, лифтовые холлы и т.п.).
11.12 Управление дежурным (ночным) освещением палат в лечебно-профилактических учреждениях следует выполнять в соответствии с
СП 158.13330.
11.13 Управление освещением конференц-залов и актовых залов должно осуществляться следующим образом:
без эстрад и стационарных киноустановок: рабочим и дежурным освещением - аппаратами, устанавливаемыми у входа в зал;
с эстрадой: рабочим освещением - аппаратами, устанавливаемыми на эстраде; дежурным - аппаратами, установленными на эстраде и у входа в зал;
с эстрадой и стационарной киноустановкой: управление рабочим освещением - аппаратами, установленными на эстраде и в киноаппаратной, а дежурным - аппаратами, установленными на эстраде, в киноаппаратной и у входа в зал. При наличии в зале микшерского пункта управление дежурным освещением должно проводиться аппаратами, установленными на эстраде, в киноаппаратной, у микшерского пункта и у входа в зал.
Аппараты для управления аварийным освещением рекомендуется устанавливать на эстраде, в киноаппаратной и у микшерского пульта.
В конференц-залах и актовых залах со стационарными киноустановками при числе мест 400 и более рекомендуется устройство плавного регулирования освещения. При меньшем числе мест следует предусматривать включение освещения ступенями, но таким образом, чтобы последняя ступень создавала освещенность не более 20% нормируемой.
В актовых залах школ и учебных заведений по подготовке кадров необходимость устройств плавного регулирования освещением определяется заданием на проектирование.
Для светильников, предназначенных для уборки помещений, следует предусматривать самостоятельное управление.
11.14 Для отключения групповых сетей освещения и линий питания уборочных механизмов книго- и архивохранилищ следует предусматривать отключающие аппараты, располагаемые вне хранилищ. При наличии входов в хранилища с двух сторон рекомендуется предусматривать возможность управления освещением у каждого входа.
Рабочее освещение проходов между стеллажами должно быть обеспечено дополнительным управлением с установкой аппаратов непосредственно на несгораемых основаниях стеллажей или на стенах и колоннах вблизи прохода.
11.15 Выключатели освещения взрыво- и пожароопасных, сырых, влажных и других помещений с тяжелыми условиями среды, как правило, должны устанавливаться в близрасположенных помещениях с нормальной средой.
Отключающие аппараты сети освещения чердака должны быть установлены вне его.
Технические этажи и непроизводственные помещения, расположенные непосредственно под кровлей перекрытия и конструкции которых выполнены из несгораемых материалов, не рассматриваются как чердачные помещения.
В помещениях, где работы проводятся в темноте, например в спектрографических лабораториях и фотолабораториях, управление освещением всего помещения или соответствующей его части должно осуществляться выключателями, установленными в помещениях у входа и, при необходимости, непосредственно на рабочих местах.
11.16 Управление заградительными огнями должно быть автоматизировано и включаться в зависимости от уровня естественной освещенности.
12 Защита внутренних электрических сетей напряжением до 1000 В и выбор сечения проводников
(п. 12.1 в ред.
Изменения N 4, утв. Приказом Минстроя России от 30.12.2020 N 919/пр,
Изменения N 8, утв. Приказом Минстроя России от 29.11.2024 N 808/пр)
12.2 Для защиты распределительных и групповых цепей следует применять:
- одно-, двух-, трех- и (или) четырехполюсные автоматические выключатели;
- УДТ со встроенной защитой от сверхтока и (или) без нее при условии, что у групповых цепей есть аппараты защиты от сверхтока;
- УЗДП с номинальным рабочим током не менее номинального рабочего тока автоматического выключателя, защищающего ту же групповую сеть от сверхтоков и токов короткого замыкания.
(п. 12.2 в ред.
Изменения N 4, утв. Приказом Минстроя России от 30.12.2020 N 919/пр, в ред.
Изменения N 6, утв. Приказом Минстроя России от 28.12.2023 N 1005/пр)
12.3 Для комплектации щитков следует применять преимущественно защитные аппараты и приборы с единым размерным модулем, крепление которых предусмотрено на рейках.
(в ред.
Изменения N 4, утв. Приказом Минстроя России от 30.12.2020 N 919/пр)
В качестве вводных аппаратов щитков жилых и общественных зданий следует применять автоматические выключатели и выключатели-разъединители, УДТ со встроенной защитой от сверхтока.
(в ред.
Изменения N 6, утв. Приказом Минстроя России от 28.12.2023 N 1005/пр)
Рекомендуется в качестве вводных аппаратов квартир или аппаратов групповых розеточных цепей использовать аппараты со встроенной защитой от повышения напряжения.
Во внутренних сетях жилых и общественных зданий, как правило, следует применять автоматические выключатели с комбинированными расцепителями.
В квартирных щитках, расположенных вне квартир, установка предохранителей не допускается.
На вводах во ВРУ следует применять автоматические выключатели и выключатели-разъединители и комбинации их с предохранителями, а также разрядники (ограничители перенапряжений); на вводах во ВРУ с АВР - контакторы или автоматические выключатели с приводом.
(в ред.
Изменения N 6, утв. Приказом Минстроя России от 28.12.2023 N 1005/пр)
12.4 Уставки аппаратов защиты для взаиморезервируемых линий должны выбираться с учетом их послеаварийной нагрузки.
12.5 Номинальные токи трехфазных комбинированных расцепителей автоматических выключателей с учетом
10.1 для защиты групповых линий и вводов квартир, включая линии к электроплитам, должны выбираться в соответствии с расчетными нагрузками.
Номинальные токи однофазных вводных аппаратов квартирных и этажных щитков жилых зданий должны определяться исходя из расчетной мощности - 11 кВт на квартиру с электроплитами и 7 кВт - на квартиру с газовыми плитами, если иные значения не заданы потребителем.
12.6 Сечение проводов и кабелей выбираются, исходя из расчетного тока нагрузки в нормальном и послеаварийном режимах, в зависимости от способа прокладки по
ГОСТ Р 50571.5.52 и проверяются по потере напряжения.
Сечения питающих проводников определяют по суммарному току всех присоединенных аппаратов с учетом коэффициентов одновременности.
Уставки защитных аппаратов на линиях, отходящих от ТП, должны приниматься по допустимым токам кабелей и токам послеаварийной нагрузки для резервируемых кабелей.
12.7 Для разрядных ламп в трехфазных пятипроводных распределительных и групповых линиях сечение нейтральных проводников должно быть равным сечению линейных проводников, если линейные проводники токопроводящих медных жил имеют сечение до 16 мм2 и алюминиевых - до 25 мм2, а при больших сечениях - не менее 50% сечения фазных проводников.
(п. 12.7 в ред.
Изменения N 8, утв. Приказом Минстроя России от 29.11.2024 N 808/пр)
13 Токи короткого замыкания
(в ред.
Изменения N 8, утв. Приказом Минстроя России от 29.11.2024 N 808/пр)
В линиях питания электроприемников I-й категории по надежности электроснабжения по режиму короткого замыкания должны также проверяться аппараты защиты. При этом автоматические выключатели должны быть устойчивыми к токам короткого замыкания в соответствии с
8.8 ГОСТ IEC 60898-2-2021 и
ГОСТ Р 50571.4.43.
(в ред.
Изменения N 8, утв. Приказом Минстроя России от 29.11.2024 N 808/пр)
13.2 Токи короткого замыкания должны рассчитываться из условия, что подведенное к трансформатору напряжение неизменно и равно номинальному значению.
13.3 Токи короткого замыкания следует рассчитывать с учетом активных и индуктивных сопротивлений всех элементов короткозамкнутой цепи, значений параметров синхронных и асинхронных электродвигателей, а также всех переходных сопротивлений, включая сопротивление дуги в месте короткого замыкания по методике
ГОСТ 28249.
Для проверки защитных аппаратов на наибольшее допустимое время защитного автоматического отключения должен быть выполнен расчет однофазного короткого замыкания для наиболее удаленных электроприемников.
13.4 Значение ударного коэффициента Kу для определения ударного тока короткого замыкания следует принимать:
- 1,1 - на шинах РУ-0,4 кВ·А трансформаторных подстанций;
- 1 - в остальных точках сети.
Для более точного расчета
Kу следует руководствоваться
разделом 5 ГОСТ 28249-93.
14 Вводно-распределительные устройства, главные распределительные щиты, распределительные щиты, пункты и щитки
14.1 ВРУ и ГРЩ должны соответствовать требованиям
ГОСТ 32396,
ГОСТ IEC 61439-1 и, как правило, должны размещаться в специально выделенных запирающихся помещениях (электрощитовых), доступных только для обслуживающего персонала. Двери из этих помещений должны открываться наружу.
Не разрешается размещать ВРУ и ГРЩ на незадымляемых лестничных клетках.
Допускается размещать помещения электрощитовых в подземных этажах и (или) на кровле здания. При размещении помещений электрощитовых в подземной части эти помещения необходимо отделять противопожарными перегородками 1-го типа.
При размещении помещений электрощитовых на кровле зданий высота примыкания кровли у дверей выхода на покрытие (кровлю) из указанных помещений должна быть не менее 150 мм от поверхности гидроизоляционного ковра.
В зависимости от размещения помещения электрощитовых должны иметь вход непосредственно с улицы, или из поэтажного внеквартирного коридора (холла), или из соседнего помещения, или с кровли здания, имеющих выход на лестничную клетку, ведущую наружу.
(в ред.
Изменения N 8, утв. Приказом Минстроя России от 29.11.2024 N 808/пр)
В районах, подверженных затоплению, ВРУ и ГРЩ должны устанавливаться выше возможного уровня затопления.
ВРУ и ГРЩ разрешается размещать не в специальных помещениях при соблюдении следующих требований:
- степень защиты ВРУ должна быть не ниже IP31;
- внешние токоведущие части ВРУ и ГРЩ должны быть закрыты сплошными ограждениями или выполнены со степенью защиты не менее IP3X;
(в ред.
Изменения N 6, утв. Приказом Минстроя России от 28.12.2023 N 1005/пр)
- устройства и щиты должны быть расположены в удобных и доступных для обслуживания местах (в отапливаемых тамбурах, вестибюлях, коридорах и т.п.);
- аппараты защиты и управления должны устанавливаться в металлическом шкафу или в нише стены, снабженных запирающимися дверцами. При этом рукоятки аппаратов управления не должны выводиться наружу, они должны быть съемными или запираться на замки;
- токоведущие части ВРУ и ГРЩ должны быть закрыты сплошными ограждениями или выполнены со степенью защиты не менее IP2X;
(в ред.
Изменения N 4, утв. Приказом Минстроя России от 30.12.2020 N 919/пр)
- размещение и установка аппаратов, зажимов во ВРУ, ГРЩ должны быть выполнены согласно требованиям
ГОСТ IEC 61439-1.
(перечисление введено
Изменением N 4, утв. Приказом Минстроя России от 30.12.2020 N 919/пр)
В помещениях ВРУ и ГРЩ разрешается размещать оборудование слаботочных устройств и систем (усилителей телесигналов, контроллеров автоматизированных систем, аппаратуру и щитки систем противодымной вентиляции и т.п.).
(в ред.
Изменения N 6, утв. Приказом Минстроя России от 28.12.2023 N 1005/пр)
| | ИС МЕГАНОРМ: примечание. Текст дан в соответствии с официальным текстом документа. | |
При этом проходы обслуживания между слаботочными устройствами и аппаратурой сильных токов должны соответствовать требованиям
подпункта 6.7.14.2 СП 76.13330.2016), а исполнение панелей ВРУ должно быть не ниже IP2X.
(в ред.
Изменения N 8, утв. Приказом Минстроя России от 29.11.2024 N 808/пр)
14.2 Электрощитовые, а также ВРУ и ГРЩ не допускается располагать непосредственно над жилыми комнатами, под ними, а также смежно с ними, под уборными, ванными комнатами, душевыми, кухнями пищеблоков, моечными и другими помещениями, связанными с мокрыми технологическими процессами.
При размещении указанных помещений под помещениями с мокрыми процессами необходимо предусмотреть между ними техническое пространство, а также выполнить мероприятия по надежной гидроизоляции, предотвращающие попадание влаги в помещения с установленными распределительными устройствами.
Гидроизоляция должна предусматриваться непрерывной на высоту не менее 200 мм от уровня покрытия пола помещений с установленными распределительными устройствами. Следует исключать возможность проникания шумов от оборудования электрощитовых, расположенных рядом с помещениями, в которых уровень шума ограничивается санитарными нормами.
(п. 14.2 в ред.
Изменения N 8, утв. Приказом Минстроя России от 29.11.2024 N 808/пр)
14.3 Прокладка трубопроводов систем водоснабжения, отопления, а также вентиляционных и других коробов через электрощитовые разрешается как исключение, если у них в пределах щитовых помещений нет ответвлений (за исключением ответвлений к отопительному прибору самого щитового помещения), а также люков, задвижек, фланцев, ревизий, вентилей. При этом на трубопроводах холодной воды должна быть защита от конденсации влаги, а горячей воды - тепловая изоляция.
Прокладка через электрощитовые газопроводов и трубопроводов с горючими жидкостями, канализации и внутренних водостоков не допускается.
14.4 Электрощитовые должны оборудоваться естественной вентиляцией и электрическим освещением. В них должна обеспечиваться температура не ниже 5 °C. В электрощитовых помещениях должно быть предусмотрено аварийное освещение.
При необходимости электрощитовые могут быть оборудованы принудительной вентиляцией.
14.5 Распределительные пункты и групповые щитки должны соответствовать требованиям
ГОСТ 32395 и
ГОСТ 32397. Их следует, как правило, устанавливать в запирающихся шкафах в нишах стен. При наличии специальных шахт для прокладки питающих сетей распределительные пункты и групповые щитки следует устанавливать в этих шахтах с устройством запирающихся входов в шахты для доступа к щиткам и пунктам только обслуживающего персонала.
(в ред.
Изменения N 2, утв. Приказом Минстроя России от 19.09.2018 N 588/пр)
14.6 В лестничных клетках зданий высота установки осветительных и силовых щитков и пунктов, размещаемых в нишах и не выступающих из плоскости стен, не нормируется.
Размещение щитков на путях эвакуации следует принимать в соответствии с
СП 1.13130.
(в ред.
Изменения N 6, утв. Приказом Минстроя России от 28.12.2023 N 1005/пр)
Аппараты ручного оперативного управления (переключатели, кнопки) следует располагать на высоте не более 1900 мм и не менее 700 мм от уровня пола. Измерительные приборы следует устанавливать таким образом, чтобы шкала каждого из приборов находилась на высоте 1000 - 1800 мм от пола.
(абзац введен
Изменением N 6, утв. Приказом Минстроя России от 28.12.2023 N 1005/пр)
14.7 Установка распределительных пунктов, щитов, щитков непосредственно в производственных помещениях пищеблоков, торговых и обеденных залах допускается как исключение при невозможности принять иное решение. При установке в торговых и обеденных залах они должны размещаться в нишах строительных конструкций с запирающимися дверцами и с надлежащим архитектурным оформлением.
14.8 В учебных кабинетах и лабораториях учреждений общего и профессионального среднего образования распределительные щитки для питания учебных приборов следует устанавливать вблизи стола преподавателя.
14.9 В жилых и общественных зданиях запрещается применение комплектных устройств, внутренние соединения которых выполнены с применением алюминиевых проводников. Для внутренних цепей щитков должны применяться медные изолированные проводники; для внутренних цепей ВРУ - медные изолированные провода, медные или алюминиевые шины (нулевые защитные шины PE следует выполнять из меди; допускается выполнять из стали с гальваническим антикоррозионным покрытием).
14.10 Фазные проводники, а также нулевые защитный и рабочий проводники PE и N, совмещенный нулевой и защитный PEN-проводник должны различаться маркировкой или цветом по
ГОСТ Р 50462.
Примечание - Маркировка шин с помощью цветов, установленная в стандарте, отличается от применяемой в Российской Федерации на протяжении нескольких десятилетий. Поэтому, во избежание электротравматизма, рекомендуется при применении цветовой маркировки шин по
ГОСТ Р 50462-2009 на дверцах ВРУ и ГРЩ размещать надпись: "Фазные шины промаркированы по
ГОСТ Р 50462-2009 коричневым, черным и серым цветами".
14.11 Сечения проводников следует выбирать с учетом протекаемого тока, возможных механических нагрузок, способа прокладки проводников, типа изоляции и вида присоединяемых элементов.
14.12 Для зданий с интегрируемой зарядной инфраструктурой при наличии зарядных станций типов 3, 4 в помещении ВРУ следует предусматривать возможность устройства дополнительной панели для подключения зарядных станций по мере увеличения доли электротранспорта.
(п. 14.12 введен
Изменением N 6, утв. Приказом Минстроя России от 28.12.2023 N 1005/пр)
15 Устройство внутренних электрических сетей
15.1 Кабельные вводы в здания следует выполнять в трубах на глубине не менее 0,5 м и не более 2 м от поверхности земли. При этом в одну трубу следует затягивать один силовой кабель.
Трубы следует прокладывать с уклоном в сторону улицы. Концы труб, а также сами трубы при прокладке через стену должны быть тщательно заделаны для исключения возможности проникания в помещения влаги и газа.
Металлические трубопроводы, силовые и контрольные кабели, шинопроводы предпочтительно должны входить в здание в одном и том же месте.
15.2 Через подвалы и технические подполья секций зданий допускается прокладка силовых кабелей и шинопроводов напряжением до 1 кВ, питающих электроприемники других секций здания. Указанные кабели не рассматриваются как транзитные, прокладка транзитных кабелей через подвалы и технические подполья зданий запрещается.
Открытая прокладка транзитных электропроводок через кладовые и складские помещения, как правило, не допускается.
В отдельных, технически обоснованных случаях, по согласованию с органами пожарного надзора, возможны исключения. При этом должны выполняться мероприятия по защите электропроводок, и данные электропроводки, классифицированные как не распространяющие горение, должны соответствовать требованиям:
- ГОСТ IEC 60332 (все части).
При высоком риске распространения пожара, например, в протяженных вертикальных кабельных лотках, должны применяться кабели с характеристиками по распространению горения в соответствии с:
- ГОСТ IEC 60332-3;
- ГОСТ Р МЭК 61386 (все части);
- ГОСТ Р МЭК 61084 (все части);
- ГОСТ МЭК 61534 (все части);
(в ред.
Изменения N 4, утв. Приказом Минстроя России от 30.12.2020 N 919/пр)
15.3 Внутренние распределительные электрические сети должны быть не распространяющими горение, и их следует выполнять кабелями и проводами с токопроводящими жилами из меди, алюминия электротехнического назначения, а также из алюминиевых сплавов марок 8030 и 8176, шинопроводами с медными и алюминиевыми шинами в соответствии с требованиями
ГОСТ 31565,
ГОСТ Р 50571.5.52,
ГОСТ 13843,
ГОСТ Р 58019,
СП 76.13330, а также требованиями электро- и пожарной безопасности.
(в ред.
Изменения N 8, утв. Приказом Минстроя России от 29.11.2024 N 808/пр)
В случае применения в питающих и распределительных сетях кабелей и проводов с токопроводящими жилами из алюминия электротехнического назначения и алюминиевых сплавов марок 8030 и 8176, шинопроводов с алюминиевыми шинами сечение проводников должно быть не менее 16 мм2.
В случае применения в сетях электроснабжения отдельных электроприемников, относящихся к инженерному оборудованию зданий (насосы, вентиляторы, калориферы, установки кондиционирования воздуха и т.п.), кроме оборудования противопожарных установок, кабелей и проводов с токопроводящими жилами из алюминия электротехнического назначения или алюминиевых сплавов марок 8030 и 8176, сечение проводников должно быть не менее 2,5 мм2.
Прокладывать электропроводки вблизи источников тепла, дыма или пара, оказывающих вредное влияние, не следует, если они не защищены от такого воздействия экранированием или расположением вне зоны воздействия тепла.
Провода электрических сетей силовых электроприемников постирочных цехов и помещений для приготовления растворов в прачечных должны быть с медной жилой в пластмассовой изоляции и прокладываться в полу замоноличенными в пластмассовых трубах. Выводы труб выше уровня пола и на участке до 1 м в подготовке пола следует выполнять в стальных трубах, защищенных от коррозии и проникания в них воды.
Для предупреждения пожаров, которые могут возникнуть вследствие искрения и дуговых пробоев в местах нарушения нормального электрического контакта в электрических сетях и электроустановках, следует применять УЗДП.
(п. 15.3 в ред.
Изменения N 6, утв. Приказом Минстроя России от 28.12.2023 N 1005/пр)
Кабели и изолированные провода должны применяться с медными жилами номинальным сечением не менее 1,5 мм
2, с учетом требований пожарной безопасности и их типа исполнения в соответствии с
ГОСТ 31565:
- в зрительных залах, в том числе в пространстве над залами и за подвесными потолками;
- на сцене, в чердачных помещениях с горючими конструкциями;
- для цепей управления противопожарными устройствами, а также линий пожарной и охранной сигнализации, звукофикации, линий постановочного освещения и электроприводов сценических механизмов.
В остальных помещениях для питающих и распределительных сетей допускается применение кабелей и изолированных проводов с алюминиевыми жилами или жилами из алюминиевых сплавов марок 8030 и 8176 сечением не менее 16 мм2.
В зрительных залах, фойе, буфетах и других помещениях для зрителей электропроводку рекомендуется выполнять скрытой сменяемой.
Кабели и изолированные провода должны прокладываться в стальных трубах в пределах сцены (эстрады, манежа), а также в зрительных залах независимо от количества мест.
Для линий постановочного освещения допускается прокладка в одной стальной трубе до 24 изолированных проводов при условии, что температура не будет превышать нормированную для изоляции проводов.
Линии, питающие осветительные приборы постановочного освещения, размещаемые на передвижных конструкциях, следует выполнять гибким кабелем с медными жилами.
Электропроводки, питающие переносные и передвижные электроприемники и электроприемники на виброизолирующих основаниях, следует предусматривать в соответствии с требованиями
подпункта 6.3.1.9 СП 76.13330.2016.
Переходы от стационарной электропроводки к подвижной следует выполнять через электрические соединители (или коробки зажимов), устанавливаемые в доступных для обслуживания местах.
(п. 15.4 в ред.
Изменения N 8, утв. Приказом Минстроя России от 29.11.2024 N 808/пр)
15.5 В зданиях со строительными конструкциями, выполненными из негорючих и слабогорючих материалов (группа Г1), допускается несменяемая замоноличенная прокладка групповых сетей в бороздах стен, перегородок, перекрытий, под штукатуркой, в слое подготовки пола, выполняемая кабелем или проводами в защитной оболочке
<1> с жилами из меди или алюминиевых сплавов марок 8030 и 8176. Применение несменяемой замоноличенной прокладки проводов и кабелей в панелях стен, перегородок и перекрытий, выполненной при их изготовлении или выполненной в монтажных стыках при монтаже зданий, не допускается.
--------------------------------
<1
> Под проводами в защитной оболочке понимаются изолированные провода в общей оболочке, обеспечивающей механическую защиту в соответствии с условиями применения.
(в ред.
Изменения N 3, утв. Приказом Минстроя России от 25.04.2019 N 238/пр)
В зданиях со строительными конструкциями, выполненными из горючих материалов групп Г2 и (или) Г3, допускается: открытая прокладка одиночных кабелей и проводов в защитной оболочке с медными жилами сечением не более 6 мм
2 в ПВХ изоляции в исполнении по
ГОСТ 31565 без подкладки; скрытая прокладка под штукатуркой кабелей и проводов в защитной оболочке с медными жилами сечением не более 6 мм
2 в исполнении, не распространяющем горение, по
ГОСТ 31565 по намету штукатурки.
Допускается исполнение кабелей не по
ГОСТ 31565 (по группам применения) для отдельных комплектных кабелей, поставляемых вместе с оборудованием, в пределах одного помещения.
| | Изменением N 8, утв. Приказом Минстроя России от 29.11.2024 N 808/пр, в пункт 15.6 вносятся изменения. | |
15.6 В неотапливаемых подвалах, технических подпольях и коридорах, на чердаках, в сырых и особо сырых помещениях, насосных, тепловых пунктах, а также в зданиях, сооружаемых из деревянных конструкций, электропроводки разрешается выполнять открыто, с соблюдением требований
[4].
15.7 В помещениях торговых, выставочных, демонстрационных и читальных залов, предприятий бытового обслуживания, лабораториях и т.п., в которых возможно перемещение технологического оборудования в связи с изменением функционального назначения, а также в помещениях с гибкой планировкой для возможности переустройства электропроводок в процессе эксплуатации рекомендуется предусматривать в полу трубы или каналы с подпольными герметизированными закрывающимися коробками (модульные проводки). Подпольные коробки должны соответствовать
ГОСТ 32126.23.
(п. 15.7 в ред.
Изменения N 4, утв. Приказом Минстроя России от 30.12.2020 N 919/пр)
15.8 Групповые сети в помещениях следует выполнять сменяемыми: скрыто - в специальных каналах строительных конструкций, замоноличенных трубах; открыто - в электротехнических плинтусах, коробах и т.п., с сертификатами соответствия по
ГОСТ Р 53313.
15.9 Распределительные сети следует выполнять сменяемыми:
открыто - проводами в пластмассовых трубах и коробах, а также кабелями и шинопроводами. В технических подпольях и этажах, помещениях инженерных служб, технических коридорах, подвалах и подпольях допускается прокладка на лотках и других опорных конструкциях в соответствии с требованиями
ГОСТ Р 50571.5.52 и
ГОСТ 30331.1;
скрыто - в специальных каналах и пустотах строительных конструкций, в бороздах, штрабах, в слое подготовки пола - кабелем или изолированными проводами в защитной оболочке.
Горизонтальные участки распределительных кабельных линий при отсутствии подвала или технического подполья разрешается прокладывать в полу, выполненном из негорючих материалов вышележащего этажа.
15.10 Стояки питающих линий квартир, групповых линий лестничного освещения в жилых зданиях должны, как правило, прокладываться скрыто, в каналах строительных конструкций (электроблоков), а также в устройствах этажных распределительных прислонного типа. В этих же конструкциях рекомендуется размещать совмещенные этажные электрошкафы (щитки) и ящики для соединений и разветвлений проводников. Разрешается для выполнения стояков применять шинопроводы (комплектные токопроводы) и трубы. Прокладка стояков в квартирах, а также через помещения других собственников не допускается. Шинопроводы должны соответствовать требованиям
ГОСТ 6815,
ГОСТ IEC 61439-1,
ГОСТ IEC 61439-6.
(в ред.
Изменения N 4, утв. Приказом Минстроя России от 30.12.2020 N 919/пр,
Изменения N 6, утв. Приказом Минстроя России от 28.12.2023 N 1005/пр)
15.11 В лестничных клетках открытая прокладка кабелей и проводов не допускается за исключением электропроводки для слаботочных устройств.
При замене электропроводок в существующих зданиях допускается прокладка линий питания освещения лестничных клеток и коридоров, а также линий питания квартир в стальных трубах, обладающих локализационной способностью, если выполнение скрытой проводки невозможно (требует штробления основных несущих элементов строительных конструкций: капитальных стен, железобетонных ригелей и перекрытий).
15.12 Запрещается размещение электропроводки в шахтах лифтов, за исключением электропроводки, обслуживающей лифты.
(в ред.
Изменения N 6, утв. Приказом Минстроя России от 28.12.2023 N 1005/пр)
Сети освещения шахт лифтов в пределах шахт должны прокладываться скрыто, в вертикальных каналах. Допускается открытая прокладка одиночных кабелей.
(в ред.
Изменения N 6, утв. Приказом Минстроя России от 28.12.2023 N 1005/пр)
15.13 Совместная прокладка взаиморезервируемых питающих и распределительных линий электроприемников противопожарных устройств, охранной сигнализации и других сетей в одном канале или трубе не допускается. Допускается их совместная прокладка в одном коробе при наличии сплошной металлической перегородки.
15.14 Выводы электропроводки из подготовки пола к технологическому оборудованию, устанавливаемому в удалении от стен помещения (например, в производственных цехах пищеблоков), рекомендуется выполнять в стальных трубах.
15.15 Электропроводки в полостях над непроходными подвесными потолками и внутри сборных перегородок рассматриваются как скрытые и их следует выполнять кабелями, соответствующими требованиям
ГОСТ 31565:
- за подвесными потолками и в пустотах перегородок, выполненных из негорючих (НГ) материалов и группы горючести Г1, электропроводки следует выполнять в соответствующих требованиям пожарной безопасности неметаллических трубах и неметаллических коробах. Допускается при прокладке кабелей применять металлические погонажные электромонтажные изделия (трубы, короба, лотки и т.д.), а также прокладку самостоятельных кабелей на скобах; при этом расстояние между самостоятельными кабелями, проложенными на скобах, не нормируется;
(в ред.
Изменения N 6, утв. Приказом Минстроя России от 28.12.2023 N 1005/пр)
- за подвесными потолками и в пустотах перегородок, выполненных с применением материалов группы горючести Г2, электропроводки следует выполнять в металлических трубах и металлических коробах со степенью защиты не ниже IP4X;
- за подвесными потолками и в пустотах перегородок, выполненных с применением материалов группы горючести Г3 и Г4, электропроводки следует выполнять в обладающих локализационной способностью металлических трубах, а также в обладающих локализационной способностью металлических глухих коробах;
- электропроводка должна быть сменяемой.
Локализационная способность - это способность стальной трубы выдерживать короткое замыкание в электропроводке, проложенной в ней, без прогорания ее стенок - таблица 15.1.
Таблица 15.1
Толщина стенки стальной трубы, обеспечивающая
ее локализационную способность
Максимальное сечение жилы провода, мм2 | Толщина стенки трубы, не менее, мм |
Алюминий | Медь |
До 4 | До 2,5 | 0,5 |
6 | - | 2,5 |
10 | 4 | 2,8 |
16; 25 | 6; 10 | 3,2 |
35; 50 | 16 | 3,5 |
70 | 25; 35 | 4,0 |
Сумма площадей поперечных сечений (с изоляцией и оболочкой) проводов и кабелей, прокладываемых в одном коробе, не должна превышать 40% внутреннего поперечного сечения короба. Свободные торцы коробов должны быть закрыты торцевыми заглушками, а торцы коробов с выходящими из них кабелями и проводами должны быть заделаны легко удаляемым негорючим составом.
15.16 В вентиляционных каналах и шахтах прокладка проводов и кабелей не допускается.
Допускается пересечение каналов и шахт одиночными линиями, выполненными проводами и кабелями, заключенными в трубы.
15.17 В одной трубе, одном рукаве, коробе, канале многоканального короба, пучке, замкнутом канале строительной конструкции здания, на одном лотке допускаются следующие варианты совместной прокладки при условии, что все проводники с изоляцией, соответствующей наивысшему из всех напряжений цепей:
- первое, второе перечисления исключены с 29.01.2024. -
Изменение N 6, утв. Приказом Минстроя России от 28.12.2023 N 1005/пр;
- всех цепей одного агрегата (например, агрегата по обработке картофеля в пищеблоке);
- силовых и контрольных цепей нескольких машин, панелей, щитов, пультов, обеспечивающих единый технологический процесс;
- цепей, питающих сложный светильник;
- осветительных сетей напряжением до 50 В с цепями напряжением до 380 В при условии заключения проводов цепей до 50 В в отдельную изоляционную трубку;
- цепей нескольких групп одного вида освещения с общим числом проводов не более 12 (без учета контрольных цепей);
- распределительных линий квартир и рабочего освещения лестниц, коридоров, вестибюлей жилых домов.
Прокладка проводов и кабелей групповых линий рабочего освещения с групповыми линиями аварийного освещения на одном лотке, монтажном профиле, в одном канале многоканального короба, в корпусах и штангах многоламповых светильников не допускается; при необходимости их совместной прокладки кабели аварийного освещения в огнестойком исполнении должны быть отделены по всей высоте короба сплошной металлической перегородкой.
15.18 Не разрешается прокладка в одном канале, рукаве, коробе и других конструкциях групповых линий, питающих разные квартиры, и взаиморезервируемых цепей.
15.19 Наружная электропроводка должна быть расположена или ограждена таким образом, чтобы она была недоступна с мест, где возможно частое пребывание людей, например с балкона или крыльца.
Расстояние по горизонтали от самонесущих изолированных проводов (СИП) при наибольшем их отклонении до элементов зданий и сооружений должно быть не менее:
1,0 м - до балконов, террас и окон;
0,2 м - до глухих стен зданий, сооружений.
Допускается прохождение воздушной линии электропередачи напряжением до 1 кВ с применением самонесущих изолированных проводов (ВЛИ) и воздушной линии (ВЛ) с изолированными проводами над крышами зданий и сооружениями (кроме взрывоопасных и пожароопасных зон), при этом расстояние от них до проводов по вертикали должно быть не менее 2,5 м.
Прохождение ВЛ с неизолированными проводами над зданиями и сооружениями не допускается.
Расстояние по горизонтали от проводов ВЛ при наибольшем их отклонении до зданий и сооружений должно быть не менее:
1,5 м - до балконов, террас и окон;
1,0 м - до глухих стен.
Наименьшее расстояние от СИП и проводов ВЛ до поверхности земли или воды, а также до различных сооружений при прохождении ВЛ над ними определяется при высшей температуре воздуха без учета нагрева проводов ВЛ электрическим током.
При прокладке по стенам зданий и сооружениям минимальное расстояние от СИП должно быть:
- при горизонтальной прокладке:
над окном, входной дверью - 0,3 м;
под балконом, окном, карнизом - 0,5 м;
до земли - 2,5 м;
- при вертикальной прокладке:
до окна - 0,5 м;
до балкона, входной двери - 1,0 м.
Расстояние в свету между СИП и стеной здания или сооружением должно быть не менее 0,06 м.
(п. 15.19 в ред.
Изменения N 8, утв. Приказом Минстроя России от 29.11.2024 N 808/пр)
15.20 Неметаллические соединительные и ответвительные коробки, протяжные ящики и другие ответвительные устройства должны соответствовать требованиям
[3] и
[7].
Металлические элементы электропроводок (конструкции, короба, лотки, трубы, рукава, коробки, скобы) должны быть защищены от коррозии.
15.21 Способ выполнения групповых электрических сетей в жилых комнатах и прихожих квартир жилых домов следует, как правило, выбирать по таблице 15.2.
Таблица 15.2
Здания | Способ выполнения электрических групповых сетей |
Открыто | Скрыто |
Крупнопанельные полносборные из железобетонных конструкций и из монолитного железобетона | В коробах, специальных коробах, удовлетворяющих требованиям ГОСТ Р 53313 | В пустотах строительных конструкций - не распространяющими горение кабелями и изолированными проводами в защитной оболочке; в каналах строительных конструкций - кабелями и изолированными проводами в защитной оболочке; в замоноличенных трубах - изолированными проводами |
С блочными или кирпичными несущими стенами, гипсо- и шлакобетонными перегородками и перекрытиями из пустотелых железобетонных плит | В пустотах строительных конструкций - не распространяющими горение кабелями и изолированными проводами в защитной оболочке; в каналах строительных конструкций, под слоем штукатурки, штробах, в слое подготовки пола - кабелями и изолированными проводами в защитной оболочке с ПВХ изоляцией |
Из деревянных и других конструкций из горючих материалов не ниже группы горючести Г3 по [3] | В коробах, специальных коробах, соответствующих требованиям ГОСТ Р 53313. Допускается прокладка одиночным кабелем с медными жилами сечением не более 6 мм 2, не распространяющими горение, без подкладки | В металлических трубах - кабелями и изолированными проводами; под слоем штукатурки - кабелем, не распространяющим горение, по намету штукатурки |
(в ред. Изменения N 6, утв. Приказом Минстроя России от 28.12.2023 N 1005/пр) |
15.22 В кухнях квартир жилых домов рекомендуется применять те же виды электропроводок, что в жилых комнатах и прихожих.
15.23 В ванных комнатах и уборных должна применяться, как правило, скрытая электропроводка в соответствии с
ГОСТ Р 50571.7.701. Не допускаются применение защищенных проводов в металлической оболочке, а также прокладка проводов в стальных трубах.
15.24 Открытая прокладка незащищенных изолированных проводов на изоляторах должна выполняться на высоте не менее 2 м.
Высота открытой прокладки защищенных проводов и кабелей и проводов, прокладываемых в трубах и коробах, плинтусах и наличниках с каналами для электропроводок, а также спусков к выключателям, розеткам, пусковым аппаратам, щиткам и светильникам, устанавливаемым на стенах, не нормируется.
15.25 В местах прохождения электропроводок через строительные конструкции с нормируемым пределом огнестойкости должны быть предусмотрены кабельные проходки с пределом огнестойкости не ниже предела огнестойкости строительных конструкций.
При пересечении строительных конструкций с ненормируемым пределом огнестойкости места прохода электропроводки должны быть заделаны строительным материалом группы горючести НГ.
Кабельные проходки должны соответствовать требованиям
ГОСТ Р 53310.
Никакая электропроводка не должна проходить через элемент строительной конструкции, который предназначен для несения нагрузки, если целостность этого элемента нельзя гарантировать после такого проникновения.
Электропроводка в полах должна быть соответственно защищена для исключения ее повреждений при нормальной эксплуатации пола.
Электропроводки, жестко закрепляемые или заделываемые в стены, должны располагаться горизонтально, вертикально или параллельно кромкам стен помещения.
Электропроводки, проложенные в строительных конструкциях без крепления и в потолках, допускается располагать по кратчайшему пути.
15.26 При скрытой прокладке кабелей и проводов, как правило, следует применять выключатели и розетки в утопленном исполнении.
15.27 Не разрешается скрытая установка по одной оси розеток и выключателей в общих стенах разных квартир.
15.28 В жилых комнатах квартир и общежитий должно быть установлено не менее одной розетки на ток 10 (16) А на каждые полные и неполные 3 м периметра комнаты, в коридорах квартир - не менее одной розетки на каждые полные и неполные 10 м
2 площади коридоров.
В кухнях квартир следует предусматривать не менее четырех розеток на ток 10 (16) А. В кухнях квартир с электроплитами розетки следует подключать непосредственно к питающей линии. Допускается подключение через поляризованный штепсельный соединитель.
В жилых комнатах допускается установка сдвоенных розеток на ток 10 (16) А. В кухнях допускается установка сдвоенных розеток на ток 16 А. Сдвоенная розетка, установленная в жилой комнате, считается одной розеткой. Сдвоенная розетка, установленная в кухне, считается двумя розетками.
15.29 В одноквартирных домах и домах на участках садоводческих товариществ число розеток определяется заказчиком (заданием на проектирование), но не менее, чем указано в
15.27.
15.30 Не нормируется расстояние от розеток, предназначенных для присоединения стационарных кухонных электроплит и кондиционеров, до корпусов этих приборов. При этом не допускается размещать розетки под и над мойками.
Расстояние от корпуса стационарной кухонной электроплиты до заземленных частей сантехнического оборудования, стальных труб отопления, горячего и холодного водоснабжения, моек и радиаторов не нормируется.
15.31 В прихожей квартиры должен быть установлен электрический звонок, а у входа в квартиру - звонковая кнопка.
Звонковая кнопка и подводка к кнопке должны удовлетворять всем требованиям безопасности. Подводку к звонку и кнопке следует выполнять медным проводом.
15.32 Установка электродвигателей на чердаках допускается при условии размещения их над нежилыми помещениями и при соблюдении противопожарных и санитарных норм.
Пусковые аппараты и щиты открытого или защищенного исполнения должны быть установлены в отдельных помещениях со стенами, перекрытиями и полом из несгораемых материалов или в шкафах, выполненных из несгораемых материалов и удаленных от горючих элементов здания на расстояние не менее 0,5 м. Вблизи электродвигателей должен быть установлен отключающий аппарат для обеспечения возможности их безопасного ремонта.
15.33 Электродвигатели насосов, вентиляторов, лифтов, а также защитные и пусковые аппараты для них должны быть доступны только для обслуживающего персонала. Исключением являются кнопки управления пожарными насосами и вентиляторами, которые могут быть установлены в местах, необходимых по условиям эксплуатации. Эти кнопки должны быть снабжены соответствующими надписями.
15.34 Выключатели в квартирах и общежитиях рекомендуется устанавливать со стороны дверной ручки на высоте до 1 м. Разрешается установка выключателей под потолком, управляемых с помощью шнура. Выключатели для ванных комнат и санузлов следует устанавливать снаружи данных помещений.
Выключатели общего освещения в помещениях общественных зданий рекомендуется устанавливать на высоте до 1,5 м от пола.
15.35 В жилых комнатах квартир и общежитий, а также в помещениях для пребывания детей рекомендуется устанавливать розетки, снабженные защитным устройством, закрывающим гнезда при вынутой вилке.
15.36 В школах и детских дошкольных учреждениях в помещениях для пребывания детей розетки должны устанавливаться на высоте 1,8 м от пола.
(в ред.
Изменения N 8, утв. Приказом Минстроя России от 29.11.2024 N 808/пр)
В силовой сети предприятий общественного питания и торговли розетки следует устанавливать на высоте 1,3 м, а пусковые аппараты - на высоте 1,2 - 1,6 м от пола.
(в ред.
Изменения N 8, утв. Приказом Минстроя России от 29.11.2024 N 808/пр)
Высота установки осветительных и силовых розеток в других общественных зданиях и помещениях выбирается удобной для присоединения к ним электрических приборов в зависимости от назначения помещений и оформления интерьеров, но, как правило, не более 1 м от пола.
Допускается установка силовых розеток на потолках для подключения проекторов (например, проекторов для презентаций).
В помещениях для пребывания детей выключатели следует устанавливать согласно заданию на проектирование.
(абзац введен
Изменением N 8, утв. Приказом Минстроя России от 29.11.2024 N 808/пр)
15.37 В школах в кабинетах, лабораториях, помещениях/зонах для индивидуальных занятий с использованием технических и (или) электронных средств обучения розетки следует предусмотреть на столах учеников и (или) в напольных пылевлагозащищенных лючках.
Розетки на столах учеников и (или) розетки в напольных пылевлагозащищенных лючках, а также лабораторные щитки должны быть подключены через аппарат управления, защищенный от несанкционированного или случайного срабатывания.
Линии питания розеток следует подключать через разделительный трансформатор или защищать устройством защитного отключения дифференциального тока с током отключения до 30 мА.
Розетки для проекционных аппаратов в классных помещениях, учебных комнатах, кабинетах и лабораториях следует предусматривать в соответствии с технологическим заданием.
(п. 15.37 в ред.
Изменения N 8, утв. Приказом Минстроя России от 29.11.2024 N 808/пр)
15.38 Розетки для подключения уборочных механизмов должны устанавливаться в торговых залах магазинов, обеденных залах, актовых и спортивных залах, конференц-залах, вестибюлях, холлах, коридорах и других помещениях, в которых необходима механизированная уборка.
Розетки следует устанавливать на расстоянии, обеспечивающем возможность применения уборочных механизмов с питающим проводником длиной до 15 м.
15.39 Розетки для подключения электроприборов в магазинах следует устанавливать в гладильных мастерских, расфасовочных, а также в торговых залах для проверки электро- и радиотоваров.
В мастерских ремонта бытовых электроприборов, теле- и радиоаппаратуры следует предусматривать устройства для подключения указанных электроприемников к однофазной сети напряжением 220 и 127 В.
Установка розеток в кладовых не допускается, за исключением кладовых и помещений для подготовки товаров к продаже (кроме помещений с токопроводящими полами), в которых допускается установка на несгораемых основаниях трехполюсных силовых розеток с защитными контактами для питания электроэнергией средств механизации.
15.40 Розетки в сети аварийного освещения устанавливать не допускается.
15.41 В ванных комнатах квартир, в умывальных, душевых, ванных комнатах общежитий и гостиниц допускается установка штепсельных розеток в зоне 3 по
ГОСТ Р 50571.7.701, присоединенных к сети через разделительный трансформатор или защищенных УДТ на ток до 30 мА, а также УЗДП с номинальным рабочим током, равным или превышающим рабочий ток защищаемой электрической цепи. Рекомендуется применение комбинированных комплексных устройств защиты с функциями УДТ и УЗДП.
(в ред.
Изменения N 4, утв. Приказом Минстроя России от 30.12.2020 N 919/пр)
Любые выключатели и штепсельные розетки должны находиться на расстоянии не менее 0,6 м от дверного проема душевой кабины.
15.42 Розетки для присоединения переносных светильников следует предусматривать в помещениях с технологическим оборудованием, для ремонта которого недостаточно общего освещения.
Защитная мера - сверхнизкое напряжение по
ГОСТ Р 50571.4.41 должна применяться для переносного освещения:
(в ред.
Изменения N 6, утв. Приказом Минстроя России от 28.12.2023 N 1005/пр)
- при напряжении до 50 В в помещениях светокопировальных, мастерских по обработке металла и древесины, на стоянках электрокар с зарядкой и ремонтом аккумуляторов, в механических сушильно-гладильных отделениях, холодильных станциях, электрощитовых, тепловых пунктах, бойлерных, насосных, машинных отделениях лифтов, технических этажах, в помещениях для оборудования вентиляции и кондиционирования воздуха;
- при напряжении 12 В в отделениях механической стирки и приготовления раствора и других помещениях с мокрыми технологическими процессами.
15.43 В мастерских металлообработки и других помещениях, в которых возможны замена и перестановка станков, силовую распределительную сеть разрешается выполнять с помощью распределительных шинопроводов. При длине ответвления более 3 м у каждого ответвления от шинопровода должен быть установлен аппарат защиты.
Для сетей освещения экспозиций в выставочных и демонстрационных залах, а также сетей акцентирующего освещения в торговых залах разрешается применение осветительных шинопроводов, в которых обеспечивается разрыв цепи ответвления до момента извлечения штепсельного устройства из оболочки шинопровода.
15.44 Электрические сети в пожаро- и взрывоопасных зонах следует выполнять в соответствии с требованиями
[3] и положениями
СП 423.1325800, не противоречащими требованиям
[3], а также следует применять УЗДП для предупреждения искрения или дугового пробоя, способных вызвать пожароопасные ситуации.
(п. 15.44 в ред.
Изменения N 4, утв. Приказом Минстроя России от 30.12.2020 N 919/пр,
Изменения N 8, утв. Приказом Минстроя России от 29.11.2024 N 808/пр)
15.45 Длина проводов ответвлений от групповых линий к электроустановочным изделиям и к светильникам должна приниматься равной:
- 50 мм плюс глубина коробки - для закладных коробок под розетки и к выключателям;
- 150 мм от потолка - для светильников с лампами накаливания;
- 250 мм от потолка (независимо от наличия закладной коробки) - для светильников с люминесцентными лампами;
- 150 мм - для электроустановочных изделий открытого монтажа.
15.46 Сечения токопроводящих медных жил и жил из алюминиевых сплавов марок 8030 и 8176 должны быть не менее указанных в таблице 15.3.
Таблица 15.3
Наименование линии | Наименьшее сечение токопроводящих жил кабелей и проводов, мм2 |
медными жилами | жилами из алюминиевых сплавов марок 8030 и 8176 |
Линии групповых сетей освещения | 1,5 | 2,5 |
Линии групповых сетей розеток | 2,5 | 4,0 |
Линии от этажных до квартирных щитков и к расчетному счетчику | 2,5 | 4,0 |
Линии распределительной сети (стояки) для питания квартир | 4,0 | 6,0 |
(п. 15.46 в ред.
Изменения N 3, утв. Приказом Минстроя России от 25.04.2019 N 238/пр)
15.47 Соединения медных жил и жил из алюминиевых сплавов марок 8030 и 8176 с контактами электроустановочных изделий, аппаратов защиты, управления, сигнализации и счетчиков должны соответствовать требованиям
ГОСТ 10434,
ГОСТ 17441,
ГОСТ 31604.
При соединении проводников с жилами из алюминиевых сплавов марок 8030 и 8176 с электроустановочными изделиями, аппаратами защиты и счетчиками рекомендуется использовать соединительные устройства в соответствии с требованиями
ГОСТ 31604 для коммутации проводников из алюминиевых сплавов с контактами для проводников из меди.
(в ред.
Изменения N 6, утв. Приказом Минстроя России от 28.12.2023 N 1005/пр)
Контактные выводы электроустановочных изделий, аппаратов защиты, управления, сигнализации и счетчиков для соединения внешних проводников с медными жилами и жилами из алюминиевых сплавов марок 8030 и 8176 должны соответствовать требованиям
ГОСТ 10434,
ГОСТ 17441,
ГОСТ 31604.
Для обеспечения надежности контактных соединений в распределительных коробках следует осуществлять соединение токопроводящих жил из сплавов алюминия марок 8030 и 8176 при помощи винтов или алюминиевых гильз, методом опрессовки или использовать сварку.
При монтаже ответвляемых кабелей с жилами из алюминиевых сплавов марок 8030 и 8176 должны применяться сжимы с оцинкованными контактами.
При выполнении соединений в электропроводках с токопроводящими жилами из сплавов алюминия марок 8030 и 8176, если тип электроустановочных изделий содержит медные или латунные контакты, для обеспечения стабильности контактного соединения следует применять электропроводящие смазки.
(п. 15.47 в ред.
Изменения N 3, утв. Приказом Минстроя России от 25.04.2019 N 238/пр)
16 Электрическое отопление и горячее водоснабжение
16.1 Применение электротеплоснабжения (электрического отопления и горячего водоснабжения) в жилых и общественных зданиях должно быть согласовано в установленном порядке.
16.2, 16.3 Исключены с 29.01.2024. -
Изменение N 6, утв. Приказом Минстроя России от 28.12.2023 N 1005/пр.
16.4 На нагревательных приборах, предназначенных для стационарных систем электротеплоснабжения, должен быть встроенный терморегулятор или термовыключатель. На приборах с принудительной конвекцией должна быть блокировка от отсутствия обдува нагревательных элементов.
16.5 На водонагревательных приборах должна быть блокировка от включения при отсутствии воды или понижении уровня и термовыключатель.
16.6 Каркасы и оболочки обогревателей должны быть выполнены из негорючих материалов.
(в ред.
Изменения N 6, утв. Приказом Минстроя России от 28.12.2023 N 1005/пр)
16.7 Исключен с 29.01.2024. -
Изменение N 6, утв. Приказом Минстроя России от 28.12.2023 N 1005/пр.
16.8 Нагревательные приборы должны располагаться на негорючих строительных конструкциях. Допускается расположение нагревателей на горючих строительных конструкциях при условии установки между нагревателем и конструкцией слоя из негорючего теплоизолирующего материала.
(в ред.
Изменения N 6, утв. Приказом Минстроя России от 28.12.2023 N 1005/пр)
16.9 Исключен с 29.01.2024. -
Изменение N 6, утв. Приказом Минстроя России от 28.12.2023 N 1005/пр.
16.10 В проектах систем электротеплоснабжения должны быть указаны размеры нагревательных приборов, способы их установки и крепления.
16.11 Исключен с 29.01.2024. -
Изменение N 6, утв. Приказом Минстроя России от 28.12.2023 N 1005/пр.
16.12 Электронагревательные приборы должны быть оборудованы устройствами для защиты от сверхтока и перегрева.
Питание приборов электротеплоснабжения в жилых домах должно осуществляться по независимым от других электроприемников линиям, начиная от квартирных щитков или вводов в здание.
В общественных зданиях питание приборов электротеплоснабжения должно, как правило, быть независимым от других электроприемников, начиная от ВРУ.
Соединение приборов с линиями питания должно быть неразъемным.
16.13 При групповом включении нагревательных приборов сечение проводников ответвлений должно составлять не менее половины сечения жилы питающего провода (кабеля). В местах подключения проводников к приборам должен быть запас по длине, обеспечивающий повторное присоединение.
16.14 Регулирующие устройства, применяемые в системах электротеплоснабжения, должны быть преимущественно бесконтактного типа (тиристорные и т.п.). Допускается применение магнитных пускателей, размещенных в металлических оболочках со степенью защиты не ниже IP44.
16.15 В соответствии с
ГОСТ 16617 электроприборы, за исключением электрокаминов и инфракрасных обогревателей, следует оснащать сигнализацией включенного состояния электроприбора в сеть, при наличии двухполюсных выключателей - включенного состояния нагревательных элементов.
16.16 На датчиках температуры, применяемых в системе регулирования, должна быть возможность изменения уставки.
16.17 На автоматических регуляторах температуры должна быть предусмотрена возможность ручного отключения.
16.18 На электрических отопительных приборах должна быть надпись "Не накрывать".
17 Учет электроэнергии, измерительные приборы
17.1 Учет электроэнергии следует осуществлять в соответствии с требованиями
[13] и настоящего свода правил.
(в ред.
Изменения N 8, утв. Приказом Минстроя России от 29.11.2024 N 808/пр)
17.2 Расчетные счетчики электрической энергии следует устанавливать на границе балансового разграничения: на ВРУ, ГРЩ и на вводах низшего напряжения силовых трансформаторов ТП, в которых щит низшего напряжения обслуживается эксплуатационным персоналом абонента, на вводах в квартиры жилых домов.
17.3 При питании от общего ввода нескольких потребителей, обособленных в административно-хозяйственном отношении, расчетные счетчики должны быть предусмотрены для каждого потребителя (субабонента). Питающие линии от общего ввода до вводов субабонентов должны быть защищены от механических повреждений, а способ прокладки должен обеспечивать их сменяемость.
17.4 Для потребителей помещений общественного назначения, встроенных в жилые дома или пристроенных к ним, расчетные счетчики следует устанавливать на вводах каждого из них независимо от источника питания - ТП, ВРУ жилого дома или ВРУ одного из потребителей.
17.5 В жилых домах следует устанавливать, как правило, один однофазный или трехфазный счетчик на каждую квартиру или одноквартирный дом.
Следует предусматривать индивидуальные приборы коммерческого учета для зарядных станций, интегрированных в электроустановки жилых зданий.
(абзац введен
Изменением N 6, утв. Приказом Минстроя России от 28.12.2023 N 1005/пр)
17.6 В общежитиях квартирного типа, кроме общего учета, следует предусматривать счетчики контрольного учета электроэнергии, потребляемой каждой квартирой.
На вводах предприятий и организаций общественного назначения, встраиваемых в общежития, должны устанавливаться контрольные счетчики для расчетов с основным абонентом (дирекцией общежития).
17.7 На ВРУ жилых домов должны устанавливаться счетчики для учета потребления электроэнергии общедомовым освещением, силовыми электроприемниками, встроенными помещениями и т.п.
Число счетчиков определяется схемой вводных устройств и числом тарификационных групп, к которым относятся электроприемники.
17.8 Счетчики для квартир рекомендуется размещать совместно с аппаратами защиты.
При установке квартирных щитков в прихожих квартир счетчики могут устанавливаться на этих щитках, допускается их установка в этажных щитках. Вопрос о месте установки счетчика должен быть согласован с местным энергосбытом с учетом типа здания и планировочных решений.
17.9 Счетчики следует выбирать с учетом их допустимой перегрузочной способности.
В щитках жилых зданий должны применяться счетчики активной электроэнергии класса точности не ниже 2,0 непосредственного включения, максимальный ток которых должен быть не менее номинального тока вводного аппарата квартиры.
В щитках общественных и производственных зданий, а также на ВРУ в блоках учета следует применять счетчики активной электроэнергии прямого или трансформаторного включения класса точности не ниже 2,0 для счетчиков технического учета, а для расчетных счетчиков - в соответствии с техническими нормативными правовыми актами. Максимальный ток счетчиков электроэнергии и номинальный ток трансформаторов тока должен удовлетворять номинальному току аппарата соответствующей цепи, если иное не оговорено потребителем.
17.10 Перед счетчиком, непосредственно включенным в сеть, на расстоянии не более 10 м по длине проводки для безопасной замены счетчика должен быть установлен коммутационный аппарат или предохранитель, позволяющий снять напряжение со всех фаз, присоединенных к счетчику.
17.11 После счетчика, включенного непосредственно в питающую сеть, должен быть установлен аппарат защиты возможно ближе к счетчику, но не далее чем на расстоянии 3 м по длине электропроводки. Если после счетчика отходят несколько линий, снабженных аппаратами защиты, установка общего аппарата защиты не требуется. Если после счетчика отходят несколько линий, снабженных аппаратами защиты, которые размещены за пределами помещения, где установлен счетчик, то после счетчика должен быть установлен общий отключающий аппарат.
Установка аппарата защиты после счетчика не требуется, если непосредственно перед ним размещен такой аппарат.
(абзац введен
Изменением N 4, утв. Приказом Минстроя России от 30.12.2020 N 919/пр)
17.12 Исключен с 29.11.2024. -
Изменение N 8, утв. Приказом Минстроя России от 29.11.2024 N 808/пр
17.13 Подключение расчетных счетчиков трансформаторного включения следует проводить через опломбируемую испытательную колодку (клеммник), обеспечивающую безопасное закорачивание цепей тока, безопасное отключение цепей напряжения при замене и обслуживании счетчиков.
18 Основные технические требования к автоматизированным системам учета, контроля и управления
18.1 Общие требования по проектированию и размещению автоматизированных систем учета, контроля и управления
18.1.1 Требования настоящего раздела распространяются на проектирование автоматизированных систем учета, контроля и управления для вновь строящихся, реконструируемых и модернизируемых жилых общественных зданий массового строительства (жилые здания, школы и детские дошкольные учреждения и др.), в том числе и в сложившейся застройке, независимо от форм собственности.
18.1.2 В разделе приведены требования по проектированию:
- автоматизированных систем коммерческого учета потребления энергоресурсов (АСКУЭР);
- автоматизированных систем управления и диспетчеризации инженерным оборудованием (АСУД);
- систем диспетчерского контроля за работой лифтов (СДК).
При проектировании объединенной (комплексной) системы АСКУЭР, АСУД и СДК следует руководствоваться правилами, предъявляемыми к системе с более жесткими требованиями.
18.1.3 Проектирование АСУД и АСКУЭР следует осуществлять согласно настоящему своду правил, с учетом положений
СП 134.13330.
(п. 18.1.3 в ред.
Изменения N 6, утв. Приказом Минстроя России от 28.12.2023 N 1005/пр)
18.1.4 Оборудование АСКУЭР и АСУД следует размещать, как правило, в помещении электрощитовой жилого дома.
При совместном размещении в электрощитовой оборудования систем связи, диспетчеризации и вводно-распределительных устройств степень защиты всех шкафов и оборудования должна быть не ниже IP31.
(в ред.
Изменения N 4, утв. Приказом Минстроя России от 30.12.2020 N 919/пр)
18.1.5 Помещения для АСКУЭР и АСУД не следует выбирать под санузлами, ванными комнатами, душевыми и другими помещениями, связанными с технологическими процессами с наличием влаги, кроме случаев, когда приняты специальные меры по надежной гидроизоляции, исключающие попадание влаги в эти помещения. Конструкцией дверей и окон в этих помещениях должна быть обеспечена сохранность устанавливаемого в них оборудования для АСКУЭР и АСУД.
(п. 18.1.5 в ред.
Изменения N 4, утв. Приказом Минстроя России от 30.12.2020 N 919/пр)
18.1.6 В случае размещения оборудования вне электрощитовых эти помещения должны располагаться на 1-м этаже зданий и быть как правило с самостоятельным выходом на улицу.
Допускается, по согласованию с эксплуатирующими организациями, устраивать этот выход в общедомовые помещения (например, в вестибюле здания).
18.1.7 Выбирать места установки всех элементов АСКУЭР и АСУД следует с учетом максимально возможного исключения несанкционированного доступа и возможности изменения информации.
Оборудование АСКУЭР и АСУД должно быть закрыто пломбируемым кожухом, с сигнализацией о его вскрытии. Габариты и присоединительные устройства приборов должны позволять их размещение в стандартных этажных электрощитах.
Оборудование АСКУЭР и АСУД, конструктивно изготовленное внутри закрывающего кожуха, допускается размещать непосредственно в слаботочных отсеках этажных электрощитов. Оборудование АСКУЭР и АСУД, изготовленное без кожуха, допускается размещать в запирающихся пломбируемых боксах, находящихся внутри слаботочных отсеков этажных электрощитков. Степень защиты оборудования АСКУЭР и АСУД должна быть не ниже IP31.
(п. 18.1.7 в ред.
Изменения N 4, утв. Приказом Минстроя России от 30.12.2020 N 919/пр)
18.1.8 Каналы, ниши, закладные детали для устройства электропроводок, плинтусы и наличники с каналами для различных сетей, а также трубы, замоноличенные в строительные конструкции при их изготовлении, должны предусматриваться в архитектурно-строительных чертежах, проектах и чертежах строительных изделий по заданиям, разработанным проектировщиками АСКУЭР и АСУД.
18.1.9 Прокладка линий связи АСКУЭР, АСУД между отдельными зданиями должна выполняться:
- в кабельной канализации или коллекторах;
- воздушно-стоечным способом.
18.1.10 Ввод кабелей сетей АСКУЭР и АСУД в жилые и общественные здания должен быть, как правило, подземным. Ввод труб в технические подполья и подвалы должен быть герметизирован.
18.1.11 Устройство воздушных кабельных вводов в жилые и общественные здания допускается в обоснованных случаях по согласованию с эксплуатирующими организациями.
18.1.12 Вводные стойки и вводные трубы на кровлях зданий следует устанавливать таким образом, чтобы обеспечивался вывод кабелей и проводов из них в места, доступные для обслуживающего персонала.
18.1.13 Прокладку кабелей сетей АСКУЭР и АСУД в технических подпольях и подвалах рекомендуется предусматривать на кабельных лотках, которые для таких сетей следует прокладывать, как правило, под лотками для прокладки электрических кабелей.
18.1.14. Верхний ряд кабельных лотков следует располагать так, чтобы расстояние в свету между лотками связи и перекрытием или лотками силовых кабелей было не менее 150 мм. При этом полезная длина полки для установки лотков должна быть не более 600 мм.
18.1.15 На одном лотке разрешается совместная прокладка проводов и кабелей сетей телефонной связи, кабельного телевидения, системы охраны входов, АСКУЭР и АСУД. Совместно с указанными кабелями разрешается прокладка кабелей охранной и пожарной сигнализации.
Основанием для отказа от совместной прокладки кабелей и проводов, а также применения линий различного назначения в общих кабелях следует считать:
- наличие мешающих влияний одной линии на другую, превышающих установленные нормы и повышенную опасность поражения обслуживающего персонала или абонентов сетей АСКУЭР и АСУД током повышенного напряжения, атмосферными разрядами или вследствие индуктивного либо емкостного влияния соседних линий;
- возможность акустических ударов или других опасных воздействий при эксплуатации и ремонте различных линейных устройств на соседних линиях в общих кабелях.
18.1.16 Кабели и провода на лотках допускается прокладывать пучками и многослойно при соблюдении следующих условий:
- наружный диаметр пучка кабелей или проводов должен быть не более 100 мм;
- высота слоев на одном лотке должна быть не более 100 мм;
- на основных направлениях кабельных трасс следует предусматривать запас емкости лотка не менее 20% для возможной прокладки дополнительных кабелей.
18.1.17 Магистральные участки сетей АСКУЭР и АСУД следует, как правило, прокладывать в пределах лестнично-лифтовых узлов, в коридорах, чердаках, технических подпольях, технических этажах и других помещениях, доступных для обслуживающего персонала в любое время суток.
18.1.18 Коэффициент заполнения труб и каналов строительных конструкций проводами и кабелями, прокладываемыми в них, не должен, как правило, превышать 0,6.
По требованиям пожарной безопасности (обеспечение "самотушения") коэффициент заполнения коробов, труб и каналов строительных конструкций должен быть не менее 30%.
18.1.19 Прокладку сетей АСКУЭР и АСУД от этажных щитов до квартиры следует предусматривать в электротехнических коробах, плинтусах или каналах строительных конструкций с учетом обеспечения механической защиты проводов и кабелей и исключения возможности несанкционированного доступа к ним.
Допускается прокладка этих сетей в трубах в подготовке пола или непосредственно в швах строительных конструкций при применении стальных проводов.
18.1.20 В электротехнических коробах и плинтусах разрешается прокладка сетей АСКУЭР, АСУД и электропроводки напряжением не более 380/220 В.
При этом провода и кабели слаботочных сетей должны быть отделены от электропроводки сплошной перегородкой или прокладываться в отдельных отсеках.
Для уменьшения взаимного мешающего влияния различных сетей на нормальную работу друг друга в случае их параллельного прохождения на протяженных участках (более 7 м) рекомендуется осуществлять прокладку этих сетей одним из следующих способов:
- в стальных трубах;
- экранированными кабелями;
- проводами со скрученными жилами "витой парой";
- в металлических коробах с разделительными перегородками.
18.1.21 АСКУЭР и АСУД должны обеспечивать контроль работоспособности собственных линий связи и быть защищены от перенапряжений и помех в случае прохождения грозового фронта.
18.1.22 Значение сопротивления заземления оборудования систем связи, информатизации и диспетчеризации должно соответствовать
ГОСТ 464.
18.1.23 Все трубостойки, радиостойки, металлические кронштейны с изоляторами, антенно-мачтовые сооружения АСКУЭР и АСУД, тросы воздушно-кабельных вводов должны присоединяться к системе молниезащиты зданий и сооружений согласно требованиям
[8].
18.1.24 АСКУЭР и АСУД должны обеспечивать работоспособность входящих в их состав устройств в случае отключения электропитания на время до 60 мин.
При обрыве линии связи все устройства указанных систем, расположенные до места обрыва, должны сохранять свою работоспособность.
18.1.25 Питание технических средств АСКУЭР и АСУД следует выполнять:
- от панели АВР - в зданиях с АВР;
- двумя линиями от разных вводов с устройством АВР - в зданиях без АВР.
18.1.26 Исправность устройств связи, контроллеров, концентраторов, АСКУЭР и АСУД должны проверять в автоматическом режиме и оповещать диспетчера в течение 1 мин о возникновении неисправности с записью этой информации.
18.1.27 В соответствии с заданием на проектирование АСКУЭР и АСУД переговоры "диспетчер-абонент" должны записывать в память компьютера (на жесткий диск и т.п.), контроль работоспособности оборудования и поступление сигналов при этом прерываться не должны.
18.1.28 Для повышения надежности работы АСКУЭР и АСУД сигнал о несанкционированном доступе к аппаратуре АСКУЭР и АСУД следует передавать в диспетчерский пункт АСКУЭР или на пульт объединенной диспетчерской службы (ОДС).
18.2 Требования к автоматизированной системе коммерческого учета потребления энергоресурсов
18.2.1 АСКУЭР представляет собой автоматизированную систему коммерческого учета энергоресурсов, потребляемых жилым зданием, которая организуется согласно действующим нормативно-правовым документам, регламентирующим порядок коммерческого учета каждого использованного вида ресурса.
18.2.2 Оснащение жилых домов и общественных зданий АСКУЭР следует осуществлять по заданию на проектирование согласно требованиям настоящего раздела. Подключение вновь строящихся объектов к существующим сетям АСКУЭР осуществляется в соответствии с техническими условиями, выдаваемыми собственником (владельцем) этих сетей или по его поручению энергоснабжающей (ресурсопоставляющей) организацией.
18.2.3 АСКУЭР должна обеспечивать:
- суммарный (общедомовой) учет потребления жилым зданием, а также раздельный учет для каждого из отдельных самостоятельных потребителей (абонентов), включая и поквартирный коммерческий учет всех основных видов энергоресурсов:
- электроэнергии в многотарифном режиме;
- водопотребления (горячей и холодной воды);
- газопотребления;
- теплопотребления и возможность учета других энергоресурсов;
- дистанционный многотарифный коммерческий учет и достоверный контроль потребления энергоресурсов;
- автоматизированный расчет потребления и возможность выписки электронных счетов абонентам для оплаты потребленных энергоресурсов;
- выдачу данных и обмен аналитической информацией между структурами ЖКХ и энергоснабжающими организациями при решении задач управления потреблением энергоресурсов и энергосбережения;
- внутриобъектовый баланс поступления и потребления энергоресурсов для выявления очагов несанкционированного потребления;
- информирование потребителей о состоянии оплаты и потребления энергоресурсов;
- возможность изменения тарифов путем перепрограммирования технических средств, установленных на объектах учета, с обязательным документированием этого события техническими средствами;
- возможность наращивания функций без изменения общей структуры АСКУЭР, установленных на объектах учета.
18.2.4 АСКУЭР должна обеспечивать возможность применения дифференцированных по зонам суток тарифов на электроэнергию и другие энергоресурсы, а также обеспечивать контроль переключения системы с тарифа на тариф с передачей указанной информации в диспетчерский пункт АСКУЭР со временем исполнения, как правило, до 5 мин.
18.2.5 Аппаратура и линии связи АСКУЭР должны соответствовать требованиям, которые предъявляются к системам коммерческого учета.
Съем и передачу показаний потребления энергоресурсов следует, как правило, в пределах объекта (жилой дом, общественное здание) проводить по самостоятельным линиям связи.
Допускается применение для этой цели других технических решений при условии выполнения требований по точности и надежности передаваемой информации.
(в ред.
Изменения N 4, утв. Приказом Минстроя России от 30.12.2020 N 919/пр)
18.2.6 Данные об энергопотреблении с каждого объекта следует передавать в соответствии с техническими условиями на АСКУЭР. Каналы связи могут быть построены на различных линиях связи (проводные, волоконно-оптические (ВОЛС), электросиловые, радиолинии и т.д.).
(п. 18.2.6 в ред.
Изменения N 4, утв. Приказом Минстроя России от 30.12.2020 N 919/пр)
18.2.7 АСКУЭР должна обеспечивать съем показаний в дискретном режиме, как правило, с интервалом времени от 5 мин и более для получения графиков нагрузки (суточных, месячных, годовых) и для определения максимального значения потребляемой мощности в определенный период.
18.2.8 Метрологическое обеспечение АСКУЭР должно соответствовать
ГОСТ Р 8.596.
18.2.9 Данные о потребляемых энергоресурсах должны быть получены с помощью приборов, выпускаемых серийно, внесенных в Госреестр средств измерений Российской Федерации, с сертификатами об утверждении типа и соответствующих требованиям нормативно-правовой документации регламентирующей учет ресурса соответствующего вида.
18.2.10 Технические параметры и метрологические характеристики расчетных электросчетчиков субъекта должны соответствовать требованиям
ГОСТ 31818.11, для всех остальных электросчетчиков, входящих в состав АСКУЭР (расчетных электросчетчиков субабонентов, электросчетчиков технического учета, участвующих в расчетах баланса, и т.п.), должны соответствовать
ГОСТ 31819.21 и
ГОСТ 31819.22.
(п. 18.2.10 в ред.
Изменения N 4, утв. Приказом Минстроя России от 30.12.2020 N 919/пр)
18.2.11 Для точек учета электроэнергии, в которых возможны перетоки электроэнергии (прием-отдача), электросчетчики должны обеспечивать учет электроэнергии в обоих направлениях.
18.2.12 Расчетные электросчетчики должны:
- обеспечивать измерение электроэнергии с нарастающим итогом и вычисление усредненной мощности за получасовые интервалы времени (при необходимости иметь значения усредненной мощности за более короткие промежутки времени);
- иметь возможность хранения профиля нагрузки с получасовым интервалом на глубину не менее одного месяца;
- иметь цифровой интерфейс (RS-485, RS-232, CAN и т.п.);
- иметь календарь и часы (точность хода не хуже +/- 2 с в сутки) с возможностью автоматической коррекции;
- иметь энергонезависимую память для обеспечения хранения запрограммированных параметров электросчетчика и сохранения последних данных по активной и реактивной энергии при пропадании питания;
- обеспечивать ведение "Журнала событий" (фиксация числа перерывов питания, числа и дат связей со счетчиком, приведших к каким-либо изменениям данных, и т.п.);
- иметь защиту от несанкционированного изменения параметров;
- обеспечивать автоматическую диагностику, подтверждающую работоспособность АСКУЭР для ведения коммерческого учета.
18.3 Требования к автоматизированной системе управления и диспетчеризации инженерным оборудованием
18.3.1 Оснащение жилых домов и общественных зданий АСУД следует осуществлять по заданию на проектирование согласно требованиям настоящего подраздела. Подключение вновь строящихся объектов к существующим сетям АСУД осуществляется в соответствии с техническими условиями, выдаваемыми собственником (владельцем) этих сетей или по его поручению эксплуатирующей организацией.
18.3.2 У АСУД должна быть возможность передачи информации на более высокий иерархический уровень, в т.ч. в городские и специализированные диспетчерские службы.
18.3.3 В АСУД должны включаться все объекты данной жилой застройки, за исключением объектов, где планируются внутренние или отраслевые службы диспетчеризации.
(п. 18.3.3 в ред.
Изменения N 4, утв. Приказом Минстроя России от 30.12.2020 N 919/пр)
18.3.4 АСУД должны выполнять следующие функции:
- контроль состояния инженерного оборудования;
- управление работой инженерного оборудования;
- осуществлять речевую связь в подъездах, а также с эксплуатационным персоналом, находящимся в технических помещениях, чердаках, технических подпольях и т.п.;
- контроль параметров инженерных систем;
- получение информации от автоматизированных систем учета энергопотребления в объеме технического учета;
- позволять изменять настройки концентраторов, подключать дополнительные датчики и устройства силами специалистов эксплуатирующей организации без нарушения рабочего режима.
18.3.5 Объемы оснащения АСУД жилых и общественных зданий приведены в
приложении Б.
(п. 18.3.5 в ред.
Изменения N 4, утв. Приказом Минстроя России от 30.12.2020 N 919/пр)
18.3.6 В диспетчерской на средствах отображения (мониторы, панели и т.д.) должна представляться в реальном масштабе времени информация, указанная в
приложении Б, с выделением аварийных сигналов, состояния линий связи и результатов обработки команд управления.
(в ред.
Изменения N 4, утв. Приказом Минстроя России от 30.12.2020 N 919/пр)
Рекомендуется данную информацию представлять на ситуационном плане обслуживаемого района.
18.3.7 Требования по подключению приборов и систем аварийной сигнализации в АСУД, в том числе пожарной сигнализации, должны учитываться при подготовке задания на проектирование.
18.4 Требования к техническим характеристикам устройств сбора и передачи данных для автоматизированной системы коммерческого учета потребления энергоресурсов
18.4.1 УСПД для АСКУЭР в комплексе с программным обеспечением должно быть метрологически аттестовано для применения в коммерческих расчетах, с соответствующим сертификатом Госстандарта РФ и включено в Госреестр средств измерений РФ, а также быть с разрешением к применению на территории Российской Федерации (сертификат по безопасности).
18.4.2 УСПД для АСКУЭР должно быть защищено от несанкционированного доступа как к аппаратной части УСПД (разъемам, функциональным модулям и т.п.), так и к программно-информационному обеспечению.
18.4.3 При требовании технических условий на организацию учета энергопотребления путем создания отдельных УСПД, допускается устройство нескольких УСПД для АСКУЭР в доме, с объединением их на информационном уровне и передачей информации от дома до диспетчерской по единому каналу связи.
18.4.4 Не допускается объединения УСПД для АСКУЭР на аппаратном уровне с оборудованием других систем. Информационный обмен с системами другого назначения (например АСУД) должен осуществляться через стандартный интерфейс (предпочтительно RS-485, RS-232).
18.4.5 УСПД для АСКУЭР должно обеспечивать:
18.4.5.1 Сбор информации от многотарифных счетчиков электроэнергии, счетчиков горячей и холодной воды, счетчиков газа и т.п. с цифровым выходом (типа RS-485, RS-232, CAN и т.п.) и импульсными выходами типа "сухой контакт".
18.4.5.2 Обработку принятой информации в соответствии с начальной установкой УСПД
(18.2.3).
18.4.5.3 Хранение в энергонезависимой памяти измерений (вычислений) каждого параметра учета. Глубина архива должна составлять не менее полугода. Вся накопленная информация должна сохраняться в течение 18 мес.
18.4.5.4 Передачу всех архивных данных, как по запросу из центра, так и перезапись их с домового устройства на автономные носители информации (например USB FLASH, магнитные диски и т.п.) через стандартный разъем, для последующего ввода в сервер коммерческого учета.
18.4.5.5 Выход в локальную вычислительную сеть (типа Ethernet).
18.4.5.6 Корректировку времени и даты счетчиков энергоресурсов с цифровым интерфейсом в соответствии с требованиями энергоснабжающих организаций.
18.4.5.7 Привязку информации от счетчиков энергоресурсов с импульсным выходом к системному времени УСПД.
18.4.5.8 Самодиагностику, обеспечивающую работоспособность системы.
18.4.6 УСПД для АСКУЭР должно обеспечивать установку следующих параметров:
18.4.6.1 При первоначальной установке (настройке), а также в процессе эксплуатации (при замене электросчетчиков, изменении схемы учета и т.п.) установка параметров должна быть возможна только при снятии механической пломбы и вводе паролей, при этом в памяти УСПД (Журнале событий) автоматически должна проводиться определенная запись с указанием даты и времени.
18.4.6.2 Настройка параметров УСПД для АСКУЭР под конкретную схему учета энергоресурсов и контроля параметров АСКУЭР должна обеспечивать:
- ввод расчетных коэффициентов измерительных каналов (коэффициенты трансформации измерительных трансформаторов тока и напряжения);
- формирование измерительных каналов учета энергоресурсов в группы для расчета суммарных значений по ним;
- задание простейшего алгоритма вычисления баланса энергоресурсов;
- установку интервала опроса электросчетчиков с цифровым выходом;
- установку текущих значений времени и даты.
18.4.7 УСПД для АСКУЭР должно обеспечивать выработку текущего времени с погрешностью не более одной секунды в сутки как при наличии внешнего питания, так и при полном обесточивании устройства.
18.4.8 УСПД для АСКУЭР должно быть восстанавливаемым многофункциональным устройством. Наработка на отказ должна быть не менее 15000 ч. Срок службы - не менее 12 лет.
18.4.9 УСПД для АСКУЭР рекомендуется применять в однокорпусном исполнении.
Конструкцией УСПД для АСКУЭР должно быть обеспечено его размещение как на стандартных панелях, так и в шкафах одностороннего обслуживания.
Время восстановления работоспособности УСПД для АСКУЭР на месте его установки путем замены модулей должно составлять не более 1 ч.
18.5 Требования к техническим характеристикам устройств сбора и передачи данных для автоматизированной системы управления и диспетчеризации инженерным оборудованием
18.5.1 УСДП для АСУД должно обеспечивать:
- объединение в сеть с другими УСПД для АСУД, как правило, по интерфейсу типа RS-485;
- выход в локальную вычислительную сеть (типа Ethernet);
- передачу данных по коммуникационным каналам в центры сбора и обработки информации;
- самодиагностику, обеспечивающую работоспособность системы.
18.5.2 УСПД для АСКУЭР должно обеспечивать установку:
- параметров АСУД;
(в ред.
Изменения N 4, утв. Приказом Минстроя России от 30.12.2020 N 919/пр)
- текущих значений времени и даты.
18.5.3 УСПД для АСУД должно обеспечивать выработку текущего времени с погрешностью не более одной секунды в сутки как при наличии внешнего питания, так и при полном обесточивании устройства.
18.5.4 УСПД для АСУД рекомендуется применять в однокорпусном исполнении.
Конструкцией УСПД для АСУД должно быть обеспечено его размещение, как на стандартных панелях, так и в шкафах одностороннего обслуживания.
Время восстановления работоспособности УСПД для АСУД на месте его установки путем замены модулей должно составлять не более 1 ч.
(п. 18.5.4 в ред.
Изменения N 4, утв. Приказом Минстроя России от 30.12.2020 N 919/пр)
18.6 Технические требования к каналам связи для передачи информации автоматизированной системой коммерческого учета потребления ресурсов и автоматизированной системой управления и диспетчеризации инженерного оборудования
(в ред.
Изменения N 4, утв. Приказом Минстроя России от 30.12.2020 N 919/пр)
18.6.1 Каналы связи, используемые для организации АСКУЭР и АСУД, могут быть построены на основе цифровых, аналоговых, спутниковых, радио- или сотовых систем связи.
18.6.2 Каналы связи должны обеспечивать возможность установления прямого и непрерывного соединения между АСКУЭР и АСУД.
18.6.3 Технические характеристики каналов связи должны обеспечивать скорость передачи информации в канале не ниже 24 кБит/с при коэффициенте надежности канала 0,9. При применении сотовых систем связи допускается работа на скорости 9,6 кБит/с, а при применении спутниковых систем - работа на скорости, определенной для этих систем.
18.6.4 Каналы связи должны быть постоянно подключены к АСКУЭР и АСУД, не допускается их применение для иных целей.
18.6.5 Связь УСПД для АСКУЭР с сервером коммерческого учета должна осуществляться по основному и резервному каналам. Основной и резервный каналы должны быть организованы по разным физическим линиям связи. Основной и резервный каналы допускается организовывать как на однотипных, так и на разнотипных физических линиях связи. Резервирование каналов передачи от счетчиков энергоресурсов до этажных или общедомовых УСПД для АСКУЭР не требуется.
(п. 18.6.5 в ред.
Изменения N 4, утв. Приказом Минстроя России от 30.12.2020 N 919/пр)
18.7 Общие требования к программным средствам АСКУЭР и АСУД
18.7.1 Программные средства АСКУЭР и АСУД должны обеспечивать:
- безотказную работу в течение всего срока службы устройства, а при обновлении версий - полную совместимость и сохранение всех ранее установленных и хранимых параметров;
- автоматическую загрузку операционной системы или программы управления устройства, автоматическое сохранение всех установленных параметров и подлежащих хранению данных при любых сбоях в работе устройств;
- автоматическое самотестирование по всем параметрам;
- вычисление всех необходимых показателей энергопотребления, возможность изменения в процессе работы состава и числа учитываемых параметров, а также механизмов их вычислений;
- ведение "Журнала событий", фиксирующего все входы в программное обеспечение, его изменения, а также все нарушения нормального функционирования устройства (сбои питания, потеря информации от электросчетчика, пропадания канала связи и т.п.).
18.7.2 Программные средства АСКУЭР и АСУД должны быть обеспечены механизмами как аппаратной (пломбирование каналов ввода программных средств, установка электронных ключей блокировки доступа), так и программной защиты (система паролей) от несанкционированного доступа.
18.7.3 Форматы и протоколы передачи данных УСПД должны быть построены на основе общепринятых промышленных стандартов, т.е. должны позволять использовать их в составе АСКУЭР и АСУД различных разработчиков, иметь возможность транспортировать данные в различные системы управления базами данных, электронные таблицы и программные приложения других типов для дальнейшей обработки, и хранения информации.
18.7.4 В нормальном режиме работы обмен информацией АСКУЭР и АСУД с системами верхнего уровня проводится по их сигналам запроса, при этом должны передаваться запрашиваемые и хранимые в УСПД параметры, как правило, обобщенного характера.
При нарушениях в работе или фиксации несанкционированного вмешательства программное обеспечение должно обеспечивать автоматический перевод УСПД в режим передачи информации на верхний уровень сбора информации.
(в ред.
Изменения N 4, утв. Приказом Минстроя России от 30.12.2020 N 919/пр)
18.7.5 После запуска УСПД в работу процессы передачи информации на верхний уровень, взаимодействия с внешними устройствами, отображения информации, подключение новых каналов учета и передачи информации не должны влиять на процесс сбора, накопления и хранения информации в УСПД.
18.8 Требования к системе диспетчерского контроля за работой лифта
18.8.1 Проектирование систем диспетчерского контроля за работой лифта (СДК) следует проводить, как правило, на базе технических и программных средств отечественных производителей. У производителей должны быть сертификаты соответствия на серийный выпуск продукции.
При отсутствии отечественных разработок требуемого качества допускается, по согласованию с заказчиками, применение сертифицированной продукции зарубежного производства.
18.8.2 СДК должна соответствовать требованиям
ГОСТ 34441.
(в ред.
Изменения N 4, утв. Приказом Минстроя России от 30.12.2020 N 919/пр)
18.8.3 Оборудование СДК следует размещать, как правило, в помещениях, где размещено оборудование лифта.
18.8.4 Места установки всех элементов СДК следует выбирать с учетом максимально возможного исключения несанкционированного доступа.
18.8.6 У СДК должна быть возможность передачи информации на более высокий иерархический уровень, в т.ч. в городские и объединенные диспетчерские службы. Интеграция может осуществляться на программном уровне с применением ОРС-сервера.
18.8.7 Каналы связи должны быть постоянно подключены к СДК. Допускается применение каналов связи совместно с АСУД.
18.8.8 Рекомендуется применять устройства диспетчерского контроля обеспечивающие возможность передачи данных через локальную вычислительную сеть (Ethernet) и (или) глобальную сеть (Internet).
19 Защитные меры безопасности
19.1 В электроустановках жилых и общественных зданий должен предусматриваться комплекс защитных мер обеспечения электробезопасности:
- автоматическое отключение;
- защита от искрения, дуговых пробоев;
- основная система уравнивания потенциалов;
- дополнительная система уравнивания потенциалов;
- заземление;
- молниезащита;
- применение изоляционного разгораживания (секционирования) токоведущих частей. Для низковольтных комплектных устройств типа ВРУ следует применять изоляционное разгораживание (секционирование) вида не менее 2b для электроустановок типа ГРЩ на токи до 1600 А и вида не менее 3b для электроустановок типа ГРЩ на токи свыше 1600 А в соответствии с требованиями ГОСТ IEC 61439-2-2015 (таблица 104).
(в ред.
Изменения N 6, утв. Приказом Минстроя России от 28.12.2023 N 1005/пр)
19.2 При проектировании электрических установок необходимо обеспечивать защиту людей, домашних животных и имущества от опасности, которая может возникнуть от контакта с частями электроустановки, находящимися под напряжением.
19.3 Защиту необходимо осуществлять одним из следующих методов:
- предотвращение протекания электрического тока при повреждении через тело человека или домашнего животного;
- ограничение электрического тока при повреждении, который может протекать через тело человека или домашнего животного;
- ограничение длительности протекания электрического тока до неопасного промежутка времени;
- предотвращение появления искрения, дугового пробоя в электрических сетях.
(п. 19.3 в ред.
Изменения N 4, утв. Приказом Минстроя России от 30.12.2020 N 919/пр)
19.4 Характеристики защитного оборудования следует определять, исходя из выполняемых ими функций, которые могут предусматривать защиту:
- от сверхтока (тока перегрузки, тока короткого замыкания);
- тока замыкания на землю;
- токов дугового пробоя;
- перенапряжения (импульсное напряжение);
- понижения напряжения или отсутствия напряжения.
(п. 19.4 в ред.
Изменения N 4, утв. Приказом Минстроя России от 30.12.2020 N 919/пр)
(п. 19.5 в ред.
Изменения N 4, утв. Приказом Минстроя России от 30.12.2020 N 919/пр,
Изменения N 6, утв. Приказом Минстроя России от 28.12.2023 N 1005/пр)
19.6 Заземляющие устройства и системы уравнивания потенциалов электроустановок следует выполнять в соответствии с требованиями
ГОСТ Р 50571.5.54.
(в ред.
Изменения N 8, утв. Приказом Минстроя России от 29.11.2024 N 808/пр)
(в ред.
Изменения N 4, утв. Приказом Минстроя России от 30.12.2020 N 919/пр)
РЕКОМЕНДАЦИИ ПО ПРИМЕНЕНИЮ УСТРОЙСТВ ЗАЩИТНОГО ОТКЛЮЧЕНИЯ
ДИФФЕРЕНЦИАЛЬНОГО ТОКА В ЭЛЕКТРОУСТАНОВКАХ ЖИЛЫХ ЗДАНИЙ
А.1 Общая часть
А.1.1 Для защиты от поражения электрическим током УДТ, как правило, должно применяться в отдельных групповых линиях. Допускается присоединение к одному УДТ нескольких групповых линий через отдельные автоматические выключатели (предохранители).
А.1.2 Суммарное значение тока утечки сети с учетом присоединяемых стационарных и переносных электроприемников в нормальном режиме работы не должно превосходить 1/3 номинального отключающего дифференциального тока УДТ. При отсутствии данных о токе утечки электроприемников его следует принимать из расчета 0,4 мА на 1 А тока нагрузки, а ток утечки сети - из расчета 10 мкА на 1 м длины фазного проводника.
А.1.3 При выборе уставки УДТ необходимо учитывать, что в соответствии с
ГОСТ IEC 61008-1 и
ГОСТ IEC 61009-1 значение отключающего дифференциального тока находится в зоне от 0,5 - 1,0 номинального отключающего дифференциального тока уставки.
(в ред.
Изменения N 4, утв. Приказом Минстроя России от 30.12.2020 N 919/пр)
А.1.4 Рекомендуется применять УДТ, при срабатывании которых происходит отключение всех рабочих проводников, в том числе и нулевого рабочего, при этом наличие защиты от сверхтока в нулевом полюсе не требуется.
А.1.5 Применяемые типы УДТ функционально должны предусматривать возможность проверки их работоспособности, проверка УДТ (тестирование) для жилых объектов должна проводиться не реже одного раза в три месяца, о чем должна быть запись в инструкции по эксплуатации предприятия-изготовителя.
А.1.6 Необходимость применения УДТ определяется проектной организацией исходя из обеспечения безопасности в соответствии с требованиями заказчика и утвержденными в установленном порядке стандартами и другими нормативными документами.
Применение УДТ должно быть обязательным для групповых линий, питающих штепсельные соединители наружной установки в соответствии с
ГОСТ Р 50571.4.41, или для защиты штепсельных розеток ванных и душевых помещений, если они не подключены к индивидуальному разделяющему трансформатору в соответствии с
ГОСТ Р 50571.7.701.
(в ред.
Изменения N 6, утв. Приказом Минстроя России от 28.12.2023 N 1005/пр)
А.1.7 Применение УДТ для объектов действующего жилого фонда с двухпроводными сетями, в которых у электроприемников нет защитного заземления - эффективное средство в части повышения электробезопасности. Срабатывание УДТ при замыкании на корпус в таких сетях происходит только при появлении дифференциального тока, то есть при непосредственном прикосновении к корпусу (соединении с "землей"). В соответствии с этим установка УДТ может быть рекомендована как временная мера повышения безопасности до проведения полной реконструкции. Решение об установке УДТ должно приниматься в каждом конкретном случае после получения объективных данных о состоянии электропроводок и приведения оборудования в исправное состояние.
А.2 Защита от косвенного прикосновения
А.2.1 Устройства защитного отключения, управляемые дифференциальным током, наряду с устройствами защиты от сверхтока относятся к основным видам защиты от косвенного прикосновения, обеспечивающим автоматическое отключение питания.
А.2.2 Защита от сверхтока обеспечивает защиту от косвенного прикосновения путем отключения поврежденного участка цепи при глухом замыкании на корпус. При малых токах замыкания, снижении уровня изоляции, а также при обрыве нулевого защитного проводника - УДТ единственное средство защиты.
А.3 Защита от прямого прикосновения
А.3.1 Основные виды защиты от прямого прикосновения - изоляция токоведущих частей и мероприятия по предотвращению доступа к ним. Установка УДТ с номинальным отключающим дифференциальным током срабатывания до 30 мА считается дополнительной мерой защиты от прямого прикосновения в случае недостаточности или отказа основных видов защиты. То есть применение УДТ не может быть заменой основных видов защиты, а может их дополнять и обеспечивать более высокий уровень защиты при неисправностях основных видов защиты.
А.4 Общие требования по применению устройства защитного отключения дифференциального тока
А.4.1 При выборе УДТ конкретных типов необходимо руководствоваться следующим:
- устройства должны быть сертифицированы в Российской Федерации в установленном порядке;
- технические условия должны быть согласованы с Ростехнадзором.
А.4.2 При установке УДТ последовательно должны выполняться требования селективности. При двух- и многоступенчатой схемах уставки тока срабатывания и время срабатывания УДТ, расположенное ближе к источнику питания, должны быть не менее чем в три раза большие, чем у УДТ, расположенного ближе к потребителю. Для УДТ, установленных на вводе осветительных (квартирных) щитков, требования селективности по времени срабатывания могут не выполняться.
(в ред.
Изменения N 8, утв. Приказом Минстроя России от 29.11.2024 N 808/пр)
А.4.3 В зоне действия УДТ нулевой рабочий проводник не должен быть соединен с заземленными элементами и нулевым защитным проводником.
А.4.4 УДТ должно сохранять работоспособность при снижении напряжения до 50% номинального.
А.4.5 Во всех случаях применения УДТ должно обеспечивать надежную коммутацию цепей нагрузки с учетом возможных перегрузок.
УДТ должны выбираться из условия несрабатывания при токе утечки, возникающем в процессе нормальной работы подключенных нагрузок.
А.4.6 По наличию расцепителей УДТ выпускаются как имеющими, так и не имеющими защиту от сверхтока. Преимущественно должны применяться УДТ, представляющие единый аппарат с автоматическим выключателем, обеспечивающим защиту от сверхтока.
А.4.7 Применять УДТ в групповых линиях, обеспеченных защитой от сверхтока и без дополнительного аппарата, обеспечивающего эту защиту, недопустимо.
А.4.8 При применении УДТ, без максимальных расцепителей, должна быть проведена расчетная проверка УДТ в режимах сверхтока с учетом защитных характеристик аппарата, обеспечивающего максимальную токовую защиту.
А.4.9 В жилых зданиях не допускается применять УДТ, автоматически отключающие потребителя от сети при исчезновении или недопустимом снижении напряжения сети.
А.4.10 В жилых зданиях могут применяться УДТ типа "А", реагирующие не только на переменные, но и на пульсирующие токи повреждений, или типа "АС", реагирующие только на переменные токи утечки.
А.4.11 УДТ, как правило, следует устанавливать в групповых сетях, питающих штепсельные розетки. Установка УДТ в линиях, питающих стационарно установленное оборудование и светильники, а также в общедомовых осветительных сетях, как правило, не требуется.
А.4.12 УДТ рекомендуется устанавливать на квартирных щитках, допускается их установка на этажных щитках.
А.4.13 Установка УДТ, действующих на отключение, запрещается для электроприемников, отключение которых может привести к опасным последствиям: созданию непосредственной угрозы для жизни людей, возникновению взрывов, пожаров и т.п.
А.4.14 В зданиях для защиты от прямого прикасания могут применяться УДТ по способу действия как зависимые от внешнего источника питания (электронные), так и независимые (электромеханические).
А.4.15 Для санитарно-технических кабин, ванных и душевых рекомендуется устанавливать УДТ с номинальным дифференциальным отключающим током до 10 мА, если для них выделена отдельная линия, в остальных случаях, например при применении одной линии для санитарно-технической кабины, кухни и коридора, следует применять УДТ с номинальным дифференциальным отключающим током до 30 мА.
А.4.16 УДТ должно соответствовать требованиям подключения в части сечения проводников, числа жил и материала проводников.
А.5 Особенности применения устройства защитного отключения дифференциального тока для объектов индивидуального строительства
А.5.1 К одноквартирным, дачным и садовым домам должны предъявляться повышенные требования электробезопасности, что связано с их высокой энергонасыщенностью, разветвленностью электрических сетей и спецификой эксплуатации, как самих объектов, так и электрооборудования, поскольку в большинстве случаев электрооборудование не закреплено за квалифицированными, постоянно действующими службами эксплуатации.
А.5.2 При выборе схемы электроснабжения, распределительных щитков и собственно типов УДТ следует обратить внимание на диапазон рабочих температур.
А.5.3 Ограничители перенапряжений или вентильные разрядники следует устанавливать до УДТ.
А.5.4 Для одноквартирных домов УДТ с номинальным дифференциальным отключающим током до 30 мА рекомендуется предусматривать для групповых линий, питающих штепсельные розетки внутри дома, включая подвалы, встроенные и пристроенные гаражи, а также в групповых сетях, питающих ванные комнаты, душевые и сауны. Для устанавливаемых снаружи штепсельных розеток установка УДТ с номинальным дифференциальным отключающим током до 30 мА обязательна.
(в ред.
Изменения N 4, утв. Приказом Минстроя России от 30.12.2020 N 919/пр)
ОБЪЕКТЫ И ОБЪЕМЫ ОСНАЩЕНИЯ АСУД ЖИЛЫХ И ОБЩЕСТВЕННЫХ ЗДАНИЙ
Таблица Б.1
Объект диспетчеризации | Объем информации, управления и связи с объектом | Вид информации, управления и связи с объектом | Дополнительные требования |
ТУ | ТС | ТИ | ДГС |
Жилые дома |
Входная дверь подъезда | Открывание двери | У | | | | |
Длительное незакрытое положение двери | | П | |
ДГС "посетитель - диспетчер" | | | С |
Техническое подполье | Открывание входных дверей | | П | | | |
Затопление | А | | |
Загазованность | А | | |
ДГС "ремонтный персонал - диспетчер" | | | При технической необходимости |
Подъезд, холл или лестнично-лифтовая площадка 1-го этажа | ДГС "ремонтный персонал - жилец - диспетчер" | | | | С | |
Чердак | Открывание входных дверей (люков) | | П | | | |
ДГС "ремонтный персонал - диспетчер" | | |
Электрощитовая, помещения с телевизионным оборудованием, ИТП, узлы учета | Открывание дверей | | П | | | |
ДГС "ремонтный персонал - диспетчер" | | С |
Вводно-распределительные устройства | Срабатывание АВР | | П | | | |
Освещение лестничных клеток, подъездов, номерных знаков, указателей пожарных гидрантов и заграждений | У | К |
Пожарная сигнализация и дымоудаление | Срабатывание системы пожарной сигнализации | | А | | | |
Неисправность системы пожарной сигнализации | П |
Срабатывание противодымной защиты | К |
Деформация здания | Срабатывание СКСКЗ | | А | | | При технической необходимости |
Неисправность СКСКЗ | П |
Канализационный стояк | Засор стояка | | А | | | При наличии датчика |
ОСЗД | Включение в работу | | К | | | |
Пожарные насосы | Включение в работу | | П | | | |
Расширительный бак системы отопления | Аварийный верхний уровень | | А | | | |
Школы и детские дошкольные учреждения |
Пожарная сигнализация | Срабатывание системы пожарной сигнализации | А | | | | |
ОЗДС | Включение в работу | К | | | | |
Поликлиники |
ОЗДС | Включение в работу | К | | | | |
<1> В техническом подполье переговорные устройства (ПУ) ДГС следует предусматривать из расчета одно устройство на три секции с размещением его, как правило, в секции электрощитовой. <2> На чердаке ПУ ДГС следует предусматривать в соответствии с заданием на проектирование. <3> В том числе и на первых нежилых этажах без конкретной технологии на период до их продажи или передачи владельцам. Сокращения: ТУ - телеуправление; ТС - телесигнализация; ТИ - телеизмерение; ДГС - двухсторонняя громкоговорящая связь; ОДС - объединенная диспетчерская служба; ОЗДС - охранно-защитная дератизационная система (предназначена для борьбы с грызунами); СКСКЗ - система контроля строительных конструкций здания, расположенных в карстово-суффозионной зоне; А - авария; К - контроль; П - неисправность; С - связь; У - управление. Примечания 1 Для каждого жилого дома следует зарезервировать возможность подключения не менее одной команды ТУ и трех сигналов ТС. 2 При реконструкции или модернизации систем диспетчеризации без реконструкции лифтов допускается сохранять существующий объем диспетчеризации лифтов. 3 ДГС устанавливается в диспетчерской между диспетчером и всеми рабочими и служебными комнатами ОДС, а также с руководством управляющей компании (УК) в сфере ЖКХ. |
ПРИМЕНЕНИЕ УСТРОЙСТВ ЗАЩИТЫ ОТ ДУГОВОГО ПРОБОЯ (УЗДП)
В ЭЛЕКТРОУСТАНОВКАХ ЖИЛЫХ И ОБЩЕСТВЕННЫХ ЗДАНИЙ
Минстроя России от 30.12.2020 N 919/пр, в ред.
от 28.12.2023 N 1005/пр)
Для обнаружения и предотвращения пожароопасного искрения и дуговых пробоев в электрических сетях и электрооборудовании в целях защиты от пожаров жилых и общественных зданий следует применять УЗДП.
УЗДП должны соответствовать требованиям
ГОСТ IEC 62606 и настоящего приложения.
УЗДП для защиты групповых сетей следует применять в следующих жилых и общественных зданиях:
- дошкольных образовательных организациях;
- общеобразовательных организациях;
- образовательных организациях с наличием интерната;
- спальных корпусов организаций отдыха детей и их оздоровления;
- медицинских организациях, предназначенных для осуществления медицинской деятельности (поликлиниках, больницах, госпиталях, диспансерах и т.д.);
- специализированных домах престарелых и инвалидов неквартирного типа;
- общежитиях;
- хостелах;
- многоквартирных жилых домах высотой более 50 м <*>;
--------------------------------
<*> Под высотой здания принимают высоту (пожарно-техническую), определяемую в соответствии с
СП 1.13130.
- одноквартирных жилых домах площадью более 150 м2.
(п. В.1 в ред.
Изменения N 6, утв. Приказом Минстроя России от 28.12.2023 N 1005/пр)
В.2 Общие требования к устройствам защиты от дугового пробоя (УЗДП)
(п. В.2.1 в ред.
Изменения N 6, утв. Приказом Минстроя России от 28.12.2023 N 1005/пр)
В.2.2 По виду конструкций, по способу монтажа и присоединения к групповым сетям, по числу полюсов и путей тока УЗДП должны соответствовать
пунктам 4.1,
4.2,
4.3 ГОСТ IEC 62606-2016.
В.2.3 УЗДП должны иметь конструкцию, соответствующую требованиям
ГОСТ IEC 62606, обязательным требованиям регламентов, а также маркировку в соответствии с требованием
пункта 6.1 ГОСТ IEC 62606-2016.
(п. В.2.3 в ред.
Изменения N 6, утв. Приказом Минстроя России от 28.12.2023 N 1005/пр)
В.2.3.1 Для снижения риска возникновения пожара УЗДП должны выявлять, фиксировать и подавать сигнал при возникновении:
- дугового пробоя в групповой сети на землю (
пункт 5.1 ГОСТ IEC 62606-2016);
- параллельного дугового пробоя (
пункт 5.1 ГОСТ IEC 62606-2016);
- последовательного дугового пробоя (
пункт 5.1 ГОСТ IEC 62606-2016).
В.2.3.2 Электротехнические характеристики УЗДП должны отвечать требованиям следующих структурных элементов
ГОСТ IEC 62606-2016:
- по номинальной включающей и отключающей способности
Im -
пункт 5.2.4;
- по номинальной включающей и отключающей способности
Im1 -
пункт 5.2.5;
- по номинальному условному току короткого замыкания на одном полюсе
Inс1 -
пункты 5.3.6,
5.5.2;
В.2.4 Коммутационные характеристики, а также предельные значения критерия срабатывания УЗДП для низких и высоких токов дуги должны соответствовать требованиям
подраздела 5.3 ГОСТ IEC 62606-2016.
УЗДП должно иметь механизм свободного расцепления и возможность его включения и отключения вручную.
Указание положения размыкаемых контактов должно обеспечиваться положением органа управления (выключателя) или отдельным индикаторным устройством (
пункты 8.2.1,
8.2.2 ГОСТ IEC 62606-2016).
В.2.5 УЗДП должно иметь конструкцию, отвечающую требованиям
раздела 8 ГОСТ IEC 62606-2016, и маркировку, предусмотренную
подразделами 6.1,
6.2 ГОСТ IEC 62606-2016 и [
7,
статьи 5,
8], а также соответствовать стандартным условиям хранения, монтажа и функционирования (
разделы 7,
8 ГОСТ IEC 62606-2016) при эксплуатации.
В комплекте поставки УЗДП должна быть инструкция, отражающая схемы соединений УЗДП с групповыми сетями и коммутационными аппаратами, условия и особенности его эксплуатации (
пункт 6.2.2 ГОСТ IEC 62606-2016).
В.2.6 Подключение УЗДП к групповым сетям и монтаж в соответствующем щитовом оборудовании следует проводить согласно инструкции изготовителя (
пункт 7.2 ГОСТ IEC 62606-2016). Установку и монтаж УЗДП следует проводить во вводных, этажных лестничных, квартирных щитках жилых и общественных зданий.
В.2.7 УЗДП должно иметь рабочие характеристики, соответствующие требованиям
пункта 8.6.2 ГОСТ IEC 62606-2016, и сохранять работоспособность в случае воздействия сверхтоков и бросков тока (
пункты 8.12,
8.13 ГОСТ IEC 62606-2016).
Цепи управления УЗДП, связанные с главной цепью, не должны повреждаться высоким напряжением постоянного тока, используемым при измерениях изоляции (
пункт 8.4 ГОСТ IEC 62606-2016).
В.2.8 Для обеспечения защиты групповых сетей от дугового пробоя (искрения) УЗДП должно сохранять работоспособность при снижении напряжения до 50% от номинального значения.
Для подтверждения работоспособности УЗДП должно иметь функцию тестирования блока обнаружения дуги в составе устройства, запускаемую вручную и (или) автоматически.
(в ред.
Изменения N 6, утв. Приказом Минстроя России от 28.12.2023 N 1005/пр)
Для проверки работоспособности УЗДП при монтаже и наладке, а также при эксплуатации должна быть обеспечена возможность внешнего контроля работоспособности (тестирования) УЗДП с применением соответствующего набора поверенных технических средств (приборов и приспособлений).
(абзац введен
Изменением N 6, утв. Приказом Минстроя России от 28.12.2023 N 1005/пр)
В случае автоматического тестирования проверка работоспособности УЗДП должна проводиться при его включении и далее с интервалом не реже чем один раз в сутки (
пункт 8.17 ГОСТ IEC 62606-2016).
В.2.9 Конструкция УЗДП должна обеспечивать при нормальной эксплуатации безопасность для потребителя и окружающей среды (
пункт 8.1 ГОСТ IEC 62606-2016). После монтажа и при эксплуатации конструкция устройства должна исключать возможность прикосновения к его частям, находящимся под напряжением (
пункт 8.3 ГОСТ IEC 62606-2016).
В.3 Требования к выбору и применению УЗДП
В.3.1 При защите групповых сетей освещения в общественных зданиях и сооружениях с расчетным током менее 2,5 А установка УЗДП в каждую группу нецелесообразна. При этом следует несколько групповых сетей освещения объединить и присоединить их к одному УЗДП, не изменяя схемы защиты групповых сетей от сверхтока.
Возможность применения УЗДП для защиты нескольких групповых сетей должна определяться его техническими характеристиками, подтвержденными производителем, с соответствующим указанием в технической документации.
(п. В.3.1 в ред.
Изменения N 6, утв. Приказом Минстроя России от 28.12.2023 N 1005/пр)
В.3.2 Во всех вариантах подключения УЗДП к групповым сетям должна быть предусмотрена такая схема установки аппаратов защиты в групповых щитках (этажном, квартирном, обособленного помещения и др.), при которой УЗДП защищено от короткого замыкания автоматическим выключателем или предохранителем (
пункт 5.5.1 ГОСТ IEC 62606-2016).
Номинальный ток УЗДП (некомбинированного исполнения) должен быть не меньше номинального тока автоматического выключателя или предохранителя, к которому присоединены защищаемая данным УЗДП групповая сеть или несколько групповых сетей.
В случае применения комбинированного защитного устройства, сочетающего УЗДП и автоматический выключатель, номинальный ток комбинированного устройства следует выбирать согласно требованиям
ГОСТ Р 50571.4.43.
(п. В.3.2 в ред.
Изменения N 6, утв. Приказом Минстроя России от 28.12.2023 N 1005/пр)
В.3.3 При проектировании в случае необходимости дополнительной защиты отдельных цепей используют каскадное подключение УЗДП, при котором применяют УЗДП со свойством селективности, обеспечивающим первоочередное отключение УЗДП, установленных ближе к электроприемникам.
Свойство селективности указывается производителем в технической документации.
(п. В.3.3 в ред.
Изменения N 6, утв. Приказом Минстроя России от 28.12.2023 N 1005/пр)
В.3.4. Выбор УЗДП должен соответствовать требованиям подключения в части сечения проводников. Требования к УЗДП по присоединению проводников заданы в
пункте 8.2.5 ГОСТ IEC 62606-2016.
В.3.5 Не допускается применять УЗДП, автоматически отключающие потребителя от сети при исчезновении напряжения сети. При возобновлении электроснабжения УЗДП должно продолжать работу без вмешательства извне.
В.3.6 Монтаж УЗДП необходимо проводить в щитовом оборудовании производственных, общественных и жилых зданий согласно требованиям
ГОСТ IEC 61439-1 и
ГОСТ IEC 61439-3.
Требование по применению УЗДП относится к зданиям, включая одноквартирные и блокированные жилые и садовые дома. Варианты схем подключения к распределительным и групповым сетям рассмотрены в
В.4.
В.3.7 При проектировании необходимо учитывать температурный диапазон нормальной эксплуатации УЗДП, определяемый
таблицей 6 и
пунктом 8.5.2 ГОСТ IEC 62606-2016, находящийся в пределах от минус 5 °C до плюс 40 °C, и обеспечить выполнение этого требования.
Допускается учитывать возможность превышения температуры относительно частей УЗДП согласно требованиям
пункта 8.5.1 ГОСТ IEC 62606-2016.
В.3.8 УЗДП, действующие на отключение, не допускается применять в групповых сетях питания электроприемников, отключение которых может привести к созданию непосредственной угрозы для жизни людей: оборудования противопожарной защиты и оборудования медицинского назначения, поддерживающего жизнедеятельность больных.
(п. В.3.8 в ред.
Изменения N 6, утв. Приказом Минстроя России от 28.12.2023 N 1005/пр)
В.3.9 В групповых сетях электроснабжения трехфазных электроприемников следует применять трех- или четырехполюсные УЗДП.
При проектировании в исключительных случаях допускается применение трех одно- или двухполюсных УЗДП для защиты трехфазной групповой сети при условии обеспечения дополнительных мер защиты трехфазных электроприемников от возможного выхода из строя при отключении одной из фаз, например установка в данную сеть реле контроля фаз.
(п. В.3.9 в ред.
Изменения N 6, утв. Приказом Минстроя России от 28.12.2023 N 1005/пр)
В.3.10 Исключен с 29.01.2024. -
Изменение N 6, утв. Приказом Минстроя России от 28.12.2023 N 1005/пр.
В.4 Особенности применения УЗДП при проектировании
(подраздел В.4 в ред.
Изменения N 6, утв. Приказом Минстроя России от 28.12.2023 N 1005/пр)
В.4.1 При проектировании электрических сетей жилых и общественных зданий монтаж и подключение УЗДП следует выполнять в соответствии с требованиями настоящего раздела и
ГОСТ IEC 62606.
При проектировании выбор определенного исполнения УЗДП для применения в электроустановках с различными системами заземления следует осуществлять строго на основании технической документации производителя о применении УЗДП с указанием конкретной системы заземления.
(в ред.
Изменения N 8, утв. Приказом Минстроя России от 29.11.2024 N 808/пр)
УЗДП, имеющие такое конструктивное исполнение, при котором для работы необходимо присоединение нулевого рабочего проводника к соответствующему контактному зажиму (N), не следует применять в электроустановках с изолированной нейтралью (система IT).
В.4.2 Схемы применения УЗДП в электроустановках жилых и общественных зданий представлены на
рисунках В.1 -
В.10.
На схемах УЗДП представлены в виде некомбинированных (отдельных) устройств. Применение комбинированных УЗДП, включающих в себя УЗДП в разных сочетаниях с автоматическим выключателем, УДТ и реле контроля напряжения, не изменяет и не вносит новых требований по выбору УЗДП.
В.4.3 Ограничение максимальной протяженности участка электропроводки до электроприемника, защищаемого УЗДП, следует определять в процессе проектирования на основании технических характеристик УЗДП, приведенных производителем в технической документации.
В.4.4 Схемы применения УЗДП в электроустановках жилых помещений представлены на
рисунках В.1 -
В.8.
К жилым помещениям относятся одноквартирные жилые дома, квартиры в многоквартирном жилом доме, дома в садовых товариществах, обособленные помещения в жилых зданиях для временного проживания.
При проектировании применения УЗДП в местах общего пользования многоквартирного жилого дома следует руководствоваться схемами применения УЗДП в общественном здании.
Примечания
1 При отсутствии распределительных щитков в квартире (квартирных щитков) УЗДП следует устанавливать в этажных щитках. При проектировании в случае необходимости дополнительной защиты допускается одновременная установка УЗДП в распределительных щитках и в уличных щитках учета или этажных щитках.
Возможность установки УЗДП в уличных щитках учета или в этажных щитках должна определяться его техническими характеристиками, подтвержденными производителем, с соответствующим указанием в технической документации.
2 При проектировании допускается применение трех однополюсных или двухполюсных УЗДП вместо одного трехполюсного или четырехполюсного УЗДП на вводе в жилое помещение, при условии, что в электроустановке не применяются трехфазные электроприемники, и их применение не планируется в дальнейшем.
В.4.5 Схемы применения УЗДП в электроустановках общественных зданий представлены на
рисунках В.9,
В.10.
Рисунок В.1 - Применение УЗДП в электроустановке
жилого помещения (вариант схемы). Однофазная система
электроснабжения с применением однополюсных УЗДП
Рисунок В.2 - Применение УЗДП в электроустановке
жилого помещения (вариант схемы). Однофазная система
электроснабжения с применением двухполюсных УЗДП
Рисунок В.3 - Применение УЗДП в электроустановке
жилого помещения (вариант схемы). Трехфазная система
электроснабжения с применением трехполюсных УЗДП
Рисунок В.4 - Применение УЗДП в электроустановке
жилого помещения (вариант схемы). Трехфазная система
электроснабжения с применением четырехполюсных УЗДП
Рисунок В.5 - Применение УЗДП в каждой групповой сети
в электроустановке жилого помещения (вариант схемы).
Однофазная система электроснабжения с применением
однополюсных УЗДП
Рисунок В.6 - Применение УЗДП в каждой групповой сети
в электроустановке жилого помещения (вариант схемы).
Однофазная система электроснабжения
с применением двухполюсных УЗДП
Рисунок В.7 - Применение УЗДП в каждой групповой сети
в электроустановке жилого помещения (вариант схемы).
Трехфазная система электроснабжения с применением
однополюсных и трехполюсных УЗДП
Рисунок В.8 - Применение УЗДП в каждой групповой сети
в электроустановке жилого помещения (вариант схемы).
Трехфазная система электроснабжения с применением
двухполюсных и четырехполюсных УЗДП
Рисунок В.9 - Применение УЗДП в электроустановке
общественного здания. Трехфазная система электроснабжения
с применением однополюсных и трехполюсных УЗДП
Рисунок В.10 - Применение УЗДП в электроустановке
общественного здания. Трехфазная система электроснабжения
с применением двухполюсных и четырехполюсных УЗДП
В.5 Монтаж и подключение УЗДП
(подраздел В.5 в ред.
Изменения N 6, утв. Приказом Минстроя России от 28.12.2023 N 1005/пр)
В.5.1 Монтаж и подключение УЗДП следует проводить в соответствии с требованиями настоящего раздела,
ГОСТ IEC 62606 и технической документацией производителя (паспорта, руководства по монтажу и эксплуатации и т.д.).
Монтаж и подключение УЗДП в групповых сетях при текущем ремонте жилых и общественных зданий допускается выполнять в соответствии с требованиями настоящего раздела без разработки проектной документации.
В.5.2 При проектировании групповых сетей жилых и общественных зданий с применением УЗДП в целях противопожарной защиты с УЗДП следует применять защитные устройства от короткого замыкания, отвечающие требованиям
ГОСТ IEC 60898-1,
ГОСТ IEC 61009-1,
ГОСТ IEC 62423, а также
В.3.2, с которыми УЗДП должно быть согласовано по номинальному току
Iн (
пункты 5.5.1 и
6.2.2 ГОСТ IEC 62606-2016).
В.5.3 Схемы подключения УЗДП совместно с другими устройствами защиты электрических сетей: автоматическим выключателем (АВ), УДТ, автоматическим выключателем дифференциального тока с защитой от сверхтока (АВДТ) - приведены на
рисунке В.11, а) -
е).
В.5.4 УЗДП следует устанавливать в щитовое оборудование, отвечающее требованиям для их применения в жилых и общественных зданиях, по
ГОСТ 32395,
ГОСТ 32396,
ГОСТ 32397.
а) Подключение УЗДП с АВ.
Вариант однополюсного УЗДП и однополюсного АВ
б) Подключение УЗДП с АВ.
Вариант двухполюсного УЗДП и однополюсного АВ
в) Подключение УЗДП с АВДТ.
Вариант однополюсного УЗДП и двухполюсного АВДТ
г) Подключение УЗДП с АВДТ.
Вариант двухполюсного УЗДП и двухполюсного АВДТ
д) Подключение УЗДП с АВ и УДТ. Вариант однополюсного УЗДП,
однополюсного АВ и двухполюсного УДТ
е) Подключение УЗДП с АВ и УДТ. Вариант двухполюсного УЗДП,
однополюсного АВ и двухполюсного УДТ
Рисунок В.11 - Схемы подключения УЗДП совместно с другими
устройствами защиты электрических сетей (АВ, УДТ, АВДТ)
В.5.5 Монтаж и подключение УЗДП должны быть выполнены при отключенном напряжении электромонтажниками, допущенными к выполнению данных работ в порядке, установленном действующим законодательством, с соблюдением техники безопасности.
В.5.6 Перед монтажом и подключением УЗДП в соответствии с технической документацией производителя (паспортом, руководством по монтажу и эксплуатации и т.д.) следует проверить соответствие номинального тока Iн УЗДП и номинальных токов защитных устройств (АВ, УДТ, АВДТ).
В.5.7 Перед установкой УЗДП следует оценить возможность монтажа в объеме щитового оборудования по его габаритным, установочным и присоединительным размерам с учетом габаритных размеров устанавливаемых защитных устройств.
В.5.8 Контактные зажимы УЗДП при подключении к ним внешних проводников (проводов и кабелей) с медными токопроводящими жилами и токопроводящими жилами из алюминиевых сплавов марок 8030 и 8176 должны соответствовать требованиям
ГОСТ 10434,
ГОСТ 17441,
ГОСТ 31604,
ГОСТ IEC 62606, а их конструкция должна отвечать требованиям
пунктов 8.2.4,
8.2.5,
приложений IB,
IC,
J,
K,
L ГОСТ IEC 62606-2016.
В.5.9 УЗДП следует устанавливать в соответствии с требованиями производителя. При этом элементы ручного управления и индикации УЗДП должны быть доступны.
В.5.10 Защищаемая групповая сеть может иметь любые вид электропроводки и состав электроприемников. Ток, протекающий в защищаемой сети, не должен превышать номинальный ток Iн УЗДП.
В.5.11 Перед проведением монтажа в соответствии с требованиями
ГОСТ Р 50462 подключаемые провода должны быть промаркированы или иметь соответствующее цветовое обозначение, которые указывают на определенное назначение проводов для подключения к соответствующим контактным зажимам УЗДП.
Монтаж и подключение УЗДП следует выполнять в соответствии с технической документацией производителя (паспортом, руководством по монтажу и эксплуатации и т.д.).
Примечание - Неправильное подключение УЗДП (изменение порядка подключения кабелей к входным и выходным контактным зажимам, если порядок подключения задан конструкцией УЗДП) может привести к нарушению работы УЗДП, в результате чего защита от дугового пробоя не будет обеспечена.
Для правильного подключения УЗДП на корпусе должна присутствовать маркировка, однозначно определяющая назначение контактных зажимов: подключение питания или нагрузки, подключение фазных проводников и нейтрального проводника (
пункт 6.1 ГОСТ IEC 62606-2016).
В.5.12 С токопроводящих жил на концах проводов или кабелей, предназначенных для присоединения к выводам УЗДП, должна быть удалена изоляция. Длина оголенной ступени жил должна соответствовать значению, указанному в технической документации производителя (паспорте, руководстве по монтажу и эксплуатации и т.д.).
В.5.13 Перед подключением проводов и кабелей к выводам УЗДП при необходимости следует провести подготовку проводов, например облудить жилы проводов или применить кабельные наконечники для многопроволочных жил.
Примечание - Для УЗДП с номинальным током до 32 А включительно специальная подготовка проводников не требуется (
подпункт 8.2.5.4 ГОСТ IEC 62606-2016).
В.5.14 Затяжку винтов крепления токопроводящих жил в контактных зажимах УЗДП следует проводить в соответствии со значениями крутящих моментов (Н·м), указанных в технической документации производителя (паспорте, руководстве по монтажу и эксплуатации и т.д.), и в соответствии с требованиями ГОСТ 10434-82 (приложение 4,
таблица 9).
Примечание - Для болтовых соединений проводников из меди и алюминиевых сплавов марок 8030 и 8176 рекомендуется применять крутящие моменты, значения которых в 1,5 - 1,7 раза превышают установленные в ГОСТ 10434-82 (приложение 4,
таблица 9).
В.5.15 Провода или кабели, соединяющие защитные устройства (АВ, УДТ, АВДТ) и УЗДП внутри групповых щитков, должны иметь сечения токопроводящих жил, соответствующие току, который по ним протекает.
[1] Федеральный
закон N 384-ФЗ от 30 декабря 2009 г. "Технический регламент о безопасности зданий и сооружений"
[2] Федеральный
закон от 23 ноября 2009 г. N 261-ФЗ "Об энергосбережении и о повышении энергетической эффективности и о внесении изменений в отдельные законодательные акты Российской Федерации"
[3] Федеральный
закон от 27 июля 2008 г. N 123-ФЗ "Технический регламент о требованиях пожарной безопасности" (в ред. Федерального закона от 10.07.2012 г. N 117-ФЗ)
[4] Позиция исключена с 29.11.2024. -
Изменение N 8, утв. Приказом Минстроя России от 29.11.2024 N 808/пр
[5]
МУ 5046-89 Профилактическое ультрафиолетовое облучение людей (с применением искусственных источников ультрафиолетового излучения)
[6]
Приказ Федеральной аэронавигационной службы N 119 от 28 ноября 2007 г. Размещение маркировочных знаков
[7]
ТР ТС 004/2011 от 16 августа 2011 г. N 678 Технический Регламент Таможенного Союза "О безопасности низковольтного оборудования"
[8]
СО 153-34.21.122-2003 Инструкция по устройству молниезащиты зданий, сооружений и промышленных коммуникаций
[9] Ссылка исключена с 29.01.2024. -
Изменение N 6, утв. Приказом Минстроя России от 28.12.202 N 1005/пр.
[10] ВСН 370-93 Инструкция по монтажу электропроводок в трубах
(ссылка введена
Изменением N 4, утв. Приказом Минстроя России от 30.12.2020 N 919/пр)
[11] Ссылка исключена с 29.01.2024. -
Изменение N 6, утв. Приказом Минстроя России от 28.12.202 N 1005/пр.
[12]
Указ Президента Российской Федерации от 13 мая 2000 г. N 849 "О полномочном представителе Президента Российской Федерации в федеральном округе"
(ссылка введена
Изменением N 4, утв. Приказом Минстроя России от 30.12.2020 N 919/пр)
[13]
Постановление Правительства Российской Федерации от 19 июня 2020 г. N 890 "О порядке предоставления доступа к минимальному набору функций интеллектуальных систем учета электрической энергии (мощности)"
(позиция введена
Изменением N 8, утв. Приказом Минстроя России от 29.11.2024 N 808/пр)
Ключевые слова: электроустановки; строящиеся, реконструируемые и капитально ремонтируемые жилые и общественные здания |
УДК 696.6:006.354 | |
(в ред.
Изменения N 4, утв. Приказом Минстроя России от 30.12.2020 N 919/пр)
ИСПОЛНИТЕЛЬ АО "ЦНИИПромзданий" | | |
| |
Руководитель разработки | Генеральный директор | В.В.Гранев |
Исполнитель | Заместитель генерального директора | | Д.К.Лейкина |
СОИСПОЛНИТЕЛЬ | | | |
Ассоциация "Росэлектромонтаж" | | | |
Ответственные исполнители | Начальник отдела светотехнических установок | | В.Н.Коротков |
| Главный специалист | | В.И.Берман |
| Главный специалист | | Л.И.Минаева |
Исполнители | | | С.В.Ассур |
Инженеры | | | А.Б.Буре Я.Н.Осипов М.В.Садомцева В.В.Чернов |
| | |
| | |