Главная // Актуальные документы // Приказ
СПРАВКА
Источник публикации
Документ опубликован не был
Примечание к документу
Текст документа приведен в соответствии с публикацией на сайте https://www.minstroyrf.ru/ по состоянию на 13.02.2024.

Документ введен в действие с 29.01.2024.
Название документа
"Изменение N 6 к СП 256.1325800.2016 "Электроустановки жилых и общественных зданий. Правила проектирования и монтажа"
(утв. и введено в действие Приказом Минстроя России от 28.12.2023 N 1005/пр)


"Изменение N 6 к СП 256.1325800.2016 "Электроустановки жилых и общественных зданий. Правила проектирования и монтажа"
(утв. и введено в действие Приказом Минстроя России от 28.12.2023 N 1005/пр)

Утверждено и введено в действие
Приказом Министерства строительства
и жилищно-коммунального хозяйства
Российской Федерации
от 28 декабря 2023 г. N 1005/пр
ИЗМЕНЕНИЕ N 6 К СП 256.1325800.2016
"ЭЛЕКТРОУСТАНОВКИ ЖИЛЫХ И ОБЩЕСТВЕННЫХ ЗДАНИЙ.
ПРАВИЛА ПРОЕКТИРОВАНИЯ И МОНТАЖА"
ОКС 91.140.50
Дата введения
29 января 2024 года
Содержание
Приложение В. Наименование. Изложить в новой редакции:
"Приложение В Применение устройств защиты от дугового пробоя (УЗДП) в электроустановках жилых и общественных зданий".
Введение
Дополнить седьмым абзацем в следующей редакции:
"Изменение N 6 разработано ООО "Ассоциация РЭМ", ООО "Эколайт" (д-р техн. наук, проф. Ю.И. Солуянов, д-р техн. наук, проф. А.И. Федотов, В.И. Берман, канд. техн. наук А.Р. Ахметшин, канд. техн. наук А.Н. Тюрин, канд. техн. наук Н.В. Чернова, В.И. Солуянов, В.А. Халтурин, В.Н. Коротков, А.Г. Гусаров, Ф.Н. Немцов, канд. техн. наук С.Ч. Колесник, С.В. Буланенко, А.И. Павлов), ФАУ "ФЦС" (руководитель разработки - канд. техн. наук О.А. Король, Д.С. Визерский, Д.А. Кирушок, А.А. Бусахин).".
2 Нормативные ссылки
Исключить наименования ссылочных документов:
"ГОСТ 12.1.046-2014 Система стандартов безопасности труда. Строительство. Нормы освещения строительных площадок";
"ГОСТ 12.4.026-2015 Система стандартов безопасности труда. Цвета сигнальные, знаки безопасности и разметка сигнальная. Назначение и правила применения. Общие технические требования и характеристики. Методы испытаний";
"ГОСТ 21.608-2014 Система проектной документации для строительства. Правила выполнения рабочей документации внутреннего электрического освещения";
"ГОСТ 24940-2016 Здания и сооружения. Методы измерения освещенности";
"ГОСТ 28668-90 (МЭК 439-1-85) Низковольтные комплектные устройства распределения и управления. Часть 1. Требования к устройствам, испытанным полностью или частично";
"ГОСТ 31604-2012 (IEC 61545:1996) Соединительные устройства. Устройства для присоединения алюминиевых проводников к зажимам из любого материала и медных проводников к зажимам из алюминиевых сплавов. Общие требования и методы испытаний";
"ГОСТ 32395-2013 Щитки распределительные для жилых зданий. Общие технические условия";
"ГОСТ 32396-2013 Устройства вводно-распределительные для жилых и общественных зданий. Общие технические условия";
"ГОСТ 32397-2013 Щитки распределительные для производственных и общественных зданий. Общие технические условия";
"ГОСТ Р 50345-2010 (МЭК 60898-1:2003) Аппаратура малогабаритная электрическая. Автоматические выключатели для защиты от сверхтоков бытового и аналогичного назначения. Часть 1. Автоматические выключатели для переменного тока";
"ГОСТ Р 50571.3-2009 (МЭК 60364-4-41:2005) Электроустановки низковольтные. Часть 4-41. Требования для обеспечения безопасности. Защита от поражения электрическим током";
"ГОСТ Р 50571.28-2006 (МЭК 60364-7-710:2002) Электроустановки низковольтные. Часть 7-710. Требования к специальным электроустановкам. Электроустановки медицинских помещений";
"ГОСТ Р 50571.29-2009 (МЭК 60364-5-55:2008) Электрические установки зданий. Часть 5-55. Выбор и монтаж электрооборудования. Прочее оборудование";
"ГОСТ Р 51321.1-2007 (МЭК 60439-1:2004) Устройства комплектные низковольтные распределения и управления. Часть 1. Устройства, испытанные полностью или частично. Общие технические требования и методы испытаний";
"ГОСТ Р 51321.5-2011 (МЭК 60439-5:2006) Устройства комплектные низковольтные распределения и управления. Часть 5. Дополнительные требования к низковольтным комплектным устройствам, предназначенным для наружной установки в общедоступных местах (распределительным шкафам и щитам)";
"ГОСТ Р 53316-2009 Кабельные линии. Сохранение работоспособности в условиях пожара. Метод испытания";
"ГОСТ Р 54350-2015 Приборы осветительные. Светотехнические требования и методы испытаний";
"ГОСТ Р 55392-2012 Приборы и комплексы осветительные. Термины и определения";
"ГОСТ Р МЭК 60598-1-2011 (IEC 60598-1:2008) Светильники. Часть 1. Общие требования и методы испытаний";
"ГОСТ IEC 60335-2-30-2013 Безопасность бытовых и аналогичных электрических приборов. Часть 2-30. Частные требования к комнатным обогревателям";
"ГОСТ IEC 60884-1-2013 Соединители электрические штепсельные бытового и аналогичного назначения. Часть 1. Общие требования и методы испытаний";
"ГОСТ IEC 60898-2-2011 Выключатели автоматические для защиты от сверхтоков электроустановок бытового и аналогичного назначения. Часть 2. Выключатели автоматические для переменного и постоянного тока";
"ГОСТ IEC 60947-1-2014 Аппаратура распределения и управления низковольтная. Часть 1. Общие правила";
"ГОСТ IEC 61008-1-2012 Выключатели автоматические, управляемые дифференциальным током, бытового и аналогичного назначения без встроенной защиты от сверхтоков. Часть 1. Общие требования и методы испытаний";
"ГОСТ IEC 61009-1-2014 Выключатели автоматические, срабатывающие от остаточного тока, со встроенной защитой от тока перегрузки, бытовые и аналогичного назначения. Часть 1. Общие правила";
"ГОСТ IEC 61140-2012 Защита от поражения электрическим током. Общие положения безопасности установок и оборудования";
"ГОСТ Р МЭК 61643-12-2011 Устройства защиты от импульсных перенапряжений низковольтные. Часть 12. Устройства защиты от импульсных перенапряжений в низковольтных силовых распределительных системах. Принципы выбора и применения";
"СП 6.13130.2013 Системы противопожарной защиты. Электрооборудование. Требования пожарной безопасности";
"СП 42.13330.2016 "СНиП 2.07.01-89* Градостроительство. Планировка и застройка городских и сельских поселений" (с изменениями N 1, N 2)";
"СП 52.13330.2016 "СНиП 23-05-95* Естественное и искусственное освещение" (с изменением N 1)";
"СП 112.13330.2011 "СНиП 21-01-97* Пожарная безопасность зданий и сооружений";
"СП 118.13330.2012 "СНиП 31-06-2009 Общественные здания и сооружения" (с изменениями N 1, N 2, N 3, N 4)";
"СП 158.13330.2014 "Здания и помещения медицинских организаций. Правила проектирования" (с изменениями N 1, N 2)";
"СанПиН 2.2.1/2.1.1.1278-03 Гигиенические требования к естественному, искусственному и совмещенному освещению жилых и общественных зданий";
"СанПиН 2.1.2.2645-10 Санитарно-эпидемиологические требования к условиям проживания в жилых зданиях и помещениях".
Дополнить раздел наименованиями ссылочных документов в следующей редакции:
"ГОСТ 13843-2019 Катанка из алюминия. Технические условия";
"ГОСТ 21.608-2021 Система проектной документации для строительства. Правила выполнения рабочей документации внутреннего электрического освещения";
"ГОСТ 30988.1-2020 (IEC 60884-1:2013) Соединители электрические штепсельные бытового и аналогичного назначения. Часть 1. Общие требования и методы испытаний";
"ГОСТ 31604-2020 (IEC 61545:1996) Соединительные устройства. Устройства для присоединения алюминиевых проводников к зажимам из любого материала и медных проводников к зажимам из алюминиевых сплавов. Общие требования и методы испытаний";
"ГОСТ 32395-2020 Щитки распределительные для жилых зданий. Общие технические условия";
"ГОСТ 32396-2021 Устройства вводно-распределительные для жилых и общественных зданий. Общие технические условия";
"ГОСТ 32397-2020 Щитки распределительные для производственных и общественных зданий. Общие технические условия";
"ГОСТ 34819-2021 Приборы осветительные. Светотехнические требования и методы испытаний";
"ГОСТ Р 50571.4.41-2022/МЭК 60364-4-41:2017 Электроустановки низковольтные. Часть 4-41. Защита для обеспечения безопасности. Защита от поражения электрическим током";
"ГОСТ Р 53316-2021 Электропроводки. Сохранение работоспособности в условиях стандартного температурного режима пожара. Методы испытаний";
"ГОСТ IEC 60598-1-2017 Светильники. Часть 1. Общие требования и методы испытаний";
"ГОСТ IEC 60898-1-2020 Аппаратура малогабаритная электрическая. Автоматические выключатели для защиты от сверхтоков бытового и аналогичного назначения. Часть 1. Автоматические выключатели для переменного тока";
"ГОСТ IEC 60898-2-2021 Аппаратура малогабаритная электрическая. Автоматические выключатели для защиты от сверхтоков бытового и аналогичного назначения. Часть 2. Автоматические выключатели для переменного и постоянного тока";
"ГОСТ IEC 60947-1-2017 Аппаратура распределения и управления низковольтная. Часть 1. Общие правила";
"ГОСТ IEC 61008-1-2020 Выключатели автоматические, управляемые дифференциальным током, бытового и аналогичного назначения без встроенной защиты от сверхтоков. Часть 1. Общие требования и методы испытаний";
"ГОСТ IEC 61009-1-2020 Выключатели автоматические, срабатывающие от остаточного тока, со встроенной защитой от тока перегрузки, бытовые и аналогичного назначения. Часть 1. Общие правила";
"ГОСТ IEC 61439-2-2015 Устройства комплектные низковольтные распределения и управления. Часть 2. Устройства распределения и управления электроэнергией";
"ГОСТ IEC 61643-12-2022 Устройства защиты от импульсных перенапряжений низковольтные. Часть 12. Устройства защиты от импульсных перенапряжений в низковольтных силовых распределительных системах. Принципы выбора и применения";
"СП 1.13130.2020 Системы противопожарной защиты. Эвакуационные пути и выходы" (с изменением N 1);
"СП 6.13130.2021 Системы противопожарной защиты. Электроустановки низковольтные. Требования пожарной безопасности";
"СП 42.13330.2016 "СНиП 2.07.01-89* Градостроительство. Планировка и застройка городских и сельских поселений" (с изменениями N 1, N 2, N 3, N 4)";
"СП 52.13330.2016 "СНиП 23-05-95* Естественное и искусственное освещение" (с изменениями N 1, N 2)";
"СП 118.13330.2022 "СНиП 31-06-2009 Общественные здания и сооружения" (с изменениями N 1, N 2, N 3)";
"СП 134.13330.2022 Системы электросвязи зданий и сооружений. Основные положения проектирования";
"СП 158.13330.2014 Здания и помещения медицинских организаций. Правила проектирования (с изменениями N 1, N 2, N 3)";
"СП 423.1325800.2018 Электроустановки низковольтные зданий и сооружений. Правила проектирования во взрывоопасных зонах (с изменением N 1)";
"СП 439.1325800.2018 Здания и сооружения. Правила проектирования аварийного освещения";
"СП 522.1325800.2023 Системы фасадные навесные вентилируемые. Правила проектирования, производства работ и эксплуатации";
"СанПиН 1.2.3685-21 Гигиенические нормативы и требования к обеспечению безопасности и (или) безвредности для человека факторов среды обитания";
"СанПиН 2.1.3684-21 Санитарно-эпидемиологические требования к содержанию территорий городских и сельских поселений, к водным объектам, питьевой воде и питьевому водоснабжению, атмосферному воздуху, почвам, жилым помещениям, эксплуатации производственных, общественных помещений, организации и проведению санитарно-противоэпидемических (профилактических) мероприятий".
3 Термины и определения
Пункт 3.1. Дополнить слова: "определения по" ссылкой: "ГОСТ 16703,"; исключить ссылку: "ГОСТ Р 55392,".
Пункт 3.1.1а. Дополнить пунктом 3.1.1б в следующей редакции:
"3.1.1б агломерация городская: Территория города федерального значения, объединенная с территориями иных муниципальных образований (областями), с устойчивыми социальными, экономическими и хозяйственными связями.".
Пункт 3.1.4б. Изложить в новой редакции:
"3.1.4б
выходное отверстие: Отверстие в корпусе осветительного прибора или светопропускающая часть оболочки осветительного прибора, предназначенные для выводы света из осветительного прибора во внешнее пространство.
[ГОСТ 16703-2022, пункт 22]
".
Пункт 3.1.6. Изложить в новой редакции:
"3.1.6
групповая сеть (цепь): Сеть (цепь) от щитков, распределительных пунктов и главного распределительного щита до светильников, штепсельных розеток и других электроприемников.
[ГОСТ 32395-2020, пункт 3.9]
".
Пункт 3.1.12. Изложить в новой редакции:
"3.1.12
защитный угол (светильника): Угол, характеризующий зону, в пределах которой глаз наблюдателя защищен от прямого действия источника света.
[ГОСТ 16703-2022, пункт 83]
".
Пункт 3.1.14. Изложить в новой редакции:
"3.1.14
источник света; ИС: Устройство, излучающее свет в результате преобразования электрической энергии.
[ГОСТ 16703-2022, пункт 8]
".
Пункт 3.1.17. Изложить в новой редакции:
"3.1.17
квартирный групповой щиток: Щиток, устанавливаемый в квартире и предназначенный для присоединения групповых цепей, причем счетчик электроэнергии располагается на этажном учетно-распределительном щитке.
[ГОСТ 32395-2020, пункт 3.1]
".
Пункты 3.1.18, 3.1.26, 3.1.28, 3.1.37, 3.1.70, 3.1.72. Заменить ссылку: "ГОСТ 32395-2013" на "ГОСТ 32395-2020".
Пункт 3.1.20. Изложить в новой редакции:
"3.1.20
ИС МЕГАНОРМ: примечание.
В официальном тексте документа, видимо, допущена опечатка: имеется в виду ГОСТ 16703-2022, а не ГОСТ Р 16703-2022.
кривая силы светы; КСС: Графическое изображение зависимости силы света осветительного прибора от меридиональных и экваториальных углов, получаемое сечением его фотометрического тела плоскостью или поверхностью.
[ГОСТ Р 16703-2022, пункт 53]
".
Пункты 3.1.27, 3.1.29, 3.1.30. Заменить ссылку: "ГОСТ IEC 60947-1-2014" на "ГОСТ IEC 60947-1-2017".
Пункты 3.1.33а, 3.1.34, 3.1.35. Изложить в новой редакции:
"3.1.33а
оптическая ось: Условная прямая, проходящая через световой центр или фокус оптической системы осветительного прибора и принимаемая за начало отсчета угловых координат.
[ГОСТ 16703-2022, пункт 24]
3.1.34
осветительный прибор; ОП: Устройство, предназначенное для освещения и содержащее один или несколько электрических источников света, оптическую систему, элементы крепления источников света внутри ОП, элементы подключения ОП к системе питания, помещенные в корпус с выходным отверстием и узлом крепления, обеспечивающий защиту источников света и оптической системы от внешних воздействий окружающей среды и защиту от прикосновения к токоведущим частям ОП.
[ГОСТ 16703-2022, пункт 1]
3.1.35 осветительная арматура: Устройство, предназначенное для следующих целей: пространственного перераспределения и (или) спектрального преобразования излучения источника света, устранения или снижения слепящего действия источника света и оптической системы осветительного прибора, крепления источника света внутри осветительного прибора и собственно осветительного прибора к опорной поверхности, подключения источника света к системе питания и их устойчивой работы, защиты источника света и оптической системы от механических повреждений и воздействия окружающей среды, защиты от прикосновения к токоведущим частям осветительного прибора.".
Пункт 3.1.43. Заменить слова: "плоскостями или поверхностями" на "плоскостями (поверхностями)"; заменить ссылку: "[ГОСТ Р 55392-2012, пункт 4.2]" на "[ГОСТ 16703-2022, пункт 52]".
Пункт 3.1.45. Заменить слова: "Любой ток" на "Ток"; "номинальное значение" на "номинальный"; заменить ссылку: "ГОСТ IEC 60947-1-2014" на "ГОСТ IEC 60947-1-2017".
Пункт 3.1.46. Заменить слова: "излучение ИС" на "излучение источников света"; заменить ссылку: "[ГОСТ Р 55392-2012, пункт 2.5]" на "[ГОСТ 16703-2022, пункт 5]".
Пункты 3.1.46в, 3.1.47. Изложить в новой редакции:
"3.1.46в
световой центр: Условная точка во внутренней области оптической системы осветительного прибора, при помещении в которую светового центра лампы или при заданном расположении относительно которой ламп в многоламповом осветительном приборе светораспределение последнего в наименьшей степени отличается от расчетного.
[ГОСТ 16703-2022, пункт 23]
3.1.47
светораспределение: Характеристика осветительного прибора, определяющая распределение светового потока осветительного прибора, выражаемое через распределение силы света по направлениям пространства или освещенности по заданной поверхности.
[ГОСТ 16703-2022, пункт 51]
".
Пункт 3.1.55. Заменить слово: "действием" на "соединением"; заменить ссылку: "ГОСТ IEC 60947-1-2014" на "ГОСТ IEC 60947-1-2017".
Пункт 3.1.66. Заменить ссылку: "[ГОСТ Р 55392-2012, пункт 9.14]" на "[ГОСТ 16703-2022, пункт 171]".
Пункт 3.1.71. Заменить слово: "систем" на "сетей"; заменить ссылку: "[ГОСТ 32395-2013, пункт 3.6]" на "[ГОСТ 32395-2020, пункт 3.6]".
4 Общие положения
Пункт 4.1. Заменить слова: "строительных норм и правил" на "документов по стандартизации в области строительства".
Пункт 4.2. Исключить слова: "согласно установленным перечням".
5 Искусственное освещение
Пункт 5.1.1. Изложить в новой редакции:
"5.1.1 Требования к организации рабочего, аварийного и дежурного освещения принимаются в соответствии с СП 52.13330, СП 439.1325800, СП 6.13130.".
Пункты 5.1.2, 5.1.3. Исключить.
Пункт 5.1.4. Заменить ссылки: "СанПиН 2.2.1/2.1.1.1278" на "СанПиН 1.2.3685"; "ГОСТ Р 50571.28" на "ГОСТ Р 50571.7.710"; "ГОСТ Р МЭК 60598-1" на "ГОСТ IEC 60598-1".
Пункт 5.1.5. Исключить.
Пункт 5.1.9. Заменить слово: "должны" на "следует".
Подраздел 5.2. Исключить.
Пункт 5.4.2. Дополнить слова: "с учетом требований 15.44" ссылкой: "и СП 423.1325800".
Пункт 5.4.3. Заменить ссылку: "ГОСТ Р 54350" на "ГОСТ 34819".
Пункт 5.4.4. Заменить ссылку: "ГОСТ Р 54350" на "ГОСТ 34819".
Пункт 5.4.6. Заменить ссылку: "ГОСТ Р 54350" на "ГОСТ 34819".
Пункт 5.4.14. Второе предложение. Исключить слова: "для хранения ценных сгораемых материалов".
Пункт 5.4.17. Первый абзац. Исключить слова: "и балконов".
Подразделы 5.5.3 - 5.5.5. Исключить.
Подраздел 5.5.7. Исключить.
Подпункт 5.5.9.9. Дополнить третьим абзацем в следующей редакции:
"Прокладку кабелей внутри вентилируемого фасада следует выполнять с учетом требований СП 522.1325800.".
Подпункт 5.5.11.9. Заменить ссылку: "ГОСТ Р 50571.3-2009" на "ГОСТ Р 50571.4.41-2022".
6 Электроснабжение
Пункт 6.1. Первый абзац. Изложить в новой редакции:
"6.1 Категории электроприемников по надежности электроснабжения жилых и общественных зданий следует принимать по таблице 6.1 с учетом положений нормативных документов по пожарной безопасности.".
Таблица 6.1. Первая строка. Дополнить перечислением в следующей редакции:
"
Зарядные станции и пункты зарядки для электромобилей
III
".
Пункт 6.2. Заменить слова: "требованиями заказчика" на "заданием на проектирование".
Пункт 6.4. Третий абзац. Изложить в новой редакции:
"Размещение трансформаторных подстанций в одном пожарном отсеке с жилыми помещениями не допускается".
Пункт 6.5. Изложить в новой редакции:
"6.5 Допускается размещение главных распределительных щитов (ГРЩ) за пределами помещения, смежного с помещением с трансформаторами.".
7 Расчетные электрические нагрузки
Пункт 7.1.2. Изложить в новой редакции:
"7.1.2 Расчетная нагрузка питающих линий, вводов и на шинах РУ-0,4 кВ ТП от электроприемников квартир Pкв, кВт, определяется по формуле
Pкв = Pкв.удn + 0,9Pр.с, (1)
где Pкв.уд - удельная нагрузка электроприемников квартир, принимаемая по таблице 7.1 (таблице 7.1а - для Москвы и Московской области) в зависимости от числа квартир, присоединенных к линии (ТП), типа кухонных плит, кВт/квартиру. Удельные электрические нагрузки установлены с учетом того, что расчетная неравномерность нагрузки при распределении ее по фазам трехфазных линий и вводов не превышает 15%;
n - число квартир, присоединенных к линии (ТП);
Pр.с - суммарная расчетная нагрузка силовых электроприемников квартир, кВт, определяемая в соответствии с 7.1.2а, включающая применение в квартирах электрического отопления, электроводонагревателей, бытовых кондиционеров.
Таблица 7.1
Удельная расчетная электрическая нагрузка электроприемников
квартир жилых зданий, кВт/квартиру
Потребители электроэнергии
Удельная расчетная электрическая нагрузка при количестве квартир
1 - 5
6
9
12
15
18
24
40
60
100
200
400
600
1000
1
Квартиры с плитами:
- на природном газе <1>
4,5
2,8
2,3
2
1,8
1,65
1,4
1,2
1,05
0,85
0,77
0,71
0,69
0,67
- на сжиженном газе (в том числе при групповых установках и на твердом топливе)
6
3,4
2,9
2,5
2,2
2
1,8
1,4
1,3
1,08
1
0,92
0,84
0,76
- электрическими, мощностью 8,5 кВт
10
5,1
3,8
3,2
2,8
2,6
2,2
1,95
1,7
1,5
1,36
1,27
1,23
1,19
2
Летние домики на участках садовых товариществ
4
2,3
1,7
1,4
1,2
1,1
0,9
0,76
0,69
0,61
0,58
0,54
0,51
0,46
<1> В зданиях по типовым проектам.
Примечания
1 Удельные расчетные нагрузки для числа квартир, не указанного в настоящей таблице, определяют путем интерполяции.
2 Удельные расчетные нагрузки квартир, кроме квартир повышенной комфортности, учитывают нагрузку освещения общедомовых помещений (лестничных клеток, подполий, технических этажей, чердаков и т.д.), а также нагрузку слаботочных устройств и мелкого силового оборудования (щитки противопожарных устройств, автоматики, учета тепла и т.п., зачистные устройства мусоропроводов, подъемники для инвалидов).
3 Удельные расчетные нагрузки приведены для квартир средней общей площадью 70 м2 (квартиры от 35 до 90 м2) в зданиях по типовым проектам.
4 Расчетную нагрузку для квартир с повышенной комфортностью следует определять в соответствии с заданием на проектирование или в соответствии с заявленной мощностью и коэффициентами спроса и одновременности (таблицы 7.2 и 7.3).
5 Удельные расчетные нагрузки не учитывают покомнатное расселение семей в квартире.
6 Удельные расчетные нагрузки не учитывают общедомовую силовую нагрузку, осветительную и силовую нагрузки встроенных (пристроенных) помещений общественного назначения, нагрузку рекламы, а также применение в квартирах электрического отопления, электроводонагревателей и бытовых кондиционеров (кроме квартир повышенной комфортности). Заявленную мощность квартир повышенной комфортности принимают равной установленной мощности электрооборудования в квартире.
7 Для определения при необходимости значения утреннего или дневного максимума нагрузок следует применять коэффициенты: 0,7 - для жилых домов с электрическими плитами и 0,5 - для жилых домов с плитами на газообразном и твердом топливе.
8 Электрическую нагрузку жилых зданий в период летнего максимума нагрузок можно определить, умножив значение нагрузки зимнего максимума на коэффициенты: 0,7 - для квартир с плитами на природном газе; 0,6 - для квартир с плитами на сжиженном газе и твердом топливе и 0,8 - для квартир с электрическими плитами.
9 Расчетные данные, приведенные в настоящей таблице, допускается корректировать для конкретного применения с учетом местных условий. При наличии документированных и утвержденных в установленном порядке экспериментальных данных расчет нагрузки следует рассчитывать по ним.
10 Нагрузку иллюминации мощностью до 10 кВт в расчетной нагрузке на вводе в здание учитывать не допускается.
Таблица 7.1а
Удельная расчетная электрическая нагрузка электроприемников
квартир жилых зданий для городской агломерации
"г. Москва - Московская область", кВт/квартиру
Потребители электроэнергии
Удельная расчетная электрическая нагрузка при количестве квартир
1 - 5
6
9
12
15
18
24
40
60
100
200
400
600
1000
1500
2000 и более
1
Квартиры с плитами:
- на природном газе <1>
4,5
2,27
1,86
1,62
1,46
1,34
1,13
0,97
0,85
0,69
0,62
0,58
0,56
0,54
0,53
0,52
- электрическими, мощностью 8,5 кВт
10
4,13
3,08
2,6
2,27
2,11
1,78
1,45
1,16
0,97
0,91
0,79
0,67
0,63
0,61
0,59
<1> В зданиях по типовым проектам.
Примечания
1 Удельные расчетные нагрузки для числа квартир, не указанного в настоящей таблице, определяют путем интерполяции.
2 Удельные расчетные нагрузки квартир учитывают нагрузку освещения общедомовых помещений (лестничных клеток, подполий, технических этажей, чердаков и т.д.), а также нагрузку слаботочных устройств и мелкого силового оборудования (щитки противопожарных устройств, автоматики, учета тепла и т.п., зачистные устройства мусоропроводов, подъемники для инвалидов).
3 Удельные расчетные нагрузки приведены для квартир средней общей площадью 70 м2 (квартиры от 35 до 90 м2) в зданиях по типовым проектам.
4 Расчетную нагрузку для квартир с повышенной комфортностью следует определять в соответствии с заданием на проектирование или в соответствии с заявленной мощностью и коэффициентами спроса и одновременности (таблицы 7.2 и 7.3).
5 Удельные расчетные нагрузки не учитывают покомнатное расселение семей в квартире.
6 Удельные расчетные нагрузки не учитывают общедомовую силовую нагрузку, осветительную и силовую нагрузку встроенных (пристроенных) помещений общественного назначения, нагрузку рекламы, а также применение в квартирах электрического отопления, электроводонагревателей и бытовых кондиционеров (кроме элитных квартир).
7 Для определения при необходимости значения утреннего или дневного максимума нагрузок следует применять коэффициенты: 0,7 - для жилых домов с электрическими плитами и 0,5 - для жилых домов с плитами на газообразном и твердом топливе.
8 Электрическую нагрузку жилых зданий в период летнего максимума нагрузок можно определить, умножив значение нагрузки зимнего максимума на коэффициенты: 0,7 - для квартир с плитами на природном газе; 0,6 - для квартир с плитами на сжиженном газе и твердом топливе и 0,8 - для квартир с электрическими плитами.
9 Расчетные данные, приведенные в настоящей таблице, допускается корректировать для конкретного применения с учетом местных условий. При наличии документированных и утвержденных в установленном порядке экспериментальных данных расчет нагрузки следует рассчитывать по ним.
10 Нагрузка иллюминации мощностью до 10 кВт в расчетной нагрузке на вводе в здание учитывать не допускается.
При наличии в жилом здании системы кондиционирования нагрузки от системы кондиционирования Pу.с.к, кВт, следует принимать на основании расчетной холодильной мощности в период вечернего максимума потребляемой нагрузки.
При отсутствии исходных данных для расчета нагрузки от системы кондиционирования допускается выполнять расчет нагрузок от систем кондиционирования через назначение доли кондиционируемых жилых комнат по таблице 7.1б.
Таблица 7.1б
Доля кондиционируемых жилых комнат
Группа населенных пунктов
Климатические подрайоны строительства
IА, IВ, IД
IIБ, IIВ, IIГ
IIIА, IIIБ IIIВ
IVА, IVБ, IVВ, IVГ
1 Крупнейшие и крупные населенные пункты
0,35
0,60
0,80
1
2 Большие, средние, малые
0,25
0,45
0,60
0,75
Примечания
1 Климатические подрайоны строительства следует определять в соответствии с СП 131.13330.
2 Группу населенных пунктов принимают в соответствии с СП 42.13330.
3 Для климатических подрайонов строительства IБ, IГ, IIА долю жилых комнат, оборудуемых бытовыми кондиционерами, следует принимать по заданию на проектирование.
При определении расчетной нагрузки питающих линий нагрузку от систем кондиционирования следует учитывать, как нагрузку от силовых электроприемников.
При отсутствии данных установленную электрическую мощность кондиционирования для одного помещения допускается принимать равной 0,9 кВт.
Расчетный коэффициент спроса Kс от систем кондиционирования принимают по количеству кондиционируемых жилых помещений в соответствии с таблицей 7.5 (строка 1), расчетный коэффициент несовпадения максимумов Kнм принимают равным 1, расчетный коэффициент загрузки Kз допускается принимать в диапазоне от 0,7 до 1, при этом значение Kз = 0,7 принимают при средней площади жилых комнат до 16 м2, значение Kз = 1 - свыше 25 м2, в остальных случаях значение Kз определяют методом интерполяции.
Нагрузки от системы кондиционирования следует учитывать при определении электрических нагрузок жилых домов в период летнего максимума.
Таблица 7.2
Коэффициенты спроса для квартир повышенной комфортности
Заявленная мощность, кВт
До 14
20
30
40
50
60
70 и более
Коэффициент спроса
0,8
0,65
0,6
0,55
0,5
0,48
0,45
Таблица 7.3
Коэффициенты одновременности для квартир
повышенной комфортности Kо
Характеристика квартир
Kо при числе квартир
1 - 5
6
9
12
15
18
24
40
60
100
200
400
600 и более
С электроплитами
1
0,51
0,38
0,32
0,29
0,26
0,24
0,2
0,18
0,16
0,14
0,13
0,11
Расчетную нагрузку питающих линий, вводов и на шинах РУ-0,4 кВ ТП от электроприемников квартир повышенной комфортности Pр.кв, кВт, определяют по формуле
Pр.кв = PквnKо, (2)
где Pкв - нагрузка электроприемников квартир повышенной комфортности;
n - число квартир;
Kо - коэффициент одновременности для квартир повышенной комфортности.".
Дополнить пунктом 7.1.2а в следующей редакции:
"7.1.2а Расчетную нагрузку от силовых электроприемников жилых зданий Pр.с, кВт, следует определять по формуле
, (2а)
где Kс - расчетный коэффициент спроса;
Kз - расчетный коэффициент загрузки;
Kнм - расчетный коэффициент несовпадения максимумов;
Pу.с - установленная мощность однотипных (одинаковых по технологическому назначению и близких по значению установленной мощности) электроприемников (кроме противопожарных устройств и резервного оборудования), кВт.
Kз, Kнм принимаются равными 1, если иное не установлено положениями настоящего свода правил или иными нормативными документами.".
Пункт 7.1.10. Формула (6). Экспликация. Определение kп.к. Изложить в новой редакции:
"kп.к - поправочный коэффициент для определения расчетной нагрузки жилого дома, принимается по таблице 7.5а для значений Pкв, рассчитанных по значениям из таблицы 7.1 с количеством квартир 6 и более (для значений Pкв, рассчитанных по значениям из таблицы 7.1а, поправочный коэффициент kп.к не применяется).".
Пункт 7.2.20. Дополнить пунктом 7.2.21 в следующей редакции:
"7.2.21 Для потребителей с установленными суточными графиками потребления электроэнергии допускается применение накопителей электроэнергии, позволяющих обеспечить снижение расчетной присоединяемой нагрузки.".
Дополнить раздел 7 подразделом 7.4 в следующей редакции:
"7.4 Зарядные станции и пункты зарядки для электромобилей
7.4.1 Зарядные станции и пункты зарядки для электромобилей, интегрированные в жилые и общественные здания, как приемники электроэнергии подразделяют на следующие категории:
- тип 1 - номинальный ток не превышает 16 А, номинальное напряжение 230 В при однофазном и 400 В при трехфазном подключении (бытовые зарядные станции);
- тип 2 - номинальный ток не превышает 32 А, номинальное напряжение 230 В при однофазном и 400 В при трехфазном подключении (медленные зарядные станции);
- тип 3 - номинальный ток не превышает 63 А, номинальное напряжение 400 В при трехфазном подключении (стандартные зарядные станции);
- тип 4 - номинальный ток превышает 63 А, номинальное напряжение 400 В при трехфазном подключении (быстрые зарядные станции).
7.4.2 Объединение зарядных станций и пунктов зарядки для электромобилей в групповые цепи не допускается.
Подключение зарядных станций и пунктов зарядки электромобилей типов 3, 4 следует осуществлять непосредственно от ВРУ, ГРЩ здания или РУ-0,4 кВ ТП.
Размещение зарядных станций и пунктов зарядки для электромобилей типа 4 во встроенных, пристроенных и встроенно-пристроенных помещениях жилых и общественных зданий не допускается.
Допускается подключение зарядных станций и пунктов зарядки для электромобилей типов 1, 2 от групповых осветительных или силовых щитков.
7.4.3 Зарядные станции и пункты зарядки для электромобилей типов 2, 3 следует предусматривать для стоянок персонала общественных зданий. Зарядные станции типов 1 - 3 следует предусматривать для частных парковочных мест в многоквартирных жилых зданиях и отдельно стоящих многоуровневых стоянках автомобилей.
Для гостевых стоянок автомобилей общественных зданий следует предусматривать зарядные станции и пункты зарядки для электромобилей типов 3, 4.
Применение зарядных станций и пунктов зарядки для электромобилей типа 1 следует предусматривать по заданию на проектирование для индивидуальных и блокированных жилых домов.
7.4.4 При определении расчетных нагрузок зданий зарядные станции и пункты зарядки для электромобилей следует относить к силовому оборудованию.
Количество мест для хранения электромобилей, оборудуемых зарядными устройствами для электромобилей, определяется в соответствии с СП 42.13330, региональными нормативными правовыми актами по градостроительному проектированию и профильными нормативными документами, регулирующими правила проектирования зданий и сооружений.
При расчете нагрузок от зарядных станций и пунктов зарядки для электромобилей следует руководствоваться коэффициентами спроса Kс.з, приведенными в таблице 7.15.
Таблица 7.15
Коэффициенты спроса Kс.з зарядных станций и пунктов зарядки
для электромобилей для жилых зданий
Тип зарядных станций
Kс.з зарядных станций при числе электроприемников
1 - 3
4 - 8
9 - 15
16 - 25
26 - 40
Свыше 40
Тип 1
1
0,9
0,8
0,68
0,6
0,55
Тип 2
1
0,88
0,73
0,64
0,55
0,47
Тип 3
1
0,78
0,64
0,52
0,43
0,36
Тип 4
0,9
0,64
0,49
0,37
0,28
0,2
7.4.5 При наличии автоматизации, регулирующей отпуск свободной мощности на нужды зарядной инфраструктуры согласно графику пиковых нагрузок жилых зданий, при определении расчетных нагрузок жилых зданий нагрузку от зарядной инфраструктуры допускается принимать коэффициент несовпадения максимумов Kнм.з равным 0,25 к основной нагрузке жилых зданий.".
8 Схемы электрических сетей
Пункт 8.7. Заменить слова: "лифтов, предназначенные для преимущественного применения пожарными подразделениями," на "лифтов для транспортирования подразделений пожарной охраны".
Пункт 8.8. Третий абзац. Изложить в новой редакции:
"Для предотвращения пожаров, которые могут возникнуть вследствие искрения и дуговых пробоев в электрических сетях и электрооборудовании, в числе устройств противопожарной защиты следует применять УЗДП в соответствии с требованиями приложения В и ГОСТ IEC 62606. УЗДП могут быть комбинированными, т.е. дополнительно обеспечивать защиту от токов короткого замыкания (функция автоматического выключателя) и (или) защиту от повышенного значения дифференциального тока (функция УДТ), а также защиту от недопустимого превышения напряжения и возможность дистанционного отключения УЗДП, например по сигналу "Пожар" от систем противопожарной защиты. При этом должна обеспечиваться индикация, однозначно определяющая причину отключения комбинированного устройства.".
Пункт 8.9. Изложить в новой редакции:
"8.9 При наличии в здании электроприемников, требующих первой категории по степени надежности электроснабжения, допускается не выполнять питание всего здания от двух независимых источников с устройством АВР на вводе в случае более низкой требуемой степени обеспечения надежности электроснабжения других электроприемников в соответствии с таблицей 6.1.".
Пункт 8.10. Пятый абзац. Исключить.
Пункт 8.11. Исключить.
Пункт 8.12.8. Первый абзац. Второе перечисление. Последнее предложение. Исключить.
Пункт 8.12.9. Исключить.
Пункт 8.12.11. Исключить.
10 Групповые цепи
Пункт 10.2. Первое, второе предложения. Изложить в новой редакции:
"10.2 В квартирах следует предусматривать отдельные линии для питания штепсельных розеток жилых комнат, освещения, штепсельных розеток электроприемников кухни и коридора. В обоснованных случаях допускается уменьшать количество линий до двух.".
Пункт 10.3. Исключить.
Пункт 10.9. Изложить в новой редакции:
"10.9 В помещениях и на путях эвакуации людей, оснащенных несколькими светильниками аварийного освещения, групповые линии которых проходят по двум пожарным отсекам, провода к светильникам должны поочередно подводиться от двух отдельных цепей таким образом, чтобы вдоль пути эвакуации поддерживался определенный уровень освещенности даже в случае выхода из строя одной из цепей.".
Пункт 10.11. Второй абзац. Заменить слова: "освещения и вводные" на "освещения вводные".
Пункт 10.13. Изложить в новой редакции:
"10.13 В общественных зданиях, квартирах жилых домов, индивидуальных домах и т.п. для защиты групповых линий, питающих бытовые розеточные сети, должны предусматриваться УДТ с номинальным отключающим дифференциальным током срабатывания не более 30 мА. Установка УДТ для электроприемников, отключение которых может привести к ситуациям, опасным для потребителей (отключению систем противопожарной защиты, систем обеспечения безопасности зданий, систем поддержания жизнедеятельности больных, потере информации и т.п.), не допускается.
Для повышения уровня защиты от возгорания при замыканиях на заземленные части, когда значение тока недостаточно для срабатывания максимальной токовой защиты, на вводе в квартиру, индивидуальный дом и т.п. следует предусматривать установку УДТ с номинальным отключающим дифференциальным током срабатывания до 300 мА.
При установке УДТ последовательно следует выполнять требования селективности в соответствии с ГОСТ Р 50571.5.53. При двух- и многоступенчатой схемах номинальный отключающий дифференциальный ток УДТ, расположенного ближе к источнику питания, должен быть не менее чем в три раза больше, чем у УДТ, расположенного ближе к потребителю. Также УДТ, расположенные ближе к источнику питания, должны иметь выдержку времени отключения (тип S согласно ГОСТ IEC 61008-1 и ГОСТ IEC 61009-1).".
Раздел 10 дополнить пунктами 10.14, 10.14.1, 10.14.2, 10.15 в следующей редакции:
"10.14 Для обнаружения и предотвращения пожароопасного искрения и дуговых пробоев в электрических сетях и электрооборудовании в зданиях и сооружениях, указанных в В.1 приложения В, в целях защиты от пожаров следует применять УЗДП, которые должны соответствовать требованиям приложения В и ГОСТ IEC 62606.
Целесообразность применения УЗДП в зданиях и сооружениях помимо указанных в В.1 приложения В определяют в ходе проектирования электроснабжения жилых и общественных зданий с учетом требований пожарной безопасности и задания на проектирование.
10.14.1 В общественных зданиях и сооружениях, указанных в В.1 приложения В, УЗДП следует применять для защиты всех групповых сетей, за исключением групповых сетей до электроприемников, отключение которых может привести к созданию непосредственной угрозы для жизни людей: оборудования противопожарной защиты и оборудования медицинского назначения, поддерживающего жизнедеятельность больных.
10.14.2 В многоквартирных жилых домах, указанных в В.1 приложения В, УЗДП следует применять для защиты групповых сетей каждого жилого помещения (квартиры) и мест общего пользования многоквартирного жилого дома.
УЗДП, применяемые для защиты групповых сетей жилого помещения, следует размещать в квартирном щитке или поэтажном распределительном щитке.
Применение УЗДП в жилых зданиях в каждой групповой сети обособленного жилого помещения или применение одного УЗДП для одновременной защиты нескольких групповых сетей определяют в ходе проектирования на основании задания на проектирование.
Присоединение к одному УЗДП нескольких групповых сетей, относящихся к разным жилым помещениям, не допускается.
10.15 Протяженности и сечение электропроводок групповых цепей следует определять из условия, что ток короткого замыкания на наиболее удаленном от аппарата защиты групповой линии потребителе должен не менее чем в десять раз превышать номинальный рабочий ток аппарата защиты.".
12 Защита внутренних электрических сетей напряжением до 1000 В и выбор сечения проводников
Пункт 12.2. Третье перечисление. Изложить в новой редакции:
"- УЗДП с номинальным рабочим током не менее номинального рабочего тока автоматического выключателя, защищающего ту же групповую сеть от сверхтоков и токов короткого замыкания.".
Пункт 12.3. Второй абзац. Изложить в новой редакции:
"В качестве вводных аппаратов щитков жилых и общественных зданий следует применять автоматические выключатели и выключатели-разъединители, УДТ со встроенной защитой от сверхтока.".
Шестой абзац. Изложить в новой редакции:
"На вводах во ВРУ следует применять автоматические выключатели и выключатели-разъединители и комбинации их с предохранителями, а также разрядники (ограничители перенапряжений); на вводах во ВРУ с АВР - контакторы или автоматические выключатели с приводом.".
14 Вводно-распределительные устройства, главные распределительные щиты, распределительные щиты, пункты и щитки
Пункт 14.1. Третий абзац. Заменить слова: "с пределом огнестойкости не менее 0,75 ч" на слова "1-го типа".
Пятый абзац. Второе перечисление. Заменить слово: "токоведущие" на "внешние токоведущие".
Шестой абзац. Заменить слова: "системы дымоудаления" на "систем противодымной вентиляции".
Пункт 14.6. Второй абзац. Изложить в новой редакции:
"Размещение щитков на путях эвакуации следует принимать в соответствии с СП 1.13130.".
Дополнить пункт 14.6 абзацем в следующей редакции:
"Аппараты ручного оперативного управления (переключатели, кнопки) следует располагать на высоте не более 1900 мм и не менее 700 мм от уровня пола. Измерительные приборы следует устанавливать таким образом, чтобы шкала каждого из приборов находилась на высоте 1000 - 1800 мм от пола.".
Пункт 14.11. Дополнить пунктом 14.12 в следующей редакции:
"14.12 Для зданий с интегрируемой зарядной инфраструктурой при наличии зарядных станций типов 3, 4 в помещении ВРУ следует предусматривать возможность устройства дополнительной панели для подключения зарядных станций по мере увеличения доли электротранспорта.".
15 Устройство внутренних электрических сетей
Пункт 15.3. Изложить в новой редакции:
"15.3 Внутренние распределительные электрические сети должны быть не распространяющими горение, и их следует выполнять кабелями и проводами с токопроводящими жилами из меди, алюминия электротехнического назначения, а также из алюминиевых сплавов марок 8030 и 8176, шинопроводами с медными и алюминиевыми шинами в соответствии с требованиями [4], ГОСТ 31565, ГОСТ Р 50571.5.52, ГОСТ 13843, ГОСТ Р 58019, СП 76.13330, а также требованиями электро- и пожарной безопасности.
В случае применения в питающих и распределительных сетях кабелей и проводов с токопроводящими жилами из алюминия электротехнического назначения и алюминиевых сплавов марок 8030 и 8176, шинопроводов с алюминиевыми шинами сечение проводников должно быть не менее 16 мм2.
В случае применения в сетях электроснабжения отдельных электроприемников, относящихся к инженерному оборудованию зданий (насосы, вентиляторы, калориферы, установки кондиционирования воздуха и т.п.), кроме оборудования противопожарных установок, кабелей и проводов с токопроводящими жилами из алюминия электротехнического назначения или алюминиевых сплавов марок 8030 и 8176, сечение проводников должно быть не менее 2,5 мм2.
Прокладывать электропроводки вблизи источников тепла, дыма или пара, оказывающих вредное влияние, не следует, если они не защищены от такого воздействия экранированием или расположением вне зоны воздействия тепла.
Провода электрических сетей силовых электроприемников постирочных цехов и помещений для приготовления растворов в прачечных должны быть с медной жилой в пластмассовой изоляции и прокладываться в полу замоноличенными в пластмассовых трубах. Выводы труб выше уровня пола и на участке до 1 м в подготовке пола следует выполнять в стальных трубах, защищенных от коррозии и проникания в них воды.
Для предупреждения пожаров, которые могут возникнуть вследствие искрения и дуговых пробоев в местах нарушения нормального электрического контакта в электрических сетях и электроустановках, следует применять УЗДП.".
Пункт 15.10. Исключить ссылку: "ГОСТ 28668,".
Пункт 15.12. Первый абзац. Изложить в новой редакции:
"15.12 Запрещается размещение электропроводки в шахтах лифтов, за исключением электропроводки, обслуживающей лифты.".
Второй абзац. Второе предложение. Изложить в новой редакции:
"Допускается открытая прокладка одиночных кабелей.".
Пункт 15.15. Первый абзац. Первое перечисление. Второе предложение. Изложить в новой редакции:
"Допускается при прокладке кабелей применять металлические погонажные электромонтажные изделия (трубы, короба, лотки и т.д.), а также прокладку самостоятельных кабелей на скобах; при этом расстояние между самостоятельными кабелями, проложенными на скобах, не нормируется;".
Пункт 15.17. Первый абзац. Первое, второе перечисления. Исключить.
Пункт 15.21. Таблица 15.2. Графа "Здания". Третья строка. Заменить ссылку: "СП 112.13330" на "[3]".
Пункт 15.42. Второй абзац. Заменить ссылку: "ГОСТ Р 50571.3-2009" на "ГОСТ Р 50571.4.41".
Пункт 15.47. Третий абзац. Заменить ссылки: "ГОСТ Р 50345" на "ГОСТ IEC 60898-1"; "ГОСТ IEC 60884-1" на "ГОСТ 30988.1".
16 Электрическое отопление и горячее водоснабжение
Пункты 16.2, 16.3. Исключить.
Пункт 16.6. Второе - четвертое предложения. Исключить.
Пункт 16.7. Исключить.
Пункт 16.8. Третье предложение. Исключить.
Пункт 16.9. Исключить.
Пункт 16.11. Исключить.
17 Учет электроэнергии, измерительные приборы
Пункт 17.5. Дополнить вторым абзацем в следующей редакции:
"Следует предусматривать индивидуальные приборы коммерческого учета для зарядных станций, интегрированных в электроустановки жилых зданий.".
18 Основные технические требования к автоматизированным системам учета, контроля и управления
Пункт 18.1.3. Изложить в новой редакции:
"18.1.3 Проектирование АСУД и АСКУЭР следует осуществлять согласно настоящему своду правил, с учетом положений СП 134.13330.".
19 Защитные меры безопасности
Пункт 19.1. Седьмое перечисление. Изложить в новой редакции:
"- применение изоляционного разгораживания (секционирования) токоведущих частей. Для низковольтных комплектных устройств типа ВРУ следует применять изоляционное разгораживание (секционирование) вида не менее 2b для электроустановок типа ГРЩ на токи до 1600 А и вида не менее 3b для электроустановок типа ГРЩ на токи свыше 1600 А в соответствии с требованиями ГОСТ IEC 61439-2-2015 (таблица 104).".
Пункт 19.5. Заменить ссылки: "ГОСТ IEC 61140, ГОСТ Р 50571.3," на "ГОСТ Р 50571.4.41,"; дополнить ссылку: "ГОСТ IEC 62606" ссылкой: ", ГОСТ IEC 61643-12".
Приложение А Рекомендации по применению устройств защитного отключения дифференциального тока в электроустановках жилых зданий
Пункт А.1.6. Второй абзац. Заменить ссылку: "ГОСТ Р 50571.3" на "ГОСТ Р 50571.4.41".
Приложение В Рекомендации по применению устройств защиты от дугового пробоя (УЗДП) в электроустановках жилых и общественных зданий
Наименование. Изложить в новой редакции:
"Приложение В Применение устройств защиты от дугового пробоя (УЗДП) в электроустановках жилых и общественных зданий".
В.1 Общая часть
Изложить в новой редакции:
"В.1 Общая часть
Для обнаружения и предотвращения пожароопасного искрения и дуговых пробоев в электрических сетях и электрооборудовании в целях защиты от пожаров жилых и общественных зданий следует применять УЗДП.
УЗДП должны соответствовать требованиям ГОСТ IEC 62606 и настоящего приложения.
УЗДП для защиты групповых сетей следует применять в следующих жилых и общественных зданиях:
- дошкольных образовательных организациях;
- общеобразовательных организациях;
- образовательных организациях с наличием интерната;
- спальных корпусов организаций отдыха детей и их оздоровления;
- медицинских организациях, предназначенных для осуществления медицинской деятельности (поликлиниках, больницах, госпиталях, диспансерах и т.д.);
- специализированных домах престарелых и инвалидов неквартирного типа;
- общежитиях;
- хостелах;
- многоквартирных жилых домах высотой более 50 м <*>;
--------------------------------
<*> Под высотой здания принимают высоту (пожарно-техническую), определяемую в соответствии с СП 1.13130.".
- одноквартирных жилых домах площадью более 150 м2.
В.2 Общие требования к устройствам защиты от дугового пробоя (УЗДП)
Пункт В.2.1. Изложить в новой редакции:
"В.2.1 УЗДП должны соответствовать требованиям ГОСТ IEC 62606.".
Пункт В.2.3. Изложить в новой редакции:
"В.2.3 УЗДП должны иметь конструкцию, соответствующую требованиям ГОСТ IEC 62606, обязательным требованиям регламентов, а также маркировку в соответствии с требованием пункта 6.1 ГОСТ IEC 62606-2016.".
Пункт В.2.8. Второй абзац. Изложить в новой редакции:
"Для подтверждения работоспособности УЗДП должно иметь функцию тестирования блока обнаружения дуги в составе устройства, запускаемую вручную и (или) автоматически.".
Дополнить второй абзац абзацем в следующей редакции:
"Для проверки работоспособности УЗДП при монтаже и наладке, а также при эксплуатации должна быть обеспечена возможность внешнего контроля работоспособности (тестирования) УЗДП с применением соответствующего набора поверенных технических средств (приборов и приспособлений).".
В.3 Требования к выбору и применению УЗДП
Пункты В.3.1 - В.3.3. Изложить в новой редакции:
"В.3.1 При защите групповых сетей освещения в общественных зданиях и сооружениях с расчетным током менее 2,5 А установка УЗДП в каждую группу нецелесообразна. При этом следует несколько групповых сетей освещения объединить и присоединить их к одному УЗДП, не изменяя схемы защиты групповых сетей от сверхтока.
Возможность применения УЗДП для защиты нескольких групповых сетей должна определяться его техническими характеристиками, подтвержденными производителем, с соответствующим указанием в технической документации.
В.3.2 Во всех вариантах подключения УЗДП к групповым сетям должна быть предусмотрена такая схема установки аппаратов защиты в групповых щитках (этажном, квартирном, обособленного помещения и др.), при которой УЗДП защищено от короткого замыкания автоматическим выключателем или предохранителем (пункт 5.5.1 ГОСТ IEC 62606-2016).
Номинальный ток УЗДП (некомбинированного исполнения) должен быть не меньше номинального тока автоматического выключателя или предохранителя, к которому присоединены защищаемая данным УЗДП групповая сеть или несколько групповых сетей.
В случае применения комбинированного защитного устройства, сочетающего УЗДП и автоматический выключатель, номинальный ток комбинированного устройства следует выбирать согласно требованиям ГОСТ Р 50571.4.43.
В.3.3 При проектировании в случае необходимости дополнительной защиты отдельных цепей используют каскадное подключение УЗДП, при котором применяют УЗДП со свойством селективности, обеспечивающим первоочередное отключение УЗДП, установленных ближе к электроприемникам.
Свойство селективности указывается производителем в технической документации.".
Пункты В.3.8, В.3.9. Изложить в новой редакции:
"В.3.8 УЗДП, действующие на отключение, не допускается применять в групповых сетях питания электроприемников, отключение которых может привести к созданию непосредственной угрозы для жизни людей: оборудования противопожарной защиты и оборудования медицинского назначения, поддерживающего жизнедеятельность больных.
В.3.9 В групповых сетях электроснабжения трехфазных электроприемников следует применять трех- или четырехполюсные УЗДП.
При проектировании в исключительных случаях допускается применение трех одно- или двухполюсных УЗДП для защиты трехфазной групповой сети при условии обеспечения дополнительных мер защиты трехфазных электроприемников от возможного выхода из строя при отключении одной из фаз, например установка в данную сеть реле контроля фаз.".
Пункт В.3.10. Исключить.
В.4 Особенности подключения УЗДП при проектировании
Изложить в новой редакции:
"В.4 Особенности применения УЗДП при проектировании
В.4.1 При проектировании электрических сетей жилых и общественных зданий монтаж и подключение УЗДП следует выполнять в соответствии с требованиями настоящего раздела и ГОСТ IEC 62606.
При проектировании выбор определенного исполнения УЗДП для применения в электроустановках с различными системами заземления следует осуществлять строго на основании технической документации производителя о применении УЗДП с указанием конкретной системы заземления [4, глава 1.7].
УЗДП, имеющие такое конструктивное исполнение, при котором для работы необходимо присоединение нулевого рабочего проводника к соответствующему контактному зажиму (N), не следует применять в электроустановках с изолированной нейтралью (система IT).
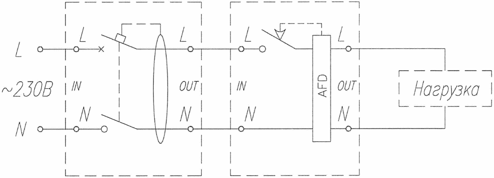
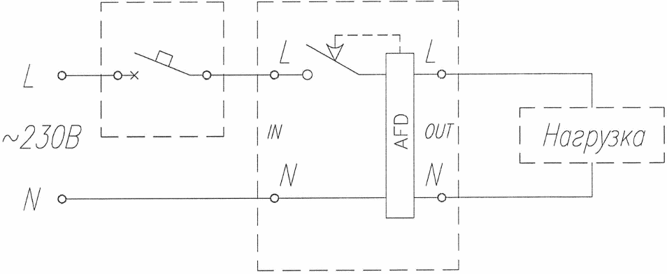
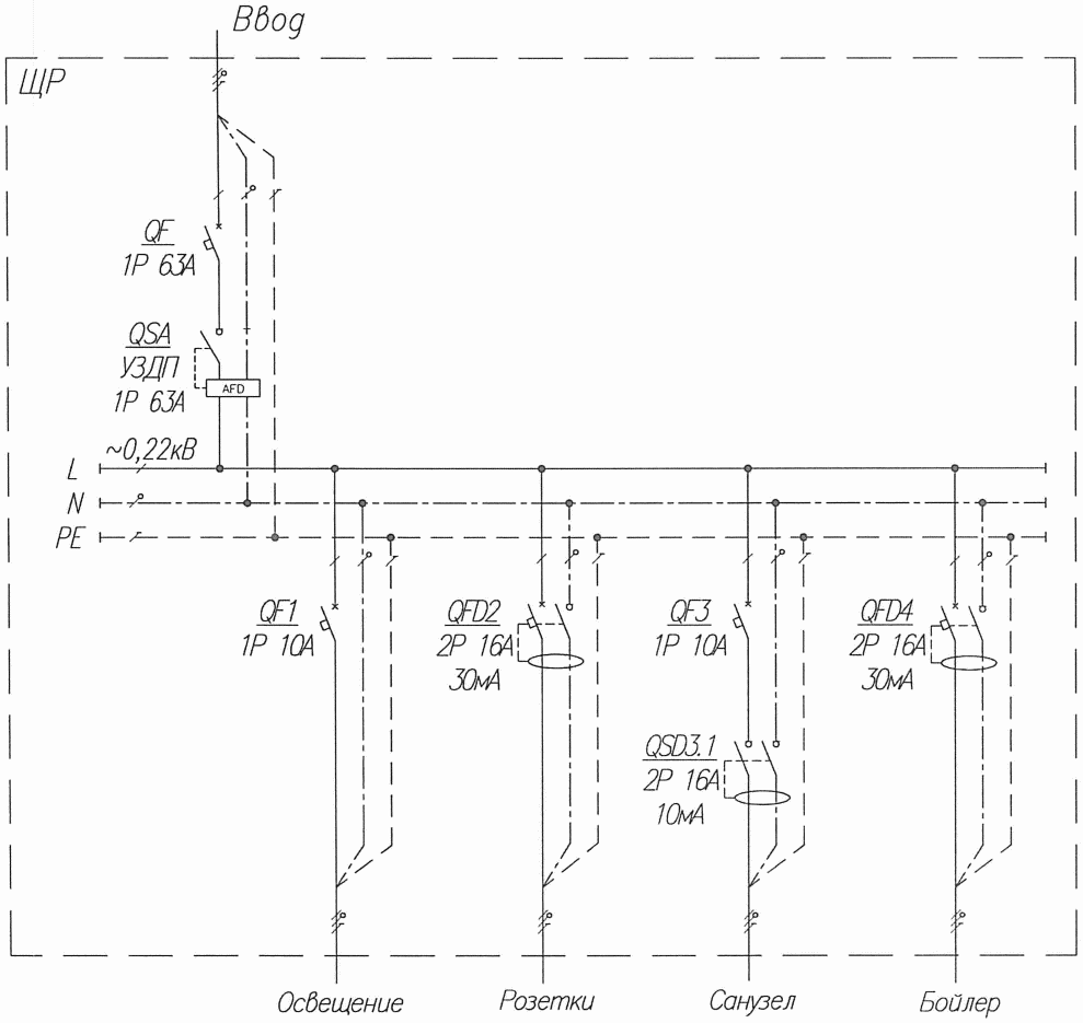
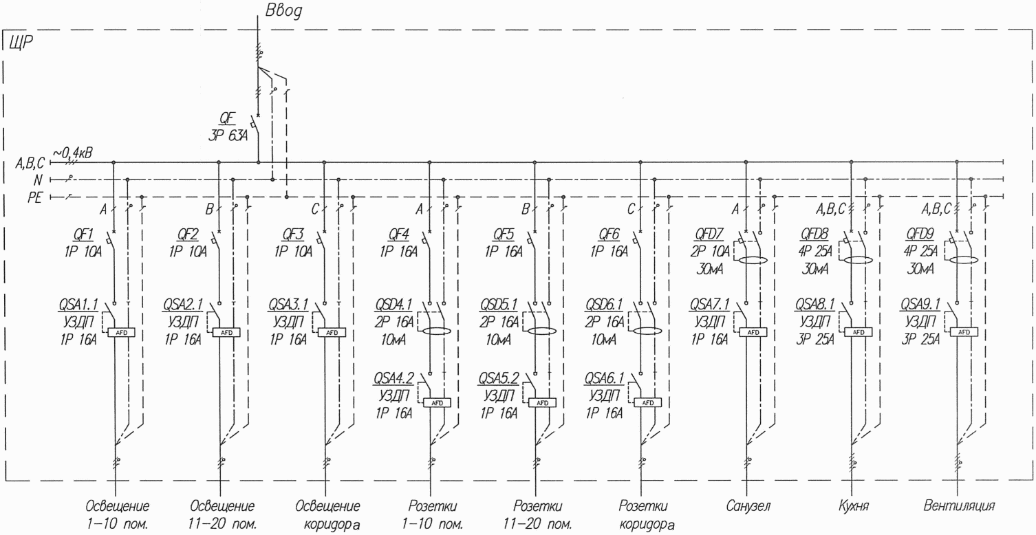
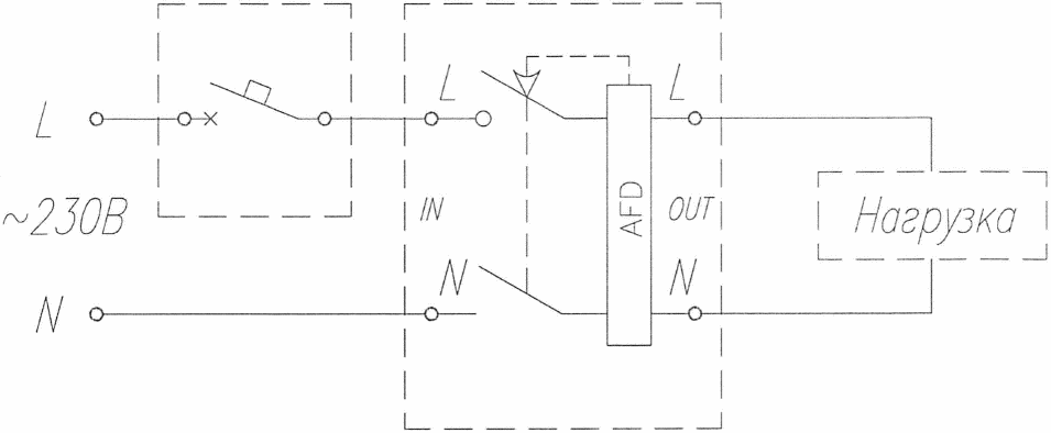
В.4.2 Схемы применения УЗДП в электроустановках жилых и общественных зданий представлены на рисунках В.1 - В.10.
На схемах УЗДП представлены в виде некомбинированных (отдельных) устройств. Применение комбинированных УЗДП, включающих в себя УЗДП в разных сочетаниях с автоматическим выключателем, УДТ и реле контроля напряжения, не изменяет и не вносит новых требований по выбору УЗДП.
В.4.3 Ограничение максимальной протяженности участка электропроводки до электроприемника, защищаемого УЗДП, следует определять в процессе проектирования на основании технических характеристик УЗДП, приведенных производителем в технической документации.
В.4.4 Схемы применения УЗДП в электроустановках жилых помещений представлены на рисунках В.1 - В.8.
К жилым помещениям относятся одноквартирные жилые дома, квартиры в многоквартирном жилом доме, дома в садовых товариществах, обособленные помещения в жилых зданиях для временного проживания.
При проектировании применения УЗДП в местах общего пользования многоквартирного жилого дома следует руководствоваться схемами применения УЗДП в общественном здании.
Примечания
1 При отсутствии распределительных щитков в квартире (квартирных щитков) УЗДП следует устанавливать в этажных щитках. При проектировании в случае необходимости дополнительной защиты допускается одновременная установка УЗДП в распределительных щитках и в уличных щитках учета или этажных щитках.
Возможность установки УЗДП в уличных щитках учета или в этажных щитках должна определяться его техническими характеристиками, подтвержденными производителем, с соответствующим указанием в технической документации.
2 При проектировании допускается применение трех однополюсных или двухполюсных УЗДП вместо одного трехполюсного или четырехполюсного УЗДП на вводе в жилое помещение, при условии, что в электроустановке не применяются трехфазные электроприемники, и их применение не планируется в дальнейшем.
В.4.5 Схемы применения УЗДП в электроустановках общественных зданий представлены на рисунках В.9, В.10.
Рисунок В.1 - Применение УЗДП в электроустановке
жилого помещения (вариант схемы). Однофазная система
электроснабжения с применением однополюсных УЗДП
Рисунок В.2 - Применение УЗДП в электроустановке
жилого помещения (вариант схемы). Однофазная система
электроснабжения с применением двухполюсных УЗДП
Рисунок В.3 - Применение УЗДП в электроустановке
жилого помещения (вариант схемы). Трехфазная система
электроснабжения с применением трехполюсных УЗДП
Рисунок В.4 - Применение УЗДП в электроустановке
жилого помещения (вариант схемы). Трехфазная система
электроснабжения с применением четырехполюсных УЗДП
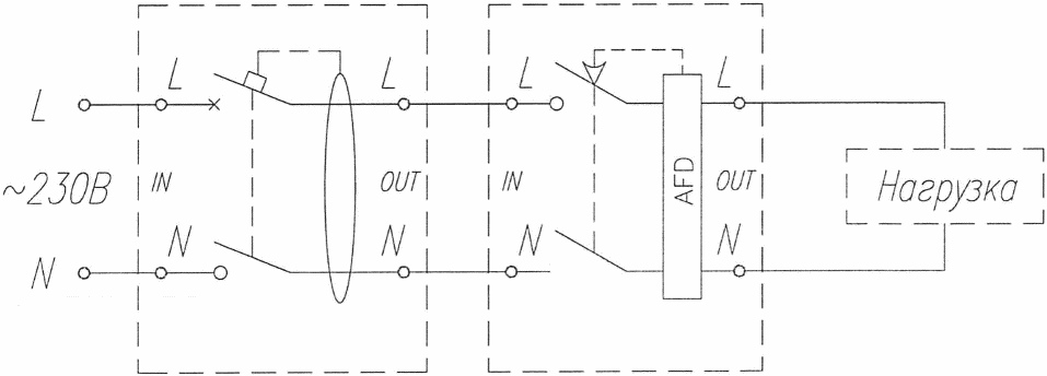
Рисунок В.5 - Применение УЗДП в каждой групповой сети
в электроустановке жилого помещения (вариант схемы).
Однофазная система электроснабжения с применением
однополюсных УЗДП
Рисунок В.6 - Применение УЗДП в каждой групповой сети
в электроустановке жилого помещения (вариант схемы).
Однофазная система электроснабжения
с применением двухполюсных УЗДП
Рисунок В.7 - Применение УЗДП в каждой групповой сети
в электроустановке жилого помещения (вариант схемы).
Трехфазная система электроснабжения с применением
однополюсных и трехполюсных УЗДП
Рисунок В.8 - Применение УЗДП в каждой групповой сети
в электроустановке жилого помещения (вариант схемы).
Трехфазная система электроснабжения с применением
двухполюсных и четырехполюсных УЗДП
Рисунок В.9 - Применение УЗДП в электроустановке
общественного здания. Трехфазная система электроснабжения
с применением однополюсных и трехполюсных УЗДП
Рисунок В.10 - Применение УЗДП в электроустановке
общественного здания. Трехфазная система электроснабжения
с применением двухполюсных и четырехполюсных УЗДП
".
В.5 Установка и монтаж УЗДП
Изложить в новой редакции:
"В.5 Монтаж и подключение УЗДП
В.5.1 Монтаж и подключение УЗДП следует проводить в соответствии с требованиями настоящего раздела, ГОСТ IEC 62606 и технической документацией производителя (паспорта, руководства по монтажу и эксплуатации и т.д.).
Монтаж и подключение УЗДП в групповых сетях при текущем ремонте жилых и общественных зданий допускается выполнять в соответствии с требованиями настоящего раздела без разработки проектной документации.
В.5.2 При проектировании групповых сетей жилых и общественных зданий с применением УЗДП в целях противопожарной защиты с УЗДП следует применять защитные устройства от короткого замыкания, отвечающие требованиям ГОСТ IEC 60898-1, ГОСТ IEC 61009-1, ГОСТ IEC 62423, а также В.3.2, с которыми УЗДП должно быть согласовано по номинальному току Iн (пункты 5.5.1 и 6.2.2 ГОСТ IEC 62606-2016).
В.5.3 Схемы подключения УЗДП совместно с другими устройствами защиты электрических сетей: автоматическим выключателем (АВ), УДТ, автоматическим выключателем дифференциального тока с защитой от сверхтока (АВДТ) - приведены на рисунке В.11, а) - е).
В.5.4 УЗДП следует устанавливать в щитовое оборудование, отвечающее требованиям для их применения в жилых и общественных зданиях, по ГОСТ 32395, ГОСТ 32396, ГОСТ 32397.
а) Подключение УЗДП с АВ.
Вариант однополюсного УЗДП и однополюсного АВ
б) Подключение УЗДП с АВ.
Вариант двухполюсного УЗДП и однополюсного АВ
в) Подключение УЗДП с АВДТ.
Вариант однополюсного УЗДП и двухполюсного АВДТ
г) Подключение УЗДП с АВДТ.
Вариант двухполюсного УЗДП и двухполюсного АВДТ
д) Подключение УЗДП с АВ и УДТ. Вариант однополюсного УЗДП,
однополюсного АВ и двухполюсного УДТ
е) Подключение УЗДП с АВ и УДТ. Вариант двухполюсного УЗДП,
однополюсного АВ и двухполюсного УДТ
Рисунок В.11 - Схемы подключения УЗДП совместно с другими
устройствами защиты электрических сетей (АВ, УДТ, АВДТ)
В.5.5 Монтаж и подключение УЗДП должны быть выполнены при отключенном напряжении электромонтажниками, допущенными к выполнению данных работ в порядке, установленном действующим законодательством, с соблюдением техники безопасности.
В.5.6 Перед монтажом и подключением УЗДП в соответствии с технической документацией производителя (паспортом, руководством по монтажу и эксплуатации и т.д.) следует проверить соответствие номинального тока Iн УЗДП и номинальных токов защитных устройств (АВ, УДТ, АВДТ).
В.5.7 Перед установкой УЗДП следует оценить возможность монтажа в объеме щитового оборудования по его габаритным, установочным и присоединительным размерам с учетом габаритных размеров устанавливаемых защитных устройств.
В.5.8 Контактные зажимы УЗДП при подключении к ним внешних проводников (проводов и кабелей) с медными токопроводящими жилами и токопроводящими жилами из алюминиевых сплавов марок 8030 и 8176 должны соответствовать требованиям ГОСТ 10434, ГОСТ 17441, ГОСТ 31604, ГОСТ IEC 62606, а их конструкция должна отвечать требованиям пунктов 8.2.4, 8.2.5, приложений IB, IC, J, K, L ГОСТ IEC 62606-2016.
В.5.9 УЗДП следует устанавливать в соответствии с требованиями производителя. При этом элементы ручного управления и индикации УЗДП должны быть доступны.
В.5.10 Защищаемая групповая сеть может иметь любые вид электропроводки и состав электроприемников. Ток, протекающий в защищаемой сети, не должен превышать номинальный ток Iн УЗДП.
В.5.11 Перед проведением монтажа в соответствии с требованиями ГОСТ Р 50462 подключаемые провода должны быть промаркированы или иметь соответствующее цветовое обозначение, которые указывают на определенное назначение проводов для подключения к соответствующим контактным зажимам УЗДП.
Монтаж и подключение УЗДП следует выполнять в соответствии с технической документацией производителя (паспортом, руководством по монтажу и эксплуатации и т.д.).
Примечание - Неправильное подключение УЗДП (изменение порядка подключения кабелей к входным и выходным контактным зажимам, если порядок подключения задан конструкцией УЗДП) может привести к нарушению работы УЗДП, в результате чего защита от дугового пробоя не будет обеспечена.
Для правильного подключения УЗДП на корпусе должна присутствовать маркировка, однозначно определяющая назначение контактных зажимов: подключение питания или нагрузки, подключение фазных проводников и нейтрального проводника (пункт 6.1 ГОСТ IEC 62606-2016).
В.5.12 С токопроводящих жил на концах проводов или кабелей, предназначенных для присоединения к выводам УЗДП, должна быть удалена изоляция. Длина оголенной ступени жил должна соответствовать значению, указанному в технической документации производителя (паспорте, руководстве по монтажу и эксплуатации и т.д.).
В.5.13 Перед подключением проводов и кабелей к выводам УЗДП при необходимости следует провести подготовку проводов, например облудить жилы проводов или применить кабельные наконечники для многопроволочных жил.
Примечание - Для УЗДП с номинальным током до 32 А включительно специальная подготовка проводников не требуется (подпункт 8.2.5.4 ГОСТ IEC 62606-2016).
В.5.14 Затяжку винтов крепления токопроводящих жил в контактных зажимах УЗДП следует проводить в соответствии со значениями крутящих моментов (Н·м), указанных в технической документации производителя (паспорте, руководстве по монтажу и эксплуатации и т.д.), и в соответствии с требованиями ГОСТ 10434-82 (приложение 4, таблица 9).
Примечание - Для болтовых соединений проводников из меди и алюминиевых сплавов марок 8030 и 8176 рекомендуется применять крутящие моменты, значения которых в 1,5 - 1,7 раза превышают установленные в ГОСТ 10434-82 (приложение 4, таблица 9).
В.5.15 Провода или кабели, соединяющие защитные устройства (АВ, УДТ, АВДТ) и УЗДП внутри групповых щитков, должны иметь сечения токопроводящих жил, соответствующие току, который по ним протекает.".
Библиография
Исключить библиографические ссылки:
"[9] Постановление Правительства Российской Федерации от 12 апреля 2012 г. N 290 "О федеральном государственном пожарном надзоре";
"[11] Постановление Правительства Российской Федерации от 12 октября 2020 г. N 1662 "О внесении изменений в Положение о федеральном государственном пожарном надзоре".