Главная // Актуальные документы // ГОСТ (Государственный стандарт)СПРАВКА
Источник публикации
М.: Стандартинформ, 2015
Примечание к документу
Документ утратил силу с 01.01.2022 в связи с изданием
Приказа Росстандарта от 10.12.2021 N 1760-ст. Взамен введен в действие
ГОСТ 21.608-2021.
Документ был включен в
Перечень документов в области стандартизации, в результате применения которых на добровольной основе обеспечивается соблюдение требований Федерального
закона от 30.12.2009 N 384-ФЗ "Технический регламент о безопасности зданий и сооружений" (
Приказ Росстандарта от 02.04.2020 N 687).
Документ включен в
Перечень документов в области стандартизации, в результате применения которых на добровольной основе обеспечивается соблюдение требований Федерального
закона от 30.12.2009 N 384-ФЗ "Технический регламент о безопасности зданий и сооружений" (
Приказ Росстандарта от 17.04.2019 N 831).
Документ включен в
Перечень документов в области стандартизации, в результате применения которых на добровольной основе обеспечивается соблюдение требований Федерального
закона от 30.12.2009 N 384-ФЗ "Технический регламент о безопасности зданий и сооружений" (
Приказ Росстандарта от 30.03.2015 N 365).
Текст данного документа приведен с учетом
поправки, опубликованной в "ИУС", N 1, 2021.
Документ
введен в действие с 01.07.2015.
Название документа
"ГОСТ 21.608-2014. Межгосударственный стандарт. Система проектной документации для строительства. Правила выполнения рабочей документации внутреннего электрического освещения"
(введен в действие Приказом Росстандарта от 26.11.2014 N 1837-ст)
"ГОСТ 21.608-2014. Межгосударственный стандарт. Система проектной документации для строительства. Правила выполнения рабочей документации внутреннего электрического освещения"
(введен в действие Приказом Росстандарта от 26.11.2014 N 1837-ст)
агентства по техническому
регулированию и метрологии
от 26 ноября 2014 г. N 1837-ст
МЕЖГОСУДАРСТВЕННЫЙ СТАНДАРТ
СИСТЕМА ПРОЕКТНОЙ ДОКУМЕНТАЦИИ ДЛЯ СТРОИТЕЛЬСТВА
ПРАВИЛА
ВЫПОЛНЕНИЯ РАБОЧЕЙ ДОКУМЕНТАЦИИ ВНУТРЕННЕГО
ЭЛЕКТРИЧЕСКОГО ОСВЕЩЕНИЯ
System of building design documents. Rules for execution
of working documents of interior electric lighting
ГОСТ 21.608-2014
Дата введения
1 июля 2015 года
Цели, основные принципы и основной порядок проведения работ по межгосударственной стандартизации установлены
ГОСТ 1.0-92 "Межгосударственная система стандартизации. Основные положения" и
ГОСТ 1.2-2009 "Межгосударственная система стандартизации. Стандарты межгосударственные, правила и рекомендации по межгосударственной стандартизации. Правила разработки, принятия, применения, обновления и отмены".
1. Разработан Открытым акционерным обществом "Центр методологии нормирования и стандартизации в строительстве" (ОАО "ЦНС") и Открытым акционерным обществом ордена Трудового Красного Знамени Всесоюзным научно-исследовательским проектно-конструкторским институтом Тяжпромэлектропроект им. Ф.Б. Якубовского (ОАО ВНИПИ Тяжпромэлектропроект).
2. Внесен Техническим комитетом по стандартизации ТК 465 "Строительство".
3. Принят Межгосударственным советом по стандартизации, метрологии и сертификации (Протокол от 14 ноября 2014 г. N 72-П).
За принятие проголосовали:
Краткое наименование страны по МК (ИСО 3166) 004-97 | Код страны по МК (ИСО 3166) 004-97 | Сокращенное наименование национального органа по стандартизации |
Беларусь | BY | Госстандарт Республики Беларусь |
Казахстан | KZ | Госстандарт Республики Казахстан |
Молдова | MD | Молдова-Стандарт |
Россия | RU | Росстандарт |
Таджикистан | TJ | Таджикстандарт |
Туркмения | TM | Главгосслужба "Туркменстандартлары" |
4.
Приказом Федерального агентства по техническому регулированию и метрологии от 26 ноября 2014 г. N 1837-ст введен в действие межгосударственный стандарт ГОСТ 21.608-2014 для применения в качестве национального стандарта Российской Федерации с 1 июля 2015 г.
Информация об изменениях к настоящему стандарту публикуется в ежегодном информационном указателе "Национальные стандарты", а текст изменений и поправок - в ежемесячном информационном указателе "Национальные стандарты". В случае пересмотра (замены) или отмены настоящего стандарта соответствующее уведомление будет опубликовано в ежемесячном информационном указателе "Национальные стандарты". Соответствующая информация, уведомление и тексты размещаются также в информационной системе общего пользования - на официальном сайте Федерального агентства по техническому регулированию и метрологии в сети Интернет.
Настоящий стандарт устанавливает состав и правила оформления рабочей документации внутренних сетей электрического освещения помещений зданий и сооружений различного назначения.
В настоящем стандарте использованы нормативные ссылки на следующие межгосударственные стандарты:
ГОСТ 2.301-68 Единая система конструкторской документации. Форматы
ГОСТ 2.302-68 Единая система конструкторской документации. Масштабы
ГОСТ 2.702-2011 Единая система конструкторской документации. Правила выполнения электрических схем
ГОСТ 21.101-97 <*> Система проектной документации для строительства. Основные требования к проектной и рабочей документации
ГОСТ 21.110-2013 Система проектной документации для строительства. Спецификация оборудования, изделий и материалов
ГОСТ 21.114-2013 Система проектной документации для строительства. Правила выполнения эскизных чертежей общих видов нетиповых изделий
ГОСТ 21.614-88 Система проектной документации для строительства. Изображения условные графические электрооборудования и проводок на планах
--------------------------------
Примечание. При пользовании настоящим стандартом целесообразно проверить действие ссылочных стандартов в информационной системе общего пользования - на официальном сайте Федерального агентства по техническому регулированию и метрологии в сети Интернет или по ежегодному информационному указателю "Национальные стандарты", который опубликован по состоянию на 1 января текущего года, и по выпускам ежемесячного информационного указателя "Национальные стандарты" за текущий год. Если ссылочный стандарт заменен (изменен), то при пользовании настоящим стандартом следует руководствоваться заменяющим (измененным) стандартом. Если ссылочный стандарт отменен без замены, то положение, в котором дана ссылка на него, применяется в части, не затрагивающей эту ссылку.
3.1. Рабочую документацию внутреннего электрического освещения помещений зданий и сооружений выполняют в соответствии с требованиями настоящего стандарта,
ГОСТ 21.101 и других взаимосвязанных стандартов Системы проектной документации для строительства (СПДС).
3.2. В состав рабочей документации внутреннего электрического освещения зданий и сооружений включают:
- рабочие чертежи, предназначенные для производства строительно-монтажных работ (основной комплект рабочих чертежей марки ЭО);
- эскизные чертежи общих видов нетиповых изделий, конструкций, устройств, монтажных блоков (далее - эскизные чертежи общих видов нетиповых изделий) (при необходимости);
- спецификацию оборудования, изделий и материалов;
- опросные листы и габаритные чертежи (при необходимости);
- локальную смету (при необходимости).
3.3. В состав основного комплекта рабочих чертежей марки ЭО включают:
- общие данные по рабочим чертежам;
- планы расположения электрического оборудования и прокладки электрических сетей;
- принципиальные схемы питающей и распределительной сети (при необходимости);
- принципиальные схемы магистральных и групповых щитков освещения;
- принципиальные схемы дистанционного управления освещением;
- схемы подключения комплектных распределительных устройств напряжением до 1000 В;
- кабельный журнал для питающей и распределительной сети (при необходимости);
- чертежи узлов установки осветительных приборов и электрооборудования (при отсутствии типовых).
3.4. Основной комплект рабочих чертежей марки ЭО допускается оформлять отдельными документами с присвоением им базовой марки основного комплекта и добавлением через точку порядкового номера документа, обозначаемого арабскими цифрами, например общие данные по рабочим чертежам (ЭО1.1), принципиальная схема распределительной сети (ЭО1.2).
3.5. При небольших объемах документации допускается объединять рабочие чертежи марки ЭО с рабочими чертежами других электротехнических марок в один основной комплект рабочих чертежей и присваивать одну марку. Например, при объединении чертежей марки ЭО с рабочими чертежами марки ЭМ допускается присваивать объединенному основному комплекту марку ЭОМ или марку преобладающих рабочих чертежей комплекта.
4. Общие данные по рабочим чертежам
4.1. Общие данные по рабочим чертежам внутреннего электрического освещения зданий и сооружений выполняют в соответствии с
ГОСТ 21.101.
4.2. Ведомость спецификаций, предусмотренную
ГОСТ 21.101, в составе общих данных по рабочим чертежам марки ЭО не выполняют.
4.3. В общих указаниях в дополнение к сведениям, предусмотренным
ГОСТ 21.101, приводят итоговые данные: полезную площадь освещаемых помещений, установленную мощность освещения, количество светильников. Для жилых домов итоговые данные не приводят.
5.1. Планы расположения электрического оборудования и прокладки электрических сетей
5.1.1. Планы расположения электрического оборудования и прокладки электрических сетей (далее - планы расположения) выполняют по
ГОСТ 2.702 (без перечня элементов) с учетом требований настоящего стандарта.
5.1.2. В качестве подосновы для планов расположения, как правило, принимают планы помещений, выполненные в основных комплектах рабочих чертежей других марок. Масштабы этих планов должны обеспечивать четкое графическое изображение электрических сетей и электрического оборудования.
5.1.3. На планах расположения наносят и указывают:
а) координационные оси здания (сооружения) и расстояния между ними;
б) строительные конструкции в виде упрощенных контурных очертаний сплошными тонкими линиями; технологическое оборудование - в виде условных графических изображений сплошными толстыми линиями;
в) наименования помещений (при необходимости), кроме помещений жилых домов. Допускается наименования помещений приводить в экспликации помещений по форме 1 в соответствии с нумерацией и наименованием, указанными в основном комплекте рабочих чертежей марки АР;
Форма 1
г) классы взрывоопасных и пожароопасных зон, категорию и группу взрывоопасных смесей для взрывоопасных зон;
д) нормируемую освещенность от общего освещения (за исключением жилых помещений);
е) светильники (в жилых домах - места их установки), их количество (при необходимости), типы;
ж) количество и мощность ламп в светильниках;
и) высоту установки светильников (кроме потолочных).
Примечание. Примеры приведения на планах данных, указанных в перечислениях г) - и), и порядок записи их условных обозначений приведены в
Приложении А;
к) привязочные размеры для светильников или рядов светильников к элементам строительных конструкций или координационным осям здания (сооружения). Привязочные размеры допускается не проставлять, если места установки светильников понятны без указания привязочных размеров или если привязочные размеры приведены на чертежах интерьеров. В этом случае должна быть дана ссылка на соответствующие чертежи;
л) комплектные распределительные устройства на напряжение до 1000 В, относящиеся к сети внутреннего освещения (распределительные щиты, щиты станций управления, распределительные пункты, ящики и шкафы управления, вводно-распределительные устройства), и их обозначения;
м) групповые щитки и их обозначения;
н) понижающие трансформаторы;
п) выключатели, штепсельные розетки (в жилых домах - включая розетки для электроплит и других бытовых электроприемников);
р) линии питающей, распределительной, групповой сетей и сети управления освещением (в жилых домах - включая линии для электроплит и других бытовых электроприемников), их обозначения, сечение и, при необходимости, марку и способ прокладки;
с) другое электрическое оборудование, относящееся к внутреннему освещению.
5.1.4. При большом количестве линий распределительной сети, групповой сети и сети управления освещением указанные сети и относящееся к ним электрическое оборудование допускается изображать на отдельных листах и в разных масштабах.
5.1.5. Электрическое оборудование и проводки на планах расположения указывают условными графическими изображениями по
ГОСТ 21.614.
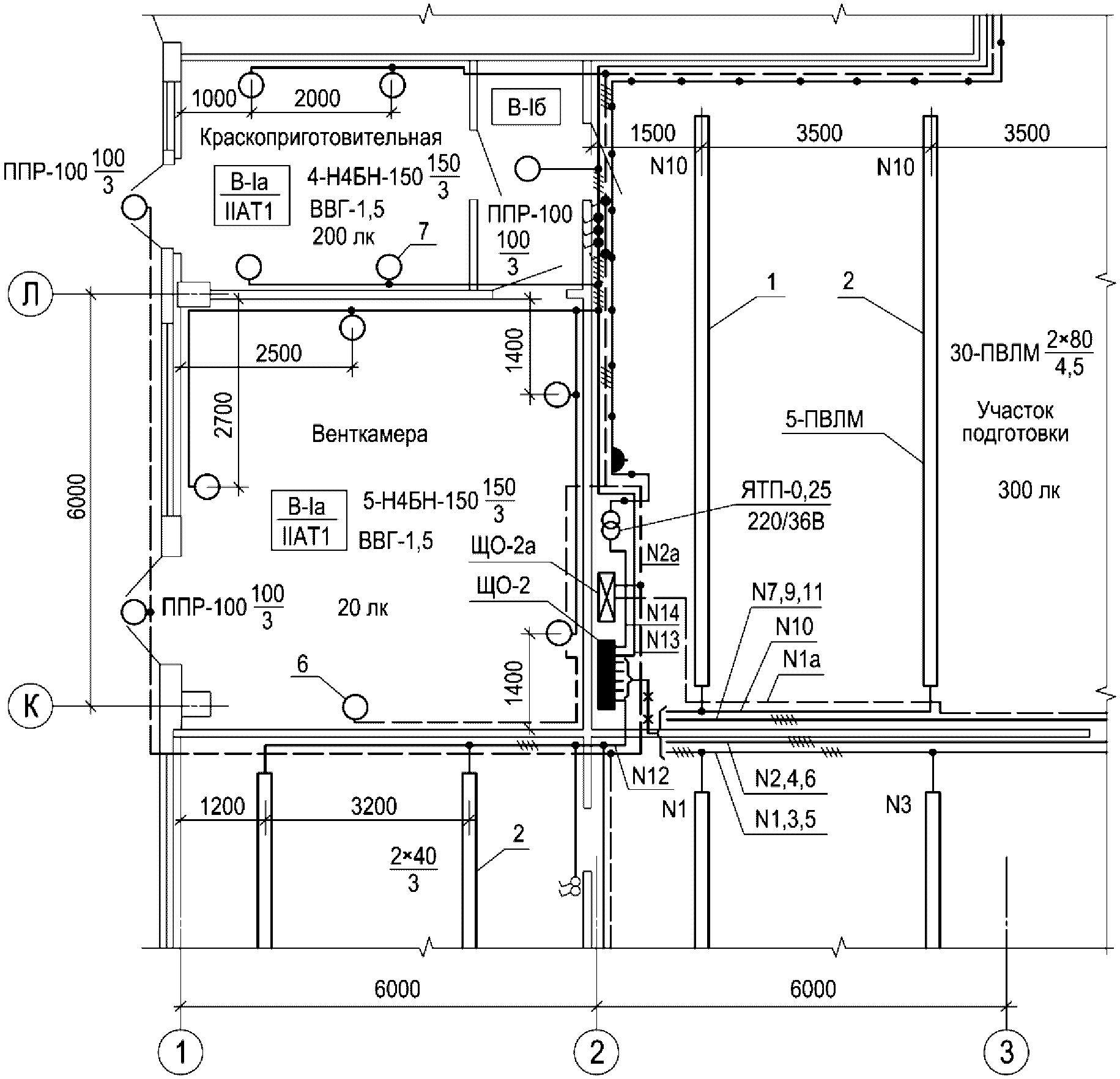
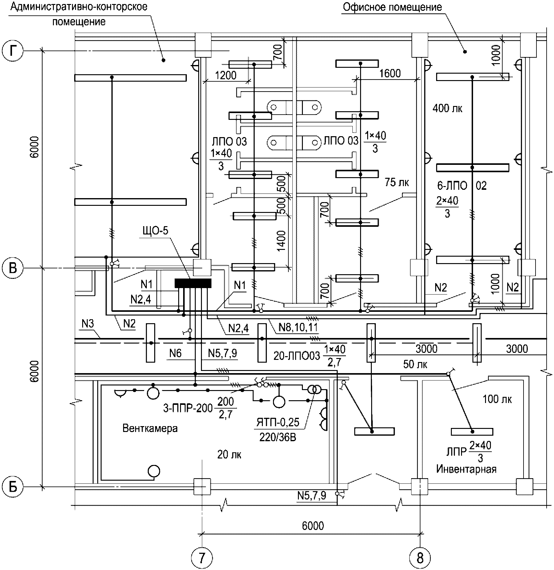
Пример оформления плана расположения электрического оборудования и прокладки электрических сетей для производственного здания приведен на
рисунке Б.1 (Приложение Б), для общественного здания - на
рисунке Б.2 (Приложение Б).
5.1.6. На листах, где помещены планы расположения, приводят ведомость узлов установки электрического оборудования по форме 2. Ведомость на плане расположения помещают над основной надписью, как правило, в верхнем углу листа.
Форма 2
Ведомость узлов установки электрического оборудования
В графах ведомости указывают:
- в графе "Поз." - позицию узла по плану расположения;
- в графе "Обозначение" - обозначение документа на узел установки электрического оборудования;
- в графе "Наименование" - наименование узла установки с указанием типа электрического оборудования;
- в графе "Кол." - количество узлов установки по плану расположения;
- в графе "Примечание" - дополнительные сведения.
Пример заполнения ведомости узлов установки электрического оборудования приведен на
рисунке В.1 (Приложение В).
5.1.7. На листах планов расположения приводят:
- ссылки на чертежи принципиальных схем магистральных и групповых щитков освещения;
- данные о групповых щитках в табличной форме (при необходимости);
- данные о комплектных конденсаторных установках по форме 3 (при необходимости).
Форма 3
Данные о комплектных конденсаторных установках
5.1.8. Размеры граф
форм 1 -
6, при необходимости, могут быть изменены по усмотрению разработчика.
5.1.9. При наличии в здании одинаковых по размеру помещений (участков помещений) с одинаковыми техническими решениями освещения электрическое оборудование, электрические сети и другие элементы на планах расположения допускается изображать не для всех, а для части помещений. Допускается также приводить фрагменты планов расположения для отдельных типовых помещений.
5.2. Принципиальные схемы
5.2.1. Принципиальные схемы питающей и распределительной сетей, магистральных и групповых щитков освещения выполняют в однолинейном изображении согласно требованиям стандартов Единой системы конструкторской документации (ЕСКД) на правила выполнения электротехнических схем и в соответствии с требованиями настоящего стандарта.
Боковики принципиальных схем питающей и распределительной сетей выполняют по форме 4, магистральных и групповых щитков освещения - по
форме 5 (для магистральных и групповых щитков освещения допускается в боковике указывать не все, а только необходимые данные).
Форма 4
Боковик принципиальной схемы питающей
и распределительной сетей
Форма 5
Боковик принципиальной схемы магистрального
и группового щитка освещения
Допускается выполнять боковики схем питающей и распределительной сетей, магистральных и групповых щитков освещения (
формы 4 и
5) по другим формам, при условии, что в них содержатся все технические данные, предусмотренные
формами 4 и
5.
Примеры оформления принципиальных схем питающей и распределительной сетей и группового щитка освещения приведены соответственно на
рисунке Г.1 (Приложение Г) и
рисунке Д.1 (Приложение Д).
5.2.2. Принципиальные схемы питающей и распределительной сетей допускается выполнять с учетом расположения электрического оборудования по частям и этажам здания.
Пример оформления принципиальной схемы питающей и распределительной сетей многоэтажного здания приведен в
Приложении Е. Поясняющие надписи на схеме приводят, как указано в
Приложении Ж.
5.2.3. Принципиальные схемы питающей и распределительной сетей жилых домов допускается разбивать на отдельные схемы (схему вводно-распределительного устройства, схему линий питающей и распределительной сетей). При этом на схеме линий питающей и распределительной сетей допускается изображать щитки и другие аппараты не для всех этажей, а только для одного типового этажа, а также не изображать коммутационные аппараты на этажных и квартирных щитках и расчетные данные указывать в табличной форме.
5.2.4. Принципиальные схемы дистанционного управления освещением и схемы подключения комплектных распределительных устройств на напряжение до 1000 В выполняют с учетом требований стандартов ЕСКД на правила выполнения электротехнических схем.
Указанные схемы допускается включать в состав рабочих чертежей основных комплектов других электротехнических марок.
5.3.1. Кабельный журнал для питающей и распределительной сетей выполняют по форме 6.
Форма 6
Кабельный журнал для питающей и распределительной сетей
5.3.2. Кабельный журнал для питающей и распределительной сетей допускается не выполнять, если все данные, содержащиеся в кабельном журнале, указаны на принципиальной схеме питающей и распределительной сетей.
5.4. Узлы установки осветительных приборов и электрооборудования
5.4.1. Чертежи узлов установки осветительных приборов и электрооборудования (далее - узлы установки) должны содержать информацию, необходимую для правильного монтажа вышеуказанного оборудования.
5.4.2. Узлы установки выполняют в случаях, когда в качестве кронштейна (конструкции) для установки осветительного прибора (электрооборудования) используется нетиповое изделие, изготовляемое на заказ или непосредственно на месте монтажа. В прочих случаях необходимость выполнения узлов установки определяется разработчиком в зависимости от сложности используемых крепежных конструкций и особенностей монтажа конкретных осветительных приборов и электрооборудования.
5.4.3. Узел установки должен содержать:
- изображение (виды, разрезы, сечения) осветительного прибора (электрооборудования), закрепленного с помощью кронштейна к элементу строительной конструкции;
- наименование (обозначение) составных частей узла установки;
- спецификацию составных частей узла установки по
форме 7 ГОСТ 21.101;
- установочные, габаритные и другие необходимые размеры;
- технические требования и подписи, необходимые для понимания устройства узла установки (указания о выполнении сварочных работ, окраске эмалью и пр.).
5.4.4. Узлы установки, как правило, выполняют в масштабах
ГОСТ 2.302. Допускается выполнять узлы установки без точного соблюдения масштаба, если это не искажает наглядности изображения и не затрудняет чтения чертежа.
5.4.5. Различные узлы установки оформляют отдельными чертежами, как правило, на листах форматов А4 и А3 по
ГОСТ 2.301.
6. Эскизные чертежи общих видов нетиповых конструкций
Эскизные чертежи общих видов нетиповых конструкций, предназначенных для установки осветительных приборов и электрооборудования, выполняют в соответствии с требованиями
ГОСТ 21.114 в объеме, необходимом для разработки конструкторской документации.
7. Спецификация оборудования, изделий и материалов
7.1. Спецификацию оборудования, изделий и материалов (далее - спецификация) выполняют и обозначают по
ГОСТ 21.110 с учетом требований настоящего стандарта.
7.2. Спецификацию составляют по разделам в последовательности:
- электрооборудование (распределительные и групповые щитки, автоматические выключатели и т.п.);
- осветительное оборудование (осветительные приборы, лампы и т.п.);
- кабельные изделия (кабель, провод и т.п.);
- электромонтажные устройства и изделия (кронштейны, ответвительные коробки, кабельные лотки и т.п.);
- материалы (трубы, прокат черных металлов и т.п.).
Состав и количество разделов спецификации допускается изменять по усмотрению разработчика.
Запись оборудования (изделий, материалов) в пределах одного раздела рекомендуется выполнять по группам однотипных элементов (в порядке возрастания типов, параметров, цифр, входящих в их обозначение).
8. Опросные листы и габаритные чертежи
8.1. Опросные листы и габаритные чертежи выполняют в соответствии с данными предприятий - изготовителей оборудования и комплектуют их в виде отдельного выпуска с наименованием "Опросные листы".
Выпуску "Опросные листы" присваивают самостоятельное обозначение, состоящее из обозначения основного комплекта рабочих чертежей марки ЭО и через точку шифра "ОЛ". Обозначение указывают на титульном листе выпуска опросных листов.
Пример - 2345-11-ЭО.ОЛ
8.2. Если опросных листов (габаритных чертежей) два и более, то после титульного листа выпуска "Опросные листы" помещают содержание, которое выполняют в соответствии с
ГОСТ 21.101. Содержанию присваивают обозначение, состоящее из обозначения выпуска опросных листов и через дефис шифра "С".
8.3. В наименовании опросного листа (габаритного чертежа) указывают наименование оборудования, которое в нем описывается, либо его обозначение или порядковый номер в пределах выпуска.
8.4. Изменения в опросные листы (габаритные чертежи) вносят в соответствии с
ГОСТ 21.101 с учетом дополнительных требований настоящего стандарта.
Изменения в опросные листы (габаритные чертежи) вносят самостоятельно в пределах каждого опросного листа (габаритного чертежа).
Сведения об изменениях, вносимых в опросные листы (габаритные чертежи), приводят в графе "Примечание" содержания выпуска опросных листов или в графе "Примечание" ведомости ссылочных и прилагаемых документов (если "Содержание" не выполняют).
8.5. Выпуск опросных листов записывают в разделе "Прилагаемые документы" ведомости ссылочных и прилагаемых документов, входящей в общие данные по рабочим чертежам основного комплекта марки ЭО.
(справочное)
ПРИМЕРЫ УСЛОВНЫХ ОБОЗНАЧЕНИЙ НА ПЛАНАХ РАСПОЛОЖЕНИЯ
ЭЛЕКТРИЧЕСКОГО ОБОРУДОВАНИЯ И ПРОКЛАДКИ ЭЛЕКТРИЧЕСКИХ СЕТЕЙ
Таблица А.1
Наименование | Пример условного обозначения |
1. Нормируемая освещенность от общего освещения | 300 лк |
2. Обозначение классов взрыво- и пожароопасных зон: | |
2.1. класс взрывоопасной зоны категория и группа взрывоопасной смеси | |
2.2. класс взрывоопасной зоны | |
2.3. класс пожароопасной зоны | |
3. Сведения о светильниках: | |
3.1. количество - тип,  | |
3.2. количество - тип светильников в линии | |
Примечание. Допускается не указывать: количество светильников при небольшом их числе в помещении; количество ламп для одноламповых светильников; высоту установки для потолочных светильников. |
4. Соответствие выключателей управляемым ими светильникам | |
5. Номер и цифры у светильников и штепсельных розеток, указывающие номера групп, к которым присоединяют светильники, линии светильников или штепсельные розетки | |
6. Обозначение способов прокладки, марок проводников и сечений групповой сети в помещении указывают (через дефис) в следующем порядке: марка проводников - сечение, мм 2 - способ прокладки | ВВГнг-LS-1(3x2,5)-т20 |
7. Надписи на линиях питающей и распределительной сетей указывают в следующем порядке: номер линии - марка, количество и сечение проводников - способ прокладки | н1-ВВГнг-1(5x10)-т40 |
8. Надписи на линиях групповой сети указывают в следующем порядке: номер группы - марка, количество и сечение проводников - способ прокладки | N1-ВВГнг-1(3x2,5)-т20 |
Примечание к пунктам 6 - 8. На отдельных участках линий допускается указывать не все, а только необходимые данные. |
(справочное)
ПРИМЕРЫ ОФОРМЛЕНИЯ ПЛАНОВ РАСПОЛОЖЕНИЯ ЭЛЕКТРИЧЕСКОГО
ОБОРУДОВАНИЯ И ПРОКЛАДКИ ЭЛЕКТРИЧЕСКИХ СЕТЕЙ
Рисунок Б.1. Пример оформления плана расположения
электрического оборудования и прокладки электрических
сетей для производственного здания
Рисунок Б.2. Пример оформления плана расположения
электрического оборудования и прокладки электрических
сетей для общественного здания
(справочное)
ПРИМЕР ЗАПОЛНЕНИЯ ВЕДОМОСТИ УЗЛОВ УСТАНОВКИ
ЭЛЕКТРИЧЕСКОГО ОБОРУДОВАНИЯ НА ПЛАНЕ РАСПОЛОЖЕНИЯ
(справочное)
ПРИМЕР ОФОРМЛЕНИЯ ПРИНЦИПИАЛЬНОЙ СХЕМЫ
ПИТАЮЩЕЙ И РАСПРЕДЕЛИТЕЛЬНОЙ СЕТЕЙ
(справочное)
ПРИМЕР ОФОРМЛЕНИЯ ПРИНЦИПИАЛЬНОЙ СХЕМЫ
ГРУППОВОГО ЩИТКА ОСВЕЩЕНИЯ
(справочное)
ПРИМЕР ОФОРМЛЕНИЯ ПРИНЦИПИАЛЬНОЙ СХЕМЫ ПИТАЮЩЕЙ
И РАСПРЕДЕЛИТЕЛЬНОЙ СЕТЕЙ МНОГОЭТАЖНОГО ЗДАНИЯ
Рисунок Е.1
(рекомендуемое)
ПОЯСНЯЮЩИЕ НАДПИСИ НА ПРИНЦИПИАЛЬНОЙ СХЕМЕ ПИТАЮЩЕЙ
И РАСПРЕДЕЛИТЕЛЬНОЙ СЕТЕЙ, ВЫПОЛНЯЕМОЙ С УЧЕТОМ РАСПОЛОЖЕНИЯ
ЭЛЕКТРИЧЕСКОГО ОБОРУДОВАНИЯ ПО ЧАСТЯМ И ЭТАЖАМ ЗДАНИЯ
Ж.1. У комплектных распределительных устройств на напряжение до 1000 В:
Pуст - установленная мощность, кВт;
Pрасч - расчетная нагрузка, кВт.
Ж.2. У групповых щитков:

,
где A - номер по плану расположения;

- потеря напряжения до щитка, %.
Пример -

Ж.3. На линиях питающей и распределительной сетей с расчетными данными (указывают конкретные величины):

,
где a - маркировка линии;
Iрасч - расчетный ток, А;
l - длина участка питающей (распределительной) сети, м;
q - марка проводника; сечение, мм2;

- способ прокладки.
Пример -

Ж.4. На линиях питающей и распределительной сетей без расчетных данных:

.
Пример - 40-ВВГнг1(5x6)-т40