Главная // Актуальные документы // Актуальные документы (обновление 29.11.2025 по 01.01.2026) // Карта (форма)СПРАВКА
Источник публикации
М.: Ассоциация "Национальное объединение строителей", 2019
Примечание к документу
Текст документа приведен в соответствии с публикацией на сайте https://nostroy.ru по состоянию на 08.12.2021.
Название документа
"СТО НОСТРОЙ 2.7.211-2016. Стандарт организации. Конструкции железобетонные. Монтаж крупнопанельных зданий. Правила, контроль выполнения и требования к результатам работ"
(утв. и введен в действие Протоколом Ассоциации "Национальное объединение строителей", "НОСТРОЙ" от 24.10.2016 N 89)
"СТО НОСТРОЙ 2.7.211-2016. Стандарт организации. Конструкции железобетонные. Монтаж крупнопанельных зданий. Правила, контроль выполнения и требования к результатам работ"
(утв. и введен в действие Протоколом Ассоциации "Национальное объединение строителей", "НОСТРОЙ" от 24.10.2016 N 89)
Утвержден и введен в действие
Протоколом Совета Ассоциации
Национального объединения строителей
от 24 октября 2016 г. N 89
СТАНДАРТ ОРГАНИЗАЦИИ
КОНСТРУКЦИИ ЖЕЛЕЗОБЕТОННЫЕ
МОНТАЖ КРУПНОПАНЕЛЬНЫХ ЗДАНИЙ
ПРАВИЛА, КОНТРОЛЬ ВЫПОЛНЕНИЯ
И ТРЕБОВАНИЯ К РЕЗУЛЬТАТАМ РАБОТ
Installation of large-panel buildings. Erection site work
execution regulations, monitoring and requirements
to the results of the work
СТО НОСТРОЙ 2.7.211-2016
1 РАЗРАБОТАН | Закрытое акционерное общество "ЦНИИПЗ-3" |
2 ПРЕДСТАВЛЕН НА УТВЕРЖДЕНИЕ | Комитетом по жилищно-гражданскому, промышленному строительству, реконструкции и капитальному ремонту зданий и сооружений Ассоциации "Национальное объединение строителей", протокол от 19.07.2016 N 3 |
3 УТВЕРЖДЕН И ВВЕДЕН В ДЕЙСТВИЕ | Решением Совета Ассоциации Национального объединения строителей, протокол от 24.10.2016 N 89 |
4 ВВЕДЕН | ВПЕРВЫЕ |
Настоящий стандарт разработан в рамках Программы стандартизации Национального объединения строителей и направлен на реализацию "Градостроительного
кодекса Российской Федерации", Федерального
закона от 27 декабря 2002 г. N 184-ФЗ "О техническом регулировании", Федерального
закона от 30 декабря 2009 г. N 384-ФЗ "Технический регламент о безопасности зданий и сооружений", Федерального
закона от 23 ноября 2009 г. N 261-ФЗ "Об энергосбережении и о повышении энергетической эффективности и о внесении изменений в отдельные законодательные акты Российской Федерации".
Настоящий стандарт регламентирует основные способы монтажа сборных конструкций крупнопанельных зданий, обеспечивающие надежность и безопасность при выполнении строительных работ и их последующей эксплуатации. В настоящем стандарте учтены особенности современных технологий и имеющийся отечественный и зарубежный опыт. Отражены требования по безопасному выполнению работ, определен состав работ, выполнение которых является обязательным при консервации объекта.
Авторский коллектив: канд. техн. наук Н.Г. Келасьев, д-р техн. наук, проф. Н.Н. Трекин, д-р техн. наук, проф. Э.Н. Кодыш, инж. К.Е. Соседов (АО "ЦНИИПромзданий"), канд. техн. наук, проф. А.А. Гончаров (ФГБОУ ВПО "МГСУ").
1.1 Настоящий стандарт распространяется на крупнопанельные многоэтажные здания без каркасных вставок высотой до 25 этажей для районов с сейсмичностью до семи баллов включительно.
Примечание - В крупнопанельных многоэтажных зданиях обычно применяют однослойные и многослойные, бетонные и железобетонные стеновые панели из тяжелых и легких бетонов.
1.2 Настоящий стандарт устанавливает основные требования к монтажу крупнопанельных многоэтажных зданий и результатам выполненных работ.
В настоящем стандарте использованы нормативные ссылки на следующие стандарты и своды правил:
ГОСТ 12.0.004-2015 Система стандартов безопасности труда. Организация обучения безопасности труда. Общие положения
ГОСТ 12.0.230-2007 Система стандартов безопасности труда. Системы управления охраной труда. Общие требования
ГОСТ 12.1.046-2014 Система стандартов безопасности труда. Строительство. Нормы освещения строительных площадок
ГОСТ 12.3.009-76 Система стандартов безопасности труда. Работы погрузочно-разгрузочные. Общие требования безопасности
ГОСТ 21.001-2013 Система проектной документации для строительства. Общие положения
ГОСТ 427-75 Линейки измерительные металлические. Технические условия
ГОСТ 535-2005 Прокат сортовой и фасонный из стали углеродистой обыкновенного качества. Общие технические условия
ГОСТ 713-88 Прессы винтовые. Параметры и размеры. Нормы точности
ГОСТ ISO 898-2-2015 Механические свойства крепежных изделий из углеродистых и легированных сталей. Часть 2. Гайки установленных классов прочности с крупным и мелким шагом резьбы
ГОСТ 2246-70 Проволока стальная сварочная. Технические условия
ГОСТ 2590-2006 Прокат сортовой стальной горячекатаный круглый. Сортамент
ГОСТ 5264-80 Ручная дуговая сварка. Соединения сварные. Основные типы, конструктивные элементы и размеры
ГОСТ 5781-82 Сталь горячекатаная для армирования железобетонных конструкций. Технические условия
ГОСТ 7502-98 Рулетки измерительные металлические. Технические условия
ГОСТ 7566-2018 Металлопродукция. Приемка, маркировка, упаковка, транспортирование и хранение
ГОСТ 7948-80 Отвесы стальные строительные. Технические условия
ГОСТ 8267-93 Щебень и гравий из плотных горных пород для строительных работ. Технические условия
ГОСТ 8509-93 Уголки стальные горячекатаные равнополочные. Сортамент
ГОСТ 8510-86 Уголки стальные горячекатаные неравнополочные. Сортамент
ГОСТ 8731-74 Трубы стальные бесшовные горячедеформированные. Технические условия
ГОСТ 9467-75 Электроды покрытые металлические для ручной дуговой сварки конструкционных и теплоустойчивых сталей. Типы
ГОСТ 9818-2015 Марши и площадки лестниц железобетонные. Технические условия
ГОСТ 10178-85 Портландцемент и шлакопортландцемент. Технические условия
ГОСТ 10180-2012 Бетоны. Методы определения прочности по контрольным образцам
ГОСТ 11024-2012 Панели стеновые наружные бетонные и железобетонные для жилых и общественных зданий. Общие технические условия
ГОСТ 11118-2009 Панели из автоклавных ячеистых бетонов для наружных стен зданий. Технические условия
ГОСТ 11358-89 Толщиномеры и стенкомеры индикаторные с ценой деления 0,01 и 0,1 мм. Технические условия
ГОСТ 12504-2015 Панели стеновые внутренние бетонные и железобетонные для жилых и общественных зданий. Общие технические условия
ГОСТ 12767-2016 Плиты перекрытий железобетонные сплошные для крупнопанельных зданий. Общие технические условия
ГОСТ 13015-2012 Изделия бетонные и железобетонные для строительства. Общие технические требования. Правила приемки, маркировки, транспортирования и хранения
ГОСТ 13580-85 Плиты железобетонные ленточных фундаментов. Технические условия
ГОСТ 14098-2014 Соединения сварные арматуры и закладных изделий железобетонных конструкций. Типы, конструкции и размеры
ГОСТ 15150-69 Машины, приборы и другие технические изделия. Исполнения для различных климатических районов. Категории, условия эксплуатации, хранения и транспортирования в части воздействия климатических факторов внешней среды
ГОСТ 16504-81 Система государственных испытаний продукции. Испытания и контроль качества продукции. Основные термины и определения
ГОСТ 17079-88 Блоки вентиляционные железобетонные. Технические условия
ГОСТ 17538-2016 Конструкции и изделия железобетонные для шахт лифтов жилых зданий. Технические условия
ГОСТ 19177-81 Прокладки резиновые пористые уплотняющие. Технические условия
ГОСТ 19223-90 Светодальномеры геодезические. Общие технические условия
ГОСТ 22690-2015 Бетоны. Определение прочности механическими методами неразрушающего контроля
ГОСТ 23009-2016 Конструкции и изделия бетонные и железобетонные сборные. Условные обозначения (марки)
ГОСТ 23407-78 Ограждения инвентарные строительных площадок и участков производства строительно-монтажных работ. Технические условия
ГОСТ 23616-79 Система обеспечения точности геометрических параметров в строительстве. Контроль точности
ГОСТ 23732-2011 Вода для бетонов и строительных растворов. Технические условия
ГОСТ 24211-2008 Добавки для бетонов и строительных растворов. Общие технические условия
ГОСТ 24259-80 Оснастка монтажная для временного закрепления и выверки конструкций зданий. Классификация и общие технические требования
ГОСТ 24297-2013 Верификация закупленной продукции. Организация проведения и методы контроля
ГОСТ 25032-81 Средства грузозахватные. Классификация и общие технические требования
ГОСТ 25697-2018 Плиты балконов и лоджий железобетонные. Общие технические условия
ГОСТ 26271-84 Проволока порошковая для дуговой сварки углеродистых и низколегированных сталей. Общие технические условия
ГОСТ 26433.0-85 Система обеспечения точности геометрических параметров в строительстве. Правила выполнения измерений. Общие положения
ГОСТ 26433.1-89 Система обеспечения точности геометрических размеров в строительстве. Правила выполнения измерений. Элементы заводского изготовления
ГОСТ 26433.2-94 Система обеспечения точности геометрических параметров в строительстве. Правила выполнения измерений параметров зданий и сооружений
ГОСТ 26887-86 Площадки и лестницы для строительно-монтажных работ. Общие технические условия
ГОСТ 27751-2014 Надежность строительных конструкций и оснований. Основные положения
ГОСТ 28570-90 Бетоны. Методы определения прочности по образцам, отобранным из конструкций
ГОСТ 31310-2015 Панели стеновые трехслойные железобетонные с эффективным утеплителем. Общие технические условия
ГОСТ 31357-2007 Смеси сухие строительные на цементном вяжущем. Общие технические условия
ГОСТ 31384-2017 Защита бетонных и железобетонных конструкций от коррозии. Общие технические требования
ГОСТ 31937-2011 Здания и сооружения. Правила обследования и мониторинга технического состояния
ГОСТ 33651 Подъемники строительные грузопассажирские. Общие технические условия
ГОСТ Р 51248-99 Пути наземные рельсовые крановые. Общие технические требования
ГОСТ Р 52544-2006 Прокат арматурный свариваемый периодического профиля классов А500С и В500С для армирования железобетонных конструкций. Технические условия
ГОСТ Р 57997 Арматурные и закладные изделия сварные, соединения сварные арматуры и закладных изделий железобетонных конструкций. Общие технические условия
СП 63.13330.2018 "СНиП 52-01-2003 Бетонные и железобетонные конструкции. Основные положения"
СП 68.13330.2017 "СНиП 3.01.04-87 Приемка в эксплуатацию законченных строительством объектов. Основные положения"
СНиП 12-04-2002 "Безопасность труда в строительстве. Часть 2. Строительное производство"
СТО НОСТРОЙ 2.6.54-2011 Конструкции монолитные бетонные и железобетонные. Технические требования к производству работ, правила и методы контроля
СТО НОСТРОЙ 2.33.14-2011 Организация строительного производства. Общие положения
СТО НОСТРОЙ 2.33.51-2011 Организация строительного производства. Подготовка и производство строительных и монтажных работ
СТО НОСТРОЙ 2.33.79-2012 Строительные конструкции зданий и сооружений. Обследование ограждающих конструкций зданий и сооружений в натурных условиях и оценка их технического состояния. Правила, контроль выполнения и требования к результатам работ
СТО НОСТРОЙ/НОП 2.6.98-2014 Конструкции железобетонные. Применение арматуры с повышенными эксплуатационными свойствами марки 20Г2СФБА (класс Ан600С).
СТО НОСТРОЙ 2.7.151-2014 Фундаменты железобетонные мелкого заложения. Монтаж, гидроизоляция и устройство внешних систем теплоизоляции. Правила, контроль выполнения и требования к результатам работ
СТО НОСТРОЙ 2.7.156-2014 Конструкции бетонные и железобетонные. Устройство водонепроницаемых конструкций. Правила, контроль выполнения и требования к результатам работ
Р НОСТРОЙ 2.7.16-2016 Конструкции железобетонные. Оснастка для монтажа конструкций каркаса зданий различного назначения. Правила использования
Примечание - При пользовании настоящим стандартом целесообразно проверить действие ссылочных стандартов и сводов правил в информационной системе общего пользования - на официальных сайтах национального органа Российской Федерации по стандартизации и НОСТРОЙ в сети Интернет или по ежегодно издаваемым информационным указателям, опубликованным по состоянию на 1 января текущего года. Если ссылочный документ заменен (изменен), то при пользовании настоящим стандартом следует руководствоваться новым (измененным) документом. Если ссылочный документ отменен без замены, то положение, в котором дана ссылка на него, применяется в части, не затрагивающей эту ссылку.
3.1 блок-секция (секция): Объемно-пространственный элемент здания, независимый в функциональном отношении, который может использоваться как в сочетании с другими элементами здания, так и самостоятельно.
Примечание - По месту расположения в плане блок-секции подразделяются на рядовую, торцевую и угловую блок-секции.
3.2 возведение: Комплекс строительных, монтажных и транспортных работ, результатом которых является здание (часть здания).
3.3 выверка: Выявление отличия фактического положения монтируемой конструкции от проектного положения для приведения монтируемой конструкции во взаимное соответствие с проектом.
3.4 герметизация стыка: Комплекс работ, обеспечивающий плотное соединение элементов конструкции в зоне стыка для защиты от атмосферных воздействий и от внутреннего теплопаровыделения.
3.5 демонтаж: Разборка на отдельные элементы.
3.6 деталь строительная (деталь): Часть строительной конструкции, изготовленная из однородного материала без применения сборочных операций.
3.7 закладное изделие: Металлическая деталь, устанавливаемая в железобетонных сборных конструкциях до бетонирования.
Примечание - Закладное изделие служит для соединения железобетонных сборных конструкций между собой.
3.8 звено: Группа рабочих одной или нескольких специальностей, входящая в состав производственной бригады для выполнения конкретного технологического процесса.
Примечание - Наименьшая численность звена обуславливается рациональной организацией труда.
3.9 здание: Строительная система, состоящая из строительных конструкций, образующих наземный замкнутый объем, предназначенный для проживания или пребывания людей.
3.10 сборная конструкция: Строительная конструкция, изготавливаемая на предприятии и используемая при возведении крупнопанельного здания.
Примечание - Примерами сборных конструкций являются стеновые панели, плиты перекрытий.
3.11 строительная конструкция (конструкция): Конструктивный элемент крупнопанельного здания, выполняющий несущую, ограждающую либо совмещенную (несущую и ограждающую) функцию.
3.12 крупнопанельное здание (здание): Сборное здание со стенами из крупных стеновых панелей и перекрытиями из сборных железобетонных плит.
Примечание - Крупные стеновые панели применяются высотой на этаж и длиной не менее размера помещения, которое они ограждают или разделяют.
3.13
монтаж: Сборка, установка в проектное положение с последующим постоянным закреплением конструкций или конструктивных элементов для дальнейшей нормальной эксплуатации здания, сооружения, технологического оборудования. |
3.14 изделие строительное (изделие): Элемент заводского изготовления, поставляемый на строительную площадку в готовом виде.
3.15 объемно-планировочный элемент: Обособленная часть сооружения или здания с определенным конструктивным решением, функциональным значением, формой и размерами равными высоте этажа, пролету и шагу.
3.16 плита перекрытия: Сборный горизонтальный плоскостной элемент сооружения, являющийся одновременно потолком нижележащего этажа и полом вышележащего этажа.
3.17 самобалансирующийся шестиветвевой строп: Строповочное приспособление из шести строп, выполненных из стальных канатов, которые соединены через систему полиспастов для обеспечения равных усилий натяжения в каждой ветви при подъеме плоских плит перекрытия размером на комнату с последующим их опиранием по двум и более сторонам.
3.18 стеновая панель: Вертикальный сборный элемент заводского изготовления, выполняющий несущую, ограждающую или совмещенную функцию в здании.
Примечание - Стеновая панель, высотой на этаж и длиной в плане не менее размера помещения, которое она ограждает или разделяет, называется крупной стеновой панелью, стеновые панели других размеров называются мелкими стеновыми панелями.
3.19 строп: Грузозахватное приспособление, выполненное обычно из каната или цепи (одна или несколько ветвей), снабженное на конце крюком, скобой, кольцом и т.п. |
3.20 траверса: Приспособление, применяемое для подъема краном грузов с их закреплением одновременно в нескольких местах при помощи грузозахватных средств, для перераспределения монтажных нагрузок.
Примечания
1 Траверса имеет вид балки или фермы треугольной формы.
2 В качестве грузозахватных устройств, смонтированных на траверсе, применяют стропы.
3.21 элемент конструкции (элемент): Составная часть сборной конструкции.
Примечание - Примерами элементов конструкции являются стержни решетчатой конструкции, шпалы.
3.22 конструктивный элемент здания (сооружения): Конструкция, выполняющая определенную функцию и являющаяся составной частью здания или сооружения.
Примечание - Примерами конструктивных элементов здания могут быть фундамент, стена, перекрытие, покрытие, лестница.
4.1 Строительные работы следует выполнять при наличии утвержденной в установленном порядке комплексной проектно-технологической документации - проектов КЖ (КР), проектов организации строительства (ПОС) и проектов производства работ (ППР), разработанных в соответствии с
СП 48.13330,
СТО НОСТРОЙ 2.33.14-2011,
СТО НОСТРОЙ 2.33.51-2011 и
СТО НОСТРОЙ 2.33.52-2011.
4.2 Выбор средств механизации и параметров возведения крупнопанельных зданий следует осуществлять в зависимости от конструктивной схемы здания. Виды конструктивных схем крупнопанельных зданий приведены в
приложении А.
4.3 За основу организации строительства монтируемых крупнопанельных зданий принимаются следующие положения:
- поточность строительства;
- комплектация и централизованная поставка по графикам всех материалов и изделий в специальных контейнерах через комплектовочную базу на каждый объект непосредственно на рабочее место;
- монтаж сборных конструкций подземной части возводимого крупнопанельного здания (далее - "подземной части") и надземной части возводимого крупнопанельного здания (далее - "надземной части") следует вести по часовым графикам транспортных средств;
- максимальное совмещение работ по монтажу сборных конструкций с внутренними общестроительными и специальными работами, включая монтаж лифтов и отделочные работы.
Примечание - Поставку комплектуемых материалов и изделий, необходимых в процессе монтажа и в послемонтажный период, а также трубных заготовок и приборов инженерного оборудования осуществляют по суточным графикам комплектно в контейнерах в соответствии с графиком монтажа основных конструкций возводимого крупнопанельного здания.
4.4 Сроки выполнения монтажных и других работ следует устанавливать на основании типового решения продолжительности работ по секциям, принятого ППР, и количества секций.
4.5 Для обеспечения своевременной подготовки объема работы и условий для поточного производства работ по возведению крупнопанельных зданий следует производить в два основных этапа (кроме подготовительного периода):
- подземная часть;
- надземная часть.
На каждом этапе возведения крупнопанельного здания продолжительность выполнения и степень совмещения работ устанавливается ППР.
Примечание - После завершения монтажа сборных конструкций могут выполняться отделочные работы.
4.6 К возведению подземной части разрешается приступать после выполнения:
- всего комплекса земляных работ, разбивки разбивочных осей;
- устройства и приемки свайного основания;
- сборных или монолитных фундаментов и ростверков.
4.7 До начала работ по возведению надземной части необходимо полностью закончить все работы подготовительного периода и возведению подземной части для данного объекта, включающие:
- прокладку подземных коммуникаций;
- планировку прилегающей территории;
- устройство постоянных или временных дорог из сборных железобетонных плит;
- устройство подкрановых путей;
- установку необходимых передвижных бытовых помещений, расположенных вне зоны работы башенного крана.
4.8 Монтаж сборных конструкций должен являться ведущим процессом. Остальные строительные работы, выполняемые при возведении крупнопанельного здания, следует подчинять темпу
<1> и ритму
<2> ведущего процесса.
--------------------------------
<1> Темп потока - показатель развития строительного потока во времени, определяющий количество продукции, выпущенной за единицу времени в условных единицах измерения.
<2> Ритм потока - продолжительность производства работ на одной захватке только одного цикла работ.
4.9 Монтажную зону возводимого крупнопанельного здания следует устраивать в соответствии со стройгенпланом ППР до начала выполнения монтажных работ надземной части и обозначать опасную зону работы крана в соответствии с СТО НОСТРОЙ 2.33.51-2011
(приложение И).
4.10 Организация строительной площадки должна быть выполнена в соответствии с требованиями СП 48.13330.2011
(подраздел 6.2), при этом территория строительной площадки должна быть ограждена временным инвентарным забором по
ГОСТ 23407.
Площадка для складирования строительных материалов должна соответствовать
ГОСТ 12.3.009. Складскую площадку следует располагать не ближе 1,5 м от ограждения подкранового пути.
Территория площадки, проходы, проезды и рабочие места должны быть освещены в соответствии с существующими требованиями по
ГОСТ 12.1.046. Освещение рабочих мест на захватках следует обеспечивать в соответствии с
ГОСТ 12.1.046.
Примечание - Приведенное требование можно обеспечить переносными прожекторами и прожекторами, установленными на башенном кране, а освещение складской площадки, проходов и проездов - прожекторами, установленными на инвентарных опорах.
4.11 Выезд следует оборудовать пунктом мойки колес в соответствии с СТО НОСТРОЙ 2.33.52
(раздел 11).
4.12 Для монтажа крупнопанельных зданий следует использовать башенные краны (один или несколько) с вылетом, обеспечивающим ведение монтажа на всю ширину возводимого крупнопанельного здания (с односторонним расположением крана).
4.13 Методика подбора башенного крана приведена в
Приложении Б.
4.14 Необходимо контролировать привязку к монтируемому крупнопанельному зданию линии установки башенного крана в соответствии с ПОС, для обеспечения сохранности имеющихся на территории инженерных сетей глубокого заложения.
4.15 Для подъема и спуска рабочих на этажи в период возведения и отделки возводимого крупнопанельного здания и для подачи строительных материалов следует применять грузопассажирские и грузовые подъемники. Типы, количество и расположение подъемников следует принимать в соответствии с ППР, при этом их установку необходимо осуществлять с противоположной от крановых путей стороны. На каждый монтажный поток следует устанавливать не менее одного грузопассажирского подъемника.
Грузопассажирские подъемники следует устанавливать с учетом
ГОСТ 33651 до начала возведения шестого этажа и наращиваться по ходу возведения крупнопанельного здания, обеспечивая подъем рабочих и грузов на монтируемые этажи.
Грузовые подъемники устанавливаются в сроки, определяемые ППР на отделочные работы.
При установке подъемников и их эксплуатации запрещается нарушать конструкцию оконных блоков. Одновременная работа подъемника и башенного крана на одной захватке не допускается.
Работа подъемников и башенного крана на каждом монтируемом крупнопанельном здании должна быть регламентирована в ППР.
4.16 Подкрановые пути следует устраивать из инвентарных усиленных рельсовых звеньев в соответствии с требованиями
ГОСТ Р 51248.
На расстоянии 1,5 м от концов подкранового пути и по обоим его торцам устанавливаются тупиковые опоры. Подкрановый путь должен быть заземлен в соответствии с требованиями
СП 76.13330.
Подкрановый путь следует ограждать инвентарными временными ограждениями высотой 1,0 м.
Примечание - При отсутствии инвентарных усиленных рельсовых звеньев допускается сборка секций рельсового пути из отдельных элементов непосредственно на строительной площадке.
4.17 В местах разгрузки панелевозов у возводимого крупнопанельного здания при сквозном проезде и ширине проезжей части менее шести метров необходимо устраивать из сборных железобетонных плит уширение дороги (до шести метров) длиной от 30 до 40 м, а при отсутствии сквозного проезда - дополнительную площадку из сборных плит, рассчитанную для стоянки отцепных панелевозов.
4.18 Работы по монтажу, консервации и демонтажу, начиная с входного контроля материалов и заканчивая сдачей-приемкой здания в целом или его отдельных частей, следует выполнять в соответствии с требованиями настоящего стандарта.
4.19 Транспортирование и хранение сборных конструкций должно осуществляться в соответствии с требованиями настоящего стандарта и
ГОСТ 13015.
Выбор транспортных средств должен быть произведен на стадии разработки ППР с учетом размеров сборных конструкций, дальности перевозки, дорожных условий.
Доставка сборных конструкций на строительную площадку осуществляется, как правило, автомобильным транспортом.
4.20 При транспортировании строительных материалов на строительные площадки необходимо, как правило, использовать постоянные дороги и проезды. Ширина дорог должна быть не менее 4,2 м при одностороннем движении и не менее 6,0 м при двустороннем. Минимальный радиус закругления дорог при условии проезда по ним крупногабаритных машин должен быть не менее 18 м (радиус рассчитывают по внутренней границе закругления дороги).
4.21 Перевозимые в вертикальном положении стеновые панели и плиты перекрытий требуют использования специальных панелевозов, обеспечивающих безопасность и неповреждаемость сборных конструкций при перевозке.
4.22 При проведении строительных работ следует использовать материалы, указанные в проекте.
5 Применяемые строительные материалы
5.2 Для связи стеновых панелей между собой с помощью монолитного железобетона следует использовать:
- арматуру классов А240 и А400 по
ГОСТ 5781, класса А500С по
ГОСТ Р 52544, класса Ан600С из стали марки 20Г2СФБА (основные характеристики приведены в
СТО НОСТРОЙ/НОП 2.6.98-2014) и класса А500СП (основные характеристики приведены в ТУ 14-1-5526-2006
[3]).
5.5 Изготовление бетона или раствора на строительной площадке следует производить на инвентарных растворных узлах, с учетом рекомендаций, изложенных в СП 82-101-98 [
4,
раздел 5].
5.6 Для сварки стальных и арматурных изделий между собой следует использовать электроды марки Э42 или Э42А по
ГОСТ 9467, сварочную проволоку по
ГОСТ 2246, порошковую проволоку по
ГОСТ 26271 и СП 16.13330.2011
(приложение Г).
5.8 Плиты перекрытия должны соответствовать требованиям
ГОСТ 12767 и иметь толщину от 100 до 200 мм из тяжелых и легких бетонов.
5.9 Лифтовые шахты должны соответствовать требованиям
ГОСТ 17538.
5.10 Плиты балконов и лоджий должны соответствовать требованиям
ГОСТ 25697.
5.11 Лестничные марши и площадки должны соответствовать требованиям
ГОСТ 9818.
5.12 Блоки вентиляционные должны соответствовать требованиям
ГОСТ 17079.
5.13 Перегородки должны соответствовать требованиям
ГОСТ 12504.
5.14 Фундаментные блоки стеновые должны соответствовать требованиям
ГОСТ 13579.
5.15 Плиты железобетонные ленточных фундаментов должны соответствовать требованиям
ГОСТ 13580.
6 Оснастка для монтажа сборных конструкций
6.1 Монтаж сборных конструкций следует вести с применением оснастки, соответствующей требованиям
ГОСТ 24259,
ГОСТ 25032 и Р НОСТРОЙ 2.7.16-2016.
6.2 Применяемая монтажная оснастка подлежит обслуживанию и строительному контролю в соответствии с требованиями технических условий на оснастку,
ГОСТ 34017,
СП 48.13330,
СНиП 12-04, а также рекомендуется учитывать положения
РД 10-33-93 [5] и инструкции изготовителя.
Примечания
1 Строительный контроль применяется с целью проверки соответствия качества применяемых типов монтажной оснастки.
2 Строительный контроль и обслуживание оснастки осуществляет ответственное лицо, назначенное приказом руководителя организации.
6.3 Эксплуатация оснастки с выявленными повреждениями и дефектами не допускается.
6.4 Грузозахватные средства, используемые для подъема и транспортирования монтируемых сборных конструкций, следует подбирать исходя из требуемой грузоподъемности для производства работ в соответствии с
РД 31.45.03-82 [6], режима работы по
ГОСТ 34017 (от 1 К до 8 К) и условий работы подъемной машины в соответствии с
ГОСТ 15150 (климатическое исполнение "У" и "ХЛ").
6.4.1 Для монтажа сборных конструкций следует применять грузозахватные средства с гибким и жестким подвесом в соответствии с указанием ППР.
Примечания
1 К грузозахватным средствам с гибким подвесом относятся канатные (СК) и цепные (СЦ) стропы с захватами (крюки, карабины и т.п.).
2 К грузозахватным средствам с жесткой подвеской относятся решетчатые и балочные траверсы.
6.4.1.1 Монтаж сборных конструкций ведут с применением канатных (СК) и цепных (СЦ) строповых грузозахватов (стропы с захватами) следующих типов:
- 1СК (1СЦ) - одноветвевые стропы (см. изображение а)
рисунка 6.1);
- 2СК (2СЦ) - двухветвевые стропы (см. изображение б)
рисунка 6.1);
- 3СК (3СЦ) - трехветвевые стропы (см. изображение в)
рисунка 6.1);
- 4СК (4СЦ) - четырехветвевые стропы (см. изображение г)
рисунка 6.1);
- УСК (ЦСУ) - универсальные стропы (см. изображение д)
рисунка 6.1);
- самобалансирующийся шестиветвевой строп (см.
рисунок 6.2);
- строповое устройство с дистанционным отцеплением (см.
рисунок 6.3).
а) одноветвевой строп 1СК; б) двухветвевой строп 2СК;
в) трехветвевой строп 3СК; г) четырехветвевой строп 4СК;
д) универсальный канатный строп УСК
Рисунок 6.1 - Канатные стропы
Рисунок 6.2 - Балансирный шестиветвевой строп с роликами
1 - подвеска; 2 - обойма с блоками; 3 - чалочная ветвь;
4 - крюк с карабином; 5 - уравнительный канат;
6 - тяга с крюком; 7 - груз
а) общий вид стропа; б) схема крюка при транспортировании
груза; в) схема отцепления крюков грузозахватного устройства
Рисунок 6.3 - Специальный строп с уравнительными канатами
и дистанционной отцепкой крюков
6.4.1.3 Маркировочная бирка должна содержать сведения о грузоподъемности, дате испытания и порядковом номере стропа в системе нумерации предприятия-изготовителя.
6.4.1.4 Не допускаются к эксплуатации стропы:
- при отсутствии или повреждении маркировочной бирки;
6.4.1.5 Для строповки горизонтальных элементов длиной по горизонтали 12 м и более, а также при ограниченной высоте подъема крюка следует применять балочные (см.
рисунок 6.4) или решетчатые (см.
рисунок 6.5) траверсы.
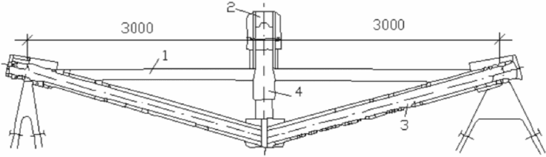
1 - подвеска; 2 - растяжной канат; 3 - серьга; 4 - скоба;
5 - канатный (балансирный) строп; 6 - ролик; 7 - балка
Рисунок 6.4 - Универсальная балансирная траверса
балочной конструкции
1 - связь; 2 - подвеска; 3 - балка; 4 - стойка
Рисунок 6.5 - Траверса решетчатая грузоподъемностью 10 т
для подъема стеновых панелей
6.4.1.6 Траверсы должны быть снабжены маркировочной биркой с указанием:
- грузоподъемности;
- даты испытания;
- порядкового номера траверсы в системе нумерации предприятия-изготовителя.
6.4.1.7 Не допускаются к эксплуатации траверсы:
- при отсутствии или повреждении маркировочной бирки;
- имеющие дефекты и повреждения, соответствующие браковочным показателям инструкции производителя.
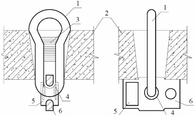
6.4.2 Для подъема плит перекрытий следует использовать анкерные грузозахватные средства, действие которых основано на удержании груза за счет фиксации захвата в технологических отверстиях плит перекрытий. Следует использовать следующие типы анкерных захватов:
а) захват коромыслового типа; б) стержневой захват
(резьбовой вариант); в) стержневой захват (клиновой вариант)
Рисунок 6.6 - Петли-захваты для подъема плит, имеющих
сквозные отверстия
1 - петля; 2 - плита перекрытия; 3 - ребро жесткости;
4 - ограничитель; 5 - противовес; 6 - поворотная планка
Рисунок 6.7 - Захват петлевой
6.4.3 Грузозахватные средства следует применять в соответствии с условиями их эксплуатации по
ГОСТ 15150 и Р НОСТРОЙ 2.7.16-2016.
6.5 Монтажные приспособления для выверки и временного закрепления конструкций в соответствии с
ГОСТ 24259 классифицируются:
- по функциональному назначению;
- по количеству элементов конструкций, устанавливаемых с помощью одного приспособления;
- по конструктивному решению.
6.5.1 По функциональному назначению монтажные приспособления классифицируются:
- удерживающие;
- ограничивающие;
- удерживающе-ограничивающие.
6.5.1.1 К удерживающим приспособлениям относятся:
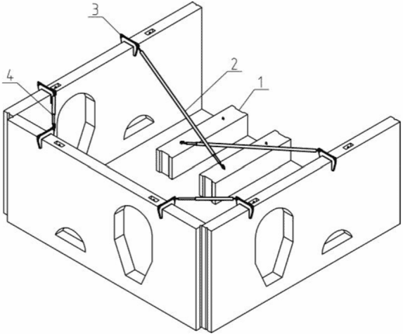
- стойки.
Примечание - Стойка является разновидностью подкоса и распорки.
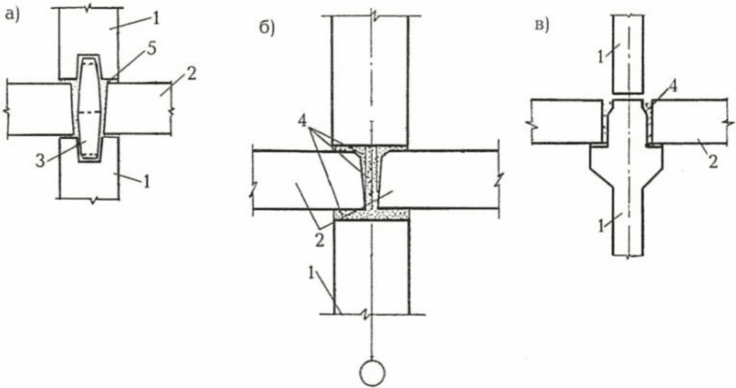
1 - плита перекрытия; 2 - панель стеновая; 3 - подкос;
4 - распорка; 5 - балконная плита; 6 - растяжка; 7 - упор
а) схема подкоса; б) схема распорки; в) схема растяжки
Рисунок 6.8 - Удерживающие приспособления
6.5.1.2 Монтажные приспособления должны быть снабжены клеймом или биркой с указанием:
- допускаемой нагрузки;
- даты испытания;
- порядкового номера в системе нумерации предприятия-изготовителя.
6.5.1.3 К ограничивающим приспособлениям относятся:
1 - стеновая панель; 2 - фиксатор; 3 - упор
а) схема фиксатора; б) схема упора
Рисунок 6.9 - Ограничивающие приспособления
6.5.1.4 К удерживающе-ограничивающим приспособлениями относятся:
- кондукторы.
1 - стеновая панель; 2 - связь угловая
Рисунок 6.10 - Схема угловой связи
6.6 Приспособления для безопасного производства работ и улучшения условий труда должны соответствовать требованиям
11.3.
6.7 К приспособлениям для безопасного производства работ относятся:
- инвентарные лестницы;
- инвентарные подмости;
- люльки;
- инвентарные передвижные площадки.
7 Геодезические работы и выверка сборных конструкций
7.1 Геодезические работы при возведении крупнопанельных зданий следует производить в соответствии с требованиями
СП 126.13330, при этом необходимо выполнить:
- создание геодезической разбивочной основы (ГРО) на местности по
7.2 -
7.4;
- построение ГРО на монтажном горизонте по
7.5,
7.11;
- перенос разбивочных осей при возведении подземной части и составление исполнительных схем смонтированных конструкций по
7.8 -
7.9;
| | ИС МЕГАНОРМ: примечание. В официальном тексте документа, видимо, допущена опечатка: пункт 7.27 отсутствует. | |
- перенос разбивочных осей на монтажные горизонты, подготовительные работы к монтажу стеновых панелей и составление исполнительных схем конструкций по
7.10 - 7.27.
7.2 До начала выполнения строительных работ заказчик обязан передать генподрядчику техническую документацию на ГРО и закрепленные на строительной площадке пункты и знаки этой основы, в том числе:
- оси, определяющие положение и габариты возводимого крупнопанельного здания в плане, закрепленные створными знаками в количестве не менее четырех на каждую ось;
- оси, ограничивающие захватки;
- реперы в количестве не менее двух, расположенные по разные стороны от возводимого крупнопанельного здания.
7.3 Места расположения геодезических знаков следует оградить деревянными обносками для их сохранности согласно СП 126.13330.2012
(раздел 7).
7.4 Приемке-передаче геодезических работ на подготовительном этапе подлежат знаки закрепления разбивочных осей и реперы в натуре и по акту согласно СП 126.13330.2012
(раздел 7). Допускается осевые знаки и высотные отметки закреплять на ранее смонтированных элементах трудносмываемой краской.
7.5 Для определения на местности положения возводимого крупнопанельного здания в плане и по высоте заказчик обязан создать ГРО, включающую перенос разбивочных осей на монтажный горизонт, вынос высотных отметок для определения монтажного горизонта и др.
7.6 Геодезические работы по созданию ГРО на исходном горизонте следует выполнять с точностью второго класса по
СП 126.13330.
7.7 Допускаемые средние квадратические погрешности не должны превышать при:
- измерении углов - 10";
- измерении линий - 1/5000;
- вынесении или определении отметок - 2 мм.
7.8 Перенос разбивочных осей при возведении подземной части следует производить тахеометрами или теодолитами (см.
приложение В) на инвентарные металлические скамейки или смонтированные железобетонные конструкции.
7.9 После окончания строительных работ по возведению подземной части следует составлять исполнительные схемы смонтированных конструктивных элементов в соответствии с ГОСТ Р 51872-2002
(раздел 4).
В соответствии с ГОСТ Р 51872
(раздел 4) правильность составления исполнительных схем должны проверять совместно геослужба, приступающая к возведению надземной части, и геослужбы организаций, окончивших работы по возведению подземной части.
7.10 Количество контрольных измерений в соответствии с
ГОСТ 23616 должно быть не менее:
а) в плане:
- пяти стеновых панелей;
- одной лифтовой шахты на каждую секцию возводимого крупнопанельного здания;
б) по высоте:
- одна отметка опорной поверхности на каждые 50 м2 сдаваемого участка.
7.11 Допустимые отклонения от проектных положений разбивочных осей на монтажном горизонте в монтируемых крупнопанельных зданиях не должны превышать следующих значений:
- расстояние между крайними разбивочными осями по длине:
а) двухсекционные возводимого крупнопанельного здания - +/- 6 мм;
б) трехсекционные возводимого крупнопанельного здания - +/- 8 мм;
в) четырехсекционные возводимого крупнопанельного здания - +/- 10 мм;
- расстояние между крайними разбивочными осями по ширине возводимого крупнопанельного здания - +/- 3 мм.
7.12 До начала монтажа стеновых панелей следует производить:
- выравнивание монтажного горизонта по
7.13 -
7.18;
- отметку ориентирных рисок по
7.19 -
7.20.
7.13 Под каждую устанавливаемую стеновую панель следует нивелировать две точки нивелиром, соответствующим требованиям
ГОСТ 10528. Места расположения точек нивелирования и устройства маяков приведены на
рисунке 7.1.
1 - места установки маяков
Рисунок 7.1 - Схема установки маяков под монтаж
стеновых панелей
7.14 Нивелирование следует выполнять в условной системе высот, принятой в проекте.
7.15 По данным нивелирования отметку монтажного горизонта
Hср следует вычислять по формуле:
| | ИС МЕГАНОРМ: примечание. Формула дана в соответствии с официальным текстом документа. | |

(1)
где h1, h2 - отсчеты по рейке;
n - число нивелируемых точек.
7.16 Определение фактического отклонения (высоты маяка) Vi каждой нивелируемой точки от отметки монтажного горизонта следует производить по формуле:

(2)
7.16.1 В точках нивелирования плит перекрытий, где фактические отклонения отметок точек нивелирования превышают десять миллиметров, высоту маяков следует уменьшать до минимально допустимого (пять миллиметров). Места превышений следует отметить краской на перекрытии: +5 мм. Толщина растворной постели в таких местах должна составлять пять миллиметров.
7.16.2 В точках нивелирования стыков плит перекрытий и наружных стеновых панелей, где фактические отметки Vi занижены относительно отметки монтажного горизонта Hср, маяки более 25 мм устанавливать не допускается. Маяки максимальной высоты (25 мм) следует устанавливать только в местах наибольшего занижения стыков плит перекрытий и наружных стеновых панелей.
7.17 При выверке монтируемых конструкций с помощью нивелира длина визирного луча не должна превышать 40 м, за исходную точку нивелировки следует принять любое выступающее из перекрытия металлическое закладное изделие.
7.18 Нивелирование монтажного горизонта следует производить на каждом этаже в соответствии с
7.15.
Колебания отметок монтажного горизонта не должны превышать величин, указанных в
таблице 7.1.
Наименование отклонений | Значение предельных отклонений в мм |
Разность отметок верха опорных площадок плит перекрытий каждого этажа в пределах выверяемого участка при установке по маякам | 10 |
Разность отметок опорных поверхностей двух смежных стеновых панелей (при проверке по верху и установке по маякам) | 10 |
7.19 Разметку ориентирных рисок следует выполнять от точек базисной осевой системы на монтажном горизонте (см.
рисунок 7.2).
1 - точки базисной осевой системы; 2 - линия, от которой
производится разбивка; 3 - ориентирные риски
Рисунок 7.2 - Пример схемы разметки ориентирных рисок
Схемы размещения рисок должны быть приведены в проекте производства геодезических работ (ППГР). Ориентирные риски для монтажа на схемах должны быть указаны для всех несущих и ограждающих стеновых панелей, а также лифтовых шахт и сантехкабин (см.
рисунок 7.2). Для каждой стеновой панели следует наносить три риски: две в продольном направлении и одну - в поперечном.
Продольные ориентирные риски необходимо смещать на величину привязки стеновой панели к оси плюс 200 мм (см.
рисунок 7.3).
1 - рейка с уровнем; 2 - продольные ориентирные риски;
3 - поперечные ориентирные риски
Рисунок 7.3 - Схема нанесения на перекрытие
ориентирных рисок до монтажа стеновых панелей
Ориентирные риски в поперечном направлении необходимо смещать от торцов устанавливаемых стеновых панелей на 200 мм.
7.20 При нанесении ориентирных рисок следует соблюдать однообразие в смещении на всех этажах.
7.21 Установку стеновых панелей в проектное положение в нижнем сечении следует производить по риске с использованием шаблона. Величина нижней горизонтальной планки, как правило, принимается равной 200 мм.
Выверку стеновых панелей в отвесном положении следует выполнять рейкой с уровнем или отвесом, при этом предельные отклонения при монтаже стеновых панелей приведены в
таблице 7.2 и СП 70.13330.2012
(раздел 6.1).
Наименование отклонений | Значения предельных отклонений в мм |
Смещение граней стеновых панелей относительно ориентирных рисок в нижнем сечении | 5 |
Отклонение плоскостей стеновых панелей в верхнем сечении от вертикали (на высоту этажа) | 10 |
Несоосность двух смежных по высоте стеновых панелей | 15 |
7.22 Ориентирование при установке лифтовых шахт следует производить от ориентирных рисок.
Для каждой лифтовой шахты следует выносить ориентирные риски двух взаимно перпендикулярных стен в соответствии с типовыми технологическими картами по монтажу отдельных конструкций жилых зданий (см.
рисунок 7.4).
1 - риски в продольном направлении;
2 - риска в поперечном направлении
Рисунок 7.4 - Схема расположения ориентирных рисок
при установке лифтовых шахт
7.23 Выверку лифтовых шахт, сантехнических кабин следует производить по рискам (см.
7.22) с использованием шаблона (как показано на
рисунке 7.2, позиция 1). Выверку следует производить в соответствии с типовыми технологическими картами по монтажу отдельных конструкций жилых зданий.
7.24 Значения предельных отклонений при монтаже лифтовых шахт в соответствии с
СП 70.13330 приведены в
таблице 7.3. Низ дверного проема лифтовой шахты следует устанавливать на 20 мм ниже отметки лестничной панели перекрытия.
Наименование отклонений | Значение предельных отклонений в мм |
Отклонение от ориентированных рисок передних стенок лифтовых шахт в нижнем сечении | 5 |
Отклонение от вертикали передней и боковой стенок лифтовой шахты | 10 |
Отклонение по высоте порога дверного проема относительно посадочной площадки | +/- 10 |
Отклонение внутренней плоскости стен ствола шахты от отвесной линии на высоту шахты | 20 |
7.25 По окончании возведения каждого этажа следует производить исполнительную съемку (в соответствии с указаниями
СП 70.13330) планового и высотного положения смонтированных элементов.
Положение стеновых панелей в нижнем сечении необходимо определять от ориентирных рисок, а отклонение плоскостей стеновых панелей - от вертикали в верхнем сечении.
В тех случаях, когда по результатам исполнительных съемок погрешности монтажа элементов превышают допуски
СП 70.13330 необходимо выполнить демонтаж и переустановку элементов. После чего выполнить повторную съемку.
7.26 При использовании приборов вертикального проецирования для передачи разбивочных осей на монтажный горизонт следует предусматривать специальные отверстия размером 15 x 15 см.
8.1
Возведение подземной части
8.1.1 Возведение подземной части должно соответствовать требованиям проектной документации и включать:
- устройство фундаментов по
8.1.2;
- монтаж сборных конструкций подземной части по
8.1.7 -
8.1.12.
8.1.2 Устройство фундаментов мелкого заложения монтируемых крупнопанельных зданий следует производить для:
- монолитных железобетонных фундаментов по
8.1.5.
8.1.3 Монтаж сборных ленточных фундаментов мелкого заложения следует производить в соответствии с
СП 70.13330 по захваткам. На каждой захватке монтаж сборных ленточных фундаментов начинают с укладки угловых и маячных плит и блоков, расположенных по крайним разбивочным осям секции и (или) на пересечениях продольных и поперечных разбивочных осей. Железобетонные плиты ленточных фундаментов укладывают на выровненную песчаную подушку толщиной 50 мм. Промежуточные плиты ленточных фундаментов устанавливают по натянутому шнуру между маячными плитами или согласно проекту.
| | ИС МЕГАНОРМ: примечание. В официальном тексте документа, видимо, допущена опечатка: имеется в виду СП 71.13330.2017, а не СП 71.13330.2012. | |
8.1.4 По фундаментным плитам ленточных фундаментов, следует устраивать гидроизоляцию в соответствии с
СП 71.13330.2012. Фундаментные стеновые блоки следует устанавливать по СП 70.13330.2012 (
пункты 6.2.21 -
6.2.24) с перевязкой вертикальных швов в соответствии с СП 70.13330.2012
(пункт 6.2.24) по всей длине ленточных фундаментов и в местах пересечения внутренних и наружных стен. Между фундаментными блоками оставляют проемы для ввода коммуникаций в соответствии с проектным положением фундаментных блоков. По фундаментным блокам стен устраивают монолитный армированный пояс жесткости в соответствии с СТО НОСТРОЙ 2.6.54-2011
(раздел 4) и затем монтируют стеновые панели наружных и внутренних стен подземной части.
8.1.5 При применении монолитной фундаментной плиты плитных фундаментов стеновые панели подземной части следует устанавливать в соответствии с (
8.1.8 -
8.1.9) непосредственно на плиту.
Примечание - Подземная часть используется, как правило, только для размещения и обслуживания коммуникаций. Стеновые панели имеют проемы для прокладки коммуникаций и перемещения обслуживающего персонала.
8.1.6 До начала монтажа стеновых панелей подземной части следует производить:
- обратную засыпку их пазух в соответствии с СП 45.13330.2017 (
пункты 11.29 -
11.31);
- подсыпку под полы в соответствии с СП 29.13330.2011
(раздел 9);
- отметку высоты монтажного горизонта в соответствии с
разделом 7;
- разбивку мест установки стеновых панелей в соответствии с
разделом 7;
- установку краном анкерных блоков для временного закрепления стеновых панелей (см.
рисунок 8.1) в соответствии с СП 70.13330.2012
(пункт 6.1.4).
8.1.7 При возведении подземной части как правило следует применять рельсовые стреловые краны (нулевики) грузоподъемностью от 5 до 30 т с длиной стрелы от 14 до 37 м, которые обеспечивают наибольшую производительность монтажа конструкций.
8.1.8 Монтаж подземной части ведут захватками, размер которых следует определять в соответствии с ППР.
8.1.8.1 Монтаж подземной части на захватке начинают с наиболее удаленных от крана элементов
<1>.
--------------------------------
<1> Такой принцип монтажа называется в строительстве "на кран".
8.1.8.2 Монтаж стеновых панелей подземной части следует начинать с базовых стеновых панелей
<1>.
--------------------------------
<1> Под базовыми стеновыми панелями понимают не менее двух стеновых панелей одного направления и одной стеновой панели ортогонального направления, входящих в образуемый ими замкнутый контур.
8.1.8.3 Монтаж стеновых панелей следует вести в следующей последовательности:
- установку не менее двух подкладок (маяков), обеспечивающих соблюдение требуемой отметки уровня и горизонтальности нижней грани монтируемой стеновой панели (см.
8.2.12);
- нанесение слоя цементно-песчаного раствора толщиной, превышающей уровень маяков от трех до пяти мм;
- подъем и установку монтируемой стеновой панели;
- временное закрепление монтируемой стеновой панели анкерным стеновым блокам (см.
рисунок 8.1) при помощи телескопических подкосов в соответствии с типовыми технологическими картами по монтажу отдельных конструкций жилых зданий;
- выверку монтируемой стеновой панели;
- постоянное закрепление монтируемой стеновой панелей.
1 - анкерные стеновые блоки; 2 - подкос телескопический;
3 - струбцина; 4 - монтажная связь
Рисунок 8.1 - Использование анкерных стеновых блоков
в качестве якорей для временного крепления стеновых панелей
8.1.9 После установки базовых стеновых панелей (см.
8.1.8) стеновые панели следует закреплять распорками и угловыми связями в соответствии с типовыми технологическими картами по монтажу отдельных конструкций жилых зданий (см.
рисунок 8.2 и
рисунок 8.3).
1 - стеновая панель; 2 - фундамент; 3 - осевой зажим;
4 - распорка; 5 - струбцина; 6 - подкос; 7 - анкер;
8 - угловая связь
а) крепление стеновых панелей внутренних поперечных стен;
б) крепление стеновых панелей внутренних продольных стен
Рисунок 8.2 - Схемы временного крепления стеновых панелей
внутренних стен при возведении подземной части
с использованием горизонтально-связевой системы
1 - стеновая панель; 2 - фундамент; 3 - осевой зажим;
4 - распорка; 5 - угловая связь
Рисунок 8.3 - Схема временного крепления цокольных стеновых
панелей наружных стен при возведении подземной части
с использованием горизонтально-связевой системы
8.1.10 Монтаж плит перекрытий подземной части здания производят в соответствии с СП 70.13330.2012
(раздел 6) после установки, выверки и проектного закрепления всех вертикальных сборных конструкций на данной захватке в соответствии с СП 70.13330.2012
(раздел 6) и загрузки необходимых материалов на монтируемый этаж.
8.1.11 После монтажа плит перекрытий на захватке производят работы по заделке, герметизации стыков и устройству пристенного дренажа и вертикальной наружной гидроизоляции в соответствии с СП 45.13330
(раздел 15),
СП 71.13330, СТО НОСТРОЙ 2.7.151-2014
(раздел 8), СТО НОСТРОЙ 2.7.156-2014
(раздел 8).
8.1.12 Отклонения разбивочных осей здания и элементов от проектного положения не должны превышать отклонения, приведенные в
7.11,
7.18,
7.21,
7.24 и
7.25.
8.2
Возведение надземной части
| | ИС МЕГАНОРМ: примечание. В официальном тексте документа, видимо, допущена опечатка: пункт 8.2.13 отсутствует. | |
8.2.1 Возведение надземной части следует вести согласно ППР и с учетом
пунктов 8.2.2 - 8.2.13.
8.2.2 При возведении надземной части используют одноцикличную (см.
8.2.2.1) или двухцикличную технологию (см.
8.2.2.2).
8.2.2.1 При одноцикличной технологии возведения надземной части монтаж сборных конструкций следует совмещать с внутренними работами на этаже (устройство перегородок, заполнение проемов, подготовка под полы и др.).
8.2.2.2 При двухцикличной технологии возведения надземной части внутренние работы следует выполнять отдельным потоком.
8.2.3 В зависимости от размера и конструктивной схемы секций возводимого крупнопанельного здания, в ППР должен быть определен размер захватки (одна или две секции) и цикличность.
8.2.4 В первую очередь следует производить монтаж стеновых панелей наружных стен (см.
8.2.12) из-за необходимости завершения работ по устройству между ними вертикальных стыков и их обработки (см.
8.3) до начала монтажа внутренних стеновых панелей, примыкающим к данным стыкам, при этом в горизонтальных стыках наружных стеновых панелей с водоотбойным зубом следует устраивать дополнительную герметизацию гернитовым шнуром ПРП 40 по
ГОСТ 19177 и мастиками ТУ 84-246-85
[7].
Примечание - Заделку стыков наружных стеновых панелей, как правило, выполняют отдельные звенья рабочих параллельно с монтажом сборных конструкций.
8.2.5 Монтаж сборных конструкций на захватке начинают с наиболее удаленных от крана элементов
<1>.
--------------------------------
<1> Такой принцип монтажа называется в строительстве "на кран".
8.2.6 Все соединения конструктивных элементов выполняются на сварке в соответствии с
ГОСТ 14098 и с учетом положений, приведенных в РТМ 393-94 [
8,
раздел 6] с применением монтажных металлических связей в соответствии с проектом.
8.2.7 Заполнение стыков бетоном или раствором при монтаже конструкций надземной части необходимо выполнять в соответствии с
8.2.11 с применением указанных в проекте классов и марок бетона и цементно-песчаного раствора, соответствующих требованиям
раздела 5.
8.2.8 Окончательное закрепление сборных конструкций (см.
8.2.12 разрешается только после устранения недопустимых отклонений (
пункты 7.18,
7.21 и
7.24).
8.2.9 После монтажа сборных конструкций выступающие над их поверхностью подъемные петли следует срезать углошлифовальной машиной (УШМ) заподлицо с поверхностью конструкций. Подъемные петли, находящиеся в лунках под петли, не срезаются и лунки заделываются цементным раствором.
8.2.10 После приемки смонтированных сборных конструкций, до окончания монтажных работ на данном монтажном горизонте, все места сварных соединений, включая металлические связи, должны быть защищены от коррозии в соответствии с СП 28.13330.2017
(раздел 5.5) и заделаны цементным раствором в соответствии с проектом.
8.2.11 Установка, временное крепление и выверка вертикальных сборных конструкций (стеновых панелей, перегородок, лифтовых шахт, сантехнических кабин, вентиляционных блоков, блоков инженерных коммуникаций) включает:
- отметку высоты монтажного горизонта в соответствии с
разделом 7;
- разбивку мест установки вертикальных сборных конструкций с нанесением разметки на плиты перекрытий в соответствии с
разделом 7;
- нанесение тонкого слоя безосновного рулонного резинобитумного материала на основе вяжущего из девулканизированной утильной резины и укладку в стыках сборных элементов уплотняющей прокладки по ГОСТ 19177
(раздел 2) на нижележащие стеновые панели (только для наружных стеновых панелей);
- установку не менее двух подкладок (маяков), обеспечивающих соблюдение требуемой отметки уровня и горизонтальности нижней грани, монтируемой вертикальной сборной конструкции
(8.2.12.1);
- нанесение слоя цементно-песчаного раствора толщиной превышающей уровень маяков от трех до пяти мм;
- подъем и установку вертикальной сборной конструкции;
- временное закрепление и выверку вертикальной сборной конструкции;
- постоянное закрепление вертикальной сборной конструкции.
8.2.11.1 Устройство маяков производится путем нанесения цементно-песчаного раствора или гипса в точках нивелирования, высота маяков определяется в соответствии с отметками монтажного горизонта. Прочность материала маяка должна быть ниже прочности бетона сборной конструкции.
8.2.11.2 При монтаже вертикальных сборных конструкций в стыках используют цементно-песчаный раствор со следующими характеристиками:
- подвижность растворной смеси должна соответствовать П
к2 по
ГОСТ 28013;
- марка затвердевшего раствора не ниже чем указано в
8.2.7 и не ниже М150;
- морозостойкость затвердевшего раствора, применяемого при монтаже наружных стеновых панелей не ниже чем указано в
8.2.7.
8.2.11.3 Раствор следует наносить на опорные поверхности вертикальных сборных конструкций сплошным слоем непосредственно перед монтажом и плотно обжимать в соответствии с СП 70.13330.2012
(пункт 6.5.1).
8.2.11.4 Раствор следует использовать до начала схватывания и не более чем через два часа после приготовления. Запрещено разбавлять раствор водой и применять его в таком виде для монтажных работ.
8.2.11.5 При подъеме стеновых панелей следует использовать двухветвевой строп (см. изображение б) на
рисунке 6.1 и
рисунок 6.3), а также балочную или решетчатую траверсу (см.
рисунок 6.4 и
6.5).
8.2.11.6 После опускания стеновой панели на место установки и совмещения ее с разметкой на плите перекрытия следует установить не менее двух временных подкоса и закрепить их к стеновой панели и плите перекрытия (см.
рисунок 8.4), и только после этого произвести расстроповку. Выверку следует осуществлять в соответствии с требованиями
7.21 -
7.24
Примечание - Использование коротких подкосов (см. на изображении б)
рисунка 8.4) позволяет обходиться без стремянок при их закреплении на стеновой панели. Выверку стеновой панели по отвесу (или по рейке-отвесу) производят вращением натяжной муфты.
1 - наружная панель; 2 - монтажная петля панели; 3 - верхняя
захватная головка; 4 - гайка с барашком; 5 - труба подкоса;
6 - натяжная муфта; 7 - клиновой захват; 8 - плита
перекрытия; 9 - верхний захват с натяжным устройством;
10 - нижний захватывающий крюк с натяжной муфтой;
11 - внутренняя стеновая панель; 12 - универсальный захват
а) бесструбцинный подкос с винтовым зажимом;
б), в) укороченный подкос
Рисунок 8.4 - Временное крепление наружных
и внутренних стеновых панелей
8.2.11.7 При монтаже вертикальных сборных конструкций следует не допускать образования пустых или частично не заполненных швов. При наличии таких швов их необходимо заполнить раствором в процессе монтажа.
8.2.11.8 При монтаже лифтовых шахт и сантехнических кабин следует использовать четырехветвевой строп (изображение г) на
рисунке 6.1). Выверку следует осуществлять в соответствии с требованиями
7.21 -
7.24.
8.2.11.9 При монтаже стеновых панелей внутренних стен для временного крепления и выверки вместо подкосов используют треугольную опору (фиксатор), устанавливаемую в торце стеновой панели (см.
рисунок 8.5) или в дверном проеме.
Примечание - При монтаже стеновых панелей внутренних стен целесообразно применять специальные фиксаторы, закрепляемые на перекрытии и обеспечивающие принудительную фиксацию стеновой панели в проектном положении. Применение штыревых фиксаторов, устанавливаемых в стыках перекрытия (см.
рисунок 8.6), обеспечивает также соосность стеновых панелей внутренних стен при платформенном стыке.
1 - скоба; 2 - шайба; 3 - гайка; 4 - винт; 5 - рукоять;
6 - уголок для фиксации струбцины
Рисунок 8.5 - Фиксатор для временного крепления
стеновых панелей внутренних стен
1 - стеновая панель; 2 - плиты перекрытия; 3 - фиксатор;
4 - цементно-песчаный раствор
а), б) платформенные; в) контактный
Рисунок 8.6 - Стыки стеновых панелей
внутренних несущих стен и плит перекрытий
8.2.11.10 После окончания монтажа вертикальных сборных конструкций, выдавливаемые из горизонтальных швов излишки раствора следует зачищать вровень с лицевыми поверхностями монтируемых элементов.
8.2.11.11 Соединение стеновых панелей наружных и внутренних стен между собой производится приваркой по РТМ 393-94 [
8,
раздел 6] в соответствии с требованиями
ГОСТ 5264 и СТО НОСТРОЙ 2.10.64-2012
(раздел 14.2) к оцинкованным металлическим закладным изделиям металлических накладок, в соответствии с проектом. Защиту сварных соединений от коррозии следует выполнять в соответствии с СП 28.13330.2017
(раздел 5.5).
8.2.11.12 Заполнение горизонтальных и вертикальных швов между стеновыми панелями наружных и внутренних стен следует выполнять цементно-песчаным раствором марки не ниже, чем указано в
8.2.7 и не ниже, чем М150 после устройства постоянного закрепления между стеновыми панелями стен и перекрытия и выполнения антикоррозионной защиты сварных соединений стыков (см.
8.2.11.11). Следует обеспечивать полное заполнение шва.
8.2.11.13 Вертикальные швы между стеновыми панелями внутренних стен заполняют звукоизоляционным материалом в соответствии с проектом. Заполнение звукоизоляционным материалом производится одновременно с монтажом внутренних стен или при ведении послемонтажных процессов с отставанием от монтажа на 2 - 3 этажа.
8.2.11.14 После монтажа стеновых панелей наружных и внутренних стен монтируют лестничные марши, лифтовые шахты, перегородки, стенки лоджий, вентиляционные блоки и другие вертикальные сборные элементы.
Примечание - При монтаже лестничных маршей, как правило, используют специальный четырехветвевой строп (с попарно разной длиной строп), обеспечивающий при подъеме проектный уклон марша.
8.2.11.15 При монтаже вентиляционных блоков и блоков инженерных коммуникаций не допускается попадание внутрь них раствора в местах их соединения.
8.2.11.16 После монтажа всех вертикальных сборных конструкций на смонтированный этаж подают материалы, необходимые для выполнения общестроительных, плотнично-столярных, санитарно-технических и электротехнических работ, которые будут выполняться после монтажа вышележащего перекрытия.
8.2.11.17 Отклонения вертикальных сборных конструкций от проектного положения не должны превышать указанных в
разделе 7 и
8.6.7.1.
8.2.12 До начала монтажа плит перекрытия должно быть проведено окончательное закрепление всех вертикальных элементов проектными связями (см.
8.2.11.11).
8.2.12.1 Монтаж плит перекрытий начинают с ячеек, примыкающих к лестничной клетке. Для подъема плит перекрытий к месту монтажа используют четырех- и шестиветвевой строп (см. изображение г) на
рисунке 6.1 и
рисунок 6.2).
8.2.12.2 Первую плиту перекрытия устанавливают с подмостей. Последующие плиты перекрытия - со смонтированных плит перекрытия.
8.2.12.3 Отклонения при монтаже плит перекрытий от проектного положения не должны превышать указанных в
8.6.7.1.
8.2.12.4 Плиты перекрытия соединяют между собой сваркой металлических связей с последующим омоноличиванием цементно-песчаным раствором.
8.2.12.5 При монтаже плит перекрытий контролируют (см.
8.6.2.5) длины опирания плит на стены и совмещение нижних плоскостей плит (при наличии стыков плит над помещениями) и вертикальные отметки плит перекрытий в 4 углах.
8.3.1 Конструкция стыков стеновых панелей должна исключать возможность проникания атмосферной влаги на внутренние поверхности ограждений, препятствовать переувлажнению материалов заполнения стыков и прилегающих к стыкам участков стен. Сопротивление стыков панелей воздухопроницанию и их теплозащитные свойства должны соответствовать требованиям
СП 50.13330.
Примечание - Стыки по ориентации различают горизонтальные и вертикальные.
8.3.2 Стыки должны обеспечивать требуемые изолирующие свойства в зависимости от климатических условий района строительства и конструкции наружных стеновых панелей.
Примечание - Стыки по способу обеспечение требуемых изолирующих свойств подразделяют на: закрытые, дренированные и открытые.
8.3.3 Конструкции горизонтальных и вертикальных стыков панелей следует предусматривать однотипными.
8.3.4.1 В закрытых стыках для их герметизации следует устанавливать уплотняющие прокладки, на которые наносят с внешней стороны герметизирующую мастику. При применении нетвердеющих мастик следует предусматривать защитное покрытие.
8.3.4.2 В горизонтальных закрытых стыках рекомендуется проектировать противодождевые гребень и зуб. В панелях из ячеистого, а также из легкого бетона толщиной 400 мм и более допускается предусматривать плоские горизонтальные стыки без гребня и зуба.
8.3.4.3 На стыкуемых поверхностях панелей необходимо предусматривать грунтовочные покрытия. В устьях стыков необходимо предусматривать установку уплотняющих прокладок с последующим нанесением по ним герметизирующих мастик. Выбор типа мастики следует производить в соответствии с Проектно-сметной документацией (ПСД) в зависимости от климатических условий района строительства и длины стыкуемых панелей.
Примечание - Для герметизации закрытых и дренированных стыков панелей (в том числе панелей длиной более 4 м), при температурах эксплуатации от минус 50 °C до 70 °C рекомендуется применять мастику АМ-0,5 характеристики которой приведены в ТУ 84-246-85
[7].
8.3.4.4 Необходимо также предусматривать защиту мастик от климатических воздействий с помощью полимерцементных растворов, поливинилхлоридных, бутадиенстирольных, кумаронокаучуковых красок.
8.3.4.5 Защитное покрытие по отверждающимся мастикам допускается не предусматривать.
8.3.4.6 Расположение изолирующих материалов в устьях стыков следует проецировать с заглублением относительно фасадной плоскости панелей наружных стен.
8.3.4.7 Диаметр уплотняющих прокладок следует применять дифференцированно с учетом фактического размера зазора стыка в пределах допускаемых отклонений.
8.3.5 Дренированные стыки следует выполнять с учетом требований
8.3.5.1 -
8.3.5.4.
8.3.5.1 В дренированных стыках герметизация выполняется аналогично закрытым стыкам, но дополнительно предусматривается декомпрессионный канал, служащий для выравнивания давлений воздуха на поверхности стены и внутри стыка и отвода случайно проникшей в стык воды.
Примечание - В торцевых панелях, формуемых фасадной стороной вниз и образующих при сопряжении с рядовыми панелями угловой вертикальный стык, декомпрессионный канал не предусматривают.
8.3.5.2 При сопряжении смежных панелей каналы следует располагать соосно для образования вертикальной декомпрессионной полости.
Примечание - Декомпрессионная полость в пересечении вертикального и горизонтального стыков располагается над водоотводящим фартуком.
8.3.5.3 Поверх фартука на верхней горизонтальной плоскости противодождевого гребня следует предусматривать уплотняющую прокладку длиной 500 мм (по 250 мм от оси вертикального стыка).
8.3.5.4 Устройство грунтовочных покрытий, установку уплотняющих прокладок, выбор, нанесение и защиту герметизирующих мастик следует производить по
8.3.4.3 -
8.3.4.7.
8.3.6 Открытые стыки следует выполнять с учетом требования
8.3.6.1 -
8.3.6.5.
8.3.6.1 В стыках открытого типа на торцевых поверхностях наружных стеновых панелей необходимо предусматривать гидрофобные покрытия.
8.3.6.2 Для водозащиты открытых вертикальных стыков следует проектировать установку в них водоотбойных лент (экранов) и профилей-направляющих из пластмасс на основе ПВХ или уплотнителей У-образного профиля. Возможно применение других видов водоотбойных экранов.
8.3.6.3 В пересечениях вертикальных и горизонтальных открытых стыков следует предусматривать водоотводящие фартуки. В панелях с выносным противодождевым зубом водоотводящие фартуки должны располагаться в подрезках, расположенных на верхних торцовых гранях панелей.
8.3.6.4 В колодцах вертикальных стыков, приведенных в
8.3.5, следует предусматривать воздухоизоляцию с помощью воздухозащитных лент и (или) уплотняющих прокладок, устанавливаемых на клеях в соответствии с проектом (см.
рисунок 8.7).
1 - воздухозащитная лента; 2 - уплотняющая прокладка
на клее типа КН; 3 - теплоизоляция
а) стык с воздухозащитной лентой; б) стык с уплотняющей
прокладкой; в) стык с комбинированной изоляцией
Рисунок 8.7 - Варианты устройства воздухозащитной изоляции
Применение пергамина и рубероида для оклеечной воздухоизоляции не допускается.
8.3.6.5 Для воздухозащиты горизонтальных стыков следует применять уплотняющие прокладки прямоугольного или круглого сечения.
8.3.7 В вертикальных и горизонтальных стыках всех типов (кроме стыков панелей из ячеистых бетонов) рекомендуется предусматривать теплоизоляцию вкладышами из пенополистирола или других теплоизоляционных материалов. Допускается при обосновании теплотехническими, прочностными и экономическими расчетами применять для теплоизоляции стыков их замоноличивание легким бетоном на пористых заполнителях.
8.3.8 Устройство воздухо- и теплоизоляции в колодцах вертикальных стыков должно быть выполнено до установки внутренних стеновых панелей, в соответствии с проектом.
Расположение арматурных связей в стыке не должно мешать качественному замоноличиванию.
8.3.9 Герметизацию стыков наружных стеновых панелей производить в соответствии с проектом.
8.4
Выполнение специальных работ
8.4.1 Параллельно с монтажом сборных конструкций при возведении крупнопанельного здания ведутся строительные работы, выполняемые специализированными организациями (субподрядчиками):
- санитарно-технические;
- электромонтажные.
8.4.2 Санитарно-технические работы начинаются после монтажа первых двух-трех этажей. На первом этапе монтируют все трубопроводы стояков по захваткам. На втором этапе работы выполняют три звена без деления на захватки. Первое звено монтирует систему отопления. Второе звено - водопровод, канализацию и водостоки. Третье звено ведет монтаж всех систем, расположенных в техническом подполье. Монтаж системы отопления, как правило, ведется с некоторым опережением, обеспечивающим включение отопления в нижних этажах здания до окончания монтажа конструкций верхних этажей. Раннее включение отопления, особенно в зимний период, требуется для увеличения срока просушки конструкций перед отделочными работами, которые начинают с нижних этажей после устройства кровли.
8.4.3 Электромонтажные работы также выполняются параллельно с монтажом конструкций здания и разделяются на два этапа. Первый этап начинается с прокладки проводок групповых сетей квартир и лестничных клеток в подземной части. После монтажа пяти-шести этажей начинают установку распределительных шкафов на этажах и монтаж магистралей, питающих групповые сети. Второй этап выполняется одновременно с отделочными работами после устройства кровли и заключается в монтаже розеток, выключателей и светильников, наладке систем, устройстве слаботочных сетей. Наряду с системами радиовещания и телефонизации монтируют также сети диспетчерской связи, охранной сигнализации, домофонов, противопожарного оповещения и др.
8.5
Выполнение отделочных работ
8.5.1 Отделочные работы выполняются в следующей последовательности:
- штукатурные работы и устройство стяжек под полы;
- облицовочные и плиточные работы;
- первый этап малярных работ;
- устройство полов;
- завершающие малярные работы, оклейка стен обоями, шлифовка паркета.
8.5.2 Отделочные работы в крупнопанельных зданиях начинают после завершения основных монтажных работ и устройства кровли. Одновременно с монтажом выполняют только штукатурные работы, связанные с обработкой мест сопряжений сборных железобетонных элементов. Необходимым условием начала отделочных работ является обеспечение требуемого температурно-влажностного режима в помещениях. Поэтому работы начинают, как правило, с нижних этажей, где в более ранние сроки было включено отопление. Следует отметить, что качество и долговечность отделочных покрытий увеличивается с увеличением срока между окончанием монтажа конструкций и началом отделочных работ. Увеличение перерывов между отдельными процессами отделочных работ также способствует повышению их качества.
8.5.3 Для подачи материалов на этажи и подъема людей используют грузопассажирские и грузовые подъемники, устанавливаемые до начала отделочных работ.
8.6
Контроль выполнения работ
8.6.1 При подготовке, выполнении и приемке работ следует осуществлять входной контроль и операционный контроль, а также оценку соответствия выполненных работ требованиям проекта и технических регламентов.
8.6.2 Входной контроль необходимо осуществлять при приемке строительных материалов с целью подтверждения соответствия их характеристик проектным.
Результаты входного контроля заносятся в журнал входного контроля.
8.6.2.1 При входном контроле должны проводиться:
- контроль состава проектной документации;
- контроль применяемых строительных материалов, указанных в
разделе 5.
8.6.2.3 Входной контроль строительных материалов включает:
а) внешний осмотр и проверку:
- наличия и содержания сопроводительных технических документов, подтверждающих соответствие продукции требованиями проекта;
б) измерение геометрических показателей продукции и проверку допускаемых их отклонений от требований технических условий, проекта и
приложения Г;
в) определение показателей качества продукции в случае отсутствия сопроводительных документов, выявленных внешним осмотром дефектов, и в других заранее оговоренных заказчиком случаях.
8.6.2.4 Прочность бетона железобетонных сборных конструкций определяют по
ГОСТ 18105. Инструментальные измерения прочностных параметров выполняют с использованием метода упругого отскока по
ГОСТ 22690, ультразвукового метода по
ГОСТ 17624, а для железобетонных сборных конструкций с наименьшими показателями прочности также методом отрыва со скалыванием по
ГОСТ 22690. Измерения выполняют:
- сразу после поступления железобетонных сборных конструкций на строительную площадку (прочность должна соответствовать отпускной, установленной в зависимости от времени года, но не менее 70% от проектного значения);
- до ввода здания в эксплуатацию, но не ранее 28 суток с момента изготовления железобетонных сборных конструкций (фактический класс бетона Bф должен быть не ниже проектного значения).
Объем продукции, подлежащей контролю устанавливают в ППР.
8.6.2.6 Материалы, не принятые по результатам входного контроля по
8.6.2.3, возвращаются изготовителю с рекламацией. При невозможности возвращения материалов их следует хранить отдельно и использовать только по согласованию с проектной организацией.
8.6.2.7 Металл, используемый для арматурных работ, должен соответствовать требованиям
5.1 -
5.2.
Примечание - Специальные требования по приемке, маркировке, упаковке, транспортированию и хранению металлоконструкций приведены в
ГОСТ 7566.
8.6.2.8 Подтверждение соответствия показателей поставленных металлических изделий требованиям проектной документации и техническим условиям на их изготовление по
8.6.2.3 (см. перечисление в)) должно быть получено путем проведения испытаний по методикам, приведенным в
ГОСТ 12004 и
ГОСТ 14019 или в сопроводительных технических документах поставщиков.
8.6.3 При выполнении строительных работ должен проводиться операционный контроль выполнения:
- выноса на монтажный горизонт геодезических отметок и разметки мест установки сборных конструкций;
- подготовки поверхности-основания сборных конструкций;
- проверки готовности элементов к монтажу;
- установки и временного раскрепления конструкций;
- герметизации стыков;
- арматурных работ;
- сварочных работ;
- антикоррозионных работ;
- постоянного закрепления в соответствии с проектным решением;
- установки опалубки;
- бетонных работ.
8.6.4 Операционный контроль выноса на монтажный горизонт геодезических отметок и разметки мест установки конструкций проводится перед началом возведения каждого этажа.
8.6.5 Операционный контроль подготовки поверхности-основания железобетонного элемента (плита, ригель, колонна и т.п.) проводится до установки элементов с целью проверки отсутствия пыли, грязи, мусора, снега, льда и т.п., наличие естественной или искусственно образованной шероховатости поверхности, обеспечивающей надежность сцепления и совместную работу с бетонной смесью.
8.6.6 Операционный контроль готовности элементов к монтажу проводится перед монтажом конструкции с целью проверки отсутствия грязи, наледи, снега, наплывов и брызг бетона на поверхности закладных изделий.
8.6.7 Операционный контроль установки и временного раскрепления сборной конструкции проводится во время монтажа сборной конструкции, при этом проверяется соответствие точности монтажа монтируемого элемента в соответствие с
СП 70.13330 и допусками на отклонения, а также надежности временного закрепления строительной конструкции.
8.6.7.1 Отклонения смонтированных конструкций подземной части не должны превышать следующих значений:
- смещение стеновых панелей относительно разбивочных осей (в нижнем сечении) - +/- 8 мм;
- отклонение от вертикали стеновой панели - +/- 10 мм;
- уменьшение опирания перекрытия на стеновую панель - 10 мм.
8.6.8 Операционный контроль герметизации стыков, обеспечивающий их плотность, непродуваемость и водонепроницаемость, включает проверку:
- устройства воздухоизоляции стыков;
- установки теплоизоляционных вкладышей;
- установки уплотняющих прокладок;
- устройства водоотбойного экрана;
- устройства защитного покрытия.
8.6.8.1 Качество сцепления воздухоизоляционной ленты с поверхностью панели контролируется методом отрыва. При надлежащем сцеплении отрыв происходит по материалу ленты.
Примечание - Адгезию воздухозащитной ленты допускается определять в соответствии с Рекомендациями [
10,
раздел 8].
8.6.8.2 Операционный контроль качества герметизации стыков мастикой, включает:
- проверку подготовки поверхностей кромок стыков;
- контроль температуры мастики;
- контроль толщины и непрерывности слоя мастики.
8.6.8.3 Выполнение герметизационных работ фиксируется в журнале контроля качества герметизационных работ и отмечается посменно на фасадных схемах герметизации стыков в этом журнале.
8.6.10 При операционном контроле установки соединений арматуры и других металлических изделий следует:
а) визуально:
- убедиться в отсутствии на металле наледи, следов бетонной смеси, масляных пятен, коррозии и ржавчины;
- проверить правильность применяемого способа сварки по
РТМ 393-94 [8];
- проверить на отсутствие дефектов каждое сварное соединение и перевязку вязальной проволокой;
б) в соответствии с требованиями
ГОСТ 26433.2 выполнить измерения следующих геометрических параметров:
- установки элементов усиления;
- длин соединений скобой и в нахлесточных соединениях;
в) провести оценку правильности установки элементов усиления сравнением полученных результатов измерений геометрических параметров их установки с предусмотренными в проектной документации и в
СП 70.13330 допусками на отклонения.
8.6.11 При операционном контроле выполнения сварочных работ следует контролировать: соблюдение заданного технологического режима сварки и качество сварных швов.
8.6.12 При операционном контроле нанесения защитного покрытия от воздействия внешней среды следует контролировать: технологию нанесения антикоррозионных составов, толщину отдельных слоев и общую толщину покрытия, внешний вид покрытия и прочность сцепления с защищаемой поверхностью.
8.6.13 Операционный контроль соответствия постоянного закрепления проектному решению заключается в проверке соответствия геометрических размеров сборных конструкций и их расположения проекту.
8.6.14 Операционный контроль устройства опалубки заключается в проверке соответствия ее требованиям
ГОСТ 34329 по результатам выполнения измерений по
ГОСТ 26433.2 геометрических размеров и визуального контроля качества соединений.
8.6.15 Операционный контроль бетонирования должен выполняться в соответствии с требованиями
СП 70.13330 и включать:
а) проверку поверхности-основания по
8.6.5;
б) контроль параметров бетонной смеси по
8.6.2.9;
в) визуальный контроль уплотнения бетонной смеси;
г) визуальный контроль выдерживания и ухода за бетоном.
8.6.16 Результаты операционного контроля выполнения работ, не указанных в
8.6.17, должны быть оформлены записью в журналах общего или специального выполнения работ при строительстве по формам, приведенным в
РД 11-05-2007 [12].
8.6.17 Результаты операционного контроля выполнения работ по
8.6.5 -
8.6.15 должны быть оформлены актами освидетельствования скрытых работ по форме, приведенной в РД 11-02-2006 [
13,
приложение 3], а для работ по герметизации стыков - также в журнале специальных работ.
8.6.18 Оценка соответствия выполненных работ требованиям проекта и технических регламентов должна производиться в комплексе по всем видам общестроительных работ по возведению здания в целом или его отдельных частей.
8.6.19 Оценка соответствия выполненных работ требованиям проекта и технических регламентов должна выполняться в соответствии с требованиями
СП 68.13330 и предусматривать:
- проверку наличия сертификатов, технических паспортов или других сопроводительных документов (записей в журнале входного контроля), удостоверяющих качество материалов, сборных конструкций и изделий, применяемых при производстве строительных работ, требованиям проектной документации и ППР;
- проверку соответствия результатов промежуточных обследований и выборочных проверок выполненных конструкций требованиям проекта;
- визуальная проверка соответствия фактически выполненных конструкций (наличие или отсутствие перегородок, проемов, отверстий и т.п.) рабочим чертежам проекта и внесенным в них изменениям, оформленным в соответствии с требованиями СП 68.13330.2017
(пункт 4.10);
- инструментальную проверку требованиям проекта сечений элементов и катета швов сварных металлических конструкций штангенциркулями по
ГОСТ 166, линейками по
ГОСТ 427 и рулетками по
ГОСТ 7502 с учетом требований СП 70.13330.2012
(подраздел 10.5);
- проверку результатов испытаний материалов и их соединений, применяемых при производстве работ, на соответствие их требованиям проектной документации и ППР;
- проверку актов (освидетельствования и приемки) и записей в общем журнале и журнале специальных работ, а также в журнале авторского надзора;
- проверку иной исполнительной документации при производстве работ, предусмотренной проектной документацией,
СП 11-110-99 [14] и другими нормативными документами, регламентирующими порядок ведения исполнительной документации.
8.6.20 При оценке качества монтажа сборных конструкций следует использовать современные геодезические приборы и другой измерительный инструмент, позволяющий определять отклонения от проектных геометрических параметров с погрешностью, не превышающей 0,2 от значения предельного (допустимого) отклонения. Выбор измерительных средств осуществляют в соответствии с
ГОСТ 23616. Перечень приборов для контроля качества монтажа сборных конструкций приведен в СТО НОСТРОЙ 2.33.79-2012
(приложение В).
8.6.21 Оценка соответствия проекту бетонирования производится после снятия опалубки и заключается в визуальной проверке отсутствия непробетонированных зон, раковин, определения величин защитных слоев в соответствии с требованиями
ГОСТ 31384 и
СП 28.13330. Необходимо также провести контроль прочности бетонной смеси на ранее подготовленных образцах и контроль прочности уложенного бетона.
8.6.22 Контроль прочности уложенного бетона следует осуществлять косвенными неразрушающими методами - ультразвуковым, упругого отскока, пластических деформаций по
ГОСТ 17624,
ГОСТ 22690 и прямыми неразрушающими методами - отрыв со скалыванием, скол ребра по
ГОСТ 22690.
8.6.23 Если результаты оценки соответствия характеристик бетона отличаются от проектных и полученных с завода-изготовителя, проводят дополнительные испытания образцов, заготовленных при бетонировании и твердевших в тех же условиях, что и бетон в конструкции по
ГОСТ 10180. При отсутствии образцов, заготовленных при бетонировании, проводят испытания образцов, отобранных из конструкции по
ГОСТ 28570. Необходимость дополнительного усиления определяет проектная организация.
8.6.24 По результатам оценки соответствия проекту выполненного усиления производится оценка влияния выявленных дефектов на конструкционную целостность всего усиления.
8.6.25 Выявленные дефекты и отступления от проекта или требований нормативных документов должны быть устранены или согласованы организацией - автором проекта, в порядке, установленном
СП 11-110-99 [14].
9 Демонтаж строительных конструкций
9.1 Демонтаж строительных конструкций выполняется на основе ППР и утвержденной технологической карты, разработанной проектной организацией и обеспечивающей безопасное ведение работ.
Примечание - Необходимость демонтажа отдельных строительных конструкций возникает при реконструкции здания или при их повреждении в процессе монтажа или эксплуатации здания.
9.2 При демонтаже следует учитывать конструктивные, объемно-планировочные и другие особенности здания.
9.3 В процессе демонтажа необходимо исключить возможность повреждения инженерных сетей или других строительных конструкций здания.
9.4 Демонтаж отдельных сборных конструкций может выполняться следующими способами:
- демонтаж отдельной сборной конструкции целиком (без деления на части);
- демонтаж отдельной сборной конструкции по частям.
9.4.1 Демонтаж отдельной сборной конструкции целиком с использованием крана включает:
- предварительную прорезку всех швов омоноличивания;
- проверку отсутствия креплений в опорных зонах;
- подъем краном.
Вес демонтируемой сборной конструкции не должен превышать грузоподъемности крана. При демонтаже сборной конструкции не должно возникать дополнительных усилий от связи с остальными сборными конструкциями, что следует визуально контролировать при подъеме демонтируемой сборной конструкции краном.
Примечания
1 Резка швов омоноличивания, как правило, производится инструментами с алмазным напылением.
2 Выход кранов из строя или аварийные ситуации при демонтаже возникают в случаях, когда в сборных конструкциях не полностью прорезаны швы омоноличивания и не проверено отсутствие крепления сборной конструкции в опорных зонах.
9.4.2 Демонтаж отдельной сборной конструкции по частям включает:
- установку дополнительных опор и инвентарных страховочных стоек;
- резку сборной конструкции на части дисковыми пилами или канатными установками.
Примечание - Установка дополнительных опор производится для фиксации демонтируемых и оставляемых частей.
9.5 Состав работ по демонтажу и порядок их выполнения должны соответствовать ППР.
10 Консервация недостроенного здания при временном прекращении работ
10.1 Состав работ при консервации недостроенного здания (консервации) зависит от предполагаемого срока консервации, периода действия (зимний, летний) и определяется специально разработанным ППР.
10.2 До консервации в обязательном порядке должна быть выполнена обратная засыпка пазух и защита от намокания материалов и конструкций, изменяющих свои свойства при насыщении водой, особенно в период ее замерзания.
10.3 При консервации на зимний период необходимо устройство временного кровельного покрытия и заполнение всех оконных и наружных дверных проемов изоляционным материалом для обеспечения непродуваемости.
10.4 В зимний период необходима еженедельная проверка сохранности защитных конструкций.
10.5 При расконсервации
<1> до возобновления строительных работ необходимо выполнить сплошное обследование строительных конструкций в соответствии с
ГОСТ 31937 с составлением дефектной ведомости, определением категории технического состояния конструкций, выполнением необходимых поверочных расчетов и разработкой рекомендаций по устранению обнаруженных дефектов и повреждений.
--------------------------------
<1> Процесс, обратный консервации.
11 Правила безопасного выполнения работ
11.2 Безопасное выполнение работ должно быть обеспечено при выполнении:
- погрузочно-разгрузочных работ;
- монтажных работ;
- отделочных и специальных работ;
- работ по демонтажу;
- консервации.
11.2.1 Погрузочно-разгрузочные работы следует выполнять механизированным способом с использованием подъемно-транспортного оборудования и средств малой механизации.
11.2.2 После установки конструкции в проектное положение необходимо произвести ее закрепление (постоянное или временное) согласно требованиям проекта. При этом должна быть обеспечена устойчивость и неподвижность смонтированной конструкции при воздействии монтажных и ветровых нагрузок. Закрепление конструкций следует производить с помощью предварительно установленных в них элементов (закладные детали), обеспечивая геометрическую неизменяемость возводимого сооружения.
11.3 Средства подмащивания, приставные лестницы и другие приспособления должны обеспечивать безопасность производства работ и соответствовать требованиям
ГОСТ 26887,
ГОСТ 24259,
ГОСТ 24258.
(справочное)
ВИДЫ КОНСТРУКТИВНЫХ СХЕМ КРУПНОПАНЕЛЬНЫХ ЗДАНИЙ
А.1 Крупнопанельные здания имеют следующие виды конструктивных систем (см.
рисунок А.1):
- стеновую;
- перекрестно-стеновую.
Примечания
1 При стеновой конструктивной системе несущими являются продольные (продольно-стеновая система) или поперечные стены (поперечно-стеновая система).
2 При перекрестно-стеновой конструктивной системе несущими являются продольные и поперечные стены.
1 - несущие поперечные стены; 2 - несущие продольные стены;
3 - несущие наружные стены; 4 - стеновая панель наружной
стены; 5 - стеновая панель внутренней стены;
6 - стеновая панель эркера
а) с продольными несущими стенами; б) с узким шагом
поперечных несущих стен; в) с широким шагом поперечных
несущих стен; г) с продольными и поперечными
несущими стенами
Рисунок А.1 - Основные конструктивные схемы
крупнопанельных зданий
А.2 При продольно-стеновой конструктивной системе все наружные стены являются несущими. Шаг поперечных стен, являющихся поперечными диафрагмами жесткости, составляет не более 24 м.
А.3 При поперечно-стеновой конструктивной системе наружные продольные стены являются ненесущими. Несущие поперечные стены, как правило, являются сквозными на всю ширину здания, а внутренние продольные стены располагают так, чтобы они хотя бы попарно объединяли поперечные стены.
А.4 При перекрестно-стеновой конструктивной системе наружные стены - несущие, а размеры конструктивных ячеек назначают так, чтобы каждая из них перекрывалась одной или двумя плитами перекрытий.
А.5 Подземная часть крупнопанельных зданий включает:
- фундаменты (ленточные, свайные фундаменты с монолитными ростверками или фундаментную плиту из монолитного железобетона);
- наружные стены из железобетонных трехслойных панелей;
- внутренние стены из железобетонных однослойных панелей;
- перекрытия из плоских железобетонных панелей с каналами и проемами для инженерных коммуникаций;
- входы в техническое подполье, крыльца и др. из сборных железобетонных элементов.
А.6 Надземная часть включает:
- наружные стены из трехслойных железобетонных панелей;
- внутренние стены из однослойных железобетонных панелей;
- перекрытия из плоских железобетонных панелей с каналами и проемами для инженерных коммуникаций;
- лифтовые шахты железобетонные;
- лестничные марши и площадки железобетонные;
- плиты лоджий и балконов железобетонные;
- гипсобетонные перегородки;
- санитарные узлы из гипсобетонных кабин с железобетонным поддоном;
- вентиляционные блоки железобетонные ненесущие высотой на этаж;
- электропанели ненесущие высотой на этаж;
- элементы плоской крыши.
А.7 Для устройства перегородок используют однослойные стеновые панели из тяжелого, легкого или автоклавного ячеистого бетона, а также гипсобетона размером на комнату (при необходимости с дверными проемами).
Примечания
1 Толщина стеновых панелей из автоклавного ячеистого бетона и гипсобетона для межкомнатных перегородок составляет от 80 мм до 100 мм.
2 При применении двойных межквартирных перегородок толщина воздушного промежутка между стеновыми панелями должна быть не менее 60 мм.
А.8 Компоновка блок-секций крупнопанельного здания производится из ограниченного числа повторяющихся компоновочных элементов, при этом предусматриваются следующие типы блок-секций:
- рядовая;
- торцевая;
- угловая;
- поворотная.
Примечание - Для обеспечения наибольшего разнообразия по размерам и планировке квартир жилых крупнопанельных зданий используется система КОПЭ (компоновочный объемно-планировочный элемент), в которых блок-секции можно компоновать из различных КОПЭ, обеспечивая требуемый набор квартир. Для блокировки секций между собой используют компоновочные элементы блокировки (КЭБ).
А.9 Крупнопанельные здания могут иметь сложную конфигурацию в плане, переменную этажность, различные конструкции лоджий, эркеров и балконов, мансардные этажи со свободной планировкой, разнообразный характер наружной отделки стеновых панелей, при этом шаг между несущими стенами составляет 4,2 - 9,0 м.
Примечание - Возможно возведение крупнопанельных зданий с наружными стенами из кирпича.
А.10 В зданиях свыше 16-и этажей для повышения пространственной жесткости (восприятия ветровых нагрузок) устраиваются армированные пояса на уровне перекрытий 10 ... 13 этажей. Возможны и другие решения - устройство монолитных стен жесткости или объемных монолитных ядер жесткости.
(рекомендуемое)
ВЫБОР КРАНОВ ДЛЯ МОНТАЖА СБОРНЫХ КОНСТРУКЦИЙ
Б.1 Исходными данными при выборе самоходных стреловых кранов являются габариты и объемно-планировочное решение крупнопанельного здания, параметры и рабочее положение грузов, технология монтажа, условия производства работ.
Б.2 Выбору кранов предшествует определение организационных методов монтажа, характеризующих направление и последовательность установки сборных конструкций, установление мест расположения и схемы движения кранов.
Б.3 Выбор башенного крана начинают с предварительного определения трех основных технических параметров: грузоподъемности, высоты подъема крюка и вылета стрелы. Расчетная схема приведена на
рисунке Б.1.
| | ИС МЕГАНОРМ: примечание. Текст дан в соответствии с официальным текстом документа. | |
H - высота подъема крюка; h1 - высота последнего монтажного
горизонта от уровня стоянки крана; h2 - высота подъема
сборной конструкции над опорой (h2 = 1 м); h1 - высота
(толщина) сборной конструкции; h1 - высота строповки;
B - ширина крупнопанельного здания; b - расстояние до оси
рельсового пути, рассчитанное из условия обеспечения
безопасного расстояния (не менее 1 м) от крупнопанельного
здания до наиболее выступающей части крана; L - вылет стрелы
Рисунок Б.1 - Расчетная схема для выбора башенного крана
Б.3.1 Грузоподъемность
Q, т, определяется по формуле
Q = k·qэл + qстр, (Б.1)
где k - коэффициент, учитывающий увеличение массы элемента относительно расчетной, принимаемый равным 1,07;
qэл - масса наиболее тяжелой сборной конструкции, т;
qстр - суммарная масса строповочного устройства, монтажных приспособлений, элементов усиления, т.
Б.3.2 Высота подъема крюка
H, м (см.
рисунок Б.1), определяется по формуле
H = h1 + h2 + h3 + h4, (Б.2)
где h1 - высота последнего монтажного горизонта от уровня стоянки крана, м;
| | ИС МЕГАНОРМ: примечание. Текст дан в соответствии с официальным текстом документа. | |
h2 - высота подъема сборной конструкции над опорой (h1 = 1 м);
h3 - высота сборной конструкции в монтажном положении, м;
h4 - высота строповки, м.
Б.3.3 Вылет стрелы L, м, определяется по формуле:
L = B + b + 1, (Б.3)
где B - ширина здания, м;
b - расстояние от здания до оси рельсового пути, рассчитанное из условия обеспечения безопасного расстояния (не менее 1 м) от крупнопанельного здания до наиболее выступающей части крана, м.
Б.3.4 После предварительного выбора крана в соответствии со схемой на
рисунке Б.1 определяют вылеты при монтаже критических сборных конструкций (самой тяжелой, самой удаленной и т.д.) и по графику грузоподъемности выбранного крана проверяют возможность монтажа указанных сборных конструкций.
Б.4 Выбор самоходного стрелового крана для монтажа открытых сборных конструкций осуществляют по двум параметрам - грузоподъемности и высоте подъема крюка, которые определяют также согласно
Б.3.1 -
Б.3.2. Вылет крана при этом близок к минимальному значению, при котором кран имеет минимальный запас по грузоподъемности и обеспечивает лучшие экономические показатели монтажа.
Б.5 При выборе самоходного стрелового крана для монтажа закрытых сборных конструкций наиболее простым является графический метод определения необходимых параметров крана (длина стрелы и вылет, при котором обеспечивается необходимая грузоподъемность).
| | ИС МЕГАНОРМ: примечание. Текст дан в соответствии с официальным текстом документа. | |
Б.5.1 Для графического определения необходимой длины стрелы и вылета вычерчивают в любом масштабе контуры имеющейся крупнопанельного здания (см.
рисунок Б.2), проводят вертикальную ось M-M через центр тяжести монтируемой сборной конструкции и горизонтальную ось N-N через шарнир стрелы крана.
L - вылет стрелы; H - высота подъема крюка; M-M - ось,
проходящая через центр тяжести монтируемой сборной
конструкции; N-N - ось, проходящая через шарнир стрелы
крана; A - точка, определяющая безопасное расстояние
от стрелы до ранее смонтированных строительных конструкций;
B - наиболее низкое положение оголовка стрелы; C - точка
пересечения оси стрелы крана с осью N-N; D - точка,
определяющая безопасное расстояние от груза
до стрелы крана
Рисунок Б.2 - Схема графического определения
необходимых параметров стрелового крана
Ось стрелы крана (без гуська) проводят через точки A (или D) и B до пересечения с осью N-N. Точка A и D определяет безопасное расстояние стрелы до ранее смонтированных сборных конструкций и от монтируемой сборной конструкции до стрелы крана, точка B - наиболее низкое положение оголовка стрелы. Расстояние от крюка до оголовка стрелы (длина полиспаста), расстояние от уровня стоянки крана до шарнира стрелы, расстояние от шарнира до оси вращения крана, зависящие от конструктивных особенностей крана, принимают условно 1,5 м. Полученную необходимую длину стрелы BC и вылет стрелы L измеряют линейкой.
Вращая ось стрелы вокруг точки A (см. пунктирные линии на
рисунке Б.2), находят положения крана с уменьшенным вылетом стрелы. С учетом требуемых параметров
Q и
H по графикам грузоподъемности, вылета и высоты выбирают технически пригодные краны наименьшей мощности (грузоподъемности).
Б.6 Приведенный графический метод используется также в случае, когда самоходный кран для комплексного потока выбран предварительно по наиболее тяжелой сборной конструкции и необходимо определить пригодность данного крана для монтажа плит покрытия.
(рекомендуемое)
ИЗМЕРИТЕЛЬНЫЕ ПРИБОРЫ И ИНСТРУМЕНТЫ
В.1 Приборы, инструменты и оборудование и приспособления, используемые для монтажа сборных конструкций, и контролируемые ими параметры приведены в
таблице В.1. Приборы, отмеченные в
таблице В.1 знаком "*", следует применять по инструкции изготовителя.
Наименование оборудования, прибора, инструмента | Контролируемый параметр |
Рулетки различной длины (1; 2; 5; 10 и 20 м) по ГОСТ 7502 | Размеры строительных конструкций |
| Сечения элементов глубина отверстий |
| Расстояние между строительными конструкциями |
| Определение толщины металлических конструкций |
| Определение толщины металлических элементов |
| Отклонение конструкции от вертикали |
| Измерение вертикальных отметок, перемещений |
Лазерный нивелир* | Измерение превышения точек земной поверхности |
| Измерение вертикальности конструкции |
| Измерения отклонения конструкций от горизонтали |
| Контроль горизонтальности поверхности |
Молотки ударного действия Физделя, Кашкарова* | Определение прочности бетона методом пластических деформаций |
| | ИС МЕГАНОРМ: примечание. Текст в графе "Наименование оборудования, прибора, инструмента" дан в соответствии с официальным текстом документа. | |
|
Молотки пружинного действия типа НИИМострой, борового, Шмидта* | Определение прочности бетона методом пластических деформаций |
Ультразвуковые приборы, ультразвуковые тестеры* | Определение прочности бетона |
Портативные измерительные прессы по ГОСТ 713 | Измерение прочности бетона в построечных условиях |
Измеритель прочности бетона методом скола ребра* | Измерение прочности бетона в натурных условиях |
Электронный склерометр | Контроль прочности и однородности бетона |
(обязательное)
ДОПУСКАЕМЫЕ ОТКЛОНЕНИЯ СТРОИТЕЛЬНЫХ КОНСТРУКЦИЙ
Г.1 Отклонения от номинальных размеров панелей внутренних и наружных стен не должны превышать пять миллиметров, не допускается наличие трещин раскрытием более 0,2 мм; допустимые отклонения в плитах перекрытий:
- по длине плит +/- 10 мм;
- по толщине плит +/- 5 мм;
- по ширине плит +/- 8 мм;
- не допускается наличие трещин раскрытием более 0,1 мм.
Неплоскостность нижней поверхности плиты не должна превышать 8 мм.
Отклонения от проектного положения стальных закладных изделий не должны превышать:
- в плоскости закладного изделия - 10 мм;
- из плоскости закладного изделия - 5 мм.
Г.2 Качество поверхностей и внешний вид плит в зависимости от установленной категории поверхностей должны отвечать требованиям, приведенным в
таблице Г.1.
В миллиметрах
Характеристика бетонной поверхности | Категория поверхностей | Диаметр раковин | Высота (глубина) наплыва (впадин) | Глубина сколов | Длина сколов на 1 м ребра |
Нижняя потолочная | А2 | 1 | 1 | 5 | 50 |
Верхняя, под линолеум | А4 | 10 | 1 | 5 | 50 |
Боковая | А7 | 20 | - | 20 | - |
(обязательное)
Форма карты контроля
соблюдения требований СТО НОСТРОЙ 2.7.211-2016 "Конструкции
железобетонные. Монтаж крупнопанельных зданий. Правила,
контроль выполнения и требования к результатам работ"
Наименования члена СРО, в отношении которого назначена проверка:
ОГРН: ____________ ИНН: ____________
Сведения об объекте: ______________________________________________________
Основание для проведения проверки:
N _______________ от _____________
Тип проверки (нужное подчеркнуть):
Выездная
Документарная
N пункта | Элементы контроля | Требования стандарта, предъявляемые при производстве работ | Способ проверки соответствия | Результат соблюдения требований стандарта | Приложения, примечания |
норма | соответствие ("+", "-") |
Этап 1: Организация строительного производства |
1.1 | Рабочая документация (проектная документация) | Проверка наличия комплекта документов на осуществление строительства, утвержденного в установленном порядке (схем и чертежей со штампом "К производству работ"), в том числе ППР | Документарный | Наличие комплекта документов. Наличие штампа "В производство работ" с подписью ответственного лица технического заказчика на каждом чертеже | | |
1.2 | Журнал производства работ | Наличие общего журнала работ | Документарный | | | |
1.3 | Погодные условия производства работ | Проверка погодных условий на (атмосферные осадки, температура воздуха) | Документарный | Фиксация проверки погодных условий | | |
Этап 2: Входной контроль и хранение строительных материалов |
2.1 | Подтверждение качества строительных материалов | Проверка соответствия марок и характеристик изделий и материалов требованиям раздела 5 | Документарный | Наличие записей в журнале входного учета и контроля качества, подтверждающих соответствие требованиям раздела 5. Наличие сертификатов соответствия, санитарно-эпидемиологических заключений и паспортов качества и (или) декларации | | |
2.2 | Хранение сборных конструкций (основные требования) | | Документарный | Наличие записей в журнале производства работ, подтверждающих соответствие 4.19 и ГОСТ 13015-2012 ( пункты 8.5.1 - 8.5.5) | | |
Этап 3: Подготовительные работы |
3.1 | Создание геодезической разбивочной основы | Наличие знаков геодезической разбивочной основы (ГРО). Качество и точность геодезических работ по ГРО. | Документарный | Наличие акта приемки геодезической разбивочной основы, оформленное в соответствии с СП 126.13330.2017 (приложение Д) | | |
3.2 | Возведение подземной части | Соблюдение технологии и последовательности работ. Точность монтажа сборных конструкций подземной части. Контроль выполнения исполнительной геодезической схемы подземной части. Соответствие требованиям 4.6, 4.7, 7.10, 8.1 и СП 70.13330.2012 (таблица 6.1) | Документарный | Наличие акта приемки ранее выполненных работ. Наличие записей в журнале производства работ, подтверждающих соответствие требованиям 4.6, 4.7, 7.10, 8.1 и СП 70.13330.2012 (таблица 6.1) | | |
3.3 | Геодезические работы по возведению надземной части | Перенос разбивочных осей на монтажный горизонт. Выравнивание монтажного горизонта. Разметка мест установки элементов. | Документарный | Наличие акта приемки ранее выполненных работ. Наличие записей в журнале производства работ, подтверждающих соответствие требованиям 7.11 - 7.22 | | |
Этап 4 Монтаж сборных конструкций |
4.1 | Подготовка сборных конструкций к монтажу | Проверка внешнего вида (при необходимости очистка), тип и размеры элементов. Наличие ориентирных рисок. Наличие выровненных маяков. Соблюдение правил выполнения монтажных работ. Подготовка поверхности. Установка уплотняющих материалов. Нанесение раствора между маяками. | Документарный | | | |
4.2 | Подъем и перемещение сборных конструкций | Качество применяемых грузозахватных средств. Соответствие их грузоподъемности требованиям ППР и массе перемещаемых элементов. Соответствие требованиям раздела 6 | Документарный | Наличие записей в журнале производства работ, подтверждающих соответствие требованиям раздела 6 | | |
4.3 | Установка сборных конструкций в проектное положение | Контроль размеров глубины опирания на опорные конструкции. Совмещение рисок с осями. Выверка изделий. Временное раскрепление сборных конструкций. Постоянное закрепление сборных конструкций. Контроль качества смонтированных конструкций. Соответствие требованиям СП 70.13330.2012 ( пункты 3.2, 6.4.4, 6.5.1, 6.6.3, таблица 6.1) и 7.24, 7.25, 8.2.7, 8.2.12 - 8.2.12.5, 8.2.11.11, 8.2.11.13, 8.2.11.15, 8.2.12, 8.6.7.1, 8.6.13 | Документарный | Наличие акта приемки ранее выполненных работ. Исполнительная геодезическая схема. Наличие записей в журнале производства работ, подтверждающих соответствие требованиям СП 70.13330.2012 ( пункты 3.2, 6.4.4, 6.5.1, 6.6.3, таблица 6.1) и 7.24, 7.25, 8.2.7, 8.2.12 - 8.2.12.5, 8.2.11.11, 8.2.11.13, 8.2.11.15, 8.2.12, 8.6.7.1, 8.6.13 | | |
| | ИС МЕГАНОРМ: примечание. Текст в третьей и пятой графах дан в соответствии с официальным текстом документа. | |
|
4.4 | Заключительные операции по монтажу конструкций | Контроль сварных соединений закладных деталей. Бетонные работы при заполнении стыков бетонной смесью. Замоноличивание стыков и швов. Соответствие требованиям СТО НОСТРОЙ 2.6.54.2011 ( пункты 8.4.1.2, 14.1), СП 70.13330.2012 ( пункты 5.2.4, 6.9.1, 6.9.6, 6.9.7, 10.5.1, 10.5.3) и 8.2.11, 8.6.8.1, 8.6.8.2, 8.6.12 | Документарный | Наличие актов освидетельствования скрытых работ. Наличие записей в журнале производства работ, подтверждающих соответствие требованиям СТО НОСТРОЙ 2.6.54.2011 ( пункты 8.4.1.2, 14.1), СП 70.13330.2012 ( пункты 5.2.4, 6.9.1, 6.9.6, 6.9.7, 10.5.1, 10.5.3) и 8.2.11, 8.6.8.1, 8.6.8.2, 8.6.12 | | |
4.5 | Оформление исполнительной документации | Проверка полноты и правильности оформления исполнительной документации | Документарный | Наличие исполнительной документации, оформленной в соответствии с РД 11-02-2006 | | |
Заключение (нужное подчеркнуть):
1. Требование СТО НОСТРОЙ 2.7.211-2016 соблюдены в полном объеме.
2. Требование СТО НОСТРОЙ 2.7.211-2016 соблюдены не в полном объеме.
Рекомендации по устранению выявленных несоответствий:
___________________________________________________________________________
___________________________________________________________________________
Приложения: _________________________________ на _____ л.
Настоящая карта составлена в двух экземплярах, по одному экземпляру для
каждой стороны.
Подписи лиц, проводивших проверку:
Эксперт ____________________________ _______________
Фамилия, Имя, Отчество Подпись
____________________________ _______________
Фамилия, Имя, Отчество Подпись
Подпись представителя проверяемой организации - члена СРО,
принимавшего участие в проверке:
____________________________ _______________
Фамилия, Имя, Отчество Подпись
Дата "____" ____________ 20__ года
| Градостроительный кодекс РФ от 29.12.2004 N 190-ФЗ |
| Свод правил | Правила обследования несущих строительных конструкций зданий и сооружений |
| Технические условия ТУ 14-1-5526-2006 (с изменением N 1) | Прокат арматурный класса А500СП с эффективным периодическим профилем. Технические условия |
| Свод правил | Приготовление и применение растворов строительных |
| Руководящий документ | Стропы грузовые общего назначения. Требования к устройству и безопасной эксплуатации |
| Руководящий документ РД 31.45.03-82 | Устройства грузозахватные крановые. Типовые расчеты. Методика |
| Технические условия ТУ 84-246-85 | Мастики тиоколовые строительного назначения |
| Руководящие технические материалы | Руководящие технические материалы по сварке и контролю качества соединений арматуры и закладных изделий железобетонных конструкций |
| Технические рекомендации | Технические рекомендации по технологии герметизации и уплотнения стыков наружных стеновых панелей |
| Методические рекомендации по определению свойств антикоррозийных защитных покрытий бетона, НИИЖБ Госстроя СССР, ЦНИИпромзданий, НИИСФ Госстроя СССР, Проектхимзащита Минмонтажспецстроя СССР, Институт СЭВ по стандартизации, 1980 г. |
| Свод правил по проектированию и строительству | Железобетонные монолитные конструкции зданий |
| Руководящий документ | Требования к составу и порядку ведения исполнительной документации при строительстве, реконструкции, капитальном ремонте объектов капитального строительства и требования, предъявляемые к актам освидетельствования работ, конструкций, участков сетей инженерно-технического обеспечения |
| Руководящий документ | Порядок ведения общего и (или) специального журнала учета выполнения работ при строительстве, реконструкции, капитальном ремонте объектов капитального строительства |
| Свод правил | Авторский надзор за строительством зданий и сооружений |
| Свод правил | Безопасность труда в строительстве. Отраслевые типовые инструкции по охране труда |
| |
Ключевые слова: конструкции железобетонные, многоэтажные здания, крупнопанельные здания, геодезические работы, монтаж, контроль выполнения |