Скачать Серия 1.432.2-19 Металлические стены полистовой сборки для одноэтажных производственных зданий. Рабочие чертежиДата актуализации: 01.01.2021 Серия 1.432.2-19
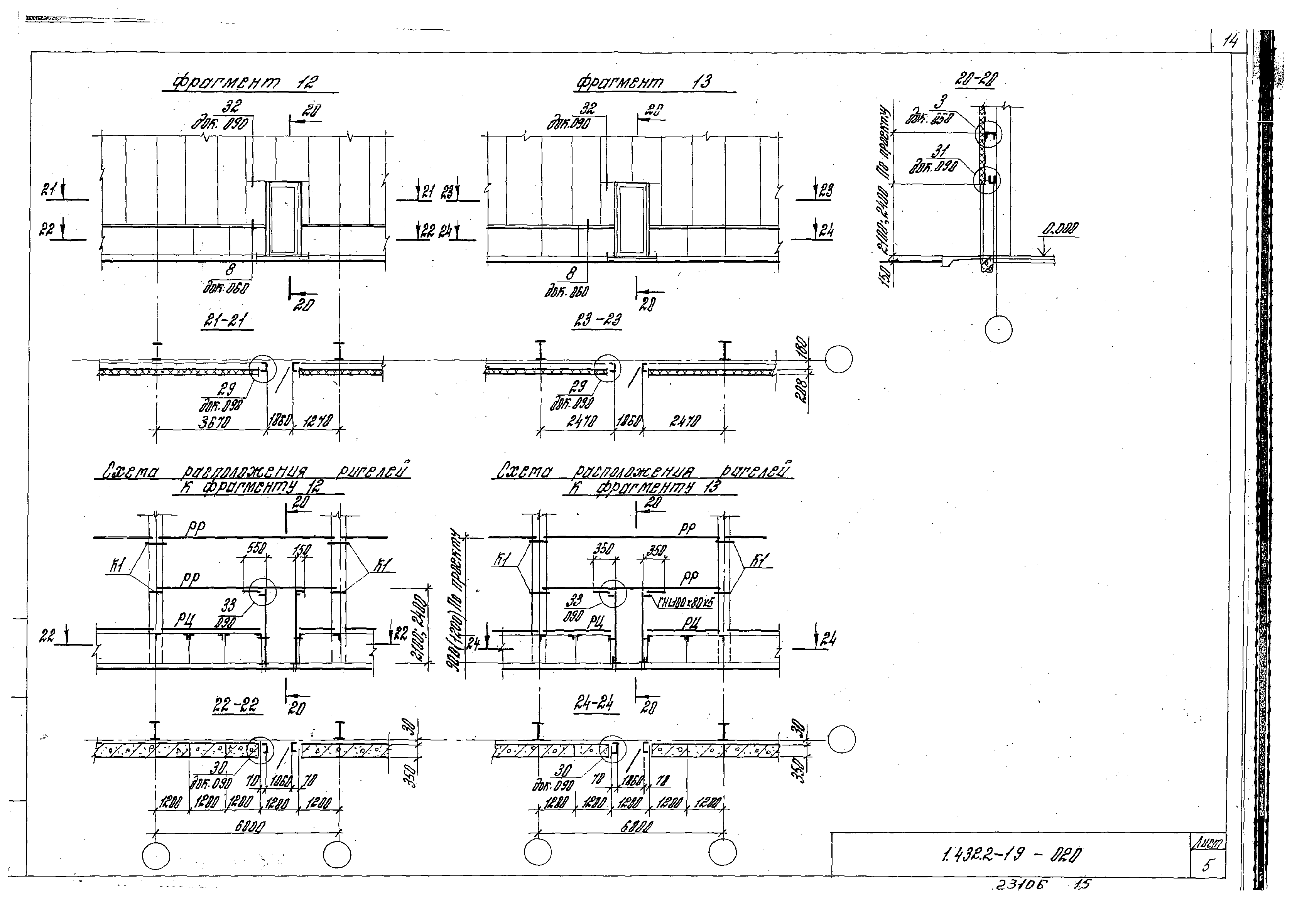
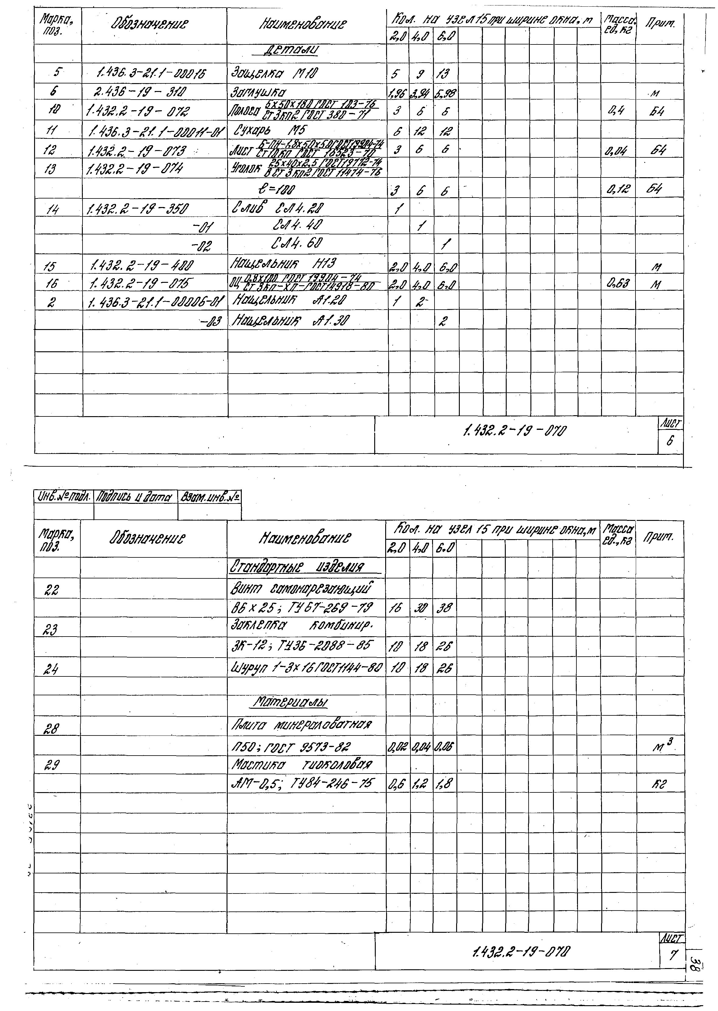
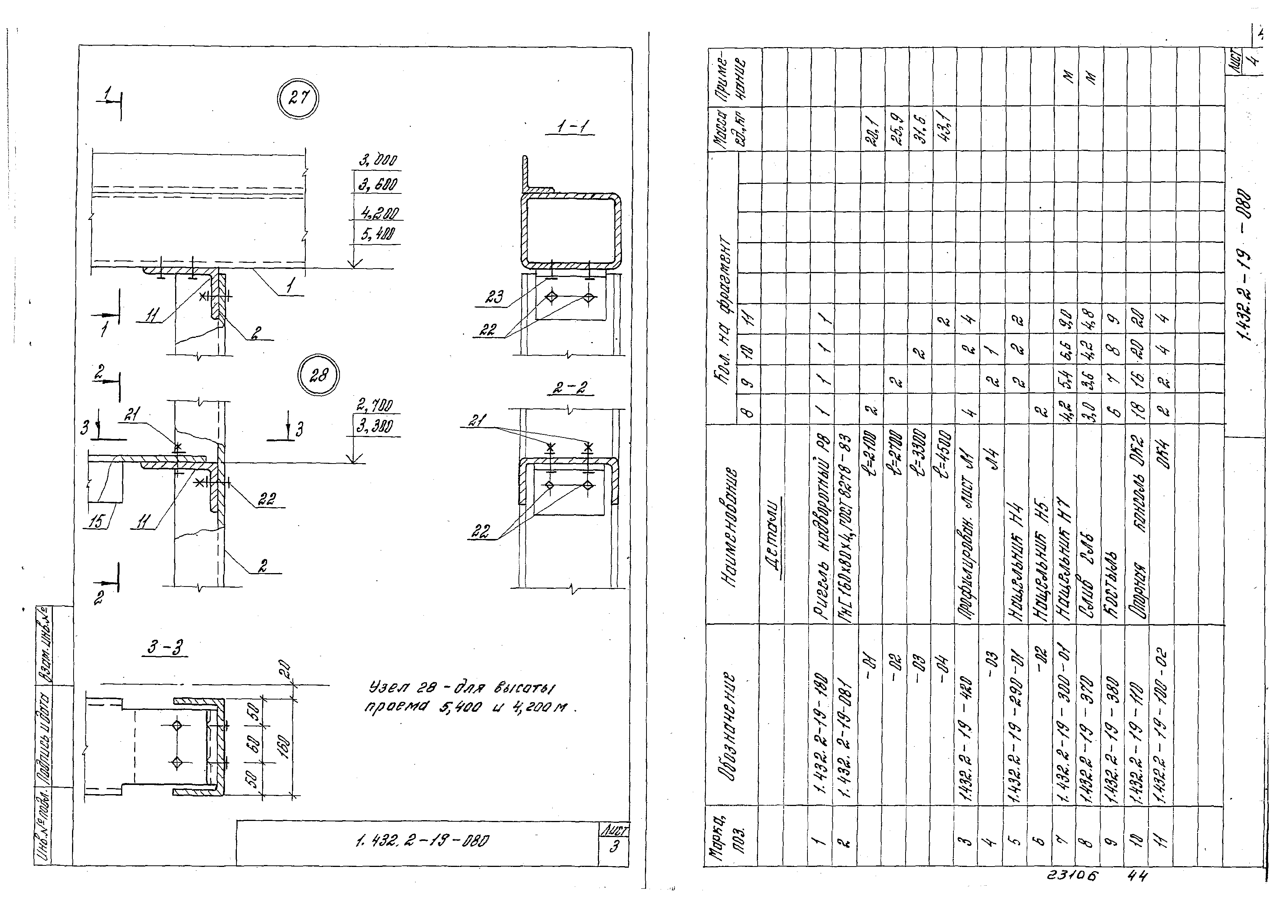
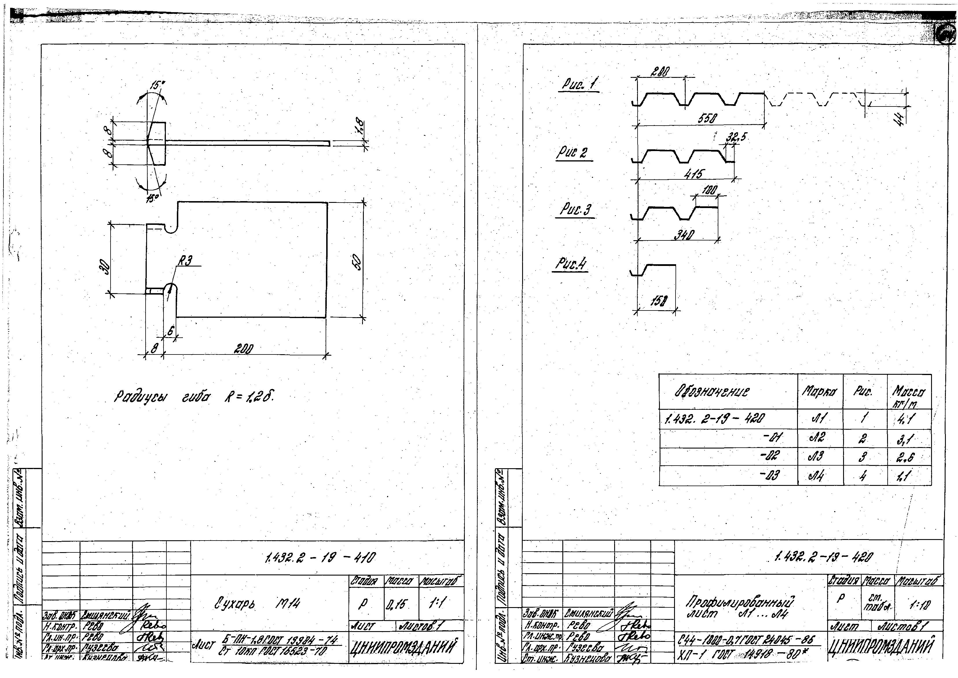
Металлические стены полистовой сборки для одноэтажных производственных зданий. Рабочие чертежи| Обозначение: | Серия 1.432.2-19 | | Обозначение англ: | Series 1.432.2-19 | | Статус: | не определен законодательством | | Название рус.: | Металлические стены полистовой сборки для одноэтажных производственных зданий. Рабочие чертежи | | Дата добавления в базу: | 01.09.2013 | | Дата актуализации: | 01.01.2021 | | Дата введения: | 01.03.1988 | | Дата окончания срока действия: | 30.06.2003 | | Область применения: | Настоящая работа содержит материалы для проектирования и рабочие чертежи металлических стен полистовой сборки | | Оглавление: | 1.432.2-19-000 ТО Техническое описание 1.432.2-19-010 Примеры решения фасадов 1.432.2-19-020 Фрагменты фасадов 1… 13. Схемы расположения ригелей 1.432.2-19-030 Схемы расположения профилированных листов наружной и внутренней обшивки 1.432.2-19-040 Схемы установки приклонных стоек фахверка и опорных консолей 1.432.2-19-050 Узел 1… 6. Решение глухих участков стен 1.432.2-19-060 Узел 7… 12. Сопряжение стены с одинарными окнами 1.432.2-19-070 Узел 13… 19. Сопряжение стены с окнами с раздельными переплетами 1.432.2-19-080 Узел 20… 28. Сопряжение стены с распашными воротами 1.432.2-19-090 Узел 29… 33. Сопряжение стен с дверью 1.432.2-19-100 Опорная консоль ОК1, ОК1-1; ОК4 1.432.2-19-110 Опорная консоль ОК2 1.432.2-19-120 Опорная консоль ОК3 1.432.2-19-130 Планка П1 1.432.2-19-140 Ригель рядовой РР1… РР3 1.432.2-19-150 Ригель рядовой РР4… РР7 1.432.2-19-160 Ригель опорный РО 1.432.2-19-170 Ригель стыковой РС 1.432.2-19-180 Ригель надворотный РВ 1.432.2-19-190 Ригель для крепления профилированного листа РЛ1 1.432.2-19-200 Ригель для крепления профилированного листа в углу здания РЛ2, РЛ2-1, РЛ8, РЛ8-1 1.432.2-19-210 Ригель для крепления профилированного листа РЛ3 и РЛ4 1.432.2-19-220 Ригель для крепления профилированного листа РЛ5… РЛ7 1.432.2-19-230 Профиль стальной ПС1, ПС8 1.432.2-19-240 Профиль стальной ПС2… ПС7 1.432.2-19-250 Монтажное изделие Д1 1.432.2-19-260 Нащельник Н1 1.432.2-19-270 Шпилька ШП1 1.432.2-19-280 Нащельник Н2 1.432.2-19-290 Нащельник Н3… Н5, Н11, Н12 1.432.2-19-300 Нащельник Н6, Н7 1.432.2-19-310 Нащельник Н8 1.432.2-19-320 Нащельник Н9 1.432.2-19-330 Слив СЛ1 1.432.2-19-340 Слив СЛ2 1.432.2-19-350 Слив СЛ4 1.432.2-19-360 Слив СЛ5, СЛ3 1.432.2-19-370 Слив СЛ6 1.432.2-19-380 Костыль 1.432.2-19-390 Нащельник Н10 1.432.2-19-400 Нащельник Н13 1.432.2-19-410 Сухарь М14 1.432.2-19-420 Профилированный лист Л1… Л4 | | Разработан: | ЦНИИСК им. В.А. Кучеренко АО ЦНИИпромзданий НИИСФ
| | Утверждён: | 28.12.1987 Госстрой СССР (Государственный комитет Совета Министров СССР по делам строительства) (USSR Gosstroy 6/6-4628)
| | Принят: | ВНИПИ Промстальконструкция Минмонтажспецстроя СССР
| | Издан: | ЦИТП Госстроя СССР (CITP, Gosstroy (USSR) 1988 г. )
| | Нормативные ссылки: |   СНиП 2.01.07-85* «Нагрузки и воздействия»  СНиП 2.03.11-85 «Защита строительных конструкций от коррозии» СНиП 2.01.01-82 «Строительная климатология и геофизика»  СНиП II-3-79* «Строительная теплотехника»  СНиП II-23-81* «Стальные конструкции»  ГОСТ 14624-84 «Двери деревянные для производственных зданий. Типы, конструкция и размеры» ГОСТ 9573-82 «Плиты теплоизоляционные из минеральной ваты на синтетическом связующем. Технические условия»  ГОСТ 19177-81 «Прокладки резиновые пористые уплотняющие. Технические условия»  ГОСТ 103-76 «Полоса стальная горячекатаная. Сортамент»  ГОСТ 5264-80 «Ручная дуговая сварка. Соединения сварные. Основные типы, конструктивные элементы и размеры»  ГОСТ 6727-80 «Проволока из низкоуглеродистой стали холоднотянутая для армирования железобетонных конструкций. Технические условия»  ГОСТ 8278-83 «Швеллеры стальные гнутые равнополочные. Сортамент»  ГОСТ 8713-79 «Сварка под флюсом. Соединения сварные. Основные типы, конструктивные элементы и размеры»  ГОСТ 11474-76 «Профили стальные гнутые. Технические условия»  ГОСТ 14918-80 «Сталь тонколистовая оцинкованная с непрерывных линий. Технические условия»  ГОСТ 5915-70 «Гайки шестигранные класса точности В. Конструкция и размеры»  ГОСТ 7798-70 «Болты с шестигранной головкой класса точности В. Конструкция и размеры»  ГОСТ 11371-78 «Шайбы. Технические условия»  ГОСТ 10354-82 «Пленка полиэтиленовая. Технические условия»  ГОСТ 1144-80 «Шурупы с полукруглой головкой. Конструкция и размеры»  ГОСТ 2228-81 «Бумага мешочная. Технические условия»  ГОСТ 1145-80 «Шурупы с потайной головкой. Конструкция и размеры» ГОСТ 11539-83 «Фанера бакелизированная. Технические условия» ГОСТ 19772-74 «Уголки стальные гнутые неравнополочные. Сортамент» ГОСТ 8486-66 «Пиломатериалы хвойных пород» ГОСТ 10174-72 «Прокладки уплотняющие пенополиуретановые для окон и дверей» Серия 1.423.3-8 «Выпуск 1. Колонны для зданий высотой от 9,6 до 18,0 м бескрановых и с подвесными электрическими кранами общего назначения грузоподъемностью до 5 т. Чертежи КМ» Серия 1.436.3-21 «Выпуск 0. Материалы для проектирования» Серия 1.436.3-21 «Выпуск 1. Окна с одинарными переплетами. Рабочие чертежи» Серия 1.436.3-21 «Выпуск 2. Окна с двойными раздельными переплетами. Рабочие чертежи» Серия 1.424.3-7 «Выпуск 1. Колонны для зданий высотой от 10,8 до 18,0 м с мостовыми электрическими кранами общего назначения грузоподъемностью до 50 т. Чертежи КМ» Серия 1.423.3-8 «Выпуск 2. Колонны для зданий высотой от 6,0 до 8,4 м бескрановых и с подвесными электрическими кранами общего назначения грузоподъемностью 5 т. Чертежи КМ» Серия 1.424.3-7 «Выпуск 2. Колонны для зданий высотой 8,4 и 9,6 м с мостовыми электрическими кранами общего назначения грузоподъемностью до 20 т. Чертежи КМ» Серия 1.030.1-1 «Стены наружные из однослойных панелей для каркасных общественных зданий, производственных и вспомогательных зданий промышленных предприятий» Серия 1.030.1-1 «Выпуск 4-1. Изделия соединительные стальные. Рабочие чертежи» Серия 1.435.9-17 «Выпуск 1. Ворота из трубчатого профиля» Серия 1.432.2-17 «Стены одноэтажных промышленных зданий из металлических трехслойных панелей с утеплителем из пенополиуретана»  ГОСТ 380-71 «Сталь углеродистая обыкновенного качества. Марки и общие технические требования» Серия 1.460.3-17 «Выпуск 1. Покрытия пролетами 18, 24 и 30 м для зданий, возводимых в несейсмических районах с расчетными температурами минус 40 градусов Цельсия и выше. Чертежи» ТУ 67-269-79 «Винт самонарезающий. Технические условия» ТУ 14-1-3023-80 «Прокат листовой, широкополосный универсальный и фасонный из углеродистой и низколегированной стали с гарантированным уровнем механических свойств, дифференцированным по группам прочности» Серия 1.460.3-15 «Выпуск 1. Покрытия пролетами 24, 30 и 36 м для зданий, возводимых в несейсмических районах с расчетными температурами минус 40 градусов Цельсия и выше. Чертежи КМ» Серия 1.460.3-15 «Выпуск 2. Покрытия пролетами 24, 30 и 36 м для зданий, возводимых в несейсмических районах с расчетной температурой ниже минус 40 градусов Цельсия. Чертежи КМ» ГОСТ 19904-74 «Прокат листовой холоднокатаный. Сортамент»
|
                                                               
|