Скачать Серия 1.424.3-7 Выпуск 1. Колонны для зданий высотой от 10,8 до 18,0 м с мостовыми электрическими кранами общего назначения грузоподъемностью до 50 т. Чертежи КМДата актуализации: 01.01.2021
|
| Обозначение: | Серия 1.424.3-7 |
| Обозначение англ: | Series 1.424.3-7 |
| Статус: | действует |
| Название рус.: | Выпуск 1. Колонны для зданий высотой от 10,8 до 18,0 м с мостовыми электрическими кранами общего назначения грузоподъемностью до 50 т. Чертежи КМ |
| Дата добавления в базу: | 01.09.2013 |
| Дата актуализации: | 01.01.2021 |
| Дата введения: | 01.05.1985 |
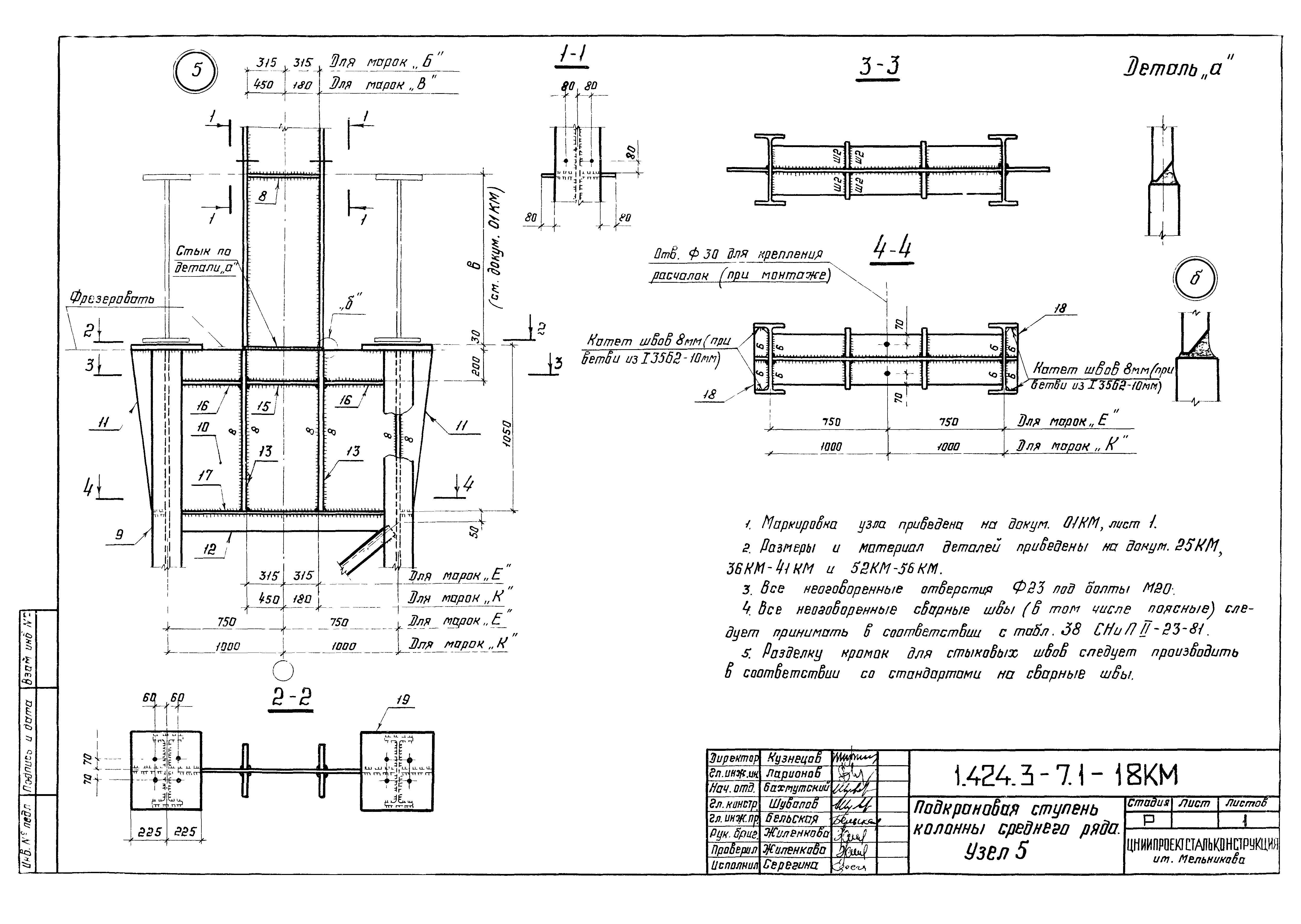
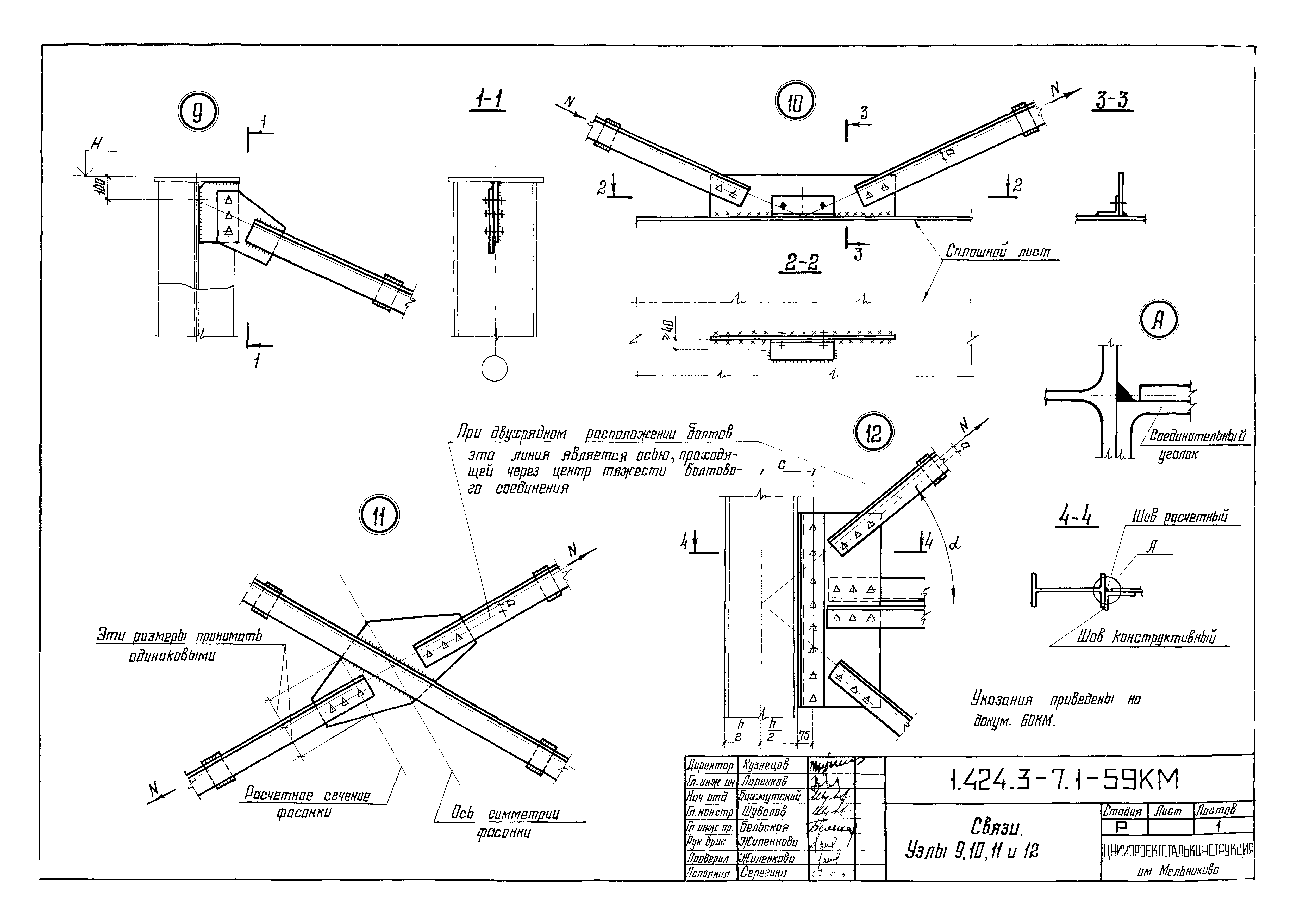
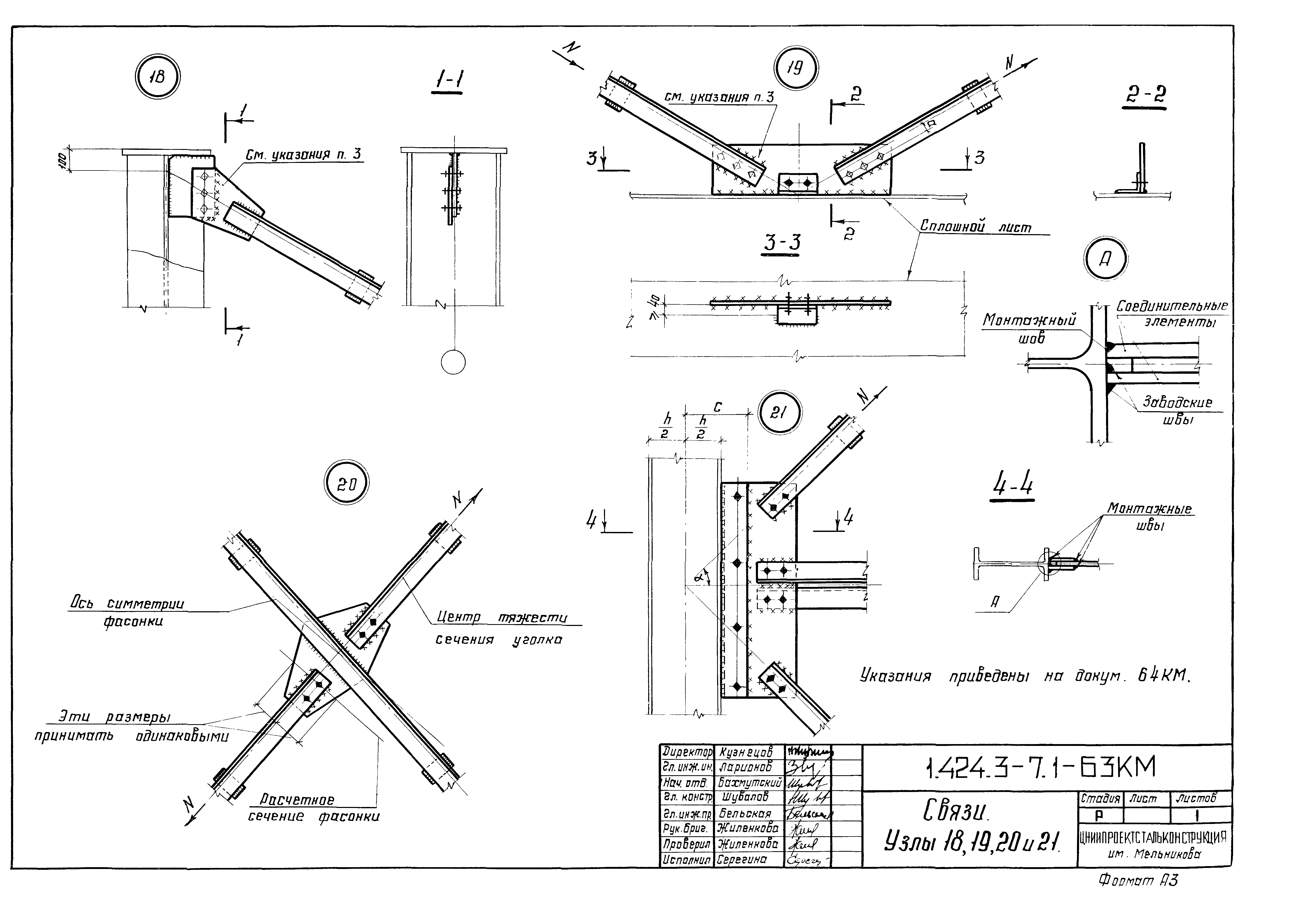
| Оглавление: | 1.424.3-7.1-00ПЗКМ Пояснительная записка 1.424.3-7.1-01КМ Основные габаритные размеры колонн 1.424.3-7.1-02КМ Геометрические схемы подкрановых частей колонн крайнего ряда с шагом 6 м при отсутствии проходов вдоль крановых путей 1.424.3-7.1-03КМ Геометрические схемы подкрановых частей колонн крайнего ряда с шагом 12 м при отсутствии проходов вдоль крановых путей 1.424.3-7.1-04КМ Геометрические схемы подкрановых частей колонн среднего ряда при отсутствии проходов вдоль крановых путей 1.424.3-7.1-05КМ Геометрические схемы подкрановых частей колонн крайнего ряда с шагом 6 м при наличии проходов вдоль крановых путей 1.424.3-7.1-06КМ Геометрические схемы подкрановых частей колонн крайнего ряда с шагом 12 м при наличии проходов вдоль крановых путей 1.424.3-7.1-07КМ Геометрические схемы подкрановых частей колонн среднего ряда при наличии проходов вдоль крановых путей 1.424.3-7.1-08КМ Таблица для выбора марок подкрановых частей колонн крайнего ряда с шагом 6 м при отсутствии проходов вдоль крановых путей 1.424.3-7.1-09КМ Таблица для выбора марок подкрановых частей колонн крайнего ряда с шагом 12 м при отсутствии проходов вдоль крановых путей 1.424.3-7.1-10КМ Таблица для выбора марок подкрановых частей колонн среднего ряда при отсутствии проходов вдоль крановых путей 1.424.3-7.1-11КМ Таблица для выбора марок подкрановых частей колонн крайнего ряда с шагом 6 м при наличии проходов вдоль крановых путей 1.424.3-7.1-12КМ Таблица для выбора марок подкрановых частей колонн крайнего ряда с шагом 12 м при наличии проходов вдоль крановых путей 1.424.3-7.1-13КМ Таблица для выбора марок подкрановых частей колонн среднего ряда при наличии проходов вдоль крановых путей 1.424.3-7.1-14КМ Таблица для выбора марок надкрановых частей колонн 1.424.3-7.1-15КМ Моменты инерции сечений колонн в плоскости поперечной рамы здания 1.424.3-7.1-16КМ Оголовки колонн. Узлы 1, 2, 3 и 28 1.424.3-7.1-17КМ Подкрановая ступень колонны крайнего ряда. Узел 4 1.424.3-7.1-18КМ Подкрановая ступень колонны среднего ряда. Узел 5 1.424.3-7.1-19КМ Решетка колонны. Узлы 6 и 7 1.424.3-7.1-20КМ База колонны. Узел 8 1.424.3-7.1-21КМ Сортамент анкерных плиток баз колонн (для климатических районов II4, II5 и др.) 1.424.3-7.1-22КМ Сортамент анкерных плиток баз колонн (для климатических районов I1, I2, II2, II3 и др.) 1.424.3-7.1-23КМ Базы колонн у поперечного температурного или антисейсмического шва и у торца здания 1.424.3-7.1-24КМ Размеры деталей, сварных швов и массы надкрановых частей колонн крайнего ряда 1.424.3-7.1-25КМ Размеры деталей и массы надкрановых частей колонн среднего ряда 1.424.3-7.1-26КМ Размеры деталей, сварных швов и массы подкрановых частей колонн марок Д1-; Д2; Д3- и Д4- 1.424.3-7.1-27КМ Размеры деталей, сварных швов и массы подкрановых частей колонн марок Д5; Д6- и Д7- 1.424.3-7.1-28КМ Размеры деталей, сварных швов и массы подкрановых частей колонн марок Д8; Д9- и Д10- 1.424.3-7.1-29КМ Размеры деталей, сварных швов и массы подкрановых частей колонн марок Д11; Д12- и Д13- 1.424.3-7.1-30КМ Размеры деталей, сварных швов и массы подкрановых частей колонн марок Д14; Д15- и Д16- 1.424.3-7.1-31КМ Размеры деталей, сварных швов и массы подкрановых частей колонн марок Д17- и Д18- 1.424.3-7.1-32КМ Размеры деталей, сварных швов и массы подкрановых частей колонн марок Д19- и Д20- 1.424.3-7.1-33КМ Размеры деталей, сварных швов и массы подкрановых частей колонн марок Д21- и Д22- 1.424.3-7.1-34КМ Размеры деталей, сварных швов и массы подкрановых частей колонн марок Д23- и Д24- 1.424.3-7.1-35КМ Размеры деталей, сварных швов и массы подкрановых частей колонн марок Д25- и Д26- 1.424.3-7.1-36КМ Размеры деталей, сварных швов и массы подкрановых частей колонн марок Е1-; Е2- и Е3- 1.424.3-7.1-37КМ Размеры деталей, сварных швов и массы подкрановых частей колонн марок Е4- и Е5- 1.424.3-7.1-38КМ Размеры деталей, сварных швов и массы подкрановых частей колонн марок Е6- и Е7- 1.424.3-7.1-39КМ Размеры деталей, сварных швов и массы подкрановых частей колонн марок Е8- и Е9- 1.424.3-7.1-40КМ Размеры деталей, сварных швов и массы подкрановых частей колонн марок Е10- и Е11- 1.424.3-7.1-41КМ Размеры деталей, сварных швов и массы подкрановых частей колонн марок Е12- и Е13- 1.424.3-7.1-42КМ Размеры деталей, сварных швов и массы подкрановых частей колонн марок И1-, И2-, И3- и И4- 1.424.3-7.1-43КМ Размеры деталей, сварных швов и массы подкрановых частей колонн марок И5-, И6- и И7- 1.424.3-7.1-44КМ Размеры деталей, сварных швов и массы подкрановых частей колонн марок И8-, И9- и И10- 1.424.3-7.1-45КМ Размеры деталей, сварных швов и массы подкрановых частей колонн марок И11-, И12- и И13- 1.424.3-7.1-46КМ Размеры деталей, сварных швов и массы подкрановых частей колонн марок И14- и И15- 1.424.3-7.1-47КМ Размеры деталей, сварных швов и массы подкрановых частей колонн марок И16- и И17- 1.424.3-7.1-48КМ Размеры деталей, сварных швов и массы подкрановых частей колонн марок И18- и И19- 1.424.3-7.1-49КМ Размеры деталей, сварных швов и массы подкрановых частей колонн марок И20- и И21- 1.424.3-7.1-50КМ Размеры деталей, сварных швов и массы подкрановых частей колонн марок И22-; И23- и И24- 1.424.3-7.1-51КМ Размеры деталей, сварных швов и массы подкрановых частей колонн марок И25- и И26- 1.424.3-7.1-52КМ Размеры деталей, сварных швов и массы подкрановых частей колонн марок К1-; К2- и К3- 1.424.3-7.1-53КМ Размеры деталей, сварных швов и массы подкрановых частей колонн марок К4-; К5- и К6- 1.424.3-7.1-54КМ Размеры деталей, сварных швов и массы подкрановых частей колонн марок К7- и К8- 1.424.3-7.1-55КМ Размеры деталей, сварных швов и массы подкрановых частей колонн марок К9-; К10- и К11- 1.424.3-7.1-56КМ Размеры деталей, сварных швов и массы подкрановых частей колонн марок К12- и К13- 1.424.3-7.1-57КМ Схемы расположения связей по колоннам крайнего ряда 1.424.3-7.1-58КМ Схемы расположения связей по колоннам среднего ряда 1.424.3-7.1-59КМ Связи. Узлы 9; 10; 11 и 12 1.424.3-7.1-60КМ Связи. Узлы 13 и 14 1.424.3-7.1-61КМ Связи. Узлы 15 и 16 1.424.3-7.1-62КМ Связи. Узел 17 1.424.3-7.1-63КМ Связи. Узлы 18, 19, 20 и 21 1.424.3-7.1-64КМ Связи. Узлы 22 и 23 1.424.3-7.1-65КМ Связи. Узлы 24 и 25 1.424.3-7.1-66КМ Связи. Узлы 26 и 27 1.424.3-7.1-67КМ Сортамент надкрановых связей 1.424.3-7.1-68КМ Сортамент подкрановых связей по крайнему ряду колонн с шагом 12 м 1.424.3-7.1-69КМ Сортамент подкрановых связей по крайнему ряду колонн с шагом 6 м 1.424.3-7.1-70КМ Сортамент подкрановых связей по среднему ряду колонн 1.424.3-7.1-71КМ Спецификация стали для надкрановых частей колонн марок от А1- до А6- и Б1 1.424.3-7.1-72КМ Спецификация стали для надкрановых частей колонн марок Б2-; Б3-; В1-; В2- и В3- 1.424.3-7.1-73КМ Спецификация стали для подкрановых частей колонн марок от Д1- до Д7- 1.424.3-7.1-74КМ Спецификация стали для подкрановых частей колонн марок от Д8- до Д13- 1.424.3-7.1-75КМ Спецификация стали для подкрановых частей колонн марок от Д14- до Д17- 1.424.3-7.1-76КМ Спецификация стали для подкрановых частей колонн марок от Д18- до Д21- 1.424.3-7.1-77КМ Спецификация стали для подкрановых частей колонн марок от Д22- до Д25- 1.424.3-7.1-78КМ Спецификация стали для подкрановых частей колонн марок от Е1- до Е5- 1.424.3-7.1-79КМ Спецификация стали для подкрановых частей колонн марок от Е6- до Е9- 1.424.3-7.1-80КМ Спецификация стали для подкрановых частей колонн марок от Е10- до Е13- 1.424.3-7.1-81КМ Спецификация стали для подкрановых частей колонн марок от И1- до И7- 1.424.3-7.1-82КМ Спецификация стали для подкрановых частей колонн марок от И8- до И13- 1.424.3-7.1-83КМ Спецификация стали для подкрановых частей колонн марок от И14- до И17- 1.424.3-7.1-84КМ Спецификация стали для подкрановых частей колонн марок от И18- до И21- 1.424.3-7.1-85КМ Спецификация стали для подкрановых частей колонн марок от И22- до И26- 1.424.3-7.1-86КМ Спецификация стали для подкрановых частей колонн марок от К1- до К5- 1.424.3-7.1-87КМ Спецификация стали для подкрановых частей колонн марок от К6- до К9- 1.424.3-7.1-88КМ Спецификация стали для подкрановых частей колонн марок от К10- до К13- 1.424.3-7.1-89КМ Спецификация стали для связей марок от С1 до С49 1.424.3-7.1-90КМ Спецификация стали для связей марок от С50 до С66 1.424.3-7.1-91КМ Спецификация стали для связей марок от С67 до С77 1.424.3-7.1-92КМ Спецификация стали для связей марок от С78 до С89 |
| Разработан: | ЦНИИпроектстальконструкция ВНИКТИстальконструкция Минмонтажспецстроя СССР ВНИПИ Промстальконструкция |
| Утверждён: | 07.02.1985 Госстрой СССР (Государственный комитет Совета Министров СССР по делам строительства) (USSR Gosstroy 16) |
| Заменяет собой: |
|


















































































































