Скачать Серия 1.424-4 Выпуск 3. Колонны для зданий высотой от 10,8 м до 18,0 м с мостовыми кранами грузоподъемностью до 50 т, возводимых в районах с расчетной температурой ниже минус 40 градусов Цельсия, с расчетной сейсмичностью 7, 8 и 9 баллов. Чертежи КМДата актуализации: 01.01.2021 Серия 1.424-4
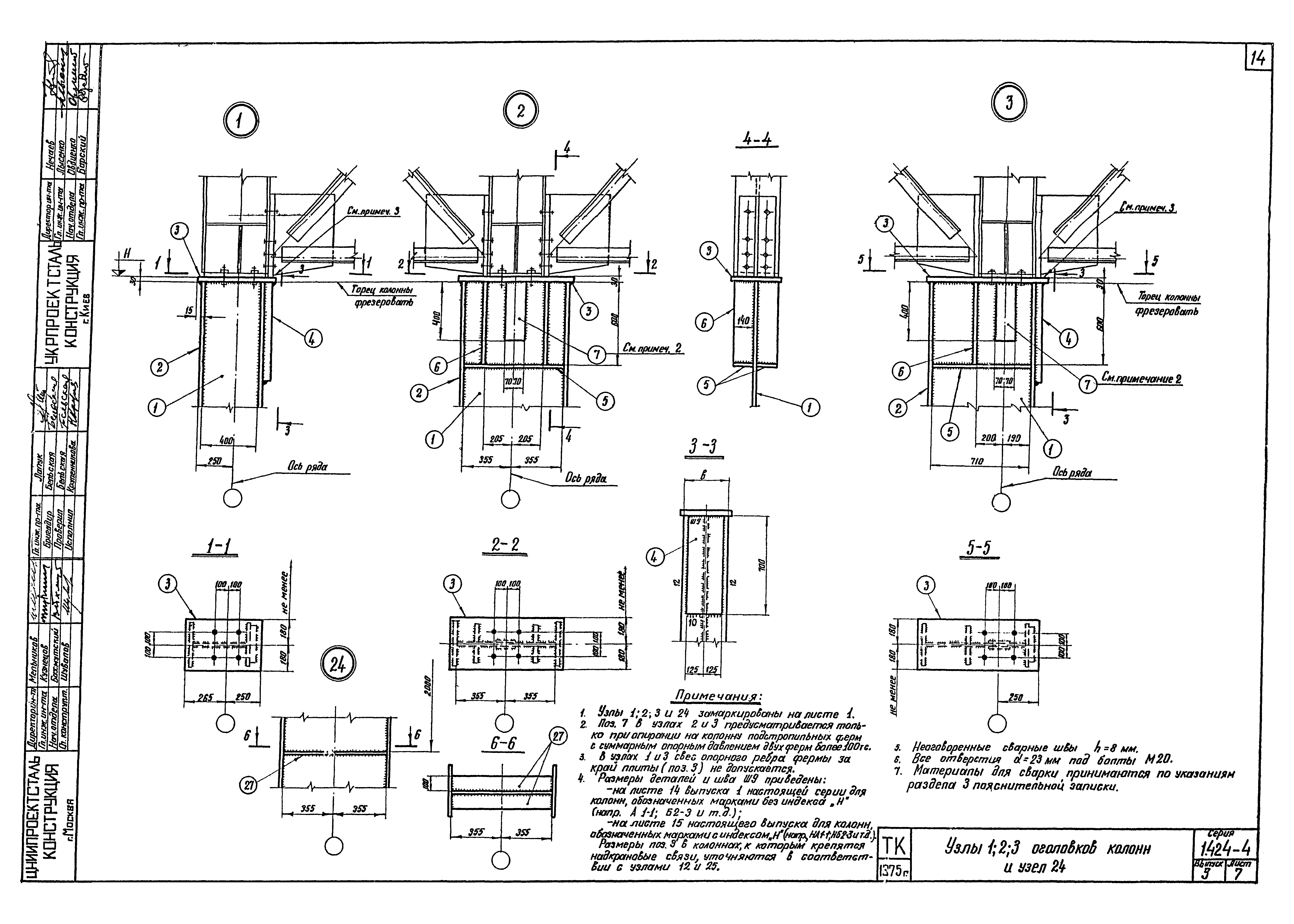
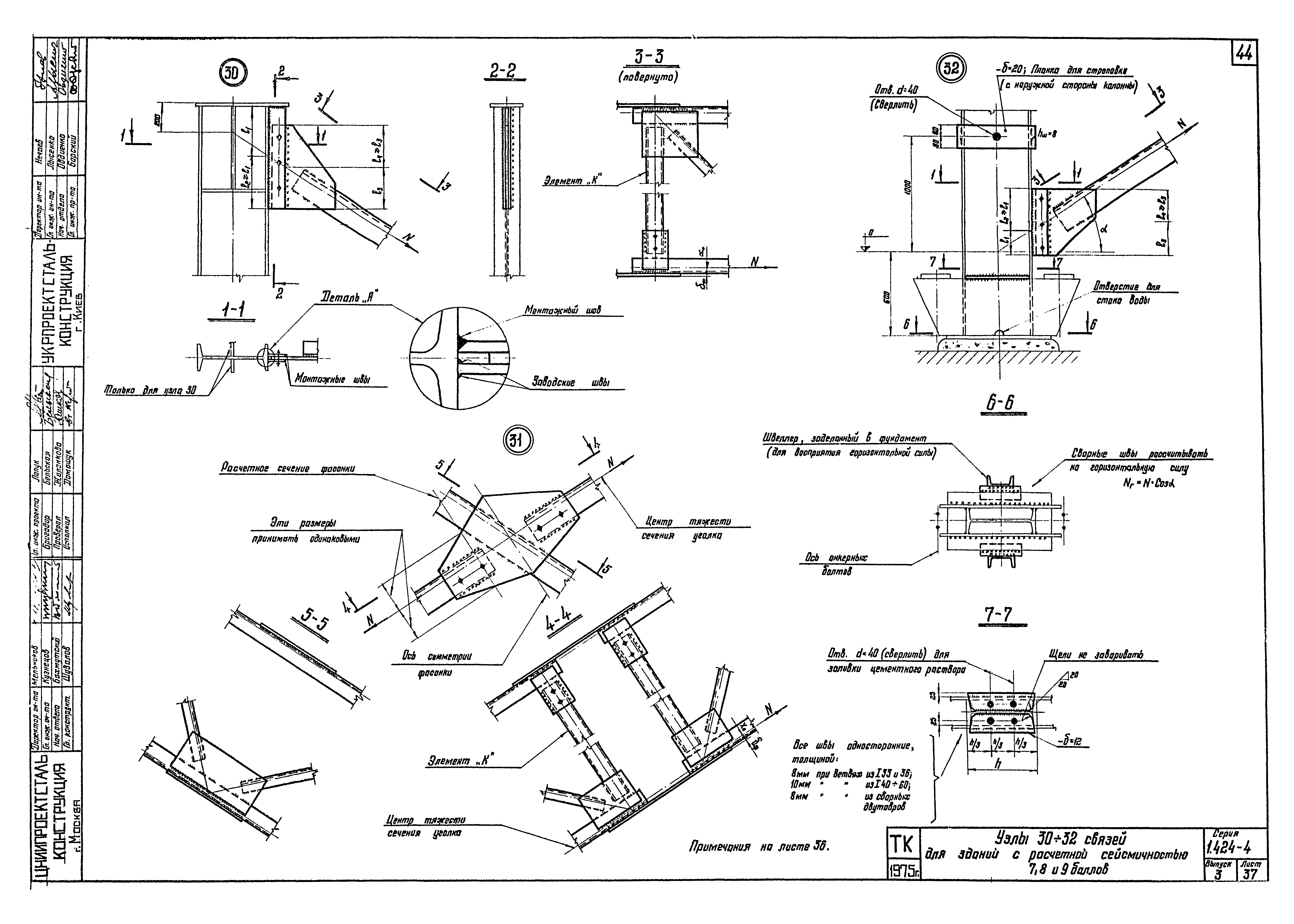
Выпуск 3. Колонны для зданий высотой от 10,8 м до 18,0 м с мостовыми кранами грузоподъемностью до 50 т, возводимых в районах с расчетной температурой ниже минус 40 градусов Цельсия, с расчетной сейсмичностью 7, 8 и 9 баллов. Чертежи КМ| Обозначение: | Серия 1.424-4 | | Обозначение англ: | Series 1.424-4 | | Статус: | заменен | | Название рус.: | Выпуск 3. Колонны для зданий высотой от 10,8 м до 18,0 м с мостовыми кранами грузоподъемностью до 50 т, возводимых в районах с расчетной температурой ниже минус 40 градусов Цельсия, с расчетной сейсмичностью 7, 8 и 9 баллов. Чертежи КМ | | Дата добавления в базу: | 01.02.2017 | | Дата актуализации: | 01.01.2021 | | Дата введения: | 01.01.1976 | | Дата окончания срока действия: | 01.05.1985 | | Область применения: | Настоящий выпуск содержит рабочие чертежи КМ стальных колонн одноэтажных производственных зданий, возводимых в районах с расчетной температурой воздуха ниже минус 40 градусов Цельсия (до минус 65 градусов Цельсия) и зданий с расчетной сейсмичностью 7, 8 и 9 баллов | | Разработан: | ЦНИИпроектстальконструкция
| | Утверждён: | Госстрой СССР (Государственный комитет Совета Министров СССР по делам строительства) (USSR Gosstroy ) 06.10.1975 Госстрой СССР (169)
|
                                              
|