Скачать Серия 1.423.3-8 Выпуск 1. Колонны для зданий высотой от 9,6 до 18,0 м бескрановых и с подвесными электрическими кранами общего назначения грузоподъемностью до 5 т. Чертежи КМДата актуализации: 01.01.2021
|
| Обозначение: | Серия 1.423.3-8 |
| Обозначение англ: | Series 1.423.3-8 |
| Статус: | заменен |
| Название рус.: | Выпуск 1. Колонны для зданий высотой от 9,6 до 18,0 м бескрановых и с подвесными электрическими кранами общего назначения грузоподъемностью до 5 т. Чертежи КМ |
| Дата добавления в базу: | 01.09.2013 |
| Дата актуализации: | 01.01.2021 |
| Дата введения: | 01.04.1986 |
| Дата окончания срока действия: | 01.01.1990 |
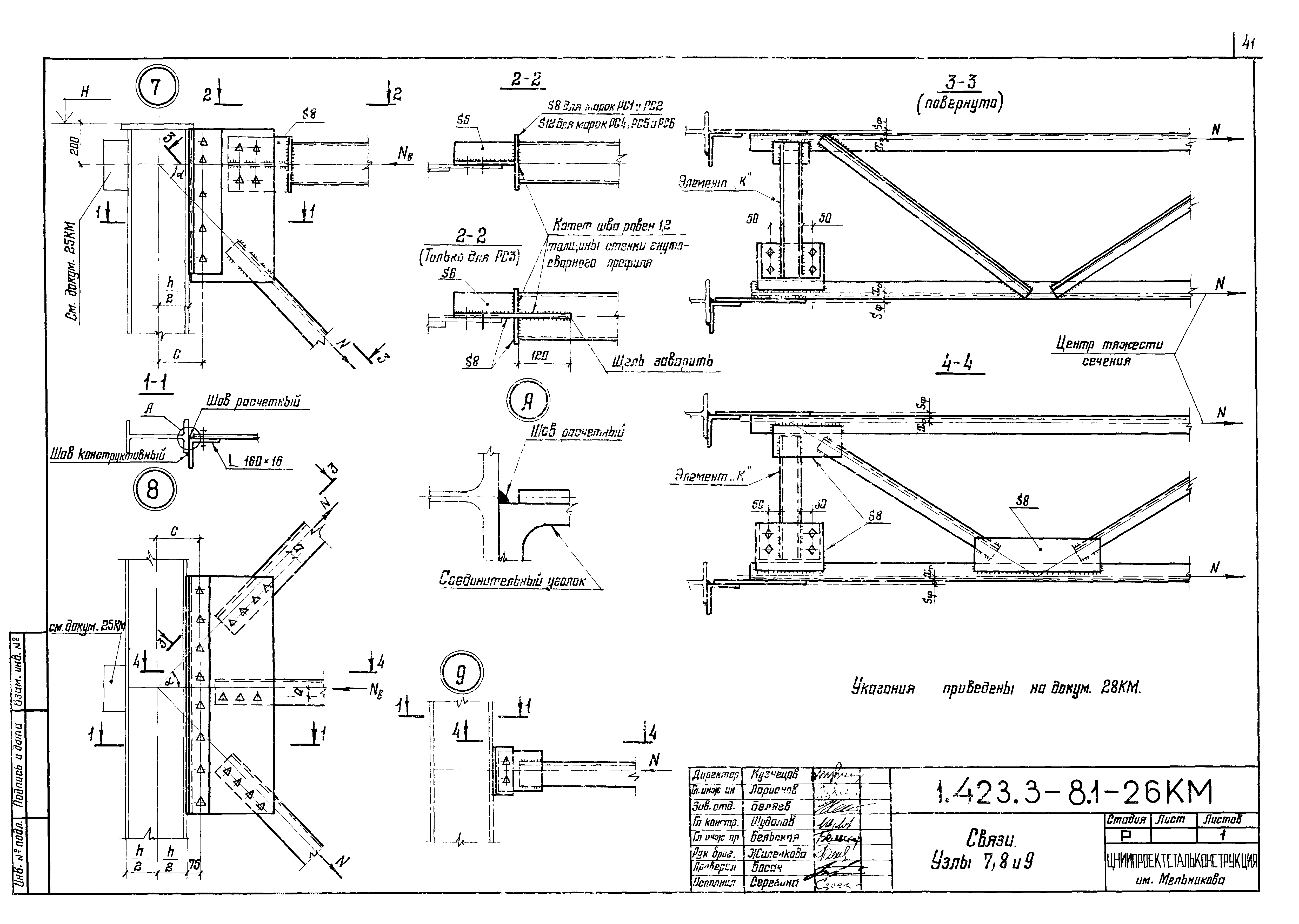
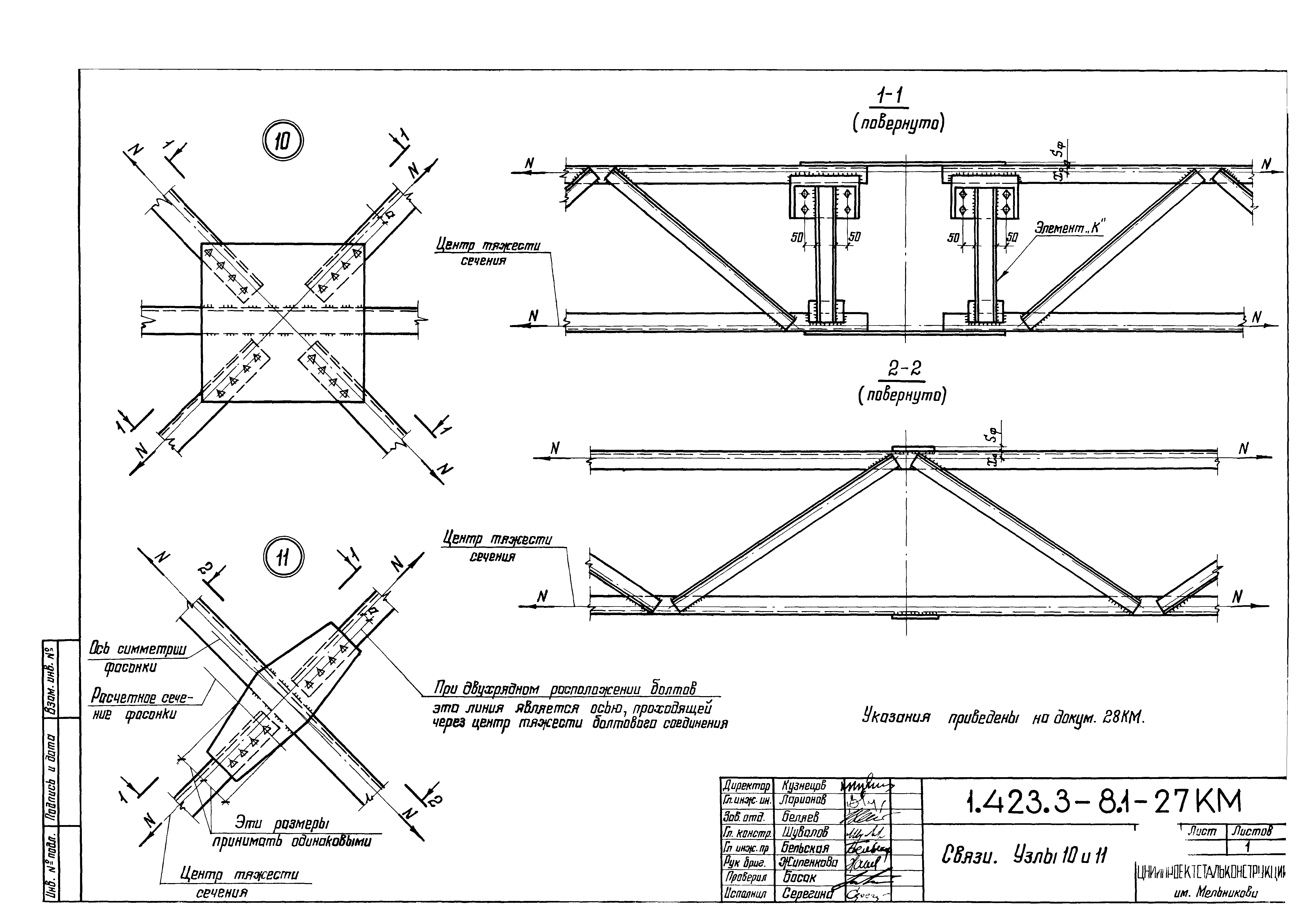
| Оглавление: | 1.423.3-8.1-00ПЗКМ Пояснительная записка 1.423.3-8.1-01КМ Основные геометрические размеры колонн. Моменты инерции сечений колонн 1.423.3-8.1-02КМ Таблица для выбора марок колонн при высоте здания 9,6 м 1.423.3-8.1-03КМ Таблица для выбора марок колонн при высоте здания 10,8 м 1.423.3-8.1-04КМ Таблица для выбора марок колонн при высоте здания 12,0 м 1.423.3-8.1-05КМ Таблица для выбора марок колонн при высоте здания 13,2 м 1.423.3-8.1-06КМ Таблица для выбора марок колонн при высоте здания 14,4 м 1.423.3-8.1-07КМ Таблица для выбора марок колонн при высоте здания 15,6 м 1.423.3-8.1-08КМ Таблица для выбора марок колонн при высоте здания 16,8 м 1.423.3-8.1-09КМ Таблица для выбора марок колонн при высоте здания 18,0 м 1.423.3-8.1-10КМ Оголовки колонн. Узлы 1 и 2 1.423.3-8.1-11КМ Решетка колонны. Узлы 3 и 4 1.423.3-8.1-12КМ База колонны. Узел 5 1.423.3-8.1-13КМ Сортамент анкерных плиток без колонн 1.423.3-8.1-14КМ Базы колонн у поперечного температурного шва и у торца здания 1.423.3-8.1-15КМ Размеры деталей, сварных швов и массы колонн марок от А1 до А12 1.423.3-8.1-16КМ Размеры деталей, сварных швов и массы колонн марок от А13 до А24 1.423.3-8.1-17КМ Размеры деталей, сварных швов и массы колонн марок от А25 до А36 1.423.3-8.1-18КМ Размеры деталей, сварных швов и массы колонн марок от А37 до А46 1.423.3-8.1-19КМ Размеры деталей, сварных швов и массы колонн марок от Б1 до Б12 1.423.3-8.1-20КМ Размеры деталей, сварных швов и массы колонн марок от Б13 до Б24 1.423.3-8.1-21КМ Размеры деталей, сварных швов и массы колонн марок от Б25 до Б35 1.423.3-8.1-22КМ Размеры деталей, сварных швов и массы колонн марок от Б36 до Б46 1.423.3-8.1-23КМ Размеры деталей, сварных швов и массы колонн марок от Б47 до Б57 1.423.3-8.1-24КМ Схемы расположения связей по колоннам 1.423.3-8.1-25КМ Связи. Узел 6 1.423.3-8.1-26КМ Связи. Узлы 7, 8 и 9 1.423.3-8.1-27КМ Связи. Узлы 10 и 11 1.423.3-8.1-28КМ Связи. Узел 13 1.423.3-8.1-29КМ Сортамент вертикальных связей марок ВС 1.423.3-8.1-30КМ Сортамент распорок 1.423.3-8.1-31КМ Спецификация стали для колонн марок от А1 до А23 1.423.3-8.1-32КМ Спецификация стали для колонн марок от А24 до А46 1.423.3-8.1-33КМ Спецификация стали для колонн марок от Б1 до Б19 1.423.3-8.1-34КМ Спецификация стали для колонн марок от Б20 до Б38 1.423.3-8.1-35КМ Спецификация стали для колонн марок от Б39 до Б57 1.423.3-8.1-36КМ Спецификация стали для вертикальных связей марок ВС 1.423.3-8.1-37КМ Спецификация стали для распорок |
| Разработан: | ЦНИИпроектстальконструкция |
| Утверждён: | 15.11.1985 Госстрой СССР (Государственный комитет Совета Министров СССР по делам строительства) (USSR Gosstroy 185) |
| Издан: | ЦИТП Госстроя СССР (CITP, Gosstroy (USSR) 1985 г. ) |
| Чем заменён: |





















































