Скачать РД 34 02.028-2007 Технические правила. Механическое оборудование и специальные стальные конструкции гидротехнических сооружений. Изготовление, монтаж и приемка

Дата актуализации: 01.01.2021

РД 34 02.028-2007

Технические правила. Механическое оборудование и специальные стальные конструкции гидротехнических сооружений. Изготовление, монтаж и приемка

Обозначение: РД 34 02.028-2007
Обозначение англ: RD 34 02.028-2007
Статус:действует
Название рус.:Технические правила. Механическое оборудование и специальные стальные конструкции гидротехнических сооружений. Изготовление, монтаж и приемка
Дата добавления в базу:01.09.2013
Дата актуализации:01.01.2021
Дата введения:05.03.2008
Область применения:Руководящий документ распространяется на механическое оборудование и специальные стальные конструкции гидротехнических сооружений: плоские и сегментные затворы; сороудерживающие решетки; ворота судоходных шлюзов; закладные части; трубопроводы и облицовки; полукозловые, козловые и мостовые краны; канатные, цепные, цевочные и винтовые механизмы захватные балки; грейферы; решеткоочистные машины; водоочистные вращающиеся сетки; гидроприводы; плавучие рымы и поплавковые устройства; подкрановые балки; эстакады грузоподъемных механизмов; мосты, изготовляемые для внутренних заказчиков и для экспорта и предназначенные для эксплуатации в районах с умеренным (V) климатом и холодным климатом (ХЛ) при расчетной температуре от плюс 40 градусов Цельсия до минус 65 градусов Цельсия.
Оглавление:Часть I. Изготовление и приемка
   1 Общие положения
   2 Материалы
      2.1. Общие требования
      2.2 Стальной прокат
      2.3 Отливки из стали
      2.4 Отливки из чугуна
      2.5 Отливки из цветных металлов и сплавов
      2.6 Поковки и штамповки
      2.7 Детали из пластмасс
      2.8 Сварочные материалы
      2.9 Комплектующие и покупные изделия
      2.10 Хранение
   3 Изготовление деталей и заготовок
      3.1 Правка проката из углеродистой и низколегированной стали
      3.2 Разметка
      3.3 Маркировка
      3.4 Резка и обработка кромок
      3.5 Гибка (вальцовка)
      3.6 Механическая обработка
      3.7 Термическая обработка деталей
   4 Изготовление сварных конструкций
      4.1 Общие требования
      4.2 Сборка под сварку
      4.3 Сварка
      4.4 Механическая обработка сварных соединений
      4.5 Термическая обработка сварных конструкций
      4.6 Общие и контрольные сборки
      4.7 Контроль качества сварных конструкций
      4.8 дополнительные требования к изготовлению сварных конструкций, предназначенных для эксплуатации в районах с холодным климатом
   5 Изготовление конструкций с болтовыми соединениями
      5.1 Соединение на болтах без контролируемого натяжения
      5.2 Соединения на высокопрочных болтах с контролируемым натяжением
   6 Изготовление деталей и узлов машин и механизмов
      6.1 Валы и оси
      6.2 Зубчатые и червячные передачи
      6.3 Пружины
      6.4 Канаты
      6.5 Блоки и блочные подвески
      6.6 Барабаны
      6.7 Крюки и крюковые подвески
      6.8 Ходовые колеса
      6.9 Тормоза
      6.10 Муфты
      6.11 Редукторы
      6.12 Ограничители грузоподъемности
      6.13 Ходовые и грузовые тележки
      6.14 Сборка изделий
   7 Изготовление механического оборудования и стальных конструкций
      7.1 Общие требования
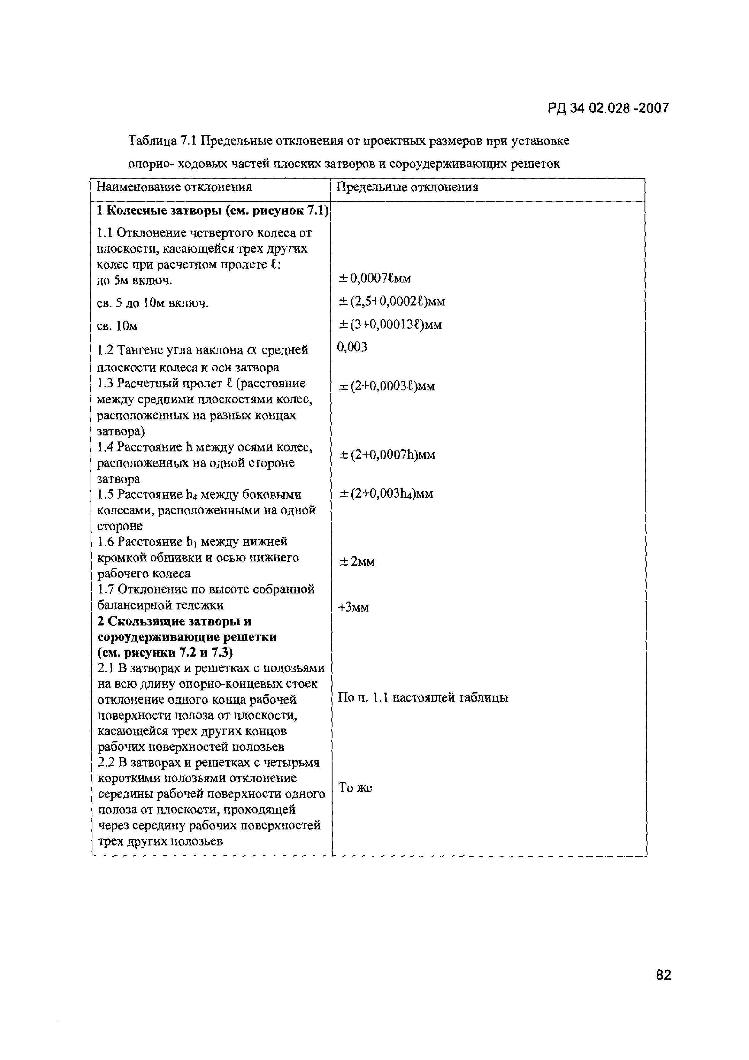
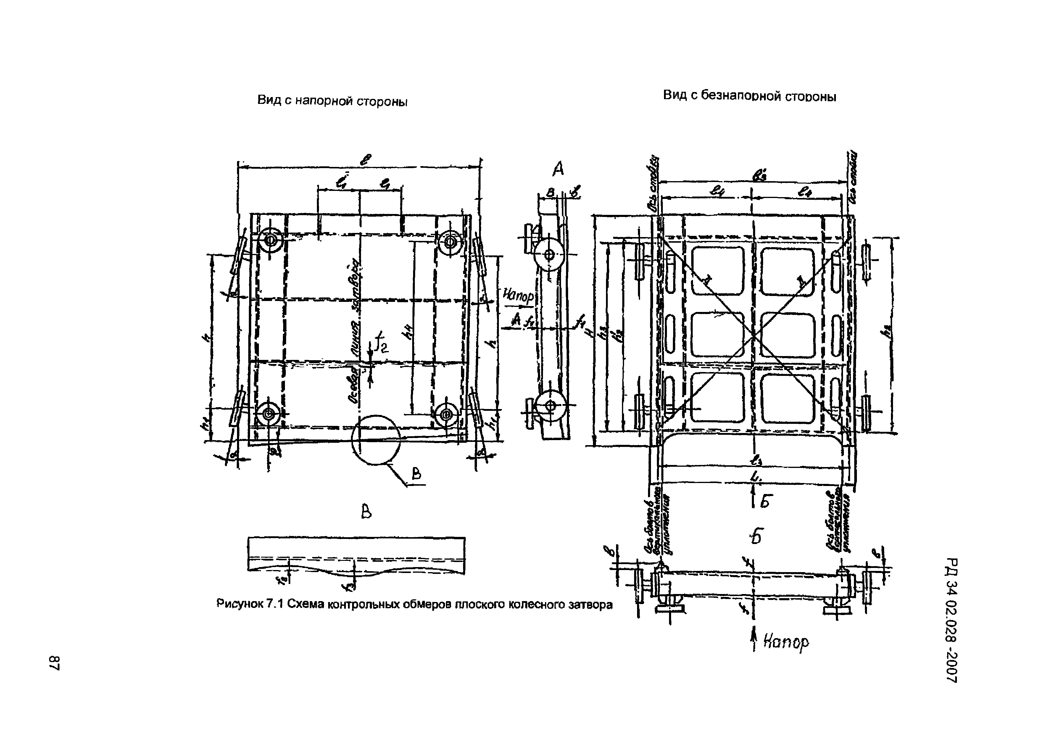
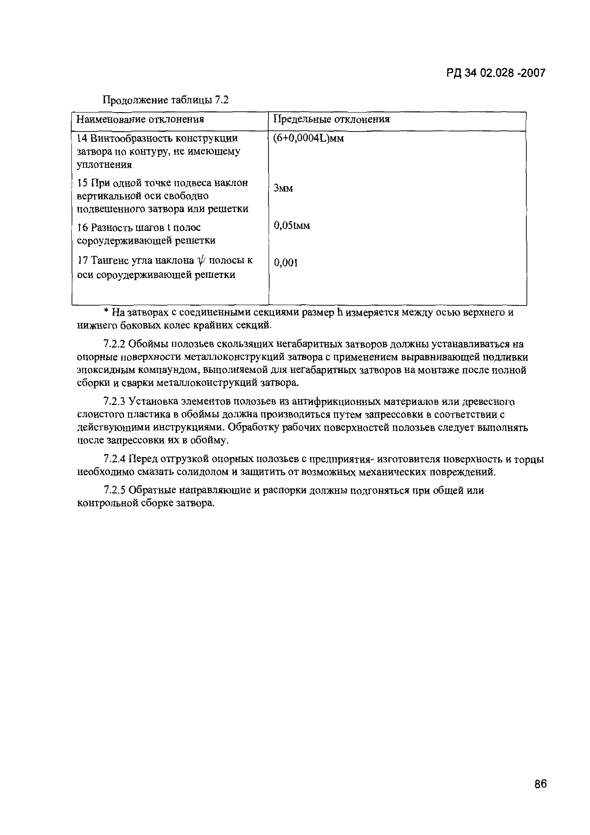
      7.2 Плоские затворы и сороудерживающие решетки
      7.3 Сегментные затворы
      7.4 Ворота судоходных шлюзов
      7.5 Трубопроводы
      7.6 Закладные части и облицовки
      7.7 Краны козловые и полукозловые
      7.8 Краны мостовые
      7.9 Захватные балки (гидравлические, механические)
      7.10 Грейферы плоскочелюстные
      7.11 Канатные механизмы
      7.12 Цепные механизмы
      7.13 Цевочные механизмы
      7.14 Винтовые механизмы
      7.15 Решеткоочистные машины
      7.16 Водоочистные вращающиеся сетки
      7.17 Плавучие рымы и поплавковые устройства
      7.18 Гидроприводы
      7.19 Электрооборудование
   8 Защитные покрытия
   9 Приемка
   10 Маркировка, упаковка, транспортирование, хранение и гарантии изготовителя
      10.1 Маркировка
      10.2 Упаковка
      10.3 Транспортирование и хранение
      10.4 Гарантии изготовителя
Часть II. Монтаж и приемка
   1 Общие положения
   2 Хранение механического оборудования и специальных стальных конструкций
   3 Укрупнительная сборка и подготовка к монтажу
   4 Сварные и болтовые монтажные соединения
   5 Монтаж, приемка и испытание механического оборудования и специальных стальных конструкций
      5.1 Общие требования
      5.2 Закладные части
      5.3 Затворы, ворота и сороудерживающие решетки
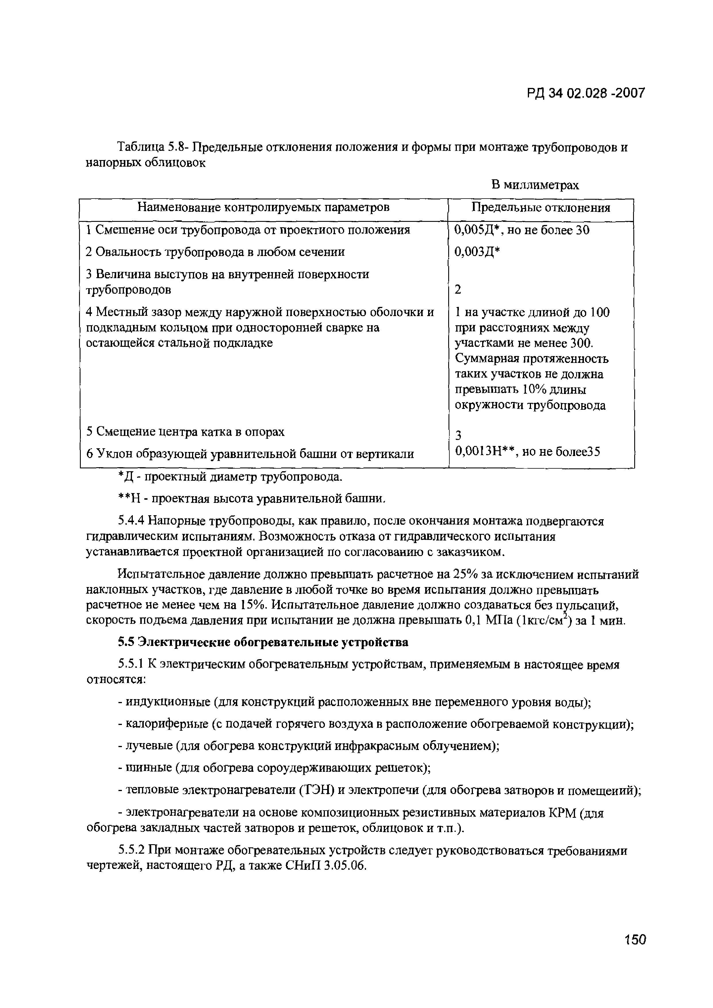
      5.4 Трубопроводы и напорные облицовки
      5.5 Электрические обогревательные устройства
      5.6 Козловые, полукозловые и мостовые краны
      5.7 Захватные балки (гидравлические, механические)
      5.8 Грейферы плоскочелюстные
      5.9 Стационарные механизмы (канатные, цепные, цевочные и винтовые)
      5.10 Решеткоочистные машины
      5.11 Сетки водоочистные вращающиеся
      5.12 Плавучие рымы и поплавковые устройства
      5.13 Воздуходувные установки
      5.14 Гидроприводы
      5.15 Электрооборудование
   6 Защитные покрытия
   Приложение А. Перечень НТД, на которые даны ссылки в тексте
Разработан: СПКТБ Ленгидросталь Минэнерго СССР
Утверждён:28.12.2007 ОАО Трест Гидромонтаж
Заменяет собой:
  • РД 34 02.028-90
Нормативные ссылки:
РД 34 02.028-2007РД 34 02.028-2007РД 34 02.028-2007РД 34 02.028-2007РД 34 02.028-2007РД 34 02.028-2007РД 34 02.028-2007РД 34 02.028-2007РД 34 02.028-2007РД 34 02.028-2007РД 34 02.028-2007РД 34 02.028-2007РД 34 02.028-2007РД 34 02.028-2007РД 34 02.028-2007РД 34 02.028-2007РД 34 02.028-2007РД 34 02.028-2007РД 34 02.028-2007РД 34 02.028-2007РД 34 02.028-2007РД 34 02.028-2007РД 34 02.028-2007РД 34 02.028-2007РД 34 02.028-2007РД 34 02.028-2007РД 34 02.028-2007РД 34 02.028-2007РД 34 02.028-2007РД 34 02.028-2007РД 34 02.028-2007РД 34 02.028-2007РД 34 02.028-2007РД 34 02.028-2007РД 34 02.028-2007РД 34 02.028-2007РД 34 02.028-2007РД 34 02.028-2007РД 34 02.028-2007РД 34 02.028-2007РД 34 02.028-2007РД 34 02.028-2007РД 34 02.028-2007РД 34 02.028-2007РД 34 02.028-2007РД 34 02.028-2007РД 34 02.028-2007РД 34 02.028-2007РД 34 02.028-2007РД 34 02.028-2007РД 34 02.028-2007РД 34 02.028-2007РД 34 02.028-2007РД 34 02.028-2007РД 34 02.028-2007РД 34 02.028-2007РД 34 02.028-2007РД 34 02.028-2007РД 34 02.028-2007РД 34 02.028-2007РД 34 02.028-2007РД 34 02.028-2007РД 34 02.028-2007РД 34 02.028-2007РД 34 02.028-2007РД 34 02.028-2007РД 34 02.028-2007РД 34 02.028-2007РД 34 02.028-2007РД 34 02.028-2007РД 34 02.028-2007РД 34 02.028-2007РД 34 02.028-2007РД 34 02.028-2007РД 34 02.028-2007РД 34 02.028-2007РД 34 02.028-2007РД 34 02.028-2007РД 34 02.028-2007РД 34 02.028-2007РД 34 02.028-2007РД 34 02.028-2007РД 34 02.028-2007РД 34 02.028-2007РД 34 02.028-2007РД 34 02.028-2007РД 34 02.028-2007РД 34 02.028-2007РД 34 02.028-2007РД 34 02.028-2007РД 34 02.028-2007РД 34 02.028-2007РД 34 02.028-2007РД 34 02.028-2007РД 34 02.028-2007РД 34 02.028-2007РД 34 02.028-2007РД 34 02.028-2007РД 34 02.028-2007РД 34 02.028-2007РД 34 02.028-2007РД 34 02.028-2007РД 34 02.028-2007РД 34 02.028-2007РД 34 02.028-2007РД 34 02.028-2007РД 34 02.028-2007РД 34 02.028-2007РД 34 02.028-2007РД 34 02.028-2007РД 34 02.028-2007РД 34 02.028-2007РД 34 02.028-2007РД 34 02.028-2007РД 34 02.028-2007РД 34 02.028-2007РД 34 02.028-2007РД 34 02.028-2007РД 34 02.028-2007РД 34 02.028-2007РД 34 02.028-2007РД 34 02.028-2007РД 34 02.028-2007РД 34 02.028-2007РД 34 02.028-2007РД 34 02.028-2007РД 34 02.028-2007РД 34 02.028-2007РД 34 02.028-2007РД 34 02.028-2007РД 34 02.028-2007РД 34 02.028-2007РД 34 02.028-2007РД 34 02.028-2007РД 34 02.028-2007РД 34 02.028-2007РД 34 02.028-2007РД 34 02.028-2007РД 34 02.028-2007РД 34 02.028-2007РД 34 02.028-2007РД 34 02.028-2007РД 34 02.028-2007РД 34 02.028-2007РД 34 02.028-2007РД 34 02.028-2007РД 34 02.028-2007РД 34 02.028-2007РД 34 02.028-2007РД 34 02.028-2007РД 34 02.028-2007РД 34 02.028-2007РД 34 02.028-2007РД 34 02.028-2007РД 34 02.028-2007РД 34 02.028-2007РД 34 02.028-2007РД 34 02.028-2007РД 34 02.028-2007РД 34 02.028-2007РД 34 02.028-2007РД 34 02.028-2007РД 34 02.028-2007РД 34 02.028-2007РД 34 02.028-2007РД 34 02.028-2007РД 34 02.028-2007РД 34 02.028-2007РД 34 02.028-2007РД 34 02.028-2007РД 34 02.028-2007РД 34 02.028-2007РД 34 02.028-2007РД 34 02.028-2007РД 34 02.028-2007РД 34 02.028-2007РД 34 02.028-2007РД 34 02.028-2007РД 34 02.028-2007РД 34 02.028-2007РД 34 02.028-2007РД 34 02.028-2007РД 34 02.028-2007РД 34 02.028-2007РД 34 02.028-2007