Скачать СП 145.13330.2012 Дома-интернаты. Правила проектирования

Дата актуализации: 01.01.2021

СП 145.13330.2012

Дома-интернаты. Правила проектирования

Обозначение: СП 145.13330.2012
Обозначение англ: SP 145.13330.2012
Статус:введен впервые
Название рус.:Дома-интернаты. Правила проектирования
Название англ.:Boarding-Houses. Rules of architectural design
Дата добавления в базу:01.10.2014
Дата актуализации:01.01.2021
Дата введения:01.07.2013
Область применения:Свод правил распространяется на проектирование новых зданий, а также на реконструкцию действующих зданий домов-интернатов общего типа, специальных и психоневрологических для нуждающихся в постоянной помощи мужчин старше 65 лет и женщин старше 60 лет, а также инвалидов I и II группы старше 18 лет. Свод правил не распространяется на дома-интернаты для ветеранов войны, труда, Вооруженных Сил и правоохранительных органов; дома-интернаты ухода (милосердия); психоневрологические интернаты, осуществляющие функции диспансеризации, лечения проживающих, госпитализацию, связанную с тяжело больными психоневрологическими болезнями.
Оглавление:1 Область применения
2 Нормативные ссылки
3 Термины и определения
4 Основные положения
5 Площадки домов-интернатов
6 Объемно-планировочные решения
7 Функциональные требования к проектированию основных групп помещений
8 Инженерно-техническое обеспечение и инженерное оборудование
Приложение А (рекомендуемое). Состав и площади основных групп помещений домов-интернатов
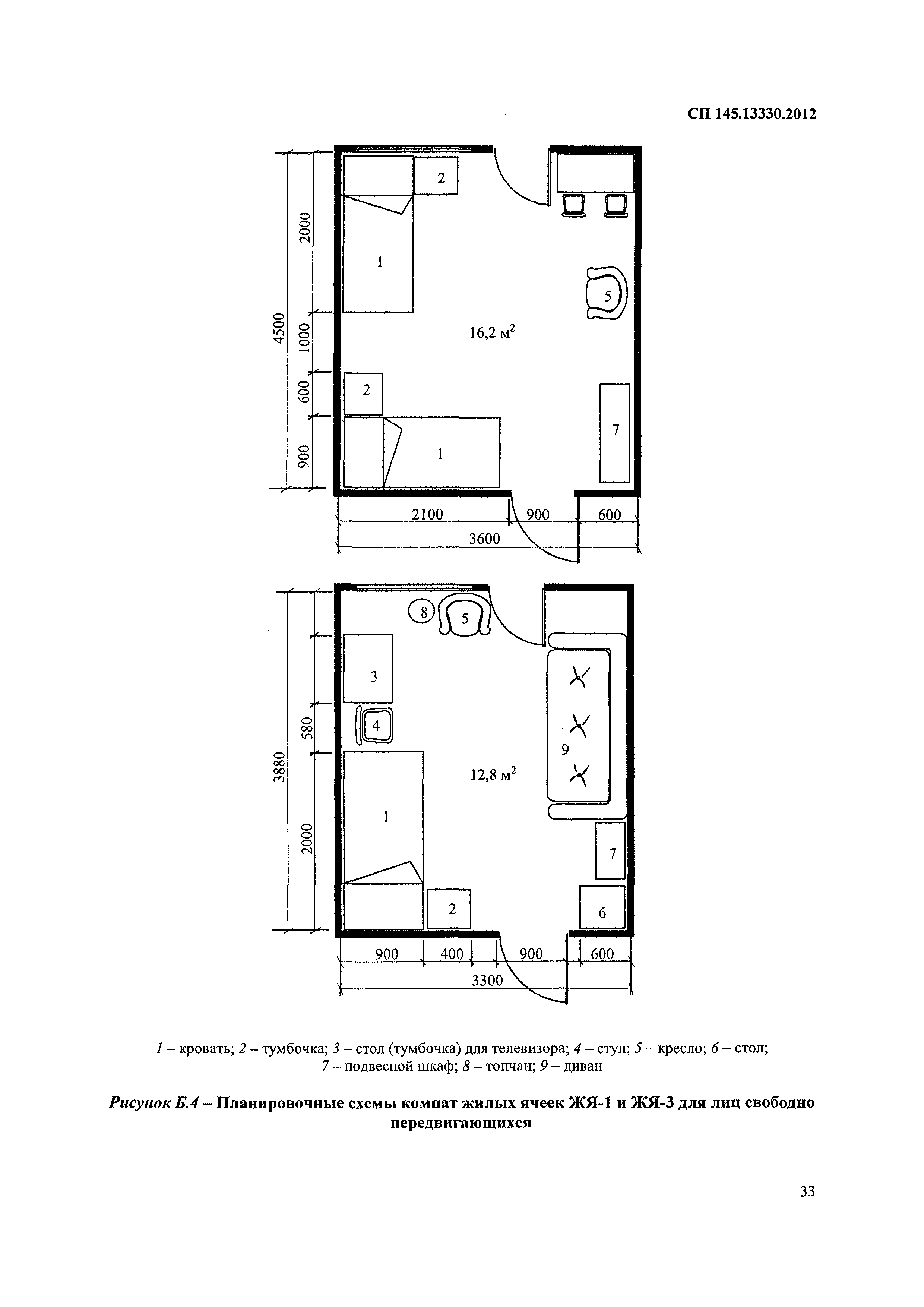
Приложение Б (рекомендуемое). Планировочные схемы
Библиография
Разработан: ОАО ЦНИИЭП жилища
ООО Институт общественных зданий
Утверждён:27.12.2012 Федеральное агентство по строительству и жилищно-коммунальному хозяйству (132/ГС)
Издан: Госстрой России (2013 г. )
Список изменений:
Нормативные ссылки:
СП 145.13330.2012СП 145.13330.2012СП 145.13330.2012СП 145.13330.2012СП 145.13330.2012СП 145.13330.2012СП 145.13330.2012СП 145.13330.2012СП 145.13330.2012СП 145.13330.2012СП 145.13330.2012СП 145.13330.2012СП 145.13330.2012СП 145.13330.2012СП 145.13330.2012СП 145.13330.2012СП 145.13330.2012СП 145.13330.2012СП 145.13330.2012СП 145.13330.2012СП 145.13330.2012СП 145.13330.2012СП 145.13330.2012СП 145.13330.2012СП 145.13330.2012СП 145.13330.2012СП 145.13330.2012СП 145.13330.2012СП 145.13330.2012СП 145.13330.2012СП 145.13330.2012СП 145.13330.2012СП 145.13330.2012СП 145.13330.2012СП 145.13330.2012СП 145.13330.2012СП 145.13330.2012СП 145.13330.2012СП 145.13330.2012СП 145.13330.2012СП 145.13330.2012СП 145.13330.2012СП 145.13330.2012СП 145.13330.2012СП 145.13330.2012СП 145.13330.2012СП 145.13330.2012СП 145.13330.2012СП 145.13330.2012СП 145.13330.2012СП 145.13330.2012СП 145.13330.2012

Текстовое изменение № 1 от 25.03.2016

№ 1№ 1№ 1№ 1№ 1№ 1№ 1

Текстовое изменение № 2 от 25.05.2020

№ 2№ 2№ 2№ 2№ 2№ 2№ 2№ 2№ 2№ 2№ 2№ 2№ 2№ 2№ 2№ 2