Скачать СП 136.13330.2012 Здания и сооружения. Общие положения проектирования с учетом доступности для маломобильных групп населения

Дата актуализации: 01.01.2021

СП 136.13330.2012

Здания и сооружения. Общие положения проектирования с учетом доступности для маломобильных групп населения

Обозначение: СП 136.13330.2012
Обозначение англ: SP 136.13330.2012
Статус:введен впервые
Название рус.:Здания и сооружения. Общие положения проектирования с учетом доступности для маломобильных групп населения
Название англ.:Building and structures. Common regulations of accessibility for physically handicapped persons
Дата добавления в базу:01.10.2014
Дата актуализации:01.01.2021
Дата введения:01.07.2013
Область применения:Требования свода правил распространяются на доступные для маломобильных групп населения элементы архитектурной среды и системы ими образуемые: элементы участка, части зданий, группы помещений, помещения, функциональные зоны (в том числе пути движения), устройство мест основных процессов жизнедеятельности, обслуживания, приложения труда и отдыха по ГОСТ Р 52880, К этим объектам также относятся конструктивные элементы и малые формы. Требования документа не распространяются на те части зданий, сооружений и их участки, куда не предусмотрен доступ инвалидов.
Оглавление:1 Область применения
2 Нормативные ссылки
3 Термины и определения
4 Общие положения
5 Требования к земельному участку
6 Пути движения в здании
7 Зоны обслуживания
8 Санитарно-бытовые помещения
9 Инженерные устройства и оборудование
10 Информационные устройства, средства и их системы
   10.1 Общие положения
   10.2 Визуальные устройства и средства информации
   10.3 Акустические устройства и средства информации
   10.4 Тактильные средства информации
Приложение А (рекомендуемое). Требования доступности элементов зданий и участков
Приложение Б (справочное). Преимущества и недостатки передающих устройств (опыт ФРГ)
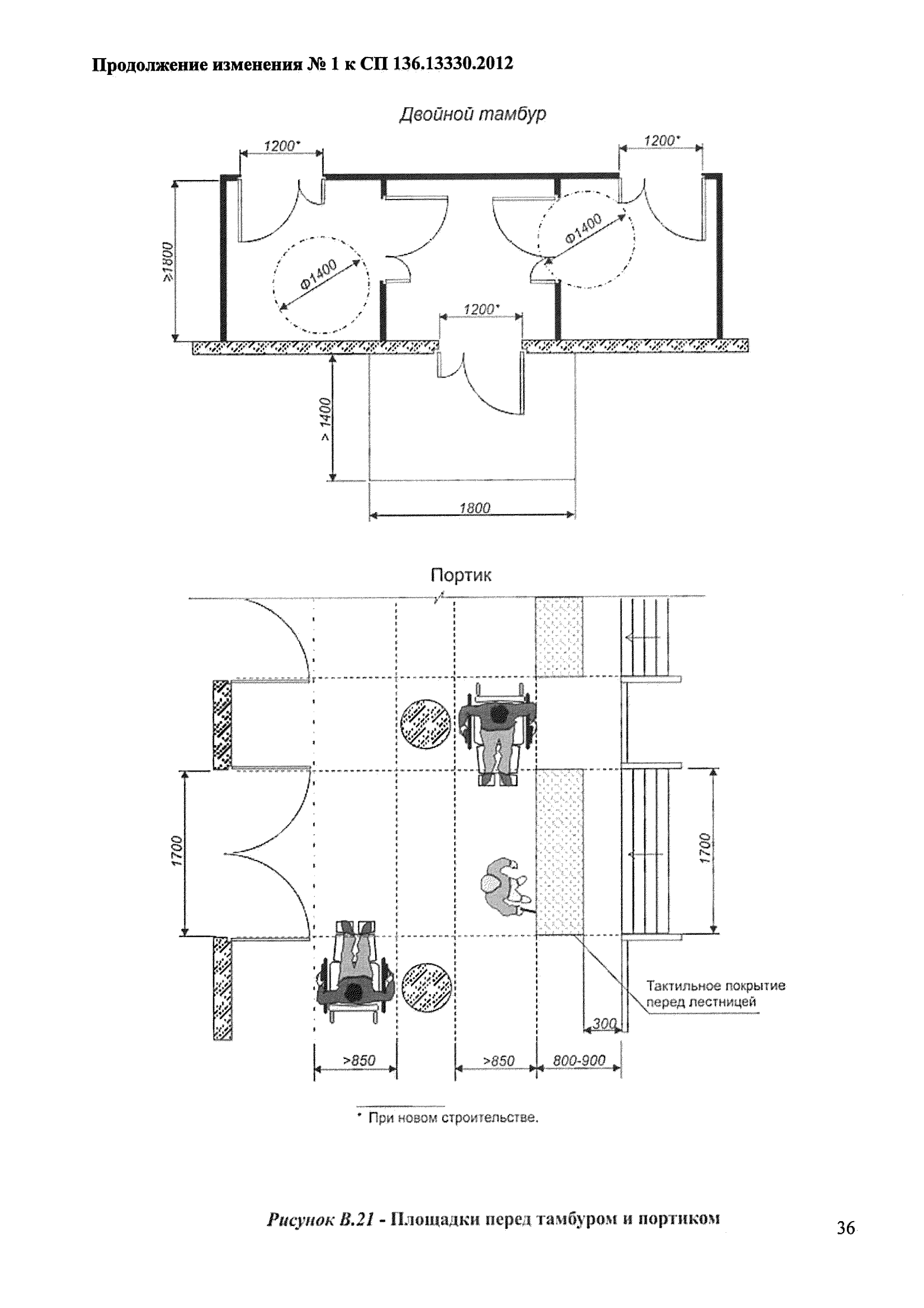
Приложение В (обязательное). Параметры архитектурной среды, доступной инвалидам
Приложение Г (обязательное). Эргономические параметры
Разработан: ОАО ЦНИИЭП жилища
ОАО Институт общественных зданий (ОАО ИОЗ )
Утверждён:25.12.2012 Федеральное агентство по строительству и жилищно-коммунальному хозяйству (112/ГС)
Издан: ФАУ ФЦС (2013 г. )
Список изменений:
Нормативные ссылки:
СП 136.13330.2012СП 136.13330.2012СП 136.13330.2012СП 136.13330.2012СП 136.13330.2012СП 136.13330.2012СП 136.13330.2012СП 136.13330.2012СП 136.13330.2012СП 136.13330.2012СП 136.13330.2012СП 136.13330.2012СП 136.13330.2012СП 136.13330.2012СП 136.13330.2012СП 136.13330.2012СП 136.13330.2012СП 136.13330.2012СП 136.13330.2012СП 136.13330.2012СП 136.13330.2012СП 136.13330.2012СП 136.13330.2012СП 136.13330.2012СП 136.13330.2012СП 136.13330.2012СП 136.13330.2012СП 136.13330.2012СП 136.13330.2012СП 136.13330.2012СП 136.13330.2012СП 136.13330.2012СП 136.13330.2012СП 136.13330.2012СП 136.13330.2012СП 136.13330.2012СП 136.13330.2012СП 136.13330.2012СП 136.13330.2012СП 136.13330.2012СП 136.13330.2012СП 136.13330.2012СП 136.13330.2012СП 136.13330.2012СП 136.13330.2012СП 136.13330.2012СП 136.13330.2012СП 136.13330.2012СП 136.13330.2012СП 136.13330.2012СП 136.13330.2012СП 136.13330.2012СП 136.13330.2012СП 136.13330.2012СП 136.13330.2012СП 136.13330.2012СП 136.13330.2012СП 136.13330.2012СП 136.13330.2012СП 136.13330.2012СП 136.13330.2012СП 136.13330.2012СП 136.13330.2012СП 136.13330.2012СП 136.13330.2012СП 136.13330.2012СП 136.13330.2012СП 136.13330.2012СП 136.13330.2012СП 136.13330.2012СП 136.13330.2012СП 136.13330.2012СП 136.13330.2012СП 136.13330.2012СП 136.13330.2012СП 136.13330.2012СП 136.13330.2012СП 136.13330.2012СП 136.13330.2012СП 136.13330.2012СП 136.13330.2012СП 136.13330.2012СП 136.13330.2012СП 136.13330.2012СП 136.13330.2012СП 136.13330.2012

Текстовое изменение № 1 от 10.03.2017

№ 1№ 1№ 1№ 1№ 1№ 1№ 1№ 1№ 1№ 1№ 1№ 1№ 1№ 1№ 1№ 1№ 1№ 1№ 1№ 1№ 1№ 1№ 1№ 1№ 1№ 1№ 1№ 1№ 1№ 1№ 1№ 1№ 1№ 1№ 1№ 1№ 1№ 1№ 1№ 1№ 1№ 1№ 1№ 1№ 1№ 1№ 1№ 1№ 1№ 1№ 1№ 1№ 1№ 1№ 1№ 1№ 1№ 1№ 1№ 1№ 1№ 1№ 1№ 1№ 1№ 1№ 1№ 1№ 1№ 1№ 1№ 1№ 1№ 1№ 1