Главная // Актуальные документы // ГОСТ (Государственный стандарт)СПРАВКА
Источник публикации
М.: Стандартинформ, 2016
Примечание к документу
Текст данного документа приведен с учетом
поправки, опубликованной в "ИУС", N 11, 2022.
Документ
введен в действие с 01.07.2017.
Название документа
"ГОСТ 31173-2016. Межгосударственный стандарт. Блоки дверные стальные. Технические условия"
(введен в действие Приказом Росстандарта от 22.11.2016 N 1739-ст)
"ГОСТ 31173-2016. Межгосударственный стандарт. Блоки дверные стальные. Технические условия"
(введен в действие Приказом Росстандарта от 22.11.2016 N 1739-ст)
агентства по техническому
регулированию и метрологии
от 22 ноября 2016 г. N 1739-ст
МЕЖГОСУДАРСТВЕННЫЙ СТАНДАРТ
БЛОКИ ДВЕРНЫЕ СТАЛЬНЫЕ
ТЕХНИЧЕСКИЕ УСЛОВИЯ
Steel doors. Specifications
(EN 14351-1:2006+A1:2010, NEQ)
(EN 1191:2012, NEQ)
(EN 1192:1999, NEQ)
ГОСТ 31173-2016
Дата введения
1 июля 2017 года
Цели, основные принципы и основной порядок проведения работ по межгосударственной стандартизации установлены
ГОСТ 1.0-2015 "Межгосударственная система стандартизации. Основные положения" и
ГОСТ 1.2-2015 "Межгосударственная система стандартизации. Стандарты межгосударственные, правила и рекомендации по межгосударственной стандартизации. Правила разработки, принятия, обновления и отмены"
Сведения о стандарте
1 РАЗРАБОТАН частным учреждением "Центр по сертификации оконной и дверной техники", Обществом с ограниченной ответственностью "ДорХан 21 век", фирмой "CISA" (Италия)
2 ВНЕСЕН Техническим комитетом по стандартизации ТК 465 "Строительство"
3 ПРИНЯТ Межгосударственным советом по стандартизации, метрологии и сертификации (протокол от 25 октября 2016 г. N 92-П)
За принятие проголосовали:
Краткое наименование страны по МК (ИСО 3166) 004-97 | Код страны по МК (ИСО 3166) 004-97 | Сокращенное наименование национального органа по стандартизации |
Армения | AM | Минэкономики Республики Армения |
Киргизия | KG | Кыргызстандарт |
Россия | RU | Росстандарт |
Туркмения | TM | Главгосслужба "Туркменстандартлары" |
4
Приказом Федерального агентства по техническому регулированию и метрологии от 22 ноября 2016 г. N 1739-ст межгосударственный стандарт ГОСТ 31173-2016 введен в действие в качестве национального стандарта Российской Федерации с 1 июля 2017 г.
5 Настоящий стандарт соответствует в части технических требований и методов испытаний следующим европейским стандартам:
- EN 14351-1:2006+A1:2010 "Окна и двери. Стандарт на продукцию, технические характеристики. Часть 1. Окна и наружные наземные дверные проемы без характеристик огнестойкости и/или дымопропускаемости" ("Windows and doors - Product standard, performance characteristics - Part 1: Windows and external pedestrian doorsets without resistance to fire and/or smoke leakage characteristics", NEQ);
- EN 1191:2012 "Окна и двери. Сопротивление повторному открыванию и закрыванию. Метод испытания" ("Windows and doors - Resistance to repeated opening and closing - Test method", NEQ);
- EN 1192:1999 "Двери. Классификация по требованиям к механической прочности" ("Doors - Classification of strength requirements", NEQ)
Информация об изменениях к настоящему стандарту публикуется в ежегодном информационном указателе "Национальные стандарты", а текст изменений и поправок - в ежемесячном информационном указателе "Национальные стандарты". В случае пересмотра (замены) или отмены настоящего стандарта соответствующее уведомление будет опубликовано в ежемесячном информационном указателе "Национальные стандарты". Соответствующая информация, уведомление и тексты размещаются также в информационной системе общего пользования - на официальном сайте Федерального агентства по техническому регулированию и метрологии в сети Интернет (www.gost.ru)
Настоящий стандарт распространяется на дверные стальные блоки с установленными запирающими устройствами (далее - дверные блоки), предназначенные для установки в наружных и внутренних стенах зданий и сооружений различного назначения. Требования настоящего стандарта могут быть применены к входным дверным блокам зданий и квартир, оборудованным охранной сигнализацией.
Область применения конкретных видов изделий устанавливают в зависимости от условий эксплуатации в соответствии с действующими на территории государства - участника соглашения, принявшего настоящий стандарт, строительными нормами и правилами с учетом требований настоящего стандарта.
Настоящий стандарт не распространяется на дверные блоки специального назначения в части дополнительных требований к пожаробезопасности, взрыво- и пулестойкости, воздействию агрессивных сред и т.д., а также на дверные блоки защитных кабин по действующим нормативным документам.
Настоящий стандарт может быть применен для целей сертификации.
В настоящем стандарте приведены нормативные ссылки на следующие межгосударственные стандарты:
ГОСТ 2.001-2013 Единая система конструкторской документации. Общие положения
ГОСТ 9.032-74 Единая система защиты от коррозии и старения. Покрытия лакокрасочные. Группы, технические требования и обозначения
ГОСТ 9.301-86 Единая система защиты от коррозии и старения. Покрытия металлические и неметаллические неорганические. Общие требования
ГОСТ 9.303-84 Единая система защиты от коррозии и старения. Покрытия металлические и неметаллические неорганические. Общие требования к выбору
ГОСТ 9.308-85 Единая система защиты от коррозии и старения. Покрытия металлические и неметаллические неорганические. Методы ускоренных коррозионных испытаний
ГОСТ 9.401-91 Единая система защиты от коррозии и старения. Покрытия лакокрасочные. Общие требования и методы ускоренных испытаний на стойкость к воздействию климатических факторов
ГОСТ 9.402-2004 Единая система защиты от коррозии и старения. Покрытия лакокрасочные. Подготовка металлических поверхностей к окрашиванию
ГОСТ 166-89 (ИСО 3599-76) Штангенциркули. Технические условия
ГОСТ 427-75 Линейки измерительные металлические. Технические условия
ГОСТ 538-2014 Изделия замочные и скобяные. Общие технические условия
ГОСТ 1050-88 Прокат сортовой, калиброванный, со специальной отделкой поверхности из углеродистой качественной конструкционной стали. Общие технические условия
ГОСТ 2140-81 Видимые пороки древесины. Классификация, термины и определения. Способы измерения
ГОСТ 5088-2005 Петли для оконных и дверных блоков. Технические условия
ГОСТ 5089-2011 Замки, защелки, механизмы цилиндровые. Технические условия
ГОСТ 5264-80 Ручная дуговая сварка. Соединения сварные. Основные типы, конструктивные элементы и размеры
ГОСТ 5632-2014 Легированные нержавеющие стали и сплавы коррозионно-стойкие, жаростойкие и жаропрочные. Марки
ГОСТ 7016-2013 Изделия из древесины и древесных материалов. Параметры шероховатости поверхности
ГОСТ 7502-98 Рулетки измерительные металлические. Технические условия
ГОСТ 8242-88 Детали профильные из древесины и древесных материалов для строительства. Технические условия
ГОСТ 15150-69 Машины, приборы и другие технические изделия. Исполнения для различных климатических районов. Категории, условия эксплуатации, хранения и транспортирования в части воздействия климатических факторов внешней среды
ГОСТ 23118-2012 Конструкции стальные строительные. Общие технические условия
ГОСТ 26433.0-85 Система обеспечения точности геометрических параметров в строительстве. Правила выполнения измерений. Общие положения
ГОСТ 26433.1-89 Система обеспечения точности геометрических параметров в строительстве. Правила выполнения измерений. Элементы заводского изготовления
ГОСТ 26602.1-99 Блоки оконные и дверные. Методы определения сопротивления теплопередаче
ГОСТ 26602.2-99 Блоки оконные и дверные. Методы определения воздухо- и водопроницаемости
ГОСТ 26602.5-2001 Блоки оконные и дверные. Методы определения сопротивления ветровой нагрузке
ГОСТ 30777-2012 Устройства поворотные, откидные, поворотно-откидные, раздвижные для оконных и дверных балконных блоков. Технические условия
ГОСТ 30778-2001 Прокладки уплотняющие из эластомерных материалов для оконных и дверных блоков. Технические условия
ГОСТ 30970-2014 Блоки дверные из поливинилхлоридных профилей. Общие технические условия
ГОСТ 30971-2012 Швы монтажные узлов примыкания к стеновым проемам. Общие технические условия
ГОСТ 30972-2002 Заготовки и детали деревянные клееные для оконных и дверных блоков. Технические условия
ГОСТ 31149-2014 (ISO 2409:2013) Материалы лакокрасочные. Определение адгезии методом решетчатого надреза
ГОСТ 31471-2011 Устройства экстренного открывания дверей эвакуационных и аварийных выходов. Технические условия
Примечание - При пользовании настоящим стандартом целесообразно проверить действие ссылочных стандартов в информационной системе общего пользования - на официальном сайте Федерального агентства по техническому регулированию и метрологии в сети Интернет или по ежегодному информационному указателю "Национальные стандарты", который опубликован по состоянию на 1 января текущего года, и по выпускам ежемесячного информационного указателя "Национальные стандарты" за текущий год. Если ссылочный стандарт заменен (изменен), то при пользовании настоящим стандартом следует руководствоваться заменяющим (измененным) стандартом. Если ссылочный стандарт отменен без замены, то положение, в котором дана ссылка на него, применяется в части, не затрагивающей эту ссылку.
В настоящем стандарте применены следующие термины с соответствующими определениями:
3.1 взлом двери: Действия, направленные на нарушение целостности двери или элементов ее конструкции в целях получения частичного или полного доступа в защищаемое дверью помещение.
3.2 взломоустойчивая дверь: Дверь, находящаяся в закрытом (запертом) состоянии и являющаяся препятствием для несанкционированного проникновения в здание (помещение) с использованием физической силы или с помощью определенного инструмента.
3.3 внутренний лист: Лист дверного полотна, расположенный с внутренней стороны дверного блока, со стороны охраняемого или защищаемого помещения или объекта.
3.4 внутренний дверной блок (в том числе входной с лестничной клетки): Дверной блок, предназначенный для отделения внутренних помещений зданий и прохода из одного помещения в другое.
3.5 дверная коробка (рама): Сборочная единица дверного блока, предназначенная для навески полотна (полотен), жестко закрепляемая к откосам дверного проема.
3.6 дверное полотно: Сборочная единица дверного блока, соединенная с коробкой посредством подвижных связей (петель).
3.7 дверной блок: Конструкция, включающая в себя коробку (раму), дверное полотно с запирающими устройствами.
Примечание - Дверной блок может включать в себя ряд дополнительных элементов [устройство закрывания дверей (доводчик), ограничитель угла открывания, глазок и др.].
3.8 дверной блок правого (левого) открывания: Дверной блок с расположением петель с правой (левой) стороны при виде со стороны открывания дверного полотна (рисунок 1).
а) Дверной блок правого открывания
б) Дверной блок левого открывания
в) Дверной блок правого открывания с горизонтальными
и вертикальными полотнами-вставками
Рисунок 1 - Определение дверного блока
по направлению открывания полотен
3.9 дверной проем: Проем в стене, предназначенный для монтажа дверного блока.
3.10 дверь: Элемент стеновой конструкции, предназначенный для заполнения дверных проемов и состоящий из дверного блока, крепления дверного блока к проему, монтажных швов, системы уплотнений и облицовки и обеспечивающий при закрытом положении дверного полотна защиту от климатических, шумовых и других воздействий, а также от несанкционированного прохода.
3.11 двупольный дверной блок: Дверной блок, состоящий из двух или нескольких полотен, установленных в одну дверную коробку.
Примечание - В двупольном дверном блоке правое или левое открывание определяют по расположению дверного полотна, которое открывается первым
(рисунок 1).
Основную створку двупольного дверного полотна используют постоянно, вторую - при необходимости.
3.12 запирающие устройства: Устройства, предназначенные для фиксации и запирания дверных полотен в закрытом положении (замки, защелки и т.д.).
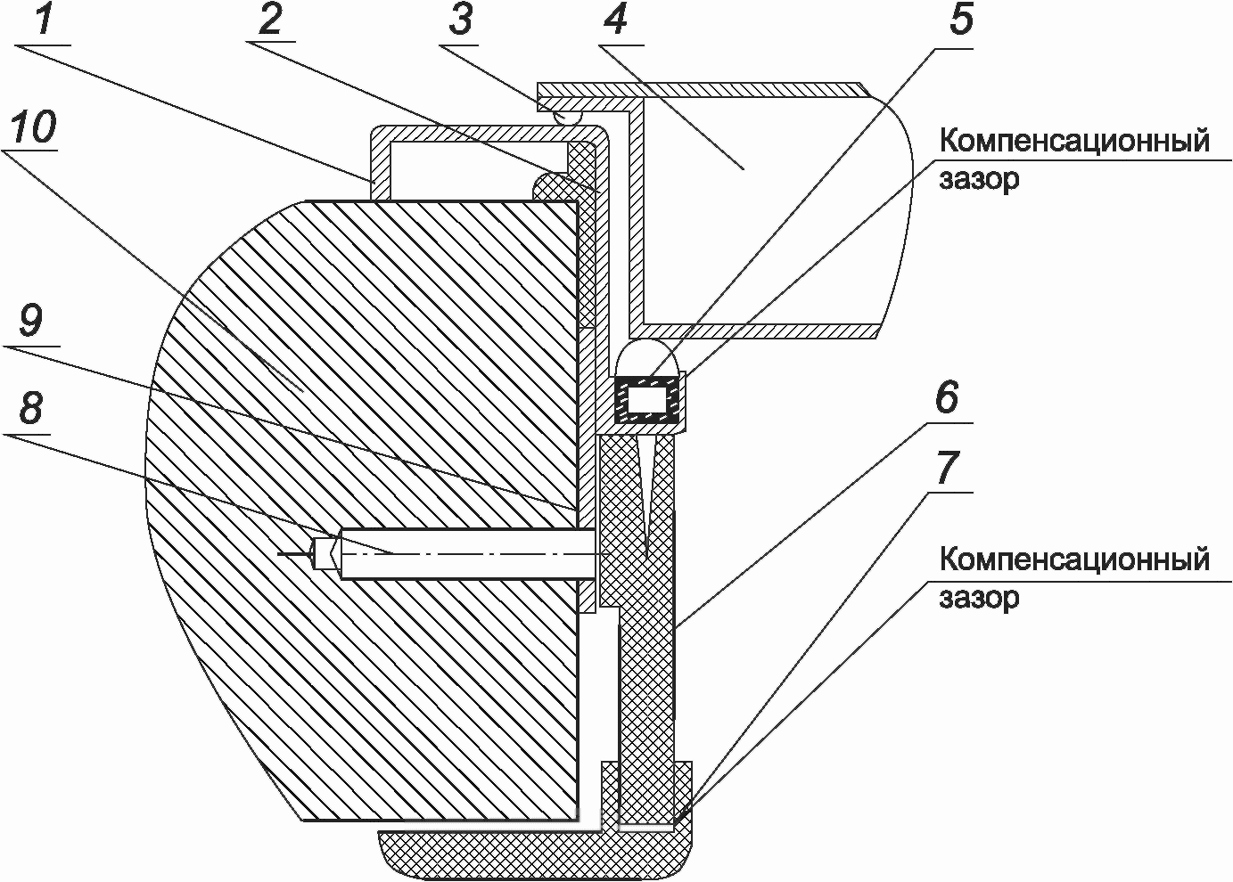
3.13 лючок: Закрывающееся крышкой отверстие, устанавливаемой на механических связях с внутренней стороны дверного полотна в месте крепления замка, обеспечивающее возможность доступа к замку в случае необходимости его ремонта.
3.14 монтажные элементы: Металлические крепежные пластины, приваренные, как правило, к профилям коробки (рамы), обеспечивающие крепление дверного блока в стеновом проеме.
3.15 наплав: Выступ профиля дверного полотна (коробки), перекрывающий зазор в притворе и предназначенный для прижатия прокладок.
3.16 наружный дверной блок (в том числе тамбурный): Дверной блок, отделяющий внутренний климат помещений от наружного и служащий преимущественно для входа (выхода).
3.17 наружный лист: Лист дверного полотна, расположенный с наружной стороны дверного блока (со стороны предполагаемой атаки).
3.18 полотно-вставка: Неоткрывающееся дверное полотно, устанавливаемое над открывающимся полотном или рядом с ним [см.
рисунок 1 в)].
3.19 притвор: Место примыкания (узел соединения) дверного полотна к профилям коробки.
3.20 противосъемные пассивные ригели (штыри): Усиливающие ригели, связывающие закрытое дверное полотно с коробкой, устанавливаемые на вертикальном профиле полотна со стороны петель (или на вертикальном профиле коробки со стороны петель) и обеспечивающие дополнительную стойкость дверного блока к взлому.
3.21 прочность дверного блока: Способность конструкции воспринимать воздействие внешних сил без разрушения.
3.22 профиль: Профильная деталь коробки или обвязки (рамки) дверного полотна.
3.23 усиливающий профиль: Профиль, устанавливаемый внутри дверных полотен для обеспечения необходимой жесткости и прочности дверного блока.
4. Классификация и условные обозначения
4.1 Дверные блоки классифицируют по следующим признакам:
- назначение (по месту установки);
- конструктивное исполнение;
- эксплуатационные характеристики;
- механическая прочность;
- защитные функции.
4.1.1 По назначению дверные блоки подразделяют на группы:
- А - наружные входные в здания и сооружения;
- Б - входные в квартиры с лестничных клеток;
- В - внутренние, разделяющие отапливаемые помещения внутри зданий, в том числе общественных и производственных зданий (офисы, кабинеты, номера отелей), а также на путях эвакуации;
- В1 - внутренние дверные блоки вспомогательных помещений (чердаков, подвалов, технических этажей, тамбуров);
- Г - наружные входные в здания и входные в квартиры с усиленными защитными функциями.
Примечания
1 Классификация по назначению позволяет потребителю выбирать дверной блок внутри группы в зависимости от ожидаемых условий эксплуатации, конкретных требований к конструкции и потребительским свойствам. Например, входные дверные блоки в здания могут быть использованы как входные в квартиру.
2 Дверные блоки с усиленными защитными функциями могут быть использованы в качестве входных в квартиру или во вспомогательные помещения.
3 Не допускается применение дверных блоков класса прочности М1 и ниже в качестве входных в здания и в квартиры.
4.1.2 По конструктивному исполнению дверные блоки классифицируют:
- по конструкции коробки:
- с замкнутой коробкой,
- с П-образной коробкой,
- с П-образной коробкой с доборным порогом;
- по конструкции дверного полотна:
- состоящие не менее чем из двух листов стали (наружного и внутреннего), соединенных с помощью сварки,
- комбинированные, состоящие из одного наружного стального листа и внутреннего из других материалов (ДСП, фанера, полимерные плиты и др.),
- типа "сэндвич", состоящие из двух завальцованных листов рулонной стали и слоя утеплителя между ними;
- по числу полотен (в том числе неоткрывающихся), направлению и виду открывания:
- однопольные (левого и правого открывания),
- двупольные (в том числе с полотнами разной ширины);
- по способу открывания полотна:
- с неоткрывающимися полотнами (вставками),
- с открыванием внутрь помещения,
- с открыванием наружу;
- по числу контуров уплотнения в притворе:
- с одним контуром,
- с двумя и более контурами.
4.1.3 По эксплуатационным характеристикам (приведенному сопротивлению теплопередаче, воздухо- и водопроницаемости, звукоизоляции) дверные блоки групп А, Б, Г подразделяют на классы 1, 2, 3.
Значения эксплуатационных характеристик дверных блоков указанных классов приведены в таблице 1.
Таблица 1
Классы дверных блоков по эксплуатационным характеристикам
Наименование показателя | Значение для класса |
1 | 2 | 3 |
Приведенное сопротивление теплопередаче, м2·°C/Вт, не менее | 0,8 | 0,6 | 0,4 |
Воздухопроницаемость (объемная) при  , м 3/(ч·м 2) | < 9 | 9 - 17 | Св. 17 до 27 |
Предел водонепроницаемости <*>, Па, не менее | 600 | 400 | 200 |
Звукоизоляция (снижение воздушного шума), дБ | > 32 | 26 - 31 | 20 - 25 |
<*> Для дверных блоков групп А и Г (входные дверные блоки в здания с улицы) допускается определять водопроницаемость по ГОСТ 26602.2. Примечания 1 Дверные блоки с приведенным сопротивлением теплопередаче менее 0,4 м2·°C/Вт, объемной воздухопроницаемостью более 27 м3/(ч·м2), звукоизоляцией менее 20 дБ классификации по указанным показателям не подлежат. 2 Приведенное сопротивление теплопередаче для дверей групп А и Б является справочным. В необходимых случаях данный показатель подтверждают расчетами или лабораторными испытаниями. 3 Для дверных блоков групп А и Г устанавливают стойкость к воздействию ветровых нагрузок по нормативному документу <1>, действующему на территории государства - участника соглашения, принявшего настоящий стандарт. 4 Дверные блоки группы В в случае применения их в качестве входных в квартиры следует классифицировать по эксплуатационным характеристикам в соответствии с 4.1.3. |
--------------------------------
<1> В Российской Федерации принимают изменение давления от 400 до 1800 Па по
СП 20.13330.2011 "СНиП 2.01.07-85 Нагрузки и воздействия".
4.1.4 Сопротивление теплопередаче, воздухопроницаемость и звукоизоляция для дверей групп А и Г, установленных в наружных стенах отапливаемых зданий, должны соответствовать требованиям нормативного документа <1>, действующего на территории государства - участника соглашения, принявшего настоящий стандарт.
| | ИС МЕГАНОРМ: примечание. В официальном тексте документа, видимо, допущена опечатка: имеется в виду СП 50.13330.2012, а не СП 50.13330.2011. | |
--------------------------------
<1> В Российской Федерации руководствуются требованиями
СП 50.13330.2011 "СНиП 23-02-2003 Тепловая защита зданий" и
СП 51.13330.2011 "СНиП 23-03-2003 Защита от шума".
4.1.5 По механической прочности дверные блоки подразделяют на следующие классы: М1, М2, М3, М4, М5.
Классы механической прочности дверных блоков характеризуются значениями прикладываемых статических нагрузок, приведенных в таблице 2.
Таблица 2
Классы дверных блоков по механической прочности
Нагрузка | Значение нагрузки для дверного блока класса прочности |
М5 | М4 | М3 | М2 | М1 |
1 Статическая нагрузка, прикладываемая в плоскости дверного полотна, Н, не менее | 7200 | 7000 | 5000 | 3000 | 1000 |
2 Статическая нагрузка, прикладываемая в зоне свободного угла дверного полотна перпендикулярно его плоскости, Н, не менее | 5200 | 4500 | 3200 | 2200 | 1000 |
3 Статическая нагрузка, прикладываемая в зоне петель перпендикулярно плоскости дверного полотна, Н, не менее | 5000 | 4000 | 3000 | 2000 | 1000 |
4 Статическая нагрузка, прикладываемая в зоне замка и дополнительных запирающих устройств перпендикулярно плоскости дверного полотна, Н, не менее | 7000 | 6800 | 4900 | 3000 | 2000 |
Примечания 1 Класс прочности дверного блока устанавливают по худшему результату из всех видов испытаний (класс М5 - высший). 3 Пример определения класса прочности по статической нагрузке, действующей перпендикулярно плоскости дверного полотна в зоне свободного угла, приведен в приложении А. |
4.1.6 В зависимости от наличия защитных функций дверные блоки подразделяют:
- на дверные блоки обычного исполнения;
- дверные блоки с усиленными защитными функциями.
К дверным блокам с усиленными защитными функциями могут дополнительно предъявляться требования к взломоустойчивости.
Примечание - Условное обозначение дверных блоков с усиленными защитными функциями дополняют индексом "УЗ".
Дверные блоки групп А, Б, В могут включать в себя отдельные варианты защитных функций дверей группы Г.
4.2 Для дверных блоков принимают следующие обозначения:
- по назначению:
ДСН - дверной стальной блок наружный (группа А),
ДСВх - дверной стальной блок входной с лестничной клетки (группа Б),
ДСВ - дверной стальной блок внутренний (группа В),
ДСВв - дверной стальной блок внутренний для вспомогательных помещений (группа В1),
ДСУЗ - дверной стальной блок с усиленными защитными функциями (группа Г);
- по конструктивному исполнению:
Дп - двупольный,
Оп - однопольный,
Прг - с порогом,
Брг - без порога,
Л - левого открывания,
Пр - правого открывания,
Вн - открывание внутрь помещения,
Н - открывание наружу,
П2лс - с полотном из двух стальных листов,
Пкомб - комбинированный,
Псп - с дверным полотном типа "сэндвич",
О - обычное исполнение,
УЗ - с усиленными защитными функциями (взломоустойчивые).
4.3 Структура условного обозначения дверных блоков приведена в
4.4. В условное обозначение дверного блока, кроме указанных в
4.2, допускается включать размеры и дополнительные сведения о классах по эксплуатационным характеристикам и механической прочности (см.
таблицы 1 и
2).
Примечание - Размеры дверного блока - внешние габаритные размеры по периметру коробки (рамы) без учета наличника и доборных элементов.
4.4 Структура условного обозначения дверного блока:
Назначение изделия | Группа изделия | Вариант конструктивного исполнения | Класс по эксплуатационным характеристикам | Класс прочности | Обозначение настоящего стандарта | Дополнительные сведения |
Пример условного обозначения дверного стального блока наружного, группы А, однопольного, правого открывания, с порогом, с открыванием наружу, с полотном из двух стальных листов, класса прочности М3, обычного исполнения:
ДСН, А, Оп, Пр, Прг, Н, П2лс, М3, О - ГОСТ 31173-2016
Примечание - При экспортно-импортных поставках, а также в соответствии с заказом допускается применение другой структуры условного обозначения. Приведенная структура условного обозначения принята в соответствии с
ГОСТ 23166,
ГОСТ 24866,
ГОСТ 30970 и др.
4.5 При оформлении заказа на изготовление (поставку) и паспорта рекомендуется указывать: вариант конструктивного исполнения, включая описание заполнения дверного полотна; схему открывания полотна и конструкции дверного блока; тип и марки дверных приборов и класс замков; вид отделки, ширину коробки и другие требования по согласованию изготовителя с заказчиком.
5. Технические требования
5.1. Требования к конструкции
5.1.1 Изделия должны соответствовать требованиям настоящего стандарта, образцу-эталону и изготовляться по конструкторской и технологической документации предприятия-изготовителя.
Конструкторская документация должна соответствовать требованиям
ГОСТ 2.001, технологическая документация - требованиям
ГОСТ 3.1001.
5.1.2 Конструкцию полотен дверных блоков принимают по
4.1.2.
Примечание - Дверные полотна типа "сэндвич" рекомендуется применять в дверных блоках без предъявления требований к взломоустойчивости.
Примеры конструкций дверных блоков и варианты заполнения дверных полотен приведены в
приложении Б.
5.1.3 Угловые соединения профилей рекомендуется сваривать. Допускается применение других видов равнопрочных соединений, которые определяют испытаниями по определению класса прочности изделия.
Коробки (рамы) рекомендуется изготовлять из гнутого профиля толщиной не менее 1,2 мм или из прямоугольного профиля сечением не менее 40 x 50 мм.
Толщину наружного листа дверного полотна устанавливают в зависимости от функционального назначения дверного блока, класса прочности по
таблице 2 и подтверждают результатами испытаний. Рекомендуемая толщина листа для дверных блоков групп А, Б - не менее 1,5 мм, группы В - не менее 0,5 мм, для группы Г - не менее 1,8 мм. Толщина листа дверного полотна типа "сэндвич" должна быть не менее 0,45 мм.
5.1.4 В конструкциях дверных полотен рекомендуется применять не менее двух вертикальных и горизонтальных усиливающих профилей (средников). Усиливающие профили допускается располагать под углом между вертикальными (наклонные профили). Горизонтальные усиливающие профили рекомендуется располагать в петлевой зоне или в зоне противосъемных устройств. В конструкциях полотен типа "сэндвич" рекомендуется использовать Г-образные усилители в петлевой и замковой зонах.
5.1.5 В конструкциях дверных полотен допускается применять вместо внутреннего цельного стального листа стыкованные листовые заготовки, сваренные по усиливающим профилям. Места точек сварки устанавливают в конструкторской документации.
В качестве внутреннего листа допускается применять твердые древесно-волокнистые плиты по
ГОСТ 4598 или другие твердые листовые материалы, обеспечивающие достаточную прочность.
5.1.6 Для ремонта замков и защелок в месте их установки во внутреннем листе рекомендуется предусматривать лючок, который крепят на механических связях.
5.1.7 Запирающие устройства (замки, защелки, дополнительные засовы) рекомендуется крепить на винтах через специальные подкладки и прижимные скобы с нарезанной резьбой. Крепление запирающих устройств должно быть прочным, надежным, исключающим их самопроизвольное смещение во время эксплуатации и обеспечивающим требования к ремонтопригодности.
5.1.8 В конструкциях наружных входных в здания и внутренних входных в квартиру дверных блоков для повышения звукоизоляции и сопротивления теплопередаче рекомендуется устанавливать не менее двух контуров уплотняющих прокладок, обеспечивающих перекрытие зазоров между дверной коробкой и полотном.
Уплотняющие прокладки должны соответствовать
ГОСТ 30778 и устанавливаться по всему периметру притвора. Уплотняющие прокладки для наружных дверных блоков должны быть стойкими к климатическим и атмосферным воздействиям и испытаны на долговечность в испытательных центрах, аккредитованных на право проведения таких испытаний.
5.1.9 Общая площадь дверного блока не должна превышать 9 м2, при этом высота открывающихся дверных полотен рекомендуется не более 2200 мм, ширина - не более 1200 мм для одностворчатой двери и не более 1800 мм для двухстворчатой двери.
Допускается применение неоткрывающихся горизонтальных и вертикальных полотен-вставок.
Рекомендуемая масса дверных полотен - не более 250 кг (расчетный показатель).
При изготовлении дверных блоков с полотнами площадью, массой и размерами, превышающими указанные значения, их качество должно быть подтверждено результатами лабораторных испытаний или дополнительными прочностными расчетами согласно действующим на территории государства - участника соглашения, принявшего настоящий стандарт, строительным нормам и правилам.
Примечание - Наибольшие размеры полотен дверных блоков конкретных типов в зависимости от массы полотна, моментов сопротивления сечений профилей каркаса полотна, жесткости сечения средней части полотна (включая наружную и внутреннюю обшивки, заполнение, усиливающие профили), расположения и типов петель и запирающих устройств должны быть приведены в конструкторской документации предприятия-изготовителя.
В конструкциях дверных коробок допускается применение увеличенных по ширине вертикальных стоек (боковин) и верхних перемычек (фрамуг). Боковины и фрамуги могут изготовляться как единые с дверной коробкой, так и в виде отдельных сборочных единиц, соединяемых с дверной коробкой во время монтажа дверного блока в стеновой проем.
5.1.10 Расположение и размеры отверстий для установки замков и других запирающих устройств устанавливают в конструкторской документации с учетом требований
ГОСТ 5089.
5.1.11 Места отверстий, предназначенных для входа засова, рекомендуется защищать специальными металлическими или из другого равнопрочного материала коробами. Короба соединяют с профилем коробки (рамы) так, чтобы они не мешали нормальному движению ригелей засова. Допускается выполнять отверстия для входа засова в дверной коробке, при этом размеры отверстия должны быть на 2 - 3 мм больше соответствующих размеров сечения засова.
Примечание - Вместо отдельных отверстий для входа засова допускается использовать единый ригельный паз, при этом конструкция паза не должна снижать прочности петлевой стойки дверной коробки. В пазу могут быть устройства, обеспечивающие возможность регулирования расположения дверного полотна относительно дверной коробки.
5.1.12 В конструкции дверных блоков на петлевой стороне рекомендуется предусматривать противосъемные пассивные ригели (штыри). Штыри должны быть прочно установлены в каркас дверного полотна или в коробку с помощью сварки, запрессовки или расклепки. Допускается использовать другие виды крепления противосъемных штырей, не снижающие их прочностных свойств. Размер, количество и расположение противосъемных штырей устанавливают в рабочей документации, при этом для обеспечения наибольшей защиты противосъемные штыри рекомендуется устанавливать в петлевой зоне. Допускается применение вместо штырей единого противовзломного лабиринта, при котором выступ торца дверного полотна входит в паз петлевой стойки дверной коробки по всей вертикали дверного блока.
5.1.13 Монтаж дверного блока в стеновой проем рекомендуется проводить с применением специальных элементов крепления (например, монтажных "ушек"), их количество и расположение указывают в конструкторской документации. Применяемые элементы крепления должны обеспечивать необходимую прочность крепления и безопасность при эксплуатации двери.
5.1.14 В качестве внутреннего заполнения дверных полотен рекомендуется применять экологически безопасные тепло- и звукоизоляционные материалы: минераловатные (в том числе базальтовые) плиты или другие материалы по нормативным документам на их изготовление. Заполнение должно укладываться плотно, без пустот, с сохранением плотности в течение срока эксплуатации дверного блока.
Примечание - Плотность минераловатных и базальтовых плит должна быть не менее 110 кг/м2.
5.1.15 Полимерные и синтетические материалы, применяемые для заполнения и отделки дверных полотен, должны иметь заключения о санитарной и пожарной безопасности, предусмотренные действующим законодательством и оформленные в установленном порядке. Краски, применяемые для отделки, не должны содержать в составе свинец.
5.1.16 Дверные блоки должны быть безопасными в эксплуатации. Условия безопасности применения дверных блоков различных конструкций устанавливают в проектной документации.
Изделия должны быть рассчитаны на эксплуатационные нагрузки в соответствии с действующими на территории государства - участника соглашения, принявшего настоящий стандарт, строительными нормами и правилами. При проектировании и производстве изделий следует применять расчетные программы или расчетные методы определения прочностных характеристик изделий.
5.1.17 Для обеспечения нормального функционирования наружных входных в здания дверных блоков групп А и Г для исключения воздействия температурных колебаний рекомендуется предусматривать тамбур перед наружной входной дверью.
5.1.18 Для обеспечения безбарьерного прохода людей с ограниченными возможностями дверные блоки группы А следует оснащать специальными устройствами закрывания дверей (доводчиками) с системой задержки закрывания или автоматического действия с ручным пультом управления, отвечающими требованиям нормативных документов <1>, действующих на территории государства - участника соглашения, принявшего настоящий стандарт.
--------------------------------
<1> В Российской Федерации - по
ГОСТ Р 56177-2014 "Устройства закрывания дверей (доводчики). Технические условия".
5.1.19 При наличии в конструкции дверного блока порога его рекомендуемая высота должна быть не более 20 мм.
5.1.20 Дверные блоки, установленные на путях эвакуации, могут быть одно- и двупольными, распашными с обязательным открыванием по ходу эвакуации.
Для беспрепятственного покидания зданий и помещений дверные блоки должны быть укомплектованы устройствами экстренного открывания дверей "Антипаника" по
ГОСТ 31471. Не рекомендуется комплектовать порогами дверные блоки для путей эвакуации.
5.2. Размеры и предельные отклонения
5.2.1 Номинальные габаритные размеры дверных блоков устанавливают в проектной и технической документации (заказе, договоре на поставку) на изготовление изделий. Номинальные размеры деталей узлов изделий, сечений профилей и зазоров, размеры расположения запирающих устройств, петель и отверстий устанавливают в конструкторской документации на их изготовление.
5.2.2 Предельные отклонения номинальных габаритных размеров дверных блоков не должны превышать +/- 3,0 мм.
5.2.3 Предельные отклонения номинальных размеров узлов дверных блоков, сечений профилей и зазоров, размеры расположения запирающих устройств, петель и отверстий не должны превышать значений, приведенных в таблице 3.
Разность длин диагоналей прямоугольных дверных полотен площадью 1,5 м2 и менее не должна превышать 2,0 мм, площадью свыше 1,5 м2 - 3,0 мм.
Таблица 3
Предельные отклонения номинальных размеров
В миллиметрах
Размеры полотна | Предельные отклонения размеров, указанных в чертежах изготовителя |
Внутренний размер коробок | Наружный размер полотен | Размер зазора под наплавом | Размеры расположения дверных приборов, петель и другие размеры |
До 1000 включ. | +/- 2,0 | +1,0 | +1,5 | +/- 2,0 |
-2,0 |
Св. 1000 до 2000 включ. | +/- 2,5 | +/- 2,0 | +1,5 |
-1,0 |
| | ИС МЕГАНОРМ: примечание. Текст дан в соответствии с официальным текстом документа. | |
|
Св. 200 | +/- 3,0 | +2,0 | +2,0 | |
-3,0 | -1,0 |
Примечание - Значения предельных отклонений размеров зазоров под наплавом приведены для закрытых полотен с установленными уплотняющими прокладками. |
5.2.4 Перепад лицевых поверхностей (провес) в сварных угловых соединениях не должен превышать 2,0 мм.
5.2.5 Провисание дверных полотен в собранном дверном блоке с порогом не должно превышать 2,0 мм на 1 м ширины.
5.2.6 Отклонение от прямолинейности кромок дверных полотен и коробок не должно превышать 1,0 мм на 1,0 м длины.
Примечание - Плоскостность дверных полотен контролируют путем измерения расстояния от точек поверхности полотен до прилегающей горизонтальной поверхности.
5.2.7 Номинальные диаметры отверстий под болтовые соединения и предельные отклонения от них, установленные в зависимости от способа образования и типа болтового соединения, принимают по
ГОСТ 23118.
5.3. Эксплуатационные характеристики
5.3.1 Эксплуатационные характеристики дверных блоков приведены в таблице 4.
Таблица 4
Эксплуатационные характеристики дверных блоков
Наименование характеристики | Значение | Группа дверного блока |
Приведенное сопротивление теплопередаче полотен дверных блоков, (м2·°C)/Вт, не менее* | 0,40 | А, Б, Г |
Звукоизоляция, дБ, не менее* | 25 | А, Б, Г |
Воздухопроницаемость при  , м 3/(ч·м 2), не более* | 27 | А, Б, Г |
Безотказность, циклы открывания и закрывания, не менее: | | |
- для внутренних дверных блоков вспомогательных помещений, эвакуационных аварийных выходов | 50 000 | В |
- для внутренних дверных блоков, в том числе для офисов, кабинетов, номеров отелей и т.д. | 100 000 | В1 |
- для дверных блоков входных в квартиры с лестничных клеток | 200 000 | Б |
- для наружных входных дверных блоков и усиленных входных в здания | 500 000 | А, Г |
Примечания 1 Необходимость применения эксплуатационных характеристик, отмеченных знаком "*", устанавливают в проектной и технической документации, исходя из назначения дверного блока. 2 Безотказность установлена с учетом интенсивности прохода при эксплуатации: - двери групп А и Г - высокий уровень интенсивности прохода; - двери группы Б (входные в квартиры) - средний уровень интенсивности прохода; - двери группы В (двери внутренних помещений общественных и производственных зданий) - средний уровень интенсивности; - двери группы В1 (внутренние двери вспомогательных помещений, эвакуационных и аварийных выходов) - низкий уровень интенсивности прохода. |
5.3.2 Эксплуатационные характеристики дверных блоков конкретного назначения рекомендуется устанавливать в проектной документации на строительство (реконструкцию) здания и подтверждать результатами испытаний в испытательных центрах, аккредитованных на право их проведения.
5.3.3 Дверные блоки в зависимости от класса прочности должны выдерживать действие статических нагрузок согласно требованиям
таблицы 2, характеризующих деформирующую способность дверного блока, в том числе стойкость к выдавливанию, а также прочность крепления полотна к коробке.
5.3.4 Дверные блоки должны выдерживать действие эксплуатационных динамических нагрузок при открывании и закрывании (имитация удара об откос, удара о преграду, удара о посторонний предмет в притворе). Схемы приложения динамических нагрузок приведены на
рисунках В.1 -
В.3 приложения В.
Динамические нагрузки, создаваемые при испытании двери свободно падающим грузом (твердым телом), приведены в таблице 5.
Таблица 5
Динамические нагрузки, создаваемые свободно падающим грузом
(твердым телом)
Группа дверного блока | Высота падения груза h, м | Масса груза m, кг |
А, Б, Г | 0,8 | 20 |
В, В1 | 0,4 | 10 |
5.3.5 Дверные блоки в зависимости от класса прочности должны выдерживать удар мягким неупругим телом согласно требованиям таблицы 6 при определении прочности (надежности) крепления полотна дверного блока к коробке. Испытанию подвергают дверные полотна с двух сторон.
Таблица 6
Ударные (динамические) нагрузки, создаваемые грузом
(мягким неупругим телом)
Группа дверного блока | Класс прочности | Энергия удара, Дж, не более | Масса груза m, кг |
А - Г | М4, М5 | 450 | 30 |
А, Б | М3 | 350 | 30 |
Б, В | М2 | 250 | 30 |
В | М1 | 150 | 30 |
Схема расположения точек нанесения ударов на однопольном дверном блоке при проведении испытания на сопротивление удару мягким неупругим телом (грузом) в направлении открывания дверного полотна приведена на
рисунке В.4 приложения В.
5.3.6 Дверные блоки при определении прочности конструкции, материала полотна и качества отделки должны выдерживать ударные (маятниковые) нагрузки, создаваемые грузом (твердым телом). Значения ударных (маятниковых) нагрузок приведены в таблице 7.
Таблица 7
Ударные (маятниковые) нагрузки, создаваемые грузом
(твердым телом)
Группа дверного блока | Масса груза m, кг | Энергия удара, Дж |
А | 2 | 8 |
Б | 2 | 5 |
В | 2 | 3 |
Примечание - Энергию удара рассчитывают по формуле  , где m - масса груза; q - ускорение свободного падения; h - высота падения груза;  - угол отклонения груза. |
5.3.7 Дверные блоки группы Г обычной и усиленной категорий (входные в здания, входные в квартиры), изготовленные во взломоустойчивом исполнении, должны соответствовать требованиям нормативных документов <1>, действующих на территории государства - участника соглашения, принявшего настоящий стандарт.
--------------------------------
<1> В Российской Федерации дверные блоки, изготовленные во взломоустойчивом исполнении, должны соответствовать требованиям
ГОСТ Р 51242-98 "Конструкции защитные механические и электромеханические для дверных и оконных проемов. Технические требования и методы испытаний на устойчивость к разрушающим воздействиям".
5.3.8 Классы устойчивости к взлому дверных блоков группы Г и время сопротивления взлому приведены в таблице 8.
Таблица 8
Классы устойчивости к взлому дверных блоков группы Г
Класс устойчивости к взлому | Время сопротивления взлому, мин, не менее |
I | 5 |
II | 10 |
III | 15 |
Примечания 1 Набор инструмента, применяемого при испытании, принимают в соответствии с нормативными документами <2>, действующими на территории государства - участника соглашения, принявшего настоящий стандарт. 2 Время сопротивления взлому включает в себя интервалы времени не менее 5 с для каждой замены инструмента. |
| | ИС МЕГАНОРМ: примечание. В официальном тексте документа, видимо, допущена опечатка: имеется в виду ГОСТ Р 50862-2012, а не ГОСТ Р 50862-2011. | |
--------------------------------
<2> В Российской Федерации набор инструмента, применяемого при испытании по определению класса устойчивости к взлому дверных блоков группы Г, должен соответствовать требованиям
таблицы 1 ГОСТ Р 51242-98 "Конструкции защитные механические и электромеханические для дверных и оконных проемов. Технические требования и методы испытаний на устойчивость к разрушающим воздействиям",
приложения Б ГОСТ Р 50862-2011 "Сейфы, сейфовые комнаты и хранилища ценностей. Требования и методы испытаний на устойчивость к взлому" и
приложения В ГОСТ Р 52582-2006 "Замки для защитных конструкций. Технические требования и методы испытаний на устойчивость к криминальному отмыканию и взлому".
5.3.9 Усилие, прикладываемое к дверному полотну при закрывании до требуемого сжатия уплотняющих прокладок, в зависимости от массы полотна не должно превышать 120 Н, при этом в закрытом положении защелка и засов замка должны работать без заеданий. Усилие, необходимое для открывания дверного полотна, не должно превышать 75 Н (эргономические требования), для дверных блоков группы В - 50 Н.
Примечание - При оценке усилий, прикладываемых к дверному полотну, следует иметь в виду, что при испытаниях дверных блоков группы А не учитывались разность давлений между помещениями, помещениями и улицей или внезапная ветровая нагрузка, а также наличие встроенных защитных устройств и устройств закрывания дверей. Следует учитывать также, что для дверных блоков, предназначенных для прохода людей с ограниченной возможностью, усилие открывания не должно быть более 5 Н.
5.3.10 В случае применения для облицовки дверных полотен искусственной или натуральной кожи, древесины, древесно-плитных материалов, в том числе с натуральным или синтетическим шпоном, облицовочный материал должен выдерживать без разрушения удар металлическим шаром массой 1 кг с высоты падения 1 м.
5.3.11 Внешний вид изделий: цвет, допустимые дефекты поверхности облицовочных материалов и окрашенных элементов (риски, царапины и др.) должен соответствовать образцам-эталонам, утвержденным руководителем предприятия-изготовителя.
Различия в цвете, глянце и дефекты поверхности, видимые невооруженным глазом с расстояния 0,6 - 0,8 м при естественном освещении не менее 300 лк, не допускаются.
5.3.12 Сварные соединения должны быть прочными и удовлетворять следующим требованиям:
- металл сварного соединения и граничной зоны не должен иметь трещин. Кратеры швов в местах остановки (окончания) сварки должны быть переварены (заварены);
- сварные соединения должны иметь гладкую или равномерно чешуйчатую поверхность без резких переходов к основному металлу;
- сварные соединения должны быть плотными по всей длине и не иметь прожогов, сужений, наплавов, непроваров, шлаковых включений и пр.
5.3.13 Временное сопротивление разрыву металла сварного соединения должно быть не ниже требований, предъявляемых к основному металлу.
Характеристики категорий и уровня качества сварных соединений - по
ГОСТ 23118.
5.4. Требования к материалам, комплектующим деталям и уплотняющим прокладкам
5.4.1 Материалы и комплектующие детали, применяемые для изготовления дверных блоков, должны соответствовать требованиям стандартов, технических условий, технических свидетельств, утвержденных в установленном порядке.
5.4.2 Материалы и комплектующие детали должны быть стойкими к климатическим воздействиям и обладать коррозионной стойкостью в соответствии с нормативными документами на эти материалы и комплектующие детали.
Для дверных блоков, используемых в качестве входных в здание и имеющих контакт с внешней средой, рекомендуется применять оцинкованную сталь или сталь с другим видом защиты, обеспечивающим стойкость к коррозии не менее 240 ч испытания в соляном тумане.
Вид (тип защиты) необходимо указывать в паспорте на изделия.
Требования к коррозионной стойкости замков и скобяных изделий - в соответствии с
ГОСТ 538.
Для внутренних дверных блоков рекомендуется применять сталь, защищенную от коррозии, обеспечивающую стойкость к коррозии не менее 150 ч испытаний в соляном тумане.
5.4.3 Поверхности стальных элементов коробок и полотен не должны иметь трещин, механических повреждений, раковин, искривлений, ржавчины. На лицевых поверхностях стальных элементов допускаются незначительные местные углубления, риски, волнистость глубиной до 0,5 мм, не снижающие функциональных свойств и качества изделий.
5.4.4 Стальные детали конструкций должны изготовляться из марок стали, обеспечивающих прочностные и эксплуатационные характеристики конструктивных элементов, сварных, болтовых и других соединений в зависимости от характера и условий их работы.
Стальные детали рекомендуется изготовлять из углеродистой стали марки не ниже Ст3кп по
ГОСТ 380, сортового проката по
ГОСТ 1050 или высоколегированной стали по
ГОСТ 5632.
5.4.5 Уплотняющие прокладки следует изготовлять из атмосферо- и морозостойких эластомерных материалов по
ГОСТ 30778.
5.4.6 Деревянные клееные филенки облицовки должны соответствовать требованиям
ГОСТ 30972, профильные погонажные деревянные детали -
ГОСТ 8242.
5.5. Требования к запирающим устройствам и петлям
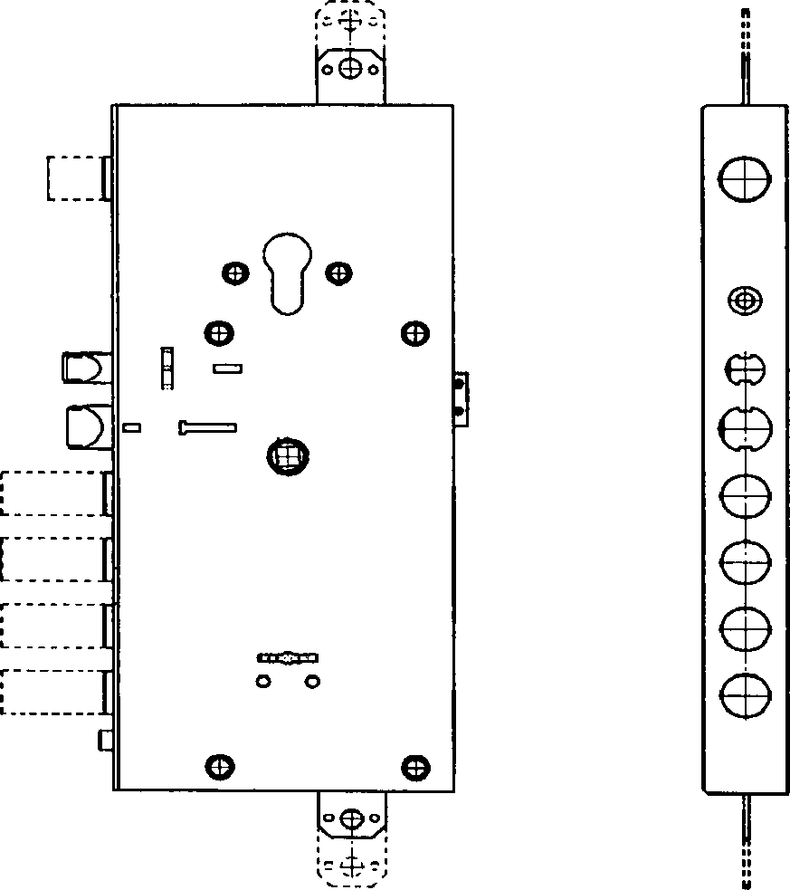
5.5.1 При изготовлении дверных блоков применяют запирающие устройства, петли и вспомогательные детали, предназначенные для применения в стальных дверных блоках. Примеры конструкций замков и петель приведены на
рисунках Б.5 -
Б.7 приложения Б.
Тип, число, расположение и способ крепления запирающих устройств и петель устанавливают в рабочей документации, исходя из размера и массы открывающихся элементов изделия и условий эксплуатации дверных блоков. Рекомендуется навешивать полотна дверных блоков на две петли. Полотна дверных блоков массой более 200 кг, а также применяемых в общественных зданиях с большой проходимостью, допускается навешивать на три петли, если это рекомендовано производителем петель. При этом рекомендуемое расположение средней петли на 150 - 200 мм ниже верхней.
5.5.2 Для навешивания дверных полотен на коробку (раму) рекомендуется применять накладные подшипниковые или другие петли с возможностью регулировки в разных плоскостях в соответствии с
ГОСТ 5088.
Крепление петель к полотнам и коробкам рекомендуется проводить на механических связях. Допускается использовать другие виды крепления петель, позволяющие обеспечить необходимую прочность конструкции.
5.5.3 В дверные блоки групп А и Б должны быть установлены замки по
ГОСТ 5089 не ниже класса III, в дверные блоки групп В, В1 - замки не ниже класса II, в дверные блоки группы Г - замки не ниже класса IV.
В дверном блоке рекомендуется одновременно устанавливать замки с сувальдным и цилиндровым механизмами, а также замки с перекодирующимися механизмами секретов.
Для улучшения защитных свойств дверных блоков рекомендуется применять многоригельные замки с запиранием по периметру дверного блока или замки с тягами с дополнительным запиранием в верхний и нижний горизонтальные профили коробки.
Для дверных блоков групп А, Б, Г, установленных в помещениях, оборудованных охранной сигнализацией, рекомендуется устанавливать замки классов III - IV по
ГОСТ 5089 с охранной системой раннего реагирования.
Примечание - При выборе запирающих устройств (замков с различными типами механизмов секретности, многоригельной системой запирания и т.д.) необходимо иметь в виду, что первые попытки вскрытия дверной конструкции начинаются с попытки вскрытия замка (замков) разрушающими и/или неразрушающими способами вскрытия. Поэтому выбор замка (замков) следует осуществлять из условия его (их) соответствия
ГОСТ 5089 с присвоением класса по следующим параметрам: механическая прочность, стойкость к вскрытию (взлому).
5.5.4 Запирающие устройства должны обеспечивать надежное запирание открывающихся элементов дверных блоков. Открывание и закрывание должны происходить легко, плавно, без заеданий.
5.5.5 Конструкции запирающих устройств и петель должны обеспечивать плотный и равномерный обжим уплотняющих прокладок по всему контуру уплотнения в притворах.
5.5.6 Дверные приборы и крепежные детали должны соответствовать требованиям
ГОСТ 538 и иметь защитно-декоративное (или защитное) покрытие по
ГОСТ 9.303.
5.5.7 В случае если дверные блоки устанавливают на путях эвакуации в общественных зданиях, в том числе в детских садах, школах, больницах, следует применять устройства экстренного открывания дверей "Антипаника", позволяющие обеспечить быструю эвакуацию. Требования к устройствам "Антипаника" - по
ГОСТ 31471.
5.6. Требования к отделке
5.6.1 При изготовлении дверных блоков применяют различные виды отделки:
- окраска;
- облицовка различными материалами;
- оклейка декоративными (пленочными) материалами;
- с применением стекла и стеклопакетов.
Вид отделки указывают в заказе.
5.6.2 В качестве отделочных материалов применяют искусственную и натуральную кожу, декоративные пленки, плиты МДФ (с натуральным или синтетическим шпоном, гладкие или фрезерованные), древесину, зеркала, пластик, ДВП, лакокрасочные и другие материалы согласно требованиям нормативных документов на эти материалы. При выборе отделочных материалов следует учитывать условия эксплуатации изделий.
5.6.3 Требования к отделочному покрытию (облицовке) допускается устанавливать по согласованию изготовителя с потребителем в договоре (заказе) на изготовление (поставку) изделий. В этом случае оценку качества отделки допускается проводить по образцам-эталонам, согласованным с заказчиком.
5.6.4 Металлические поверхности комплектующих деталей перед нанесением лакокрасочного или полимерного покрытия должны соответствовать требованиям
ГОСТ 9.402. Требования к лакокрасочным покрытиям - по
ГОСТ 9.401, класс покрытий не ниже IV, обозначение покрытий - по
ГОСТ 9.032.
5.6.5 Качество поверхностей с законченным лакокрасочным покрытием должно соответствовать требованиям
ГОСТ 9.032. При этом рекомендуется наносить первый слой грунтовочной краской, последующие слои - защитно-декоративными лакокрасочными материалами.
5.6.6 Лицевые поверхности дверных блоков не должны иметь трещин, заусенцев, механических повреждений. Дефекты поверхности, различимые невооруженным глазом с расстояния 1,5 м при естественном освещении не менее 300 лк, не допускаются.
Требования к лицевым поверхностям устанавливают в технической документации изготовителя и/или в договорах на поставку с учетом
ГОСТ 9.301 и
ГОСТ 9.032.
Нелицевые поверхности изделий могут иметь углубления, риски, волнистость и другие дефекты, не снижающие функциональных свойств и качества изделий.
Кромки отверстий не должны иметь заусенцев и неровностей.
5.6.7 Цвет (тон) и степень блеска (глянец, матовость) отделочного покрытия должны соответствовать образцам-эталонам, утвержденным руководителем предприятия-изготовителя и согласованным с заказчиком.
5.6.8 Лакокрасочные покрытия должны иметь прочность сцепления (адгезию) с отделываемой поверхностью не ниже 2-го балла, определенную по методу решетчатого надреза по
ГОСТ 31149.
5.6.9 Толщину лакокрасочных покрытий, а также порядок контроля этого показателя рекомендуется устанавливать в технологической документации на изготовление изделий.
5.6.10 Защитные и защитно-декоративные покрытия должны быть стойкими к температурно-влажностным эксплуатационным воздействиям.
5.6.11 Облицовку дверных полотен изготовляют из плит МДФ по нормативным документам или из различных пород древесины. Плиты МДФ могут быть отделаны строганым шпоном по
ГОСТ 2977, лущеным шпоном по
ГОСТ 99 или синтетическим шпоном по нормативным документам. Допускается использование фрезерованных или гладких плит МДФ.
5.6.12 Лицевые поверхности деталей из древесины, применяемых для отделки дверных полотен, не должны иметь дефектов обработки и пороков древесины, за исключением завитков, свилеватости, глазков, наклона волокон до 5% по
ГОСТ 2140.
Шероховатость лицевых поверхностей деталей из древесины
Rm не должна быть более 60 мкм по
ГОСТ 7016, влажность древесины должна быть в пределах от 8 до 12%.
5.6.13 Конструкция крепления облицовочных деталей из древесины и плитных материалов к стальным элементам дверных блоков должна обеспечивать возможность компенсации их температурно-влажностных деформаций.
Форма и размеры сечений облицовочных профилей, прилегающих к стальным поверхностям наружных изделий, должны обеспечивать минимальную площадь соприкосновения с этими поверхностями, а также возможность проветривания полости между ними, в противном случае соприкасающиеся поверхности должны быть защищены лакокрасочными или другими защитными материалами.
5.6.14 Стеклопакеты, применяемые в конструкциях дверных блоков, должны соответствовать
ГОСТ 24866. Рекомендуется применять стеклопакеты с упрочненными видами стекол: закаленное стекло - по
ГОСТ 30698, многослойное стекло - по
ГОСТ 30826.
Для остекления дверных блоков группы Г в качестве наружного стекла рекомендуется применять: многослойное стекло - по
ГОСТ 30826, закаленное стекло - по
ГОСТ 30698.
5.6.15 Конструктивные решения узлов крепления стеклопакетов (стекол), а также панелей заполнения непрозрачной части дверного блока должны препятствовать возможности их демонтажа с наружной стороны. Крепление раскладов не должно вызывать пережатия и точечных напряжений в стекле.
5.6.16 Стеклопакеты (стекла) монтируют с использованием уплотняющих прокладок из эластомерных материалов по
ГОСТ 30778.
5.7. Комплектность и маркировка
5.7.1 В зависимости от назначения дверных блоков в проектной документации, а также при оформлении заказов следует предусматривать комплектацию изделий задвижками, устройствами закрывания дверей (доводчиками), ограничителями угла открывания (упорами), глазками, цепочками и др.
5.7.2 Комплектация дверных блоков при их поставке потребителю должна соответствовать требованиям, установленным в договоре (заказе).
Изделия следует поставлять в собранном виде с установленными запирающими устройствами. Комплект ключей должен передаваться заказчику в запечатанном виде под роспись заказчика (покупателя).
5.7.3 В комплект поставки должны входить документ о качестве (паспорт) и инструкция по эксплуатации дверных блоков, включающая в себя рекомендации по монтажу.
5.7.4 Каждый дверной блок маркируют этикеткой с указанием наименования предприятия-изготовителя, типа, условного обозначения изделия с указанием класса прочности, даты его изготовления и/или номера заказа, знака (штампа), подтверждающего приемку изделия службой технического контроля. Маркировка изделий должна отражать фактические требования к типу дверей, указанных в заказе, а также возможность проведения идентификации в целях установления подлинности изготовления, указанные производителем.
5.7.5 Входящие в состав изделия дверные приборы должны быть маркированы в соответствии с нормативными документами на эти приборы.
5.8. Правила установки (монтажа) замков
5.8.1 Перед установкой замка в дверь необходимо проверить его функционирование - закрывание и открывание с двух сторон замка, работу защелки от ручек, ключа, наличие и работу перекодирующих устройств.
5.8.2 Установка замков при сборке дверного блока в условиях дверного производства
5.8.2.1 Конструкцией дверного блока должна быть предусмотрена специальная ниша (ниши) для установки конкретного замка (замков).
5.8.2.2 Замочные ниши должны быть свободны от пустот, посторонних предметов (заполнителей, утеплителей, стружки и др.), что может нарушить нормальную работу замка.
5.8.2.3 Все необходимые отверстия (крепежные, технологические, места доработки под установку замка) выполняют по разметке, сделанной по шаблону, входящему в комплект замка. Использование замка в качестве кондуктора для разметки при врезке замка не допускается в целях исключения засорения механизма замка стружкой.
5.8.2.4 При монтаже замка с вертикальными тягами необходимо обеспечить свободное их перемещение, исключая контакты с внутренними деталями конструкции двери. Допускается использование промежуточных направляющих для обеспечения продольной жесткости тяг.
5.8.2.5 При монтаже замка с лицевой планкой следует применять легкоразъемное соединение тяг замка с внешними вертикальными тягами, которое осуществляется при введении замка в замочную нишу с торца двери, или предусматривать лючок на внутренней стороне дверного полотна.
5.8.2.6 Наличие лючка при монтаже замка без лицевой планки (на бонках) изнутри для обслуживания замка, вертикальных тяг в местах соединения с тягами замка или его замены является обязательным. Доступ к замку может быть обеспечен также наличием съемной декоративно-облицовочной панели, закрывающей все внутреннее пространство дверного полотна.
Примечание - При монтаже замка по 5.8.2.6 следует иметь в виду, что первый ход засова будет представлять из себя проход через стенку рамы дверного полотна. В этом случае следует заказывать замки с выступающими из корпуса засовами. При монтаже необходимо следить за тем, чтобы засов, проходя через раму, не касался ее и выходил свободно.
5.8.2.7 Перед введением замка в нишу для окончательной установки следует очистить нишу от посторонних предметов и мусора.
5.8.2.8 При монтаже замка следует избегать значительных усилий и ударных воздействий на цилиндровый механизм.
5.8.2.9 Крепление замков следует проводить на винтах, крепление замков сваркой не рекомендуется.
Примечание - Врезные замки рекомендуется крепить на винтах с потайной головкой в резьбовую заклепку в торце дверного полотна, что позволит неоднократно проводить замену и ремонт замков без ущерба конструкций.
5.8.2.10 В целях безопасности на дверных блоках групп А, Б, Г устанавливают не менее двух замков или один замок с двумя механизмами секретов, один из которых обязательно должен быть с защелкой, другой должен фиксировать дверное полотно в закрытом положении, после чего запираются замки. Замки должны быть отрегулированы так, чтобы засовы выходили свободно, без касания стенок входного отверстия дверной коробки (рекомендации по зазорам см. в
пункте 6.1.8 ГОСТ 5089). Входное отверстие в дверной коробке для входа засова должно быть очищено в соответствии с
5.8.2.7.
Примечание - Для дверных блоков группы А, установленных в общественных зданиях, рекомендуется применять электромеханические (электронные) замочные приборы.
5.8.2.11 При монтаже цилиндрового замка и установке цилиндрового механизма длина цилиндрового механизма и асимметрия относительно середины поводка должны выбираться так, чтобы цилиндровый механизм с внешней стороны выступал за броненакладку не более чем на 3 - 5 мм. При установке броненакладки длину цилиндрового механизма выбирают с ее учетом.
5.8.2.12 После сборки дверного блока следует убедиться, что замки функционируют в штатном режиме.
5.8.2.13 Готовые дверные блоки следует транспортировать с состоянием замков "открыто" для предотвращения возможной деформации ригелей в процессе транспортирования.
5.8.2.14 Монтаж дверного блока в проем должны проводить производители дверных блоков или организация по установке дверных блоков в соответствии с
ГОСТ 30971 или нормативными документами, устанавливающими требования к монтажу дверных блоков в проемы. Общие требования к монтажу дверных блоков приведены в
приложении Г.
Примечание - При формировании конструкции монтажных узлов примыкания необходимо учитывать область применения дверных блоков, особенности теплового расширения дверных коробок и полотен и требования к взломоустойчивости.
5.8.2.15 Перед монтажом дверной блок следует освободить от упаковки, проверить, чтобы возможные остатки упаковки (особенно полиэтилена) не затянуло в зазоры между засовом и корпусом замка.
5.8.2.16 После установки дверного блока в проем перед окончательной заделкой следует проверить работоспособность дверного полотна и замков.
Примечание - При использовании для заделки монтажной пены необходимо исключить возможность ее попадания в дверную коробку, в зону движения засова для исключения нарушения нормального функционирования замка.
5.8.3 Установка замка в функционирующую входную дверь
5.8.3.1 В случае необходимости повышения охранных свойств функционирующей двери на новое место дверного полотна устанавливают дополнительный замок.
5.8.3.2 Дополнительный и уже установленный замки должны быть с разными системами секрета. Если на полотне стоит замок с защелкой, то предполагаемый к установке дополнительный замок должен быть без защелки.
5.8.3.3 Перед установкой дополнительного замка следует осмотреть внутреннее пространство дверного полотна (съемную панель с внутренней стороны, лючок под обивкой или съемную стенку и пр.), чтобы при прорезании дверной коробки не попасть в усиление или перегородку.
5.8.3.4 Разметку под врезку дополнительного замка необходимо провести по схеме, входящей в комплект поставки, или по размерам замка.
5.8.3.5 Полость ниши необходимо освободить от посторонних предметов и мусора так, чтобы замок входил в нее свободно. Чтобы новая ниша не была обособлена от остальной полости дверного полотна, необходимо исключить возможность попадания в механизм замка при эксплуатации двери фрагментов посторонних предметов, которые могут повлиять на его нормальную работу.
5.8.3.6 При монтаже замка не допускаются усилия и ударные воздействия на цилиндровый механизм.
5.8.3.7 Не допускается проводить сверление стенок дверного блока для корректировки расположения ключевого канала или цилиндрового механизма с вставленным в нишу замком.
5.8.3.8 Отверстие для прохода засова замка в дверную коробку должно обеспечивать свободный проход засова при удержании полотна защелкой.
5.8.3.9 При выборе цилиндрового механизма следует учитывать класс его надежности в зависимости от области применения в соответствии с
таблицей 1 ГОСТ 5089.
5.8.3.10 Цилиндровый механизм рекомендуется приобретать после установки замка, учитывая, что замок может быть установлен не в средней части толщины двери. В этом случае цилиндровый механизм должен быть несимметричным относительно середины поводка.
Примечание - Длину и симметричность цилиндрового механизма допускается рассчитывать, сориентировавшись по торцу дверного полотна и середине засова замка с учетом торцевых накладок. Цилиндровый механизм не должен выступать из накладок (по крайней мере с внешней стороны) более чем на 3 - 5 мм. Если предполагается установка броненакладки, то размеры цилиндрового механизма корректируют с ее учетом. Установка броненакладки желательна, так как она повышает стойкость узла цилиндрового механизма к взлому.
5.9. Нарушение работоспособности и гарантийное обслуживание замка
Нарушение нормальной работоспособности замка, вызванное неправильной его эксплуатацией, а также появление любых изменений в замке, не предусмотренных конструкцией, снимают обязательства производителя (дилера) на гарантийное обслуживание.
Примечания
1 Замки при эксплуатации не смазывают (кроме того, что было смазано на предприятии). Допускается один раз в год проводить профилактическую очистку цилиндрового механизма составом WD-40 или аэрозолями на основе силикона.
2 В случае появления специфических изменений в работе замка необходимо обращаться в сервисную службу.
3 Ключи цилиндрового механизма высокого класса упаковывают в черные полиэтиленовые пакеты. Не допускается вскрывать пакеты с ключами, не убедившись, что цилиндровый механизм подходит, в противном случае в его обмене может быть отказано.
4 В комплект цилиндрового механизма высокого класса вкладывают карты копирования ключей. Без предъявления карты копирования заказы на изготовление дубликатов ключей не принимают.
6.1 Дверные блоки должны быть приняты службой технического контроля предприятия-изготовителя на соответствие требованиям настоящего стандарта, а также условиям, определенным в договоре на изготовление и поставку изделий. Подтверждением приемки изделий службой технического контроля качества является оформление документа (паспорта) о приемке изделий.
6.2 Качество дверных блоков, установленное настоящим стандартом, подтверждают:
- входным контролем материалов и комплектующих деталей;
- операционным производственным контролем;
- ежесменным приемочным контролем готовых изделий;
- контрольными приемо-сдаточными испытаниями каждой партии изделий, проводимыми службой технического контроля предприятия-изготовителя;
- периодическими и сертификационными испытаниями изделий в независимых испытательных центрах;
- квалификационными испытаниями.
6.3 Порядок проведения входного и операционного производственного контроля на рабочих местах устанавливают в технологической документации.
В случае если предприятие-изготовитель комплектует дверные блоки деталями собственного изготовления, они должны быть испытаны и приняты в соответствии с требованиями нормативных документов на эти детали.
6.4 Перечень показателей, контролируемых при ежесменном приемочном контроле готовых изделий, приемо-сдаточных испытаниях каждой партии изделий и при периодических испытаниях, приведен в таблице 9.
Наименование показателя | Номер пункта требований | Метод испытания | | Периодичность (не реже) |
I | II | III |
Внешний вид (включая цвет) | | | + | + | - | Для вида контроля I - один раз в смену, для вида II - каждая партия |
Плотность прилегания прокладок | | | + | + | - | Для вида контроля I - один раз в смену, для вида II - каждая партия |
Работа петель и запирающих устройств | | | + | + | - | Для вида контроля I - один раз в смену, для вида II - каждая партия |
Маркировка | | Визуально | + | + | - | Для вида контроля I - один раз в смену, для вида II - каждая партия |
Отклонение контролируемых номинальных размеров <**> и прямолинейность кромок | | | - | + | - | Для вида контроля I - один раз в смену, для вида II - каждая партия |
Качество сварных соединений | | | + | + | - | Для вида контроля I - один раз в смену, для вида II - каждая партия |
| | - | + | - | Для вида контроля II - один раз в смену |
Сопротивление статическим нагрузкам | | | - | - | + | Один раз в три года |
Сопротивление динамическим нагрузкам | | | - | - | + | Один раз в три года |
Сопротивление удару мягким неупругим телом | | | - | - | + | Один раз в три года |
Сопротивление удару твердым телом | | | - | - | + | Один раз в три года |
Безотказность | | | - | - | + | Один раз в три года |
Соответствие эргономическим требованиям | | | - | - | + | Один раз в три года |
Приведенное сопротивление теплопередаче | | | - | - | + | При постановке на производство |
Воздухопроницаемость | | | - | - | + | При постановке на производство |
Устойчивость к взлому | | | - | - | + | При постановке на производство, изменении конструкции, замене материала |
Звукоизоляция | | | - | - | + | При постановке на производство, изменении конструкции, замене материала |
Правильность установки замка | | | - | + | - | Один раз в смену |
I - ежесменный приемочный контроль; II - контроль каждой партии (приемо-сдаточные испытания), проводимый службой технического контроля качества предприятия-изготовителя; III - контроль при периодических испытаниях, проводимых в независимых испытательных центрах. <**> Контролируемые номинальные размеры для вида испытаний II устанавливают в технологической документации. |
6.5 Внешний вид, плотность прилегания уплотняющих прокладок, работу петель и запирающих устройств, маркировку и качество сварных соединений проверяют методом сплошного контроля.
6.6 Готовые дверные блоки, прошедшие контроль, маркируют. Изделия, не прошедшие контроль хотя бы по одному показателю, бракуют.
6.7 Для проведения приемо-сдаточных испытаний каждой партии дверных блоков, проводимых службой технического контроля качества предприятия-изготовителя, от партии изделий методом случайного отбора берут образцы дверных блоков в количестве 3% объема партии, но не менее 3 шт. В случае если в партии менее трех изделий, контролю подвергают каждое изделие.
В случае отрицательного результата испытаний хотя бы по одному показателю хотя бы одного образца проводят повторную проверку качества изделий на удвоенном числе образцов по показателю, имевшему отрицательный результат испытаний.
При повторном обнаружении несоответствия показателя установленным требованиям хотя бы на одном образце контролируемую и последующую партии изделий подвергают сплошному контролю (разбраковке). При положительном результате сплошного контроля возвращаются к установленному порядку приемо-сдаточных испытаний.
6.8 Периодические испытания по определению эксплуатационных показателей, указанных в
5.3.1,
5.3.3 -
5.3.8, проводят при постановке на производство, при внесении изменений в конструкцию дверного блока или технологию их изготовления, но не реже одного раза в период, установленный в
таблице 9, а также при сертификации изделий. В обоснованных случаях допускается совмещать периодические и сертификационные испытания (сертификационные испытания проводят в объеме периодических).
Квалификационные испытания проводят по всем показателям при постановке продукции на производство.
Испытания проводят в испытательных центрах, аккредитованных на право их проведения.
Испытаниям по определению приведенного сопротивления теплопередаче, воздухопроницаемости, звукоизоляции подвергают конструкции, предназначенные для восприятия этих нагрузок в соответствии с областью их применения.
6.9 Потребитель имеет право проводить контрольную проверку качества дверных блоков, соблюдая порядок отбора образцов и методы испытаний, указанные в настоящем стандарте.
При приемке изделий потребителем партией считают число изделий, отгружаемое по конкретному заказу, но не более 90 шт., оформленное одним документом о качестве.
6.10 При приемке дверных блоков рекомендуется использовать одноступенчатый план контроля, приведенный в таблице 10.
Таблица 10
Одноступенчатый план контроля качества
Объем партии, шт. | Объем выборки, шт. | Приемочное число |
Малозначительные дефекты | Критические и значительные дефекты |
От 1 до 12 | Все изделия | 3 | 0 |
13 - 25 | 4 | 3 | 0 |
26 - 50 | 8 | 4 | 0 |
51 - 90 | 12 | 5 | 0 |
91 - 150 | 18 | 7 | 1 |
Св. 150 | 26 | 10 | 2 |
Примечание - К значительным и критическим дефектам относят: дефекты, ведущие к потере эксплуатационных характеристик, неустранимые без замены части изделия (поломка стального профиля и др.), превышение предельных отклонений размеров, установленных в нормативных документах, более чем в 1,5 раза, разукомплектованность изделий. К малозначительным дефектам относят устранимые дефекты: незначительные повреждения поверхности, неотрегулированные дверные приборы и петли, превышение предельных отклонений размеров, установленных в нормативных документах, менее чем в 1,5 раза. |
По договоренности сторон приемку изделий потребителем допускается проводить на складе изготовителя, на складе потребителя или в ином, оговоренном в договоре на поставку месте.
6.11 Каждая партия дверных блоков должна сопровождаться документом о качестве (паспортом). Пример заполнения паспорта изделия приведен в
приложении Д.
6.12 Приемка дверных блоков потребителем не освобождает изготовителя от ответственности при обнаружении скрытых дефектов, приведших к нарушению эксплуатационных характеристик изделий в течение гарантийного срока службы.
6.13 Общие требования к проведению входного контроля при поставке дверных блоков на строительные объекты или частным потребителям
6.13.1 При поставке дверных блоков на объект производитель обязан подтвердить их соответствие действующим нормативным документам, а также требованиям проекта (при наличии). Указанное требование документально оформляют в виде пакета сопроводительной документации. Пакет сопроводительной документации должен включать в себя:
- технические, инженерные расчеты (при их наличии), подтверждающие эксплуатационные характеристики в соответствии с
5.3.1;
- нормативный документ на монтаж изделий при условии заключения единого договора на изготовление и монтаж изделий.
6.13.2 При входном контроле поставляемых на объект дверных блоков или передаваемых в специализированные дилерские центры проверяют:
- количество изделий, установленных в заказе;
- тип изделия;
- наличие маркировки (в соответствии с
5.7);
- габаритные размеры (выборочно);
- внешний вид (наличие дефектов);
- комплектность (в соответствии с заказом);
- наличие пакета сопроводительной документации.
6.13.3 По результатам входного контроля на объекте составляют акт приемки и сдачи дверных блоков.
Примечание - В случае если в результате хранения или после монтажа изделий обнаруживаются дефекты, не определенные при приемке изделий, изготовитель не несет за это ответственности.
7. Методы контроля и испытаний
7.1 Методы контроля и испытаний при входном и производственном операционном контроле устанавливают в технологической документации.
7.2 Методы определения показателей, контролируемых при ежесменном приемочном контроле и контрольных приемо-сдаточных испытаниях, приведены в 7.2.1 -
7.2.7.
7.2.1 Геометрические размеры дверных блоков и прямолинейность кромок определяют с использованием методов, установленных в
ГОСТ 26433.0 и
ГОСТ 26433.1.
Предельные отклонения номинальных размеров элементов изделий, разность длин диагоналей и другие размеры определяют с помощью металлической измерительной рулетки по
ГОСТ 7502, штангенциркуля по
ГОСТ 166, щупов по нормативным документам.
Предельные отклонения от прямолинейности кромок определяют путем приложения поверочной линейки по
ГОСТ 8026 или строительного уровня с допуском плоскостности не менее 9-й степени точности по
ГОСТ 9416 к испытуемой детали и замером наибольшего зазора с помощью щупов по нормативным документам.
7.2.2 Предельные отклонения номинальных размеров зазоров под наплавом проверяют с помощью набора щупов или линейки по
ГОСТ 427.
7.2.3 Провес в сопряжении смежных деталей, лежащих в одной плоскости, определяют щупом как расстояние от ребра линейки по
ГОСТ 427, приложенной к верхней сопрягаемой поверхности, до нижней поверхности.
7.2.4 Внешний вид, качество сварных соединений, цвет и качество отделки дверных блоков оценивают визуально путем сравнения с образцами-эталонами, утвержденными руководителем предприятия-изготовителя, с расстояния 1,5 м при естественном освещении не менее 300 лк.
7.2.5 Адгезию (прочность сцепления лакокрасочных покрытий с поверхностью металла) определяют методом решетчатого надреза по
ГОСТ 31149.
7.2.6 Плотность прилегания и правильность установки уплотняющих прокладок, дверных приборов, крепежных и других деталей, цвет и отсутствие трещин в сварных соединениях, маркировку и упаковку проверяют визуально.
Для определения плотности прилегания уплотняющих прокладок сопоставляют размеры зазоров в притворах и степень сжатия прокладок, которая должна составлять не менее 1/5 высоты необжатой прокладки. Измерения проводят штангенциркулем по
ГОСТ 166 или линейкой по
ГОСТ 427.
Плотность прилегания уплотняющих прокладок при закрытых полотнах допускается определять по наличию непрерывного следа, оставленного красящим веществом (например, цветным мелом), предварительно нанесенным на поверхность прокладок и легко удаляемым после проведения контроля.
7.2.7 Работу дверных петель проверяют десятикратным открыванием и закрыванием створчатых элементов изделия. В случае обнаружения отклонений в работе дверных петель проводят их наладку и повторную проверку.
7.3 Методы определения показателей, контролируемых при периодических испытаниях, приведены в 7.3.1 -
7.3.10.
7.3.1 Приведенное сопротивление теплопередаче определяют по
ГОСТ 26602.1.
7.3.2 Воздухо- и водопроницаемость определяют по
ГОСТ 26602.2.
7.3.4 Сопротивление ветровой нагрузке определяют по
ГОСТ 26602.5.
7.3.5 Показатели безотказности, сопротивления статическим, динамическим, ударным нагрузкам и эргономические показатели дверных блоков определяют по методикам испытательных лабораторий,
приложению В настоящего стандарта и
ГОСТ 30777.
Испытания запирающих устройств на безотказность, сопротивление нагрузкам и соответствие эргономическим требованиям проводят на специальном оборудовании (стендах) по нормативным документам, программам и методикам испытательных лабораторий.
После проведения испытаний изделие должно сохранить работоспособность.
При испытаниях по определению сопротивления динамическим нагрузкам имитируют нагрузку, возникающую при резком открывании дверного полотна (например, при сквозняке) в момент контакта дверного полотна с откосом дверного проема.
Испытание по определению сопротивления удару мягким неупругим телом проводят трехразовым ударом, например грушей диаметром нижней части (300 +/- 5) мм и массой (30 +/- 0,5) кг, с высоты падения по
5.3.4 в центральную зону образца. После проведения испытаний остаточная деформация не должна превышать 2 мм.
По окончании проведения испытаний дверные блоки должны сохранить работоспособность, при этом засов замка и защелка должны свободно входить в свои ответные части.
До и после проведения испытания дверных блоков на безотказность рекомендуется проверять плотность прилегания уплотняющих прокладок согласно
7.2.6.
При испытаниях дверных блоков по определению сопротивления статической нагрузке (см.
приложение В), действующей перпендикулярно плоскости полотна в зоне свободного угла, рекомендуется использовать график зависимости прогиба свободного угла полотна от прилагаемой нагрузки, приведенный в
приложении А.
При прикладывании нагрузки в плоскости дверного полотна полотно должно быть открыто на 90° по отношению к коробке. Груз прикладывают в зоне свободного угла, выдерживают не менее 5 мин. Анализируют деформацию, в том числе вырыв петли из полотна или коробки.
7.3.6 При испытаниях дверных блоков по определению стойкости к ударной нагрузке, создаваемой твердым телом, проводят трехразовый удар в центр дверного полотна и при необходимости в угловые зоны твердым телом массой 2 кг. Среднее значение диаметра повреждения от удара не должно превышать 2,0 мм, глубина - 1,5 мм. После проведения испытаний дверные блоки должны сохранять работоспособность.
7.3.7 Стойкость к коррозии металла дверных блоков и запирающих устройств определяют по
ГОСТ 9.308,
ГОСТ 538 и нормативным документам на конкретные изделия.
7.3.8 Замочные изделия должны быть испытаны с последующим присвоением класса устойчивости к вскрытию и взлому в соответствии с
ГОСТ 5089,
ГОСТ 19091, а также с нормативными документами <1>, действующими на территории государства - участника соглашения, принявшего настоящий стандарт.
--------------------------------
<1> В Российской Федерации действует
ГОСТ Р 52582-2006 "Замки для защитных конструкций. Технические требования и методы испытаний на устойчивость к криминальному отмыканию и взлому".
7.3.9 Ветровые нагрузки на дверные блоки группы А измеряют по нормативным документам на методы испытаний с учетом того, что входные двери в здания расположены на первых этажах зданий. После проведения испытаний значение прогиба не должно превышать 6 мм. Элементы конструкций должны выдерживать ветровые нагрузки без разрушений, дверное полотно должно быть закрытым (все запирающие устройства должны находиться в зацеплении).
Примечание - Допускаются разрушение и замена стекла или стеклопакета.
7.3.10 Методы контроля качества сварных соединений устанавливают в технической документации изготовителя в соответствии с
ГОСТ 5264.
7.3.11 Испытания на взломоустойчивость
7.3.11.1 Испытания на взломоустойчивость проводят на дверных блоках с усиленными защитными функциями в соответствии с нормативными документами на методы испытания, в том числе в соответствии с нормативными документами <2>, действующими на территории государства - участника соглашения, принявшего настоящий стандарт. Испытания проводят на дверных блоках в направлении открывания дверного полотна до разрушения образца, т.е. до вскрытия двери или до состояния, при котором за счет деформации произошло заклинивание полотна и дальнейшее продолжение испытания не имеет смысла.
--------------------------------
<2> В Российской Федерации методы испытаний проводят по
ГОСТ Р 51242-98 "Конструкции защитные механические и электромеханические дверных и оконных проемов. Технические требования и методы испытаний на устойчивость к разрушающим воздействиям".
7.3.11.2 Взломоустойчивость определяют по времени, затраченному на взлом, и в зависимости от типа применяемого инструмента. Требования к инструменту для ручного взлома - в соответствии с нормативными документами <3>, действующими на территории государства - участника соглашения, принявшего настоящий стандарт.
| | ИС МЕГАНОРМ: примечание. В официальном тексте документа, видимо, допущена опечатка: имеется в виду ГОСТ Р 50862-2012, а не ГОСТ Р 50862-2011. | |
--------------------------------
<3> В Российской Федерации инструмент, применяемый при испытании по определению взломоустойчивости, должен соответствовать требованиям
ГОСТ Р 51242-98 "Конструкции защитные механические и электромеханические для дверных и оконных проемов. Технические требования и методы испытаний на устойчивость к разрушающим воздействиям",
ГОСТ Р 50862-2011 "Сейфы, сейфовые комнаты и хранилища ценностей. Требования и методы испытаний на устойчивость к взлому" и
ГОСТ Р 52582-2006 "Замки для защитных конструкций. Технические требования и методы испытаний на устойчивость к криминальному отмыканию и взлому".
7.3.11.3 Класс защиты многослойного стекла определяют по
ГОСТ 30826.
Примечание - При наличии документов, подтверждающих класс защиты стекла, допускается в процессе испытаний не прикладывать к стеклопакету статические и динамические нагрузки.
8. Упаковка, транспортирование и хранение
8.1 Упаковка дверных блоков должна обеспечивать их сохранность при хранении, погрузочно-разгрузочных работах и транспортировании.
8.2 Не установленные на дверные блоки приборы или части приборов должны быть упакованы в полиэтиленовую пленку по
ГОСТ 10354 или в другой упаковочный материал, обеспечивающий их сохранность, прочно перевязаны и поставлены комплектно с изделиями.
8.3 Перед транспортированием дверных блоков рекомендуется дверные полотна фиксировать или закреплять любым способом, обеспечивающим их сохранность при транспортировании.
8.4 Дверные блоки транспортируют всеми видами транспорта в соответствии с правилами перевозки грузов, действующими на данном виде транспорта.
8.5 При хранении и транспортировании дверных блоков должна быть обеспечена их защита от механических повреждений и воздействия атмосферных осадков.
8.6 При хранении и транспортировании между изделиями рекомендуется устанавливать прокладки из эластичных материалов.
8.7 Дверные блоки хранят в вертикальном или горизонтальном положении на деревянных подкладках, поддонах или в специальных контейнерах в крытых помещениях в соответствии с
ГОСТ 15150 (исполнения УХЛ, ХЛ).
9.1 Предприятие-изготовитель гарантирует соответствие дверных блоков требованиям настоящего стандарта при условии соблюдения правил транспортирования, хранения, монтажа, эксплуатации, а также области применения, установленной в нормативных документах и проектной документации.
9.2 По согласованию с потребителем (заказчиком) фирма-изготовитель предоставляет сервисное обслуживание, включающее в себя аварийное вскрытие дверей в случае потери или поломки ключей, консультации по применению и эксплуатации дверных приборов и запирающих устройств, ремонт изделий.
9.3 Гарантийный срок эксплуатации дверных блоков устанавливают в договоре на поставку с учетом условий эксплуатации:
- не менее одного года со дня отгрузки для дверных наружных входных в здания блоков групп А и Г с большой интенсивностью прохода с риском небрежного отношения;
- не менее трех лет со дня отгрузки для дверных блоков групп Б и В со средней интенсивностью прохода и с ограниченным риском небрежного отношения;
- не менее двух лет со дня отгрузки для дверных блоков группы В1 с низким уровнем интенсивности прохода и риском небрежного отношения.
9.4 Гарантийный срок хранения дверных блоков - один год со дня отгрузки изделий изготовителем при условии хранения в соответствии с
разделом 8.
(справочное)
ПРИМЕР ОПРЕДЕЛЕНИЯ КЛАССА ПРОЧНОСТИ ДВЕРНЫХ БЛОКОВ
В настоящем приложении приведен пример определения класса прочности дверного блока по значению статической нагрузки, действующей перпендикулярно плоскости дверного полотна в зоне свободного угла.

- границы классов прочности;
М1, М2, М3, М4, М5 - классы прочности;

- графики результатов испытаний дверных блоков;

- обозначение результатов испытаний дверных блоков соответствующими контрольными нагрузками
Рисунок А.1 - График зависимости прогиба

свободного угла
полотна от приложенной нагрузки P при испытании дверных
блоков по определению сопротивления статической нагрузке,
действующей перпендикулярно плоскости полотна в зоне
свободного угла
(справочное)
ПРИМЕРЫ КОНСТРУКЦИЙ ДВЕРНЫХ БЛОКОВ И ВАРИАНТОВ ЗАПОЛНЕНИЯ
ДВЕРНЫХ ПОЛОТЕН
| | ИС МЕГАНОРМ: примечание. Текст дан в соответствии с официальным текстом документа. | |
1 - верхний запирающий ригель; 2 - верхняя тяга основного
замка; 3 - каркас полотна (сваренные стальные профили);
4 - места крепления внутреннего лючка; 5 - задвижка;
6 - место крепления верхней тяги; 7 - ригели засова
сувальдного замка; 8 - защелка; 9 - засов цилиндрового
замка; 10 - нижняя тяга основного замка; 11 - места
крепления отделки; 12 - внутренняя полость для заполнителя;
13 - направляющая вертикальной тяги; 14 - нижний запирающий
ригель; 15 - монтажное "ушко"; 16 - порог; 17 - глазок;
18 - петлевой узел; 19 - наружный стальной лист;
21 - комбинированный сувальдно-цилиндровый замок;
22 - коробка (рама); 23 - монтажный анкер;
24 - противосъемный пассивный ригель (штырь);
25 - отверстие под противосъемный ригель (штырь)
Рисунок Б.1 - Пример конструкции дверного блока, полотно
которого сварено из двух стальных листов или с наружным
стальным листом и внутренним листом из ДВП и стальных
профилей, коробка (рама) - из стального гнутого профиля
а
Полотно с двумя стальными листами, стальными профилями коробчатого сечения и сотовым заполнением
б
Полотно с наружным стальным листом и внутренним листом из ДВП, с профилями сложного сечения и заполнением из древесного или минерального утеплителя
в
Полотно типа "гнутый короб" с П-образными стальными профилями и заполнением из пенопласта
г
Полотно с наружным стальным листом и внутренним листом из ДВП, уголковыми стальными профилями с брусками из древесины и заполнением из пенопласта
Рисунок Б.2 - Варианты заполнения дверного полотна
1 - каркас полотна типа "сэндвич" (завальцованные стальные
листы); 2 - торцевое усиление замковой части полотна;
3 - заполнение из минераловатной плиты высокой плотности;
4 - С-образный усиливающий стальной профиль рамы;
5 - цельнометаллический профиль рамы с наличником;
6 - монтажная пластина; 7 - защелка цилиндрового замка;
8 - боковые запирающие ригели; 9 - цилиндровый замок;
10 - ригельная коробка; 11 - ответная планка замка;
12 - порог; 13 - противосъемный пассивный ригель (штырь);
14 - торцевое усиление петлевой части полотна; 15 - глазок;
16 - петля; 17 - уплотнитель полотна; 18 - уплотнитель
рамы; 19 - внешний стальной лист; 20 - внутренний стальной
лист; 21 - верхняя крышка полотна
Рисунок Б.3 - Пример конструкции дверного блока с полотном
типа "сэндвич" с двумя профилированными и завальцованными
между собой стальными листами, с Г-образными стальными
усиливающими профилями и заполнением из минеральной ваты
высокой плотности, коробка (рама) - из стального
цельнометаллического профиля сложной формы, изготовленного
путем холодного проката оцинкованной стали
д
| | ИС МЕГАНОРМ: примечание. Текст дан в соответствии с официальным текстом документа. | |
Полотно типа "сэндвич" с двумя профилированными и завальцованными между собой стальными листами, с Г-образными стальными усиливающими профилями и заполнением из минеральной ваты высокой плотности
е
Полотно типа "сэндвич" с двумя профилированными и завальцованными между собой стальными листами, с Г-образными стальными усиливающими профилями и заполнением из пенополиуретана
Рисунок Б.4, лист 1 - Варианты заполнения дверного полотна
типа "сэндвич"
ж
Полотно типа "сэндвич" с двумя профилированными и завальцованными между собой стальными листами, с Г-образными стальными усиливающими профилями и заполнением из пенополиуретана с облицовкой из древесины или древесно-плитных материалов (горизонтальное сечение)
Рисунок Б.4, лист 2
Рисунок Б.5 - Примеры дверных петель на опорном стержне
Рисунок Б.6 - Пример врезного комбинированного замка с двумя
механизмами секретов и вертикальными тягами
Рисунок Б.7 - Пример замка с крюкообразным засовом
Рисунок Б.8 - Пример эластичного уплотнителя специальной
формы с ножкой для установки в паз
(обязательное)
МЕТОДЫ ОПРЕДЕЛЕНИЯ СОПРОТИВЛЕНИЯ СТАТИЧЕСКИМ НАГРУЗКАМ
И СХЕМЫ ПРИЛОЖЕНИЯ ДИНАМИЧЕСКИХ НАГРУЗОК
В.1 Сопротивление статической нагрузке, прикладываемой в плоскости дверного полотна
В.1.1 При определении сопротивления статической нагрузке, прикладываемой в плоскости дверного полотна, нагрузку (последовательно от меньшей к большей) прикладывают на открытое полотно на 90° в направлении сверху вниз в зоне свободного угла (точка приложения задана) в течение 5 мин.
В.1.2 После снятия нагрузки выявляют наличие (или отсутствие) остаточной деформации. Если остаточная деформация укладывается в половину зазора между полотном и коробкой (в нижней и вертикальной частях двери в области свободного угла) или отсутствует полностью, дверь испытания выдержала.
В.2 Сопротивление статической нагрузке, прикладываемой в зоне свободного угла дверного полотна перпендикулярно его плоскости
В.2.1 При определении сопротивления статической нагрузке, прикладываемой в плоскости дверного полотна, нагрузку (последовательно от меньшей к большей) прикладывают в направлении открывания дверного полотна (при этом дверь должна быть закрыта на все запоры) в зоне свободного угла (точка приложения задана) в течение 5 мин.
В.2.2 После снятия нагрузки выявляют наличие (или отсутствие) остаточной деформации. Если остаточная деформация (в зоне свободного угла) не превышает 1/5 толщины уплотнения (см.
7.2.6), дверь испытания выдержала. В противном случае откроется зазор для прохода воздуха и снизятся показатели звукоизоляции, устойчивости к взлому.
В.3 Сопротивление статической нагрузке, прикладываемой в зоне петель перпендикулярно плоскости дверного полотна
В.3.1 При определении сопротивления статической нагрузке, прикладываемой в зоне петель перпендикулярно плоскости дверного полотна, нагрузку (последовательно от меньшей к большей) прикладывают в направлении открывания полотна (при этом дверь должна быть закрыта на все запоры) в зоне каждой петли (точки приложения заданы) в течение 5 мин.
В.3.2 После снятия нагрузки выявляют наличие (или отсутствие) остаточной деформации. Если остаточная деформация в зоне каждой петли не превышает 1/5 толщины уплотнения (см.
7.2.6), дверь испытания выдержала. В противном случае откроется зазор для прохода воздуха и снизятся показатели звукоизоляции, устойчивости к взлому. Схемы приложения динамических нагрузок приведены на рисунках В.1 -
В.3.
h - высота падения груза 450 мм, масса груза 20 кг, толщина
резиновой прокладки 40 мм
Рисунок В.1 - Схема приложения динамической нагрузки
при ударе об ограничитель угла открывания
h - высота падения груза 450 мм, масса груза 20 кг, толщина
резиновой прокладки 40 мм
Рисунок В.2 - Схема приложения динамической нагрузки
при ударе о посторонний предмет в притворе
при закрывании полотна
1 - прижим; 2 - запирающее устройство или ограничитель;
3 - гибкий трос; 4 - неупругое мягкое тело (груз) массой
30 кг; 5 - съемный крюк;
h - высота падения груза;

- угол
отклонения груза
Рисунок В.3 - Схема приложения динамической нагрузки
при испытании на сопротивление удару мягким неупругим телом
(грузом) в направлении открывания дверного полотна
Рисунок В.4 - Схема расположения точек нанесения ударов
на однопольном дверном блоке при проведении испытания
на сопротивление удару мягким неупругим телом (грузом)
в направлении открывания дверного полотна
(рекомендуемое)
ОБЩИЕ ТРЕБОВАНИЯ К МОНТАЖУ ДВЕРНЫХ БЛОКОВ
Г.1 Требования к монтажу дверных блоков устанавливают в проектной документации на объекты строительства с учетом принятых в проекте вариантов исполнения узлов примыкания изделий к стенам, рассчитанных на заданные климатические и другие нагрузки.
Г.2 Монтаж дверных блоков должен осуществляться специализированными строительными фирмами или специально обученными бригадами предприятия-изготовителя. Окончание монтажных работ должно подтверждаться актом сдачи-приемки, включающим в себя гарантийные обязательства производителя работ.
Г.3 По требованию потребителя (заказчика) изготовитель (поставщик) дверных блоков должен предоставлять ему типовую инструкцию по монтажу, утвержденную руководителем предприятия-изготовителя и содержащую:
- чертежи (схемы) типовых монтажных узлов примыкания;
- перечень применяемых материалов (с учетом их совместимости и температурных режимов применения);
- последовательность технологических операций по монтажу дверных блоков.
Г.4 При проектировании и исполнении узлов примыкания необходимо выполнять следующие условия:
- заделка монтажных зазоров между изделиями и откосами проемов стеновых конструкций должна быть по всему периметру дверного блока плотной, герметичной, рассчитанной на выдерживание климатических нагрузок снаружи и условий эксплуатации внутри помещений;
- конструкция узлов примыкания наружных изделий (включая расположение дверного блока по глубине проема) должна максимально препятствовать образованию мостиков холода (тепловых мостиков), приводящих к образованию конденсата на внутренних поверхностях дверных проемов;
- эксплуатационные характеристики конструкций узлов примыкания должны отвечать требованиям, установленным в действующих на территории государства - участника соглашения, принявшего настоящий стандарт, строительных нормах и правилах.
Вариант исполнения монтажного узла внутреннего дверного блока приведен на рисунке Г.1.
1 - коробка (рама) дверного блока; 2 - монтажная пена;
3 - наружное уплотнение; 4 - полотно дверного блока;
5 - внутреннее уплотнение; 6 - портал декоративного
обрамления; 7 - наличник; 8 - монтажный анкер;
9 - монтажное "ушко"; 10 - стена
Рисунок Г.1 - Вариант исполнения монтажного узла
внутреннего дверного блока
Г.5 Количество и расположение монтажных "ушек", вид, диаметр и длину крепежных элементов устанавливают в проектной документации с учетом материала стен и конструкции дверного проема. В качестве крепежных элементов для монтажа изделий рекомендуется применять строительные анкеры диаметром не менее 10 мм. Расстояние между крепежными элементами не менее 700 мм.
Не допускается использование для крепления изделий герметиков, клеев, пеноутеплителей, а также строительных гвоздей.
Г.6 Дверные блоки следует устанавливать по уровню и отвесу. Отклонение от вертикали и горизонтали профилей коробок смонтированных изделий не должно превышать 1,5 мм на 1 м длины, но не более 3 мм на высоту изделия. В случае если противоположные профили отклонены в разные стороны ("скручивание" коробки), их суммарное отклонение от нормали не должно превышать 3 мм.
Дверной блок устанавливают в подготовленный дверной проем симметрично относительно центральной вертикали проема. Отклонение от симметричности не должно превышать 3 мм в сторону откоса проема, предназначенного для крепления профиля коробки с петлями. Отклонение от симметричности в другую сторону проема не рекомендуется.
Г.7 Для заполнения монтажных зазоров (швов) наружных изделий применяют монтажную пену, силиконовые герметики, предварительно сжатые уплотнительные ленты (ПСУЛ) (компрессионные ленты), изолирующие пенополиуретановые шнуры, пеноутеплители, минеральную вату и другие материалы, имеющие гигиеническое заключение и обеспечивающие требуемые эксплуатационные показатели швов.
Закраска швов не рекомендуется.
Г.8 При устройстве монтажных швов и установке наружных дверных блоков рекомендуется учитывать требования
ГОСТ 30971.
(рекомендуемое)
ПРИМЕР ЗАПОЛНЕНИЯ ПАСПОРТА ДВЕРНОГО БЛОКА
Паспорт (документ о качестве) стального дверного блока, наружного, усиленного по ГОСТ 31173-2016 ________________________________________________________________ (наименование предприятия-изготовителя) ________________________________________________________________ (адрес, телефон, факс предприятия-изготовителя) |
а) конструкция - однопольный, правого исполнения, с порогом, открывание внутрь; |
б) габаритные размеры - высота 2300 мм, ширина 970 мм. |
Условное обозначение ДСН, А, Оп, Прг, Вн, П2лс, М3, УЗ ГОСТ 31173-2016 |
Сертификат соответствия (при наличии) _________________________ (N сертификата) |
Комплектность |
а) вид отделки полотна - комбинированный (фрезерованная плита МДФ; винилискожа); |
б) вид (тип) защиты от коррозии материала дверного блока - оцинковка; |
в) дверные петли - две накладные подшипниковые петли; |
г) запирающие приборы - сувальдный замок класса... и замок с цилиндровым механизмом класса...; |
д) число контуров уплотняющих прокладок - 2 контура; |
е) дополнительные сведения. В комплект поставки изделия входят: доводчик (регулятор закрывания), дверной упор (ограничитель открывания), инструкция по эксплуатации. |
Показатели, подтвержденные испытаниями |
Приведенное сопротивление теплопередаче 0,65 м2·°C/Вт. |
Воздухопроницаемость при  100 Па - 15 м 3/(ч·м 2). |
Звукоизоляция 22 дБ. |
Безотказность, циклы открывания и закрывания 500 000. |
Класс по механической прочности М2. |
Гарантийный срок - не менее одного года. |
Номер партии |
Номер заказа/позиция в заказе |
Приемщик ОТК Дата "__" ________ 20__ г. изготовления __________________ (подпись) |