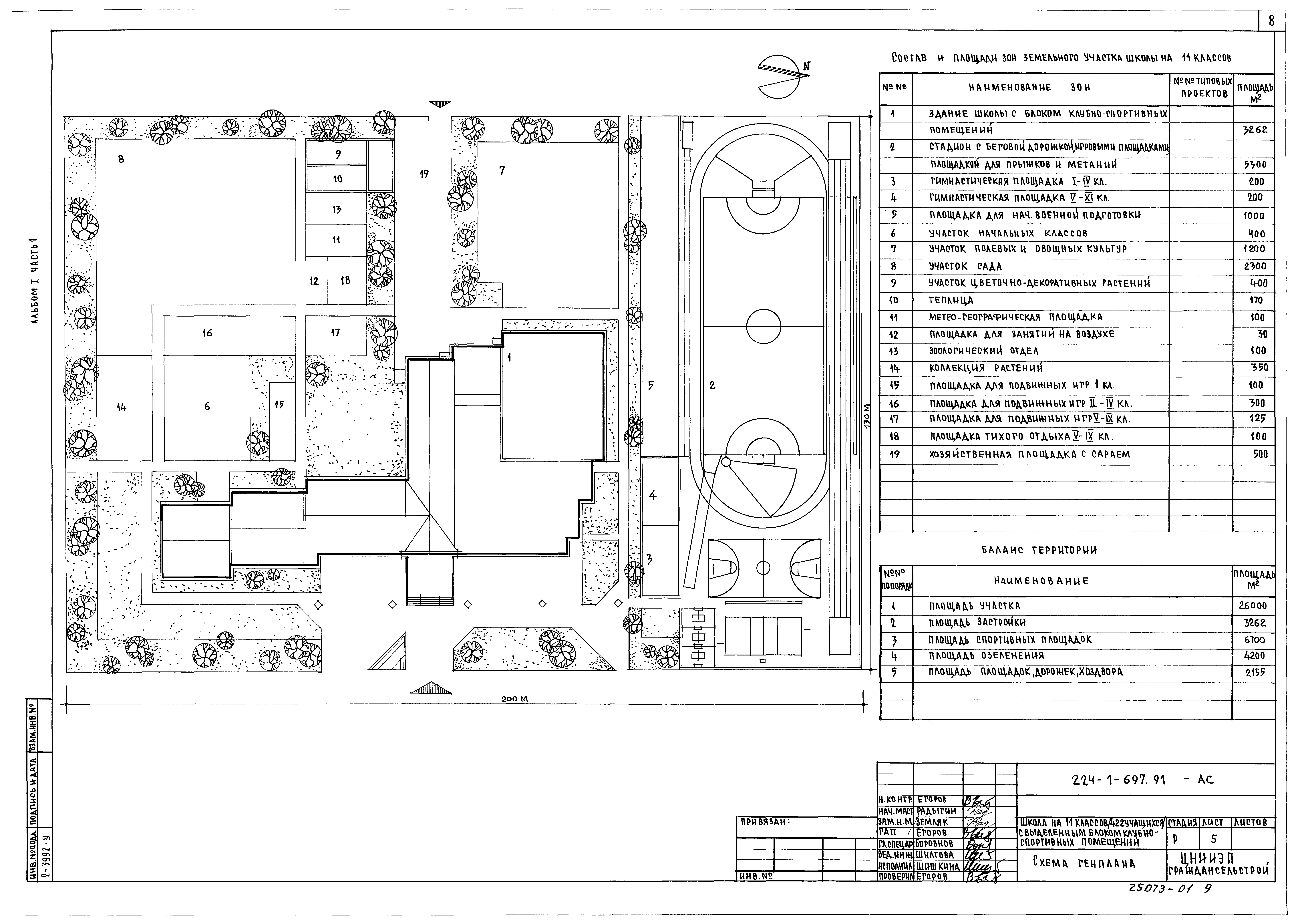
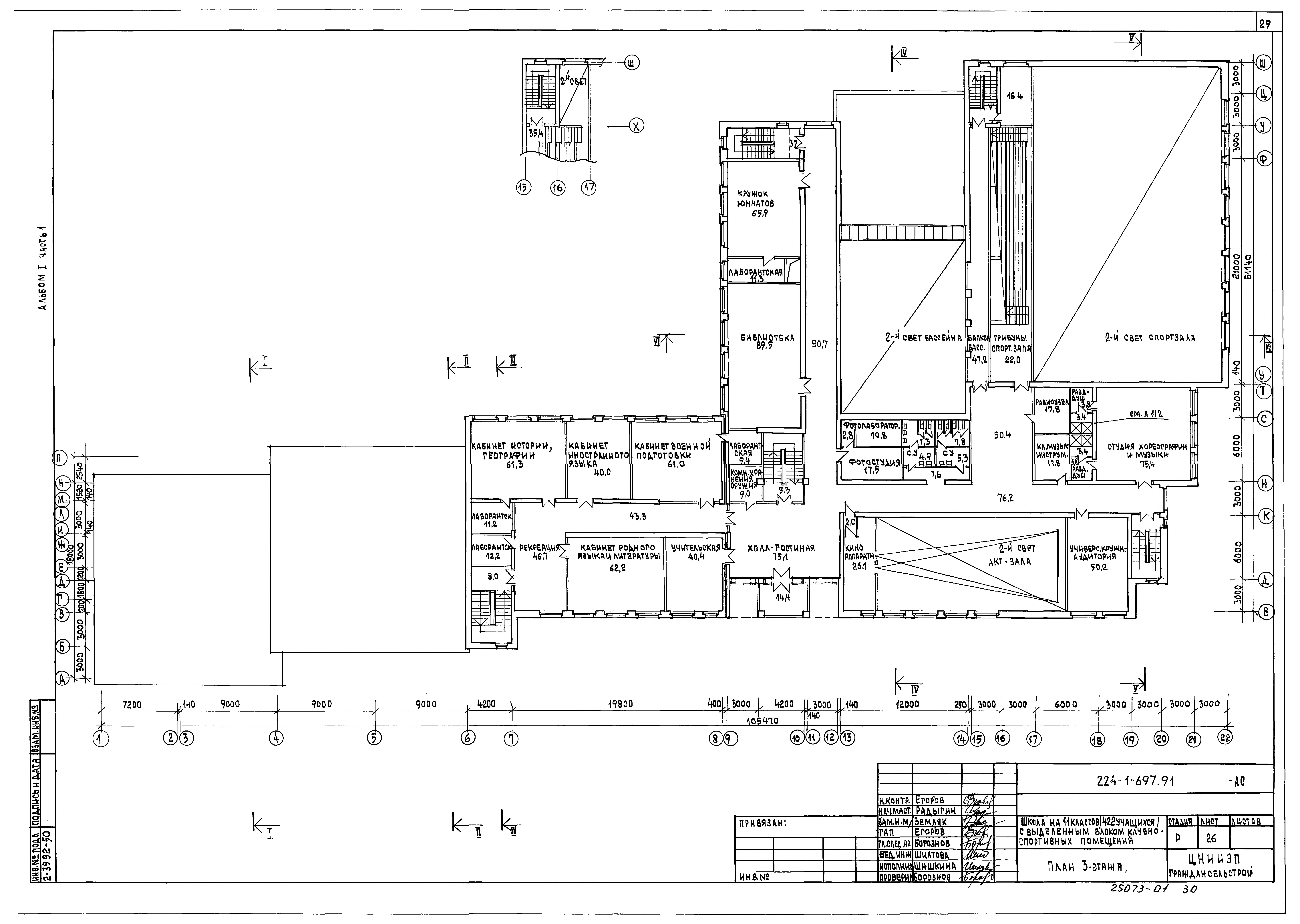
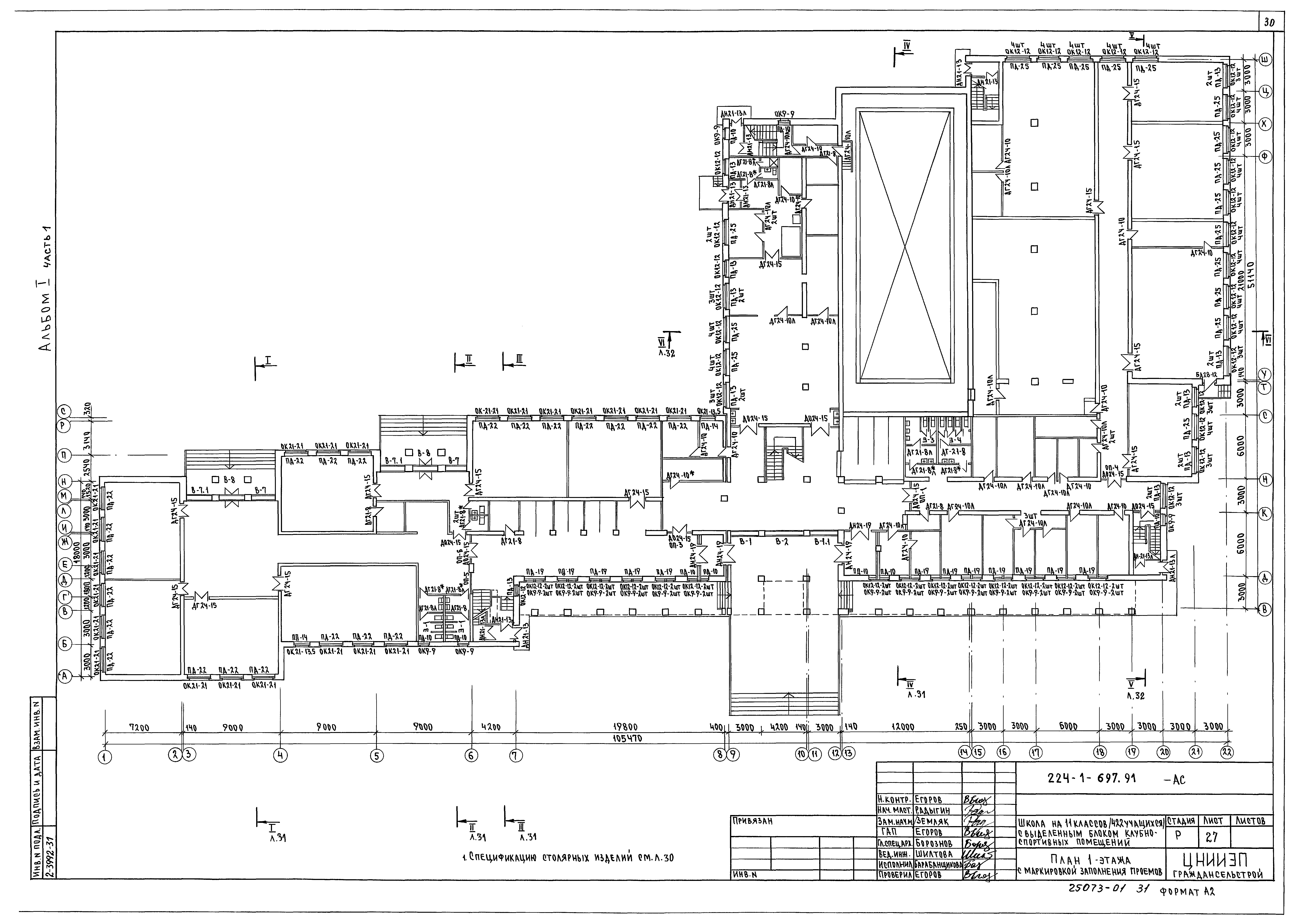
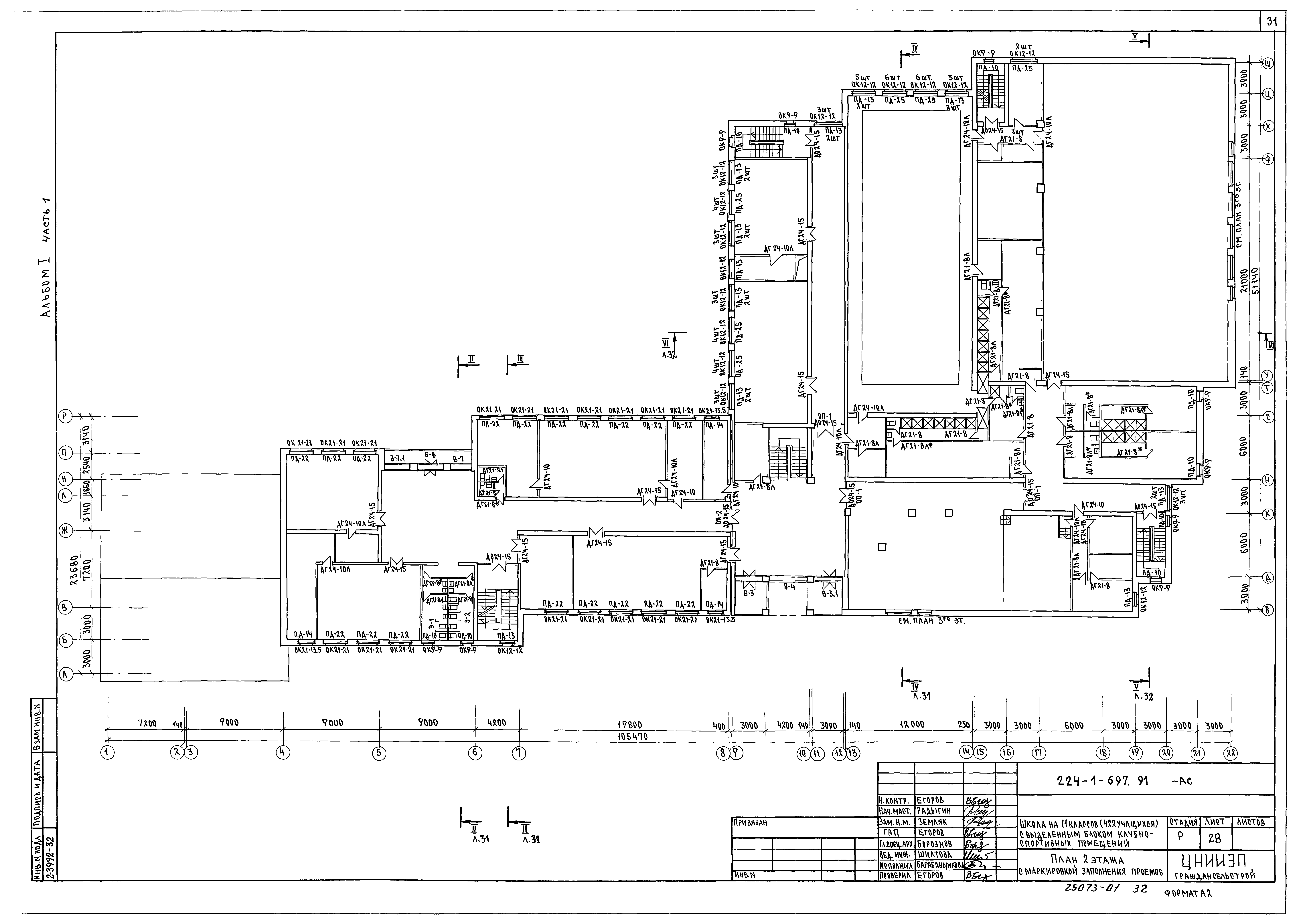
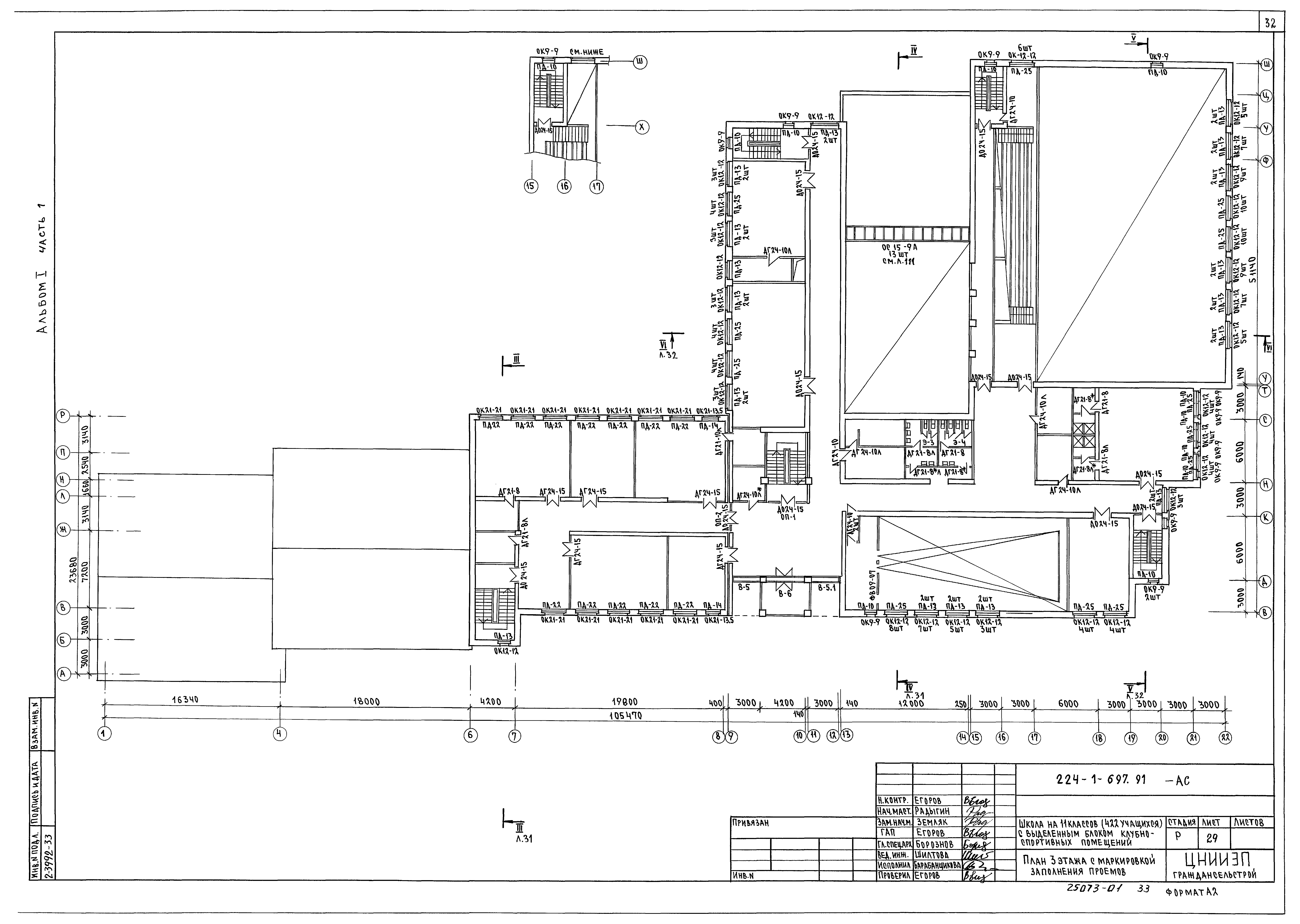
Скачать Типовой проект 224-1-697.91 Альбом I. Часть 1. Архитектурно-строительные чертежиДата актуализации: 01.01.2021 Типовой проект 224-1-697.91
Альбом I. Часть 1. Архитектурно-строительные чертежи| Обозначение: | Типовой проект 224-1-697.91 | | Обозначение англ: | 224-1-697.91 | | Статус: | не определен законодательством | | Название рус.: | Альбом I. Часть 1. Архитектурно-строительные чертежи | | Дата добавления в базу: | 01.02.2020 | | Дата актуализации: | 01.01.2021 | | Дата введения: | 02.08.1991 | | Дата окончания срока действия: | 30.06.2003 | | Разработан: | ЦНИИЭП граждансельстрой
| | Утверждён: | 22.06.1988 Госкомархитектура (182)
| | Издан: | ГП ЦПП (1995 г. )
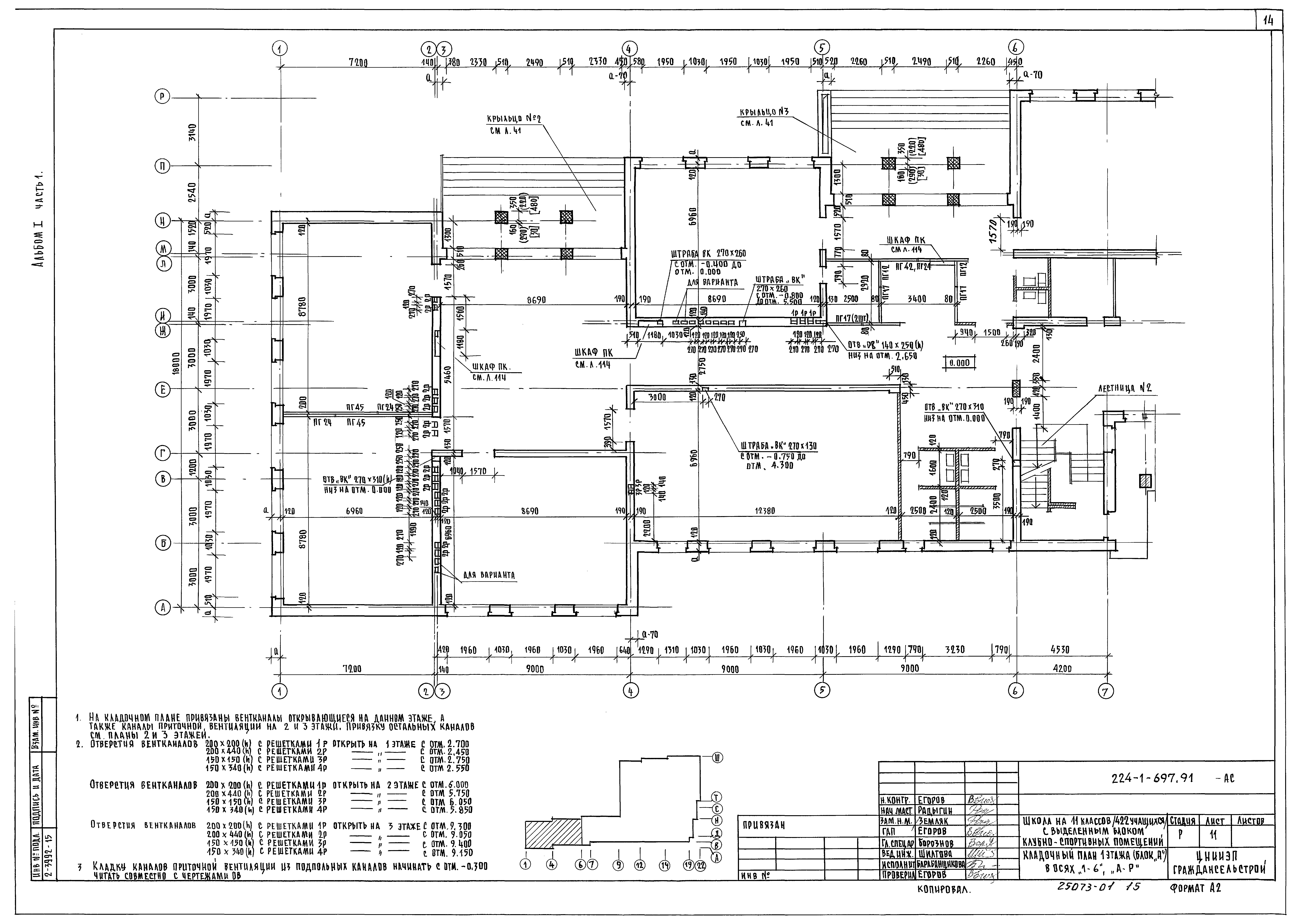
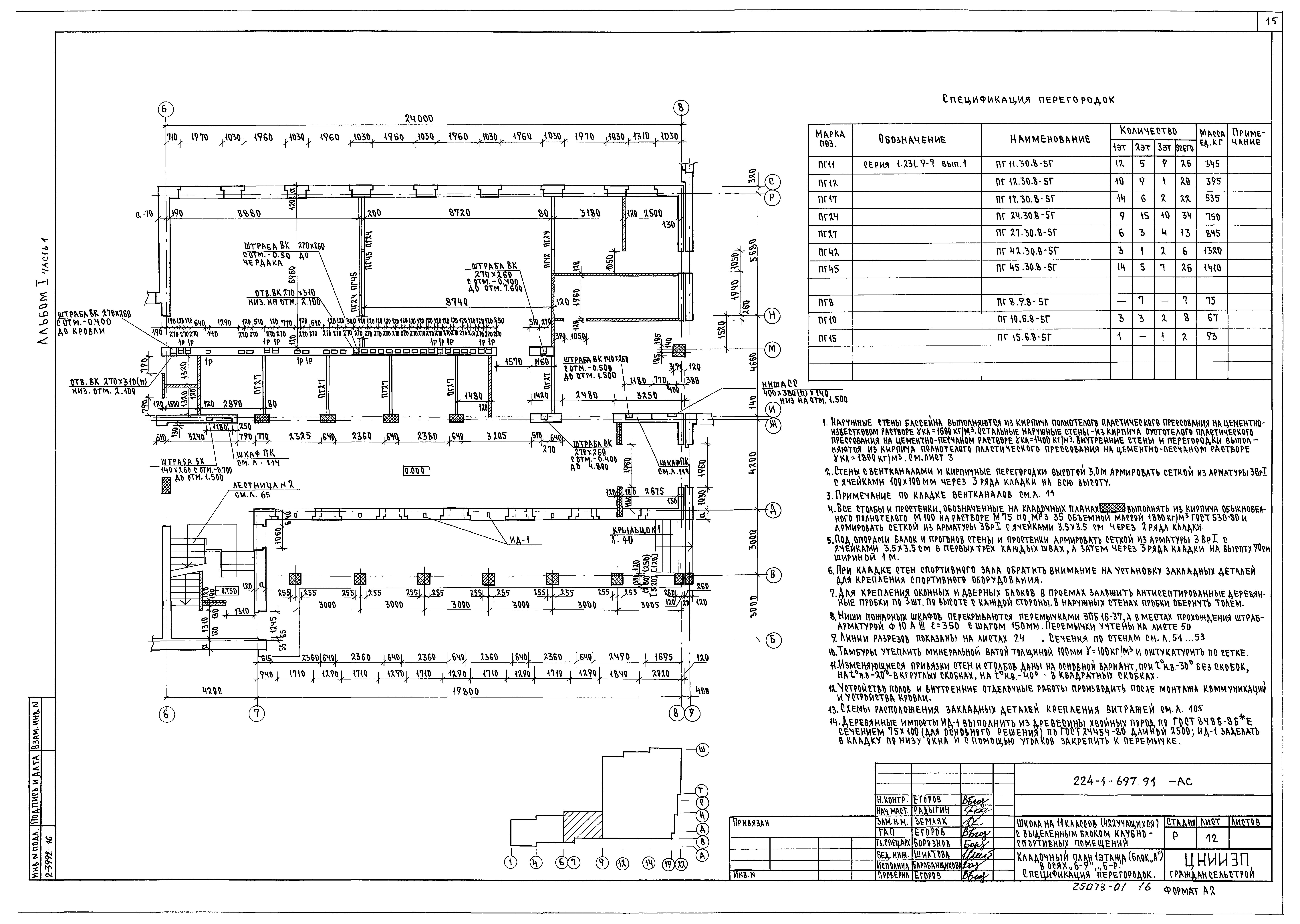
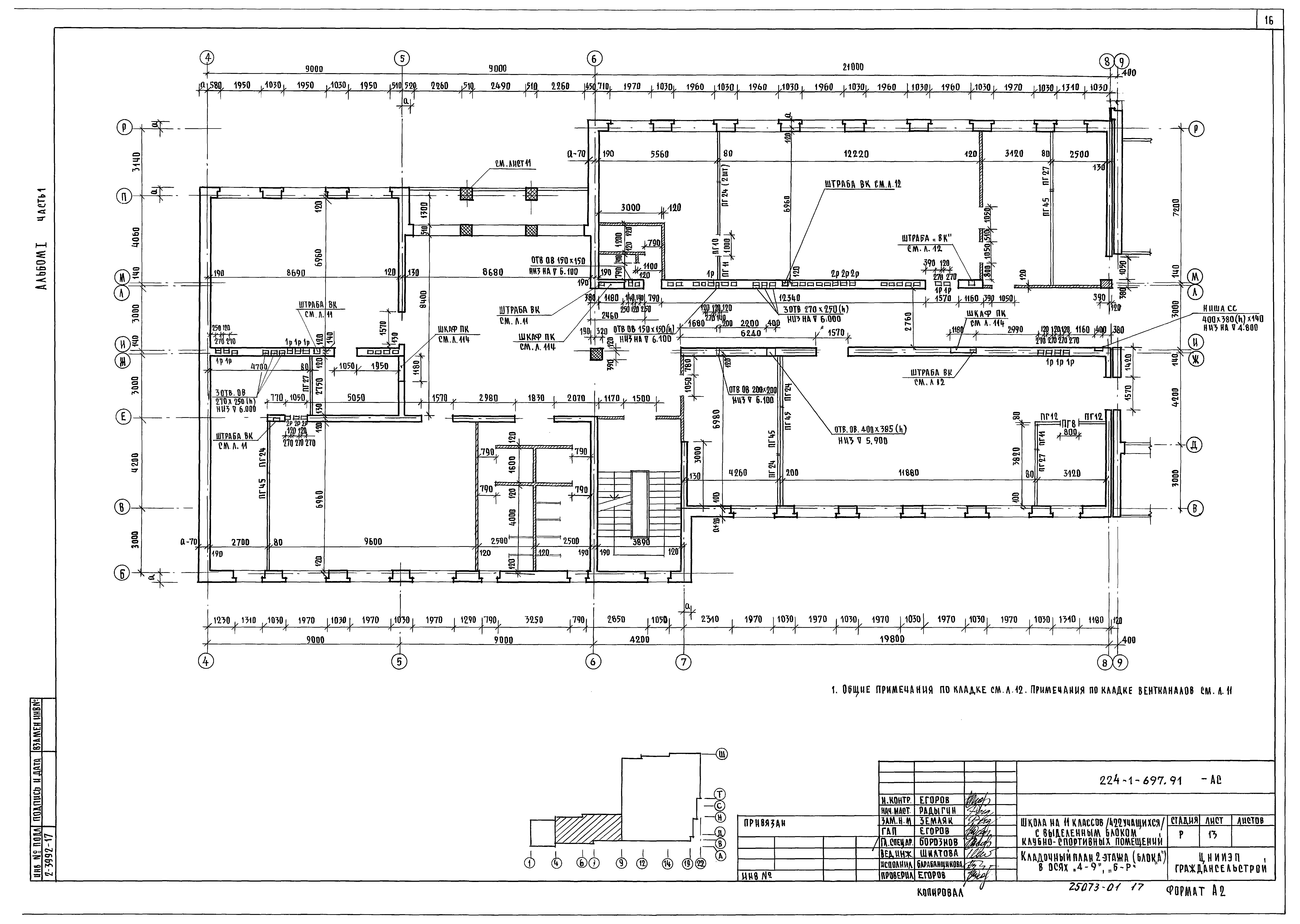
| | Нормативные ссылки: |   ГОСТ 6786-80 «Плиты парапетные железобетонные для производственных зданий. Технические условия»  ГОСТ 8717.0-84 «Ступени железобетонные и бетонные. Технические условия»  ГОСТ 8242-88 «Детали профильные из древесины и древесных материалов для строительства. Технические условия» Серия 1.256.2-2 «Выпуск 1. Ограждения лестниц зданий со стенами из кирпича с высотами этажей 2.8; 3.3; 3.6 и 4.2 м. Рабочие чертежи» Серия 1.038.1-1 «Выпуск 1. Перемычки брусковые для жилых и общественных зданий. Рабочие чертежи» Серия 1.141-1 «Выпуск 64. Предварительно напряженные панели с круглыми пустотами длиной 6280, 5980, 5680, 5380, 5080 и 4780 мм, шириной 1790, 1490, 1190 и 990 мм, армированные стержнями из стали класса А-IV. Метод натяжения - электротермический. Рабочие чертежи» Серия 2.160-9 «Выпуск 1. Указания по применению. Рабочие чертежи» Серия 1.141-1 «Выпуск 60. Панели с круглыми пустотами длиной 4180, 3580, 2980, 2680 и 2380 мм, шириной 1790, 1490, 1190 и 990 мм, армированные стержнями из стали класса А-III и Вр-I. Рабочие чертежи» Серия 2.240-1 «Выпуск 2. Перекрытия кирпичных зданий» Серия 1.231.9-7 «Выпуск 1. Панели перегородок гипсобетонные для общественных зданий со стенами из кирпича с высотами этажей 3,3; 3,6 и 4,2 м. Рабочие чертежи» Серия 1.136.5-23 «Окна и балконные двери деревянные для жилых зданий» Серия 1.236.5-12 «Окна и балконные двери деревянные для общественных зданий» Серия 1.136-10 «Двери деревянные внутренние для жилых и общественных зданий» Серия 1.136.5-19 «Двери деревянные наружные для жилых и общественных зданий» Серия 1.225-2 «Выпуск 11. Прогоны прямоугольного сечения длиной 598, 358, 318 и 278 см, армированные сварными каркасами из стали класса А-III и Ат-III, и предварительно напряженный прогон длиной 598 см, армированный стержнями из стали класса Ат-V. Метод напряжения - электротермический. Опорные плиты» Серия 1.263.2-4 «Выпуск 1. Фермы пролетами 18, 21 и 24 м из прокатных уголков. Чертежи КМ» Серия 1.251.1-4 «Выпуск 1. Лестничные марши для высот этажей 3,3; 3,6 и 4,2 м, шириной 120, 135, 150 и 165 см ребристой конструкции с фризовыми ступенями. Накладные проступи. Рабочие чертежи» Серия 1.241-1 «Выпуск 24. Предварительно напряженные панели длиной 898 см, шириной 99, 119 и 149 см, армированные стержнями из стали класса А-IIIв. Метод натяжения - электротермический. Рабочие чертежи» Серия 1.241-1 «Выпуск 25. Предварительно напряженные панели длиной 1198 см, шириной 99 и 149 см, армированные стержнями из стали класса А-IIIв. Метод натяжения - механический. Рабочие чертежи» Серия 1.241-1 «Выпуск 27. Предварительно напряженные панели длиной 718 см, шириной 119 и 149 см, армированные стержнями из стали класса Ат-V. Метод натяжения - электротермический. Рабочие чертежи» Серия 1.252.1-4 «Выпуск 1. Лестничные площадки ребристой конструкции шириной 120, 135, 150 и 165 см. Рабочие чертежи» Серия 1.255.1-1 «Ступени железобетонные плоские длиной 150 и 210 см для наружных крылец общественных зданий. Рабочие чертежи» Серия 1.236.4-7/84 «Выпуск 2. Двери. Чертежи КМ» Серия 1.238-1 «Выпуск 2. Козырьки длиной 184 см, шириной 155, 220 и 279 см и плиты длиной 129 см. Рабочие чертежи» Серия 1.243.1-4 «Плиты плоские железобетонные длиной 80, 110, 130 и 160 см, армированные сварными сетками из стали класса Вр-I. Рабочие чертежи» Серия 2.260-1 «Выпуск 3. Бесчердачные невентилируемые покрытия кирпичных зданий» ГОСТ 22701.1-77 «Плиты железобетонные ребристые предварительно напряженные размерами 6х3 м для покрытий производственных зданий. Плиты типа ПГ. Конструкция и размеры» Серия 2.460-1 «Выпуск 1. Детали покрытий из асбестоцементных волнистых листов УВ» Серия 2.460-1 «Выпуск 2. Детали покрытий из асбестоцементных волнистых листов ВУ» Серия 2.244-1 «Выпуск 4. Полы»
|
                                                                       
|