Скачать Серия 1.251.1-4 Выпуск 1. Лестничные марши для высот этажей 3,3; 3,6 и 4,2 м, шириной 120, 135, 150 и 165 см ребристой конструкции с фризовыми ступенями. Накладные проступи. Рабочие чертежиДата актуализации: 01.01.2021
|
| Обозначение: | Серия 1.251.1-4 |
| Обозначение англ: | Series 1.251.1-4 |
| Статус: | действует |
| Название рус.: | Выпуск 1. Лестничные марши для высот этажей 3,3; 3,6 и 4,2 м, шириной 120, 135, 150 и 165 см ребристой конструкции с фризовыми ступенями. Накладные проступи. Рабочие чертежи |
| Дата добавления в базу: | 01.09.2013 |
| Дата актуализации: | 01.01.2021 |
| Дата введения: | 01.05.1984 |
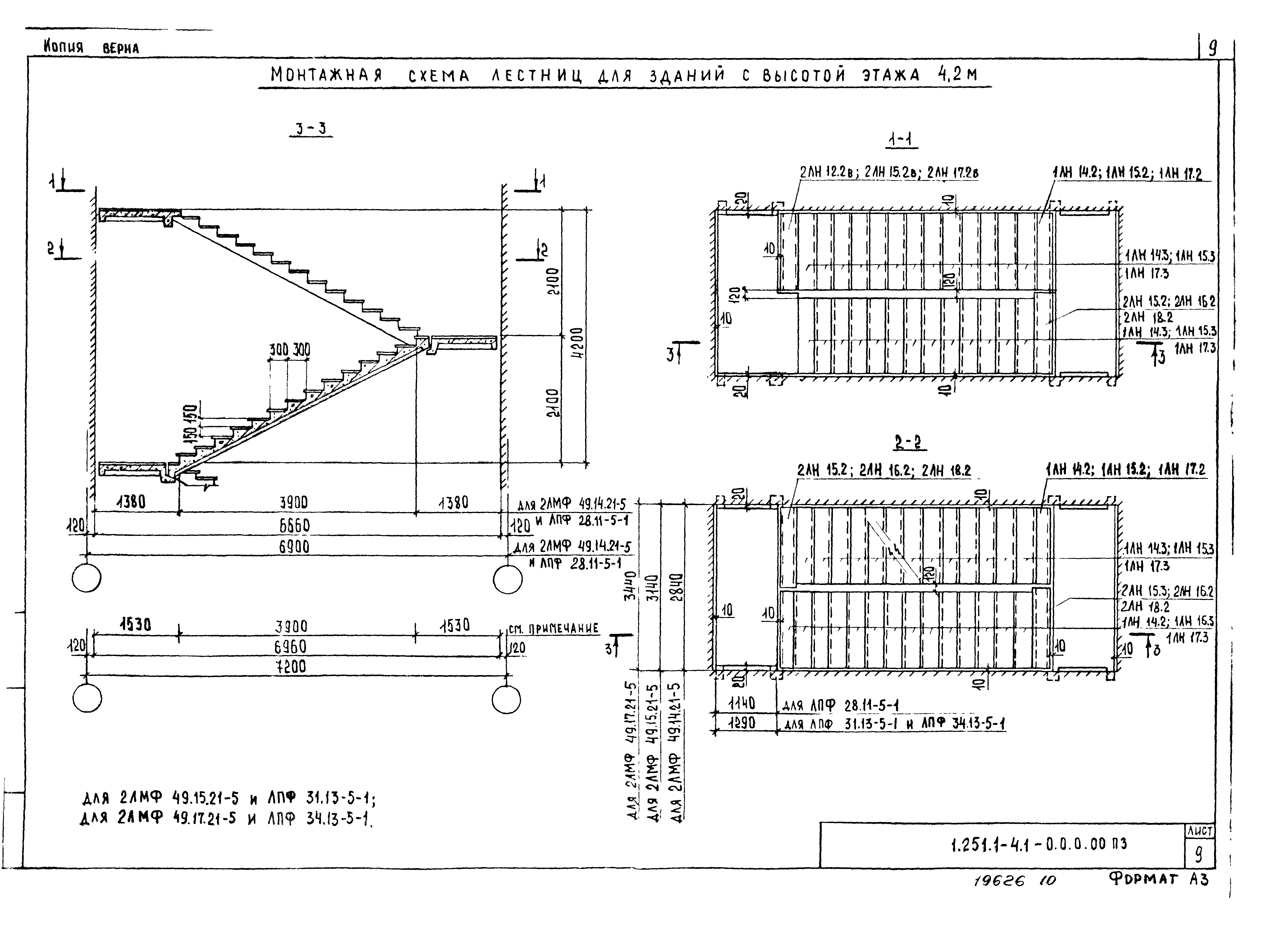
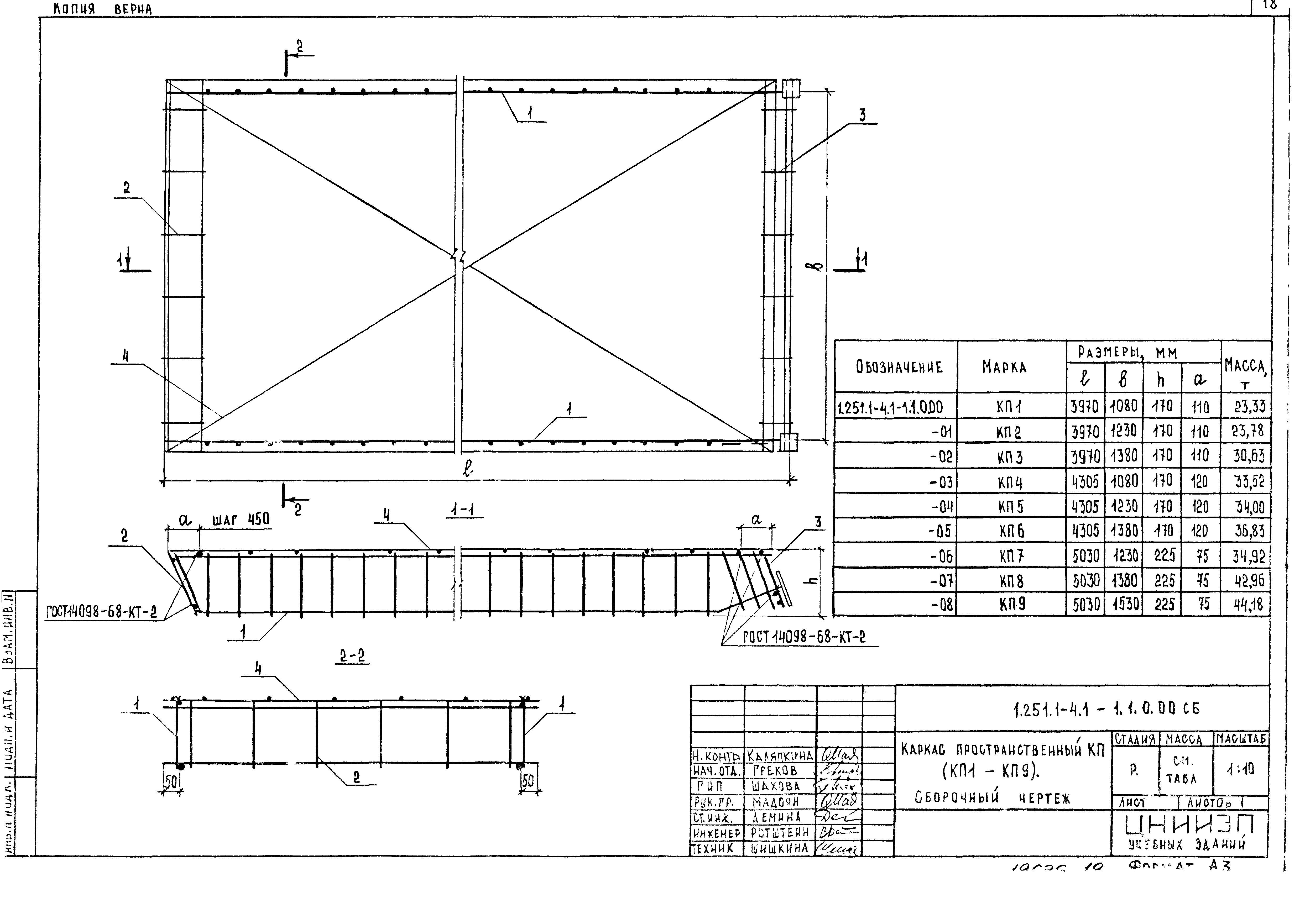
| Оглавление: | 1.251.1-4.1-0.0.0.00ПЗ Пояснительная записка 1.251.1-4.1-1.0.0.00 Лестничный марш 2ЛМФ 1.251.1-4.1-1.0.0.00СБ Лестничный марш 2ЛМФ. Сборочный чертеж 1.251.1-4.1-1.1.0.00 Каркас пространственный КП (КП1 - КП9) 1.251.1-4.1-1.1.0.00СБ Каркас пространственный КП (КП1 - КП9). Сборочный чертеж 1.251.1-4.1-1.1.1.00 Каркас плоский КР (КP1-КP5) 1.251.1-4.1-1.1.1.00СБ Каркас плоский КР (КP1-КP5). Сборочный чертеж 1.251.1-4.1-1.1.2.00 Каркас плоский КР (КР6-КP11) 1.251.1-4.1-1.1.2.00 СБ Каркас плоский КР (КР6-КP11). Сборочный чертеж 1.251.1-4.1-1.1.3.00 Каркас плоский КР (КР12-КP17) 1.251.1-4.1-1.1.3.00 СБ Каркас плоский КР (КР12-КP17). Сборочный чертеж 1.251.1-4.1-1.0.1.00 Изделие закладное МН1 1.251.1-4.1-1.1.4.00 Сетка арматурная С (С1-С9) 1.251.1-4.1-1.1.4.00СБ Сетка арматурная С (С1-С9). Сборочный чертеж 1.251.1-4.1-2.0.0.00 Накладная проступь 1ЛН 1.251.1-4.1-2.0.0.00СБ Накладная проступь 1ЛН. Сборочный чертеж 1.251.1-4.1-3.0.0.00 Накладная проступь 2ЛН 1.251.1-4.1-3.0.0.00СБ Накладная проступь 2ЛН. Сборочный чертеж 1.251.1-4.1-2.0.1.00 Каркас плоский КР (КP18-КP33) 1.251.1-4.1-2.0.1.00СБ Каркас плоский КР (КP18-КP33). Сборочный чертеж 1.251.1-4.1-1.0.0.01 Петля распалубочная П1 1.251.1-4.1-1.0.0.00РМ Ведомость расхода материалов 1.251.1-4.1-1.0.0.00ВМС Ведомость расхода стали |
| Разработан: | ЦНИИЭП учебных зданий Госгражданстроя |
| Утверждён: | 29.03.1984 Госгражданстрой (Gosgrazhdanstroy 99) |
| Издан: | ЦИТП Госстроя СССР (CITP, Gosstroy (USSR) 1984 г. ) |
| Заменяет собой: |
|



















































