Скачать Серия 1.256.2-2 Выпуск 1. Ограждения лестниц зданий со стенами из кирпича с высотами этажей 2.8; 3.3; 3.6 и 4.2 м. Рабочие чертежиДата актуализации: 01.01.2021
|
| Обозначение: | Серия 1.256.2-2 |
| Обозначение англ: | Series 1.256.2-2 |
| Статус: | не определен законодательством |
| Название рус.: | Выпуск 1. Ограждения лестниц зданий со стенами из кирпича с высотами этажей 2.8; 3.3; 3.6 и 4.2 м. Рабочие чертежи |
| Дата добавления в базу: | 01.09.2013 |
| Дата актуализации: | 01.01.2021 |
| Дата введения: | 01.04.1987 |
| Дата окончания срока действия: | 30.06.2003 |
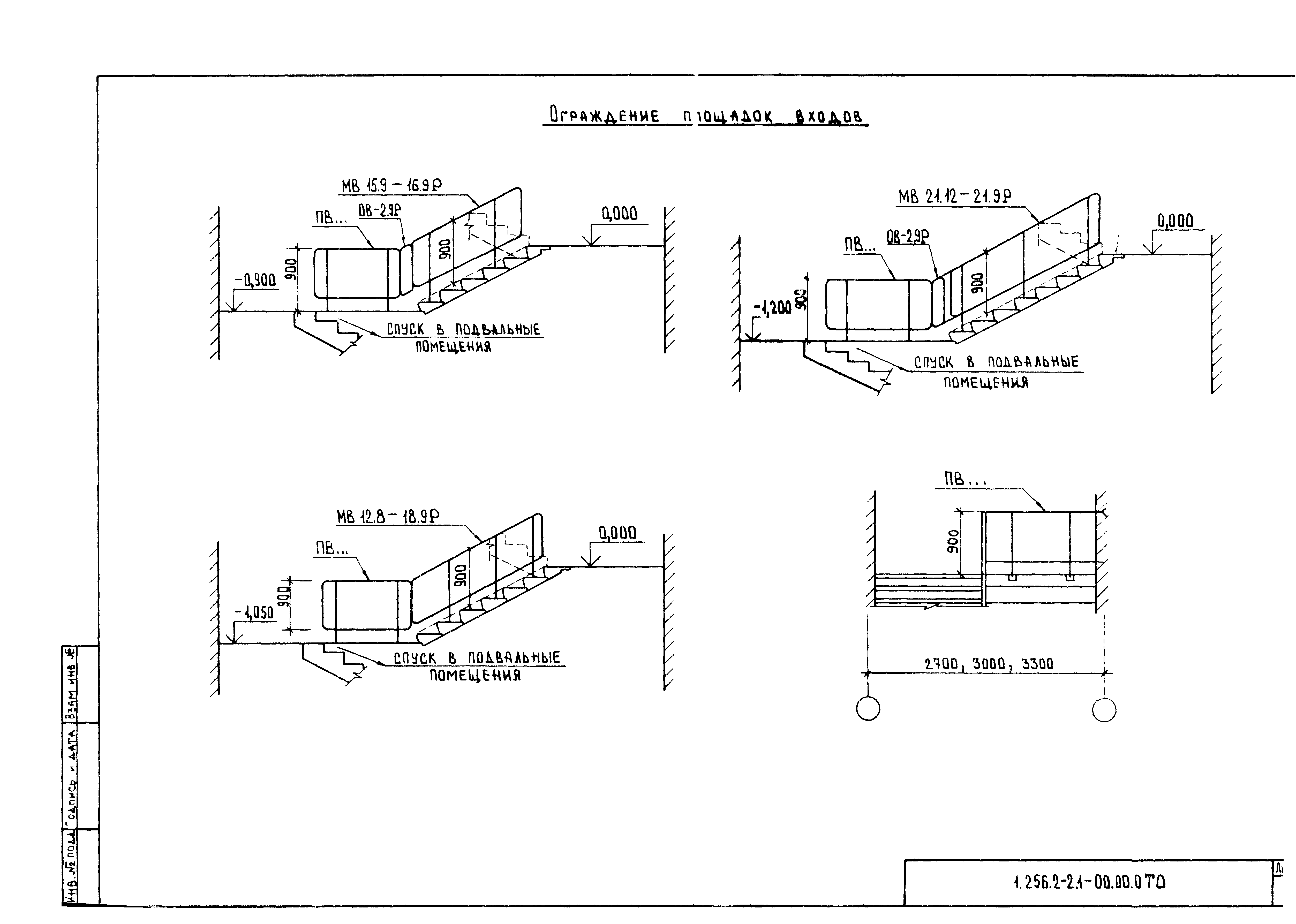
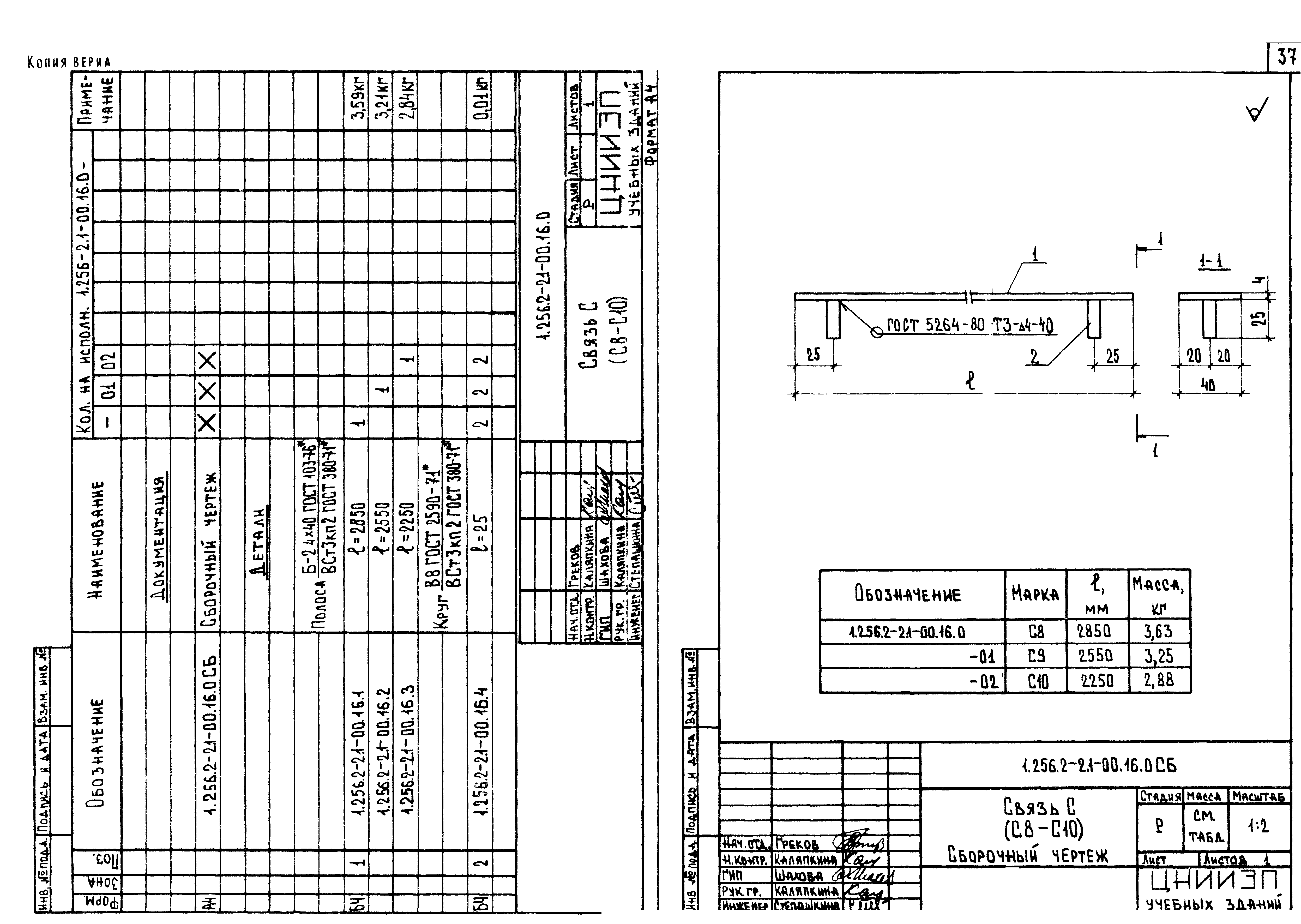
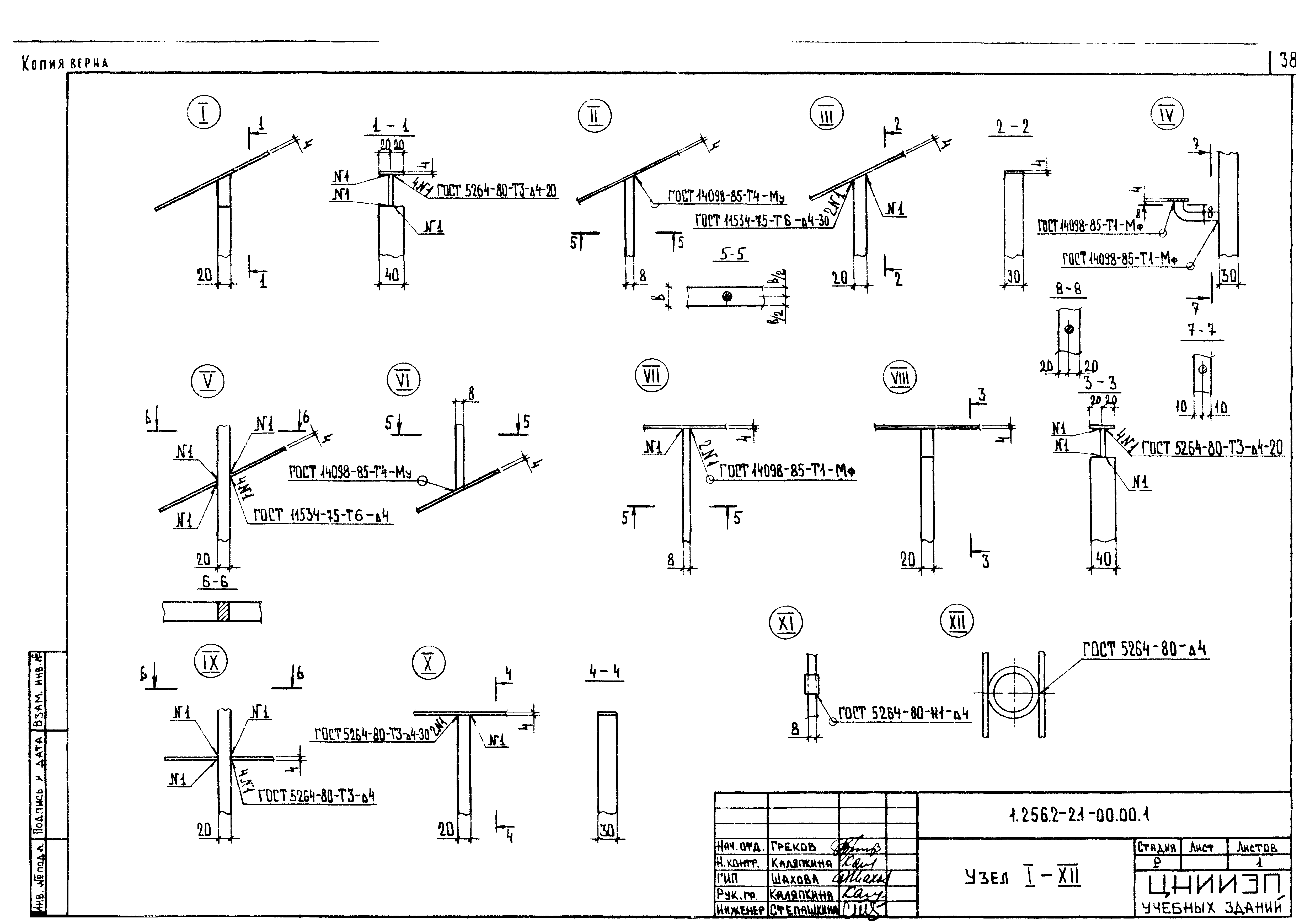
| Оглавление: | 1.256.2-2.1-00.00.0ТО Техническое описание 1.256.2-2.1-00.00.0ТУ Техническое условия 1.256.2-2.1-01.00.0 Ограждение марша МВ 21.12-21.9Р, МВ 30.17-30.9Р, МВ 33.18-33.9Р, МВ 39.17-39.9Р 1.256.2-2.1-01.00.0СБ Ограждение марша МВ 21.12-21.9Р, МВ 30.17-30.9Р, МВ 33.18-33.9Р, МВ 39.17-39.9Р. Сборочный чертеж 1.256.2-2.1-02.00.0 Ограждение марша МВ 6.5-6.Р, МВ 12.8-18.9Р, МВ 15.9-16.9 1.256.2-2.1-02.00.0СБ Ограждение марша МВ 6.5-6.Р, МВ 12.8-18.9Р, МВ 15.9-16.9. Сборочный чертеж 1.256.2-2.1-03.00.0 Ограждение марша МД 24.14-24.12.Р, МД 30.17-30.12Р 1.256.2-2.1-03.00.0СБ Ограждение марша МД 24.14-24.12.Р, МД 30.17-30.12Р. Сборочный чертеж 1.256.2-2.1-04.00.0 Ограждение площадки ПВ-21.9Р, ПВ-30.9Р 1.256.2-2.1-04.00.0СБ Ограждение площадки ПВ-21.9Р, ПВ-30.9Р. Сборочный чертеж 1.256.2-2.1-05.00.0 Ограждение площадки ПВ-12.9Р, ПВ-15.9Р, ПВ-18.9Р 1.256.2-2.1-05.00.0СБ Ограждение площадки ПВ-12.9Р, ПВ-15.9Р, ПВ-18.9Р. Сборочный чертеж 1.256.2-2.1-06.00.0 Ограждение площадки ПВ-14.9Р, ПВ-16.9Р, ПВ-17.9Р 1.256.2-2.1-06.00.0СБ Ограждение площадки ПВ-14.9Р, ПВ-16.9Р, ПВ-17.9Р. Сборочный чертеж 1.256.2-2.1-07.00.0 Ограждение площадки ПД-12.12Р, ПД-15.12Р, ПД-16.12Р 1.256.2-2.1-07.00.0СБ Ограждение площадки ПД-12.12Р, ПД-15.12Р, ПД-16.12Р. Сборочный чертеж 1.256.2-2.1-08.00.0 Ограждение окна ОК-23.9Р, ОК-29.9Р, ОК-29.9Р 1.256.2-2.1-08.00.0СБ Ограждение окна ОК-23.9Р, ОК-29.9Р, ОК-29.9Р. Сборочный чертеж 1.256.2-2.1-09.00.0 Ограждение-вставка ОВ-6.9Р, ОВ-3.9Р, ОВ-2.9Р 1.256.2-2.1-09.00.0СБ Ограждение-вставка ОВ-6.9Р, ОВ-3.9Р, ОВ-2.9Р. Сборочный чертеж 1.256.2-2.1-10.00.0 Поручень ПД (ПД-13, ПД-16) 1.256.2-2.1-00.01.0 Вставка В (В1-В5) 1.256.2-2.1-00.02.0 Каркас К (К1-К7) 1.256.2-2.1-00.03.0 Каркас К (К8, К9) 1.256.2-2.1-00.04.0 Каркас К (К10-К14) 1.256.2-2.1-00.05.0 Каркас К (К15-К17) 1.256.2-2.1-00.06.0 Каркас К (К18-К20) 1.256.2-2.1-00.07.0 Каркас К (К21-К23) 1.256.2-2.1-00.08.0 Стойка Т1 1.256.2-2.1-00.09.0 Стойка Т2 1.256.2-2.1-00.10.0 Стойка Т 1.256.2-2.1-00.11.0 Кронштейн К1 1.256.2-2.1-00.12.0 Связь (С1, С2) 1.256.2-2.1-00.13.0 Связь (С3 - С7) 1.256.2-2.1-00.14.0 Кронштейн К2 1.256.2-2.1-00.15.0 Поручень П (П1, П2) 1.256.2-2.1-00.16.0 Связь (С8 - С10) 1.256.2-2.1-00.16.0СБ Связь (С8 - С10). Сборочный чертеж 1.256.2-2.1-00.00.1 Узел I-XII 1.256.2-2.1-00.10.0РС Ведомость расхода стали 1.256.2-2.1-00.10.0РМ Ведомость расхода материалов |
| Разработан: | ЦНИИЭП учебных зданий Госгражданстроя |
| Утверждён: | 26.02.1987 Госгражданстрой (Gosgrazhdanstroy 43) |
| Издан: | ЦИТП Госстроя СССР (CITP, Gosstroy (USSR) 1987 г. ) |















































