Скачать Серия 1.231.9-7 Выпуск 1. Панели перегородок гипсобетонные для общественных зданий со стенами из кирпича с высотами этажей 3,3; 3,6 и 4,2 м. Рабочие чертежиДата актуализации: 01.01.2021
|
| Обозначение: | Серия 1.231.9-7 |
| Обозначение англ: | Series 1.231.9-7 |
| Статус: | не определен законодательством |
| Название рус.: | Выпуск 1. Панели перегородок гипсобетонные для общественных зданий со стенами из кирпича с высотами этажей 3,3; 3,6 и 4,2 м. Рабочие чертежи |
| Дата добавления в базу: | 01.09.2013 |
| Дата актуализации: | 01.01.2021 |
| Дата введения: | 01.08.1982 |
| Дата окончания срока действия: | 30.06.2003 |
| Область применения: | Настоящие рабочие чертежи гипсобетонных панелей перегородок предназначены для устройства ненесущих перегородок в помещениях с сухим, нормальным и мокрым влажностным режимом помещений жилых и общественных зданий со стенами из кирпича, возводимых в обычных условиях строительства, в I - IV ветровых районах, в помещениях с неагрессивной средой |
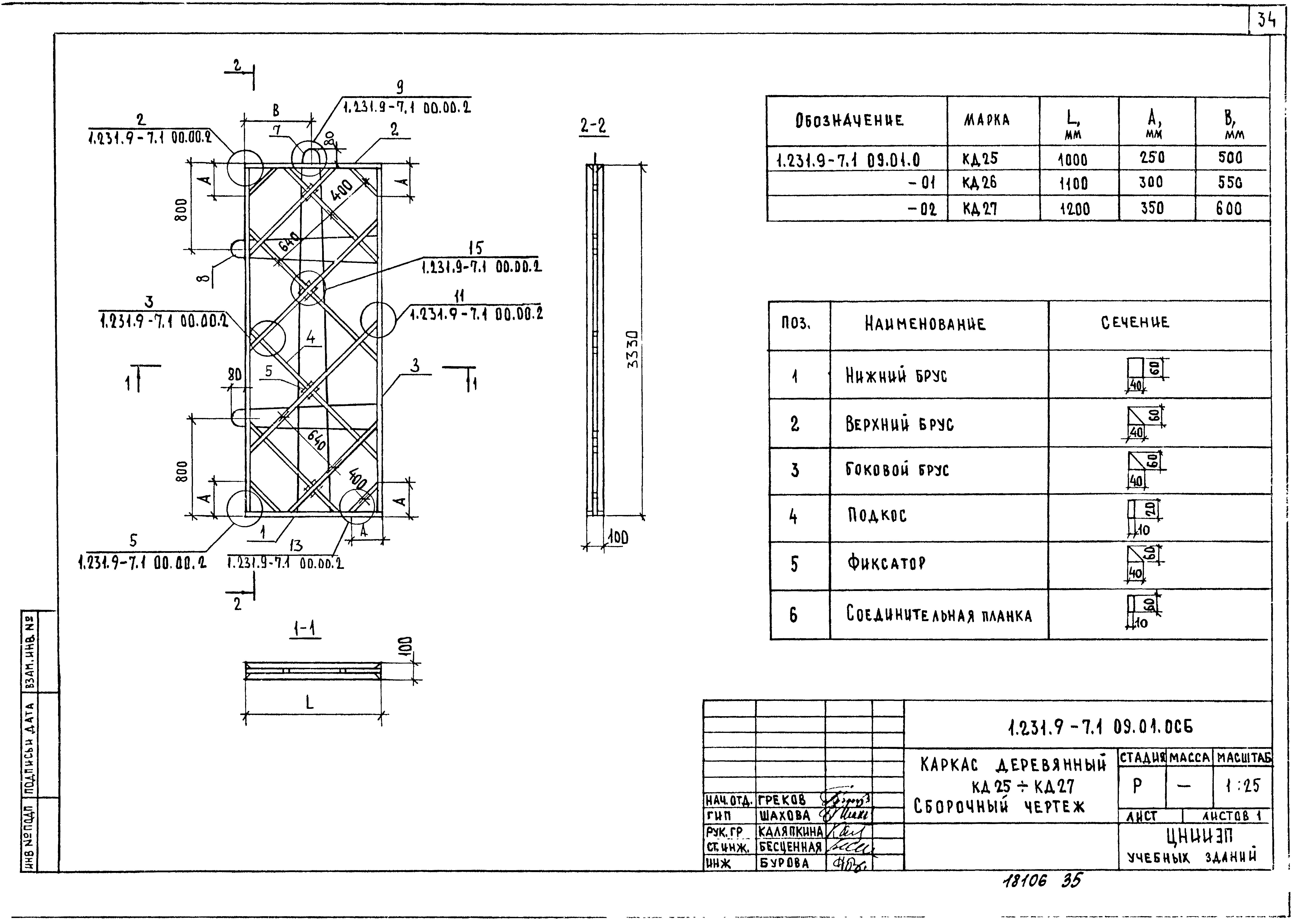
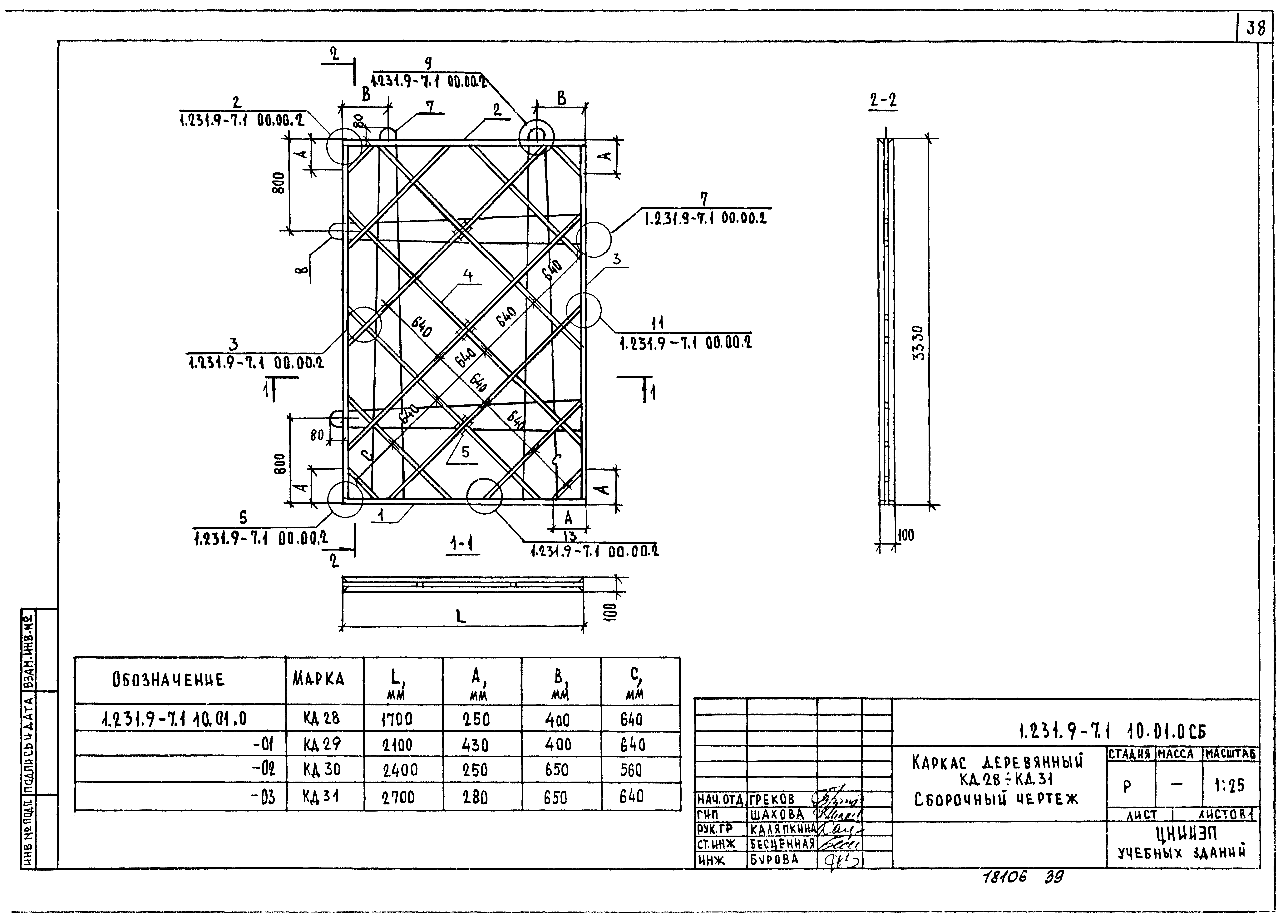
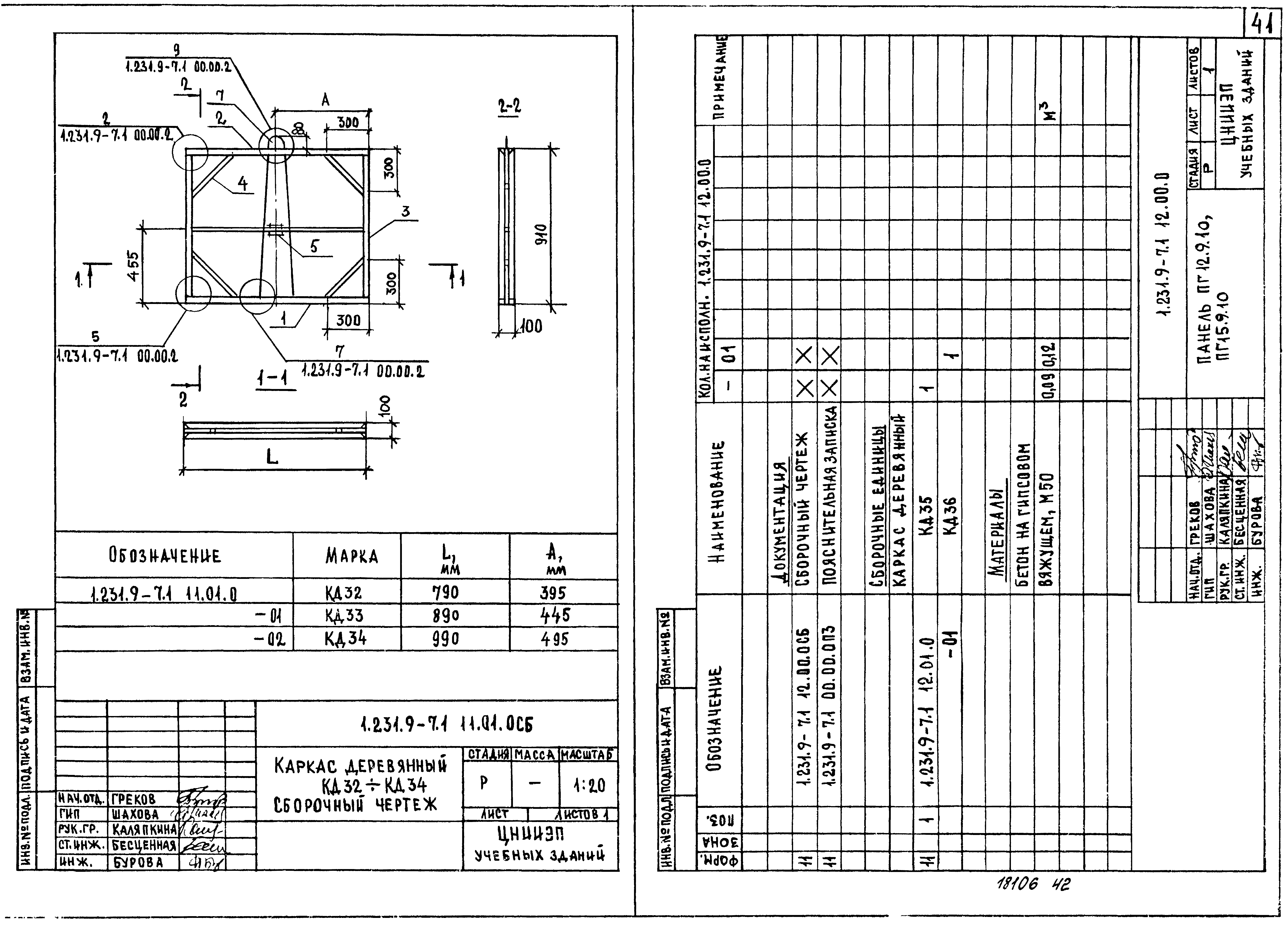
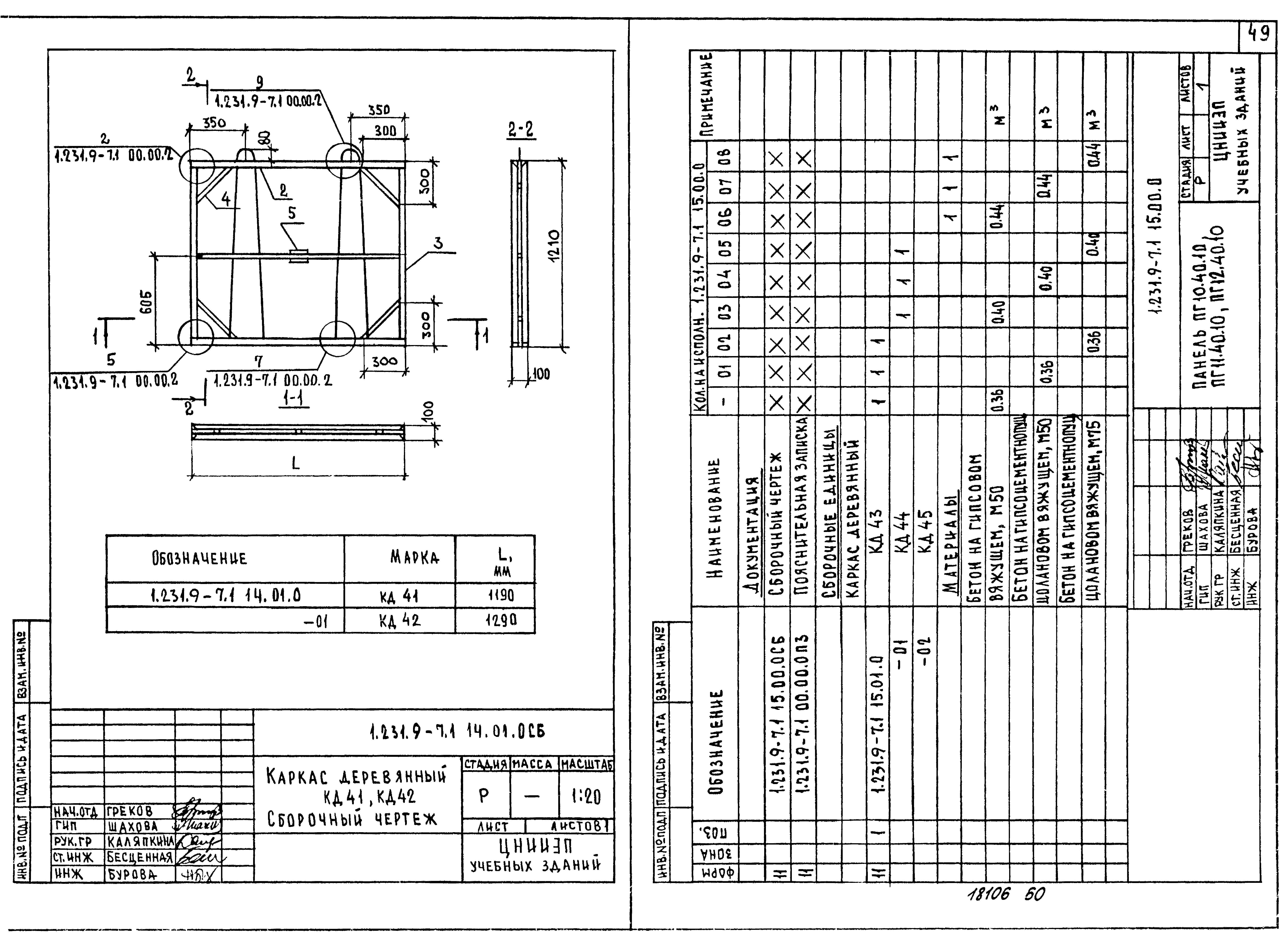
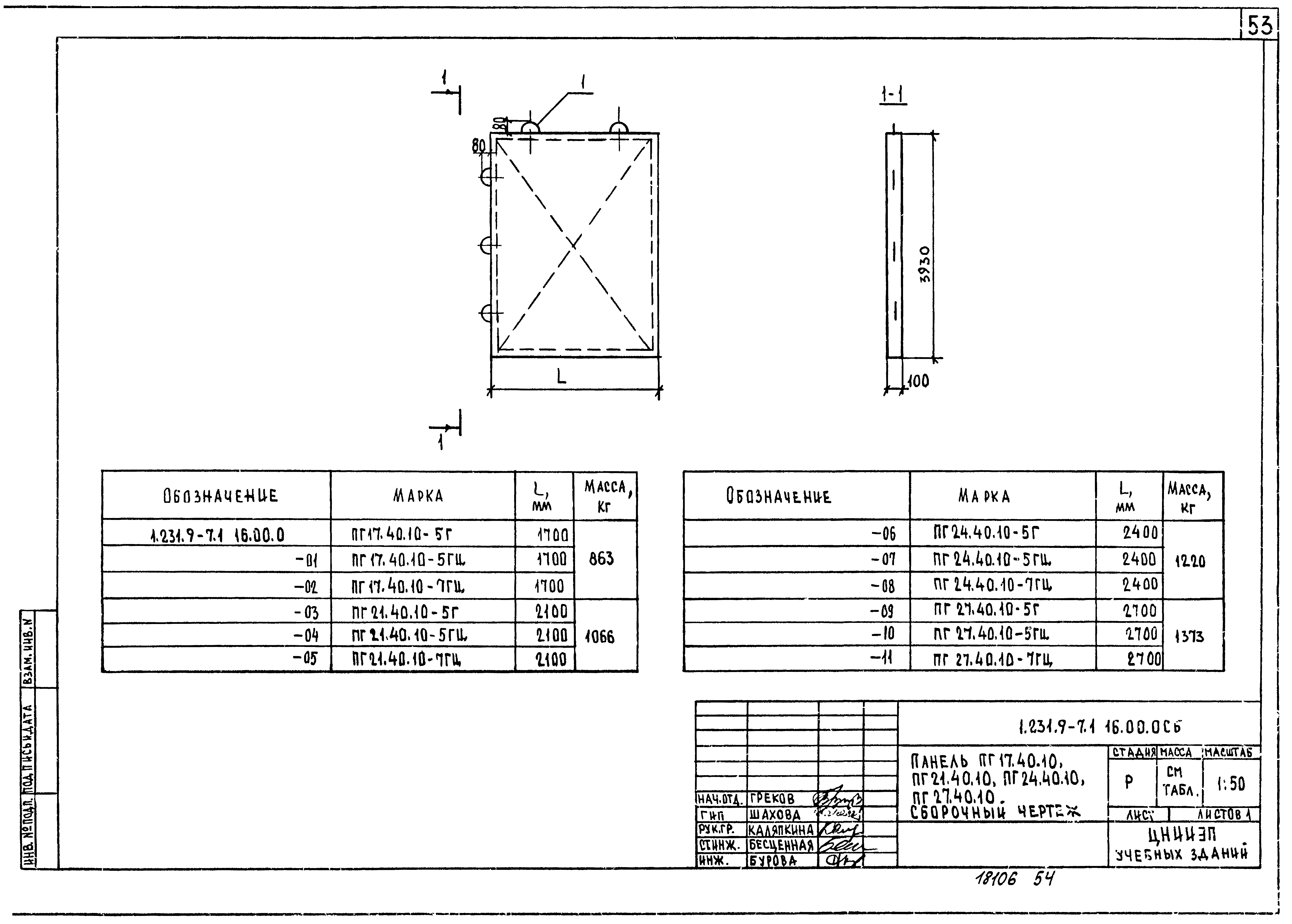
| Оглавление: | Содержание 1.231.9-7.1-00.00.0ПЗ Пояснительная записка 1.231.9-7.1-01.00.0 Панель ПГ 10.30.8; ПГ 11.30.8; ПГ 12.30.8 1.231.9-7.1-01.00.0 СБ Панель ПГ 10.30.8; ПГ 11.30.8; ПГ 12.30.8. Сборочный чертеж 1.231.9-7.1-01.01.0 Каркас деревянный КД1/ КД3 1.231.9-7.1-01.01.0 СБ Каркас деревянный КД1/ КД3. Сборочный чертеж 1.231.9-7.1-02.00.0 Панель ПГ 17.30.8; ПГ 21.30.8; ПГ 24.30.8; ПГ 27.30.8 1.231.9-7.1-02.00.0 СБ Панель ПГ 17.30.8; ПГ 21.30.8; ПГ 24.30.8; ПГ 27.30.8. Сборочный чертеж 1.231.9-7.1-02.01.0 Каркас деревянный КД4/ КД7 1.231.9-7.1-02.01.0 СБ Каркас деревянный КД4/ КД7. Сборочный чертеж 1.231.9-7.1-03.00.0 Панель ПГ 42.30.8; ПГ 45.30.8 1.231.9-7.1-03.00.0 СБ Панель ПГ 42.30.8; ПГ 45.30.8. Сборочный чертеж 1.231.9-7.1-03.01.0 Каркас деревянный КД8, КД9 1.231.9-7.1-03.01.0 СБ Каркас деревянный КД8, КД9. Сборочный чертеж 1.231.9-7.1-04.00.0 Панель ПГ 48.30.8; ПГ 54.30.8; ПГ 57.30.8; ПГ 60.30.8 1.231.9-7.1-04.00.0 СБ Панель ПГ 48.30.8; ПГ 54.30.8; ПГ 57.30.8; ПГ 60.30.8. Сборочный чертеж 1.231.9-7.1-04.01.0 Каркас деревянный КД10/ КД13 1.231.9-7.1-04.01.0 СБ Каркас деревянный КД10/ КД13. Сборочный чертеж 1.231.9-7.1-05.00.0 Панель ПГ 8.6.8; ПГ 9.6.8; ПГ 10.6.8; ПГ 12.6.8 1.231.9-7.1-05.00.0 СБ Панель ПГ 8.6.8; ПГ 9.6.8; ПГ 10.6.8; ПГ 12.6.8. Сборочный чертеж 1.231.9-7.1-05.01.0 Каркас деревянный КД14/ КД17 1.231.9-7.1-05.01.0 СБ Каркас деревянный КД14/ КД17. Сборочный чертеж 1.231.9-7.1-06.00.0 Панель ПГ 15.6.8-5Г 1.231.9-7.1-06.00.0 СБ Панель ПГ 15.6.8-5Г. Сборочный чертеж 1.231.9-7.1-06.01.0 Каркас деревянный КД18 1.231.9-7.1-06.01.0 СБ Каркас деревянный КД18. Сборочный чертеж 1.231.9-7.1-07.00.0 Панель ПГ 7.9.8; ПГ 8.9.8; ПГ 10.9.8; ПГ 12.9.8; ПГ 9.9.8 1.231.9-7.1-07.00.0 СБ Панель ПГ 7.9.8; ПГ 8.9.8; ПГ 10.9.8; ПГ 12.9.8; ПГ 9.9.8. Сборочный чертеж 1.231.9-7.1-07.01.0 Каркас деревянный КД19/ КД23 1.231.9-7.1-07.01.0 СБ Каркас деревянный КД19/ КД23. Сборочный чертеж 1.231.9-7.1-08.00.0 Панель ПГ 13.9.8-5Г 1.231.9-7.1-08.00.0 СБ Панель ПГ 13.9.8-5Г. Сборочный чертеж 1.231.9-7.1-08.01.0 Каркас деревянный КД24 1.231.9-7.1-08.01.0 СБ Каркас деревянный КД24 Сборочный чертеж 1.231.9-7.1-09.00.0 Панель ПГ 10.33.10; ПГ 11.33.10; ПГ 12.33.10 1.231.9-7.1-09.00.0 СБ Панель ПГ 10.33.10; ПГ 11.33.10; ПГ 12.33.10. Сборочный чертеж 1.231.9-7.1-09.01.0 Каркас деревянный КД25/ КД27 1.231.9-7.1-09.01.0 СБ Каркас деревянный КД25/ КД27. Сборочный чертеж 1.231.9-7.1-10.00.0 Панель ПГ 17.33.10; ПГ 21.33.10; ПГ 21.33.10; ПГ 27.33.10 1.231.9-7.1-10.00.0 СБ Панель ПГ 17.33.10; ПГ 21.33.10; ПГ 21.33.10; ПГ 27.33.10. Сборочный чертеж 1.231.9-7.1-10.01.0 Каркас деревянный КД28/ КД31 1.231.9-7.1-10.01.0 СБ Каркас деревянный КД28/ КД31. Сборочный чертеж 1.231.9-7.1-11.00.0 Панель ПГ 8.9.10; ПГ 9.9.10; ПГ 10.9.10 1.231.9-7.1-11.00.0 СБ Панель ПГ 8.9.10; ПГ 9.9.10; ПГ 10.9.10. Сборочный чертеж 1.231.9-7.1-11.01.0 Каркас деревянный КД32/ КД34 1.231.9-7.1-11.01.0 СБ Каркас деревянный КД32/ КД34. Сборочный чертеж 1.231.9-7.1-12.00.0 Панель ПГ 12.9.10; ПГ 15.9.10 1.231.9-7.1-12.00.0 СБ Панель ПГ 12.9.10; ПГ 15.9.10. Сборочный чертеж 1.231.9-7.1-12.01.0 Каркас деревянный КД35, КД36 1.231.9-7.1-12.01.0 СБ Каркас деревянный КД35, КД36. Сборочный чертеж 1.231.9-7.1-13.00.0 Панель ПГ 7.12.10; ПГ 8.12.10; ПГ 9.12.10; ПГ 10.12.10 1.231.9-7.1-13.00.0 СБ Панель ПГ 7.12.10; ПГ 8.12.10; ПГ 9.12.10; ПГ 10.12.10. Сборочный чертеж 1.231.9-7.1-14.01.0 Каркас деревянный КД37/ КД40 1.231.9-7.1-14.01.0 СБ Каркас деревянный КД37/ КД40. Сборочный чертеж 1.231.9-7.1-14.00.0 Панель ПГ 12.12.10; ПГ 13.12.10 1.231.9-7.1-14.00.0 СБ Панель ПГ 12.12.10; ПГ 13.12.10. Сборочный чертеж 1.231.9-7.1-14.01.0 Каркас деревянный КД41, КД42 1.231.9-7.1-14.01.0 СБ Каркас деревянный КД41, КД42. Сборочный чертеж 1.231.9-7.1-15.00.0 Панель ПГ 10.40.10; ПГ 11.40.10; ПГ 12.40.10 1.231.9-7.1-15.00.0 СБ Панель ПГ 10.40.10; ПГ 11.40.10; ПГ 12.40.10. Сборочный чертеж 1.231.9-7.1-15.01.0 Каркас деревянный КД43/ КД45 1.231.9-7.1-15.01.0 СБ Каркас деревянный КД43/ КД45. Сборочный чертеж 1.231.9-7.1-16.00.0 Панель ПГ 17.40.10; ПГ 21.40.10; ПГ 24.40.10; ПГ 27.40.10 1.231.9-7.1-16.00.0 СБ Панель ПГ 17.40.10; ПГ 21.40.10; ПГ 24.40.10; ПГ 27.40.10. Сборочный чертеж 1.231.9-7.1-16.01.0 Каркас деревянный КД46/ КД49 1.231.9-7.1-16.01.0 СБ Каркас деревянный КД46/ КД49. Сборочный чертеж 1.231.9-7.1-17.00.0 Панель ПГ 8.15.10; ПГ 9.15.10; ПГ 10.15.10 1.231.9-7.1-17.00.0 СБ Панель ПГ 8.15.10; ПГ 9.15.10; ПГ 10.15.10. Сборочный чертеж 1.231.9-7.1-17.01.0 Каркас деревянный КД50/ КД52 1.231.9-7.1-17.01.0 СБ Каркас деревянный КД50/ КД52. Сборочный чертеж 1.231.9-7.1-18.00.0 Панель ПГ 12.15.10; ПГ 15.15.10 1.231.9-7.1-18.00.0 СБ Панель ПГ 12.15.10; ПГ 15.15.10. Сборочный чертеж 1.231.9-7.1-18.01.0 Каркас деревянный КД53, КД54 1.231.9-7.1-18.01.0 СБ Каркас деревянный КД53, КД54. Сборочный чертеж 1.231.9-7.1-19.00.0 Панель ПГ 7.18.10; ПГ 8.18.10; ПГ 9.18.10; ПГ 10.18.10 1.231.9-7.1-19.00.0 СБ Панель ПГ 7.18.10; ПГ 8.18.10; ПГ 9.18.10; ПГ 10.18.10. Сборочный чертеж 1.231.9-7.1-19.01.0 Каркас деревянный КД55/ КД58 1.231.9-7.1-19.01.0 СБ Каркас деревянный КД55/ КД58. Сборочный чертеж 1.231.9-7.1-20.00.0 Панель ПГ 12.18.10; ПГ 13.18.10 1.231.9-7.1-20.00.0 СБ Панель ПГ 12.18.10; ПГ 13.18.10. Сборочный черте 1.231.9-7.1-20.01.0 Каркас деревянный КД59, КД60 1.231.9-7.1-20.01.0 СБ Каркас деревянный КД59, КД60. Сборочный чертеж 1.231.9-7.1-00.00.1 Монтажная петля П1/ П24 1.231.9-7.1-00.00.2 Узел 1/ 15 |
| Разработан: | ЦНИИЭП учебных зданий Госгражданстроя |
| Утверждён: | 17.06.1982 Госгражданстрой (Gosgrazhdanstroy 159) |
| Нормативные ссылки: |
|




































































