Скачать Методическое пособие. Проектирование зданий общеобразовательных организаций

Дата актуализации: 01.01.2021

Методическое пособие. Проектирование зданий общеобразовательных организаций

Статус:действует
Название рус.:Методическое пособие. Проектирование зданий общеобразовательных организаций
Дата добавления в базу:01.02.2020
Дата актуализации:01.01.2021
Область применения:Пособие предназначено для проектных организаций, занимающихся планировкой, застройкой и реконструкцией жилых районов, а также проектированием новых современных зданий общеобразовательных учреждений и реконструкцией существующих зданий школ; федеральных государственных органов и органов государственной власти субъектов Российской Федерации, осуществляющих государственное управление в сфере образования, и органов местного самоуправления, осуществляющих управление в сфере образования, созданных ими консультативных, совещательных и иных органов
Оглавление:Введение
1 Область применения
2 Нормативные ссылки
3 Термины, определения и сокращения
4 Общие положения
5 Требования к организации сети, виды и типы общеобразовательных организаций
6 Зонирование земельного участка. Возможности использования межшкольных стадионов
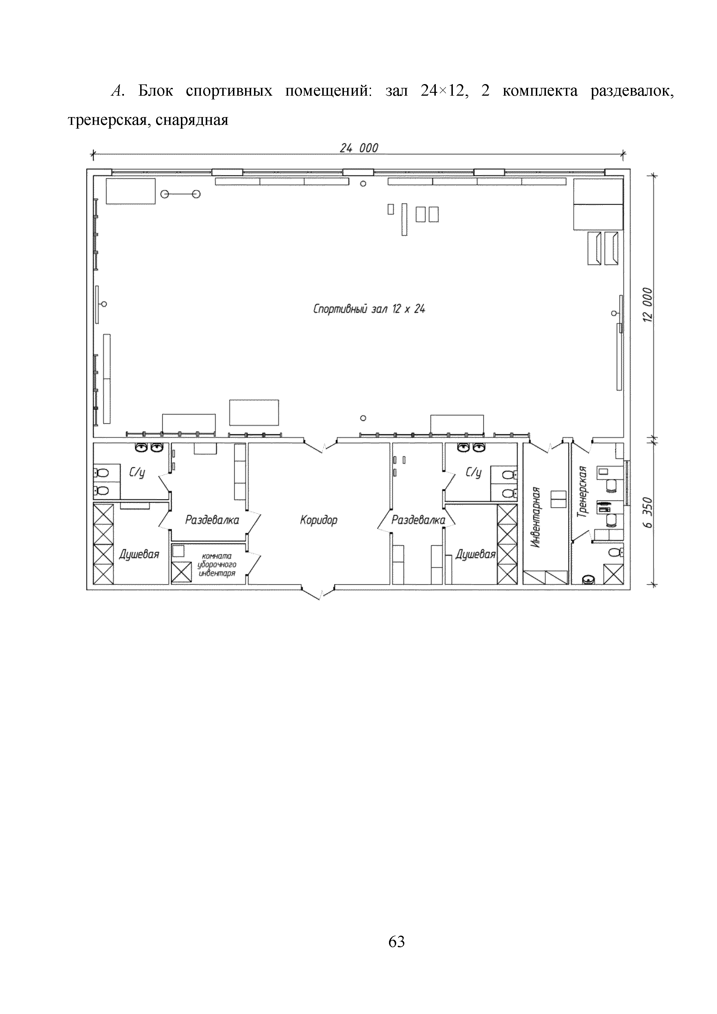
7 Функционально-планировочная организация зданий общеобразовательных организаций, состав помещений
8 Принципы расчета вместимости, пропускной способности и площадей учебных и общешкольных помещений
9 Объемно-планировочные решения зданий полных школ (три образовательные ступени)
10 Особенности проектирования БНК
11 Принципы размещения дошкольных групп в составе общеобразовательных организаций
12 Формирование информационно-образовательной среды на основе цифровых технологий
13 Мероприятия по безопасной эксплуатации зданий и участков общеобразовательных организаций
ПРИЛОЖЕНИЕ А. Основные принципы проектирования экономически -эффективных зданий общеобразовательных организаций
ПРИЛОЖЕНИЕ Б. Основные принципы составления технологических заданий для зданий общеобразовательных организаций
ПРИЛОЖЕНИЕ В. Общие принципы расчета площади и количества помещений для зданий общеобразовательных организаций
ПРИЛОЖЕНИЕ Г. Общеобразовательная организация на три образовательных ступени (1100 мест) для строительства в Московской области (проект включен в каталог типовой проектной документации ГАУ Мособлэкспертиза)
Разработан: ЦНИИОМТП - МГСУ
Утверждён: Министерство строительства и жилищно-коммунального хозяйства Российской Федерации
Нормативные ссылки: