Главная // Актуальные документы // НормативыСПРАВКА
Источник публикации
В данном виде документ опубликован не был.
Первоначальный текст документа опубликован в издании
М.: Стандартинформ, 2018.
Информацию о публикации документов, создающих данную редакцию, см. в справке к этим документам.
Примечание к документу
Название документа
"СП 350.1326000.2018. Свод правил. Нормы технологического проектирования морских портов"
(утв. и введен в действие Приказом Минтранса России от 01.03.2018 N 75)
(ред. от 09.03.2023)
"СП 350.1326000.2018. Свод правил. Нормы технологического проектирования морских портов"
(утв. и введен в действие Приказом Минтранса России от 01.03.2018 N 75)
(ред. от 09.03.2023)
Утвержден и введен в действие
Российской Федерации
(Минтранс России)
от 1 марта 2018 г. N 75
СВОД ПРАВИЛ
НОРМЫ
ТЕХНОЛОГИЧЕСКОГО ПРОЕКТИРОВАНИЯ
МОРСКИХ ПОРТОВ
Norms for technological design of sea ports
СП 350.1326000.2018
| | Список изменяющих документов Минтранса России от 09.03.2023 N 71) | |
Дата введения
1 сентября 2018 года
Настоящий свод правил "Нормы технологического проектирования морских портов" представляет собой актуализированную с учетом требований
постановления Правительства Российской Федерации от 12.08.2010 г. N 620
[1] редакцию
РД 31.3.05-97 [2], утвержденного Минтрансом России 21 мая 1997 г.
Актуализация выполнена в ОАО "Союзморниипроект" и ЗАО "ЦНИИМФ".
С даты введения в действие настоящего свода правил не применяются следующие руководящие документы:
РД 31.3.05-97 [2], утвержденный Минтрансом России, и РД 31.3.01.01-93
[3], утвержденный Департаментом морского транспорта Минтранса России.
1 ИСПОЛНИТЕЛИ - ОАО "Союзморниипроект" и ЗАО "ЦНИИМФ"
2 ВНЕСЕН Техническим комитетом по стандартизации ТК 318 "Морфлот"
3 ПОДГОТОВЛЕН К УТВЕРЖДЕНИЮ ФГУП "Росморпорт"
4 УТВЕРЖДЕН
Приказом Министерства транспорта Российской Федерации (Минтранс России) от 1 марта 2018 г. N 75 и введен в действие с 1 сентября 2018 г.
В случае пересмотра (замены) или отмены настоящего свода правил соответствующее уведомление будет опубликовано в установленном порядке. Соответствующая информация, уведомление и тексты размещаются также в информационной системе общего пользования - на официальном сайте разработчика (Минтранс России) в сети Интернет
Свод правил "Нормы технологического проектирования морских портов" (далее - Свод правил) разработан с учетом требований
постановления Правительства Российской Федерации от 12.08.2010 N 620
[1] и Федерального
закона от 27.12.2002 N 184-ФЗ
[4].
Свод правил представляет собой актуализированную редакцию
РД 31.3.05-97 "Нормы технологического проектирования морских портов", утвержденного Минтрансом России 21 мая 1997 г. и получившего широкое признание на практике. Составление путем актуализации
РД 31.3.05-97 обусловлено необходимостью сохранения в современных условиях проверенных временем норм технологического проектирования морских портов.
При составлении учитывались: отечественный и иностранный опыт проектирования морских портов; опыт применения современных математических методов и моделей в технологическом проектировании морских портов; тенденции развития морского флота; прогрессивные транспортно-технологические логистические системы доставки грузов и технологии погрузочно-разгрузочных работ в морских портах; современные требования логистики; экологические нормы в отношении обработки в морских портах опасных и вредных грузов; особенности проектирования портов, расположенных на участках рек с морским режимом судоходства.
Разработка выполнена сотрудниками ОАО "Союзморниипроект" в составе: канд. техн. наук, доц. Ю.Д. Полянцева, канд. техн. наук, доц. В.П. Гришина, д-ра техн. наук А.Н. Диашева, канд. техн. наук С.Г. Козлова, д-ра техн. наук, профессора Э.А. Гагарского, канд. техн. наук В.К. Лернера, канд. техн. наук Л.В. Сысоева, канд. техн. наук Н.И. Утешева, О.В. Кулистиковой, Е.М. Моховой, Н.Б. Кравцова, А.П. Кибалко, С.А. Кириченко, В.М. Михайловой, Е.А. Мусихиной, М.А. Мусатова, Т.В. Коваль, Т.В. Филатовой, Т.В. Харитоновой, Ал.В. Бирюкова, Ан.В. Бирюкова, С.Н. Заева и сотрудниками ЗАО "ЦНИИМФ" в составе: М.Н. Никитина, В.А. Петрова, Д.П. Ильющенко-Крылова, канд. техн. наук Ф.А. Морейниса, Н.А. Пархачевой, канд. экон. наук В.С. Грицинова, канд. экон. наук А.С. Буянова, И.Л. Харченко.
1.1 Настоящий свод правил включает нормы технологического проектирования морских портов, терминалов и других объектов портовой инфраструктуры и определяет взаимосвязь и соотношения между параметрами основных элементов морских портов.
Нормы свода правил не распространяются на проектирование акватории порта, систем радиолокационного управления движением судов (СУДС) на акватории порта и подходах к нему, пунктов пропуска через государственную границу, нормы и правила проектирования которых определены отдельными нормативными документами.
1.2 Нормы технологического проектирования морских портов применяются при проектировании новых, реконструкции и модернизации действующих морских портов и их отдельных элементов, а также портов, расположенных на участках рек с морским режимом судоходства, и их отдельных элементов.
Примечание - Морские порты в дальнейшем по тексту свода правил именуются "портами", если не используется конкретное название объекта проектирования.
В настоящем своде правил использованы ссылки на следующие нормативные документы:
ВСН 12-87 Минморфлот СССР. Союзморниипроект. Причальные комплексы для перегрузки нефти и нефтепродуктов. Противопожарная защита. Нормы проектирования
ВНТП 02-85 Ведомственные нормы технологического проектирования общетоварных складов
| | ИС МЕГАНОРМ: примечание. В официальном тексте документа, видимо, допущена опечатка: "Нормы технологического проектирования предприятий хлебопекарной промышленности Часть 1. Хлебозаводы" имеют номер ВНТП 02-92, а не ВНТП 02-92-1. | |
ВНТП 02-92-1 Нормы технологического проектирования предприятий хлебопекарной промышленности. Часть 1. Хлебозаводы
ВНТП 3-90 Госкомнефтепродукт РСФСР. Нормы технологического проектирования для разветвленных нефтепродуктопроводов
ВНТП 05-88 Минхлебопродуктов РСФСР. Ведомственные нормы технологического проектирования хлебоприемных предприятий и элеваторов
ВНТП 5-95 Минтопэнерго России. Нормы технологического проектирования предприятий по обеспечению нефтепродуктами (нефтебаз)
ВСН 01-89 Минавтотранс РСФСР. Предприятия по обслуживанию автомобилей
ГН 2.2.5.1313-03 Предельно допустимые концентрации (ПДК) вредных веществ в воздухе рабочей зоны
ГОСТ Р 12.4.026-2001 ССБТ. Цвета сигнальные, знаки безопасности и разметка сигнальная. Назначение и правила применения. Общие технические требования и характеристики. Методы испытаний
ГОСТ Р 50862-2005 Сейфы, сейфовые комнаты и хранилища. Требования и методы испытаний на устойчивость к взлому и огнестойкость
ГОСТ Р 51232-98 Вода питьевая. Общие требования к организации и методам контроля качества
ГОСТ Р 51241-2008 Средства и системы контроля и управления доступом. Классификация. Общие технические требования. Методы испытаний
ГОСТ Р 51558-2008 Средства и системы охранные телевизионные. Классификация. Общие технические требования. Методы испытаний
ГОСТ Р 51615-2000 Вещества взрывчатые промышленные. Упаковка, маркировка, транспортирование и хранение
ГОСТ Р 52435-2005 Технические средства охранной сигнализации. Классификация. Общие технические требования и методы испытаний
ГОСТ Р 52436-2005 Приборы приемно-контрольные охранной и охранно-пожарной сигнализации. Классификация. Общие технические требования и методы испытаний
ГОСТ Р 52860-2007 Технические средства физической защиты. Общие технические требования
ГОСТ Р 54101-2010 Средства автоматизации и системы управления. Средства и системы обеспечения безопасности. Техническое обслуживание и текущий ремонт
ГОСТ 2-2013 Межгосударственный стандарт. Селитра аммиачная. Технические условия
(ссылка введена
Изменением N 1, утв. Приказом Минтранса России от 09.03.2023 N 71)
ГОСТ 12.1.005-88 Система стандартов безопасности труда. Общие санитарно-гигиенические требования к воздуху рабочей зоны
ГОСТ 12.1.007-76 Система стандартов безопасности труда. Вредные вещества. Классификация и общие требования безопасности
ГОСТ 12.1.012-2004 Система стандартов безопасности труда. Вибрационная безопасность. Общие требования
ГОСТ 12.1.044-89 Пожаровзрывоопасность веществ и материалов. Номенклатура показателей и методы их определения
ГОСТ 12.4.011-89 Система стандартов безопасности труда. Средства защиты работающих. Общие требования и классификация
ГОСТ 12.4.016-83 Система стандартов безопасности труда. Одежда специальная защитная. Номенклатура показателей качества
ГОСТ 12.4.024-76 Система стандартов безопасности труда. Обувь специальная виброзащитная. Общие технические требования
ГОСТ 12.4.034-2001 Система стандартов безопасности труда. Средства индивидуальной защиты органов дыхания. Классификация и маркировка
ГОСТ 12.4.041-2001 Система стандартов безопасности труда. Средства индивидуальной защиты органов дыхания фильтрующие. Общие технические требования
ГОСТ 21.404-85 Автоматизация технологических процессов. Обозначения условные приборов и средств автоматизации в схемах
ГОСТ 24.104-85 Автоматизированные системы управления. Общие требования
ГОСТ 34.601-90 Информационная технология. Комплекс стандартов на автоматизированные системы. Автоматизированные системы стадии создания
ГОСТ 34.603-92 Информационная технология. Виды испытаний автоматизированных систем
ГОСТ 10704-91 Трубы стальные электросварные прямошовные. Сортамент (с Изменением N 1)
ГОСТ 2874-82 Вода питьевая гигиенические требования за качеством
ГОСТ 3634-99 Люки смотровых колодцев и дождеприемники ливнесточных колодцев. Технические условия
ГОСТ 9238-83 Габариты приближения строений и подвижного состава железных дорог колеи 1520 (1524) мм
ГОСТ 14202-69 Трубопроводы промышленных предприятий. Опознавательная окраска, предупреждающие знаки и маркировочные щитки
ГОСТ 17424-72* Тумбы швартовые морские. Технические условия
МОДН 2-2001 Проектирование нежестких дорожных одежд
НПБ 65-97 Извещатели пожарные дымовые оптико-электронные. Общие технические требования. Методы испытаний
НПБ 88-2001 МЧС России. Установки пожаротушения и сигнализации. Нормы и правила проектирования
НПБ 104-03 МЧС России. Системы оповещения и управления эвакуацией людей при пожарах в зданиях и сооружениях
НПБ 105-03 МЧС России. Определение категорий помещений, зданий и наружных установок по взрывопожарной и пожарной опасности
НПБ 110-03 МЧС России. Перечень зданий, сооружений, помещений и оборудования, подлежащих защите автоматическими установками пожаротушения и автоматической пожарной сигнализацией
НПБ 240-97 Противодымная защита зданий и сооружений. Методы приемо-сдаточных и периодических испытаний
| | ИС МЕГАНОРМ: примечание. В официальном тексте документа, видимо, допущена опечатка: нормы НТП-АПК 1.10.13.001-03 имеют название "Нормы технологического проектирования складов твердых минеральных удобрений и химических мелиорантов". | |
НТП-АПК 1.10.13.001-03 Нормы технологического проектирования складов твердых минеральных удобрений и химических мелиорантов обеспечения
НТП-АПК 1.10.17.001-03 Нормы технологического проектирования баз и складов общего назначения предприятий ресурсного обеспечения
ПБ 09-563-03 Госгортехнадзор России. Правила промышленной безопасности для нефтеперерабатывающих производств
ПБ 09-579-03 Госгортехнадзор России. Правила безопасности для наземных складов жидкого аммиака
Приказ Федеральной службы по экологическому, технологическому и атомному надзору от 12 ноября 2013 г. N 533 "Об утверждении Федеральных норм и правил в области промышленной безопасности "Правила безопасности опасных производственных объектов, на которых используются подъемные сооружения"
Приказ Ростехнадзора от 16.12.2013 N 605 "Правила безопасности при взрывных работах"
ПУЭ-85 Правила устройства электроустановок
СанПиН 2.1.5.2582-10 Санитарно-эпидемиологические требования к охране прибрежных вод морей от загрязнения в местах водопользования населения
| | ИС МЕГАНОРМ: примечание. В официальном тексте документа, видимо, допущена опечатка: "Санитарные правила для морских и речных портов" имеют номер 4962-89, а не СанПиН 4962-89. | |
СанПиН 2.2.1/2.1.1.1200-03 Новая редакция. Санитарно-защитные зоны и санитарная классификация предприятий, сооружений и иных объектов
СН 496-77 Временная инструкция по проектированию сооружений для очистки поверхностных сточных вод
СН 512-78 Инструкция по проектированию зданий и помещений для электронно-вычислительных машин
СНиП 2.10.05-85 Предприятия, здания и сооружения по хранению и переработке зерна
СП 1.13130.2009 Системы противопожарной защиты. Эвакуационные пути и выходы
СП 2.2.1.1312-03 Гигиенические требования к проектированию вновь строящихся и реконструируемых промышленных предприятий. Санитарно-эпидемиологические правила
СП 4.13130.2013 Системы противопожарной защиты. Ограничение распространения пожара на объектах защиты. Требования к объемно-планировочным и конструктивным решениям
СП 5.13130.2009 Системы противопожарной защиты. Установки пожарной сигнализации и пожаротушения автоматические. Нормы и правила проектирования
СП 8.13130 "Системы противопожарной защиты. Наружное противопожарное водоснабжение. Требования пожарной безопасности
(ссылка введена
Изменением N 1, утв. Приказом Минтранса России от 09.03.2023 N 71)
СП 11.13130.2009 Места дислокации подразделений пожарной охраны. Порядок и методика определения
СП 12.13130.2009 Определение категорий помещений, зданий и наружных установок по взрывопожарной и пожарной опасности
СП 18.13330.2019 "Производственные объекты. Планировочная организация земельного участка (СНиП II-89-80* "Генеральные планы промышленных предприятий")
(ссылка введена
Изменением N 1, утв. Приказом Минтранса России от 09.03.2023 N 71)
Ссылка исключена. -
Изменение N 1, утв. Приказом Минтранса России от 09.03.2023 N 71.
СП 33-101-2003 Определение основных расчетных гидрологических характеристик
СП 38.13330.2012 "СНиП 2.06.04-82 Нагрузки и воздействия на гидротехнические сооружения (волновые, ледовые и от судов)"
СП 43.13330.2012 "Сооружения промышленных предприятий. Актуализированная редакция СНиП 2.09.03-85"
(ссылка введена
Изменением N 1, утв. Приказом Минтранса России от 09.03.2023 N 71)
СП 58.13330.2012 "СНиП 33-01-2003 Гидротехнические сооружения. Основные положения"
СП 60.13330.2012 "СНиП 41-01-2003 Отопление, вентиляция и кондиционирование воздуха"
СП 92.13330.2012 "СНиП II-108-78 Склады сухих минеральных удобрений и химических средств защиты растений"
СП 105.13330.2012 "СНиП 2.10.02-84 Здания и помещения для хранения и переработки сельскохозяйственной продукции"
| | ИС МЕГАНОРМ: примечание. В официальном тексте документа, видимо, допущена опечатка: свод правил "СНиП 32-01-95 Железные дороги колеи 1520 мм" имеет номер СП 119.13330.2012, а не СП 119.13330.2011. | |
| | ИС МЕГАНОРМ: примечание. В официальном тексте документа, видимо, допущена опечатка: свод правил "СНиП 2.11.03-93 Склады нефти и нефтепродуктов. Противопожарные нормы" имеет номер СП 110.13330.2011, а не СП 110.13330.2012. | |
СП 110.13330.2012 "СНиП 2.11.03-93 Склады нефти и нефтепродуктов. Противопожарные нормы"
| | ИС МЕГАНОРМ: примечание. В официальном тексте документа, видимо, допущена опечатка: свод правил "СНиП 21-03-2003 Склады лесных материалов. Противопожарные нормы" имеет номер СП 114.13330.2011, а не СП 114.13330.2012. | |
| | ИС МЕГАНОРМ: примечание. СП 114.13330.2011 был впоследствии утвержден и издан с номером СП 114.13330.2016. | |
СП (проект) "Нормы проектирования морских каналов, фарватеров и зон маневрирования"
Примечание - При пользовании настоящим сводом правил целесообразно проверить действие ссылочных документов в информационной системе общего пользования - на официальном сайте Федерального агентства по техническому регулированию и метрологии в сети Интернет или по ежегодному информационному указателю "Национальные стандарты", который опубликован по состоянию на 1 января текущего года, и по выпускам ежемесячного информационного указателя "Национальные стандарты" за текущий год. Если заменен ссылочный документ, на который дана недатированная ссылка, то рекомендуется использовать действующую версию этого документа с учетом всех внесенных в данную версию изменений. Если заменен ссылочный документ, на который дана датированная ссылка, то рекомендуется использовать версию этого документа с указанным выше годом утверждения (принятия). Если после утверждения настоящего свода правил в ссылочный документ, на который дана датированная ссылка, внесено изменение, затрагивающее положение, на которое дана ссылка, то это положение рекомендуется применять без учета данного изменения. Если ссылочный документ отменен без замены, то положение, в котором дана ссылка на него, рекомендуется применять в части, не затрагивающей эту ссылку. Сведения о действии сводов правил целесообразно проверить в Федеральном информационном фонде стандартов.
3 Термины, определения и сокращения
В настоящем своде правил использованы термины, определения которых приведены в
приложении А.
4 Общие нормы и требования
4.1.1 В своде правил установлены требования к составу основных исходных данных для технологического проектирования порта, к технологическим и планировочным решениям, к определению параметров основных элементов порта (терминалов, причалов, складов, объектов комплексного обслуживания флота, зданий, сооружений, сетей инженерно-технического обеспечения, подъездных и внутренних железнодорожных и автомобильных путей) и их взаимосвязи.
4.1.2 Цель технологического проектирования порта - получение оптимальных технологических и планировочных решений порта как единого комплекса, удовлетворяющего требованиям безопасного приема, быстрейшей погрузки-выгрузки и комплексного обслуживания судов и отвечающего современным условиям перевозок на морском и смежных видах транспорта.
При этом должны быть обеспечены:
- заданный грузооборот на расчетный год;
- возможность развития порта за пределами расчетного периода на отдаленную перспективу;
- промышленная, пожарная, санитарная, экологическая безопасность и безопасность труда;
- соразмерность всех элементов порта.
4.1.3 Основным элементом технологической структуры проектируемого порта является морской терминал - совокупность объектов инфраструктуры морского порта, расположенных на специально отведенных территории и акватории, технологически связанных между собой и предназначенных и (или) использованных для осуществления операций с грузами, в том числе для их перевалки, обслуживания судов, иных транспортных средств и (или) обслуживания пассажиров.
4.1.4 В соответствии с современными методами перевозки грузов и пассажиров и перевалки грузов морской порт в зависимости от структуры и объема грузо- и пассажирооборота, а также принятых схем механизации перегрузочных работ может иметь в своем составе:
а) универсальные терминалы с крановыми схемами механизации, предназначенные для перевалки генеральных грузов крытого и открытого хранения, включая скоропортящиеся, лесные, тяжеловесные, металлы и оборудование, а также навалочных грузов (угля, минеральных строительных материалов и др.);
б) специализированные терминалы со специализированным технологическим оборудованием, предназначенным для перевалки определенного вида груза, как-то:
1) навалочных грузов (уголь, руда, химические грузы, сахар-сырец, зерно);
2) наливных грузов (нефть и нефтепродукты, сжиженные газы, химические жидкие наливные грузы, жидкие пищевые грузы);
3) контейнеров;
4) накатных грузов;
в) специализированные терминалы лихтеровозной системы;
г) специализированные терминалы морских паромных переправ;
д) специализированные пассажирские терминалы;
е) специализированные терминалы обслуживающего назначения (для отстоя или ремонта транспортных судов, стоянки судов портофлота).
Примечания
1 При наличии устойчивого грузопотока для снижения непроизводительных простоев судов и железнодорожных вагонов терминалы с крановой схемой механизации целесообразно специализировать по роду груза и по направлению перевозок.
2 Для скоропортящихся грузов (при наличии портового холодильника), зерновых грузов (при наличии портового элеватора), взрывчатых веществ и других грузов, требующих специальных условий перевозки, перегрузки и хранения, создаются специализированные терминалы независимо от объема грузооборота.
4.1.5 На начальном этапе проектирования (декларация о намерениях, основные технические решения и прочее) должны рассматриваться 2 - 3 наиболее конкурентоспособных варианта технологических схем механизации с применением различного перегрузочного оборудования и компоновки морского порта или морского терминала. При необходимости количество вариантов может быть увеличено заказчиком по согласованию с разработчиком с внесением дополнения в задание на проектирование.
4.1.6 Принимаемые технологические решения должны обеспечивать безопасную организацию основных и вспомогательных работ при строительстве и эксплуатации морских портов в соответствии с
ГОСТ 12.1.003,
ГОСТ 12.1.012,
ГОСТ 12.1.029,
ГОСТ 12.3.009,
ГОСТ 12.4.011,
РД 31.82.01-95 [5],
приказом Федеральной службы по экологическому, технологическому и атомному надзору от 12 ноября 2013 г. N 533, а также выполнение требований взрывопожарной и пожарной безопасности по
ГОСТ 12.1.004,
СП 56.13330,
СП 110.13330,
СП 112.13330,
РД 31.31.54-92 [6],
ВСН 12,
НПБ 88,
НПБ 110.
4.1.7 Основные размеры и количество портовых сооружений и устройств, а также количество технологических линий и технологического оборудования устанавливают на расчетный год и заданный грузооборот за исключением тех элементов порта, параметры которых определяют с учетом прогнозируемых изменений размерений судов на перспективу, перспективного грузооборота и судооборота: перспективные глубины акватории порта; перспективные глубины и длины причальных сооружений; размеры общей акватории порта, зон маневрирования и входных ворот; общие размеры и ширина территории порта.
4.1.8 С учетом перспективного значения порта, естественных условий и других факторов в проекте должны быть определены максимальные размерения судов, которые в перспективе могут быть приняты и обслужены портом, загружены и разгружены у причалов, запроектированных на расчетный период и намечаемых на перспективу. В расчете на указанные суда для каждого терминала определяются: перспективная глубина акватории и ее общие размеры, перспективная глубина и длина причальных сооружений.
4.1.9 При установлении в проекте общих размеров и ширины портовой территории необходимо учесть следующее:
- размещение на портовой территории сооружений, зданий, устройств и коммуникаций должно быть компактным, с максимальной блокировкой, исходя из целесообразного и экономичного использования земельного участка, особенно искусственно созданного и прилегающего к причальным сооружениям;
- общие размеры территории порта должны быть определены с учетом перспективного грузооборота и рационального размещения всех береговых объектов, необходимых для выполнения технологических и производственных функций порта, комплексного обслуживания судов, а также береговых организаций, базирующихся в данном порту;
- ширина территории операционной зоны грузовых причалов принимается: на расчетный год - в соответствии с технологическими схемами перегрузочных работ, установленными в проекте для расчетного периода; на перспективу - с учетом прогнозируемого совершенствования перегрузочных процессов и применения новых видов подъемно-транспортного оборудования; определение операционной зоны грузовых причалов приведено в
4.2.2.2;
- возможность дальнейшего развития на отдаленную перспективу как порта (включая объекты транспорта, подсобно-производственного и обслуживающего назначения и комплексного обслуживания судов), так и объектов береговых организаций, базирующихся в порту.
4.1.10 При реконструкции и модернизации существующих портов в отдельных случаях (недостаток территории, санитарные ограничения и др.) может быть признано целесообразным создание территориально обособленных грузовых районов порта.
4.1.11 Работы по образованию, освоению и благоустройству территории, углублению акватории и оснащению ее навигационным оборудованием, а также по созданию водных и железнодорожных подходов и автомобильных подъездов к порту следует проектировать в соответствии с намечаемым вводом в эксплуатацию морских терминалов и установленной очередью строительства.
| | ИС МЕГАНОРМ: примечание. В официальном тексте документа, видимо, допущена опечатка: "Санитарные правила для морских и речных портов" имеют номер 4962, а не СанПиН 4962. | |
4.1.13 Технические решения и технологические схемы очистки различных вод: загрязненных нефтью и нефтеостатками, льяльных вод, после моечных операций агрессивных и ядовитых веществ, загрязненных опасными химическими грузами, а также порядок утилизации и захоронения отходов следует разрабатывать в соответствии с требованиями
Конвенции МАРПОЛ
[13],
СанПиН 2.1.5.980,
СанПиН 2.1.5.2582,
РД 31.04.01-90 [56],
Инструкции Госкомприроды, 1989 г.
[12],
РД 31.04.23-94 [14], РД 31.11.32.01-84
[15], Методики расчета ПДС Госкомприроды, 1990 г.
[16].
4.1.14 В проектной документации должны быть предусмотрены мероприятия по утилизации и обеззараживанию промышленных отходов (нефтешламы, шламы химводоочистки и т.п.). Выбор технического решения следует принимать с учетом местных условий и количества образующихся отходов. Захоронению подлежат отходы, на которые отсутствуют технологии их переработки.
4.1.15 В проектной документации следует предусматривать мероприятия по предотвращению растекания и сбору нефтепродуктов в случае их разлива, аварии технологических сооружений и трубопроводов (обвалование, водонепроницаемые покрытия, планировка и т.п.), а также по предотвращению их сброса в канализацию, в том числе в аварийных ситуациях.
4.1.16 Технологические схемы и мероприятия по сбору, удалению и обезвреживанию мусора портов и судов должны соответствовать требованиям
Конвенции МАРПОЛ
[13],
РД 31.04.23-94 [14], утвержденного Минтрансом России,
РД 31.06.01-79 [17], утвержденного Минморфлотом СССР.
4.1.17 При проектировании портов необходимо соблюдать требования пожарной и экологической безопасности к объектам инфраструктуры морского транспорта, а также требования к безопасности процессов строительства, эксплуатации, вывода из эксплуатации, ликвидации и ремонта объектов инфраструктуры морского транспорта, предусмотренные
Постановлением Правительства Российской Федерации от 12.08.2010 N 620
[1].
Кроме того, проектируемые объекты инфраструктуры морского порта должны соответствовать требованиям промышленной безопасности и санитарно-эпидемиологического благополучия населения (для опасных производственных объектов), предусмотренным Федеральными законами от 21.07.1997
N 116-ФЗ [18] и от 30.03.1999
N 52-ФЗ [19].
4.1.18 При разработке проектов портов необходимо выполнять требования Федерального
закона от 22.07.2008 N 123-ФЗ
[20] и противопожарные требования, предъявляемые к объемно-планировочным и конструктивным решениям проектируемых объектов административного, производственного, складского назначения, а также противопожарным расстояниям между ними, установленные
СП 4.13130,
СП 56.13330,
СП 44.13330 и
СП 18.13330.
В проекте должны указываться: степень огнестойкости зданий и сооружений, а также классы их функциональной и конструктивной пожарной опасности.
Для зданий, сооружений и строений, для которых в Федеральном
законе от 22.07.2008 N 123-ФЗ
[20] отсутствуют нормативные требования пожарной безопасности, должны быть разработаны специальные технические условия.
4.1.19 Категории зданий и помещений по взрывопожарной и пожарной опасности, а также наружных установок по пожарной опасности, следует устанавливать в соответствии с
СП 12.13130.
4.1.20 Проектирование объектов комплексного обслуживания флота следует выполнять согласно
разделу 6.
4.1.21 Инженерно-технические мероприятия гражданской обороны, мероприятия по предупреждению чрезвычайных ситуаций природного и техногенного характера, мероприятия по противодействию терроризму следует разрабатывать в соответствии с
СП 165.1325800 и другими нормами и правилами в области гражданской обороны, защиты населения и территорий от чрезвычайных ситуаций.
4.1.22 Проектирование новых и реконструкцию существующих сооружений и устройств промышленного транспорта следует выполнять с учетом основных требований
СП 37.13330 и
СП 119.13330.
4.1.23 В проекте должны выполняться требования к автодорогам, проездам и подъездам к зданиям, сооружениям и строениям порта, предусмотренные Федеральным
законом от 22.07.2008 N 123-ФЗ
[20] и
СП 37.13330.
4.1.24 Подъездные автодороги к порту следует проектировать по
СП 34.13330.
4.1.25 На основании Федерального
закона от 08.11.2007 N 261-ФЗ
[21] на земельных участках, прилегающих к морскому порту, могут устанавливаться охранные, санитарно-защитные и иные зоны с особыми условиями использования территории в соответствии с законодательством Российской Федерации.
4.1.26 Границы запретных (опасных) зон определяются по специальным нормативным документам, утвержденным в установленном порядке.
4.1.27 Порты, производственные здания и сооружения, являющиеся источниками воздействия на окружающую среду и здоровье человека, следует отделять санитарно-защитными зонами от жилой застройки, ландшафтно-рекреационных зон, зон отдыха, лечебных учреждений и т.д.
4.1.28 Принимаемые в проекте решения должны соответствовать положениям
СанПиН 2.2.1/2.1.1.1200 и
СП 42.13330, которые устанавливают класс опасности промышленных объектов и сооружений, ориентировочные минимальные размеры санитарно-защитных зон (территория с особым режимом использования), требования к их организации и благоустройству, а также санитарные разрывы от опасных коммуникаций.
Достаточность ширины санитарно-защитной зоны следует подтверждать расчетами, выполняемыми в соответствии с общесоюзным нормативным документом
ОНД-90 [22], утвержденным Госкомприроды России.
4.1.29 Следует по возможности предусматривать кооперирование порта с соседними предприятиями в части использования каналов, оградительных сооружений, элементов акватории, а также транспортных и инженерных коммуникаций.
4.1.30 Исходные данные для подготовки проектной документации на различные виды объектов капитального строительства порта, а также состав разделов проектной документации и их содержание должны соответствовать требованиям, установленным Градостроительным
кодексом Российской Федерации
[23], утвержденным постановлением Правительства Российской Федерации, другим нормативным правовым актам, а также требованиям настоящего СП. В результате сбора исходных данных и проведения предпроектных исследований должна быть обеспечена полнота и достаточность исходных данных для разработки проектной документации, определяя готовность объекта к проектированию.
4.1.31 Проектная документация должна разрабатываться в соответствии с заданием на проектирование с соблюдением требований Федерального
закона от 30.12.2009 N 384-ФЗ
[25], устанавливающего минимально необходимые требования безопасности к зданиям и сооружениям и входящим в их состав сетям инженерно-технического обеспечения, а также требований
СП 56.13330 и
СП 44.13330.
В составе исходных данных для проектирования должен быть указан уровень ответственности проектируемого здания или сооружения, определяемый в соответствии с Федеральным
законом от 30.12.2009 N 384-ФЗ
[25].
4.1.32 Проектирование в составе порта баз и причалов комплексного обслуживания флота, служебных причалов, причалов по приему с судов хозяйственно-бытовых стоков и сухого мусора, а также помещений для размещения персонала сторонних организаций осуществляется только при условии соответствующих требований в задании на проектирование.
4.1.33 Проектная и рабочая документация должна соответствовать основным требованиям, установленным
ГОСТ Р 21.1101.
4.1.34 При проектировании портов необходимо использовать новейшие достижения науки и техники, опыт проектирования, строительства и эксплуатации объектов морского транспорта.
4.2.1.1 Компоновка порта выполняется с учетом требований Градостроительного
кодекса Российской Федерации к территориальному планированию. Главной задачей компоновки порта является разработка оптимального решения по взаимоувязке всех его элементов: территории, акватории, водных подходов и железнодорожных и автомобильных подъездов, обеспечивающего их эффективное использование.
При компоновке порта необходимо осуществить:
- компоновку территории порта, включая зонирование территории, районирование порта, выбор наиболее рациональной конфигурации причальной линии, компоновку терминалов;
- компоновку акватории порта.
4.2.1.2 При компоновке порта учитываются существующие и намечаемые к строительству инфраструктурные объекты других застройщиков, независимо от того, располагаются ли они на территории или акватории порта либо смежно с ними.
4.2.1.3 Компоновка порта производится с учетом резервирования части территории и акватории для перспективного развития порта с учетом прилегающих населенных пунктов и промышленных предприятий.
4.2.1.4 Компоновка порта должна предусматривать компактное размещение объектов, сооружений, устройств и коммуникаций исходя из условия экономного использования территории и акватории (особенно искусственных земельных участков).
В отдельных случаях при соответствующем технико-экономическом обосновании допускается создание территориально обособленных портовых производственных объектов и подразделений.
| | ИС МЕГАНОРМ: примечание. В официальном тексте документа, видимо, допущена опечатка: "Санитарные правила для морских и речных портов" имеют номер 4962, а не СанПиН 4962. | |
4.2.1.6 Компоновочные решения должны быть отражены на "Схеме планировочной организации земельного участка", выполняемой с учетом планировки и застройки прилегающих к порту территорий. На чертеже должно отображаться технологически наиболее рациональное и экономически целесообразное размещение всех зданий, сооружений, оборудования, инженерных и транспортных коммуникаций, обеспечивающее удобные транспортные и функциональные связи.
Информация, отображаемая на чертеже, должна соответствовать перечню информации, приведенной в
постановлении Правительства Российской Федерации от 16.02.2008 N 87
[26].
4.2.1.7 Компоновка акватории порта выполняется в соответствии с нормами СП "Нормы проектирования морских каналов, фарватеров и зон маневрирования", содержащими требования к элементам акватории порта.
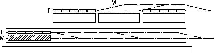
4.2.2 Зонирование территории
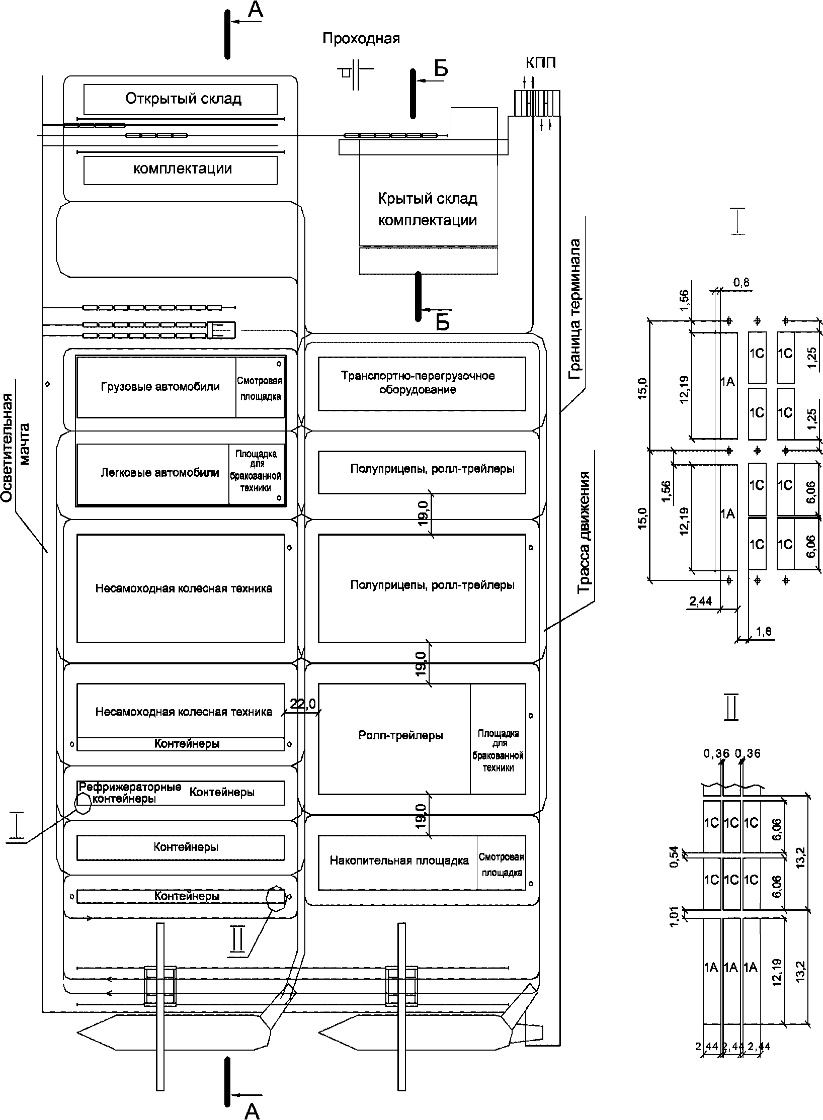
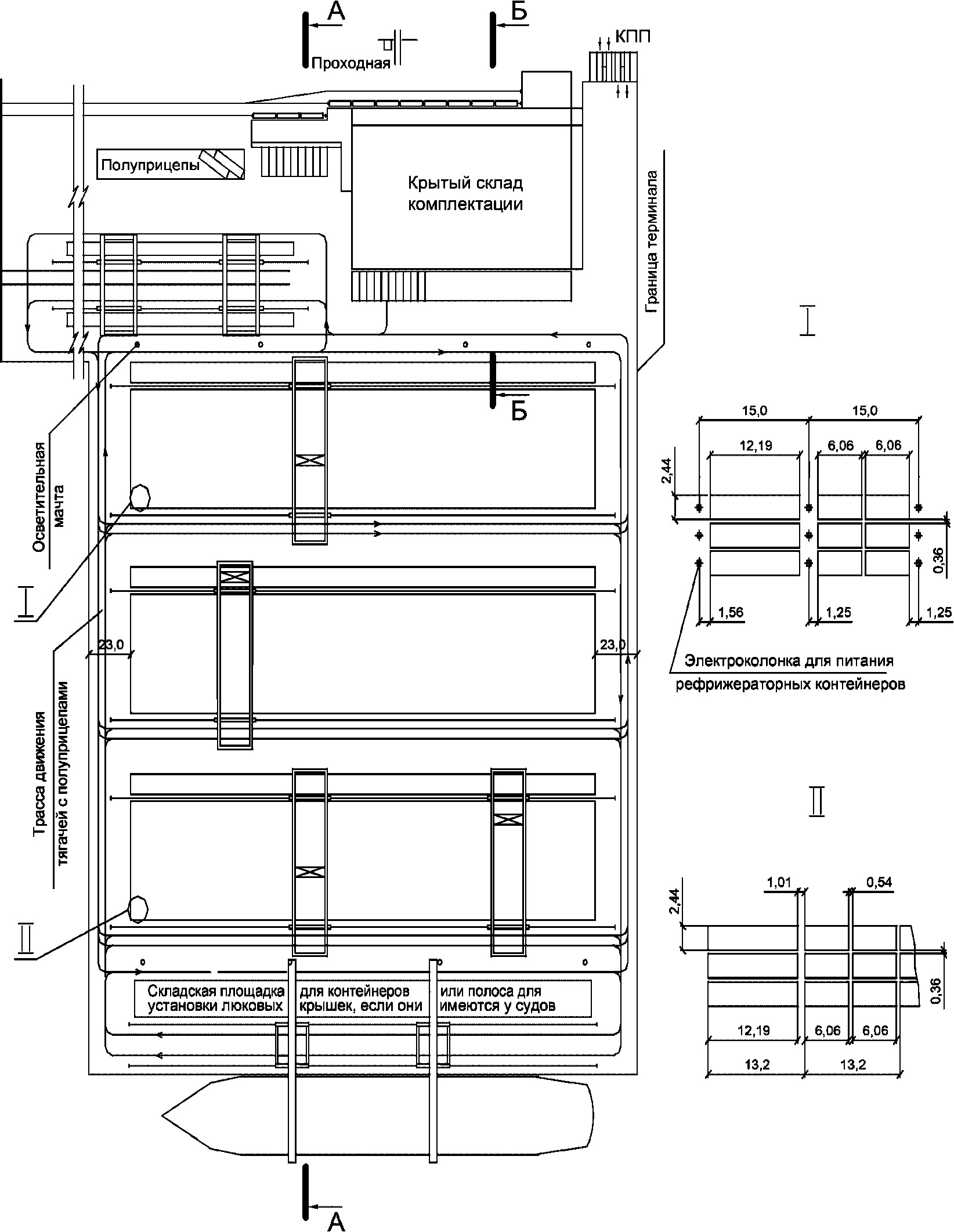
4.2.2.1 В соответствии с функциональным назначением в состав порта, как правило, входят следующие планировочные зоны:
- операционная зона грузовых причалов;
- производственная зона терминалов порта;
- зона общепортовых объектов;
- зона пассажирских терминалов;
- предпортовая зона.
Операционная зона грузовых причалов, производственная зона терминалов порта и зона общепортовых объектов входят в состав режимной (огражденной) территории порта.
4.2.2.2 В состав операционной зоны грузовых причалов включают основные производственные сооружения и здания, непосредственно реализующие перегрузочный процесс: причальные сооружения, склады, перегрузочное оборудование, грузовые фронты железнодорожного и автомобильного транспорта. В операционной зоне не допускается строительство объектов, не имеющих прямого отношения к перегрузочному процессу.
4.2.2.3 Производственную зону терминалов, предназначенную для размещения объектов вспомогательного и подсобно-производственного назначения данных терминалов, располагают, как правило, смежно с операционной зоной причалов, но за ее пределами.
4.2.2.4 В состав зоны общепортовых объектов, предназначенной для размещения объектов и служб, деятельность которых связана с портом в целом и комплексным обслуживанием судов, включают: береговую базу портового флота, центральные мастерские порта, центральный материальный склад порта, бункеровочную нефтебазу, объекты энергетического и транспортного хозяйства, сети и системы связи, водоснабжения, канализации и теплоснабжения, другие вспомогательные здания и сооружения общепортового назначения. Зона общепортовых объектов может состоять из отдельных территориально удаленных друг от друга участков.
4.2.2.5 В состав зоны пассажирских терминалов включают пассажирские причалы с примыкающей территорией, пассажирский вокзал и привокзальную площадь, вспомогательные здания и объекты, предназначенные для посадки-высадки и обслуживания пассажиров.
4.2.2.6 Предпортовая зона, на которую не распространяется контрольно-пропускной режим, предназначается для размещения тех объектов общепортового назначения и комплексного обслуживания судов, которые нецелесообразно располагать в зоне общепортовых объектов на режимной территории, однако нахождение которых вблизи порта необходимо (администрация морского порта, узел связи порта, административные здания служб пограничного, таможенного, санитарного - карантинного и ветеринарного контроля, стоянки индивидуальных автомобилей и т.д.).
4.2.2.7 Состав объектов для комплексного обслуживания зависит от характера и полноты услуг, оказываемых судам в портах, и должен указываться в задании на проектирование.
4.2.2.8 Для эффективного использования территории проектируемые объекты порта, как правило, следует размещать компактно с учетом их возможной блокировки по технологическим условиям и в соответствии с требованиями пожарной безопасности.
4.2.2.9 При размещении пожарных депо на портовой территории следует руководствоваться требованиями пожарной безопасности, изложенными в Федеральном
законе от 22.07.2008 N 123-ФЗ
[20],
СП 18.13330 и
СП 11.13130.
В случае превышения радиуса обслуживания пожарным депо необходимо на территории порта предусматривать дополнительные пожарные посты, а также съезды к воде и площадки для забора воды пожарными машинами в соответствии с требованиями
СП 42.13330.
4.2.2.10 Места для стоянок легковых автомобилей в предпортовой зоне следует предусматривать в соответствии с
СП 42.13330.
4.2.3 Районирование порта
4.2.3.1 Основным условием рациональной компоновки территории порта является районирование порта, при выполнении которого можно получить оптимальные технологические решения с минимальным уровнем затрат.
Под районированием подразумевается:
- выделение на территории порта грузовых и пассажирских районов, объединяющих в своем составе морские терминалы соответствующего функционального назначения;
- расположение совместно в составе единого грузового района терминалов, специализирующихся на переработке сходных по своим характеристикам грузов;
- выделение районов, образованных по признаку видов плавания: районов, принимающих суда, плавающие под флагом иностранного государства, и суда, зарегистрированные в одном из реестров судов Российской Федерации, совершающие международные рейсы, и районов для судов, осуществляющих перевозки и буксировку в каботаже;
- образование отдельных пассажирских районов, обслуживающих суда местного и пригородного сообщений.
4.2.3.2 При проектировании порта должны учитываться особенности расположения терминалов различного назначения, рационально использоваться конкретные естественные условия местности.
4.2.3.3 При компоновке территории порта с целью устранения отрицательного воздействия одних грузов на другие, а также на персонал порта и пассажиров, должны быть предусмотрены разрывы между терминалами различного назначения.
| | ИС МЕГАНОРМ: примечание. В официальном тексте документа, видимо, допущена опечатка: "Санитарные правила для морских и речных портов" имеют номер 4962, а не СанПиН 4962. | |
Размеры минимальных разрывов между терминалами следует принимать в соответствии с
приложением 1 СанПиН 4962.
4.2.3.4 Терминалы по перегрузке нефтепродуктов, химических грузов, сжиженных газов и взрывчатых веществ должны располагаться в порту обособленно от терминалов другого назначения.
4.2.3.5 Взрывоопасные и пожароопасные объекты, а также сооружения, выделяющие в атмосферу пыль и вредные вещества, следует располагать с подветренной стороны по отношению к другим объектам порта. Направление преобладающих ветров принимается по розе повторяемости ветра на основании материалов инженерно-гидрометеорологических изысканий с учетом рекомендаций
приложения 2 СанПиН 4962.
4.2.4 Конфигурация причальной линии
4.2.4.1 Конфигурацию отдельных участков причальной линии по начертанию в плане сводят к одному из следующих видов:
- фронтальному - вдоль береговой полосы;
- пирсовому - с выносом причальной линии в акваторию;
- ковшовому - с врезкой причальной линии в территорию.
Конфигурация причальной линии может приобретать смешанный вид, например, пирсово-ковшовый, фронтально-пирсовый и т.п.
Начертание причальной линии в виде уступов проектируется, как правило, для обработки накатных судов с прямой аппарелью.
Отбор вариантов конфигурации причалов различного назначения следует проводить в соответствии с рекомендациями
приложения Б.
4.2.4.2 Рациональная конфигурация причальной линии каждого терминала (района, порта) выбирается на основе данных о тенденциях развития транспортного флота, естественных условий акватории и площадки строительства, транспортных коммуникаций и перспективы развития.
Конфигурация причальной линии зависит от судооборота, грузооборота, номенклатуры грузов, технологических схем и воздействий терминала (порта) на окружающую среду.
Окончательное решение о конфигурации причальной линии должно приниматься с учетом естественных условий акватории и площадки строительства на основе сопоставления технико-экономических и эксплуатационных показателей вариантов компоновки.
4.2.4.3 Независимо от конфигурации причальной линии, ориентация причалов в плане должна обеспечивать наиболее удобные и безопасные подходы ко всем причалам, как со стороны моря, так и железных и автомобильных дорог со стороны суши, а также безопасные условия стоянки судов у причалов.
4.2.5 Компоновка морских терминалов
4.2.5.1 При компоновке терминалов следует использовать следующие исходные данные, получаемые как от заказчика, так и от разработчиков других разделов проектной документации:
- ситуационный план района размещения порта;
- топографический план земельного участка;
- градостроительный план земельного участка;
- план существующего порта (при его расширении или реконструкции);
- характеристику естественных условий района и площадки строительства (данные инженерно-геодезических, инженерно-геологических, инженерно-гидрометеорологических изысканий);
- структура грузооборота и транспортные характеристики груза;
- расчетные типы и характеристики судов, железнодорожных вагонов и автотранспорта, включая перспективные;
- типы, количество и размеры объектов терминала;
- вместимость складов.
4.2.5.2 Компоновочные решения должны быть представлены на схеме планировочной организации земельного участка порта или терминала (план и разрезы) в соответствии с
постановлением Правительства Российской Федерации от 16.02.2008 N 87
[26].
4.2.5.3 Компоновку универсальных и специализированных терминалов следует выполнять в соответствии с рекомендациями
раздела 5.
4.2.5.4 Полосы движения автомашин и автопогрузчиков определяются при проектировании в соответствии с рекомендациями
приложения В.
4.2.5.5 До актуализации, разработанной в 1975 "Методических указаний по оценке сравнительной экономической эффективности вариантов компоновки морского порта", оценку вариантов компоновки рекомендуется производить, используя методы оценки инвестиционных проектов.
4.3.1.1 По назначению причалы подразделяются на грузовые, пассажирские и вспомогательные причалы, используемые для выполнения вспомогательных операций грузовых и пассажирских судов, стоянки судов портофлота и проведения бункеровки судов.
4.3.1.2 Параметрами, подлежащими расчету и обоснованию для всех типов причалов, являются:
- количество причалов;
- глубина у причала;
- длина причала;
- возвышение кордона причала;
- нормативные (базовые значения) нагрузки на причальные сооружения.
4.3.2 Количество причалов
4.3.2.1 Количество грузовых причалов рассчитывается исходя из соотношения заданного грузооборота терминала и пропускной способности причала по методу, рекомендуемому
приложением Г.
4.3.2.2 Методы расчета количества вспомогательных и пассажирских причалов приведены, соответственно, в
приложениях Д и
Е.
4.3.3.1 Расчетное значение проектной глубины причала определяется как сумма осадки расчетного судна на перспективу и запасов глубины.
4.3.3.2 В проектах при расчете глубины каждого конкретного причала в качестве расчетного принимается одно из заданных к приему и обработке у данного причала судов, имеющее наибольшую осадку по основную летнюю марку ("Л").
Метод расчета запаса глубины под судном приведен в СП "Нормы проектирования морских каналов, фарватеров и зон маневрирования".
4.3.4.1 Проектное значение длины причала определяется как сумма длины расчетного судна и запаса свободной длины причала, необходимого для безопасной швартовки, стоянки и отшвартовки судна. При этом предусматривается, что причальная линия располагается в пределах указанной длины причала и не требует для обработки судна его перестановки вдоль причала.
4.3.4.2 При расчете длины причала, предназначенного для приема и обработки составных судов, в расчете принимается длина наибольшего грузового блока (секции, модуля).
4.3.4.3 В случае постановки судов к причалу под обработку носом или кормой в расчет длины причала принимается наибольшая ширина судна из линейки расчетных судов, принятых в проекте.
4.3.4.4 При расчете длины причала, состоящего из причальной стенки и швартовных и отбойных палов, следует учитывать размещение швартовных и отбойных палов. Размеры причальной стенки определяются размерами необходимой технологической площадки, которая устанавливается исходя из технологических требований размещения и работы на ней перегрузочных и других причальных машин при соблюдении условия обработки судна без его перестановки вдоль причала. Допустимое расстояние выноса элементов корпуса судна при стоянке у причалов палового, палово-эстакадного или у крайнего ГТС за угол причала определяется в проекте в соответствии с требованиями СП (проект) "Нормы проектирования морских каналов, фарватеров и зон маневрирования" при условии, что такой вынос не влияет на безопасность мореплавания.
4.3.4.5 Запас свободной длины причала зависит от конфигурации участка причальной линии, на которой проектируется причал, его относительного расположения на этом участке и от длины расчетного для данного причала судна, и определяется в соответствии с
приложением Ж.
4.3.4.6 Запас свободной длины причалов на незащищенных от волнения или подверженных тягуну акваториях следует определять расчетом, исходя из конкретных условий эксплуатации причала.
4.3.4.7 При постановке накатного судна, оборудованного прямой аппарелью, к причалу лагом и одновременно кормой (носом) к участку причала, расположенному перпендикулярно к нему, необходимость запаса свободной длины причала между судном и этим участком и его величина устанавливаются с учетом характеристик аппарелей судов, обработка которых предусматривается на проектируемом причале.
4.3.4.8 Общая длина прямолинейного участка причальной линии, состоящего из трех и более причалов, имеющих передвижные перегрузочные машины, с учетом несовпадения времени стоянки наиболее крупных судов, может быть сокращена на величину до 10% расчетной длины, определяемой согласно
4.3.4.1 -
4.3.4.5. Кроме того, допускается сокращение причальной линии, состоящей из трех и более причалов, при постановке судов борт в борт, в частности, при стоянке судов портового флота.
4.3.4.9 Допускается увеличение длины причала против длины, определенной согласно
4.3.4.1, в следующих случаях:
- при особых планировочных условиях (подход по кривой ж/д путей на концевом причале и т.п.);
- при разбивке существующих участков причальной линии на причалы, когда остаток причальной линии недостаточен для формирования целого причала;
- при необходимости размещения технологического оборудования, установки навигационного оборудования и т.п.
4.3.4.10 Проектное значение длины причала для судов на воздушной подушке, представляющего собой участок береговой полосы, имеющей твердое покрытие, устанавливается исходя из требований, предъявляемых к размещению на берегу расчетного судна данного типа.
4.3.5 Возвышение кордона причала
4.3.5.1 Проектное значение возвышения кордона причала определяется величиной возвышения прикордонной территории причала над уровнем отсчета.
4.3.5.2 Для портов, расположенных на морском побережье, или на участках рек с морским режимом судоходства проектное значение возвышения кордона причала следует назначать в соответствии с
4.3.5.3 -
4.3.5.11. Для портов, расположенных на участках рек с морским режимом судоходства, но с преобладающим воздействием реки - в соответствии с
4.3.5.12 -
4.3.5.15.
4.3.5.3 Проектное значение возвышения кордона причала на защищенных от волнения акваториях устанавливается сравнительным расчетом по основной и поверочной нормам, который проводится на основании нормативов минимального возвышения кордона причалов (см.
таблицу 4.1) над соответствующими исходными уровнями воды, определяемыми по графику многолетней обеспеченности ежечасных уровней за навигационный период.
Характер бассейна | Основная норма | Поверочная норма |
Исходный уровень | Норматив минимального возвышения кордона причала над исходным уровнем, м | Исходный уровень | Норматив минимального возвышения кордона причала над исходным уровнем, м |
Неприливные моря | Средний многолетний | 2,0/1,2 | Наивысший годовой обеспеченностью в многолетнем ряду 2% (один раз в 50 лет) | 1,0/0,0 |
Приливные моря | 50% обеспеченности | 2,1/1,0 | 1% обеспеченности | 1,0/0,0 |
Примечания 1 К приливным морям относятся моря с величиной прилива более 0,5 м. 2 В числителях указаны нормативы минимального возвышения кордона грузовых и пассажирских причалов, а в знаменателях - вспомогательных причалов, причалов местного сообщения и портового флота. 3 При необходимости величина возвышения кордона вспомогательных причалов местного сообщения и портофлота может быть повышена до соответствующей величины грузовых причалов. |
По основной норме устанавливается возвышение кордона причала относительно уровня отсчета из условия обеспечения удобства стоянки судов у причала и проведения погрузочно-разгрузочных работ при средних уровнях воды, а по поверочной норме - возвышение кордона относительно уровня отсчета, обеспечивающее незатопляемость территории причала при максимальных уровнях.
Наибольший из полученных результатов принимается за проектное значение возвышения кордона причала.
4.3.5.4 Проектное значение возвышения кордона причала на незащищенных или не полностью защищенных от волнения акваториях устанавливается в каждом конкретном случае в зависимости от совокупности следующих факторов: величины прилива и отлива, высоты волны, конструкции проектируемых причалов, типов и размеров судов, а также технологических требований, включая наклон рампы, съезда или пандуса.
У причалов сквозной конструкции отметка низа ростверка должна быть не ниже отметки высоты волны соответствующей расчетной обеспеченности при соответствующем расчетном уровне, определяемом по
таблице 4.2 в зависимости от класса сооружения причала, в соответствии с требованиями
СП 38.13330.
Класс сооружения причала | Расчетный уровень обеспеченностью, % | Высота волны расчетной обеспеченностью % в системе |
I | 1 | 1 |
II | 5 | 5 |
III, IV | 10 | 13 |
4.3.5.5 В случае прокладки в конструкции причала сетей инженерно-технического обеспечения проектное значение кордона причала может быть увеличено из условия их незатопляемости.
4.3.5.6 В районах с глубиной промерзания грунта 1,6 м и более проектное значение возвышения кордона должно устанавливаться с учетом требований не замерзаемости сетей инженерно-технического обеспечения, проложенных по кордону, а также необходимости прокладки этих сетей выше уровня грунтовых вод.
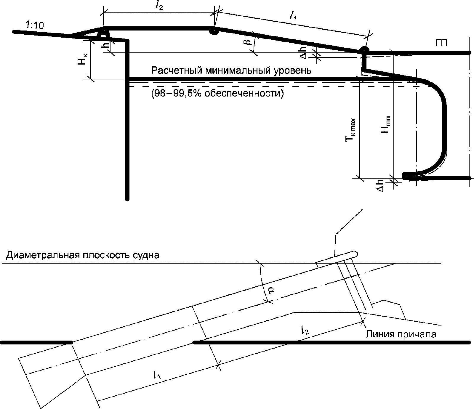
4.3.5.7 На терминалах, специализированных для накатных судов, проектное значение возвышения кордона причалов проверяется расчетом на возможность установки аппарели на причал в положение, удобное для проведения погрузочно-разгрузочных работ в течение всего периода обработки судна.
В случае расхождения полученного значения с проектным значением возвышения кордона в местах сопряжения аппарели с причалом устраивается береговой пандус или мост-рампа, параметры которых рассчитываются при конкретном проектировании.
Уклон пандуса не должен превышать отношения 1:10.
Пандус, как правило, должен располагаться на концевых участках причалов, не пересекая подкрановых путей прикордонных подъемно-транспортных машин.
4.3.5.8 Максимальное возвышение кордона причала (берегового пандуса, съезда) определяется для судна в грузу от уровня воды 98 - 99,5%-ной обеспеченности (см.
рисунки 4.1 и
4.2) по формуле

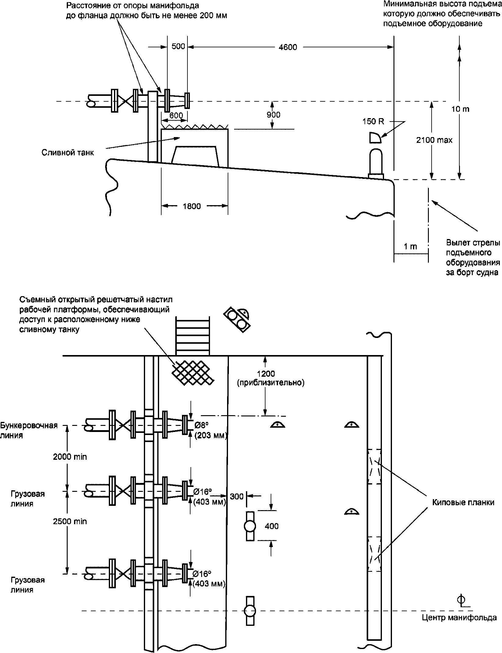
(4.1)
где Hг.пл - высота борта судна от киля до грузовой площадки (уровня расположения шарнира судовой рампы), м;
h - возвышение кордона над грузовой площадкой судна, м;

- максимальная осадка судна (кормой или носом, в зависимости от места устройства судовой рампы), м;

- величина изменения возвышения кордона относительно грузовой площадки из-за крена и дифферента судна, м

.

(4.2)
где l1 - длина первой секции судовой рампы, м;
tр - высота опорной секции рампы, м;

- угол наклона судовой рампы относительно горизонта, град

.
Примечания
1 Параметры
l1 и

должны приниматься по данным расчетных и перспективных типов судов.
2 При расчете возвышения кордона для судов с угловой рампой положение второй секции рампы принимается горизонтальным.
а) без берегового пандуса
б) с береговым пандусом
Рисунок 4.1 - Возвышение кордона для судна
с угловой рампой в грузу над минимальным
уровнем воды 98 - 99,5% обеспеченности
а) без берегового пандуса
б) с береговым пандусом
Рисунок 4.2 - Возвышение кордона для судна
с прямой рампой в грузу над минимальным
уровнем воды 98 - 99,5% обеспеченности
Рисунок 4.3 - Возвышение кордона для судна с угловой рампой
без груза при расчетном высоком уровне воды
4.3.5.9 Определение максимального возвышения кордона (берегового пандуса) производится, как правило, для судна наименьшего типоразмера из всех расчетных типов судов.
4.3.5.10 Минимальное возвышение кордона причала (берегового пандуса) определяется для судна без груза при высоком уровне воды (см.
рисунок 4.3) по
формулам 4.3 и
4.4

(4.3)

(4.4)
где l2 - длина второй секции судовой рампы;

- осадка кормой (носом) без груза.
Примечание - Обеспеченность высокого уровня воды принимается по технико-экономическим соображениям с рассмотрением возможности балластировки судна.
4.3.5.11 При реконструкции и расширении портов проектные значения возвышения кордона новых причалов при соответствующем обосновании могут быть приняты аналогично возвышению кордона существующих причалов.
4.3.5.12 Возвышение кордона причалов в портах, расположенных на не зарегулированных реках, следует назначать на уровне пика половодья с расчетной вероятностью превышения уровня 1%.
Примечания
1 Для портов (отдельных районов или терминалов) со среднесуточным грузооборотом менее 15000 т или пассажирооборотом менее 2000 пассажиров расчетную вероятность превышения уровня при назначении отметки кордона допускается принимать по нормам проектирования речных портов как для портов с соответствующим грузо- или пассажирооборотом при соответствующем технико-экономическом обосновании.
При этом грузо- или пассажирооборот входящих в состав порта отдельных районов или терминалов, расположенных на обособленной территории, следует определять только для этих структурных подразделений, а не всего порта.
2 При реконструкции или расширении действующего порта и соответствующем технико-экономическом обосновании допускается принимать существующие возвышения кордона причалов.
3 Возвышение кордона служебных и вспомогательных причалов следует назначать равным отметке кордона грузовых или пассажирских причалов, которые они обслуживают.
4.3.5.13 Возвышение кордона причалов, оснащенных береговым перегрузочным оборудованием, а также застроенных зданиями и сооружениями, должно быть на 0,2 м выше отметки наивысшего уровня ледохода 2% обеспеченности с учетом заторных явлений.
В случае невозможности или экономической нецелесообразности повышения отметки кордона должны быть предусмотрены меры, гарантирующие защиту от повреждения ледоходом оборудования, зданий и сооружений.
4.3.5.14 При выборе возвышения кордона, кроме требований, изложенных в
4.3.5.5, необходимо, чтобы перерыв в грузовых работах на причалах в период прохождения расчетного паводка не превышал 2% расчетной продолжительности навигационного периода.
4.3.5.15 В отдельных случаях с учетом рельефа площадки, характера летне-осенних паводков или эксплуатационных условий (типы судов, вид перегрузочных механизмов, возможность подъезда наземного транспорта и др.) возвышение кордона причалов может быть выше установленных
4.3.5.5 -
4.3.5.7. Такое повышение должно быть в каждом случае обосновано.
4.3.6 Нормативные (базовые значения) нагрузки на причальные сооружения
4.3.6.1 Категорию нормативных (базовых значений) нагрузок на причальные сооружения устанавливают в зависимости от назначения проектируемого причала с учетом перспективы развития порта по
таблице 4.3.
Наименование причалов | Категория нормативных нагрузок |
Для навалочных и насыпных грузов, перерабатываемых на специализированных технологических перегрузочных комплексах: | |
- при складе, расположенном вне зоны непосредственного воздействия нагрузок от складируемых грузов на причальные сооружения | 0-б |
- при прикордонном расположении склада | 0-с |
Для навалочных грузов, металлов и оборудования и других грузов массой грузового места 10 и более тонн, перерабатываемых на причале с крановой схемой механизации: | |
- причалы глубиной 11,5 м и более | 0 |
- остальные причалы | 0 (I) |
Для крупнотоннажных контейнеров и накатных грузов | 0-к |
Для генгрузов | I (II) |
Для зерновых грузов | III (II) |
Для лесных грузов | I (0) |
Для грузопассажирских операций | III (II) |
Для наливных грузов | III |
Служебно-вспомогательные | III |
4.3.6.2 Нормативные (базовые значения) нагрузки от перегрузочных машин, транспортных средств и складируемых грузов на причальные сооружения, кроме узких пирсов, принимают по
таблице 4.4 и в соответствии с
СП 58.13330. Стандартные схемы и характеристики нагрузок от прикордонных кранов и перегружателей приведены в
приложении И. Расчет нагрузки на покрытия причала от новой тяжеловесной мобильной техники при отсутствии стандартных схем рекомендуется выполнять согласно
РД 31.31.55-93 "Инструкция по проектированию морских причальных и берегоукрепительных сооружений".
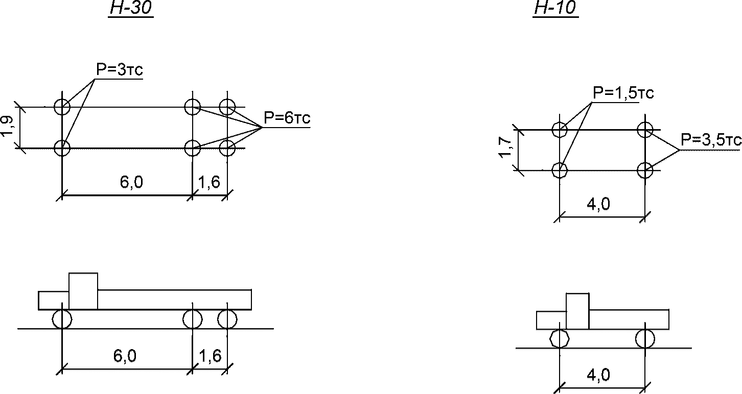
Категория нормативных нагрузок на причал | Нагрузки от перегрузочных машин и транспортных средств/категория | Нагрузки от складируемых грузов (кН/м2 (тс/м2)) |
Прикордонные краны и перегружатели | ж.-д. транспорт кН/м пути (тс/м пути) | Безрельсовый транспорт | в прикордонной зоне | в переходной зоне | в тыловой зоне |
А | Б | В | Г |
0-с | К-35 | 137,2 (14) | Н-30 | 19,6 (2,0) | 39,2 (4,0) | 117,6 (12,0) | 196 (20,0) |
0-б | К-35 | 137,2 (14) | Н-30 | 7,35 (0,75) | 14,7 (1,5) | 19,6 (2,0) | 19,6 (2,0) |
0-к | КП | - | КВ-70 | 19,6 (2,0) | 39,2 (4,0) | 58,8 (6,0) | 98 (10) |
(КВ-35) | 39,2 (4,0) |
0 | К-35 | 137,2 (14) | Н-30 | 19,6 (2,0) | 39,2 (4,0) | 117,6 (12,0) | 196 (20,0) |
I | К-35 | 137,2 (14) | Н-30 | 19,6 (2,0) | 39,2 (4,0) | 58,8 (6,0) | 98 (10,0) |
II | К-25 | 137,2 (14) | Н-30 | 14,7 (1,5) | 29,4 (3,0) | 39,2 (4,0) | 58,8 (6,0) |
III | - | - | Н-10 | 7,35 (0,75) | 14,7 (1,5) | 19,6 (2,0) | 19,6 (2,0) |
4.3.6.3 Нормативные (базовые значения) нагрузки на узкие пирсы для нефти, нефтепродуктов, химических, пищевых и прочих наливных грузов, а также на узкие пирсы в составе специализированных технологических перегрузочных комплексов для навалочных и насыпных (в том числе зерновых) грузов принимают по
таблице 4.5.
Нормативные нагрузки | Узкие пирсы для нефти, нефтепродуктов, химических, пищевых и прочих наливных грузов | Узкие пирсы в составе специализированных технологических перегрузочных комплексов для навалочных и насыпных (в том числе зерновых) грузов |
Береговая эстакада | Технологическая | Головная эстакада | Пал | По всей длине пирса |
От технологического оборудования | Определяется расчетом | Определяется расчетом |
От безрельсового транспорта | Н-10 | Н-10 | - | - | Н-30 |
От складируемых грузов, кН/м2/тс/м2 | 9,8/1,0 | 9,8/1,0 | 3,0/0,4 | - | 9,8/1 |
От людей кН/м2/тс/м2 | 3,0/0,4 | - | - | - | - |
Примечания 1 В нормативных нагрузках от складируемых грузов указаны в числителе - нагрузка на проезжую часть, в знаменателе - нагрузка на тротуар. 2 Указанные в таблице 4.5 нормативные нагрузки от безрельсового транспорта учитывают нагрузки от пожарных машин и автокранов грузоподъемностью до 5 т. |
4.3.6.4 Схемы нормативных (базовых значений) нагрузок на причальные сооружения даны на
рисунке 4.4. Обозначение зон А, Б, В и Г приведено в
таблице 4.4.
Рисунок 4.4 - Схемы нормативных нагрузок
на причальные сооружения
Причалы, предназначенные для перегрузки крупнотоннажных контейнеров, блок-пакетов и других тяжеловесных грузов, в том числе для накатных судов, должны рассчитываться на нагрузку по схеме "а"
(рис. 4.4) с учетом того, что в зонах Б, В и Г допускается сочетание воздействия нагрузок от складируемых грузов и от безрельсового транспорта.
Причалы специализированных терминалов для перегрузки навалочных и насыпных грузов могут рассчитываться на нагрузку по схеме "а" или "в". При строительстве причалов с прикордонными конвейерными галереями в зонах А и Б должны учитываться нагрузки только от железнодорожного подвижного состава и безрельсового транспорта, а нагрузки в зонах В и Г от складируемых грузов следует принимать соответственно категории нормативных нагрузок 0-с или 0-б по
таблице 4.4.
Для причалов, рассчитанных по 0, I или II категориям нормативных нагрузок, каждая зона по ширине причала (А, Б, В и Г) может быть загружена одной из нагрузок, приведенных на схемах "а", "б" и "в".
Для причалов, рассчитываемых по III категории нормативных нагрузок, каждая зона причала может быть загружена по схеме "б" по всей ширине причала - нагрузкой от безрельсового транспорта либо произвольным (возможным в производственных условиях) сочетанием этих нагрузок.
4.3.6.5 Для II категории нормативных нагрузок, как правило, допускается крановая нагрузка по схеме К-35.
4.3.6.6 Нормативы (базовые значения) нагрузок на причальные сооружения от навалов судов и рывков швартовов под действием ветра и волн принимают согласно
СП 38.13330 с учетом рекомендаций
[27], утвержденного Департаментом морского транспорта Министерства транспорта Российской Федерации.
4.4.1 Железнодорожные пути
4.4.1.1 Положения настоящего раздела распространяются на технологическое проектирование подъездных и внутренних железнодорожных путей на грузовых терминалах.
4.4.1.2 Внутренние железнодорожные пути подразделяются на:
- прикордонные, предназначенные для обработки судов и вагонов по прямым вариантам работ и располагаемые в зоне действия судовых и прикордонных перегрузочных машин;
- тыловые, располагаемые вне зон действия прикордонных перегрузочных машин.
4.4.1.3 Подъездные и внутренние железнодорожные пути на специализированных терминалах следует проектировать с учетом требований, предъявляемых соответствующими разделами и
СП 37.13330.
4.4.1.4 В состав железнодорожных грузовых фронтов входят:
- погрузочно-разгрузочные пути, на которых обрабатываются вагоны;
- соединительные (маневровые) пути, которые служат для подачи (уборки) вагонов на грузовые пути.
Примечание - В ряде случаев в состав железнодорожных грузовых фронтов могут входить транзитные пути, предназначенные для подачи вагонов на объекты, не относящиеся к данному терминалу.
4.4.1.5 При проектировании тыловых железнодорожных путей на универсальных терминалах, где перегружаются генеральные грузы крытого хранения, рекомендуется предусматривать стационарные погрузо-разгрузочные рампы, обеспечивающие механизированную обработку вагонов. Отказ от установки стационарной рампы подтверждается технико-экономическим обоснованием, выполняемым на стадии предпроектных проработок.
4.4.1.6 Количество прикордонных железнодорожных путей, располагаемых на участке причальной линии, обслуживаемом одним самостоятельным подходом железнодорожных путей, зависит от числа причалов, входящих в этот участок, их специализации по роду груза, количества судов, одновременно обрабатываемых по прямому варианту на этом участке, расчетного количества технологических линий, которыми обрабатываются эти суда по прямому варианту. Рекомендации по определению количества прикордонных путей приведены в
приложении К.
Схемы расположения прикордонных железнодорожных путей на терминале с портальными кранами с колеей 10,5 м приведены в
приложении Л.
4.4.1.7 Количество железнодорожных путей, предназначенных для обработки вагонов у крытых рамповых складов, зависит от взаимного расположения складов:
- при размещении складов в одну линию со стороны рампы (либо рамп) укладываются два пути (один у рампы грузовой, второй - маневровый);
- при двух линиях складов, обращенных прирельсовыми рампами друг к другу, укладываются три пути (у рамп - грузовые, а средний - маневровый).
4.4.1.8 Минимальное расстояние от оси ближайшего железнодорожного пути, расположенного вне портала, до подкранового рельса следует принять Bск = 3,5 м, а на участках универсальных терминалов, перерабатывающих смешанные генеральные грузы (крытого и открытого хранения), при размещении электроколонок между подкрановым рельсом и железнодорожным путем вне портала, где также могут устанавливаться столы-рампы, это расстояние должно быть принято не менее Bск = 5,3 м.
4.4.1.9 На терминалах, перерабатывающих генеральные грузы крытого хранения и имеющих стационарные рампы (в том числе смонтированные из сборных элементов) за тыловой ниткой подкранового пути, расстояние от него до оси железнодорожного пути:
а) при расположении железнодорожного пути с тыловой стороны рампы (см.
рисунок 4.5 "а") определяется по формуле
B = Bн + Bр + Bг. (4.5)
Обозначения:
- Bн - расстояние от тыловой нитки подкранового пути до рампы, зависящее от ширины полосы, требуемой для укладки инженерных сетей за подкрановым рельсом. При этом Bн должно быть не менее 2 м;
- Bр - ширина рампы, которая принимается не менее 4,1 м;
- B
г - расстояние от рампы до оси железнодорожного пути принимается 2 м (см.
подраздел 4.5).
Рисунок 4.5 - Схемы расположения рампы
у железнодорожных путей
б) при расположении железнодорожных путей с двух сторон рампы (см.
рисунок 4.5 "б"):
- до оси ближайшего пути принимается 3,5 или 5,3;
- до оси второго пути (с тыловой стороны рампы) определяется по формуле
B = Bск + Bр + 2Bг. (4.6)
4.4.1.10 На терминалах, перерабатывающих генеральные грузы крытого хранения и имеющих склад с рампой с береговой стороны, находящейся в зоне действия прикордонных перегрузочных машин, расстояние от подкранового рельса до оси прирампового железнодорожного пути (см.
рисунок 4.5 "в") рассчитывается по формуле

(4.7)
где L - вылет крана, м;
K - колея крана, м;
Bрк - минимально необходимая оперативная зона (по ширине) рампы, обслуживаемая краном, м (принимается 3,5 м).
4.4.1.11 При проектировании железнодорожных путей на терминале необходимо учитывать, что по условиям техники безопасности:
- на территории порта, где предусматривается выполнение маневровых работ, введение электротяги не допускается;
- должна быть обеспечена безопасность движения на пересечениях внутрипортовых проездов и пешеходных переходов с железнодорожными путями;
- вагонные весовые устройства, как правило, должны располагаться за пределами операционной зоны терминала;
- рельсы железнодорожных путей на территории терминала должны быть расположены на уровне покрытия территории терминала;
- во избежание сброса состава в воду, а также схода его с рельсов на тупиковых маневровых и грузовых железнодорожных путях должны устраиваться тупиковые упоры (металлические либо железобетонные).
4.4.1.12 Проекты внутренних путей на терминалах с комплексом сооружений промышленного железнодорожного транспорта следует разрабатывать в увязке с технологией работы припортовой станции примыкания. При этом следует учитывать коэффициент неравномерности поступления подвижного состава с внешней сети железных дорог.
4.4.2 Крановые рельсовые пути
4.4.2.1 Крановые рельсовые пути на терминале предназначены для установки на грузовых фронтах, а также на открытых складских площадках различных перегрузочных машин на рельсовом ходу: портальных и козловых кранов, причальных и складских перегружателей, других специальных машин.
4.4.2.2 Колею крановых путей на грузовых фронтах и открытых складских площадях надлежит принимать по разделам проектирования соответствующих терминалов в зависимости от используемого на них перегрузочного оборудования, а также технологии и организации перегрузки или складирования грузов.
4.4.2.3 На терминале, на котором по технологии перегрузки грузов предусматривается транспортировка грузов портовыми транспортными средствами с пересечением этими средствами крановых путей, необходимо предусматривать строительство этих путей рельсами, утопленными в канавках.
Габариты канавки для путей портальных кранов следует принимать: ширина - 380 мм (по 190 мм с каждой стороны от оси кранового рельса), глубины (от уровней головки рельса) - 70 мм, возвышение головки кранового рельса над территорией - 20 мм. Для путей причальных перегружателей, козловых кранов и погрузочных машин профиль канавки определяется при конкретном проектировании.
4.4.2.4 На путях для причальных перегружателей, козловых складских и железнодорожных кранов (как отечественных, так и импортных) не допускается проектировать криволинейные участки.
На путях для портальных кранов минимальный радиус криволинейных участков принимается равным 250 м.
4.4.2.5 При проектировании крановых путей для установки тяжелых перегрузочных машин (контейнерные перегружатели и др.) должно предусматриваться устройство на определенных участках рельсового пути стационарного фундамента под домкраты для подъема ходовых тележек с целью производства их ремонта и замены ходовых элементов, а также ремонтная площадка с другими необходимыми устройствами.
4.4.2.6 Проектирование крановых путей выполняется в соответствии с
приказом Федеральной службы по экологическому, технологическому и атомному надзору от 12 ноября 2013 г. N 533, распространяющемуся на все краны, устанавливаемые на территории Российской Федерации, в том числе и на краны зарубежного производства.
4.4.2.7 Расстояние от кордона до оси ближайшего кранового рельса, как правило, следует принимать при установке на причалах:
- причальных контейнерных перегружателей грузоподъемностью до 40 т - 4 м;
- портальных кранов - 3,2 м.
4.4.2.8 Расстояние от кордона до оси ближайшего кранового рельса "В" (см.
рисунок 4.6) определяется конкретно при проектировании в случаях:
- при установке на причалах причальных контейнерных перегружателей грузоподъемностью свыше 40 т;
- установки передвижных погрузочных машин, специальных перегружателей или других передвижных перегрузочных машин при подаче электроэнергии через троллеи, расположенные в прикордонной зоне причала.
Примечание - Расстояние от кордона до оси ближайшего кранового рельса может быть уменьшено до 2,75 м при специализации причала на обработке речных судов.
4.4.2.9 В случае примыкания проектируемых причалов к существующим причалам, для которых расстояние от кордона до крановых рельсов отлично от норм настоящего раздела, в проектах должна быть рассмотрена возможность и целесообразность устройства переходного участка крановых путей.
4.4.2.10 При установке на одном прямолинейном отрезке причальной линии различного оборудования (портальные краны, причальные перегружатели, передвижные погрузочные машины), а также при расположении на одной линии причалов различной специализации планировки крановых и железнодорожных путей решаются в зависимости от конкретных условий с учетом требований, устанавливаемых настоящим разделом.
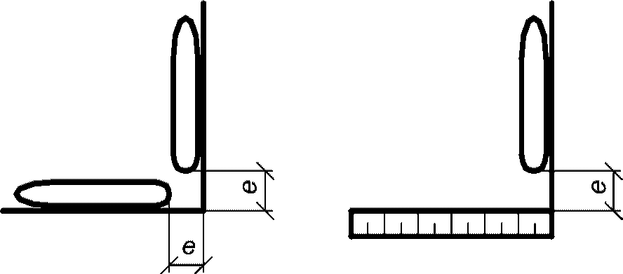
а) тумба швартовная; б) электроколонка
Обозначения:
- Bт - принимаются по ГОСТ 17424-72;
- B'кр и Bкр - при расположении соответственно на кордоне и в тылу;
- Bэк - принимается по паспортным данным.
Рисунок 4.6 - Схемы определения расстояния от кордона
до оси ближайшего кранового рельса для швартовной тумбы
на высоте до 2 м от головки рельса
4.4.3 Маневровые работы на территории порта
4.4.3.1 Выбор маневровых средств для перемещения вагонов на грузовых фронтах, перегона вагонов в тупики, очистки путей от снега и т.д. следует осуществлять исходя из условий проведения этих работ и эффективности применения той или иной технологии маневровых работ в производственном процессе морского порта.
4.4.3.2 В соответствии с
СП 37.13330 при проектировании технологии маневровых работ следует предусматривать мероприятия, направленные на обеспечение:
- безопасности движения транспортных средств;
- безопасности выполнения транспортных, погрузочно-разгрузочных и ремонтных работ;
- взрывопожарной и пожарной безопасности проектируемых объектов, транспортных, погрузочно-разгрузочных и ремонтных работ.
Предусматриваемые в проектах меры безопасности должны удовлетворять требованиям действующих постановлений, государственных стандартов, положений, правил, инструкций и других нормативных документов, утвержденных в установленном порядке.
4.4.3.3 Пропускная способность рельсовых путей и маневровых устройств, определяемая на расчетный срок, должна соответствовать расчетному объему завоза/вывоза грузов железнодорожным транспортом и иметь резерв не менее 15%. В особых случаях при обеспечении технологических процессов, не допускающих остановки или длительного перерыва, резерв мощности допускается увеличивать до 100%.
4.5.1.1 Склады морских портов предназначены для:
- приема, размещения, оперативного хранения, накопления, подготовки и формирования партий грузов;
- выполнения функции буфера, сглаживающего неравномерность подхода подвижного состава смежных видов транспорта.
4.5.1.2 Настоящий раздел распространяется на проектирование крытых и открытых складов, располагаемых на универсальных терминалах с крановыми схемами механизации.
Нормы раздела не распространяются на проектирование узкоспециализированных крытых складов, входящих в состав универсального терминала, к которым относятся склады для хранения опасных грузов классов 1, 2, 6, 7 по
Правилам МОПОГ
[29] и склады-холодильники, а также на склады, входящие в состав специализированных терминалов, проектирование которых осуществляется с учетом требований, предъявляемых к ним ведомственными нормами и требованиями.
4.5.1.3 При проектировании грузовых складов следует руководствоваться требованиями действующих строительных и противопожарных норм, правил и других нормативных документов.
4.5.2 Крытые склады для генеральных грузов
4.5.2.1 Крытые склады следует размещать:
- в прикордонной части операционной зоны терминала в случае преобладания в общем объеме генеральных грузов, переваливаемых на терминале, грузов крытого хранения;
- в тыловой части операционной зоны в случае преобладания в общем объеме генеральных грузов, переваливаемых на терминале, грузов открытого хранения, а также при невозможности размещения крытых складов в прикордонной части операционной зоны терминала.
Расчет потребной площади складов следует проводить по методике, приведенной в
приложении М с учетом требований
СП 56.13330.
4.5.2.2 При выборе объемно-планировочных, конструктивных решений, определении числа этажей и высоты зданий проектируемых крытых складов следует руководствоваться
СП 56.13330.
4.5.2.3 При определении длины прикордонных крытых складов и мест их размещения, следует учитывать необходимость обеспечения с торцов складов проездов в тыловые зоны терминалов, пандусов для въезда напольных средств механизации на рампы и внутрь склада через торцовые ворота, а также возможность обработки у торцовых рамп складов автотранспорта, контейнеров и ролл-трейлеров.
4.5.2.4 Хранение грузов в крытых складах должно предусматриваться в штабелях, образуемых непосредственно на полу складов или на стеллажах, которыми рекомендуется оборудовать склады.
4.5.2.5 При планировании складских помещений следует предусмотреть их деление на секции в зависимости от характера и особенностей сохраняемых грузов. При проектировании секций склада необходимо руководствоваться требованиями
Постановления Правительства Российской Федерации от 25.04.2012 N 390
[30].
4.5.2.6 Категории складов по взрывопожарной и пожарной опасности определяются в соответствии с
4.1.19.
4.5.2.7 Если по технологическим или санитарным условиям предусмотрено разделение складских помещений на отсеки, деление следует производить с таким расчетом, чтобы площадь каждого отсека не превышала допустимую по
СП 56.13330,
СП 114.13330.
4.5.2.8 Полезную высоту складов (от пола до низа несущих конструкций покрытия или междуэтажного перекрытия) надлежит принимать:
а) в одноэтажных складах - 7,8 м;
б) в многоэтажных складах:
1) первого этажа - 6,0 м;
2) остальных этажей - на менее 4,8 м.
4.5.2.9 Установленные нормы нагрузок на полы, перекрытия и стены складов определяются как сумма нормативных эксплуатационных нагрузок от складируемых грузов и нагрузок от средств механизации.
Нормативные эксплуатационные нагрузки от складируемых грузов и от средств механизации для расчета полов и перекрытий следует принимать в соответствии с
приложением М.
4.5.2.10 Крытые склады должны оборудоваться современными рулонными (барабанными) воротами.
У проемов ворот в створе вертикальных стоек с внутренней и наружной сторон должны быть установлены охранные столбики, окрашенные в легкоразличимый цвет в соответствии с
ГОСТ Р 12.4.026.
4.5.2.11 Крытые одноэтажные склады и первые этажи многоэтажных складов рекомендуется оборудовать погрузочно-разгрузочными рампами, предназначенными для производства погрузочно-разгрузочных работ.
В зависимости от назначения рампы оборудуются мостиками для возможности въезда средств механизации в вагоны, на автотранспорт, в контейнеры и т.д. Установка и уборка мостиков должны осуществляться механизированно.
4.5.2.12 Ширину погрузочно-разгрузочных рамп складов надлежит принимать:
- для обработки вагонов, расположенных вне зоны действия портальных кранов, для обработки автотранспорта, ролл-трейлеров и контейнеров, установленных на средства транспортирования - 7 м;
- для обработки вагонов, расположенных в зоне действия портальных кранов, - не менее 7 м.
4.5.2.13 Высоту погрузочно-разгрузочных рамп крытых складов надлежит принимать:
- для обработки как универсальных, так и рефрижераторных вагонов в соответствии с
СП 109.13330;
- для обработки автотранспорта и контейнеров, установленных на полуприцепах и прицепах (трейлерах), - 1200 мм от верха покрытия территории;
- для обработки ролл-трейлеров и контейнеров, установленных на роллтрейлерах, - 700 мм от верха покрытия территории.
4.5.2.14 Погрузочно-разгрузочные рампы, не обслуживаемые кранами, должны иметь навесы.
Высота от покрытия рампы до низа выступающих конструкций навеса (в плоскости передней грани навеса) должна приниматься:
- для складов, где работают вилочные погрузчики, - 4,5 м;
- при других средствах механизации (подвесные и мостовые краны, погрузчики со стрелой и др.) - с учетом габаритов этих средств в рабочем состоянии, размеров грузовых единиц и технологии перегрузки грузов.
Расстояние от головки рельсов железнодорожных путей, расположенных у рампы, до низа выступающих частей навеса принимают в соответствии с
ГОСТ 9238.
4.5.2.15 Навес должен перекрывать:
- рампу и не менее 0,6 ширины вагона при обработке железнодорожных вагонов вилочными погрузчиками;
- рампу и вагон по всей его ширине при обработке вагонов другими перегрузочными машинами;
- рампу, часть автомашины или контейнера в месте их загрузки (разгрузки) длиной не менее 1,5 м при обработке крытого автотранспорта и контейнеров.
4.5.2.16 Верхние этажи многоэтажных складов, находящихся в зоне действия портальных кранов, должны иметь в зависимости от этажности и конструкции складов грузовые балконы или террасы.
4.5.2.17 Ширину грузовых балконов или террас верхних этажей многоэтажных складов принимают 3,5 м (размеры от внутренней грани ограждения до наружной стены склада).
| | ИС МЕГАНОРМ: примечание. В официальном тексте документа, видимо, допущена опечатка: пункт 4.5.3.12 отсутствует. Возможно, имеется в виду пункт 4.5.2.12. | |
При наличии конструкций склада, нависающих над грузовыми фронтами, ширина рамп, грузовых балконов и террас должна назначаться с условием, чтобы расстояние от края нависающей конструкции до внутренней грани съемного бруса рампы, ограждения террасы или балкона было не менее 3 м. При этом полная ширина рамп должна быть не менее величин, установленных
4.5.3.12.
4.5.2.18 Возвышение грузового балкона либо террасы верхнего этажа многоэтажного склада не должно превышать высоту подъема груза портальными кранами с учетом безопасного проноса груза над ограждением.
4.5.2.19 В крытых складах надлежит предусматривать помещения для рабочих мест складских работников, которые следует проектировать в соответствии с требованиями
СП 44.13330.
4.5.3 Особые требования к крытым складам для химических грузов в таре классов 3 - 5, 8, 9 по МК МПОГ
4.5.3.1 Склады должны отвечать требованиям международных договоров Российской Федерации, государственных стандартов, правил и инструкций перегрузки и хранения соответствующих химических грузов:
Правилам МОПОГ
[29],
СП 92.13330, Правилам охраны труда в морских портах
ПОТ РО-152-31.82.03-96 [31].
4.5.3.2 Хранение химических грузов в таре, обладающих агрессивностью по отношению к другим грузам, следует предусматривать в особых крытых складах либо в отдельных секциях общих (обычных) складов, специально предназначенных к такому хранению.
4.5.3.3 Склады, предназначенные для одновременного хранения различных химических грузов в таре, должны делиться на секции с соблюдением
Правил МОПОГ
[29] для хранения конкретных грузов.
4.5.3.4 Склады для хранения химических грузов должны быть одноэтажными, хорошо защищенными от проникновения атмосферных осадков и солнечных лучей, хорошо вентилироваться, иметь освещение в безопасном исполнении.
4.5.3.5 Конструкции и оборудование складов должны быть изготовлены из соответствующих материалов или иметь защитные покрытия, предохраняющие их от агрессивного воздействия химических веществ, легко поддаваться санитарной обработке. При выборе материала для полов следует руководствоваться
СП 29.13330.
4.5.3.6 Полы складов, предназначенных для хранения химических грузов, активно взаимодействующих с водой, должны быть приподняты над уровнем прилегающей территории не менее чем на 200 мм.
Полы должны иметь стоки для вывода вод, загрязненных химическими грузами, в специальные очистные сооружения.
4.5.3.7 В складах, предназначенных для хранения химических грузов, которые при взаимодействии с водой могут вызвать взрыв или пожар, не допускается устройство водопровода, водяного и парового отопления, а также водяных средств автоматического пожаротушения (выбор огнетушащего вещества производится в зависимости от характера и свойств хранимого груза).
4.5.3.8 Склады для хранения химических грузов должны иметь соответствующие трафареты и предупреждающие знаки в соответствии с
ГОСТ Р 12.4.026.
4.5.3.9 В складах следует предусматривать специальные изолированные помещения для временного хранения грузов в поврежденной таре, размеры которых определяются при проектировании.
4.5.4 Особые требования к крытым складам для скоропортящихся грузов
4.5.4.1 Склады для скоропортящихся грузов подразделяются на:
- склады с регулируемым температурным режимом;
- склады отапливаемые и вентилируемые;
- склады-холодильники.
Нормы настоящего СП не распространяются на склады-холодильники.
4.5.4.2 Склады должны быть оборудованы грузовыми фронтами для обработки железнодорожных вагонов и автомобилей. Эти фронты устраиваются:
- для складов с регулируемым режимом - закрытыми;
- для складов отапливаемых и вентилируемых - открытыми.
В случае устройства открытых фронтов рампы рекомендуется перекрывать навесами.
4.5.4.3 Для выбора типа склада в зависимости от рода скоропортящихся грузов и определения совместимости хранения различных видов скоропортящихся грузов следует использовать
приложение М.
4.5.4.4 При проектировании складских помещений необходимо учитывать требования, предъявляемые к складам для хранения пищевых продуктов, изложенные в
СП 56.13330.
4.5.4.5 В составе открытых складов должны быть предусмотрены грузовые оперативные площадки для размещения рефрижераторных контейнеров, оборудованные устройствами для их подключения к электросети, в соответствии с
5.4.
4.5.5 Открытые склады. Общие требования
4.5.5.1 Хранение металлогрузов, оборудования, угля, руды, лесных и минерально-строительных грузов следует осуществлять на площадках открытых складов.
С учетом структуры грузопотока в проектируемом порту и возможных неблагоприятных климатических условий должно быть предусмотрено хранение металлогрузов, оборудования, ценных сортов пиломатериалов в обычных крытых складах.
4.5.5.2 При планировке открытых складов расстояние от торца штабеля со стороны путей и автодорог либо подпорной стенки должно приниматься:
а) до оси ближайшего железнодорожного пути при высоте груза (стенки):
1) до 1200 мм - 2,75 м;
2) более 1200 мм - 3,25 м;
б) до оси рельса кранового пути - 2,0 м;
в) до кромки проезжей части автодороги - 1,5 м.
Расстояние от штабелей круглого леса (поштучно при объеме штабелей до 10 тыс. м) до оси железнодорожного пути должно приниматься 5 м.
| | ИС МЕГАНОРМ: примечание. В официальном тексте документа, видимо, допущена опечатка: пункты 4.5.3.12 и 4.5.3.13 отсутствуют. Возможно, имеются в виду пункты 4.5.2.12 и 4.5.2.13 соответственно. | |
4.5.5.3 В составе универсального терминала для генеральных грузов должны предусматриваться грузовые фронты, которые могут решаться в виде рамп, являющихся продолжением открытых складских площадей, а также при надлежащем обосновании в виде отдельно стоящих рам. Высоту этих рамп и расстояние от рамп до оси железнодорожных путей надлежит принимать в соответствии с
4.5.3.12 и
4.5.3.13.
4.5.5.4 Грузовые операции и хранение опасных грузов в порту должны производиться в соответствии с требованиями
ПОТ РО-152-31.82.03 [31],
РД 31.41.04-79 [64],
Правил МОПОГ, РД 31.15.01-89
[29] и других нормативных документов, регламентирующих условия перегрузки и хранения грузов.
4.5.6 Особые требования к открытым складам лесных грузов и пиломатериалов
4.5.6.1 При отсутствии лесных баз и специализированных причалов для перевалки лесных грузов и пиломатериалов при необходимости их перевалки на универсальных терминалах следует предусматривать открытые склады для кратковременного хранения этих грузов.
При проектировании складов вместимостью более 10 тыс. плотных м
3 следует руководствоваться
СП 114.13330.
4.5.6.2 Размеры складов, разрывы между ними, способы складирования и схемы механизации складских работ устанавливаются при проектировании с учетом правил хранения пиломатериалов хвойных пород и лесоматериалов, предусмотренных соответствующими нормативными документами, строительными и противопожарными нормами, действующими на момент проектирования.
4.5.6.3 Хранение лесных грузов в складах должно быть предусмотрено в штабелях отдельно для каждого вида и сорта груза.
Высота и размеры штабелей должны устанавливаться в зависимости от схемы механизации складских работ, но не превышать значений, приведенных в
приложении М.
4.5.7 Особые требования к открытым складам для угля и руды
4.5.7.1 Следует предусматривать раздельное (в отдельных штабелях) хранение каждого вида, марки и класса навалочных грузов.
При проектировании открытых складов угля и руды необходимо разработать решения по отводу атмосферных осадков из штабелей и недопущению стока воды под соседние штабели.
4.5.7.2 На складах следует устраивать подпорные (ограждающие) стенки со стороны подкрановых и железнодорожных путей, автодорог, а также между штабелями. Высота ограждающих стенок должна приниматься в зависимости от максимальной проектной высоты штабеля.
Стенки не следует устанавливать в местах въезда на склады средств механизации и автотранспорта. Высота ограждающих стенок должна приниматься в зависимости от максимальной проектной высоты штабеля.
4.5.7.3 Размеры штабелей в плане определяются техническими возможностями перегрузочных машин, способом производства погрузочно-разгрузочных работ на складе и условиями планировки участка.
4.5.7.4 Высота штабелей при хранении углей и железной руды определяется в соответствии с
приложением М.
При проектировании складов для угля и железной руды должны быть учтены требования
Правил МОПОГ
[29] по складированию и хранению угля в порту, требования пожарной безопасности по
постановлению Правительства Российской Федерации от 25.04.2012 N 390
[30] и требования экологической безопасности.
4.5.7.5 Проходы между смежными штабелями угля и руды в пределах одного терминала должны быть шириной не менее 3 м. Расстояние между штабелями на смежных терминалах определяют из условий, определяемых противопожарными требованиями и безопасными условиями труда.
4.5.7.6 Склады для углей, устойчивых к окислению, со средней устойчивостью и повышенной активностью к окислению должны иметь резервные площадки не менее 5% полезной площади для охлаждения разогревшегося угля ворошением и освежения угля длительного хранения.
4.6.1 Конструирование покрытий портовой территории необходимо выполнять с учетом величины и характера приложения нагрузок, климатических, гидрологических, санитарно-гигиенических требований, а также наличия местных строительных материалов. При этом необходимо руководствоваться строительными нормами и правилами, государственными стандартами и другими нормативными документами, регламентирующими требования к материалам и правилам производства строительных работ.
4.6.3 Все внутрипортовые грузовые оперативные и складские площадки, проезды, дороги и подъезды должны иметь усовершенствованные постоянные покрытия, тип и вид которых в зависимости от их технологического назначения, как правило, принимают по
таблице Н.1 (приложение Н).
4.6.4 Покрытия из сборных железобетонных плит следует применять, как правило, в качестве временных, а также как постоянное покрытие в зонах прокладки сетей инженерно-технического обеспечения.
4.6.5 Конструкции покрытий должны удовлетворять следующим требованиям:
- иметь прочность, обеспечивающую надежную и долговечную эксплуатацию при принятых расчетных (подвижных, статических) нагрузках;
- противостоять пластическим деформациям;
- быть морозо- и трещиностойкими;
- иметь ровную поверхность, обеспечивающую организованный водоотвод;
- обладать шероховатостью для надежного сцепления с колесами машин внутрипортового транспорта;
- обладать антикоррозийными свойствами (на причалах химических, санитарно опасных и тому подобных грузов).
4.6.6 Расчет и конструирование жестких покрытий территории портов следует выполнять по руководящему документу
РД 31.31.46-88 [32].
4.6.7 На вновь образованных территориях порта необходимо предусматривать мероприятия по улучшению механических свойств грунтовых оснований покрытий.
4.6.8 Грунты, применяемые для отсыпки насыпей в надводной части территории, и грунты основания, устраиваемые из песка (крупного, среднего и мелкого), щебня и гравия, а также грунты верхней части земляного полотна (рабочего слоя) должны соответствовать требованиям
СП 34.13330.
4.6.9 Независимо от результатов расчета на прочность, толщину слоев постоянных покрытий необходимо принимать не менее величин, приведенных в
СП 34.13330 и руководящем документе
РД 31.31.46-88 [32].
4.6.10 При машинном способе укладки и вибрирования цементобетона толщина верхнего слоя покрытия, как правило, не должна превышать 30 см.
4.6.11 На насыпных грунтах высотой более 3 м степень армирования монолитного цементобетонного покрытия должна определяться только с учетом местных условий и на основании соответствующих расчетов.
4.6.12 Расчет и конструирование дорожных одежд внутрипортовых и межплощадочных автодорог, соединяющих отдельные участки или районы порта, следует выполнять в соответствии с положениями
СП 37.13330, МОДН 2-2001, Методическими
рекомендациями по проектированию жестких дорожных одежд
[33].
4.6.13 Тип планировочной организации рельефа, уклоны спланированной поверхности и планировочные отметки портовой территории необходимо принимать с учетом требований
СП 18.13330.
4.6.14 Для обеспечения отвода дождевых вод поверхность территории причалов с усовершенствованными покрытиями и поверхность складских площадок всех типов должны иметь уклоны:
- для контейнеров, блок-пакетов и тяжеловесов, а также для навалочных грузов - до 0,010;
- для генеральных и лесных грузов - 0,010 - 0,020;
- на площадках у механических мастерских, гаражей, заправочных и на стоянках автомашин и погрузчиков - 0,015 - 0,020.
4.6.15 На специализированных терминалах водоотводные устройства (в том числе, дождеприемники, водоотводные лотки, дренажи) следует размещать вне зоны интенсивных погрузочно-разгрузочных работ, при этом они должны быть усиленного типа, выдерживающими давление от расчетных типов машин.
Размещение дождеприемных колодцев под штабелями навалочных грузов не допускается.
4.7 Сети инженерно-технического обеспечения
4.7.1.1 Требования настоящего раздела распространяются на проектирование сетей инженерно-технического обеспечения (электроснабжения, связи и сигнализации, теплоснабжения, водоснабжения, водоотведения) на территории вновь строящихся, расширяемых и реконструируемых портов.
4.7.1.2 Сети инженерно-технического обеспечения терминалов для перевалки нефтепродуктов, химических, санитарно-опасных и других специфических грузов проектируются с учетом норм хранения и перевалки данного вида грузов.
4.7.1.3 При проектировании необходимо предусматривать взаимную увязку различных сетей инженерно-технического обеспечения между собой. В целях увязки взаимной прокладки различных сетей при их проектировании должен составляться сводный план сетей инженерно-технического обеспечения с обозначением мест подключения проектируемого объекта к существующим сетям инженерно-технического обеспечения.
4.7.1.4 Для прокладки всех магистральных сетей инженерно-технического обеспечения (электроснабжения, связи и сигнализации, теплоснабжения, водоснабжения, водоотведения) в тыловой зоне операционной территории порта, за пределами прикордонных грузовых площадок или зоны прикордонных крытых складов, должны отводиться специальные полосы со сборными плитами покрытия, либо устройством над ними газонов.
4.7.1.5 Сети инженерно-технического обеспечения следует прокладывать в местах, доступных в процессе эксплуатации для ревизии и ремонта, предпочтительно вдоль тыловых автомобильных дорог с учетом красных линий и других мест, где невозможна последующая застройка. На широких пирсах полоса для прокладки магистральных сетей, как правило, должна предусматриваться в средней части пирса.
4.7.1.6 Для прокладки сетей инженерно-технического обеспечения, связывающих магистральные сети с сетями прикордонной зоны, перпендикулярно причальной линии через каждые 1 - 2 причала, должны отводиться полосы с покрытием сборными плитами.
4.7.1.7 Проектирование сооружений сетей инженерно-технического обеспечения (колодцев, каналов), располагаемых на складских площадках, должны вестись с учетом нормативных нагрузок на покрытия этих площадок согласно требованиям
4.6.
4.7.1.8 На специализированных терминалах, предназначенных для перегрузки контейнеров и обработки накатных грузов в пределах складских площадок, протяженность сетей инженерно-технического обеспечения должна быть сведена к минимуму.
При этом в зоне складских площадок допускается прокладка сетей дождевой канализации, пожаротушения, электроснабжения и связи (для электроосвещения площадок и подключения перегрузочного оборудования, расположенного на этих площадках).
Сети инженерно-технического обеспечения в этом случае должны прокладываться, как правило, в проездах между штабелями.
4.7.2 Сети электроснабжения
4.7.2.1 При прокладке электрокабелей параллельно с другими сетями нормы сближения принимаются по
ПУЭ. При прокладке кабелей в траншее параллельно внутрипортовым железнодорожным путям, расстояние от кабеля до оси пути железной дороги может быть уменьшено до 2,5 м. Расстояние от кабеля до подкранового рельса должно быть не менее 1,5 м.
Примечание - Расстояние нормируется до подкранового рельса на шпальном основании. Расстояние до подкранового рельса на бетонной балке не нормируется.
4.7.2.2 Сети электроснабжения на территории морских портов должны выполняться, как правило, подземной прокладкой.
Прокладка воздушных сетей допускается как исключение на отдельных участках тыловых территорий и вдоль наружного ограждения порта.
Сети наружного освещения, управления и автоматизации следует прокладывать совместно с сетями электроснабжения по общим трассам и в одних кабельных сооружениях. При этом должны быть приняты меры по исключению влияния силовых электросетей на слаботочные. Высоковольтные кабели, как правило, должны прокладываться в траншее преимущественно в полосе сетей инженерно-технического обеспечения, определенной по
4.7.1.4. На территории портов электросети могут прокладываться в траншеях, туннелях, в канализации из асбоцементных или полимерных электротехнических труб или железобетонных блоков либо в каналах.
При выборе способов прокладки следует принимать во внимание:
- количество кабелей;
- требования надежности и безопасности;
- тип покрытия территории и нагрузку на покрытие;
- возможность замены кабелей и увеличения их количества;
- экономические соображения.
4.7.2.3 На открытых складских площадках и других участках территории порта с монолитным бетонным покрытием в нем следует оставлять полосы для прокладки электрических сетей с покрытием сборными плитами. В тех случаях, когда устройство разборного покрытия неприемлемо, кабели (независимо от их числа) следует прокладывать в канализации из труб или бетонных блоков согласно
ПУЭ. В местах пересечения с железными и автомобильными дорогами, подкрановыми путями и другими инженерными сооружениями кабели должны прокладываться в канализации из труб. На специализированных терминалах, использующих для перевалки грузов поточно-транспортные системы, прокладка электросетей на кабельных конструкциях выполняется по конструкциям эстакад и галерей.
4.7.2.4 В портах с высоким уровнем грунтовых вод допускается снижение высоты кабельных колодцев до 1,5 м (вместо 1,8 м по
ПУЭ).
Крышки люков кабельных приямков и колодцев должны располагаться с учетом открытия их в сторону крановых путей.
4.7.2.5 На терминалах, специализированных для контейнеров и обработки судов с горизонтальным способом погрузки, прокладка кабелей к прожекторным мачтам, перегрузочным машинам и пунктам подключения рефрижераторных контейнеров должна производиться только в канализации с устройством кабельных колодцев.
Для освещения территории прожекторные мачты на площадках складирования контейнеров должны, как правило, размещаться в проездах между штабелями.
На площадках складирования контейнеров трансформаторные подстанции должны размещаться по периметру складской площадки. В исключительных случаях, когда требуется установка подстанции внутри площадки, она не должна размещаться в пределах штабеля и технологических проездов.
4.7.2.6 Электроснабжение прикордонных передвижных подъемно-транспортных машин должно осуществляться либо с помощью электроколонок, расположенных вдоль крановых путей, либо с помощью подземных троллейных линий.
Электроколонки для питания кранов и электроснабжения судов должны устанавливаться преимущественно в заглубленных бетонных приямках.
Электроколонки следует устанавливать вне подкрановых путей со стороны линий кордона причала. Расстояние между электроколонками рекомендуется принимать не более 40 м.
В отдельных случаях допускается расположение колонок за тыловым рельсом.
Привязку электроколонок питания кранов в поперечном направлении следует производить с учетом габарита приближения, установленного в соответствии с
приказом Федеральной службы по экологическому, технологическому и атомному надзору от 12 ноября 2013 г. N 533. Расстояние в свету между колонкой и выступающими частями крана должно быть не менее 700 мм.
Присоединение крановых электроколонок к питающим фидерным линиям от распределительных щитов подстанций следует выполнять по схеме "через одну" с целью обеспечения большей надежности электропитания кранов.
4.7.2.7 На всех строящихся и реконструируемых причалах следует предусматривать установку электроколонок для электроснабжения судов (если это установлено заданием на проектирование). На одном причале следует предусматривать две колонки, располагая их вдоль причала на расстоянии, которое примерно определяется отношением 1:2:1.
Колонки электроснабжения судов должны быть подключены к отдельной линии, оборудованной прибором учета электроэнергии в РУ-0,4 кВ трансформаторной подстанции.
Присоединение колонок электроснабжения судов к сети питания кранов не допускается.
4.7.2.8 Электроколонки тыловых кранов должны устанавливаться за тыловым рельсом на расстоянии 35 - 40 м друг от друга с соблюдением требований
4.7.2.6. Кабели между этими колонками, как правило, следует прокладывать в канализации.
Из приямков крановых колонок должен быть предусмотрен отвод воды.
4.7.2.9 Контейнерные и другие перегружатели, работающие от сети напряжением 6 - 10 кВ, должны подключаться индивидуально к распределительному устройству ближайшей подстанции. Линии питания таких перегружателей должны быть (помимо максимальной защиты) оборудованы защитой от замыкания на землю с действием на отключение.
Соединение шлангового кабеля 6 - 10 кВ с кабелем стационарным должно производиться в прикордонном туннеле или кабельном колодце с помощью специальной кабельной муфты.
4.7.2.10 Высоковольтные шланговые кабели перегружателей при сматывании с кабельного барабана должны укладываться в лотки или канавки, которые следует предусматривать в бетонном покрытии. Из канавок должен быть сделан водоотвод и приняты меры против вмерзания кабеля.
4.7.3 Сети связи и сигнализации
4.7.3.1 В соответствии с руководящим документом
РД 31.30.11.01-84 [34] в портах должны прокладываться следующие сети связи:
- комплексная телефонная сеть, организуемая для следующих видов связи: производственной автоматической телефонной связи, директорской и диспетчерской телефонной связи, связи совещаний с использованием абонентских усилителей, телеграфной связи, передачи данных, передачи постоянным током до 60 В сигналов телемеханики, единого показания времени, сигнала тревоги в системах пожарной и охранной сигнализаций;
- сеть распорядительно-поисковой громкоговорящей связи;
- сеть радиофикации;
- сеть диспетчерского телевидения.
В емкости комплексной телефонной сети должна быть учтена потребность в связи для передачи данных автоматизированных систем управления (АСУ).
На территории портов, как правило, сети связи должны прокладываться в телефонной канализации.
Примечание - На отдельных участках портовой территории (на причалах, контейнерных площадках) кабели связи разрешается прокладывать в общей канализации с электрокабелем напряжением до 1000 В, но в отдельном канале.
Прокладку кабелей в земле следует предусматривать для территориально удаленных объектов, к которым трасса проходит по неспланированной местности.
4.7.3.2 Емкость телефонной канализации на отдельных участках определяется исходя из количества прокладываемых кабелей согласно рекомендациям
РД 31.30.11.01-84 [34].
4.7.3.3 Комплексная телефонная сеть в портах, как правило, должна строиться по шкафной системе. Допускается прямое питание при расстоянии от УАТС до зданий, сооружений, объектов порта до 300 м и во всех случаях для сетей ГО.
4.7.3.4 На причалах портов должна быть предусмотрена возможность связи судов с абонентами береговой телефонной сети и со службами погранохраны (отдельная сеть), а также передачи данных в АСУ.
Для этого на причалах устанавливаются пункты подключения с соединительными телефонными коробками или розетками.
Кроме того, должна быть предусмотрена возможность громкоговорящего оповещения.
Громкоговорители устанавливаются на прожекторных мачтах на высоте 5 - 10 м. Допускается установка громкоговорителей на стенах различных сооружений.
4.7.3.5 Прокладка телефонного кабеля вдоль причала возможна в общем туннеле или канале с электрокабелями, а при прокладке сетей в блоке труб - в отдельном канале.
При этом обязательным условием является обеспечение безопасного подключения средств связи.
Расстояние между пунктами подключения должно быть не более 75 м.
В зависимости от конструкции причала телефонные коробки (розетки) могут устанавливаться:
- в закрываемом металлической крышкой проеме, предусмотренном в перекрытии кабельного туннеля;
- в специальном бетонном приямке;
- в нише железобетонного колесоотбойного бруса или в расположенном у бруса металлическом ящике.
Во всех случаях подключение к коробкам со стороны воды не допускается.
4.7.3.6 Габариты сближения сетей связи с другими подземными сетями принимаются по нормам Федерального органа исполнительной власти в области выработки и реализации государственной политики и нормативно-правового регулирования в сфере электросвязи. При этом в стесненных условиях прокладки допускаются следующие отклонения от этих норм:
- при параллельном следовании кабеля связи, прокладываемого в траншее с высоковольтным кабелем напряжением до 10 кВ, расстояние между ними должно быть не менее 500 мм, а при условии прокладки кабеля связи в трубе или разделении кабелей от силовых перегородкой из железобетонных плит это расстояние может быть сокращено до 250 мм;
- при параллельном следовании кабеля связи в земле с внутрипортовыми железнодорожными путями расстояние между кабелем и осью железнодорожного пути должно быть не менее 3,5 м.
При прокладке кабеля связи в трубах это расстояние может быть уменьшено.
4.7.3.7 На контейнерных терминалах должны прокладываться:
- комплексная телефонная сеть, в емкости которой должна быть учтена возможность подключения терминала к устройствам приема и передачи данных АСУ;
- сеть громкоговорящего оповещения;
- сеть радиофикации;
- сеть диспетчерского телевидения.
Как правило, все эти сети прокладываются в кабельной канализации совместно с электрокабелями. Колодцы должны быть с усиленным перекрытием. Люки колодцев - тяжелого типа.
4.7.4 Сети теплоснабжения
4.7.4.1 При проектировании сетей теплоснабжения следует руководствоваться настоящим сводом правил, а также требованиями
СП 124.13330.
4.7.4.2 При осуществлении теплоснабжения порта от внешнего источника на вводе теплосети в порт должен устраиваться пункт учета потребляемой портом тепловой энергии.
4.7.4.3 При выборе способов и конструкции прокладки тепловых сетей учитывают особые условия строительства: сейсмичность 8 баллов и более, распространение вечномерзлых грунтов, а также наличие торфяных и илистых грунтов. Дополнительные требования к тепловым сетям в особых условиях строительства принимаются по
СП 124.13330.
4.7.5 Сети водоснабжения и водоотведения
4.7.5.2 Внутрипортовые сети хозяйственно-противопожарного водопровода должны прокладываться по кольцевой схеме. Тупиковые линии не должны превышать 200 м.
На водопроводных вводах в порт предусматривается установка водомеров в отдельно стоящем теплом помещении или в помещении, совмещенном с проходной порта. Установку водомеров следует предусматривать на вводах во всех производственных и бытовых зданиях порта.
4.7.5.3 Водопроводная сеть причалов при длине их более 200 м должна подключаться к кольцевой водопроводной сети порта двумя вводами с разделительной задвижкой между ними.
4.7.5.4 Снабжение судов водой с причала должно производиться от раздаточных колодцев на причале и совмещаться по времени с грузовыми операциями. Раздаточные колодцы должны устанавливаться вдоль причалов в их конструкции на расстоянии не далее чем 100 м друг от друга.
Для учета количества воды, отпускаемой на суда, следует предусматривать установку переносных или стационарных водомеров. Переносные водомеры устанавливаются на время бункеровки судов в раздаточных колодцах. Стационарные водомеры устанавливаются в помещениях узлов управления.
4.7.5.5 Участок водопровода между смотровыми и раздаточными колодцами, как правило, следует прокладывать в стальном кожухе из труб по
ГОСТ 10704 на глубине 0,7 м от поверхности земли до верха кожуха с учетом его опорожнения в период отрицательных температур. Диаметр подводящей водопроводной линии к раздаточному колодцу следует принимать по расчету, но не менее 75 - 80 мм.
4.7.5.6 Опорожнение участков водопровода между смотровыми и раздаточными колодцами, как правило, предусматривать в сторону смотрового колодца, с отводом воды через мокрый колодец в ближайшую сеть дождевой канализации.
Примечание - В случаях технической невозможности опорожнения участков водопроводной сети между раздаточными и смотровыми колодцами следует предусматривать их электрообогрев.
4.7.5.7 Прикордонную водопроводную линию допускается прокладывать между подкрановыми или железнодорожными путями на расстоянии 3,0 м от оси трубы до подкранового рельса на шпальном основании и не менее 2,4 м от оси трубы до оси железнодорожного пути.
4.7.5.8 На прикордонной водопроводной сети причалов пожароопасных грузовых районов порта следует устанавливать пожарные гидранты в соответствии с
СП 31.13330.
4.7.5.9 Минимальный свободный напор в сети водопровода на причале для обеспечения бункеровки судов должен быть не менее 0,2 МПа.
4.7.5.10 Для пожаротушения на судах, стоящих у причалов пожароопасных грузовых районов порта, как резервный источник должны использоваться противопожарные глубоководные колодцы на расстоянии 250 - 300 м друг от друга из расчета подачи воды из них автонасосами по шлангам длиной до 150 м, устанавливаемые на выпусках дождевой канализации или специально сооружаемые вдоль линии причалов, соединенные с акваторией самотечной трубой диаметром не менее 300 мм.
4.7.5.11 На открытых грузовых площадках причалов пожароопасных грузовых районов порта противопожарные водозаборные колодцы устанавливаются у проезда к причалам.
Примечание - Противопожарный колодец может быть заменен специальным подъездом для забора воды непосредственно из акватории.
4.7.5.12 При пересечении сетями водопровода и напорной канализации внутри портовых железнодорожных путей водопровод следует прокладывать из стальных труб в защитном кожухе с установкой колодцев по обе стороны перехода для вывода в них кожуха.
4.7.5.13 При пересечении внутрипортовых железнодорожных путей самотечной канализацией, бытовую канализацию в месте пересечения прокладывать из чугунных напорных труб в защитном кожухе, а дождевую канализацию прокладывать без кожуха и без изменения материала труб.
4.7.5.14 Выпуски дождевой канализации в причальной стенке следует устраивать, как правило, затопленного типа с учетом использования их в качестве противопожарных совместно с береговым колодцем. При этом выбор отметок и конструкция выпуска дождевой канализации и колодца должны отвечать требованиям строительных норм и правил на противопожарные водозаборы.
4.7.5.15 На грузовых площадках и причалах дождеприемные решетки, как правило, устанавливаются на смотровых колодцах. Устройство специальных дождеприемных колодцев не рекомендуется.
4.7.5.16 На главных коллекторах, прокладываемых под автодорогами, дождеприемные колодцы устанавливаются отдельно от смотровых. В дождеприемных колодцах на территории портов, особенно в районах переработки сыпучих грузов, следует предусматривать осадочную часть глубиной 0,4 - 1,0 м.
4.7.5.17 Прикордонный самотечный коллектор канализации для отвода дождевых вод с причалов рекомендуется прокладывать с тыловой стороны железнодорожных и подкрановых путей, по возможности за анкерной стенкой причала.
4.7.5.18 На терминалах, специализированных для контейнеров и накатных грузов, в местах прокладки водопровода должно предусматриваться устройство покрытий из сборных плит. Над трубопроводами дождевой канализации допускается применение монолитного покрытия.
4.8 Режимно-охранное обеспечение морских портов
4.8.1 Система контрольно-пропускного обеспечения порта создается с целью предотвращения несанкционированного доступа на объект физических лиц, транспортных средств и грузов, обеспечения сохранности грузов от хищения, пресечения противоправных действий и правонарушений на объекте и защиты от актов незаконного вмешательства.
Для осуществления пограничного, таможенного и иных видов контроля при прохождении судов, грузов и экипажей через государственную границу Российской Федерации дополнительно должна быть предусмотрена организация специального пункта пропуска через государственную границу, нормы и правила проектирования которого определены отдельными нормативными документами и в настоящем СП не рассматриваются.
4.8.2 Система контрольно-пропускного обеспечения порта представляет собой совокупность инженерно-технических средств (защитные сооружения, защитное освещение, контрольно-пропускные пункты, системы охранного теленаблюдения и сигнализации), организационных мероприятий, действий производственных подразделений порта (терминала) и службы охраны.
4.8.3 При проектировании системы контрольно-пропускного обеспечения порта следует руководствоваться
ФЗ N 261
[21],
постановлением Правительства Российской Федерации N 482
[62],
ФЗ N 16
[63] и иными нормативными правовыми актами Российской Федерации, а также действующими нормативными документами, правилами, стандартами, регулирующими отношения в сфере строительства:
СП 30.13330,
СП 124.13330,
СП 52.13330,
ГОСТ 9238;
СП 112.13330,
РД 31.30.11.01-84 [34],
ПОТ РО-152-31.82.03-96 [31],
РД 78.36.006-2005 [35].
4.8.4 В целях недопущения проникновения посторонних лиц и обеспечения сохранности грузов от хищения территорию порта по периметру оборудуют охранным ограждением с системой видеонаблюдения и контрольно-пропускными пунктами (КПП) для пропуска людей, проезда автомобильного и железнодорожного транспорта.
4.8.5 Выбор типа и состава технических средств системы осуществляется с учетом:
- параметров порта, его месторасположения, степени уязвимости от вероятных действий нарушителей (групп, отдельных лиц, не санкционированно проникающих на территорию порта), характера окружающей местности и принятой концепции (способа) охраны;
- требований, предъявляемых к работе комплекса технических средств контролирующими органами;
- места установки технических средств;
- объема, площади, протяженности и конфигурации пункта пропуска;
- освещенности порта в различное время суток;
- реальных возможностей проведения монтажных работ (обеспеченности специальными машинами и механизмами);
- необходимости обеспечения электромагнитной совместимости оборудования, входящего в состав комплекса технических средств, а также обеспечения защиты от действия вибрации, механических ударов;
- необходимости обеспечения экологических, эргометрических и медико-биологических условий для работы персонала морского порта.
4.8.6 Для пресечения противоправных действий и правонарушений на проектируемом объекте должны быть предусмотрены:
- установка охранного заграждения;
- оборудование контрольно-пропускных пунктов;
- установка охранного освещения, системы охранного видеонаблюдения, охранной и тревожной сигнализации;
- обеспечение службы охраны современными средствами связи и оповещения;
- системы контроля и управления доступом в объеме требований
ГОСТ Р 51241;
- установка пассивных барьеров замедлителей движения автотранспорта и управляемых барьеров, блокирующих проезды в производственно-технологические зоны и на причальные сооружения.
4.8.7 Для контроля проезда грузового и легкового автотранспорта, пропуска на территорию порта физических лиц создаются контрольно-пропускные пункты (КПП), оснащаемые досмотровой техникой, смотровыми площадками, средствами радиационного контроля, пожаротушения, связи, тревожной и охранной сигнализацией и ограждаемые шлагбаумом и механизированными воротами.
4.8.8 КПП оборудуется помещением для сотрудников охраны, через которое осуществляется проверка документов, въезд-выезд сотрудников, перегородками с обзорным зеркалом и турникетом, сигнализацией, устройством, блокирующим движение автотранспорта, автоматическим шлагбаумом со светофором и механизированными воротами.
4.8.9 Для размещения службы охраны в проекте должно быть предусмотрено отдельно стоящее здание, соответствующее всем действующим нормативам. В здании предусматриваются помещения для размещения аппаратуры, хранения и чистки оружия, караульное помещение и комната отдыха персонала, отдельный кабинет начальника службы охраны и его заместителя, изолятор временного содержания нарушителей, а также вспомогательные помещения (санузел, электрощитовая и прочее).
4.8.10 Проект системы охраны, связи и управления доступом на проектируемом объекте должен быть выполнен специализированной организацией.
4.9 Вспомогательные здания и помещения порта
4.9.1.1 Для обеспечения нормальной жизнедеятельности порта помимо зданий и помещений основного, подсобного, складского и обслуживающего назначения должен быть запроектирован комплекс вспомогательных зданий и помещений, состав и размещение которых устанавливаются в соответствии с
СП 44.13330,
СП 56.13330, указаниями настоящего СП.
После определения полного перечня необходимых зданий и помещений в целом по порту необходимо выполнить их распределение по территориальным зонам, решить вопросы возможности блокировки помещений и технологически наиболее рационально и обоснованно разместить на территории соответствующей зоны.
4.9.1.2 В зависимости от назначения и режима эксплуатации к проектируемым вспомогательным зданиям и помещениям, входящим в инфраструктуру портов, отнесены административно-бытовые здания с помещениями санитарно-бытового и медицинского назначения, общественного питания и административные помещения, здания контрольно-пропускных пунктов, отдельно стоящие здания и помещения логистических центров, администрации порта, диспетчерских, операторных на причалах наливных грузов, столовые, здания для обогрева рабочего персонала, санитарные узлы, охранное ограждение режимной территории.
4.9.1.3 При проектировании бытовых помещений следует предусмотреть общие (гардеробные, душевые, умывальные, уборные) и специальные (для химической чистки и стирки спецодежды, для обогрева и охлаждения и др.) санитарно-бытовые помещения, а также помещения здравоохранения и общественного питания.
4.9.1.4 При проектировании административных помещений необходимо учитывать помимо помещений администрации и управления помещения информационно-технического назначения, для копировально-множительных служб, вычислительной техники, охраны труда и т.п.
4.9.1.5 Настоящие нормы не распространяются на пункты пропуска через государственную границу, требования к которым установлены
постановлением Правительства Российской Федерации от 25.12.2007 N 930
[36].
4.9.2 Требования к медицинским помещениям
4.9.2.1 Для оказания медицинской помощи портовым работникам необходимо предусмотреть помещения медицинского назначения (медпункты, фельдшерские и врачебные здравпункты и иные помещения) в соответствии с нормами Минздрава России и ведомственными нормами.
4.9.2.2 Помещения медицинского назначения необходимо размещать вдали от объектов повышенной шумности.
4.9.2.3 Состав и площадь помещений медицинского назначения на территории порта определяются в соответствии с
СП 44.13330 в зависимости от численности работников.
4.9.2.4 В портах, с числом работающих менее 300 человек, медпункт устраивают при условии отдаленности порта от ближайшего лечебно-медицинского учреждения более чем на 2 км согласно
СП 44.13330.
4.9.2.5 Каждый порт со списочным составом работающих от 300 до 4000 человек должен иметь общепортовый здравпункт согласно
СП 56.13330.
4.9.2.6 Состав помещений медицинского назначения определяют в зависимости от численности работников согласно
приложению П.
4.9.2.7 При численности работников свыше 4000 человек помещения медицинского назначения определяются действующими нормативами для больниц, поликлиник (амбулаторий). Набор помещений устанавливается по согласованию с органами здравоохранения.
4.9.3 Требования к санитарно-бытовым помещениям
4.9.3.1 Санитарно-бытовые помещения порта или терминала должны обслуживать рабочих, занятых выполнением погрузочно-разгрузочных работ, складских работников и береговых матросов.
4.9.3.2 Блоки санитарно-бытовых помещений следует размещать на расстоянии не более 500 м от места производства погрузочно-разгрузочных работ. По согласованию с органами охраны труда указанное расстояние может быть увеличено до 800 м.
4.9.3.3 Для участка перевалки вредных грузов указанное расстояние подлежит сокращению в соответствии с требованиями Госкомсанэпиднадзора России.
| | ИС МЕГАНОРМ: примечание. В официальном тексте документа, видимо, допущена опечатка: "Санитарные правила для морских и речных портов" имеют номер 4962, а не СанПиН 4962. | |
4.9.3.4 Состав санитарно-бытовых помещений определяется в зависимости от санитарной характеристики погрузочно-разгрузочных процессов согласно
СанПиН 4962,
СП 44.13330 и
приложению П.
4.9.4 Требования к предприятиям общественного питания
4.9.4.1 Состав и площади предприятий общественного питания, столовых и буфетов на территории порта проектируются согласно требованиям
СП 44.13330.
4.9.5 Такелажные помещения
4.9.5.1 Для хранения, ремонта и изготовления съемных грузозахватных приспособлений и перегрузочного инвентаря в порту необходимо предусматривать такелажные помещения в отапливаемых зданиях, размещаемые как можно ближе к производственным участкам. Площадь помещения должна обеспечивать хранение стропов в растянутом положении для удобства их осмотра при выдаче.
4.9.5.2 Указанные помещения следует оборудовать устройствами для механизированного перемещения и укладки грузозахватных приспособлений, размотки и обрубки канатов, станками для сплетения стропов и заделки их в коуши, стендами для испытания грузозахватных приспособлений.
4.9.5.3 В такелажных помещениях рекомендуется предусматривать отделения и ячейки, специализированные для хранения различных грузозахватных приспособлений. В холодных климатических районах эти помещения должны отапливаться. Размеры ворот такелажного помещения должны позволять осуществлять заезд погрузочной технике. Не допускается расположение ворот с выходом на проезжую часть или внутрипортовые дороги.
4.9.5.4 Перед воротами такелажного помещения необходимо предусмотреть маневровую площадку для автомашин, трейлеров, погрузчиков. Размер территории определяется при проектировании.
4.9.5.5 При такелажном помещении создается открытая площадка для хранения, осмотра, освидетельствования и ремонта съемных грузозахватных приспособлений, габариты которых не позволяют разместить их в крытом помещении.
4.9.6 Диспетчерские и операторные терминала
4.9.6.1 При размещении диспетчерской в отдельно стоящем здании площади помещений следует проектировать с высотой не менее 3,2 м с расчетом не менее 6 м2 на одного работающего, учитывая необходимость размещения технических средств АСУ и связи.
4.9.6.2 Рядом с остекленными диспетчерскими следует предусматривать в проекте порта смежные с ним также остекленные помещения, расположенные на высоте, обеспечивающей наибольший обзор фронта работ и акватории порта, а также акустически изолированные помещения аппаратной диспетчерской связи оповещения.
4.9.6.3 Диспетчерская связь с портовым железнодорожным транспортом должна быть радиофицированной. Связь по открытой громкоговорящей сети запрещается.
4.9.6.4 При расположении диспетчерской на нефтебазе в операционной зоне морского грузового фронта должна быть оборудована операторная для размещения в ней оперативного персонала, осуществляющего управление стендерами и ходом грузовых работ на судне.
4.10 Управление и персонал
4.10.1.1 Технологические решения по организации управления производственным процессом порта (терминала) разрабатываются для обеспечения оптимальной интенсивности грузовых работ, непрерывности технологических процессов, промышленной, пожарной и экологической безопасности и создания благоприятных условий труда.
| | ИС МЕГАНОРМ: примечание. В официальном тексте документа, видимо, допущена опечатка: имеется в виду пункт [42], а не пункт [43]. | |
4.10.1.2 В технологических решениях по организации управления производственным процессом согласно
постановлению Правительства Российской Федерации от 16.02.2008 N 87
[26] и с учетом рекомендаций
приказа Минздравсоцразвития России от 05.03.2011 N 169н
[43] следует предусмотреть:
- расчет численности персонала порта (терминала) и определение профессионально-квалификационного состава персонала;
- выбор и описание используемых автоматизированных систем;
- определение состава и оснащения рабочих мест персонала;
- меры по санитарно-гигиеническим условиям труда персонала;
- мероприятия по охране и безопасности труда.
4.10.1.3 Технологические решения по организации управления разрабатываются на полное развитие порта (терминала), если иное не оговорено заданием на проектирование.
Помимо исходных данных, приведенных в
4.1.30, для выполнения раздела застройщик (технический заказчик) предоставляет сведения о функциях, передаваемых на исполнение сторонним организациям; об использовании женского труда и труда инвалидов; численности персонала контрольных и надзорных органов (таможенных, пограничных, санитарно-ветеринарных служб и т.д.), клиентуры и прочих организаций, которым предоставляются помещения, связь, персональные компьютеры и прочие средства для выполнения своих функций при размещении их в административно-бытовых зданиях объекта.
4.10.3 Структура и численность персонала и профессионально-квалификационный состав
4.10.3.1 Проектная численность персонала порта (терминала) слагается из численности портовых рабочих и служащих, включающих специалистов, технических исполнителей и руководителей.
4.10.3.2 Численность портовых рабочих складывается из численности докеров - механизаторов, занятых на погрузочно-разгрузочных работах, и портовых рабочих, занятых на вспомогательных работах, включая портовых рабочих, занятых на техническом обслуживании и текущем ремонте перегрузочной техники.
4.10.3.3 Численность портовых рабочих, занятых на погрузочно-разгрузочных (ПРР), следует рассчитывать исходя из:
- вида груза;
- длительности навигационного периода;
- технологических вариантов перевалки груза;
- объема перевалки груза по каждому технологическому варианту за навигационный период;
- производительности технологических линий по каждому технологическому варианту;
- количества рабочих по каждой технологической линии;
- бюджета рабочего времени одного рабочего за навигационный период.
4.10.3.4 Численность портовых рабочих, занятых на вспомогательных работах, определяется в зависимости от типа, количества перегрузочной техники и норм обслуживания (для портовых рабочих, занятых на техническом обслуживании и текущем ремонте перегрузочной техники) и объема работ, выполняемых для обслуживания основной деятельности и собственных нужд порта (терминала).
4.10.3.5 Численность специалистов и технических исполнителей, входящих в состав оперативно-распорядительского персонала, определяется исходя из необходимости обеспечения нормальной работы смены, количества смен и численности подменных работников для исключения сверхнормативных переработок, а для технических исполнителей - еще и исходя из норм обслуживания.
4.10.3.6 Численность специалистов и технических исполнителей, входящих в состав АУП, устанавливается в проекте исходя из необходимого набора функций для обеспечения производственного процесса порта (терминала). Определение нормативной численности персонала по каждой функции производится исходя из установленных проектом норм обслуживания.
4.10.3.7 Отнесение профессий работников к группам производственных процессов следует принимать в соответствии с Перечнем профессий и их отнесением к группам производственных процессов, утверждаемым Министерством транспорта Российской Федерации по согласованию с Министерством здравоохранения и социального развития Российской Федерации и профсоюзами.
4.10.3.8 При определении профессионально-квалификационного состава портовых рабочих следует руководствоваться требованиями к степени умелости выполнения работ по рабочим профессиям, которые излагаются в основных (Единый тарифно-квалификационный справочник работ и профессий рабочих - ЕТКС) и дополнительных квалификационных справочниках (отраслевые квалификационные справочники и квалификационные справочники предприятий по работам, не вошедшим в ЕТКС). Требования к степени умелости выполнения работ служащими излагаются в квалификационных справочниках должностей служащих (КСДС). Рекомендации по расчету численности персонала приведены в
приложении П.
4.10.4 Автоматизированные системы
4.10.4.1 Перечень технологических процессов, для которых предусматриваются автоматизированный контроль параметров процесса и управление, должен быть установлен заданием на проектирование.
4.10.4.2 В проектной документации технологические решения должны определить состав подготовительных мероприятий, условия и средства по обеспечению нормального режима функционирования автоматизированных систем.
4.10.4.4 Дополнительные требования, предъявляемые к средствам функционирования автоматизированных систем, определяются спецификой конкретных технологических процессов, особенностью проектных решений терминала, климатическими условиями и должны формулироваться в задании на проектирование.
4.10.4.5 На терминалах, где существуют повышенные требования к противопожарной и противоаварийной защите, необходимо предусматривать создание специализированных автоматизированных систем.
Терминалы, специализированные для перевалки опасных грузов, должны оснащаться автоматической системой противопожарной защиты, снабженной системой пожарной сигнализации и системой противоаварийной защиты (ПАЗ), которая позволит предупреждать и предотвращать аварийные ситуации, возникшие во время технологического процесса, как в результате влияния человеческого фактора, так и из-за сбоев в работе оборудования.
| | ИС МЕГАНОРМ: примечание. В официальном тексте документа, видимо, допущена опечатка: имеются в виду правила МОПОГ, а не МК МПОГ. | |
4.10.4.6 Средства, обеспечивающие функционирование автоматизированных систем на универсальных терминалах, проектируются при наличии задания на проектирование.
4.10.4.7 В технологических решениях должны присутствовать требования к средствам обеспечения функционирования автоматизированных систем, включая: требования к помещениям для установки серверов и средств бесперебойного питания и к помещениям для хранения ЗИПа, расходных материалов и мелкого ремонта вычислительной техники.
4.10.4.8 Состав и перечень средств технического обеспечения автоматизированных систем определяются в задании на создание автоматизированных систем в порту (терминале).
4.10.4.9 Требования к средствам внешней связи устанавливаются в соответствии с рекомендациями
раздела 4.6.
4.10.4.10 Требования к мощности электропитания и стабильности электросети определяются заданием на проектирование.
4.10.4.11 Требования к помещениям, где устанавливаются технические средства автоматизированных систем, должны соответствовать
СН 512.
4.10.5 Состав и оснащение рабочих мест персонала
4.10.5.1 Количество рабочих мест должно соответствовать количеству работников наибольшей смены.
4.10.5.2 При определении состава и оснащения рабочих мест портовых рабочих следует руководствоваться разработанными в проекте технологическими схемами и технологическими планировками.
4.10.5.3 Проектные решения по оснащению рабочих мест специалистов, технических исполнителей и руководителей, образующих АУП, должны соответствовать требованиям
СанПиН 2.2.2/2.4.1340, предъявляемым к помещениям, составу и оснащению рабочих мест ПЭВМ и другим оборудованием на базе ПЭВМ, включая обеспеченность офисными и коммуникационными программными средствами, определяемыми функциональными обязанностями работников и их статусом в системе управления.
4.10.5.4 Организация рабочих мест специалистов и технических исполнителей оперативно-распорядительского персонала должна отвечать требованиям
СанПиН 2.2.2/2.4.1340 и включать проектные решения по составу и оснащению рабочих мест аппаратурой регулирования, управления и сигнализации, средствами визуализации информации, пультами управления, средствами связи (внутренняя, селекторная, радиосвязь).
4.10.6 Санитарно-гигиенические условия труда работающих
4.10.6.1 В проекте должны быть разработаны основные технологические решения по защите работников от вредного воздействия производственных факторов:
- по использованию средств индивидуальной защиты органов дыхания для защиты органов дыхания работающих от поступления вредных веществ в соответствии с
ГОСТ 12.4.034,
ГОСТ 12.4.041;
- по использованию работающими на ПРР комплектов индивидуальных средств защиты (спецодежда, спецобувь, респиратор, противогаз, защитные очки) в соответствии с
ГОСТ 12.4.016,
ГОСТ 12.4.024.
4.10.6.2 При проектировании терминалов следует соблюдать общие санитарно-гигиенические требования к воздуху рабочей зоны в соответствии с
ГОСТ 12.1.005.
4.10.6.3 Состав санитарно-бытовых и санитарно-гигиенических помещений должен быть определен с учетом групп производственных процессов по санитарной классификации производственных процессов и соответствовать требованиям
СП 44.13330.
4.10.6.4 В проекте должны быть разработаны мероприятия по обеспечению работающих комплексом санитарно-бытового и лечебно-профилактического обслуживания согласно Федеральному
закону от 4 мая 1999 г. N 96-ФЗ
[8] с учетом рекомендаций Типового
перечня [38];
постановления Минтрудсоцразвития России от 27.02.1995 N 11
[39];
постановления Минздравсоцразвития России и Минобразования России от 13.01.2003 N 1/29
[40];
постановления Минтрудсоцразвития России от 17.01.2001 N 7
[41];
приказа Минздравсоцразвития России от 05.03.2011 N 169н
[42].
4.10.7 Мероприятия по охране и безопасности труда
4.10.7.1 В проекте должны быть предусмотрены меры по улучшению условий труда, профилактике производственного травматизма и заболеваний путем снижения профессиональных рисков на рабочих местах (обучение, инструктаж и проверка знаний по охране и безопасности работников, обязательные медицинские осмотры, аттестация рабочих мест, организация кабинетов по охране и безопасности труда).
4.10.7.2 Мероприятия по охране и безопасности труда должны быть изложены с учетом требований
ПОТ РО-152-31.82.03-96 [31] и действующих нормативных документов.
5 Специальные требования к терминалам
5.1.1 Основными элементами технологической структуры проектируемого порта являются морские терминалы, которые представляют собой совокупность объектов транспортной инфраструктуры, технологически связанных между собой и предназначенных и (или) используемых для осуществления операций с грузами, в том числе для их перевалки, обслуживания судов, иных транспортных средств и (или) обслуживания пассажиров.
5.1.2 В соответствии с современными и перспективными способами перевозки и перегрузки грузов порт в зависимости от структуры грузооборота может иметь в своем составе следующие типы терминалов:
- терминалы универсального назначения;
- терминалы, специализированные для навалочных и насыпных грузов;
- терминалы, специализированные для контейнеров;
- терминалы, специализированные для накатных грузов;
- терминалы, специализированные для наливных грузов;
- терминалы, специализированные для судов лихтеровозной системы;
- терминалы морских паромных переправ.
5.1.3 При технологическом проектировании терминалов и рейдовых перегрузочных комплексов должны быть соблюдены требования, установленные законодательством Российской Федерации в области промышленной безопасности и санитарно-эпидемиологического благополучия населения, взрывопожарной и пожарной безопасности, экологической безопасности, охраны труда и производственной санитарии. Терминалы и рейдовые перегрузочные комплексы должны отвечать правилам морской перевозки опасных грузов и настоящему своду правил.
Проектирование выполняется на основе исходных данных, представляемых застройщиком (техническим заказчиком) в задании на проектирование, типовой состав которых представлен в
приложении Щ.
| | ИС МЕГАНОРМ: примечание. В официальном тексте документа, видимо, допущена опечатка: "Санитарные правила для морских и речных портов" имеют номер 4962, а не СанПиН 4962. | |
5.1.4 При установлении разрывов между сухогрузными терминалами различного назначения следует руководствоваться
приложением 1 СаНПиН 4962, а при выборе их взаимного расположения с учетом преобладающего направления ветра -
приложением 2 СаНПиН 4962.
5.1.5 Причалы терминалов, специализированных для перевалки наливных грузов, должны быть обособленны от причалов других грузовых и пассажирских терминалов порта.
5.1.6 Места погрузки (выгрузки) грузов классов 1 -
4.3 по классификации Европейского соглашения о международной перевозке опасных грузов по внутренним водным путям (ВОПОГ) (взрывчатые вещества, газы сжатые, сжиженные и растворенные под давлением, легковоспламеняющиеся жидкости, легковоспламеняющиеся твердые вещества, самовозгорающиеся вещества, вещества, выделяющие воспламеняющиеся газы при взаимодействии с водой) должны быть не ближе 250 метров от жилых строений, служебно-вспомогательных зданий и сооружений, а также от общих мест погрузки и хранения грузов.
5.1.7 Для обеспечения противопожарной защиты объектов терминалов должны быть предусмотрены мероприятия в соответствии с требованиями
ГОСТ 12.1.004 и
РД 31.31.54-92 [6]. При технологическом проектировании универсальных терминалов необходимо соблюдать противопожарные требования
СП 112.13330.
Противопожарные разрывы между зданиями, размещенными на терминалах, следует принимать согласно требованиям
СП 18.13330.
5.1.8 При проектировании систем пожаротушения и пожарной сигнализации зданий и сооружений и прочих объектов терминалов необходимо соблюдать требования
НПБ 88. Открытые грузовые оперативные площадки должны быть оборудованы пожарной сигнализацией с установкой ручных извещателей, имеющей вывод тревожного сигнала в диспетчерскую (операторную) терминалов.
5.1.9 Для целей наружного и внутреннего пожаротушения зданий и сооружений терминалов должна предусматриваться система водоснабжения, в том числе и противопожарного водопровода в соответствии со
СП 31.13330 и
СП 30.13330.
5.1.10 В случаях, не предусмотренных настоящим Сводом правил, терминалы должны соответствовать требованиям, установленным международными договорами о предотвращении загрязнения с судов, защите и сохранении морской среды, законодательством Российской Федерации в области охраны окружающей среды и водным законодательством Российской Федерации.
5.1.11 Транспортная безопасность терминалов обеспечивается выполнением требований, предусмотренных международными договорами и законодательством Российской Федерации в области транспортной безопасности.
5.1.12 При проектировании рейдового перегрузочного комплекса, на котором производятся погрузочно-разгрузочные работы с использованием судна-накопителя, к судну-накопителю применяются такие же требования, как к судну, перевозящему соответствующий груз.
5.1.13 В случаях, не предусмотренных настоящим сводом правил, терминалы должны соответствовать требованиям, установленным законодательством Российской Федерации в области градостроительной деятельности и в области охраны окружающей среды.
5.1.14 Санитарно-защитная зона, т.е. разрыв между терминалами и населенным пунктом, должна удовлетворять требованиям
СанПиН 2.2.1/2.1.1.1200.
5.1.15 При проектировании терминалов следует соблюдать общие санитарно-гигиенические требования к воздуху рабочей зоны в соответствии с
ГОСТ 12.1.005.
5.1.16 Конфигурация сетей инженерно-технического обеспечения (связи и сигнализации; электроснабжения, обеспечивающих технологические и бытовые потребности терминала; водоснабжения; водоотведения; теплоснабжения; пожарного водоснабжения) должна исходить из компоновки объектов терминалов, и ее следует проектировать с учетом
4.7 и требований безопасности труда в соответствии с
РД 31.82.01-95 [5].
5.1.17 При проектировании инженерных сетей электроснабжения на терминале следует руководствоваться
4.7.2. Электрооборудование терминалов должно удовлетворять требованиям, предусмотренным
ПУЭ и
приказом Федеральной службы по экологическому, технологическому и атомному надзору от 12 ноября 2013 г. N 533.
| | ИС МЕГАНОРМ: примечание. В официальном тексте документа, видимо, допущена опечатка: имеется в виду ПОТ РО-152-31.82.03-96, а не ПОТ РД 31.82.01-95. | |
5.1.19 При проектировании номенклатуры и состава сетей связи и сигнализации на терминалах наряду с
4.7.3 следует руководствоваться
РД 31.30.11.01-84 [34] и
ВСН 12.
5.1.20 При проектировании инженерных сетей теплоснабжения на терминалах наряду с
4.7.4 следует руководствоваться
СНиП 3.05.03.
5.1.21 При проектировании инженерных сетей водоснабжения и канализации на терминалах следует руководствоваться
4.7.5.
5.2 Терминалы универсального назначения с крановыми схемами механизации
5.2.1.1 Терминалы универсального назначения с крановой схемой механизации (далее: универсальные терминалы) предназначаются для перевалки генеральных грузов крытого и открытого хранения, контейнеров, тяжеловесных и навалочных грузов, обработки судов и подвижного состава смежных видов транспорта, подачи судам материалов, электроэнергии, питьевой воды и продовольствия, приема с судов всех видов мусора, балластных и льяльных вод.
5.2.1.2 Универсальный терминал представляет собой совокупность функциональных элементов, предназначенных для выполнения следующих технологических функций:
- приема подвижного состава морского и смежных видов транспорта, перевозящих перерабатываемые на терминале грузы;
- погрузки-выгрузки грузов, перевозимых на подвижном составе морского и смежных видов транспорта;
- хранения и подготовки грузов к дальнейшей отправке;
- комплексного обслуживания судов.
5.2.1.3 В состав функциональных элементов универсального терминала входят:
- морской грузовой фронт;
- железнодорожный грузовой фронт;
- автомобильный грузовой фронт;
- склады;
- административно-бытовые и служебные помещения;
- сети инженерно-технического обеспечения.
5.2.1.4 Компоновка универсального терминала выполняется в соответствии с основными требованиями, приведенными в
4.2, исходя из размера и конфигурации земельного участка и акватории терминала, железнодорожных и автомобильных подходов к терминалу в увязке с компоновочными решениями смежных с ним терминалов. При соблюдении специальных условий, изложенных ниже, на универсальном терминале допускается перегрузка опасных грузов.
5.2.1.5 При компоновке универсального терминала следует выбирать кратчайшие пути транспортировки груза внутри терминала. Размещение зданий, сооружений и коммуникаций должно быть компактным с целью экономного использования территории и минимальных энергозатрат.
5.2.1.6 Технологические планировки формируются на основе схем механизации, выбранных из рекомендуемых в
приложении Р или разработанных проектировщиком, исходя из особых условий эксплуатации терминала.
5.2.1.7 При проектировании универсального терминала подлежат расчету и обоснованию следующие его технологические параметры:
- проектная мощность;
- количество причалов;
- пропускная способность грузовых фронтов;
- валовая интенсивность грузовых работ;
- длина причальной линии;
- вместимость и площадь складов.
5.2.1.8 Параметры универсального терминала надлежит определять применительно к каждому виду перегружаемого груза, исходя из расчетных параметров конкретного функционального элемента терминала.
5.2.1.9 Проектирование универсального терминала для скоропортящихся грузов с использованием машин непрерывного действия выполняется индивидуально.
Проектирование универсального терминала выполняется на основе исходных данных, представляемых застройщиком (техническим заказчиком) согласно перечню исходных данных
приложения Щ.
5.2.3 Морской грузовой фронт
5.2.3.1 Морской грузовой фронт предназначен для обработки и обслуживания морских судов, судов смешанного (река-море) плавания, судов внутреннего плавания и включает причалы с грузовыми оперативными площадками, оснащенными подъемно-транспортным оборудованием для погрузки-разгрузки судов и транспортировки грузов в крытые или открытые склады и обратно, а также устройствами для комплексного обслуживания судов в процессе грузовых работ.
5.2.3.2 Расчетной единицей морского грузового фронта служит причал, принимающий под обработку и обслуживание одно судно. Причал оборудуется подкрановыми (при использовании портальных кранов) и железнодорожными путями, сетями электроснабжения и водоснабжения с раздаточными колонками, расположенными вблизи кордона причала.
5.2.4 Железнодорожный грузовой фронт
5.2.4.1 Железнодорожный грузовой фронт предназначен для приема и отправки железнодорожных вагонов, выгрузки груза из груженых вагонов на склад или на судно, погрузки в порожние вагоны груза со склада или с судна.
5.2.4.2 За расчетную единицу железнодорожного фронта принимается железнодорожная грузовая оперативная площадка, предназначенная для приема под обработку одной подачи железнодорожных вагонов. Железнодорожная грузовая оперативная площадка включает: грузовые пути для размещения железнодорожных вагонов, соединительный (маневровый) путь, подъемно-транспортное оборудование, проезды, крановые пути, инженерные коммуникации и другие обустройства, необходимые для приема и обработки железнодорожных вагонов.
5.2.4.3 Величину одной подачи железнодорожных вагонов принимают по отношению длины грузовых путей к длине вагона или по представленному застройщиком (техническим заказчиком) узловому соглашению с предпортовой станцией. Длину грузовых путей определяют:
- длиной крытого склада для грузов, хранимых в крытых складах;
- длиной причала (за вычетом стрелочных переводов и противопожарных проездов) для грузов, хранимых на открытых площадках.
5.2.4.4 Для маневровых работ, связанных с подачей и уборкой вагонов без нарушения работы смежных причалов, необходимо устраивать съезды. Съезды следует предусматривать с учетом объединения причалов по родам грузов и приема совмещенных подач.
5.2.4.5 Прикордонные железнодорожные пути следует, как правило, проектировать тупиковыми. Схему кольцевого движения вагонов предусматривают при условии значительного объема перевалки и при соответствующем технико-экономическом обосновании.
5.2.5 Автомобильный грузовой фронт
5.2.5.1 Автомобильный грузовой фронт предназначен для приема, погрузки или разгрузки автомобилей в зависимости от вариантов грузовых работ на терминале.
В состав автомобильного грузового фронта входят грузовые оперативные площадки для стоянки и маневрирования автомобилей под погрузкой и разгрузкой, место стоянки автомобилей в ожидании погрузочно-разгрузочных работ, контрольно-пропускной пункт, оснащенный, при необходимости, весовыми устройствами.
Автомобильный грузовой фронт обеспечивается средствами механизации грузовых работ.
5.2.5.2 За расчетную единицу автомобильного фронта принимается автомобильная грузовая площадка, предназначенная для приема под обработку одного автотранспортного средства.
5.2.6.1 Склады предназначены для накопления и краткосрочного хранения судовых партий груза при отправлении из порта морем, вагонных партий при отправлении из порта железной дорогой или автомобильных партий при отправлении из порта автотранспортом.
На складах следует обеспечить прием грузов, доставляемых с грузовых фронтов, их хранение и накопление, подготовку к отправке морским или смежными видами транспорта, а также сезонное накопление грузов для терминалов с сезонной навигацией.
5.2.6.2 Основными параметрами склада являются площадь, вместимость и допустимая технологическая нагрузка от хранимого груза на покрытие склада.
5.2.6.3 Проектирование складов ведется в соответствии с положениями
4.5.
5.2.7 Грузовые операции и хранение опасных грузов
| | ИС МЕГАНОРМ: примечание. В официальном тексте документа, видимо, допущена опечатка: имеется в виду ПОТ РО-152-31.82.03-96, а не РД 31.82.03-87. | |
5.2.7.1 Грузовые операции и хранение опасных грузов в порту должны производиться в соответствии с требованиями
Правил МОПОГ
[29], РД 31.11.32.01-84
[15],
РД 31.82.03-87 [31],
РД 31.41.04-79. Часть IV. Карты типовых и опытных технологических процессов с опасными грузами,
приказа Ростехнадзора от 16.12.2013 N 605, настоящих Правил и других нормативных документов, регламентирующих условия перегрузки и хранения грузов.
5.2.8 Специальные условия перегрузки пека
5.2.8.1 При перегрузке пека между местом производства грузовых работ и местом производства грузовых работ с другими грузами должен соблюдаться разрыв не менее 100 м.
5.2.8.2 В составе универсального терминала должен быть предусмотрен санитарно-бытовой блок, расположенный не далее, чем в 150 - 200 м от места производства грузовых работ.
5.2.9 Специальные условия перегрузки грузов животного происхождения (шкуры, шерсть и т.п.)
5.2.9.1 При перегрузке грузов животного происхождения должны быть предусмотрены:
- карантинная погрузочно-разгрузочная площадка (причал) с канализацией для приема промывных вод;
- площадка, оборудованная крытыми навесами, станками и клетками для проведения клинического осмотра и обработки животных;
- площадка закрытого типа с отделениями для временного хранения биопрепаратов и сырья животного происхождения;
- дезобарьер для санитарной обработки автомашин, погрузочно-разгрузочной техники и других средств механизации;
- мусоросжигательная печь;
- площадка для дезинфекции контейнеров;
- канализационная система;
- стационарные или передвижные дезустановки;
- бытовые помещения с душевой установкой.
5.2.9.2 При перегрузке грузов животного происхождения все перечисленные выше специальные объекты должны быть размещены в операционной зоне терминала и ограждены.
5.2.10 Общие требования при перегрузке санитарно-опасных грузов
5.2.10.1 При перегрузке санитарно-опасных грузов на универсальном терминале должны быть предусмотрены помещения для:
- хранения противопожарного оборудования и инвентаря, средств санитарной защиты, средств дегазации и т.п.;
- сторожевой и пожарной охраны:
- очистки, ремонта и хранения грузозахватных устройств и приспособлений, используемых при перегрузке ядовитых и других санитарно-опасных грузов.
5.2.10.2 Причалы должны быть оборудованы гидрантами и обмывочными пунктами.
5.2.10.3 Компоновка и вертикальная планировка территории универсальных терминалов для перегрузки санитарно-опасных грузов должна выполняться с учетом обеспечения уборки с поверхности всех дождевых стоков в дождеприемные колодцы с последующей передачей на очистные сооружения.
5.2.10.4 Покрытия площадок для ядовитых и других категорий санитарно-опасных грузов должны быть усовершенствованными, обладать прочностной и коррозионной устойчивостью от случайного воздействия на них тех или иных ядовитых и других санитарно-опасных грузов.
5.2.10.5 Железнодорожные пути на универсальном терминале, переваливающем опасные грузы, должны обеспечивать возможность осуществления перегрузки по прямому варианту.
5.2.10.6 Протяженность железнодорожных путей и их размещение на универсальном терминале следует определять с учетом следующих требований:
- прикордонные железнодорожные пути в месте производства перегрузочных операций должны обеспечивать расстановку вагонов по всей длине судна, стоящего у причала;
- ширина территории с внешней стороны путей должна обеспечивать возможность установки грузовых столов;
- на расстоянии не менее 125 м от места производства погрузочно-разгрузочных работ следует располагать маневровый путь или тупик для отвода груженых вагонов или вагонов, ожидающих выгрузки.
5.2.10.7 Размещение прикордонных крановых и железнодорожных путей должно выполняться с учетом возможности обеспечения беспрепятственной обработки вагонов машинами внутрипортовой механизации.
5.2.10.8 Автодороги и полосы для движения внутрипортового транспорта должны удовлетворять условиям подъезда погрузчиков и средств внутрипортового транспорта к местам производства работ по одному, с соблюдением интервалов и возможностью кольцевого движения. При невозможности организации кольцевого движения следует предусматривать устройство петлевых объездов или площадок для разворота. Размеры этих площадок устанавливаются в зависимости от габаритов автомобилей и перевозимых грузов, но не менее 12 x 12 м.
| | ИС МЕГАНОРМ: примечание. В официальном тексте документа, видимо, допущена опечатка: "Санитарные правила для морских и речных портов" имеют номер 4962, а не СанПиН 4962. | |
5.2.10.9 Размеры санитарно-защитных зон устанавливаются в соответствии со степенью опасности перегружаемых грузов и принимаются согласно
СанПиН 4962.
5.2.10.10 Тыловые границы универсального терминала, переваливающего опасные грузы, по возможности должны отделяться от прилегающей территории зелеными насаждениями.
5.2.10.11 При проектировании универсальных терминалов для перегрузки опасных грузов следует принимать планировку операционной зоны, аналогичную планировке универсальных терминалов генеральных грузов с соблюдением необходимых разрывов и установленных правил перегрузки и хранения опасных грузов.
5.2.11 Административно-бытовые и служебные помещения
5.2.11.1 Для размещения административного и оперативного персонала, обеспечения комфортных условий работы и бытовых удобств для портовых работников на универсальном терминале должны быть запроектированы административно-бытовые и служебные здания, располагаемые, как правило, в тылу терминала.
5.2.11.2 В административно-бытовых или служебных зданиях должны быть предусмотрены помещения для диспетчерской, столовой или буфета, медпункта, лаборатории качества (при перегрузке грузов, требующих лабораторного анализа при отправке морским или смежным видом транспорта), такелажной мастерской, а также пункты обогрева, размещаемые на терминале в соответствии с требованиями
4.9.
5.2.12 Сети инженерно-технического обеспечения
5.2.12.1 Для обеспечения потребности универсального терминала в связи, электроэнергии, воде и тепле и отвода дождевых, производственных и бытовых вод должны быть запроектированы в соответствии с заданием застройщика (технического заказчика) следующие сети инженерно-технического обеспечения:
- связи и сигнализации;
- электроснабжения, обеспечивающие технологические и бытовые потребности терминала;
- водоснабжения;
- водоотведения;
- теплоснабжения;
- пожарного водоснабжения.
5.2.12.2 При проектировании сетей инженерно-технического обеспечения необходимо учесть потребности в связи, электроэнергии, питьевой воде, в приеме балластных и льяльных вод судов, стоящих у причалов универсального терминала.
5.2.12.3 Конфигурация сетей должна исходить из компоновки объектов универсального терминала, и ее следует проектировать с учетом
4.7 и
5.1.
5.2.13 Основные технологические параметры терминала
5.2.13.1 Проектная мощность терминала устанавливается по расчетной пропускной способности морского грузового фронта.
5.2.13.2 Количество причалов определяется по
формуле (Г.1) приложения Г из отношения заданного грузооборота к расчетной пропускной способности причала с округлением остатка до большего целого числа. В тех случаях, когда остаток меньше половины единицы, следует увеличить валовую интенсивность грузовых работ на причале, в частности за счет пересмотра концентрации технологических линий на обработке судна.
5.2.13.3 Пропускная способность причала определяется в зависимости от валовой интенсивности обработки судна, продолжительности навигации, сезонности грузопотока, бюджета рабочего времени причала, учитывающего потери времени по метеоусловиям, величины резерва пропускной способности причала, устанавливаемой коэффициентом занятости причала.
Расчет пропускной способности причала рекомендуется выполнять по
формуле (Г.4) приложения Г.
5.2.13.4 Валовая интенсивность грузовых работ при обработке судна определяется по
формуле (Г.2) приложения Г в зависимости от расчетной загрузки судна и времени занятости причала под грузовыми и вспомогательными производственными операциями.
Время занятости причала под грузовыми операциями определяется из отношения расчетной загрузки судна к чистой интенсивности обработки судна.
Среднее время занятости причала под вспомогательными производственными операциями, не совмещаемыми с грузовыми работами, принимается для расчетного судна согласно
таблицам Г.1 и
Г.2 приложения Г соответственно для судов заграничных и каботажных рейсов.
Чистая интенсивность грузовых работ при обработке судна определяется как произведение эксплуатационной производительности технологических линий на их количество.
Количество технологических линий принимается по ранее выполненным проектам, принятым в качестве аналога, либо определяется проектировщиком по плану-графику обработки судна.
Эксплуатационная производительность одной технологической линии рассчитывается по выбранной величине технической производительности перегрузочного оборудования с учетом дополнительных потерь времени, обусловленных необходимостью обслуживания рабочего места и выполнения подготовительно-заключительных работ; перерывами для отдыха; технологическими перерывами; снижением интенсивности грузовых работ в начале и конце погрузки-выгрузки судов.
Влияние перечисленных факторов учитывается коэффициентом Kс, численные значения которого принимаются в зависимости от способа производства погрузочно-разгрузочных работ равными:
- при механизированном способе производства: 0,7 - 0,75;
- при автоматизированном: 0,8 - 0,9.
Техническая производительность перегрузочного оборудования устанавливается в зависимости от вида груза и специализации терминала по выбранной схеме механизации и типам перегрузочного оборудования, входящих в одну технологическую линию.
Величина технической производительности выбранного типа оборудования принимается в пределах, указанных по данной схеме, или измененной при соответствующем обосновании.
5.2.13.5 Длина причальной линии терминала определяется как сумма длин всех причалов, входящих в терминал. Длина причала определяется по максимальному расчетному судну.
Расчет длины причалов выполняется по методу, приведенному в
4.3.4.
5.2.13.6 Расчет пропускной способности железнодорожного и автомобильного грузовых фронтов выполняется по методу, приведенному в
приложении Т, или, используя имитационное моделирование.
5.2.13.7 Расчеты площади и вместимости складов выполняются по методу, приведенному в
4.5. Полученные расчетные значения площади и вместимости складов подлежат уточнению исходя из конкретных условий (размера и конфигурации) земельного участка, отводимого под застройку терминала и его компоновки. При стесненных условиях для получения оптимальных значений площади и вместимости складов, а также для оптимизации других основных параметров терминала, рекомендуется использовать имитационное моделирование работы терминала, направленное на достижение максимального коммерческого эффекта.
5.2.14 Требования безопасности
5.2.14.1 При технологическом проектировании универсального терминала должны быть соблюдены требования взрывопожарной и пожарной безопасности, промышленной и экологической безопасности, охраны и безопасности труда и производственной санитарии, приведенные в
4.10 и
5.1, а также требования безопасности труда в соответствии с
РД 31.82.01-95 [5].
5.2.14.2 При установке на строящихся и реконструируемых причалах электроколонок для подключения судов к береговой сети их следует располагать у кордона в одну линию с крановыми электроколонками в соответствии с
РД 31.21.81-79 [65].
На одном причале следует предусматривать две электроколонки, располагая их вдоль причала, как правило, через две крановые колонки.
Присоединение колонок электроснабжения судов к сети питания кранов не допускается из-за неустойчивого напряжения.
5.2.14.3 Электроколонки сети питания кранов располагают вне подкрановых путей со стороны линий кордона причала. Расстояние между электроколонками принимают не более 40 м.
Привязку электроколонок питания кранов в поперечном направлении производят с учетом габарита приближения, установленного в соответствии с
приказом Федеральной службы по экологическому, технологическому и атомному надзору от 12 ноября 2013 г. N 533, на которых используются подъемные сооружения, расстояние в свету между колонкой и выступающими частями крана должно быть не менее 700 мм.
Присоединение крановых электроколонок к питающим фидерным линиям от распределительных щитов подстанций, как правило, выполняют по схеме "через одну", с целью обеспечения большей надежности электропитания кранов.
5.2.14.4 Размер санитарно-защитной зоны для универсальных терминалов рассчитывается в соответствии с
СанПиН 2.2.1/2.1.1.1200.
5.2.15 Требования к оснащению рабочих мест, численности персонала, квалификации и подготовке кадров
Требования к оснащению рабочих мест, численности персонала, квалификации и подготовке кадров универсального терминала устанавливаются согласно требованиям
4.10.
5.3 Терминалы, специализированные для навалочных и насыпных грузов
5.3.1.1 Терминал, специализированный для навалочных и насыпных грузов, предназначен для перевалки грузов, перевозимых навалом (уголь, кокс, железная руда - грузы открытого хранения, химические грузы, минеральные удобрения - грузы крытого хранения, и т.п.), зерновых грузов, перевозимых насыпью, хранения грузов, обеспечения судов электроэнергией и питьевой водой, обработки подвижного состава смежных видов транспорта.
5.3.1.2 Терминал представляет собой совокупность функциональных элементов, предназначенных для выполнения следующих технологических функций:
- приема подвижного состава морского и смежных видов транспорта, перевозящих перерабатываемые на терминале грузы;
- погрузки-выгрузки грузов, перевозимых на подвижном составе морского и смежных видов транспорта;
- хранения и подготовки грузов к дальнейшей отправке;
- комплексного обслуживания судов.
5.3.1.3 В состав функциональных элементов терминала входят:
- морской грузовой фронт;
- железнодорожный грузовой фронт;
- автомобильный грузовой фронт;
- склады;
- центральный пункт управления;
- лаборатория;
- административно-бытовые и служебные помещения;
- сети инженерно-технического обеспечения.
5.3.1.4 Компоновка терминала, специализированного на перегрузке навалочных и насыпных грузов, выполняется в соответствии с основными требованиями, приведенными в
4.2.
5.3.1.5 Технологические планировки формируются на основе схем механизации, выбранных из приведенных в
приложении У или разработанных проектировщиком, исходя из особых условий эксплуатации терминала.
Целесообразность использования в данных конкретных условиях рекомендуемой либо предложенной схемы следует обосновать.
5.3.1.6 На начальных стадиях проектирования (декларация о намерениях, основные технические решения и т.д.) следует рассматривать не менее двух конкурентоспособных вариантов технологического процесса и компоновки технологической планировки терминала, из которых выбирается оптимальный вариант.
5.3.1.7 При компоновке терминала следует выбирать кратчайшие пути транспортировки груза внутри терминала. Размещение зданий, сооружений и коммуникаций должно быть компактным с целью экономичного использования территории и минимальных энергозатрат.
5.3.2.1 Проектирование терминала выполняется на основе исходных данных, представляемых застройщиком (техническим заказчиком) согласно перечню исходных данных в
приложении Щ.
5.3.2.2 Транспортные характеристики навалочных грузов, влияющие на выбор технологического оборудования терминала, принимаются по данным застройщика (технического заказчика).
5.3.3 Морской грузовой фронт
5.3.3.1 Морской грузовой фронт предназначен для обработки и обслуживания морских судов, судов смешанного (река-море) плавания, судов внутреннего плавания. Он включает в себя причалы с оперативными площадками, оснащенными береговой (причальной) галереей и судоразгрузочными либо судопогрузочными машинами в зависимости от специализации терминала для погрузки-выгрузки судов и транспортирования грузов в крытые или открытые склады и обратно, устройствами для комплексного обслуживания судов в процессе грузовых работ.
5.3.3.2 За расчетную единицу морского грузового фронта принимается причал для приема под обработку одного судна.
Причал терминала включает в себя причальное сооружение, причальное специализированное перегрузочное оборудование и территорию, ограниченную кордоном причала, а с тыловой стороны причальной галереей либо другим перегрузочным устройством, взаимодействующим с причальным перегрузочным оборудованием.
5.3.4 Железнодорожный грузовой фронт
5.3.4.1 Железнодорожный грузовой фронт предназначен для погрузки-выгрузки грузов в вагоны, а также приема-отправления железнодорожных вагонов (маршрутов, подач).
В состав железнодорожного фронта входят станция погрузки или разгрузки вагонов в зависимости от специализации терминала, железнодорожные пути, маневровое устройство для подачи и уборки вагонов, а также, при необходимости, размораживающее или другое устройство для восстановления сыпучести груза, весы и устройства обнаружения металлических примесей.
5.3.4.2 За расчетную единицу железнодорожного фронта принимается железнодорожная грузовая оперативная площадка, предназначенная для приема под обработку одной подачи железнодорожных вагонов. Железнодорожная грузовая оперативная площадка включает: грузовые пути для размещения железнодорожных вагонов, соединительный (маневровый) путь, станция погрузки/разгрузки вагонов, проезды, инженерные коммуникации и другие обустройства, необходимые для приема и обработки железнодорожных вагонов.
5.3.5 Автомобильный грузовой фронт
5.3.5.1 Автомобильный грузовой фронт предназначен для приема, погрузки или разгрузки автомобилей в зависимости от специализации терминала.
В состав автомобильного грузового фронта входят станция загрузки/разгрузки автотранспорта, площадка для стоянки автотранспорта в ожидании погрузочно-разгрузочных работ, контрольно-пропускной пункт, оснащенный весовыми устройствами.
5.3.5.2 За расчетную единицу автомобильного фронта принимается автомобильная грузовая площадка, предназначенная для приема под обработку одного автотранспортного средства.
5.3.6.1 Склады предназначены для оперативного (краткосрочного) хранения груза и накопления судовых партий груза при отправлении из порта морем, вагонных партий при отправлении из порта железной дорогой или автомобильных партий при отправлении из порта автотранспортом.
На складах следует обеспечить прием грузов, доставляемых с грузовых фронтов, их хранение и накопление, подготовку к отправке морским или смежными видами транспорта, а также сезонное накопление грузов для терминалов с сезонной навигацией.
5.3.6.2 Основными параметрами склада являются площадь, вместимость и допустимая технологическая нагрузка от хранимого груза на покрытие склада.
5.3.6.3 Проектирование складов, кроме зернохранилищ и складов минеральных удобрений, ведется в соответствии с положениями
4.5.
5.3.6.4 При проектировании зернохранилищ наряду с настоящим сводом правил следует применять нормы и требования
СНиП 2.10.05 и ВНТП 05.
5.3.6.5 При проектировании складов минеральных удобрений и зернохранилищ наряду с настоящим сводом правил, следует применять нормы и требования
СП 92.13330 и
НТП-АПК 1.10.13.001.
5.3.7 Центральный пункт управления
5.3.7.1 Централизованное управление работой терминала осуществляется из Центрального пункта управления (ЦПУ), оборудованного пультом управления.
5.3.7.2 ЦПУ оснащается аппаратурой управления основным перегрузочным оборудованием, промышленным телевидением и другими системами, включая диспетчерскую связь с диспетчерской терминала.
5.3.7.3 ЦПУ располагается, как правило, в тылу терминала, и допускается его размещать в одном здании совмещенным (сблокированным) с помещением другого назначения, например с лабораторией.
5.3.8.1 Лаборатория предназначена для контроля и документальной фиксации качества отгружаемого груза на терминале.
5.3.8.2 Лаборатория должна быть оснащена автоматическими пробоотборниками и средствами транспортировки проб к месту их анализа, а также другим минимально необходимым оборудованием в соответствии с требованиями ВНТП 05 для зернохранилищ и
НТП-АПК 1.10.13.001 для складов минеральных удобрений и иными ведомственными документами по остальным группам грузов.
5.3.9 Административно-бытовые и служебные помещения
5.3.9.1 Административно-бытовые и служебные помещения располагаются, как правило, в тылу терминала.
5.3.9.2 Во избежание занесения загрязнений с верхней спецодежды в административно-бытовые и служебные помещения следует предусматривать на складе или вблизи указанных гардеробные для этой одежды.
5.3.10 Сети инженерно-технического обеспечения
5.3.10.1 Для обеспечения потребности терминала в связи, электроэнергии, воде, тепле и для отвода дождевых, производственных и бытовых вод должны быть запроектированы в соответствии с заданием застройщика (технического заказчика) следующие сети инженерно-технического обеспечения:
- связи и сигнализации;
- электроснабжения, обеспечивающие технологические и бытовые потребности терминала;
- водоснабжения;
- водоотведения;
- теплоснабжения;
- пожарного водоснабжения.
5.3.10.2 При проектировании сетей инженерно-технического обеспечения необходимо учесть потребности в связи, электроэнергии, питьевой воде, в приеме балластных и льяльных вод судов, стоящих у причалов терминала.
5.3.10.3 Конфигурация сетей должна исходить из компоновки объектов терминала, и ее следует проектировать с учетом
4.7 и
5.1 и требований
РД 31.82.01-95 [5].
5.3.10.4 Причальные перегружатели, работающие от сети напряжением 6 - 10 кВ, должны подключаться индивидуально к распределительному устройству 6 - 10 кВ ближайшей подстанции. Линии питания таких перегружателей должны быть (помимо максимальной защиты) оборудованы защитой от замыкания на землю с действием на отключение.
Соединение шлангового кабеля 6 - 10 кВ с кабелем стационарным производят в прикордонном туннеле или кабельном колодце с помощью специального кабельного разъема.
Высоковольтные шланговые кабели перегружателей при сматывании с кабельного барабана укладываются в лотки на бетонном покрытии, надежно огражденные от повреждений, или канавки, которые следует предусматривать в бетонном покрытии.
5.3.11 Основные технологические параметры терминала
Основными технологическими параметрами терминала, подлежащими расчету и обоснованию, являются: количество причалов, годовая пропускная способность морского грузового фронта, валовая интенсивность грузовых работ на причале, длина причальной линии, пропускная способность железнодорожного и автомобильного грузовых фронтов, вместимость и площадь складов.
Определение параметров терминала производится применительно к каждому перегружаемому роду груза по процедуре, изложенной в
пп. 5.2.13.2 -
5.2.13.7.
5.3.12 Требования безопасности
5.3.12.1 При технологическом проектировании терминала должны быть соблюдены требования Федерального закона от 21.07.1997
N 116-ФЗ [18], от 30.03.1999
N 52-ФЗ [19], от 22.07.2008
N 123-ФЗ [20] к взрывопожарной и пожарной безопасности, промышленной и экологической безопасности, производственной санитарии, приведенные в
4.10 и
5.1, а также требования безопасности труда в соответствии с
РД 31.82.01-95 [5].
5.3.12.2 На всех строящихся и реконструируемых причалах следует устанавливать электроколонки для подключения судов к береговой сети, которые располагают у кордона в соответствии с
РД 31.21.81-79 [65]. На одном причале следует предусматривать две электроколонки, располагая их вдоль причала.
5.3.13 Требования к оснащению рабочих мест, численности персонала, квалификации и подготовке кадров
Требования к оснащению рабочих мест, численности персонала, квалификации и подготовке кадров терминала устанавливаются согласно требованиям
4.10.
5.3.14 Терминалы специализированные для аммиачной селитры и ее производных
(п. 5.3.14 введен
Изменением N 1, утв. Приказом Минтранса России от 09.03.2023 N 71)
5.3.14.1 Терминал, специализированный для аммиачной селитры и ее производных, предназначен для перевалки перевозимого навалом груза из железнодорожного транспорта на морские суда с краткосрочным хранением на специализированных складах терминала в целях технологического накопления судовых партий груза.
5.3.14.2 Специализированный терминал включает основные технологические объекты:
- морской грузовой фронт, оснащенный судопогрузочными машинами;
- железнодорожный грузовой фронт со станцией разгрузки вагонов и железнодорожными грузовыми путями;
- автомобильный грузовой фронт (при необходимости);
- крытые механизированные склады для краткосрочного размещения аммиачной селитры;
- система транспортирования груза на терминале в составе конвейеров, галерей, перегрузочных и приводных станций;
- сети инженерно-технического обеспечения, связи;
- центральный пункт управления;
- административно-бытовые здания и сооружения.
5.3.14.3 Конкретные решения при проектировании специализированного терминала для аммиачной селитры или отдельных объектов его инфраструктуры, определение его технических параметров принимаются в соответствии с настоящим подразделом, а также с соответствующими разделами свода правил (в частности,
4.1,
4.5,
5.3) с учетом специфических особенностей транспортных характеристик и физико-химических свойств данного груза.
Основные транспортные характеристики и физико-химические свойства аммиачной селитры (класс опасности 5.1,
N ООН-1942, 2067
[66]) приведены в
Приложении 7 (справочном) к настоящему своду правил.
5.3.14.4 Особые требования к транспортированию, перевалке и складированию аммиачной селитры должны быть учтены при компоновке терминала, при выборе типа складов, схем механизации и перегрузочного оборудования, покрытий, инженерных сетей и др.
5.3.14.5 В проекте должно быть предусмотрено вентиляционное оборудование, системы аспирации и пылеулавливания, обеспечивающие экологически чистую эксплуатацию терминала с учетом специфических свойств груза.
5.3.14.6 Учитывая особенности и опасные проявления аммиачной селитры, ввиду ее несовместимости с горючими веществами (взаимодействие с горючими веществами может сопровождаться взрывом), необходимо соблюдение нормативных разрывов между терминалами и выполнение требований пожаровзрывобезопасности при перевалке и складировании груза.
В соответствии с требованиями безопасности объектов инфраструктуры морского транспорта места погрузки-выгрузки взрывоопасных веществ должны быть на безопасном расстоянии от жилых строений, служебно-вспомогательных зданий и сооружений (
постановление Правительства Российской Федерации от 12.08.2010 N 620
[1]).
5.3.14.7 Размеры санитарно-защитных зон для терминала по перевалке аммиачной селитры следует принимать в соответствии с требованиями
СанПиН 2.2.1/2.1.1.1200.
5.3.14.8 При разработке схем механизации специализированного морского терминала для аммиачной селитры должны быть определены типы, параметры и взаимное расположение морского и железнодорожного грузовых фронтов, расположение складов, типы и количество перегрузочного оборудования.
5.3.14.9 При проектировании морского терминала должна быть обоснована целесообразность использования той или иной типовой схемы, либо предложены иные, более совершенные схемы или отдельные элементы схем механизации, исходя из особых условий эксплуатации терминала, с учетом прогрессивного опыта эксплуатации действующих аналогичных терминалов и в соответствии с наилучшими доступными технологиями (НДТ), предусмотренными
[67].
До ввода в эксплуатацию оператор (собственник) терминала разрабатывает и утверждает технологическую документацию по перевалке аммиачной селитры.
5.3.14.10 Размещение аммиачной селитры должно осуществляться в крытых отдельно стоящих одноэтажных складах не ниже II степени огнестойкости с регулируемой температурой и влажностью воздуха в соответствии с
ГОСТ 2-2013,
СП 92.13330, а также с учетом требований международных и российских нормативных документов в области перевозки опасных грузов и перевалки их в портах.
5.3.14.12 В случае необходимости строительства отдельного специализированного склада для краткосрочного размещения аммиачной селитры в границах существующего (проектируемого) терминала для навалочных и насыпных грузов следует руководствоваться пунктами настоящего раздела, регламентирующими проектирование складов.
5.3.14.13 Вместимость склада определяется исходя из условия размещения во всех отсеках склада аммиачной селитры в соответствии с исходными данными Заказчика и с усредненными показателями объемной массы и угла естественного откоса.
5.3.14.14 Емкость склада для технологического накопления судовой партии аммиачной селитры следует предусматривать из расчета не менее 1,3 грузовместимости максимального расчетного судна в целях исключения простоев морского судна и оптимизации расходов.
5.3.14.15 Для складов краткосрочного хранения аммиачной селитры следует предусматривать продолжительность хранения в соответствии с
ГОСТ 2-2013.
5.3.14.16 При определении площади склада для аммиачной селитры и ее производных следует руководствоваться положениями
раздела 6.3 СП 4.13130.
Площадь пожарного отсека не должна превышать 10500 м2.
5.3.14.17 При определении объема единовременного хранения аммиачной селитры следует руководствоваться положениями
раздела 6.3 СП 4.13130.
Допускается складирование аммиачной селитры и ее производных в пожарном отсеке специализированного одноэтажного склада не более 25000 т
(СП 4.13130).
5.3.14.18 Высота складов для аммиачной селитры должна обеспечивать размещение технологического оборудования и приниматься не менее 6,0 метров. Ширину отсеков склада следует принимать не менее 9,0 метров.
5.3.14.19 Загрузку аммиачной селитры в отсеки склада из железнодорожных вагонов следует производить механизированным способом с использованием машин непрерывного действия.
5.3.14.20 Размеры транспортных галерей следует устанавливать в соответствии с требованиями технологии.
Высота проходов должна быть не менее 1,8 метров; ширина проходов при одном ленточном конвейере должна быть не менее 0,7 метров, а между двумя ленточными конвейерами - не менее 1 метра.
5.3.14.21 Технологическое оборудование в складах должно обеспечивать сохранность груза, минимизацию перевалочных операций с исключением просыпей груза. Должно быть предусмотрено применение средств дистанционного управления и контроля, комплексной механизации и автоматизации внутрискладских перегрузочных работ.
5.3.14.22 В складских помещениях для аммиачной селитры и ее производных должна быть предусмотрена система естественной вентиляции с целью исключения образования пожаровзрывоопасной среды в отсеках склада в случае разложения аммиачной селитры.
5.3.14.23 Разгрузочные железнодорожные эстакады прирельсовых складов следует проектировать с учетом требований
СП 43.13330.
На железнодорожной эстакаде необходимо предусматривать с обеих сторон эстакады площадки обслуживания вагонов-хопперов шириной не менее 0,7 метров на уровне головки рельса, на всю длину фронта разгрузки.
5.3.14.24 На участках приема железнодорожных вагонов, в случае необходимости, следует предусмотреть оперативную площадку для перегрузки аммиачной селитры из вагонов в автотранспортные средства для дальнейшего внутритерминального транспортирования для перевалки груза по прямому варианту.
5.3.14.25 Покрытие площадок для обслуживания вагонов и для размещения вагоноразгрузочных машин следует предусматривать решетчатым или щелевым с расчетом свободного просыпания аммиачной селитры.
5.3.14.26 В части пролета, где размещаются подвижные элементы перегрузочного оборудования и технологические проходы, полы следует устраивать горизонтальными. Полы в отсеках хранения аммиачной селитры могут проектироваться наклонными в соответствии с конструктивными особенностями применяемых механизмов.
В полах отсеков не допускается устройство дренажных канав, приямков, лотков и других углублений во избежание скопления в них аммиачной селитры.
Устройство земляных, деревянных, щебеночных и гравийных полов в складах аммиачной селитры не допускается.
5.3.14.27 При проектировании складов для аммиачной селитры запрещено:
- использование в складах аварийного освещения;
- расположение над складом воздушных линий электропередач;
- размещение груза на расстоянии менее 2,0 м от отопительных установок, электропроводки или других объектов с температурой поверхности, превышающей допустимые значения;
- электрооборудование должно быть предусмотрено во взрывобезопасном исполнении.
5.3.14.28 В складском помещении (отсеке) не допускается хранение аммиачной селитры и ее производных одновременно с другими веществами и материалами.
5.3.14.29 Склады аммиачной селитры должны быть оборудованы:
- системой автоматической пожарной сигнализации;
- установками автоматического пожаротушения;
- первичными средствами пожаротушения.
5.3.14.30 Склады аммиачной селитры должны быть оборудованы датчиками на пламя, тепло и дым.
5.4 Терминалы, специализированные для контейнеров
5.4.1.1 Терминалы, специализированные для контейнеров, предназначены для перевалки грузов, перевозимых в контейнерах, хранения груженых и порожних контейнеров, обеспечения судов электроэнергией и питьевой водой, обработки подвижного состава смежных видов транспорта.
5.4.1.2 Терминал представляет собой совокупность функциональных элементов, предназначенных для выполнения следующих технологических операций:
- приема подвижного состава морского и смежных видов транспорта, перевозящих перерабатываемые на терминале контейнеры;
- погрузки (выгрузки) контейнеров, перевозимых на подвижном составе морского и смежных видов транспорта;
- хранения контейнеров для дальнейшей отправки, а также хранения неконтейнеризированных грузов и подготовки грузов к контейнерной перевозке;
- хранения рефрижераторных контейнеров с подключением к сети электропитания;
- комплектации контейнеров при отправке судами неконтейнеризированными грузами, поступившими другими видами транспорта;
- раскомплектации контейнеров при потребности отправки части груза из контейнеров, выгруженных из судов, в неконтейнеризированном виде по железной дороге и автотранспортом;
- перегрузки, при необходимости, сборных грузов из одних контейнеров в другие;
- комплексного обслуживания судов.
5.4.1.3 В состав функциональных элементов терминала входят:
- морской грузовой фронт;
- железнодорожный грузовой фронт;
- автомобильный грузовой фронт;
- склады хранения контейнеров;
- склад комплектации грузов в контейнеры;
- сортировочная площадь;
- центральный пункт управления;
- блок служебно-бытовых помещений;
- сети инженерно-технического обеспечения.
5.4.1.4 Компоновка терминала, специализированного на перегрузке контейнеров, выполняется в соответствии с основными требованиями, приведенными в
подразделе 4.2.
5.4.1.5 Технологические планировки формируются на основе выбранных схем механизации, приведенных в
У.2 (приложение У) или разработанных проектировщиком исходя из особых условий эксплуатации терминала.
В проектной документации должна быть обоснована целесообразность использования в данных конкретных условиях рекомендуемой либо предложенной схемы.
5.4.1.6 На начальных стадиях проектирования должны рассматриваться не менее трех конкурентоспособных вариантов технологического процесса и компоновки технологической планировки терминала, из которых выбирается оптимальный вариант.
5.4.1.7 При компоновке терминала следует выбирать кратчайшие пути транспортировки контейнеров внутри терминала. Размещение зданий, сооружений и коммуникаций должно быть компактным с целью экономного использования территории и минимальных энергозатрат.
5.4.2 Исходные данные для технологического проектирования терминала
5.4.2.1 Проектирование терминала выполняется на основе исходных данных, представляемых застройщиком (техническим заказчиком).
5.4.2.2 Проектированию терминала должен предшествовать анализ контейнеропотоков и экологической обстановки для определения совместимых видов грузов на одном терминале. При этом необходимо стремиться к созданию многоцелевого (многофункционального) терминала, обладающего максимальной универсализацией, в отношении номенклатуры перевозимых грузов.
5.4.2.3 Все грузовые контейнеры, перегружаемые на терминале, делятся на крупнотоннажные и специализированные.
Основные параметры крупнотоннажных контейнеров приведены в
приложении Ф.
К специализированным контейнерам относятся контейнеры, заполненные грузом, требующим специального обслуживания.
Рефрижераторные контейнеры выделяются в самостоятельную группу.
Основные виды индивидуальных контейнеров и требования по их установке на судне и на берегу приведены в
таблице 5.1.
Рефрижераторный контейнер | Устанавливается на палубе и на берегу на местах, оборудованных для подключения к сетям электроснабжения |
Контейнер для опасных грузов | Хранение и транспортировка производятся согласно МК МПОГ для перевозки опасных грузов |
Контейнер для скота, птицы | Устанавливается на палубе и на берегу в крайние места штабеля в первый ярус |
Контейнер с грузом животного происхождения | Устанавливается на берегу на отдельной площадке и на судне ниже ватерлинии |
Контейнер с мокросолеными шкурами | Устанавливается в трюме и на берегу в нижний ярус |
Танк-контейнеры | Устанавливается на палубе, в контейнерных ячейках судов-контейнеровозов и на берегу |
Контейнеровместимость транспортных средств, интенсивность грузовых работ, суточная пропускная способность принимаются в физических контейнерах, физических контейнерах в час, сутки. При необходимости пересчета в контейнеры 1C количество физических контейнеров умножается на величину (1 + y), где y - доля контейнеров 1A в составе физических контейнеров.
5.4.3 Морской грузовой фронт
5.4.3.1 Морской грузовой фронт предназначен для обработки и обслуживания морских судов, судов смешанного (река-море) плавания, судов внутреннего плавания. Он включает в себя причалы с оперативными площадками, перегрузочное оборудование для погрузки и транспортировки контейнеров в склады и обратно, устройствами для комплексного обслуживания судов в процессе грузовых работ.
5.4.3.2 За расчетную единицу морского грузового фронта принимается причал для приема под обработку одного судна.
5.4.3.3 Количество причалов определяется по
формуле (Г.1) приложения Г.
5.4.3.4 Валовая интенсивность грузовых работ при обработке судов-контейнеровозов Mсут.м рассчитывается по формуле:

(5.1)
где m - количество типов расчетных судов;
Aj - доля расчетных судов типа j в общем объеме расчетного грузооборота;
tгрj - время занятости причала выполнением грузовых работ при обработке судна типа j, ч;
tnсj - среднее время занятости причала под вспомогательными производственными операциями судна типа j, ч;
Dj - контейнеровместимость судна типа j, конт.;
Kим - коэффициент использования контейнеровместимости судна; рекомендуемое значение 0,85.
5.4.3.5 Время занятости причала выполнением грузовых работ tгрj при обработке судна типа j в часах определяют по формуле

(5.2)
где Mj - чистая интенсивность грузовых работ в контейнерах в час.
M
j = P
лм·N
лм·K
конц, (5.3)
где Pлм - эксплуатационная производительность технологической линии, конт./ч;
N
лм - количество технологических линий, принимаемое по
таблице 5.2, либо по плану-графику обработки расчетного судна;
Kконц - коэффициент, учитывающий снижение производительности в зависимости от одновременно работающих на одном судне причальных контейнерных перегружателей.
Тип судна-контейнеровоза | Рекомендуемое количество технологических линий, Nлм | Коэффициент, учитывающий снижение производительности при увеличении одновременно работающих причальных контейнерных перегружателей, Kконц |
До 1000 | 2 | 1,00 |
СК-1000-1700 | 3 | 1,00 |
СК-1700-2500 | 4 | 0,95 |
СК-2500-4000 | 4 | 0,95 |
СК-4000-7000 | 5 | 0,90 |
СК-7000-13000 | 5 | 0,90 |
СК-16600-18200 | 6 | 0,85 |
СК-18200-21000 | 6 | 0,85 |
Более 21000 | 6 и более | 0,80 |
Эксплуатационная производительность технологической линии определяется по формуле

(5.4)
где

- техническая производительность технологической линии, конт./ч;
K - коэффициент, учитывающий переход от технической к эксплуатационной производительности технологической линии, принимается:
- при механизированном способе производства грузовых работ K = 0,75;
- при автоматизированном - K = 0,9;
1,067 - коэффициент, учитывающий время обеденного перерыва.
5.4.3.6 Среднее расчетное время занятости грузового причала под вспомогательными производственными операциями на расчетном судне, не совмещаемыми с основными, принимают по
таблице 5.3.
Вид плавания | Контейнеровместимость судна, ДФЭ | Весенне-летний период | Осенне-зимний период |
погрузка, ч | выгрузка, ч | погрузка, ч | выгрузка, ч |
Загранплавание и большой каботаж | до 1000 | 6,0 | 2,7 | 6,3 | 3,5 |
1001 - 1700 | 6,0 | 2,7 | 6,3 | 3,5 |
1701 - 2500 | 6,7 | 2,7 | 6,3 | 3,5 |
2501 - 4000 | 7,0 | 3,5 | 7,3 | 4,0 |
4001 - 7000 | 7,0 | 3,5 | 8,5 | 4,5 |
7001 - 13000 | 8,0 | 4,0 | 8,7 | 4,5 |
13001 - 16600 | 8,3 | 4,5 | 8,7 | 5,0 |
16601 - 18200 | 8,3 | 4,5 | 8,7 | 5,0 |
18201 - 21000 | 8,5 | 4,5 | 9,0 | 6,0 |
Более 21000 | 9,0 | 5,0 | 9,5 | 6,5 |
Малый каботаж | До 400 | 3,2 | 1,2 | 4,0 | 1,8 |
401 - 700 | 3,5 | 1,2 | 4,0 | 1,8 |
701 - 1000 | 3,5 | 1,2 | 4,0 | 2,0 |
1001 - 1300 | 4,0 | 1,8 | 4,5 | 2,0 |
1301 - 1500 | 4,0 | 1,8 | 4,5 | 2,0 |
Более 1500 | 4,5 | 2,2 | 5,0 | 2,5 |
Примечание - В нормы таблицы включена продолжительность производственных операций, которые не могут быть совмещены со временем грузовых работ: швартовка с маневрами, отшвартовка с маневрами, перестановка от причала к причалу, оформление прихода и отхода, оформление грузовых документов.
5.4.3.7 Техническую производительность технологической линии "судно-причал-сортировочная площадь" принимают по паспортным данным конкретных причальных перегрузочных машин либо по рекомендуемым для причальных контейнерных перегружателей значениям по
таблице 5.4.
Таблица 5.4
Производительность одной технологической линии
морского грузового фронта, оснащенной причальным
контейнерным перегружателем, (ДФЭ/час)
| Односпредерный перегружатель | Однотележечный перегружатель для спаренной работы | Двухтележечный перегружатель для спаренной работы <*> | Однотележечный перегружатель | Двухтележечный перегружатель типа <*> |
Количество контейнеров в подъеме, ед. |  или  |  или  |  или  |  или  |  или  |
Грузоподъемность на спредере, т | До 50 | До 80 | До 80 | 80 - 125 | 80 - 125 |
Производительность, ДФЭ/час | 30 | 50 | 60 | 60 - 80 | 80 - 100 |
<*> В двух тележечных перегружателях одна тележка обслуживает морскую консоль, вторая береговую консоль. |
При использовании сложного цикла (перенос груза в двух направлениях за один цикл работы причального контейнерного перегружателя) для погрузки-разгрузки трюмов техническую производительность линии следует увеличить на 10%.
5.4.3.8 Длину, глубину, возвышение кордона и нормативные эксплуатационные нагрузки на причалы следует определять согласно
подразделу 4.3.
Для предварительной оценки длину причала рекомендуется принимать согласно
таблице 5.5.
Грузовместимость судов-контейнеровозов, ДФЭ | Длина причала, м | Длина расчетного судна, м | Примечание: запас свободной длины, м |
до 1000 | До 175 | До 165 | 10 |
1001 - 1700 | 180 - 205 | 165 - 190 | 15 |
1701 - 2500 | 205 - 245 | 190 - 230 | 15 |
2501 - 4000 | 245 - 285 | 230 - 270 | 15 |
4001 - 7000 | 290 - 330 | 270 - 310 | 20 |
7001 - 13000 | 330 - 420 | 310 - 400 | 20 |
13001 - 16600 | 425 - 435 | 400 - 420 | 25 |
16601 - 18200 | 450 - 480 | 420 - 450 | 30 |
18201 - 21000 | 485 - 515 | 450 - 480 | 35 |
Более 21000 | Более 520 | Более 480 | 40 |
5.4.4 Железнодорожный грузовой фронт
5.4.4.1 Железнодорожный грузовой фронт предназначен для погрузки-выгрузки контейнеров на платформы, а также приема-отправления железнодорожных платформ (маршрутов, подач).
В состав железнодорожного фронта входят площадка погрузки или разгрузки контейнеров на платформы, железнодорожные пути, участок комплектации, весы.
5.4.4.2 За расчетную единицу железнодорожного фронта принимается железнодорожная грузовая оперативная площадка, предназначенная для приема под обработку одной подачи железнодорожных платформ. Железнодорожная грузовая оперативная площадка включает: грузовые пути для размещения железнодорожных платформ, проходной (маневровый) путь, проезды, инженерные коммуникации и другие обустройства, необходимые для приема и обработки железнодорожных платформ.
5.4.4.3 Количество путей тылового железнодорожного грузового фронта следует определять исходя из возможной максимальной длины путей, которая выбирается для конкретных конфигураций и размеров тыловой части контейнерного комплекса, а количество подач (исходя из необходимости недопущения резкого снижения валовой интенсивности грузовых работ) принимается, как правило, не более трех.
5.4.4.4 Количество путей тылового железнодорожного фронта (для установки одной подачи) следует принимать равным двум или трем.
Помимо погрузочно-выгрузочных путей на тыловом железнодорожном фронте должен быть предусмотрен подъездной путь, который может быть расположен вне зоны, обслуживаемой краном.
5.4.4.5 Колею тыловых крановых путей для козловых контейнерных кранов, предназначенных для перегрузки крупнотоннажных контейнеров, следует выбирать в зависимости от принятой в проекте технологии грузовых работ и количества обслуживаемых этими кранами железнодорожных путей.
5.4.4.6 Длина тылового железнодорожного фронта определяется количеством железнодорожных платформ, устанавливаемых на одном пути, с учетом коэффициента использования полезной длины грузовых путей, равного 0,95.
5.4.4.7 Ширину тылового железнодорожного фронта следует определять в зависимости от выбранной схемы механизации, применяемых типов машин, ширины площадок для грузовых работ, временного размещения контейнеров и ширины проездов.
5.4.4.8 Для терминала с одним-двумя причалами рекомендуется предусматривать один тыловой железнодорожный фронт; с тремя-четырьмя причалами допускается принимать два железнодорожных фронта.
5.4.4.9 Суточный грузооборот тылового железнодорожного фронта Qсут.ж (конт./сут) в месяц наибольшей работы определяется по формуле

(5.5)
где Qж - годовой грузооборот тылового железнодорожного фронта, конт./г;
Kзан - коэффициент занятости тылового железнодорожного фронта; рекомендуется принимать в пределах 0,6 - 0,8;
Kмес - коэффициент месячной неравномерности; рекомендуется принимать равным 1,2;
n - количество месяцев навигации.
При отсутствии тылового автомобильного фронта пропускная способность тылового железнодорожного фронта должна быть не ниже пропускной способности морского грузового фронта.
5.4.4.10 Количество технологических линий n
лж принимается в зависимости от грузооборота тылового железнодорожного фронта по
таблице 5.6 и должно быть проверено по фактической суточной интенсивности грузовых работ M
сут.ж железнодорожного фронта с учетом перспективы развития контейнерного терминала. При этом зона работы козлового крана должна перекрывать не менее 80 - 100 м.
Параметры | Суточный грузооборот в мес наибольшей работы, контейнер/сут |
До 100 | 101 - 200 | 201 - 300 | 301 - 400 | 401 - 500 | 500 и более |
Количество технологических линий | 1 | 2 | 2 | 3 | 3 | 4 | 4 | 5 | 5 и более |
5.4.4.11 Валовая интенсивность грузовых работ Mсут.ж (конт./сут) определяется по формуле

(5.6)
где Kиж - коэффициент использования вместимости состава, в расчетах принимается равным 0,86;
nпод - количество подач в сутки;
tгр.ж - время, необходимое для производства грузовых работ, ч.

(5.7)
где Cж - коэффициент, учитывавший дополнительный объем работы железнодорожного фронта в связи с выгрузкой контейнеров с платформ на площадку; при использовании портальных контейнерных погрузчиков Cж = 1,0; при использовании портовых тягачей с полуприцепами Cж = 1,25;
M
ж - чистая интенсивность грузовых работ, конт./ч, по
формуле (5.3).
Техническая производительность технологических линий "железнодорожный фронт-сортировочная площадь" рассчитывается по паспортным данным козлового контейнерного крана с учетом его колеи или принимается в диапазоне значений от 20 до 30 цикл/ч.
5.4.4.12 Количество портальных контейнерных погрузчиков или портовых тягачей с полуприцепами в технологической линии "железнодорожный фронт-сортировочная площадь" определяется при проектировании, исходя из необходимости обеспечения бесперебойной погрузки-выгрузки железнодорожных платформ и складских работ на сортировочной площади, с учетом коэффициента, учитывающего затраты времени на ремонт.
5.4.4.13 Техническая производительность портальных контейнерных погрузчиков и портовых тягачей с полуприцепами принимается по рекомендациям
таблицы Ф.2 приложения Ф.
5.4.5 Автомобильный грузовой фронт
5.4.5.1 Автомобильный грузовой фронт предназначен для приема, погрузки или разгрузки контейнеров с автомобилей.
В состав автомобильного грузового фронта входят площадка загрузки/разгрузки автотранспорта, площадка для стоянки автотранспорта в ожидании погрузочно-разгрузочных работ, контрольно-пропускной пункт, оснащенный весовыми устройствами.
5.4.5.2 За расчетную единицу автомобильного фронта принимается автомобильная грузовая площадка, предназначенная для приема под обработку одного автотранспортного средства.
5.4.5.3 Погрузку-разгрузку автомобилей-контейнеровозов производят подъемно-транспортными машинами из числа используемых для складских работ на сортировочной площади.
При использовании на сортировочной площади козловых контейнерных (пневмоколесных) кранов и козловых контейнерных перегружателей обработку автомобилей-контейнеровозов допускается производить на любых оперативных площадках сортировочной площади.
В случае применения портальных контейнерных погрузчиков, при погрузке-разгрузке автомобилей-контейнеровозов должна быть предусмотрена площадка при въезде на терминал.
5.4.5.4 Прием, осмотр и взвешивание контейнеров, прибывающих автомобильным транспортом, производят на контрольно-пропускном пункте, оборудованном весами, при въезде на терминал.
5.4.5.5 В расчетах пропускную способность весов следует принимать равной 25 конт./ч.
Время на оформление приемки-передачи контейнера следует принимать равным 3 мин.
5.4.5.6 При расчете эксплуатационной производительности линии необходимо учитывать снижение производительности порядка на 10%, вследствие выполнения операции взвешивания.
5.4.5.7 Длину грузовой площадки для обработки одного автомобиля-контейнеровоза принимают равной 16 м, ширину - 4 м.
5.4.5.8 Количество грузовых площадок определяют в зависимости от грузооборота тылового автомобильного фронта, исходя из пропускной способности одной площадки, принимаемой равной 70 конт./сут. Количество технологических линий принимают равным количеству грузовых площадок.
5.4.6 Склады хранения контейнеров
5.4.6.1 Склады хранения контейнеров предназначены для накопления судовых партий контейнеров при отправлении из порта морем или маршрутных/вагонных партий при отправлении из порта железной дорогой и краткосрочного хранения груза.
На складах следует обеспечить прием контейнеров, доставляемых с грузовых фронтов, их хранение и накопление, подготовку к отправке морским или смежными видами транспорта, хранение порожних контейнеров, а также сезонное накопление контейнеров для терминалов с сезонной навигацией.
5.4.6.2 Основными параметрами склада являются площадь, вместимость и допустимая технологическая нагрузка от контейнеров (груза) на покрытие склада.
5.4.6.3 В зависимости от объема контейнеризации опасных химических грузов на терминале следует предусмотреть специальные площадки с обеспечением очистки, промывки контейнеров, утилизации россыпи, фумигации грузов в контейнерах.
Проведение фумигационных работ с грузами, находящимися в контейнерах, производится в соответствии с РД 31.31.37.50-87
[44].
Площадки для мойки контейнеров должны быть оборудованы средствами водоснабжения и водоотведения. Устройство водоснабжения и водоотведения на территории терминала следует производить в соответствии с положениями
4.7.5.
5.4.6.4 Все внутрипортовые грузовые и оперативные площадки, проезды, дороги и подъезды должны иметь усовершенствованные постоянные покрытия, которые определяются в соответствии с
4.6.
5.4.7.1 Крытый склад комплектации предназначен для оперативного хранения неконтейнеризированных грузов, выгруженных из вагонов, автомобилей и контейнеров, подготовки этих грузов к отправлению и укладки их в автомобили-контейнеровозы, вагоны и контейнеры.
| | ИС МЕГАНОРМ: примечание. В официальном тексте документа, видимо, допущена опечатка: "Санитарные правила для морских и речных портов" имеют номер 4962, а не СанПиН 4962. | |
5.4.7.2 Систему отопления, вентиляции и кондиционирования воздуха в складе комплектации следует проектировать в соответствии с
СП 60.13330.2012 и
СанПиН 4962.
5.4.7.3 У склада комплектации со стороны сортировочной площади должна быть предусмотрена площадка комплектации контейнеров.
При доставке контейнеров на площадку комплектации портовыми тягачами с полуприцепами у склада комплектации, как правило, предусматривается рампа. Ширина рампы принимается равной 1,5 м при наличии продольного проезда для вилочных погрузчиков внутри склада комплектации или 6,0 м, если проезд для погрузчиков предусмотрен вне склада.
На рампе должны быть предусмотрены мостики для въезда вилочных погрузчиков в контейнер.
В отдельных случаях склад комплектации может выполняться без рампы, но при этом необходимо предусматривать дополнительные перегрузочные машины, например, фронтальные контейнерные погрузчики.
При доставке контейнеров на площадку комплектации портальными контейнерными погрузчиками склад комплектации выполняется без рампы.
5.4.7.4 Для погрузки-выгрузки железнодорожных вагонов и грузовых автомобилей у склада комплектации с противоположной стороны от площадки комплектации контейнеров устраивается рампа. Ширина этой рампы принимается равной 7,0 м.
У рампы для обработки вагонов располагаются два железнодорожных пути, один из которых погрузочно-выгрузочный, другой - подъездной.
5.4.7.5 При прямой перегрузке грузов из контейнеров в вагоны (грузовые автомобили) и обратно устраивается рампа прямой перегрузки. Ширина рампы должна быть не менее 9,0 м.
5.4.7.6 Высоту стационарных рамп крытых складов, являющихся их конструктивной частью, в зависимости от назначения рампы принимают:
- для обработки контейнеров, установленных на ролл-трейлерах, и ролл-трейлеров - 700 мм от верха покрытия территории;
- прирельсовых для обработки как универсальных, так и рефрижераторных вагонов - 1300 мм от уровня верха головки рельсов;
- для обработки автотранспорта и контейнеров, установленных на трейлерах - 1200 мм от верха покрытия территории.
5.4.7.7 Расстояние от рампы до оси железнодорожного пути должно приниматься при обработке универсальных крытых вагонов - 2000 мм, при обработке универсальных и рефрижераторных вагонов - 2500 мм.
5.4.7.8 Рампы склада комплектации и прямой перегрузки грузов оборудуются навесами для возможности производства работ в непогоду.
5.4.7.9 При определении параметров склада комплектации следует учитывать соответствующие технологические требования, обеспечивающие заданный объем переработки.
5.4.8 Сортировочная площадь
5.4.8.1 Для работы на сортировочной площади и у склада комплектации используются те же транспортные машины, что и в технологических линиях грузовых фронтов.
5.4.8.2 Средняя площадь, занимаемая одним контейнером на сортировочной площади, определяется с учетом размеров штабеля, прилегающих проездов, зазоров между контейнерами, числа ярусов укладки контейнеров, и принимается по
таблице 5.7.
Тип машин на сортировочной площади, максимально возможная ярусность укладки | Среднее расчетное количество ярусов укладки контейнеров в штабель | Средняя площадь, занимаемая одним контейнером, м2 |
Портальный контейнерный погрузчик, 3 яруса | 1,5 - 1,7 | 31,5 - 27,0 |
Козловой контейнерный пневмоколесный кран, 4 яруса | 2,2 - 2,5 | 16,2 - 14,3 |
Козловой контейнерный перегружатель, 5 ярусов | 3,2 - 3,5 | 11,3 - 9,4 |
Козловой контейнерный перегружатель, 6 ярусов | 4,5 - 5,0 | 8,0 - 6,6 |
Примечания 1 Таблица неприменима для рефрижераторных и других индивидуальных контейнеров. 2 Среднее расчетное количество ярусов укладки определяется с учетом неоднородности потока экспортных и импортных контейнеров, количества судовых партий, портов назначения и принятой организации работы комплекса. |
5.4.8.3 В случае применения портальных контейнерных погрузчиков следует:
- размер штабеля вдоль длинной стороны контейнеров принимать равным 8 или 12 контейнерам 1C, в отдельных случаях допускается увеличение его длины до 16 контейнеров 1C;
- торцевые зазоры для обычных контейнеров 1C принимать 0,20 - 0,30 м, а для рефрижераторных - через каждую пару контейнеров 1C равными 2,5 м с целью установки устройств для токоподвода;
- боковой зазор между контейнерами принимать 1,4 - 1,6 м;
- зазор более 1,6 м принимать в тех случаях, когда необходимо использовать средства механизации для очистки проездов от снега;
- располагать контейнеры, как правило, длинной стороной перпендикулярно линии кордона с размещением по длине причала одного-двух рядов штабелей;
- ширину проездов, параллельных линии кордона, между штабелями принимать не менее 25 м; перпендикулярных линии кордона - 25 - 30 м при расположении осветительной мачты вне штабеля в зоне проезда и 20 - 25 м при расположении осветительной мачты в пределах штабеля;
- при ограниченной ширине, прилегающей к причалу территории, допускается располагать контейнеры длинной стороной параллельно линии кордона, при этом ширину проездов между штабелями, перпендикулярных линий кордона, принимать не менее 32 м.
5.4.8.4 В случае применения козловых контейнерных (пневмоколесных) кранов и козловых контейнерных перегружателей с портовыми тягачами и полуприцепами следует:
- контейнеры размещать длинной стороной параллельно линии кордона;
- торцевые зазоры для обычных контейнеров 1C принимать 0,3 - 0,54 м, а для рефрижераторных контейнеров через каждую пару контейнеров 1C - 2,5 м;
- боковые зазоры между контейнерами в штабеле принимать 0,36 - 0,56 м, увеличивая их с ростом высоты штабелирования, а размер штабеля вдоль длинной стороны контейнеров - соответственно длине причала;
- ширину проездов, перпендикулярных линии кордона, расположенных по краям сортировочной площади, принимать 23 м и между штабелями 28,5 м;
- ширину полосы для движения портового тягача с полуприцепами принимать 4 м.
5.4.8.5 Вместимость сортировочной площади комплекса определяют в зависимости от расчетной схемы.
Схема 1. Контейнерный причал обслуживает одну судоходную линию.
Схема 2. Контейнерный причал обслуживает несколько судоходных линий.
5.4.8.5.1 Схема 1. Вместимость сортировочной площади ET (конт. 1C) контейнерного причала, обслуживающего одну судоходную линию, определяется по формуле

(5.8)

(5.9)
где T - интервал между подходами расчетного судна, сут;
Дм - контейнеровместимость судна, конт. 1C;
Kим - коэффициент использования вместимости судна, принимается равным 0,85;
Qмес - расчетный грузооборот (конт. 1C) в месяц наибольшей работы с учетом потерь времени по метеопричинам;
tхр - среднее время хранения судовой партии контейнеров на сортировочной площади, сут.
Значение tхр принимается в зависимости от количества контейнеров, размещаемых на судно, и интервала T между подходами расчетного судна:
для судов вместимостью до 400 конт. - 6 - 8 суток,
от 400 до 700 конт. - 8 - 10 суток,
свыше 700 конт. - 10 - 12 суток.
Если принятое значение tхр меньше, чем 0,6T суток, - для расчета вместимости сортировочной площади принимается tхр = 0,6T. Большие значения tхр принимаются для более сложных в коммерческом отношении грузопотоков (экспорт, импорт, транзит), меньшие - для каботажного грузопотока.
5.4.8.5.2 Схема 2. Вместимость сортировочной площади контейнерного причала, обслуживающего несколько контейнерных судоходных линий, определяется по формуле

(5.10)
где

- наибольшие из расчетных значений вместимостей для отдельных линий (присваивается индекс i = 1) определяются по
формуле (5.8) для соответствующей доли контейнерооборота;
K = 2,0 - 2,2 -

значения K принимаются для сложных в коммерческом отношении грузопотоков (экспорт, импорт, транзит), меньшие - для каботажных перевозок;
Дi - средневзвешенная вместимость судов контейнерных линий, исключая первую.
5.4.8.5.3 Вместимость сортировочной площади комплекса из нескольких взаимозаменяемых причалов определяется как сумма вместимостей для каждого из причалов с понижающим коэффициентом a = 0,8 - 0,9.

значения коэффициента
a принимаются для сложных в коммерческом отношении грузопотоков (экспорт, импорт, транзит), меньшие - для каботажных перевозок.
5.4.9 Центральный пункт управления
5.4.9.1 Централизованное управление работой терминала осуществляется из Центрального пункта управления (ЦПУ), оборудованного пультом управления.
5.4.9.2 ЦПУ оснащается аппаратурой управления: основным перегрузочным оборудованием, системами (информационной, связи, промышленное телевидение и др.), системой диспетчерской связи с диспетчерской терминала и другими средствами по заданию на проектирование.
5.4.9.3 Как правило, ЦПУ располагается в тылу терминала и может размещаться в одном здании совмещенным (сблокированным) с помещением другого назначения.
5.4.10 Блок служебно-бытовых помещений
Блок служебно-бытовых помещений располагается в тылу терминала.
5.4.11 Сети инженерно-технического обеспечения
5.4.11.1 Разработку проектной документации на сети инженерно-технического обеспечения (электроснабжения, связи и сигнализации, теплоснабжения, водоснабжения, водоотведения) на территории вновь строящихся, расширяемых и реконструируемых терминалов следует выполнять в соответствии с требованиями
4.7 с учетом положений
РД 31.82.01-95 [5].
5.4.11.2 Причальные перегружатели, работающие от сети напряжением 6 - 10 кВ, должны подключаться индивидуально к распределительному устройству 6 - 10 кВ ближайшей подстанции. Линии питания таких перегружателей должны быть (помимо максимальной защиты) оборудованы защитой от замыкания на землю с действием на отключение.
Соединение шлангового кабеля 6 - 10 кВ с кабелем стационарным производят в прикордонном туннеле или кабельном колодце с помощью специальных кабельных разъемов.
Высоковольтные шланговые кабели перегружателей при сматывании с кабельного барабана укладываются в лотки на бетонном покрытии, надежно огражденные от повреждений, или канавки, которые следует предусматривать в бетонном покрытии.
5.4.12 Компоновка терминала
5.4.12.1 Компоновку терминала выполняют с привязкой к конкретным технологическим планировкам и рекомендуемым схемам механизации:
- схема механизации N 1 - с портальными погрузчиками (см.
рисунки У.2.1 -
У.2.4 приложения У);
- схема механизации N 2 - с пневмоколесными кранами (см.
рисунки У.2.5 -
У.2.6 приложения У);
- схема механизации N 3 - с козловыми перегружателями на рельсовом ходу (см.
рисунки У.2.7 -
У.2.8 приложения У).
5.4.12.2 На терминале должна быть выполнена разметка территории. Разметкой должны быть обозначены:
- полосы и направления движения автотранспорта и других подъемно-транспортных машин, участвующих в технологическом процессе, а также места их стоянки;
- места установки контейнеров;
- пешеходные дорожки.
Четкая видимость разметки территории должна быть обеспечена в любое время года.
5.4.12.3 Для решения задач автоматизации погрузки-выгрузки судов-контейнеровозов ячеистой конструкции в зданиях на терминале следует предусмотреть блок служебных помещений для размещения службы информационных технологий в расположенных вблизи терминала зданиях.
5.4.12.4 Для получения оптимальных значений площади и вместимости складов предлагается использовать имитационное моделирование работы терминала с учетом интересов всех участников транспортного процесса.
5.4.12.5 Для оптимизации основных параметров терминала рекомендуется имитационное моделирование технологических процессов на терминале.
5.4.13 Требования безопасности
5.4.13.1 При технологическом проектировании терминала должны быть соблюдены требования взрывопожарной и пожарной безопасности, промышленной и экологической безопасности, производственной санитарии, приведенные в
4.10 и
5.1, а также требования безопасности труда в соответствии с
РД 31.82.01-95 [5].
5.4.13.2 На всех строящихся и реконструируемых причалах следует устанавливать электроколонки для подключения судов к береговой сети, которые располагают у кордона. На одном причале следует предусматривать две электроколонки, располагая их вдоль причала.
5.4.13.3 При хранении опасных грузов на терминале должны быть соблюдены противопожарные требования, предусмотренные
правилами МК МПОГ
[29]. Все перегрузочные работы с опасными грузами должны осуществляться только на площадках, специально отведенных для этих целей.
5.4.13.4 Открытые контейнерные площадки должны быть оборудованы пожарной сигнализацией с ручными пожарными извещателями, имеющей вывод тревожного сигнала в диспетчерскую терминала.
5.4.14 Требования к оснащению рабочих мест, численности персонала, квалификации и подготовке кадров
Требования к оснащению рабочих мест, численности персонала, квалификации и подготовке кадров терминала устанавливаются согласно требованиям
4.10.
5.5 Терминалы, специализированные для накатных грузов
5.5.1.1 Терминал, специализированный для накатных грузов, предназначен для приема и обработки судов накатного типа, перевалки накатных грузов с этих судов на смежные виды транспорта, хранения накатных грузов, обеспечения судов электроэнергией и питьевой водой, обработки подвижного состава смежных видов транспорта.
5.5.1.2 Терминал представляет собой совокупность функциональных элементов, предназначенных для выполнения следующих технологических функций:
- приема подвижного состава морского и смежных видов транспорта, перевозящих перерабатываемые на терминале грузы;
- погрузки (выгрузки) грузов перевозимых на подвижном составе морского и смежных видов транспорта;
- хранения и подготовки грузов к дальнейшей отправке;
- комплексного обслуживания судов.
5.5.1.3 В состав функциональных элементов терминала входят:
- морской грузовой фронт;
- тыловые железнодорожные грузовые фронты для контейнеров и подвижной техники;
- автомобильный грузовой фронт;
- склады;
- сортировочная площадь, включая площадку для бракованной техники, смотровую площадку и накопительную, предназначенную для накопления судовой партии груза;
- открытый склад комплектации с площадками комплектации и раскомплектации, железнодорожной и автомобильной площадками для разгрузки-погрузки неукрупненных грузов открытого хранения (НОГ);
- крытый склад комплектации для неукрупненных грузов крытого хранения (НКГ);
- центральный пункт управления;
- блок служебно-бытовых помещений;
- сети инженерно-технического обеспечения.
5.5.1.4 Компоновка терминала, специализированного на перегрузке накатных грузов открытого и закрытого хранения, выполняется в соответствии с основными требованиями, приведенными в
4.2.
5.5.1.5 Технологические планировки формируются на основе выбранных схем механизации, способа обработки судна (горизонтальный или горизонтально-вертикальный), приведенных на
рисунках У.3.1 -
У.3.6 (приложение У) или разработанных проектировщиком исходя из особых условий эксплуатации терминала.
В проектной документации должна быть обоснована целесообразность использования в данных конкретных условиях рекомендуемой либо предложенной схемы.
5.5.1.6 На начальных стадиях проектирования должны рассматриваться не менее двух конкурентоспособных вариантов технологического процесса и компоновки терминала, из которых выбирается оптимальный вариант.
5.5.1.7 При компоновке терминала следует выбирать кратчайшие пути транспортировки груза внутри терминала. Размещение зданий, сооружений и коммуникаций должно быть компактным с целью экономного использования территории и минимальных энергозатрат.
5.5.2 Площадь и вместимость складов
5.5.2.1 Метод расчета площади и вместимости складов приведен в
4.5.
5.5.2.2 Для получения оптимальных значений площади и вместимости складов, как и оптимизации других основных параметров терминала, предлагается использовать имитационное моделирование работы терминала, исходя из учета интересов всех участников транспортного процесса.
5.5.3 Исходные данные для технологического проектирования терминала
5.5.3.1 Проектирование терминала выполняется на основе исходных данных, представляемых застройщиком (техническим заказчиком) согласно перечню исходных данных в
приложении Щ. Дополнительно в задании на проектирование должна быть установлена средняя загрузка контейнеров и укрупненных грузовых единиц (УГЕ).
5.5.3.2 При задании исходных данных по структуре грузооборота терминала, специализированного для обработки накатных грузов, состоящих из контейнеров и подвижной техники, рекомендуется накатные грузы по основным транспортно-перегрузочным признакам подразделить на 6 групп:
- грузовые контейнеры, погрузка, выгрузка и перемещение по территории терминала которых выполняется погрузчиками (фронтальными, портальными), кранами и причальными контейнерными перегружателями;
- легковые автомобили, погрузка-выгрузка которых выполняется своим ходом портовыми водителями;
- грузовая и специальная самоходная техника, погрузка-выгрузка которой выполняется своим ходом портовыми водителями, а также грузоподъемными машинами;
- несамоходная техника, при погрузке-выгрузке которой требуется применять портовые тягачи;
- УГЕ на несамоходном шасси, погрузка-выгрузка которых выполняется портовыми тягачами;
- УГЕ на самоходном шасси, в том числе, специализированном для перевозки тяжеловесов, проходящих через терминал транзитом.
5.5.3.3 Расчетный грузооборот терминала следует задавать в контейнерах, УГЕ, физических единицах подвижной техники и в тоннах проходящего за год через причальный фронт груза, т.е. погруженного или выгруженного из судов.
5.5.3.4 При проектировании производительность перегрузки контейнеров, УГЕ и подвижной техники определяется для конкретной схемы механизации в час, смену и сутки.
5.5.3.5 Все внутрипортовые грузовые и оперативные площадки, проезды, дороги и подъезды должны иметь усовершенствованные постоянные покрытия.
5.5.4 Морской грузовой фронт
5.5.4.1 Для терминала, рассчитанного на обработку судна с прямой аппарелью, длину причальной линии Lм определяют по формуле
Lм = Lпр + Lмп, (5.11)
где Lпр - длина причала, м;
Lмп - длина площадки для приема и обработки судна с прямой аппарелью, м.
Lмп = 2,3·Lтп + Lо, (5.12)
где Lтп - длина магистрального тягача с полуприцепом, равная 15,3 м;
Lо - длина участка опирания аппарели на площадку (определяется в зависимости от расчетного типа судна), м.
Для судна с угловой аппарелью Lм = Lпр.
5.5.4.2 Для судов с угловой аппарелью ширину морского грузового фронта принимают равной ширине причала (Bпр), измеряемой расстоянием от кордона причала до внешней границы прикордонной оперативной площадки. Размер площадки устанавливается проектом в зависимости от конфигурации причальной линии, принятых схем механизации погрузочно-разгрузочных работ, видов и способов комплексного обслуживания судов и требований пожарной безопасности. Для судов с прямой аппарелью ширину морского грузового фронта определяют по формуле
Bм = Bпр + Bмп, (5.13)
где Bмп - ширина площадки для приема и обработки судна с прямой аппарелью, м.

(5.14)
где Bс - ширина судна, м;

- расстояние между бортом судна и причалом, принимают равным 1 - 1,5 м.
5.5.4.3 Расчет количества причалов, валовой интенсивности грузовых работ, времени грузовых работ при обработке расчетных судов выполняется аналогично процедуре
п. 5.4.3.
5.5.4.4 Среднее время занятости причала производственными стоянками для расчетного судна в часах принимают по
таблице 5.8.
Вид плавания | Дедвейт судна, т | Весенне-летний период | Осенне-зимний период |
погрузка | выгрузка | погрузка | выгрузка |
Заграничное и большой каботаж | до 1500 | 4,0 | 1,5 | 4,5 | 2,5 |
1501 - 3000 | 4,0 | 1,5 | 4,5 | 2,5 |
3001 - 5000 | 4,0 | 1,5 | 4,5 | 2,5 |
5001 - 8000 | 5,0 | 2,0 | 5,0 | 3,0 |
8001 - 12000 | 5,0 | 2,0 | 5,5 | 3,5 |
12001 - 16000 | 6,0 | 2,5 | 6,0 | 4,0 |
более 16000 | 6,0 | 3,0 | 6,5 | 4,5 |
Малый каботаж | до 1500 | 3,0 | 1,0 | 3,5 | 1,5 |
1501 - 3000 | 3,0 | 1,0 | 3,5 | 1,5 |
3001 - 5000 | 3,0 | 1,0 | 3,5 | 1,5 |
| | ИС МЕГАНОРМ: примечание. Значение в графе "Весенне-летний период, выгрузка" дано в соответствии с официальным текстом документа. | |
|
| 5001 - 8000 | 3,5 | 1, | 4,0 | 1,5 |
8001 - 12000 | 3,5 | 1,5 | 4,0 | 1,5 |
более 12000 | 3,5 | 1,5 | 4,0 | 2,0 |
Примечание - В нормы таблицы включена продолжительность операций, которые не могут быть совмещены со временем грузовых работ: швартовка с маневрами, отшвартовка с маневрами, перестановка от причала к причалу, оформление прихода, отхода, оформление грузовых документов. |
5.5.5 Тыловой автомобильный фронт
5.5.5.1 Прием, осмотр и взвешивание самоходных шасси с УГЕ, проходящих через порт транзитом, а также магистральных автомобилей с контейнерами производится на оборудованном весами контрольно-пропускном пункте при въезде на терминал.
5.5.5.2 В расчетах пропускную способность весов принимают равной 25 ед./ч. Время на оформление приемки-передачи контейнеров и УГЕ принимают равным 3 мин.
5.5.6 Сортировочная площадь
5.5.6.1 Сортировочная площадь может состоять из нескольких типов площадок:
- тип I: для складирования контейнеров 1A, 1C (устанавливаемых в штабель до 3-х ярусов портальными погрузчиками);
- тип II: для складирования контейнеров с помощью козлового крана;
- тип III: для складирования контейнеров 1C, устанавливаемых в штабель фронтальными погрузчиками, ярусность определяется в зависимости от характеристики выбранного фронтального погрузчика (не более 5 ярусов);
- тип IV: для складирования магистральных полуприцепов 1A, 1C с тягачами;
- тип V: для складирования самоходных автомобилей и несамоходной колесной техники шириной до 2,75 м;
- тип VI: для складирования низкорамных полуприцепов (ролл-трейлеров).
5.5.6.2 Площадь удельной территории F
m в м
2, занимаемая одной УГЕ на сортировочной площади, определяется с учетом типа штабеля, числа ярусов укладки, типа УГЕ, длины ряда и применяемых машин по
формулам 5.15 и
5.16

(5.15)
где Lбш, Bбш - длина и ширина брутто штабеля (с прилегающими проездами), м;
Nш - количество УГЕ в штабеле, шт.;
m - количество УГЕ, уложенных по ширине штабеля, шт.;
n - количество УГЕ, уложенных по длине штабеля, шт.;
p - среднее число ярусов УГЕ в штабеле (расчетные значения перечисленных величин приведены в
таблице 5.7).
5.5.6.3 Вместимость площадок для каждого груза сортировочной площади Ei определяется по формуле

(5.17)
где Ai - доля i-го груза, загруженного на судно;
Dj - средневзвешенная загрузка судна, Dj = Dчj·Kиспj;
Dчj - чистая грузоподъемность судна;
Kиспj - коэффициент использования грузоподъемности судна;
t - время хранения груза в сутках, рассчитываемое по
формуле 5.18
T
и - интервал между подходами расчетных типов судов в сутках, определяемый по
формуле 5.19
где Qсут - суточный грузооборот терминала в месяц наибольшей работы (т/сут).
Общая вместимость складских площадок E, специализированных на i-ом типе УГЕ, определяется по формуле

(5.20)
где Ei - вместимость площадок комплекса для i-го груза ед.;
Aj - доля судов j-го типа.
5.5.6.4 Параметры штабеля (площадки) представлены в
таблице 5.9.
Тип УГЕ | Параметры штабеля, м | Тип складской машины |
длина УГЕ, I | ширина УГЕ b | зазоры | ширина проезда | длина штабеля Lбш | ширина штабеля Bбш |
торцевые  | боковые  | Bпр | Bмп |
Штабель типа I | | | | | | | | | |
| | | | | | | | | Портальный погрузчик |
Контейнеры | 6,06 | 2,44 | 0,33 | 1,40 - 1,60 | 19,00 | 26,00 | | 3,84·m1 |
Штабель типа II | | | | | | | | | Тягач специальный портовый |
Контейнеры | 6,06 | 2,44 | 0,30 - 0,54 | 0,36 - 0,56 | 17,00 | 14,00 | | |
Штабель типа III | | | | | | | | | Фронтальный погрузчик |
| 6,06 | 2,44 | 0,30 - 0,54 | 0,36 - 0,54 | 14,00 | 22,00 | 5,38/10,76 | 6,36·m3 |
Штабель типа IV | | | | | | | | | |
| | | | | | | | | Тягач магистральный |
Полуприцепы магистральные с тягачами | 15,30 | 2,60 | 0,30 | 0,70 | 22,00 | 14,00 | 32,14/64,28 | 3,30·m4 |
Штабель типа V | | | | | | | | | |
n5 = 14 | | | | | | | | | |
Грузовые автомобили | 6,67 | 2,50 | 0,30 | 0,80 | 12,00 | 12,00 | 62,00 | 3,20·m5 | Тягач специальный |
Несамоходная колесная техника | 3,81 - 3,93 | До 2,75 | 0,2 - 0,3 | 0,70 - 0,80 | 18,00 | 12,00 | 62,00 | 3,20·m5 | Тягач с буксиром |
Штабель типа VI | | | | | | | | | |
n6 = 4/8 | | | | | | | | | |
Полуприцепы магистральные (ролл-трейлеры) | 6,15 | 2,60 | 0,30 | 0,70 | 19,00 | 14,00 | 25,6/51,2 | 3,20·m5 | Тягач магистральный |
<*> В числителе приведено количество грузовых единиц, уложенных по длине штабеля, следующих с моря; в знаменателе - подлежащих отправке на море. <**> Размеры штабеля определяются в зависимости от параметров козлового крана. |
5.5.6.5 Площадки для складирования самоходной колесной техники (легковые, грузовые автомобили, дорожная техника) ограждают по периметру и оборудуют охранной сигнализацией, а в отдельных случаях - аппаратами промышленного телевидения с передачей изображения на экраны мониторов, устанавливаемых в помещениях караульной службы либо в диспетчерской.
5.5.6.6 Аппараты промышленного телевидения устанавливают в случае размещения на складе свыше 250 единиц колесной техники и протяженности ограждения свыше 200 м в одном направлении.
5.5.7 Фронт неукрупненных грузов открытого хранения
5.5.7.1 Фронт неукрупненных грузов открытого хранения (НОГ) содержит в своем составе:
- железнодорожную площадку;
- автомобильную площадку;
- площадку комплектации и раскомплектации УГЕ;
- открытый склад.
5.5.7.2 Общую ширину фронта Bног в метрах, в случае применения козловых кранов, определяют по формуле

(5.21)
где dm - полоса для установки автомобилей под обработку, равная 10 м;

- габариты приближения автотранспорта к оси подкранового рельса, равные 2 м;
Кк - колея крана (определяется при проектировании), м;
d - полоса для комплектации и раскомплектации УГЕ, равная 13 м;
bа - ширина проезда на автомобильной площадке, равная 21,0 м;
bк - ширина проезда на площадке комплектации, равная 19,0 м.
Ширину открытого склада комплектации в метрах определяют по формуле

(5.22)
где Bж - ширина железнодорожной площадки, зависящая от количества железнодорожных путей, м;

- габарит приближения штабеля груза к оси подкранового рельса, равный 2 м.
5.5.7.3 В случае применения на фронте НОГ портальных кранов в две линии общую ширину фронта Bног в метрах определяют по формуле

(5.23)
Ширину открытого склада комплектации Bос в метрах в этом случае определяют по формуле

(5.24)
где Rmax - максимальный вылет стрелы портального крана, м.
5.5.7.4 Общая длина фронта НОГ включает длину железнодорожной площадки, а также ширину двух боковых проездов.
5.5.7.5 Приближенную оценку вместимости складов можно получить по методике, приведенной в
приложении М, уточненную оценку - используя имитационное моделирование работы терминала.
5.5.7.6 Площадь открытого склада комплектации Пос в квадратных метрах определяют по формуле

(5.25)
где Eос - вместимость открытого склада, т;
q - техническая нагрузка от складируемого груза, 4,0 тс/м2;
Ku - коэффициент использования площади открытых складов: в зоне действия портальных кранов и перегружателей - 0,8; вне зоны действия портальных кранов и перегружателей - 0,7.
5.5.7.7 Количество технологических линий для обработки вагонов, автомобилей (n
ожа) и УГЕ (n
ок) при круглогодичной навигации принимают в зависимости от объема груза, проходящего через фронт НОГ, по
таблице 5.10.
Число линий на площадках | Объем груза, проходящего через фронт НОГ, тыс. т/г |
до 159 | 160 - 229 | 230 - 309 | 310 - 449 | 450 - 499 | 500 - 579 | 580 - 639 | 640 - 699 | 700 - 810 |
nожа | 1 | 2 | 2 | 3 | 4 | 4 | 5 | 5 | 6 |
nок | 2 | 2 | 3 | 3 | 4 | 5 | 5 | 6 | 6 |
Примечание - Для пользования таблицей при не круглогодичной навигации объем груза, проходящего через фронт НОГ, увеличивается пропорционально отношению продолжительности круглогодичной навигации (12 мес. Или 360 суток) к фактической длительности навигации.
5.5.7.8 Количество портальных и козловых кранов Ппо в единицах на фронте НОГ по каждой площадке (железнодорожно-автомобильной, комплектации и раскомплектации) и открытому складу определяют по формуле
Ппо = По·Пк·Kвп·Kmо·Kсм, (5.26)
где По - количество технологических линий на одной площадке фронта НОГ, ед.;
Пк - количество кранов в технологической линии на одной площадке фронта НОГ, ед.;
Kвп - коэффициент, учитывающий затраты времени на ремонт, 1,15;
Kmо - коэффициент, учитывающий необходимость подготовки кранов к перегрузке различных грузов, 1,1;
Kсм - коэффициент сменности, учитывающий снижение потребности в кранах, работающих на одном и том же грузовом фронте, 0,8.
5.5.7.9 Количество машин Ппо, занятых на транспортировке УГЕ от площадки комплектации и раскомплектации до сортировочной площади и обратно, определяют по формуле

(5.27)
где Плок - число линий комплектации и раскомплектации УГЕ на площадке комплектации-раскомплектации, ед.;
Pк - эксплуатационная производительность портального крана (козлового крана) на площадке комплектации-раскомплектации, т/ч;
Pm - эксплуатационная производительность тягачей, т/ч.
5.5.8 Компоновка терминала
5.5.8.1 Компоновку терминала следует выполнять с привязкой к конкретным условиям его эксплуатации с учетом принятых схем механизации:
- N 1 - с использованием тягачей с полуприцепами (см.
рисунки У.3.1 -
У.3.6 приложения У);
5.5.8.2 Открытый склад, как правило, располагают за морским грузовым фронтом и предназначают для складирования контейнеров и подвижной техники.
Контейнеры и подвижную технику устанавливают в штабели прямоугольной формы параллельно линии кордона.
На складе необходимо предусмотреть накопительную площадку для подготовки подвижной техники к погрузке на судно, а также площадку для хранения бракованной техники и смотровую площадку.
5.5.8.3 Для целей наружного пожаротушения на комплексе следует предусмотреть систему пожарного водоснабжения - по
СП 31.13330.
5.5.8.4 Характер грузов и погрузочно-разгрузочных работ не требуют разработки мероприятий по охране окружающей среды, кроме определения ПДВ в атмосферу от работающих на терминале погрузчиков и тягачей.
Примечание - Требования к тыловому железнодорожному фронту для контейнеров и подвижной техники приведены в
5.3.
5.5.9 Требования безопасности
5.5.9.1 При технологическом проектировании терминала должны быть соблюдены требования взрывопожарной и пожарной безопасности, промышленной и экологической безопасности, производственной санитарии, приведенные в
4.10 и
5.1, а также требования безопасности труда в соответствии с
РД 31.82.01-95 [5].
5.5.9.2 При хранении опасных грузов на комплексе должны быть соблюдены противопожарные требования, предусмотренные
правилами МК МПОГ
[29], а также РД 31.11.32.01
[15]. Все перегрузочные работы с опасными грузами должны осуществляться только на площадках, специально отведенных для этих целей.
5.5.9.3 Открытые площадки должны быть оборудованы пожарной сигнализацией с ручными пожарными извещателями, имеющей вывод тревожного сигнала в диспетчерскую терминала.
5.5.10 Требования к сетям инженерно-технического обеспечения
5.5.10.1 Разработку проектной документации на сети инженерно-технического обеспечения (электроснабжения, связи и сигнализации, теплоснабжения, водоснабжения, водоотведения) на территории вновь строящихся, расширяемых и реконструируемых терминалов следует выполнять в соответствии с требованиями
4.7 с учетом положений
РД 31.82.01-95 [5].
5.5.10.2 На всех строящихся и реконструируемых причалах следует устанавливать электроколонки для подключения судов к береговой сети, которые располагают у кордона. На одном причале следует предусматривать две электроколонки, располагая их вдоль причала.
5.5.11 Требования к оснащению рабочих мест, численности персонала, квалификации и подготовке кадров
Требования к оснащению рабочих мест, численности персонала, квалификации и подготовке кадров терминала устанавливаются согласно требованиям
4.10.
5.6 Терминалы, специализированные для наливных грузов
5.6.1.1 В соответствии с современной структурой морских перевозок грузооборота морской порт может иметь в своем составе терминалы, специализированные для перевалки:
- нефти, нефтепродуктов, стабильного газового конденсата и продуктов его переработки;
- сжиженных углеводородных газов (СУГ), сжиженного природного газа (СПГ), нестабильного газового конденсата;
- жидких химических грузов;
- жидких пищевых грузов.
5.6.1.2 Технологические и планировочные решения по терминалам, специализированным для наливных грузов, должны обеспечивать безопасность мореплавания, пожарную, взрывопожарную, экологическую, санитарную безопасность и безопасность труда его персонала.
5.6.1.3 На проектируемых терминалах должно обеспечиваться эффективное взаимодействие морского транспорта со смежными видами транспорта (железнодорожным, автомобильным и трубопроводным), сохранность груза, снабжение судов электроэнергией и питьевой водой, обработка подвижного состава морского и смежных видов транспорта.
5.6.1.4 Территорию терминалов, специализированных для наливных грузов, необходимо разделять по функциональному назначению на зоны и участки с учетом технологических связей, грузооборота и видов транспорта, санитарно-гигиенических, экологических, противопожарных и других требований.
5.6.1.5 В состав функциональных технологических элементов терминала входят: морской грузовой фронт, тыловые фронты погрузки-выгрузки подвижного состава смежных видов транспорта, резервуарные парки, технологические трубопроводы с размещаемой на них трубопроводной арматурой, коммерческие и технологические средства измерения количества груза, продуктовые насосные станции, пункты управления, лаборатории, операторная. Кроме того, в состав терминала входят объекты подсобно-производственного, вспомогательного и обслуживающего назначения: административно-бытовые помещения, пункты пропуска, объекты комплексного обслуживания судов, ремонтные мастерские, материальные склады, объекты инженерного обеспечения, очистные сооружения.
5.6.1.6 Нормы и требования СП распространяются только на проектирование морского грузового фронта (МГФ) и не распространяются на тыловые фронты загрузки (разгрузки) подвижного состава смежных видов транспорта, резервуарный парк, технологические трубопроводы с размещаемой на них трубопроводной арматурой, коммерческие средства измерения количества груза, продуктовые насосные станции, пункты управления, лаборатории береговой нефтебазы, проектирование которых регулируется ведомственными нормами.
Для разработки технологической части проекта МГФ следует привлекать специализированные организации, технологи которых выдают исходные данные, необходимые для разработки компоновки терминала и гидротехнических решений.
5.6.2 Исходные данные для технологического проектирования терминала
Проектирование терминала выполняется на основе исходных данных, представляемых застройщиком (техническим заказчиком).
Основные исходные данные для технологического проектирования терминала приведены в
приложении Щ. Дополнительно застройщиком (техническим заказчиком) должны быть представлены сведения о наличии или аренде бонопостановщиков и судов нефтемусоросборщиков.
5.6.3 Терминалы, специализированные для нефти и нефтепродуктов
5.6.3.1 Терминал (в части морского грузового фронта) должен обеспечить выполнение следующих технологических операций:
- швартовку, отшвартовку и безопасную стоянку нефтеналивных судов;
- постановку боновых заграждений;
- налив и слив нефти и нефтепродуктов;
- бункеровку танкеров топливом, маслами и пресной водой;
- прием с танкеров балластных, льяльных и других загрязненных нефтью и нефтепродуктами вод, нефтеостатков;
- выполнение различных вспомогательных операций, связанных с грузовыми работами по наливу-сливу;
- комплексное обслуживание судов с берега или с моря.
5.6.3.2 В операционной зоне морского грузового фронта размещаются причалы либо выносные устройства для приема и отпуска груза; технологическая площадка с технологическим оборудованием слива-налива, включая шлангующие и сливно-наливные устройства (стендеры), а также устройства защиты стендеров от гидроудара, дренажные емкости; операторная; безопасные проходы для персонала; автомобильные подъезды и места для разворота пожарных машин; пожарное оборудование; склады для хранения боновых заграждений и средств ликвидации разливов нефти.
5.6.3.3 Для осуществления операций с нефтью и нефтепродуктами на терминале должны быть предусмотрены следующие системы и устройства:
- система грузовых технологических трубопроводов от нефтебазы к причалам;
- система приема с судов балластных вод и передачи их на береговые очистные сооружения (способ доставки на станции очистки балластных вод - СОБВ определяется проектом);
- система бункеровки судов топливом, маслами, пресной водой (способ бункеровки определяется проектом);
- устройства для соединения береговых и судовых трубопроводов;
- запорная, регулирующая, защитная и предохранительная арматура (задвижки, клапаны, краны и т.п.);
- контрольно-измерительные приборы, в том числе автоматические пробоотборники;
- коммерческий и технологический учет отправляемого либо получаемого продукта;
- система автоматизированного управления технологическим процессом с операторным пунктом;
- устройства телефонной связи между судном и взаимодействующими береговыми объектами;
- устройства для сбора и удаления разливов нефти и загрязненных нефтью вод;
- устройства для швартовных операций, подачи на суда предметов материально-технического снабжения и других вспомогательных операций;
- устройства системы автоматической противопожарной защиты в соответствии с действующими нормами и правилами;
- устройства для снятия статического электричества;
- блокирующие устройства, автоматически прекращающие перегрузку нефтяных грузов при разрыве соединения стендера или в других аварийных случаях;
- система аварийно-предупредительной сигнализации и оповещения персонала терминала и судов;
- система регулируемого выпуска и рекуперации паров нефтяных газов;
- система заземляющих устройств;
- система молниезащиты;
- наружное освещение операционной площадки;
- система защиты стендеров от гидроудара;
- система опорожнения трубопроводов;
- устройства для обеспечения доступа на судно и берег;
- система ограничения доступа, включая систему автономного (дополнительного) мобильного охранного ограждения (
16.3 ч. A,
16.21 -
16.29 ч. B МК ОСПС
[45]);
- система обнаружения вторжения на территорию комплекса;
- система охранного телевизионного наблюдения с выводом сигнала на пульт Службы охраны предприятия (
16.3 ч. A,
16.49 -
16.54 ч. B МК ОСПС
[45]).
Примечание - В случае предоставления заказчиком в составе исходных данных сведений о том, что налив нефти и нефтепродуктов будет осуществляться в двубортные танкера без слива балласта, допускается не проектировать систему приема с судов балластных вод и передачи их на береговые очистные сооружения.
5.6.3.4 Все оборудование, устанавливаемое на причалах нефтяных терминалов, должно удовлетворять условиям выполнения технологических операций механизированным способом и исключать загрязнение территории и акватории порта. Ручное управление отдельными механизмами и обустройствами предусматривается в качестве дублирующего в аварийной ситуации.
5.6.3.5 В составе терминала могут предусматриваться сооружения для налива плавбункеровщиков и приема льяльных и фекальных вод от судов-сборщиков.
5.6.3.6 При проектировании трубопроводов для приема с судов балластных вод необходимо рассчитывать их пропускную способность в соответствии с наибольшим значением суммарной производительности насосных установок для расчетного судна.
При устройстве общей магистрали балластной воды, объединяющей группу причалов и связывающей их со станцией очистки балластных вод, пропускная способность ее должна обеспечивать выкачку балластной воды, сливаемой одновременно с нескольких танкеров, без снижения интенсивности выкачки.
Расчетное количество одновременно сливаемой балластной воды определяется исходя из условий пикового скопления танкеров, прибывших с балластом, и последовательной постановки их к причалам, начиная с наиболее крупных.
Примечание - На случай одновременного слива балласта с нескольких танкеров насосными установками разных характеристик должны быть предусмотрены меры, исключающие возможность перелива балластной воды из одного танкера в другой.
5.6.3.7 Трубопроводы и раздаточные устройства для бункеровки судов топливом и маслами на причалах должны обеспечивать, как правило, отпуск в процессе грузовых операций без перестановки судна не менее пяти видов топлива: дизельного, моторного двух марок, мазута двух марок и других, а также до шести видов масел. Присоединительные устройства должны давать возможность бункеровки судна одновременно дизельным топливом и одним из остальных видов топлива, а также маслами.
Производительность бункеровки должна обеспечивать подачу танкеру всего потребного количества бункера за период продолжительности грузовых операций.
Количество одновременно бункеруемых судов по каждому виду бункерного топлива устанавливается расчетом.
Примечания
1 Количество видов топлива и масел, отпускаемых судам, уточняется при проектировании исходя из состава судооборота всего порта (в том числе сухогрузного и т.д.) и потребляемых ими видов топлива и масел.
2 С учетом рациональной организации бункеровки на обслуживаемых судоходных линиях при надлежащем обосновании может быть принята сокращенная номенклатура видов топлива и масел, отпускаемых в данном порту. Бункеровочные трубопроводы прокладываются на грузовых нефтяных причалах отдельно независимо от наличия односортного грузового трубопровода.
5.6.3.8 Для соединения береговых и судовых трубопроводов применяются шланги со шлангоподъемниками и специальные шлангующие устройства - стендеры.
Стендеры должны располагаться симметрично относительно оси технологической площадки причала на одной линии параллельно линии кордона, чем достигается совмещение зоны действия стендеров с зоной расположения основных приемно-отливных судовых грузовых и бункеровочных трубопроводов, размещаемых, как правило, на грузовой палубе танкера в районе мидельшпангоута.
Возможность применения шлангующих устройств вместо автоматизированных стендеров устанавливается проектировщиком исходя из конкретных условий эксплуатации порта.
5.6.3.9 Количество сливо-наливных устройств (стендеров) определяется в соответствии с ассортиментом нефтепродуктов, пропускной способностью устройства и судо-часовыми нормами слива-налива
(приложение Ц). Сливо-наливные устройства, предназначенные для различных нефтепродуктов, близких по своим физико-химическим свойствам, должны быть взаимозаменяемы.
Основными совмещаемыми операциями являются:
- слив балласта, налив нефтяных грузов (двух-трех видов, допускаемых к одновременной перевозке на танкерах), бункеровка;
- слив нефтяных грузов, бункеровка.
Обвязка стендеров в необходимых случаях должна обеспечивать пропуск наливных грузов в обоих направлениях.
Стендеры выбираются с такой пропускной способностью, чтобы количество стендеров для обеспечения наибольшей судо-часовой нормы по одному виду груза не превышало число грузовых линий танкера. При этом предусматривается максимально возможная взаимозаменяемость стендеров по видам наливных грузов, а также бункерных видов топлива и балластной воды (взаимозаменяемость реализуется при условии опорожнения стендера).
На причалах, перерабатывающих нефтяные грузы, которые по условиям сохранности качества должны быть тщательно защищены от воды, устанавливаются специализированные стендеры для приема балластной воды.
Следует предусматривать возможность установки дополнительных стендеров с учетом предусматриваемой на объекте проектирования прокладки дополнительных трубопроводов.
5.6.3.10 Специализация и взаимное расположение стендеров, а также их размещение (расстояние от кордона, расстояние между соседними стендерами) должно устанавливаться с учетом технических характеристик выбранных типов стендеров при соблюдении требований обработки танкера с одной установки (без дополнительной передвижки).
Проверка соблюдения указанных требований производится путем построения графических схем (см.
рисунок 5.9), на которых отражены условия присоединения к судовым патрубкам наиболее удаленных друг от друга стендеров, которые могут участвовать в обработке судна. При этом надлежит учитывать возможность подвижки ошвартованного судна за счет эластичности швартовных тросов вдоль причала на 3 - 4 м и по нормали к причалу до 2 - 3 м.
Схема совмещения зон обслуживания стендеров
с зоной расположения судовых приемно-отливных патрубков
Условные обозначения:

- стендер
Рисунок 5.9 - Схема совмещения зон обслуживания стендеров
с зоной расположения судовых приемно-отливных патрубков
Размещение стендеров на причале должно обеспечивать удобство их эксплуатации, монтажа и демонтажа, а также исключать возможность их повреждения при навале обрабатываемого судна.
Правильность размещения определяется по зоне действия стендеров в вертикальной плоскости (см.
рисунок 5.10) и горизонтальной плоскости (см.
рисунок 5.11).
Подготовка к аварийному отсоединению -

от 120° до 170°
Аварийное отсоединение -

от 140° до 170°
Координатная сетка дана в метрах
Рисунок 5.10 - Зона действия стендера
типа АС-250 в вертикальной плоскости
Примечания
1 Координатная сетка дана в метрах.
2 Углы y
1 и y
2 см.
табл. 1 и
2 приложения 1.
Рисунок 5.11 - Зона действия стендера
типа АС-250 в горизонтальной плоскости
Для стендеров типа АС-250 и АС-350 максимальные углы поворота в горизонтальной плоскости в зависимости от расстояния между ними показаны соответственно в
таблицах 5.23 и
5.24.
Примечания
1 Размер "A" (см.
рисунок 5.9,
5.10) - расстояние стендера от линии кордона должно быть не менее 3 м для стендеров АС-250 и не менее 4 м для стендеров АС-350.
2 Размер "B" (см.
рисунок 5.11) - расстояние между стендерами.
3 Бункерные трубопроводы, как правило, располагаются на грузовом нефтяном причале по краям пучка грузовых трубопроводов, а стендеры для бункеровки - по флангам фронта стендеров грузовых трубопроводов.
4 При большом ассортименте нефтеналивных грузов, перерабатываемых причалом, т.е. при большей протяженности фронта стендеров, должна быть составлена оптимальная схема подключения трубопроводов, учитывающая возможность подключения бункерных трубопроводов с помощью соответствующей обвязки к промежуточным грузовым стендерам или установки автономных промежуточных бункерных стендеров.
Расстояние B между стендерами | 2,0 | 2,5 | 3,0 | 3,5 | 4,0 |
- град. | 33 | 43 | 50 | 55 | 59 |
- град. | 38 | 46 | 56 | 58 | 63 |
Расстояние B между стендерами | 3,0 | 3,5 | 4,0 | 4,5 | 5,0 |
- град. | 46 | 54 | 59 | 58 | 58 |
- град. | 43 | 44 | 50 | 54 | 56 |
5.6.3.11 Конструкция стендеров должна обеспечивать механизированное, надежное и безопасное соединение технологических (продуктовых) трубопроводов с судовыми патрубками, автоматическое слежение за осадкой и возможной подвижкой танкера с автоматическим отключением стендера при недопустимо большой подвижке судна. На технологических (продуктовых) трубопроводах непосредственно перед стендерами должны быть предусмотрены отсекающие задвижки, которые автоматически закрываются при аварийном отключении стендера. Одновременно во избежание гидравлического удара должны автоматически отключаться перекачивающие насосы.
Конструкция стендеров и система трубопроводов, связывающих их (манифольд), должны предусматривать возможность их опорожнения, промывки и передачи загрязненных нефтью вод на береговые очистные сооружения.
5.6.3.12 В составе контрольно-измерительных приборов должны быть предусмотрены счетчики, обеспечивающие технологический учет количества наливаемого/сливаемого груза и бункерного топлива на каждое судно.
5.6.3.13 Проектными решениями по системе управления технологическими операциями, включая операцию дебалластировки, должна быть предусмотрена взаимосвязь с соответствующими судовыми системами.
Для приема на берег производственных сигналов и команд (предупредительных, разрешающих, аварийных и др.) с оборудованных соответствующими устройствами судов необходимо предусматривать единую контрольную цепь "судно-берег" с разъемными устройствами.
Целесообразная степень автоматизации устанавливается в проектной документации. Во всех случаях следует предусматривать:
- блокирующие устройства, автоматически прекращающие перегрузку нефтяных грузов при разрыве соединения стендера или в других аварийных случаях;
- дублирующее местное управление электрифицированным оборудованием.
5.6.3.14 Устройства связи (телефонной, селекторной, громкоговорящей) должны обеспечивать связь причалов с находящимися под обработкой танкерами, операторной, диспетчерской перевалочной и бункерной нефтебаз, станцией очистки балластных вод и с другими хозяйствами и службами, связанными с эксплуатацией терминала.
5.6.3.15 Для производства швартовных операций на причалах необходимо предусматривать устройства, обеспечивающие механизацию этих операций.
5.6.3.16 Все требования, изложенные в
5.6.3, как правило, распространяются на проектирование бункерных причалов.
Бункерные причалы представляют собой совокупность гидротехнических сооружений, перегрузочного оборудования, обустройства, транспортных и инженерных коммуникаций, необходимых для швартовки плавбункеровщиков, нефтеналивных барж, танкеров-снабженцев и проведения сливо-наливных операций.
Определение количества и параметров бункерных причалов, выбор оборудования и трубопроводов, количества и типов плавбункеровщиков, другие данные определяются при конкретном проектировании.
Шлангующие устройства для соединения береговых и судовых трубопроводов должны обеспечить налив плавбункеровщиков или бункеровку судна без перестановки двумя сортами топлива и маслами.
На бункерных причалах должны быть установлены счетчики-расходомеры, для определения количества нефтепродуктов, отгруженных на плавбункеровщики или бункеруемые суда, согласно РД 31.27.05-99
[46].
Весь комплекс берегового оборудования бункерных причалов должен обеспечить производство операций налива плавбункеровщиков, слива загрязненных нефтью вод и нефтеостатков на каждом причале по судо-часовым нормам не ниже приведенных в
приложении Ш.
5.6.4 Терминалы сжиженных углеводородных газов и сжиженного природного газа
5.6.4.1 Основные требования к терминалам сжиженных углеводородных газов (СУГ) и сжиженного природного газа (СПГ) аналогичны требованиям к терминалам, специализированным для нефти и нефтепродуктов (см.
5.6.3).
5.6.4.2 На технологической площадке причала для СУГ и СПГ размещаются:
- стендеры с гидравлической станцией управления;
- подводящие трубопроводы продукта и инертного газа (азота), а также рециркуляционный трубопровод и трубопровод приема с судна паровой фазы сжиженного газа;
- запорная и контрольно-измерительная аппаратура;
- устройства защиты от гидроудара;
- система пожаротушения;
- молниеотводы.
5.6.4.3 Стендеры для перевалки СУГ и СПГ должны быть оборудованы:
- системой аварийного разъединения с шаровыми задвижками неполного прохода на продуктопроводе и линии паров;
- гидравлическим приводом наружного и внутреннего плеча;
- линией возврата паров;
- ручным захватом типа "Камлок" на обеих линиях или аналогичным устройством с гидравлическим приводом;
- изолирующим фланцем;
- линией продувки азотом;
- лестницей до верхнего шарнира.
5.6.4.4 Трубопроводы для СУГ и СПГ, как правило, прокладываются на низкой эстакаде.
5.6.5 Терминалы, специализированные для химических жидких наливных грузов
5.6.5.1 При компоновке терминала, включая подходные и соединительные эстакады, для перегрузки агрессивных или ядовитых жидких продуктов, прокладку грузовых трубопроводов необходимо предусматривать с учетом максимально возможной температурной самокомпенсации. Применение сальниковых компенсаторов для таких грузов не допускается.
Грузовые трубопроводы должны быть оборудованы системой защиты от превышения давления.
Причалы, у которых производится обработка судов с агрессивными наливными грузами (кислоты, щелочи и др.) должны быть оборудованы фонтанчиками или кранами с пресной водой, размещенными вблизи проведения работ. Непосредственно на технологической площадке оборудуются душевые. Кроме того, на оперативной (технологической) площадке должно быть выделено место для хранения необходимого количества нейтрализующих веществ, готовых к немедленному применению на случай разлива груза на причале.
5.6.5.2 Причалы, через которые производится перегрузка легкоиспаряющихся наливных грузов, пары которых представляют ценный продукт или опасность для окружающей среды, оборудуются системой трубопроводов и насосными установками (газодувками) для отбора паров из танков загружаемого судна и подачи их на береговые обустройства с целью конденсации (сжижения).
Перечень таких грузов устанавливается специализированной проектной организацией, разрабатывающей технологические решения. Прокладку трубопроводов газоотводной системы осуществляют вместе с грузовыми трубопроводами соответствующего продукта.
5.6.5.3 Загрязненные воды после моечных операций на судне должны перекачиваться на береговые очистные сооружения.
Для перекачки этих вод необходимо предусматривать трубопроводы, количество которых определяется номенклатурой перегружаемых наливных химических грузов и возможностью последовательной перекачки разных загрязненных вод по общим трубопроводам.
5.6.5.4 При проектировании терминала для наливных химических грузов, относящихся к разряду опасных, должны выполняться требования
правил МОПОГ
[29].
Время грузовых работ по наливу-сливу судов с химическими наливными грузами определяется по судо-часовым нормам, приведенным в
приложении Э. Судо-часовые нормы для грузов, не охваченных указанной таблицей по наименованию или партионности, устанавливаются на основании технико-экономического расчета.
При надлежащем обосновании и согласовании в каждом конкретном случае с соответствующими специализированными организациями проектные судо-часовые нормы могут быть приняты более тех, что указаны в
приложении Э.
5.6.5.5 Система грузовых трубопроводов для слива-налива химических грузов проектируется в соответствии с установленной специализацией причалов, установленными судо-часовыми нормами обработки судов и с учетом возможного перспективного увеличения интенсивности обработки.
5.6.6 Терминалы, специализированные для жидких пищевых грузов
5.6.6.1 Технологическое проектирование терминалов, специализированных для жидких пищевых грузов, осуществляется в соответствии с основными требованиями
5.6.1.
5.6.6.2 Время грузовых работ по наливу-сливу судов с пищевыми наливными грузами определяется по проектным судо-часовым нормам, приведенным в
приложении Э.
5.6.6.3 Загрязненные воды после моечных операций на судне при перегрузке жидких пищевых грузов необходимо перекачивать на береговые специализированные очистные сооружения.
5.6.7 Терминалы наливных грузов с использованием выносных причальных устройств
5.6.7.1 Для осуществления операций с наливными грузами с использованием выносных причальных устройств (ВПУ) должны быть предусмотрены следующие системы и обустройства:
- система грузовых (наливных/сливных) трубопроводов;
- система подводных трубопроводов;
- центр управления с системой контроля и сбора данных;
- ВПУ якорного или башенного типа;
- система швартовного оборудования ВПУ;
- обустройство стоянки вспомогательных и патрульных судов;
- система навигационного ограждения зоны безопасности на акватории;
- система охранного телевизионного наблюдения акватории.
5.6.7.2 При проектировании терминала с использованием ВПУ в целях предупреждения разлива нефти следует предусматривать установку предохранительного оборудования для защиты шлангов от повреждений и/или разрывов, которые могут быть при отрыве танкера от ВПУ или резком повышении внутреннего давления в шлангах.
5.6.7.3 Для оказания помощи танкеру при швартовке к ВПУ и проведении грузовых операций, при наступлении аварийных ситуаций, чрезвычайных ситуаций на танкере, ВПУ или акватории в составе терминала должен быть предусмотрен специализированный буксир сопровождения, оборудованный средствами пожаротушения и ликвидации аварийных разливов нефти.
5.6.8 Сети инженерно-технического обеспечения
Разработку проектной документации на сети инженерно-технического обеспечения (электроснабжения, связи и сигнализации, теплоснабжения, водоснабжения, водоотведения) на территории вновь строящихся, расширяемых и реконструируемых терминалов следует выполнять в соответствии с требованиями
4.7 с учетом положений
РД 31.82.01-95 [5].
5.6.9 Основные технологические параметры терминала, специализированного для наливных грузов
5.6.9.1 Основными технологическими параметрами терминала, подлежащими расчету и обоснованию по нормам и требованиям, являются: количество причалов, годовая пропускная способность морского грузового фронта, длина причалов, размеры операционной зоны и технологической площадки.
5.6.9.2 Количество причалов определяется из отношения заданного грузооборота к расчетной годовой пропускной способности причала с округлением остатка до большего целого числа. При получении остатка меньше половины единицы следует увеличить интенсивность грузовых работ, в первую очередь, за счет насосов с более высокой производительностью.
5.6.9.3 Годовая пропускная способность причала рассчитывается исходя из количества и пропускной способности стендеров, продолжительности навигации, сезонности грузопотока, бюджета рабочего времени причала, учитывающего потери времени по метеоусловиям, величины резерва пропускной способности причала, устанавливаемой коэффициентом занятости причала. Методы расчета годовой пропускной способности причала приведены в
приложении Г.
Для нахождения оптимальных значений пропускной способности, особенно в случае существенных отклонений фактических условий эксплуатации терминала от расчетных, предлагается использовать имитационное моделирование технологических процессов на терминале.
5.6.9.4 Длина причальной линии терминала (при фронтальной конфигурации причальной линии) определяется как сумма длин всех причалов, входящих в терминал. Длина причала определяется по максимальному расчетному танкеру, предназначенному для постановки к конкретному причалу.
Метод расчета длины причалов приведен в
4.3.
5.6.9.5 Время занятости причала обработкой танкера определяется как сумма времени грузовых работ и времени слива балласта и других вспомогательных производственных операций, не совмещенного со временем грузовых работ.
Проектные судо-часовые нормы налива-слива танкеров и продолжительность не совмещаемых с грузовыми вспомогательных производственных операций танкера приведены в
приложении Ц.
Для вновь проектируемых или реконструируемых нефтяных причалов, связанных с действующей нефтебазой, время грузовых работ определяется расчетным путем с учетом развития нефтебазы и по согласованию с ней.
Примечания
1 Время налива-слива для малых судов (дедвейтом менее 10000 т) принимается в соответствии с действующими эксплуатационными нормами по наибольшему значению.
2 При одновременном наливе двух видов нефтепродуктов на танкер нормы для каждого вида снижаются на 50%.
3 При перегрузке вязких нефтепродуктов при температуре воздуха 0 °C нормы снижаются на 15%, при сливе бензинов в летний период нормы снижаются на 10%.
4 В настоящих нормах предусматривается, что необходимая подготовка продукта к перекачке (подогрев и др.) производится до начала грузовых операций и соответственно, это время во время слива-налива не включено.
5.6.9.6 Расчетная годовая пропускная способность морского грузового фронта принимается за величину проектной мощности терминала.
5.6.9.7 Пропускную способность железнодорожного и автомобильного грузовых фронтов, вместимость резервуарного парка рассчитывают по нормам технологического проектирования предприятий по обеспечению нефтепродуктами (нефтебаз).
5.6.10 Требования безопасности
5.6.10.1 При проектировании терминалов в целях обеспечения пожарной безопасности следует руководствоваться Федеральным
законом от 22.07.2008 N 123-ФЗ
[20] и выполнять положения Международного руководства ISGOTT
[47] и настоящего Свода правил. Каждый терминал должен быть обеспечен необходимым количеством специализированных плавсредств (пожарных судов) с боевыми расчетами с целью своевременной локализации и ликвидации пожаров как на расчетном танкере и на выносном причальном устройстве, так и на разлившихся в море нефти и нефтепродуктах.
Технологические решения по обеспечению взрывопожарной и пожарной безопасности на терминале должны быть направлены на исключение возможности превышения значений допустимого пожарного риска, установленного Федеральным
законом от 22.07.2008 N 123-ФЗ
[20], и на предотвращение опасности причинения вреда персоналу терминала и экипажам танкеров в результате взрыва или пожара.
5.6.10.2 Все оборудование, устанавливаемое на причалах, должно предусматриваться в соответствующем защищенном исполнении.
Причалы должны быть оборудованы специальными приспособлениями, обеспечивающими надежное заземление всех трубопроводов и стоящих у причалов танкеров в соответствии с действующими нормами и
правилами устройства электроустановок.
Кроме того, в целях пожарной безопасности на терминалах, специализированных для наливных грузов, при технологическом проектировании необходимо:
- предусматривать оснащение оборудования на терминале быстродействующими, в том числе автоматическими, средствами отсечки поступления горючих жидкостей в аварийную зону;
- предусматривать оснащение терминалов устройствами для ограничения растекания горючих жидкостей;
- обеспечить ограничение распространения пожара с помощью противопожарных разрывов и преград;
- предусматривать устройство противопожарных перегородок и преград в кабельных каналах, тоннелях и паттернах;
- обеспечивать оснащение оборудования терминалов огнепреградителями;
- обеспечивать флегматизацию горючих смесей в оборудовании терминала;
- предусматривать размещение пожароопасного оборудования в изолированных помещениях;
- во взрывоопасных зонах использовать взрывозащищенное электрооборудование и исключить все источники искрообразования;
- предусматривать оснащение терминалов устройствами водяного смыва пролитых горючих жидкостей и окислителей;
- для повышения огнезащищенности элементов конструкций терминалов следует предусматривать применение огнезащитных красок и покрытий.
5.6.10.3 На причалах должен обеспечиваться свободный проход и доступ ко всему оборудованию, приборам и устройствам, а также устроен пожарный подъезд, который совмещается с проездом для транспорта, доставляющего к танкерам грузы материально-технического и продовольственного снабжения.
Система пожаротушения и противопожарные мероприятия должны предусматриваться в соответствии с
ВСН 12.
5.6.10.4 Терминалы, специализированные для наливных грузов, на которых хранятся и транспортируются пожаровзрывоопасные вещества и материалы и для которых обязательна разработка декларации о промышленной безопасности (далее - пожаровзрывоопасные объекты), должны размещаться за границами поселений и городских округов.
5.6.10.5 При проектировании терминала, специализированного для нефти и нефтепродуктов, должны быть предусмотрены мероприятия, исключающие разлив нефтяных грузов и загрязнение акватории.
Причалы терминала должны быть оснащены:
- устройствами, предотвращающими попадание нефти и нефтепродуктов в воду;
- комплектами по локализации и ликвидации разливов нефти и нефтепродуктов;
- блокирующими устройствами, автоматически прекращающими перегрузку нефтепродуктов при разрыве соединений или в других аварийных случаях.
Устройства для сбора и удаления пролитого груза и загрязненных нефтью вод должны быть предусмотрены в увязке с общим комплексом мероприятий по предотвращению загрязнения акватории, проектируемых по данному порту (станции очистки балластных вод - СОБВ, боновые заграждения, плавсредства и др.), с соблюдением действующих норм и правил по охране окружающей среды и требований Международной
Конвенции МАРПОЛ
[13].
При погрузке на суда легковоспламеняющихся жидкостей с упругостью паров выше 500 мм рт. ст. рекомендуется предусматривать береговой трубопровод отвода паров нефти из грузовых танков в специальные береговые емкости, оснащенный устройством для соединения с газоотводными трубами нефтеналивных судов. На причалах должна быть предусмотрена производственно-дождевая канализация с устройством сборника для последующей передачи загрязненных вод на СОБВ либо на другие очистные сооружения. Емкость сборника определяется исходя из возможного объема пролива нефтяного груза, определяемого из условия ручного управления отсекающими задвижками.
Верхнее покрытие нефтяного причала должно быть устроено с учетом стока пролитых нефтепродуктов и атмосферных осадков в колодцы производственно-дождевой канализации.
5.6.10.6 Для производства швартовных операций на причалах необходимо предусматривать устройства, обеспечивающие механизацию этих операций.
5.6.10.7 При проектировании пожарного депо на территории терминала его следует располагать на земельных участках, примыкающих к дорогам общего пользования. Пожарное депо проектируется на основании задания на проектирование и, как правило, должно обслуживать группу предприятий.
5.6.10.8 Пожарные посты допускается встраивать в производственные и вспомогательные здания с категориями помещений В, Г и Д.
5.6.10.9 Выезды из пожарных депо и постов должны быть расположены так, чтобы выезжающие пожарные автомобили не пересекали основных потоков транспорта и пешеходов.
5.6.10.10 Терминалы площадью более 5 га должны иметь не менее двух въездов на автомобильные дороги общей сети.
5.6.10.11 При размере стороны земельного участка терминала более 1000 м и расположении ее вдоль автомобильной дороги на этой стороне следует предусматривать не менее двух въездов на площадку. Расстояние между въездами не должно превышать 1500 м.
5.6.10.12 Огражденные участки внутри площадок терминала (открытые трансформаторные подстанции, склады и другие участки) площадью более 5 гектаров должны иметь не менее двух въездов.
5.6.10.13 К зданиям, сооружениям и строениям по всей их длине должен быть обеспечен подъезд пожарных автомобилей с одной стороны при ширине здания, сооружения или строения не более 18 метров и с двух сторон при ширине более 18 метров, а также при устройстве замкнутых и полузамкнутых дворов.
5.6.10.14 На причалах должны быть предусмотрены проезды для пожарных автомобилей шириной 6 м, а также площадки для их разворота не менее 12 x 12 м, в том числе для размещения на них не менее двух пожарных автомобилей для забора морской воды из акватории порта и подачи ее к месту очага пожара в соответствии с требованиями Федерального
закона от 22.07.2008 N 123-ФЗ "Технический регламент о требованиях пожарной безопасности".
5.6.10.15 Расстояние от внутреннего края подъезда до стены здания, сооружения и строения должно быть:
- для зданий высотой не более 28 метров - не более 8 метров;
- для зданий высотой более 28 метров - не более 16 метров.
5.6.10.16 К водоемам, являющимся источниками противопожарного водоснабжения, и другим сооружениям, вода из которых может быть использована для тушения пожара, должна быть предусмотрена возможность подъезда для забора воды пожарной техникой в соответствии с требованиями нормативных документов по пожарной безопасности.
5.6.10.17 Пожарные гидранты надлежит располагать вдоль автомобильных дорог на расстоянии не более 2,5 м от края проезжей части, но не менее 5 м от стен здания.
5.6.10.18 Переезды или переходы через внутриобъектовые железнодорожные пути должны быть всегда свободны для пропуска пожарных автомобилей.
5.6.10.19 Ширина ворот автомобильных въездов на площадку терминала должна обеспечивать беспрепятственный проезд основных и специальных пожарных автомобилей.
5.6.10.20 Для установления требований к применению веществ и материалов и расчета пожарного риска используются показатели пожаровзрывоопасности и пожарной опасности веществ и материалов. Перечень показателей в зависимости от агрегатного состояния наливных грузов приведен в
таблице 1 Приложения к Федеральному закону от 22.07.2008 N 123-ФЗ
[20].
5.6.10.21 Для установления требований пожарной безопасности при хранении и транспортировании наливных грузов используется классификация веществ и материалов по пожаровзрывоопасности и пожарной опасности, установленная
ст. 12 Федерального закона от 22.07.2008 N 123-ФЗ
[20].
Примечание - В соответствии с
ГОСТ 12.1.044 горючие жидкости с температурой вспышки не более 61 °C в закрытом тигле или 66 °C в открытом тигле, зафлегматизированных смесей, не имеющих вспышку в закрытом тигле, относят к легковоспламеняющимся. Особо опасными называют легковоспламеняющиеся жидкости с температурой вспышки не более 28 °C.
5.6.10.22 Для установления требований пожарной безопасности к конструкции зданий, сооружений, строений и системам противопожарной защиты используется классификация строительных материалов по пожарной опасности, установленная
ст. 13 Федерального закона от 22.07.2008 N 123-ФЗ
[20].
5.6.10.23 Для выбора электротехнического и другого оборудования по степени их защиты, обеспечивающей их пожаровзрывобезопасную эксплуатацию, следует использовать классификацию пожароопасных и взрывоопасных зон согласно
Главе 5 Федерального закона от 22.07.2008 N 123-ФЗ
[20].
5.6.10.24 Размеры санитарно-защитной зоны устанавливаются в соответствии с требованиями, изложенными в
СанПиН 2.2.1/2.1.1.1200.
5.6.10.25 При размещении резервуара или группы наземных резервуаров ... у берегов рек (водоемов), расположенных на расстоянии менее 200 м, необходимо предусматривать одну из следующих дополнительных мер:
- устройство ограждения, конструктивное исполнение которого обеспечивает сдерживание образующейся при полном разрушении резервуара гидродинамической волны;
- устройство дополнительной защитной стены;
- устройство второго обвалования или ограждающей стены на расстоянии не менее 20 м от основного обвалования (ограждающей стены), рассчитанного на удержание 50% объема жидкости наибольшего резервуара. В качестве второго обвалования могут быть использованы не менее 20 м от основного ограждения отводных канав (траншей) шириной по верху не менее 2 м, глубиной не менее 1 м. Отводная канава должна заканчиваться в безопасном месте;
- устройство открытых земляных амбаров, объем которых рассчитан на полный объем наибольшего из резервуаров.
5.6.11 Требования к оснащению рабочих мест, численности персонала, квалификации и подготовке кадров
5.6.11.1 Нормы распространяются на численность персонала, необходимого только для обслуживания технологии морского грузового фронта терминала и обязанного постоянно находиться в его операционной зоне. На причале должны быть созданы постоянные рабочие места для организаторов грузовых работ (диспетчера, стивидоров) и операторов стендеров.
5.6.11.2 Количество рабочих мест операторов стендеров определяется в зависимости от количества одновременно обрабатываемых судов на терминале. Численность вспомогательного персонала, участвующего в швартовных операциях, постановке и уборке боновых заграждений, оформлении грузовых документов и прочих операциях на морском грузовом фронте, определяется при конкретном проектировании в соответствии с заданием на проектирование.
5.6.11.3 Состав, структура и оснащение рабочих мест оперативного персонала (диспетчера, стивидоров) должны обеспечить эффективное оперативное управление всеми технологическими процессами на терминале в любую смену. При наличии в составе терминала одного причала рабочие места диспетчера и стивидора допускается совмещать. Количество стивидоров в смене определяется количеством одновременно обрабатываемых судов. Штатная численность оперативного персонала рассчитывается исходя из численности персонала смены, количества смен и месячного фонда рабочего времени каждого работника. Оснащение рабочих мест оперативного персонала принимается согласно требованиям
4.10.
5.6.11.4 Требования к квалификации и подготовке кадров устанавливаются согласно требованиям
4.10.
5.6.11.5 Работники, впервые занявшие рабочие места операторов стендера либо имеющие перерыв в работе по профессии более года, обязаны пройти обучение и проверку знаний требований промышленной безопасности в течение первого месяца после назначения на эту работу.
Периодическое обучение и проверка знаний требований промышленной безопасности операторов стендера необходимо проводить не реже одного раза в год. Обучение и аттестация диспетчеров и стивидоров проводится не позднее одного месяца при назначении на должность или при перерыве в работе более одного года. Периодическая аттестация должна проводиться не реже чем один раз в три года.
5.7 Пассажирские терминалы
5.7.1 Специализация причалов
Причалы для пассажирских судов специализируют:
- для водоизмещающих пассажирских судов (катеров);
- для водоизмещающих грузопассажирских судов (паромов);
- для судов с динамическими принципами движения (суда на подводных крыльях - СПК; суда на воздушной подушке - СВП и др.).
5.7.2 Потребность в причалах
5.7.2.1 Потребное число причалов для водоизмещающих пассажирских судов, обслуживающих регулярное линейное судоходство, определяют согласно
приложению Е.
5.7.2.2 Потребное число причалов для водоизмещающих пассажирских судов, совершающих круизные рейсы, определяют раздельно для международных и каботажных рейсов как частное от деления проектного количества судо-заходов в месяц наибольшей работы на норматив месячной пропускной способности причала (в судо-заходах), принимаемый по
таблице 1.
| | ИС МЕГАНОРМ: примечание. Нумерация таблиц дана в соответствии с официальным текстом документа. | |
Вид круизного рейса | Норматив месячной пропускной способности одного причала при круизно-экскурсионной форме организации пассажирских перевозок, судо-заход |
Конечный пункт захода, город, имеющий туристическое значение | Прочие пункты |
С российскими туристами | 15 | 30 |
С иностранными туристами | 12 | 20 |
5.7.2.3 Потребное число причалов Nпск для судов скоростных линий (СПК, СПВ) определяют по формуле

(5.28)
где T
спi - продолжительность стоянки судов i-й линии в данном порту, ч, (i = 1, 2 ... n). Значение устанавливают согласно
5.7.2.4;
Ji - расчетный интервал прибытия в порт судов i-й линии по данным технического задания на проектирование, ч.
5.7.2.4 Продолжительность стоянки судов i-й линии, включающая как продолжительность пассажирских операций, так и продолжительность швартовки и связанных с ними маневровых операций, принимают в зависимости от положения, занимаемого данным портом в i-й линии:
- для конечных портов 1,0 ч;
- для промежуточных портов 0,5 ч.
5.7.2.5 Потребное число причалов для пассажирских судов портового флота Nпп, осуществляющих морские прогулки, рейдовое обслуживание экипажей грузовых судов или рейдовую обработку пассажирских судов, определяют раздельно для каждого из этих видов работ по формуле
Nпп = Eст - Nсп, (5.29)
где Eст - наибольшая доля судов, одновременно находящихся у причала в процессе выполнения ими одной из форм нерегулярных перевозок, от общего количества судов n, занятых в этой форме работы;
Nсп - общее количество судов, выделенных для выполнения определенного вида работ.
5.7.2.6 Наибольшую долю судов, одновременно находящихся у причалов в процессе выполнения нерегулярных перевозок, принимают в следующих пределах:
- двухчасовые прогулки - от 0,10 до 0,15;
- одночасовые прогулки - от 0,20 до 0,25;
- рейдовая обработка пассажирских транспортных судов и (или) перевозка экипажей грузовых судов, стоящих на рейде, - от 0,25 до 0,35. При этом меньшие значения принимают;
- для каждого из видов морских прогулок, если в данном порту (портопункте) предусматривается выполнение нескольких видов из вышеназванных работ (например, одно- и двухчасовые прогулки или прогулки и рейдовая обработка пассажирских транспортных судов и т.д.);
- для рейдовой обработки пассажирских транспортных судов, если стоянка последних удалена от берега на расстояние более 0,5 мили.
В остальных случаях следует принимать большие значения Eст.
5.7.2.7 Посадочные площадки причалов для обслуживания местных и пригородных пассажирских сообщений должны иметь ограждения (перила) по линии кордона высотой 1,2 м.
5.7.3 Морской вокзал, другие здания и помещения пассажирских терминалов
При проектировании помещений по обслуживанию пассажиров международных линий и круизных рейсов, связанных с оформлением необходимых документов и проведением досмотровых операций, следует руководствоваться
постановлением Правительства Российской Федерации от 2.02.2005 N 50
[59], а также требованиями
4.8.
5.8 Терминалы морских паромных переправ
5.8.1.1 Компоновку паромных терминалов рекомендуется разрабатывать в зависимости от структуры и объема перевозок, типов паромов, характера перевозок (международные или каботажные), рода перевозок (грузовые или грузопассажирские), структуры перевозимых транспортных средств (железнодорожные, автомобильные, самоходная техника, накатные грузы).
5.8.1.2 Площадь входного рейда должна иметь, как правило, размеры, позволяющие вписать в нее окружность диаметром не менее 2,5 наибольшей длины парома в метрах.
5.8.1.3 Причальные сооружения паромных переправ следует располагать на акватории при расчетной высоте волны не более 1 м.
5.8.1.4 На паромном терминале, как правило, должна быть предусмотрена возможность работы в автоматизированном режиме управления.
| | ИС МЕГАНОРМ: примечание. В официальном тексте документа, видимо, допущена опечатка: "Санитарные правила для морских и речных портов" имеют номер 4962, а не СанПиН 4962. | |
5.8.1.5 Проектирование помещений медицинского назначения (медпунктов, амбулаторий), санитарно-бытовых и санитарно-гигиенических помещений выполняют в соответствии с требованиями
СанПиН 4962 и
4.10.
5.8.2 Технологические объекты паромного терминала
5.8.2.1 Технология работы морских паромных переправ зависит в первую очередь от типа судов-паромов. По назначению различают паромы: железнодорожные; железнодорожные с автомобильной палубой и пассажирскими помещениями; автомобильные с пассажирскими помещениями; автомобильно-грузовые (без пассажирских помещений).
Положения настоящего подраздела определяют требования к проектированию железнодорожных, железнодорожно-автомобильных и железнодорожно-автомобильно-пассажирских терминалов.
При проектировании автомобильно-паромных терминалов следует руководствоваться положениями
5.5.
5.8.2.2 В состав береговых сооружений морской паромной переправы, как правило, включают:
- гидротехнические сооружения, поименованные в
5.8.2.3;
- подъездные железнодорожные и автомобильные пути;
- предпаромную сортировочную станцию;
- выставочный железнодорожный парк;
- центральный пост управления;
- блок мастерских со складом;
- блок служебных помещений;
- вокзал для пассажиров (для грузопассажирских паромов);
- сооружения связи, централизации и блокировки движения вагонов;
- помещения для таможенного, пограничного, санитарно-карантинного и ветеринарного контрольно-пропускного поста для международных линий;
- складские площадки для колесной техники;
- накопительные площадки автотранспорта с мастерскими, пунктом заправки топливом и др.;
- участок перестановки колесных пар (если это предусмотрено заданием) на одной из сторон переправы;
- гостиницу для пассажиров и водителей автопоездов.
Примечания
1 При конкретном проектировании из данного состава могут быть исключены некоторые из перечисленных сооружений или включены в этот состав другие необходимые сооружения в зависимости от типа парома и местных условий.
2 Состав, габариты и конструктивные характеристики сооружений железнодорожных паромных переправ, принятых в качестве аналогов, для однопалубных и двухпалубных паромов приведены в
РД 31.31.48-88 [48].
5.8.2.3 К гидротехническим сооружениям морской паромной переправы относят:
- причалы;
- въезд на причал;
- ложе парома;
- паромно-переходной мост;
- опоры и устои.
Для обеспечения паромного причала и ложа парома соответственно отбойными и амортизационными устройствами, а также защитой от размыва дна у причала движителями парома эти сооружения надлежит проектировать в соответствии с рекомендациями РД 31.31.45-87
[49].
5.8.2.5 Причальные сооружения паромного терминала выполняют в виде:
- причала фронтального расположения;
- пирса с односторонним расположением причала;
- пирса с двусторонним расположением причалов.
5.8.2.6 Длину, ширину, глубину у причала, возвышение кордона и нормативные эксплуатационные нагрузки причалов определяют в соответствии с
4.3.
Кроме того, при проектировании причальных сооружений морских паромных переправ необходимо дополнительно учитывать нагрузки от подвижного железнодорожного состава и от парома, возникающие при его швартовке и производстве погрузочно-разгрузочных работ, согласно рекомендациям РД 31.31.45-87
[49].
5.8.2.7 Потребное количество причалов морских паромных переправ Nпр определяют по формуле

(5.30)
где Nзах - частота захода паромов в порт в сутки (или число обработок паромов в сутки), принимаемая на основании задания на проектирование или рассчитываемая по формуле

(5.31)
где Qнаиб - расчетный годовой грузооборот паромного терминала по наибольшему направлению (экспорту или импорту), т/г;
Tнав - продолжительность навигационного периода, сут.;
B - паспортная вместимость парома в транспортных единицах;
Kив - коэффициент использования вместимости парома, равный 0,95 - 0,98;
Qте - средняя загрузка одной транспортной единицы, т;
Tст - стояночное время парома в порту с учетом маневровых операций, ч;
Kмет - коэффициент использования бюджета рабочего времени по метеопричинам, равный 0,85;
Kзан - коэффициент занятости причала обработкой парома, равный 0,55;
Kрем - коэффициент, учитывающий профилактический ремонт, осмотр причала и выдвижения упоров, равный 0,85.
5.8.2.8 Стояночное время в порту с учетом маневровых операций определяется при конкретном проектировании в зависимости от типа парома и принятой технологии обработки паромов. Время стоянки грузопассажирских паромов определяется еще и расписанием.
5.8.2.9 Стояночное время железнодорожного парома определяют по совмещенному графику с учетом следующих условий:
- подача в выставочный парк вагонов, подлежащих отправке, за один час до начала разгрузки парома;
- заблаговременный (до подхода парома) пограничный и таможенный досмотр вагонов, подлежащих отправке;
- совмещение раскрепления вагонов на нижней палубе (Н.) с выгрузкой вагонов с верхней палубы (В.);
- совмещение крепления вагонов на нижней палубе с загрузкой верхней палубы.
5.8.2.10 При определении стояночного времени железнодорожного парома в порту, как правило, включают следующие операции технологического процесса:
- досмотр вагонов, подлежащих к отгрузке (до прибытия парома);
- стыковка моста и выдвижение упоров;
- оформление прибытия, санитарный и таможенный досмотр и раскрепление вагонов на В.;
- выкатка вагонов с В.;
- перестановка двух плетей в выставочный парк;
- раскрепление вагонов на Н.;
- подача локомотивов с выставочного парка до моста;
- выкатка вагонов с Н.;
- перестановка двух плетей в выставочный парк;
- заезд двух локомотивов в выставочный парк и подача двух плетей экспорта в надвижную зону;
- загрузка Н.;
- выезд обоих локомотивов к сигналам у выхода с надвижных путей;
- заезд двух локомотивов в выставочный парк и подача двух плетей экспорта в надвижную зону;
- загрузка В.;
- выезд обоих локомотивов к сигналам у выхода с надвижных путей;
- расстыковка моста, уборка и выдвижение упоров;
- крепление вагонов на Н.;
- крепление вагонов на В., оформление отхода.
5.8.2.11 Норму времени на раскрепление и закрепление вагонов, как правило, принимают соответственно 5,3 и 10 мин на один вагон.
5.8.2.12 Допустимая скорость накатки и выкатки вагонов - 3 км/ч.
5.8.2.13 Годовую проектную мощность железнодорожных паромных переправ P
год в 4-осных вагонах рассчитывают по
формулам 5.32 и
5.33

(5.32)

(5.33)
где 2 - число грузовых операций (разгрузка и загрузка парома);
Nмес - число месяцев навигации;
Kмес - коэффициент месячной неравномерности (по навигации), равный 1,05;
K
устр - коэффициент, учитывающий число причалов и число их железнодорожных устройств, принимают согласно рекомендациями
РД 31.31.48-88 [48]:
- один причал с ж.д. устройством | - 1,0; |
- два причала с одним ж.д. устройством | - 1,1; |
- два причала с ж.д. устройствами | - 2,0. |
5.8.2.14 Потребное количество железнодорожных паромов Nп определяют по формуле

(5.34)
где Qваг - общее количество перевозимых вагонов между корреспондирующими портами;
Tкруг - время кругового рейса, сут;
T
эп - годовой эксплуатационный период работы парома в сутках, принимаемый по
РД 31.03.01-90 [50].
5.8.2.15 При расчете времени кругового рейса, как правило, включают следующие операции:
- отшвартовка и переход от причала до приемного буя в порту А;
- морской переход от буя в порту А до буя в порту Б;
- переход от буя до причала и швартовка в порту Б;
- отшвартовка и переход от причала до буя в порту Б;
- морской переход от буя в порту Б до буя в порту А;
- переход от буя до причала и швартовка в порту А;
- стояночное время в обоих портах;
- резерв времени в количестве 10 - 15%.
5.8.3 Подъемно-переходной мост
5.8.3.1 Подъемно-переходной мост включает пролетные строения и опоры, противовесы, подъемные механизмы, сопрягающие узлы, устройства поперечного и продольного перемещения паромного судна.
В зависимости от количества пролетов он может быть однопролетным, двухпролетным, многопролетным, одноярусным, двухъярусным.
Другие виды сопрягающего устройства настоящими нормами не рассматриваются.
5.8.3.2 Опоры моста устраивают на береговом (неподвижные опоры), промежуточных и морских (подвижные опоры) устоях.
5.8.3.3 Подъем и опускание подвижных опор производят подъемными механизмами при отсутствии подвижного состава на мосту.
5.8.3.4 Параметры, прочность и устойчивость подъемно-переходного моста и его элементов следует рассчитывать в соответствии с рекомендациями РД 31.31.45-87
[49].
5.8.3.5 В зависимости от схемы опирания и типа подъемных механизмов принципиальные конструктивные решения подъемно-переходного моста и его элементов принимают в процессе конкретного проектирования.
5.8.4 Железнодорожные устройства
5.8.4.1 Железнодорожные устройства паромных переправ состоят из предпаромной сортировочной станции, выставочного парка и подходов к подъемно-переходному мосту.
Предпаромная сортировочная станция, как правило, строится только для обслуживания паромной переправы и на ней производят подборку плетей вагонов на паром.
Количество путей на предпаромной сортировочной станции определяют по методическим указаниям и нормам Федеральных органов исполнительной власти в области железнодорожного транспорта.
5.8.4.2 В выставочном парке производят пограничный и таможенный досмотр вагонов перед подачей подготовленных плетей на паром и после выкатки плетей с парома.
Число путей в выставочном парке Nвп определяют по формуле
Nвп = Nнад + Nвык + Nход, (5.35)
где Nнад - число путей для выставки плетей вагонов, надвигаемых на паром, принимаемое равным числу путей на пароме, а при соединении нескольких плетей в одну - числу надвигаемых соединенных плетей;
Nвык - число путей для выкатки вагонов с парома, принимаемое равным числу путей на пароме, либо числу соединенных плетей, если их соединение предусмотрено технологией работы;
Nход - число ходовых путей для маневровых локомотивов, принимаемое равным количеству маневровых локомотивов, осуществляющих одновременно надвиг и уборку вагонов с/на паром, но не более 2-х.
5.8.4.3 Длину путей в выставочном парке принимают по длине наибольшей выставляемой плети (одиночной или соединенной) с учетом длины локомотива и вагонов прикрытия.
5.8.5 Обслуживание паромов
5.8.5.1 На паромном причале необходимо предусмотреть прокладку водопровода, установку колонок для подключения электрического кабеля и кабеля связи в соответствии с требованиями
4.7.
5.8.5.2 Бункеровку топливом, как правило, следует производить плавбункеровщиком производительностью до 300 т/ч.
5.8.5.3 Паром оборудуется средствами биологической очистки фекальных вод и сжигания твердых остатков. На терминале морских паромных переправ должна быть предусмотрена фекальная канализация на случай аварийных ситуаций.
Для сбора льяльных вод паромный терминал, как правило, должен иметь специальный плавсборщик.
5.8.5.4 Техническое обслуживание и текущий ремонт, как правило, следует выполнять на специализированных базах технического обслуживания. Проектирование технологической части специализированной базы технического обслуживания паромов следует выполнять в соответствии с требованиями
6.6.
5.8.6 Требования безопасности
| | ИС МЕГАНОРМ: примечание. В официальном тексте документа, видимо, допущена опечатка: имеется в виду пункт [49], а не в пункт [5]. | |
5.8.6.1 При технологическом проектировании терминала должны быть соблюдены требования взрывопожарной и пожарной безопасности, промышленной и экологической безопасности, техники безопасности труда и производственной санитарии, приведенные в
4.10 и
5.1, а также требования безопасности труда в соответствии с РД 31.31.45-87
[5].
5.8.6.2 При проектировании терминала следует соблюдать общие требования к воздуху рабочей зоны и к размерам санитарно-защитной зоны, т.е. к разрывам между терминалом и населенным пунктом, а также к разрывам между терминалом и другими терминалами различного назначения согласно
5.1.
5.8.6.3 Открытые площадки должны быть оборудованы пожарной сигнализацией с ручными пожарными извещателями, имеющей вывод тревожного сигнала в диспетчерскую терминала.
6 Специальные требования к объектам комплексного обслуживания флота
6.1.1 Объекты комплексного обслуживания флота (КОФ) предназначены для:
- обеспечения безопасного движения судов на подходе к порту, на акватории порта, безопасной стоянки у причалов порта при выполнении основных и вспомогательных работ;
- лоцманской проводки судов;
- ледовой проводки судов;
- буксирного сопровождения судов;
- надзора за соблюдением судами установленных правил и обычаев порта;
- надзора за соблюдением судами установленных в порту экологических требований;
- предупреждения разлива нефтепродуктов при бункеровке судов плавбункеровщиками;
- локализации и ликвидации аварийных разливов нефти и нефтепродуктов на акватории порта;
- пожаротушения на акватории порта;
- приема с судов и переработки сухого мусора, пищевых отходов, нефтесодержащих, хозяйственно-бытовых и фекальных стоков;
- текущего ремонта и технического обслуживания судов портового флота, подъемно-транспортного, энергетического и сантехнического оборудования порта, технологической оснастки и контейнеров;
- обеспечения качественной приемки (сдачи) груза;
- обеспечения судов топливом, пресной водой, продовольствием, различными материалами, запасными частями и всем необходимым для предстоящего рейса;
- перевозки экипажей судов, пассажиров, работников порта и других служебных перевозок на акватории порта;
- удовлетворения бытовых и культурных потребностей экипажей и членов их семей в период стоянки судов в порту.
6.1.2 В состав объектов КОФ входят:
- портовый флот;
- береговая база портового флота;
- бункеровочная нефтебаза;
- базы материально-технического и продовольственного снабжения флота;
- объекты технического обслуживания портофлота и технологического оборудования.
Конкретный состав объектов КОФ определяется заданием на проектирование.
6.1.3 Проектная мощность объектов КОФ должна соответствовать:
- структуре транспортного флота, обслуживаемого портом;
- проектному количеству судо-заходов в порт;
- интенсивности движения на акватории порта;
- параметрам основных элементов порта (длине причальной линии, размерам подходных каналов, основной номенклатуре грузов, переваливаемых в порту и хранящихся на складах порта, и др.);
- климатическим условиям в данном регионе;
- экологическим требованиям.
С учетом перспективного развития порта следует предусматривать наличие соответствующего обоснованного резерва производственной мощности или возможности расширения объектов КОФ.
6.1.4 При проектировании объектов КОФ следует предусматривать сети инженерно-технического обеспечения (электроснабжения, водоснабжения и водоотведения, теплоснабжения, связи и сигнализации), техническое обслуживание и технический ремонт судов портофлота, административно-бытовые помещения с гардеробными, душевыми, комнатами отдыха, комнатами гигиены женщин, санузлами, столовые.
6.1.6 На вспомогательных причалах, в складах и других объектах КОФ должен исключаться ручной труд за счет внедрения автоматизации и механизации производственных и технологических процессов. С этой целью необходимо предусматривать строительство подъездных путей, установку перегрузочных машин и механизмов.
6.2.1 Портовый флот включает следующие типы судов:
а) портовые буксиры-кантовщики;
б) портовые бункеровщики жидким топливом;
в) водоналивные суда (водолеи);
г) суда-сборщики льяльных вод и пищевых отходов;
д) нефтемусоросборщики;
е) лоцманские суда и катера;
ж) малотоннажные грузовые суда:
1) несамоходные,
2) самоходные;
з) буксиры морские;
и) пассажирские суда для пригородных сообщений;
к) разъездные катера;
л) пожарные суда;
м) аварийно-спасательные суда;
н) ледоколы для проводки судов на акватории порта и в припортовых водах.
6.2.2 Расчетное число судов данного типа N
эi, единиц в эксплуатации определяется по формуле

(6.1)
где Q
сi - объем работы (загрузки) судов данного i-го типа в месяц наибольшей загрузки в судо-ч, рассчитывается по
приложению Ю;
Fi - бюджет рабочего времени судов i-го типа за месяц в ч, учитывает потери времени на навигационный ремонт, прием топлива и грузов материально-технического снабжения, простои по метеорологическим причинам и принимается:
- для самоходных судов - 625 ч в месяц;
- для несамоходных судов - 660 ч в месяц;
K
бi - коэффициент использования бюджета рабочего времени. Коэффициент K
бi устанавливается по
таблице 6.1.
Таблица 6.1
Коэффициент использования бюджета рабочего времени
Суда портофлота | Значение Kбi |
Портовые буксиры-кантовщики | 0,65 |
Портовые бункеровщики жидким топливом | 0,65 |
Водоналивные суда (водолеи) | 0,65 |
Суда-сборщики льяльных вод и отходов | 0,65 |
Лоцманские суда и катера | 0,40 |
Разъездные катера | 0,40 |
Портовые ледоколы | 0,30 |
Пожарные суда | 0,65 |
Нефтемусоросборщики | 0,65 |
Примечание - При одном судне данного типа Kбi принимается с уменьшением на 0,1. |
6.2.3 Общая потребность в судах одного назначения определяется суммой частных потребностей, рассчитываемых раздельно по каждому типу (см.
6.2.2). Для портов с круглогодичной навигацией необходимо предусматривать дополнительное количество судов для замены выводимых из эксплуатации на ремонт.
Для замены судов, выводимых из эксплуатации на ремонт, принимаются суда: буксиры - по наиболее потребной в данном порту мощности, другие суда - по наибольшей производительности.
6.2.4 Количество и мощность буксиров-кантовщиков, находящихся в эксплуатации, определяется из расчета обслуживания наибольшего транспортного судна в судообороте порта.
Для замены буксира-кантовщика расчетной мощности буксирами меньшей мощности могут быть приняты два буксира, суммарная мощность которых должна быть на 10% больше мощности заменяемого буксира.
При замене требующегося по расчету буксира более мощным, общее число потребных буксиров не уменьшается.
6.2.5 Для очистки акватории портов в составе портового флота следует предусмотреть нефтемусоросборщики, а в портах, где производят операции с нефтеналивными грузами или бункеровку флота, должно предусматриваться не менее двух нефтемусоросборщиков.
6.2.6 Для приема с судов загрязненных нефтью вод, нефтеостатков, а также фекальных и льяльных вод в портах должны предусматриваться сборщики льяльных и фекальных вод.
6.2.7 В портах, где отсутствуют стационарные очистные сооружения, могут предусматриваться плавучие зачистные станции.
Целесообразность использования по местным условиям плавучих станций, по сравнению с береговыми очистными сооружениями, определяется с учетом наличия аналогичных средств на смежных предприятиях.
6.2.8 Приближенный способ расчета объема работ (загрузки) судов портового флота и указания по определению потребного числа судов отдельных типов приведены в
приложении Ю. При наличии задания застройщика (технического заказчика) на уточнение расчетов рекомендуется использовать имитационное моделирование работы отдельных типов судов портового флота.
6.3 Береговая база портового флота
Береговая база портового флота предназначена для обеспечения жизнедеятельности портового флота и включает следующие объекты:
- причалы для стоянки и бункеровки судов портового флота и проведения хозяйственных операций;
- сети инженерно-технического обеспечения;
- административно-бытовые здания и помещения для размещения и деятельности берегового персонала портофлота;
- транспортные и перегрузочные средства.
6.3.2.1 По назначению причалы портофлота подразделяются на:
- служебные, используемые для стоянки судов портового флота;
- бункеровочные, используемые для снабжения судов портового флота топливом и водой, налива плавбункеровщиков;
- хозяйственные, используемые для приема и переработки сухого мусора, хозяйственно-бытовых стоков, пищевых отходов, нефтесодержащих и фекальных стоков, доставляемых нефтемусоросборщиками с судов;
- универсальные, используемые для выполнения любых или всех перечисленных операций.
6.3.2.2 Длина служебных причалов портового флота определяется из условий стоянки лагом у причалов 50% расчетного количества судов.
Примечание - При выделении первой очереди работ, а также в периоды скопления в местах стоянок большого количества судов допускается учет стоянки судов кормой к причалу или лагом к ошвартованным судам.
Глубины у причалов определяются в соответствии с СП Морские каналы, фарватеры и зоны маневрирования. Нормы проектирования.
6.3.2.3 Служебные причалы должны быть оборудованы:
- швартовными и отбойными устройствами;
- стационарными трапами;
- спасательными постами со средствами для спасения утопающих.
6.3.2.4 Служебные причалы следует оборудовать устройствами для снабжения судов:
- электроэнергией от электропитательных пунктов, устанавливаемых по длине причала через 25 - 30 м;
- питьевой водой от пунктов подачи воды, оборудованных счетчиками и устанавливаемых не далее 50 м друг от друга; напор в сети водопровода должен быть не менее 20 м. Вода, подаваемая на причалы, должна отвечать требованиям
ГОСТ 2874.
Кроме того, на причалах, как правило, должны быть устройства для подключения судовых телефонов к городской телефонной сети.
6.3.2.5 На служебных причалах должны быть предусмотрены возможности:
- работы мобильного подъемного крана;
- свободного подъезда автотранспорта, пожарных и санитарных машин.
6.3.2.6 Количество причалов по приему хозяйственно-бытовых стоков и сухого мусора в порту определяют по отношению суточного объема хозяйственно-бытовых отходов и сухого мусора, подлежащих приему с судов, к суточной пропускной способности одного причала по приему стоков.
6.3.2.7 Объем хозяйственно-бытовых стоков и сухого мусора, подлежащих приему в течение суток, рассчитывают на основе определения суточного судооборота порта с выделением количества зачищаемых судов.
Примечание - Рекомендуемые методы расчета величин, указанных в
6.3.2.6 и
6.3.2.7, приведены в
Нормах технологического проектирования
[51].
6.3.2.8 Нормы накопления на морских судах хозяйственно-бытовых стоков на одного человека в сутки до разработки собственных норм могут быть приняты в соответствии с Директивным письмом Минречфлота РСФСР от 10.08.1988 N 111
[52] и составляют:
- для крупных пассажирских и туристских судов с индивидуальными душами и умывальниками - 230 л/сут;
- для крупных пассажирских и туристских судов с умывальниками в каютах и общими душевыми - 180 л/сут;
- для средних пассажирских судов с умывальниками в каютах - 150 л/сут, для крупного грузового (2000 т и более) и буксирного (свыше 600 л.с.) флота - 150 л/сут;
- для среднего грузового (менее 2000 т) и буксирного (301 - 600 л.с.) флота - 100 л/сут;
- для мелкого буксирного (300 л.с. и менее) флота - 1 гр. - 70 л/сут;
- для скоростных и маломерных пассажирских судов внутригородских линий - 3 л/сут;
- для технического флота - 100 л/сут.
6.3.2.9 При определении объемов хозяйственно-бытовых стоков и сухого мусора, подлежащих приему в порту, учитывают все суда пассажирского, грузового, обеспечивающего флота, а также средства плавучей механизации, с учетом коэффициентов неравномерности прибытия и отправления транспортных судов.
6.3.2.10 Причалы для стоянки и обслуживания морских спасателей, водолазных ботов и других судов, находящихся в ведении службы аварийно-спасательных и подводно-технических работ, проектируются при наличии соответствующего задания на проектирование.
6.3.3 Административно-бытовые здания и помещения для размещения и деятельности берегового персонала портофлота
6.3.3.1 Требования к административно-бытовым зданиям и сооружениям определяются заданием на разработку проектной документации.
6.3.3.2 При проектировании административно-бытовых зданий и вспомогательных помещений в дополнение к действующим нормам следует руководствоваться требованиями соответствующих нормативных документов, утвержденных Федеральными органами исполнительной власти.
6.3.3.3 При проектировании административных и служебно-производственных зданий следует предусматривать в них помещения для служб АСУ, устройств проводной связи, радиосвязи, электрорадионавигации и других специальных служб в соответствии с заданием на разработку проекта.
6.3.3.4 Вспомогательные здания и помещения следует объединять в более крупные здания (блоки) во всех случаях, когда это не противоречит технологическим, санитарно-гигиеническим и противопожарным нормам.
6.4.1 Бункерные базы предназначены для приема, хранения, подготовки (очистка, смешение) и отпуска судам жидкого топлива и смазочных материалов с температурой вспышки не ниже 60 °C (в дальнейшем именуемых "нефтепродукты"), а также для учета количества и контроля качества получаемых (отпускаемых) нефтепродуктов. Прием с судов загрязненных нефтью льяльных вод и балласта осуществляется только при наличии очистных сооружений. В соответствии с назначением бункерная нефтебаза состоит из следующих элементов:
- морской грузовой фронт;
- тыловые фронты загрузки (разгрузки) подвижного состава смежных видов транспорта;
- резервуарный парк;
- технологические трубопроводы с трубопроводной арматурой;
- коммерческие средства измерения количества груза;
- продуктовые насосные станции;
- пункт управления;
- лаборатория качества.
6.4.2 Нормы и требования распространяются только на проектирование морского грузового фронта (МГФ) и не распространяются на тыловые фронты загрузки (разгрузки) подвижного состава смежных видов транспорта, резервуарный парк, технологические трубопроводы с размещаемой на них трубопроводной арматурой, коммерческие средства измерения количества груза, продуктовые насосные станции, пункты управления, лаборатории береговой нефтебазы, проектирование которых осуществляется в соответствии с нормами технологического проектирования предприятий по обеспечению нефтепродуктами (нефтебаз).
6.4.3 В операционной зоне МГФ размещаются причалы либо выносные устройства для приема и отпуска бункерного топлива; технологическая площадка с технологическим оборудованием слива-налива, включая шлангующие и сливно-наливные устройства (стендеры); операторная; безопасные проходы для персонала; автомобильные подъезды и места для разворота пожарных машин; пожарное оборудование; склады для хранения боновых заграждений и средств ликвидации разливов нефтепродуктов.
6.4.4 При технологическом проектировании бункерной нефтебазы, располагаемой вне наливного терминала, следует учесть наличие двух основных схем бункеровки транспортных судов:
- МГФ - судно, стоящее у бункерного причала;
- МГФ - плавбункеровщик - судно, стоящее на рейде или у грузового причала.
Бункерные причалы представляют собой совокупность гидротехнических сооружений, перегрузочного оборудования, обустройства, транспортных и инженерных коммуникаций, необходимых для швартовки судов (при использовании 1-ой схемы), плавбункеровщиков, нефтеналивных барж, танкеров-снабженцев для проведения сливо-наливных операций.
6.4.5 На случай аварийных разливов нефтепродуктов бункерная нефтебаза должна располагать боновыми заграждениями, устанавливаемыми у бункерного причала при бункеровке судов и проведении сливо-наливных операций с судами-снабженцами, на рейде или у грузового причала при бункеровке судов в местах стоянки.
Кроме того, необходимо предусмотреть прием с судов загрязненных нефтью льяльных вод и балласта в очистные сооружения, прием отработанных масел, нефтеостатков и их утилизацию.
Для ликвидации аварийных разливов нефтепродуктов (ЛАРН) бункерная нефтебаза должна располагать средствами ЛАРН.
6.4.6 Шлангующие устройства должны давать возможность бункеровки судна одновременно двумя сортами топлива и маслами.
Количество видов топлива и масел, отпускаемых судам, уточняют при проектировании исходя из состава судооборота всего порта (в том числе сухогрузного и т.) и потребляемых ими видов топлива и масел.
6.4.7 При проектировании бункерных причалов следует руководствоваться нормами и требованиями, изложенными в
5.6.
6.4.8 На бункерных причалах должны быть установлены счетчики-расходомеры для определения количества нефтепродуктов, отгруженных на плавбункеровщики или бункеруемые суда.
6.4.9 Весь комплекс берегового оборудования бункерных причалов должен обеспечить производство операций налива плавбункеровщиков, слива загрязненных нефтью вод и нефтеостатков по рекомендуемым судо-часовым нормам не ниже приведенных в
приложении Ш.
6.5 Базы материально-технического и продовольственного снабжения флота
6.5.1 База материально-технического снабжения (МТС)
6.5.1.1 База МТС служит для приема и хранения материалов, инструмента, запасных частей и их бесперебойной доставки судам на основании заявок на палубное, машинное, электронное, камбузное и другое снабжение, а также для пакетирования продукции в случае поступления ее на склады в непакетированном виде.
6.5.1.2 Для выполнения своих функций база МТС должна располагать крытыми и открытыми складскими площадями, перегрузочной техникой, контейнерами, средствами доставки снабжения судам, квалифицированным персоналом.
6.5.1.3 Доставка снабжения судам осуществляется, как правило, в контейнерах по следующим технологическим вариантам:
1 - накопительная площадка (контейнер): погрузчик - причал - портальный кран (судовые грузовые средства) - судно.
2 - накопительная площадка (контейнер): погрузчик - автомашина - портальный кран (судовые грузовые средства) - судно.
3 - накопительная площадка (контейнер): погрузчик - автомашина - причал - портальный кран (судовая стрела) - судно-снабженец - судовые грузовые средства - судно.
6.5.1.4 При выборе варианта доставки критерием рациональной организации снабжения судов является отсутствие простоев судов в ожидании снабжения и взаимоувязка основных операций по обработке судна со снабженческими операциями.
6.5.1.5 Основными элементами базы МТС являются:
- фронт приема снабжения (ФПС);
- склады с железнодорожными и автомобильными подъездами к ним;
- участок временного хранения (УВХ);
- накопительная площадка (НП);
- фронт отгрузки снабжения (ФОС).
Характеристика функций основных элементов базы МТС приведена в РД 31.31.37.50-87
[44].
6.5.1.6 Склады базы МТС, помимо площадей для хранения материальных ресурсов, должны включать:
- участок (участки) комплектации материалов в контейнеры;
- участок (участки) хранения порожних контейнеров.
6.5.1.7 При проектировании складов базы МТС необходимо учитывать условия совместимости хранения грузов в зависимости от их взрывопожароопасных свойств и категорий склада по взрывной, взрывопожарной и пожарной опасности.
6.5.1.8 Параметры базы МТС определяют исходя из ее проектной годовой загрузки.
6.5.1.9 Основными расчетными параметрами баз являются:
- годовой объем материальных ресурсов, предназначенных для обеспечения судов и береговых предприятий;
- параметры фронта приема снабжения (ФПС) - железнодорожного и автомобильного;
- вместимость и площадь складов;
- вместимость и площадь накопительной площадки;
- общее количество контейнеров, необходимое для бесперебойного обслуживания потребителей;
- вместимость участка для хранения порожних контейнеров;
- количество технологических линий доставки снабжения от склада до накопительной площадки и далее потребителям;
- потребность в перегрузочном оборудовании различных типов.
Приближенный метод расчета параметров баз приведен в таблице 7 руководящего документа РД 31.31.37.50-87
[44].
6.5.1.10 При проектировании складов базы МТС необходимо предусматривать механизацию и автоматизацию складских работ с применением современной вычислительной техники.
Выбор технологических схем комплексной механизации и автоматизации при проектировании следует производить в соответствии с действующими отраслевыми стандартами на типовые технологические процессы, разработанными перспективными технологическими схемами.
6.5.1.11 Технологическое оборудование складов включает:
- подъемно-транспортное оборудование;
- грузозахватные приспособления к подъемно-транспортному оборудованию, в том числе полуавтоматические и автоматические;
- средства малой механизации;
- весоизмерительное оборудование;
- стеллажи;
- производственную тару и поддоны;
- пакетоформирующие и пакетообвязывающие машины;
- оборудование участков (цехов) производственных услуг.
6.5.1.12 Для осуществления механизации и автоматизации погрузочно-разгрузочных работ в закрытых отапливаемых складах следует применять подъемно-транспортное оборудование с электроприводом.
6.5.1.13 В закрытых складах следует применять: краны мостовые электрические, в том числе с автоматическими грузозахватными приспособлениями; краны-штабелеры мостовые опорные; краны-штабелеры стеллажные и трансманипуляторы, в том числе с системами автоматического управления (САУ); электропогрузчики и электроштабелеры, электротележки и электротягачи; средства непрерывного транспорта (в том числе с САУ), робокары, манипуляторы сбалансированные.
6.5.1.14 На открытых и полузакрытых складах следует применять:
- краны мостовые электрические с обогреваемыми кабинами;
- краны козловые на железнодорожном ходу;
- автопогрузчики;
- автопогрузчики портальные.
6.5.1.15 Подъемно-транспортное оборудование должно быть оборудовано грузозахватными устройствами, преимущественно автоматическими, полуавтоматическими.
6.5.1.16 Технические характеристики подъемно-транспортного оборудования, грузозахватных приспособлений, машин для формирования грузовых единиц и другого оборудования, необходимого для оснащения складов, следует принимать в соответствии с паспортными данными на оборудование, выпускаемое предприятиями машиностроения, а также в соответствии с каталогами и другими справочными материалами.
6.5.1.17 При проектировании складов следует предусматривать прием, хранение, отпуск продукции в пакетах и контейнерах.
6.5.1.18 Противопожарные разрывы между накопительной площадкой, участком временного хранения и другими административными, производственными, складскими зданиями, за исключением складов хранения нефтепродуктов и других легковоспламеняющихся жидкостей, следует принимать согласно
СП 18.13330 как для зданий I и II степени огнестойкости для негорючей продукции и III степени огнестойкости для горючей продукции (в металлических контейнерах).
6.5.1.19 Для наружного пожаротушения на накопительной площадке и участке временного хранения следует предусматривать устройство водопроводной сети и установку пожарных гидрантов в соответствии с требованиями
СП 31.13330.
6.5.1.20 Системы отопления и вентиляции складских и вспомогательных зданий и сооружений для обработки тарно-штучных и длинномерных грузов следует проектировать в соответствии с требованиями
СП 60.13330.2012 и с учетом
НТП-АПК 1.10.17.001.
6.5.1.21 В складских и вспомогательных зданиях и сооружениях должна быть предусмотрена противодымная защита в соответствии с требованиями
НПБ 240, Рекомендаций по противодымной защите
МДС 41-1.99 [53],
НПБ 65 и
СП 60.13330.
6.5.1.22 Вентиляция и кондиционирование воздуха в складских помещениях должны обеспечивать поддержание заданных параметров внутреннего воздуха в соответствии с
ГОСТ 12.1.005 и
ГН 2.2.5.1313.
Концентрация аэрозолей и вредных веществ в воздухе рабочей зоны не должны превышать гигиенические нормативы.
6.5.1.24 Проектирование электротехнической части следует выполнять в соответствии с требованиями действующих нормативных документов.
В складах, в зависимости от структуры предприятия, следует предусматривать административно-хозяйственную и оперативную телефонную связь:
- производственную автоматическую телефонную связь;
- диспетчерскую телефонную связь;
- автоматизированную радиотелефонную;
- прямую радиотелефонную;
- тревожную сигнализацию в соответствии с требованиями
НПБ 104.
6.5.1.25 Пожарную и охранную сигнализацию для складов следует выполнять в соответствии с требованиями
НПБ 110.
6.5.2 База продовольственного снабжения
6.5.2.1 База продовольственного снабжения флота предназначена для снабжения продовольствием экипажей судов и пассажиров при стоянке судов на рейде или у причалов.
| | ИС МЕГАНОРМ: примечание. В официальном тексте документа, видимо, допущена опечатка: "Санитарные правила для морских и речных портов" имеют номер 4962, а не СанПиН 4962. | |
6.5.2.2 Проектирование и эксплуатация продовольственных баз осуществляется в соответствии с
СанПиН 4962.
6.5.2.3 Продовольственные базы необходимо располагать на специально отведенной территории порта.
Примечания
1 В отдельных случаях с разрешения органов государственного санитарного надзора допускается эксплуатация мелких баз, не имеющих прилегающей территории, при условии специального помещения для хранения тары и хозяйственных материалов.
2 В малых портах допускается расположение мелких продовольственных баз в служебных или жилых зданиях. При этом необходимо предусматривать для них отдельный вход, не связанный с входом в жилые, общественные, служебные или производственные помещения и имеющий подъездные пути.
6.5.2.4 Не разрешается размещать продовольственные базы в непосредственной близости от причалов и складов, на которых перерабатываются пылящие, ядовитые, биологически опасные грузы, а также вблизи предприятий, связанных с обработкой или применением ядовитых веществ или материалов, опасных в отношении инфекции. Вновь строящиеся продовольственные базы (склады) должны иметь санитарно-защитные зоны в соответствии с
СП 2.2.1.1312.
6.5.2.5 Территория двора продовольственной базы должна быть замощена либо асфальтирована или иметь тротуары. Не асфальтированные и не замощенные части территории должны быть озеленены.
6.5.2.6 Базы продовольственного снабжения включают:
- распределительные базы;
- магазины для снабжения плавсостава и пассажиров;
- склады тары и подсобные предприятия.
6.5.2.7 Распределительные базы проектируют в соответствии с
СП 56.13330 и ведомственных норм технологического проектирования общетоварных складов.
По назначению они подразделяются на:
- продовольственные;
- промтоварные;
- хранилища овощей и фруктов.
6.5.2.8 Планировка и конструкция складских зданий должна обеспечивать возможность применения современных средств механизации погрузочно-разгрузочных и внутрискладских работ.
6.5.2.9 Вместимость склада распределительной базы определяется на основании расчетного годового товарооборота раздельно по продовольственным и промышленным товарам.
6.5.2.10 Продовольственные склады должны включать следующие помещения:
- складские (охлаждаемые, отапливаемые и неотапливаемые);
- вспомогательные производственные (экспедиция, заготовочная и фасовочная, лабораторная, моечная инвентаря и посуды);
- административные и бытовые (комнаты для приема пищи, обогрева рабочих, гардероб, умывальные, туалеты, душевые);
- механические (машинные отделения, электрощитовая, вентиляционная).
6.5.2.11 Вместимость складских помещений определяется отдельно для каждой товарной группы в зависимости от расчетного годового товарооборота соответствующей группы продовольственных товаров.
6.5.2.12 На продовольственной базе должны быть предусмотрены помещения для отдельного хранения следующих товарных групп:
а) рефрижераторные склады для отдельного хранения:
1) мяса, птицы и мясопродуктов;
2) рыбы и рыбопродуктов;
3) молочных продуктов, масла и жиров;
4) овощей и фруктов;
5) консервов;
б) камеры для хранения нескоропортящихся продуктов (хлеба, муки, круп, соли, сахара и других бакалейных товаров);
в) помещения для хранения соленых и квашеных овощей (капусты, огурцов, помидоров, грибов и т.п.);
г) складские помещения для хранения прохладительных напитков, соков, вин.
6.5.2.13 Для хранения тары, топлива, стройматериалов и т.д. продовольственные базы должны иметь специальные помещения или отведенные для этой цели на территории двора благоустроенные площадки.
6.5.2.14 Площадь складских помещений магазинов снабжения судов определяется на основании расчетной их вместимости по нормам, рекомендуемым РД 31.31.37.50-87
[44].
Площадь промтоварного склада следует принимать в размере 15 - 20 м2.
На складе напитков должно быть отапливаемое помещение площадью не менее 60% от его общей площади.
6.5.2.15 В составе холодильных камер следует предусмотреть одну дополнительную камеру для совместного хранения охлажденных продуктов с температурным режимом от 0 до 2,5 °C. Вместимость такой камеры принимается в размере 5% вместимости основных расчетных холодильных камер, но не менее 15 м2.
6.5.2.16 Склады для промышленных товаров должны включать следующие помещения:
- складские;
- экспедицию;
- административные и бытовые.
При блокировке в одном здании промышленного и продовольственного складов, складские помещения для промышленных товаров следует размещать отдельной группой с самостоятельной экспедицией.
6.5.2.17 Хранилища овощей и фруктов должны включать следующие помещения:
- собственно хранилище;
- экспедицию;
- комнату персонала и бытовые;
- технические (вентиляционная).
6.5.2.18 В составе магазина для снабжения плавсостава и пассажиров должны быть следующие группы помещений и объектов:
- складские помещения для хранения продуктов (охлаждаемые - для мяса и мясопродуктов, рыбы и рыбопродуктов, молочных продуктов и жиров, для консервов, овощей и фруктов; неохлаждаемые - склад сухой провизии, кладовые хлеба, кладовая представительских товаров, склад напитков);
- склад промтоваров;
- помещения для приема, накапливания, отпуска и расфасовки товаров;
- торгово-выставочный зал;
- административные и бытовые помещения;
- технические помещения (электрощитовая, машинное отделение, вентиляционная);
- навес для кратковременного хранения сезонных скоропортящихся овощей с водным обрызгиванием;
- помещение для тары;
- мусоросборная.
6.5.2.19 Вместимость складских помещений магазина определяется для каждой товарной группы.
Примечание - В портах отправления товаров в Арктику и в арктических портах предусматривается дополнительная вместимость складских помещений для накопления товаров.
6.5.2.20 Площадь открытого склада (навеса) для кратковременного хранения сезонных скоропортящихся овощей и фруктов принимается в размере 20% от площади складского помещения овощей и фруктов, но не менее 5 м2.
6.5.2.21 В состав вспомогательных производственных помещений магазина должны входить:
- экспедиция;
- расфасовочно-комплектовочные помещения;
- помещения для мойки и просушки овощей и фруктов;
- моечная тары и инвентаря;
- кладовые.
6.5.2.22 С обеих сторон здания магазина по его длине должны предусматриваться рампы шириной не менее 3,5 м с пандусами для въезда. Навесы над рампами должны закрывать рампы и кузова автомашин.
6.5.2.23 Экспедиция проектируется раздельно: для охлаждаемых и неохлаждаемых помещений, с наружными воротами с обеих сторон магазина для раздельного приема и отпуска товаров.
Размеры ворот экспедиций и дверей холодильных камер рекомендуется принимать согласно данным
таблицы 6.2.
Таблица 6.2
Размеры ворот экспедиций и дверей холодильных камер
Наименование | Ед. измерения | Ширина | Высота |
Ворота экспедиций | м | 2,2 | 2,6 |
Двери холодильных камер | м | 1,8 | 2,4 |
6.5.2.24 Полезная высота складских помещений принимается по
СП 56.13330,
СП 109.13330 и ведомственных норм технологического проектирования общетоварных складов.
6.5.2.25 При проектировании продовольственной базы следует предусматривать максимальную механизацию производства, в первую очередь, электроподъемники (лифты) для вертикального перемещения товаров, а также тележки (автокары) или другой транспорт для перемещения грузов внутри этажей, расфасовочные и упаковочные машины и т.д.
В многоэтажных зданиях магазинов предусматривается два грузовых лифта грузоподъемностью 1 т каждый: один для приемки товаров, второй - для отпуска. Лифты следует располагать с разных сторон здания.
6.5.2.26 На крупных продовольственных базах для хранения и передвижения мяса должны быть оборудованы подвесные пути, снабженные роликами и крючками, лужеными пищевым оловом или сделанными из нержавеющей стали.
6.5.2.27 В составе складов тары предусматриваются:
- склад-навес;
- мастерская по ремонту тары;
- комната персонала.
6.5.2.28 Площади тарных складов устанавливаются из расчета 50 м
2 на 100 т вместимости овоще- и фруктохранилищ. Площадь распределяется следующим образом:
- открытые склады-навесы - 85 - 90%;
- крытые склады - 15 - 10%.
Примечание - Соотношение крытой и закрытой территории складов тары может быть изменено в зависимости от климатических условий данного района.
6.5.2.29 Общая площадь группы штабелей ящичной тары под навесом или на открытой площадке должна быть не более 500 м
2. Противопожарные разрывы между группами штабелей и другими зданиями и сооружениями должны приниматься не менее 18 м.
6.5.2.30 Подсобные предприятия включают:
- засолочные (квасильные) цеха;
- цеха по изготовлению безалкогольных напитков.
Эти предприятия располагаются вблизи овоще- и фруктохранилищ.
Подобные предприятия проектируются по отдельным заданиям в соответствии с
СП 105.13330.
6.5.2.31 Состав и площади помещений объектов общественного питания устанавливаются по
СП 118.13330.
6.5.2.32 Жидкие отбросы должны спускаться в канализацию, а при ее отсутствии собираться в специальные помойные ямы с плотно зарывающимися крышками и водонепроницаемым дном и стенками.
6.5.2.33 Полы во всех помещениях должны быть без щелей и выбоин; рекомендуется облицовывать их метлахскими плитками светлых тонов (или материалами, замещающими их). Целесообразно предусмотреть устройство плинтусов и округлять межстенные углы.
6.5.2.34 Помещения продовольственной базы должны быть присоединены к водопроводу. Вода, идущая на продовольственную базу, должна отвечать требованиям
ГОСТ 2874.
6.5.2.35 Во всех производственных помещениях продовольственной базы должна быть предусмотрена вентиляция естественная, механическая или комбинированная, а также отопление водяное или воздушное.
6.5.2.36 Доставка на суда пищевых продуктов, сырья, как и готовой продукции, должна производиться на специально предназначенном для этих целей транспорте, как правило, крытом. В случае использования для перевозки пищевых продуктов открытого автотранспорта, кузов должен быть покрыт листовым алюминием или оцинкованной сталью, кроме того он должен обеспечиваться чистым брезентом или парусиной.
6.5.2.37 Бортовые и крытые машины, в том числе и охлажденные, предназначенные для перевозки пищевых товаров, должны иметь на борту маркировку "продуктовая". Скоропортящиеся пищевые продукты и полуфабрикаты должны перевозиться только в охлажденном транспорте.
6.5.2.38 Соответственно с
6.5.2.37 должны быть оборудованы и катера, предназначенные для доставки пищевых товаров на суда, стоящие на рейде порта. На борту таких судов должна быть маркировка "Продуктовый".
6.5.2.39 Для доставки полуфабрикатов на суда должна быть специальная тара (металлическая или деревянная) с плотно пригнанными крышками, которую запрещается использовать для других целей (хранения сырья, готовой продукции и т.д.).
6.5.2.40 Доставка на суда хлеба, булочных и кондитерских изделий (сдобы, пирожных и т.д.) должна производиться в специальных ящиках (с плотно пригнанными крышками); не допускается их деформация и загрязнение. Доставка указанных продуктов в мягкой таре (мешках) и навалом в автомашинах не разрешается.
6.5.2.41 Запрещается производить погрузку пищевых продуктов на судно одновременно с посадкой и высадкой пассажиров, а также одновременно с погрузкой угля, цемента и других пылящих грузов.
6.6 Техническое обслуживание и текущий ремонт портового флота и технологического оборудования
6.6.1.1 Техническое обслуживание портового флота и технологического оборудования порта включает:
- текущий ремонт и техническое обслуживание портового флота;
- плановый ремонт и техническое обслуживание подъемно-транспортного оборудования порта (за исключением капитального ремонта);
- ремонт технологического оборудования;
- ремонт энергетического и сантехнического оборудования порта;
- техническое обслуживание контейнеров.
6.6.1.2 Капитальный и текущий ремонты портового флота, требующие наличия судоподъемных сооружений, выполняются на судоремонтных заводах, располагающих такими сооружениями.
Капитальный ремонт ДВС и электромашин производится на специализированных предприятиях.
6.6.1.3 Для технического обслуживания и текущего ремонта портового флота и технологического оборудования создаются следующие объекты:
- ремонтно-механические мастерские;
- складское хозяйство;
- гаражи погрузчиков;
- здания и помещения для размещения персонала;
- сети инженерно-технического обеспечения.
6.6.1.4 В настоящем разделе установлены основные нормы технологического проектирования ремонтно-механических мастерских (РММ) и гаражей для погрузчиков в портах.
Настоящие технологические решения устанавливают нормы и требования к РММ в морских портах. При проектировании РММ кроме требований к технологическим решениям следует выполнять требования строительных норм, технических регламентов, органов государственного надзора и других нормативных документов.
6.6.2 Ремонтно-механические мастерские (РММ)
6.6.2.1 В состав производственных подразделений РММ входит блок производственных участков, перечень которых уточняется заданием на проектирование:
- механосборочный участок;
- корпусно-сварочный участок;
- трубопроводный участок;
- кузнечно-термический участок;
- деревообделочный участок;
- такелажный участок;
- инструментально-раздаточные кладовые;
- комплектовочные кладовые.
Кроме того в составе РММ должны быть предусмотрены:
- склад материально-технического обеспечения;
- склад горюче-смазочных материалов (ГСМ);
- склад красок тарного хранения;
- склад баллонов с техническими газами;
- гараж погрузчиков;
- открытые рабочие и складские площадки для хранения металла, труб, ремонта крупногабаритных узлов;
- стационарное или передвижное оборудование для воздухоснабжения.
Структурная схема и наименование производственных подразделений устанавливаются при конкретном проектировании, исходя из объема работ, мастерских и других условий.
6.6.2.2 Отделения и участки РММ должны, как правило, блокироваться в одном здании, за исключением производств, которые по требованиям пожаровзрывобезопасности и санитарных требований должны размещаться в отдельных помещениях. При незначительных объемах работ допускается размещать в одном блоке ремонтные мастерские и гараж погрузчиков. Размещение РММ следует выбирать в производственной зоне грузовых причалов при компоновке генплана морских портов.
6.6.3 Основные технологические параметры РММ
6.6.3.1 Основными технологическими параметрами РММ являются:
- производственная мощность;
- состав и количество технологического оборудования;
- расход основных материалов;
- численность и профессиональный состав персонала;
- размеры производственных помещений.
6.6.3.2 Для определения производственной мощности РММ следует рассчитать годовую загрузку мастерской по ремонту подъемно-транспортного оборудования исходя из годового количества ремонтов, трудоемкости единичных ремонтов и текущего обслуживания. Годовое количество ремонтов определяется как произведение количества машин данного типа на коэффициент цикличности.
Нормативы по текущему ремонту и техническому обслуживанию портового флота приведены в
приложении Я. Нормативы трудоемкости ремонта и технического обслуживания перегрузочных машин, коэффициентов цикличности, распределение трудоемкости по специальностям и продолжительности ремонта принимаются по
таблицам 1.1 -
1.4 приложения 1.
6.6.3.3 Трудоемкость и стоимость технического обслуживания, содержащиеся в нормативах, учитывают только долю этих работ, подлежащую выполнению при выводе машин из эксплуатации силами персонала грузового района по техническому обслуживанию и ремонту и, соответственно, не включают работы по ежесменному и другим видам технического обслуживания, выполняемые портовыми рабочими, управляющими машиной, без вывода ее из эксплуатации.
6.6.3.4 Нормативы продолжительности ремонта, необходимые для расчета ремонтных постов, приведены только для передвижных средств механизации (мобильных кранов, гусеничных, пневмоколесных и пр., авто- и электропогрузчиков и т.д.), которые могут доставляться для ремонта на территорию мастерских.
6.6.3.5 Для прикидочных расчетов на предпроектных стадиях в
приложении 2 приведены укрупненные показатели трудоемкости ремонта перегрузочной техники, а в
приложении 3 - укрупненные показатели технологических энергетических расходов РММ.
6.6.3.6 Загрузка мастерских по ремонту портового флота должна рассчитываться на основании руководящих документов, устанавливающих нормативы трудозатрат и стоимости ремонта судов.
6.6.3.7 Объем работ по ремонту и изготовлению технологической оснастки, ремонту инженерных сетей и прочим общепортовым нуждам рекомендуется принимать в размере 15 - 20% от загрузки РММ по ремонту подъемно-транспортного оборудования и портового флота и 5 - 8% от общей загрузки РММ, в зависимости от конкретных условий данного порта.
6.6.3.8 Долю прочих работ (заказы сторонних организаций и т.) надлежит принимать в размере 5 - 10% от общей загрузки мастерских.
6.6.3.9 При проектировании РММ следует предусматривать широкое кооперирование со специализированными предприятиями в части капитального ремонта ДВС, крупных электрических машин, поставок литья и поковок, пиломатериалов и т.
6.6.3.10 Расход основных материалов на программу мастерских определяется по укрупненным показателям
таблицы 1.5 приложения 1.
6.6.3.11 Количество основного технологического оборудования РММ определяется исходя из трудоемкости работ, годового фонда времени работы оборудования и коэффициента загрузки оборудования.
Нормативы расчетного годового фонда времени работы оборудования и коэффициентов загрузки приведены соответственно в
таблицах 1.6 и
1.7 приложения 1.
6.6.3.12 Определенное, исходя из трудоемкости станочных работ, количество металлорежущих станков учитывает только основные (производственные) станки станочных отделений механосборочных цехов (участков). Прочие металлорежущие станки электроремонтного, слесарного и других участков, а также станки для инструментальных, заготовительных цехов, ремонта собственного оборудования (вертикально- и настольно-сверлильные, обдирочно- и точильно-шлифовальные, ваточные, отрезные и прочие) следует назначать дополнительно при конкретном проектировании.
6.6.3.13 Рекомендуемое распределение основных металлорежущих станков станочного отделения по типам приведено в
таблице 1.8 приложения 1.
6.6.3.14 При малых значениях соответствующих величин трудоемкости работ состав основного технологического оборудования принимается согласно
приложению 4.
6.6.3.15 Количество производственных рабочих определяется по трудоемкости работ данной специальности и расчетному годовому фонду времени.
Количество вспомогательных рабочих, а также инженерно-технических работников, служащих и обслуживающего персонала определяется в процентах от количества производственных рабочих. Нормы годового фонда времени производственных рабочих и соотношение численности вспомогательных рабочих и обслуживающего персонала приведены в
таблицах 1.9 и
1.10 приложения 1.
6.6.3.16 Нормы удельной площади подразделений ремонтно-механических мастерских приведены в
таблице 1.11 приложения 1.
6.6.4 Складское хозяйство
6.6.4.1 В составе складского хозяйства РММ следует предусматривать крытые склады материалов, сменно-запасных частей, комплектующих изделий, заготовок и других материальных ресурсов, объединяемые, как правило, в одном общем помещении; открытые складские площадки и навесы для черных металлов, труб, пиломатериалов и т.д.
6.6.4.2 Помимо общего складского хозяйства, могут предусматриваться также цеховые (расходные) кладовые материалов, полуфабрикатов и т.д., а также инструментально-раздаточные кладовые (ИРК). При проектировании небольших РММ допускается не применять двухуровневую схему складов и кладовых, и решать складское хозяйство мастерских как единую систему общих складов, либо кладовых.
6.6.4.3 Суммарная площадь крытых складов общего складского хозяйства РММ (без цеховых кладовых) должна составлять не менее 15% от всей производственной площади. Площадь цеховых кладовых и ИРК должна составлять в сумме 7 - 12% всей площади цеха (большие значения относятся к механосборочным цехам). В случае единой системы складов либо кладовых РММ оба показателя суммируются.
6.6.4.4 Площадь открытых ремонтных площадок рассчитывается исходя из количества одновременно находящихся в ремонте перегрузочных машин. При этом площадь, потребная для ремонтной стоянки одной машины данного типа, определяется как произведение габаритных размеров машины в плане, увеличенных на 1,5 - 2 м.
6.6.4.5 Режим работы РММ следует принимать двухсменным, с коэффициентом до 1,5.
6.6.5 Пролеты, высоты участков РММ. Нормы расстояний между оборудованием, подъемно-транспортные средства
| | ИС МЕГАНОРМ: примечание. В официальном тексте документа, видимо, допущена опечатка: имеется в виду РД 31.31.15.01-88, а не РД 31.31.15-88. | |
6.6.5.1 Расстояния между отдельными станками, между оборудованием и элементами зданий, между верстаками, плитами, стендами, нормы цеховых проездов, а также нормы для технологического проектирования судоремонтных причалов принимаются по
РД 31.31.15-88 [54].
6.6.5.2 Размеры пролетов и грузоподъемность подъемно-транспортных средств определяются по
таблице 1.12 приложения 1.
| | ИС МЕГАНОРМ: примечание. В официальном тексте документа, видимо, допущена опечатка: имеются в виду рисунки 6.1 и 6.2, а не рисунки 1 и 2 соответственно. | |
6.6.5.3 Высота производственных помещений принимается по большему из двух значений H1 и H2, определяемых по
рисункам 1 и
2 и
таблице 1.13 приложения 1.
Рисунок 6.1 - Расчет высоты по наиболее высокому изделию,
ремонтируемому в цехе (на участке)
Рисунок 6.2 - Расчет высоты по наиболее высокому стационарно
установленному оборудованию цеха (участка)
6.6.6 Технологические требования к полам производственных помещений РММ приведены в
таблице 1.14 приложения 1, воздействие на пол применяемых жидкостей - в
таблице 1.15 приложения 1.
6.6.7 Рекомендации по размещению участков, отделений и служб РММ принимаются по
таблице 1.16 приложения 1.
6.6.8 Классификация рабочих специальностей по группам санитарной характеристики производственных процессов представлена в
таблице 1.17 приложения 1.
6.6.9 Категории производства по пожароопасности представлены в
таблице 1.18 приложения 1.
6.6.10 Классификация производственных помещений по взрыво- и пожароопасности (по
ПУЭ) представлена в
таблице 1.19 приложения 1.
6.6.11 Гаражи погрузчиков
6.6.11.1 Гаражи погрузчиков предназначаются для хранения, планово-предупредительного ремонта и технического обслуживания авто- и электропогрузчиков.
6.6.11.2 Во всех случаях, когда это представляется возможным, гаражи погрузчиков следует размещать в одном блоке с РММ.
6.6.11.3 В состав гаража погрузчиков входят:
- стоянки для авто- и электропогрузчиков;
- зоны ремонта и технического обслуживания погрузчиков;
- участки: ремонта агрегатов, двигателей, электрооборудования, топливной аппаратуры и слесарно-механический;
- участки: сварочный, жестяницкий, медницкий.
- шиномонтажный участок;
- окрасочный;
- мойка;
- зарядные станции аккумуляторов;
- складские помещения для хранения: запчастей, агрегатов, шин, смазочных материалов, лакокрасочных материалов, химикатов;
- вспомогательные помещения (санитарно-бытовые, служебные).
В каждом конкретном случае состав помещений гаража определяется в соответствии с парком обслуживаемых машин и уточняется заданием на проектирование.
6.6.11.4 При проектировании гаража погрузчиков необходимо осуществлять максимально возможное блокирование его подразделений.
Проектирование отдельно стоящих зданий допускается как исключение в следующих случаях:
- при реконструкции гаражей, когда расширение существующего здания по условиям площадки объекта невозможно;
- при строительстве гаража, когда посадка единого здания расчетных размеров вследствие конфигурации участка и его рельефа является невозможной.
6.6.11.5 В гаражах, где предусматривается более 10 постов обслуживания и ремонта или стоянка более 100 погрузчиков, допускается для мойки машин проектировать отдельное здание.
6.6.11.6 Основные параметры помещений, навесов и открытых площадок гаражей погрузчиков определяют в соответствии с их категорией. С этой целью все погрузчики в зависимости от их габаритных размеров разделяют на категории, приведенные в
таблице 6.3.
Категория | Параметры погрузчиков, м |
длина | ширина | высота |
I | до 4,7 | до 2,0 | до 3,1 |
II | более 4,7 до 6,0 | более 2,0 до 2,5 | более 3,1 до 3,4 |
III | более 6,0 до 8,0 | более 2,5 до 2,8 | более 3,4 до 4,0 |
IV | более 8,0 до 10,0 | более 2,8 до 3,5 | более 4,0 до 5,0 |
6.6.11.7 В портах, где средняя температура самого холодного месяца ниже нуля, стоянки электропогрузчиков должны быть расположены только в отапливаемых помещениях.
При средней отрицательной температуре самого холодного месяца выше -15 °C количество мест стоянок автопогрузчиков, подлежащих обязательному размещению в отапливаемых помещениях, определяют по
таблице 6.4.
Бассейн | Количество автопогрузчиков, размещаемых в отапливаемых помещениях, % от общего количества |
Северный и Дальневосточный (выше 50° с.ш.) | 60 - 80 |
Балтийский и Дальневосточный (Приморье и Южный Сахалин) | 50 - 60 |
Черноморский и Каспийский | 30 - 50 |
6.6.11.8 Расстояние между погрузчиками, а также между погрузчиками и элементами здания при их расстановке в помещении для отстоя принимают по
таблице 6.5.
Погрузчики и конструкции здания, между которыми устанавливается расстояние | Расстояние в зависимости от категории погрузчика, м |
I | II | III | IV |
Между боковыми сторонами погрузчиков, а также между стеной и погрузчиком, установленным параллельно стене | 0,5 | 0,6 | 0,6 | 0,8 |
Между боковой стороной погрузчика и колонной или пилястрой | 0,3 | 0,3 | 0,4 | 0,5 |
Между передней стороной погрузчика и стеной или воротами | 0,5 | 0,5 | 0,5 | 0,5 |
Между задней стороной погрузчика и стеной или воротами | 0,7 | 0,7 | 0,7 | 0,7 |
Между погрузчиками, стоящими один за другим | 0,4 | 0,5 | 0,6 | 0,6 |
6.6.11.9 Ширину проездов на стоянках определяют в соответствии с параметрами (длина, ширина) погрузчиков и их маневренными характеристиками.
6.6.11.10 Габариты приближения маневрирующего погрузчика следует принимать:
- до соседних к месту установки погрузчиков или до элементов здания - не менее 0,3 м;
- до погрузчиков или элементов здания, находящихся по другую сторону от проезда, - не менее 0,7 м.
6.6.11.11 Высота помещений или навесов для стоянки погрузчиков от пола до выступающих элементов покрытия или перекрытия должна быть принята по категориям погрузчиков: I - не менее 3,3 м; II - не менее 3,6 м; III - не менее 4,2 м; IV - не менее 5,2 м.
6.6.11.12 Помещения для стоянок погрузчиков должны быть оборудованы колесоотбойными устройствами от стен и колонн здания.
Помещения для стоянки погрузчиков не должны непосредственно сообщаться:
- с помещениями вулканизационных, сварочных, ацетилено-газопламенных, кузнечных, термических, медницких, столярных, обойных и малярных работ, ремонта и зарядки аккумуляторных батарей;
- со складскими помещениями для хранения масел и легковоспламеняющихся жидкостей и другими складскими помещениями.
6.6.11.13 Расстояния между погрузчиками, а также между погрузчиками и элементами здания или стационарным технологическим оборудованием в помещениях для технического обслуживания и ремонта погрузчиков принимают по
таблице 6.6.
Погрузчики и элементы здания, между которыми устанавливается расстояние | Расстояние в зависимости от категории погрузчика, м |
I | II, III | IV |
Погрузчики на постах технического обслуживания и ремонта и элементы здания: | | | |
- боковая сторона погрузчика и стена; | 1,5 | 1,8 | 2,5 |
- то же на постах ежесменного обслуживания и ТО-1; | 1,2 | 1,6 | 2,0 |
- торцевая сторона погрузчика и стена; | 1,2 | 1,5 | 2,0 |
- погрузчик и колонна (пилястра); | 0,7 | 1,0 | 1,0 |
- погрузчик и наружные ворота, расположенные напротив поста. | 1,5 | 1,5 | 1,5 |
Погрузчики на постах технического обслуживания и ремонта: | | | |
- боковые стороны погрузчиков; | 2,2 | 2,5 | 4,0 |
- то же на постах ежемесячного обслуживания и ТО-1; | 1,6 | 2,0 | 2,5 |
- торцевые стороны погрузчиков. | 1,2 | 1,5 | 2,0 |
6.6.11.14 В гараже вместимостью до 200 погрузчиков допускается размещать в одном помещении с постами ремонта и технического обслуживания участки: слесарно-механические, электроремонтные, по ремонту двигателей, агрегатов, топливной аппаратуры.
6.6.11.15 В помещениях сварочно-жестяницких или столярных участков допускается размещать посты для выполнения соответствующих работ непосредственно на погрузчике.
6.6.11.16 Рекомендуемые величины отношений площадей помещений к суммарной площади установленного в них оборудования приведены в
таблице 6.7.
Помещения | Отношение площадей |
Помещение участков (работ) слесарно-механических, электроремонтных, ремонта топливной аппаратуры, ремонта и зарядки аккумуляторных батарей, медницких | 4,5 |
Помещения участков ремонта агрегатов, двигателей, шиноремонтных, шиномонтажных и окрасочных участков | 5,0 |
Помещения участков (работ) сварочных, термических, кузнечных, жестяницких, столярных и обойных | 5,5 |
Склады (кладовые) запчастей, агрегатов, инструмента, резины, смазочных и обтирочных материалов | 3,0 |
6.6.11.17 Рекомендуемые размеры пролетов, высота зданий и грузоподъемность подъемно-транспортных средств для гаражей в зависимости от категории обслуживаемых ими погрузчиков приведены в
таблице 6.8.
Категория погрузчиков | Максимальная масса узлов и деталей ремонтируемых погрузчиков, т | Ширина пролета, м | | Высота, м | Подъемно-транспортные средства |
Шаг колонн, м | до низа строительных конструкций | от пола до пола | грузоподъемность, т | конструкция |
Одноэтажные здания |
I | До 2 | 12 | 6; 12 | 6 | - | 2 | |
II | До 3,2 | 12; 18 | 6; 12 | 6; 7,2 | | 3,2 | однобалочные |
III, IV | До 5 | 18 | 6; 12 | 7,2 | | 5 | краны мостовые, подвесные краны |
Многоэтажные здания |
I | До 2 | 6; 9 | 6 | | 4,8 | 2 | тали с электроприводом |
верхний этаж 9; 12 | 6,0 |
(справочное)
ТЕРМИНЫ, ОПРЕДЕЛЕНИЯ И СОКРАЩЕНИЯ
В настоящем Своде правил применены следующие термины с соответствующими определениями.
А.1 выставочный парк: Комплекс железнодорожных путей для подготовки и формирования плетей железнодорожных вагонов перед накаткой на паром, приема и сбора выгруженных вагонов и комплектования составов к отправке в железнодорожную сеть страны.
А.2 интенсивность погрузочно-разгрузочных работ: Количество груза, погружаемое либо выгружаемое с судна за сутки.
А.3 морской порт: Совокупность объектов инфраструктуры, расположенных на специально отведенных территории и акватории и предназначенных для обслуживания судов, используемых в целях торгового мореплавания, обслуживания пассажиров, осуществления операций с грузами, в том числе для их перевалки, и других услуг, обычно оказываемых в морском порту, а также взаимодействия с другими видами транспорта.
А.4 паром: Морское судно, предназначенное для перевозки наземных транспортных средств, пассажиров, а также укрупненных грузовых мест, перегружаемых способом наката на грузовую палубу судна.
А.5 плеть: Группа железнодорожных вагонов для одновременной накатки на грузовую палубу парома.
А.6 порт, расположенный на участке реки с морским режимом судоходства [морской порт, расположенный на участке реки]: Совокупность объектов транспортной инфраструктуры, расположенных на специально отведенных территории, акватории реки и предназначенных для обслуживания морских судов, судов смешанного река-море плавания, судов внутреннего водного плавания, пассажиров, осуществления операций с грузами, в том числе для их перевалки, и других услуг, обычно оказываемых в морском порту, а также взаимодействия с другими видами транспорта.
А.7 причал: Портовое гидротехническое сооружение, предназначенное для стоянки и обслуживания судов, обслуживания пассажиров, в том числе посадки их на суда и высадки их с судов, осуществления операций с грузами.
А.8 проектная глубина у причала: Принятая на перспективу глубина от отсчетного уровня.
А.9 проектная длина причала: Расстояние между границами причала, измеряемое по линии кордона и определяемое как сумма унифицированной длины расчетного судна и запаса свободной длины причала, необходимого для безопасной швартовки, стоянки и отшвартовки судна.
А.10 подъемно-переходной мост: Устройство мостового типа, обеспечивающее сопряжение грузовой палубы парома с причалом при изменении ее положения в процессе накатки-выкатки грузовых мест.
А.11 расчетное судно: Судно, на основании характеристик которого определяются технологические параметры портовых гидротехнических сооружений.
А.12 операционная акватория причала: Часть акватории порта, предназначенная для постановки судов к причалам и выполнения маневров, связанных со швартовкой и перестановкой судов, а также для постановки различных плавсредств у борта транспортных судов.
А.13 технологическая линия: Цепочка взаимодействующих специализированных машин и докеров-механизаторов, осуществляющих погрузочно-разгрузочные работы (ПРР) по определенной технологической схеме.
А.14 проектная мощность: технологический параметр терминала, величина которого принимается равной пропускной способности морского грузового фронта терминала.
А.15 прямая аппарель: Судовое устройство в корме судна, которое при переводе из вертикального положения в условно горизонтальное, образует ворота и мост для загрузки всех палуб судна накатными грузами.
А.16 угловая аппарель: Судовое устройство в борту судна, которое при переводе из вертикального положения в горизонтальное образует в плане с причалом угол в 45 градусов и является воротами и мостом для загрузки всех палуб судна накатными грузами.
А.17 льяльные воды: Образующиеся в процессе эксплуатации нефтеналивных танков и топливных танков судов осадочные отложения.
А.18 груз санитарно-опасный: Вещество, продукт либо материал, способные оказывать то или иное вредное воздействие на организм человека, вызывать отравления, заболевания, ожоги и травмы при контакте с ними в условиях транспортного процесса в обычных (штатных) условиях и аварийной ситуации (взрыв, пожар, взаимодействие с водой, кислотами и др., а также при утечке, россыпи и разливе грузов).
А.19 перевалка грузов: Комплексный вид работ по перегрузке грузов с одного вида транспорта на другой вид транспорта при перевозках в прямом международном сообщении и непрямом международном сообщении, прямом и непрямом смешанном сообщении, в том числе перемещение грузов в границах морского порта и их технологическое накопление, или по перегрузке грузов без их технологического накопления с одного вида транспорта на другой вид транспорта.
А.20 морской терминал: Совокупность объектов инфраструктуры морского порта, технологически связанных между собой и предназначенных и (или) используемых для осуществления операций с грузами, в том числе для их перевалки, обслуживания судов, иных транспортных средств и (или) обслуживания пассажиров.
А.21 перспективная глубина: Наибольшая глубина, которая необходима для приема перспективного судна с максимальной осадкой и которую возможно получить без усиления конструкции причала.
А.22 акватория морского порта: Водное пространство в границах морского порта.
А.23 территория морского порта: Земельный участок или земельные участки, не покрытые поверхностными водами, в границах морского порта, в том числе искусственно созданный земельный участок, или искусственно созданные земельные участки.
А.24 искусственно созданный земельный участок: Сооружение, создаваемое в акватории морского порта путем намыва или отсыпки грунта либо использования иных технологий и признаваемое после ввода его в эксплуатацию земельным участком.
А.25 объекты инфраструктуры морского порта: Портовые гидротехнические сооружения, внутренние рейды, якорные стоянки, доки, средства навигационного оборудования и другие объекты навигационно-гидрографического обеспечения морских путей, системы управления движением судов, информационные системы, перегрузочное оборудование, железнодорожные и автомобильные подъездные пути, линии связи, устройства тепло-, газо-, водо- и электроснабжения, иные устройства, оборудование, инженерные коммуникации, склады, иные здания, строения, сооружения, расположенные на территории и (или) акватории морского порта и предназначенные для обеспечения безопасности мореплавания, оказания услуг в морском порту, обеспечения в морском порту государственного контроля (надзора).
А.26 степень огнестойкости зданий и сооружений: Классификационная характеристика зданий и сооружений, определяемая пределами огнестойкости конструкций, применяемых для строительства указанных зданий и сооружений.
А.27 класс функциональной пожарной опасности зданий и сооружений: Классификационная характеристика зданий и сооружений, определяемая назначением и особенностями эксплуатации указанных зданий и сооружений, в том числе особенностями осуществления в указанных зданиях и сооружениях технологических процессов производства.
А.28 класс конструктивной пожарной опасности зданий и сооружений: Классификационная характеристика зданий и сооружений, определяемая степенью участия строительных конструкций в развитии пожара и образовании опасных факторов пожара.
А.29 зоны с особыми условиями использования территорий: Охранные; санитарно-защитные зоны; зоны охраны объектов природно-культурного наследия (памятников истории и культуры); объекты культурного наследия народов Российской Федерации; водоохранные зоны; зоны охраны источников питьевого водоснабжения; зоны охраняемых объектов; иные зоны, устанавливаемые в соответствии с законодательством Российской Федерации и инструкций.
А.30 сеть инженерно-технического обеспечения: Совокупность трубопроводов, коммуникаций и других сооружений, предназначенных для инженерно-технического обеспечения зданий и сооружений.
А.31 технологическое проектирование: Деятельность по созданию комплекта проектной документации, предназначенной для описания создаваемого объекта как технологической системы, включая решения по его эксплуатации, ремонту и ликвидации.
В настоящем Своде правил использованы следующие сокращения:
Автоматизированная система управления; АСУ
Автомобильный грузовой фронт; АГФ
Административно-управленческий персонал; АУП
Нижняя палуба; Н
Верхняя палуба; В
Выносное причальное устройство; ВПУ
Двадцатифутовый эквивалент; ДФЭ
Дистанционное автоматизированное управление; ДАУ
Железнодорожные устройства; Ж.д. устройства
Железнодорожный грузовой фронт; ЖГФ
Комплексное обслуживание флота; КОФ
Морской грузовой фронт; МГФ
Нижняя главная палуба; Н. Г
Неконтейнеризированный груз; НКГ
Неукрупненные грузы открытого хранения; НОГ
Противоаварийная защита; ПАЗ
Предельно допустимый выброс (в атмосферу); ПДВ
Правила устройства электроустановок; ПУЭ
Ремонтно-механические мастерские; РММ
Сильнодействующие ядовитые вещества; СДЯВ
Система автоматической противопожарной защиты; САПЗ
Суда на воздушной подушке; СВ
Станция очистки балластных вод; СОБВ
Суда на подводных крыльях; СПК
Укрупненная грузовая единица; УГЕ
(рекомендуемое)
ВАРИАНТЫ КОНФИГУРАЦИИ ПРИЧАЛЬНОЙ ЛИНИИ ТЕРМИНАЛА
Таблица Б.1
Варианты конфигурации причальной линии терминала
Рекомендуемая конфигурация причальной линии грузовых и пассажирских терминалов (районов) |
Конфигурация причальной линии | Рекомендуемое технологическое назначение терминалов | Оптимальные условия осуществления | Неблагоприятные условия осуществления |
| | ИС МЕГАНОРМ: примечание. Текст в пункте 3 графы "Оптимальные условия осуществления" дан в соответствии с официальным текстом документа. | |
|
Фронтальная | 1 Терминалы с крановыми схемами механизации для генеральных и навалочных грузов крытого и открытого хранения и лесных грузов. 2 Специализированные терминалы для контейнеров, трейлеров, колесной техники и т. грузов. 3 Терминалы для лесных грузов при специализированных схемах механизации (с использованием мостовых перегружателей и др.) 4 Пассажирские терминалы. | 1 Расположение терминалов (района) в естественно защищенной бухте или заливе достаточно больших размеров либо на берегу судоходной реки. 2 Пологий рельеф в районе сравнительно широких долин. 3 Наличие скальных или других твердых (с пределом прочности свыше 5 кг/см2) в зоне строительства причалов при их выходе не выше глубины заложения причалов). 4 Наличие течений и движения наносов вдоль берега. 5 Льдообразование, особенно в условиях северных рек. 6 Достаточная ширина территории. | 1 Необходимость создания искусственных оградительных сооружений. 2 Гористый или холмистый рельеф местности с крутым надводным береговым уступом. |
| | ИС МЕГАНОРМ: примечание. Текст в пункте 3 графы "Неблагоприятные условия осуществления" дан в соответствии с официальным текстом документа. | |
|
Пирсовая | 1 Терминалы с крановыми схемами механизации для генеральных и навалочных грузов крытого и открытого хранения и лесных грузов. 2 Специализированные терминалы для навалочных грузов, основанных на использовании конвейерных установок, пневмо- и гидротранспорта. 3 Терминалы для грузов, опасных в пожарном и санитарном отношении (см. Примечания 1). 4 Терминалы для слива и налива сырой нефти, нефтепродуктов, жидких химических грузов, сжиженных газов. 5 Железнодорожно-морские и автомобильно-морские паромные терминалы 6 Пассажирские комплексы. | 1 Расположение терминала (района) на открытом морском побережье с искусственно огражденной акваторией, в естественно защищенной бухте или заливе. 2 Наличие в зоне строительства пирса грунтов достаточной несущей способности 3 Ограниченная площадь территории терминала (района). 4 Ограниченная длина береговой полосы. | 1 Недостаточные для маневрирования судов размеры акватории. 2 Круто падающий в сторону акватории рельеф дна, когда естественные глубины в зоне строительства пирса превышают расчетную глубину у причалов. 3 Наличие в основании пирса илистых донных отложений мощностью 10 м и более. 4 Наличие вдоль береговых течений и движения наносов. 5 Льдообразование в условиях северных рек. 6 Явление "тягуна". |
Ковшевая | 1 Терминалы с крановыми схемами механизации для генеральных и навалочных грузов крытого и открытого хранения и лесных грузов. 2 Терминалы для грузов, опасных в пожарном и санитарном отношении (см. Примечания 1). 3 Железнодорожно-морские и автомобильно-морские паромные терминалы. 4 Терминалы для приема и обработки судов - лихтеровозов (лихтеров) с различными грузами. 5 Пассажирские терминалы. | 1 Круто падающий в сторону акватории рельеф дна. 2 Наличие в зоне строительства ковша мощных илистых донных отложений, усложняющих строительство фронтальных и пирсовых причалов, и мягких грунтов. 3 Необходимость строительства оградительных сооружений для защиты акватории порта от волнения и наносов. 4 Ограниченная длина береговой полосы, отведенной для портового строительства. 5 Достаточная ширина территории. 6 Ограниченные размеры акватории. | 1 Гористый или холмистый рельеф местности либо долинный рельеф сравнительно нешироких долин, огражденных вдоль берега горами или холмами. 2 Наличие в зоне строительства ковша скальных или других твердых грунтов с пределом прочности (5 кг/см2 и более). 3 Ограниченная площадь территории, отведенной для строительства района (участка). |
Примечания 1 Для терминалов, специализированных на перевалке навалочных (особенно пылящих грузов) при универсальных крановых схемах механизации, а также для перевалки грузов, опасных в пожарном и санитарном отношении, когда потребность в причалах не превышает 3 - 4 ед., рекомендуется ковшовое начертание при условии, что причалы могут быть размещены с одной стороны ковша. При большем числе причалов в аналогичных случаях рекомендуется принимать фронтальную или пирсовую конфигурацию причалов. 2 Смешанный вид конфигурации разрабатывается в соответствии с приведенными в таблице рекомендациями для фронтальных, пирсовых и ковшовых причалов. 3 При конкретном проектировании рекомендуется рассматривать возможность и целесообразность строительства непосредственно у оградительных сооружений причалов для наиболее опасных и вредных грузов. 4 При выборе варианта конфигурации причальной линии (кроме факторов, приведенных в данной таблице) следует учитывать удобство подачи вагонов на морской грузовой фронт и возможные потери полезной площади в операционной зоне в зависимости от расположения ж.д. путей. 5 Пирсовая конфигурация причальной линии предусматривает создание широких пирсов для терминалов с универсальными крановыми схемами механизации, а также специализированных терминалов при размещении склада на пирсе; для специализированных терминалов при размещении складов вне пирса предусматривается создание узких пирсов. |
(рекомендуемое)
ОБЩАЯ ШИРИНА ПОЛОСЫ ДЛЯ БЕЗРЕЛЬСОВОГО ТРАНСПОРТА
Таблица В.1
Общая ширина полосы для безрельсового транспорта в метрах
Назначение | А. Полоса для движения и стоянки автомашин | Б. Полоса для движения погрузчиков или тягачей с прицепами | А + Б, м |
Расположение | Ширина В, м | Расположение | Ширина В, м |
1 | 2 | 3 | 4 | 5 | 6 |
Интенсивная обработка судов с участием автотранспорта при установке автомашин вдоль линии кордона | За прикордонными крановыми и железнодорожными путями или за первой линией открытых складов | 7,7 | Рядом с полосой А | 4,0 | 11,7 |
Интенсивная обработка судов с участием автотранспорта при установке автомашин перпендикулярно к линии кордона | То же | 16,0 | Совмещается с полосой А | - | 16,0 |
Обработка судов с участием автотранспорта в незначительном объеме | То же | 6,0 | Рядом с полосой А | 4,0 | 10,0 |
(рекомендуемое)
ПРИЧАЛЫ ГРУЗОВЫЕ. ПРОПУСКНАЯ СПОСОБНОСТЬ
Г.1 Определение потребности в причалах и их пропускной способности
Г.1.1 Количество взаимозаменяемых причалов Nпр определяют для расчетного грузооборота в месяц наибольшей работы по формуле

(Г.1)
где Qмес - расчетный грузооборот причалов в месяц наибольшей работы, т/мес или контейнер/мес для контейнерного терминала;
M
сут.м - валовая интенсивность грузовых работ при обработке расчетных типов судов, т/сут. Валовая интенсивность грузовых работ для контейнеровозов определяется по
формуле 5.1;
Kмет - коэффициент использования бюджета рабочего времени причала, учитывающий простои причала по метеорологическим факторам в месяц наибольшей работы;
Kзан - коэффициент занятости причалов обработкой судов.
Примечание - Для предварительных расчетов потребности в грузовых причалах коэффициент занятости причалов обработкой судов рекомендуется принимать равным для терминалов:
- универсального назначения 0,6 - 0,7;
- специализированных для навалочных и насыпных грузов 0,5 - 0,6;
- специализированных для наливных грузов 0,45 - 0,55;
- специализированных для контейнеров и накатных грузов 0,4 - 0,5.
Для уточненных расчетов рекомендуется использовать имитационное моделирование.
Г.1.2 Расчетный грузооборот причалов в месяц наибольшей работы определяется исходя из заданного годового грузооборота, неравномерности грузопотока и продолжительности навигации по формуле:
Q
мес = Q
год x K
мес/N
м, (Г.2)
где Qгод - заданный годовой грузооборот, т/год или контейнер/год;
Kмес - коэффициент месячной неравномерности грузопотока;
Nм - продолжительность навигации в месяцах.
Г.1.3 Валовую интенсивность грузовых работ на морском грузовом фронте Mсут.м определяют исходя из продолжительности грузовых работ и вспомогательных производственных операций при обработке расчетных судов как средневзвешенную величину по формуле

(Г.3)
где m - количество типов расчетных судов;
Aj - доля расчетных судов типа j в общем объеме расчетного грузооборота,
tгр.j - время занятости причала выполнением грузовых работ при обработке судна типа j, ч;
tп.с.j - среднее время занятости причала под вспомогательными производственными операциями судна типа j, ч;
Dj - расчетная загрузка судна типа j, т или контейнер.
Г.1.4 Расчетная загрузка судна определяется в зависимости от типа судов, рода груза и схемы загрузки судна по
формуле (Г.4) - для универсальных судов, углерудовозов, танкеров и судов-газовозов и
(Г.5) - для контейнеровозов и ролкеров
D
j = 2 x Dч
j x K
исп, (Г.5)
где Dчj - чистая грузоподъемность судна, т или контейнеры;
Kисп - коэффициент использования грузоподъемности:
- для универсальных судов, углерудовозов, танкеров - рассчитывается исходя из соотношения удельной вместимости грузовых помещений и погрузочного объема (или удельной плотности) груза;
- для судов-газовозов СПГ - 0,98;
- для контейнеровозов - 0,8 - 0,9;
- для ролкеров Kисп находится в пределах от 0,4 до 0,5 при вместимости судна от 12000 м3 до 60000 м3 и более и определяется для промежуточных значений вместимости посредством линейной интерполяции.
Г.1.5 Численные значения коэффициента использования бюджета рабочего времени причала K
мет, учитывающего простои причала по метеорологическим факторам, принимают для каждого порта в соответствии с
разделом Г.2.
В случае отсутствия в таблицах этого раздела численных значений Kмет для проектируемого порта их следует определять по формуле

(Г.6)
где tмет - продолжительность действия метеорологических факторов в течение месяца наибольшей работы, при которых нельзя производить погрузочно-разгрузочные операции, связанные с обработкой судов у причала, ч.
Г.1.6 Годовую пропускную способность причала Pгод в тоннах в год рассчитывают по формуле

(Г.7)
Г.1.7 Среднее время занятости грузового причала вспомогательными производственными операциями, не совмещаемыми с грузовыми работами, для расчетного сухогрузного судна принимают:
- для рейсов в загранплавании и большом каботаже - по
таблице Г.1;
Г.1.8 Продолжительность ожидания начала грузовых работ для сухогрузных судов, работающих не по расписанию, принимается в пределах до 4 ч на судо-заход и прибавляется ко времени, определенному в
таблицах Г.1 и
Г.2.
Таблица Г.1
Время вспомогательных производственных операций для судов,
выполняющих рейсы в загранплавании и большом каботаже, час.
Типы судов | Дедвейт судна, т | Весенне-летний период | Осенне-зимний период |
погрузка | выгрузка | погрузка | выгрузка |
Универсальные суда, перевозящие генеральные грузы | До 1500 | 5,0 | 3,5 | 6,5 | 6,0 |
1501 - 3000 | 5,5 | 4,0 | 7,0 | 6,0 |
3001 - 5000 | 7,0 | 5,0 | 7,5 | 6,5 |
5001 - 8000 | 8,0 | 5,5 | 9,0 | 7,5 |
8001 - 12000 | 8,5 | 6,0 | 9,5 | 8,0 |
12001 - 16000 | 9,5 | 6,5 | 10,0 | 8,5 |
Более 16000 | 10,5 | 7,5 | 11,0 | 9,5 |
Специализированные суда для перевозки накатных грузов с горизонтальной и вертикальной погрузкой | До 1500 | 4,0 | 1,5 | 4,5 | 2,5 |
1501 - 3000 | 4,0 | 1,5 | 4,5 | 2,5 |
3001 - 5000 | 4,5 | 1,5 | 4,5 | 2,5 |
5001 - 8000 | 5,0 | 2,0 | 5,0 | 3,0 |
8001 - 12000 | 5,0 | 2,0 | 5,5 | 3,5 |
Специализированные суда для перевозки накатных грузов с горизонтальной и вертикальной погрузкой | 12001 - 16000 | 6,0 | 2,5 | 6,0 | 4,0 |
16001 - 40000 | 6,0 | 3,0 | 6,5 | 4,5 |
40001 - 100000 | 7,0 | 3,5 | 7,5 | 5,0 |
Более 100000 | 7,0 | 4,0 | 7,5 | 5,5 |
Суда, перевозящие круглый лес и лесоматериалы | До 1500 | 9,0 | 5,0 | 10,5 | 7,0 |
1501 - 3000 | 9,0 | 5,5 | 10,5 | 7,5 |
3001 - 5000 | 11,5 | 6,5 | 12,0 | 8,0 |
5001 - 8000 | 13,5 | 7,5 | 14,5 | 9,5 |
8001 - 12000 | 14,0 | 7,5 | 14,5 | 10,0 |
12001 - 16000 | 14,5 | 8,5 | 15,5 | 10,5 |
Более 16000 | 15,5 | 9,0 | 16,0 | 11,5 |
Суда, перевозящие зерновые грузы насыпью | До 1500 | 7,0 | 6,0 | 8,0 | 8,0 |
1501 - 3000 | 7,5 | 6,5 | 9,0 | 9,0 |
3001 - 5000 | 9,0 | 7,5 | 10,0 | 9,5 |
5001 - 8000 | 10,5 | 8,5 | 11,5 | 10,5 |
8001 - 12000 | 11,5 | 9,0 | 12,0 | 11,0 |
12001 - 16000 | 12,5 | 10,0 | 13,0 | 12,0 |
16001 - 30000 | 13,0 | 10,5 | 14,0 | 13,0 |
30001 - 50000 | 14,0 | 11,0 | 14,5 | 13,5 |
Более 50000 | 14,5 | 11,5 | 15,0 | 14,0 |
Суда, перевозящие навалочные грузы | До 1500 | 3,5 | 2,5 | 5,0 | 5,0 |
1501 - 3000 | 3,5 | 3,0 | 5,0 | 5,0 |
3001 - 5000 | 4,5 | 3,5 | 5,5 | 5,5 |
5001 - 8000 | 5,0 | 4,5 | 6,0 | 6,5 |
8001 - 12000 | 5,5 | 4,5 | 6,5 | 7,0 |
12001 - 16000 | 6,0 | 5,5 | 7,0 | 7,50 |
16001 - 30000 | 6,5 | 6,0 | 7,5 | 8,0 |
30001 - 60000 | 7,0 | 6,5 | 7,5 | 8,5 |
60001 - 100000 | 7,5 | 7,0 | 8,0 | 9,5 |
Более 100000 | 8,0 | 7,5 | 8,5 | 10,0 |
Таблица Г.2
Время вспомогательных производственных операций для судов,
выполняющих рейсы в малом каботаже, час.
Типы судов | Дедвейт, т | Весенне-летний период | Осенне-зимний период |
погрузка | выгрузка | погрузка | выгрузка |
Универсальные суда, перевозящие генеральные грузы | До 1500 | 3,0 | 2,0 | 4,0 | 3,5 |
1501 - 3000 | 3,0 | 2,5 | 4,5 | 3,5 |
3001 - 5000 | 4,5 | 3,0 | 5,0 | 4,0 |
5001 - 8000 | 5,5 | 4,0 | 6,0 | 4,5 |
8001 - 12000 | 5,5 | 4,0 | 6,0 | 5,0 |
Более 12000 | 6,0 | 4,5 | 7,0 | 5,5 |
Специализированные суда для перевозки накатных грузов с горизонтальной и вертикальной погрузкой | До 1500 | 3,0 | 1,0 | 3,5 | 1,5 |
1501 - 3000 | 3,0 | 1,0 | 3,5 | 1,5 |
3001 - 5000 | 3,0 | 1,0 | 3,5 | 1,5 |
5001 - 8000 | 3,5 | 1,5 | 4,0 | 1,5 |
8001 - 12000 | 3,5 | 1,5 | 4,0 | 1,5 |
Более 12000 | 3,5 | 1,5 | 4,0 | 2,0 |
Суда, перевозящие круглый лес и лесоматериалы | До 1500 | 7,0 | 3,0 | 8,0 | 4,5 |
1501 - 3000 | 7,0 | 3,5 | 8,0 | 5,0 |
3001 - 5000 | 9,0 | 4,5 | 9,5 | 5,5 |
5001 - 8000 | 11,0 | 5,5 | 11,5 | 6,5 |
8001 - 12000 | 11,0 | 5,5 | 11,5 | 6,5 |
Более 12000 | 11,5 | 6,0 | 12,0 | 7,0 |
Суда, перевозящие зерновые грузы насыпью | До 1500 | 4,5 | 4,5 | 6,0 | 6,0 |
1501 - 3000 | 5,5 | 5,0 | 6,5 | 6,5 |
3001 - 5000 | 6,5 | 6,0 | 7,5 | 7,0 |
5001 - 8000 | 8,0 | 7,0 | 8,5 | 8,0 |
8001 - 12000 | 8,5 | 7,0 | 9,0 | 8,0 |
Более 12000 | 9,0 | 8,0 | 10,0 | 9,0 |
Суда, перевозящие навалочные грузы | До 1500 | 1,5 | 2,0 | 2,5 | 3,5 |
1501 - 3000 | 2,0 | 2,0 | 2,5 | 3,5 |
3001 - 5000 | 2,0 | 3,0 | 2,5 | 4,0 |
5001 - 8000 | 2,5 | 3,5 | 3,0 | 4,5 |
8001 - 12000 | 2,5 | 3,5 | 3,0 | 4,5 |
Более 12000 | 3,0 | 4,0 | 3,0 | 5,5 |
Примечание - В таблицы Г.1 и Г.2 включена продолжительность тех операций и в таком размере, которые не могут быть совмещены со временем грузовых работ и которые нельзя либо нецелесообразно выполнять у береговых вспомогательных причалов или на рейде: - швартовка с маневрами, отшвартовка с маневрами, перестановка от одного причала и к другому причалу; - открытие, перекрытие, закрытие трюмов; - оформление прихода, оформление грузовых документов, осмотр карантинной инспекцией, оформление отхода; - зачистка трюмов, подготовка трюмов, укрепление и раскрепление поверхности зерна, крепление и раскрепление грузов на палубах судов. |
Г.2 Численные значения коэффициента использования бюджета рабочего времени причала Kмет, учитывающего простои причала по метеорологическим факторам
Г.2.1 Приведенные в
таблицах Г.3,
Г.4,
Г.5 численные значения коэффициента использования бюджета рабочего времени причала K
мет, учитывающего простои причала по метеорологическим факторам, рассчитаны для следующих условий:
- скорость ветра более 15 м/с;
- осадки (дождь и снегопад);
- плотность тумана при видимости менее 100 м;
- температура наружного воздуха, при которой прекращаются работы или устанавливаются перерывы для обогрева рабочих.
Г.2.2 Указанные в таблицах численные значения Kмет не учитывают возможные простои причалов из-за недопустимого волнения на акватории. Продолжительность этих простоев должна определяться исходя из конкретных гидрологических условий рассматриваемого участка морского грузового фронта и допустимой высоты волны для расчетных типоразмеров судов. При необходимости указанные в таблицах численные значения Kмет должны корректироваться с учетом дополнительных простоев из-за волнения на акватории.
Таблица Г.3
Средние значения K
мет при перегрузке штучных и навалочных
грузов, боящихся влаги
Порты | Месяцы |
Январь | Февраль | Март | I кв. | Апрель | Май | Июнь | II кв. | Июль | Август | Сентябрь | III кв. | Октябрь | Ноябрь | Дек. | IV кв. | Год |
1 Санкт-Петербург | 0,65 | 0,60 | 0,75 | 0,70 | 0,85 | 0,90 | 0,90 | 0,90 | 0,90 | 0,90 | 0,85 | 0,90 | 0,80 | 0,70 | 0,65 | 0,70 | 0,80 |
2 Калининград | 0,75 | 0,70 | 0,85 | 0,75 | 0,90 | 0,90 | 0,90 | 0,90 | 0,90 | 0,90 | 0,90 | 0,90 | 0,85 | 0,80 | 0,75 | 0,80 | 0,85 |
3 Мурманск | 0,50 | 0,55 | 0,65 | 0,55 | 0,75 | 0,80 | 0,80 | 0,80 | 0,85 | 0,80 | 0,80 | 0,80 | 0,75 | 0,65 | 0,55 | 0,70 | 0,70 |
4 Диксон | 0,30 | 0,30 | 0,35 | 0,30 | 0,50 | 0,60 | 0,75 | 0,65 | 0,80 | 0,70 | 0,60 | 0,70 | 0,50 | 0,35 | 0,25 | 0,35 | 0,50 |
5 Архангельск | 0,55 | 0,55 | 0,75 | 0,60 | 0,75 | 0,90 | 0,90 | 0,90 | 0,90 | 0,90 | 0,80 | 0,85 | 0,80 | 0,70 | 0,60 | 0,70 | 0,75 |
6 Дудинка | 0,40 | 0,40 | 0,45 | 0,40 | 0,70 | 0,70 | 0,80 | 0,75 | 0,80 | 0,75 | 0,75 | 0,75 | 0,55 | 0,40 | 0,35 | 0,45 | 0,60 |
7 Тикси | 0,40 | 0,30 | 0,50 | 0,40 | 0,70 | 0,75 | 0,80 | 0,75 | 0,80 | 0,75 | 0,75 | 0,75 | 0,55 | 0,50 | 0,30 | 0,45 | 0,60 |
8 Новороссийск | 0,80 | 0,80 | 0,85 | 0,80 | 0,90 | 0,90 | 0,95 | 0,90 | 0,95 | 0,95 | 0,95 | 0,95 | 0,90 | 0,90 | 0,80 | 0,85 | 0,90 |
9 Махачкала | 0,55 | 0,55 | 0,70 | 0,55 | 0,80 | 0,85 | 0,90 | 0,85 | 0,90 | 0,90 | 0,85 | 0,90 | 0,80 | 0,70 | 0,65 | 0,70 | 0,80 |
10 Владивосток | 0,90 | 0,90 | 0,90 | 0,90 | 0,90 | 0,85 | 0,80 | 0,85 | 0,75 | 0,80 | 0,90 | 0,80 | 0,90 | 0,90 | 0,90 | 0,90 | 0,85 |
11 Восточный порт, Находка | 0,80 | 0,80 | 0,85 | 0,80 | 0,85 | 0,85 | 0,85 | 0,85 | 0,80 | 0,85 | 0,90 | 0,85 | 0,90 | 0,80 | 0,80 | 0,85 | 0,85 |
12 Ванино | 0,80 | 0,80 | 0,80 | 0,80 | 0,80 | 0,75 | 0,70 | 0,75 | 0,75 | 0,80 | 0,80 | 0,80 | 0,85 | 0,85 | 0,80 | 0,85 | 0,80 |
13 Посьет | 0,85 | 0,85 | 0,85 | 0,85 | 0,90 | 0,85 | 0,80 | 0,85 | 0,80 | 0,85 | 0,90 | 0,85 | 0,90 | 0,85 | 0,80 | 0,85 | 0,85 |
14 Магадан | 0,35 | 0,30 | 0,40 | 0,35 | 0,80 | 0,80 | 0,80 | 0,85 | 0,80 | 0,80 | 0,75 | 0,80 | 0,75 | 0,70 | 0,35 | 0,60 | 0,65 |
15 Анадырь | 0,25 | 0,25 | 0,35 | 0,30 | 0,75 | 0,80 | 0,85 | 0,80 | 0,85 | 0,55 | 0,80 | 0,75 | 0,70 | 0,60 | 0,30 | 0,55 | 0,60 |
16 Провидения | 0,10 | 0,10 | 0,25 | 0,15 | 0,85 | 0,75 | 0,85 | 0,85 | 0,85 | 0,75 | 0,70 | 0,75 | 0,95 | 0,65 | 0,15 | 0,60 | 0,60 |
17 Певек | 0,30 | 0,20 | 0,35 | 0,30 | 0,75 | 0,70 | 0,75 | 0,75 | 0,75 | 0,65 | 0,65 | 0,70 | 0,80 | 0,55 | 0,25 | 0,55 | 0,60 |
18 Корсаков | 0,40 | 0,50 | 0,65 | 0,50 | 0,80 | 0,80 | 0,75 | 0,80 | 0,75 | 0,65 | 0,65 | 0,70 | 0,80 | 0,55 | 0,25 | 0,55 | 0,50 |
19 Холмск | 0,50 | 0,70 | 0,65 | 0,50 | 0,80 | 0,80 | 0,75 | 0,80 | 0,75 | 0,75 | 0,80 | 0,75 | 0,80 | 0,60 | 0,50 | 0,65 | 0,70 |
20 Петропавловск-Камчатский | 0,70 | 0,70 | 0,70 | 0,70 | 0,75 | 0,80 | 0,85 | 0,80 | 0,80 | 0,80 | 0,80 | 0,80 | 0,75 | 0,75 | 0,70 | 0,75 | 0,75 |
21 Усть-Камчатск | 0,55 | 0,55 | 0,65 | 0,60 | 0,70 | 0,80 | 0,85 | 0,80 | 0,80 | 0,80 | 0,80 | 0,80 | 0,80 | 0,70 | 0,60 | 0,70 | 0,70 |
Таблица Г.4
Среднее значение K
мет при перегрузке навалочных и прочих
(в том числе лесных каботажных) грузов, хранящихся
на открытых площадках
Порты | Месяцы |
Январь | Февраль | Март | I кв. | Апрель | Май | Июнь | II кв. | Июль | Август | Сентябрь | III кв. | Октябрь | Ноябрь | Дек. | IV кв. | Год |
1 Санкт-Петербург | 0,90 | 0,90 | 0,90 | 0,90 | 0,95 | 0,95 | 0,95 | 0,95 | 0,95 | 0,95 | 0,95 | 0,95 | 0,90 | 0,90 | 0,90 | 0,90 | 0,90 |
2 Калининград | 0,90 | 0,90 | 0,90 | 0,90 | 0,95 | 0,95 | 0,95 | 0,95 | 0,95 | 0,95 | 0,95 | 0,95 | 0,95 | 0,95 | 0,95 | 0,95 | 0,95 |
3 Мурманск | 0,90 | 0,75 | 0,75 | 0,75 | 0,85 | 0,90 | 0,90 | 0,90 | 0,95 | 0,95 | 0,90 | 0,95 | 0,85 | 0,80 | 0,80 | 0,80 | 0,85 |
4 Диксон | 0,55 | 0,70 | 0,75 | 0,65 | 0,70 | 0,75 | 0,80 | 0,75 | 0,85 | 0,85 | 0,80 | 0,85 | 0,65 | 0,65 | 0,60 | 0,65 | 0,70 |
5 Архангельск | 0,90 | 0,90 | 0,90 | 0,90 | 0,95 | 0,95 | 0,95 | 0,95 | 0,95 | 0,95 | 0,90 | 0,95 | 0,90 | 0,90 | 0,90 | 0,90 | 0,90 |
6 Дудинка | 0,65 | 0,70 | 0,75 | 0,70 | 0,75 | 0,75 | 0,85 | 0,80 | 0,85 | 0,85 | 0,85 | 0,85 | 0,75 | 0,75 | 0,65 | 0,70 | 0,75 |
7 Тикси | 0,50 | 0,65 | 0,75 | 0,55 | 0,85 | 0,90 | 0,90 | 0,90 | 0,90 | 0,90 | 0,90 | 0,90 | 0,75 | 0,75 | 0,75 | 0,75 | 0,80 |
8 Новороссийск | 0,75 | 0,75 | 0,80 | 0,75 | 0,85 | 0,90 | 0,95 | 0,90 | 0,95 | 0,90 | 0,85 | 0,90 | 0,85 | 0,75 | 0,75 | 0,80 | 0,85 |
9 Махачкала | 0,75 | 0,70 | 0,75 | 0,75 | 0,70 | 0,80 | 0,85 | 0,80 | 0,90 | 0,85 | 0,80 | 0,85 | 0,80 | 0,75 | 0,75 | 0,75 | 0,80 |
10 Владивосток | 0,95 | 0,95 | 0,95 | 0,95 | 0,95 | 0,95 | 0,95 | 0,95 | 0,95 | 0,95 | 0,95 | 0,95 | 0,95 | 0,95 | 0,95 | 0,95 | 0,95 |
11 Восточный порт, Находка | 0,70 | 0,80 | 0,80 | 0,75 | 0,80 | 0,85 | 0,90 | 0,85 | 0,95 | 0,95 | 0,90 | 0,95 | 0,85 | 0,75 | 0,70 | 0,75 | 0,85 |
12 Ванино | 0,80 | 0,75 | 0,80 | 0,80 | 0,85 | 0,75 | 0,80 | 0,80 | 0,85 | 0,90 | 0,80 | 0,85 | 0,85 | 0,80 | 0,80 | 0,80 | 0,80 |
13 Посьет | 0,75 | 0,80 | 0,85 | 0,80 | 0,90 | 0,95 | 0,95 | 0,95 | 0,95 | 0,95 | 0,90 | 0,95 | 0,90 | 0,80 | 0,75 | 0,80 | 0,90 |
14 Магадан | 0,80 | 0,80 | 0,85 | 0,80 | 0,85 | 0,90 | 0,95 | 0,90 | 0,95 | 0,90 | 0,85 | 0,90 | 0,85 | 0,80 | 0,75 | 0,80 | 0,85 |
15 Анадырь | 0,45 | 0,50 | 0,65 | 0,55 | 0,80 | 0,85 | 0,95 | 0,85 | 0,95 | 0,90 | 0,85 | 0,90 | 0,75 | 0,65 | 0,55 | 0,65 | 0,75 |
16 Провидения | 0,50 | 0,55 | 0,70 | 0,60 | 0,85 | 0,90 | 0,95 | 0,90 | 0,95 | 0,95 | 0,90 | 0,95 | 0,95 | 0,85 | 0,60 | 0,80 | 0,80 |
17 Певек | 0,70 | 0,75 | 0,80 | 0,75 | 0,80 | 0,75 | 0,70 | 0,75 | 0,80 | 0,70 | 0,80 | 0,75 | 0,80 | 0,85 | 0,80 | 0,80 | 0,75 |
18 Холмск | 0,70 | 0,80 | 0,75 | 0,75 | 0,80 | 0,85 | 0,90 | 0,85 | 0,95 | 0,95 | 0,85 | 0,90 | 0,80 | 0,70 | 0,60 | 0,70 | 0,80 |
19 Корсаков | 0,80 | 0,80 | 0,80 | 0,80 | 0,90 | 0,90 | 0,90 | 0,90 | 0,95 | 0,95 | 0,85 | 0,90 | 0,85 | 0,80 | 0,80 | 0,80 | 0,85 |
20 Петропавловск-Камчатский | 0,75 | 0,75 | 0,75 | 0,75 | 0,80 | 0,90 | 0,95 | 0,95 | 0,90 | 0,90 | 0,85 | 0,90 | 0,75 | 0,75 | 0,80 | 0,75 | 0,80 |
21 Усть-Камчатск | 0,80 | 0,80 | 0,80 | 0,80 | 0,85 | 0,95 | 0,95 | 0,90 | 0,95 | 0,95 | 0,90 | 0,95 | 0,90 | 0,85 | 0,80 | 0,85 | 0,90 |
Таблица Г.5
Среднее значение K
мет при перегрузке
экспортных пиломатериалов
Порты | Месяцы |
Январь | Февраль | Март | I кв. | Апрель | Май | Июнь | II кв. | Июль | Август | Сентябрь | III кв. | Октябрь | Ноябрь | Дек. | IV кв. | Год |
1 Санкт-Петербург | 0,55 | 0,55 | 0,70 | 0,60 | 0,85 | 0,85 | 0,85 | 0,85 | 0,90 | 0,85 | 0,85 | 0,85 | 0,75 | 0,55 | 0,55 | 0,65 | 0,75 |
2 Калининград | 0,70 | 0,65 | 0,80 | 0,70 | 0,85 | 0,90 | 0,90 | 0,90 | 0,85 | 0,85 | 0,85 | 0,85 | 0,85 | 0,75 | 0,70 | 0,75 | 0,80 |
3 Мурманск | 0,50 | 0,50 | 0,60 | 0,50 | 0,70 | 0,70 | 0,75 | 0,70 | 0,80 | 0,75 | 0,70 | 0,75 | 0,70 | 0,60 | 0,55 | 0,60 | 0,65 |
4 Диксон | 0,20 | 0,20 | 0,30 | 0,20 | 0,55 | 0,55 | 0,55 | 0,55 | 0,75 | 0,60 | 0,50 | 0,60 | 0,40 | 0,30 | 0,20 | 0,30 | 0,40 |
5 Архангельск | 0,45 | 0,50 | 0,70 | 0,55 | 0,80 | 0,85 | 0,85 | 0,85 | 0,90 | 0,85 | 0,80 | 0,85 | 0,75 | 0,65 | 0,55 | 0,65 | 0,75 |
6 Дудинка | 0,35 | 0,35 | 0,40 | 0,35 | 0,65 | 0,60 | 0,75 | 0,60 | 0,80 | 0,70 | 0,70 | 0,70 | 0,45 | 0,35 | 0,35 | 0,35 | 0,50 |
7 Тикси | 0,35 | 0,30 | 0,45 | 0,30 | 0,65 | 0,70 | 0,70 | 0,70 | 0,75 | 0,70 | 0,70 | 0,70 | 0,45 | 0,45 | 0,25 | 0,40 | 0,55 |
8 Новороссийск | 0,70 | 0,70 | 0,75 | 0,70 | 0,80 | 0,85 | 0,90 | 0,85 | 0,95 | 0,90 | 0,90 | 0,90 | 0,85 | 0,75 | 0,70 | 0,75 | 0,63 |
9 Махачкала | 0,60 | 0,65 | 0,70 | 0,65 | 0,75 | 0,85 | 0,85 | 0,85 | 0,90 | 0,90 | 0,80 | 0,85 | 0,75 | 0,65 | 0,60 | 0,55 | 0,75 |
10 Владивосток | 0,90 | 0,90 | 0,90 | 0,90 | 0,85 | 0,85 | 0,85 | 0,85 | 0,70 | 0,75 | 0,85 | 0,75 | 0,90 | 0,90 | 0,85 | 0,90 | 0,85 |
11 Восточный порт, Находка | 0,80 | 0,80 | 0,80 | 0,80 | 0,80 | 0,80 | 0,80 | 0,80 | 0,80 | 0,85 | 0,85 | 0,85 | 0,85 | 0,80 | 0,75 | 0,80 | 0,80 |
12 Ванино | 0,80 | 0,80 | 0,75 | 0,80 | 0,80 | 0,70 | 0,70 | 0,75 | 0,70 | 0,75 | 0,75 | 0,75 | 0,85 | 0,85 | 0,80 | 0,85 | 0,80 |
13 Посьет | 0,85 | 0,85 | 0,85 | 0,85 | 0,85 | 0,85 | 0,80 | 0,85 | 0,75 | 0,80 | 0,90 | 0,80 | 0,90 | 0,85 | 0,80 | 0,85 | 0,85 |
14 Магадан | 0,35 | 0,30 | 0,40 | 0,35 | 0,80 | 0,75 | 0,75 | 0,75 | 0,75 | 0,75 | 0,70 | 0,75 | 0,70 | 0,70 | 0,35 | 0,50 | 0,60 |
15 Анадырь | 0,25 | 0,25 | 0,35 | 0,30 | 0,75 | 0,75 | 0,85 | 0,80 | 0,80 | 0,60 | 0,75 | 0,70 | 0,65 | 0,60 | 0,30 | 0,50 | 0,50 |
16 Провидения | 0,10 | 0,10 | 0,25 | 0,15 | 0,85 | 0,70 | 0,85 | 0,80 | 0,80 | 0,70 | 0,65 | 0,70 | 0,95 | 0,65 | 0,15 | 0,60 | 0,55 |
17 Певек | 0,30 | 0,20 | 0,35 | 0,30 | 0,75 | 0,65 | 0,70 | 0,70 | 0,70 | 0,55 | 0,60 | 0,60 | 0,80 | 0,55 | 0,25 | 0,55 | 0,55 |
18 Холмск | 0,55 | 0,65 | 0,65 | 0,60 | 0,75 | 0,80 | 0,80 | 0,80 | 0,80 | 0,85 | 0,80 | 0,80 | 0,75 | 0,65 | 0,45 | 0,60 | 0,70 |
19 Корсаков | 0,30 | 0,40 | 0,55 | 0,40 | 0,75 | 0,75 | 0,70 | 0,75 | 0,70 | 0,70 | 0,75 | 0,70 | 0,80 | 0,55 | 0,40 | 0,50 | 0,60 |
20 Петропавловск-Камчатский | 0,65 | 0,55 | 0,55 | 0,65 | 0,70 | 0,75 | 0,80 | 0,75 | 0,75 | 0,80 | 0,75 | 0,75 | 0,75 | 0,70 | 0,65 | 0,70 | 0,70 |
21 Усть-Камчатск | 0,45 | 0,50 | 0,60 | 0,50 | 0,70 | 0,75 | 0,80 | 0,75 | 0,75 | 0,75 | 0,80 | 0,75 | 0,75 | 0,70 | 0,55 | 0,55 | 0,65 |
Примечание - Если пиломатериалы перевозятся в упаковке, не боящейся воздействия осадков, K мет надлежит принимать по данным таблицы Г.3. |
(рекомендуемое)
Вспомогательные причалы предназначаются для проведения вспомогательных операций с судами, выполнение которых у грузовых или пассажирских причалов не допускается или нецелесообразно, как-то:
- бункеровка судов (в случаях, когда она не может быть совмещена с грузовыми операциями);
- влажная зачистка, мойка и сушка трюмов;
- устройство спецнастилов, временных переборок и тому подобных операций;
- специальное крепление тяжеловесных и крупногабаритных грузов;
- мойка танков и удаление остатков жидких грузов из нефтеналивных судов;
- навигационный ремонт и техническое обслуживание судов (в части, не совмещаемой со временем грузовых операций);
- подготовка к заводскому ремонту;
- фумигация грузов и санитарная обработка судов (при выполнении ее методами, не допускающими совмещения с грузовыми операциями);
- для отстоя судов в ожидании обработки или по метеоусловиям;
- оформление грузовых документов, открытие трюмов и др. (в случаях, когда судно до или после грузовых работ принимается вспомогательным причалом).
Д.2 Расчетная потребность во вспомогательных причалах
Д.2.1 Потребность порта во вспомогательных причалах определяется суммой расчетных потребностей во вспомогательных причалах для грузовых и для пассажирских судов, вычисляемых раздельно друг от друга.
Д.2.2 Расчетная потребность во вспомогательных причалах для грузовых судов зависит от количества грузовых причалов каждой специализации и удельной нормативной потребности во вспомогательных причалах, приходящейся на один грузовой причал каждой специализации. Значение удельной нормативной потребности зависит от вида плавания и установленной специализации грузовых терминалов.
Расчетная потребность во вспомогательных причалах для грузовых судов определяется суммой расчетных потребностей в них всех грузовых причалов порта по формуле

(Д.1)
где mi - удельная нормативная потребность во вспомогательных причалах, приходящаяся на один причал терминала i-ой специализации (i = 1, 2, ..., s);
Ni - расчетное или фактическое количество причалов терминала i-ой специализации, ед.
Причалы терминала | Значение mi |
загранплавание и большой каботаж | малый каботаж |
Генеральных грузов: | | |
- причалы с крановой схемой механизации | 0,10 | 0,05 |
- причалы специализированных терминалов для контейнеровозов, накатных судов, паромов | 0,05 | 0,05 |
Лесных грузов | 0,05 | 0,05 |
Зерновых грузов | 0,05 | 0,05 |
Навалочных и насыпных грузов: | | |
- причалы с крановой схемой механизации | 0,15 | 0,20 |
- причалы специализированных терминалов | 0,10 | 0,20 |
Наливных грузов | 0,25 | 0,20 |
Д.2.3 При постановке судна кормой к причалу или оградительному сооружению длина участка, используемого под вспомогательный причал, должна удовлетворять следующему требованию:
Lпр > 3·Bс + 2·bс, (Д.2)
где Bс - ширина наибольшего из рассматриваемых расчетных типов транспортных судов, м;
bс - ширина судна портового флота, используемого для выполнения вспомогательных операций, м.
Д.2.4 Расчетная потребность во вспомогательных причалах для пассажирских судов слагается из определяемых раздельно расчетных потребностей в них для:
- водоизмещающих судов, работающих на внутренних линиях;
- надповерхностных судов (СПК, СВП и т.д.), работающих на линиях, движение на которых происходит независимо от времени суток;
- ночного отстоя надповерхностных судов, работающих на линиях с движением только в светлое время суток.
Д.2.5 Расчетные потребности во вспомогательных причалах для пассажирских водоизмещающих и надповерхностных судов, работающих в круглосуточном режиме, следует определять только для портов приписки этого флота.
Д.2.6 Расчетные потребности во вспомогательных причалах для пассажирских водоизмещающих и надповерхностных судов, работающих в круглосуточном режиме, определяют суммой расчетных потребностей в них соответствующих пассажирских судов данного порта приписки, обслуживающих все соответствующие пассажирские линии, проходящие через данный порт, в месяц наибольшей нагрузки.

(Д.3)
где Pj - удельная нормативная потребность во вспомогательных причалах для пассажирских судов, приходящаяся на один судо-заход на j-ой линии в месяц наибольшей загрузки (j = 1, 2, ..., k);
Sj - расчетное число судо-заходов на j-ой линии в месяц наибольшей нагрузки.
Для надповерхностных судов полученное по
формуле Д.3 значение потребности во вспомогательных причалах округляют до ближайшего целого числа.
Примечание - Для узкоспециализированных пассажирских портов определенная по
формуле Д.3 расчетная потребность во вспомогательных причалах может быть при надлежащем обосновании увеличена на 10 - 20%.
Д.2.7 Для обеспечения приема и обслуживания судов транспортного флота, целью захода в порт которых не является выполнение грузовых или пассажирских операций, а также возможности эпизодического приема других судов различного назначения (научных и т.п.), в зависимости от категории порта и местных условий расчетная потребность во вспомогательных причалах должна быть увеличена на 5 - 10%.
Д.2.8 Потребность портов во вспомогательных причалах обеспечивается:
- при расширении, реконструкции и техническом перевооружении действующих портов - за счет эксплуатируемых вспомогательных, а также морально устаревших грузовых причалов универсального назначения;
- при новом строительстве - за счет проектируемых участков причального фронта, которые по условиям планировки неудобны или не могут быть использованы в качестве грузовых по условиям общей компоновки порта. При этом в качестве вспомогательных причалов допускается использовать разрывы между грузовыми причалами, требующими этих технологических разрывов.
Допускается постановка судов кормой к вспомогательным причалам для отстоя, а также для выполнения навигационного ремонта и технического обслуживания, подготовки к заводскому ремонту, бункеровке, фумигации грузов и санитарной обработки судов, с учетом местных условий и способов выполнения операций. Для этого же допускается использовать в качестве вспомогательных причалов стационарные оградительные сооружения порта (при обеспечении безопасных условий судоходства в пределах портовой акватории с учетом допускаемых эксплуатационных нагрузок на вспомогательные причалы, определяемых по требованиям
раздела 4.
Д.2.9 В случае расширения, реконструкции и технического перевооружения действующих портов, когда проектный грузооборот порта на расчетный срок не дает полного использования пропускной способности отдельных действующих перегрузочных комплексов универсального назначения, образующийся резерв грузовых причалов может быть учтен на тот же расчетный срок для проведения вспомогательных операций в соответствии с
Д.1 (приложение Д).
При этом расчетная потребность во вспомогательных причалах на данный расчетный срок соответственно уменьшается.
Водоизмещающие суда | Надповерхностные суда |
Протяженность линии, мили | Pj | Протяженность линии, мили | Pj |
110 - 250 | 0,002 | 30 - 70 | 0,0003 |
251 - 390 | 0,004 | 71 - 110 | 0,0005 |
391 - 560 | 0,007 | 111 - 150 | 0,0008 |
561 - 720 | 0,009 | 151 - 180 | 0,0011 |
721 - 960 | 0,011 | 181 - 220 | 0,0014 |
961 - 1150 | 0,013 | 221 - 270 | 0,0017 |
1151 - 1350 | 0,016 | 271 - 320 | 0,0020 |
Свыше 1350 | 0,018 | Свыше 320 | 0,0023 |
Д.3 Специализация причалов, их параметры и оборудование
Д.3.1 При расчетном числе вспомогательных причалов в порту более одного необходимо рассмотреть вопрос о целесообразности их специализации:
- для фумигации грузов и санитарной обработки судов;
- для зачистки и мойки танков нефтеналивных судов и удаления остатков жидких грузов;
- для пассажирских судов и др.
Необходимость конкретной специализации вспомогательных причалов следует устанавливать с учетом расчетной доли судов, при обработке которых предусматривается проведение данной операции, а также нормативной продолжительности ее выполнения.
Д.3.2 Длина и глубина вспомогательных причалов определяется по положениям
4.3.
Д.3.3 При выборе количества и размещения вспомогательных причалов для постановки судов кормой необходимо учитывать требования СП (проект) Нормы проектирования морских каналов, фарватеров и зон маневрирования. При постановке судна кормой к причалу или оградительному сооружению, длина участка Lпр (м), используемого под вспомогательный причал, должна удовлетворять следующему требованию:
L
пр 
3·B
с + 2·b
с, (Д.4)
где Bс - ширина наибольшего из рассматриваемых расчетных типов транспортных судов;
bс - ширина судна портового флота, используемого для выполнения вспомогательных операций.
Д.3.4 Допустимые эксплуатационные нагрузки на вспомогательные причалы определяются по требованиям
4.3.
Д.3.5 Вспомогательные причалы должны быть обеспечены зданиями, сооружениями, оборудованием и средствами механизации с учетом рекомендаций РД 31.31.37.50-87
[44].
Д.3.6 Освещенность вспомогательных причалов должна соответствовать требованиям действующих нормативов по электрооборудованию морских портов.
Д.3.7 В соответствии со специализацией вспомогательных причалов необходимо учитывать технологию производства работ по фумигации, подготовке трюмов, специальному креплению и раскреплению грузов и т. при обеспечении высокого уровня интенсификации этих работ.
Д.3.8 При определении технических и технологических характеристик вспомогательного причала, специализированного для проведения операций по фумигации грузов, а также используемого для этого оборудования, необходимо дополнительно учитывать рекомендации
Р 2.2.2006-05 [37].
Д.3.9 Вспомогательный причал, специализированный для бункеровки, зачистки, мойки танков нефтеналивных судов и удаления остатков жидких грузов, следует располагать в составе терминала для нефтеналивных грузов либо смежно с ним.
(рекомендуемое)
Е.1 Потребность в причалах для водоизмещающих пассажирских судов, обслуживающих регулярное линейное судоходство
Е.1.1 Потребное число причалов для водоизмещающих пассажирских судов, обслуживающих регулярное линейное судоходство, определяют для каждой из линий как частное от деления проектного количества судо-заходов в месяц наибольшей работы на норматив месячной пропускной способности причала в судо-заходах с округлением до ближайшего целого числа по
таблице Е.1, или используя имитационное моделирование расписания работы пассажирского флота.
Тип линии | Норматив месячной пропускной способности одного причала по линейному судоходству, судо-заходы |
Конечный пункт захода | Промежуточные пункты захода |
промышленный, транспортный и курортный центр | город, имеющий курортное значение | прочий |
Международная | 20 | 30 | 30 | - |
Каботажная: | | | | |
экспрессная | 30 | 60 | 90 | 120 |
туристская | 30 | 30 | 60 | 120 |
Е.1.2 Если на линии (или группе линий) работают одно-два судна, то независимо от проектного числа судо-заходов за месяц по данной линии (или группе линий) принимают не более одного причала.
(рекомендуемое)
МЕТОД РАСЧЕТА СВОБОДНОЙ ДЛИНЫ ПРИЧАЛЬНОЙ ЛИНИИ
Таблица Ж.1
Запас свободной причальной линии
Схема постановки судна | Запас свободной причальной линии при наибольшей длине расчетного судна, м |
более 300 | 300 - 201 | 200 - 151 | 150 - 101 | менее 100 |
1 | 1 Расстояние между судами, м | 30 | 25 | 20 | 15 | 10 |
2 | 2 Расстояние между судном и концом прямолинейного участка причального фронта в зависимости от расположения причалов, м: | 30 | 25 | 20 | 10 | 5 |
а) | |
| | 45 --- 40 | 30 | 25 | 20 | 15 |
в) | | 30 --- 25 | 20 | 15 | 15 | 10 |
| | - --- 60 | 50 | 40 | 30 | 20 |
д) | | 30 | 20 | 15 | 15 | 10 |
е) | | 20 | 15 | 15 | 10 | 10 |
Условные обозначения d - расстояние между двумя стоящими у смежных причалов судами внутри прямолинейного участка; e - расстояние между судном и концом данного участка. Примечания 1 Для судов длиной более 300 м в знаменателе указаны нормативы, относящиеся к схеме с берегоукреплением. 2 Данные таблицы И.1 не являются основанием для назначения ширины пирсов и ковшей, а определяют минимально допустимые значения. 3 Данные таблицы И.1 не являются основанием для назначения противопожарных разрывов, устанавливаемых соответствующими нормами. 4 В г) прочерк показывает, что схема постановки для судов длиной более 300 м неприемлема. 5 Габарит "е" подлежит увеличению при постановке судов длиной от 201 до 300 м по схемам б) и г) при ширине судна более 40 м. Минимально допустимое расстояние между судами определяется расчетом при конкретном проектировании. |
(рекомендуемое)
СТАНДАРТНЫЕ СХЕМЫ И ХАРАКТЕРИСТИКИ НАГРУЗОК
ОТ ПРИКОРДОННЫХ КРАНОВ И ПЕРЕГРУЖАТЕЛЕЙ
И.1 Стандартные схемы и характеристики нагрузок приведены исходя из следующих положений:
- кран (перегружатель) находится в нерабочем состоянии при ветре до 7 баллов;
- максимальные нагрузки возникают при совпадении направления ветра с диаметральной плоскостью стрелы.
В
таблице И.1 и схеме, поясняющей эту таблицу, указаны максимальные давления колес крана на рельс и схемы расположения колес одной ноги крана.
И.2 Величины нормативных значений нагрузок на рельс от ноги крана (перегружателя) при различных положениях его стрелы (римские цифры) и направлениях ветра (арабские цифры), указанных на
рисунке И.1, приведены в
таблице И.1.
Таблица И.1
Давление ноги портального крана на рельс при различных
положениях стрелы и ветре, действующем в плоскости стрелы
Положение стрелы | Направление | Нагрузки | Обозначение ноги | Стандартная схема нагрузки |
К-35 | К-25 |
Нагрузка на рельс кН (т) |
I | 1 | Вертик. | А, Г | 1617 (165) | 883 (90) |
| | | Б, В | 882 (90) | 392 (40) |
II | 2 | Вертик. | А, Б | 1617 (165) | 833 (65) |
| | | В, Г | 882 (90) | 392 (40) |
III | 3 | Вертик. | А | 2058 (210) | 980 (100) |
| | | Б | 1372 (140) | 558 (60) |
| | | В | 400 (41) | 84 (8,5) |
| | | Г | 1176 (120) | 539 (55) |
Горизонтальные <*> | вдоль рельса | 225 (23) | 210 (21,4) |
поперек рельса | 365 (37) | 320 (32,6) |
<*> Максимальные горизонтальные нагрузки указаны для крана в нерабочем состоянии при ветре максимальной силы для 7-го ветрового района по ГОСТ 1451-77. |
И.3 Распределение максимальных нагрузок от ноги крана и колес на рельс в зависимости от стандартной схемы нагрузки и в зависимости от колесных схем опор кранов, приведенных на
рисунке И.2, указано в
таблице И.2.
Таблица И.2
Основные показатели нагрузок от контейнерных перегружателей,
габариты портала в плане и расстояния между колесами
Наименование основных показателей | Стандартная схема нагрузки |
К-35 | К-25 |
1 Максимальная вертикальная нагрузка от ноги крана на рельс, кН (тс) | 2058 (210) | 980 (100) |
2 Количество колес в опоре | 6/8 | 4 |
3 Максимальная вертикальная нагрузка от колеса на рельс, кН (тс) | 343/259,1 (35/26,5) | 245(25) |
4 Расстояние между осями колес одной ноги, м: | | |
- в одной тележке, "а" | 0,65 | 0,65 |
- в соседних тележках, "б" | 1,25 | 1,25 |
5 Минимально допустимое расстояние между осями крайних колес двух смежных кранов, м | 2,5 | 2,5 |
6 Колея портала, м | 10,5 | 10,5 |
15,3 | 15,3 |
7 База портала, м | 10,5 | 10,5 |
Примечание - При сближении соседних кранов на расчетное расстояние, указанное в позиции 5, вертикальное давление ног крана на рельсы принимается по схеме в таблице Б.1 с положением стрелы и ветра 1-1. |
И.4 Распределение максимальных нагрузок от ноги и колеса контейнерного перегружателя в зависимости от стандартной схемы нагрузки и габаритные размеры механизмов его передвижения в зависимости от колесных систем опор перегружателя, приведенных на
рисунке И.3, указаны в
таблице И.3.
Наименование основных показателей | Стандартная схема нагрузки |
КП |
1 Максимальная вертикальная нагрузка перегружателя на рельс, кН (тс) | 5292 (540) |
2 Количество колес в опоре | 8/10/12 |
3 Максимальная вертикальная нагрузка колеса на рельс, кН (тс) | 441 (45) |
Горизонтальная нагрузка от ноги перегружателя: | | 600 (61,2) |
| поперек рельса | 1000 (102,0) |
4 Расстояние между осями колес одной ноги, м: | |
- в одной тележке, "а" | больше 1,0 |
- в соседних тележках, "б" | больше 1,2 |
5 Колея перегружателя, м | 15,3 или 16,8 |
6 База перегружателя, м | 16 |
<*> Максимальные горизонтальные нагрузки указаны для перегружателя в нерабочем состоянии при ветре максимальной силы 7-го ветрового района по ГОСТ 1451-77. |
(рекомендуемое)
ОПРЕДЕЛЕНИЕ КОЛИЧЕСТВА ПРИКОРДОННЫХ ПУТЕЙ
Таблица К.1
Определение количества прикордонных путей
N схемы приложения | Специализация причалов | Полезная нагрузка вагона, т | Расчетное количество технологических линий прямого варианта | Длина причала, м |
200 - 225 | 200 | 175 | 150 |
Количество причалов на терминале |
2 | 3 - 4 | 2 | 3 - 4 | 2 | 3 - 4 | 2 | 3 - 4 |
Количество судов, одновременно обрабатываемых по прямому варианту |
2 | 2 | 3 | 2 | 2 | 3 | 2 | 2 | 3 | 2 | 2 | 3 |
Количество железнодорожных путей |
1, 2 | Генеральные грузы (крытого хранения) | 35 - 45 | 3 | - | - | - | - | - | - | 3 | 4 | 4 | 3 | 4 | 4 |
4 | 3 | 4 | 4 | 3 | 4 | 4 | 3 | 4 | 4 | - | - | - |
5 | 3 | 4 | 4 | 3 | 4 | 4 | - | - | - | - | - | - |
3 - 5 | Генеральные грузы (открытого хранения); лесные грузы | до 50 | 3 | - | - | - | - | - | - | 2 | 2 | 3 | 2 | 2 | 3 |
4 | 2 | 2 | 3 | 2 | 2 | 3 | 2 | 2 | 3 | - | - | - |
5 | 3 | 4 | 4 | 3 | 4 | 4 | - | - | - | - | - | - |
6 | Навалочные грузы открытого хранения | до 120 | 3 | - | - | - | 2 | 2 | 4 | 2 | 2 | 3 | 2 | 2 | 2 |
4 | - | - | - | 3 | 3 | 4 | 3 | 3 | 4 | - | - | - |
5 | 3 | 3 | 4 | 3 | 3 | 4 | - | - | - | - | - | - |
7 | Зерновые грузы | до 73 | 3 | - | - | - | 2 | 2 | 4 | 2 | 2 | 3 | 2 | 2 | 2 |
4 | - | - | - | 3 | 3 | 4 | 3 | 3 | 4 | | - | - |
5 | 3 | 3 | 4 | 3 | 3 | 4 | - | - | - | - | - | - |
Примечания
1 При расстоянии от парка более 1 км и количестве причалов на терминале более четырех следует проверять расчетом достаточность числа путей, указанного в таблице, и при необходимости увеличивать их количество, либо предусматривать дополнительные подходы железнодорожных путей от парка или принять кольцевую схему (организацию подачи с двух сторон участка).
2 На грузовых фронтах, для которых по технико-экономическим соображениям подачу вагонов совмещают с их уборкой, а расстановку с подборкой по грузовым путям, предусматривают укладку дополнительных железнодорожных путей.
3 Прочерки в таблице означают: для причалов большой длины расчетное количество технологических линий (ТЛ), равное 3 и даже 4 (для навалочных и зерновых грузов), неприемлемо из-за невозможности обеспечить нужную интенсивность обработки судов; наоборот, для причалов малой длины - расчетное количество ТЛ завышено и следует обходиться меньшим количеством ТЛ.
(справочное)
СХЕМА РАСПОЛОЖЕНИЯ ПРИКОРДОННЫХ ЖЕЛЕЗНОДОРОЖНЫХ ПУТЕЙ
НА ПРИЧАЛАХ С ПОРТАЛЬНЫМИ КРАНАМИ С КОЛЕЕЙ 10,5 м
Таблица Л.1
Схема расположения прикордонных железнодорожных путей
на причалах с портальными кранами с колеей 10,5 м
N схемы | Кордон портала и количество железнодорожных путей | Ширина прикордонной зоны, м |
Разрез | Пирс |
Смежные причалы |
1 | 2 | 3 | 4 |
| Обработка крытого железнодорожного подвижного состава |
| | | 32 |
| | | 32 |
| | | 34 |
| Обработка открытого железнодорожного подвижного состава |
4 | | | 20 |
5 | | | 25 |
Условные обозначения |
 - стационарная рампа; |
 - рампа из сборных элементов; |
 - грузовой путь; |
 - маневровый путь |
Примечание - Ширина прикордонной зоны определена условно, исходя из нормальной ширины рампы, равной 4,5 м ( схемы 1, 2), и вылета стрелы портального крана, 32 м (схема 3). |
(рекомендуемое)
ОПРЕДЕЛЕНИЕ ПАРАМЕТРОВ СКЛАДА
М.1 Определение потребной площади складов
Потребную площадь крытых и открытых складов П в м2 определяют по формуле

(М.1)
где Kи - коэффициент использования площади складов для непосредственного хранения грузов.
Для хранения металлов и оборудования в открытых складах Kи следует принимать:
- в зоне действия портальных кранов и перегружателей равным 0,80;
- вне зоны действия портальных кранов и перегружателей равным 0,70.
Для хранения смешанных генеральных грузов в крытых складах K
и принимают по
таблице М.4.
E - расчетная вместимость склада, т;
q - технологическая нагрузка от складируемого груза, кПа;
в зависимости от вида склада и характера груза q принимают по
таблицам М.1 -
М.3.
Расчетная вместимость склада в тоннах определяется по формуле
E = kD + eз, (М.2)
где k - коэффициент сложности исходящего грузопотока, учитывающий необходимое превышение наличного количества груза в связи с требованиями рациональной загрузки судна и возможным несоответствием груза и судна по портам назначения, принимают равным:
- для однородных грузов 1,0 - 1,3;
- для смешанных 1,3 - 1,6.
D - чистая грузоподъемность расчетного судна, т;
eз - запас вместимости, т.
Запас вместимости определяют по формуле
eз = P·n, (М.3)
где P - интенсивность грузовых работ на причале по наибольшему расчетному судну, т/сут;
n - нормативный запас времени. При равномерной работе железнодорожного транспорта, не зависящей от режима подхода судов, нормативный запас принимают равным 2 сут., а при нерегулярном судоходстве - 4 сут.
Во всех случаях вместимость прикордонного склада на одном причале должна быть в пределах
1,3D < E < 2,5D. (М.4)
Таблица М.1
Технологическая нагрузка при хранении в крытых складах
смешанных генеральных грузов
Этажность склада | Нормативная эксплуатационная нагрузка на пол склада, кПа (тс/м2) | Технологическая нагрузка q, кН/м2 (тс/м2) |
экспорт, импорт | малый каботаж |
Одноэтажный | 60 (6) | 25 (2,5) | 17,5 (1,75) |
Многоэтажный: | | | |
- первый этаж | 40 (4) | 21 (2,1) | 17,5 (1,75) |
- остальные этажи | 20 (2) | 13,5 (1,35) | 17,5 (1,75) |
Таблица М.2
Технологическая нагрузка при хранении грузов
на открытых складах
Груз | Технологическая нагрузка q, кН/м2 (тс/м2) |
Сборный металлогруз | 40,0 (4,0) |
Оборудование сборное (включая металлоконструкции) | 12,5 (1,25) |
Таблица М.3
Технологическая нагрузка для однородных генеральных грузов
в крытых складах (или при наличии в составе грузооборота
преобладающего груза)
Категория груза, груз | Способ складирования | Технологическая нагрузка q, кН/м2 (тс/м2) |
при нормативной эксплуатационной нагрузке на пол склада, кН/м2 (тс/м2) |
60 (6) | 40 (4) | 20 (2) |
В мешках: | | | | |
- сахар-песок; | на поддонах | 25,5 (2,55) | 2,25 (2,25) | 12,5 (1,25) |
- шрот; | " | 19,5 (1,95) | 17,0 (1,70) | 12,5 (1,25) |
- мука; | " | 17,0 (1,70) | 17,0 (1,70) | 11,0 (1,10) |
- рис; | " | 22,0 (2,20) | 22,0 (2,20) | 12,5 (1,25) |
- химические; | " | 41,5 (4,15) | 31,0 (3,10) | 17,5 (1,75) |
- цемент. | " | 41,0 (4,10) | 29,5 (2,95) | 15,5 (1,55) |
В кипах: - мешковина; | без средств пакетирования | 37,5 (3,75) | 34,0 (3,40) | 17,0 (1,70) |
- целлюлоза; | " | 27,0 (2,70) | 27,0 (2,70) | 16,0 (1,60) |
- хлопок; | " | 21,0 (2,10) | 19,5 (1,95) | 17,5 (1,75) |
- джут. | " | 17,5 (1,75) | 16,5 (1,65) | 14,0 (1,40) |
В рулонах: | | | | |
- бумага. | " | 33,5 (3,35) | 25,5 (2,55) | 14,0 (1,40) |
В ящиках: | | | | |
- консервы; | " | 29,0 (2,90) | 28,0 (2,80) | 16,5 (1,65) |
- метизы. | " | 52,5 (5,25) | 24,0 (2,40) | 15,5 (1,55) |
Таблица М.4
Коэффициент использования площади крытых складов
для хранения смешанных генеральных грузов
Тип склада | Коэффициент использования Ки |
при однородных (крупнопартионных) грузах | при смешанных (мелкопартионных) грузах |
Одноэтажные, шириной, м: | | |
- менее 24; | 0,65 | 0,55 |
- от 24 до 30; | 0,70 | 0,60 |
- более 30. | 0,75 | 0,60 |
Многоэтажные, шириной, м: | | |
- менее 36; | 0,60 | 0,50 |
- от 36 до 48; | 0,65 | 0,55 |
- более 48. | 0,70 | 0,60 |
М.2 Определение размеров проемов ворот
Таблица М.5
Рекомендуемые размеры проемов ворот
Этажность склада | Размеры проемов, м |
высота | ширина |
Одноэтажные и многоэтажные (первый этаж) | 5,4 | 4,8 |
Многоэтажные (кроме первого этажа) | 4,2 | 4,2 |
Примечание - При реконструкции существующих складов в случаях, когда не могут быть выполнены нормы, приведенные в
таблице М.5, допускается пониженная высота проемов, но не менее 4,2 м в одноэтажных складах и на первом этаже многоэтажных складов и не менее 3,6 м на верхних этажах многоэтажных складов.
При необходимости въезда в склад железнодорожных вагонов высота проемов в торцевых стенах должна быть не менее 5,5 м, а ширина не менее 4,9 м.
М.3 Выбор типа склада по виду продовольственных грузов. Определение совместимости хранения различных видов скоропортящихся грузов
Таблица М.6
Типы складов по виду продовольственных грузов
Наименование продовольственных грузов <*> | Характеристика складов |
С регулируемым режимом | Отапливаемые и вентилируемые | Вентилируемые | Холодильники |
СКОРОПОРТЯЩИЕСЯ | | | | |
1 Плодоовощные: | | | | |
- картофель, овощи; | | + | | |
- яблоки, груши, сливы; | | + | | |
- абрикосы, персики, виноград; | | + | | |
- апельсины, мандарины; | + | + | | |
- лимоны, грейпфруты, бананы; | | | | |
- ананасы; | + | | | |
- томаты | + | + | | |
2 Мясные | | | | + |
3 Рыбные: | | | | |
- рыба охлажденная и мороженая; | + | | | + |
- соленая, вяленая, сушеная; | | | + | |
- копченая; | | | | + |
- икра в бочках | | | | + |
4 Молочные: | | | | |
- сыр; | | + | + | + |
- масло сливочное, топленое | | | | + |
5 Консервы | | + | + | |
6 Прочие скоропортящиеся: | | | | |
- вино; | | + | + | |
- пиво; | | | | + |
- жиры свиной, говяжий; | | | | + |
- маргарин, маргагуселин, комбижир и др.; | | | | + |
- дрожжи; | | | | + |
- шоколад, шоколадные конфеты и др. | | | | + |
НЕСКОРОПОРТЯЩИЕСЯ | | | | |
7 Зерновые: | | | | |
- пшеница, рожь, кукуруза и др.; | | | + | |
- бобовые: фасоль, горох и др.; | | | + | |
- кофе, какао-бобы; | | | + | |
- семена хлопка, подсолнечника; | | | + | |
- крупа, мука, крахмал | | | + | |
8 Овощи и фрукты сушеные: | | | | |
чернослив, курага, изюм и др. | | | + | |
9 Соль | | | + | |
10 Сахар: сахар-сырец, песок, рафинад | | | + | |
11 Кормовые: жмых, комбикорма и др. | | | + | |
12 Прочие нескоропортящиеся: | | | | |
- орехи, чай, пряности; | | | + | |
- табак и табачные изделия | | | + | |
Знак "+" означает возможность хранения этого вида груза на складе с данной характеристикой. |
Таблица М.7
Таблица совместимости хранения различных видов
скоропортящихся грузов
Наименование грузов | Апельсины | Грейпфруты | Мандарины | Лимоны | Ананасы | Бананы | Манго | Баранина | Говядина | Бекон | Свинина | Битая птица | Масло живот. |
Апельсины | - | | Д | | | Н | | Н | Н | Н | Н | Н | Н |
Грейпфрут | | - | Н | Д | | | | Н | Н | Н | Н | Н | Н |
Мандарины | Д | Н | - | Н | | | | Н | Н | Н | Н | Н | Н |
Лимоны | | Д | Н | - | Д | | | Н | Н | Н | Н | Н | Н |
Ананасы | | | | Н | - | | Н | Н | Н | Н | Н | Н | Н |
Бананы | Н | | | | | - | Н | Н | Н | Н | Н | Н | Н |
Манго | | | | | Н | Н | - | Н | Н | Н | Н | Н | Н |
Баранина | Н | Н | Н | Н | Н | Н | Н | - | Д | Д | Д | Д | Н |
Говядина (мороженая) | Н | Н | Н | Н | Н | Н | Н | Д | - | Д | Д | Д | Н |
Бекон | Н | Н | Н | Н | Н | Н | Н | Д | Д | - | Д | Д | Н |
Свинина | Н | Н | Н | Н | Н | Н | Н | Д | Д | Д | - | Д | Н |
Битая птица | Н | Н | Н | Н | Н | Н | Н | Д | Д | | Д | - | Н |
Масло | Н | Н | Н | Н | Н | Н | Н | Н | Н | | Н | Н | - |
Условные обозначения: "Д" - совместное кратковременное хранение допускается; "Н" - совместное хранение не допускается. |
М.4 Определение ширины стационарных и сборных отдельно стоящих рамп
Таблица М.8
Ширина стационарных и сборных отдельно стоящих рамп
Месторасположение рампы | Ширина рампы, м |
Под порталом крана с колеей 10,5 м у одного из двух ж/д путей (на месте второго пути) | 4,1 |
Под порталом крана с колеей 15,3 м: | |
- на месте одного из крайних путей; | 4,1 |
- на месте среднего ж/д пути. | 5,6 |
Примечание - Ширина рамп, располагаемых вне колеи портальных кранов, должна быть не менее 4,1 м. |
М.5 Определение высоты и размеров штабелей при хранении лесных грузов в складах
Таблица М.9
Высота и размеры штабелей
Назначение склада | Предельные размеры штабеля, м |
высота | ширина | длина |
при подаче груза механизмами и нахождении людей на штабеле | при укладке груза в штабель и разборке его механизированным способом без нахождения людей на штабеле |
Пиломатериалы открытого хранения (включая пакеты) | 6,0 | 10,0 | по длине досок | по длине досок |
Круглого длинномерного леса | 6,0 | 10,0 | по длине бревен | 200 |
Круглого короткомерного леса (длиной до 3 м) непакетированного | 1,5 | 2,0 | по длине бревен | 30 |
То же, в пакетах | 6,0 | 6,0 | | |
М.6 Определение высоты штабелей при хранении углей и железной руды
Ископаемые угли по склонности к окислению подразделяются на группы, которые приведены в
таблице М.10.
Таблица М.10
Группировка углей по склонности к окислению
Номер группы | Характеристика группы | Бассейн или месторождение | Марка, класс |
I | Наиболее устойчивые к окислению, не самовозгорающиеся при хранении | Сучанское | ТР, ЖР, ГР |
Черемховский | ДР, ДСШ, ДМСШ |
Печорский | ЖР, ЖШ, ЖСШ, КР |
Донецкий | ТР |
II | Устойчивые к окислению и самовозгорающиеся в редких случаях | Донецкий | ГМ |
Кузнецкий | ТР, ТСШ, ТМСШ, ССР, ССМ, ССР |
Экибастузский | ССР |
Карагандинский | КСМ, ЖР, КЖР, КР, КГР, КМСШ, ССР |
Сахалинское | ЖР, КР, ГР, ГМСШ |
Куу-Чекинское | КГР |
Букачагинское | ГР |
III | Средней устойчивости к окислению и самовозгорающиеся | Донецкий | ДМ, ГР, ГШ, ГСШ, ЖР, КР, ССР |
Кузнецкий | ДМ, ГМ, КР, КЖР, ЖР, КГР |
Кизеловский | ГР, ГСШ, ГМСШ, ЖР |
Сахалинское | ДР, ДСШ |
Львовско-Волынское | ГР, ГСШ, ГМСШ |
Егоркинское | ГР |
Тувинское | КР |
Зырянское | ЖР |
Чульманское | ЖР |
IV | Неустойчивые с повышенной активностью к окислению и самовозгорающиеся | Кузнецкий | ГР, ГШ, ГСШ, ГМСШ |
Печерский | ДР, ДМСШ |
Донецкий | ДР, ДСШ, ДМСШ |
Среднеазиатский | ДР, ДСШ |
Ткибульское | ДР, ГР |
Аркагалинское | ДР |
Примечание - Таблица составлена на основании справочника "Угли СССР". М., Недра, 1975 г.
Высота штабелей при хранении углей группы I и железной руды определяется возможностью перегрузочных машин и нормативной эксплуатационной нагрузкой на основание склада и на причал.
Высоту штабелей при хранении углей II, III, IV группы следует принимать по
таблице М.11 с учетом территории причала и нормативной эксплуатационной нагрузки на основание склада.
Таблица М.11
Высота штабелей при хранении углей
Группа углей | Высота штабеля, м |
II | до 10 |
III | до 6 |
IV | до 5 |
М.7 Определение пропускной способности склада
Пропускная способность склада за месяц определяется по формуле:
Пскл = (E·30)/tхр,
где E - вместимость склада,
tхр - время хранения груза на складе,
30 - количество рабочих дней склада в месяц.
(рекомендуемое)
ВИД ПОКРЫТИЯ В ЗАВИСИМОСТИ ОТ НАЗНАЧЕНИЯ ПЛОЩАДОК
И НОРМАТИВНОЙ ЭКСПЛУАТАЦИОННОЙ НАГРУЗКИ
Таблица Н.1
Вид покрытия в зависимости от назначения площадок
и нормативной эксплуатационной нагрузки
Назначение площадок | Нормативная эксплуатационная нагрузка | Тип покрытия | Вид покрытия | Примечание |
Схема | От безрельсового транспорта | Равномерно распределенная, кПа (тс/м2) |
на колесо, кН (тс) | давление в пневматиках, кПа (кгс/см2) |
1 Складские площадки для хранения крупнотоннажных контейнеров, блок-пакетов и других тяжеловесных грузов, проездов в зонах указанных площадок, контейнерных перегружателей | | | | | | | |
КВ-70 (КВ-35) | 350 (35) 175 (17,5) | 0,85 (8,5) | 100 (10,0) | постоянные | Монолитные цементобетонные | |
временные | Сборные железобетонные плиты | Допустимо применение блочных дорожных покрытий из искусственных камней мощения |
2 Складские площадки для металлов и оборудования | Н-30 | 60 (6,0) | 0,59 (5,9) | 200 (20,0) | постоянные | Монолитные цементобетонные, сборные железобетонные плиты | Предпочтительнее цементобетонные |
Сборные железобетонные плиты, щебеночные, гравийные, обработанные битумом |
временные |
3 Складские площадки для навалочных грузов и минеральных стройматериалов | Н-30 | 60 (6,0) | 0,59 (5,9) | 200 (20,0) | постоянные | Монолитные цементобетонные, из скального грунта | |
временные | из скального грунта |
4 Складские площадки для сборных тарно-штучных грузов | Н-30 | 60 (6,0) | 0,59 (5,9) | 100 (10,0) | постоянные | Монолитные цементобетонные, асфальтобетонные | Предпочтительнее цементобетонные |
временные | Сборные железобетонные плиты, щебеночные, гравийные |
5 Складские площадки для лесных грузов | Н-30 | 60 (6,0) | 0,59 (5,9) | 100 (10,0) | постоянные | Монолитные цементобетонные, асфальтобетонные | Асфальтобетонные не допускаются при работе грейферного оборудования |
временные | из скального грунта, щебеночные, гравийные | При работе без грейферного оборудования |
6 Территория причалов нефтепродуктов, бункеровочных и прочих наливных грузов | Н-10 | 35 (3,5) | 0,55 (5,5) | 20 (2,0) | постоянные | Монолитные цементобетонные, сборные железобетонные плиты, асфальтобетонные | Предпочтительнее цементобетонные Асфальтобетонные не допускаются на технологических площадках и местах, где возможен разлив нефтепродуктов |
временные | Сборные железобетонные плиты |
7 Складские площадки для химических тарноштучных, санитарноопасных грузов | Н-30 | 60 (6,0) | 0,59 (5,9) | 60 (6,0) | постоянные | Монолитные цементобетонные, асфальтобетонные | Предпочтительнее цементобетонные |
временные | Сборные железобетонные плиты |
8 Площадки портовых мастерских, гаражей, заправочных мест, стоянок авто- и электропогрузчиков | Н-10 | 35 (3,5) | 0,55 (5,5) | 20 (2,0) | постоянные | Монолитные цементобетонные, асфальтобетонные | Предпочтительнее цементобетонные |
временные | Сборные железобетонные плиты, из скального грунта, щебеночные, гравийные | В зависимости от наличия местных строительных материалов |
9 Площадки зерновых, пассажирских и служебно-вспомогательных причалов, а также площадки и проезды общепортового назначения | Н-10 | 35 (3,5) | 0,55 (5,5) | 20 (2,0) | постоянные | Монолитные цементобетонные, асфальтобетонные | Предпочтительнее асфальтобетонные |
временные | Из скального грунта и гравийные, обработанные вяжущими | В зависимости от наличия местных строительных материалов |
10 Междупутье железнодорожных путей, железнодорожные переезды и полосы над магистральными инженерными сетями (кроме сетей ливневой канализации) | Соответственно нормативной нагрузке, назначению площадки | постоянные | Сборные железобетонные плиты, асфальтобетонные | Предпочтительнее сборные железобетонные плиты |
временные | Сборные железобетонные плиты |
11 Междупутье подкрановых путей | Соответственно нормативной нагрузке, назначению площадки | постоянные | Сборные железобетонные плиты, монолитные цементобетонные, асфальтобетонные | Предпочтительнее сборные железобетонные плиты |
временные | Сборные железобетонные плиты |
12 Тротуары для пешеходов и площадки благоустройства | - | | | По соответствующим строительным нормам и правилам |
Примечания 1 Выбор расчетной схемы нагрузки КВ-70 или КВ-35 для площадок п. 1 производится при конкретном проектировании с учетом влияния складируемых грузов (контейнеров) на покрытие в зоне работы машин безрельсового транспорта. 2 При отсутствии скального грунта покрытия площадок навалочных грузов (п. 3) в тех случаях, когда не применяется грейферное оборудование, допускается (при соответствующем обосновании) выполнять из спланированного и уплотненного укаткой естественного грунта. 3 Под скальным грунтом понимается разрыхленная взрывным способом прочная скала (горная масса) без включения мягких пород (вскрыша и т.д). 4 Для площадок п. 5 при использовании грейферного оборудования и необходимости устройства временных покрытий последние устанавливаются из сборных железобетонных плит либо (при достаточно плотных грунтах) заменяются спланированным и уплотненным (укаткой) естественным грунтом. 5 Для площадок химических грузов, агрессивных к бетону и асфальту, виды покрытия устанавливаются при проектировании. 6 Для площадок портовых механических мастерских (п. 8) равномерно распределенная нагрузка принимается равной 40 кПа (4,0 тс/м 2). 7 Схемы нормативных эксплуатационных нагрузок Н-10 и Н-30 приведены ниже (в соответствии со СНиП 2.05.03), а КВ-70 и КВ-35 показаны в РД 31.31.46-88 [24]. Схемы нормативных эксплуатационных нагрузок для расчета покрытий |
(рекомендуемое)
ПЕРСОНАЛ ПОРТА И СОСТАВ САНИТАРНО-БЫТОВЫХ ПОМЕЩЕНИЙ
П.1 Рекомендации по расчету численности и портовых рабочих
П.1.1 Численность портовых рабочих рассчитывается в соответствии с расстановкой персонала в производственном процессе порта отдельно по категориям:
- докеров-механизаторов, занятых на погрузочно-разгрузочных работах (ПРР);
- рабочих по техническому обслуживанию и ремонту перегрузочной техники;
- вспомогательных рабочих по обслуживанию рабочих мест основного персонала и уборке мусора;
- береговых матросов, осуществляющих швартовные операции.
П.1.2 Общая численность докеров-механизаторов, занятых на ПРР (N, чел.), определяется в следующей последовательности шагов.
1-й шаг: Рассчитывается трудоемкость перевалки грузов за навигацию (W) по формуле:
где Qi - объем перевалки груза за навигацию по i-му варианту (технологической схеме), тонны;
ni - установленная численность докеров-механизаторов по i-му варианту (технологической схеме), чел.;
Pi - комплексная норма выработки, т/смена.
Примечание - Значение показателей ni и Pi для конкретного проекта устанавливается расчетом или принимается по РД 31.93.13-88 "Комплексные нормы выработки и времени на погрузочно-разгрузочных работах в морских портах". Объем перевалки груза за навигацию по i-му варианту (технологической схеме) рассчитывается исходя из заданного грузооборота порта по направлению перевозок (экспорт, импорт, каботаж), доли каждого вида транспорта в доставке в порт и вывозе из порта грузов, доли прямого варианта.
2-й шаг: Определяется количество докеров, обеспечивающих освоение заданного грузооборота порта (терминала), Nосв, исходя из эффективного фонда рабочего времени докера-механизатора за навигацию (Tбрв) и трудоемкости перевалки грузов, по формуле:
Nосв = W/Tбрв.
3-й шаг: Оценивается возможность расчетной численностью Nосв обеспечить расстановку работников по технологической схеме, требующей максимальное (по сравнению с другими схемами) количество докеров-механизаторов nк, и принимается окончательное решение по численности докеров-механизаторов порта:
N = Nосв при Nосв > nк или
N = nк при Nосв < nк.
Эффективный фонд рабочего времени одного рабочего для портов с круглогодовой навигацией в течение года принимается по
табл. П.1
Таблица П.1
Эффективный годовой фонд времени работы рабочих
Районы размещения предприятий | Продолжительность рабочей недели, ч | Продолжительность отпуска одного рабочего, дни | Номинальный годовой фонд времени работы, ч | Эффективный годовой фонд времени работы рабочих, ч |
Всего | В том числе | При режиме работы | При режиме работы |
основного (минимального) | дополнительного | В две смены | В три смены | В четыре смены | В одну или две смены | В три смены | В четыре смены |
1 Во всех районах Российской Федерации, кроме районов Крайнего Севера и приравненных к ним местностей, при продолжительности рабочего времени: | | | | | | | | | | |
- нормальной | 40 | 24 | 24 | - | 2000 | - | - | 1720 | - | - |
38,3 | 24 | 24 | - | - | 1920 | - | - | 1650 | - |
- сокращенной | 36 | 24 | 24 | - | 1820 | 1820 | 1820 | 1570 | 1570 | 1570 |
2 В районах Крайнего Севера при продолжительности рабочего времени: | | | | | | | | | | |
- нормальной | 40 | 45 | 24 | 21 | 2000 | - | - | 1580 | - | - |
| 38,3 | 45 | 24 | 21 | - | 1920 | - | - | 1520 | - |
- сокращенной | 36 | 45 | 24 | 21 | 1820 | 1820 | 1820 | 1440 | 1440 | 1440 |
3 В местностях, приравненных к районам Крайнего Севера, при продолжительности рабочего времени: | | | | | | | | | | |
нормальной | 40 | 38 | 24 | 14 | 2000 | - | - | 1630 | - | - |
| 38,3 | 38 | 24 | 14 | - | 1920 | - | - | 1560 | - |
сокращенной | 36 | 38 | 24 | 14 | 1820 | 1820 | 1820 | 1480 | 1480 | 1480 |
4 В остальных районах Севера, где установлен коэффициент и процент надбавки к районным тарифам: | | | | | | | | | | |
- нормальной | 40 | 31 | 24 | 7 | 2000 | - | - | 1670 | - | - |
| 37,3 | 31 | 24 | 7 | - | 1920 | - | - | 1610 | - |
- сокращенной | 36 | 31 | 24 | 7 | 1820 | 1820 | 1820 | 1520 | 1520 | 1520 |
Примечания 1 Указанные в таблице эффективные фонды времени работы рабочих определены из расчета основного (минимального) отпуска 24 рабочих дня при шестидневной рабочей неделе. Учитывая, что законом определяется продолжительность минимального отпуска не менее 24 рабочих дней, для предприятий негосударственной формы собственности и других предприятий, производственные и финансовые возможности которых позволяют устанавливать отпуск большей продолжительности, эффективные фонды времени должны соответственно уточняться. 2 Эффективный фонд рабочего времени для портов с сезонной навигацией устанавливается пропорционально ее доле от календарного года по эффективному фонду рабочего времени для портов с круглогодовой навигацией. |
П.1.3 Общая численность рабочих по техническому обслуживанию и ремонту перегрузочной техники определяется в соответствии с РД 31.93.150-87 "Нормативы численности по техническому обслуживанию и ремонту перегрузочных машин, оборудования".
П.1.4 Общая численность вспомогательных рабочих по обслуживанию рабочих мест основного персонала и уборке мусора определяется в процентах от численности докеров-механизаторов, занятых на ПРР, по
таблице П.2.
Таблица П.2
Доля вспомогательных рабочих в зависимости от численности
докеров-механизаторов
Численность докеров-механизаторов, занятых на ПРР, чел. | Процент вспомогательных рабочих от численности докеров-механизаторов, занятых на ПРР, % |
До 100 | 20,0 |
От 100 до 300 | 15,0 |
Свыше 300 | 12,0 |
П.1.5 Общая численность береговых матросов Nбм, осуществляющих швартовные операции на причалах порта (терминала), определяется исходя из количества швартовных операций Nшо, трудоемкости одной операции tшо в человеко-часах и эффективного фонда рабочего времени одного работника за год Fшо, час. по формуле:
Nбм = Nшо·tшо/Fшо. (1)
Количество швартовных операций вычисляется по количеству судо-заходов, умноженному на коэффициент Kшо, учитывающий, кроме операций швартовки и отшвартовки судна, перестановку от одного причала к другому.
Трудоемкость швартовной операции рассчитывается исходя из количества одновременно участвующих в швартовке береговых матросов и продолжительности швартовной операции, включая в нее время доставки швартовщиков к месту проведения швартовной операции, время ожидания начала швартовки, а затем и время доставки швартовщиков к месту их постоянной дислокации.
(справочное)
СХЕМЫ МЕХАНИЗАЦИИ ДЛЯ ПРИМЕНЕНИЯ НА ТЕРМИНАЛАХ
УНИВЕРСАЛЬНОГО НАЗНАЧЕНИЯ
Р.1 Схема механизации N 1
Р.1.1 Область применения схемы
Терминалы универсального назначения с крановой схемой механизации для генеральных (смешанных) грузов крытого хранения применяются при оперативном (краткосрочном) хранении грузов (см.
рисунок Р.1).
Примечание - На
рисунках Р.1 -
Р.6 вместо портальных кранов могут использоваться мобильные краны, как с порталом, так и без него. Выбор типа крана определяется при конкретном проектировании.
Примечание: показанные на схеме погрузочные столы в зависимости от конкретных условий проектируемого порта могут быть заменены разборными рампами.
Рисунок Р.1 - Схема механизации N 1
Р.2 Схема механизации N 2
Р.2.1 Область применения схемы
Терминалы универсального назначения с крановой схемой механизации для генеральных (смешанных) грузов преимущественно крытого хранения. Применяется при недостаточной глубине территории терминала и необходимости большей емкости прикордонного склада (см.
рисунок Р.2).
Примечание: 1. Показанные на схеме погрузочные столы в зависимости от конкретных условий проектируемого порта могут быть заменены разборными рампами. 2. Габариты грузовых лифтов должны соответствовать размерам складских погрузчиков, используемых в технологической схеме. 3. Количество складских погрузчиков выбрано с учетом использования грузового лифта.
Рисунок Р.2 - Схема механизации N 2
Р.3 Схема механизации N 3
Р.3.1 Область применения схемы
Терминалы универсального назначения с крановой схемой механизации для грузов открытого хранения металлогрузов, биг-бэгов, оборудования, включая тяжеловесы и т.д. (см.
рисунок Р.3).
Рисунок Р.3 - Схема механизации N 3
Р.4 Схема механизации N 4
Р.4.1 Область применения схемы
Терминалы универсального назначения с крановой схемой механизации для круглого леса (см.
рисунок Р.4)
Рисунок Р.4 - Схема механизации N 4
Р.5 Схема механизации N 5
Р.5.1 Область применения схемы
Специализированные терминалы для экспортных пиломатериалов, подлежащих крытому хранению, при переработке в пакетах (см.
рисунок Р.5).
Рисунок Р.5 - Схема механизации N 5
Р.6 Схема механизации N 6
Р.6.1 Область применения схемы
Терминалы универсального назначения с крановой схемой механизации для навалочных грузов открытого хранения угля, руды и т.д., поступающих в порт водным транспортом судами дедвейтом до 25000 т и отгружаемых на железную дорогу, при грузообороте до 1200 - 1400 тыс. т в год (см.
рисунок Р.6).
Рисунок Р.6 - Схема механизации N 6
Р.7 Схема механизации N 7
Р.7.1 Область применения схемы
Терминалы универсального назначения с крановой схемой механизации для зерновых грузов, поступающих в порт водным транспортом судами дедвейтом до 25000 т и отгружаемых на железную дорогу, при грузообороте до 1200 - 1400 тыс. т в год (см. карту N 1401 типового технологического процесса выгрузки зерна насыпью в
РД 31.11.25.00-96 [60]).
(справочное)
ОБРАЗЦЫ СТЕНДЕРОВ И СТАНДАРТНАЯ СХЕМА
РАСПОЛОЖЕНИЯ МАНИФОЛЬДА
С.1 Стендеры
Стендеры используются для перевалки наливных грузов в танкеры и с танкеров. Стендеры различаются по способу управления (ручное и автоматическое), диаметру труб и предназначения (по типу груза). Промышленностью выпускаются стендеры диаметром от 100 до 600 мм. Для перевалки сжиженного газа используются стендеры с паровой установкой (для охлаждения газа при перекачке), а для вязких продуктов (например, мазута) для его подогрева.
На
рисунке 1 показан стендер с ручным управлением. На
рисунке 2 - с автоматическим управлением. На
рисунке 3 стендер с паровой установкой и автоматическим управлением.
Краткая характеристика стендеров представлена в
таблице С.1.
Таблица С.1
Краткая характеристика стендеров
Основные параметры | Ду - 600 (500) | Ду - 400 | Ду - 300 |
Диаметр трубопроводов стендера, мм | 610/508 | 406 | 305 |
Пропускная способность, м3/ч | 10 000/6 500 | 4 000 | 2500 |
Допускаемое давление в трубопроводе, кг/см2 | 2,46 | 2,46 | 2,46 |
С.2 Стандартная схема расположения манифольда для танкера дедвейтом от 60 000 до 160 000 т
| | ИС МЕГАНОРМ: примечание. Нумерация рисунков дана в соответствии с официальным текстом документа. | |
Рисунок С.2
(рекомендуемое)
РАСЧЕТ ПРОПУСКНОЙ СПОСОБНОСТИ ЖЕЛЕЗНОДОРОЖНЫХ
И АВТОМОБИЛЬНЫХ ГРУЗОВЫХ ФРОНТОВ
Т.1 Пропускная способность железнодорожных и автомобильных грузовых фронтов исходя из суточной интенсивности обработки железнодорожной подачи, или автомобилей на грузовой площадке, продолжительности эксплуатационного периода, сезонной неравномерности перевозок, коэффициента использования эксплуатационного периода.
Т.2 Интенсивность обработки железнодорожной подачи (тыс. т/сутки) определяется по формуле:
tман.ж - время на маневровые работы, ч;
tвсп.ж - дополнительное время ожидания подачи вагонов под погрузочно-разгрузочные работы, ч.
Т.3 Время обработки железнодорожной подачи определяется по формуле:
где Aж - количество вагонов в подаче, ед.;
Дж - полезная грузоподъемность вагонов, т;

- эксплуатационная производительность одной технологической линии, т/ч;
tсм - продолжительность смены, ч;
tо - продолжительность обеденного перерыва, ч;
nлж - число технологических линий, ед.
Т.4 Эксплуатационная производительность одной технологической линии, состоящей из машин циклического действия, принимается равной производительности лимитирующего звена и определяется по формуле:
где qп - масса груза в одном подъеме (укрупненном грузовом месте) определяемая исходя из принятой технологии погрузочно-разгрузочных работ, т;
nл - число перегрузочных машин, работающих в лимитирующем звене линии, ед.;
Kс - коэффициент перехода от технической к эксплуатационной производительности технологической линии, численные значения которого принимаются в зависимости от способа производства погрузочно-разгрузочных работ равными:
- при механизированном способе производства Kс = 0,75;
- при автоматизированном Kс = 0,9;
tм - продолжительность цикла машин, с.
Т.5 Необходимая длина железнодорожной грузовой оперативной площадки L
ж и длина железнодорожного грузового фронта

определяются полезной длиной пути для расстановки вагонов одной подачи, числом железнодорожных грузовых оперативных площадок и шириной проездов, пересекающих эти пути, по формулам
где Aж - количество вагонов в подаче, ед.;
bпр - ширина проезда, м;
lваг - длина вагона, м;
0,95 - коэффициент использования полезной длины грузовых путей.
Количество вагонов в одной подаче принимается исходя из вместимости пути с учетом количества кранов на причале (один кран обычно обрабатывает два вагона).
Ширина железнодорожной грузовой оперативной площадки определяется в зависимости от схемы механизации грузовых работ, необходимости размещения железнодорожных и подкрановых путей, буферных площадок, проездов.
Т.6 Погрузка (разгрузка) автомобилей производится перегрузочными машинами из числа используемых для складских работ.
Т.7 Интенсивность обработки автомобилей на одной автомобильной грузовой оперативной площадке определяется по формуле
где nсм.а - число смен работы автомобильного фронта в сутки;
tман.а - время на маневрирование автомобиля при установке автомобиля под погрузку (разгрузку), ч;
tсм.а - продолжительность смены, ч.
Т.8 Время обработки автомобиля определяется по формуле
где Да - загрузка автомобиля, т;
Pла - эксплуатационная производительность одной технологической линии (т/ч);
tсм - продолжительность смены, ч;
tо - продолжительность обеденного перерыва, ч.
(справочное)
СХЕМЫ МЕХАНИЗАЦИИ ДЛЯ СПЕЦИАЛИЗИРОВАННЫХ ТЕРМИНАЛОВ
У.1 Схемы механизации для терминалов, специализированных для навалочных и насыпных грузов
У.1.1 Специализированные терминалы для навалочных грузов открытого хранения (угля, руды и т.п.) (см.
рисунок У.1.1).
У.1.2 Специализированные терминалы для навалочных грузов закрытого хранения (химических грузов, концентратов и т.п.) (см.
рисунок У.1.2).
У.1.3 Схема механизации для перевалки зерна, поступающего в порт водным и отправляемого железнодорожным транспортом, грузооборот 2,0 млн. т/год (см.
рисунок У.1.3).
Рисунок У.1.1 - Схема механизации N 1
Рисунок У.1.2 - Схема механизации N 2
Рисунок У.1.3 - Схема механизации N 3
У.2 Схемы механизации для терминалов, специализированных для контейнерных грузов
У.2.1 - У.2.2 Схема механизации N 1 с портальными погрузчиками и размещением контейнеров перпендикулярно линии кордона (см.
рисунки У.2.1 -
У.2.2).
У.2.3 - У.2.4 Схема механизации N 1 с портальными погрузчиками и размещением контейнеров параллельно линии кордона (см.
рисунки У.2.3 -
У.2.4).
У.2.5 - У.2.6 Схема механизации N 2 с пневмоколесными кранами (см.
рисунки У.2.5 -
У.2.6).
У.2.7 - У.2.8 Схема механизации N 3 с козловыми перегружателями на рельсовом ходу (см.
рисунки У.2.7 -
У.2.8).
Рисунок У.2.1 - Схема механизации N 1. План
Рисунок У.2.2 - Схема механизации N 1. Разрезы
Рисунок У.2.3 - Схема механизации N 1. План
Рисунок У.2.4 - Схема механизации N 1. Разрезы
Рисунок У.2.5 - Схема механизации N 2. План
Рисунок У.2.6 - Схема механизации N 2. Разрезы
Рисунок У.2.7 - Схема механизации N 3. План
Рисунок У.2.8 - Схема механизации N 3. Разрезы
У.3 Схемы механизации для терминалов, специализированных для накатных грузов
У.3.1 - У.3.2 Схема механизации N 1 с использованием тягачей с полуприцепами (см.
рисунки У.3.1 -
У.3.2).
У.3.3 - У.3.4 Схема механизации N 2 с использованием фронтальных погрузчиков (см.
рисунки У.3.3 -
У.3.4).
У.3.5 - У.3.6 Схема механизации N 3 с использованием портальных погрузчиков (см.
рисунки У.3.5 -
У.3.6).
Рисунок У.3.1 - Схема механизации N 1. План
Рисунок У.3.2 - Схема механизации N 1. Разрезы
Рисунок У.3.3 - Схема механизации N 2. План
Рисунок У.3.4 - Схема механизации N 2. Разрезы
Рисунок У.3.5 - Схема механизации N 3. План
Рисунок У.3.6 - Схема механизации N 3. Разрезы
(справочное)
ОСНОВНЫЕ ПАРАМЕТРЫ КРУПНОТОННАЖНЫХ КОНТЕЙНЕРОВ
И ТЕХНИЧЕСКАЯ ПРОИЗВОДИТЕЛЬНОСТЬ ПОРТАЛЬНЫХ ПОГРУЗЧИКОВ
Таблица Ф.1
Основные параметры крупнотоннажных контейнеров
Обозначение типоразмера | Размеры, мм | Максимальная масса брутто, т | Внутренняя полезная вместимость, м3, не менее |
длина | ширина | высота |
IAA | 12192 | 2438 | 2591 | 30,48 | 65,60 |
IA | 12192 | 2438 | 2438 | 30,48 | 61,30 |
ICC | 6058 | 2438 | 2591 | 24,00 | 32,10 |
IC | 6058 | 2438 | 2438 | 24,00 | 30,00 |
Таблица Ф.2
Техническая производительность (конт./ч) портальных
контейнерных погрузчиков и портовых тягачей
с полуприцепами для одного причала
Тип машин | Техническая производительность машин (конт./ч) для судов вместимостью (конт.) |
До 700 | 701 - 1400 | 1401 - 2500 | Более 2500 |
Портальный контейнерный погрузчик | 15 - 20 | 14 - 20 | 12 - 19 | 11 - 19 |
Портовый тягач с полуприцепом | 13 | 12 - 13 | 10 - 11 | 10 |
Примечание - При трех и более причалах расчетное количество машин умножается на коэффициент смежности, равный 0,7 - 0,8. |
(рекомендуемое)
ПАРАМЕТРЫ СКЛАДА КОМПЛЕКТАЦИИ
Х.1 Расчет параметров склада комплектации
Х.1.1 Ширина склада комплектации может приниматься от 12 до 72 м, кратной 6 м.
Х.1.2 Если расчетная длина склада при наибольшей его ширине (72 м) превосходит 150 м, то необходимо предусматривать два склада комплектации.
Х.1.3 Полезную высоту склада (от пола до низа несущих конструкций покрытия) надлежит принимать равной 7,8 м. Склады высотой менее 7,8 м (но не ниже 6 м) проектируются при надлежащем обосновании.
Х.1.4 Количество ворот в складе комплектации определяется при проектировании в зависимости от требуемой интенсивности грузовых работ и принятой технологии складирования грузов.
Расстояние между воротами в складе комплектации следует принимать равным 6 м, в отдельных случаях допускается устройство ворот через 12 м.
Х.1.5 Высота проема ворот принимается равной 5,4 м, ширина - 4,8 м. При реконструкции существующих складов допускается пониженная высота проемов, но не менее 4,2 м.
Х.1.6 Площадь склада комплектации определяется по формуле
где Eсс - расчетная вместимость склада, т;
q - технологическая нагрузка от складируемого груза, т/м2;
Kи - коэффициент использования площади склада.
Х.1.7 Вместимость склада комплектации E
сс (тыс. т) может быть принята по
рисунку Х.1 в зависимости от объема перегрузки неконтейнеризированных грузов, проходящих склад, Q
с (тыс. т/г.). Допускается незначительное отклонение принимаемой вместимости склада от значения, полученного по графику, в зависимости от конструктивных особенностей склада и характера складируемого груза.
Рисунок Х.1 - График для определения
вместимости склада комплектации
Х.1.8 Технологическую нагрузку q следует принимать по
таблице Х.1.1.
Высота склада, м | Нормативная эксплуатационная нагрузка на пол склада, тс/м2 | Технологическая нагрузка по видам плавания, т/м2 |
экспорт, импорт | малый каботаж |
7,8 | 6 | 2,5 | - |
6 | 6 | 2,2 | 1,75 |
Х.1.9 Коэффициент K
и, использования площади склада, следует принимать в соответствии с
таблицей Х.1.2.
Ширина склада, м | Kи |
менее 24 | 0,65 |
24 - 30 | 0,70 |
более 30 | 0,75 |
Х.1.10 У склада комплектации со стороны сортировочной площади располагается площадка комплектации контейнеров.
При доставке контейнеров на площадку комплектации портовыми тягачами с полуприцепами у склада комплектации, как правило, предусматривается рампа. Ширина рампы принимается равной 1,5 м при наличии продольного проезда для вилочных погрузчиков внутри склада комплектации или 6,0 м, если проезд для погрузчиков предусмотрен вне склада.
На рампе должны быть предусмотрены мостики для въезда вилочных погрузчиков в контейнер.
В отдельных случаях склад комплектации может выполняться безрамповым, при этом необходимо предусматривать дополнительные перегрузочные машины, например фронтальные контейнерные погрузчики.
При доставке контейнеров на площадку комплектации портальными контейнерными погрузчиками склад комплектации выполняется безрамповым.
Х.1.11 Для погрузки-выгрузки железнодорожных вагонов и грузовых автомобилей у склада комплектации с противоположной стороны от площадки комплектации контейнеров устраивается рампа. Ширина этой рампы принимается равной 7,0 м.
У рампы для обработки вагонов располагаются два железнодорожных пути, один из которых - погрузочно-выгрузочный, другой - подъездной.
Х.1.12 При прямой перегрузке грузов из контейнеров в вагоны (грузовые автомобили) и обратно устраивается рампа прямой перегрузки. Ширина рампы должна быть не менее 9,0 м.
Х.1.13 Высоту стационарных рамп крытых складов, являющихся их конструктивной частью, в зависимости от назначения рампы принимают:
для обработки контейнеров, установленных на ролл-трейлерах, и ролл-трейлеров - 700 мм от верха покрытия территории;
прирельсовых для обработки как универсальных, так и рефрижераторных вагонов - 1300 мм от уровня верха головки рельсов;
для обработки автотранспорта и контейнеров, установленных на трейлерах, - 1200 мм от верха покрытия территории.
Х.1.14 Расстояние от рампы до оси железнодорожного пути должно приниматься: при обработке универсальных крытых вагонов - 2000 мм, при обработке универсальных и рефрижераторных вагонов - 2500 мм.
Х.1.15 Рампы склада комплектации и прямой перегрузки грузов оборудуются навесами для возможности производства работ в непогоду.
Х.1.16 Для механизации грузовых работ с неконтейнеризированными грузами применяются вилочные погрузчики с достаточной высотой свободного подъема вил и боковым смещением грузовой каретки.
Х.1.17 Нормативную эксплуатационную нагрузку от складируемого груза для расчета полов склада следует принимать равной 6 тс/м2.
Х.1.18 Нагрузку от средств механизации в складе комплектации следует принимать от расчетных типов машин в зависимости от схемы механизации внутри складских работ.
Х.1.19 Эксплуатационная производительность (расчетная) и состав машин в технологической линии для перегрузки неконтейнеризированных, частично пакетированных, грузов принимается равной:
- при погрузке (разгрузке) вагона со склада (на склад) или контейнера (в контейнер), а также при погрузке-разгрузке контейнера со склада (на склад) - 125 т/смен при двух погрузчиках;
- при погрузке (разгрузке) автомобиля со склада (на склад) или из контейнера (в контейнер), а также при перекладке груза на склад - до 100 т/смен при одном погрузчике.
Х.1.20 Количество технологических линий на складе комплектации определяется при проектировании по среднесуточному объему работ в наиболее напряженную смену суток.
Х.1.21 Количество вилочных погрузчиков на складе комплектации определяется с учетом коэффициента, учитывающего затраты времени на ремонт, и коэффициента сменности, учитывающего взаимозаменяемость одинаковых машин на складе комплектации, равного 0,9.
(справочное)
ПРОЕКТНЫЕ НОРМЫ ВРЕМЕНИ СТОЯНКИ ТАНКЕРОВ
Таблица Ц.1
Проектные судо-часовые нормы налива танкеров
| | ИС МЕГАНОРМ: примечание. Сноска в таблице дана в соответствии с официальным текстом документа. ИС МЕГАНОРМ: примечание. Значения в третьей графе таблицы даны в соответствии с официальным текстом документа. | |
Нефтеналивные грузы | Дедвейт, тыс. т |
| 10,0 - 17 | 10,0 - 27,0 | 27,0 - 37,0 | 37,0 - 41,0 | 41,0 - 45,0 | 45,0 - 55,0 | 55,0 - 80,0 | 80,0 - 100,0 | 100,0 - 150,0 | 150,0 - 200,0 | 200,0 - 300,0 | Свыше 300,0 |
Налив, т/ч |
Нефть | 2000 | 2500 | 3000 | 3000 | 4000 | 4500 | 6000 | 8000 | 12000 | 17500 | 25000 | <*> |
Мазут | 2000 | 2500 | 3000 | 3000 | 4000 | 4500 | 6000 | 8000 | 12000 | 17500 | 25000 | |
Моторное топливо | | | | | | | | | | | | |
Дизтопливо | 2000 | 2500 | 3000 | 3000 | 4000 | 4500 | 6000 | 8000 | 12000 | - | | |
Реактивное топливо | 1500 | 1500 | 1700 | 2200 | 3000 | 3300 | 4000 | 5800 | - | - | | |
Керосины | 1500 | 1500 | 1700 | 2200 | 3000 | 3300 | 4000 | 5800 | - | - | | |
Бензины | 1300 | 1300 | 1500 | 2000 | 2500 | 2700 | - | - | - | - | | |
Масла специальные (трансформаторные, веретенное и др.) | 1200 | 1200 | - | - | - | - | - | - | - | - | | |
Таблица Ц.2
Проектные судо-часовые нормы слива танкеров
| | ИС МЕГАНОРМ: примечание. Сноска в таблице дана в соответствии с официальным текстом документа. | |
Нефтеналивные грузы | Суммарная производительность судовых грузовых насосов, тыс. м3/ч |
2,0 - 2,5 | 2,5 - 3,5 | 3,5 - 5,0 | 7,5 | 10,0 | 12,0 | 15,0 | более 15,0 |
Слив, м3/ч |
Нефть | 1600 | 2100 | 2800 | 5600 | 7500 | 9000 | 12000 | <*> |
Мазут | 1600 | 2100 | 2800 | 5600 | 7500 | 9000 | 12000 | - |
Моторное топливо | 1600 | 2100 | 2800 | 5600 | 7500 | 9000 | 12000 | - |
Дизтопливо | | | | | | | | |
Реактивное топливо | 1550 | 2000 | 2600 | 5200 | 6900 | - | - | - |
Керосины | 1360 | 1800 | - | - | - | - | - | - |
Бензины | - | - | - | - | - | - | - | - |
Масла специальные (трансформаторные, веретенное и др.) | - | - | - | - | - | - | - | - |
Примечание - Данные, приведенные в
таблицах Ц.1 и
Ц.2, могут быть использованы только на начальных стадиях проектирования. При детальном проектировании терминалов для наливных грузов в расчетах норм налива-слива необходимо учитывать: вид(ы) груза(ов), район размещения, метеоусловия, характеристики и типы расчетных судов, производительность судовых и береговых насосных станций.
Таблица Ц.3
Продолжительность не совмещаемых с грузовыми
вспомогательных производственных операций танкера, ч
Вид плавания | Дедвейт судна, т | Весенне-летний период | Осенне-зимний период |
налив | слив | налив | слив |
Заграничное | до 5000 | 5,0 | 5,0 | 6,5 | 6,0 |
5001 - 15000 | 5,5 | 6,0 | 7,5 | 7,5 |
15001 - 30000 | 6,5 | 7,5 | 9,0 | 9,0 |
30001 - 50000 | 7,5 | 9,0 | 10,0 | 10,5 |
50001 - 100000 | 9,0 | 10,5 | 12,0 | 12,5 |
100001 - 150000 | 10,5 | 11,0 | 14,0 | 14,0 |
Более 150000 | 11,0 | 13,0 | 14,5 | 15,5 |
Каботаж | до 3000 | 2,0 | 2,5 | 2,0 | 2,5 |
3001 - 5000 | 2,5 | 3,0 | 2,5 | 3,0 |
5001 - 15000 | 3,0 | 4,0 | 3,5 | 4,5 |
15001 - 30000 | 4,0 | 5,0 | 4,5 | 5,5 |
Более 30000 | 5,0 | 6,0 | 5,5 | 6,5 |
(справочное)
СУДО-ЧАСОВЫЕ НОРМЫ НАЛИВА ПЛАВБУНКЕРОВЩИКОВ
И СЛИВА С НЕФТЕМУСОРОСБОРЩИКОВ
Таблица Ш.1
Судо-часовые нормы налива плавбункеровщиков
и слива с нефтемусоросборщиков
Наименование операции | Судо-часовые нормы не менее, т/ч |
Налив плавбункеровщиков DWT от 1000 до 1600 т всеми сортами топлива | 300 |
Налив плавбункеровщиков DWT от 3000 до 4000 т всеми сортами топлива | 700 |
Слив с нефтемусоросборщиков: | |
- льяльных вод; | 100 |
- нефтеостатков | 20 |
(справочное)
ТИПОВОЙ СОСТАВ ИСХОДНЫХ ДАННЫХ, ПРЕДСТАВЛЯЕМЫЙ
ЗАСТРОЙЩИКОМ (ТЕХНИЧЕСКИМ ЗАКАЗЧИКОМ)
Исходные данные, представляемые застройщиком (техническим заказчиком):
- сведения о производственной программе терминала;
- грузооборот на расчетный год ввода терминала в эксплуатацию и на перспективу и его распределение по видам груза, видам транспорта и направлениям перевозок;
- физико-химические и транспортные характеристики груза;
- судооборот с распределением его по типам судов с указанием главных размерений линейки;
- сезонность перевозок по видам транспорта;
- продолжительность навигации для судов морского и речного транспорта;
- режим работы порта (количество смен, продолжительность рабочего дня);
- сроки хранения груза на складе;
- особые требования к хранению и транспортировке грузов;
- градостроительный план земельного участка или топосъемка территории, отводимой под строительство терминала;
- технические условия на подключение к сетям инженерно-технического обеспечения;
- условия примыкания к железнодорожным путям и автомобильным дорогам общего и не общего пользования;
- условия обеспечения судов электроэнергией, питьевой водой, средствами связи;
- условия технологического обеспечения надлежащей стоянки судов у причалов терминала, включая способы бункеровки судов, подачи предметов материально-технического снабжения, приема с судов всех видов мусора, балластных и льяльных вод, что необходимо для обеспечения экологической безопасности эксплуатации терминала.
Примечания
1 В задании на проектирование следует предусматривать проведение предпроектных исследований для обеспечения полноты и качества исходных данных и определять необходимость проведения имитационного моделирования для оптимизации параметров терминала.
2 Для обеспечения экологической безопасности в задании на проектирование следует задавать наиболее приемлемый способ приема судовых отходов - с берега или с моря плавсредствами различного типа, способ их переработки - в порту или с вывозом на городские очистные сооружения, включая переработку отходов, связанных с деятельностью порта (остатки груза, ливневые стоки и т.п.).
3 Для определения целесообразности концентрации одного или нескольких совместимых видов грузов на терминале, специализированном для навалочных и насыпных грузов, при проведении предпроектных исследований следует выполнить анализ грузопотоков навалочных и насыпных грузов и экологической обстановки. При этом необходимо стремиться к созданию многоцелевого (многофункционального) терминала, способного производить погрузку/разгрузку судов другим видом груза на этом же или на соседнем причале.
4 Для определения целесообразности специализации площадок для одного или нескольких совместимых видов грузов на одном терминале для обработки накатных грузов следует выполнить анализ грузопотоков накатных грузов и экологической обстановки. При этом необходимо стремиться к созданию многоцелевого (многофункционального) терминала, способного производить погрузку/разгрузку судов с различными видами накатного груза и классами опасности.
(справочное)
СУДО-ЧАСОВЫЕ НОРМЫ ПО НАЛИВУ-СЛИВУ СУДОВ
Таблица Э.1
Химические наливные грузы
Перегрузка химических наливных грузов через береговые емкости-хранилища |
Наименование груза | Партионность, т | Судо-часовая норма, т/с-ч |
Отправление | Прибытие | Налив | Слив |
1 | 2 | 3 | 4 | 5 |
1 Суперфосфорная кислота | - | до 5000 | | 700 |
| 5000 - 10000 | | 1000 |
| 25000 - 45000 | | 2000 |
2 Метанол | 1500 | - | 250 | - |
| 10000 | - | 1000 | - |
| 18000 | - | 1500 | - |
3 Дихлорэтан | 2500 - 4500 | - | 500 | - |
4 Скипидар | 1000 - 1500 | - | 180 | - |
5 Бутанол | - | 750 | - | 120 |
6 Изобутанол | - | 750 | - | 120 |
7 Бутилацетат | - | 750 | - | 140 |
8 Стирол | 1000 | - | 120 | - |
9 Ксилол (разный), ортоксилол, параксилол | 1500 | - | 160 | - |
10 Изопропилбензол | 1000 | - | 120 | - |
11 Серная кислота | 3000 | - | 220 | - |
12 Жирные кислоты | 1500 | - | 150 | |
13 Формалин | 750 - 1500 | - | 150 | - |
14 Масло каменноугольное | 1500 - 5000 | - | 500 | - |
15 Нитрил акриловой кислоты | 1000 - 1500 | - | 150 | - |
2000 - 5000 | - | 250 | - |
Примечание - Системы и устройства для перегрузки химических грузов наливом по прямому варианту "судно - ж.д. цистерна" или "ж.д. цистерна - судно" с учетом пятидесяти - шестидесятитонных ж.д. цистерн должны обеспечивать судо-часовые нормы не ниже 100 т/ч. |
Таблица Э.2
Пищевые наливные грузы
Перегрузка пищевых наливных грузов через береговые емкости-хранилища |
Наименование груза | Партионность, т | Судо-часовая норма, т/с-ч |
Отправление | Прибытие | Налив | Слив |
1 | 2 | 3 | 4 | 5 |
1 Растительные масла: | | | | |
1.1 Подсолнечное масло | 10000 - 12000 | до 10000 | 500 | 500 |
| 10001 | | |
| 12000 | | 700 |
| 12001 | | |
| 25000 | | 1200 |
1.2 Хлопковое масло | 3000 - 3800 | 30001 | | |
| 38001 | 240 | 500 |
1.3 Патока | 10000 | - | 700 | - |
1.4 Льняное, арахисовое, соевое, оливковое и др. | | 5000 | | |
- | 10000 10001 | - | 500 |
| 12000 | - | 700 |
| 12001 | | |
| 25000 | - | 1200 |
2 Жир животный | - | 10000 | | |
| 15000 | - | 500 |
3 Спирты | | | | |
3.1 Спирт этиловый (сырец) | - | 10000 | - | 450 |
3.2 Спирт коньячный | - | 500 | - | 100 |
4 Вино | - | 1200 | | |
| 1500 | - | 100 |
| 2400 | | |
| 4500 | - | 200 |
Таблица Э.3
Перегрузка пищевых наливных грузов по прямому варианту
(ж.д. цистерна - судно; судно - ж.д. цистерна)
Наименование груза | Партионность, т | Судо-часовая норма, т/с-ч |
Отправление | Прибытие | Налив | Слив |
1 | 2 | 3 | 4 | 5 |
1 Растительные масла: | | | | |
- с наличием "нулевого" резервуара | - | - | - | 400 |
- без "нулевого" резервуара | - | - | 180 | 180 |
2 Коньячный спирт (без "нулевого" резервуара) | - | - | - | 100 |
3 Этиловый спирт (без "нулевого" резервуара) | - | - | - | 100 |
Примечание - Интенсивности слива-налива груза по прямому варианту приведены с учетом пятидесяти - шестидесятитонных ж.д. цистерн. |
(рекомендуемое)
ПРИБЛИЖЕННЫЙ СПОСОБ РАСЧЕТА ОБЪЕМА РАБОТ (ЗАГРУЗКИ) СУДОВ
ПОРТОВОГО ФЛОТА И УКАЗАНИЯ ПО ОПРЕДЕЛЕНИЮ ПОТРЕБНОГО ЧИСЛА
СУДОВ ОТДЕЛЬНЫХ ТИПОВ
Ю.1 Портовые буксиры-кантовщики
Объем работы портовых буксиров-кантовщиков складывается в основном из работ по обеспечению проводки и маневровых операций транспортных судов.
Кроме буксиров для обеспечения маневровых операций должны дополнительно предусматриваться буксиры для работы с несамоходными плавсредствами порта (буксировка плавбункеровщиков, водолеев и т.д.). Количество и типы этих буксиров определяются при конкретном проектировании в зависимости от объема работ. При использовании на этих работах буксиров-кантовщиков исчисленный объем работы добавляется к объему работ на проводке и маневровых операциях.
Потребность в буксирах-кантовщиках данного типа определяется по
формуле (Ю.1).
Ю.1.1 Объем работы портовых буксиров-кантовщиков в месяц наибольшей работы на проводке и маневровых операциях Q
б в судо-часах определяется как сумма потребности в буксирах данного типа для каждой из групп транспортных судов по формуле

(Ю.1)
где ncj - расчетное количество заходов j-й группы судов, для обслуживания которых используются буксиры i-го типа;
t
1i - занятость буксиров i-го типа на операции "ввод и швартовка" с судами j-й группы
(таблица Ю.1);
t
2i - занятость буксиров i-го типа на операции "отшвартовка и вывод" с судами данной j-й группы
(таблица Ю.1);
t
3i - занятость всех буксиров i-го типа на операции "перестановка" с судами данного типа, буксиро-ч
(таблица Ю.1);
a - количество перестановок, приходящихся на 1 судо-заход судов j-й группы.
Ю.1.2 Занятость буксиров-кантовщиков при выполнении проводки и маневровых операций с одним транспортным судном определяется по
таблице Ю.1.
Таблица Ю.1
Нормы занятости буксиров-кантовщиков при проводке
и на маневровых операциях с одним транспортным судном
Группа судов | Мощность, кВт | Проводка, кантовка и шварт. | Отшварт. и вывод | Перестановка |
Количество буксиров, ед. | Буксиро-часы, t1 | Количество буксиров, ед. | Буксиро-часы, t2 | Количество буксиров, ед. | Буксиро-часы, t3 |
1 | 2 | 3 | 4 | 5 | 6 | 7 | 8 |
I | 440 (260) | 2 | 2,3 | 2 | 2,2 | 2 | 3,0 |
II | 440 | 2 | 2,8 | 2 | 2,6 | - | 3,5 |
III | 880 (660) | 2 | 3,8 | 2 | 3,3 | 2 | 4,2 |
IV | 880 | 2 | 4,8 | 2 | 4,2 | 2 | 5,2 |
V | 1300 | 2 | 5,8 | 2 | 4,8 | 2 | 6,5 |
VI | осн | 1600 | 2 | 6,8 | 2 | 5,8 | 2 | 7,3 |
доп | 880 | 1 | 1,8 | - | - | 1 | 1,8 |
Итого по гр. VI | | | 3 | 8,6 | 2 | 5,8 | 3 | 6,1 |
VII | осн | 2100 | 2 | 7,5 | 2 | 6,5 | 2 | 8,2 |
доп | 880 | 2 | 3,8 | 1 | 1,8 | 2 | 4,3 |
Итого по гр. VII | | | 4 | 11,3 | 3 | 8,3 | 4 | 12,5 |
VIII | осн | 3000 | 2 | 8,0 | 2 | 7,0 | 2 | 8,8 |
доп | 1300 | 2 | 4,7 | 1 | 2,3 | 2 | 6,3 |
Итого по гр. VIII | | | 4 | 12,7 | 3 | 6,3 | 4 | 15,1 |
IX | осн | 3600 | 2 | 8,5 | 2 | 7,5 | 2 | 6,5 |
доп | 1700 | 2 | 5,5 | 1 | 2,8 | 2 | 7,0 |
Итого по гр. IX | | | 4 | 14,0 | 3 | 10,3 | 4 | 16,5 |
X | осн | - | - | - | - | - | - | - |
| доп | - | - | - | - | - | - | - |
Итого по гр. X | | | - | - | - | - | - | - |
Примечания 1 В таблице учтена занятость буксиров от момента прибытия к объекту работы до прекращения надобности в буксире (включая технологические перерывы в процессе маневровых операций, а также время на пробеги от места стоянки и обратно). 2 Нормы таблицы относятся к портам со средними планировочными условиями и могут быть приняты с увеличением на 10 - 15% в случае, если порт характеризуется особо стесненными условиями маневровых операций. 3 В графе "Мощность" в скобках показана мощность, достаточная для маневровых операций с судами данной тоннажной группы. 4 Для судов VIII - X групп при выборе типа буксиров наибольшей мощности определяется необходимость указания "эскортный" в зависимости от: - стесненности акватории и подходных путей; - размерения судов, участвующих в движении; - интенсивности судовых потоков; - внешних возмущающих воздействий; - возможных вариантов развития аварийных ситуаций и их последствий. |
Ю.1.3 Нормы занятости буксиров определены для дальности проводки буксирами: при вводе и выводе - 2 мили, при перестановке - 1 миля. При дальности проводки в проектируемом порту более указанных на каждую дополнительную милю норма занятости увеличивается для судов:
I - IV групп на 0,4 буксиро-часа;
V - VII групп на 0,5 буксиро-часа;
VIII - X групп на 0,66 буксиро-часа.
Ю.1.4 Нормы занятости буксиров определены при обслуживании транспортных судов, не имеющих подруливающих устройств. При наличии у обслуживаемых судов подруливающих устройств нормы занятости, указанные в
таблице Ю.1, принимаются с коэффициентом 0,75.
Ю.1.5 Распределение транспортных судов по группам производится согласно
таблице Ю.2.
Таблица Ю.2
Группировка судов по размеру (дедвейту), т
Назначение судов | Группа судов |
I | II | III | IV | V | VI | VII | VIII | IX | X |
1 | 2 | 3 | 4 | 5 | 6 | 7 | 8 | 9 | 10 | 11 |
Сухогрузные суда общего назначения и лесовозы | 1500 - 3500 | 3501 - 5000 | 5001 - 6000 | 6001 - 14000 | 14001 - 20000 | | | | | - |
Накатные суда | | 1500 - 3000 | 3001 - 5000 | 5001 - 7000 | 7001 - 11000 | 11001 - 15000 | 15000 - 22000 | 22001 - 37000 | | - |
Контейнеровозы и лихтеровозы | | 1500 - 5000 | 5001 - 7000 | 7001 - 8000 | 8001 - 14000 | 14001 - 18000 | 18001 - 26000 | 26001 - 40000 | | - |
| | ИС МЕГАНОРМ: примечание. Значения в графе 7 даны в соответствии с официальным текстом документа. | |
|
Навалочные и нефтенавалочные | | | 5000 - 6000 | 6001 - 14000 | 14001 - 28000 | 23001 - 45000 | 45001 - 75000 | 75001 - 120000 | 120001 - 160000 | - |
| | ИС МЕГАНОРМ: примечание. Значения в графе 6 даны в соответствии с официальным текстом документа. | |
|
Нефтеналивные суда | 1500 - 4000 | 4001 - 7000 | 7001 - 12000 | 12001 - 13000 | 18001 - 33003 | 33001 - 50000 | 50001 - 85000 | 85001 - 150000 | 150001 - 230000 | - |
| | ИС МЕГАНОРМ: примечание. Значения в графе 4 даны в соответствии с официальным текстом документа. | |
|
Газовозы | | 1500 - 5003 | 5001 - 7000 | 7003 - 13000 | 13001 - 25200 | 25201 - 42000 | 42001 - 65000 | | | - |
Метановозы | | | | | | 25000 - 42000 | 42001 - 65000 | 65001 - 105000 | | - |
Пассажирские суда <*> | 80 - 100 | 101 - 120 | 121 - 150 | 151 - 170 | 171 - 160 | | | | | - |
<*> По пассажирским судам показатель - длина судна (наибольшая) в м. |
Ю.1.6 Тип буксира-кантовщика (его мощность) для каждой группы судов может быть определен для данного порта с учетом силы ветра и волнения на основании РД 31.33.03-81
[58].
Ю.1.7 Нормы занятости буксиров, определенные в соответствии с
1.1 -
1.6, относятся к работе буксиров на чистой воде.
Ю.1.8 В случае, когда предусматривается работа замерзающего порта в зимнее время, нормы занятости буксиров-кантовщиков на маневровых операциях с одним судном отличаются от норм работы в условиях чистой воды.
Ю.1.9 В случае, когда для замерзающего порта предусматривается в зимние месяцы судооборот больше на 50% расчетного в месяц наибольшей загрузки, должен производиться поверочный расчет объема работ буксиров-кантовщиков на основе местных норм или отчетных данных для условий работы во льду в проектируемом порту.
Ю.1.10 Для работы в ледовый период выбираются буксиры-кантовщики, у которых мощность и тяговое усилие на гаке достаточны для выполнения наиболее сложной маневровой операции во льду с судном соответствующей группы.
Примечания
1 Необходимые мощности и тяговое усилие на гаке определяются поверочным расчетом с учетом сопротивления транспортного судна и буксира-кантовщика, включая ледовое сопротивление.
2 Допускается при отсутствии у буксиров-кантовщиков необходимой мощности расчетную скорость проводки судов во льду принимать меньшей, чем в летних условиях, но не менее 2,5 - 3,0 уз.
Ю.1.11 Занятость буксиров-кантовщиков в дополнение к маневровым операциям в ледовых условиях определяется выполнением следующих работ:
- взлом сплошного ледяного покрова на акватории порта;
- обеспечение очищения акватории от битого льда в период действия факторов выноса льда;
- измельчение крупных дрейфующих полей льда;
- околка припая, наледи и примерзших ледяных "подушек" у причалов;
- разрежение и удаление битого льда из тупиковых зон и от причалов перед швартовкой.
Примечание - Затраты времени на дополнительные работы должны включаться в объем работ буксиров-кантовщиков с учетом работы портовых ледоколов и специальных противоледовых средств.
Ю.1.12 Занятость буксиров-кантовщиков при проводке и на маневровых операциях "проводка и швартовка", "отшвартовка и вывод", "перестановка" определяется с учетом скорости движения во льду и действительных расстояний в проектируемом порту, а также затрат времени на швартовные операции во льду, которые допускается принимать по акватории.
Ю.2 Плавучие средства снабжения судов топливом и водой
Ю.2.1 Объем работы плавбункеровщиков в судо-часах определяется:
- количеством бункерного топлива и воды, подлежащих отпуску на суда в месяц наибольшей работы;
- производительностью плавбункеровщика, устанавливаемой в зависимости от количества топлива, отпускаемого судам за цикл и длительность цикла.
Ю.2.2 Количество бункерного топлива и воды, подлежащих отпуску на суда плавучими бункеровщиками, устанавливается в соответствии с принятыми схемами бункеровки судов и расчетным судооборотом.
Ю.2.3 Объем работ портовых бункеровщиков в судо-часах в месяц наибольшей нагрузки определяется по следующей формуле

(Ю.2)
где Qс - объем работы (нагрузки судов данного типа) в месяц наибольшей нагрузки, ч;
Qм - объем бункера, подлежащего отпуску на суда плавбункеровщиками в месяц наибольшей загрузки, т;
Pрасч - производительность плавбункеровщика за цикл непрерывной работы, т/ч.
Примечание - В случае разделения плавбункеровщиков на группы, осуществляющие бункеровку отдельными сортами топлива, расчет потребности в судах производится раздельно по каждой группе исходя из объема перерабатываемого ими топлива.
Ю.2.4 Расчетная часовая производительность определяется за 1 цикл непрерывной работы, включающий: одну операцию по приему груза, переход от пункта налива к бункеруемым судам, перекачку топлива или воды в бункеруемые суда, переходы к бункеруемым судам и возвращение в пункт налива, по формуле

(Ю.3)
где Qц - количество топлива или воды, доставленное бункеруемым судам за 1 цикл, - загрузка судна в тоннах;
Tц - продолжительность цикла в часах.
Ю.2.5 Загрузка плавбункеровщика за 1 цикл Qц определяется по формуле
Q
ц = K·n

D
ч, (Ю.4)
где K - расчетный объем единовременной выдачи топлива или воды транспортным судам (средний размер бункера);
n - число транспортных судов, получающих бункер за 1 цикл работы плавбункеровщика в зависимости от Dч и K;
Dч - грузоподъемность плавбункеровщика по расчетному сорту топлива.
Примечание - При определении потребности в плавбункеровщиках с жидким топливом загрузка судна учитывается только по топливу, так как прием и бункеровка масла совмещаются по времени с приемом и выдачей топлива.
Ю.2.6 Продолжительность цикла Tц определяется затратой времени на прием топлива или воды, переходы и бункеровку транспортных судов по формуле

(Ю.5)
где L1 - среднее расстояние от пункта налива груза до бункеруемых судов;
L2 - среднее расстояние перехода между бункеруемыми судами;
V - эксплуатационная скорость хода самоходных судов или буксировки несамоходных (но не более разрешенной обязательными постановлениями по порту);
n - число бункеруемых судов за 1 цикл;
tвн - время вспомогательных операций в пункте налива, ч;
tвс - время вспомогательных операций у каждого из бункеруемых судов, ч;
Mн - норма погрузки топлива или воды в пункте налива, т;
Mс - средневзвешенная норма бункеровки транспортных судов топливом или водой.
Значения L1, L2, n устанавливаются исходя из конкретных условий работы порта. Значения tвн, tвс, Mн, Mс для судов портового флота надлежит принимать по нормам, приведенным в разделе "Перегрузочные комплексы, специализированные для перегрузки наливных грузов".
Примечание - При определении потребности в плавбункеровщиках в случае погрузки их на существующих нефтебазах и водораздаточных пунктах судо-часовые нормы погрузки должны уточняться с учетом фактической способности нефтебаз или пунктов погрузки воды.
Ю.2.7 Выбор типа плавбункеровщиков с жидким топливом производится на базе технико-экономических расчетов с учетом местных условий.
Ю.2.8 В портах, где бункеровка судов предусматривается плавсредствами, должно быть как минимум два бункеровочных судна.
В портах, где бункеровка предусматривается по трубопроводам, может быть одно бункеровочное судно.
Ю.2.9 Водоналивное судно предусматривается:
- во всех крупных портах (с грузооборотом более 3 млн. тонн);
- в портах, производящих обработку судов на рейде;
- в портах, где до полного завершения строительства не обеспечено водоснабжение всех грузовых причалов.
В портах с большим объемом снабжения водой с помощью плавсредств при соответствующем обосновании следует предусматривать самоходное судно-водолей.
Ю.3 Плавучие средства, обеспечивающие сбор загрязненных вод, мусора и отходов
При необходимости прием льяльных вод и отходов с судов транспортного и портового флота осуществляется посредством судна - сборщика льяльных вод с последующей передачей на очистные сооружения.
Объем работы судна - сборщика льяльных вод в месяц наибольшей загрузки определяется по формуле

(Ю.6)
где Qс - объем работы (нагрузки судов данного типа) в месяц наибольшей нагрузки, ч;

- общий объем загрязненных вод, мусора и отходов в месяц наибольшей загрузки, т;
P
расч - производительность судна - сборщика льяльных вод и отходов за цикл непрерывной работы, т/ч, рассчитывается по
формуле Ю.3.
Ю.4 Лоцманские катера
Объем работы лоцманских катеров в месяц наибольшей загрузки определяется по формуле

(Ю.7)
где Cл - число лоцманских проводок (вводов, выводов и перестановок) в месяц наибольшей нагрузки; принимается на основании проектных данных о судообороте порта с учетом судов, подлежащих в данном порту лоцманской проводке (в необходимых случаях дополнительно учитываются также и транзитные суда);
L - расстояние в милях от причала лоцманских катеров до пункта приема (высадки) лоцманов, принимается по конкретным условиям проектируемого порта;
V - скорость хода лоцманского катера, миля/ч;
t - продолжительность высадки (снятия) лоцмана, принимается 0,5 ч.
Ю.5 Катера для завозки швартовных концов
Ю.5.1 Объем работы катеров для завозки швартовных концов (для портов с рейдовой стоянкой судов на бочках, рейдовой погрузкой/выгрузкой, ВПУ) определяется по формуле

(Ю.8)
где nс - количество судозаходов;
tк - занятость катеров на 1 операцию в катеро-часах;
a - количество перестановок, приходящихся на один судозаход.
Ю.5.2 В расчетное число обрабатываемых судов (nс) включаются танкеры всех групп и сухогрузные суда V - IX групп полностью, а также сухогрузные суда I - IV групп в количестве 10 - 30% в зависимости от местных условий.
Ю.5.3 Занятость катеров для завозки швартовных концов на операции с одним судном t
k определяется по
таблице Ю.3.
Таблица Ю.3
Нормы занятости катеров для завозки
швартовных концов на 1 операцию
Группа транспортных судов | Занятость в катеро-часах | Группа транспортных судов | Занятость в катеро-часах |
I | 0,6 | VI | 2,1 |
II | 0,7 | VII | 2,3 |
III | 1,5 | VIII | 2,6 |
IV | 1,7 | IX | 3,0 |
V | 1,6 | X | - |
В портах, обслуживающих суда IV - X групп, число катеров для завозки швартовных концов следует принимать не менее двух.
Ю.6 Пассажирские служебные катера
Ю.6.1 Потребность порта в пассажирских служебных катерах определяется раздельно:
- для перевозки рабочих и служащих порта в районы, связь с которыми осуществляется водным путем;
- для перевозки судовых команд и работников порта между берегом и стоящими на рейде судами.
Ю.6.2 При наличии в проектируемом порту районов, связь с которыми осуществляется водным путем, потребное число катеров для перевозки рабочих и служащих порта в эти районы, N
пик, определяется исходя из условия перевозки пассажиров в количестве, равном численности наибольшей смены работающих в соответствующих районах, в течение 30 минут при полной загрузке катеров в одном направлении.
Ю.6.3 Количество катеров, используемое для перевозок в непиковый период суток Nд, устанавливается из расчета один катер на каждую внутрипортовую линию.
Ю.6.4 Количество катеров, необходимое для перевозок между берегом и стоящими на рейде судами N
k, определяется в общем порядке по
формуле Ю.10.
Объем работы катеров по перевозке судовых команд и работников порта между берегом и стоящими на рейде судами определяется по формуле
Qк = c·d, (Ю.9)
где c - общее число судозаходов в месяц наибольшей нагрузки;
d - число часов работы катера, приходящееся в среднем на один судозаход, принимается от 1 до 2 в зависимости от местных условий.
Ю.6.5 Количество катеров для перевозок между берегом и стоящими на рейде судами при наличии в данном порту районов, связь с которыми осуществляется водным путем, принимается с сокращением против количества, установленного согласно
Ю.6.2 N
пик, имея в виду возможность использования в непиковый период суток катеров, предназначенных для перевозки в указанный район порта. Скорректированное с учетом изложенного количество катеров определяется по формуле
N
k = N
р - 0,85(N
пик - N
д). (Ю.10)
Примечание - Для рейдовых портов эту часть объема работы катеров надлежит определить по конкретным для каждого порта данным.
Ю.7 Разъездные катера
Ю.7.1 Число разъездных катеров в порту принимается в зависимости от количества и дальности разъездов с учетом характера генерального плана.
Объем работы катеров для разъездов в месяц наибольшей загрузки определяется по формуле

(Ю.11)
где Cр - число разъездов в месяц наибольшей нагрузки; принимается на основании проектных данных, исходя из общей организации работы порта.;
L - среднее расстояние в милях от причала базирования разъездных катеров до пункта назначения, принимается по конкретным условиям проектируемого порта;
V - скорость хода разъездного катера, миля/час;
t - средняя продолжительность ожидания, час.
Ю.7.2 Расчетное число разъездных катеров в эксплуатации определяется по
формуле Ю.1.
Ю.8 Катера - бонопостановщики
Потребность в катерах - бонопостановщиках определяется при конкретном проектировании порта и зависит от специфики работы порта.
Ю.9 Водолазные катера
Потребность в водолазном катере устанавливается согласно заданию на проектирование.
Ю.10 Портовые ледоколы
В портах, где требуется ледокольное обеспечение судов на подходах к порту, на акватории порта, и наблюдается тяжелая ледовая обстановка, следует предусмотреть условия применения портовых ледоколов по заданию на проектирование.
Ю.11 Пожарные суда
В крупных портах (с числом причалов 20 и более), а также во всех портах, имеющих нефтегавани и нефтегазовые терминалы, должно быть предусмотрено пожарное судно.
Ю.12 Нефтемусоросборщики
Во всех портах должны быть предусмотрены нефтемусоросборщики. Их количество определяется при конкретном проектировании (в зависимости от производительности нефтемусоросборщика и площади акватории порта) и принимается от 1 до 4.
Трудоемкость технического обслуживания портофлота принимается в размере 20 - 30% от текущего ремонта. Прочие работы на уровне 10% от текущего ремонта. Разбивка годовой трудоемкости по периодам года зависит от принятой организации судоремонта и района расположения порта.
(справочное)
ТРУДОЕМКОСТЬ РАБОТ ПО ТЕКУЩЕМУ РЕМОНТУ
НА ОДНО СУДНО ПОРТОФЛОТА
Таблица Я.1
Трудоемкость работ по текущему ремонту
на одно судно портофлота
Типы судов | Кол. ед. | Мощность, кВт/л.с., грузоподъем., т | Длина судна, м | Виды работ (в чел.-ч) |
Корпусно-свароч. | Деревообраб. | Малярные | Изол. | Обойно-парусн. | Такелаж. | Механосборочный участок | Электроремонт | Трубопровод. | Медн.-жест. | Всего |
Парус. | Стан | Слес. в цехе | Слес. на судне |
Буксир-кантовщик | 1 | 600 л.с. | 16 | 170 | 30 | 50 | 8 | 4 | 65 | 40 | 230 | 450 | 340 | 30 | 3 | 1420 |
Буксир-кантовщик | 1 | 1200 л.с. | 23 | 220 | 45 | 80 | 8 | 6 | 45 | 45 | 490 | 800 | 560 | 30 | 6 | 2280 |
Буксир-кантовщик | 1 | 2300 л.с. | 26 | 370 | 50 | 120 | 9 | 6 | 50 | 70 | 750 | 1160 | 580 | 50 | 5 | 3220 |
Буксир-кантовщик | 1 | 3000 л.с. | 28 | 570 | 90 | 140 | 13 | 10 | 80 | 80 | 960 | 1700 | 1160 | 30 | 7 | 4890 |
Буксир-кантовщик | 1 | 5000 л.с. | 30 | 627 | 99 | 154 | 14 | 11 | 88 | 88 | 1056 | 1870 | 1276 | 33 | 8 | 5324 |
Бункеровщик топлива | 1 | 3000 т | 80 | 627 | 99 | 154 | 14 | 11 | 88 | 88 | 1056 | 1870 | 1276 | 33 | 8 | 5324 |
Бункеровщик топлива | 1 | 1500 т | 60 | 220 | 45 | 80 | 8 | 6 | 45 | 45 | 490 | 800 | 560 | 30 | 6 | 2280 |
Бункеровщик воды | 1 | 800 т | 40 | 170 | 30 | 50 | 8 | 4 | 65 | 40 | 230 | 450 | 340 | 30 | 3 | 1420 |
Катер лоцманский | 1 | | 22 | 40 | 10 | 15 | 2 | - | 10 | 15 | 70 | 120 | 100 | 8 | " | 390 |
Катер швартовый | 1 | | 12 | 40 | 10 | 15 | 2 | - | 10 | 15 | 70 | 120 | 100 | 8 | - | 390 |
Катер служебный | 1 | | 20 | 40 | 10 | 15 | 2 | - | 10 | 15 | 70 | 120 | 100 | 8 | - | 390 |
Нефтемусоросборщик | 1 | | 18 | 35 | 15 | 35 | - | - | - | 25 | 150 | 250 | 20 | 20 | - | 550 |
Ледокол портовый | 1 | 4750 кВт | | 840 | 130 | 140 | 16 | 12 | 110 | 130 | 1440 | 2240 | 1160 | 160 | 12 | 6390 |
Пожарное судно | 1 | | | 40 | 10 | 15 | 2 | - | 10 | 15 | 70 | 120 | 100 | 8 | - | 390 |
Бонопостановщик | 1 | 514 л.с. | | 40 | 10 | 15 | 2 | - | 10 | 15 | 70 | 120 | 100 | 8 | - | 390 |
Водолазный бот | 1 | | | 40 | 10 | 15 | 2 | - | 10 | 15 | 70 | 120 | 100 | 8 | - | 390 |
Итого: | 16 | | | 4089 | 693 | 1093 | 110 | 70 | 696 | 741 | 7272 | 12310 | 7872 | 494 | 55 | 35438 |
(справочное)
НОРМАТИВЫ ДЛЯ РАСЧЕТА ТЕХНОЛОГИЧЕСКИХ ПАРАМЕТРОВ РММ
Таблица 1.1
Нормативы трудоемкости ремонта перегрузочных машин
Наименование перегрузочных машин | Трудоемкость, тыс. чел.-ч |
текущего ремонта (Т) | технического обслуживания (ТО) |
Крановое оборудование циклического действия: | | |
а) Краны портальные и полупортальные с уравновешенной стрелой, г/п: | | |
1) до 10 т; | 1,25 | 0,11 |
2) от 10 до 16 т; | 1,60 | 0,16 |
3) свыше 16 т. | 1,79 | 0,19 |
б) Краны портальные с неуравновешенной стрелой, г/п: | | |
1) до 25 т; | 0,39 | 0,11 |
2) свыше 25 до 45 т. | 1,34 | 0,13 |
в) Краны козловые универсальные общего назначения, г/п: | | |
1) до 10 т; | 0,54 | 0,02 |
2) до 15 т; | 0,72 | 0,02 |
3) до 20 т. | 0,89 | 0,02 |
г) Краны мостовые, г/п до 20 т. | 0,40 | 0,02 |
д) Краны и перегружатели портальные, мостовые, козловые для перегрузки крупнотоннажных контейнеров, г/п 30,5 - 40 т более, колея 15 - 53 м общей массой, т: | | |
1) от 100 до 150; | 1,50 | 0,12 |
2) свыше 150 до 250; | 2,07 | 0,17 |
3) свыше 250 до 400; | 7,86 | 0,23 |
4) свыше 400 до 700; | 4,04 | 0,33 |
5) свыше 700. | 6,00 | 0,49 |
е) Козловые дизельные контейнерные краны на пневмоходу, г/п до 40 т, колея до 26 м. | 2,60 | 0,25 |
ж) Портальные грейферные перегружатели производительностью 700 - 2000 т/ч и более общей массой, т: | | |
1) от 500 до 750; | 3,70 | 0,32 |
2) свыше 750 до 1000; | 4,52 | 0,32 |
3) свыше 1000 до 1500; | 5,87 | 0,50 |
4) свыше 1500. | 7,40 | 0,64 |
и) Краны и краны-экскаваторы гусеничные, г/п, т: | | |
1) до 16; | 0,70 | 0,03 |
2) свыше 16 до 40; | 1,00 | 0,10 |
3) свыше 40 до 100; | 1,35 | 0,15 |
4) свыше 100. | 1,80 | 0,20 |
к) Краны автомобильные и пневмоколесные г/п, т: | | |
1) до 16; | 0,50 | 0,05 |
2) свыше 16 до 40; | 0,80 | 0,08 |
3) свыше 40. | 0,90 | 0,12 |
л) Краны железнодорожные г/п, т: | | |
1) 10 - 20; | 0,63 | 0,09 |
2) свыше 20. | 0,89 | 0,10 |
Транспортирующие средства безрельсового транспорта: | | |
а) Автомобильные погрузчики с приводом от ДВС универсальные г/п, т: | | |
1) до 2,0; | 0,16 | 0,03 |
2) свыше 2,0 до 5,0; | 0,13 | 0,04 |
3) свыше 5,0 до 10,0; | 0,27 | 0,06 |
4) свыше 10,0. | 0,30 | 0,07 |
б) Портальные контейнерные погрузчики г/п до 35,0 т. | 0,96 | 0,20 |
в) Фронтальные и боковые контейнерные погрузчики г/п 15,0 - 40,0 т. | 0,77 | 0,15 |
г) Электрические погрузчики г/п, т: | | |
1) до 1,6; | 0,10 | 0,02 |
2) свыше 1,6 до 5,0. | 0,13 | 0,03 |
д) Тракторы универсальные и бульдозеры мощностью, л.с.: | | |
1) до 75; | 0,14 | 0,03 |
2) свыше 75 до 180; | 0,27 | 0,05 |
3) свыше 180. | 0,54 | 0,06 |
е) Электротягачи электрокары. | 0,09 | 0,02 |
ж) Портовые специальные тягачи типа "Терберг", "Оуси" и т.д. | 0,10 | 0,03 |
и) Магистральные автотягачи и др. спецавтомашины мощностью 140 - 300 л.с. и более. | 0,09 | 0,02 |
к) Прицепы тракторные, г/п 3,0 т и более. | 0,01 | 0,01 |
л) Прицепы и полуприцепы, трейлеры, ролл-трейлеры и др., г/п, т: | | |
1) до 40; | 0,06 | 0,01 |
2) свыше 40 до 120. | 0,10 | 0,02 |
Специальные трюмные и вагонные машины: | | |
а) Специальные трюмные и вагонные машины и погрузчики конвейерного типа (ПТС, ПТБ, КШП, ПСГ, МВС, ЗГС, ВТЗ и др.). | 0,42 | 0,08 |
б) Специальные машины для трюмных работ типа ковшевых погрузчиков (СДК-8, УИ-050, ТО-6А, ТО-7, Н-80, АС-7, Л-34, Т-515 и др.), трюмные бульдозеры (типа "Комацу" и др.) и проч. | 0,50 | 0,06 |
в) Кратцер-краны производительностью 500 - 1000 т/ч. | 1,40 | 0,15 |
г) Мобильные пневмоперегружатели для зерна и др. насыпных грузов производительностью до 150 т/ч (типа Вакуватор, Нойэро и др.). | 0,76 | 0,13 |
д) Портальные пневматические перегружатели производительностью до 500 т/ч (для зерна и др. насыпных грузов) (Тип Хартман, Бюллер-Миаг и др.). | 1,59 | 0,17 |
Вагоноопрокидыватели и специализированное конвейерное оборудование непрерывного транспорта | | |
а) Вагоноопрокидыватели стационарные с бункерами: | | |
1) боковые для полувагонов г/п 60 и 90 т; | 2,58 | 0,16 |
2) роторные для полувагонов г/п 60 и 90 т; | 1,23 | 0,08 |
3) роторные для полувагонов г/п 60, 90 и 125 т; | 1,72 | 0,11 |
4) роторные для полувагонов г/п 60, 90, 125 и более т. | 0,18 | 0,01 |
Ленточные конвейеры передвижные: | | |
а) Ленточные конвейеры стационарные, включающие в себя приводные и натяжные станции, мощностью кВт: | | |
1) от 40 до 60; | 0,09 | 0,01 |
2) свыше 80 до 100; | 0,13 | 0,01 |
3) свыше 100 до 160; | 0,16 | 0,01 |
4) свыше 160 до 230; | 0,19 | 0,02 |
5) свыше 230 до 400; | 0,37 | 0,04 |
6) свыше 400 до 600; | 0,50 | 0,06 |
7) свыше 600 до 1000; | 0,63 | 0,07 |
8) свыше 1000 до 1500; | 0,89 | 0,10 |
9) свыше 1500. | 1,07 | 0,14 |
б) Ленты конвейерные шириной, мм: | | |
1) от 1100 до 1500; | 65 чел.-ч в год на 100 м длины конвейера. |
2) свыше 1500 до 2000; | 95 чел.-ч в год на 100 м длины конвейера. |
3) свыше 2000 до 2500. | 130 чел.-ч в год на 100 м длины конвейера. |
в) роликоопоры и металлоконструкции (бункера, течки, пересыпные устройства и т.д.): | 4,5 чел.-ч в год на 1 т общей массы конвейера (без массы ленты) |
Складские и причальные машины: стакеры, реклаймеры береговые и судопогрузочные машины общей массой, т: | | |
- до 150; | 1,49 | 0,17 |
- свыше 150 до 200; | 1,68 | 0,20 |
- свыше 200 до 300; | 2,14 | 0,25 |
- свыше 300 до 400; | 2,69 | 0,32 |
- свыше 400 до 500; | 0,38 | 0,38 |
- свыше 500 до 600; | 3,65 | 0,43 |
- свыше 600 до 800; | 4,28 | 0,51 |
- свыше 800 до 1000; | 5,10 | 0,60 |
- свыше 1000. | 6,06 | 0,72 |
Портальные перегружатели (разгрузчики) непрерывного действия производительностью свыше 2000 т/ч общей массой, т: | | |
- до 1000; | 5,63 | 0,66 |
- свыше 1000 до 1500; | 7,02 | 0,82 |
- свыше 1500. | 8,94 | 1,00 |
Примечания 1 Трудоемкость ремонта и техобслуживания грейферных перегружателей следует применять с повышающим коэффициентом 1,1 при наличии отвального конвейера. 2 Трудоемкость технического обслуживания (ТО) средств безрельсового транспорта, трюмных и вспомогательных машин следует принимать с понижающими коэффициентами в зависимости от числа часов работы за год: - до 600 - 0,5; - 600 - 900 - 0,6; - 901 - 1200 - 0,7; - 1201 - 1600 - 0,8; - 1601 - 2000 - 0,9; - свыше 2000 - 1,0. |
Таблица 1.2
Коэффициент цикличности ремонта и технического обслуживания
Перегрузочные машины | Категория ремонта | Коэффициенты цикличности ремонта и технического обслуживания при числе часов работы за год |
250 - 750 | 750 - 1250 | 1250 - 1750 | 1750 - 2250 | 2250 - 2750 | 2750 - 3750 | 3750 - 4750 | Свыше 4750 |
Крановое оборудование и специализированные установки для навалочных грузов: | | | | | | | | | |
а) краны портальные, полупортальные, козловые перегружатели грейферные, зерновые перегружатели и др. краны для генгрузов на штучных и лесных грузах, перегружаемых крюком; | т | | | | | 0,57 | | | - |
то | 0,12 | 0,23 | 0,34 | 0,46 | | 0,74 | 0,97 | |
0,69 | 1,38 | 2,06 | 2,75 | 3,44 | 4,47 | 5,34 | - |
1) то же, на навалочных грузах; | т | 0,20 | 0,40 | 0,60 | 0,79 | 0,99 | 1,29 | 1,69 | - |
| то | 1,19 | 2,38 | 3,57 | 4,76 | 5,95 | 7,74 | 10,12 | - |
2) то же, на лесных грузах, перегружаемых грейфером; | т | 0,16 | 0,32 | 0,43 | 0,64 | 0,79 | 1,03 | 1,35 | - |
| то | 0,95 | 1,91 | 2,86 | 3,81 | 4,76 | 6,19 | 8,10 | - |
б) краны мостовые на штучных и лесных грузах, перегружаемых крюком; | т | 0,19 | 0,38 | 0,57 | 0,76 | 0,95 | 1,24 | 1,62 | - |
| то | 1,15 | 2,29 | 3,43 | 4,57 | 5,72 | 7,43 | 9,71 | - |
1) то же, на навалочных грузах; | т | 0,32 | 0,64 | 0,95 | 1,27 | 1,59 | 2,06 | 2,70 | - |
| то | 1,91 | 3,31 | 5,71 | 7,62 | 9,52 | 12,38 | 16,19 | - |
в) краны и краны-экскаваторы гусеничные; | т | 0,23 | 0,45 | 0,68 | 0,91 | 1,13 | 1,47 | 1,93 | - |
то | 1,36 | 2,72 | 4,08 | 5,44 | 6,80 | 8,84 | 11,56 | - |
г) краны пневмоколесные и автомобильные; | т | 0,32 | 0,64 | 0,95 | 1,27 | 1,59 | 2,06 | 2,70 | - |
| то | 1,91 | 3,81 | 5,71 | 7,62 | 9,52 | 12,38 | 16,19 | - |
е) краны железнодорожные; | т | 0,27 | 0,53 | 0,79 | 1,06 | 1,32 | 1,72 | 2,25 | - |
| то | 1,59 | 3,13 | 4,76 | 6,35 | 7,94 | 10,32 | 13,49 | - |
ж) краны и перегружатели портальные, мостовые, козловые для перегрузки контейнеров; | т | 0,227 | 0,452 | 0,679 | 0,905 | 1,132 | 1,471 | 1,923 | - |
| то | 0,550 | 1,107 | 1,657 | 2,207 | 2,763 | 3,772 | 4,699 | - |
и) стакеры, вагоноопрокидыватели с бункерами; | т | 0,151 | 0,303 | 0,455 | 0,606 | 0,757 | 0,985 | 1,288 | 1,667 |
| то | 11,773 | 11,545 | 11,313 | 11,091 | 10,884 | 14,523 | 19,068 | 24,500 |
| | | | | | | | |
к) ленточные конвейеры (приводные и натяжные станции), реклаймеры, судопогрузочные машины, кратцер-краны. | т | 0,003 | 0,606 | 0,909 | 1,212 | 1,515 | 1,969 | 2,575 | 3,333 |
| то | 11,545 | 11,091 | 10,636 | 10,182 | 9,727 | 13,045 | 17,137 | 22,000 |
Остальное перегрузочное оборудование: | | | | | | | | | |
а) погрузчики автомобильные и тягачи с приводом от ДВС карбюраторные; | т | 0,60 | 1,13 | 1,58 | 2,10 | 2,70 | 3,38 | | - |
| то | 11,20 | 10,50 | 9,90 | 9,20 | 8,40 | 7,50 | 8,50 | - |
б) погрузчики автомобильные, тягачи портовые специальные и магистральные, тракторы и бульдозеры с приводом от ДВС, дизельные, ковшовые погрузчики; | т | 0,38 | 0,70 | 0,99 | 1,31 | 1,69 | 2,11 | 2,58 | - |
| то | 11,50 | 11,06 | 10,69 | 10,25 | 9,75 | 9,19 | 10,56 | - |
в) фронтальные и боковые контейнерные погрузчики; | т | 0,25 | 0,47 | 0,66 | 0,88 | 1,13 | 1,41 | 1,72 | 2,3 |
| то | 11,67 | 11,38 | 11,13 | 10,83 | 10,50 | 10,13 | 11,71 | 15,8 |
г) портальные контейнерные погрузчики | т | 0,188 | 0,352 | 0,492 | 0,656 | 0,844 | 1,055 | 1,289 | 1,759 |
| то | 11,750 | 11,531 | 11,344 | 11,125 | 10,375 | 10,594 | 12,281 | 16,656 |
| | | | | | | | | |
д) погрузчики электрические; | т | 0,75 | 1,41 | 1,97 | 2,63 | 3,38 | 4,22 | 5,16 | - |
| то | 11,0 | 10,13 | 9,38 | 8,50 | 7,50 | 6,38 | 7,13 | - |
| | | | | | | | | |
| | ИС МЕГАНОРМ: примечание. Значение в графе 8 дано в соответствии с официальным текстом документа. | |
|
е) тягачи и тележки аккумуляторные; | т | 0,38 | 0,70 | 0,99 | 1,31 | 1,69 | 2Д1 | 2,58 | - |
| то | 11,50 | 11,06 | 10,69 | 10,25 | 9,75 | 9,19 | 10,56 | - |
ж) трюмные и вагонные машины; | т | 0,89 | 1,67 | 2,33 | 3,11 | 4,0 | 5,00 | 6,11 | - |
| то | 10,67 | 9,50 | 8,50 | 7,33 | 6,0 | 4,50 | 4,33 | - |
| | ИС МЕГАНОРМ: примечание. Значение в графе 5 дано в соответствии с официальным текстом документа. | |
|
з) пневмоперегружатели; | т | 0,44 | 0,83 | 1Д7 | 1,56 | 2,00 | 2,50 | 3,06 | - |
| то | 11,33 | 10,75 | 10,25 | 9,67 | 9,00 | 8,25 | 9,42 | - |
и) прицепы и полуприцепы автомобильные; | т | 0,57 | 1,07 | 1,50 | 2,00 | 2,57 | 3,21 | 3,93 | - |
| то | 11,33 | 10,75 | 10,25 | 9,67 | 9,00 | 8,25 | 9,42 | - |
к) прицепы тракторные | т | 0,30 | 0,56 | 0,79 | 1,05 | 1,35 | 1,69 | 2,06 | - |
| то | 11,60 | 11,25 | 10,95 | 10,60 | 10,20 | 9,75 | 11,25 | - |
Примечание - Для машин, перегружающих химически активные грузы, коэффициент цикличности следует применять с повышающим коэффициентом 1,25. |
Таблица 1.3
Распределение трудоемкости по основным специальностям
Перегрузочные работы | Категория ремонта и техобслуживания | Распределение общей трудоемкости ремонта и технического обслуживания по основным производственным специальностям (в процентах) |
Корпусники | Термисты | Кузнецы | Сварщики, резчики | Слесари | Станочники | Электрики | Маляры | Плотники, модельщики | Аккумуляторщики | Вулканизаторщики | Рабочие по ремонту и изготовлению такелажа |
Краны портальные и полупортальные, перегружатели грейферные, контейнерные, зерновые пневматические перегружатели и др. | | | | | | | | | | | | | |
Т | 11 | - | 1 | 8 | 54 | 8,5 | 13 | 1,5 | - | - | - | 3 |
То | 9 | | | 5 | 68 | 7 | 10 | | | | | 1 |
Краны мостовые и козловые | | | | | | | | | | | | | |
Т | 10 | | 1 | 7 | 58 | 8 | 12 | 1,5 | - | - | - | 2,5 |
То | 8 | - | - | 5 | 69 | 7 | 10 | - | - | - | - | 1 |
Краны и краны-экскаваторы гусеничные | | | | | | | | | | | | | |
Т | 10 | 0,5 | 1 | 6 | 60 | 10 | 8 | 1,5 | - | 0,5 | - | 2,5 |
То | 7 | - | - | 5 | 72 | 7 | 8 | - | - | - | - | 1 |
Краны пневмоколесные и автомобильные | | | | | | | | | | | | | |
Т | 10 | 0,5 | 1 | 6 | 60 | 10 | 8 | 1,5 | - | 0,5 | - | 2,5 |
| | | | | | | | | | | | |
Краны железнодорожные | | | | | | | | | | | | | |
Т | 10 | 0,5 | 1 | 6 | 58,5 | 12 | 8 | 1 | | 0,5 | | 2,5 |
То | 7 | - | - | 5 | 71 | 8 | 8 | - | - | - | - | 1 |
Погрузчики с приводом от ДВС, портальные, фронтальные и боковые контейнерные погрузчики, автотягачи прицепы и полуприцепы | | | | | | | | | | | | | |
Т | 10 | 0,5 | 1 | 5 | 70 | 10 | 2 | 1 | - | 0,5 | - | - |
То | 10 | | | 10 | 67 | 10 | 3 | | | | | |
Погрузчики, тягачи и тележки аккумуляторные | | | | | | | | | | | | | |
Т | 10 | 0,5 | 1 | 5 | 61 | 10 | 11 | 1 | - | 0,5 | - | - |
То | 8 | | | 8 | 66 | 8 | 10 | | | | | |
Тракторы и бульдозеры | Т | 10 | 0,5 | 1,5 | 5 | 68,5 | 12 | 1 | 1 | | 0,5 | | |
То | 12 | - | - | 8 | 69 | 10 | 1 | - | - | - | - | - |
Специальные трюмные и вагонные машины и погрузчики конвейерного типа | Т | 11 | | 1,5 | 6 | 52,5 | 12 | 14 | 1 | | | 2 | |
То | 8 | | | 6 | 61 | 10 | 10 | | | | 5 | |
Специальные машины для трюмных работ типа ковшевых погрузчиков, трюмных бульдозеров и пр. | | | | | | | | | | | | | |
Т | 11 | - | 5 | 5 | 51 | 12 | 14 | 1 | - | - | 1 | - |
То | 10 | | | 6 | 62 | 10 | 10 | | | | 5 | |
Вагоноопрокидыватели | | | | | | | | | | | | | |
Т | 12 | 0,5 | 1,5 | 6 | 54 | 12 | 12 | 2 | - | - | - | - |
То | 11 | - | - | 6 | 58 | 12 | 13 | - | - | - | - | - |
Реклаймеры, стакеры, судопогрузочные машины и кратцер-краны | | | | | | | | | | | | | |
Т | 11 | 0,5 | 1,5 | 9 | 50,5 | 11 | 12 | 2 | - | - | 2,5 | - |
То | 9 | | | 6 | 63 | 8 | 10 | | | | 4 | |
Ленточные конвейерные стационарные и передвижные | | | | | | | | | | | | | |
Т | 13 | - | - | 9 | 57,5 | 7 | 8 | 1,5 | - | - | 4 | - |
То | 13 | - | - | 9 | 58 | 7 | 8 | - | - | - | 5 | - |
Таблица 1.4
Нормативы продолжительности ремонта перегрузочных машин
Перегрузочные машины | Продолжительность ремонта и техобслуживания |
1-сменная работа | 2-сменная работа |
Ремонт, сут | ТО, смен или сут | Ремонт, сут | ТО, сут |
Т | Т |
Краны и краны - экскаваторы гусеничные | 30 | 4 | 18 | 2 |
Краны пневмоколесные | 25 | 4 | 15 | 2 |
Краны автомобильные, г/п: | | | | |
- до 7,5 т; | 9 | 3 | 6 | 1,5 |
- 10,0 и более. | 25 | 4 | 15 | 2 |
Краны железнодорожные | 22 | 4 | 13 | 2 |
Автопогрузчики универсальные и тягачи с приводом ДВС | 15 | 2 | 9 | |
Электрические погрузчики | 10 | 1 | 6 | 0,5 |
Электротягачи и электрокары | 6 | 1 | 4 | 0,5 |
Тракторы и бульдозеры | 15 | 2 | 9 | 1 |
Прицепы и полуприцепы, трейлеры, ролл-трейлеры | 3 | 1 | 2 | 0,5 |
Портальные контейнерные погрузчики | 22 | 3 | 13 | 1,5 |
Фронтальные и боковые контейнерные погрузчики | 22 | 3 | 13 | 1,5 |
Машины трюмные с приводом ДВС | 15 | 2 | 9 | 1 |
Машины трюмные и вагонные с электрическим приводом | 8 | 2 | 5 | 1 |
Мобильные пневмоперегружатели | 15 | 2 | 9 | 1 |
Портовые специальные тягачи | 15 | 2 | 9 | 1 |
Примечание - С помощью данных настоящей таблицы можно определить количество перегрузочных машин, одновременно находящихся в ремонте данной категории (или техническом обслуживании), по формуле где n - количество машин, одновременно находящихся в ремонте или техническом обслуживании, ед.; N - годовое количество ремонтов данной категории или технических обслуживаний, ед.; T - продолжительность ремонта или техобслуживания по таблице, сут. |
Таблица 1.5
Расход основных материалов на 100 тыс. чел.-ч трудоемкости
Наименование | Значение показателя |
Сталь листовая, т | 86 |
Сталь профильная и сортовая, т | 92 |
Трубы черные, т | 10,4 |
Трубы цветные, т | 1,2 |
Литье чугунное, т | 7,6 |
Литье стальное, т | 5,6 |
Литье цветное, т | 5,2 |
Поковки, т | 7,6 |
Прокат цветной, т | 2,4 |
Электроды и электродная проволока, т | 9,6 |
Канат стальной, т | 6,0 |
Кабель, км | 4,0 |
Олово, баббит, припой, т | 0,16 |
Пиломатериалы, м3 | 188 |
Краски, т | 10,8 |
Кислород, м3 | 4400 |
Ацетилен, м3 | 1100 |
Электроизоляционные материалы (гетинакс, миканит и др.), т | 0,8 |
Резинотехнические изделия, т | 6,0 |
Строительные материалы, т | 2,4 |
Прочие материалы, т | 13,2 |
Таблица 1.6
Расчетный годовой фонд времени работы оборудования
Наименование оборудования | Расчетный годовой фонд времени, ч |
при одной смене | при двух сменах |
Металлорежущее и деревообрабатывающее, заготовительное (ножницы, вальцы и т.д.) | 2020 | 4015 |
Кузнечно-прессовое | 1985 | 3955 |
Печи термические сушильные, электрические (с периодическим циклом работы, немеханизированные) | 2010 | 3975 |
Сварочные | 2010 | 3955 |
Стенды сборочно-разборочные, сборочно-сварочные и подобные | 2070 | 4140 |
Стенды испытательные и диагностические для вспомогательных ДВС, насосов, компрессоров, электромашин, приборов - гидравлических и др. | 2020 | 4015 |
Таблица 1.7
Средний коэффициент загрузки технологического оборудования
Оборудование | Средний коэффициент загрузки |
Металлорежущие станки при трудоемкости станочных работ | |
- до 70 тыс. чел. ч; | 0,7 |
- свыше 70 тыс. чел. ч. | 0,75 |
Станки котельно-корпусных отделений при годовом выпуске обработанной стали | |
- до 500 т; | 0,5 |
- до 1000 т; | 0,6 |
- до 2000 т. | 0,7 |
Оборудование трубопроводных отделений | 0,6 |
Оборудование деревообрабатывающих отделений | 0,5 |
Таблица 1.8
Рекомендуемое распределение основных металлорежущих станков
Станки | % от общего количества |
Токарные и револьверные | 45 |
Карусельные и лоботокарные | - |
Расточные | 3 |
Вертикально-сверлильные | 5 |
Радиально-сверлильные | 3 |
Плоскошлифовальные | 5 |
Круглошлифовальные | 2 |
Универсально и горизонтально-фрезерные | 10 |
Терминально-фрезерные | 6 |
Зубообрабатывающие | 66 |
Поперечно-строгательные | 7 |
Долбежные | 3 |
Прочие | 3 |
Примечания 1 Карусельные и лоботокарные станки допускается принимать при наличии деталей в ремонтном оборудовании, нуждающихся в таких видах металлообработки и невозможности размещения заказов по кооперации на промпредприятиях. 2 В состав "прочих" предусматриваются производственные станки, редко применяемые для основных технологических процессов механических цехов мастерских (продольно-строгальные, хонинговальные, доводочные, болторезные, различные специализированные станки), которые включатся в состав оборудования при соответствующей необходимости. |
Таблица 1.9
Эффективный (расчетный) годовой фонд времени рабочих
Наименование профессий работающих | Эффективный (расчетный) годовой фонд времени рабочих, ч | Эффективный (расчетный) годовой фонд времени рабочих для районов Крайнего Севера, ч | Эффективный (расчетный) годовой фонд времени рабочих для районов, приравненных к Крайнему Северу, ч |
Станочники, слесари-ремонтники, трубопроводчики, электромонтажники, жестянщики, заточники, наладчики станков, раздатчики инструмента, столяры, такелажники при работе в цехе; деревообделочники, рабочие по изготовлению и ремонту такелажа, водители легковых автомобилей | 1860 | 1730 | 1730 |
Слесари-ремонтники, трубопроводчики, электромонтажники, обойщики, гальваники, аккумуляторщики (щелочные аккумуляторы), кладовщики складов смазочных материалов, химикатов и лакокрасочных материалов, плотники, такелажники - на наружных работах; водители автомобилей г/п от 1,5 до 3 т | 1840 | 1710 | 1760 |
Слесари-ремонтники, трубопроводчики, электромонтажники, такелажники при работе внутри судна; судокорпусники-ремонтники, отделочники, электро- и газосварщики, газорезчики, термисты, медники, станочники по деревообработке, аккумуляторщики (кислотные аккумуляторы), маляры лакировщики, полировщики, вулканизаторщики, водители автобусов и грузовых автомобилей г/п 3,0 т и более | 1840 | 1690 | 1740 |
Электро- и газосварщики, газорезчики - при работе внутри судна; рабочие по очистке и окраске корпусов судов, маляры, кузнецы | 1610 | 1500 | 1540 |
Таблица 1.10
Нормативы численности вспомогательных рабочих,
ИТР, служащих и МОП
Специальность | Численность в % |
при числе производственных рабочих |
до 100 чел. | 100 - 250 чел. | свыше 250 чел. |
Вспомогательные рабочие от числа производственных рабочих | 14 | 12 | 10 |
Обслуживающий персонал от общего количества рабочих: | | | |
- ИТР; | 5 | 4 | 4 |
- Служащие; | 1,5 | 1,0 | 0,5 |
- МО | 1,5 | 1,0 | 0,5 |
Таблица 1.11
Цехи, отделения, участки | Величина показателя, м2 |
Механосборочные цехи (участки): | |
а) удельная площадь станочного отделения на один производственный станок (с учетом площади для организации рабочего места); | 25 |
б) удельная площадь слесарно-сборочного отделения на одного слесаря в наибольшую смену. | 12 |
Цехи металлоконструкций: | |
а) корпусные отделения: | |
1) удельная площадь на единицу основного технологического оборудования отделения (с учетом площади для организации рабочего места) | 50 |
б) трубопроводные отделения: | |
1) удельная площадь, занятая оборудованием на единицу основного технологического оборудования (с учетом площади для организации рабочего места) | 25 |
2) удельная площадь трубослесарного отделения на одного производственного рабочего в наибольшую смену. | 8 |
Электроремонтные цехи (участки): | |
а) удельная площадь, занятая оборудованием на единицу основного технологического оборудования (с учетом площади для организации рабочего места); | 20 |
б) удельная площадь электрослесарного отделения на одного производственного рабочего в наибольшую смену. | 12 |
Деревообделочные цехи (участки): | |
а) удельная площадь: | |
1) на один деревообрабатывающий станок (длина деталей до 3,0 м); | 30 - 40 |
2) на один столярный верстак; | 12 |
3) на один плотничный верстак; | 25 |
4) на одну деревосборочную позицию. | 25 |
Такелажные цехи (участки) | |
- удельная площадь на одного производственного рабочего в наибольшую смену. | 12 |
Примечания 1 Производственные площади подразделений, определенные по нормам настоящей таблицы, учитывают все основные и вспомогательные площади, включая цеховые кладовые, проезды, проходы и другие (вспомогательные площади, за исключением магистральных проездов, трансформаторных и распределительных подстанций, вентиляционных камер, санитарных узлов и т.д.). 2 Нормами настоящей таблицы не учтены: - в механосборочных участках: площади моечно-дефектовочных отделений (участков), которые определяются при конкретном проектировании; - в электроремонтных участках: площади пропиточных участков, испытательных станций и аккумуляторно-зарядных помещений, включаемых в состав цеха при наличии соответствующей необходимости и определяемых при конкретном проектировании. 3 Отделения (участки) жестяницких работ учтены в нормах удельной площади трубопроводных отделений. 4 Количество производственных рабочих в наибольшую смену, учитываемое в расчетах площадей электро- и трубослесарного отделений, принимается без количества рабочих, закрепленных на основном технологическом оборудовании. 5 Отделения горячих работ (кузнечные и термические) проектируются по действующим нормам технологического проектирования кузнечных цехов машиностроительных заводов и нормам технологического проектирования термических отделений машиностроительных заводов и только при отсутствии возможности кооперации со специализированными предприятиями. |
Таблица 1.12
Размеры пролетов и рекомендуемые
подъемно-транспортные средства
Характеристика отделений и участков | Ширина пролета, м | Шаг колонн, м | Подъемно-транспортные средства | Высота, м |
Наименование | Максимальная масса узлов и деталей ремонтируемого оборудования | Вид | Максимальная грузоподъемность, т | до низа строительных конструкций | до головки рельса подкранового пути | от пола до пола |
| Одноэтажные здания бескрановые и с подвесными средствами | | | | |
Станочные и общеслесарные отделения механосборочных цехов; электроремонтные цехи; заготовительные и трубопроводные отделения корпусных цехов; кузнечные и термические отделения и т.д. | до 5 | 18; 24 | 12 | Напольный транспорт; подвесной однобалочный кран, консольные краны | 0,5 - 5 | 6; 7,2; 8,4; 9,6 | - | - |
Монорельсы с электрическими талями | 0,5 - 3,2 | | | |
| Одноэтажные крановые здания | | | | |
Сборочно-разборочные участки слесарных отделений; сварочно-сборочные участки корпусных цехов и другие специализированные участки | до 10 | 18; 24 | 12 | Мостовые электрические краны | 10 | 9,6; 10,8; 12,6 | 6,95; 8,15; 9,65 | - |
20/5 | | | |
| Многоэтажные здания | | | | |
Все подразделения | До 3,2 | 6; 9 | 6 | Напольный транспорт, подвесной однобалочный кран | 0,5 - 3,2 | | | 4,8; 6,0; 7,2 |
Примечания 1 При наличии специального обоснования допускается применение электромостового крана грузоподъемностью 5 т. 2 Подвесные однобалочные краны грузоподъемностью от 3,2 т могут быть установлены в один или два ряда по ширине пролета. 3 Размещение производственных подразделений мастерских в многоэтажных зданиях, как правило, не рекомендуется и допускается только в тех случаях, когда это диктуется заданием на проектирование (например, при необходимости ввиду стесненного генплана блокировки мастерских в одном здании с другими портовыми службами). |
Таблица 1.13
Высота производственных помещений
Обозначение | Параметры | Величина |
A | Высота вспомогательного оборудования (например, стенда), на которое устанавливается изделие | По технической характеристике |
B | Высота подъема изделия над оборудованием при его установке | Принимается 500 мм |
C | Высота транспортируемого изделия | По технической характеристике |
D | Высота застропки (угол застропки = 45°) | Определяется по ширине изделия и углу застропки |
E1 | Расстояние от верхнего положения крюка до головки подкранового рельса | Конструктивные размеры, принимаемые по паспортным данным кранов и строительным конструкциям |
E2 | Расстояние от верхнего положения крюка до нижней полки ходового двутавра |
F | Высота ходового двутавра с учетом способа его крепления к низу строительной конструкции |
H1 | Высота до головки подкранового рельса - для мостового крана | H1 = A + B + C + D + E1 |
H2 | Высота до низа строительной конструкции - для подвесного крана | H2 = A + B + C + D + E2 + F |
M | Расстояние от уровня пола до верхней точки наиболее высокого стационарно установленного оборудования с учетом крайнего положения движущихся частей этого оборудования и возможности его разборки | По технической характеристике оборудования |
P | Расстояние от нижнего габарита кабины управления или кабины для обслуживания троллеев (при мостовом кране), до верхней грани наиболее высокого оборудования | Принимается не менее 400 мм |
K1 | Расстояние от нижнего габарита кабины управления или кабины для обслуживания троллеев до головки подкранового рельса | Конструктивные размеры, принимаемые по паспортным данным кранов и строительным конструкциям |
K2 | Высота крана от низа свисающего кабеля до нижней полки ходового двутавра |
F | Высота ходового двутавра с учетом способа его крепления низу строительной конструкции |
H1 | Высота до головки подкранового рельса - для мостового крана | H1 = M + P + K1 |
H2 | Высота до низа строительной конструкции - для подвесного крана | H2 = M + P + K2 + F |
Таблица 1.14
Технологические требования к полам
Наименование помещения | Грузоподъемность напольного транспорта, т | Удельное давление от сосредоточенных нагрузок Н/см (кгс/см) | Масса предметов, кг, падающих с высоты 1 м |
Станочные и слесарно-сборочные участки механосборочных и электроремонтных цехов | 0,5 - 5,0 | 1000(100) | 10 |
Участки гидравлических испытаний и мойки деталей, приготовления эмульсионной смазки | 0,5 - 5,0 | 1000(100) | 5 |
Корпусно-котельные, трубопроводные и сварочные участки цехов металлоконструкций, участки жестяницких работ, намоточные участки электроремонтных цехов, такелажные цехи, цеховые кладовые металлов, заготовок, комплектации инструмента и приспособлений | 0,5 - 5,0 | 1000(100) | 10 |
Участки ремонта топливной аппаратуры, контрольно-измерительных приборов и автоматики | 0,5 - 1,0 | 200(20) | 2 |
Деревообделочные цехи (участки) | 0,5 - 0,3 | 500(50) | 5 |
Кузнечные участки | 0,5 - 2,0 | 1000(100) | 10 |
Термические участки | 0,5 - 2,0 | 1000(100) | 5 |
Заточное отделение | 0,5 - 2,0 | 1000(100) | 5 |
Испытательная станция ДВС | 0,5 - 5,0 | 1000(100) | 10 |
Сушильно-пропиточные участки электроремонтных участков | 0,5 - 2,0 | 1000(100) | 10 |
Участок малярных работ; кладовые и склады красок, масел и лаков в таре; участки приготовления клея | 0,5 - 3,0 | 500(50) | 5 |
Склад материальный | 0,5 - 3,0 | 1000(100) | 10 |
Склады баллонов с техническими газами (кислород, ацетилен, пропан-бутан) | 0,5 - 1,0 | 500(50) | 5 |
Склад ГСМ | 0,5 - 3,0 | 1000(100) | 5 |
Участки заливки подшипников, гальванический и металлизации защитных покрытий цеха металлоконструкций | 0,5 - 2,0 | 500(50) | 10 |
Участки ремонта и вулканизации конвейерных лент | 0,5 - 1,0 | 500(50) | 5 |
Компрессорные станции | 0,5 - 3,0 | 500(50) | 5 |
Таблица 1.15
Воздействие на пол применяемых жидкостей
Воздействие на пол применяемых жидкостей | Требования к полам |
Воды и растворов нейтральной реакции | Минеральных масел и эмульсий из них | Бензина и керосина | Кислот | Щелочей | пылеотделению | безыскровости | другие |
концентрация % не более | интенсивность | концентрация % не более | интенсивность |
малое (на участках шлифовальных работ) | среднее (на участках обкатки агрегатов) | малое (в исключительных случаях) | не применяется | не применяется | 8 | малая | малое | допускается искрение | |
среднее | малое | малое | не применяется | не применяется | 8 | малая | малое | допускается искрение | |
малое | малое | не применяется | не применяется | не применяется | 8 | средняя | малое | допускается искрение | |
большое | большое | среднее | не применяется | не применяется | 8 | средняя | малое | допускается искрение | |
малое (на участках заточки инструмента) | не применяется | не применяется | не применяется | не применяется | 8 | средняя | малое | допускается искрение | |
малое | не применяется | не применяется | не применяется | не применяется | 8 | средняя | малое | допускается искрение | стойкость к воздействию нагретых заготовок и деталей до 800 °C |
среднее | большое | не применяется | 10 20 | средняя | 10 | средняя | малое | допускается искрение | |
малое | малое | малое | не применяется | не применяется | не применяется | не применяется | среднее | допускается искрение | |
малое | малое | малое | не применяется | не применяется | не применяется | не применяется | малое | допускается искрение | |
малое (в исключительных случаях) | не применяется | малое | не применяется | не применяется | не применяется | не применяется | малое | искрение не допускается | применяются лаки типов 447 ГФ-95, МГМ-3 с органическими растворителями (Ксилол, уайт-спирит) |
малое (на участках приготовления клея) | малое | малое | не применяется | не применяется | не применяется | не применяется | малое | искрение не допускается | применяются лаки, краски, растворители, масла |
малое | не применяется | не применяется | не применяется | не применяется | не применяется | не применяется | малое | искрение не допускается | |
малое | большое | не применяется | не применяется | не применяется | 8 | малая | малое | допускается искрение | |
не применяется | не применяется | не применяется | не применяется | не применяется | - | не применяется | малое | искрение не допускается | |
не применяется | не применяется | не применяется | не применяется | не применяется | не применяется | не применяется | малое | искрение не допускается | |
малое | большое | большое | не применяется | не применяется | 8 | малая | малое | искрение не допускается | |
малое | малое | не применяется | не применяется | не применяется | 8 | малая | среднее | допускается искрение | |
малое | малое | малое | не применяется | не применяется | 8 | малая | малое | допускается искрение | |
малое | малое | не применяется | не применяется | не применяется | 8 | средняя | малое | допускается искрение | |
Таблица 1.16
Рекомендации по размещению отделений и участков
Подразделения | Рекомендации по размещению |
1 | 2 |
1 Станочный и общеслесарный участок, отделение ремонта ДВС, ремонта средств портовой механизации; заготовительные, корпусно-котельные, сборочно-сварочные, трубопроводные участки цехов металлоконструкций, участки ремонта топливной аппаратуры, контрольно-измерительных приборов и автоматики, жестяницких работ, станочные, слесарно-сборочные, электроремонтный участок, столярно-плотницкий участок, кузнечный с термическим участком, участок холодной обработки тросов, пошива и ремонта брезентов, кузнечно-сварочных работ такелажного цеха | В пролетах соответствующих участков либо блоков цехов |
2 Эмульсионная станция, заточное отделение моечно-дефектовочные отделения, участки сварки, заливки подшипников, металлизации и защитных покрытий, парусно-обойные участки | В специально выгороженных помещениях у наружной стены одноэтажного здания с выводом наружу |
3 Склады баллонов с техническими газами, материально-технического обеспечения, компрессорные станции, склады красок и химикатов, легковоспламеняющихся жидкостей (ГСМ) | В отдельно стоящих одноэтажных зданиях |
4 Участки испытания такелажа, очистки и грунтовки листового и профильного металла, испытания корпусных конструкций на водонепроницаемость, участки ремонта судовых якорных цепей | На открытых площадках или под навесом |
Таблица 1.17
Классификация рабочих специальностей по группам санитарной
характеристики производственных процессов
Наименование профессий | Группа |
Обойщики, лаборанты, рабочие по ремонту радиооборудования и КИП | Iа |
Станочники, слесари, электрики, столяры, плотники, жестянщики, корпусники, складские рабочие, сварщики | Iб |
Станочники (с применением охлаждающих жидкостей), такелажники, трубопроводчики, слесари-ремонтники (ОГМ) | Iв |
Рабочие электроремонтных и окрасочных цехов, обслуживающие сушильные камеры | IIа |
Кузнецы, литейщики, газорезчики, термисты | IIб |
Рабочие моечных участков | IIв |
Рабочие гальванических участков, маляры, медники, шиноремонтники, аккумуляторщики, изолировщики, электрики на пропитке | IIIб |
Рабочие на наружных работах и на судах при t не ниже -5 °C | IIд |
Станочники на обработке чугуна, дробеметчики | IIг |
Внимание! Если пропитка и сушка выполняются в одном помещении, принимают группу IIIб. |
Таблица 1.18
Категории производства по пожароопасности
Наименование | Категория |
Участки топливной аппаратуры, зарядные, окрасочные, краскозаготовительные, лакировочные, сушильно-пропиточные, склады лакокрасочных материалов | А |
Лесопильные, деревоцехи, обойно-пошивочные, помещения стоянки автомашин и автопогрузчики центральные, склады, шиноремонтные, склады с материалами в сгораемой упаковке | В |
Кузнечно-термические, корпусо-сварочные, медницкие, литейные, участки наплавок, трубопроводные (с применением сварки) | Г |
Остальные производства | Д |
Внимание! При установлении категории производства в степени пожарной опасности, размещаемого в сблокированном здании, более пожароопасное производство можно не учитывать, если площадь, занимаемая этим производством, не превышает 10% полезной площади помещений с менее пожароопасными производствами и составляет не более 200 м2 и если при этом будут предусмотрены специальные мероприятия - выделение перегородками, устройство местной вытяжной вентиляции и др. |
Таблица 1.19
Классификация производственных помещений
по взрыво- и пожароопасности (по
ПУЭ-85)
Наименование помещений | Класс | Характеристика среды |
Зарядные | в помещении стоянки погрузчиков | ВIа | хим. активная |
в изолированном помещении | ВIб | хим. активная |
Центральный материальный склад | ПIIа | нормальная |
Сушильно-пропиточное отделение | ВIа | нормальная |
Участок топливной аппаратуры | ВIб | нормальная |
Лесопильный цех | ПII | нормальная |
Склад лакокрасочных материалов | с разливом в складе | ВIа | нормальная |
без разлива в складе | ВIб | нормальная |
Краскозаготовительная | ВIа | нормальная |
Окрасочная | при окраске на верстаках | ВIб | нормальная |
при окраске и сушке в камерах | ВIа | нормальная |
Лаборатория окрасочного цеха | ВIб | нормальная |
Деревоцех | станочное отделение | ПII | нормальная |
столярно-сборочное отделение | ПIIа | нормальная |
плотницкое отделение | ПII | нормальная |
пилоножеточное отделение | - | пыльная |
клеильно-фанеровальное отделение | ПII | нормальная |
Склад кислот и щелочей | - | хим. активная влажная |
Кузнечный и термический цехи | - | пыльная жаркая |
Корпусо-сварочный цех | - | пыльная |
Гальванический участок | - | хим. активная влажная |
Медницкий участок | - | пыльная жаркая |
Обойно-пошивочный участок | ПIIа | нормальная |
Шиноремонтное отделение | ВIб | нормальная |
Электролитная | - | хим. активная влажная |
Механосборочный, дизельный, электроремонтный, такелажный, трубопроводный, жестяницкий, авторемонтная, помещение стоянки автомашин И.Р.К., выпрямительная, помещение ремонта и хранения аккумуляторов, разборочно-моечный участок и пр. | - | нормальная |
(справочное)
УКРУПНЕННЫЕ ПОКАЗАТЕЛИ ТРУДОЕМКОСТИ РЕМОНТА
ПЕРЕГРУЗОЧНОЙ ТЕХНИКИ ДЛЯ ПРЕДПРОЕКТНЫХ РАСЧЕТОВ
Таблица 2.1
Укрупненные показатели трудоемкости ремонта перегрузочной
техники для предпроектных расчетов
Перегрузочные машины | Трудоемкость ремонта, тыс. чел.-ч |
Краны портальные г/п до 7,5 т | 1,4 |
Краны портальные г/п до 10 т и более | 2,3 |
Краны и краны-экскаваторы гусеничные | 0,7 |
Краны пневмоколесные, автомобильные и железнодорожные | 0,8 |
Краны мостовые и козловые | 0,4 |
Авто- и электропогрузчики, электротягачи и электрокары | 0,6 |
Тракторы, бульдозеры и автотягачи | 1,0 |
Трюмные и вагонные машины и ковшовые погрузчики | 1,7 |
Прицепы и полуприцепы | 0,2 |
Крановые перегружатели, контейнерные и грейферные | 6,3 |
Контейнерные погрузчики | 2,9 |
Стационарные ленточные конвейеры (на 100 м длины конвейера) | 0,7 |
Вагоноопрокидыватели | 2,5 |
Стакеры, реклаймеры и береговые погрузочные машины массой до 300 т, кратцер-краны | 3,7 |
То же, массой свыше 300 т | 6,6 |
Портальные перегружатели (разгрузчики) непрерывного действия | 12,2 |
Примечание - Годовая трудоемкость (сумма текущего ремонта и технического обслуживания) получается путем умножения данных таблицы на количество единиц перегрузочного оборудования. |
(справочное)
УКРУПНЕННЫЕ ПОКАЗАТЕЛИ ТЕХНОЛОГИЧЕСКИХ
ЭНЕРГЕТИЧЕСКИХ РАСХОДОВ РММ
Таблица 3.1
Укрупненные показатели технологических
энергетических расходов ремонтных мастерских
Показатель | Единица измерения | Величина показателя |
Установленная мощность технологического оборудования | кВт | 7,5 | На 1 произв. рабочего в наибольшую смену |
кВА | 2,0 |
Потребность газа для газопламенных работ: | м3/год | | На 1 произв. рабочего |
- кислород, | 60 |
- ацетилен, | 15 |
- природный газ | 50 |
Сжатый воздух | м3/мин | 0,085 |
Примечание - Показатели установленной мощности следует применять только на предпроектных стадиях (схемы, ТЭО и др.). |
(рекомендуемое)
СОСТАВ МИНИМАЛЬНОГО КОМПЛЕКТА
ТЕХНОЛОГИЧЕСКОГО ОБОРУДОВАНИЯ РММ
Таблица 4.1
Состав минимального комплекта
технологического оборудования РММ
Цех участок | Наименование оборудования | Техническая характеристика | Кол-во |
A. Механосборочный цех (участок) | Токарно-винторезный станок | Диаметр обработки x расстояние между центрами: | |
- 400 x 710 мм | 1 |
- 400 x 1000 мм | 1 |
- 400 x 1400 мм | 1 |
- 630 x 2800 мм | 1 |
Вертикально-сверлильный станок | Наибольший диаметр сверления 35 мм | 1 |
Универсальный горизонтально-фрезерный станок с поворотным столом | Рабочая поверхность стола 320 x 1250 мм | 1 |
Поперечно-строгальный станок | Ход ползуна - 700 мм | 1 |
Плоскошлифовальный станок | Размеры стола 300 x 1000 мм | 1 |
B. Цех металлоконструкций корпусно-кательный участок | Пресс-ножницы комбинированные | Лист 10 мм, круг 36 мм, швеллер 10, пробиваемое отверстие диаметром 5 мм. | 1 |
Пресс гидравлический правильный одностоечный | Номинальное усилие 10 тс | 1 |
Радиально-сверлильный станок | Наибольший диаметр сверления 50 мм | 1 |
Машина листогибочная трехвалковая | Толщина листа до 10 мм | 1 |
Газорезательная машина переносного типа | Для листов до 300 мм; количество резаков - 2 | 1 |
Полуавтомат шланговый для сварки под флюсом (с источником питания и шкафом управления) | Сварка стыковых и угловых швов переменным или постоянным током; номинальный сварочный ток до 500 А. Диаметр электродной проволоки 1,6 - 2,5 мм; мощность источника питания 30 кВт | 1 |
Полуавтомат шланговый для сварки в защитном газе (с источником питания и шкафом управления) | Сварка стыковых и угловых швов постоянным током. Номинальный сварочный ток 300 А; диаметр электродной проволоки 0,8 - 1,2 мм; мощность источника питания 22 кВт | 1 |
| ИТОГО | 7 |
Трубопроводный участок | Станок трубогибочный | Диаметр труб до 60 мм | 1 |
Станок отрезной | Диаметр труб до 90 мм | 1 |
Полуавтомат шланговый для сварки в среде углекислого газа | Сварка труб, приварка фланцев к трубам постоянным током, номинальный сварочный ток 300 А; диаметр сварочной проволоки 0,8 - 1,2 мм. | 1 |
Стенд гидравлический | Диаметр испытываемых труб 14 - 155 мм | 1 |
| ИТОГО | 4 |
Участки горячих работ | Молот ковочный электропневматический | Вес падающих частей до 150 кг | 1 |
Электропечь сопротивления камерная | Для закалки, отжига, нормализации различных деталей и инструмента; рабочая температура 1000 °C; рабочее пространство - 0,4 x 0,3 x 0,25 | 1 |
| Итого | 2 |
Вспомогательное оборудование |
| Обдирочно-шлифовальный станок | Наибольший диаметр шлифовального круга - 400 мм; число шлифовальных кругов | 1 |
Настольно-сверлильный станок | Наибольший диаметр сверления 12 мм; наибольшее перемещение шпинделя 100 мм | 1 |
Плита контрольная | Размеры 2000 x 1000 x 250 мм | 1 |
Плита разметочная | Размеры 2000 x 1000 x 250 мм | 1 |
Станок ножовочный | Наибольший размер устанавливаемой заготовки - 250 мм | 1 |
(справочное)
ПОТРЕБНОСТЬ В ОСНОВНЫХ МАТЕРИАЛАХ
ПРИ ТЕКУЩЕМ РЕМОНТЕ СУДОВ ПОРТОФЛОТА
Таблица 5.1
Потребность в основных материалах
при текущем ремонте судов портофлота
Типы судов | Мощность кВт/л.с., Грузоподъемность, т | Кол. Ед. | Корпус. Сталь, т | Пиломат., м3 | Фанера, м3 | Окрасочные материалы, т | Трубы, т | Кабель, м | Поковки, кг | Сортов. сталь Механ. цеха, кг |
Буксир-кантовщик | 600 л.с. | 1 | 0,7 | 1,4 | 0,1 | 0,5 | 0,12 | 70 | 75 | 11 |
Буксир-кантовщик | 1200 л.с. | 1 | 0,8 | 2,5 | 0,2 | 0,95 | 0,2 | 105 | 35 | 1 |
Буксир-кантовщик | 2300 л.с. | 1 | 2,3 | 5,3 | 0,3 | 1,5 | 0,4 | 240 | 80 | 2 |
Буксир-кантовщик | 3000 л.с. | 1 | 2,3 | 5,3 | 0,3 | 1,5 | 0,4 | 240 | 80 | 2 |
Буксир-кантовщик | 5000 л.с. | 1 | 2,3 | 5,3 | 0,3 | 1,5 | 0,4 | 240 | 80 | 2 |
Бункеровщик топлива | 3000 т | 1 | 0,3 | 0,9 | - | 0,6 | 0,15 | 25 | 35 | 4 |
Бункеровщик топлива | 1500 т | 1 | 0,3 | 0,9 | - | 0,6 | 0,15 | 25 | 35 | 4 |
Бункеровщик воды | 800 т | 1 | 0,3 | 0,9 | - | 0,62 | 0,14 | 25 | 35 | 4 |
Катер лоцманский | | 1 | 0,3 | 0,9 | - | 0,6 | 0,14 | 25 | 35 | 10 |
Катер швартовый | | 1 | 0,3 | 0,9 | - | 0,6 | 0,14 | 25 | 35 | 4 |
Катер служебный | | 1 | 0,3 | 0,9 | - | 0,6 | 0,14 | 25 | 35 | 4 |
Нефтемусоросборщик | | 1 | 0,2 | 1,8 | - | 0,5 | 0,07 | 18 | 32 | 1,5 |
Ледокол портовый | 3750 кВт | 1 | 1,7 | 3,8 | 0,15 | 0,8 | 0,36 | 120 | 95 | 2 |
Пожарное судно | | 1 | 0,2 | 0,9 | 0,004 | 0,9 | 0,002 | 5 | 15 | 5 |
Бонопостановщик | 514 л.с. | 1 | 0,2 | 0,9 | 0,004 | 0,9 | 0,002 | 5 | 15 | 5 |
Водолазный бот | | 1 | 0,2 | 0,9 | 0,004 | 0,9 | 0,002 | 5 | 15 | 5 |
Потребность в основных материалах для технического обслуживания судов портофлота принимается на уровне 10 - 15% от текущего ремонта судов.
(справочное)
ЧАСТОТНЫЕ ХАРАКТЕРИСТИКИ ПРОИЗВОДСТВЕННОГО ШУМА
ОСНОВНОГО ОБОРУДОВАНИЯ В МАСТЕРСКИХ
Таблица 6.1
Частотные характеристики производственного шума
основного оборудования в мастерских
Наименование оборудования | Общий уровень шума, дБ | Средне-геометрические частоты октавных полос, ГЦ | Сумма длительности воздействия, часы в течение смены |
63 | 125 | 250 | 500 | 1000 | 2000 | 4000 | 8000 |
Уровни звукового давления в октавных полосах, дБ |
Пресс-ножницы | 106 | 94 | 98 | 96 | 93 | 96 | 91 | 92 | 90 | 1,5 |
Трансформатор сварочный | 95 | 85 | 90 | 92 | 92 | 89 | 86 | 84 | 87 | 14,0 |
Плита правильная | 90 | 70 | 76 | 83 | 86 | 90 | 91 | 92 | 90 | 1,0 |
Станок вертикально-сверлильный | 87 | 69 | 60 | 76 | 80 | 83 | 80 | 72 | 62 | 1,5 |
Станок заточной | 85 | 78 | 86 | 84 | 85 | 85 | 79 | 80 | 80 | 1,5 |
Компрессор передвижной | 94 | 86 | 85 | 85 | 86 | 85 | 81 | 76 | 67 | 4,0 |
Станок трубогибочный | 95 | 78 | 84 | 88 | 88 | 89 | 86 | 83 | 70 | 2,0 |
Краны подвесные | 88 | 73 | 76 | 80 | 81 | 76 | 74 | 73 | 73 | 3,0 |
Станок токарно-винторезный | 82 | 80 | 84 | 85 | 85 | 84 | 80 | 80 | 80 | 2,5 |
Станок фрезерный | 76 | 65 | 70 | 76 | 80 | 76 | 70 | 70 | 58 | 2,5 |
Станок абразивно-отрезной | 75 | 61 | 69 | 75 | 75 | 71 | 67 | 58 | 58 | 2,0 |
Пресс монтажный | 89 | 88 | 90 | 91 | 95 | 91 | 84 | 73 | 70 | 1,5 |
Станок настольно-сверлильный | 68 | 66 | 68 | 72 | 75 | 75 | 72 | 69 | 68 | 3,0 |
Станок комбинированный | 87 | 87 | 93 | 92 | 97 | 98 | 98 | 97 | 92 | 3,0 |
(справочное)
ОСНОВНЫЕ ТРАНСПОРТНЫЕ ХАРАКТЕРИСТИКИ
И ФИЗИКО-ХИМИЧЕСКИЕ СВОЙСТВА АММИАЧНОЙ СЕЛИТРЫ
Минтранса России от 09.03.2023 N 71)
Наименование свойства, характеристики | Показатели |
Насыпная плотность, т/м3 | 0,80 - 0,83 |
Удельный погрузочный объем, м3/т | Около 1,0 |
Угол естественного откоса | Около 30° (27° - 42°) |
Влажность, % | 0,14 - 1,0 - гранулированная | 0,2 - 0,1 - кристаллическая |
Гигроскопичность | Значительная, растворима в воде, при влажности 0,2 - 0,6% |
Слеживаемость | II - IV степень (от слабой до средней степени слеживаемости) |
Коррозионность | При увлажнении коррозионноактивна |
Пожароопасность | Пожароопасна |
Самовозгораемость | t° самовоспламенения 350° |
Взрывоопасность | Взрывоопасна |
Рекомендуемая предельно допустимая концентрация пыли в воздухе рабочей зоны, мг/м3: | 10,0 |
| Постановление Правительства Российской Федерации от 12.08.2010 N 620 "Об утверждении технического регламента о безопасности объектов морского транспорта" |
| Руководящий документ РД 31.3.05-97 Нормы технологического проектирования морских портов |
| Руководящий документ РД 31.3.01.01-93 Руководство по технологическому проектированию морских портов |
| Федеральный закон от 27.12.2002 N 184-ФЗ "О техническом регулировании" |
| Руководящий документ РД 31.82.01-95 Требования безопасности труда, которые должны учитываться при проектировании новых, реконструкции и модернизации действующих морских портов, перегрузочных комплексов и отдельных объектов |
| Руководящий документ РД 31.31.54-92 Перечень зданий, помещений и сооружений морского транспорта с указанием категорий взрывопожарной и пожарной опасности и класса зон |
| Федеральный закон от 10.01.2002 N 7-ФЗ "Об охране окружающей среды" |
| Федеральный закон от 4 мая 1999 г. N 96-ФЗ "Об охране атмосферного воздуха" |
| Руководящий документ РД 31.06.05-85 Методика определения выбросов пыли в атмосферу при перегрузке сыпучих грузов |
| Руководящий документ РД 31.06.06-86 Методика расчета выбросов вредных веществ в атмосферу в морских портах |
| Инструкция по экологическому обоснованию хозяйственной и иной деятельности, Минприроды, 1995 г. |
| Инструкция по нормированию выбросов (сбросов) загрязняющих веществ в атмосферу и в водные объекты, Госкомприроды, 1989 г. |
| Международная конвенция по предотвращению загрязнения с судов (МАРПОЛ 73/78) |
| Руководящий документ РД 31.04.23-94 Наставление по предотвращению загрязнения с судов |
| Руководящий документ РД 31.11.32.01-84. Правила морской перевозки разрядных грузов |
| Методика расчета предельно допустимых сбросов (ПДС) веществ в водные объекты со сточными водами, Госкомприроды, 1990 г. |
| Руководящий документ РД 31.06.01-79 Инструкция по сбору, удалению и обезвреживанию мусора морских портов |
| Федеральный закон от 21.07.1997 N 116-ФЗ "О промышленной безопасности опасных производственных объектов" |
| Федеральный закон от 30.03.1999 N 52-ФЗ "О санитарно-эпидемиологическом благополучии населения" |
| Федеральный закон от 22.07.2008 N 123-ФЗ "Технический регламент о требованиях пожарной безопасности" |
| Федеральный закон от 08.11.2007 N 261-ФЗ "О морских портах в Российской Федерации и о внесении изменений в отдельные законодательные акты Российской Федерации" |
| Общесоюзный нормативный документ ОНД-90 "Руководство по контролю источников загрязнения атмосферы" (утв. постановлением Госкомприроды СССР от 30 октября 1990 г. N 8) |
| Федеральный закон от 29.12.2004 N 190-ФЗ "Градостроительный кодекс Российской Федерации" |
| Руководящий документ РД 31.31.46-88 Методика расчета и конструирования жестких покрытий территории морских портов |
| Федеральный закон от 30.12.2009 N 384-ФЗ "Технический регламент о безопасности зданий и сооружений" |
| Постановление Правительства Российской Федерации от 16.02.2008 N 87 "О составе разделов проектной документации и требования к их содержанию" |
| Руководящий документ РД 31.31.55-93 Инструкция по проектированию морских причальных и берегоукрепительных сооружений |
[28] | Приказ Минтранса России от 21.12.2010 N 286 Правила технической эксплуатации железных дорог Российской Федерации |
| Правила морской перевозки опасных грузов. Правила (МОПОГ). РД 31.15.01-89 |
| Постановление Правительства Российской Федерации от 25.04.2012 N 390 "О противопожарном режиме" |
| |
| | ИС МЕГАНОРМ: примечание. В официальном тексте документа, видимо, допущена опечатка: данный документ упоминается дважды. | |
|
| Руководящий документ РД 31.31.46-88 Методика расчета и конструирования жестких покрытий территории морских портов |
| Распоряжение Минтранса России от 03.12.2003 N ОС-1066-р Методические рекомендации по проектированию жестких дорожных одежд |
| Руководящий документ РД 31.30.11.01-84 Руководство по технологическому проектированию связи и сигнализации в морских портах и на судоремонтных предприятиях. Проводные средства связи |
| Руководящий документ РД 78.36.006-2005 Выбор и применение технических средств охранной, тревожной сигнализации и средств инженерно-технической открепленности для оборудования объектов. Рекомендации |
| Постановление Правительства Российской Федерации от 25.12.2007 N 930 "Общие требования к строительству, реконструкции, оборудованию и техническому оснащению зданий, помещений и сооружений, необходимые для организации пограничного, таможенного и иных видов контроля, осуществляемого в пунктах пропуска через государственную границу Российской Федерации" |
| Р 2.2.2006-05 "Руководство по гигиенической оценке факторов рабочей среды и трудового процесса. Критерии и классификация условий труда" |
| Типовой перечень ежегодно реализуемых работодателем мероприятий по улучшению условий и охраны труда и снижению уровней профессиональных рисков. Утвержден приказом Минздравсоцразвития России от 01.03.2012 N 181н |
| Постановление Минтрудсоцразвития России от 27.02.1995 N 11 "Об утверждении рекомендаций по планированию мероприятий по охране труда" |
| Постановление Минздравсоцразвития России и Минобразования России от 13.01.2003 N 1/29 "Об утверждении порядка обучения по охране труда и проверки знаний требований охраны труда работников организаций" |
| Постановление Минтрудсоцразвития России от 17.01.2001 N 7 "Об утверждении рекомендаций по организации работы кабинета охраны труда и уголка охраны труда" |
| Приказ Минздравсоцразвития России от 05.03.2011 N 169н "Об утверждении требований к комплектации изделиями медицинского назначения аптечек для оказания первой помощи работникам" |
[43] | Суколенов А.Е., Алимкина Т. Определение среднего количества технологических линий на судне. Труды Союзморниипроекта, 1980, выпуск 53, с. 27 - 38 |
| Руководящий документ РД 31.31.37.50-87 Руководство по проектированию объектов комплексного обслуживания транспортного флота |
| Международный кодекс по охране судов и портовых средств (МК ОСПС) |
| Руководящий документ РД 31.27.05-99. Инструкция по приему, хранению, отпуску на суда и контролю качества топлив и смазочных материалов на нефтебазах и складах |
| Международное руководство по безопасности для нефтяных танкеров и терминалов (ISGOTT) |
| Руководящий документ РД 31.31.48-88 Прогрессивные показатели технического уровня и строительных решений в проектах строительства морских портов |
| Руководящий документ РД 31.31.45-87 Инструкция по проектированию гидротехнических сооружений морских паромных переправ |
| Руководящий документ РД 31.03.01-90 Технико-экономические характеристики судов морского флота |
| Нормы технологического проектирования портов на внутренних водных путях. Утверждены Минтрансом России, 1997 г. |
| Директивное письмо Минречфлота РСФСР от 10.08.1988 N 111 |
| МДС 41-1.99 Рекомендации по противодымной защите при пожаре (к СНиП 2.04.05-91*) |
| | ИС МЕГАНОРМ: примечание. В официальном тексте документа, видимо, допущена опечатка: руководящий документ "Нормы технологического проектирования судоремонтных заводов" имеет номер РД 31.31.15.01-88, а не РД 31.31.15-88. | |
|
| Руководящий документ РД 31.31.15-88 Нормы технологического проектирования судоремонтных заводов |
[55] | Руководящий документ РД 31.41.01.03-79 Книга 3. Карты типовых и опытных технологических процессов перегрузочных работ в морских портах |
| Руководящий документ РД 31.04.01-90 Правила ведения работ по очистке загрязненных акваторий портов |
[57] | МДС 35-9.2000 Рекомендации по проектированию окружающей среды, зданий и сооружений с учетом потребностей инвалидов и других маломобильных групп населения. Выпуск 19. Общественные здания и сооружения. Здания и сооружения транспортного назначения |
| Руководящий документ РД 31.33.03-81 Руководство по определению влияния ветра и волн на условия обработки судов при проектировании морских портов |
| Постановление Правительства Российской Федерации от 2.02.2005 N 50 "О порядке применения средств и методов контроля на пограничных переходах" |
| Руководящий документ РД 31.11.25.00-96 Правила морской перевозки продовольственных грузов. Общие требования |
[61] | Постановление Правительства Российской Федерации от 19.01.1998 N 60 "Об утверждении Положения о пунктах пропуска через государственную границу Российской Федерации" |
| Постановление Правительства Российской Федерации от 26.06.2008 N 482 "Об утверждении правил установления, открытия, функционирования (эксплуатации), реконструкции и закрытия пунктов пропуска через государственную границу Российской Федерации" (с изм. и доп.) |
| Федеральный закон Российской Федерации от 9 февраля 2007 года N 16-ФЗ "О транспортной безопасности" |
| Руководящий документ РД 31.41.04-79 Карты типовых и опытных технологических процессов перегрузочных работ в морских портах. Часть 4. Карты типовых и опытных технологических процессов перегрузочных работ с опасными грузами |
| Руководящий документ РД 31.21.81-79 Инструкция по электроснабжению судов от береговых сетей |
| Международный кодекс морской перевозки навалочных грузов (МКМПНГ) |
(позиция введена Изменением N 1, утв. Приказом Минтранса России от 09.03.2023 N 71) |
| Информационно-технический справочник по наилучшим доступным технологиям ИТС НДТ 46-2019, Москва, Бюро НДТ, 2019 |
(позиция введена Изменением N 1, утв. Приказом Минтранса России от 09.03.2023 N 71) |
УДК [627.2](083.74) | |
Ключевые слова: нормы, технологическое проектирование, морской порт, терминалы, портовый флот |