Главная // Актуальные документы // ГОСТ (Государственный стандарт)СПРАВКА
Источник публикации
М.: Стандартинформ, 2018
Примечание к документу
Документ
введен в действие с 1 октября 2018 года.
Название документа
"ГОСТ 34379-2018. Межгосударственный стандарт. Конструкции ограждающие светопрозрачные. Правила обследования технического состояния в натурных условиях"
(введен в действие Приказом Росстандарта от 18.09.2018 N 608-ст)
"ГОСТ 34379-2018. Межгосударственный стандарт. Конструкции ограждающие светопрозрачные. Правила обследования технического состояния в натурных условиях"
(введен в действие Приказом Росстандарта от 18.09.2018 N 608-ст)
агентства по техническому
регулированию и метрологии
от 18 сентября 2018 г. N 608-ст
МЕЖГОСУДАРСТВЕННЫЙ СТАНДАРТ
КОНСТРУКЦИИ ОГРАЖДАЮЩИЕ СВЕТОПРОЗРАЧНЫЕ
ПРАВИЛА ОБСЛЕДОВАНИЯ ТЕХНИЧЕСКОГО СОСТОЯНИЯ
В НАТУРНЫХ УСЛОВИЯХ
Translucent enclosing structures. Rules of inspection
of technical conditions under natural conditions
ГОСТ 34379-2018
Дата введения
1 октября 2018 года
Цели, основные принципы и основной порядок проведения работ по межгосударственной стандартизации установлены в
ГОСТ 1.0-2015 "Межгосударственная система стандартизации. Основные положения" и
ГОСТ 1.2-2015 "Межгосударственная система стандартизации. Стандарты межгосударственные, правила и рекомендации по межгосударственной стандартизации. Правила разработки, принятия, обновления и отмены"
1 РАЗРАБОТАН Обществом с ограниченной ответственностью "Центр нормирования и исследования строительных конструкций" (ООО "ЦНИСК"), Техническим комитетом по стандартизации ТК 400 "Производство работ в строительстве, типовые технологические, организационные процессы"
2 ВНЕСЕН Федеральным агентством по техническому регулированию и метрологии
3 ПРИНЯТ Межгосударственным советом по стандартизации, метрологии и сертификации (протокол от 30 апреля 2018 г. N 108-П)
За принятие проголосовали:
Краткое наименование страны по МК (ИСО 3166) 004-97 | Код страны по МК (ИСО 3166) 004-97 | Сокращенное наименование национального органа по стандартизации |
Армения | AM | Минэкономики Республики Армения |
Беларусь | BY | Госстандарт Республики Беларусь |
Казахстан | KZ | Госстандарт Республики Казахстан |
Киргизия | KG | Кыргызстандарт |
Молдова | MD | Институт стандартизации Молдовы |
Россия | RU | Росстандарт |
4
Приказом Федерального агентства по техническому регулированию и метрологии от 18 сентября 2018 г. N 608-ст межгосударственный стандарт ГОСТ 34379-2018 введен в действие в качестве национального стандарта Российской Федерации с 1 октября 2018 г.
5 ВВЕДЕН ВПЕРВЫЕ
Информация об изменениях к настоящему стандарту публикуется в ежегодном информационном указателе "Национальные стандарты", а текст изменений и поправок - в ежемесячном информационном указателе "Национальные стандарты". В случае пересмотра (замены) или отмены настоящего стандарта соответствующее уведомление будет опубликовано в ежемесячном информационном указателе "Национальные стандарты". Соответствующая информация, уведомление и тексты размещаются также в информационной системе общего пользования - на официальном сайте Федерального агентства по техническому регулированию и метрологии в сети Интернет (www.gost.ru)
1.1 Настоящий стандарт устанавливает правила проведения работ по обследованию светопрозрачных ограждающих конструкций (далее - СПК) зданий и сооружений, регламентирует требования к работам и их составу.
1.2 Настоящий стандарт распространяется на проведение работ по обследованию технического состояния СПК зданий и сооружений, контроля состояния безопасности СПК в натурных условиях для получения информации по оценке возможности их восстановления при ремонте или необходимости их замены.
Требования настоящего стандарта не распространяются на обследование технического состояния СПК специального назначения: противопожарные, защитные, пулестойкие, взрывобезопасные, а также на мансардные окна, светопрозрачные покрытия и зенитные фонари, СПК с заполнением из светопропускающих пластмасс, с светопрозрачными заполнениями с электротехническими элементами.
1.3 Настоящий стандарт предназначен для применения в натурных условиях для оценки состояния СПК по окончании строительства (в том числе после капитального ремонта, реконструкции) зданий и сооружений, а также в течение всего периода эксплуатации объектов.
Стандарт может быть использован при проектировании окон и балконных дверей, ленточного и балконного остекления, витражных конструкций, организации строительства, проведении работ в ходе нового строительства, при реконструкции, ремонте, эксплуатации и утилизации.
В настоящем стандарте использованы нормативные ссылки на следующие межгосударственные стандарты:
ГОСТ 8.423-81 Государственная система обеспечения единства измерений. Секундомеры механические. Методы и средства поверки
ГОСТ 9.308-85 Единая система защиты от коррозии и старения. Покрытия металлические и неметаллические неорганические. Методы ускоренных коррозионных испытаний
ГОСТ 12.4.059-89 Система стандартов безопасности труда. Строительство. Ограждения предохранительные инвентарные. Общие технические условия
ГОСТ 12.0.004-2015 Система стандартов безопасности труда. Организация обучения безопасности труда. Общие положения
ГОСТ 12.1.046-2014 Система стандартов безопасности труда. Строительство. Нормы освещения строительных площадок
ГОСТ 112-78 Термометры метеорологические стеклянные. Технические условия
ГОСТ 166-89 (ИСО 3599-76) Штангенциркули. Технические условия
ГОСТ EN 410-2014 Стекло и изделия из него. Методы определения оптических характеристик. Определение световых и солнечных характеристик
ГОСТ 427-75 Линейки измерительные металлические. Технические условия
ГОСТ 538-2014 Изделия замочные и скобяные. Общие технические условия
ГОСТ 577-68 Индикаторы часового типа с ценой деления 0,01 мм. Технические условия
ГОСТ 896-69 Материалы лакокрасочные. Фотоэлектрический метод определения блеска
ГОСТ 6359-75 Барографы метеорологические анероидные. Технические условия
ГОСТ 6376-74 Анемометры ручные со счетным механизмом. Технические условия
ГОСТ 6416-75 Термографы метеорологические с биметаллическим чувствительным элементом. Технические условия
ГОСТ 7076-99 Материалы и изделия строительные. Метод определения теплопроводности и термического сопротивления при стационарном тепловом режиме
ГОСТ 7502-98 Рулетки измерительные металлические. Технические условия
ГОСТ 7721-89 Источники света для измерений цвета. Типы. Технические требования. Маркировка
ГОСТ 7948-80 Отвесы стальные строительные. Технические условия
ГОСТ EN 12898-2014 Стекло и изделия из него. Методы определения тепловых характеристик. Определение коэффициента эмиссии
ГОСТ 13646-68 Термометры стеклянные ртутные для точных измерений. Технические условия
ГОСТ 16588-91 (ИСО 4470-81) Пилопродукция и деревянные детали. Методы определения влажности
ГОСТ 19300-86 Средства измерений шероховатости поверхности профильным методом. Профилографы - профилометры контактные. Типы и основные параметры
ГОСТ 21718-84 Материалы строительные. Диэлькометрический метод измерения влажности
ГОСТ 23273-78 Металлы и сплавы. Измерение твердости методом упругого отскока бойка (по Шору)
ГОСТ 23337-78 Шум. Методы измерения шума на селитебной территории и в помещениях жилых и общественных зданий
| | ИС МЕГАНОРМ: примечание. В официальном тексте документа, видимо, допущена опечатка: стандарт "Блоки оконные деревянные со стеклами и стеклопакетами. Технические условия" имеет номер ГОСТ 24699-2002, а не ГОСТ 24699-80. | |
ГОСТ 24699-80 Блоки оконные деревянные со стеклами и стеклопакетами. Технические условия
ГОСТ 24700-99 Блоки оконные деревянные со стеклопакетами. Технические условия
ГОСТ 24866-2014 Стеклопакеты клееные строительного назначения. Технические условия
ГОСТ 25706-83 Лупы. Типы, основные параметры. Общие технические требования
ГОСТ 26302-93 Стекло. Методы определения коэффициентов направленного пропускания и отражения света
ГОСТ 26433.0-85 Система обеспечения геометрических параметров в строительстве. Правила выполнения измерений. Общие положения
ГОСТ 26433.1-89 Система обеспечения точности геометрических параметров в строительстве. Правила выполнения измерений. Элементы заводского изготовления
ГОСТ 26433.2-94 Система обеспечения точности геометрических параметров в строительстве. Правила выполнения измерений параметров зданий и сооружений
ГОСТ 26602.1-99 Блоки оконные и дверные. Методы определения сопротивления теплопередаче
ГОСТ 26602.2-99 Блоки оконные и дверные. Методы определения воздухо- и водопроницаемости
ГОСТ 26602.4-2012 Блоки оконные и дверные. Методы определения общего коэффициента пропускания света
ГОСТ 26602.5-2001 Блоки оконные и дверные. Метод определения сопротивления ветровой нагрузке
ГОСТ 27296-2012 Здания и сооружения. Методы измерения звукоизоляции ограждающих конструкций
ГОСТ 28702-90 <1> Контроль неразрушающий. Толщиномеры ультразвуковые. Общие технические требования
--------------------------------
<1> В Российской Федерации действует
ГОСТ Р 55614-2013 "Контроль неразрушающий. Толщиномеры ультразвуковые. Общие технические требования".
ГОСТ 30494-2011 Здания жилые и общественные. Параметры микроклимата в помещениях
ГОСТ 30673-2013 Профили поливинилхлоридные для оконных и дверных блоков. Технические условия
ГОСТ 30674-99 Блоки оконные из поливинилхлоридных профилей. Технические условия
ГОСТ 30777-2012 Устройства поворотные, откидные, поворотно-откидные, раздвижные для оконных и балконных дверных блоков. Технические условия
ГОСТ 30778-2001 Прокладки уплотняющие из эластомерных материалов для оконных и дверных блоков. Технические условия
ГОСТ 30971-2012 Швы монтажные узлов примыканий оконных блоков к стеновым проемам. Общие технические условия
ГОСТ 31167-2009 Здания и сооружения. Методы определения воздухопроницаемости ограждающих конструкций в натурных условиях
ГОСТ 31364-2014 Стекло с низкоэмиссионным мягким покрытием. Технические условия
ГОСТ 31937-2011 Здания и сооружения. Правила обследования и мониторинга технического состояния
ГОСТ 32278-2013 Стекло и изделия из него. Методы определения оптических характеристик. Определение цветовых координат
ГОСТ 34378-2018 Конструкции ограждающие светопрозрачные. Окна и двери. Производство монтажных работ, контроль и требования к результатам работ
Примечание - При пользовании настоящим стандартом целесообразно проверить действие ссылочных стандартов в информационной системе общего пользования - на официальном сайте Федерального агентства по техническому регулированию и метрологии в сети Интернет или по ежегодному информационному указателю "Национальные стандарты", который опубликован по состоянию на 1 января текущего года, и по выпускам ежемесячного информационного указателя "Национальные стандарты" за текущий год. Если ссылочный стандарт заменен (изменен), то при пользовании настоящим стандартом следует руководствоваться заменяющим (измененным) стандартом. Если ссылочный стандарт отменен без замены, то положение, в котором дана ссылка на него, применяется в части, не затрагивающей эту ссылку.
В настоящем стандарте применены следующие термины с соответствующими определениями:
3.1 анкер: Крепежная деталь, фиксируемая в строительную конструкцию, обеспечивающая механическую связь между СПК и строительной конструкцией, воспринимающая различные виды нагрузок и передающая их несущей или самонесущей строительной конструкции.
3.2
водопроницаемость: Свойство конструкции оконного блока пропускать дождевую воду при определенной (критической) разности давления воздуха на его наружных и внутренних поверхностях |
3.3 воздействие: Нагрузки, изменения температуры, влияние на СПК окружающей среды, действие ветра, осадка оснований, деградация свойств материалов во времени и другие эффекты, вызывающие изменения свойств и характеристик СПК.
Примечание - При проведении расчетов воздействия допускается задавать как эквивалентные нагрузки.
3.4
воздухопроницаемость: Свойство конструкции оконного блока пропускать воздух в закрытом состоянии при наличии разности давления воздуха на его наружных и внутренних поверхностях |
3.5 восстановление работоспособного состояния светопрозрачной ограждающей конструкции: Комплекс мероприятий, обеспечивающих, доведение эксплуатационных и функциональных характеристик СПК, пришедших в ограниченно работоспособное состояние, до уровня их первоначального, исправного (нормативного) технического состояния, определяемого соответствующими требованиями нормативных документов и технической документации на момент проектирования объекта.
Примечание - Термин основан на определении, приведенном в ГОСТ 31937,
пункт 3.22.
3.6 дефект светопрозрачной ограждающей конструкции: Несоответствие какого-либо параметра СПК требованиям, установленным проектной (рабочей, конструкторской) документацией или нормативным документом, возникший в процессе жизненного цикла СПК.
Примечание - При изменении требований в связи с введением в действие новых нормативных документов после утверждения проекта в Отчете (заключении) по обследованию СПК приводятся требования НД на момент утверждения проекта и на момент обследования.
3.7 звукоизоляция светопрозрачной ограждающей конструкции: Характеристика, служащая для оценки способности конструкции снижать величину проходящего через нее шума.
Примечание - В общем случае равная десяти десятичным логарифмам отношения звуковой мощности, падающей на испытуемый оконный или дверной блок, к звуковой мощности, излучаемой другой стороной испытуемого блока.
3.8
категория технического состояния светопрозрачной ограждающей конструкции: Характеристика эксплуатационной пригодности СПК в целом, а также отдельных элементов конструкции, определенная в зависимости от величины изменения функциональных свойств СПК и их эксплуатационных качеств.
3.8.1 аварийное состояние светопрозрачной ограждающей конструкции: Категория технического состояния СПК, отдельных элементов и частей, характеризующаяся повреждениями и деформациями, свидетельствующими о непригодности СПК к дальнейшей эксплуатации, и/или дальнейшая эксплуатация СПК представляет опасность для людей или их имущества.
3.8.2 исправное (нормативное) техническое состояние светопрозрачной ограждающей конструкции: Категория технического состояния СПК, при которой количественные и качественные значения всех критериев оценки СПК (светотехнические, инсоляции, теплотехнические, звукоизоляционные, инфильтрации, водопроницаемости, механические и другие) соответствуют значениям, установленным в проектной документации или нормативной документации с учетом допусков.
3.8.3 ограниченно-работоспособное состояние СПК: Категория технического состояния СПК, включая состояние отдельных элементов, при котором имеются дефекты и повреждения, приведшие к снижению механической прочности, теплозащитной, звукоизоляционной или иной способности, но отсутствует опасность разрушения, потери устойчивости или выпадения; функционирование СПК и ее эксплуатация возможны при проведении необходимых мероприятий по восстановлению или усилению конструкций.
3.8.4
работоспособное состояние СПК: Категория технического состояния СПК, при котором некоторые обследуемые нормируемые характеристики конструкции отличаются от установленных в проектной документации (рабочей документации РД или конструкторской документации КД) и/или нормативной документации НД, но имеющиеся отклонения не приводят к нарушению функциональных эксплуатационных возможностей СПК.
Примечания
1 Термины и их определения (
3.8 -
3.8.4) основаны на терминах и определениях, приведенных в
ГОСТ 31937.
2 Фасадные и отдельно стоящие сооружения из СПК должны также соответствовать дополнительным требованиям обеспечения несущей способности и устойчивости.
3.9 кронштейн: Консольная опорная деталь или конструкция, как правило, в виде угольника (обычно с раскосом) для крепления элементов, конструкций к вертикальной стене или к колонне.
3.10 мониторинг технического состояния светопрозрачной ограждающей конструкции: Систематическое наблюдение, контроль и оценка состояния параметров СПК, с целью выявления на ранней стадии негативных изменений параметров технического состояния СПК, которые с течением времени могут повлечь за собой переход объектов наблюдения в ограниченно-работоспособное или аварийное состояние.
3.11 моральный износ светопрозрачной ограждающей конструкции: Несоответствие основных эксплуатационных показателей СПК современному уровню технических требований, закрепленных в нормативных или технических документах.
3.12 оценка технического состояния светопрозрачной ограждающей конструкции: Определение соответствия СПК требованиям, установленным проектом или нормативным документом, включая состояние отдельных частей и элементов, на основе сопоставления фактических значений оцениваемых величин, полученных в результате обследования, с проектными и нормативными значениями, определение причин возникновения дефектов и степени повреждения СПК (при их выявлении); установление категории технического состояния СПК.
3.13 обследование технического состояния светопрозрачной ограждающей конструкции: Мероприятия по определению и оценке фактических значений контролируемых параметров светопрозрачных ограждающих конструкций и их элементов (стеклопакетов, профильных систем, фурнитуры, узлов присоединения и др.), характеризующих работоспособность объекта обследования и определяющих возможность дальнейшей эксплуатации, реконструкции или необходимость восстановления, усиления, ремонта.
3.14 поверочный расчет светопрозрачной ограждающей конструкции: Расчет (светотехнический, теплотехнический, статический и др.) эксплуатируемой СПК и (или) отдельных частей, элементов по действующим нормам проектирования с введением в расчет данных, полученных в результате обследования или по проектной и исполнительной документации, с учетом имеющихся дефектов и повреждений.
3.15 приведенное сопротивление теплопередаче фрагмента ограждающей конструкции, (м·°C)/Вт: Физическая величина, характеризующая усредненную по площади плотность потока теплоты через фрагмент теплозащитной оболочки здания в стационарных условиях теплопередачи, численно равная отношению разности температур по разные стороны фрагмента к усредненной по площади плотности потока теплоты через фрагмент.
3.16 светопрозрачная ограждающая конструкция; СПК: Ограждающая конструкция, обеспечивающая естественным светом помещения зданий и сооружений.
Примечание - СПК относятся к группе ограждающих конструкций, предназначенных для обеспечения необходимой естественной освещенности и возможности визуального контакта с окружающей средой. СПК может быть отдельно стоящим самостоятельным сооружением, сооружением, примыкающим к зданию, или элементом здания.
3.16.1 окно: Ограждающая светопрозрачная конструкция, возводимая в построечных условиях, предназначенная для сообщения внутренних помещений с окружающим пространством, естественного освещения помещений, их проветривания, защиты от атмосферных и шумовых воздействий и состоящая из оконного блока или комбинации из нескольких оконных блоков и узла присоединения его (их) к откосам (сопряжения с откосами) стенового (светового) проема.
Примечания
1 Действие термина распространяется на конструкции, устанавливаемые в стеновые наружные бетонные и железобетонные панели для жилых и общественных зданий в заводских условиях с последующей их транспортировкой к объекту капитального строительства.
2 Для зданий с централизованным воздухообменом (вентиляцией, кондиционированием) к окнам могут не предъявляться требования по обеспечению проветривания, если данное требование не содержится в проектной документации.
3.17 строительный крепежный элемент: Деталь, используемая в строительстве для соединения строительных конструкций и элементов.
Примечание - Эта группа объединяет такие крепежные детали, как саморезы, болты, винты, анкера, кронштейны, шпильки, гайки, хомуты, стяжки, гвозди, шурупы, дюбеля, шплинты, шайбы и подобные им изделия.
3.18 тепловизионный контроль: Неразрушающий инструментальный контроль, основанный на бесконтактном определении теплового излучения и регистрации температурных полей на поверхности ограждающих конструкций.
3.19 текущее техническое состояние светопрозрачной ограждающей конструкции: Техническое состояние СПК на момент ее обследования или проводимого этапа мониторинга.
3.20 узел присоединения (сопряжения) светопрозрачной ограждающей конструкции к строительным конструкциям: Конструктивная система, обеспечивающая сопряжение СПК с несущими или самонесущими строительными конструкциями посредством строительных крепежных элементов, состоящая из монтажного шва, его гидро- и пароизоляции, подоконной доски, слива, крепежных, облицовочных и других элементов.
3.21 физический износ светопрозрачной ограждающей конструкции: Изменение технических и связанных с ними функциональных показателей СПК и ее элементов, происходящее в процессе эксплуатации при соблюдении правил эксплуатации вследствие воздействия факторов внешней среды.
4 Общие правила проведения обследования технического состояния светопрозрачных ограждающих конструкций
4.1 Обследование светопрозрачных конструкций выполняют в рамках строительного контроля, государственного строительного надзора, в рамках проведения мониторинга, в соответствии с нормативными документами, действующими на территории государства, принявшего настоящий стандарт. Обследование также проводится в случае техногенных катастроф различного характера, при обнаружении признаков ухудшения безопасного состояния СПК или обнаружении признаков несоответствия текущего технического состояния СПК проектному (нормативному).
4.2 Объектами обследования технического состояния СПК являются окна и балконные двери, витражи, элементы стеклянных фасадов, их составные части: оконные и балконные дверные блоки, рамные элементы (профильные системы), стекла и стеклопакеты, устройства (по
ГОСТ 30777), стеновые (световые) проемы ограждающих конструкций, узлы присоединения СПК.
4.3 Целью обследования технического состояния СПК является определение безопасности СПК (категории технического состояния), соответствия проектному решению и технической документации, текущего технического состояния и характеристик СПК (указанных в
таблице 1) с учетом естественных изменений, внешних воздействий или иных факторов, влияющих на состояние СПК.
4.4 Обследование и мониторинг технического состояния СПК проводят силами специализированных организаций, оснащенных современной приборной (измерительной) техникой и имеющих в своем составе высококвалифицированных и опытных специалистов, или силами экспертов. Квалификация специалистов должна быть подтверждена документально. Требования к организациям, которые имеют право на проведение обследования и мониторинга технического состояния ограждающих конструкций зданий и сооружений, изложены в ГОСТ 31937
(пункт 4.1), а также в нормативных документах, действующих на территории государства, принявшего настоящий стандарт.
4.5 Сроки и основания проведения обследования и мониторинга технического состояния ограждающих конструкций зданий и сооружений, проводимых в рамках общих обследований технического состояния зданий и сооружений, определены в ГОСТ 31937 (
пункты 4.3 и
4.4). Сроки и основания проведения обследования технического состояния СПК определяются эксплуатирующей организацией или собственником здания (сооружения).
4.6 Обследование технического состояния СПК проводят в соответствии с предварительно разработанными программами.
Проведение мониторинга и обследований технического состояния СПК и их периодичность могут быть предусмотрены в проектной документации здания или сооружения или разработаны после ввода здания, сооружения в эксплуатацию.
4.7 Средства испытаний, измерений и контроля, применяемые при обследовании и мониторинге технического состояния СПК, должны быть подвергнуты своевременной поверке (калибровке) в установленном порядке и соответствовать нормативным документам и технической документации по метрологическому обеспечению.
4.8 Оценку категорий технического состояния СПК зданий и сооружений проводят на основании результатов обследования и поверочных расчетов. По результатам этой оценки определяют одну из следующих категорий технического состояния СПК:
- исправное (нормативное) состояние;
- работоспособное состояние;
- ограниченно-работоспособное состояние;
- аварийное состояние.
Примечание - Категории технического состояния СПК установлены согласно категорийности состояния ограждающих конструкций зданий, сооружений по
ГОСТ 31937.
4.9 При обследовании технического состояния СПК получаемая информация должна быть достаточно полной для определения соответствия СПК требованиям действующих нормативных документов, приведенных в
таблице 1 для принятия обоснованного решения о возможности ее дальнейшей безаварийной эксплуатации (в случае нормативного и работоспособного технического состояния), а также подтвержденной соответствующими исследованиями для вариантного проектирования восстановления или замены конструкций (при ограниченно-работоспособном состоянии) и последующему мониторингу технического состояния (при необходимости).
Примечание - Объем работ по обследованию определяется техническим заданием и программой, которая уточняется при проведении подготовительных работ
(6.2.2). Если по результатам согласованного объема обследования невозможно дать однозначный ответ о категории технического состояния СПК без дополнительных исследований, следует назначить их проведение по согласованию с заказчиком.
4.10 При обнаружении в период выполнения работ по обследованию СПК значительных повреждений и других дефектов, представляющих опасность, которые могут привести к резкому снижению безопасности СПК, обрушению отдельных конструкций (аварийное состояние СПК), немедленно информируют о сложившейся ситуации, в том числе в письменном виде, собственника объекта, эксплуатирующую организацию, местные органы исполнительной власти и органы, уполномоченные на осуществление государственного строительного надзора.
4.11 Результаты обследования технического состояния СПК в виде соответствующих заключений должны содержать необходимые данные для принятия обоснованного решения по реализации целей проведения обследования.
Заключения по итогам проведенного обследования технического состояния СПК подписывают непосредственные исполнители работ, руководители их подразделений и утверждают руководители организаций, проводивших обследование или мониторинг. При проведении работ по обследованию силами экспертов заключение подписывает(ют) эксперт(ы) в соответствии с нормативными документами, действующими на территории государства, принявшего настоящий стандарт.
5 Характеристики СПК, подлежащие оценке в ходе обследования технического состояния
5.1.1 При обследовании СПК в натурных условиях следует оценивать их текущее техническое состояние по основным характеристикам, установленным в нормативных документах и проектной (рабочей документации).
5.1.2 Конструкции СПК для строительства, реконструкции, капитального ремонта должны удовлетворять требованиям:
безопасной эксплуатации;
надежности (долговечности, безотказности, ремонтопригодности);
энергосбережения;
обеспечения характеристик СПК, установленных нормативными документами.
5.2 Основные характеристики СПК, оцениваемые при обследовании в натурных условиях
5.2.1 Основные характеристики СПК, оцениваемые при обследовании в натурных условиях, приведены в таблице 1.
Таблица 1
Перечень основных характеристик СПК и их элементов
Характеристика | Требования; нормативный документ <*> | Метод обследования; нормативный документ | Инструмент, приборы, используемые при обследовании (номер по таблице В.1) |
Безопасность эксплуатации СПК |
1 Безопасность СПК, стойкость к ВВФ. Механическая прочность крепления СПК и элементов крепления СПК к несущим и самонесущим строительным конструкциям | Стандарты на нагрузки и воздействия, конструкции и материалы строительного основания СПК; сертификаты или технические свидетельства на элементы крепления | По нормативному документу <1>, действующему на территории государства, принявшего настоящий стандарт. Стандарты на анкерные крепления и кронштейны в различных строительных основаниях СПК | - |
--------------------------------
<1> В Российской Федерации руководствуются требованиями Федерального
закона от 30 декабря 2009 г. N 384-ФЗ "Технический регламент о безопасности зданий и сооружений", ГОСТ Р 54773-2011 "Методы испытания анкеров",
СП 20.13330.2011 "Нагрузки и воздействия".
Продолжение таблицы 1
Характеристика | Требования; нормативный документ <*> | Метод обследования; нормативный документ | Инструмент, приборы, используемые при обследовании (номер по таблице В.1) |
2 Прочность и деформативность системы несущих элементов СПК, в т.ч. узлов их соединения | Стандарты на соответствующие изделия и конструкции (алюминиевые, стальные, пластмассовые и др.) и сертификаты на системы | Выполнение поверочных расчетов на действие эксплуатационных нагрузок по нормативному документу <1>, действующему на территории государства, принявшего настоящий стандарт | - |
3 Прочность и деформативность элементов светопропускающего заполнения СПК (стекла, стеклопакеты) | Стандарты на соответствующие изделия (стекла, в т.ч. закаленные, многослойные и стеклопакеты) | Выполнение поверочных расчетов на действие эксплуатационных нагрузок по нормативному документу <1>, действующему на территории государства, принявшего настоящий стандарт | - |
Светотехнические характеристики СПК |
4 Общий коэффициент пропускания света, спектральные характеристики светопропускающих элементов, количество и толщина стекол (формула стеклопакета) | | Лабораторный; | |
5 Коэффициент общего пропускания солнечной энергии (солнечный фактор) | По нормативным документам, действующим на территории государства, принявшего настоящий стандарт | Расчетный, лабораторный; | |
Теплозащитные характеристики СПК |
6 Приведенное сопротивление теплопередаче (при нормативных условиях конвективного теплообмена) | По нормативному документу <2>, действующему на территории государства, принявшего настоящий стандарт | Натурный, расчетный, лабораторный | |
7 Тепловизионный контроль | По нормативным документам <3>, действующим на территории государства, принявшего настоящий стандарт | Визуальный, инструментальный | |
Монтаж СПК, узлы присоединения |
8 Привязка размеров СПК к проему | По отраслевым стандартам, действующим на территории государства, принявшего настоящий стандарт | Визуальный, инструментальный | |
--------------------------------
<1> В Российской Федерации руководствуются требованиями
СП 20.13330.2011 "СНиП 2-01.07-85 Нагрузки и воздействия".
<2> В Российской Федерации руководствуются требованиями СП 50.13330.2012 "СНиП 23-02-2003 Тепловая защита здания"
(пункт 5.2).
<3> В Российской Федерации руководствуются требованиями ГОСТ Р 54852-2011 "Здания и сооружения. Метод тепловизионного контроля качества теплоизоляции ограждающих конструкций" (
разделы 7 и
8).
Продолжение таблицы 1
Характеристика | Требования; нормативный документ <*> | Метод обследования; нормативный документ | Инструмент, приборы, используемые при обследовании (номер по таблице В.1) |
9 Конструкция узла присоединения СПК в проеме | | Визуальный, инструментальный ГОСТ | |
10 Размещение СПК в проеме | | Визуальный, инструментальный ГОСТ | |
11 Крепление СПК в проеме | | Визуальный, инструментальный ГОСТ | |
12 Требования к узлам присоединения оконных и дверных балконных блоков к наружным стенам | | Визуальный, инструментальный ГОСТ | |
13 Элементы крепления узлов присоединения | | Визуальный, инструментальный ГОСТ | |
Основные характеристики светопрозрачного заполнения |
14 Идентификация стеклопакетов | | | |
| | ИС МЕГАНОРМ: примечание. В официальном тексте документа, видимо, допущена опечатка: имеется в виду пункт 5.1.1 ГОСТ 24866, а не пункт 4.1.1. | |
|
15 Внешний вид стеклопакетов и листовых стекол | | Визуальный; | |
16 Отклонение от номинальных геометрических размеров | | | |
17 Качество установки стеклопакетов | | Визуальный | |
| | ИС МЕГАНОРМ: примечание. В официальном тексте документа, видимо, допущена опечатка: имеется в виду пункты 5.1.5 и 7.9 ГОСТ 24866, а не пункты 4.1.5 и 6.9. | |
|
18 Герметичность стеклопакетов | | | |
19 Количество и размеры допускаемых пороков в стеклах, принадлежность к классу М1, М2, ... | | Визуальный | |
20 Оптические искажения | ГОСТ 111 | Лабораторный | |
Внешний вид СПК |
21 Показатели внешнего вида поверхностей | | Визуальный; | |
22 Зазоры в угловых и Т-образных соединениях | | | |
23 Перепад лицевых поверхностей в угловых и Т-образных соединениях | | | |
24 Провисание открывающихся элементов, мм на 1 пог. м | | | |
25 Размеры коробок, створок, фальцлюфта | | | |
--------------------------------
<1> Для других типов светопрозрачных заполнений стекол в соответствии с действующими нормативными документами.
Окончание таблицы 1
Характеристика | Требования; нормативный документ <*> | Метод обследования; нормативный документ | Инструмент, приборы, используемые при обследовании (номер по таблице В.1) |
26 Правильность установки и плотность прилегания уплотняющих прокладок | | Визуальный, инструментальный; | |
27 Отклонение от прямолинейности кромок деталей рамных элементов | | | |
Устройства поворотные, откидные, поворотно-откидные (устройства по ГОСТ 30777), оконные приборы |
28 Функционирование устройств и оконных приборов | | | |
29 Внешний вид устройств. Наличие (отсутствие) антикоррозионного покрытия | | Визуальный, лабораторный; | |
30 Комплектность устройств и оконных приборов (ручки, колпачки, декоративные накладки, ответные планки и пр.) | ГОСТ 30777 (пункт 5.7) соответствие проектной документации (РД и КД) и условиям договора поставки | Визуальный; | - |
31 Эргономические показатели (усилие открывания, прилагаемые к ручке) устройств | ГОСТ 30777 (пункт 5.5.1) соответствие проектной документации (РД и КД) и условиям договора поставки | | |
Климатические нагрузки, требования к СПК |
32 Воздухопроницаемость, водопроницаемость | | Натурный; | |
33 Сопротивление ветровой нагрузке | | | |
34 Параметры микроклимата помещения | | Натурный; | |
Звукоизоляционные характеристики СПК |
35 Звукоизоляционные характеристики | По нормативным документам <3>, действующим на территории государства, принявшего настоящий стандарт | Расчетный, натурный, лабораторный; | |
<*> Действуют требования нормативных документов, указанных в данной колонке, а также требования нормативных документов, действующих на территории государства, принявшего настоящий стандарт. |
--------------------------------
<1> В Российской Федерации дополнительно руководствуются требованиями СанПиН 2.2.4.548-96 "Гигиенические требования к микроклимату производственных помещений" (
разделы 5 и
6).
<2> В Российской Федерации дополнительно руководствуются требованиями СанПиН 2.2.4.548-96 "Гигиенические требования к микроклимату производственных помещений"
(раздел 7).
<3> В Российской Федерации руководствуются требованиями
СП 51.13330.2011 "СНиП 23-03-2003 Защита от шума" и
СанПиН 2.2.4/2.1.8.562-96 "Шум на рабочих местах, в помещениях жилых, общественных зданий и на территории жилой застройки" (пункты 6.1.1 - 6.1.6).
6 Последовательность и этапы работ по обследованию технического состояния СПК
6.1.1 Обследование технического состояния СПК заключается в определении текущего технического состояния СПК и их фактических характеристик с целью оценки их соответствия технической документации.
6.1.2 Полученные результаты при обследовании технического состояния СПК должны быть обоснованы, достаточны и должны определять соответствие или несоответствие требованиям действующих нормативных документов, приведенных в
таблице 1, для принятия обоснованного решения о возможности ее дальнейшей безаварийной эксплуатации (случаи нормативного и работоспособного технического состояния). В случае ограниченно-работоспособного или аварийного состояния СПК получаемая информация должна быть достаточной и подтвержденной соответствующими исследованиями для восстановления или замены конструкций.
6.1.3 При ограниченно-работоспособном состоянии СПК контролируют их состояние на соответствие требованиям действующих нормативных документов, приведенных в
таблице 1, разрабатывают мероприятия по восстановлению или ремонту конструкций и последующему мониторингу технического состояния (при необходимости).
6.2 Этапы проведения работ по обследованию СПК
6.2.1 Обследование технического состояния СПК следует проводить в пять этапов:
- подготовка к проведению обследования;
- предварительное (визуальное) обследование;
- детальное (инструментальное) обследование;
- поверочные расчеты;
- лабораторные исследования, если предусмотрено программой обследования или необходимость исследований выявлена в ходе обследования;
- анализ полученных результатов, подготовка заключения.
Объем обследования и количество этапов должны быть достаточны для обеспечения выполнения поставленных целей и задач, определенных программой обследования и/или техническим заданием.
6.2.2 Подготовительные работы проводят в целях:
- ознакомления с объектом обследования, его объемно-планировочным и конструктивным решением, материалами исполнения конструкции;
- сбора и анализа проектно-технической (в т.ч. исполнительной) документации;
- составления программы работ с учетом согласованного с заказчиком технического задания.
6.2.3 Результатом проведения подготовительных работ является получение следующих материалов (полнота определяется видом обследования):
- согласованное заказчиком техническое задание на обследование;
- проектная (в т.ч. исполнительная) и конструкторская документация на СПК;
- акты осмотров СПК, выполненные персоналом эксплуатирующей организации, в том числе ведомости дефектов;
- акты и отчеты ранее проводившихся обследований (ремонтных работ) конструкций СПК;
- проектная (рабочая, исполнительная) документация на отдельные элементы здания (сооружения) - по требованию организации, выполняющей обследование СПК (при необходимости);
- информация, в том числе проектная, о перестройках, реконструкциях, капитальном ремонте и т.п. (при необходимости);
- согласованный с заказчиком протокол о порядке доступа к обследуемым СПК;
- согласование с заказчиком комплекса мероприятий по технике безопасности при выполнении работ по обследованию СПК (см.
7.8).
6.2.4 На основе полученных материалов и Технического задания на проведение обследования проводят следующие действия:
а) устанавливают:
- год разработки проекта;
- конструктивную схему расположения СПК;
- сведения о примененных в проекте светопрозрачных конструкциях, узлах присоединений;
- монтажные схемы сборных элементов, дату их изготовления;
- температурный режим при монтаже СПК;
- геометрические размеры элементов и конструкций СПК;
- материалы, из которых выполнены конструкции и их характеристики;
- декларации соответствия (сертификаты) и паспорта СПК и монтажных материалов, технические свидетельства;
- сведения о замене и отклонении от проекта;
- характер внешних воздействий на конструкции (в т.ч. проектные нагрузки на СПК, данные об окружающей среде);
- проявившиеся при эксплуатации дефекты, повреждения и т.п.;
б) составляют программу, в которой указывают:
- перечень подлежащих обследованию строительных конструкций и их элементов;
- места и методы инструментальных измерений и испытаний;
- места вскрытия и отбора проб материалов для исследования образцов в лабораторных условиях (если такая необходимость определена);
- необходимость проведения инженерно-геодезических работ;
- перечень необходимых поверочных расчетов и т.п.
6.2.5 Предварительную оценку технического состояния СПК по внешним признакам проводят при визуальном обследовании в целях определения необходимости в проведении детального (инструментального) обследования и уточнения программы работ. При этом проводят сплошное или выборочное визуальное обследование СПК (в зависимости от типа обследования технического состояния) и выявление дефектов и повреждений по внешним признакам с необходимыми измерениями и фиксацией их результатов.
6.2.6 Результатом проведения предварительного (визуального) обследования являются:
- схемы и ведомости видимых дефектов и повреждений с фиксацией их мест и характера;
- описания, фотографии дефектных участков;
- результаты проверки наличия характерных деформаций здания (сооружения) и СПК (деформации, трещины, крены, выгибы, перекосы и т.п.);
- установление аварийных элементов СПК (при наличии);
- фактическая конструкция СПК;
- выявленные дефекты элементов строительных конструкций здания (в т.ч. несущих и самонесущих конструкций здания и их элементов), элементов крепления к ним СПК и их расположение.
6.2.7 На основании дефектной ведомости СПК и узлов присоединения к смежным строительным конструкциям выявляют причины происхождения дефектов и оценивают техническое состояние конструкций СПК. Если результатов визуального обследования для решения поставленных задач недостаточно (например, при обнаружении трещин в стеклопакетах, за исключением трещин очевидного происхождения при внешних воздействиях, перекосов, повреждений и деформаций профильных элементов СПК, следов протеканий), проводят детальное (инструментальное) обследование.
6.2.8 Детальное (инструментальное) обследование технического СПК включает в себя:
- измерение необходимых для выполнения целей обследования геометрических параметров конструкций, их элементов и узлов;
- инструментальное определение параметров дефектов и повреждений;
- определение фактических характеристик изделий и материалов основных элементов конструкций;
- определение эксплуатационных нагрузок и воздействий на СПК, с учетом их влияния;
- проверку соответствия проектным (РД, КД) материалам и конструкциям;
- определение состояния узлов сопряжения профилей элементов конструкций;
- анализ причин появления дефектов и повреждений в конструкциях;
- составление заключения с выводами по результатам обследования.
Примечание - Возможно проведение выборочного детального (инструментального) обследования (например, только инструментальное определение параметров дефектов и повреждений).
6.2.9 Поверочные расчеты СПК и ее элементов (в т.ч. определение расчетных усилий и деформаций в элементах от эксплуатационных нагрузок) выполняют по результатам обследования в целях подтверждения и (или) выявления нарушений, ошибок, допущенных в процессе выполнения проектных работ, изменения внешних нагрузок и воздействий. На этапе поверочных расчетов проводят определение расчетных усилий в несущих конструкциях, воспринимающих эксплуатационные нагрузки; поверочный расчет элементов конструкций, дефекты которых были выявлены по результатам обследования.
6.2.10 При недостаточности полученных результатов в ходе детального (инструментального) этапа обследования и необходимости определения ряда характеристик СПК следует проводить лабораторные испытания по установлению необходимых характеристик в соответствии с действующими нормативными документами. Результаты лабораторных испытаний включают в состав результатов инструментального обследования либо выделяют в самостоятельный раздел (отдельный этап работ).
6.3 Результаты обследования
6.3.1 На основании проведенного обследования и выполнения поверочных расчетов составляют итоговый документ - заключение по итогам обследования технического состояния СПК
(приложение А). Заключение должно включать в себя:
- детальное (инструментальное) обследование технического состояния СПК;
- оценку технического состояния (категорию технического состояния) - материалы, обосновывающие принятую категорию технического состояния объекта;
- обоснование наиболее вероятных причин появления дефектов и повреждений в конструкциях (при наличии);
- задание на проектирование мероприятий по восстановлению, ремонту или замене СПК (при необходимости).
6.4 При проведении работ по обследованию СПК следует провести фиксацию внешних условий (времени суток, освещенности, температуры, влажности).
7 Обследование основных элементов СПК
7.1 Оценка безопасности эксплуатации СПК
7.1.1 Инструментальное обследование безопасности элементов светопрозрачных конструкций проводят в случаях, если:
- при визуальном обследовании обнаружены дефекты и повреждения, которые угрожают безопасной эксплуатации СПК;
- результатов визуального обследования недостаточно для определения возможности СПК воспринимать существующие нагрузки и воздействия;
- требуется определение геометрических параметров конструктивных элементов.
7.1.2 Инструментальное обследование технического состояния СПК включает контроль основных характеристик СПК и элементов согласно требованиям
таблицы 1.
7.1.3 Поверочные расчеты существующих СПК, их элементов и узлов выполняют при действующих нагрузках и воздействиях по двум группам предельных состояний.
Проведение поверочных расчетов предусматривает:
- определение фактических нагрузок и воздействий на конструктивные элементы;
- определение усилий, возникающих в элементах конструкций, от расчетных значений нагрузок и воздействий;
- определение несущей способности элементов конструкций и сравнение полученных значений с возникающими усилиями;
- определение смещений элементов СПК при нормативных значениях нагрузок и сопоставление полученных величин с допустимыми значениями;
- определение пролетов, высот, размеров расчетных сечений элементов, с учетом дефектов и повреждений, влияющих на несущую способность и деформативность конструкций;
- определение прочностных и деформационных характеристик материалов, из которых выполнены элементы конструкции.
7.1.4 Определение усилий и смещений в конструктивных элементах от действующих нагрузок проводят по результатам статического расчета, на основе реальных расчетных схем. Расчеты могут осуществляться инженерными методами с использованием программ, сертифицированных согласно требованиям нормативных документов, действующих на территории государства, принявшего настоящий стандарт.
7.2 Определение светотехнических характеристик СПК
7.2.1 Коэффициенты направленного пропускания и отражения света определяют по
ГОСТ 26302.
7.2.2 Цветовые координаты спектрального пропускания света определяют по
ГОСТ 32278.
7.2.3 Коэффициент эмиссии стекол, в т.ч. в стеклопакете, определяют по
ГОСТ EN 12898.
7.3 Определение теплозащитных характеристик СПК
7.3.1 Определение теплозащитных характеристик СПК проводят путем испытания образцов в лабораторных условиях, моделируя натурные условия в соответствии с
ГОСТ 26602.1 <1>, и используют расчеты и обследования согласно
7.3.6 и
7.3.7.
--------------------------------
<1> В Российской Федерации в дополнение к указанному межгосударственному стандарту руководствуются требованиями
ГОСТ Р 54852-2011 "Здания и сооружения. Метод тепловизионного контроля качества теплоизоляции ограждающих конструкций" и
ГОСТ Р 54858-2011 "Конструкции фасадные светопрозрачные. Метод определения приведенного сопротивления теплопередаче".
7.3.2 Испытания проводят в целях оценки соответствия сопротивления теплопередаче СПК требованиям нормативных документов, а также оценки температурно-влажностного режима СПК в период эксплуатации.
7.3.3 По результатам измерений вычисляют приведенное термическое сопротивление и приведенное сопротивление теплопередаче СПК по формулам
ГОСТ 26602.1.
7.3.4 Оценку соответствия фактических значений приведенного сопротивления теплопередаче испытанной СПК нормативным требованиям <2>, действующим на территории государства, принявшего настоящий стандарт, выполняют с учетом характеристик СПК.
--------------------------------
<2> В Российской Федерации руководствуются требованиями
СП 50.13330.2012 "СНиП 23-02-2003 Тепловая защита зданий".
7.3.5 Характеристика СПК должна включать следующую информацию: формула стеклопакета, тип профильной системы и фурнитуры, состав узла присоединения, назначение СПК, климатические условия эксплуатации, требования к микроклимату помещений.
7.3.6 Для окончательной оценки приведенного сопротивления теплопередаче установленных СПК проводят поверочный теплотехнический расчет согласно
7.8.
7.3.7 Для оценки качества монтажа проводят тепловизионное обследование узлов присоединений.
7.4 Натурное тепловизионное обследование СПК
7.4.1 Методика тепловизионного обследования - по нормативным документам <3>, действующим на территории государства, принявшего настоящий стандарт.
--------------------------------
<3> В Российской Федерации методика и состав телевизионного обследования - по ГОСТ Р 54852-2011 "Здания и сооружения. Метод тепловизионного контроля качества теплоизоляции ограждающих конструкций"
(раздел 4).
7.4.2 Приборы, оборудование для тепловизионного обследования и диапазон контролируемых температур - по нормативным документам <4>, действующим на территории государства, принявшего настоящий стандарт.
--------------------------------
<4> В Российской Федерации приборы, оборудование для тепловизионного обследования и диапазон контролируемых температур - по ГОСТ Р 54852-2011 "Здания и сооружения. Метод тепловизионного контроля качества теплоизоляции ограждающих конструкций"
(раздел 5).
7.4.3 Тепловизионный контроль проводят при режиме теплопередачи, близком к стационарному, через ограждающую конструкцию. В случае нестационарного режима теплопередачи необходимо проведение нескольких тепловизионных съемок с последующим совместным анализом термограмм. Обследуемые поверхности не должны находиться в зоне прямого и отраженного солнечного облучения в течение измерений и 12 ч до проведения измерений.
7.4.4 Для выполнения тепловизионного контроля минимальный перепад температуры между внутренним и наружным воздухом составляет 10 °C <5>.
--------------------------------
<5> Для Российской Федерации - согласно ГОСТ Р 54852-2011 "Здания и сооружения. Метод тепловизионного контроля качества теплоизоляции ограждающих конструкций"
(пункт 6.2).
7.4.5 Измерения при обследовании не следует проводить, если значение интегрального коэффициента излучения поверхности объекта менее 0,7. Значения коэффициента излучения принимают по технической документации на тепловизор, справочной литературе для заданных материалов в спектральном диапазоне тепловизора либо измеряют в натурных или лабораторных условиях. Поверхности ограждающих конструкций в период тепловизионных измерений не должны подвергаться дополнительному тепловому воздействию от биологических объектов, источников отопления и источников освещения. Минимально допустимое приближение оператора тепловизора к обследуемой поверхности составляет 1 м, электрических ламп накаливания - 2 м.
7.4.6 Обработку термограмм тепловизионного обследования проводят с использованием программного обеспечения фирмы-производителя тепловизора.
7.5 Определение звукоизоляции СПК в натурных условиях
7.5.1 Определение показателя изоляции воздушного шума и проведение испытаний при обследовании следует выполнять по
ГОСТ 27296.
7.5.2 Расчет и оценку звукоизоляции воздушного шума следует проводить по нормативному документу <1>, действующему на территории государства, принявшего настоящий стандарт.
--------------------------------
<1> В Российской Федерации действует
СП 51.13330.2011 "СНиП 23-03-2003 Защита от шума".
7.6 Определение воздухопроницаемости и водопроницаемости СПК
7.6.1 Определение воздухопроницаемости СПК проводят путем испытания образцов в лабораторных условиях, моделируя натурные условия согласно
ГОСТ 31167 и по ГОСТ 26602.2
(раздел 3).
7.6.2 Определение водопроницаемости СПК следует выполнять путем испытания образцов в лабораторных условиях, моделируя натурные условия согласно ГОСТ 26602.2
(раздел 4).
7.7 Лабораторное обследование СПК
7.7.1 Если информация, полученная в результате натурных обследований, недостаточна, то проводят лабораторные испытания и дополнительные расчеты.
7.8 Расчетный метод оценки теплозащитных характеристик СПК
7.8.1 Расчет проводят по программному комплексу, сертифицированному согласно требованиям нормативных документов, действующих на территории государства, принявшего настоящий стандарт. Исходными данными для проведения расчета являются:
- чертеж светопрозрачной конструкции;
- чертеж узла присоединения;
- теплофизические характеристики материалов конструкций;
- граничные условия.
7.8.2 Теплотехнический расчет основан на математическом моделировании стационарного процесса теплопередачи через строительные конструкции
[1], в том числе фрагменты ограждающих конструкций зданий, включая светопрозрачные конструкции, системы остекления и узлы присоединения оконных блоков в проемах.
7.8.3 В соответствии с проектной документацией составляют исходные данные для расчета, куда включают состав изделия со стеклопакетом, профильную систему, граничные температурные условия и условия теплообмена на поверхностях.
7.8.4 Рассчитывают термическое сопротивление однородных участков СПК - в центре и краевых зонах стеклопакета и профильной системы (рамы, створки, импоста).
7.8.5 Рассчитывают приведенное сопротивление теплопередаче СПК при нормативных значениях коэффициентов теплоотдачи внутренней и наружной поверхностей
[1].
7.9 Техника безопасности при проведении работ по обследованию технического состояния СПК
7.9.1 При выполнении работ по обследованию технического состояния объектов соблюдают требования техники безопасности в соответствии с нормативными документами <2>, действующими на территории государства, принявшего настоящий стандарт.
--------------------------------
<2> В Российской Федерации действуют
СНиП 12-03-2001 "Безопасность труда в строительстве. Часть 1. Общие требования",
СНиП 12-04-2002 "Безопасность труда в строительстве. Часть 2. Строительное производство".
7.9.2 К работам по обследованию СПК в натурных условиях допускаются лица, прошедшие обучение и инструктаж по технике безопасности и получившие допуск к самостоятельной работе на предприятии, проводящем обследование.
7.9.3 Рабочие места и проходы к ним должны соответствовать требованиям
ГОСТ 12.4.059.
7.9.4 Лица, проводящие техническое обследование, должны быть обеспечены сертифицированными СИЗ (средствами индивидуальной защиты) в соответствии с
ГОСТ 12.0.004.
7.9.5 В темное время суток все места возможного выполнения измерений при обследовании должны быть освещены в соответствии с нормами
ГОСТ 12.1.046. Освещенность внутри помещений должна соответствовать требованиям нормативных документов <3>, действующих на территории государства, принявшего настоящий стандарт.
--------------------------------
<3> В Российской Федерации действует
СНиП 23-05-95 "Естественное и искусственное освещение".
(рекомендуемое)
СТРУКТУРА ОТЧЕТА (ЗАКЛЮЧЕНИЯ)
ПО ОБСЛЕДОВАНИЮ СВЕТОПРОЗРАЧНЫХ ОГРАЖДАЮЩИХ КОНСТРУКЦИЙ
ТИТУЛЬНЫЙ ЛИСТ
Полное наименование организации, выполняющей обследование
"УТВЕРЖДАЮ"
Руководитель организации,
должность_________________
Фамилия, инициалы
Дата _________ 20__ г.
ПОЛНОЕ НАИМЕНОВАНИЕ РАБОТЫ
Руководитель отдела Фамилия, инициалы
Руководитель работ, должность Фамилия, инициалы
Ответственный исполнитель работ, должность Фамилия, инициалы
Место проведения обследования
Год
СПИСОК ИСПОЛНИТЕЛЕЙ
Исполнителей следует перечислять в алфавитном порядке (фамилия и инициалы) с указанием должности и номера раздела отчета, составленного данным исполнителем, или выполненной им части.
В список исполнителей включают также организации-соисполнители или отдельные исполнители, привлеченные к данной работе, с указанием выполненных ими разделов.
СОДЕРЖАНИЕ
В отчете (заключении) объемом менее 10 страниц содержание необязательно. При большом объеме (более 100 страниц) отчет (заключение) рекомендуется делить на части. Каждую часть следует комплектовать в виде отдельного тома (книги) с присвоением порядкового номера.
Нумерация страниц отчета (заключения) должна быть сквозной. На странице 1 (титульный лист) номер страницы не ставят. Рисунки и таблицы, располагающиеся на отдельных страницах, включают в общую нумерацию. Приложения и список литературы необходимо включать в сквозную нумерацию.
Разделы (главы) отчета должны быть пронумерованы арабскими цифрами в пределах всего отчета (части). Подразделы (параграфы) следует нумеровать арабскими цифрами в пределах каждого раздела (главы). Номер подраздела должен состоять из номера раздела и номера подраздела, разделенных точкой, например: "2.1" (первый подраздел второго раздела).
В содержании последовательно перечисляют заголовки разделов, подразделов и приложений и указывают номер страниц, на которых они помещены. Содержание должно включать в себя все заголовки, имеющиеся в отчете.
ОСНОВНАЯ ЧАСТЬ
1 Характеристика объекта с указанием следующих сведений:
- организация, разработавшая проектную документацию, период строительства и сдачи объекта в эксплуатацию;
- конструктивные решения СПК конструкций, краткое описание условий эксплуатации объекта.
2 Методика обследования жилой (производственной) среды (микроклимата) с учетом конкретных рассматриваемых задач. Проводят, если определена необходимость.
3 Результаты обследования жилой (производственной) среды (микроклимата), классификация температурно-влажностного режима помещения и агрессивности производственной среды по отношению к строительным конструкциям. Проводят, если определена необходимость.
4 Ведомость дефектов и повреждений и оценка степени износа конструкций по результатам визуального обследования.
5 Методика инструментального обследования прочностных, теплотехнических и других характеристик СПК.
6 Результаты инструментальных обследований.
7 Результаты поверочных расчетов.
8 Оценка технического состояния конструкций и сравнение с требованиями нормативных документов.
9 Выводы и предложения.
В разделе излагают обобщающие выводы по всем результатам обследования, рекомендуемые мероприятия по обеспечению требуемых параметров жилой (производственной) среды, по восстановлению и ремонту эксплуатационных качеств СПК и их дальнейшей эксплуатации.
10 Список использованной литературы, нормативных документов и технической документации.
11 Приложение, в котором приведены поверочные расчеты, а также дополнительные материалы, представляющие справочную информацию, климатические и другие данные характеристики. В приложении приводят копию технического задания заказчика.
Приложение необходимо располагать в порядке появления ссылок в тексте основных разделов.
ВЫВОДЫ
Присваивают одну из приведенных ниже категорий состояния СПК:
1 Исправное (нормативное) состояние СПК - пригодно для дальнейшей эксплуатации, состояние СПК соответствует техническим требованиям.
2 Работоспособное состояние - пригодно для дальнейшей эксплуатации - конструкция безопасна для окружающих людей, часть некритичных параметров СПК не соответствует требованиям. Возможно выполнение работ по устранению дефектов.
3 Ограниченно-работоспособное состояние СПК - непригодно для дальнейшей эксплуатации - СПК не представляет опасность для окружающих людей, несущая способность конструкции не нарушена, не соответствует требованиям энергосбережения. Важные параметры конструкции и эксплуатационные характеристики не соответствуют нормативным требованиям.
4 Аварийное состояние СПК - СПК не пригодна для дальнейшей эксплуатации, представляет опасность для окружающих людей. Необходим демонтаж СПК.
(справочное)
СОСТАВ ЗАКЛЮЧЕНИЯ ПО ОБСЛЕДОВАНИЮ ТЕХНИЧЕСКОГО СОСТОЯНИЯ
СВЕТОПРОЗРАЧНОЙ КОНСТРУКЦИИ
Таблица Б.1
Форма заключения по обследованию технического состояния
светопрозрачной ограждающей конструкции
Информация об обследовании | Примечание |
1 Адрес объекта | |
2 Время проведения обследования | |
3 Условия проведения обследования (относительная влажность воздуха, температура в помещении и на улице, освещенность места проведения обследования) | |
4 Организация, проводившая обследование | |
5 Статус объекта (памятник архитектуры, исторический памятник и т.д.) | |
6 Тип проекта объекта | |
7 Проектная организация, проектировавшая объект | |
8 Строительная организация, возводившая объект | |
9 Год возведения объекта | |
10 Год и характер выполнения последнего капитального ремонта или реконструкции | |
11 Собственник объекта и форма собственности объекта | |
12 Конструктивный тип объекта | |
13 Число этажей | |
14 Оценка технического состояния СПК. Установленная категория технического состояния | |
Таблица Б.2
Проверяемые характеристики СПК и их элементов (требования см. в таблице 1) | Результаты обследования | Соответствие требованиям |
1 Приведенное сопротивление теплопередаче | | |
2 Общий коэффициент пропускания света, спектральные характеристики светопропускающих элементов | | |
3 Звукоизоляционные характеристики | | |
4 Воздухопроницаемость. Водопроницаемость | | |
5 Сопротивление ветровой нагрузке | | |
6 Показатели внешнего вида поверхностей | | |
7 Зазоры в угловых и Т-образных соединениях | | |
8 Провисание открывающихся элементов, мм на 1 пог. м ширины | | |
9 Фурнитура, оконные приборы | | |
10 Идентификация стеклопакетов | | |
11 Внешний вид стеклопакетов и листовых стекол | | |
12 Отклонения геометрических размеров | | |
13 Конструкция узла присоединения СПК в проеме | | |
14 Размещение СПК в проеме | | |
15 Количество и размеры допускаемых пороков в стеклах, принадлежность к классу М1, М2, ... | | |
16 Привязка размеров СПК к проему | | |
17 Конструкция узла присоединения СПК в проеме | | |
18 Размещение СПК в проеме | | |
19 Крепление СПК в проеме, в т.ч. анкерные пластины, дюбели, кронштейны | | |
20 Присоединение сливов, подоконников, облицовки оконных откосов | | |
Примечание к
таблицам Б.1 и
Б.2 - Материалы, обосновывающие выбор категории технического состояния объекта:
- фотографии объекта;
- описание окружающей местности;
- описание общего состояния объекта по визуальному обследованию - описание конструкций объекта, их характеристик и состояния;
- чертежи конструкций объекта с деталями и результатами обмерных работ;
- ведомость дефектов;
- схемы объекта с указанием мест проводившихся измерений и вскрытий конструкций;
- результаты измерений и оценка показателей, используемых в поверочных расчетах;
- определение действующих нагрузок и поверочные расчеты несущей способности конструкций, узлов присоединения и кронштейнов.
Пример заполнения Формы <1>
Таблица Б.3
Форма заполнения
Проверяемые характеристики СПК и их элементов | Результаты | Соответствие требованиям (+/-) |
1 Приведенное сопротивление теплопередаче | 0,65 м2·°C/Вт | + |
2 Звукоизоляционные характеристики | 29 дБА | + |
3 Воздухопроницаемость | 32 м3/ч·м2 | + |
4 Сопротивление ветровой нагрузке | 800 Па | + |
5 Показатели внешнего вида поверхностей | Дефекты не обнаружены | + |
6 Зазоры в угловых и Т-образных соединениях | 0,5 мм | + |
7 Провисание открывающихся элементов, мм на 1 пог. м ширины | 2 | - |
8 Фурнитура, оконные приборы | Соответствует | + |
9 Идентификация стеклопакетов | Соответствует маркировке | + |
10 Отклонения геометрических размеров | 4 мм | - |
11 Конструкция узла присоединения СПК в проеме | 30 мм | - |
12 Количество и размеры допускаемых пороков в стеклах, принадлежность к классу М1 | 18 пороков | - |
13 Крепление СПК в проеме | 900 мм между точками крепления СПК | - |
14 Присоединение сливов, подоконников, облицовки оконных откосов | Имеют место разрывы теплоизоляционного слоя | - |
Примечание - Знак "+" - соответствие требованиям, знак "-" - несоответствие. |
--------------------------------
<1> Приведен в справочных целях.
(справочное)
ПЕРЕЧЕНЬ ПРИБОРОВ И ИНСТРУМЕНТА, ИСПОЛЬЗУЕМЫХ
ПРИ ОБСЛЕДОВАНИИ СВЕТОПРОЗРАЧНЫХ ОГРАЖДАЮЩИХ КОНСТРУКЦИЙ
Наименование, нормативный документ | Примечание |
1 Рулетки измерительные металлические, ГОСТ 7502 | Допускается применение пластмассовых рулеток аналогичного класса |
2 Линейки измерительные металлические, ГОСТ 427 | Допускается применение пластмассовых рулеток аналогичного класса |
| - |
| - |
5 Дальномеры электронные | При наличии регистрации в госреестре |
| - |
| - |
| - |
| - |
10 Термометры спиртовые, ртутные или электронные, термощупы, бесконтактные термометры, ГОСТ 112 | При наличии регистрации в госреестре |
11 Термометры лабораторные типа ТЛ | - |
12 Приборы для определения конструкции стеклопакета | При наличии регистрации в госреестре |
13 Шаровые термометры Вернона-Йокла | - |
14 Цифровые контактные термометры | При наличии регистрации в госреестре |
15 Цифровые измерители температуры типа ИТ | - |
16 Психрометры Ассмана аспирационные, типа МВ-4М | - |
17 Гигрографы, электронные индикаторы влажности и температуры | При наличии регистрации в госреестре |
18 Вентиляторы, микроманометры и другое оборудование в соответствии с ГОСТ 31167 | - |
| - |
20 Приборы и оборудование для измерения уровня шума в помещении и снаружи в соответствии с ГОСТ 23337 | - |
| При наличии регистрации в госреестре |
| При наличии регистрации в госреестре |
| При наличии регистрации в госреестре |
| При наличии регистрации в госреестре |
| - |
| - |
| Желательно наличие подсветки |
28 Анализаторы газонаполнения стеклопакетов | При наличии регистрации в госреестре |
29 Измерители влажности древесины, ГОСТ 16588; электронные влагомеры | Рекомендуется применение приборов, использующих диэлькометрический метод (поверхностного или игольчатого типа) |
| Используется при испытаниях деревянных и алюминиевых конструкций |
| Применяется для измерений деформаций при испытаниях |
32 Источники диффузного света типа А. Испытательная установка, ГОСТ 7721 | - |
| - |
| - |
| - |
| - |
| - |
(рекомендуемое)
ПРИМЕР МЕТОДИКИ - ПОРЯДОК ОБСЛЕДОВАНИЯ СВЕТОПРОЗРАЧНЫХ
ОГРАЖДАЮЩИХ КОНСТРУКЦИЙ ИЗ ПВХ ПРОФИЛЯ
Г.1 Перед обследованием следует выполнить подготовительные работы, ознакомиться с техническим заданием на обследование качества СПК.
Г.2 Следует проверить наличие конструкторской, исполнительной и другой необходимой документации. Объем информации должен быть достаточен для определения соответствия СПК требованиям действующих нормативных документов.
Г.3 Следует определить состав комиссии по обследованию объекта (при комиссионном обследовании), согласовать с заказчиком дату и сроки выполнения работы. Разработать программу проведения обследования.
Г.4 Предварительное обследование следует начинать с фиксирования условий проведения обследования: время проведения, температура, влажность воздуха на улице и в помещении, атмосферное давление. Визуальным обследованием СПК устанавливают наличие дефектов заполнений стеновых проемов, обусловленных конструктивными недостатками изделия, определяют признаки этих дефектов, а также способы их выявления и фиксации. В холодное время года необходимо осмотреть поверхности откосов и СПК на предмет наличия конденсата и наледи. Рекомендуется обратить внимание на наличие следов сырости, отпотевания и грибковых заражений в застойных зонах светопроема и помещения. При обнаружении подобных признаков повышенной влажности эксперт определяет потребность проведения исследования микроклимата помещения. После определения видимых недостатков окна необходимо приступить к опросу лиц, проживающих или работающих в данном помещении (если таковые имеются). Цель опроса - сужение области обследования.
По итогам предварительного обследования составляют предварительную дефектную ведомость конструкций СПК, узлов присоединения и при необходимости вносят изменения в программу обследования.
Г.5 Проведение детального (инструментального) обследования СПК
Г.5.1 Посредством инструментального контроля определяют параметры дефектов и повреждений, при их наличии. Проводят замеры габаритных размеров рамы СПК (см.
рисунок Г.1). Измеряют ширину, высоту СПК. Если доступ к габаритам коробки ограничен откосами и другими элементами отделки, то замер проводят по внутренним размерам фальца коробки и увеличивают полученные размеры на удвоенную величину фальца. Для контроля прямоугольности проводят измерение и сравнение диагоналей коробки СПК.
Г.5.2 Определяют конструктивное несоответствие (см.
рисунок Г.1).
Г.5.3 Предельные отклонения номинальных габаритных размеров изделия должны соответствовать требованиям, указанным в
таблице Г.1.
Г.5.4 Замерить габаритные размеры створок, их диагонали, ширину створок по центральным осям. Предельные отклонения номинальных размеров рамочных элементов должны соответствовать требованиям, указанным в
таблице Г.1.
Г.5.5 Замерить номинальные размеры элементов изделий, фальцлюфта зазора под наплавом, величину притвора под наплавом, зазора под наплавом,
рисунок Г.2.
Г.5.6 Определяют предельные отклонения от номинальных размеров элементов изделий, зазоров в притворах и под наплавом (см.
таблицу Г.1).
Г.5.7 Проводят оценку деформаций створок СПК в плоскости стеклопакета, для чего замеряют расстояния по центрам вертикальной и горизонтальной осей створок СПК,
рисунок Г.3, контролируют направление деформации с помощью правила. Замеряют диагонали створок с целью определения отклонения от прямоугольной формы. Разность длин диагоналей прямоугольных рамочных элементов не должна превышать 2,0 мм при наибольшей длине стороны створки до 1400 мм и 3,0 мм - более 1400 мм.
Г.5.8 Проверить провисание открывающихся элементов (створок, полотен, форточек). В установленной СПК значение не должно превышать 1,5 мм на 1 м ширины. Отклонение номинального размера расстояния между наплавами смежных закрытых створок не должно превышать 1,0 мм на 1 м длины притвора.
Для смежных створок разновысотность ручек (X на
рисунке Г.4) не должна превышать 3 мм. Отклонение расстояния (от конструкторского решения) между наплавами смежных створок (Y на
рисунке Г.4) должно превышать 1,0 мм на 1 м притвора.
Г.5.9 Для определения плотности притвора створки, необходимо проверить размер притвора под наплавом (а2) и рабочий наплав створки (б3)
(рисунок Г.2). Допустимое отклонение - не более +/- 1,5. Для контроля этого параметра необходимо нанести метки вдоль наплава створки у точек запирания створки и в зоне петель. Далее при открытой створке с помощью штангенциркуля замеряют размер притвора под наплавом а2. Порядок нанесения меток и замеры притвора под наплавом приведен на
рисунках Г.5 и
Г.6.
Значение притвора а2 определяется конструкторской документацией и должно быть в поле допуска +/- 1,5 мм.
Необходимо определить значение рабочего наплава створки б3,
рисунок Г.6. Замер проводят штангенциркулем при закрытой створке, количество контрольных точек аналогично контролю а2 притвора под наплавом.
Рисунок Г.1 - Габаритные размеры коробки СПК
а1 - размер фальцлюфта (зазор в притворе); а2 - размер
притвора под наплавом; а3 - высота защемления стеклопакета;
б1 - размер зазора под наплавом; б2 - толщина стеклопакета,
б3 - рабочий наплав створки
Рисунок Г.2 - Функциональные зоны деталей
комбинации профилей
Таблица Г.1
Предельные отклонения от номинальных размеров
Размерный интервал, мм | Предельные отклонения номинальных размеров |
Внутренний размер коробок, мм | Наружный размер створок, мм | Фальцлюфт, мм | Зазор под наплавом, мм | Размеры расположения приборов и петель, мм |
До 1000 | +/- 1,0 | -1,0 | +/- 1,5 | +1,0 | +/- 1,0 |
От 1000 до 2000 | +2,0 -1,0 | +/- 1,0 | +1,0 -0,5 |
Св. 2000 | +2,0 -1,0 | +1,0 -2,0 | +1,5 -0,5 |
Рисунок Г.3 - Замер диагоналей и деформаций
коробок и створок СПК
Рисунок Г.4 - Отклонение размеров смежных створок
Рисунок Г.5 - Порядок нанесения меток для контроля
притвора створок
Рисунок Г.6 - Определение величины рабочего наплава створки
Значение рабочего наплава б3 определяет конструкторская документация на допустимую величину отклонения, согласно
таблице Г.1.
Г.5.10 Контроль примыкания створки к коробке СПК также можно выполнить, обработав поверхность уплотняющих прокладок створки цветным красителем. После трехкратного открывания и закрывания створки наблюдают следы от красителя на поверхности коробки. Если обнаружены неплотности примыкания уплотнителя, то необходимо проверить величину сжатия уплотнителя в положении, когда окно закрыто, также проверить качество установки уплотнителя, в том числе исполнение стыков уплотнителя.
Г.5.11 Для определения плотности прилегания уплотнителя сопоставляют размеры зазоров в притворах и степень сжатия уплотнителя, которая должна составлять не менее 1/5 высоты необжатого уплотнителя. Замеры проводят штангенциркулем по
ГОСТ 166. Если степень сжатия уплотнителя меньше 1/5 высоты необжатого, а при этом параметры б3 и а2 находятся в поле допуска, то необходимо проверить качество уплотнителя в лабораторных условиях, сравнивая с чертежами поставщика.
Г.5.12 Отклонения от прямолинейности ребер деталей рамочных элементов не должны превышать 1 мм на 1 м длины на любом участке элемента окна. Отклонения проверяют, используя строительное правило или измерительный уровень. Прикладывая инструмент вдоль оси к деформированному элементу оконного блока, определяют стрелу прогиба, как показано на рисунке Г.7. Значение допустимой деформации определяют пропорционально исходя из вышеуказанного требования.
Рисунок Г.7 - Прогибы и деформация профиля
Г.5.13 Возможные причины деформации профиля:
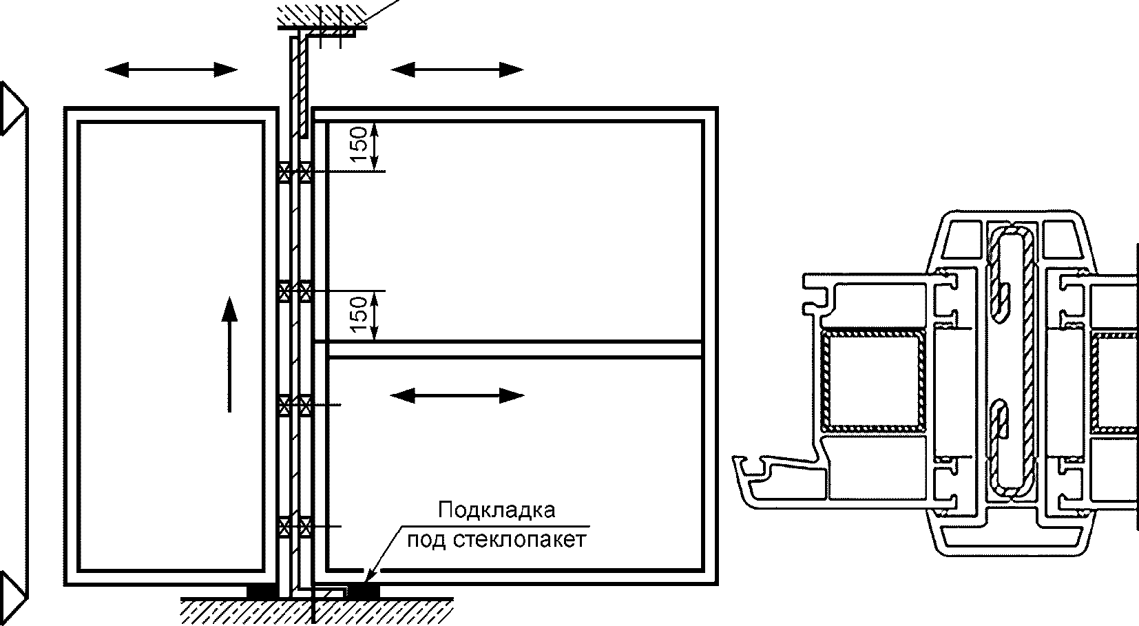
- неправильно установленные подкладки. Расстояние от подкладок до углов стеклопакетов должно быть, как правило, 50 - 80 мм. При ширине стеклопакета более 1,5 м рекомендуется увеличивать это расстояние до 150 мм;
- количество крепежа не соответствует требованиям
ГОСТ 23166. Количество крепежа должно составлять не менее чем три самонарезающих винта. Расстояние от внутреннего угла (сварного шва) до ближайшего места установки самонарезающего винта не должно превышать 80 мм. Шаг крепления должен быть не более: 400 мм - для профилей белого цвета, 300 мм - для профилей других видов, а также для профилей морозостойкого исполнения;
- использование усилительного вкладыша с моментом инерции меньше расчетной (толщина металла, форма), усилительный вкладыш имеет разрыв по длине. Для контроля необходимо провести разрушающий контроль СПК. Необходимо разрезать створку поперек и освободить усилительный вкладыш от крепления. Толщина металла должна быть не меньше 1,2 мм, расстояние от угла до края усилительного вкладыша должно быть в пределах 10 - 30 мм;
- ошибочный статический расчет конструкции - не принята во внимание деформация от веса стеклопакета. Требуется выполнение поверочного расчета несущей способности горизонтального профиля СПК,
рисунок Г.8.
Г.5.14 Проводят контроль криволинейности основных профилей СПК в плоскости, перпендикулярной стеклопакету. Для контроля используют строительное правило или измерительный уровень. Стрелу прогиба определяют с помощью щупов. Отклонения от прямолинейности ребер деталей рамочных элементов не должны превышать 1 мм на 1 м длины на любом участке,
рисунок Г.9.
Г.5.15 Осмотр внешнего вида СПК начинают с осмотра сварных швов. Перепад лицевых поверхностей сварных соединений не должен превышать 0,7 мм, при механическом соединении импостов между собой и с профилями коробок - не более 1,0 мм. Размер канавки на лицевых поверхностях не должен превышать 5 мм по ширине, глубина канавки должна быть в пределах 0,5 - 1,0 мм, а значение среза наружного угла сварного шва не должно превышать 3 мм по сварному шву. Сварные швы не должны иметь поджогов, непроверенных участков, трещин, каверн. Изменение цвета ПВХ профилей в местах сварных швов после их зачистки не допускается.
Г.5.16 Прочностные свойства сварных швов должны удовлетворять требованиям
пункта 5.3.3 ГОСТ 30674. Контроль прочностных свойств сварных углов проводят в лаборатории. Необходимость таких испытаний определяет эксперт.
Рисунок Г.8 - Деформации горизонтального профиля
Рисунок Г.9 - Определение прогиба основных профилей
Г.5.17 Внешний вид и цвет изделий (в том числе в местах сварных швов) оценивают путем сравнения с образцами-эталонами, утвержденными в установленном порядке. Цветовая (колориметрическая) характеристика профилей должна соответствовать диапазону:
L >= 90; -2,5 <=
a <= 3,0; -1,0 <=
b <= 5,0 по
ГОСТ 30673. Измерения проводят измерительным прибором - спектрофотометром.
Г.5.18 Водосливные отверстия должны быть в наиболее глубоких частях фальцев и не иметь заусенцев, препятствующих отводу воды. Основные требования к водосливным и вентиляционным отверстиям приведены в
5.9 ГОСТ 30674.
Г.5.19 Проверка на соответствие нормативным требованиям и технической документации подбора и установки устройств запирания по
ГОСТ 30777 (влияет на герметичность СПК). Необходимо проверить расстояние между петлями и точками запирания - значение должно быть не более 700 мм, а от углов - не более 300 мм. Зацепы при фиксировании створки в закрытом положении должны заходить в запорные (ответные) планки не менее чем на 4 мм по высоте, а в направлении перемещения - не менее чем на полную ширину (диаметр) зацепа. Засовы тяг должны заходить в запорные планки не менее чем на 8 мм по высоте.
Г.5.20 При обнаружении продувания по горизонтальной оси оконного блока необходимо проверить деформацию коробок оконного блока в плоскости стеклопакета. Для этого следует снять вертикальные штапики на створке и проверить наличие дополнительных установочных подкладок, отсутствие которых или недостаточное количество может привести к неверной работе запирающих устройств СПК, рисунок Г.10.
Рисунок Г.10 - Схема расположения
установочных подкладок
Г.5.21 При габаритных размерах обследуемых СПК в длину более 2500 мм с рамными элементами, изготовленными из цветного кашированного профиля, и 4500 мм с рамными элементами из белого профиля необходимо проверить наличие деформационного температурного шва, позволяющего компенсировать растяжение и сжатие по горизонтали и вертикали. Схема выполнения такого узла должна быть предусмотрена конструкторской документацией. Типовой узел деформационного температурного шва приведен на рисунке Г.11.
Рисунок Г.11 - Деформационный температурный шов
Г.5.22 Результаты обследования оформляют как заключение в соответствии с рекомендациями
приложений А и
Б.
(рекомендуемое)
ПРИМЕР ПРОВЕДЕНИЯ ПОВЕРОЧНОГО ТЕПЛОТЕХНИЧЕСКОГО
РАСЧЕТА СВЕТОПРОЗРАЧНЫХ ОГРАЖДАЮЩИХ КОНСТРУКЦИЙ
С ОКОННЫМ БЛОКОМ ИЗ ПВХ ПРОФИЛЯ
Д.1 Проводят расчетным методом оценку теплозащитных характеристик выбранного оконного блока.
Д.2 Теплотехнический расчет проводят с применением программного обеспечения, соответствующего
ГОСТ 26602.1,
[1] и нормативным документам <1>, действующим на территории государства, принявшего настоящий стандарт.
--------------------------------
| | ИС МЕГАНОРМ: примечание. В официальном тексте документа, видимо, допущена опечатка: имеется в виду ГОСТ 54164-2010, а не ГОСТ Р 54166-2010. | |
<1> В Российской Федерации в дополнение к указанным межгосударственному и международному стандартам руководствуются требованиями
ГОСТ Р 54166-2010 (ИСО 9050:2003) "Стекло и изделия из него. Методы определения оптических характеристик. Определение световых и солнечных характеристик".
Д.3 В соответствии с проектной документацией составляют исходные данные расчета. В качестве примера для расчета выбраны следующие исходные данные:
- оконный блок размерами 1500 x 1200 мм;
- стеклопакет СПД 4-10kr-4И-10kr-4И (двухкамерный, со стеклами толщиной 4 мм, с двумя мягкими теплоотражающими покрытиями, заполненными криптоновой смесью, и с дистанционной рамкой термикс);
- пятикамерный ПВХ профиль шириной 80 мм;
- расчетные температурные режимы, соответствующие расчетным зимним температурам наружного воздуха и расчетным температурам в помещении в период эксплуатации, - температура наружного воздуха - минус 20 °C, температура воздуха в помещении - 20 °C.
Д.4 Рассчитывают термическое сопротивление однородных участков СПК (по центру стеклопакета, краевой зоны СПК, профиля рамы, профиля створки).
Д.5 Рассчитывают приведенное термическое сопротивление СПК при принятых расчетных температурах.
Д.6 Рассчитывают приведенное сопротивление теплопередаче СПК при нормативных значениях коэффициентов теплоотдачи внутренней и наружной поверхностей.
Д.7 Ниже приведены результаты теплотехнического расчета, не установленного в проем оконного блока размерами 1500 x 1200 мм из пятикамерного ПВХ профиля шириной 80 мм, с энергосберегающим стеклопакетом СПД 4-10kr-4И-10kr-4И в соответствии с
Д.4 -
Д.6:
- термическое сопротивление и сопротивление теплопередаче по центру
приложения Г, выбранного в качестве примера стеклопакета СПД 4-10kr-4И-10kr-4И, полученное расчетным методом, составляют 1,44 м
2·°C/Вт и 1,61 м
2·°C/Вт соответственно;
- приведенное термическое сопротивление и приведенное сопротивление теплопередаче, выбранного в качестве примера несветопрозрачного участка (рама + створка) блока, не установленного в проем, составляют 0,39 м2·°C/Вт и 0,56 м2·°C/Вт соответственно;
- приведенное термическое сопротивление и приведенное сопротивление теплопередаче выбранного в качестве примера оконного блока размерами 1500 x 1200 мм, не установленного в проем, составляют 0,80 м2·°C/Вт и 0,97 м2·°C/Вт соответственно.
Д.8 Если полученное значение сопротивления теплопередаче изделия, не установленного в проем, соответствует требованиям нормативного документа на теплозащиту зданий
<2>, действующего на территории государства, принявшего настоящий стандарт, то проводят поверочный расчет СПК, установленного в проем, с учетом конструкции узла примыкания.
--------------------------------
<2> В Российской Федерации действует
СП 50.13330.2012 "СНиП 23-02-2003 Тепловая защита зданий".
Д.9 Проводят обмер окна в проеме для проведения поверочного расчета и составляют исходные данные, включая:
- состав и техническое решение узла присоединения в проеме;
- геометрические параметры окна в проеме, включая проекцию габаритного размера окна в свету, проекцию размера стеклопакета каждой створки, проекцию размера несветопрозрачного участка окна (рама + створка);
- формулу стеклопакета, установленного в створке;
- конструкцию профильной системы в составе СПК;
- расчетную зимнюю температуру наружного воздуха - среднюю температуру самой холодной пятидневки, расчетную температуру воздуха в помещении в соответствии с санитарными правилами и нормами, действующими на территории государства, принявшего настоящий стандарт.
В качестве примера выбран узел присоединения в проеме кирпичной стены без четверти с откосами из цементно-песчаного раствора, обмеренное окно размерами в свету 1175 x 1475 мм, стеклопакет СПД 4-10kr-4И-10kr-4И с двумя мягкими теплоотражающими покрытиями с криптоновым заполнением и с теплой дистанционной рамкой, пятикамерный ПВХ профиль, расчетная зимняя температура наружного воздуха - минус 20 °C, расчетная температура воздуха в помещении - 20 °C. На
рисунке Д.1 представлен скриншот расчета.
Сопротивление теплопередаче по центру стеклопакета при нормативных значениях коэффициента теплоотдачи

и коэффициента тепловосприятия

составляет
R0 = 1/0,619 = 1,61 м
2·°C/Вт.
Рисунок Д.1 - Скриншот при проведении теплотехнической
оценки стеклопакета СПД 4-10Kr-4И-10Kr-4И (двухкамерный
стеклопакет с двумя мягкими теплоотражающими покрытиями
и с криптоновым заполнением)
Д.10 Составляют расчетную модель узла присоединения окна к проему
(рисунок Д.2).
Д.11 Проводят расчет термического сопротивления и сопротивления теплопередаче стеклопакета по центру при нормативных значениях коэффициентов теплоотдачи внутренней и наружной поверхностей.
Д.12 Вычисляют приведенное термическое сопротивление и приведенное сопротивление теплопередаче несветопрозрачного участка окна над откосом, установленного в проем, при нормативных значениях коэффициентов теплоотдачи внутренней и наружной поверхностей.
Д.13 Определяют приведенное термическое сопротивление и приведенное сопротивление теплопередаче всего окна, установленного в проем, при нормативных значениях коэффициентов теплоотдачи внутренней и наружной поверхностей.
Ниже приведены результаты теплотехнического расчета, установленного в проем окна размерами в свету 1175 x 1475 мм, со стеклопакетом СПД 4-10kr-4И-10kr-4И с двумя мягкими теплоотражающими покрытиями с криптоновым заполнением, с теплой дистанционной рамкой и с пятикамерным ПВХ профилем по представленной выше методике:
- термическое сопротивление и сопротивление теплопередаче по центру выбранного в качестве примера стеклопакета СПД 4-10kr-4И-10kr-4И, полученное расчетным методом, составляют 1,44 м2·°C/Вт и 1,61 м2·°C/Вт соответственно;
- приведенное термическое сопротивление и приведенное сопротивление теплопередаче, выбранного в качестве примера, несветопрозрачного участка (рама + створка) окна, установленного в проем, составляют 0,44 м2·°C/Вт и 0,61 м2·°C/Вт соответственно;
- приведенное термическое сопротивление и приведенное сопротивление теплопередаче окна, установленного в проем, составляют 0,84 м2·°C/Вт и 1,01 м2·°C/Вт соответственно.
Рисунок Д.2 - Пример теплотехнической оценки узла сопряжения
ПВХ профиля со стеклопакетом 4-10Kr-4И-10Kr-4И
и теплой дистанционной рамкой
Сопротивление теплопередаче по раме при нормативных значениях коэффициента теплоотдачи

и коэффициента тепловосприятия

составляет
R0 = 1/1,7743 = 0,56 м
2·°C/Вт.
Наименьшая температура на поверхности узла сопряжения ПВХ профиля со стеклопакетом 4-10Kr-4И-10Kr-4И составляет 11,9 °C.
Рисунок Д.3 - Скриншот при проведении теплотехнической
оценки оконного блока с ПВХ профилем, со стеклопакетом
4-10Kr-4И-10Kr-4И и теплой дистанционной рамкой
Приведенное сопротивление теплопередаче оконного блока при нормативных значениях коэффициента теплоотдачи

и коэффициента тепловосприятия

составляет
R0 = 1/1,029 = 0,97 м
2·°C/Вт.
Рисунок Д.4 - Пример технического решения узла присоединения
оконного блока из ПВХ профиля с двухкамерным
энергосберегающим стеклопакетом к откосам
стенового проема в кирпичной стене
ВЫВОДЫ
1 По результатам поверочного теплотехнического расчета СПК приведенное сопротивление теплопередаче не установленного в проем блока и приведенное сопротивление теплопередаче того же блока (СПК) в проеме практически не отличаются друг от друга. Это свидетельствует о том, что сток тепла через рассмотренный узел присоединения отсутствует.
2 Соответствие обследованного СПК требованиям по теплозащите устанавливают только по результатам комплексных натурных теплотехнических испытаний и поверочных расчетов при расчетных зимних температурах наружного воздуха для конкретного климатического района эксплуатации.
(рекомендуемое)
ПОРЯДОК ПРОВЕДЕНИЯ ОБСЛЕДОВАНИЯ СПК:
ВИТРАЖА ИЗ АЛЮМИНИЕВЫХ СПЛАВОВ, ДЕРЕВЯННЫХ ОКОН
Е.1 Состав обследования
Е.1.1 Ознакомление с техническим заданием на обследование состояния СПК. Составление программы обследования в соответствии с техническим заданием.
Е.1.2 Сбор нормативной и технической документации по СПК и отдельным ее элементам.
Е.1.3 Определение состава комиссии по обследованию объекта, согласование с заказчиком даты и сроков выполнения работ.
Е.1.4 Предварительное обследование СПК (витража, окон) при котором определяются видимые недостатки конструкции СПК. Устанавливаются дефекты стеклопакетов и заполнения витражных и стеновых (световых) проемов.
В холодное время года следует осмотреть поверхность откосов, прилегающих к витражу, на предмет возможности выпадения конденсата и наличие наледи, в теплое время, откосы и поверхность алюминиевого профиля витражей на наличие следов плесени. Следует обратить внимание на угловые и застойные зоны помещения (наличие плесени, сырости) с целью выявления необходимости определения температурно-влажностного помещения.
Е.2 Обследование витража из алюминиевых сплавов
Е.2.1 По результатам предварительного обследования и опроса лиц, непосредственно находящихся в обследуемом помещении, составляют дефектную ведомость витража и узла присоединения.
Е.2.2 Проводят детальное обследование витража, включая:
- определение конструктивных несоответствий отдельных элементов витража по результатам проверки рабочей документации;
- замер габаритных размеров коробки витража с использованием методов, установленных в
ГОСТ 26433.0;
- контроль криволинейности основных профилей витража в плоскости, перпендикулярной к остеклению. Отклонения от прямолинейности кромок деталей рамочных элементов не должны превышать 1,0 мм на 1 м длины;
- обследование внешнего вида витража. Перепад лицевых поверхностей (провес) в угловых и Т-образных соединениях смежных деталей коробок, установка которых предусмотрена в одной плоскости, не должен превышать 1 мм. Зазоры в местах угловых и Т-образных соединений профилей не должны превышать 0,5 мм;
- обследование качества отделочного и защитно-декоративного покрытия. Внешний вид и цвет витража проверяют путем сравнения с образцом-эталоном, предоставленным предприятием-изготовителем. Дефекты покрытия, различимые невооруженным глазом с расстояния 5 м при интенсивности освещения не менее 300 лк, не допускаются;
- обследование водосливных отверстий. Нижние профили коробок и горизонтальные импосты наружных изделий должны иметь водосливные отверстия размером не менее 5 x 25 мм, защищенные козырьками. Число, расположение и размер отверстий устанавливают в рабочих чертежах.
Е.2.3 Теплотехническое обследование витражей проводят в соответствии с техническим заданием по методикам, изложенным в
ГОСТ 26602.1. В случае обнаружения промерзания витража возможно проведение теплотехнических испытаний с определением приведенного сопротивления теплопередаче и воздухопроницаемости. Необходимость таких испытаний определяет эксперт, проводящий обследование, по согласованию со всеми заинтересованными сторонами.
Е.2.4 По результатам обследования составляют техническое заключение с выводами о техническом состоянии обследуемых витражей, включая рекомендации о целесообразности и условий их эксплуатации.
При необходимости разрабатывают рекомендации по усилению или замене отдельных элементов или витража в целом.
Е.3 Обследование деревянных окон
Е.3.2 На подготовительном этапе обследования осуществляется:
- ознакомление с технической документацией, представленной заказчиком;
- изучение свидетельств (в случае необходимости), которые могли бы установить причины и обстоятельства, повлекшие дефекты СПК;
- подготовка необходимых инструментов и приборов для обследования;
- решение организационных вопросов, связанных с назначением эксперта (экспертной комиссии), извещения заинтересованных лиц о времени и месте обследования, оформление допусков на объект, инструктаж по технике безопасности и т.д.
Е.3.3 Проводят обследование температурно-влажностного состояния эксплуатируемых помещений, в период наибольшей интенсивности влаговыделения источников (например, с заполненными ваннами бассейнов, работающими кухнями и т.д.) в соответствии с
ГОСТ 30494. Оценивают параметры микроклимата в помещениях.
Е.3.4 При обследовании деревянных СПК следует принимать во внимание наиболее характерные для деревянных изделий признаки влияния повышенной влажности (свыше 60%) на качество СПК, в том числе:
- растрескивание брусковых деталей СПК;
- отслаивание лакокрасочных покрытий;
- потемнение замачиваемых поверхностей (блоков и откосов);
- нарушение геометрии конструкций;
- отказ устройств открывания/закрывания (по
ГОСТ 30777).
Е.3.5 Измерение влажности древесины изделий проводят в нижней части внутренней части СПК, как наиболее уязвимом месте вследствие стекания конденсата.
Е.3.6 При проведении обследования следует обращать внимание на торцовые поверхности створок и внутренние сопрягаемые поверхности рам и на наличие характерных повреждений, потертостей, борозд, шероховатости поверхности, что свидетельствует о нарушении геометрии конструкций. При этом эффект заеданий при открывании - закрывании может проявляться в большей степени в летний период эксплуатации.
Е.3.7 При проведении обследования необходимо учитывать, что в процессе эксплуатации деревянных СПК возможны проявления, связанные с процессами адаптации изделий к условиям применения. В этот период возможны проявления сучков, смоляных кармашков и других дефектов древесины (в особенности при использовании прозрачных покрытий). Данный эффект проявляется в большей степени с наружной стороны изделий и особенно в зонах солнечной инсоляции.
Е.3.8 При обследовании следует также учитывать эффект влияния затенения СПК, приводящего к неравномерности выгорания лакокрасочных покрытий.
Е.3.9 Обследование эксплуатируемых конструкций следует проводить преимущественно в натурных условиях. В лабораторных условиях допускается проводить работы по определению материала конструкций и дефектов поверхностей. Следует учитывать, что эксплуатационные характеристики демонтированных деревянных СПК трудновоспроизводимы в лабораторных условиях.
Е.3.10 Заключительный этап обследования включает в себя анализ полученных результатов и составление Заключения (Акта обследования).
Кроме данных, приведенных в установленной форме
(приложение Б). Заключение по результатам обследования деревянных СПК содержит:
- сведения о температурно-влажностном состоянии помещений;
- информацию о выполнявшихся строительных и иных работах, связанных с повышенной влажностью воздуха и агрессивностью среды (отделочные работы, устройство полов, окрасочные работы и пр.);
- сведения о материале древесины;
- сведения о влажности древесины;
- сведения о положении СПК по отношению к солнцу;
- сведения о состоянии внутренней поверхности изделий;
- сведения о состоянии внешней поверхности изделий;
- сведения о дате установки или ремонта/последней окраски (для эксплуатируемых изделий).
Е.3.11 К заключению могут прилагаться официальные документы: справки, протоколы испытательных лабораторий, Акты работ, выполненные другими организациями.
| ИСО 10077-2:2012 | Тепловые характеристики окон, дверей и жалюзи. Расчет коэффициента теплопропускания. Часть 2. Численный метод для рам |