Главная // Актуальные документы // ГОСТ Р (Государственный стандарт)СПРАВКА
Источник публикации
М.: ФГБУ "РСТ", 2022
Примечание к документу
Документ
введен в действие с 01.02.2022.
Название документа
"ГОСТ Р 59623-2021. Национальный стандарт Российской Федерации. Дороги автомобильные общего пользования. Мостовые сооружения. Проектирование стальных элементов"
(утв. и введен в действие Приказом Росстандарта от 06.12.2021 N 1702-ст)
"ГОСТ Р 59623-2021. Национальный стандарт Российской Федерации. Дороги автомобильные общего пользования. Мостовые сооружения. Проектирование стальных элементов"
(утв. и введен в действие Приказом Росстандарта от 06.12.2021 N 1702-ст)
Утвержден и введен в действие
агентства по техническому
регулированию и метрологии
от 6 декабря 2021 г. N 1702-ст
НАЦИОНАЛЬНЫЙ СТАНДАРТ РОССИЙСКОЙ ФЕДЕРАЦИИ
ДОРОГИ АВТОМОБИЛЬНЫЕ ОБЩЕГО ПОЛЬЗОВАНИЯ
МОСТОВЫЕ СООРУЖЕНИЯ
ПРОЕКТИРОВАНИЕ СТАЛЬНЫХ ЭЛЕМЕНТОВ
Automobile roads of general use. Bridge constructions.
Design of steel elements
ГОСТ Р 59623-2021
Дата введения
1 февраля 2022 года
1 РАЗРАБОТАН Обществом с ограниченной ответственностью "Мастерская Мостов" (ООО "Мастерская Мостов")
2 ВНЕСЕН Техническим комитетом по стандартизации ТК 418 "Дорожное хозяйство"
3 УТВЕРЖДЕН И ВВЕДЕН В ДЕЙСТВИЕ
Приказом Федерального агентства по техническому регулированию и метрологии от 6 декабря 2021 г. N 1702-ст
4 ВВЕДЕН ВПЕРВЫЕ
Правила применения настоящего стандарта установлены в статье 26 Федерального закона от 29 июня 2015 г. N 162-ФЗ "О стандартизации в Российской Федерации". Информация об изменениях к настоящему стандарту публикуется в ежегодном (по состоянию на 1 января текущего года) информационном указателе "Национальные стандарты", а официальный текст изменений и поправок - в ежемесячном информационном указателе "Национальные стандарты". В случае пересмотра (замены) или отмены настоящего стандарта соответствующее уведомление будет опубликовано в ближайшем выпуске ежемесячного информационного указателя "Национальные стандарты". Соответствующая информация, уведомление и тексты размещаются также в информационной системе общего пользования - на официальном сайте Федерального агентства по техническому регулированию и метрологии в сети Интернет (www.rst.gov.ru)
Настоящий стандарт распространяется на мостовые сооружения, расположенные на автомобильных дорогах общего пользования (далее - автомобильные дороги), в том числе при прохождении автомобильных дорог общего пользования по территории населенных пунктов.
Настоящий стандарт устанавливает правила проектирования стальных элементов пролетных строений при проектировании новых, реконструируемых и подвергаемых капитальному ремонту или ремонту мостовых сооружений постоянного типа, а также пешеходных мостов.
Настоящий стандарт не распространяется на проектирование:
- висячих, вантовых и арочных мостов с подвесками из канатов;
- совмещенных мостов;
- мостовых сооружений на внутрихозяйственных дорогах промышленных, сельскохозяйственных и лесозаготовительных предприятий;
- механизмов разводных мостов;
- деформационных швов;
- опорных частей;
- стальных конструкций с предварительным напряжением;
- коммуникационных мостов, не предназначенных для пропуска транспортных средств и пешеходов.
Требования стандарта распространяются на мостовые сооружения, предназначенные для эксплуатации в любых климатических условиях и в районах с расчетной сейсмичностью до 9 баллов включительно.
В настоящем стандарте использованы нормативные ссылки на следующие документы:
ГОСТ 9.401 Единая система защиты от коррозии и старения. Покрытия лакокрасочные. Общие требования и методы ускоренных испытаний на стойкость к воздействию климатических факторов
ГОСТ 1497-84 (ИСО 6892-84) Металлы. Методы испытаний на растяжение
ГОСТ 6713-91 Прокат низколегированный конструкционный для мостостроения. Технические условия
ГОСТ 7268 Сталь. Метод определения склонности к механическому старению по испытанию на ударный изгиб
ГОСТ 8509 Уголки стальные горячекатаные равнополочные. Сортамент
ГОСТ 8510 Уголки стальные горячекатаные неравнополочные. Сортамент
ГОСТ 8639 Трубы стальные квадратные. Сортамент
ГОСТ 9454 Металлы. Метод испытания на ударный изгиб при пониженных, комнатной и повышенных температурах
ГОСТ 9467 Электроды покрытые металлические для ручной дуговой сварки конструкционных и теплоустойчивых сталей. Типы
ГОСТ 10243 Сталь. Методы испытаний и оценки макроструктуры
ГОСТ 14019 (ИСО 7438:1985) Материалы металлические. Метод испытания на изгиб
ГОСТ 19281 Прокат из стали повышенной прочности. Общие технические условия
ГОСТ 27751-2014 Надежность строительных конструкций и оснований. Основные положения
ГОСТ 28870-90 Сталь. Методы испытания на растяжение толстолистового проката в направлении толщины
ГОСТ 32960-2014 Дороги автомобильные общего пользования. Нормативные нагрузки, расчетные схемы нагружения
ГОСТ 33384-2015 Дороги автомобильные общего пользования. Проектирования мостовых сооружений. Общие требования
ГОСТ 33390-2015 Дороги автомобильные общего пользования. Мосты. Нагрузки и воздействия
ГОСТ Р 53664 Болты высокопрочные цилиндрические и конические для мостостроения гайки и шайбы к ним. Технические условия
ГОСТ Р 55374 Прокат из стали конструкционной легированной для мостостроения. Общие технические условия
ГОСТ Р 59624-2021 Дороги автомобильные общего пользования. Мостовые сооружения. Проектирование сталежелезобетонных элементов
| | ИС МЕГАНОРМ: примечание. В официальном тексте документа, видимо, допущена опечатка: стандарт имеет номер ГОСТ Р 59625-2022, а не ГОСТ Р 59625-2021. | |
ГОСТ Р 59625-2021 Дороги автомобильные общего пользования. Мостовые сооружения. Правила расчета и подтверждения аэроупругой устойчивости
Примечание - При пользовании настоящим стандартом целесообразно проверить действие ссылочных стандартов (сводов правил) в информационной системе общего пользования - на официальном сайте Федерального агентства по техническому регулированию и метрологии в сети Интернет или по ежегодному информационному указателю "Национальные стандарты", который опубликован по состоянию на 1 января текущего года, и по выпускам ежемесячного информационного указателя "Национальные стандарты" за текущий год. Если заменен ссылочный документ, на который дана недатированная ссылка, то рекомендуется использовать действующую версию этого документа с учетом всех внесенных в данную версию изменений. Если заменен ссылочный документ, на который дана датированная ссылка, то рекомендуется использовать версию этого документа с указанным выше годом утверждения (принятия). Если после утверждения настоящего стандарта в ссылочный документ, на который дана датированная ссылка, внесено изменение, затрагивающее положение, на которое дана ссылка, то это положение рекомендуется применять без учета данного изменения. Если ссылочный документ отменен без замены, то положение, в котором дана ссылка на него, рекомендуется применять в части, не затрагивающей эту ссылку. Сведения о действии сводов правил целесообразно проверить в Федеральном информационном фонде стандартов.
В настоящем стандарте применены следующие термины с соответствующими определениями:
3.1
несущая способность: Максимальный эффект воздействия, реализуемый в строительном объекте без превышения предельных состояний. |
3.2
надежность строительного объекта: Способность строительного объекта выполнять требуемые функции в течение расчетного срока эксплуатации. |
3.3
мостовое сооружение: Инженерное сооружение, состоящее из опор и пролетных строений, предназначенное для пропуска через препятствие разных видов транспортных средств, пешеходов, водотоков, селей и коммуникаций различного назначения (мосты, путепроводы, пешеходные мосты, виадуки, эстакады, акведуки, селедуки); часто подменяется термином "мост". |
3.4
мост автодорожный: Мост на автомобильных дорогах, предназначенный для движения по нему транспортных средств. |
3.5
мост пешеходный: Мост, предназначенный в основном для движения пешеходов. |
3.6
волосовина: Дефект поверхности в виде нитевидных несплошностей в металле, образовавшихся при деформации имеющихся в нем неметаллических включений. |
3.7
расслоение: Дефект поверхности в виде трещин на кромках и торцах листов и других видов проката, образовавшихся при наличии в металле усадочных дефектов, внутренних разрывов, повышенной загрязненности неметаллическими включениями и при пережоге. |
3.8
надрывы: Дефект поверхности в виде поперечных несквозных разрывов на тонких листах, образующихся при прокатке в местах забоин, углублений от зачистки, раскатанных загрязнений и окалины. |
3.9
усадочная раковина: Дефект в виде открытой или закрытой полости с грубой шероховатой иногда окисленной поверхностью, образовавшейся вследствие усадки при затвердевании металла. |
3.10
подусадочная рыхлота: Дефект в виде одной или нескольких темных полос с грубослоистой структурой, часто сопровождающихся порами, шлаковыми включениями. [ГОСТ 10243-75, приложение 4, пункт 4] |
3.11 газовый пузырь: Дефект поверхности в виде локализованного вспучивания металла, образующегося на поверхности листа из-за повышенного местного загрязнения металла газами или неметаллическими включениями.
3.12 ядро сечения: Замкнутая область вокруг центра тяжести поперечного сечения, характеризуемая тем, что всякая сжимающая сила, приложенная внутри него, вызывает во всех точках поперечного сечения напряжения сжатия.
3.13 ядровое расстояние: Мера эффективности сечения элемента конструкции работающего на изгиб, равная отношению момента сопротивления сечения элемента к его площади.
Примечание - Чем больше величина ядрового расстояния, тем более эффективно работает сечение элемента конструкции.
3.14 ветровая ферма: Элемент конструкции пролетного строения мостового сооружения, образованный поясами главных ферм и системой горизонтальных продольных связей, воспринимающий и передающий в опорные узлы поперечные горизонтальные нагрузки в виде давления ветра.
3.15 фрикционное соединение: Соединение на высокопрочных болтах, создающих необходимую силу трения между сопрягаемыми металлическими элементами за счет их обжатия.
3.16 обушок уголка: Угол, в котором сходятся полки уголка.
3.17 перо уголка: Свободный край полки уголка.
В настоящем стандарте применены следующие обозначения:
A - площадь сечения брутто;
Abn - площадь сечения болта нетто;
An - площадь сечения нетто;
A0 - площадь поперечного сечения испытуемого образца;
Af - площадь сечения полки (пояса);
Aw - площадь сечения стенки;
Awf - площадь сечения по металлу углового шва;
Awz - площадь сечения по металлу границы сплавления;
E - модуль упругости первого рода (Юнга);
F - сила;
G - модуль сдвига (модуль упругости второго рода);
Is - момент инерции сечения ребра;
Isl - момент инерции сечения продольного ребра;
It - момент инерции кручения балки;
Ix, Iy - моменты инерции сечения брутто относительно осей соответственно x-x и y-y (ось x-x - горизонтальная, ось y-y - вертикальная);
Ixn, Iyn - то же, сечения нетто;
M - момент, изгибающий момент;
Mcr - критический изгибающий момент в пределах расчетной длины сжатого пояса балки, определяемый по теории тонкостенных упругих стержней для заданных условий закрепления и нагружения балки;
Mx, My - моменты относительно осей соответственно x-x и y-y;
N - продольная сила;
Ncr - критическая нормальная сила, определяемая по теории тонкостенных упругих стержней для заданных условий закрепления и нагружения элементов;
Q - поперечная сила, сила сдвига;
Qfic - условная поперечная сила для соединительных элементов;
Qs - условная поперечная сила, приходящаяся на систему планок, расположенных в одной плоскости;
Rbh - расчетное сопротивление растяжению высокопрочных болтов;
Rbp - расчетное сопротивление смятию болтовых соединений;
Rbs - расчетное сопротивление болтов срезу;
Rbt - расчетное сопротивление болтов растяжению;
Rbun - нормативное сопротивление стали болтов, принимаемое равным временному сопротивлению

по национальным стандартам и техническим условиям на болты;
Rp - расчетное сопротивление стали смятию торцевой поверхности (при наличии пригонки);
Rs - расчетное сопротивление стали сдвигу;
Rth - расчетное сопротивление стали растяжению в направлении толщины проката;
Ru - расчетное сопротивление стали растяжению, сжатию, изгибу по временному сопротивлению;
Run - временное сопротивление стали разрыву, принимаемое равным минимальному значению

по национальным стандартам и техническим условиям на сталь;
Rwf - расчетное сопротивление угловых швов срезу (условному) по металлу шва;
Rwu - расчетное сопротивление стыковых сварных соединений сжатию, растяжению, изгибу по временному сопротивлению;
Rwun - нормативное сопротивление металла шва по временному сопротивлению;
Rws - расчетное сопротивление стыковых сварных соединений сдвигу;
Rwy - расчетное сопротивление стыковых сварных соединений сжатию, растяжению и изгибу по пределу текучести;
Rwz - расчетное сопротивление угловых швов срезу (условному) по металлу границы сплавления;
Ry - расчетное сопротивление стали растяжению, сжатию, изгибу по пределу текучести;
Ryn - предел текучести стали, принимаемый равным значению предела текучести

по национальным стандартам и техническим условиям на сталь;
S - статический момент сдвигаемой части сечения брутто относительно нейтральной оси;
Wx, Wy - минимальные моменты сопротивления сечения брутто относительно осей соответственно x-x и y-y;
Wxn, Wyn - минимальные моменты сопротивления сечения нетто относительно осей соответственно x-x и y-y;
a - шаг болтов;
b - ширина;
bef - расчетная ширина;
bf - ширина полки (пояса);
bh - ширина выступающей части ребра, свеса;
e - эксцентриситет силы;
erel - относительный эксцентриситет (erel = e·A/Wc);
eef - приведенный относительный эксцентриситет

;
h - высота;
hw - расчетная высота стенки (расстояние между осями поясов);
i - радиус инерции сечения;
imin - наименьший радиус инерции сечения;
ix, iy - радиусы инерции сечения относительно осей соответственно x-x и y-y;
kf - катет углового шва;
l - длина, пролет;
lc - длина распорки;
ld - длина раскоса;
lef - расчетная, условная длина;
lm - длина панели (расстояние между узлами решетчатой конструкции);
ls - длина планки;
lw - длина сварного шва;
lx, ly - расчетные длины элемента в плоскостях, перпендикулярных осям соответственно x-x и y-y;
m - коэффициент условий работы;
mb - коэффициент условий работы соединения;
r - радиус;
t - толщина;
tf - толщина полки (пояса);
tw - толщина стенки;

- коэффициент при расчетах изгибаемых элементов для сечений с одной осью симметрии;

,

- коэффициенты при расчетах изгибаемых элементов для сечений с двумя осями симметрии в плоскостях, перпендикулярных осям соответственно
x-x и
y-y;

- относительное сужение испытуемого образца проката при испытании на растяжение в направлении толщины проката (
z - направление);

,

- коэффициенты для расчета углового шва соответственно по металлу шва и по металлу границы сплавления;

- коэффициент надежности по назначению;

- коэффициент надежности по материалу;

- коэффициент надежности в расчетах по временному сопротивлению;

- удлинение испытуемого образца проката при разрыве, при испытании на растяжение с базовой длиной, равной

;

- коэффициент влияния формы сечения;

- гибкость

;

,

- расчетные гибкости элемента в плоскостях, перпендикулярных к осям соответственно
x-x и
y-y;

- коэффициент расчетной длины;

- коэффициент трения по контактным поверхностям элементов во фрикционных соединениях;
v - коэффициент поперечной деформации стали (Пуассона);

,

- нормальные напряжения, параллельные осям соответственно
x-x и
y-y;

- временное сопротивление испытуемого образца проката при испытании на растяжение в направлении толщины проката (
z - направление);

- касательное напряжение;

- коэффициент продольного изгиба.
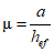
5.1 Тип исполнения стальных элементов пролетных строений, в зависимости от значения расчетной минимальной температуры, следует назначать:
- до минус 40 °C включительно - обычное;
- ниже минус 40 °C до минус 50 °C включительно - северное А;
- ниже минус 50 °C - северное Б.
За расчетную минимальную температуру следует принимать среднюю температуру наружного воздуха наиболее холодной пятидневки в районе строительства в соответствии с требованиями
СП 131.13330 с обеспеченностью 0,98.
5.2 При проектировании стальных элементов пролетных строений мостов необходимо:
- выбирать оптимальные в технико-экономическом отношении схемы, системы и конструкции пролетных строений, рациональные и эффективные сечения элементов, профили проката и марки (классы) сталей;
- обеспечивать технологичность конструкций при заводском изготовлении и монтаже;
- предусматривать унификацию деталей, узлов, соединений, отправочных марок, профилей проката с минимальной номенклатурой и минимальными отходами при раскрое;
- применять отправочные марки и укрупненные монтажные блоки максимальной заводской готовности с минимальными объемами работ по образованию соединений на монтаже;
- назначать допуски на линейные размеры и геометрическую форму отправочных марок исходя из обеспечения беспрепятственной и нетрудоемкой собираемости конструкций на монтаже;
- предусматривать применение наиболее надежных экономичных и нетрудоемких заводских и монтажных соединений: сварных, фрикционных, болтовых, шарнирных;
- обеспечивать возможность осмотра, очистки, окраски и ремонта конструкций; исключать в элементах, узлах и соединениях зоны, в которых возможно скопление воды и других загрязнений;
- предусматривать дренажные отверстия в местах скопления воды, проветривание внутренних зон и герметизацию полностью замкнутых профилей, элементов и блоков;
- указывать в документации конструкций металлических (КМ): марки (классы) сталей и требования к ним в соответствии с действующими нормативными документами; типы и размеры заводских и монтажных сварных соединений, участки сварных швов с полным проплавлением толщины детали; угловые швы с роспусками; способы защиты от коррозии. Документация КМ должна содержать все данные для заказа металлопроката, метизов и т.п.
5.3 Сечения стальных элементов мостовых конструкций должны быть оптимальными из условий расчета их на прочность, устойчивость, выносливость и деформативность.
5.4 При проектировании стальных мостов следует учитывать ветровое воздействие согласно
ГОСТ Р 59625.
5.5 В зависимости от класса сооружений при их проектировании необходимо использовать коэффициент надежности по ответственности, минимальные значения которых приведены в ГОСТ 27751-2014
(таблица 2).
5.6 Расчеты следует выполнять в соответствии с требованиями
статьи 3 [1]. Конструктивные элементы стальных мостовых сооружений следует рассчитывать на нагрузки и воздействия и их сочетания, в соответствии с ГОСТ 33390-2015 (
подразделы 3.1,
3.2) и СП 35.13330.2011 (
пункты 6.1 -
6.3).
6 Материалы и полуфабрикаты
6.1 В стальных конструкциях мостов со сварными, фрикционными, болтовыми, фланцевыми и шарнирными соединениями в обычном и северном исполнениях следует применять:
- для стальных элементов из проката (сталь в соответствии с
разделом 7);
- сварочные материалы для заводских и монтажных цельносварных и фрикционных соединений - по указаниям
[2] и
[3];
6.2 При проектировании несущих стальных конструкций не допускается использовать восстановленные стальные трубы и другие бывшие в употреблении виды металлоконструкций (профилей, балок, листов, полос и др).
6.3 Профили холодногнутые сварные квадратные, прямоугольные и корытные (трапецеидальные) должны соответствовать требованиям
ГОСТ 8639. Внутренний радиус гибки должен быть не менее 2,5 толщины листа для основных несущих элементов конструкций обычного и северного исполнений. Марки сталей для холодногнутых профилей следует принимать в соответствии с
разделом 7.
6.4 Отношение Run/Ryn установленного нормативного значения по временному сопротивлению при растяжении Run к установленному нормативному пределу текучести Ryn должно быть не менее рекомендованного предельного значения:
- для сталей класса прочности С325 - 1,38;
- для сталей класса прочности С330 - 1,42;
- для сталей класса прочности С345 - 1,39;
- для сталей класса прочности С390 - 1,36.
6.5 Удлинение испытуемого образца проката при разрыве, при испытании на растяжение с базовой длиной

(где
A0 - площадь поперечного сечения испытуемого образца по
ГОСТ 1497) должно быть не менее рекомендованного предельного значения:
- для сталей класса прочности С325 - С345 - 21%;
- для сталей класса прочности С390 - 19%.
6.6 Относительное сужение

испытуемого образца проката толщиной 20 мм и более при испытании на растяжение в направлении толщины проката (
z - направление) по
ГОСТ 28870 должно быть не менее рекомендованного предельного значения 35% (группа качества Z35) для сталей класса прочности С325 - С390.
6.7 Временное сопротивление

испытуемого образца проката толщиной 20 мм и более при испытании на растяжение в направлении толщины проката (
z - направление) должно быть не менее рекомендованного предельного значения:
- для сталей класса прочности С325 - 225 МПа;
- для сталей класса прочности С34 - 245 МПа;
- для сталей класса прочности С390 - 265 МПа.
Для определения временного сопротивления

образец подвергают растяжению под действием плавно возрастающего усилия до разрушения по ГОСТ 1497-84
(раздел 4). Методы отбора образцов по ГОСТ 28870-90
(раздел 1).
6.8 Механические свойства проката при испытании на ударный изгиб по
ГОСТ 9454 и
ГОСТ 7268, для сталей класса прочности С325 - С390, должны быть не менее указанных в таблице 1.
Таблица 1
Класс прочности | Номинальная толщина проката t, мм | Ударная вязкость, Дж/см2 |
в состоянии поставки | после механического старения |
KCU | KCV | KCU |
для категорий | для категорий | для категорий |
1 | 2 | 3 | 2 | 3 | 1 и 2 | 3 |
При температуре испытания, °C |
-40 | -60 | -70 | -20 | -40 | +20 | -20 |
С325 | 4 - 20 | 39 | 29 | 29 | 29 | 29 | 29 | 29 |
С345 - С390 | 8 - 50 | 39 | 29 | 29 | 29 | 29 | 29 | 29 |
Примечания 1 Испытания на ударный изгиб на образцах с острым надрезом (KCV) проводят для проката толщиной 10 мм и более. 2 При испытании проката на ударный изгиб на образцах типа 3 по ГОСТ 9454 значения ударной вязкости должны быть на 10 Дж/см 2 выше приведенных в таблице 1. |
6.9 Прокат толщиной 10 мм и более из сталей классов прочности С325 - С390 должен быть испытан на изгиб широкой пробы по
ГОСТ 14019 до параллельности сторон при комнатной температуре на оправке диаметром
d = 2
t - для проката категории 1 и
d = 1,5
t - для проката категорий 2 и 3, где
d - диаметр оправки, мм;
t - номинальная толщина проката, мм.
На кромках образцов при изгибе не должно быть надрывов и трещин.
6.10 Прокат из сталей класса прочности С325 - С390 должен быть испытан на излом надрезанных образцов толщиной равной толщине проката по
ГОСТ 10243.
Макроструктура проката в изломе не должна иметь видимых невооруженном глазом дефектов: остатков усадочной раковины, подусадочной рыхлоты, трещин и газовых пузырей.
Излом надрезанных образцов должен иметь волокнистое строение структуры на площади не менее 50%.
В изломе допускаются отдельные волосовины и расслоения длиной не более 10 мм; суммарная длина волосовин и расслоений в изломе допускается не более 20 мм.
7 Расчетные характеристики материалов и соединений
7.1 Нормативные и расчетные сопротивления проката из сталей, приведенных в
таблице 2, следует принимать по
таблице 5.
Расчетные сопротивления проката для различных видов напряженных состояний необходимо определять по формулам, приведенным в
таблице 3. Значения коэффициентов надежности по материалу

при вычислении расчетных сопротивлений следует принимать по
таблице 4.
Для стальных элементов из проката (сталь в соответствии с таблицей 2) допускается применять сталь марок, не указанных в таблице 2, в том числе высокопрочных наноструктурированных, после проверки в опытных конструкциях в порядке, предусмотренном законодательством Российской Федерации в области технического регулирования и санитарно-эпидемиологического благополучия населения. Расчетные характеристики в этом случае следует определять в соответствии с настоящим пунктом.
Тип исполнения | Сталь несущих элементов сварных пролетных строений, применяемая в заводских и монтажных соединениях сварных швов и высокопрочных болтов стальных элементов мостовых сооружений, расположенных на автомобильных дорогах общего пользования <1> |
вид проката | марка стали | Нормативный документ | Толщина проката, мм |
обозначение | дополнительные требования |
Обычное | Любой | | | - | До 20 включ. |
Листовой | 15ХСНД | | - | 8 - 14 |
15ХСНД-2 | | - | |
10ХСНД | | - | 8 - 15 |
10ХСНД-2 | | - | |
15ХСНДА-2 | | Изменение N 2 | |
15ХСНД | | | 8 - 14 |
15ХСНД-2 | | |
10ХСНД | | 8 - 14 |
10ХСНД-2 | | |
10ХСНДА-2 | | Изменение N 2 | |
345-14ХГНДЦ-2 | | - | |
390-14ХГНДЦ-2 | | Изменение N 2 | |
Фасонный | 15ХСНД | | - | 8 - 32 |
10ХСНД | | - | 8 - 14 |
345-14ХГНДЦ-2 | | - | 8 - 20 |
09Г2СД-2 | | - | 4 - 20 |
09Г2СД-12 | | - | 8 - 20 |
Северное А | Листовой | 15ХСНД-2 | | - | |
10ХСНД-2 | | - | |
15ХСНД-2 | | | |
10ХСНД-2 | | |
| | Изменение N 2 | |
| | Изменение N 2 | |
345-14ХГНДЦ-3 | | - | |
390-14ХГНДЦ-3 | | Изменение N 2 | |
Фасонный | | | | 8 - 32 |
| | 8 - 14 |
| | 4 - 20 |
| | Химический состав по [4]. | 8 - 20 |
09Г2СД-14 | | - | 8 - 20 |
Северное Б | Листовой | 10ХСНД-3 | | | |
Фасонный | | | | 8 - 32 |
| | 8 - 14 |
| | - | 8 - 14 |
<1> Стальные элементы мостовых сооружений согласно области применения (раздел 1). <2> Марка стали 16Д включена в данную таблицу для возможности выполнения расчетов, в том числе поверочных, для конструктивных элементов мостовых сооружений, подвергаемых реконструкции и капитальному ремонту. <3> Для сварных стыковых швов, выполняемых в вертикальном положении, толщину листового проката следует принимать в пределах 12 - 32 мм. При этом листовой прокат следует принимать не ниже 2-й категории. <4> Допускается применение проката марок 15ХСНДА и 10ХСНДА по [4] категории 3 в нормализованном состоянии для обычного и северного А исполнений, при этом нормативное значение ударной вязкости (KCU) такого проката при минус 60 °C (KCU -60) должно быть не менее 120 Дж/см 2. <5> В конструкциях автодорожных и пешеходных мостов северного исполнения А и Б допускается применять прокатные двутавры, тавры и швеллеры без термообработки при условии выполнения дополнительных требований по ударной вязкости: для зоны А при температуре минус 60 °C и плюс 20 °C после механического старения, а для зоны Б - при температуре минус 70 °C и минус 20 °C. Допускается применять уголки по ГОСТ 8509 и ГОСТ 8510, сортовой прокат (кроме полосового) и трубы без термообработки - прокат категории 1 по ГОСТ Р 55374 при условии выполнения дополнительных требований по ударной вязкости. <6> В конструкциях автодорожных и пешеходных мостов требование полистного испытания следует предъявлять при расчетной минимальной температуре наружного воздуха минус 60 °C и ниже. |
Напряженное состояние | Расчетные сопротивления проката |
Растяжение, сжатие и изгиб: | |
по пределу текучести | |
по временному сопротивлению | |
Сдвиг (срез) | |
Смятие торцевой поверхности при наличии пригонки | |
Растяжение в направлении толщины проката t при его толщине t до 60 мм | |
Обозначение нормативного документа (марка стали, и/или значение предела текучести, и/или вид проката) | Коэффициент надежности по материалу  |
| 1,05 |
| 1,10 |
| 1,09 |
| 1,165 |
| | ИС МЕГАНОРМ: примечание. Текст в графе 1 дан в соответствии с официальным текстом документа. | |
|
| |
|
|
| 1,125 |
|
|
|
Класс прочности | Марка стали | Нормативный документ | Прокат | | Нормативное сопротивление <2>, МПа | Расчетное сопротивление <3>, МПа |
по пределу текучести Ryn | по временному сопротивлению Run | по пределу текучести Ry | по временному сопротивлению |
С345 | 15ХСНД | | Листовой | 8 - 32 | 345 | 490 | 295 | 415 |
С335 | 15ХСНД | | Листовой | 33 - 50 | 335 | 470 | 285 | 400 |
С345 | 15ХСНД | | Листовой | 8 - 50 | 345 | 490 | 295 | 415 |
С345 | 15ХСНД | | Фасонный | 8 - 32 | 345 | 490 | 295 | 415 |
С345 | 345-14ХГНДЦ | | Листовой | 8 - 50 | 345 | 490 | 295 | 415 |
С345 | 345-14ХГНДЦ | | Фасонный | 8 - 20 | 345 | 490 | 295 | 415 |
С345 | 15ХСНДА | | Листовой | 8 - 50 | 345 | 490 | 295 | 415 |
С325 | 09Г2СД | | Фасонный | 4 - 20 | 325 | 450 | 280 | 385 |
С345 | 09Г2СД | | Фасонный | 4 - 20 | 345 | 480 | 295 | 415 |
С390 | 09Г2СД | | Фасонный | 4 - 20 | 390 | 530 | 350 | 450 |
С390 | 10ХСНД | | Листовой | 8 - 50 | 390 | 530 | 350 | 470 |
С390 | 10ХСНД | | Фасонный | 8 - 15 | 390 | 530 | 350 | 470 |
С390 | 10ХСНД | | Любой | 8 - 15 | 390 | 530 | 350 | 470 |
С390 | 10ХСНД | | Листовой | 16 - 32 | 390 | 530 | 350 | 470 |
С390 | 10ХСНД | | Листовой | 33 - 40 | 390 | 510 | 350 | 450 |
С390 | 10ХСНДА | | Листовой | 8 - 50 | 390 | 530 | 350 | 470 |
С390 | 390-14ХГНДЦ | | Листовой | 8 - 50 | 390 | 530 | 350 | 470 |
<1> За толщину фасонного проката следует принимать толщину полки. <3> Здесь указаны расчетные сопротивления растяжению, сжатию и изгибу Ry и Ru. Остальные расчетные сопротивления определяются по формулам таблицы 3. Примечание - Значения расчетных сопротивлений получены делением нормативных сопротивлений на коэффициент надежности по материалу, определяемый по таблице 4, и округлением до 5 МПа. |
7.2 Расчетные сопротивления сварных соединений для различных видов соединений и напряженных состояний следует определять по формулам, приведенным в таблице 6.
Таблица 6
Тип сварного соединения | Напряженное состояние | Расчетные сопротивления |
Стыковые | Растяжение, сжатие и изгиб: | |
по пределу текучести | Rwy = Ry |
по временному сопротивлению | Rwu = Ru |
Сдвиг | Rws = Rs |
С угловыми швами | Срез (условный): | |
по металлу шва | |
по металлу границы сплавления | Rwz = 0,45·Run |
Примечания 1 Для швов, выполняемых ручной сваркой, значения Rwun следует принимать равными значениям временного сопротивления разрыву металла шва, указанным в ГОСТ 9467. 2 Для швов, выполняемых автоматической или полуавтоматической сваркой, значения Rwun следует принимать по СП 16.13330. 3 Значение коэффициента надежности по материалу шва  следует принимать равным 1,25. |
Расчетные сопротивления стыковых сварных соединений элементов из сталей с разными расчетными сопротивлениями следует принимать как для стыковых соединений из стали с меньшим значением расчетного сопротивления.
Расчетные сопротивления металла швов сварных соединений с угловыми швами следует принимать по
СП 16.13330.
7.3 Расчетные сопротивления одноболтовых соединений следует определять по формулам, приведенным в таблице 7.
Таблица 7
Напряженное состояние | Расчетные сопротивления одноболтовых соединений, МПа |
срезу и растяжению болтов классов прочности | смятию соединяемых элементов из стали с классом прочности до 440 МПа |
8.8; 10.9 |
Срез | Rbs = 0,4·Rbun | - |
Растяжение | Rbt = 0,5·Rbun | - |
Смятие: | | |
а) болты класса точности A | - | |
б) болты классов точности B и C | - | |
Расчетные сопротивления срезу и растяжению болтов следует принимать по таблице 8.
Таблица 8
Напряженное состояние | Расчетное сопротивление болтов, МПа, при классе прочности или марке стали |
обозначение | 325-09Г2С-4; 325-09Г2С-6 | 40Х |
Срез | Rbs | 175 | 395 |
Растяжение | Rbt | 195 | 495 |
Расчетные сопротивления смятию элементов, соединяемых болтами, следует определять по
СП 16.13330.
7.4 Расчетное сопротивление высокопрочных болтов по
ГОСТ Р 53664 растяжению
Rbh следует определять по формуле
где Rbun - наименьшее временное сопротивление высокопрочных болтов разрыву.
7.5 Значения коэффициента трения

по контактным поверхностям элементов во фрикционных соединениях и соответствующих коэффициентов надежности

следует принимать по таблице 9. Способ обработки контактных поверхностей должен быть указан в чертежах КМ.
Способ подготовки контактных поверхностей во фрикционных соединениях | Коэффициент трения  | Коэффициент надежности  и числе болтов в полустыке |
2 - 4 | 5 - 19 | 20 и более |
1 Дробеструйный или пескоструйный двух поверхностей с шероховатостью Rz = 50 - 80 мкм без нанесения фрикционной грунтовки или с последующим нанесением цинконаполненной грунтовки на этилсиликатной основе на обе поверхности толщиной по 60 - 80 мкм | 0,58 | 1,40 | 1,30 | 1,20 |
2 Дробеструйный или дробеметный двух поверхностей без нанесения фрикционной грунтовки или с последующим нанесением грунтовки на этилсиликатной основе на обе поверхности толщиной по 60 - 80 мкм с последующим их газопламенным нагревом (до температуры 250 °C - 300 °C) на кольцевых зонах вблизи отверстий площадью не менее площади шайбы (диаметр 60 мм) | 0,60 | 1,40 | 1,30 | 1,20 |
3 Очистка стальными механизированными щетками двух поверхностей (без эффекта шлифовки) | 0,35 | 2,50 | 1,80 | 1,40 |
7.6 Модуль упругости, модуль сдвига или коэффициент поперечной деформации (Пуассона) прокатной стали следует принимать по таблице 10.
Таблица 10
Полуфабрикаты | Модуль упругости первого рода E (Юнга), или модуль упругости второго рода G (сдвига), ГПа |
1 Прокатная сталь | E = 206 |
G = 78 |
Примечание - Модуль Юнга связан с модулем сдвига G соотношением  , где  - коэффициент поперечной деформации (Пуассона), равный 0,32. |
8 Учет условий работы и назначения конструкций
При расчете стальных конструкций и соединений мостов надлежит учитывать:
- коэффициент надежности

для элементов конструкций, рассчитываемых по прочности с использованием расчетных сопротивлений
Ru;
- коэффициент условий работы
m, принимаемый по
таблице 11 и подразделам настоящего стандарта;
Область применения | Коэффициент условий работы m |
1 Металлические элементы и их соединения в пролетных строениях пешеходных мостов при расчете на стадии эксплуатации | 0,9 |
2 Металлические элементы и их соединения в пролетных строениях пешеходных мостов при расчете на нагрузки, возникающие при изготовлении, транспортировании и монтаже | 1,0 |
3 Металлические элементы и их соединения в пролетных строениях автодорожных мостов при расчете на эксплуатационные нагрузки, а также на нагрузки, возникающие при изготовлении, транспортировании и монтаже | 1,0 |
4 Растянутые и сжатые элементы из одиночных профилей, прикрепленных одной полкой (или стенкой): | |
неравнополочный уголок, прикрепленный меньшей полкой | 0,7 |
неравнополочный уголок, прикрепленный большей полкой | 0,8 |
равнополочный уголок | 0,75 |
прокатный или составной швеллер, прикрепленный стенкой, или тавр, прикрепленный полкой | 0,9 |
5 Металлические элементы и их сварные соединения в пролетных строениях исполнения северное Б | 0,85 |
| 1,0 |
Примечания 1 В случае использования в расчетах коэффициента надежности по ответственности (в соответствии с 5.5) не менее 1,1 коэффициент условий работы в пункте 1 следует принимать равным 1,0. 2 Значение коэффициента условий работы в пунктах 1 - 3 в соответствующих случаях применяют совместно с коэффициентами, приведенными в пунктах 4, 5. |
9 Проектирование стальных элементов
9.1.1 Расчетную схему конструкции следует принимать в соответствии с ее проектной геометрической схемой, при этом строительный подъем и деформации под нагрузкой допускается не учитывать.
Усилия в элементах и перемещения стальных элементов мостовых конструкций определяются из условия их работы с сечениями брутто.
Геометрическую нелинейность, вызванную перемещением элементов конструкций, следует учитывать при расчете систем, в которых ее учет вызывает изменение усилий и перемещений более чем на 5%. При выполнении расчетов с учетом геометрической нелинейности следует определять изменения в направлении действия сил, связанные с общими деформациями системы (следящий эффект).
При определении усилий в элементах конструкций соединения сварные и фрикционные на высокопрочных болтах допускается рассматривать как неподатливые.
9.1.2 Жесткие соединения элементов в узлах решетчатых ферм допускается принимать при расчете шарнирными, если при таком допущении конструкция сохраняет свою неизменяемость, при этом для главных ферм отношение высоты сечения к длине элементов не должно, как правило, превышать 1:15.
Дополнительные напряжения в поясах ферм от деформации подвесок следует учитывать независимо от отношения высоты сечения к длине элемента пояса.
Учет жесткости узлов в решетчатых фермах допускается осуществлять приближенными методами, при этом допускается определение осевых усилий выполнять по шарнирной расчетной схеме.
9.1.3 За ось элемента пролетных строений принимается линия, соединяющая центры тяжести его сечений. При определении положения центра тяжести сечения его ослабление отверстиями болтовых соединений не учитывается, а ослабление перфораций учитывается и принимается постоянным по всей длине элемента. При смещении оси элемента сквозных ферм относительно линии, соединяющей центры узлов, эксцентриситет следует учитывать в расчете, если он превосходит:
- для П-образных, коробчатых, двухшвеллерных и двутавровых элементов - 1,5% высоты сечения;
- для тавровых и Н-образных элементов - 0,7% высоты сечения.
Изгибающие моменты от смещения осей элементов распределяются между всеми сходящимися в узле элементами пропорционально их жесткости и обратно пропорционально длине. При этом каждый изгибающий момент следует принимать равным произведению эксцентриситета на максимальное значение усилия в данном элементе в основной расчетной схеме. В элементах связей из уголков с болтовыми соединениями, центрированных по рискам, ближайшим к обушку, допускается возникающий при этом эксцентриситет не учитывать.
9.1.4 Распределение временной нагрузки в элементах многобалочных пролетных строений со сплошными главными балками, объединенными жесткими поперечными связями, при отношении длины пролета к ширине свыше 4 допускается определять по теории тонкостенных стержней, принимая при этом гипотезу о недеформируемости контура поперечного сечения балки. В остальных случаях следует учитывать деформации контура поперечного сечения.
9.1.5 При проектировании необходимо обеспечивать пространственную неизменяемость, прочность, общую и местную устойчивость пролетных строений в целом, блоков, отдельных элементов, их частей, деталей и соединений под воздействием нагрузок, возникающих при изготовлении, транспортировании и монтаже, под воздействием эксплуатационных нагрузок, и выносливость.
Для элементов, ослабленных отверстиями под обычные болты, при расчетах на прочность и выносливость следует принимать сечения нетто, на устойчивость и жесткость - сечения брутто.
При расчетах элементов с фрикционными соединениями на высокопрочных болтах на выносливость, устойчивость и жесткость следует принимать сечения брутто, при расчетах по прочности - сечения нетто с учетом того, что половина усилия, приходящегося на данный болт, в рассматриваемом сечении уже передана силами трения.
Геометрические характеристики сечения нетто элементов конструкций следует находить, определяя наиболее невыгодное ослабление.
9.1.6 Основные конструктивные требования к мостовым сооружениям приведены в ГОСТ 33384-2015
(раздел 8).
9.2.1 Центрально-растянутые и центрально-сжатые элементы
9.2.1.1 Расчет по прочности элементов, подверженных центральному растяжению или сжатию силой N, следует выполнять по формуле

, (9.1)
где
m - коэффициент условий работы, принимаемый по
таблице 11.
9.2.2 Изгибаемые элементы
9.2.2.1 Расчет по прочности элементов, изгибаемых в одной из главных плоскостей, следует выполнять по формуле

, (9.2)
где

- коэффициент, учитывающий ограниченное развитие пластических деформаций в сечении и определяемый по
формулам (9.4) и
(9.5) при условии выполнения требований
9.2.3.5;
Wn - в расчетах по прочности минимальный момент сопротивления сечения нетто, определяемый с учетом эффективной ширины пояса bef.
При одновременном действии в сечении момента
M и поперечной силы
Q коэффициент

вычисляют по формулам:

, (9.3)

, (9.4)
где

- коэффициент, принимаемый у двутавровых, коробчатых и тавровых сечений - по
таблице 12, для кольцевых сечений - 1,15, для прямоугольных сплошных и Н-образных - 1,25;

- среднее касательное напряжение в стенке балки;

;

;

- для коробчатых сечений;

- для двутавровых сечений,
здесь Qu - предельная поперечная сила, вычисляемая по формуле

, (9.5)
где t2 - толщина стенки, рассчитываемого элемента в рассматриваемом сечении;
Iбр - момент инерции сечения брутто;
Sбр - статический момент части сечения брутто относительно центральной нейтральной оси;
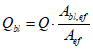
Эффективную ширину пояса bef при вычислении Wn вычисляют по формуле

, (9.6)
где
vp - коэффициент приведения неравномерно распределенных напряжений на ширине участков пояса
bt к условным равномерно распределенным напряжениям по всей эффективной ширине пояса
bef, принимаемый по
таблице 13;
bi - ширина участка пояса, заключенная в рассматриваемом сечении между двумя точками с максимальными напряжениями bmax (тогда bi = b) или между такой точкой и краем пояса bi = bk, при этом должны выполняться условия b >= 0,04·l и bk >= 0,02·l (в противном случае vp = 1);
l - длина пролета разрезной балки или расстояние между точками нулевых моментов в неразрезной балке.
| Значения коэффициента  при отношении площадей ( Afmin + Aw)/ A, равном |
0,01 | 0,1 | 0,2 | 0,3 | 0,4 | 0,5 | 0,6 | 0,7 | 0,8 | 0,9 | 1,0 |
0 | 1,243 | 1,248 | 1,253 | 1,258 | 1,264 | 1,269 | 1,274 | 1,279 | 1,283 | 1,267 | 1,243 |
0,1 | 1,187 | 1,191 | 1,195 | 1,199 | 1,202 | 1,206 | 1,209 | 1,212 | 1,214 | 1,160 | - |
0,2 | 1,152 | 1,155 | 1,158 | 1,162 | 1,165 | 1,168 | 1,170 | 1,172 | 1,150 | - | - |
0,3 | 1,128 | 1,131 | 1,133 | 1,136 | 1,139 | 1,142 | 1,144 | 1,145 | 1,097 | - | - |
0,4 | 1,110 | 1,113 | 1,115 | 1,118 | 1,120 | 1,123 | 1,125 | 1,126 | 1,069 | - | - |
0,5 | 1,097 | 1,099 | 1,102 | 1,104 | 1,106 | 1,109 | 1,110 | 1,106 | 1,061 | - | - |
0,6 | 1,087 | 1,089 | 1,091 | 1,093 | 1,095 | 1,097 | 1,099 | 1,079 | - | - | - |
0,7 | 1,078 | 1,080 | 1,082 | 1,084 | 1,086 | 1,088 | 1,090 | 1,055 | - | - | - |
0,8 | 1,071 | 1,073 | 1,075 | 1,077 | 1,079 | 1,081 | 1,082 | 1,044 | - | - | - |
0,9 | 1,065 | 1,067 | 1,069 | 1,071 | 1,073 | 1,074 | 1,076 | 1,036 | - | - | - |
1,0 | 1,060 | 1,062 | 1,064 | 1,066 | 1,067 | 1,069 | 1,071 | 1,031 | - | - | - |
2,0 | 1,035 | 1,036 | 1,037 | 1,038 | 1,039 | 1,040 | 1,019 | - | - | - | - |
3,0 | 1,024 | 1,025 | 1,026 | 1,027 | 1,028 | 1,029 | 1,017 | - | - | - | - |
4,0 | 1,019 | 1,019 | 1,020 | 1,021 | 1,021 | 1,022 | 1,015 | - | - | - | - |
5,0 | 1,015 | 1,015 | 1,016 | 1,017 | 1,018 | 1,018 | - | - | - | - | - |
Примечания 1 Для коробчатых сечений площадь Aw следует принимать равной сумме площадей стенок. 2 Для таврового сечения площадь Afmin = 0. 3 При указанных соотношениях площадей в местах обведенных утолщенной линией расчет следует выполнять в предположении упругой работы без учета развития ограниченных пластических деформаций. |
| Коэффициент vp | | Коэффициент vp |
1,0 | 1 | 0,25 | 0,65 |
0,7 | 1 | 0,20 | 0,60 |
0,5 | 0,85 | 0,10 | 0,52 |
0,33 | 0,72 | 0 | 0,43 |
Примечания 1 При наличии вырезов в ортотропных плитах, обрывов плиты в отсеках многосекционного коробчатого сечения, при других нарушениях регулярности конструкции, а также в сечениях, где приложены сосредоточенные силы, значения коэффициента vp следует определять по расчету. 2  ,  - максимальное и минимальное напряжения на данном участке пояса шириной bi, определяемые расчетом пространственной конструкции в упругой стадии. |
9.2.2.2 Расчет по прочности элементов, изгибаемых в двух главных плоскостях, следует выполнять:
- с двутавровыми и коробчатыми сечениями с двумя осями симметрии - по формуле

, (9.7)
- с сечениями других типов - по формуле

, (9.8)
где

,

- коэффициенты, определяемые по
формулам (9.3) и
(9.4) как независимые величины для случаев изгиба относительно осей
x и
y;

,

- коэффициенты, определяемые:
- для двутавровых сечений с двумя осями симметрии - по формулам:

, (9.9)

, (9.10)
- для коробчатых сечений с двумя осями симметрии - по формулам:

, (9.11)

, (9.12)
где

, (9.13)

. (9.14)
9.2.3 Элементы, подверженные действию осевой силы с изгибом
9.2.3.1 Расчет по прочности внецентренно сжатых, сжато-изгибаемых, внецентренно растянутых и растянуто-изгибаемых элементов при изгибе в одной из главных плоскостей следует выполнять по формуле

, (9.15)
где M - приведенный изгибающий момент;
Приведенный изгибающий момент
M при гибкости элементов

для сечений, находящихся в пределах двух средних четвертей длины шарнирно-опертого стержня и всей длины стержня, защемленного по концам, вычисляют по формуле

(9.16)
где M1 - момент, действующий в проверяемом сечении;
N - продольная сила, действующая в проверяемом сечении со своим знаком ("плюс" - растяжение);
Ne - критическая сила определяемая по формуле Эйлера в плоскости действия момента, вычисленная для соответствующих закреплений стержня;
при

- допускается принимать
M =
M1.
Коэффициент

следует определять:
- для элементов двутаврового, коробчатого и таврового сечений с одной осью симметрии по
таблице 14 - в случае если напряжения в меньшем поясе (с площадью
Afmin) от момента и продольной силы одинаковых знаков, и по
таблице 15 - в случае если напряжения в меньшем поясе от момента и продольной силы разных знаков;
- для элементов сплошного прямоугольного и Н-образного сечений - по формуле

, (9.17)
- для элементов кольцевого сечения - по формуле

, (9.18)
где

.
| Значения коэффициента  при  |
0,05 | 0,2 | 0,4 | 0,6 | 0,8 | 0,95 |
Afmax/Aw |
0,5 | 1 | 2 | 0,5 | 1 | 2 | 0,5 | 1 | 2 | 0,5 | 1 | 2 | 0,5 | 1 | 2 | 0,5 | 1 | 2 |
0 | 1 | 1 | 1 | 1 | 1 | 1 | 1 | 1 | 1 | 1 | 1 | 1 | 1 | 1 | 1 | 1 | 1 | 1 |
0,5 | 0,53 | 0,55 | 0,57 | 0,63 | 0,68 | 0,78 | 0,77 | 0,85 | 0,92 | 0,89 | 0,93 | 0,96 | 0,96 | 0,98 | 0,99 | 0,99 | 0,99 | 0,997 |
1 | 0,067 | 0,09 | 0,14 | 0,26 | 0,36 | 0,56 | 0,53 | 0,70 | 0,83 | 0,78 | 0,87 | 0,93 | 0,92 | 0,95 | 0,97 | 0,98 | 0,99 | 0,994 |
Примечания 1  . 2 Силу N следует принимать со знаком "плюс". 3 Промежуточные значения коэффициента  определяют линейной интерполяцией. |
| Значения коэффициента  при  |
-0,05 | -0,2 | -0,4 | -0,6 | -0,8 | -0,95 |
Afmax/Aw |
0,5 | 1 | 2 | 0,5 | 1 | 2 | 0,5 | 1 | 2 | 0,5 | 1 | 2 | 0,5 | 1 | 2 | 0,5 | 1 | 2 |
0 | 0,9 | 0,9 | 0,9 | 0,6 | 0,6 | 0,6 | 0,2 | 0,2 | 0,2 | -0,2 | -0,2 | -0,2 | -0,6 | -0,6 | -0,6 | -0,9 | -0,9 | -0,9 |
0,5 | 0,42 | 0,4 | 0,38 | 0,17 | 0,12 | 0,02 | -0,17 | -0,25 | -0,32 | -0,49 | -0,53 | -0,56 | -0,76 | -0,78 | -0,79 | -0,94 | -0,94 | -0,95 |
1 | -0,07 | -0,09 | -0,14 | -0,27 | -0,36 | -0,56 | -0,53 | -0,7 | -0,83 | -0,78 | -0,87 | -0,93 | -0,92 | -0,95 | -0,97 | -0,98 | -0,99 | -0,99 |
Примечания 1  . 2 Силу N следует принимать со знаком "минус". 3 Промежуточные значения коэффициента  определяют линейной интерполяцией. |
Для других сечений, а также при других закреплениях концов элементов расчет по прочности следует проводить по формуле

. (9.19)
9.2.3.2 Расчет по прочности внецентренно сжатых, сжато-изгибаемых, внецентренно растянутых и растянуто-изгибаемых элементов при изгибе в двух главных плоскостях следует выполнять:
- для элементов двутаврового, коробчатого и таврового сечений с одной осью симметрии, а также для элементов сплошного прямоугольного и кольцевого сечений - по формуле

, (9.20)
где

, (9.21)
Mx,
My - приведенные изгибающие моменты по
9.2.3.1;

;
- для других сечений, а также при других закреплениях концов элементов расчет по прочности следует проводить по формуле

. (9.22)
В основных случаях, когда приведенных данных для определения

и

недостаточно, расчет на прочность проводят по
формуле (9.22), принимая

.
9.2.3.3 Значения касательных напряжений

в сечениях стенки изгибаемых элементов при
M =
Mx =
My = 0 должны удовлетворять условию

, (9.23)
где

; (9.24)

,

- значения минимального и максимального касательных напряжений в сечении стенки, вычисленные в предположении упругой работы;
t2 - толщина сечения в проверяемой точке;
Iбр - момент инерции сечения брутто;
Sбр - статический момент части сечения брутто относительно центральной нейтральной оси.
При наличии ослабления стенки отверстиями болтовых соединений вместо
t2 в
формулу (9.23) следует подставлять значение

, (9.25)
где

- шаг болтов;
d - диаметр отверстий.
9.2.3.4 Для стенок балок, рассчитываемых в
9.2.2.1 -
9.2.3.2, должно выполняться условие

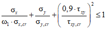
, (9.26)
где

- нормальные (положительные при сжатии) напряжения в проверяемой точке (
x,
y) срединной плоскости стенки, параллельные оси балки;

- такие же напряжения, перпендикулярные к оси балки, определяемые в соответствии с
приложением А;

- коэффициент, равный 1,15 при

и 1,10 при

;

- касательное напряжение в проверяемой точке стенки балки.
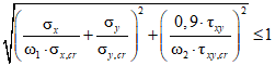
9.2.3.5 Элементы, воспринимающие усилия разных знаков, после проверки прочности с учетом допущения развития ограниченных пластических деформаций

должны быть проверены также по формуле

, (9.27)
где

,

- соответственно расчетные максимальные и минимальные (со своими знаками) нормальные напряжения в проверяемой точке, вычисленные в предположении упругой работы материала;

,

- касательные напряжения в проверяемой точке (с учетом их знаков), вычисленные соответственно от тех же нагрузок, что

и

При невыполнении указанного условия расчет по прочности следует выполнять на наибольшие усилия для упругой стадии работы.
9.3 Расчеты по устойчивости
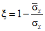
9.3.1 Плоская форма потери устойчивости
9.3.1.1 Расчет при плоской форме потери устойчивости сплошностенчатых элементов замкнутого и открытого сечений, подверженных центральному сжатию, сжатию с изгибом и внецентренному сжатию при изгибе в плоскости наибольшей гибкости, следует выполнять по формуле

, (9.28)
где

- коэффициент продольного изгиба, определяемый по
таблицам Б.1,
Б.2 приложения Б в зависимости от гибкости элемента

и приведенного относительного эксцентриситета
eef;
m - коэффициент условий работы, принимаемый по
таблице 11.
Гибкость элемента

вычисляют по формуле

, (9.29)
где lef - расчетная длина;
i - радиус инерции сечения относительно оси, перпендикулярной к плоскости наибольшей гибкости (плоскости изгиба).
Приведенный относительный эксцентриситет lef вычисляют по формуле

, (9.30)
где

- коэффициент влияния формы сечения, определяемый в соответствии с
приложением Б;

- относительный эксцентриситет плоскости изгиба, принимаемый при центральном сжатии равным нулю (
e - действительный эксцентриситет силы
N при внецентренном сжатии и расчетный эксцентриситет при сжатии с изгибом;

- ядровое расстояние).
Расчетный эксцентриситет e в плоскости изгиба при сжатии с изгибом вычисляют по формуле

, (9.31)
где N, M - расчетные значения продольной силы и изгибающего момента.
Ядровое расстояние

по направлению эксцентриситета вычисляют по формуле

, (9.32)
где Wc - момент сопротивления сечения брутто, вычисляемый для наиболее сжатого волокна.
Расчетные значения продольной силы N и изгибающего момента M в элементе следует принимать для одного и того же сочетания нагрузок из расчета системы по недеформированной схеме в предположении упругих деформаций стали.
При этом значения M следует принимать равными:
- для элементов постоянного сечения рамных систем - наибольшему моменту в пределах длины элемента;
- для элементов с одним защемленным, а другим свободным концом - моменту в заделке, но не менее момента в сечении, отстоящем на треть длины элемента от заделки;
- для сжатых поясов ферм, воспринимающих внеузловую нагрузку, - наибольшему моменту в пределах средней трети длины панели пояса, определяемому из расчета пояса как упругой неразрезной балки;
- для сжатых стержней с шарнирно опертыми концами и сечениями, имеющими одну ось симметрии, совпадающую с плоскостью изгиба, - моменту, определяемому по формулам
таблицы 16;
- для сжатых стержней с шарнирно-опертыми концами и сечениями, имеющими две оси симметрии, расчетные значения приведенных относительных эксцентриситетов
eef следует определять по
СП 16.13330, принимая при этом
mef, равным
eef и
mef1, равным
eef1 и определяемым по формуле

, (9.33)
где M1 - больший из изгибающих моментов, приложенных на шарнирно опертых концах сжатого стержня указанного типа.
Относительный эксцентриситет, соответствующий Mmax | Расчетные значения M при условной гибкости стержня |
| |
erel <= 3 | | M = M1 |
3 < erel <= 20 | | |
Примечания 1 Во всех случаях следует принимать M >= 0,5·Mmax. 2 Mmax - наибольший изгибающий момент в пределах длины стержня. 3 M1 - наибольший изгибающий момент в пределах средней трети длины стержня, но не менее 0,5Mmax. 4 erel - относительный эксцентриситет, определяемый по формуле  . 5  - условная гибкость, определяемая по формуле  , где  - коэффициент, принимаемый по таблице Б.3 приложения Б. |
9.3.1.2 Расчет при плоской форме потери устойчивости сквозных элементов замкнутого сечения, ветви которых соединены планками или перфорированными листами, при центральном сжатии, сжатии с изгибом и внецентренном сжатии следует выполнять:
- элемента в целом в плоскости действия изгибающего момента или предполагаемого (при центральном сжатии) изгиба, перпендикулярной плоскости планок или перфорированных листов, - по
формуле (9.28);
- элемента в целом в плоскости действия изгибающего момента или предполагаемого (при центральном сжатии) изгиба, параллельной плоскости планок или перфорированных листов, - по
формуле (9.28) с определением коэффициента продольного изгиба

по
таблицам Б.1 -
Б.2 приложения Б в зависимости от приведенной гибкости

;
- отдельных ветвей - по
формуле (9.28) в зависимости от гибкости ветви

.
Гибкость ветви

следует определять по
формуле (9.29), принимая за расчетную длину
lef расстояние между приваренными планками (в свету) или расстояние между центрами крайних болтов соседних планок, или равное 0,8 длины отверстия в перфорированном листе и за
i - радиус инерции сечения ветви относительно собственной оси, перпендикулярной плоскости планок или перфорированных листов.
Приведенную гибкость сквозного элемента

плоскости соединительных планок и перфорированных листов вычисляют по формуле

, (9.34)
где

- гибкость элемента в плоскости соединительных планок или перфорированных листов, определяемая по
формуле (9.29);

- гибкость ветви.
При подсчете площади сечения, момента инерции и радиуса инерции элемента следует принимать эквивалентную толщину tef, определяя ее:
- для перфорированных листов шириной b, длиной l и толщиной t - по формуле

, (9.35)
где A = b·l - площадь листа до образования перфораций;

- суммарная площадь всех перфораций на поверхности листа;
- для соединительных планок толщиной t - по формуле

, (9.36)
где

- сумма длины всех планок элемента (вдоль элемента);
l - длина элемента.
Сквозные элементы из деталей, соединенных вплотную или через прокладки, следует рассчитывать как сплошные, если наибольшие расстояния между болтами, приваренными планками (в свету) или между центрами крайних болтов соседних планок не превышают:
- для сжатых элементов - 40i;
- для растянутых элементов - 80i.
Здесь радиус инерции i уголка или швеллера следует принимать для составных тавровых или двутавровых сечений относительно оси, параллельной плоскости расположения прокладок, для крестовых сечений - минимальный. При этом в пределах длины сжатого элемента должно быть не менее двух прокладок.
9.3.2 Изгибно-крутильная форма потери устойчивости
9.3.2.1 Расчет при изгибно-крутильной форме потери устойчивости сплошностенчатых элементов открытого сечения с моментами инерции Ix > Iy, подверженных центральному сжатию силой N, следует выполнять по формуле

, (9.37)
где

- коэффициент продольного изгиба, определяемый по
таблицам Б.1,
Б.2 приложения Б при
eef = 0 и

. (9.38)
9.3.2.2 Расчет на изгибно-крутильную устойчивость сплошностенчатых элементов замкнутого и открытого сечений с моментами инерции Ix > Iy, подверженных сжатию с изгибом и внецентренному сжатию в плоскости наименьшей гибкости, совпадающей с плоскостью симметрии и осью y, следует выполнять по формуле

, (9.39)
где e - действительный эксцентриситет силы N при внецентренном сжатии и расчетный эксцентриситет e = M/N при сжатии с изгибом;
Wc - момент сопротивления сечения брутто, вычисляемый для наиболее сжатого волокна;

- коэффициент продольного изгиба, определяемый по
таблицам Б.1,
Б.2 приложения Б при
eef = 0 и

(9.40)
9.3.2.3 Расчет при изгибно-крутильной форме потери устойчивости сплошностенчатых элементов замкнутого и открытого сечений, подверженных сжатию с изгибом и внецентренному сжатию в двух плоскостях, следует выполнять по формуле

, (9.41)
где ey, ex - действительные эксцентриситеты по направлению осей y и x при внецентренном сжатии и расчетные эксцентриситеты при сжатии с изгибом;
yc, xc - координаты наиболее сжатой точки сечения от совместного действия Mx, My и N;

- коэффициент продольного изгиба, определяемый по
таблицам Б.1,
Б.2 приложения Б при
eef = 0 и

(9.42)
Кроме того, должен быть выполнен расчет по
формуле (9.28) в предположении плоской формы потери устойчивости в плоскости оси
y с эксцентриситетом
ey (при
ex = 0) и в плоскости оси
x с эксцентриситетом
ex (при
ey = 0).
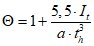
9.3.2.4 Расчет при изгибно-крутильной форме потери устойчивости сплошностенчатых балок, изгибаемых в одной плоскости, следует выполнять по формуле

, (9.43)
где M - наибольший расчетный изгибающий момент в пределах расчетной длины lef сжатого пояса балки;
Wc - момент сопротивления сечения балки для крайнего волокна сжатого пояса;

- коэффициент, вычисляемый по формулам:

; (9.44)

; (9.45)

- коэффициент продольного изгиба, определяемый по
таблицам Б.1,
Б.2 приложения Б при
eef = 0 и гибкости из плоскости стенки

. (9.46)
9.3.2.5 Расчет при изгибно-крутильной форме потери устойчивости сплошностенчатых балок, изгибаемых в двух плоскостях, следует выполнять по
формуле (9.43), при этом коэффициент

следует принимать по
таблицам Б.1,
Б.2 приложения Б при

.
erel - относительный эксцентриситет, вычисляемый по формуле

, (9.47)
где

- наибольшее напряжение в точке на боковой кромке сжатого пояса от изгибающего момента в горизонтальной плоскости в сечении, находящемся в пределах средней трети незакрепленной длины сжатого пояса балки;

- напряжение в сжатом поясе балки от вертикальной нагрузки в том же сечении.
9.3.2.6 Проверка общей устойчивости разрезной балки и сжатой зоны пояса неразрезной балки не выполняется в случае, если сжатый пояс объединен с железобетонной или стальной плитой.
9.3.3 Расчет по устойчивости полок и стенок элементов, не подкрепленных ребрами жесткости
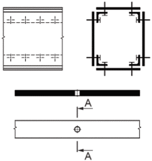
9.3.3.1 Расчет по устойчивости полок и стенок прокатных и составных сварных центрально- и внецентренно сжатых, а также сжато-изгибаемых и изгибаемых элементов постоянного поперечного сечения, не подкрепленных ребрами жесткости (рисунок 9.1), следует выполнять по теории призматических складчатых оболочек.
Рисунок 9.1 - Схемы расчетных сечений элементов,
не подкрепленных ребрами жесткости
9.3.3.2 Устойчивость полок и стенок элементов, не подкрепленных ребрами жесткости, при среднем касательном напряжении, не превышающем

, допускается обеспечивать назначением отношения высоты стенки (
h,
hw) или ширины полки (
bf,
bh) к толщине (
t,
tw,
tf,
th) не более

(здесь

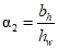
- коэффициент,

- приведенное критическое напряжение).
Коэффициент

следует определять:
для пластинок шириной (
bh,
h), опертых по одной стороне [
рисунок 9.1 б) - е)], - по формуле

, (9.48)
для пластинок шириной (
hw,
bf), опертых по двум сторонам [
рисунок 9.1 а), б), г)], - по формуле

, (9.49)
где

- коэффициент защемления пластинки, определяемый по формулам
таблицы 17;

- коэффициент, определяемый (для сечений брутто) по формуле

, (9.50)
где

,

- максимальное и минимальное продольные нормальные напряжения по продольным границам пластинки, положительные при сжатии, определяемые по
формулам (9.1) -
(9.20) при невыгодном для устойчивости пластинки загружении, при этом коэффициенты

,

,

,

,

,

следует принимать равными 1,0.
Приведенное критическое напряжение

для пластинки следует определять по формулам
таблицы 18 в зависимости от критических напряжений

,

, за которые следует принимать действующие напряжения

(
m - коэффициент условий работы, принимаемый по
таблице 11).
Тип сечения элемента | Коэффициент защемления пластинки |
стенка | Полка - для углового сечения при bh/h |
1 | 0,667 | 0,5 |
| | |
| | |
| | |
| | |
| - | | | |
| | |
Примечания 1 При отрицательном значении знаменателя в формулах таблицы 17, а также при равенстве его нулю следует принимать  . 2 Для углового сечения с отношением bh/h, не указанным в таблице 17, значение  следует определять по интерполяции, при этом для bh/h = 1 значение  следует принимать равным 100. 3 В таблице приняты следующие обозначения: |
Класс прочности стали | Значения  , МПа | Формулы для определения  или его значения, МПа |
С325 - С345 | До 186 | |
Св. 186 до 284 | |
Св. 284 | 524 |
С390 | До 206 | |
Св. 206 до 343 | |
Св. 343 | 591 |
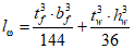
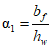
9.3.4 Расчет по устойчивости полок и стенок элементов, подкрепленных ребрами жесткости
9.3.4.1 Расчет по устойчивости полок и стенок элементов, подкрепленных ребрами жесткости, следует выполнять по теории призматических складчатых оболочек, укрепленных поперечными диафрагмами.
Допускается выполнять расчет по устойчивости пластинок, полок и стенок указанных элементов в соответствии с
приложением А.
9.3.4.2 Устойчивость пластинок ортотропных плит допускается обеспечивать назначением отношения их толщины к ширине в соответствии с
9.3.3.2, при этом

.
Для полосовых продольных ребер коэффициент следует определять по
формуле (9.48) при коэффициенте защемления

и свесе полки тавра
bh [(рисунок 9.2а)], равном 0,
5hw при

или

при

.
Для участка листа ортотропной плиты между соседними продольными полосовыми ребрами коэффициент

следует определять по
формуле (9.49) при коэффициенте защемления

, высоте стенки
hw, равной расстоянию между продольными ребрами, и свесе полки
bh, равном высоте продольного ребра [рисунок 9.2б)], но не более

(

и

- коэффициенты, определяемые по
9.3.4.10).
Рисунок 9.2 - Схемы расчетных сечений пластинок
ортотропных плит. Расчетные длины
9.3.4.3 Расчетные длины lef элементов главных ферм, за исключением элементов перекрестной решетки, следует принимать по таблице 19.
Направление продольного изгиба | Расчетная длина lef |
поясов | опорных раскосов и опорных стоек <1> | прочих элементов решетки |
1 В плоскости фермы | l | l | 0,8l |
2 В направлении, перпендикулярном плоскости фермы (из плоскости фермы) | l1 | l1 | l1 |
<1> Расчетную длину опорных раскосов и опорных стоек у промежуточных опор неразрезных пролетных строений принимают как для прочих элементов решетки. Примечание - В настоящей таблице применены следующие обозначения: l - геометрическая длина элемента (расстояние между центрами узлов) в плоскости фермы; l1 - расстояние между узлами, закрепленными от смещения из плоскости фермы. |
9.3.4.4 Расчетную длину lef элемента, по длине которого действуют разные сжимающие усилия N1 и N2 (причем N1 > N2), из плоскости фермы (с треугольной решеткой со шпренгелем или полураскосной и т.д.) вычисляют по формуле

, (9.51)
где l1 - расстояние между узлами, закрепленными от смещения из плоскости фермы.
Расчет по устойчивости в этом случае следует выполнять на усилие N1.
Применение
формулы (9.51) допускается при растягивающей силе
N2, в этом случае значение
N2 следует принимать со знаком "-", а
lef >= 0,5
l1.
9.3.4.5 Расчетные длины lef элементов перекрестной решетки главной фермы следует принимать:
а) в плоскости фермы - равными 0,5l, где l - расстояние от центра узла фермы до точки их пересечения;
б) из плоскости фермы:
2) для растянутых элементов - равными полной геометрической длине элемента (
lef =
l1, где
l1 - см.
таблицу 19).
Конструкция узла пересечения элементов решетки | Расчетная длина lef из плоскости фермы при поддерживающем элементе |
растянутом | неработающем | сжатом |
Оба элемента не прерываются | l | 0,7l1 | l1 |
Поддерживающий элемент прерывается и перекрывается фасонкой: | | | |
- рассматриваемый элемент не прерывается | 0,7l1 | l1 | 1,4l1 |
- рассматриваемый элемент прерывается и перекрывается фасонкой | 0,7l1 | - | - |
9.3.4.6 При проверке общей устойчивости балки расчетную длину сжатого пояса следует принимать равной:
- расстоянию между узлами фермы продольных связей - при наличии продольных связей в зоне верхних и нижних поясов и поперечных связей в опорных сечениях;
- расстоянию между фермами поперечных связей - при наличии продольных связей только в зоне растянутых поясов, при этом фермы поперечных связей должны быть центрированы с узлами продольных связей, а гибкость поясов указанных ферм не должна превышать 100;
- пролету балки - при отсутствии в пролете продольных и поперечных связей;
- расстоянию от конца консоли до ближайшей плоскости поперечных связей за опорным сечением консоли - при монтаже пролетного строения внавес или продольной надвижкой.
9.3.4.7 Расчетную длину lef сжатого пояса главной балки или фермы "открытого" пролетного строения, не имеющего продольных связей по этому поясу, следует определять, как правило, из расчета по устойчивости стержня на упругих опорах, сжатого переменной по длине продольной силой.
Допускается вычислять указанную расчетную длину по формуле

, (9.52)
где l - длина пояса, равная расчетному пролету для балок и ферм с параллельными поясами, полной длине пояса для балок с криволинейным верхним поясом и ферм с полигональным верхним поясом;

- коэффициент расчетной длины.
Коэффициент расчетной длины

для поясов балок и ферм с параллельными поясами, а также для фермы с полигональным или балки с криволинейным верхним поясом следует определять по таблице 21, при этом наибольшее перемещение

следует принимать для рамы, расположенной посредине пролета.
Таблица 21
| Коэффициент  | | Коэффициент  |
0 | 0,696 | 150 | 0,268 |
5 | 0,524 | 200 | 0,246 |
10 | 0,443 | 300 | 0,225 |
15 | 0,396 | 500 | 0,204 |
30 | 0,353 | 1000 | 0,174 |
60 | 0,321 | Св. 1000 | |
100 | 0,290 | То же |
Примечания 1 Если полученная по данным таблицы 21 расчетная длина lef < 1,3d, то ее определяют из расчета по устойчивости стержня на упругих опорах. 2 Для промежуточных значений  коэффициент  определяют по линейной интерполяции. 3 В таблице приняты следующие обозначения: где d - расстояние между рамами, закрепляющими пояс от поперечных горизонтальных перемещений;  - наибольшее горизонтальное перемещение узла-рамы (исключая опорные рамы) от силы F = 1; Im - среднее (по длине пролета) значение момента инерции сжатого пояса балки (фермы) относительно вертикальной оси. |
9.3.4.8 Расчет арок по устойчивости выполняется с учетом совместной работы арок и элементов проезжей части и поддерживающих ее элементов.
При проверке общей устойчивости арки сплошного постоянного сечения допускается определять расчетную длину lef в ее плоскости по формуле

, (9.53)
где l - длина пролета арки;

- коэффициент (
f - стрела подъема арки);
Значение

для двухшарнирной арки переменного сечения при изменении ее момента инерции в пределах +/- 10% среднего его значения по длине пролета допускается определять по
пункту 4 таблицы 22, принимая при этом
Ibog в четверти пролета.
Тип арки | Коэффициент |
1 Двухшарнирная, с ездой понизу с гибкой затяжкой <1>, соединенной с аркой подвесками | |
2 Бесшарнирная | |
3 Трехшарнирная | Меньшее из  и  |
4 Двухшарнирная с неразрезной балкой жесткости, соединенной с аркой стойками | |
<1> При отношении жесткостей затяжки и арки, большем 0,8, расчетная длина арки определяется как для двухшарнирной арки с неразрезной балкой жесткости, соединенной с аркой стойками. Примечание - В настоящей таблице приняты следующие обозначения:  , здесь Ibal и Ibog - моменты инерции сечений соответственно балки жесткости и арки. |
Во всех случаях расчетная длина lef арки в ее плоскости должна быть не менее расстояния между узлами прикрепления стоек или подвесок.
| Коэффициент | | Коэффициент |
| | | |
0,1 | 28,5 | 22,5 | 0,5 | 36,8 | 44,0 |
0,2 | 45,4 | 39,6 | 0,6 | 30,5 | - |
0,3 | 46,5 | 47,3 | 0,8 | 20,0 | - |
0,4 | 43,9 | 49,2 | 1,0 | 14,1 | - |
Примечание - Для промежуточных значений  коэффициенты  и  определяют по линейной интерполяции. |
9.3.4.9 Расчетную длину lef элементов продольных и поперечных связей с любой решеткой, кроме крестовой, следует принимать равной:
- в плоскости связей - расстоянию l2 между центрами прикреплений элементов связей к главным фермам или балкам, а также балкам проезжей части;
- из плоскости связей - расстоянию l3 между точками пересечения оси элемента связей с осями крайних рядов болтов прикрепления фасонок связей к главным фермам или балкам, а также балкам проезжей части.
Расчетную длину lef перекрещивающихся элементов связей следует принимать:
- в плоскости связей - равной расстоянию от центра прикрепления элемента связей к главной ферме или балке, а также балке проезжей части - до точки пересечения осей связей;
- из плоскости связей: для растянутых элементов - равной
l3; для сжатых элементов - по
таблице 20, принимая при этом за
l расстояние от точки пересечения оси элемента связей с осью крайнего ряда болтов прикрепления фасонок связей до точки пересечения осей элементов связей, за
l1 - расстояние
l3.
Для элементов связей с любой решеткой, кроме крестовой, из одиночных уголков расчетную длину lef следует принимать равной расстоянию l между крайними болтами прикреплений их концов. При крестовой решетке связей lef = 0,6·l. Радиус инерции сечений следует принимать минимальным (i = imin).
9.3.4.10 В сплошностенчатых балках расчетную длину
lef опорных стоек, состоящих из одного или нескольких опорных ребер жесткости и примыкающих к ним участков стенки, следует определять по формуле

, (9.54)
где

- коэффициент расчетной длины;
lc - длина опорной стойки балки, равная расстоянию от верха домкратной балки до верхнего пояса или до ближайшего узла поперечных связей.
Коэффициент расчетной длины

опорной стойки вычисляют по формуле

, (9.55)
где

,
здесь Ic - момент инерции сечения опорной стойки относительно оси, совпадающей с плоскостью стенки;
Ic,
lr - соответственно момент инерции сечения и длина распорки поперечных связей; в открытых пролетных строениях в
формуле (9.55) следует принимать
n = 0.
При определении площади, момента инерции и радиуса инерции опорной стойки с одним ребром жесткости в состав ее сечения следует включать кроме опорного ребра жесткости примыкающие к нему участки стенки шириной

(
t - толщина сечения,

- коэффициент, принимаемый по таблице 24).
Класс прочности стали | Коэффициент  |
С325 - С345 | 12 |
С390 | 11,5 |
При определении площади, момента инерции и радиуса инерции опорной стойки с несколькими ребрами жесткости при расстояниях между ними

(

- коэффициент, принимаемый по таблице 25) в состав ее сечения следует включать все указанные ребра жесткости, участки стенки между ними, а также примыкающие с внешней стороны к крайним ребрам жесткости участки стенки шириной

, где

следует принимать по
таблице 24.
Таблица 25
Класс прочности стали | Коэффициент  |
С325 - С345 | 38 |
С390 | 36 |
9.3.5 Предельная гибкость стержневых стальных элементов
Гибкость стержневых элементов не должна превышать значений, приведенных в таблице 26.
Таблица 26
Элементы конструкций | Предельная гибкость стержневых элементов мостов |
пешеходных | автодорожных |
Сжатые и сжато-растянутые элементы главных ферм; растянутые элементы поясов главных ферм | 100 | 120 |
Растянутые элементы главных ферм, кроме поясов; элементы, служащие для уменьшения расчетной длины lef | 150 | 150 |
Сжатые элементы продольных связей главных ферм и продольных балок, а также тормозных связей | 130 | 150 |
То же, растянутые | 130 | 180 |
Элементы поперечных связей: | | |
на опоре | 130 | 150 |
в пролете | 150 | 150 |
Пояса ферм поперечных связей, в уровне которых отсутствуют продольные связи, или плита, объединенная с поясами главных балок для совместной работы | 100 | 100 |
Ветви составного сжатого или сжато-растянутого элемента | 40 | 40 |
То же, растянутого | 50 | 50 |
9.4 Расчет на выносливость стальных элементов и их соединений
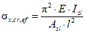
Расчет на выносливость элементов стальных конструкций и их соединений следует выполнять по формулам:

; (9.56)

, (9.57)
где

- абсолютное наибольшее нормальное напряжение (растягивающее - положительное);

- абсолютное наибольшее скалывающее напряжение при расчете угловых швов на срез (его направление принимается за положительное);

- коэффициент;
m - коэффициент условий работы, принимаемый по
таблице 11.
Коэффициент

вычисляют по формуле

, (9.58)
где

- коэффициент, равный 1,0 для пешеходных и 0,7 - для автодорожных мостов;

- коэффициент, зависящий от длины загружения

линии влияния при определении

;

,

- коэффициенты, учитывающие марку стали и нестационарность режима нагруженности;

- эффективный коэффициент концентрации напряжений, принимаемый по
таблице В.1 приложения В;

- коэффициент асимметрии цикла переменных напряжений.
Коэффициент

вычисляют по формулам:

; (9.59)

, (9.60)
где

- наименьшие и наибольшие по абсолютной величине значения нормальных и касательных напряжений со своими знаками, определяемые в том же сечении, по тем же формулам, что и

и

; при этом следует принимать

.
Напряженное состояние | Формулы для определения  |
Растяжение или сжатие | |
Изгиб в одной из главных плоскостей | |
Растяжение или сжатие с изгибом в одной из главных плоскостей | |
Изгиб в двух главных плоскостях | |
Растяжение или сжатие с изгибом в двух главных плоскостях | |
Примечания 1 При расчете элементов с фрикционными соединениями на высокопрочных болтах в формулы таблицы 27 подставляются характеристики сечения брутто. 2 M, Mx, My - приведенные изгибающие моменты в рассматриваемом сечении, определяемые согласно 9.2.3.1;  - коэффициент, принимаемый равным 1,05. |
Коэффициенты

и

следует принимать по таблице 28.
Таблица 28
Классы прочности стали | Коэффициент |
| |
С325 - С345 | 0,72 | 0,24 |
С390 | 0,81 | 0,20 |
При вычислении коэффициентов

для сварных швов принимаются те же значения коэффициентов

и

, что и для металла элемента.
Коэффициент

следует принимать равным:

, (9.61)
где значения

и

следует принимать по таблице 29.
Таблица 29
Эффективный коэффициент концентрации напряжений  | Коэффициенты  и  для классов прочности стали |
С325 - С390 |
| |
1,0 | 1,65 | 0,0295 |
1,1 | 1,69 | 0,0315 |
1,2 | 1,74 | 0,0335 |
1,3 | 1,79 | 0,0355 |
1,4 | 1,83 | 0,0375 |
1,5 | 1,87 | 0,0395 |
1,6 | 1,91 | 0,0415 |
17 | 1,96 | 0,0436 |
1,8 | 2,00 | 0,0455 |
1,9 | 2,04 | 0,0475 |
2,0 | 2,09 | 0,0495 |
2,2 | 2,18 | 0,0536 |
2,3 | 2,23 | 0,0556 |
2,4 | 2,27 | 0,0576 |
2,5 | 2,31 | 0,0596 |
2,6 | 2,36 | 0,0616 |
2,7 | 2,40 | 0,0636 |
3,1 | 2,57 | 0,0716 |
3,2 | 2,62 | 0,0737 |
3,4 | 2,71 | 0,0777 |
3,5 | 2,75 | 0,0797 |
3,7 | 2,84 | 0,0837 |
4,4 | 3,15 | 0,0977 |
10 Особенности расчета несущих стальных элементов и соединений
10.1 Элементы главных ферм
10.1.1 В расчетах элементов и соединений решетчатых главных ферм по прочности при отношении высоты сечения к длине элемента свыше 1:15 следует учитывать изгибающие моменты от жесткости узлов. Это требование относится и к расчетам на выносливость элементов решетчатых главных ферм с узловыми соединениями на высокопрочных болтах; при сварных узловых соединениях расчет на выносливость следует выполнять с учетом изгибающих моментов от жесткости узлов независимо от величины отношения высоты сечения к длине элементов.
Расчет по прочности решетчатых главных ферм, имеющих в уровне проезда пояс, работающий на совместное действие осевых усилий и изгиба от внеузлового приложения нагрузки, следует выполнять с учетом жесткости узлов указанного пояса независимо от отношения высоты сечения к длине панели. Учет жесткости остальных узлов следует выполнять, как указано выше.
Во всех указанных случаях в расчетах по прочности изгибающие моменты от жесткости узлов следует уменьшать на 20%.
Изгибающие моменты от примыкания связей или горизонтальных диафрагм с эксцентриситетом и от неполной (с учетом
9.1.3) центровки элементов ферм следует учитывать полностью. Это требование распространяется и на учет изгибающих моментов, возникающих в горизонтальных и наклонных элементах решетчатых главных ферм и связей от их собственного веса. При этом допускается принимать эти изгибающие моменты распределенными по параболе с ординатами посредине длины элемента и на концах его, равными 0,6 момента для свободно опертого элемента.
10.1.2 В расчетах по устойчивости элементов решетчатых главных ферм изгибающие моменты от жесткости узлов, воздействий связей и поперечных балок допускается не учитывать.
Элементы решетчатых ферм, имеющие замкнутое коробчатое сечение с отношением размеров сторон не более двух, допускается рассчитывать на устойчивость по плоским изгибным формам относительно горизонтальной и вертикальной осей сечения.
10.1.3 Стойки, распорки, стяжки, связи и другие элементы пролетного строения, используемые для уменьшения свободной длины сжатых элементов, следует рассчитывать на сжатие и растяжение силой, равной 3% продольного усилия в сжатом элементе.
10.1.4 В арочных мостах с передачей распора на опоры продольные связи между арками следует рассчитывать как элементы балочной фермы, защемленной по концам.
В разрезных балочных пролетных строениях ветровая ферма, образованная поясами главных ферм и продольными связями, принимается разрезной балочной, подвижно-опертой в своей плоскости на порталы или опорные части. В арках и при полигональном очертании поясов ферм допускается определение усилий в поясах ветровой фермы, как для плоской фермы, с делением полученных результатов на косинус угла наклона данного элемента к горизонтали.
В неразрезных балочных пролетных строениях с ездой понизу ветровые фермы, образованные поясами главных ферм и продольными связями, следует рассчитывать как неразрезные балочные, считая верхнюю подвижно-опертой на упругие опоры - порталы на концевых опорах и на каждой промежуточной опоре главных ферм, а нижнюю опертой на жесткие опоры - опорные части.
10.1.5 Элементы главных ферм и связей на изгиб от воздействия ветра допускается не рассчитывать.
Опорные порталы следует рассчитывать на воздействие реакций соответствующей ветровой фермы, при этом в нижних поясах балочных пролетных строений следует учитывать горизонтальные составляющие продольных усилий в ногах наклонных опорных порталов.
10.1.6 Пояса главных ферм и элементы решетки, примыкающие к опорному узлу, следует рассчитывать на осевую силу и изгибающий момент от передаваемых с эксцентриситетом на неподвижную опорную часть продольных сил торможения, а также на изгибающий момент от эксцентриситета реакции однокатковой опорной части относительно центра опорного узла.
Распределение изгибающих моментов между элементами опорного узла следует принимать согласно
9.1.3.
10.1.7 Поперечные подкрепления, образуемые в пролетных строениях коробчатого и П-образного сечений решетчатыми или сплошностенчатыми диафрагмами, а также поперечными ребрами и листами ортотропных плит и стенок балок, должны быть проверены на прочность, устойчивость и выносливость на усилия, определяемые, как правило, пространственным расчетом пролетных строений.
Допускается рассчитывать поперечные подкрепления как рамы или балки, конфигурация которых соответствует поперечнику пролетного строения, а в состав сечения кроме поперечных ребер или диафрагм - решетчатых или сплошностенчатых - входит лист общей шириной, равной 0,2 расстояния между соседними стенками главных балок, но не более расстояния между поперечными подкреплениями.
Поперечные подкрепления в опорных сечениях имеют жесткие опоры в месте расположения опорных частей. Эти подкрепления следует рассчитывать на опорные реакции, местную вертикальную нагрузку и распределенные по контуру поперечного сечения в листах стенок и ортотропных плит касательные напряжения от изгиба и кручения примыкающих к данной опоре пролетов.
Поперечные подкрепления, расположенные в пролете, в том числе в местах приложения сосредоточенных сил, следует рассчитывать с учетом всех внешних сил и касательных напряжений в листах стенок и ортотропных плит от изгиба и кручения.
10.1.8 При многостадийном возведении конструкции прочность сечений на промежуточных стадиях монтажа следует проверять по
формулам (9.1) -
(9.22), принимая при этом коэффициенты

,

,

,

,

,

равными 1,0.
10.2 Элементы проезжей части
10.2.1 Продольные балки проезжей части пролетных строений, не имеющих разрывов продольных балок (специальных узлов с продольно-подвижным опиранием их примыкающих один к другому концов), следует рассчитывать по прочности, по упругой стадии работы с учетом дополнительных усилий от их совместной работы с поясами главных ферм, при этом уменьшение усилий в поясах главных ферм допускается учитывать только при включении проезжей части в совместную работу с ними специальными горизонтальными диафрагмами.
10.2.2 При включении проезжей части в совместную работу с решетчатыми главными фермами в расчетах всех болтосварных пролетных строений независимо от порядка их монтажа уменьшение усилий в поясах главных ферм следует учитывать только по отношению к воздействию временной вертикальной нагрузки.
Учет деформации поясов при определении усилий в проезжей части следует выполнять:
- от всех нагрузок - при включении проезжей части в совместную работу с главными фермами одновременно с их монтажом;
- только от временной вертикальной нагрузки - при включении проезжей части в совместную работу с главными фермами после передачи постоянной нагрузки на главные фермы.
10.2.3 Усилия в элементах проезжей части от совместной работы с главными фермами следует определять в предположении, что в горизонтальной плоскости имеют место следующие закрепления: продольные балки к поперечным прикреплены шарнирно; пояс поперечной балки, расположенный в уровне связей, прикреплен к поясам главных ферм жестко, а другой ее пояс - шарнирно.
Расчет по прочности сечений поперечных балок с учетом изгибающих моментов
My в горизонтальной плоскости, возникающих от совместной работы элементов проезжей части с поясами главных ферм, следует выполнять по
формулам (9.7) -
(9.14), принимая
My уменьшенными на 20%.
10.2.4 Усилия в продольных балках с накладками по верхнему поясу или по обоим поясам в сопряжении с поперечными балками следует определять с учетом неразрезности балок и упругой податливости опор. Распределение осевого усилия и изгибающего момента между прикреплениями поясов и стенки продольной балки следует осуществлять с учетом их податливости.
10.2.5 Продольные балки решетчатых пролетных строений с проезжей частью, не включенной в совместную работу с главными фермами, допускается, независимо от конструктивного оформления прикрепления их поясов в месте примыкания к поперечным балкам, рассчитывать по прочности как разрезные. При этом детали прикрепления поясов и стенки балок к поперечным балкам следует рассчитывать на 0,6 момента в середине пролета разрезной балки с распределением его согласно
10.2.4. При расчете указанных продольных балок на выносливость изгибающие моменты следует определять по линиям влияния неразрезной балки на упругоподатливых опорах.
10.2.6 Поперечные балки решетчатых пролетных строений следует рассчитывать как элементы рам, образованных поперечной балкой и примыкающими к узловым фасонкам элементами главных ферм.
Опорные сечения поперечных балок, подвесок, стоек (а при отсутствии подвесок или стоек - и раскосов главных ферм) следует проверять на изгибающие моменты, возникающие в элементах рам, образованных указанными элементами, вследствие изгиба поперечных балок под воздействием вертикальных нагрузок.
Изгибающие моменты в элементах замкнутых поперечных рам допускается определять по формулам:
опорный изгибающий момент в поперечной балке

(10.1)
изгибающий момент в подвеске или стойке:
- у края прикрепления поперечной балки

(10.2)
- в уровне центра ближайшего к поперечной балке узла поперечных связей, а при их отсутствии - центра противоположного пояса главной фермы
Mc1 = -0,5·Mc, (10.3)
где F - опорная реакция поперечной балки;
a - расстояние между осью сечения пояса главной фермы и осью сечения продольной балки;
B - расстояние между осями поясов главных ферм;
lm - длина панели главной фермы (расстояние между поперечными балками);
H - расчетная длина подвески или стойки из плоскости фермы;
Ibal - момент инерции сечения брутто поперечной балки в середине ее длины;
Ic - момент инерции сечения брутто подвески или стойки относительно оси, параллельной плоскости главной фермы;
It - момент инерции чистого кручения пояса фермы, примыкающего к поперечной балке.
10.2.7 В открытых пролетных строениях с ездой понизу поперечные рамы следует рассчитывать на условные горизонтальные силы, приложенные на уровне центра тяжести сечения пояса и равные 2% продольного усилия в сжатом поясе балки или фермы.
10.2.8 Усилия в элементах проезжей части со стальными ортотропными плитами автодорожных и пешеходных мостов следует определять, применяя пространственные расчетные схемы с дискретным расположением поперечных ребер и учитывая совместную работу плит с главными фермами (балками).
Расчет элементов ортотропной плиты по прочности и устойчивости следует выполнять в соответствии с
приложением Г.
Характерные критические сечения и точки в ортотропной плите при расчете на выносливость следует применять в соответствии с
приложением Д.
10.3.1 Усилия в элементах продольных связей с крестовой, ромбической и треугольной решетками от деформации поясов главных ферм или балок следует определять от вертикальной нагрузки, которая воздействует после включения их в работу.
Усилия в элементах продольных связей, не соединенных с продольными балками или соединенных при наличии разрывов в них по
10.2.1, допускается определять по формулам:
- в раскосе крестовой решетки, когда распоркой связей является поперечная изгибаемая балка

; (10.4)
- в других раскосах крестовой решетки

(10.5)
- в раскосе ромбической решетки

(10.6)
- в раскосе треугольной решетки

(10.7)
- в распорке связей с любой решеткой

, (10.8)
где Nd, Nc - усилия соответственно в раскосе и распорке связей;
Nd,lin, Nd,rec - усилия в раскосе соответственно с левой и правой сторон от распорки;

- нормальное напряжение в поясе главной фермы;

- средние (вычисленные с учетом неравномерности распределения изгибающих моментов по длине балки) напряжения в нижнем поясе поперечной балки;
Ad, Ac - площадь сечения соответственно раскоса и распорки связей; в случае когда распоркой является поперечная изгибаемая балка, в
формулах (10.4) -
(10.7) следует принимать

;
I - момент инерции пояса главной фермы относительно вертикальной оси;

- угол между раскосом связей и поясом главной фермы.
В
формулах (10.4) -
(10.7) при определении усилий в элементах связей балок со сплошной стенкой вместо

следует принимать напряжение

в стенке главной балки, вычисленное по площади брутто на уровне расположения плоскостей связей. В
формуле (10.4) вместо

следует принимать среднее напряжение

в стенке поперечной балки на уровне расположения плоскости связей, вычисленное так же, как и

.
Усилия в элементах продольных связей с полураскосной решеткой от вертикальной нагрузки допускается не учитывать.
10.3.2 Уменьшение усилий в поясах главных ферм за счет включения продольных связей в совместную работу в цельносварных пролетных строениях следует учитывать от всей нагрузки, действующей после постановки и закрепления продольных связей, а в болтосварных пролетных строениях - только от временной вертикальной нагрузки.
10.3.3 Расчет на прочность и выносливость поясов главных ферм с ромбической и треугольной решетками связей, а также крестовой с распорками разной жесткости следует выполнять с учетом возникающих в поясах изгибающих моментов от деформации элементов связей и от деформации поперечных балок проезжей части независимо от вида связей.
Изгибающие моменты в поясе, действующие в плоскости связей с треугольной и ромбической решетками, Mf вычисляют по формуле

, (10.9)
где Nc - усилие в распорке связей;
lm - расстояние между центрами узлов прикрепления элементов к поясу.
10.4.1 Сварные, фрикционные на цилиндрических высокопрочных болтах, болтовые на конических высокопрочных болтах, фланцевые на высокопрочных цилиндрических и конических болтах, а также шарнирные соединения в стальных мостовых конструкциях необходимо рассчитывать на передачу всех усилий, действующих в элементах конструкций, с учетом ослабления сечений отверстиями.
При неравномерном распределении усилий и возможной перегрузке отдельных зон и деталей прикреплений следует вводить коэффициенты условий работы, указанные в
таблицах 11 и
31.
При расчете прикрепления элемента к узлу с одиночной фасонкой допускается не учитывать изгибающие моменты в плоскости, перпендикулярной к плоскости фасонки.
Распределение продольного усилия, проходящего через центр тяжести соединения, следует принимать равномерным между болтами или сварными швами прикрепления.
При реконструкции и усилении клепаных пролетных строений расчеты заклепочных соединений надлежит выполнять по указаниям
[5]. Дефектные заклепки следует заменять на высокопрочные болты М22 с усилием натяжения не более 177 кН.
10.4.2 Расчетную высоту сечения сварных швов следует принимать:
а) для стыковых швов:
1) деталей, свариваемых с полным проплавлением - tw = tmin;
2) деталей, свариваемых с неполным проплавлением - tw = twmin;
б) для угловых швов:
1) по металлу шва -

;
2) по металлу границы сплавления -

,
где tmin - наименьшая из толщин свариваемых деталей;
twmin - наименьшая толщина сечения стыкового шва при сварке деталей с неполным проплавлением;
kf - наименьший из катетов углового шва;

,

- коэффициенты расчетных сечений угловых швов, принимаемые по
таблице 30.
10.4.3 Расчет по прочности сварных стыковых соединений следует выполнять:
- при сварке деталей из сталей различного уровня прочности, а также при сварке материалами, для которых Rwy < Ry (в этих случаях Rwy должно быть указано в проекте);
- при наличии выкружек или ослаблений в зоне стыка, когда
lw < b; (10.10)
или twmin < t; (10.11)
Aw,n < A, (10.12)
где lw - полная длина стыкового шва;
b, t - ширина и толщина стыкуемых деталей;
Aw,n - площадь нетто ослабленного (например, отверстиями) сечения шва;
A - площадь брутто (или нетто) сечения стыкуемых деталей в зоне стыка.
Вид сварки при диаметре сварочной проволоки d, мм | Положение шва | Коэффициенты расчетных сечений угловых швов |
обозначения | при катетах швов kf, мм |
3 - 8 | 9 - 12 | 14 - 16 | 18 и более |
Автоматическая под флюсом при d = 2 - 5 | В лодочку | | 1,1 | 0,8 |
| 1,15 | 1,0 |
Нижнее | | 1,1 | 0,9 | 0,8 |
| 1,15 | 1,05 | 1,0 |
Полуавтоматическая под флюсом при d = 1,4 - 2,0 | В лодочку | | 1,0 | 0,9 | 0,8 |
| 1,1 | 1,0 |
Нижнее | | 1,0 | 0,85 | 0,8 |
| 1,05 | 1,0 |
Автоматическая и полуавтоматическая в смеси газов при d = 1,2 - 2,0 проволоками сплошного сечения и металлопорошковыми в смеси газов | В лодочку | | 0,95 | 0,85 | 0,75 |
| 1,05 | 1,0 |
Нижнее, горизонтальное, вертикальное | | 0,9 | 0,8 | 0,7 |
| 1,0 |
Ручная, полуавтоматическая порошковой самозащитной проволокой | В лодочку, нижнее, горизонтальное, вертикальное, потолочное | | 0,8 | 0,7 |
| 1,0 |
Полуавтоматическая проволоками сплошного сечения d = 1,2 - 2,0 и металлопорошковыми проволоками в смеси газов | Потолочное | | 0,7 |
| 1,0 |
Примечание - Значения коэффициентов соответствуют режимам сварки, предусмотренным [1] и [2]. |
10.4.4 Расчет по прочности сварных стыковых соединений в случае центрального растяжения или сжатия следует выполнять по формуле

, (10.13)
где
m - коэффициент условий работы, принимаемый по
таблице 11.
Расчет по прочности сварных стыковых соединений в случае изгиба в одной или двух главных плоскостях, а также действия осевой силы с изгибом в одной или двух главных плоскостях следует выполнять по
формулам (9.2) -
(9.22), в которых геометрические параметры и коэффициенты

,

,

,

,

,

следует вычислять для сечения стыкового соединения, принимаемого согласно
10.4.3, а в правой части вместо
Rym и
Rsm подставлять соответственно величины
Rwym и
Rwsm.
10.4.5 Прочность сварных соединений с угловыми швами при действии продольных или поперечных сил следует проверять на срез (условный) по двум сечениям
(рисунок 10.1):
- по металлу шва (сечение 0-1)

, (10.14)
- по металлу границы сплавления (сечение 0-2)

, (10.15)
где lw - полная длина шва;
tf, tz - расчетная высота сечения шва;
m - коэффициент условий работы, принимаемый по
таблице 11.
Рисунок 10.1 - Схема расчетных сечений сварного углового шва
при расчете на срез
10.4.6 Расчет по прочности сварных соединений с угловыми швами при действии момента в плоскости, перпендикулярной к плоскости расположения швов
[рисунок 10.2а)], следует выполнять для двух сечений по формулам:
- по металлу шва

; (10.16)
- по металлу границы сплавления

, (10.17)
где Wf - момент сопротивления расчетного сечения по металлу шва;
Wz - то же, по металлу границы сплавления.
10.4.7 Расчет по прочности сварных соединений с угловыми швами при действии момента в плоскости расположения этих швов
[рисунок 10.2б)] следует выполнять для двух сечений по формулам:
- по металлу шва

, (10.18)
- по металлу границы сплавления

, (10.19)
где lfx, lfy - моменты инерции расчетного сечения по металлу шва относительно его главных осей;
lzx, lzy - то же, по металлу границы сплавления;
x, y - координаты точки шва, наиболее удаленной от центра тяжести расчетного сечения швов относительно главных осей этого сечения.
Рисунок 10.2 - Расположение сварных соединений
с угловыми швами при действии момента в плоскости
10.4.8 Прочность сварных стыковых соединений при одновременном действии в одном и том же сечении нормальных и касательных напряжений следует проверять по
формуле (9.26), в которой следует принимать:

и

- нормальные напряжения в сварном соединении по двум взаимно перпендикулярным направлениям;

- касательное напряжение в сварном соединении;
Ry =
Rwy.
10.4.9 При расчете по прочности сварных соединений с угловыми швами при одновременном действии продольной и поперечной сил и момента должны быть выполнены условия:

; (10.20)

, (10.21)
где

,

- напряжения в расчетном сечении соответственно по металлу шва и по металлу границы сплавления, равные геометрическим суммам напряжений, вызываемых продольной и поперечной силами и моментом.
10.4.10 Расчет по прочности сварных соединений угловыми швами прикрепления листов пояса между собой и к стенке изгибаемых балок следует выполнять по формулам:
а) при отсутствии местного давления:
1) по металлу шва

; (10.22)
2) по металлу границы сплавления

, (10.23)
где n - число угловых швов;
б) при воздействии на пояс местного давления:
1) по металлу шва

; (10.24)
2) по металлу границы сплавления

, (10.25)
| | ИС МЕГАНОРМ: примечание. Экспликация к формуле дана в соответствии с официальным текстом документа. | |
где
g - давление от подвижной вертикальной нагрузки, определяемое по ГОСТ 33390-2015 (
подразделы 5.1,
5.2) и ГОСТ 32960-2014
(раздел 3).
10.4.11 Сварные швы, соединяющие отдельные листовые детали сечения составных сплошностенчатых сжатых элементов, следует рассчитывать на условную поперечную силу, принимаемую постоянной по всей длине элемента и определяемую по формуле

, (10.26)
где W - момент сопротивления сечения элемента брутто в проверяемой плоскости (ослабление листовых деталей перфорациями допускается не учитывать);
l - длина составного элемента;

- коэффициент продольного изгиба при расчете по устойчивости элемента в проверяемой плоскости.
Те же сварные швы в сжато-изогнутых составных элементах следует рассчитывать на поперечную силу
Q1, равную сумме поперечных сил - условной
Qfic, определяемой по
формуле (10.26), и фактической.
Если в сечении составного элемента имеются две параллельно расположенные листовые детали и более, то прикрепление каждой из них следует рассчитывать на поперечную силу Qi вычисляемую по формуле

, (10.27)
где ti - толщина прикрепляемой листовой детали;
n - число параллельно расположенных листовых деталей.
10.4.12 При прикреплении к узлам главных ферм составных сплошностенчатых элементов, отдельные части сечения которых непосредственно не прикрепляются к узловым фасонкам, сварные швы присоединения не прикрепляемой части сечения к прикрепляемой следует рассчитывать на передачу приходящегося на нее усилия, принимая при этом коэффициенты условий работы равными:
- m = 0,8 - при отношении площади прикрепляемой части сечения Av ко всей площади сечения элемента A до 0,6;
-
m = 0,9 - при отношении

свыше 0,6 до 0,8;
-
m = 0,9 - при отношении

свыше 0,8.
Расчетную длину сварного шва при этом следует принимать равной длине перекрытия элемента узловой фасонкой фермы.
10.4.13 В соединениях на цилиндрических болтах класса точности A и на конических высокопрочных болтах расчетное усилие
Nb, которое может быть воспринято одним болтом в многоболтовом соединении, следует определять по формулам:
- на срез болта
Nb =
Rbs·
Abs·
m·
mb·
ns; (10.28)
- на смятие соединяемых элементов

; (10.29)
- на растяжение
Nb = Rbt·Abn·m·mb, (10.30)
где Rbs, Rbp, Rbt - расчетные сопротивления металла болтов на срез, смятие и растяжение;
d - диаметр рабочего тела болта (или отверстия);
Abs - площадь рабочего сечения тела болта;
Abn - площадь сечения болта нетто по резьбе согласно
ГОСТ Р 53664;

- наименьшая суммарная толщина элементов, сминаемых в одном направлении;
ns - число расчетных срезов одного болта;
mb - коэффициент условий работы соединения, который следует принимать по
таблице 31.
10.4.14 Число
n болтов в соединении при действии продольной силы
N, проходящей через центр тяжести соединения, следует определять по формуле

, (10.31)
mb,
m - коэффициенты условий работы, принимаемые соответственно по
таблицам 31 и
11.
10.4.15 При действии в плоскости соединения изгибающего момента распределение усилий на болты следует принимать пропорционально расстояниям от центра тяжести соединения до рассматриваемого болта.
10.4.16 Болты, работающие на срез от одновременного действия продольной силы и момента, следует проверять на усилие, определяемое как равнодействующее усилий, найденных отдельно от продольной силы и момента.
10.4.17 Болты, работающие одновременно на срез и растяжение, допускается проверять отдельно на срез и на растяжение.
10.4.18 Болты, соединяющие стенки и пояса составных балок, следует рассчитывать по формулам:
- при отсутствии местного давления

; (10.32)
- при воздействии на пояс местного давления q

, (10.33)
где

- шаг поясных болтов;
Nbmin - меньшее из значений расчетного усилия для одного болта, определяемых по
10.4.13;
S - статический момент брутто пояса балки относительно нейтральной оси;
I - момент инерции сечения брутто балки относительно нейтральной оси;
m - коэффициент условий работы, определяемый по
таблице 11.
10.4.19 В фрикционных соединениях расчетное усилие
Qbh, которое может быть воспринято каждой поверхностью трения соединяемых элементов, стянутых одним высокопрочным болтом (одним болтоконтактом), вычисляют по формуле

, (10.34)
где P - усилие натяжения высокопрочного болта;

- коэффициент трения, принимаемый по
таблице 9;

- коэффициент надежности, принимаемый по
таблице 9.
Усилие натяжения P высокопрочного болта вычисляют по формуле
P = Rbh·Abn·mbh, (10.35)
где
Rbh - расчетное сопротивление высокопрочного болта растяжению, определяемое по
формуле (7.1);
mbh - коэффициент условий работы высокопрочных болтов при контроле натяжения по крутящему моменту, равный 0,95.
10.4.20 Число n высокопрочных болтов в соединении при действии продольной силы N, проходящей через центр тяжести соединения, вычисляют по формуле

, (10.36)
где
m - коэффициент условий работы, принимаемый по
таблице 11;
Qbh - расчетное усилие на один болтоконтакт, определяемое по
формуле (10.34);
ns - число контактов в соединении.
10.4.21 При действии в плоскости соединения изгибающего момента или продольной силы с изгибающим моментом усилие, приходящееся на рассматриваемый высокопрочный болт, следует определять согласно
10.4.15 и
10.4.16.
10.4.22 Высокопрочные болты, соединяющие стенки и пояса составных балок, вычисляют по формулам:
- при отсутствии местного давления

; (10.37)
- при воздействии на пояс местного давления q

, (10.38)
где ns - число контактов в соединении;
Qb,h - расчетное усилие, воспринимаемое одним болтоконтактом и вычисляемое по
формуле (10.34).
10.4.23 Если совместная работа проезжей части и поясов главных ферм обеспечивается специальными горизонтальными диафрагмами, расчет прикрепления продольных балок к поперечным следует выполнять на поперечную силу и момент с учетом требований
10.2.4; при этом усилия в болтах, прикрепляющих вертикальные уголки к стенке поперечной балки, необходимо определять как для фланцевых соединений.
Расчет болтовых и фрикционных соединений прикреплений балок проезжей части пролетных строений с решетчатыми главными фермами допускается выполнять только на поперечную силу, вводя дополнительный коэффициент условий работы mb согласно таблице 31.
Характеристика прикрепления и места расположения болтов | Особенности конструкции узла | Коэффициент условий работы mb |
Во всех пролетных строениях |
Вертикальные уголки прикрепления поперечной балки к узлу решетчатой главной фермы: | | |
болты в полках уголков, прикрепляемых к ферме | Конструкция не способна воспринимать опорный момент | 0,85 |
Конструкция способна воспринимать опорный момент | 0,9 |
то же, к поперечной балке | Независимо от конструкции | 0,9 |
Совместная работа проезжей части и поясов главных ферм не обеспечивается |
Вертикальные уголки прикрепления продольной балки к поперечной: | | |
болты в полках уголков, прикрепляемых к поперечной балке | Конструкция не способна воспринимать опорный момент | 0,7 |
Конструкция способна воспринимать опорный момент | 0,9 |
то же, к продольной балке | Независимо от конструкции | 0,9 |
10.4.24 Расчет по прочности стыковых накладок растянутых элементов ферм и поясов сплошных балок следует выполнять с введением для накладок коэффициента условий работы m = 0,9.
10.4.25 Листы узловых фасонок следует проверять на прочность прикрепления растянутых и сжатых элементов по контуру, соединяющему центры отверстий периферийных болтов прикрепления указанных элементов, по формуле

, (10.39)
где N - продольное усилие в элементе;
t - толщина узловой фасонки;
m - коэффициент условий работы, принимаемый по
таблице 11;

- угол между направлением
i-го участка проверяемого контура и осью элемента

, рад;
li - длина i-го участка проверяемого контура узловой фасонки.
10.4.26 Прочность узловых болтов-шарниров допускается проверять в предположении работы болта на изгиб как свободно лежащей балки, нагруженной сосредоточенными силами по оси пакетов, соприкасающихся с болтом, принимая расчетные сопротивления по
таблице 3.
10.4.27 Для фланцевых соединений следует применять высокопрочные цилиндрические или конические болты с предварительным напряжением их на усилие
P0 = 0,9P, (10.40)
где
P - расчетное усилие натяжения высокопрочного болта, принимаемое по
10.4.19.
10.5 Расчет соединительных планок и перфорированных листов
Соединительные планки или перфорированные листы сквозных сжатых элементов следует рассчитывать на условную поперечную силу Qfic, принимаемую постоянной по всей длине стержня и вычисляемую по формуле

, (10.41)
где N - продольное усилие сжатия в элементе;

- коэффициент продольного изгиба при проверке устойчивости элемента в плоскости соединительных планок или перфорированных листов, принимаемый по
таблицам Б.1,
Б.2 приложения Б в зависимости от приведенного относительного эксцентриситета
eef;

, но не более

- гибкость элемента в плоскости соединительных планок или перфорированных листов.
Соединительные планки и перфорированные листы сквозных сжато-изогнутых элементов следует рассчитывать на поперечную силу, равную сумме фактической поперечной силы при изгибе и условной
Qfic, вычисляемой по
формуле (10.41).
При расположении соединительных элементов в нескольких параллельных плоскостях, перпендикулярных оси, относительно которой выполняется проверка устойчивости, поперечную силу Q следует распределять:
- при соединительных планках или перфорированных листах, а также в случае их сочетания - поровну между всеми плоскостями планок и перфорированных листов;
- при сплошном листе (пакете) и соединительных планках или перфорированных листах - на сплошной лист (пакет) принимать часть поперечной силы, равную Qbl и вычисляемую по формуле

, (10.42)
где
Aef - площадь сечения брутто сквозного элемента, равная

(
b и
tef определяют по
9.3.1.2);
Abl,ef - часть сечения элемента, работающая вместе со сплошным листом и равная

(Abl - площадь сечения сплошного листа;
tv - толщина вертикального листа или пакета;

- коэффициент, принимаемый по
9.3.4.10).
Соединительные планки и перфорированные листы в промежутках между отверстиями перфорации следует рассчитывать на приходящуюся на них часть поперечной силы как элементы безраскосных ферм.
11 Конструирование стальных элементов
11.1.1 Для стальных элементов конструкций мостов необходимо:
- учитывать возможности технологического и кранового оборудования заводов - изготовителей стальных конструкций, а также подъемно-транспортного и монтажного оборудования строительных организаций;
- разделять конструкции на отправочные элементы из условий выполнения максимального объема работ на заводах-изготовителях с учетом грузоподъемности и габаритов транспортных средств;
- предусматривать связи, обеспечивающие в процессе транспортирования, монтажа и эксплуатации устойчивость и пространственную неизменяемость конструкции в целом, ее частей и элементов;
- осуществлять унификацию монтажных блоков и элементов, а также узлов и расположения болтовых отверстий;
- обеспечивать удобство сборки и выполнения монтажных соединений, предусматривая монтажные крепления элементов, устройство стремянок, подмостей и т.д.;
- осуществлять унификацию применяемого проката по профилям и длинам с учетом требования об использовании металла с минимальными отходами и потерями;
- учитывать допуски проката и допуски заводского изготовления;
- предусматривать в проектах на стадии КМ надежную защиту конструкций от коррозии с учетом агрессивности природно-климатической среды и загрязненности атмосферы промышленными предприятиями, действующими в зоне эксплуатации мостов.
11.1.2 При проектировании стальных конструкций следует исключать стесненное расположение привариваемых деталей, резкие изменения сечения элементов, образование конструктивных "надрезов" в виде обрывов фасонок и ребер жесткости или вырезов в них, примыкающих под углом к поверхности напряженных частей сечения (поясов и стенки балок, листов составных элементов и т.д.).
Для повышения выносливости и хладостойкости конструкций, а также снижения отрицательного влияния остаточных деформаций и напряжений от сварки следует предусматривать мероприятия конструктивного и технологического характера (оптимальный порядок сборки и сварки элементов; роспуск швов; предварительный выгиб и местный подогрев; нагрев отдельных зон после сварки; полное проплавление и выкружки на концах обрываемых деталей, подходящие по касательной к поверхности оставшейся части сечения; механическую обработку зон концентрации напряжений и др.).
В конструкциях северного исполнения следует исключать обрыв отдельных частей сечения по длине элемента в целом (или монтажного блока, если в стыках блоков применены фрикционные соединения).
Защита от коррозии конструкций должна предусматриваться в соответствии с
ГОСТ 9.401.
11.1.3 При наличии элементов, жестко связывающих пояса балок или ферм (например, железобетонной или стальной плиты), допускается не устраивать продольных связей в соответствующей плоскости, если они не требуются по условиям монтажа.
В арочных пролетных строениях продольные связи следует устраивать в плоскости одного из поясов арок и в плоскости проезжей части, если она не имеет плиты; при решетчатых арках следует предусматривать поперечные связи между ними и продольные связи по обоим поясам.
11.1.4 Продольные связи следует центрировать в плане с поясами главных ферм, при этом эксцентриситеты в прикреплении из плоскости связей должны быть минимальными.
11.1.5 Для снижения напряжений в поперечных балках проезжей части от деформации поясов главных ферм следует, как правило, включать проезжую часть в совместную работу с главными фермами.
В пролетных строениях с проезжей частью, не включенной в совместную работу с главными фермами, следует предусматривать тормозные связи.
11.1.6 Прикрепление балок проезжей части с помощью торцевых листов, приваренных к стенке и поясам балки, не допускается.
В пролетных строениях автодорожных и пешеходных мостов следует, как правило, обеспечивать неразрезность продольных балок на всем протяжении, а при наличии разрывов в проезжей части - на участках между ними.
11.2.1 Наименьшая толщина деталей элементов пролетных строений принимается по расчету на прочность, устойчивость, выносливость, жесткость и колебания, но не менее указанной в таблице 32.
Таблица 32
Детали элементов конструкции | Наименьшая толщина или сечение деталей элементов конструкции, мм |
в автодорожных мостах | в пешеходных мостах |
1 | Листовые детали (за исключением деталей, указанных в пунктах 2 - 9) | 10 | 10 |
| Узловые фасонки главных ферм | 12 | 10 |
3 | Вертикальные стенки сварных изгибаемых главных балок | 12 | 12 |
4 | Узловые фасонки связей | 8 | 8 |
5 | Накладки в стыках ребер ортотропной плиты и планки | 8 | 8 |
6 | Прокладки | 4 | 4 |
7 | Горизонтальные опорные листы | 20 | 20 |
8 | Листы настила ортотропных плит | 14 | 12 |
| Листы настила тротуаров в повышенном уровне | 12 | 10 |
10 | Ребра ортотропных и ребристых плит | 12 | 12 |
11 | Трапециевидные ребра | 6 | 6 |
12 | Уголки в основных элементах главных ферм и проезжей части | 100 x 100 x 10 | 100 x 100 x 10 |
13 | Уголки фланцевых прикреплений продольных и поперечных балок | 100 x 100 x 12 | 100 x 100 x 10 |
14 | Уголки в элементах связей | 80 x 80 x 8 | 80 x 80 x 8 |
15 | Детали из труб | 8 | 8 |
Допускается следующая наибольшая толщина проката, мм:
- 20 - в пакетах деталей, стягиваемых обычными болтами;
- 60 - в сварных элементах из углеродистой и низколегированной сталей;
- 20 - в стыковых накладках и узловых фасонных листах при применении фрикционных соединений;
- 25 - в соединениях на конических высокопрочных болтах.
11.2.2 Для уменьшения числа соединительных сварных швов сечения составных элементов решетчатых ферм следует предусматривать из минимального числа деталей.
11.2.3 В решетчатых главных фермах материал элементов коробчатого и Н-образного сечений должен быть сконцентрирован в листах, расположенных в плоскости фермы.
Пояса и сжатые элементы ферм следует, как правило, предусматривать коробчатого сечения.
11.2.4 В составных элементах решетчатых ферм отношение

расчетной ширины
b к толщине
t листов не должно превышать следующих значений:
- 60 - у вертикальных и горизонтальных листов коробчатых элементов;
- 45 - у горизонтальных листов Н-образных элементов;
- 20 - у листов со свободными (неокаймленными) свесами;
- 30 - у листов со свесами, окаймленными уголками или ребрами жесткости.
За расчетную ширину b листа следует принимать:
а) при обеих закрепленных продольных кромках:
1) для элементов с болтовыми соединениями - расстояние между ближайшими рисками болтов, присоединяющих данный лист к перпендикулярным ему листам или соединительным связям;
2) для сварных и прокатных элементов - расстояние между осями указанных листов;
б) при закреплении одной продольной кромки:
1) для элементов с болтовыми соединениями - расстояние от свободного края листа до ближайшей риски болтов;
2) для сварных и прокатных элементов - расстояние от свободного края листа до оси ближайшего листа, расположенного перпендикулярно данному.
11.2.5 В сжатых элементах Н-образного сечения толщина горизонтального листа должна составлять от толщины соединяемых листов tf не менее:
- 0,4tf - в элементах с болтовыми соединениями;
- 0,5tf - в сварных и прокатных элементах при tf > 24 мм;
- 0,6tf - в сварных и прокатных элементах при tf <= 24 мм.
11.2.6 При конструировании узлов ферм следует обеспечивать местную устойчивость сжатых зон узловых фасонок в соответствии с
9.3.4.10, при необходимости подкрепляя свободные кромки окаймляющими уголками или ребрами.
11.2.7 Двутавровые сварные балки следует предусматривать из одного вертикального и двух горизонтальных листов, а коробчатые - из двух вертикальных и двух непосредственно соединенных с ними поясными швами горизонтальных листов.
Если требуемая толщина пояса сварной балки превосходит 60, 50 и 40 мм (соответственно в конструкциях обычного, северных А и Б исполнений), допускается применение в поясах пакетов из двух листов.
Изменение сечения пояса следует осуществлять в зоне расположения его стыков, предусматривая скосы по ширине или по толщине, а при необходимости - то и другое одновременно с уклоном 1:8 для растянутого пояса и 1:4 - для сжатого.
В поясах из двух листов следует применять листы, отличающиеся по ширине не менее чем на 100 мм. В автодорожных мостах допускается применение в поясах балок пакетов из листов одинаковой ширины, соединенных сварными швами, наложенными по соприкасающимся кромкам, с разделкой последних на требуемую по расчету глубину.
11.2.8 Наружный лист пакета пояса, обрываемый в пролете балки с учетом указаний
11.1.2, следует продолжить за место его теоретического обрыва на длину, обеспечивающую прикрепление 50% площади сечения листа.
При этом следует предусматривать: толщину этого листа на конце - 10 мм; симметричные скосы по ширине (со сведением на нет) - с уклоном 1:4; скос по толщине - с уклоном 1:8 для растянутого пояса и 1:4 - для сжатого. Для косых швов на конце листа следует предусматривать отношение катетов 1:2 (меньший катет - по вертикали) и механическую обработку для получения плавных (радиусом не менее 5 мм) переходов к основному металлу непрерываемого листа пояса.
11.3 Ребра жесткости сплошных изгибаемых балок
11.3.1 В опорных сечениях, в местах передачи сосредоточенных сил, расположения поперечных связей в сплошных изгибаемых балках должны быть предусмотрены поперечные ребра жесткости из полос, уголков или тавров.
Промежуточные поперечные, а также продольные ребра жесткости следует предусматривать в соответствии с расчетом местной устойчивости стенок для стадий изготовления, транспортирования, монтажа и эксплуатации.
При отсутствии местного давления продольные ребра жесткости следует располагать на расстояниях от сжатого пояса:
- при одном ребре - (0,20 - 0,25)hw;
- при двух или трех ребрах: первое ребро - (0,15 - 0,20)hw; второе ребро - (040 - 0,50)hw; третье ребро следует располагать, как правило, в растянутой зоне стенки.
Расчетную высоту стенки
hw следует принимать в соответствии с
приложением Б.
В балках со стенкой, укрепленной только поперечными ребрами, ширина их выступающей части
bh должна быть для парного симметричного ребра не менее
hw/30 + 40 мм, для одностороннего ребра - не менее
hw/24 + 50 мм; толщина ребра
ts должна быть не менее

.
При укреплении стенки поперечными и продольными ребрами жесткости моменты инерции их сечений должны удовлетворять нормам таблицы 33 для поперечных ребер и
таблицы 34 - для продольного (при одном продольном) ребра.
Таблица 33
| для поперечных ребер |
0,75 | 0,80 |
0,62 | 1,44 |
0,50 | 2,8 |
0,40 | 4,6 |
0,33 | 6,6 |
Примечание - В настоящей таблице применены следующие обозначения: Is - момент инерции поперечного ребра; hw - расчетная высота стенки, принимаемая в соответствии с приложением Б; tw - толщина стенки балки;  , где a - расстояние между осями поперечных ребер жесткости. |
| Необходимый момент инерции сечения продольного ребра | Предельные значения Ist |
минимальные | максимальные, учитываемые в расчете |
0,20 | | | |
0,25 | | | |
0,30 | | - | - |
Примечания 1 В настоящей таблице применены следующие обозначения: h1 - расстояние от оси продольного ребра жесткости до оси ближайшего пояса в сварных балках или до крайней риски поясных уголков в балках с болтовыми соединениями. Ist - момент инерции сечения продольного ребра. 2 При вычислении Ist для промежуточных значений  допускается линейная интерполяция. |
11.3.2 В автодорожных и пешеходных мостах в ребрах жесткости, приваренных к стенке балки, в местах их примыкания к поясам балки, к ребрам жесткости другого направления и к фасонкам связей необходимо предусматривать скругленные вырезы радиусом не менее 50 мм.
11.3.3 В сварных балках концы промежуточных поперечных ребер жесткости, прикрепленные фрикционными соединениями, должны плотно примыкать к поясным листам балок. Для обеспечения этого допускается в автодорожных и пешеходных мостах на концах ребер выполнить их приварку к поясным листам балок. При этом торцы поперечных ребер жесткости, к которым прикрепляются поперечные ребра ортотропной плиты автодорожной проезжей части, должны быть приварены к поясам балки независимо от типа исполнения конструкций и знака напряжений в поясе и с учетом требований
11.5.9.
Допускается устройство обрывов промежуточных поперечных ребер жесткости на стенке вблизи поясов с оформлением зоны обрыва ребра в соответствии с требованиями
11.5.6.
В местах передачи сосредоточенных сил следует предусматривать пригонку торцов ребер жесткости к листу пояса балки.
11.3.4 Продольные ребра жесткости в сварных балках следует применять лишь в тех случаях, когда обеспечение местной устойчивости за счет постановки одних поперечных ребер жесткости и изменения толщины стенки оказывается нецелесообразным.
11.3.5 Привариваемые к стенке или полке балки ребра жесткости, параллельные заводским или монтажным сварным стыковым швам стенки или полки, должны быть удалены от них на расстояние не менее 10tw в конструкциях обычного исполнения и 20tw - северного исполнения.
Перо или обушок уголка, используемый в виде ребра жесткости и прикрепляемый к стенке болтами, от стыкового сварного шва стенки должны быть удалены на расстояние не менее 5tw.
11.3.6 Ребра жесткости должны быть прикреплены сплошными двусторонними швами.
Ребра жесткости и швы, прикрепляющие их к стенке, в местах пересечения стыковых швов стенки прерывать не допускается.
В пролетных строениях автодорожных и пешеходных мостов всех типов исполнений в местах пересечения ребер жесткости необходимо пропускать непрерывными продольные ребра и их швы, а поперечные ребра (кроме опорных) прерывать и прикреплять к ним угловыми швами; эти швы в растянутой зоне стенки должны иметь отношение катетов 1:2 (больший катет - на продольном ребре) и плавный переход к основному металлу.
При обрыве продольных ребер жесткости у болтового поперечного стыка стенки оформление зоны обрыва ребра должно отвечать требованиям
11.5.6.
11.4 Сварные, фрикционные и болтовые соединения
11.4.1 В тех случаях, когда прикрепление с эксцентриситетом неизбежно, в цельносварной конструкции при одностенчатых сечениях элементов прикрепление их следует осуществлять по всему контуру соединения.
11.4.2 При применении сложных прокатных профилей (швеллеров, тавров и двутавров, в том числе с параллельными гранями полок) устройство с помощью сварки поперечных стыков и прикреплений к узлам не допускается.
11.4.3 В конструкциях автодорожных и пешеходных мостов обычного и северного исполнений допускается применение сварки продольными непрерывными швами цельных (без стыков по длине) тавров и двутавров (в том числе разных номеров) между собой и с листом, прикрепляемым по всей длине встык или втавр к стенке профиля или двумя угловыми швами к кромкам полки профиля.
11.4.4 Применение электрозаклепок в основных конструкциях автодорожных и пешеходных мостов запрещается.
11.4.5 Угловые швы необходимо применять, как правило, с вогнутым очертанием их поверхности и плавным переходом к основному металлу.
Лобовые швы, как правило, следует предусматривать неравнобокими с

катетом, направленным вдоль усилия, при этом рекомендуется отношение

катета к меньшему принимать равным двум.
11.4.6 Размеры угловых сварных швов следует назначать возможно меньшими из расчета по прочности и выносливости с учетом при этом указанных ниже технологических требований.
Продольные соединительные угловые швы коробчатых, тавровых и Н-образных элементов для сталей и толщин проката, указанных в
таблице 2, должны иметь расчетную высоту сечения не менее 4 мм, а швы, прикрепляющие ребра жесткости к стенке балки, а также продольные ребра ортотропной плиты к покрывающему листу, - не менее 3 мм.
Длина углового лобового или флангового шва должна быть не менее 60 мм и не менее шестикратного размера катета шва.
11.4.7 Конструкция стыковых швов должна обеспечивать возможность полного проплавления расчетной толщины стыкуемых деталей и плавных переходов к основному металлу.
11.4.8 При расположении стыка поперек усилия в элементе толщина стыкового шва не должна быть меньше толщины свариваемых листов.
11.4.9 В сварных балках и составных элементах, сечения которых образуются с помощью соединительных швов, полное проплавление тавровых и угловых соединений не требуется, если свариваемые детали обрываются в одном сечении. При наличии обрыва не в одном сечении на длине 100 мм от обрыва необходимо предусматривать полное проплавление таврового или углового соединения свариваемых деталей.
В соединениях, работающих на отрыв, обеспечение полного проплавления обязательно.
Применение узлов с работой на отрыв деталей пакета, образованного с помощью нахлесточных угловых сварных швов, не допускается.
В угловых соединениях составных замкнутых герметичных элементов, образованных односторонними угловыми швами, глубина провара должна быть не менее 4 мм при толщине более тонкого листа до 16 мм и не менее 5 мм при толщине более тонкого листа свыше 16 мм.
Для соединения отдельных деталей и прикрепления элементов конструкций прерывистые швы не применяются.
11.4.10 В конструкциях с фрикционными соединениями должна быть обеспечена возможность свободной постановки высокопрочных болтов, плотного стягивания пакета болтами и закручивания гаек с применением динамометрических ключей и гайковертов.
11.4.11 В соединениях прокатных профилей с непараллельными поверхностями полок должны применяться клиновидные шайбы.
11.4.12 Номинальные диаметры отверстий под высокопрочные болты во фрикционных соединениях приведены в таблице 35.
Таблица 35
В миллиметрах
Группа соединений | Номинальный диаметр отверстий во фрикционных соединениях при диаметре болтов |
22 | 24 | 27 |
Стыки и прикрепления основных несущих элементов и связей, определяющие проектное положение конструкций | 23 - 25 | 25 - 28 | 28 - 30 |
Прикрепления: связей, не определяющих проектного положения конструкций; стыковых накладок (рыбок) поясов продольных балок; тормозных связей и горизонтальных диафрагм проезжей части | 23 - 28 | 25 - 30 | 28 - 33 |
11.4.13 Соединения следует предусматривать с возможно более компактным расположением высокопрочных и обычных болтов по нормам таблицы 36.
Таблица 36
Характеристика расстояний | Норма |
1 Расстояния между центрами болтов: | |
а) минимальное в любом направлении | |
б) максимальное в любом направлении в крайних рядах при растяжении и сжатии: | |
в листах | 7d или 16t |
| 160 мм |
в) максимальное в средних рядах: | |
поперек усилия при растяжении и сжатии | 24 |
вдоль усилия при растяжении | 24t |
то же, при сжатии | 16t |
2 Расстояния от центра болта до края элемента: | |
а) минимальное вдоль усилия, поперек усилия и по диагонали при кромках после механической обработки, машинной газокислородной, плазменной и лазерной резки | 1,5t |
б) максимальное | 8t или 120 мм |
<1> Для обычных болтов назначают 3,0 d. <2> При двухрядном расположении норма относится к ряду у пера. Примечание - d - номинальный диаметр болта; t - толщина наиболее тонкой детали, расположенной снаружи пакета. |
11.4.14 Число высокопрочных болтов должно быть не менее двух:
- в прикреплениях связей главных ферм и проезжей части;
- в каждом продольном ряду прикрепления или стыковой накладки (считая от оси стыка).
В прикреплении стержня на обычных болтах число болтов в продольном ряду должно быть не менее:
- 3 - при одном ряде;
- 2 - при двух рядах и более;
- 5 - в выступающей полке уголкового коротыша.
В стыках и прикреплениях растянутых и сжато-растянутых элементов число болтов в двух первых поперечных рядах (считая от сечения элемента или накладки с полным усилием) следует принимать одинаковым. Число болтов в последующих рядах должно увеличиваться постепенно. В стыках и прикреплениях уголков с двухрядным расположением болтов первый болт должен быть расположен у обушка.
Число рядов болтов вдоль усилия (при выполнении требований
10.4.25) должно быть минимальным.
В продольных и поперечных стыках стенок балок допускается располагать болты с каждой стороны стыка в один ряд.
11.4.15 Диаметр болтов, поставленных в уголках основных элементов, не должен, как правило, быть более 1/4 ширины полки уголка.
Допускается в элементах связей, ребрах жесткости, диафрагмах и т.д. ставить болты диаметром 22 мм в полке уголка шириной 80 мм и диаметром 24 мм в полке шириной 90 мм.
Во фрикционных соединениях с большим числом высокопрочных болтов их диаметр следует назначать возможно большим. В соединениях, где диаметр отверстия превышает номинальный диаметр болта свыше 3 мм, следует устанавливать в высокопрочных болтах шайбы толщиной 6 мм.
11.4.16 Полную длину высокопрочных болтов следует назначать из условия, чтобы после затяжки гайки оставалось не менее одного полного витка резьбы.
11.4.17 Стыки вертикальной стенки балки при болтовых соединениях должны быть перекрыты накладками по всей высоте.
Стыковые накладки поясных уголков допускается применять в виде плоских листов.
11.4.18 Непосредственно прикрепленная площадь элементов сквозных главных ферм в узлах и стыках должна составлять не менее 50% всей рабочей площади элемента. При непрямом перекрытии площади сечения следует уменьшать эксцентриситет в прикреплении накладок и увеличивать их длину.
11.5.1 В конструкции не должно быть соприкасающихся несоединенных частей, а также щелей, зазоров, пазух и корыт. В местах возможного скопления влаги следует устраивать дренажные отверстия диаметром не менее 50 мм.
11.5.2 У растянутых элементов симметричного сечения, снабженных отверстиями для соединения их узловыми болтами-шарнирами, площадь нетто разреза, проходящего через болтовое отверстие, должна быть не менее 140%, а разреза от торца элемента до болтового отверстия - не менее 100% расчетного сечения элемента.
11.5.3 Ветви сжатых составных стержней с болтовыми соединениями, а также сжато-изогнутые сварные элементы в местах воздействия сосредоточенных сил должны быть подкреплены поперечными диафрагмами.
В сварных коробчатых и Н-образных элементах ферм диафрагмы рекомендуется приваривать или прикреплять на болтах только к вертикальным листам с зазором между диафрагмами и горизонтальными листами не менее 50 мм.
11.5.4 Непосредственная приварка вспомогательных деталей (кронштейнов, элементов перил и тротуаров, навигационных знаков и сигналов и т.д.) к элементам главных балок и балок проезжей части, а также к элементам решетчатых главных ферм не допускается.
Приваривать эти детали допускается только к поперечным ребрам жесткости; в пролетных строениях северного исполнения указанные детали следует крепить на болтах.
Распорки и диагонали продольных связей, распорки поперечных связей не допускается приваривать непосредственно к поясам балок пролетных строений автодорожных и пешеходных мостов.
11.5.5 Для обеспечения плавных (радиусом не менее 15 мм) переходов от металла шва к основному металлу в растянутых и сжато-растянутых на стадии эксплуатации поперечных стыках деталей и элементов пролетных строений должна предусматриваться механическая обработка; это требование распространяется на концевые участки поперечных стыковых швов стенки балок на протяжении 40% высоты растянутой зоны, но не менее 200 мм, считая от растянутого пояса.
11.5.6 Для автодорожных и пешеходных пролетных строений при прикреплении горизонтальных фасонок продольных связей непосредственно встык к поясам сплошных балок необходимо предусматривать полное проплавление всей толщины фасонки и возможность его неразрушающего контроля.
Необходимо также предусматривать на концах фасонки выкружки и механическую обработку их вместе с концами швов для получения плавных переходов (радиусом не менее 60 мм) к поясу.
11.5.7 Для автодорожных и пешеходных пролетных строений при крестовой и полураскосной системах продольных связей, расположенных в уровне, смещенном относительно поясов, для фасонок, привариваемых к стенке втавр, необходимо предусматривать мероприятия по снижению концентрации напряжений, указанные в
11.5.6. При этом для обеспечения устойчивости и устранения колебаний пояса относительно стенки должны быть поставлены на стенке балки поперечные ребра жесткости в плоскости каждого узла связей.
В случае если указанные фасонки пересекаются с поперечными ребрами жесткости, фасонки и их швы следует устраивать непрерывными; приварку элементов поперечного ребра жесткости к фасонке надлежит осуществлять угловыми швами с отношением катетов 1:2 (больший катет - на фасонке) и плавным переходом к основному металлу фасонки.
11.5.8 В цельносварных автодорожных и пешеходных пролетных строениях элементы связей, присоединяемые внахлестку к фасонкам, следует прикреплять двумя фланговыми и двумя лобовыми швами согласно
11.4.1; элементы связей из парных уголков, симметрично расположенных относительно фасонки, допускается прикреплять двумя фланговыми и одним лобовым (торцевым) швами.
Расстояния между швами прикреплений элементов связей и швами, прикрепляющими фасонки к стенке балки, а также к поперечным ребрам жесткости, должны быть не менее 60 мм.
11.5.9 В случае приварки вертикальных диафрагм, ребер жесткости и фасонок к растянутому поясу в пролете поперечные швы, прикрепляющие указанные элементы, следует предусматривать с отношением катетов 1:2 (больший катет - на поясе) и плавным переходом к основному металлу.
11.6 Конструкция планок и перфорированных листов
11.6.1 В сварных коробчатых и Н-образных элементах главных ферм автодорожных и пешеходных мостов допускается применение только сплошных или перфорированных горизонтальных листов. Соединительные планки допускаются только в тех элементах автодорожных и пешеходных мостов, для которых при расчете по выносливости соединение планок с основными частями сечения возможно осуществить без специальных мер по снижению концентрации напряжений.
11.6.2 Длина промежуточных планок
ls должна быть не менее

, где

- расстояние между рядами болтов (или сварными швами) прикрепления планки.
Концевые планки в сжатых и сжато-растянутых элементах следует делать в 1,7 раза длиннее промежуточных, а в растянутых - в 1,3 раза. Концевые планки следует располагать возможно ближе к узлу.
В сварных коробчатых и Н-образных элементах допускается выход перфорации на торец элемента.
11.6.3 Число болтов для прикрепления одной стороны планки должно быть не менее:
- 4 - для элементов, работающих на временную нагрузку;
- 3 - для элементов, работающих только на постоянную нагрузку;
- 2 - для нерабочих элементов.
11.7 Особенности конструкции болтосварных пролетных строений
11.7.1 В болтосварных пролетных строениях северного исполнения допускается применение стыковых, а в конструкциях обычного исполнения - также и накладных компенсаторов ослабления сечения элементов болтовыми отверстиями.
На концах стыковых компенсаторов ослабления (у стыка) необходимо предусматривать скосы и механическую обработку соединений в соответствии с указаниями
11.2.6 и
11.5.5.
В накладных компенсаторах ослабления следует предусматривать скосы по ширине с уклоном 1:1. Для косых швов следует принимать отношение катетов 1:2. Для обеспечения плавных (радиусом не менее 5 мм) переходов от шва к основному металлу необходимо предусматривать обработку косых швов на конце компенсатора. Косые швы и участки продольных швов до первого ряда отверстий должны обеспечивать полное прикрепление площади компенсатора. Ширина компенсатора из стали марок 15ХСНД и 10ХСНД должна быть соответственно не более 44 и 38 его толщин. При большей требуемой ширине необходимо применять два раздельных компенсатора, расстояние между их швами должно быть не менее 60 мм. Расстояние от центра болта до края компенсатора должно быть не менее удвоенного диаметра отверстия под болт.
11.7.2 Для решетчатых болтосварных ферм автодорожных и пешеходных пролетных строений обычного исполнения допускается применение узловых фасонок-вставок и фасонок-приставок, соединяемых с поясами с помощью сварки (рисунок 11.1).
1 - фасонка-вставка; 2 - фасонка-приставка
Рисунок 11.1 - Типы узлов главной фермы
Узловые фасонки-вставки и фасонки-приставки должны иметь плавные переходы (радиусом не менее 250 мм) к поясу. Расстояние от стыка пояса и фасонки-вставки до начала выкружки в ней должно приниматься не менее 70 мм. Для стыковых швов фасонок-вставок растянутого и сжато-растянутого поясов должна предусматриваться механическая обработка, отвечающая требованиям
11.5.5.
У фасонок-приставок надлежит предусматривать полное проплавление всей толщины и возможность его неразрушающего контроля, а также механическую обработку концов фасонок.
11.7.3 Поясные листы продольных и поперечных балок могут иметь длину, меньшую, чем длина стенки, при условии устройства на углах стенки прямоугольных скругленных (радиусом 15 мм) вырезов, вертикальная грань которых совпадает с торцом обрываемого поясного листа.
Подобные вырезы должны иметь также фасонки, привариваемые к верхнему поясу поперечной балки для увеличения высоты ее стенки в зоне прикрепления к главным фермам. Конструкция сопряжения конца фасонки с поясом поперечной балки должна отвечать требованиям
11.5.6 и
11.5.7.
При необходимости устройства обрыва пояса двутавровой балки без образования вышеуказанного выреза в стенке необходимо предусматривать следующее: пояс к месту обрыва должен быть скошен по толщине до 6 мм с уклоном 1:8 и по ширине до 32 мм с уклоном 1:4; прикрепление к стенке балки на протяжении скошенной части пояса должно иметь полное проплавление.
Следует предусматривать также механическую обработку конца пояса для получения плавных переходов (радиусом не менее 60 мм) к стенке (в обеих плоскостях).
11.8 Конструкция ортотропной плиты проезжей части
11.8.1 В автодорожных и пешеходных мостах конструкцию ортотропной плиты следует предусматривать одноярусной, состоящей из листа настила, подкрепленного продольными и поперечными ребрами, вертикальные стенки которых приварены к листу настила двусторонними угловыми швами, а трапецеидальные (корытные) - односторонними.
Монтажные блоки ортотропной плиты должны быть ориентированы длинной стороной вдоль оси моста.
11.8.2 Толщину листа настила в автодорожных мостах tmin следует принимать не менее 14 мм и не менее значения, полученного по формуле

, (11.1)
где a - расстояние между продольными ребрами;
P - максимальное давление на лист от сосредоточенной нагрузки, определяемое с учетом его распределения конструкцией полотна;

- значения коэффициента, равные 7,8 или 15,6, принимаемые для конструкций ортотропных плит с продольными ребрами соответственно полосового и фасонного профилей.
11.8.3 В автодорожных и пешеходных мостах монтажные стыки листа настила верхней ортотропной плиты следует, как правило, предусматривать сварными.
В нижних ортотропных плитах при обосновании расчетом допускается применение монтажных продольных сварных стыков горизонтального листа с неполным заполнением разделки.
Присоединение листов настила ортотропных плит проезжей части к поясам главных балок или ферм сварными швами внахлестку не допускается.
11.8.4 В ортотропных плитах следует применять продольные ребра трапецеидально-коробчатого и открытого сечений из полос. Допускаются ребра из неравнобоких уголков и сварных тавров.
Расстояние между осями стенок продольных ребер должно быть не более 300 мм. Непровар сварного соединения корыт трапецеидально-коробчатого сечения с листом настила должен быть в пределах от 1 до 2 мм.
11.8.5 Монтажные стыки продольных ребер верхних ортотропных плит следует предусматривать, как правило, фрикционными с выполнением отверстий в заводских условиях.
Монтажные стыки продольных ребер нижних ортотропных плит в автодорожных и пешеходных мостах следует предусматривать, как правило, сварными.
Применение сварных монтажных стыков ортотропной плиты с неприваренными к листу настила вставками продольных ребер и обрывом ребер в зоне монтажного стыка блоков пролетного строения не допускается.
11.8.6 Монтажные стыки стенки и пояса поперечных ребер таврового сечения следует, как правило, предусматривать фрикционными на высокопрочных болтах с выполнением отверстий на полный диаметр в заводских условиях.
11.8.7 В автодорожных и пешеходных мостах продольные ребра следует пропускать сквозь вырезы в стенках поперечных балок и приваривать на заводе угловыми швами к вертикальным граням выреза в стенке или в опорной пластинке (в соответствии с приложением В,
таблица В.1, пункты 17, перечисления а),
б). Приварка торцов продольных ребер к стенкам поперечных ребер в автодорожных и пешеходных мостах не допускается.
11.8.8 Прикрепление поперечных ребер верхней ортотропной плиты к ребрам жесткости или специальным фасонкам главных балок, как правило, следует осуществлять фрикционным на высокопрочных болтах.
(обязательное)
РАСЧЕТ ПО УСТОЙЧИВОСТИ ПОЛОК И СТЕНОК ЭЛЕМЕНТОВ,
ПОДКРЕПЛЕННЫХ РЕБРАМИ ЖЕСТКОСТИ
А.1 Прямоугольные отсеки полок и стенок (далее - пластинки), заключенные между подкрепляющими их по контуру ортогональными деталями (ребра жесткости, полка для стенки и стенка для полки), следует рассчитывать по устойчивости. При этом расчетными размерами и параметрами проверяемой пластинки являются:
a - длина пластинки, равная расстоянию между осями поперечных ребер жесткости;
hef - расчетная ширина пластинки, равная:
при отсутствии продольных ребер жесткости у прокатного или сварного элемента - расстоянию между осями поясов hw или осями стенок коробчатого сечения bf;
то же, у составного элемента с болтовыми соединениями - расстоянию между ближайшими рисками поясных уголков;
при наличии продольных ребер жесткости у сварного или прокатного элемента - расстоянию от оси пояса (стенки) до оси крайнего продольного ребра жесткости h1 и hn или расстоянию между осями соседних продольных ребер жесткости hi (i = 2; 3; 4; 5 ...);
то же, у составного элемента с болтовыми соединениями - расстоянию от оси крайнего ребра жесткости до ближайшей риски поясного уголка h1 и hn или расстоянию между осями соседних продольных ребер жесткости hi (i = 2; 3; 4; 5...);
t - толщина проверяемой пластинки;
t1,
b1 - толщина и расчетная ширина листа, ортогонального к проверяемой пластинке; в расчетную ширину этого листа в двутавровом сечении следует включать (в каждую сторону от проверяемой пластинки) участок листа шириной

, но не более ширины свеса, а в коробчатом сечении - участок шириной

, но не более половины расстояния между стенками коробки (здесь коэффициенты

и

следует определять по
9.3.4.10);

,
где

и

определяют по
А.2;

;

,
где

- коэффициент, принимаемый по таблице А.1.
Таблица А.1
Характер закрепления сжатого пояса конструкцией проезжей части | Значение коэффициента  |
Пояс свободен | 0,8 |
К поясу приварен внахлестку или встык лист ортотропной плиты | 2,0 |
К поясу с помощью закладных деталей и высокопрочных болтов присоединена сборная проезжая часть сталежелезобетонного пролетного строения | |
К поясу непрерывно по всей длине пролета присоединена проезжая часть сталежелезобетонного пролетного строения с помощью высокопрочных болтов и подливки цементно-песчаным раствором | |
<1> Значения коэффициента  следует применять при проверке устойчивости полок и стенок стальных элементов, подкрепленных ребрами жесткости, в сталежелезобетонных пролетных строениях проектируемых по ГОСТ Р 59624. |
В случае если проверяемая пластинка примыкает к пакету из двух листов и более, за t1 и b1 принимают толщину и расчетную ширину первого листа пакета, непосредственно примыкающего к указанной пластинке.
А.2 Расчет по устойчивости пластинок следует выполнять с учетом всех компонентов напряженного состояния -

,

,

.
Напряжения

,

,

следует вычислять в предположении упругой работы материала по сечению брутто без учета коэффициентов продольного изгиба.
Максимальное

и минимальное

продольные нормальные напряжения (положительные при сжатии) по продольным границам пластинки вычисляют по формулам:

; (А.1)

, (А.2)
где ymax, ymin - максимальное и минимальное расстояния от нейтральной оси до продольной границы пластинки (с учетом знака);
Mm - среднее значение изгибающего момента в пределах отсека при

; если длина отсека больше его расчетной ширины, то
Mm следует вычислять для более напряженного участка длиной, равной ширине отсека; если в пределах отсека момент меняет знак, то
Mm следует вычислять на участке отсека с моментом одного знака.
Среднее касательное напряжение

следует определять:
- при отсутствии продольных ребер жесткости - по формуле

, (А.3)
где

; (А.4)
- при наличии продольных ребер жесткости - по формуле

, (А.5)
Qm - среднее значение поперечной силы в пределах отсека, определяемое так же, как и Mm;

,

- значения касательных напряжений на продольных границах пластинки, определяемые по
формуле (А.3) при замене
Smax соответствующими значениями
S.
Поперечное нормальное напряжение

(положительное при сжатии), действующее на внешнюю кромку крайней пластинки, следует определять:
- от подвижной нагрузки - по формуле

, (А.6)
где P - распределенное давление на внешнюю кромку крайней пластинки;
- от сосредоточенного давления силы F - по формуле

, (А.7)
где lef - условная длина распределения нагрузки.
Условную длину распределения нагрузки lef следует определять при передаче нагрузки непосредственно через пояс балки - по формуле

, (А.8)
где c - коэффициент, принимаемый равным:
- 3,25 - для сварных и прокатных элементов;
- 3,75 - для элементов с соединениями на высокопрочных болтах;
- 4,5 - для элементов с соединениями на обычных болтах;
I - момент инерции пояса балки; при передаче нагрузки от колеса через пояс балки - равной 2h (где h - расстояние от поверхности <*> колеса до кромки пластинки), но не более расстояния между соседними колесами (осями одиночной тележки, одиночной или специальной нагрузок).
--------------------------------
<*> Длина соприкасания колеса с покрытием проезжей части, принимаемая 20 см, при ширине колеса 60 и 80 см соответственно - см. ГОСТ 33390-2015 [
рисунки 1а), б), в)].
Поперечные нормальные напряжения

на границе второй и последующих пластинок следует определять, как правило, по теории упругости.
Поперечные нормальные напряжения допускается определять:
- при нагрузке, распределенной по всей длине пластинки, - по формуле

; (А.9)
- при сосредоточенной нагрузке - по формуле

, (А.10)
где
где h0 - часть высоты стенки, равная расстоянию от оси нагруженного пояса в сварных и прокатных балках или от ближайшей риски поясного уголка в балках с болтовыми соединениями до границы проверяемой пластинки;
hw - полная высота стенки.
А.3 Критические напряжения

,

,

и приведенные критические напряжения

,

,

следует определять в предположении действия только одного из рассматриваемых напряжений

,

,

.
Приведенные критические напряжения

,

,

в общем случае вычисляют в предположении неограниченной упругости материала на основе теории устойчивости первого рода (бифуркация форм равновесия) для пластинчатых систем.
Значения приводимых в
таблицах А.2,
А.4 -
А.13 параметров для определения критических напряжений в пластинках допускается находить по линейной интерполяции.
А.4 Расчет по устойчивости стенки сплошных изгибаемых элементов, имеющей только поперечные ребра жесткости, следует выполнять по формуле

, (А.11)
где

,

- критические нормальные напряжения соответственно продольное и поперечное;

- критическое касательное напряжение;

,

,

- напряжения, определяемые по
А.2;

- коэффициент, вводимый при расчете автодорожных мостов при

.
| 0 | 0,5 | 1,0 | 1,5 | 2,0 | 3,0 | 4,0 |
| 1,00 | 1,05 | 1,10 | 1,15 | 1,20 | 1,30 | 1,40 |
| | ИС МЕГАНОРМ: примечание. В официальном тексте документа, видимо, допущена опечатка: имеется в виду п. А.4.2, а не п. А.4.3. | |
Критические напряжения

,

,

следует определять по формулам
таблицы А.3 в зависимости от приведенных критических напряжений

,

,

, вычисляемых по
А.4.1 -
А.4.3. При этом

определяется по формулам для

с подстановкой в них соотношений:

.
Класс прочности стали | Интервал значений  , МПа | Формулы <1> для определения  и  |
С325 - С345 | 0 - 207 | |
207 - 524 | |
Св. 524 | |
С390 | 0 - 229 | |
229 - 591 | |
Св. 591 | |
<1> При определении поперечных нормальных критических напряжений в формулах заменяют  на  и  на  . Примечание - m - коэффициент условий работы, принимаемый по таблице 11. |
А.4.1 Приведенное критическое продольное нормальное напряжение для пластинок стенки изгибаемого элемента вычисляют по формуле

, (А.12)
где

- коэффициент упругого защемления стенки, принимаемый для элементов с болтовыми соединениями равным 1,4, для сварных элементов - по
таблице А.4;
| 0,25 | 0,5 | 1,0 | 2,0 | 4,0 | 10,0 | Св. 10 |
| 1,21 | 1,33 | 1,46 | 1,55 | 1,60 | 1,63 | 1,65 |
| Значение коэффициента  при  |
0,4 | 0,5 | 0,6 | 0,67 | 0,75 | 0,8 | 0,9 | 1,0 | 1,5 | 2 и более |
0 | 8,41 | 6,25 | 5,14 | 4,75 | 4,36 | 4,2 | 4,04 | 4,0 | 4,34 | 4,0 |
0,67 | 10,8 | 8,0 | 7,1 | 6,6 | 6,1 | 6,0 | 5,9 | 5,8 | 6,1 | 5,8 |
0,80 | 13,3 | 9,6 | 8,3 | 7,7 | 7,1 | 6,9 | 6,7 | 6,6 | 7,1 | 6,6 |
1,00 | 15,1 | 110 | 9,7 | 9,0 | 8,4 | 8,1 | 7,9 | 7,8 | 8,4 | 7,8 |
1,33 | 18,7 | 14,2 | 12,9 | 12,0 | 11,0 | 11,2 | 11,1 | 11,0 | 11,5 | 11,0 |
2,00 | 29,1 | 25,6 | 24,1 | 23,9 | 24,1 | 24,4 | 25,6 | 24,1 | 24,1 | 23,9 |
3,00 | 54,3 | 54,5 | 58,0 | 53,8 | 53,8 | 53,8 | 53,8 | 53,8 | 53,8 | 53,8 |
4,00 | 95,7 | 95,7 | 95,7 | 95,7 | 95,7 | 95,7 | 95,7 | 95,7 | 95,7 | 95,7 |
Примечание - Коэффициент  определяют по А.1. |
А.4.2 Приведенное критическое поперечное нормальное напряжение

для пластинок стенки изгибаемого элемента вычисляют по формуле

, (А.13)
где

- коэффициент, принимаемый равным единице при нагрузке, распределенной по всей длине пластинки, и по
таблице А.6 - при сосредоточенной нагрузке;

- коэффициент упругого защемления стенки, принимаемый по
таблице А.7;
| Значение коэффициента  при  |
0,10 | 0,11 | 0,12 | 0,13 | 0,14 | 0,15 | 0,16 | 0,18 | 0,20 | 0,25 | 0,30 | 0,35 |
0,5 | 1,70 | 1,67 | 1,65 | 1,63 | 1,61 | 1,60 | 1,60 | 1,60 | 1,60 | 1,60 | 1,60 | 1,60 |
0,6 | 1,98 | 1,93 | 1,89 | 1,85 | 1,82 | 1,80 | 1,79 | 1,78 | 1,76 | 1,72 | 1,71 | 1,69 |
0,7 | 2,23 | 2,17 | 2,11 | 2,06 | 2,02 | 1,98 | 1,96 | 1,93 | 1,89 | 1,82 | 1,79 | 1,76 |
0,8 | 2,43 | 2,35 | 2,28 | 2,22 | 2,17 | 2,12 | 2,10 | 2,05 | 2,01 | 1,91 | 1,86 | 0,82 |
0,9 | 2,61 | 2,51 | 2,43 | 2,36 | 2,30 | 2,24 | 2,21 | 2,16 | 2,11 | 1,98 | 1,92 | 1,87 |
1,0 | 2,74 | 2,64 | 2,55 | 2,47 | 2,40 | 2,34 | 2,31 | 2,24 | 2,17 | 2,04 | 1,97 | 0,91 |
1,2 | 2,79 | 2,68 | 2,59 | 2,51 | 2,43 | 2,37 | 2,33 | 2,26 | 2,19 | 2,05 | 1,98 | 1,91 |
1,4 | 2,84 | 2,73 | 2,63 | 2,54 | 2,46 | 2,39 | 2,35 | 2,28 | 2,21 | 2,05 | 1,98 | 1,91 |
1,5 | 2,86 | 2,75 | 2,65 | 2,56 | 2,48 | 2,41 | 2,37 | 2,30 | 2,22 | 2,07 | 1,99 | 1,91 |
2,0 и более | 2,86 | 2,75 | 2,65 | 2,55 | 2,47 | 2,40 | 2,36 | 2,28 | 2,20 | 2,05 | 1,96 | 1,88 |
Примечания 1 Коэффициент  определяют по А.1. 2 В таблице А.6 обозначено:  . |
| Значение коэффициента  при  |
0,4 | 0,6 | 0,8 | 1,0 | 1,5 | 2,0 и более |
0,25 | 1,19 | 1,19 | 1,20 | 1,20 | 1,19 | 1,18 |
0,5 | 1,24 | 1,29 | 1,30 | 1,32 | 1,32 | 1,32 |
1,0 | 1,28 | 1,36 | 1,41 | 1,47 | 1,52 | 1,56 |
4,0 | 1,32 | 1,45 | 1,57 | 1,73 | 1,97 | 2,21 |
10 и более | 1,34 | 1,49 | 1,65 | 1,88 | 2,51 | 2,95 |
| z | | z |
0,4 | 4,88 | 1,2 | 6,87 |
0,5 | 5,12 | 1,4 | 7,69 |
0,6 | 5,37 | 1,6 | 8,69 |
0,7 | 5,59 | 1,8 | 9,86 |
0,8 | 5,80 | 2,05 | 11,21 |
1,0 | 6,26 | 2,5 и более | 15,28 |
А.5 Приведенное критическое касательное напряжение

для пластинок стенок изгибаемого элемента вычисляют по формуле

, (А.14)
где d - меньшая сторона отсека (a или hef);

- коэффициент, принимаемый равным:
-

при
a >
hef,
-

при
a <
hef;

- коэффициент упругого защемления стенки, принимаемый равным единице для элементов с болтовыми соединениями и по таблице А.9 - для сварных элементов.
Таблица А.9
| Значение коэффициента  при  |
0,5 | 0,67 | 1,0 | 2,0 | 2,5 и более |
0,25 | 1,014 | 1,063 | 1,166 | 1,170 | 1,192 |
0,5 | 1,016 | 1,075 | 1,214 | 1,260 | 1,300 |
1,0 | 1,017 | 1,081 | 1,252 | 1,358 | 1,416 |
2,0 | 1,018 | 1,085 | 1,275 | 1,481 | 1,516 |
5,0 | 1,018 | 1,088 | 1,292 | 1,496 | 1,602 |
10,0 | 1,018 | 1,088 | 1,298 | 1,524 | 1,636 |
Св. 10 | 1,018 | 1,089 | 1,303 | 1,552 | 1,680 |
А.6 Расчет по устойчивости пластинок стенки сплошных изгибаемых элементов, имеющих поперечные ребра и одно продольное ребро в сжатой зоне, следует выполнять:
первой пластинки - между сжатым поясом и продольным ребром - по формуле

, (А.15)

,

,

- напряжения, определяемые по
А.2;

,

,

- критические напряжения, определяемые по
А.4;
второй пластинки - между растянутым поясом и продольным ребром - по
формуле (А.11), принимая при этом

.
А.6.1 Приведенное критическое продольное нормальное напряжение

следует определять по
формуле (А.12), при этом коэффициент упругого защемления

следует принимать:
а) первой пластинки:
1) 1,3 - элементов с болтовыми соединениями;
2) 1,35 - таких же и сварных элементов при объединении с железобетонной плитой; прочих сварных элементов - по
таблице А.10;
б) второй пластинки равным 1,0.
| 0,5 | 1,0 | 2,0 | 5,0 | 10 и более |
| 1,16 | 1,22 | 1,27 | 1,31 | 1,35 |
А.6.2 Приведенное критическое поперечное нормальное напряжение

в первой пластинке вычисляют по формуле

, (А.16)
где i - коэффициент, принимаемый равным:
1,0 при

,
2,0 при

;

- коэффициент упругого защемления, принимаемый по таблице А.11 для элементов, объединенных с железобетонной плитой, и для балок с болтовыми соединениями, по
таблице А.12 - для сварных балок.
Таблица А.11
| 0,5 | 0,8 | 1,0 | 1,5 | 2,0 и более |
| 1,07 | 1,18 | 1,31 | 1,52 | 1,62 |
| Значение коэффициента  при  |
0,5 | 0,6 | 0,9 | 1,0 | 1,5 | 2,0 | 2,5 | 3,0 |
2 | 1,06 | 1,07 | 1,13 | 1,17 | 1,31 | 1,32 | 1,29 | 1,25 |
4 | 1,06 | 1,07 | 1,14 | 1,19 | 1,38 | 1,44 | 1,43 | 1,39 |
Приведенное критическое поперечное нормальное напряжение

при воздействии сосредоточенной нагрузки, когда действующие напряжения определяют по
формуле (А.7), следует вычислять по
формуле (А.16) с умножением на коэффициент 1,55; если при этом
a > 2·
h1 + 2·
lef, то надлежит принимать

.
Приведенное критическое поперечное нормальное напряжение

во второй пластинке вычисляют по
формуле (А.13), при этом следует принимать:

;
| | ИС МЕГАНОРМ: примечание. В официальном тексте документа, видимо, допущена опечатка: имеется в виду таблица А.8, а не таблица X.8. | |
А.6.3 Приведенное критическое касательное напряжение

следует определять по
формуле (А.14), при этом для первой пластинки вместо коэффициента защемления

должен быть принят коэффициент

, для второй пластинки

.
А.7 Расчет по устойчивости пластинок стенки сплошных изгибаемых элементов, имеющих поперечные ребра и несколько продольных ребер жесткости, следует выполнять:
- для последующих сжатых пластинок - по формулам для первой пластинки, принимая коэффициент защемления

;
Расчет по устойчивости пластинки растянутой зоны стенки следует выполнять по формуле

, (А.17)
где

,

- критические поперечное нормальное и касательное напряжения, определяемые по

,

согласно указаниям
А.4, при этом приведенное критическое поперечное нормальное напряжение

следует определять по формуле

, (А.18)
где

- коэффициент, принимаемый по таблице А.13.
Тип пластинки | Значения коэффициента  при a/ hef |
0,4 | 0,5 | 0,6 | 0,7 | 0,8 | 1,0 | 1,5 | 2,0 |
Примыкающая к растянутому поясу | 1240 | 1380 | 1520 | 1650 | 1820 | 2240 | 3860 | 6300 |
Промежуточная | 920 | 970 | 1020 | 1060 | 1100 | 1190 | 1530 | 2130 |
Примечание - a и hef следует определять по А.1. |
Приведенное критическое касательное напряжение

следует определять:
- для пластинки, примыкающей к растянутому поясу, - по формуле

, (А.19)
- для промежуточной растянутой пластинки - по формуле

, (А.20)
где d - меньшая сторона отсека (a или hef);

- коэффициент, принимаемый равным:

при
a >
hef,

при
a <
hef.
А.8 Расчет по устойчивости пластинок стенки сплошных сжато-изгибаемых элементов (балки жесткости пролетного строения распорной системы, арки или пилона) при сжатии сечения по всей высоте следует выполнять по формуле

, (А.21)
где

- максимальное продольное нормальное напряжение на границе пластинки от продольной силы
N и изгибающего момента
Mm, принимаемого в соответствии с
А.2;

,

- поперечное нормальное и среднее касательное напряжения, определяемые согласно
А.2;

,

,

- критические напряжения, определяемые по

,

,

согласно
А.4.
При действии на части высоты сечения растягивающих напряжений расчет следует выполнять как для стенки сплошных изгибаемых элементов по
А.4 -
А.6.
(обязательное)
КОЭФФИЦИЕНТЫ ДЛЯ РАСЧЕТА ПО УСТОЙЧИВОСТИ СТЕРЖНЕЙ И БАЛОК
Б.1 Коэффициенты

,

,

для расчета по устойчивости стержней и балок из стали с классами прочности С325 - С345 и С390 по
ГОСТ 6713,
ГОСТ 19281 и
ГОСТ Р 55374 при приведенном относительном эксцентриситете
eef приведены в таблицах Б.1 и
Б.2 соответственно.
| Коэффициенты  ,  ,  для расчета по устойчивости стержней и балок из стали с классами прочности С325 - С345 при приведенном относительном эксцентриситете eef |
0 | 0,10 | 0,25 | 0,50 | 0,75 | 1,00 | 1,5 | 2,00 | 2,50 | 3,00 | 3,50 | 4,00 | 5,00 |
0 | 0,93 | 0,86 | 0,78 | 0,69 | 0,62 | 0,54 | 0,44 | 0,34 | 0,28 | 0,24 | 0,22 | 0,20 | 0,17 |
10 | 0,92 | 0,84 | 0,77 | 0,68 | 0,60 | 0,52 | 0,43 | 0,34 | 0,28 | 0,24 | 0,22 | 0,20 | 0,17 |
20 | 0,90 | 0,83 | 0,76 | 0,66 | 0,58 | 0,51 | 0,41 | 0,33 | 0,28 | 0,24 | 0,22 | 0,20 | 0,17 |
30 | 0,88 | 0,81 | 0,73 | 0,63 | 0,56 (0,55) | 0,49 (0,48) | 0,40 (0,39) | 0,32 | 0,27 | 0,24 | 0,21 | 0,19 | 0,16 |
40 | 0,85 (0,84) | 0,77 (0,76) | 0,69 (0,68) | 0,59 (0,58) | 0,52 (0,51) | 0,46 (0,45) | 0,38 (0,37) | 0,31 | 0,26 | 0,23 | 0,21 | 0,19 | 0,16 |
50 | 0,80 (0,78) | 0,72 (0,70) | 0,64 (0,62) | 0,54 (0,52) | 0,48 (0,46) | 0,43 (0,42) | 0,36 (0,35) | 0,30 | 0,25 | 0,22 | 0,21 | 0,19 | 0,16 |
60 | 0,74 (0,71) | 0,66 (0,63) | 0,58 (0,56) | 0,48 (0,46) | 0,43 (0,41) | 0,39 (0,38) | 0,33 (0,32) | 0,28 | 0,25 | 0,22 | 0,2 | 0,18 | 0,15 |
70 | 0,67 (0,63) | 0,58 (0,55) | 0,51 (0,49) | 0,43 (0,41) | 0,39 (0,37) | 0,35 (0,34) | 0,32 (0,31) | 0,27 | 0,23 | 0,21 | 0,2 | 0,18 | 0,15 |
80 | 0,58 (0,53) | 0,50 (0,46) | 0,45 (0,42) | 0,38 (0,35) | 0,35 (0,33) | 0,32 (0,31) | 0,30 (0,29) | 0,25 | 0,22 | 0,20 | 0,18 | 0,17 | 0,14 |
90 | 0,48 (0,43) | 0,43 (0,39) | 0,40 (0,37) | 0,34 (0,31) | 0,31 (0,29) | 0,29 (0,28) | 0,27 (0,26) | 0,23 | 0,21 | 0,19 | 0,18 | 0,16 | 0,14 |
100 | 0,40 (0,36) | 0,38 (0,34) | 0,35 (0,32) | 0,31 (0,29) | 0,28 (0,26) | 0,26 (0,25) | 0,25 (0,24) | 0,21 | 0,19 | 0,18 | 0,17 | 0,16 | 0,13 |
110 | 0,35 (0,32) | 0,33 (0,30) | 0,31 (0,29) | 0,28 (0,26) | 0,25 (0,24) | 0,23 (0,22) | 0,23 (0,22) | 0,20 | 0,19 | 0,17 | 0,16 | 0,15 | 0,13 |
120 | 0,30 (0,28) | 0,29 (0,27) | 0,27 (0,26) | 0,25 (0,24) | 0,23 (0,22) | 0,22 (0,21) | 0,21 (0,20) | 0,18 | 0,17 | 0,16 | 0,15 | 0,14 | 0,12 |
130 | 0,27 (0,25) | 0,25 (0,24) | 0,24 (0,23) | 0,22 (0,21) | 0,21 (0,20) | 0,19 (0,18) | 0,19 (0,18) | 0,17 | 0,16 | 0,15 | 0,14 | 0,13 | 0,12 |
140 | 0,24 (0,23) | 0,23 (0,22) | 0,22 (0,21) | 0,20 (0,19) | 0,19 (0,18) | 0,18 (0,17) | 0,17 (0,16) | 0,16 | 0,15 | 0,14 | 0,13 | 0,13 | 0,11 |
150 | 0,22 | 0,21 | 0,20 | 0,18 | 0,17 | 0,17 | 0,15 | 0,14 | 0,15 | 0,13 | 0,12 | 0,11 | 0,10 |
160 | 0,20 | 0,19 | 0,18 | 0,17 | 0,16 | 0,15 | 0,14 | 0,14 | 0,13 | 0,12 | 0,12 | 0,11 | 0,10 |
170 | 0,18 | 0,17 | 0,16 | 0,15 | 0,14 | 0,14 | 0,13 | 0,12 | 0,12 | 0,11 | 0,11 | 0,10 | 0,09 |
180 | 0,16 | 0,16 | 0,15 | 0,14 | 0,3 | 0,13 | 0,12 | 0,12 | 0,11 | 0,11 | 0,10 | 0,10 | 0,09 |
190 | 0,15 | 0,14 | 0,13 | 0,13 | 0,12 | 0,12 | 0,11 | 0,10 | 0,10 | 0,10 | 0,09 | 0,09 | 0,08 |
200 | 0,13 | 0,13 | 0,12 | 0,12 | 0,11 | 0,10 | 0,10 | 0,09 | 0,09 | 0,09 | 0,08 | 0,08 | 0,08 |
Примечание - Для прокатных двутавров с параллельными гранями полок и сварных элементов двутаврового и Н-образного сечений коэффициенты  ,  ,  по настоящему приложению применяют при собственных остаточных сжимающих напряжениях на кромках полок не более 49 МПа. Для элементов указанного типа с собственными остаточными сжимающими напряжениями на кромках полок свыше 49 МПа при расчете по устойчивости в плоскости полок принимают  ,  ,  , указанные в скобках. |
| Коэффициенты  ,  ,  для расчета по устойчивости стержней и балок из стали с классом прочности С390 при приведенном относительном эксцентриситете eef |
0 | 0,10 | 0,25 | 0,50 | 0,75 | 1,00 | 1,5 | 2,00 | 2,50 | 3,00 | 3,50 | 4,00 | 5,00 |
0 | 0,93 | 0,86 | 0,78 | 0,70 | 0,63 | 0,55 | 0,45 | 0,35 | 0,29 | 0,25 | 0,23 | 0,21 | 0,18 |
10 | 0,92 | 0,84 | 0,77 | 0,68 | 0,60 | 0,52 | 0,43 | 0,34 | 0,28 | 0,24 | 0,22 | 0,20 | 0,17 |
20 | 0,90 | 0,83 | 0,76 | 0,66 | 0,58 | 0,51 | 0,41 | 0,33 | 0,28 | 0,24 | 0,22 | 0,20 | 0,17 |
30 | 0,88 | 0,81 | 0,73 | 0,63 | 0,55 | 0,48 | 0,39 | 0,32 | 0,27 | 0,24 | 0,21 | 0,19 | 0,16 |
40 | 0,84 (0,83) | 0,76 (0,75) | 0,68 (0,67) | 0,58 (0,57) | 0,51 (0,50) | 0,45 (0,44) | 0,37 (0,36) | 0,31 (0,30) | 0,26 (0,25) | 0,23 (0,22) | 0,21 (0,20) | 0,19 (0,18) | 0,16 (0,15) |
50 | 0,79 (0,77) | 0,71 (0,69) | 0,63 (0,61) | 0,53 (0,51) | 0,47 (0,45) | 0,43 (0,41) | 0,36 (0,34) | 0,31 (0,29) | 0,26 (0,24) | 0,23 (0,21) | 0,21 (0,20) | 0,19 (0,18) | 0,16 (0,15) |
60 | 0,73 (0,70) | 0,65 (0,62) | 0,58 (0,55) | 0,48 (0,45) | 0,43 (0,40) | 0,40 (0,37) | 0,34 (0,31) | 0,30 (0,27) | 0,26 (0,24) | 0,23 (0,21) | 0,21 (0,19) | 0,19 (0,17) | 0,16 (0,14) |
70 | 0,63 (0,59) | 0,55 (0,51) | 0,49 (0,45) | 0,41 (0,37) | 0,39 (0,33) | 0,36 (0,30) | 0,31 (0,25) | 0,29 (0,23) | 0,25 (0,19) | 0,23 (0,17) | 0,21 (0,16) | 0,19 (0,14) | 0,16 (0,11) |
80 | 0,53 (0,49) | 0,46 (0,42) | 0,42 (0,38) | 0,35 (0,31) | 0,33 (0,29) | 0,31 (0,27) | 0,26 (0,22) | 0,25 (0,21) | 0,22 (0,18) | 0,20 (0,16) | 0,18 (0,14) | 0,17 (0,13) | 0,14 (0,10) |
90 | 0,43 (0,38) | 0,39 (0,34) | 0,37 (0,32) | 0,31 (0,26) | 0,29 (0,24) | 0,28 (0,23) | 0,24 (0,19) | 0,23 (0,18) | 0,21 (0,16) | 0,19 (0,14) | 0,18 (0,13) | 0,17 (0,11) | 0,14 (0,09) |
100 | 0,35 (0,32) | 0,33 (0,30) | 0,31 (0,28) | 0,26 (0,23) | 0,25 (0,22) | 0,24 (0,21) | 0,21 (0,18) | 0,20 (0,17) | 0,19 (0,15) | 0,19 (0,14) | 0,18 (0,13) | 0,17 (0,11) | 0,14 (0,08) |
110 | 0,30 (0,27) | 0,28 (0,25) | 0,27 (0,24) | 0,23 (0,20) | 0,22 (0,19) | 0,20 (0,17) | 0,18 (0,15) | 0,18 (0,15) | 0,17 (0,14) | 0,15 (0,12) | 0,15 (0,11) | 0,15 (0,10) | 0,13 (0,08) |
120 | 0,26 (0,24) | 0,25 (0,23) | 0,24 (0,22) | 0,21 (0,19) | 0,20 (0,18) | 0,19 (0,17) | 0,16 (0,14) | 0,16 (0,14) | 0,15 (0,13) | 0,14 (0,12) | 0,13 (0,11) | 0,12 (0,10) | 0,10 (0,08) |
130 | 0,23 (0,21) | 0,22 (0,21) | 0,21 (0,19) | 0,19 (0,17) | 0,18 (0,16) | 0,17 (0,15) | 0,15 (0,13) | 0,15 (0,13) | 0,14 (0,12) | 0,13 (0,11) | 0,12 (0,11) | 0,11 (0,09) | 0,10 (0,08) |
140 | 0,21 (0,20) | 0,20 (0,19) | 0,19 (0,18) | 0,17 (0,16) | 0,16 (0,15) | 0,16 (0,15) | 0,14 (0,13) | 0,14 (0,13) | 0,13 (0,12) | 0,12 (0,11) | 0,11 (0,10) | 0,11 (0,09) | 0,09 (0,08) |
150 | 0,19 | 0,18 | 0,17 | 0,15 | 0,14 | 0,14 | 0,12 | 0,11 | 0,10 | 0,10 | 0,09 | 0,08 | 0,07 |
160 | 0,17 | 0,16 | 0,15 | 0,14 | 0,13 | 0,12 | 0,11 | 0,11 | 0,10 | 0,09 | 0,09 | 0,08 | 0,07 |
170 | 0,15 | 0,14 | 0,13 | 0,12 | 0,11 | 0,11 | 0,10 | 0,09 | 0,09 | 0,08 | 0,08 | 0,07 | 0,06 |
180 | 0,13 | 0,13 | 0,12 | 0,11 | 0,10 | 0,10 | 0,09 | 0,09 | 0,08 | 0,08 | 0,07 | 0,07 | 0,06 |
190 | 0,12 | 0,11 | 0,10 | 0,10 | 0,09 | 0,09 | 0,08 | 0,07 | 0,07 | 0,07 | 0,06 | 0,06 | 0,05 |
200 | 0,11 | 0,11 | 0,10 | 0,10 | 0,09 | 0,08 | 0,07 | 0,06 | 0,06 | 0,06 | 0,05 | 0,05 | 0,05 |
|
Б.2 Коэффициенты влияния формы сечения при определении приведенного относительного эксцентриситета по формуле

следует принимать по
СП 16.13330, вычисляя при этом условную гибкость

по формуле

, (Б.1)
где

- коэффициент, принимаемый по таблице Б.3 (при этом
m =
erel).
Класс прочности стали | Толщина проката, мм | Значение коэффициента  |
С325 - С345 | 8 - 32 | 0,0378 |
33 - 50 | 0,0372 |
С390 | 8 - 50 | 0,0412 |
(обязательное)
КОЭФФИЦИЕНТЫ ДЛЯ РАСЧЕТА НА ВЫНОСЛИВОСТЬ
Расположение расчетного сечения и характеристика стальной конструкции моста | Эффективный коэффициент концентрации напряжений  для стали класса прочности |
С325 - С390 |
1 По основному металлу после дробеметной очистки или с необработанной прокатной поверхностью у деталей с прокатными, обработанными фрезерованием, строжкой кромками в сечениях вне сварных швов и болтов | 1,0 |
2 То же, с кромками, обрезанными газовой машинной резкой: | |
а) нормального качества | 1,2 |
б) чистовой (смыв-процесс, резка с кислородной завесой, кислородно-плазменная) | 1,0 |
3 По основному металлу деталей в сечениях: | |
а) нетто по соединительным болтам составных элементов, а также у свободного отверстия (рисунок В.1) | 1,5 |
б) нетто у отверстия с поставленным в него высокопрочным болтом, затянутым на нормативное усилие (рисунок В.2) | 1,3 |
в) брутто по первому ряду высокопрочных болтов в прикреплении фасонки к нестыкуемым в данном узле поясам сплошных балок и элементам решетчатых ферм (рисунок В.3) | 1,5mf |
г) то же, в прикреплении к узлу или в стыке двухстенчатых элементов, у которых: | |
1) непосредственно перекрытая часть сечения (2 Av) составляет не менее, 80% общей площади сечения, в том числе при двусторонних накладках - 60% (рисунок В.4) | 1,6mf |
2) непосредственно перекрытая часть сечения (2 Av) составляет не менее, 60% общей площади сечения, в том числе при двусторонних накладках - 40% (рисунок В.4) | 1,7mf |
д) то же, в прикреплении к узлу или в стыке с односторонними накладками двухстенчатых элементов, у которых непосредственно перекрытая часть сечения (2 Av) составляет (рисунок В.5), общей площади сечения: | |
1) 60% и более | 1,8mf |
2) менее 60% | 1,9mf |
е) то же, в прикреплении к узлу или в стыке с односторонними накладками одностенчатых элементов (рисунок В.6) | 2,5mf |
4 По основному металлу деталей в сечении по границе необработанного стыкового шва с усилением, имеющим плавный переход (при стыковании листов одинаковой толщины и ширины) | 1,8 |
5 По основному металлу деталей в сечении по зоне перехода к стыковому шву, обработанному в этом месте абразивным кругом или фрезой при стыковании листов: | |
а) одинаковой толщины и ширины | 1,0 |
б) разной ширины в сечении по более узкому листу | 1,4 |
в) разной толщины в сечении по более тонкому листу | 1,5 |
г) разной толщины и ширины в сечении по листу с меньшей площадью | 1,9 |
6 По основному металлу элемента, прикрепляемого внахлестку, в сечении по границе лобового углового шва: | |
а) без механической обработки этого шва при отношении его катетов b:a >= 2 (при направлении большего катета b вдоль усилия) | 3,2 |
б) то же, при отношении катетов b:a = 1,5 | 3,7 |
в) при механической обработке этого шва и отношении катетов b:a >= 2 | 1,4 |
г) то же, при отношении катетов b:a = 1,5 | 1,9 |
7 По основному металлу элемента, прикрепляемого внахлестку фланговыми угловыми швами, в сечениях по концам этих швов независимо от их обработки | 4,4 |
8 По основному металлу растянутых поясов балок и элементов ферм в сечении по границе поперечного углового шва, прикрепляющего диафрагму или ребро жесткости: | |
а) без механической обработки шва, но при наличии плавного перехода от шва к основному металлу при сварке: | |
1) ручной | 1,8 |
2) полуавтоматической под флюсом | 1,5 |
б) при механической обработке шва фрезой | 1,1 |
9 Сечения составных элементов из листов, соединенных непрерывными продольными швами, сваренными автоматом, при действии усилия вдоль оси шва | 1,0 |
10 По основному металлу элементов в местах, где обрываются детали: | |
а) фасонки, привариваемые встык к кромкам поясов балок и ферм или втавр к стенкам и поясам балок, а также к элементам ферм, при плавной криволинейной форме и механической обработке перехода от фасонки к поясу, при полном проплавлении толщины фасонки | 1,4 |
б) оба пояса на стенке двутаврового сечения при условии постепенного уменьшения к месту обрыва ширины и толщины пояса, присоединения стенки к поясам на концевом участке с полным проплавлением и механической обработкой перехода поясов к стенке | 1,6 |
в) один лист пакета пояса сварной балки при уменьшении к месту обрыва толщины с уклоном не круче 1:8 и ширины листа со сведением ее на нет, с уклоном не круче 1:4 и с механической обработкой концов швов | 1,4 |
г) накладная деталь для усиления ослабленного отверстиями сечения элемента (компенсатор ослабления) при симметричном уменьшении ее ширины со сведением на нет, с уклоном не круче 1:1 и с механической обработкой концов швов | 1,4 |
11 По основному металлу элементов проезжей части в сечениях по крайнему ряду высокопрочных болтов в прикреплении: | |
а) диагонали продольных связей к нижнему поясу продольной балки, а также "рыбки" к нижнему поясу поперечной балки | 1,3 |
б) фасонки горизонтальной диафрагмы к нижнему поясу продольной балки | 1,5 |
в) "рыбки" к верхнему поясу продольной балки | 1,8 |
12 По оси стыкового шва с полным проплавлением корня шва: | |
а) при автоматической и полуавтоматической сварке под флюсом и ручной сварке, с контролем с помощью ультразвуковой дефектоскопии (УЗД) | 1,2 |
б) то же, без контроля УЗД | 1,4 |
13 По расчетному сечению углового шва: | |
а) лобового шва, выполненного сваркой: | |
1) ручной | 3,2 |
2) автоматической и полуавтоматической под флюсом | 2,4 |
б) флангового шва | 4,4 |
в) продольного соединительного шва составного элемента на участке его прикрепления к узлу при непосредственном перекрытии стыковыми накладками или узловыми фасонками лишь части сечения | 1,7 |
г) продольного поясного шва балки | 1,9 |
14 По основному металлу листа настила ортотропной плиты в зоне перехода к монтажному стыковому шву, выполненному односторонней автоматической сваркой под флюсом: | |
а) с наложением первого слоя ручной сваркой на флюсо-медной подкладке, без механической обработки усиления | 2,7 |
б) то же, с механической обработкой усиления с обратной стороны стыка | 1,8 |
в) на стеклотканево-медной подкладке с применением гранулированной металлохимической присадки, без механической обработки усиления | 1,65 |
15 По основному металлу листа настила ортотропной плиты в зоне перехода к потолочному угловому шву его монтажного соединения с поясом главной балки или фермы внахлестку: | |
а) выполненному ручной сваркой | 7,1 |
б) то же, с применением монтажной полосовой ставки, привариваемой встык к кромкам ортотропных плит, прикрепляемых внахлестку к поясу балки | 4,2 |
16 По основному металлу листа настила ортротропной плиты в зоне перехода к его монтажному стыковому соединению с поясом главной балки или фермы, выполненному односторонней автоматической сваркой под флюсом: | |
а) с наложением первого слоя ручной сваркой на флюсо-медной подкладке, с механической обработкой усиления с обратной стороны стыка, при одинаковой толщине стыкуемых листов | 1,8 |
б) то же, при разной толщине стыкуемых листов | 2,0 |
в) на стеклотканево-медной подкладке с применением металлохимической присадки, без механической обработки усиления, при одинаковой толщине стыкуемых листов | 1,65 |
г) то же, при разной толщине стыкуемых листов | 1,9 |
17 По основному металлу в зоне узла пересечения продольного ребра ортотропной плиты с поперечной балкой в одноярусной ортотропной плите: | |
а) продольное ребро проходит через V-образный вырез с выкружками на концах радиусом 15 - 20 мм в стенке поперечной балки и приварено к ней с одной стороны двумя угловыми швами | 2,4 |
б) продольное ребро проходит через вырез в стенке поперечной балки и в опорной пластинке и приварено к ней угловыми швами | 1,5 |
в) торец продольного ребра с уширением рукавом приварен к стенке поперечной балки и его нижнему горизонтальному листу по всему контуру примыкания или в соединении продольного ребра и поперечной балки одинаковой высоты, как показано на рисунке В.6 | 2,2 |
18 То же, в двухъярусной ортотропной плите: | |
а) тавровое продольное ребро соединяется с поперечным высокопрочными болтами через отверстия, просверленные в полке продольного и поясе поперечного ребер | 1,3 |
б) тавровое продольное ребро соединяется с поперечным специальными прижимами | 1,2 |
19 По основному металлу листа настила и продольных ребер ортотропной плиты по границе швов в зоне цельносварного монтажного поперечного стыка ортотропной плиты: | |
а) при совмещенных в одном сечении стыках листа настила и продольных ребер, без механической обработки усиления швов | 2,5 |
б) с разнесенными от стыка листа настила стыками продольного ребра, без механической обработки усиления швов | 2,4 |
в) с разнесенными от стыка листа настила обработанными стыками продольного ребра, с механической обработкой усиления с обратной стороны стыка листа настила | 2,3 |
20 То же, в комбинированном стыке - сварном листа настила, болтовом в ребрах: | |
а) с устройством прямоугольных скругленных вырезов в продольных ребрах, без полного проплавления их концевых участков, без механической обработки усиления стыкового шва листа настила | 3,1 |
б) с устройством обработанных полукруглых выкружек в продольных ребрах, с полным проплавлением их концевых участков, с механической обработкой усиления шва с обратной стороны стыка листа настила | 2,3 |
в) с обрывом продольных ребер вблизи стыка листа настила и постановкой вставки между их торцами, без механической обработки усиления стыкового шва листа настила | 2,1 |
Примечания 1 mf - коэффициент, учитывающий влияние сдвигов по контактам соединяемых элементов и принимаемый по таблице В.2 в зависимости от числа поперечных рядов болтов в соединении. 2 Параметр n определяется: - числом поперечных рядов болтов в прикреплении данного элемента к фасонке или стыковой накладке, когда этот элемент обрывается в данном узле [ пункт 3г), д), е)]; - общим числом поперечных рядов болтов в прикреплении фасонки к непрерывному элементу [пункт 3в)]. |

Рисунок В.1 - Расположение проверяемого на выносливость
расчетного сечения А-А по основному металлу в сечениях нетто
по соединительным болтам составных элементов,
а также у свободного отверстия
Рисунок В.2 - Расположение проверяемого на выносливость
расчетного сечения А-А по основному металлу в сечениях нетто
у отверстия с поставленным в него высокопрочным болтом,
затянутым на нормативное усилие
Рисунок В.3 - Расположение проверяемого на выносливость
расчетного сечения А-А по основному металлу в сечении брутто
по первому ряду высокопрочных болтов в прикреплении фасонки
к нестыкуемым в данном узле поясам сплошных балок
и элементам решетчатых форм
Рисунок В.4 - Расположение проверяемого на выносливость
расчетного сечения А-А по основному металлу в сечении брутто
по первому ряду высокопрочных болтов в прикреплении к узлу
или в стыке двухстенчатых элементов
Рисунок В.5 - Расположение проверяемого на выносливость
расчетного сечения А-А по основному металлу в сечении брутто
по первому ряду высокопрочных болтов в прикреплении к узлу
или в стыке двухстенчатых элементов с односторонними
накладками
Рисунок В.6 - Расположение проверяемого на выносливость
расчетного сечения А-А по основному металлу в сечении брутто
по первому ряду высокопрочных болтов в прикреплении к узлу
или в стыке одностенчатых элементов с односторонними
накладками
N | 1 - 3 | 4 - 6 | 7 - 8 | 9 - 10 | 11 - 15 | 16 и более |
mf | 1,00 | 1,05 | 1,12 | 1,16 | 1,20 | 1,23 |
(обязательное)
РАСЧЕТ ОРТОТРОПНОЙ ПЛИТЫ ПРОЕЗЖЕЙ ЧАСТИ
ПО ПРОЧНОСТИ И УСТОЙЧИВОСТИ
Г.1 Метод расчета ортотропной плиты должен учитывать совместную работу листа настила, подкрепляющих его ребер и главных балок.
Г.2 Ортотропную плиту допускается условно разделять на отдельные системы - продольные и поперечные ребра с соответствующими участками листа настила (рисунки Г.1,
Г.2).
1, 2, 3, ... i - номер поперечного ребра верхней плиты
Рисунок Г.1 - Коробчатое пролетное строение
1 - покрывающий лист; 2 - покрытие ортотропной плиты
толщиной h; 3 - продольные ребра;
4 - поперечные ребра (балки)
Рисунок Г.2 - Характерные элементы конструкции
Г.3 Изгибающие моменты в продольных ребрах ортотропной плиты
Msl вычисляют по формуле
Msl = M1 + M, (Г.1)
где
M1 - изгибающий момент в отдельном продольном ребре полного сечения, включающего прилегающие участки листа настила общей шириной, равной расстоянию
a между продольными ребрами [см.
рисунок Г.1в)], рассматриваемом как неразрезная балка на жестких опорах; момент определяется от нагрузки, расположенной непосредственно над этим ребром;
M - изгибающий момент в опорном сечении продольного ребра при изгибе ортотропной плиты между главными балками, определяемый при загружении поверхности влияния нагрузкой, прикладываемой в узлах пересечения продольных и поперечных ребер.
Нагрузку, передаваемую с продольных ребер на узлы пересечения с поперечными ребрами, следует определять с помощью линии влияния опорной реакции неразрезной многопролетной балки на жестких опорах.
В пределах крайних третей ширины ортотропной плиты следует принимать M = 0.
Ординаты поверхности влияния для вычисления изгибающего момента
M в опорном сечении продольного ребра над "средним" поперечным ребром 1
[рисунок Г.1а)] следует определять по формуле

, (Г.2)
где
M1i - принимаемые по
таблице Г.1 (с умножением на
l) ординаты линии влияния изгибающего момента в опорном сечении продольного ребра над "средним" поперечным ребром 1 при расположении нагрузки над поперечным ребром
i;
u - координата положения нагрузки от начала поперечного ребра.
Г.4 Для проверки прочности элементов ортотропной плиты необходимо получить в результате расчетов в предположении упругих деформаций стали в сечениях I, II, III и точках
A,
B,
C,
A1,
B1,
D1, указанных на
рисунке Г.1, нормальные напряжения в листе настила, продольных и поперечных ребрах, а также касательные напряжения в листе настила от изгиба ортотропной плиты между главными балками

,

,

и совместной работы ее с главными балками пролетного строения

,

,

.
Номер поперечного ребра i | Ординаты линии влияния  при z |
0 | 0,1 | 0,2 | 0,5 | 1,0 |
1 | 0 | 0,0507 | 0,0801 | 0,1305 | 0,1757 |
2 | 0 | -0,0281 | -0,0400 | -0,0516 | -0,0521 |
3 | 0 | 0,0025 | -0,0016 | -0,0166 | -0,0348 |
4 | 0 | 0,0003 | 0,0016 | 0,0015 | 0,0046 |
5 | 0 | -0,0001 | 0 | 0,0014 | 0,0025 |
6 | 0 | 0 | 0 | 0,0001 | 0,0012 |
Примечания 1 В таблице Г.1 принята следующая нумерация поперечных ребер i: ребра 2 - 6 расположены на расстоянии l одно от другого в каждую сторону от "среднего" поперечного ребра 1 [рисунок Г.1а)]. 2 В настоящей таблице применены следующие обозначения: z - параметр, характеризующий изгибную жесткость ортотропной плиты и определяемый по формуле  , где Ist - момент инерции полного сечения продольного ребра относительно горизонтальной оси y1 [рисунок Г.1в)]; a - расстояние между продольными ребрами; Is - момент инерции полного поперечного ребра (с прилегающим участком настила шириной 0,2 L, но не более l) относительно горизонтальной оси x1 [рисунок Г.1а)]. |
Г.5 Проверку прочности растянутого при изгибе ортотропной плиты крайнего нижнего волокна продольного ребра следует выполнять в зоне отрицательных моментов неразрезных главных балок в сечении I-I посередине пролета
l среднего продольного ребра [
рисунок Г.1 а) - точка A] по формулам:

, (Г.3)

, (Г.4)
где Ry, Ryn - расчетное и нормативное сопротивления металла продольного ребра;
m - коэффициент условий работы, принимаемый по
таблице 11;
m1,
m2 - коэффициенты условий работы, принимаемые по
таблице Г.2; для автодорожных мостов, для пешеходных мостов

; при этом проверка по
формуле (Г.4) не выполняется;

- коэффициент влияния собственных остаточных напряжений, принимаемый

- для крайнего нижнего волокна продольного ребра, выполненного из полосы, прокатного уголка или прокатного тавра, и

- для продольного ребра в виде сварного тавра;
| Значения коэффициентов m1 и m2 для полосовых ребер |
m1 | m2 |
0 | 0,55 | 1,40 |
0,25 | 0,40 | 1,50 |
0,45 | 0,25 | 1,60 |
0,65 | 0,13 | 1,60 |
Примечание - Коэффициенты m1 и m2 для промежуточных значений  следует определять линейной интерполяцией. |
Г.6 Проверку прочности сжатого при местном изгибе ортотропной плиты крайнего нижнего волокна продольного ребра следует выполнять в зоне положительных моментов неразрезных главных балок в опорном сечении II-II среднего продольного ребра [
рисунок Г.1а) - точка B] по формуле

, (Г.5)

- коэффициент влияния собственных остаточных напряжений, принимаемый

- для крайнего нижнего волокна ребра, выполненного из полосы, прокатного уголка или прокатного тавра, и

- для ребра в виде сварного тавра;
m - коэффициент условий работы, принимаемый по
таблице 11.
Г.7 Проверку прочности крайнего нижнего волокна поперечной балки следует выполнять в сечении III-III посередине ее пролета [
рисунок Г.1в) - точка C] по формуле

, (Г.6)
m - коэффициент условий работы, принимаемый по
таблице 11.
Г.8 Расчет по прочности листа настила следует выполнять в точках
A1,
B1,
D1 [см.
рисунок Г.1б)] по формулам:

, (Г.7)

, (Г.8)

;

;

;
m - коэффициент условий работы, принимаемый по
таблице 11;
m3 - коэффициент, равный 1,15 при

или 1,10 при

;
m4 - коэффициент условий работы, принимаемый равным 1,05 - при проверке прочности листа настила в точке A1 ортотропной плиты автодорожных мостов и 1,0 - пешеходных мостов.
При выполнении данной проверки допускается принимать в качестве расчетных загружения, при которых достигает максимального значения одно из действующих в данной точке ортотропной плиты напряжений

,

или

.
Г.9 Местная устойчивость листа настила между продольными ребрами, продольных полосовых ребер, свесов поясов тавровых продольных и поперечных ребер должна быть обеспечена согласно
9.3.3.2 и
9.3.4.2, а стенки тавровых ребер - в соответствии с
приложением А. При этом следует выбирать наиболее невыгодную комбинацию напряжений от изгиба ортотропной плиты между главными балками и совместной ее работы с главными балками пролетного строения.
Г.10 Общая устойчивость листа настила, подкрепленного продольными ребрами, должна быть обеспечена поперечными ребрами.
Момент инерции поперечных ребер
Is (по
Г.3) сжатой (сжато-изогнутой) ортотропной плиты следует определять по формуле

, (Г.9)

- коэффициент, принимаемый равным:
- 0,055 при k = 1;
- 0,150 при k = 2;
- 0,200 при k >= 3;
k - число продольных ребер рассчитываемой ортотропной плиты;
L - расстояние между стенками главных балок или центрами узлов геометрически неизменяемых поперечных связей;
l - расстояние между поперечными ребрами;
Isl - момент инерции полного сечения продольного ребра (по
Г.3);

- действующие напряжения в листе настила от совместной работы ортотропной плиты с главными балками пролетного строения, вычисленные в предположении упругих деформаций стали;

- напряжение, вычисленное по
таблице 18 по значению критического напряжения

.
| 0 | 0,1 | 0,2 | 0,3 | 0,4 | 0,5 | 0,6 | 0,7 | 0,8 | 0,9 | 0,95 | 1,0 |
| 0 | 0,016 | 0,053 | 0,115 | 0,205 | 0,320 | 0,462 | 0,646 | 0,872 | 1,192 | 1,470 | 2,025 |
Допускается также определять

по следующей формуле

. (Г.10)
Примечание - Коэффициент

определяют по формуле

, где

следует находить по таблице Г.4, при этом в
формуле (Г.12) lef =
l.
Гибкость  ,  | Коэффициент для классов прочности стали |
С325 - С345 | С390 |
0 | 1,00 | 1,00 |
41 | 1,00 | 1,00 |
44 | 1,00 | 0,96 |
50 | 0,92 | 0,88 |
53 | 0,87 | 0,83 |
60 | 0,76 | 0,72 |
70 | 0,64 | 0,59 |
80 | 0,56 | 0,49 |
90 | 0,50 | 0,43 |
100 | 0,44 | 0,38 |
110 | 0,39 | 0,33 |
120 | 0,34 | 0,28 |
130 | 0,30 | 0,25 |
140 | 0,26 | 0,22 |
150 | 0,23 | 0,20 |
160 | 0,21 | 0,17 |
170 | 0,19 | 0,16 |
180 | 0,17 | 0,14 |
190 | 0,15 | 0,13 |
200 | 0,14 | 011 |
Для сжатой ортотропной плиты, не воспринимающей местной нагрузки, в
формуле (Г.9) коэффициент следует принимать равным 2,025, что обеспечивает равенство расчетной длины
lef продольных ребер расстоянию между поперечными ребрами
l.
Г.11 Расчет по общей устойчивости ортотропной плиты в целом (сжатой и сжато-изогнутой) при обеспечении условия (Г.11) следует выполнять по формуле

, (Г.11)

- коэффициент продольного изгиба, принимаемый по
таблице Г.4 в зависимости от гибкости

;
m - коэффициент условий работы, принимаемый по
таблице 11.
Гибкость вычисляют по формуле

(Г.12)
где
lef - расчетная (свободная) длина продольных ребер, определяемая из выражения

. Коэффициент

находят из
таблицы Г.3 по значению

; (Г.13)
где

- расстояние между продольными ребрами;
th - толщина листа настила;

- коэффициент, принимаемый равным:
- для ортотропной плиты нижнего пояса - 1,0;
- для плиты верхнего пояса коробчатых главных балок - по
таблице Г.5;
A - площадь полного сечения продольного ребра;

(
It - момент инерции полного сечения продольного ребра при чистом кручении).
| Коэффициент  |
0 | 1,00 |
0,01 | 0,75 |
0,05 | 0,70 |
0,10 | 0,66 |
Примечание - f - прогиб продольного ребра между поперечными ребрами; i - радиус инерции полного сечения продольного ребра. |
Г.12 Тавровые продольные ребра [
рисунок Г.1в), г)] сжатой ортотропной плиты нижнего пояса коробчатых главных балок при изгибно-крутильной форме потери устойчивости следует рассчитывать по
формуле (Г.11), принимая коэффициент продольного изгиба

в зависимости от гибкости

.
Гибкость

вычисляют по формуле

, (Г.14)
e - расстояние от центра тяжести полки шириной
bf, толщиной
tf до центра тяжести таврового продольного ребра
[рисунок Г.1г)];
Iy, Iz - соответственно момент инерции сечения таврового продольного ребра относительно горизонтальной оси y и вертикальной оси z;

; (Г.15)

; (Г.16)
Ip = Iy + Iz + A·(hw - e)2; (Г.17)
A = bf·tf + hw·tw. (Г.18)
Для обеспечения местной устойчивости элементов таврового сечения продольного ребра толщина полки и стенки должна удовлетворять требованиям
9.3.3.2:
- при bf > 0,3hf продольное ребро полного сечения следует считать двутавром;
- при bf = 0 продольное ребро полного сечения следует считать тавром;
- при 0 < bf <= 0,3hf требования к толщине стенки определяются по линейной интерполяции между нормами для двутавра и тавра (bf = 0).
(обязательное)
ХАРАКТЕРНЫЕ КРИТИЧЕСКИЕ СЕЧЕНИЯ И ТОЧКИ
В ОРТОТРОПНОЙ ПЛИТЕ ПРИ РАСЧЕТЕ НА ВЫНОСЛИВОСТЬ
Д.1 Расчет на выносливость ортотропной плиты необходимо выполнить в зонах, указанных на
рисунке Д.1:
- A и D - по основному металлу листа настила в зоне продольных сварных швов и стыка поперечных балок;
- B - по основному металлу продольного ребра в зоне пересечения его с поперечной балкой;
- C - по основному металлу листа настила в зоне поперечных сварных швов и стыков продольных ребер;
- E - по основному металлу листа настила в местах продольных угловых швов прикрепления стенки главной балки и по металлу угловых швов прикрепления стенки главной балки к верхнему поясу;
- F - по основному металлу вертикального поперечного ребра жесткости в месте его приварки к верхнему продольному ребру жесткости главной балки.
Д.2 Эффективные коэффициенты концентрации напряжений в расчетах на выносливость следует принимать в соответствии с
приложением В.
Д.3 Для зоны B за расчетные необходимо принимать напряжения в нижней фибре продольного ребра только от местной нагрузки при коэффициенте асимметрии цикла переменных напряжений, равном нулю

.
1 - главная балка; 2 - поперечная балка;
3 - продольное ребро; 4 - лист
Рисунок Д.1 - Расположение зон ортотропной плиты,
рассчитываемых на выносливость
| | Безопасность автомобильных дорог |
| СТО-ГК "Трансстрой" - 012-2018 | Стальные конструкции мостов. Заводское изготовление |
| СТО-ГК "Трансстрой" - 005-2018 | Стальные конструкции мостов. Технология монтажной сварки |
| СТО 13657842-1-2009 (Изм. N 2) | Прокат конструкционный из низколегированной стали для мостостроения. Общие технические условия |
| СН 200-62 | Технические условия проектирования железнодорожных, автодорожных и городских мостов |
УДК 624.21.014.2:006.354 | |
Ключевые слова: автомобильные дороги общего пользования, мостовые сооружения, проектирование стальных элементов, автодорожные мосты, пролетные строения, расчеты, конструктивные требования |