Главная // Актуальные документы // Актуальные документы (обновление с 03.11.2025 по 29.11.2025) // ГОСТ (Государственный стандарт)СПРАВКА
Источник публикации
М.: ФГБУ "Институт стандартизации", 2025
Примечание к документу
Документ
вводится в действие с 01.01.2026.
Название документа
"ГОСТ 19231-2025. Межгосударственный стандарт. Плиты железобетонные для покрытия трамвайных путей. Технические условия"
(введен в действие Приказом Росстандарта от 30.09.2025 N 1132-ст)
"ГОСТ 19231-2025. Межгосударственный стандарт. Плиты железобетонные для покрытия трамвайных путей. Технические условия"
(введен в действие Приказом Росстандарта от 30.09.2025 N 1132-ст)
агентства по техническому
регулированию и метрологии
от 30 сентября 2025 г. N 1132-ст
МЕЖГОСУДАРСТВЕННЫЙ СТАНДАРТ
ПЛИТЫ ЖЕЛЕЗОБЕТОННЫЕ ДЛЯ ПОКРЫТИЯ ТРАМВАЙНЫХ ПУТЕЙ
ТЕХНИЧЕСКИЕ УСЛОВИЯ
Reinforced concrete slabs for tramway track pavements.
Specifications
ГОСТ 19231-2025
Дата введения
1 января 2026 года
Цели, основные принципы и общие правила проведения работ по межгосударственной стандартизации установлены
ГОСТ 1.0 "Межгосударственная система стандартизации. Основные положения" и
ГОСТ 1.2 "Межгосударственная система стандартизации. Стандарты межгосударственные, правила и рекомендации по межгосударственной стандартизации. Правила разработки, принятия, обновления и отмены"
1 РАЗРАБОТАН Акционерным обществом "Научно-исследовательский центр "Строительство" (АО "НИЦ "Строительство") - Научно-исследовательским, проектно-конструкторским и технологическим институтом бетона и железобетона им. А.А. Гвоздева (НИИЖБ им. А.А. Гвоздева)
2 ВНЕСЕН Техническим комитетом по стандартизации ТК 465 "Строительство"
3 ПРИНЯТ Межгосударственным советом по стандартизации, метрологии и сертификации (протокол от 29 августа 2025 г. N 188-П)
За принятие проголосовали:
Краткое наименование страны по МК (ИСО 3166) 004-97 | Код страны по МК (ИСО 3166) 004-97 | Сокращенное наименование национального органа по стандартизации |
Азербайджан | AZ | Азстандарт |
Армения | AM | ЗАО "Национальный орган по стандартизации и метрологии" Республики Армения |
Россия | RU | Росстандарт |
Узбекистан | UZ | Узбекское агентство по техническому регулированию |
4
Приказом Федерального агентства по техническому регулированию и метрологии от 30 сентября 2025 г. N 1132-ст межгосударственный стандарт ГОСТ 19231-2025 введен в действие в качестве национального стандарта Российской Федерации с 1 января 2026 г.
Информация о введении в действие (прекращении действия) настоящего стандарта и изменений к нему на территории указанных выше государств публикуется в указателях национальных стандартов, издаваемых в этих государствах, а также в сети Интернет на сайтах соответствующих национальных органов по стандартизации.
В случае пересмотра, изменения или отмены настоящего стандарта соответствующая информация будет опубликована на официальном интернет-сайте Межгосударственного совета по стандартизации, метрологии и сертификации в каталоге "Межгосударственные стандарты"
Настоящий стандарт распространяется на железобетонные плиты, изготовляемые из тяжелого бетона и предназначенные для устройства покрытий трамвайных путей колеи 1524 мм, строящихся и эксплуатируемых в районах со среднемесячной температурой наиболее холодного месяца до минус 20 °C включительно, и устанавливает требования к их изготовлению.
Плиты предназначены для укладки:
- на прямых участках пути и кривых радиусом 20 м и более с рельсами желобчатого и железнодорожного типов;
- в колее и на обочинах, а также в междупутьях шириной 3200, 3424, 3550, 3758 мм;
- на необособленном, обособленном и самостоятельном земляном полотне.
В настоящем стандарте использованы нормативные ссылки на следующие межгосударственные стандарты:
ГОСТ 5781 Сталь горячекатаная для армирования железобетонных конструкций. Технические условия
ГОСТ 6727 Проволока из низкоуглеродистой стали холоднотянутая для армирования железобетонных конструкций. Технические условия
ГОСТ 8267 Щебень и гравий из плотных пород для строительных работ. Технические условия
ГОСТ 8736 Песок для строительных работ. Технические условия
ГОСТ 8829 Изделия строительные железобетонные и бетонные заводского изготовления. Методы испытаний нагружением. Правила оценки прочности, жесткости и трещиностойкости
ГОСТ 10060 Бетоны. Методы определения морозостойкости
ГОСТ 10180 Бетоны. Методы определения прочности по контрольным образцам
ГОСТ 10922 <*> Арматурные и закладные изделия, их сварные, вязаные и механические соединения для железобетонных конструкций. Общие технические условия
--------------------------------
<*> В Российской Федерации действует
ГОСТ Р 57997-2017 "Арматурные и закладные изделия сварные, соединения сварные арматуры и закладных изделий железобетонных конструкций. Общие технические условия".
ГОСТ 12730.0 Бетоны. Общие требования к методам определения плотности, влажности, водопоглощения, пористости и водонепроницаемости
ГОСТ 13015 Изделия бетонные и железобетонные для строительства. Общие технические требования. Правила приемки, маркировки, транспортирования и хранения
ГОСТ 17624 Бетоны. Ультразвуковой метод определения прочности
ГОСТ 17625 Конструкция и изделия железобетонные. Радиационный метод определения толщины защитного слоя бетона, размеров и расположения арматуры
ГОСТ 18105 Бетоны. Правила контроля и оценки прочности
ГОСТ 22690 Бетоны. Определение прочности механическими методами неразрушающего контроля
ГОСТ 22904 Конструкции железобетонные. Магнитный метод определения толщины защитного слоя бетона и расположения арматуры
ГОСТ 23009 Конструкции и изделия бетонные и железобетонные сборные. Условные обозначения (марки)
ГОСТ 23732 Вода для бетонов и строительных растворов. Технические условия
ГОСТ 24211 Добавки для бетонов и строительных растворов. Общие технические условия
ГОСТ 25781 Формы стальные для изготовления железобетонных изделий. Технические условия
ГОСТ 26134 Бетоны. Ультразвуковой метод определения морозостойкости
ГОСТ 26433.0 <*> Система обеспечения точности геометрических параметров в строительстве. Правила выполнения измерений. Общие положения
--------------------------------
<*> В Российской Федерации действует
ГОСТ Р 58941-2020 "Система обеспечения точности геометрических параметров в строительстве. Правила выполнения измерений. Общие положения".
ГОСТ 26433.1 <**> Система обеспечения точности геометрических параметров в строительстве. Правила выполнения измерений. Элементы заводского изготовления
--------------------------------
<**> В Российской Федерации действует
ГОСТ Р 58939-2020 "Система обеспечения точности геометрических параметров в строительстве. Правила выполнения измерений. Элементы заводского изготовления".
ГОСТ 26633 Бетоны тяжелые и мелкозернистые. Технические условия
ГОСТ 30108 Материалы и изделия строительные. Определение удельной эффективной активности естественных радионуклидов
ГОСТ 31108 Цементы общестроительные. Технические условия
ГОСТ 31384 Защита бетонных и железобетонных конструкций от коррозии. Общие технические требования
ГОСТ 31424 Материалы строительные нерудные из отсевов дробления плотных горных пород при производстве щебня. Технические условия
ГОСТ 33174 Дороги автомобильные общего пользования. Цемент. Технические требования
ГОСТ 34028 Прокат арматурный для железобетонных конструкций. Технические условия
Примечание - При пользовании настоящим стандартом целесообразно проверить действие ссылочных стандартов и классификаторов на официальном интернет-сайте Межгосударственного совета по стандартизации, метрологии и сертификации (www.easc.by) или по указателям национальных стандартов, издаваемым в государствах, указанных в предисловии, или на официальных сайтах соответствующих национальных органов по стандартизации. Если на документ дана недатированная ссылка, то следует использовать документ, действующий на текущий момент, с учетом всех внесенных в него изменений. Если заменен ссылочный документ, на который дана датированная ссылка, то следует использовать указанную версию этого документа. Если после принятия настоящего стандарта в ссылочный документ, на который дана датированная ссылка, внесено изменение, затрагивающее положение, на которое дана ссылка, то это положение применяется без учета данного изменения. Если ссылочный документ отменен без замены, то положение, в котором дана ссылка на него, применяется в части, не затрагивающей эту ссылку.
В настоящем стандарте применены термины по
ГОСТ 13015,
ГОСТ 23009, а также следующие термины с соответствующими определениями:
3.1 трамвайный путь: Подсистема инфраструктуры наземного рельсового электротранспорта, включающая в себя верхнее строение пути, земляное полотно, водоотводные, водопропускные, противодеформационные, защитные и укрепительные сооружения земляного полотна, расположенные в полосе отвода, а также искусственные сооружения.
3.2 ширина междупутья: Расстояние между осями двух соседних трамвайных путей.
4.2 Марка плиты состоит из буквенно-цифровой группы, которая содержит обозначение типа плиты и ее номинальные размеры: длину и ширину в дециметрах (значения которых округляются до целого числа) и толщину в сантиметрах.
Пример условного обозначения (марки) плиты типа 1П шириной 1400 мм, длиной 2070 мм, толщиной 120 мм, предназначенной для укладки в колее и междупутье на прямых участках пути:
1П14.21.12 ГОСТ 19231-2025
То же, плиты типа 2П шириной 680 мм, длиной 1390 мм, толщиной 100 мм, предназначенной для укладки на обочине, и на кривых участках пути - в колее:
2П7.14.10 ГОСТ 19231-2025
То же, плиты типа 3П шириной 680 мм, длиной 740 мм, толщиной 80 мм, предназначенной для укладки на обочине, и на кривых участках пути - в междупутье:
3П7.7.8 ГОСТ 19231-2025
5 Форма и основные размеры
5.1 Плиты в зависимости от назначения подразделяют на типы:
1П - для путей с деревянными шпалами;
2П - для путей с железобетонными шпалами;
3П - для путей с деревянными и с железобетонными шпалами.
5.2 Плиты следует изготовлять в соответствии с требованиями настоящего стандарта, проектной и технологической документации, утвержденной в установленном порядке.
6.1 Плиты типов 1П и 2П толщиной 120 мм и типа 3П толщиной 80 мм следует рассчитывать на автомобильную нагрузку - АК-11,5, а типов 1П и 2П толщиной 100 мм - АК-10.
При расчете плит коэффициент динамичности следует принимать не менее 1,2.
Модуль деформации основания при расчете плит следует принимать - 50 МПа.
6.2 Плиты следует изготовлять в соответствии с требованиями настоящего стандарта и технологической документации, утвержденной в установленном порядке.
6.3 Плиты следует изготовлять в стальных формах, удовлетворяющих требованиям
ГОСТ 25781 и обеспечивающих соблюдение требований, установленных настоящим стандартом к качеству и точности изготовления плит.
6.4 Основные требования к бетону плит по видам в зависимости от назначения приведены в
таблице 1.
Таблица 1
Основные требования к бетону плит
Тип плиты | Класс по прочности на сжатие, не менее | Марка по морозостойкости, не менее | Марка по водонепроницаемости | Марка по истираемости |
1П, 2П, 3П | B30 | F2200 | W8 | G1 |
Примечание - Морозостойкость плит, эксплуатируемых при расчетных зимних температурах наружного воздуха ниже минус 20 °C до минус 40 °C, следует принимать F2300. |
6.5.1 Плиты следует изготовлять из тяжелого бетона, удовлетворяющего требованиям
ГОСТ 26633.
6.5.2 Прочность бетона следует определять по правилам
ГОСТ 18105.
6.5.3 Значение нормируемых показателей отпускной и проектной прочности бетона в элементах сборных конструкций следует назначать в соответствии с действующими нормативными документами.
6.5.4 Значение нормируемой отпускной прочности бетона следует принимать равным 70% класса бетона по прочности на сжатие. При поставке плит в холодный период года значение нормируемой отпускной прочности бетона может быть повышено, но не менее 90% класса по прочности на сжатие.
6.5.5 В сборных железобетонных изделиях должна быть обеспечена установленная проектом отпускная прочность бетона (прочность бетона при отправке изделия потребителю).
6.5.6 При наличии агрессивных сред (сульфаты, хлориды и другие) назначают дополнительные требования к бетону согласно
ГОСТ 31384.
6.5.7 Для приготовления бетонной смеси следует применять портландцемент на клинкере нормированного состава без минеральных добавок типа ЦЕМ 0, портландцемент с минеральными добавками до 5%, портландцемент для бетонов дорожных и аэродромных покрытий класса не ниже 42,5, содержащие в цементном клинкере трехкальциевого алюмината (C
3A) не более 7%, оксида магния (MgO) не более 5% щелочных оксидов в пересчете на Na
2O не более 0,8% массы цемента, отвечающие требованиям
ГОСТ 31108,
ГОСТ 33174 и других действующих нормативных документов.
6.5.8 В качестве мелкого заполнителя для бетона изделий используют природные, обогащенные и фракционированные, а также дробленые обогащенные пески по
ГОСТ 8736,
ГОСТ 31424, удовлетворяющие требованиям
ГОСТ 26633.
6.5.9 В качестве крупных заполнителей для бетонов следует использовать щебень, щебень из гравия и гравий из плотных горных пород по
ГОСТ 8267, удовлетворяющие требованиям
ГОСТ 26633.
Наибольший размер зерен крупного заполнителя - 20 мм.
6.5.10 Марка по прочности щебня, щебня из гравия и гравия из природного камня должна быть не ниже М800 для бетонов класса по прочности на сжатие B30.
6.5.11 Марка щебня по морозостойкости должна быть не ниже F200 и обеспечивать получение бетона проектной марки по морозостойкости.
6.5.12 Вяжущие и заполнители должны соответствовать требованиям
ГОСТ 30108 по показателю удельной эффективной активности естественных радионуклидов в соответствии с заказом.
6.5.13 Добавки, применяемые для приготовления бетонной смеси, должны соответствовать требованиям
ГОСТ 24211,
ГОСТ 26633 и обеспечивать получение бетона, удовлетворяющего требованиям по морозостойкости.
6.5.14 Вода для приготовления бетона - согласно
ГОСТ 23732.
6.5.15 Бетон плит не должен иметь водопоглощение более 5% по массе.
6.6 Арматурные изделия
6.6.1 Для монтажных петель следует применять стержневую горячекатаную гладкую арматуру из стали класса А240 по
ГОСТ 5781 марок ВСт3сп2 и ВСт3пс2 диаметром 6 - 12 мм. При расчетной зимней температуре ниже минус 40 °C для монтажных петель запрещается применение стали марки ВСт3пс2.
6.6.2 Армирование плит следует выполнять сварными сетками из стержневой и проволочной арматуры.
6.6.3 Марки арматурных сталей должны соответствовать установленным в проекте в зависимости от условий эксплуатации плит.
6.6.4 Арматура должна удовлетворять требованиям:
- стержневая класса А400, А500, В500 -
ГОСТ 34028 (в свариваемых арматурных изделиях - А500С);
6.6.5 Форма и размеры арматурных изделий плит должны соответствовать приведенным в
приложении Б.
6.6.6 Сварные арматурные изделия плит должны удовлетворять требованиям
ГОСТ 10922.
6.6.7 Схемы армирования плит и конструкции подъемных технологических петель к ним приведены в
приложении Б.
6.6.8 Величину защитного слоя бетона до арматуры следует принимать по действующей нормативно-технической документации.
6.6.9 Плиты следует изготовлять без подъемных технологических петель. Допускается изготовлять плиты с подъемными технологическими петлями, расположение которых должно соответствовать указанному на
рисунках А.1 -
А.5.
6.7 Поставку плит с отпускной прочностью бетона ниже прочности, соответствующей проектному классу бетона по прочности на сжатие, выполняют только при условии, что изготовитель гарантирует достижение бетоном прочности (определяемой по результатам испытаний контрольных образцов), соответствующей классу в возрасте 28 сут.
6.8 Точность изготовления плит
6.8.1 Отклонения фактических размеров плит и толщины защитного слоя бетона до арматуры от номинальных не должны превышать указанных в
таблице 2.
Таблица 2
Допускаемые отклонения размеров
Отклонение | Величина, мм |
По длине | +/- 5 |
По ширине | +/- 3 |
По толщине | +/- 5 |
По толщине защитного слоя бетона | +/- 3 |
Примечание - Для плит высшей категории качества предельные отклонения по толщине плит и толщине защитного слоя бетона не должны превышать +3 мм. |
6.8.2 Отклонение от прямолинейности (непрямолинейность) профиля рабочей поверхности и боковых граней плиты в любом сечении на всю длину плиты не должно превышать 3 мм.
6.8.3 Отклонение от плоскостности (неплоскостность) рабочей поверхности плиты не должно превышать 5 мм.
6.8.4 Разность длин диагоналей рабочей поверхности плиты не должна превышать 10 мм.
6.9 Качество поверхностей и внешний вид плит
6.9.1 Размеры раковин, местных наплывов и впадин на поверхностях плит и околов ребер бетона не должны превышать указанных в
таблице 3.
Таблица 3
Допускаемые размеры дефектов поверхности
Поверхность | Предельные размеры, мм |
раковин | местных наплывов (высота) и впадин (глубина) | околов бетона |
Диаметр | Глубина | Глубина | Длина на 1 м ребра |
Рабочая | 6 | 3 | 3 | 5 | 50 |
Нерабочая | 15 | 5 | 5 | 10 | 100 |
6.9.2 Трещины на поверхностях плит не допускаются. Местные поверхностные усадочные и технологические трещины шириной не более 0,1 мм и длиной не более 50 мм не являются основанием для браковки. При этом количество трещин не должно быть более пяти на 1,5 м2 поверхности плиты.
7.1 Плиты принимают:
- по данным документации входного контроля;
- по результатам операционного контроля - отпускной прочности, по соответствию арматурных и закладных изделий рабочим чертежам, по прочности сварных соединений;
- по результатам периодических испытаний - по показателям трещиностойкости плит; для плит, предназначенных для эксплуатации в условиях воздействия агрессивной среды;
- по морозостойкости, водонепроницаемости и водопоглощению бетона; по удельной эффективной активности естественных радионуклидов;
- по результатам приемо-сдаточных испытаний - по показателям прочности бетона (классу бетона по прочности на сжатие), по точности геометрических параметров, по толщине защитного слоя бетона до арматуры, по ширине раскрытия трещин, по внешнему виду и качеству бетонных поверхностей, по правильности нанесения маркировочных надписей.
7.2 Плиты следует принимать партиями в соответствии с требованиями
ГОСТ 13015 и настоящего стандарта.
7.3 Приемку плит по показателям прочности бетона (классу бетона по прочности на сжатие, отпускной прочности), соответствию схем армирования требованиям
приложения Б, прочности сварных соединений, толщины защитного слоя бетона до арматуры, точности геометрических параметров, качества поверхностей следует проводить по результатам приемо-сдаточных испытаний и контроля.
7.4 Приемку плит по показателям их прочности, трещиностойкости, морозостойкости, водонепроницаемости и водопоглощению бетона следует проводить по результатам периодических испытаний.
7.5 В случаях, если при проверке установлено, что отпускная прочность бетона плит не удовлетворяет требованиям, приведенным в
6.5, поставка плит потребителю не должна производиться до достижения бетоном плит прочности, соответствующей классу бетона по прочности на сжатие.
7.6 При приемке плит по показателям точности геометрических параметров, толщины защитного слоя бетона до арматуры и качества поверхностей, контролируемым путем измерений, следует применять выборочный одноступенчатый контроль.
7.7 Приемку плит по показателям, проверяемым путем осмотра:
- по наличию закладных изделий и монтажных петель;
- правильности нанесения маркировочных надписей и знаков;
- по наличию и качеству антикоррозионного покрытия, следует проводить путем сплошного контроля с отбраковкой конструкций с дефектами по указанным показателям.
7.8 Опытные подъемы плит для испытания качества монтажных петель и их заделки в бетон следует проводить перед началом массового изготовления плит с монтажными петлями и в дальнейшем - при изменении технологии изготовления, вида и качества применяемых материалов.
Испытанию подвергают не менее трех плит. После пяти подъемов при внешнем осмотре плиты на ней не должно быть признаков местного разрушения в зоне заделки петель.
Монтажная петля, заделанная в бетон плиты, должна выдерживать при опытных подъемах плиты нагрузку, превышающую нормативное усилие на петлю в три раза.
7.9 Требования к документу о качестве плит, поставляемых потребителю, следует предъявлять в соответствии с
ГОСТ 13015. Дополнительно в документе о качестве плит должна быть приведена марка бетона по морозостойкости, а для плит, предназначенных для эксплуатации в условиях воздействия агрессивной среды, - марка бетона по водонепроницаемости и допустимое водопоглощение бетона в процентах по массе (если эти показатели оговорены в заказе на изготовление плит).
7.10 Приемку плит следует проводить партиями в соответствии с требованиями
ГОСТ 13015 и настоящего стандарта. В состав партии включают плиты, последовательно изготовленные предприятием по одной технологии в течение не более одних суток из материалов одного вида.
Объем партии устанавливают по согласованию предприятия-изготовителя с потребителем, но не более 200 шт.
Перечень требований при приемке плит покрытий трамвайных путей приведен в
таблице 4.
Таблица 4
Требования при приемке плит
Наименование показателя | Приемо-сдаточные испытания | Периодические испытания | Объем выборки и (или) периодичность контроля | Обозначение нормативного документа |
Прочность бетона на сжатие | + | - | 100% постоянно | |
Соответствие рабочим чертежам по геометрическим размерам | + | - | 100% постоянно | |
Внешне-видовые характеристики | + | - | 100% постоянно | |
Трещиностойкость плит | - | + | Не менее 3 шт., не реже одного раза в полгода | |
Морозостойкость бетона | - | + | Не реже одного раза в год | |
Водонепроницаемость и водопоглощение бетона | - | + | Не реже одного раза в год | |
Прочность сварных соединений | + | - | 100% постоянно | |
Соответствие диаметра и количества арматурных стержней или проволок | + | - | 100% постоянно | |
Толщина защитного слоя | + | - | 100% постоянно | |
7.11 Приемку плит по прочности, жесткости и трещиностойкости осуществляют по комплексу нормируемых и проектных показателей в соответствии с требованиями
ГОСТ 13015.
Приемо-сдаточные испытания нагружением для проверки соответствия плит показателям по прочности, жесткости и трещиностойкости, предусмотренным в проектной документации на эти изделия, выполняют в соответствии с требованиями
ГОСТ 8829. Контрольные испытания нагружением проводят перед началом массового изготовления изделий, при внесении конструктивных изменений, изменении технологии изготовления, вида и качества применяемых материалов, а также периодически в соответствии с
ГОСТ 13015.
7.12 Периодические испытания бетона плит по показателям морозостойкости и водонепроницаемости проводят при освоении производства, изменении состава бетона, технологии изготовления, вида и качества материалов, а также не реже одного раза в 6 мес.
7.13 Периодические испытания по показателю удельной эффективной активности естественных радионуклидов в бетоне проводят при первичном подборе номинального состава бетона и при изменении качества применяемых материалов, когда удельная эффективная активность естественных радионуклидов в новых материалах превышает соответствующие характеристики материалов, применяемых ранее.
7.14 При приемке плит по показателям точности геометрических параметров, толщины защитного слоя бетона до арматуры, ширины раскрытия трещин, качества бетонных поверхностей следует применять выборочный одноступенчатый контроль.
8.1 Испытание плит по прочности и трещиностойкости
8.1.1 Испытание плит по прочности и трещиностойкости следует проводить нагружением по
ГОСТ 8829 с учетом требований настоящего стандарта.
а) для плит типов 1П и 3П
б) для плит типа 2П
1 - испытуемая плита; 2 - деревянные брусья сечением
100 x 100 мм; 3 - нагрузка на всю ширину плиты
Рисунок 1 - Схемы испытаний плит
Таблица 5
Длина плиты, мм | Расстояние (2a) между точками приложения нагрузки, мм, для плит типов |
1П и 3П | 2П |
2070 | 935 | 795 ----- 835 |
1860 | 830 | 690 ----- 730 |
1730 | 765 | 625 ----- 665 |
1510 | 655 | 515 ----- 555 |
1390 | 595 | 455 ----- 495 |
740 | 270 | 130 ----- 170 |
Примечание - Для плит типа 2П в числителе указано расстояние при x = 140 мм, в знаменателе - при x = 100 мм (где x - по таблице А.1). |
Таблица 6
Значения контрольных нагрузок
Марка плиты | Контрольная нагрузка (без учета собственного веса), кН, при проверке плит |
на прочность Pразр | на трещиностойкость Pконт |
1П14.15.12 | 134,43 | 81,69 |
1П14.15.10 | 89,65 | 54,68 |
1П14.17.12 | 120,62 | 72,71 |
1П14.17.10 | 76,69 | 45,70 |
1П14.19.12 | 108,79 | 65,12 |
1П14.19.10 | 69,78 | 41,23 |
1П14.21.12 | 101,50 | 60,23 |
1П14.21.10 | 60,51 | 35,15 |
1П7.14.12 | 136,68 | 83,28 |
1П7.14.10 | 99,65 | 60,49 |
2П14.15.12 | 173,42 | 106,32 |
2П14.15.10 | 107,13 | 65,15 |
2П14.17.12 | 150,06 | 91,44 |
2П14.17.10 | 89,55 | 53,92 |
2П14.19.12 | 133,31 | 80,79 |
2П14.19.10 | 80,59 | 48,13 |
2П14.21.12 | 121,94 | 73,80 |
2П14.21.10 | 68,92 | 40,54 |
2П7.14.12 | 183,95 | 114,13 |
2П7.14.10 | 123,47 | 76,39 |
3П7.7.8 | 130,58 | 81,24 |
Примечания 1 При испытании плит на трещиностойкость ширина раскрытия трещин должна быть не более 0,2 мм. 2 Контрольная нагрузка приведена без учета коэффициента надежности по назначению. Усилия, действующие на плиты, следует определять, применяя коэффициент надежности по назначению  в соответствии с правилами учета степени ответственности зданий и сооружений при проектировании конструкций. |
8.1.3 Испытание плит нагружением проводят после достижения бетоном плит прочности, соответствующей классу бетона по прочности на сжатие.
Допускается использовать для испытаний плиты с раковинами, местными наплывами и околами, размеры которых превышают допускаемые настоящим стандартом не более чем в два раза, и другими дефектами, не влияющими на прочность плит.
8.2 Прочность бетона на сжатие следует определять на серии образцов, изготовленных из бетонной смеси рабочего состава и хранившихся в условиях по
ГОСТ 10180.
Допускается определять фактическую прочность бетона плит ультразвуковым методом по
ГОСТ 17624 или приборами механического действия по
ГОСТ 22690, а также другими методами, предусмотренными действующими стандартами на методы испытаний бетона.
8.3 Морозостойкость бетона следует определять на серии образцов, изготовленных из бетонной смеси рабочего состава, по
ГОСТ 10060. При этом бетонные образцы перед испытанием должны быть насыщены 5%-ным раствором хлористого натрия и в таком же растворе должны оттаивать после каждого цикла замораживания.
8.4 Водонепроницаемость бетона следует определять на серии образцов, изготовленных из бетонной смеси рабочего состава, по
ГОСТ 12730.0 и
ГОСТ 12730.5.
8.5 Водопоглощение бетона плит следует определять по
ГОСТ 12730.0 и
ГОСТ 12730.3 на серии образцов, изготовленных из бетонной смеси рабочего состава.
8.6 Методы контроля и испытаний сварных арматурных изделий следует принимать по
ГОСТ 10922.
8.7 Методы контроля и испытаний исходных сырьевых материалов, применяемых для изготовления плит, должны соответствовать установленным государственными стандартами или техническими условиями на эти материалы.
8.8 Размеры, непрямолинейность, неплоскостность, толщину защитного слоя, качество бетонных поверхностей и внешний вид плит следует проверять методами, установленными
ГОСТ 13015.
8.9 Ширину раскрытия трещин следует измерять с помощью отсчетного микроскопа с ценой деления шкалы 0,05 мм и набора щупов.
9 Маркировка, транспортирование и хранение
9.1 Маркировочные надписи и знаки следует наносить на боковых гранях каждой плиты.
9.2 Транспортировать и хранить плиты следует в соответствии с требованиями
ГОСТ 13015 и настоящего стандарта.
9.3 Требования к документу о качестве плит, поставляемых потребителю, - по
ГОСТ 13015. При этом, кроме основных фактических показателей качества, в документе должны быть приведены: марка бетона по морозостойкости; марка бетона по водонепроницаемости; водопоглощение бетона.
По требованию потребителя в документе о качестве следует указывать результаты контрольных испытаний плит по прочности и трещиностойкости.
9.4 Хранение и транспортирование плит должно быть в рабочем (горизонтальном) положении.
9.5 Плиты следует хранить на складах грузоотправителей и грузополучателей в штабелях рассортированными по маркам и партиям.
Высота штабеля должна быть не более 1,5 м.
9.6 Нижний ряд плит в штабеле следует укладывать по плотному, тщательно выровненному основанию на подкладки, расположенные на расстоянии 0,25 длины плиты от каждого ее торца.
Толщина подкладок должна быть при грунтовом основании не менее 100 мм, при жестком основании - не менее 50 мм.
9.7 Плиты в штабеле и при транспортировании необходимо укладывать на поперечные прокладки толщиной не менее 25 мм, расположенные строго по вертикали одна над другой на расстоянии 0,25 длины плиты от каждого ее торца.
При этом следует обеспечивать возможность захвата каждой плиты краном и свободный подъем ее для погрузки на транспортные средства и монтажа.
9.8 Погрузку, транспортирование и разгрузку плит следует производить с соблюдением мер, исключающих возможность повреждения плит и транспортных средств.
Не допускается:
- разгрузка плит сбрасыванием;
- захват плит за подъемные технологические петли при погрузке, разгрузке и монтаже.
9.9 Высоту штабеля плит при транспортировании следует устанавливать в зависимости от грузоподъемности транспортных средств и допускаемых габаритов.
9.10 Плиты следует транспортировать автомобильным или железнодорожным транспортом в рабочем положении (лицевой поверхностью вверх) с надежным закреплением, предохраняющим плиты от смещения. Плиты при транспортировании не должны подвергаться ударам и толчкам.
9.11 Погрузку, крепление и транспортирование плит на открытом железнодорожном подвижном составе (полувагоны или платформы) следует осуществлять в соответствии с требованиями правил перевозок грузов и технических условий погрузки и крепления.
9.12 При погрузке, транспортировании, разгрузке и хранении плит следует соблюдать требования техники безопасности в соответствии с действующими нормами.
(обязательное)
ФОРМА И ОСНОВНЫЕ РАЗМЕРЫ ПЛИТ ДЛЯ ПОКРЫТИЙ ТРАМВАЙНЫХ ПУТЕЙ
Таблица А.1
Геометрические размеры плит
Марка плиты | Размеры плиты, мм | Привязочный размер петли z, мм | Нормативная нагрузка от автотранспорта |
Ширина B | Длина L | Толщина H | Скос |
x | y |
1П14.15.12 | 1400 | 1510 | 120 | - | - | 90 | АК-11,5 |
1П14.15.10 | 100 | АК-10 |
1П14.17.12 | 1730 | 120 | АК-11,5 |
1П14.17.10 | 100 | АК-10 |
1П14.19.12 | 1860 | 120 | АК-11,5 |
1П14.19.10 | 100 | АК-10 |
1П14.21.12 | 2070 | 120 | АК-11,5 |
1П14.21.10 | 100 | АК-10 |
| 680 | 1390 | 120 | 340 | АК-11,5 |
| 100 | АК-10 |
2П14.15.12 | 1400 | 1510 | 120 | 140 | 70 | 300 | АК-11,5 |
2П14.15.10 | 100 | 100 | 50 | АК-10 |
2П14.17.12 | 1730 | 120 | 140 | 70 | АК-11,5 |
2П14.17.10 | 100 | 100 | 50 | АК-10 |
2П14.19.12 | 1860 | 120 | 140 | 70 | АК-11,5 |
2П14.19.10 | 100 | 100 | 50 | АК-10 |
2П14.21.12 | 2070 | 120 | 140 | 70 | АК-11,5 |
2П14.21.10 | 100 | 100 | 50 | АК-10 |
| 680 | 1390 | 120 | 140 | 70 | 340 | АК-11,5 |
| 100 | 100 | 50 | АК-10 |
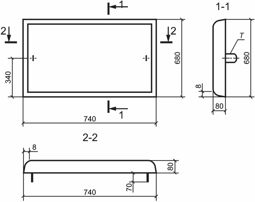
| 740 | 80 | - | - | АК-11,5 |
<*> Для укладки на прямых участках пути и кривых радиусом 20 м и более. |
Рисунок А.1 - Плита типа 1П - для укладки в колее
и междупутье на прямых участках пути
Рисунок А.2 - Плита типа 1П - для укладки на обочине
и кривых участках пути - в колее
Рисунок А.3 - Плита типа 2П - для укладки в колее
и междупутье на прямых участках пути
Рисунок А.4 - Плита типа 2П - для укладки на обочине
и кривых участках пути - в колее
Рисунок А.5 - Плита типа 3П
(обязательное)
АРМИРОВАНИЕ ПЛИТ ДЛЯ ПОКРЫТИЙ ТРАМВАЙНЫХ ПУТЕЙ
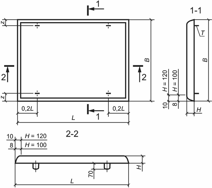
Рисунок Б.1 - Схема армирования плит типа 1П
Рисунок Б.2 - Схема армирования плит типа 2П
Рисунок Б.3 - Схема армирования плит типа 3П
Б.2 Форма и размеры монтажных петель должны соответствовать приведенным на
рисунке Б.5.
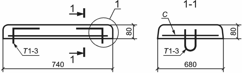
Рисунок Б.5 - Подъемные технологические петли Т1 и Т2
Б.3 Соединение стержней следует выполнять контактной точечной сваркой по
ГОСТ 14098.
С - верхние и нижние арматурные сетки;
Ф - стержни-фиксаторы;
Т1 и Т2 - подъемные технологические петли;
УДК 691.328-41:006.354 | |
Ключевые слова: бетон, железобетон, плита, трамвайный путь |