ИС МЕГАНОРМ: примечание. В официальном тексте документа, видимо, допущена опечатка: стандарт "Растворы строительные. Методы испытаний" имеет номер ГОСТ 5802-86, а не ГОСТ 5802-89. |
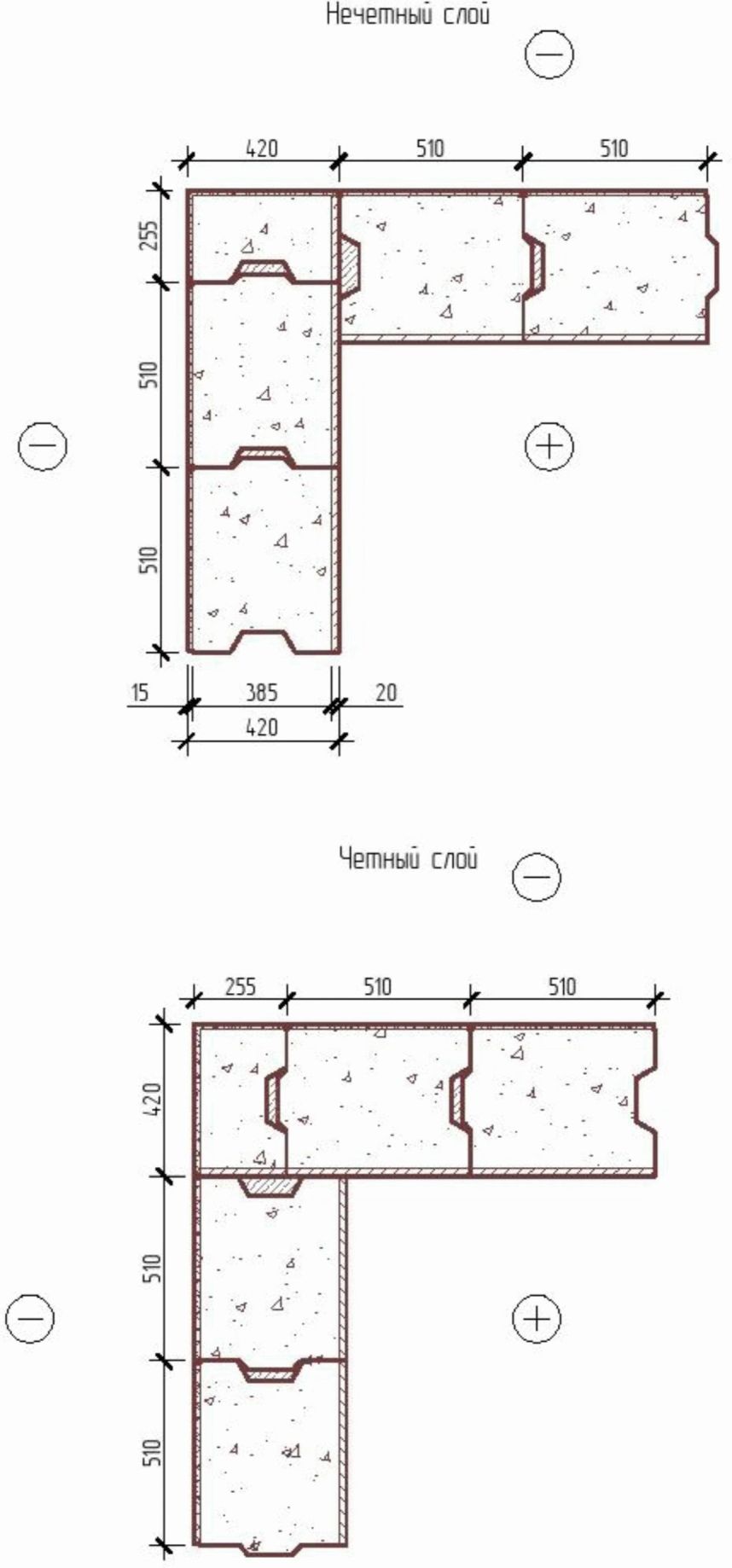
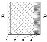
толщиной 190 мм с рассечками из минераловатных плит
в уровне перекрытий, под оконным проемом и над ним.
толщиной 150 мм с рассечками из минераловатных плит
в уровне перекрытий, под оконным проемом и над ним. В более высоких зданиях в качестве утеплителя применяют только минераловатные плиты
толщиной 150 мм.
толщиной 150 мм.
, прочностью R = 0,5 - 0,7 МПа;
, R = 0,7 - 2,5 МПа;
, R = 2,5 - 10,0 МПа.Наименование | Насыпная плотность, кг/м3 | Марка по насыпной плотности | Прочность, МПа | Марка по прочности, не менее | ||||
Керамзитовый гравий ![]() | Св. 100 до 150 | М150 | До 0,5 | П15 | ||||
" 150 " 200 | М200 | До 0,5 | П15 | |||||
" 200 " 250 | М250 | 0,5 - 0,7 | П25 | |||||
" 250 " 300 | М300 | 0,7 - 1,0 | П35 | |||||
" 300 " 350 | М350 | 1,0 - 1,5 | П50 | |||||
" 350 " 400 | М400 | 1,0 - 1,5 | П50 | |||||
" 400 " 450 | М450 | 1,5 - 2,0 | П75 | |||||
" 450 " 500 | М500 | 2,0 - 2,5 | П100 | |||||
" 500 " 600 | М600 | 2,5 - 3,3 | П125 | |||||
" 600 " 700 | М700 | 3,3 - 4,5 | П150 | |||||
" 700 " 800 | М800 | 4,5 - 5,5 | П200 | |||||
" 800 " 900 | М900 | 5,5 - 6,5 | П250 | |||||
" 900 " 1000 | М1000 | 6,5 - 8,0 | П300 | |||||
" 1000 " 1100 | М1100 | 8,0 - 10,0 | П350 | |||||
" 1100 " 1000 | М1200 | Более 10,0 | П400 | |||||
Керамзитовый щебень ![]() | Св. 100 до 150 | М150 | До 0,5 | П15 | ||||
" 150 " 200 | М200 | До 0,5 | П15 | |||||
" 200 " 250 | М250 | До 0,5 | П15 | |||||
" 250 " 300 | М300 | 0,5 - 0,6 | П35 | |||||
" 300 " 350 | М350 | 0,6 - 0,8 | П50 | |||||
" 350 " 400 | М400 | 0,6 - 0,8 | П50 | |||||
" 400 " 450 | М450 | 0,8 - 1,2 | П75 | |||||
" 450 " 500 | М500 | 1,2 - 1,6 | П100 | |||||
" 500 " 600 | М600 | 1,6 - 2,0 | П125 | |||||
" 600 " 700 | М700 | 2,0 - 3,0 | П150 | |||||
" 700 " 800 | М800 | 3,0 - 4,0 | П200 | |||||
" 800 " 900 | М900 | 4,0 - 5,0 | П250 | |||||
" 900 " 1000 | М1000 | 5,0 - 6,0 | П300 | |||||
" 1000 " 1100 | М1100 | 6,0 - 7,0 | П350 | |||||
| ||||||||
" 1100 " 1000 | М1200 | 7,0 - 8,0 | П400 | |||||
Наименование показателя | Значения показателя | ||||||||
Насыпная плотность, кг/м3 | 150 | 200 | 250 | 300 | 350 | 400 | 450 | 500 | 600 |
Коэффициент теплопроводности, Вт/(м·°C): | |||||||||
- в сухом состоянии | 0,08 | 0,090 | 0,099 | 0,108 | 0,115 | 0,12 | 0,13 | 0,14 | 0,14 |
- в условиях эксплуатации А | 0,09 | 0,10 | 0,11 | 0,12 | 0,125 | 0,13 | 0,14 | 0,15 | 0,17 |
- в условиях эксплуатации Б | 0,10 | 0,11 | 0,12 | 0,13 | 0,14 | 0,145 | 0,155 | 0,165 | 0,19 |
Удельная теплоемкость в сухом состоянии C0, кДж/(кг·°C) | 0,84 | ||||||||
Коэффициент паропроницаемости | 0,28 | 0,27 | 0,26 | 0,25 | 0,245 | 0,24 | 0,235 | 0,23 | 0,23 |
Коэффициент теплоусвоения при периоде 24 ч, Вт/(м2·ч): | |||||||||
- в условиях эксплуатации А (sа) | 1,1 | 1,16 | 1,22 | 1,56 | 1,72 | 1,87 | 2,06 | 2,25 | 2,62 |
- в условиях эксплуатации Б (sб) | 1,15 | 1,24 | 1,3 | 1,66 | 1,86 | 2,02 | 2,22 | 2,41 | 2,83 |
Расчетное массовое отношение влаги в материале, %: | |||||||||
- в условиях эксплуатации А | 2 | ||||||||
- в условиях эксплуатации Б | 3 | ||||||||
Наименование показателя | Единицы измерения | Допустимые значения |
Морозостойкость, не менее | Количество циклов | 15 |
Потеря массы, не более: | % по массе | |
- после 15 циклов попеременного замораживания и оттаивания | 8 | |
- после трех циклов в растворе сернистого натрия | 8 | |
Потеря массы, не более: | % по массе | |
- при кипячении | 5 | |
- при прокаливании | - | |
- при силикатном распаде | - | |
Содержание водорастворимых сернистых и сернокислых соединений в пересчете на SO3, не более | % по массе | 1 |
Коэффициент размягчения, не менее | - | 0,75 |
Содержание расколотых зерен, не более | % по массе | 15 |
Водопоглощение в течение 1 ч, не более: | % по массе | |
- до М400 | 30 | |
- от М450 до М600 | 25 | |
- для М700 и М1000 | 20 | |
Коэффициент формы зерен, не более | - | 1,5 |
Наименование показателя, ед. изм. | Значения показателя | ||||||||||||||
Средняя плотность, кг/м3 | 300 | 400 | 500 | 600 | 700 | 800 | 900 | 1000 | 1100 | 1200 | 1300 | 1400 | 1500 | 1600 | 1800 |
Коэффициент теплопроводности, Вт/(м·°C) | |||||||||||||||
- в сухом состоянии | 0,11 | 0,12 | 0,14 | 0,16 | 0,19 | 0,21 | 0,24 | 0,27 | 0,32 | 0,36 | 0,41 | 0,47 | 0,52 | 0,58 | 0,66 |
- в условиях эксплуатации А | 0,115 | 0,130 | 0,16 | 0,19 | 0,22 | 0,24 | 0,28 | 0,33 | 0,38 | 0,44 | 0,5 | 0,56 | 0,61 | 0,67 | 0,8 |
- в условиях эксплуатации Б | 0,140 | 0,170 | 0,22 | 0,25 | 0,28 | 0,31 | 0,36 | 0,41 | 0,46 | 0,52 | 0,58 | 0,65 | 0,72 | 0,79 | 0,92 |
Удельная теплоемкость в сухом состоянии C0, кДж/(кг·°C) | 0,84 | ||||||||||||||
Коэффициент паропроницаемости | 0,37 | 0,33 | 0,3 | 0,26 | 0,23 | 0,19 | 0,17 | 0,14 | 0,12 | 0,11 | 0,1 | 0,098 | 0,094 | 0,09 | 0,09 |
Коэффициент теплоусвоения при периоде 24 ч, Вт/(м2·ч): | |||||||||||||||
- в условиях эксплуатации А (sа) | 1,75 | 2,15 | 2,55 | 3,03 | 3,43 | 3,83 | 4,44 | 5,03 | 5,7 | 6,36 | 7,06 | 7,75 | 8,4 | 9,06 | 10,5 |
- в условиях эксплуатации Б (sб) | 2,22 | 2,72 | 3,25 | 3,78 | 4,27 | 4,77 | 5,45 | 6,13 | 6,85 | 7,57 | 8,4 | 9,14 | 9,96 | 10,77 | 12,33 |
Расчетное массовое отношение влаги в материале, %: | |||||||||||||||
- в условиях эксплуатации А | 5 | ||||||||||||||
- в условиях эксплуатации Б | 10 | ||||||||||||||
Наименование показателя, ед. изм. | Значения показателя | ||||||
Средняя плотность, кг/м3 | 400 | 500 | 600 | 700 | 800 | 9000 | 1000 |
Коэффициент теплопроводности, Вт/(м·°C) | |||||||
- в сухом состоянии | 0,11 | 0,12 | 0,13 | 0,15 | 0,17 | 0,20 | 0,23 |
- в условиях эксплуатации А | 0,12 | 0,14 | 0,16 | 0,19 | 0,21 | 0,24 | 0,27 |
- в условиях эксплуатации Б | 0,15 | 0,18 | 0,21 | 0,24 | 0,26 | 0,31 | 0,36 |
Удельная теплоемкость в сухом состоянии C0, кДж/(кг·°C) | 0,84 | ||||||
Коэффициент паропроницаемости | 0,275 | 0,245 | 0,215 | 0,195 | 0,185 | 0,165 | 0,125 |
Коэффициент теплоусвоения при периоде 24 ч, Вт/(м2·ч): | |||||||
- в условиях эксплуатации А (sа) | 2,03 | 2,36 | 2,86 | 2,99 | 3,36 | 3,87 | 4,58 |
- в условиях эксплуатации Б (sб) | 2,46 | 2,93 | 3,35 | 3,74 | 4,45 | 5,03 | 5,99 |
Расчетное массовое отношение влаги в материале, %: | |||||||
- в условиях эксплуатации А | 4 | ||||||
- в условиях эксплуатации Б | 8 | ||||||
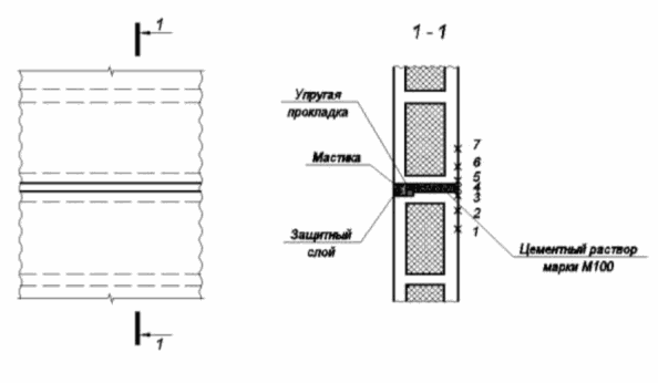
при температуре t = 20 °C. В воздушных порах передача тепла осуществляется путем теплопроводности, конвекции и излучения. Значение эквивалентного коэффициента теплопроводности воздушной прослойки определяют по формуле
Наименование показателя, ед. изм. | Значения показателя | |||||
Средняя плотность, кг/м3 | 200 | 300 | 400 | 500 | 600 | 700 |
Коэффициент теплопроводности, Вт/(м·°C): | ||||||
- в сухом состоянии | 0,085 | 0,095 | 0,105 | 0,120 | 0,130 | 0,135 |
- в условиях эксплуатации А | 0,095 | 0,105 | 0,115 | 0,130 | 0,140 | 0,145 |
- в условиях эксплуатации Б | 0,100 | 0,110 | 0,125 | 0,140 | 0,150 | 0,155 |
Удельная теплоемкость в сухом состоянии C0, кДж/(кг·°C) | 0,84 | |||||
Коэффициент паропроницаемости | 0,195 | 0,195 | 0,175 | 0,165 | 0,155 | 0,145 |
Коэффициент теплоусвоения при периоде 24 ч, Вт/(м2·ч): | ||||||
- в условиях эксплуатации А (sа) | 1,51 | 1,51 | 1,82 | 2,16 | 2,46 | 2,70 |
- в условиях эксплуатации Б (sб) | 1,62 | 1,62 | 1,99 | 2,36 | 2,68 | 2,94 |
Расчетное массовое отношение влаги в материале, %: | ||||||
- в условиях эксплуатации А | 3,5 | |||||
- в условиях эксплуатации Б | 6 | |||||
Наименование размера | Размеры, мм | ||
Блок для кладки стен и перегородок | Блок несъемной опалубки | Акустический блок | |
Длина | 600 | 1000 | 1000 |
Ширина | 400 | 380 | 250 |
Высота | 250 | 250 | 250 |

Типы блоков | Номинальные размеры блоков, мм | ||
Длина l | Ширина b | Высота h | |
Для кладки стен ![]() | 288 | 288 | 138 |
288 | 138 | 138 | |
390 (400) | 190 | 188 | |
288 (290) | 190 | 188 | |
510 | 90/120/249 | 188/288 | |
190 | 190 | 188 | |
90 | 190 | 188 | |
Для перегородок ![]() | 590 | 90/120 | 188 |
390 | 90 | 188 | |
190 | 90 | 188 | |
Наименование показателя, ед. изм. | Значения показателя | ||||||||||||||
Средняя плотность керамзитобетона, кг/м3 | 300 | 400 | 500 | 600 | 700 | 800 | 900 | 1000 | 1100 | 1200 | 1300 | 1400 | 1500 | 1600 | 1800 |
Средняя плотность блока с учетом пустот, кг/м3 | 251 | 287 | 358 | 430 | 501 | 573 | 645 | 716 | 788 | 860 | 931 | 1003 | 1075 | 1146 | 1289 |
Коэффициент теплопроводности, Вт/(м·°C): | |||||||||||||||
- в условиях эксплуатации А | 0,14 | 0,15 | 0,17 | 0,19 | 0,20 | 0,21 | 0,24 | 0,26 | 0,29 | 0,32 | 0,35 | 0,38 | 0,40 | 0,43 | 0,48 |
- в условиях эксплуатации Б | 0,16 | 0,18 | 0,21 | 0,23 | 0,24 | 0,25 | 0,28 | 0,31 | 0,33 | 0,36 | 0,39 | 0,42 | 0,45 | 0,48 | 0,53 |
Наименование показателя, ед. изм. | Значения показателя | ||||||||||||||
Средняя плотность керамзитобетона, кг/м3 | 300 | 400 | 500 | 600 | 700 | 800 | 900 | 1000 | 1100 | 1200 | 1300 | 1400 | 1500 | 1600 | 1800 |
Средняя плотность блока с учетом пустот, кг/м3 | 250 | 286 | 357 | 428 | 500 | 571 | 642 | 714 | 785 | 857 | 928 | 999 | 1071 | 1142 | 1285 |
Коэффициент теплопроводности, Вт/(м·°C): | |||||||||||||||
- в условиях эксплуатации А | 0,16 | 0,17 | 0,20 | 0,22 | 0,23 | 0,25 | 0,27 | 0,31 | 0,34 | 0,37 | 0,40 | 0,43 | 0,46 | 0,49 | 0,55 |
- в условиях эксплуатации Б | 0,19 | 0,20 | 0,24 | 0,26 | 0,27 | 0,29 | 0,32 | 0,35 | 0,38 | 0,41 | 0,44 | 0,48 | 0,51 | 0,55 | 0,61 |
Наименование показателя, ед. изм. | Значения показателя | ||||||||||||||
Средняя плотность керамзитобетона, кг/м3 | 300 | 400 | 500 | 600 | 700 | 800 | 900 | 1000 | 1100 | 1200 | 1300 | 1400 | 1500 | 1600 | 1800 |
Средняя плотность блока с учетом пустот, кг/м3 | 222 | 254 | 317 | 381 | 444 | 508 | 571 | 635 | 698 | 761 | 825 | 888 | 952 | 1015 | 1142 |
Коэффициент теплопроводности, Вт/(м·°C): | |||||||||||||||
- в условиях эксплуатации А | 0,19 | 0,21 | 0,24 | 0,26 | 0,28 | 0,30 | 0,33 | 0,37 | 0,40 | 0,44 | 0,48 | 0,51 | 0,54 | 0,57 | 0,64 |
- в условиях эксплуатации Б | 0,23 | 0,25 | 0,29 | 0,31 | 0,33 | 0,35 | 0,39 | 0,42 | 0,45 | 0,49 | 0,52 | 0,56 | 0,60 | 0,64 | 0,70 |


Тип блока | Характеристика типа блока | Размеры, мм | ||
Длина l | Толщина блока/толщина слоя утеплителя | Высота h | ||
Рядовой 38/15 "Р" | Рядовой, наружный, утепленный с вырезом | 1000 | 380/150 | 250 |
Угловой 38/15 "У" | Угловой, наружный, утепленный с вырезом | 880 | 380/150 | 250 |
Рядовой 38/12 "Р" | Рядовой, наружный, утепленный с вырезом | 1000 | 380/180 | 250 |
Угловой 38/12 "У" | Угловой, наружный, утепленный с вырезом | 880 | 380/180 | 250 |
Рядовой 30/15 "Р" | Рядовой, наружный, утепленный с вырезом | 600 | 300/70 | 250 |
Угловой 30/15 "У" | Угловой, наружный, утепленный с вырезом | 600 | 300/70 | 250 |
Рядовой 30/12 "Р" | Рядовой, наружный, утепленный с вырезом | 600 | 300/100 | 250 |
Угловой 30/12 "У" | Угловой, наружный, утепленный с вырезом | 600 | 300/100 | 250 |
Рядовой 22/12 "Р" | Рядовой, наружный, утепленный с вырезом | 1000 | 220/30 | 250 |
Перемычечный 22/15 "П" | Перемычечный, неутепленный | 1000 | 220 | 250 |
)Тип блока | Толщина теплоизоляционного вкладыша и вид утеплителя | Сопротивление теплопередаче, (м2·°C)/Вт |
Рядовой 38/14 "Р" | 150 мм (пенополистирол ППС-14, ) | 4,35 |
Угловой 38/14 "У" | 150 мм (пенополистирол ППС-14, ) | 4,35 |
Рядовой 38/15 "Р" | 150 мм (минеральная - каменная вата 75 - 120 кг/м3, ) | 4,17 |
Угловой 38/15 "У" | 150 мм (минеральная - каменная вата 75 - 120 кг/м3, ) | 4,17 |
Рядовой 38/12 "Р" | 180 мм (пенополистирол ППС-14, ) | 5,09 |
Угловой 38/12 "У" | 180 мм (пенополистирол ППС-14, ) | 5,09 |
Рядовой 30/15 "Р" | 70 мм (пенополистирол ППС-14, ) | 2,35 |
Угловой 30/15 "У" | 70 мм (пенополистирол ППС-14, ) | 2,35 |
Рядовой 30/12 "Р" | 100 мм (пенополистирол ППС-14, ) | 3,09 |
Угловой 30/12 "У" | 100 мм (пенополистирол ППС-14, ) | 3,09 |
Рядовой 22/15 "Р" | 30 мм (пенополистирол ППС-14, ) | 1,29 |
Перемычечный 22/15 "П" | - | 0,56 |

Типы блоков | Номинальные размеры блоков, мм | ||
Длина l | Ширина b | Высота h | |
Для кладки стен ![]() | 330 | 250 | 120 |
500 | 330 | 120 | |
370 | 350 | 188 | |
390 | 190 | 188 | |
490 | 400 | 188 | |
500 | 350 | 188 | |
1220 | 350 | 370 | |
1220 | 350 | 500 | |
2440 | 350 | 370 | |
2440 | 350 | 500 | |
2440 | 400 | 490 | |
для Самарской области). Указанным требованиям отвечает кладка из глиняного кирпича на цементно-песчаном растворе толщиной 1 м.


Здания и помещения, коэффициенты а и б | Градусо-сутки отопительного периода, °C·сут/год | Базовые значения требуемого сопротивления теплопередаче | ||||
стен | покрытий и перекрытий над проездами | чердачных перекрытий над неотапливаемыми подпольями и подвалами | окон и балконных дверей, витрин и витражей | фонарей | ||
1 Жилые, лечебно-профилактические, дошкольные образовательные и общеобразовательные организации, интернаты гостиницы и общежития | 2000 | 2,1 | 3,2 | 2,8 | 0,3 | 0,3 |
4000 | 2,8 | 4,2 | 3,7 | 0,45 | 0,35 | |
6000 | 3,5 | 5,2 | 4,6 | 0,6 | 0,4 | |
8000 | 4,2 | 6,2 | 5,5 | 0,7 | 0,45 | |
10000 | 4,9 | 7,2 | 6,4 | 0,75 | 0,5 | |
12000 | 5,6 | 8,2 | 7,3 | 0,8 | 0,55 | |
а | - | 0,00035 | 0,0005 | 0,00045 | - | 0,000025 |
б | - | 1,4 | 2,2 | 1,9 | - | 0,25 |
2 Общественные, кроме указанных выше, административные, бытовые, производственные и другие здания и помещения с влажным или мокрым режимами | 2000 | 1,8 | 2,4 | 2,0 | 0,3 | 0,3 |
4000 | 2,4 | 3,2 | 2,7 | 0,4 | 0,35 | |
6000 | 3,0 | 4,0 | 3,4 | 0,5 | 0,4 | |
8000 | 3,6 | 4,8 | 4,1 | 0,6 | 0,45 | |
10000 | 4,2 | 5,6 | 4,8 | 0,7 | 0,5 | |
12000 | 4,8 | 6,4 | 5,5 | 0,8 | 0,55 | |
а | - | 0,0003 | 0,0004 | 0,00035 | 0,00005 | 0,000025 |
б | - | 1,2 | 1,6 | 1,3 | 0,2 | 0,25 |
.
- для сетчатого армирования и А-II и А-III - для продольного армирования.Схема конструкции | Наименование ограждения N и наименование слоя | Толщина слоя | Гладь стены - сопротивление | |||||||||||
теплопередаче, (м2·°C)/Вт, в условиях эксплуатации | паропроницанию, (м2·ч·Па)/мг | |||||||||||||
А | Б | |||||||||||||
ОДНОСЛОЙНЫЕ НАРУЖНЫЕ СТЕНЫ | ||||||||||||||
Наружная стена - тип 1 (вариант 1) | ||||||||||||||
![]() | 0,19 | 1,40 | 1,07 | 1,15 | ||||||||||
N слоя п/п | Наименование | Толщина, м | Плотность | Коэффициент | ||||||||||
теплопроводности | паропроницаемости | |||||||||||||
0,28 | 1,97 | 1,48 | 1,45 | |||||||||||
А | Б | |||||||||||||
0,38 | 2,59 | 1,93 | 1,78 | |||||||||||
1 | Цементно-песчаный раствор | 0,02 | 1800 | 0,76 | 0,93 | 0,09 | ||||||||
0,47 | 3,15 | 2,34 | 2,08 | |||||||||||
2 | Кладка из полнотелых керамзитобетонных блоков | 500 | 0,16 | 0,22 | 0,3 | |||||||||
0,57 | 3,78 | 2,80 | 2,41 | |||||||||||
3 | Цементно-песчаный раствор | 0,02 | 1800 | 0,76 | 0,93 | 0,09 | 0,66 | 4,34 | 3,21 | 2,71 | ||||
4 | Декоративно-отделочный слой | 0,0035 | 1800 | 0,76 | 0,9 | 0,05 | 0,76 | 4,97 | 3,66 | 3,05 | ||||
Наружная стена - тип 1 (вариант 2) | ||||||||||||||
![]() | 0,19 | 1,22 | 0,97 | 1,24 | ||||||||||
N слоя п/п | Наименование | Толщина, м | Плотность | Коэффициент | ||||||||||
теплопроводности | паропроницаемости | |||||||||||||
0,28 | 1,69 | 1,33 | 1,59 | |||||||||||
А | Б | |||||||||||||
0,38 | 2,22 | 1,73 | 1,97 | |||||||||||
1 | Цементно-песчаный раствор | 0,02 | 1800 | 0,76 | 0,93 | 0,09 | ||||||||
0,47 | 2,69 | 2,09 | 2,32 | |||||||||||
2 | Кладка из полнотелых керамзитобетонных блоков | 600 | 0,19 | 0,25 | 0,26 | |||||||||
0,57 | 3,22 | 2,49 | 2,71 | |||||||||||
3 | Цементно-песчаный раствор | 0,02 | 1800 | 0,76 | 0,93 | 0,09 | 0,66 | 3,69 | 2,85 | 3,05 | ||||
4 | Декоративно-отделочный слой | 0,0035 | 1800 | 0,76 | 0,9 | 0,05 | 0,76 | 4,22 | 3,25 | 3,44 | ||||
Наружная стена - тип 1 (вариант 3) | ||||||||||||||
![]() | 0,19 | 1,07 | 0,88 | 1,34 | ||||||||||
N слоя п/п | Наименование | Толщина, м | Плотность | Коэффициент | ||||||||||
теплопроводности | паропроницаемости | |||||||||||||
0,28 | 1,48 | 1,2 | 1,73 | |||||||||||
А | Б | |||||||||||||
0,38 | 1,94 | 1,6 | 2,17 | |||||||||||
1 | Цементно-песчаный раствор | 0,02 | 1800 | 0,76 | 0,93 | 0,09 | ||||||||
0,47 | 2,35 | 1,88 | 2,56 | |||||||||||
2 | Кладка из полнотелых керамзитобетонных блоков | 700 | 0,22 | 0,28 | 0,23 | |||||||||
0,57 | 2,8 | 2,24 | 2,99 | |||||||||||
3 | Цементно-песчаный раствор | 0,02 | 1800 | 0,76 | 0,93 | 0,09 | 0,66 | 3,21 | 2,56 | 3,38 | ||||
4 | Декоративно-отделочный слой | 0,0035 | 1800 | 0,76 | 0,9 | 0,05 | 0,76 | 3,66 | 2,92 | 3,82 | ||||
ДВУСЛОЙНЫЕ НАРУЖНЫЕ СТЕНЫ | ||||||||||||||
Наружная стена - тип 2 (вариант 1) | ||||||||||||||
![]() | 0,19 | 1,51 | 1,19 | 1,71 | ||||||||||
N слоя п/п | Наименование | Толщина, м | Плотность | Коэффициент | ||||||||||
теплопроводности | паропроницаемости | |||||||||||||
0,28 | 2,04 | 1,58 | 2,01 | |||||||||||
А | Б | 0,38 | 2,63 | 2,02 | 2,35 | |||||||||
1 | Цементно-песчаный раствор | 0,02 | 1800 | 0,76 | 0,93 | 0,09 | 0,47 | 3,16 | 2,41 | 2,64 | ||||
2 | Кладка из полнотелых керамзитобетонных блоков | 500 | 0,16 | 0,22 | 0,3 | 0,57 | 3,74 | 2,85 | 2,98 | |||||
0,66 | 4,27 | 3,24 | 3,28 | |||||||||||
3 | Кладка из кирпича керамического пустотного | 0,12 | 1600 | 0,58 | 0,64 | 0,14 | ||||||||
0,76 | 4,86 | 3,67 | 3,61 | |||||||||||
Наружная стена - тип 2 (вариант 2) | ||||||||||||||
![]() | 0,19 | 1,39 | 1,13 | 1,81 | ||||||||||
N слоя п/п | Наименование | Толщина, м | Плотность | Коэффициент | ||||||||||
теплопроводности | паропроницаемости | 0,28 | 1,87 | 1,49 | 2,16 | |||||||||
0,38 | 2,39 | 1,89 | 2,54 | |||||||||||
А | Б | |||||||||||||
1 | Цементно-песчаный раствор | 0,02 | 1800 | 0,76 | 0,93 | 0,09 | 0,47 | 2,87 | 2,25 | 2,88 | ||||
2 | Кладка из полнотелых керамзитобетонных блоков | 600 | 0,2 | 0,26 | 0,26 | 0,57 | 3,39 | 2,65 | 3,27 | |||||
0,66 | 3,87 | 3,01 | 3,62 | |||||||||||
3 | Кладка из кирпича керамического пустотного | 0,12 | 1600 | 0,58 | 0,64 | 0,14 | ||||||||
0,76 | 4,19 | 3,29 | 4,0 | |||||||||||
Наружная стена - тип 3 (вариант 1) | ||||||||||||||
![]() | 0,19 | 1,53 | 1,19 | 4,98 | ||||||||||
N слоя п/п | Наименование | Толщина, м | Плотность | Коэффициент | ||||||||||
теплопроводности | паропроницаемости | 0,28 | 2,10 | 1,60 | 5,28 | |||||||||
0,38 | 2,72 | 2,05 | 5,62 | |||||||||||
А | Б | |||||||||||||
0,47 | 3,28 | 2,46 | 5,92 | |||||||||||
1 | Цементно-песчаный раствор | 0,02 | 1800 | 0,76 | 0,93 | 0,09 | ||||||||
0,57 | 3,91 | 2,92 | 6,25 | |||||||||||
2 | Кладка из полнотелых керамзитобетонных блоков | 500 | 0,16 | 0,22 | 0,3 | |||||||||
0,66 | 4,47 | 3,33 | 6,55 | |||||||||||
3 | Фасадный бессер-блок | 0,19 | 2300 | 1,17 | 1,29 | 0,046 | 0,76 | 5,10 | 3,78 | 6,88 | ||||
Наружная стена - тип 3 (вариант 2) | ||||||||||||||
![]() | 0,19 | 1,35 | 1,09 | 5,08 | ||||||||||
N слоя п/п | Наименование | Толщина, м | Плотность | Коэффициент | ||||||||||
теплопроводности | паропроницаемости | 0,28 | 1,82 | 1,45 | 5,43 | |||||||||
0,38 | 2,35 | 1,85 | 5,81 | |||||||||||
А | Б | |||||||||||||
0,47 | 2,82 | 2,21 | 6,16 | |||||||||||
1 | Цементно-песчаный раствор | 0,02 | 1800 | 0,76 | 0,93 | 0,09 | ||||||||
0,57 | 3,35 | 2,61 | 6,54 | |||||||||||
2 | Кладка из полнотелых керамзитобетонных блоков | 600 | 0,19 | 0,25 | 0,26 | |||||||||
0,66 | 3,82 | 2,97 | 6,89 | |||||||||||
3 | Фасадный бессер-блок | 0,19 | 2300 | 1,17 | 1,29 | 0,046 | 0,76 | 4,35 | 3,37 | 7,27 | ||||
Наружная стена - тип 4 (вариант 1) | ||||||||||||||
![]() | 0,19 | 1,43 | 1,10 | 2,82 | ||||||||||
N слоя п/п | Наименование | Толщина, м | Плотность | Коэффициент | ||||||||||
теплопроводности | паропроницаемости | 0,28 | 1,99 | 1,51 | 3,11 | |||||||||
0,38 | 2,62 | 1,96 | 3,44 | |||||||||||
А | Б | |||||||||||||
0,47 | 3,18 | 2,37 | 3,74 | |||||||||||
1 | Цементно-песчаный раствор | 0,02 | 1800 | 0,76 | 0,93 | 0,09 | ||||||||
0,57 | 3,81 | 2,83 | 4,08 | |||||||||||
2 | Кладка из полнотелых керамзитобетонных блоков | 500 | 0,16 | 0,22 | 0,3 | |||||||||
0,66 | 4,37 | 3,24 | 4,38 | |||||||||||
3 | Бессер-кирпич | 0,09 | 2300 | 1,508 | 1,629 | 0,046 | 0,76 | 4,99 | 3,69 | 4,71 | ||||
Наружная стена - тип 4 (вариант 2) | ||||||||||||||
![]() | 0,19 | 1,24 | 1,00 | 2,91 | ||||||||||
N слоя п/п | Наименование | Толщина, м | Плотность | Коэффициент | ||||||||||
теплопроводности | паропроницаемости | 0,28 | 1,72 | 1,36 | 3,25 | |||||||||
0,38 | 2,24 | 1,76 | 3,64 | |||||||||||
А | Б | |||||||||||||
0,47 | 2,72 | 2,12 | 3,98 | |||||||||||
1 | Цементно-песчаный раствор | 0,02 | 1800 | 0,76 | 0,93 | 0,09 | ||||||||
0,57 | 3,24 | 2,52 | 4,37 | |||||||||||
2 | Кладка из полнотелых керамзитобетонных блоков | 600 | 0,19 | 0,25 | 0,26 | |||||||||
0,66 | 3,72 | 2,88 | 4,72 | |||||||||||
3 | Бессер-кирпич | 0,09 | 2300 | 1,508 | 1,629 | 0,046 | 0,76 | 4,24 | 3,28 | 5,10 | ||||
Наружная стена - тип 5 (вариант 1) | ||||||||||||||
![]() | 0,19 | 2,63 | 2,24 | 1,09 | ||||||||||
N слоя п/п | Наименование | Толщина, м | Плотность | Коэффициент | ||||||||||
теплопроводности | паропроницаемости | |||||||||||||
0,28 | 3,19 | 2,65 | 1,39 | |||||||||||
А | Б | |||||||||||||
1 | Цементно-песчаный раствор | 0,02 | 1800 | 0,76 | 0,93 | 0,09 | 0,38 | 3,81 | 3,10 | 1,72 | ||||
2 | Кладка из полнотелых керамзитобетонных блоков | 500 | 0,16 | 0,22 | 0,3 | |||||||||
0,47 | 4,38 | 3,51 | 2,02 | |||||||||||
3 | Базальтовый утеплитель | 0,05 | 140 | 0,04 | 0,042 | 0,3 | ||||||||
0,57 | 5,00 | 3,97 | 2,36 | |||||||||||
4 | Декоративно-отделочный слой | 0,0035 | 1800 | 0,76 | 0,9 | 0,05 | ||||||||
Наружная стена - тип 5 (вариант 2) | ||||||||||||||
![]() | 0,19 | 2,39 | 2,11 | 1,19 | ||||||||||
N слоя п/п | Наименование | Толщина, м | Плотность | Коэффициент | ||||||||||
теплопроводности | паропроницаемости | |||||||||||||
0,28 | 2,84 | 2,45 | 1,53 | |||||||||||
А | Б | |||||||||||||
1 | Цементно-песчаный раствор | 0,02 | 1800 | 0,76 | 0,93 | 0,09 | 0,38 | 3,34 | 2,84 | 1,92 | ||||
2 | Кладка из полнотелых керамзитобетонных блоков | 600 | 0,19 | 0,25 | 0,26 | |||||||||
0,47 | 3,79 | 3,18 | 2,27 | |||||||||||
3 | Базальтовый утеплитель | 0,05 | 140 | 0,04 | 0,042 | 0,3 | ||||||||
0,57 | 4,29 | 3,57 | 2,65 | |||||||||||
4 | Декоративно-отделочный слой | 0,0035 | 1800 | 0,76 | 0,9 | 0,05 | ||||||||
Схема конструкции | Наименование ограждения N и наименование слоя | Толщина слоя | Гладь стены - сопротивление | ||||||||||
теплопередаче, (м2·°C)/Вт, в условиях эксплуатации | паропроницанию, (м2·ч·Па)/мг | ||||||||||||
А | Б | ||||||||||||
ОДНОСЛОЙНЫЕ НАРУЖНЫЕ СТЕНЫ | |||||||||||||
Наружная стена - тип 1 (вариант 1) | |||||||||||||
![]() | 0,19 | 1,21 | 1,03 | 1,24 | |||||||||
N слоя п/п | Наименование | Толщина, м | Плотность | Коэффициент | |||||||||
теплопроводности | паропроницаемости | ||||||||||||
0,28 | 1,69 | 1,42 | 1,59 | ||||||||||
А | Б | 0,38 | 2,21 | 1,86 | 1,97 | ||||||||
1 | Цементно-песчаный раствор | 0,02 | 1800 | 0,76 | 0,93 | 0,09 | |||||||
0,47 | 2,69 | 2,25 | 2,32 | ||||||||||
2 | Кладка из пустотелых керамзитобетонных блоков с 3-рядной пустотностью | 600 | 0,19 | 0,23 | 0,26 | ||||||||
0,57 | 3,21 | 2,68 | 2,71 | ||||||||||
3 | Цементно-песчаный раствор | 0,02 | 1800 | 0,76 | 0,93 | 0,09 | 0,66 | 3,69 | 3,07 | 3,05 | |||
4 | Декоративно-отделочный слой | 0,0035 | 1800 | 0,76 | 0,9 | 0,05 | 0,76 | 4,21 | 3,51 | 3,44 | |||
Наружная стена - тип 1 (вариант 2) | |||||||||||||
![]() | 0,19 | 1,16 | 0,99 | 1,34 | |||||||||
N слоя п/п | Наименование | Толщина, м | Плотность | Коэффициент | |||||||||
теплопроводности | паропроницаемости | ||||||||||||
А | Б | 0,28 | 1,61 | 1,37 | 1,73 | ||||||||
0,38 | 2,11 | 1,79 | 2,17 | ||||||||||
1 | Цементно-песчаный раствор | 0,02 | 1800 | 0,76 | 0,93 | 0,09 | |||||||
0,47 | 2,56 | 2,16 | 2,56 | ||||||||||
2 | Кладка из пустотелых керамзитобетонных блоков с 3-рядной пустотностью | 700 | 0,2 | 0,24 | 0,23 | ||||||||
0,57 | 3,06 | 2,58 | 2,99 | ||||||||||
0,66 | 3,51 | 2,95 | 3,38 | ||||||||||
3 | Цементно-песчаный раствор | 0,02 | 1800 | 0,76 | 0,93 | 0,09 | |||||||
0,76 | 4,01 | 3,37 | 3,82 | ||||||||||
4 | Декоративно-отделочный слой | 0,0035 | 1800 | 0,76 | 0,9 | 0,05 | |||||||
Наружная стена - тип 1 (вариант 3) | |||||||||||||
![]() | 0,19 | 1,12 | 0,96 | 1,51 | |||||||||
N слоя п/п | Наименование | Толщина, м | Плотность | Коэффициент | |||||||||
теплопроводности | паропроницаемости | ||||||||||||
А | Б | 0,28 | 1,55 | 1,32 | 1,99 | ||||||||
0,38 | 2,02 | 1,72 | 2,51 | ||||||||||
1 | Цементно-песчаный раствор | 0,02 | 1800 | 0,76 | 0,93 | 0,09 | |||||||
0,47 | 2,45 | 2,08 | 2,99 | ||||||||||
2 | Кладка из пустотелых керамзитобетонных блоков с 3-рядной пустотностью | 800 | 0,21 | 0,25 | 0,19 | ||||||||
0,57 | 2,93 | 2,48 | 3,51 | ||||||||||
0,66 | 3,36 | 2,84 | 3,99 | ||||||||||
3 | Цементно-песчаный раствор | 0,02 | 1800 | 0,76 | 0,93 | 0,09 | |||||||
0,76 | 3,83 | 3,24 | 4,51 | ||||||||||
4 | Декоративно-отделочный слой | 0,0035 | 1800 | 0,76 | 0,9 | 0,05 | |||||||
Наружная стена - тип 1 (вариант 4) | |||||||||||||
![]() | 0,19 | 1,00 | 0,88 | 1,63 | |||||||||
N слоя п/п | Наименование | Толщина, м | Плотность | Коэффициент | |||||||||
теплопроводности | паропроницаемости | ||||||||||||
А | Б | 0,28 | 1,38 | 1,20 | 2,16 | ||||||||
0,38 | 1,80 | 1,56 | 2,75 | ||||||||||
1 | Цементно-песчаный раствор | 0,02 | 1800 | 0,76 | 0,93 | 0,09 | |||||||
0,47 | 2,17 | 1,88 | 3,28 | ||||||||||
2 | Кладка из пустотелых керамзитобетонных блоков с 3-рядной пустотностью | 900 | 0,24 | 0,28 | 0,17 | ||||||||
0,57 | 2,59 | 2,24 | 3,87 | ||||||||||
0,66 | 2,96 | 2,56 | 4,40 | ||||||||||
3 | Цементно-песчаный раствор | 0,02 | 1800 | 0,76 | 0,93 | 0,09 | |||||||
0,76 | 3,38 | 2,92 | 4,98 | ||||||||||
4 | Декоративно-отделочный слой | 0,0035 | 1800 | 0,76 | 0,9 | 0,05 | |||||||
Наружная стена - тип 1 (вариант 5) | |||||||||||||
![]() | 0,19 | 0,95 | 0,82 | 1,87 | |||||||||
N слоя п/п | Наименование | Толщина, м | Плотность | Коэффициент | |||||||||
теплопроводности | паропроницаемости | 0,28 | 1,29 | 1,11 | 2,51 | ||||||||
0,38 | 1,68 | 1,43 | 3,23 | ||||||||||
А | Б | ||||||||||||
1 | Цементно-песчаный раствор | 0,02 | 1800 | 0,76 | 0,93 | 0,09 | 0,47 | 2,02 | 1,72 | 3,87 | |||
2 | Кладка из пустотелых керамзитобетонных блоков с 3-рядной пустотностью | 1000 | 0,26 | 0,31 | 0,14 | 0,57 | 2,41 | 2,04 | 4,58 | ||||
0,66 | 2,75 | 2,33 | 5,23 | ||||||||||
3 | Цементно-песчаный раствор | 0,02 | 1800 | 0,76 | 0,93 | 0,09 | |||||||
4 | Декоративно-отделочный слой | 0,0035 | 1800 | 0,76 | 0,9 | 0,05 | 0,76 | 3,14 | 2,66 | 5,94 | |||
Наружная стена - тип 2 (вариант 1) | |||||||||||||
![]() | 0,19 | 0,92 | 0,80 | 1,63 | |||||||||
N слоя п/п | Наименование | Толщина, м | Плотность | Коэффициент | |||||||||
теплопроводности | паропроницаемости | 0,28 | 1,25 | 1,08 | 2,16 | ||||||||
А | Б | ||||||||||||
0,38 | 1,62 | 1,39 | 2,75 | ||||||||||
1 | Цементно-песчаный раствор | 0,02 | 1800 | 0,76 | 0,93 | 0,09 | |||||||
0,47 | 1,96 | 1,67 | 3,28 | ||||||||||
2 | Кладка из пустотелых керамзитобетонных блоков с 2-рядной пустотностью | 900 | 0,27 | 0,32 | 0,17 | ||||||||
0,57 | 2,33 | 1,99 | 3,87 | ||||||||||
3 | Цементно-песчаный раствор | 0,02 | 1800 | 0,76 | 0,93 | 0,09 | 0,66 | 2,66 | 2,27 | 4,40 | |||
4 | Декоративно-отделочный слой | 0,0035 | 1800 | 0,76 | 0,9 | 0,05 | 0,76 | 3,03 | 2,58 | 4,98 | |||
Наружная стена - тип 2 (вариант 2) | |||||||||||||
![]() | 0,19 | 0,83 | 0,75 | 1,87 | |||||||||
N слоя п/п | Наименование | Толщина, м | Плотность | Коэффициент | |||||||||
теплопроводности | паропроницаемости | 0,28 | 1,12 | 1,00 | 2,51 | ||||||||
А | Б | ||||||||||||
0,38 | 1,44 | 1,29 | 3,23 | ||||||||||
1 | Цементно-песчаный раствор | 0,02 | 1800 | 0,76 | 0,93 | 0,09 | |||||||
0,47 | 1,73 | 1,55 | 3,87 | ||||||||||
2 | Кладка из пустотелых керамзитобетонных блоков с 2-рядной пустотностью | 1000 | 0,31 | 0,35 | 0,14 | ||||||||
0,57 | 2,05 | 1,83 | 4,58 | ||||||||||
3 | Цементно-песчаный раствор | 0,02 | 1800 | 0,76 | 0,93 | 0,09 | 0,66 | 2,34 | 2,09 | 5,23 | |||
4 | Декоративно-отделочный слой | 0,0035 | 1800 | 0,76 | 0,9 | 0,05 | 0,76 | 2,67 | 2,38 | 5,94 | |||
Наружная стена - тип 2 (вариант 3) | |||||||||||||
![]() | 0,19 | 0,77 | 0,70 | 2,09 | |||||||||
N слоя п/п | Наименование | Толщина, м | Плотность | Коэффициент | |||||||||
теплопроводности | паропроницаемости | 0,28 | 1,04 | 0,94 | 2,85 | ||||||||
А | Б | ||||||||||||
0,38 | 1,33 | 1,20 | 3,68 | ||||||||||
1 | Цементно-песчаный раствор | 0,02 | 1800 | 0,76 | 0,93 | 0,09 | |||||||
0,47 | 1,60 | 1,44 | 4,43 | ||||||||||
2 | Кладка из пустотелых керамзитобетонных блоков с 2-рядной пустотностью | 1100 | 0,34 | 0,38 | 0,12 | ||||||||
0,57 | 1,89 | 1,70 | 5,26 | ||||||||||
3 | Цементно-песчаный раствор | 0,02 | 1800 | 0,76 | 0,93 | 0,09 | 0,66 | 2,16 | 1,94 | 6,01 | |||
4 | Декоративно-отделочный слой | 0,0035 | 1800 | 0,76 | 0,9 | 0,05 | 0,76 | 2,45 | 2,20 | 6,85 | |||
Наружная стена - тип 3 (вариант 1) | |||||||||||||
![]() | 0,19 | 0,65 | 0,59 | 2,24 | |||||||||
N слоя п/п | Наименование | Толщина, м | Плотность | Коэффициент | |||||||||
теплопроводности | паропроницаемости | 0,28 | 0,85 | 0,77 | 3,06 | ||||||||
А | Б | 0,38 | 1,08 | 0,98 | 3,97 | ||||||||
1 | Цементно-песчаный раствор | 0,02 | 1800 | 0,76 | 0,93 | 0,09 | |||||||
0,47 | 1,28 | 1,16 | 4,79 | ||||||||||
2 | Кладка из пустотелых керамзитобетонных блоков с 1-рядной пустотностью | 1200 | 0,44 | 0,49 | 0,11 | ||||||||
0,57 | 1,51 | 1,37 | 5,70 | ||||||||||
0,66 | 1,71 | 1,55 | 6,51 | ||||||||||
3 | Цементно-песчаный раствор | 0,02 | 1800 | 0,76 | 0,93 | 0,09 | |||||||
4 | Декоративно-отделочный слой | 0,0035 | 1800 | 0,76 | 0,9 | 0,05 | 0,76 | 1,94 | 1,76 | 7,42 | |||
Наружная стена - тип 3 (вариант 2) | |||||||||||||
![]() | 0,19 | 0,61 | 0,57 | 2,41 | |||||||||
N слоя п/п | Наименование | Толщина, м | Плотность | Коэффициент | |||||||||
теплопроводности | паропроницаемости | ||||||||||||
0,28 | 0,80 | 0,74 | 3,31 | ||||||||||
А | Б | ||||||||||||
0,38 | 1,00 | 0,94 | 4,31 | ||||||||||
1 | Цементно-песчаный раствор | 0,02 | 1800 | 0,76 | 0,93 | 0,09 | |||||||
2 | Кладка из пустотелых керамзитобетонных блоков с 1-рядной пустотностью | 1300 | 0,48 | 0,52 | 0,1 | 0,47 | 1,19 | 1,11 | 5,21 | ||||
3 | Цементно-песчаный раствор | 0,02 | 1800 | 0,76 | 0,93 | 0,09 | 0,57 | 1,40 | 1,30 | 6,21 | |||
4 | Декоративно-отделочный слой | 0,0035 | 1800 | 0,76 | 0,9 | 0,05 | 0,66 | 1,59 | 1,47 | 7,11 | |||
0,76 | 1,80 | 1,67 | 8,11 | ||||||||||
ДВУСЛОЙНЫЕ НАРУЖНЫЕ СТЕНЫ | |||||||||||||
Наружная стена - тип 4 (вариант 1) | |||||||||||||
![]() | 0,19 | 1,39 | 1,19 | 1,81 | |||||||||
N слоя п/п | Наименование | Толщина, м | Плотность | Коэффициент | |||||||||
теплопроводности | паропроницаемости | ||||||||||||
0,28 | 1,86 | 1,58 | 2,15 | ||||||||||
А | Б | ||||||||||||
0,38 | 2,39 | 2,02 | 2,54 | ||||||||||
1 | Цементно-песчаный раствор | 0,02 | 1800 | 0,76 | 0,93 | 0,09 | |||||||
0,47 | 2,86 | 2,41 | 2,89 | ||||||||||
2 | Кладка из пустотелых керамзитобетонных блоков с 3-рядной пустотностью | 600 | 0,19 | 0,23 | 0,26 | ||||||||
0,57 | 3,39 | 2,84 | 3,27 | ||||||||||
0,66 | 3,86 | 3,24 | 3,62 | ||||||||||
3 | Кладка из кирпича керамического пустотного | 0,12 | 1600 | 0,58 | 0,64 | 0,14 | |||||||
0,76 | 4,39 | 3,67 | 4,00 | ||||||||||
Наружная стена - тип 4 (вариант 2) | |||||||||||||
![]() | 0,19 | 1,34 | 1,16 | 1,90 | |||||||||
N слоя п/п | Наименование | Толщина, м | Плотность | Коэффициент | |||||||||
теплопроводности | паропроницаемости | ||||||||||||
0,28 | 1,79 | 1,53 | 2,30 | ||||||||||
А | Б | ||||||||||||
0,38 | 2,29 | 1,95 | 2,73 | ||||||||||
1 | Цементно-песчаный раствор | 0,02 | 1800 | 0,76 | 0,93 | 0,09 | |||||||
0,47 | 2,74 | 2,32 | 3,12 | ||||||||||
2 | Кладка из пустотелых керамзитобетонных блоков с 3-рядной пустотностью | 700 | 0,2 | 0,24 | 0,23 | ||||||||
0,57 | 3,24 | 2,74 | 3,56 | ||||||||||
0,66 | 3,69 | 3,12 | 3,95 | ||||||||||
3 | Кладка из кирпича керамического пустотного | 0,12 | 1600 | 0,58 | 0,64 | 0,14 | |||||||
0,76 | 4,19 | 3,53 | 4,38 | ||||||||||
Наружная стена - тип 4 (вариант 3) | |||||||||||||
![]() | 0,19 | 1,30 | 1,13 | 2,08 | |||||||||
N слоя п/п | Наименование | Толщина, м | Плотность | Коэффициент | |||||||||
теплопроводности | паропроницаемости | ||||||||||||
0,28 | 1,72 | 1,49 | 2,55 | ||||||||||
А | Б | ||||||||||||
0,38 | 2,20 | 1,89 | 3,08 | ||||||||||
1 | Цементно-песчаный раствор | 0,02 | 1800 | 0,76 | 0,93 | 0,09 | |||||||
0,47 | 2,63 | 2,25 | 3,55 | ||||||||||
2 | Кладка из пустотелых керамзитобетонных блоков с 3-рядной пустотностью | 800 | 0,21 | 0,25 | 0,19 | ||||||||
0,57 | 3,10 | 2,65 | 4,08 | ||||||||||
0,66 | 3,53 | 3,01 | 4,55 | ||||||||||
3 | Кладка из кирпича керамического пустотного | 0,12 | 1600 | 0,58 | 0,64 | 0,14 | |||||||
0,76 | 4,01 | 3,41 | 5,08 | ||||||||||
Наружная стена - тип 4 (вариант 4) | |||||||||||||
![]() | 0,19 | 1,18 | 1,04 | 2,20 | |||||||||
N слоя п/п | Наименование | Толщина, м | Плотность | Коэффициент | |||||||||
теплопроводности | паропроницаемости | ||||||||||||
0,28 | 1,56 | 1,37 | 2,73 | ||||||||||
А | Б | 0,38 | 1,97 | 1,72 | 3,31 | ||||||||
1 | Цементно-песчаный раствор | 0,02 | 1800 | 0,76 | 0,93 | 0,09 | |||||||
0,47 | 2,35 | 2,04 | 3,84 | ||||||||||
2 | Кладка из пустотелых керамзитобетонных блоков с 3-рядной пустотностью | 900 | 0,24 | 0,28 | 0,17 | ||||||||
0,57 | 2,77 | 2,40 | 4,43 | ||||||||||
0,66 | 3,14 | 2,72 | 4,96 | ||||||||||
3 | Кладка из кирпича керамического пустотного | 0,12 | 1600 | 0,58 | 0,64 | 0,14 | |||||||
0,76 | 3,56 | 3,08 | 5,55 | ||||||||||
Наружная стена - тип 4 (вариант 5) | |||||||||||||
![]() | 0,19 | 1,12 | 0,98 | 2,44 | |||||||||
N слоя п/п | Наименование | Толщина, м | Плотность | Коэффициент | |||||||||
теплопроводности | паропроницаемости | ||||||||||||
0,28 | 1,47 | 1,27 | 3,08 | ||||||||||
А | Б | ||||||||||||
0,38 | 1,85 | 1,59 | 3,79 | ||||||||||
1 | Цементно-песчаный раствор | 0,02 | 1800 | 0,76 | 0,93 | 0,09 | |||||||
0,47 | 2,20 | 1,88 | 4,44 | ||||||||||
2 | Кладка из пустотелых керамзитобетонных блоков с 3-рядной пустотностью | 1000 | 0,26 | 0,31 | 0,14 | ||||||||
0,57 | 2,58 | 2,21 | 5,15 | ||||||||||
0,66 | 2,93 | 2,50 | 5,79 | ||||||||||
3 | Кладка из кирпича керамического пустотного | 0,12 | 1600 | 0,58 | 0,64 | 0,14 | |||||||
0,76 | 3,31 | 2,82 | 6,51 | ||||||||||
Наружная стена - тип 5 (вариант 1) | |||||||||||||
![]() | 0,19 | 1,09 | 0,96 | 2,20 | |||||||||
N слоя п/п | Наименование | Толщина, м | Плотность | Коэффициент | |||||||||
теплопроводности | паропроницаемости | ||||||||||||
0,28 | 1,43 | 1,24 | 2,73 | ||||||||||
0,38 | 1,80 | 1,55 | 3,31 | ||||||||||
А | Б | ||||||||||||
1 | Цементно-песчаный раствор | 0,02 | 1800 | 0,76 | 0,93 | 0,09 | 0,47 | 2,13 | 1,84 | 3,84 | |||
2 | Кладка из пустотелых керамзитобетонных блоков с 2-рядной пустотностью | 900 | 0,27 | 0,32 | 0,17 | 0,57 | 2,54 | 2,15 | 4,43 | ||||
0,66 | 2,84 | 2,43 | 4,96 | ||||||||||
3 | Кладка из кирпича керамического пустотного | 0,12 | 1600 | 0,58 | 0,64 | 0,14 | 0,76 | 3,21 | 2,74 | 5,55 | |||
Наружная стена - тип 5 (вариант 2) | |||||||||||||
![]() | 0,19 | 1,00 | 0,91 | 2,44 | |||||||||
N слоя п/п | Наименование | Толщина, м | Плотность | Коэффициент | |||||||||
теплопроводности | паропроницаемости | ||||||||||||
0,28 | 1,29 | 1,17 | 3,08 | ||||||||||
А | Б | 0,38 | 1,62 | 1,45 | 3,79 | ||||||||
1 | Цементно-песчаный раствор | 0,02 | 1800 | 0,76 | 0,93 | 0,09 | |||||||
0,47 | 1,91 | 1,71 | 4,44 | ||||||||||
2 | Кладка из пустотелых керамзитобетонных блоков с 2-рядной пустотностью | 1000 | 0,31 | 0,35 | 0,14 | ||||||||
0,57 | 2,23 | 1,99 | 5,15 | ||||||||||
0,66 | 2,52 | 2,25 | 5,79 | ||||||||||
3 | Кладка из кирпича керамического пустотного | 0,12 | 1600 | 0,58 | 0,64 | 0,14 | |||||||
0,76 | 2,84 | 2,54 | 6,51 | ||||||||||
Наружная стена - тип 5 (вариант 3) | |||||||||||||
![]() | 0,19 | 0,95 | 0,87 | 2,66 | |||||||||
N слоя п/п | Наименование | Толщина, м | Плотность | Коэффициент | |||||||||
теплопроводности | паропроницаемости | ||||||||||||
0,28 | 1,21 | 1,10 | 3,41 | ||||||||||
А | Б | 0,38 | 1,51 | 1,37 | 4,25 | ||||||||
1 | Цементно-песчаный раствор | 0,02 | 1800 | 0,76 | 0,93 | 0,09 | |||||||
0,47 | 1,77 | 1,60 | 4,99 | ||||||||||
2 | Кладка из пустотелых керамзитобетонных блоков с 2-рядной пустотностью | 1100 | 0,34 | 0,38 | 0,12 | ||||||||
0,57 | 2,07 | 1,87 | 5,83 | ||||||||||
0,66 | 2,33 | 2,10 | 6,58 | ||||||||||
3 | Кладка из кирпича керамического пустотного | 0,12 | 1600 | 0,58 | 0,64 | 0,14 | |||||||
0,76 | 2,63 | 2,37 | 7,41 | ||||||||||
Наружная стена - тип 6 (вариант 1) | |||||||||||||
![]() | 0,19 | 0,82 | 0,75 | 2,81 | |||||||||
N слоя п/п | Наименование | Толщина, м | Плотность | Коэффициент | |||||||||
теплопроводности | паропроницаемости | ||||||||||||
0,28 | 1,03 | 0,94 | 3,62 | ||||||||||
А | Б | 0,38 | 1,25 | 1,14 | 4,53 | ||||||||
1 | Цементно-песчаный раствор | 0,02 | 1800 | 0,76 | 0,93 | 0,09 | |||||||
0,47 | 1,46 | 1,33 | 5,35 | ||||||||||
2 | Кладка из пустотелых керамзитобетонных блоков с 1-рядной пустотностью | 1200 | 0,44 | 0,49 | 0,11 | ||||||||
0,57 | 1,69 | 1,53 | 6,26 | ||||||||||
0,66 | 1,89 | 1,71 | 7,08 | ||||||||||
3 | Кладка из кирпича керамического пустотного | 0,12 | 1600 | 0,58 | 0,64 | 0,14 | |||||||
0,76 | 2,12 | 1,92 | 7,99 | ||||||||||
Наружная стена - тип 6 (вариант 2) | |||||||||||||
![]() | 0,19 | 0,79 | 0,73 | 2,98 | |||||||||
N слоя п/п | Наименование | Толщина, м | Плотность | Коэффициент | |||||||||
теплопроводности | паропроницаемости | ||||||||||||
0,28 | 0,97 | 0,90 | 3,88 | ||||||||||
А | Б | 0,38 | 1,18 | 1,10 | 4,88 | ||||||||
1 | Цементно-песчаный раствор | 0,02 | 1800 | 0,76 | 0,93 | 0,09 | |||||||
0,47 | 1,37 | 1,27 | 5,78 | ||||||||||
2 | Кладка из пустотелых керамзитобетонных блоков с 1-рядной пустотностью | 1300 | 0,48 | 0,52 | 0,1 | ||||||||
0,57 | 1,58 | 1,46 | 6,78 | ||||||||||
0,66 | 1,77 | 1,64 | 7,68 | ||||||||||
3 | Кладка из кирпича керамического пустотного | 0,12 | 1600 | 0,58 | 0,64 | 0,14 | |||||||
0,76 | 1,97 | 1,83 | 8,68 | ||||||||||
Наружная стена - тип 7 (вариант 1) | |||||||||||||
![]() | 0,19 | 1,24 | 1,06 | 2,91 | |||||||||
N слоя п/п | Наименование | Толщина, м | Плотность | Коэффициент | |||||||||
теплопроводности | паропроницаемости | 0,28 | 1,72 | 1,45 | 3,25 | ||||||||
0,38 | 2,24 | 1,89 | 3,64 | ||||||||||
А | Б | ||||||||||||
1 | Цементно-песчаный раствор | 0,02 | 1800 | 0,76 | 0,93 | 0,09 | 0,47 | 2,72 | 2,28 | 3,98 | |||
2 | Кладка из пустотелых керамзитобетонных блоков с 3-рядной пустотностью | 600 | 0,19 | 0,23 | 0,26 | 0,57 | 3,24 | 2,71 | 4,37 | ||||
0,66 | 3,72 | 3,10 | 4,72 | ||||||||||
3 | Бессер-кирпич | 0,09 | 2300 | 1,508 | 1,629 | 0,046 | 0,76 | 4,24 | 3,54 | 5,10 | |||
Наружная стена - тип 7 (вариант 2) | |||||||||||||
![]() | 0,19 | 1,19 | 1,03 | 3,00 | |||||||||
N слоя п/п | Наименование | Толщина, м | Плотность | Коэффициент | |||||||||
теплопроводности | паропроницаемости | 0,28 | 1,64 | 1,40 | 3,40 | ||||||||
0,38 | 2,14 | 1,82 | 3,83 | ||||||||||
А | Б | ||||||||||||
0,47 | 2,59 | 2,19 | 4,22 | ||||||||||
1 | Цементно-песчаный раствор | 0,02 | 1800 | 0,76 | 0,93 | 0,09 | |||||||
0,57 | 3,09 | 2,61 | 4,66 | ||||||||||
2 | Кладка из пустотелых керамзитобетонных блоков с 3-рядной пустотностью | 700 | 0,2 | 0,24 | 0,23 | ||||||||
0,66 | 3,54 | 2,98 | 5,05 | ||||||||||
0,76 | 4,04 | 3,40 | 5,48 | ||||||||||
3 | Бессер-кирпич | 0,09 | 2300 | 1,508 | 1,629 | 0,046 | |||||||
Наружная стена - тип 7 (вариант 3) | |||||||||||||
![]() | 0,19 | 1,15 | 0,99 | 3,18 | |||||||||
N слоя п/п | Наименование | Толщина, м | Плотность | Коэффициент | |||||||||
теплопроводности | паропроницаемости | 0,28 | 1,58 | 1,35 | 3,65 | ||||||||
0,38 | 2,05 | 1,75 | 4,18 | ||||||||||
А | Б | ||||||||||||
1 | Цементно-песчаный раствор | 0,02 | 1800 | 0,76 | 0,93 | 0,09 | 0,47 | 2,48 | 2,11 | 4,65 | |||
0,57 | 2,96 | 2,51 | 5,18 | ||||||||||
2 | Кладка из пустотелых керамзитобетонных блоков с 3-рядной пустотностью | 800 | 0,21 | 0,25 | 0,19 | ||||||||
0,66 | 3,39 | 2,87 | 5,65 | ||||||||||
0,76 | 3,86 | 3,27 | 6,18 | ||||||||||
3 | Бессер-кирпич | 0,09 | 2300 | 1,508 | 1,629 | 0,046 | |||||||
Наружная стена - тип 7 (вариант 4) | |||||||||||||
![]() | 0,19 | 1,04 | 0,91 | 3,29 | |||||||||
N слоя п/п | Наименование | Толщина, м | Плотность | Коэффициент | |||||||||
теплопроводности | паропроницаемости | ||||||||||||
0,28 | 1,41 | 1,23 | 3,82 | ||||||||||
0,38 | 1,83 | 1,59 | 4,41 | ||||||||||
А | Б | ||||||||||||
1 | Цементно-песчаный раствор | 0,02 | 1800 | 0,76 | 0,93 | 0,09 | 0,47 | 2,20 | 1,91 | 4,94 | |||
2 | Кладка из пустотелых керамзитобетонных блоков с 3-рядной пустотностью | 900 | 0,24 | 0,28 | 017 | 0,57 | 2,62 | 2,27 | 5,53 | ||||
0,66 | 2,99 | 2,59 | 6,06 | ||||||||||
0,76 | 3,41 | 2,95 | 6,65 | ||||||||||
3 | Бессер-кирпич | 0,09 | 2300 | 1,508 | 1,629 | 0,046 | |||||||
Наружная стена - тип 7 (вариант 5) | |||||||||||||
![]() | 0,19 | 0,97 | 0,85 | 3,53 | |||||||||
N слоя п/п | Наименование | Толщина, м | Плотность | Коэффициент | |||||||||
теплопроводности | паропроницаемости | ||||||||||||
0,28 | 1,32 | 1,14 | 4,18 | ||||||||||
0,38 | 1,70 | 1,46 | 4,89 | ||||||||||
А | Б | ||||||||||||
1 | Цементно-песчаный раствор | 0,02 | 1800 | 0,76 | 0,93 | 0,09 | 0,47 | 2,05 | 1,75 | 5,53 | |||
2 | Кладка из пустотелых керамзитобетонных блоков с 3-рядной пустотностью | 1000 | 0,26 | 0,31 | 0,14 | 0,57 | 2,44 | 2,07 | 6,25 | ||||
0,66 | 2,78 | 2,36 | 6,89 | ||||||||||
0,76 | 3,17 | 2,69 | 7,61 | ||||||||||
3 | Бессер-кирпич | 0,09 | 2300 | 1,508 | 1,629 | 0,046 | |||||||
Наружная стена - тип 8 (вариант 1) | |||||||||||||
![]() | 0,19 | 0,95 | 0,83 | 3,29 | |||||||||
N слоя п/п | Наименование | Толщина, м | Плотность | Коэффициент | |||||||||
теплопроводности | паропроницаемости | ||||||||||||
0,28 | 1,28 | 1,11 | 3,82 | ||||||||||
А | Б | 0,38 | 1,65 | 1,42 | 4,41 | ||||||||
1 | Цементно-песчаный раствор | 0,02 | 1800 | 0,76 | 0,93 | 0,09 | 0,47 | 1,98 | 1,70 | 4,94 | |||
2 | Кладка из пустотелых керамзитобетонных блоков с 2-рядной пустотностью | 900 | 0,27 | 0,32 | 0,17 | 0,57 | 2,35 | 2,02 | 5,53 | ||||
0,66 | 2,69 | 2,30 | 6,06 | ||||||||||
0,76 | 3,06 | 2,61 | 6,65 | ||||||||||
3 | Бессер-кирпич | 0,09 | 2300 | 1,508 | 1,629 | 0,046 | |||||||
Наружная стена - тип 8 (вариант 2) | |||||||||||||
![]() | 0,19 | 0,86 | 0,78 | 3,53 | |||||||||
N слоя п/п | Наименование | Толщина, м | Плотность | Коэффициент | |||||||||
теплопроводности | паропроницаемости | ||||||||||||
0,28 | 1,15 | 1,03 | 4,18 | ||||||||||
0,38 | 1,47 | 1,32 | 4,89 | ||||||||||
А | Б | ||||||||||||
1 | Цементно-песчаный раствор | 0,02 | 1800 | 0,76 | 0,93 | 0,09 | 0,47 | 1,76 | 1,58 | 5,53 | |||
2 | Кладка из пустотелых керамзитобетонных блоков с 2-рядной пустотностью | 1000 | 0,31 | 0,35 | 0,14 | 0,57 | 2,08 | 1,86 | 6,25 | ||||
0,66 | 2,37 | 2,12 | 6,89 | ||||||||||
0,76 | 2,70 | 2,41 | 7,61 | ||||||||||
3 | Бессер-кирпич | 0,09 | 2300 | 1,508 | 1,629 | 0,046 | |||||||
Наружная стена - тип 8 (вариант 3) | |||||||||||||
![]() | 0,19 | 0,80 | 0,73 | 3,76 | |||||||||
N слоя п/п | Наименование | Толщина, м | Плотность | Коэффициент | |||||||||
0,28 | 1,07 | 0,97 | 4,51 | ||||||||||
теплопроводности | паропроницаемости | ||||||||||||
А | Б | 0,38 | 1,36 | 1,23 | 5,34 | ||||||||
0,47 | 1,63 | 1,47 | 6,09 | ||||||||||
1 | Цементно-песчаный раствор | 0,02 | 1800 | 0,76 | 0,93 | 0,09 | |||||||
0,57 | 1,92 | 1,73 | 6,93 | ||||||||||
2 | Кладка из пустотелых керамзитобетонных блоков с 2-рядной пустотностью | 1100 | 0,34 | 0,38 | 0,12 | ||||||||
0,66 | 2,18 | 1,97 | 7,68 | ||||||||||
3 | Бессер-кирпич | 0,09 | 2300 | 1,508 | 1,629 | 0,046 | 0,76 | 2,48 | 2,23 | 8,51 | |||
Наружная стена - тип 9 (вариант 1) | |||||||||||||
![]() | 0,19 | 0,68 | 0,62 | 3,91 | |||||||||
N слоя п/п | Наименование | Толщина, м | Плотность | Коэффициент | |||||||||
теплопроводности | паропроницаемости | ||||||||||||
0,28 | 0,88 | 0,81 | 4,72 | ||||||||||
0,38 | 1,11 | 1,01 | 5,63 | ||||||||||
А | Б | ||||||||||||
1 | Цементно-песчаный раствор | 0,02 | 1800 | 0,76 | 0,93 | 0,09 | 0,47 | 1,31 | 1,19 | 6,45 | |||
2 | Кладка из пустотелых керамзитобетонных блоков с 1-рядной пустотностью | 1200 | 0,44 | 0,49 | 0,11 | 0,57 | 1,54 | 1,40 | 7,36 | ||||
0,66 | 1,74 | 1,58 | 8,18 | ||||||||||
0,76 | 1,97 | 1,79 | 9,08 | ||||||||||
3 | Бессер-кирпич | 0,09 | 2300 | 1,508 | 1,629 | 0,046 | |||||||
Наружная стена - тип 9 (вариант 2) | |||||||||||||
![]() | 0,19 | 0,64 | 0,60 | 4,08 | |||||||||
N слоя п/п | Наименование | Толщина, м | Плотность | Коэффициент | |||||||||
теплопроводности | паропроницаемости | ||||||||||||
0,28 | 0,83 | 0,77 | 4,98 | ||||||||||
А | Б | 0,38 | 1,04 | 0,96 | 5,98 | ||||||||
1 | Цементно-песчаный раствор | 0,02 | 1800 | 0,76 | 0,93 | 0,09 | 0,47 | 1,22 | 1,14 | 6,88 | |||
2 | Кладка из пустотелых керамзитобетонных блоков с 1-рядной пустотностью | 1300 | 0,48 | 0,52 | 0,1 | 0,57 | 1,43 | 1,33 | 7,88 | ||||
0,66 | 1,62 | 1,50 | 8,78 | ||||||||||
3 | Бессер-кирпич | 0,09 | 2300 | 1,508 | 1,629 | 0,046 | 0,76 | 1,83 | 1,70 | 9,78 | |||
Наружная стена - тип 10 (вариант 1) | |||||||||||||
![]() | 0,19 | 2,44 | 2,20 | 1,19 | |||||||||
N слоя п/п | Наименование | Толщина, м | Плотность | Коэффициент | |||||||||
теплопроводности | паропроницаемости | ||||||||||||
0,28 | 2,91 | 2,59 | 1,53 | ||||||||||
А | Б | ||||||||||||
1 | Цементно-песчаный раствор | 0,02 | 1800 | 0,76 | 0,93 | 0,09 | 0,38 | 3,44 | 3,03 | 1,92 | |||
2 | Кладка из пустотелых керамзитобетонных блоков с 3-рядной пустотностью | 600 | 0,19 | 0,23 | 0,26 | ||||||||
0,47 | 3,91 | 3,42 | 2,27 | ||||||||||
3 | Базальтовый утеплитель | 0,05 | 140 | 0,04 | 0,042 | 0,3 | 0,57 | 4,44 | 3,85 | 2,65 | |||
4 | Декоративно-отделочный слой | 0,0035 | 1800 | 0,76 | 0,9 | 0,05 | |||||||
Наружная стена - тип 10 (вариант 2) | |||||||||||||
![]() | 0,19 | 2,39 | 2,16 | 1,28 | |||||||||
N слоя п/п | Наименование | Толщина, м | Плотность | Коэффициент | |||||||||
теплопроводности | паропроницаемости | ||||||||||||
0,28 | 2,84 | 2,54 | 1,68 | ||||||||||
А | Б | ||||||||||||
1 | Цементно-песчаный раствор | 0,02 | 1800 | 0,76 | 0,93 | 0,09 | |||||||
0,38 | 3,34 | 2,96 | 2,11 | ||||||||||
2 | Кладка из пустотелых керамзитобетонных блоков с 3-рядной пустотностью | 700 | 0,2 | 0,24 | 0,23 | ||||||||
0,47 | 3,79 | 3,33 | 2,50 | ||||||||||
3 | Базальтовый утеплитель | 0,05 | 140 | 0,04 | 0,042 | 0,3 | 0,57 | 4,29 | 3,75 | 2,94 | |||
4 | Декоративно-отделочный слой | 0,0035 | 1800 | 0,76 | 0,9 | 0,05 | |||||||
Наружная стена - тип 10 (вариант 3) | |||||||||||||
![]() | 0,19 | 2,34 | 2,13 | 1,46 | |||||||||
N слоя п/п | Наименование | Толщина, м | Плотность | Коэффициент | |||||||||
теплопроводности | паропроницаемости | ||||||||||||
0,28 | 2,77 | 2,49 | 1,93 | ||||||||||
А | Б | ||||||||||||
1 | Цементно-песчаный раствор | 0,02 | 800 | 0,76 | 0,93 | 0,09 | 0,38 | 3,25 | 2,89 | 2,46 | |||
2 | Кладка из пустотелых керамзитобетонных блоков с 3-рядной пустотностью | 800 | 0,21 | 0,25 | 0,19 | 0,47 | 3,68 | 3,25 | 2,93 | ||||
3 | Базальтовый утеплитель | 0,05 | 140 | 0,04 | 0,042 | 0,3 | 0,57 | 4,15 | 3,65 | 3,46 | |||
4 | Декоративно-отделочный слой | 0,0035 | 1800 | 0,76 | 0,9 | 0,05 | |||||||
Наружная стена - тип 10 (вариант 4) | |||||||||||||
![]() | 0,19 | 2,23 | 2,05 | 1,58 | |||||||||
N слоя п/п | Наименование | Толщина, м | Плотность | Коэффициент | |||||||||
теплопроводности | паропроницаемости | ||||||||||||
0,28 | 2,61 | 2,37 | 2,10 | ||||||||||
А | Б | ||||||||||||
1 | Цементно-песчаный раствор | 0,02 | 1800 | 0,76 | 0,93 | 0,09 | 0,38 | 3,02 | 2,72 | 2,69 | |||
2 | Кладка из пустотелых керамзитобетонных блоков с 3-рядной пустотностью | 900 | 0,24 | 0,28 | 0,17 | ||||||||
0,47 | 3,40 | 3,05 | 3,22 | ||||||||||
0,57 | 3,81 | 3,41 | 3,81 | ||||||||||
3 | Базальтовый утеплитель | 0,05 | 140 | 0,04 | 0,042 | 0,3 | |||||||
4 | Декоративно-отделочный слой | 0,0035 | 1800 | 0,76 | 0,9 | 0,05 | |||||||
Наружная стена - тип 10 (вариант 5) | |||||||||||||
![]() | 0,19 | 2,17 | 1,99 | 1,82 | |||||||||
N слоя п/п | Наименование | Толщина, м | Плотность | Коэффициент | |||||||||
теплопроводности | паропроницаемости | ||||||||||||
А | Б | 0,28 | 2,52 | 2,28 | 2,46 | ||||||||
1 | Цементно-песчаный раствор | 0,02 | 1800 | 0,76 | 0,93 | 0,09 | 0,38 | 2,90 | 2,60 | 3,17 | |||
2 | Кладка из пустотелых керамзитобетонных блоков с 3-рядной пустотностью | 1000 | 0,26 | 0,31 | 0,14 | ||||||||
0,47 | 3,25 | 2,89 | 3,82 | ||||||||||
0,57 | 3,63 | 3,21 | 4,53 | ||||||||||
3 | Базальтовый утеплитель | 0,05 | 140 | 0,04 | 0,042 | 0,3 | |||||||
4 | Декоративно-отделочный слой | 0,0035 | 1800 | 0,76 | 0,9 | 0,05 | |||||||
Наружная стена - тип 11 (вариант 1) | |||||||||||||
![]() | 0,19 | 2,14 | 1,97 | 1,58 | |||||||||
N слоя п/п | Наименование | Толщина, м | Плотность | Коэффициент | |||||||||
теплопроводности | паропроницаемости | ||||||||||||
0,28 | 2,48 | 2,25 | 2,10 | ||||||||||
А | Б | ||||||||||||
1 | Цементно-песчаный раствор | 0,02 | 1800 | 0,76 | 0,93 | 0,09 | 0,38 | 2,85 | 2,56 | 2,69 | |||
2 | Кладка из пустотелых керамзитобетонных блоков с 2-рядной пустотностью | 900 | 0,27 | 0,32 | 0,17 | ||||||||
0,47 | 3,18 | 2,84 | 3,22 | ||||||||||
0,57 | 3,55 | 3,15 | 3,81 | ||||||||||
3 | Базальтовый утеплитель | 0,05 | 140 | 0,04 | 0,042 | 0,3 | |||||||
4 | Декоративно-отделочный слой | 0,0035 | 1800 | 0,76 | 0,9 | 0,05 | |||||||
Наружная стена - тип 11 (вариант 2) | |||||||||||||
![]() | 0,19 | 2,05 | 1,92 | 1,82 | |||||||||
N слоя п/п | Наименование | Толщина, м | Плотность | Коэффициент | |||||||||
теплопроводности | паропроницаемости | ||||||||||||
0,28 | 2,34 | 2,17 | 2,46 | ||||||||||
А | Б | ||||||||||||
1 | Цементно-песчаный раствор | 0,02 | 1800 | 0,76 | 0,93 | 0,09 | 0,38 | 2,66 | 2,46 | 3,17 | |||
2 | Кладка из пустотелых керамзитобетонных блоков с 2-рядной пустотностью | 1000 | 0,31 | 0,35 | 0,14 | ||||||||
0,47 | 2,95 | 2,72 | 3,82 | ||||||||||
0,57 | 3,28 | 3,00 | 4,53 | ||||||||||
3 | Базальтовый утеплитель | 0,05 | 140 | 0,04 | 0,042 | 0,3 | |||||||
4 | Декоративно-отделочный слой | 0,0035 | 1800 | 0,76 | 0,9 | 0,05 | |||||||
Наружная стена - тип 11 (вариант 3) | |||||||||||||
![]() | 0,19 | 2,00 | 1,87 | 2,04 | |||||||||
N слоя п/п | Наименование | Толщина, м | Плотность | Коэффициент | |||||||||
теплопроводности | паропроницаемости | ||||||||||||
0,28 | 2,26 | 2,11 | 2,79 | ||||||||||
А | Б | ||||||||||||
1 | Цементно-песчаный раствор | 0,02 | 800 | 0,76 | 0,93 | 0,09 | 0,38 | 2,55 | 2,37 | 3,62 | |||
2 | Кладка из пустотелых керамзитобетонных блоков с 2-рядной пустотностью | 1100 | 0,34 | 0,38 | 0,12 | ||||||||
0,47 | 2,82 | 2,61 | 4,37 | ||||||||||
0,57 | 3,11 | 2,87 | 5,21 | ||||||||||
3 | Базальтовый утеплитель | 0,05 | 140 | 0,04 | 0,042 | 0,3 | |||||||
4 | Декоративно-отделочный слой | 0,0035 | 1800 | 0,76 | 0,9 | 0,05 | |||||||
Наружная стена - тип 12 (вариант 1) | |||||||||||||
![]() | 0,19 | 1,87 | 1,76 | 2,19 | |||||||||
N слоя п/п | Наименование | Толщина, м | Плотность | Коэффициент | |||||||||
теплопроводности | паропроницаемости | ||||||||||||
0,28 | 2,07 | 1,94 | 3,00 | ||||||||||
А | Б | ||||||||||||
1 | Цементно-песчаный раствор | 0,02 | 1800 | 0,76 | 0,93 | 0,09 | 0,38 | 2,30 | 2,15 | 3,91 | |||
2 | Кладка из пустотелых керамзитобетонных блоков с 1-рядной пустотностью | 1200 | 0,44 | 0,49 | 0,11 | ||||||||
0,47 | 2,51 | 2,33 | 4,73 | ||||||||||
0,57 | 2,73 | 2,54 | 5,64 | ||||||||||
3 | Базальтовый утеплитель | 0,05 | 140 | 0,04 | 0,042 | 0,3 | |||||||
4 | Декоративно-отделочный слой | 0,0035 | 1800 | 0,76 | 0,9 | 0,05 | |||||||
Наружная стена - тип 12 (вариант 2) | |||||||||||||
![]() | 0,19 | 1,83 | 1,74 | 2,36 | |||||||||
N слоя п/п | Наименование | Толщина, м | Плотность | Коэффициент | |||||||||
теплопроводности | паропроницаемости | ||||||||||||
0,28 | 2,02 | 1,91 | 3,26 | ||||||||||
А | Б | ||||||||||||
1 | Цементно-песчаный раствор | 0,02 | 1800 | 0,76 | 0,93 | 0,09 | |||||||
0,38 | 2,23 | 2,10 | 4,26 | ||||||||||
2 | Кладка из пустотелых керамзитобетонных блоков с 1-рядной пустотностью | 1300 | 0,48 | 0,52 | 0,1 | ||||||||
0,47 | 2,42 | 2,28 | 5,16 | ||||||||||
3 | Базальтовый утеплитель | 0,05 | 140 | 0,04 | 0,042 | 0,3 | |||||||
4 | Декоративно-отделочный слой | 0,0035 | 1800 | 0,76 | 0,9 | 0,05 | 0,57 | 2,63 | 2,47 | 6,16 | |||
Схема конструкции | Наименование ограждения N и наименование слоя | Толщина слоя | Гладь стены - сопротивление | ||||||||||
теплопередаче, (м2·°C)/Вт, в условиях эксплуатации | паропроницанию, (м2·ч·Па)/мг | ||||||||||||
А | Б | ||||||||||||
ОДНОСЛОЙНЫЕ НАРУЖНЫЕ СТЕНЫ | |||||||||||||
Несущая наружная стена - тип 1 | |||||||||||||
![]() | 0,42 | 3,81 | 3,51 | 2,85 | |||||||||
N слоя п/п | Наименование | Толщина, м | Плотность | Коэффициент | |||||||||
теплопроводности | паропроницаемости | ||||||||||||
А | Б | ||||||||||||
1 | Беспесчаный керамзитобетон | 0,02 | 700 | 0,15 | 0,16 | 0,14 | |||||||
2 | Беспесчаный керамзитобетон | 0,385 | 400 | 0,11 | 0,12 | 0,16 | |||||||
3 | Декоративная тонкослойная штукатурка | 0,015 | 2000 | 0,8 | 0,9 | 0,05 | |||||||
Самонесущая наружная стена - тип 2 | |||||||||||||
![]() | 0,42 | 2,88 | 2,71 | 3,29 | |||||||||
N слоя п/п | Наименование | Толщина, м | Плотность | Коэффициент | |||||||||
теплопроводности | паропроницаемости | ||||||||||||
А | Б | ||||||||||||
1 | Беспесчаный керамзитобетон | 0,02 | 700 | 0,15 | 0,16 | 0,14 | |||||||
2 | Беспесчаный керамзитобетон | 0,385 | 700 | 0,15 | 0,16 | 0,14 | |||||||
3 | Декоративная тонкослойная штукатурка | 0,015 | 2000 | 0,8 | 0,9 | 0,05 | |||||||
Наружная стена - тип 1 (вариант 1) | |||||||||||||
![]() | 0,19 | 2,22 | 2,11 | 1,65 | |||||||||
N слоя п/п | Наименование | Толщина, м | Плотность | Коэффициент | |||||||||
теплопроводности | паропроницаемости | 0,28 | 3,16 | 3,01 | 2,11 | ||||||||
0,38 | 4,22 | 4,01 | 2,62 | ||||||||||
А | Б | 0,47 | 5,16 | 4,91 | 3,08 | ||||||||
1 | Цементно-песчаный раствор | 0,02 | 1800 | 0,76 | 0,93 | 0,09 | 0,57 | 6,22 | 5,91 | 3,60 | |||
2 | Кладка из беспесчаного керамзитобетонного блока | 200 | 0,095 | 0,1 | 0,195 | ||||||||
3 | Цементно-песчаный раствор | 0,02 | 1800 | 0,76 | 0,93 | 0,09 | |||||||
4 | Декоративная тонкослойная штукатурка | 0,0035 | 1800 | 0,76 | 0,9 | 0,05 | |||||||
Наружная стена - тип 1 (вариант 2) | |||||||||||||
![]() | 0,19 | 2,03 | 1,93 | 1,65 | |||||||||
N слоя п/п | Наименование | Толщина, м | Плотность | Коэффициент | |||||||||
теплопроводности | паропроницаемости | 0,28 | 2,88 | 2,75 | 2,11 | ||||||||
0,38 | 3,83 | 3,66 | 2,62 | ||||||||||
А | Б | ||||||||||||
0,47 | 4,69 | 4,48 | 3,08 | ||||||||||
1 | Цементно-песчаный раствор | 0,02 | 1800 | 0,76 | 0,93 | 0,09 | |||||||
0,57 | 5,64 | 5,39 | 3,60 | ||||||||||
2 | Кладка из беспесчаного керамзитобетонного блока | 300 | 0,105 | 0,11 | 0,195 | ||||||||
3 | Цементно-песчаный раствор | 0,02 | 1800 | 0,76 | 0,93 | 0,09 | |||||||
4 | Декоративная тонкослойная штукатурка | 0,0035 | 1800 | 0,76 | 0,9 | 0,05 | |||||||
Наружная стена - тип 1 (вариант 3) | |||||||||||||
![]() | 0,19 | 1,86 | 2,01 | 1,66 | |||||||||
N слоя п/п | Наименование | Толщина, м | Плотность | Коэффициент | |||||||||
теплопроводности | паропроницаемости | 0,28 | 2,63 | 2,74 | 2,16 | ||||||||
0,38 | 3,49 | 3,45 | 2,72 | ||||||||||
А | Б | 0,47 | 4,26 | 4,165 | 3,22 | ||||||||
1 | Цементно-песчаный раствор | 0,02 | 1800 | 0,76 | 0,93 | 0,09 | 0,57 | 5,12 | 4,89 | 3,78 | |||
2 | Кладка из беспесчаного керамзитобетонного блока | 400 | 0,115 | 0,125 | 0,175 | ||||||||
3 | Цементно-песчаный раствор | 0,02 | 1800 | 0,76 | 0,93 | 0,09 | |||||||
4 | Декоративная тонкослойная штукатурка | 0,0035 | 1800 | 0,76 | 0,9 | 0,05 | |||||||
Наружная стена - тип 1 (вариант 4) | |||||||||||||
![]() | 0,19 | 1,68 | 1,56 | 1,66 | |||||||||
N слоя п/п | Наименование | Толщина, м | Плотность | Коэффициент | |||||||||
теплопроводности | паропроницаемости | ||||||||||||
0,28 | 2,37 | 2,20 | 2,21 | ||||||||||
А | Б | ||||||||||||
1 | Цементно-песчаный раствор | 0,02 | 1800 | 0,76 | 0,93 | 0,09 | 0,38 | 3,14 | 2,92 | 2,82 | |||
2 | Кладка из беспесчаного керамзитобетонного блока | 500 | 0,13 | 0,14 | 0,165 | 0,47 | 3,83 | 3,56 | 3,36 | ||||
3 | Цементно-песчаный раствор | 0,02 | 1800 | 0,76 | 0,93 | 0,09 | 0,57 | 4,60 | 4,28 | 3,97 | |||
4 | Декоративная штукатурка | 0,0035 | 1800 | 0,76 | 0,9 | 0,05 | |||||||
Наружная стена - тип 1 (вариант 5) | |||||||||||||
![]() | 0,19 | 1,57 | 1,47 | 1,74 | |||||||||
N слоя п/п | Наименование | Толщина, м | Плотность | Коэффициент | |||||||||
теплопроводности | паропроницаемости | ||||||||||||
0,28 | 2,21 | 2,07 | 2,32 | ||||||||||
А | Б | ||||||||||||
1 | Цементно-песчаный раствор | 0,02 | 1800 | 0,76 | 0,93 | 0,09 | 0,38 | 2,93 | 2,74 | 2,97 | |||
2 | Кладка из беспесчаного керамзитобетонного блока | 600 | 0,14 | 0,15 | 0,155 | ||||||||
0,47 | 3,57 | 3,34 | 3,55 | ||||||||||
3 | Цементно-песчаный раствор | 0,02 | 1800 | 0,76 | 0,93 | 0,09 | |||||||
0,57 | 4,29 | 4,00 | 4,19 | ||||||||||
4 | Декоративная штукатурка | 0,0035 | 1800 | 0,76 | 0,9 | 0,05 | |||||||
Наружная стена - тип 1 (вариант 6) | |||||||||||||
![]() | 0,19 | 1,53 | 1,43 | 1,82 | |||||||||
N слоя п/п | Наименование | Толщина, м | Плотность | Коэффициент | |||||||||
теплопроводности | паропроницаемости | ||||||||||||
0,28 | 2,15 | 2,01 | 2,44 | ||||||||||
А | Б | ||||||||||||
1 | Цементно-песчаный раствор | 0,02 | 1800 | 0,76 | 0,93 | 0,09 | 0,38 | 2,84 | 2,66 | 3,13 | |||
2 | Кладка из беспесчаного керамзитобетонного блока | 700 | 0,145 | 0,155 | 0,145 | 0,47 | 3,46 | 3,24 | 3,75 | ||||
3 | Цементно-песчаный раствор | 0,02 | 1800 | 0,76 | 0,93 | 0,09 | 0,57 | 4,15 | 3,88 | 4,44 | |||
4 | Декоративная штукатурка | 0,0035 | 1800 | 0,76 | 0,9 | 0,05 | |||||||
Наружная стена - тип 2 (вариант 1) | |||||||||||||
![]() | 0,19 | 2,39 | 2,27 | 2,21 | |||||||||
N слоя п/п | Наименование | Толщина, м | Плотность | Коэффициент | |||||||||
теплопроводности | паропроницаемости | 0,28 | 3,34 | 3,17 | 2,67 | ||||||||
А | Б | 0,38 | 4,39 | 4,17 | 3,19 | ||||||||
1 | Цементно-песчаный раствор | 0,02 | 1800 | 0,76 | 0,93 | 0,09 | 0,47 | 5,34 | 5,07 | 3,65 | |||
0,57 | 6,39 | 6,07 | 4,16 | ||||||||||
2 | Кладка из беспесчаного керамзитобетонного блока | 200 | 0,095 | 0,1 | 0,195 | ||||||||
0,66 | 7,34 | 6,97 | 4,62 | ||||||||||
3 | Кладка из кирпича керамического пустотного | 0,12 | 1600 | 0,58 | 0,64 | 0,14 | 0,76 | 8,39 | 7,97 | 5,14 | |||
Наружная стена - тип 2 (вариант 2) | |||||||||||||
![]() | 0,19 | 2,20 | 2,09 | 2,21 | |||||||||
N слоя п/п | Наименование | Толщина, м | Плотность | Коэффициент | |||||||||
теплопроводности | паропроницаемости | 0,28 | 3,06 | 2,91 | 2,67 | ||||||||
А | Б | 0,38 | 4,01 | 3,82 | 3,19 | ||||||||
0,47 | 4,87 | 4,64 | 3,65 | ||||||||||
1 | Цементно-песчаный раствор | 0,02 | 1800 | 0,76 | 0,93 | 0,09 | |||||||
0,57 | 5,82 | 5,55 | 4,16 | ||||||||||
2 | Кладка из беспесчаного керамзитобетонного блока | 300 | 0,105 | 0,11 | 0,195 | ||||||||
0,66 | 6,68 | 6,37 | 4,62 | ||||||||||
3 | Кладка из кирпича керамического пустотного | 0,12 | 1600 | 0,58 | 0,64 | 0,14 | 0,76 | 7,63 | 7,28 | 5,14 | |||
Наружная стена - тип 2 (вариант 3) | |||||||||||||
![]() | 0,19 | 2,04 | 1,89 | 2,32 | |||||||||
N слоя п/п | Наименование | Толщина, м | Плотность | Коэффициент | |||||||||
теплопроводности | паропроницаемости | 0,28 | 2,83 | 2,61 | 2,84 | ||||||||
А | Б | 0,38 | 3,70 | 3,41 | 3,41 | ||||||||
0,47 | 4,48 | 4,13 | 3,92 | ||||||||||
1 | Цементно-песчаный раствор | 0,02 | 1800 | 0,76 | 0,93 | 0,09 | |||||||
0,57 | 5,35 | 4,93 | 4,49 | ||||||||||
2 | Кладка из беспесчаного керамзитобетонного блока | 400 | 0,115 | 0,125 | 0,175 | ||||||||
0,66 | 6,13 | 5,65 | 5,01 | ||||||||||
3 | Кладка из кирпича керамического пустотного | 0,12 | 1600 | 0,58 | 0,64 | 0,14 | 0,76 | 7,00 | 6,45 | 5,58 | |||
Наружная стена - тип 2 (вариант 4) | |||||||||||||
![]() | 0,19 | 1,85 | 1,72 | 2,23 | |||||||||
N слоя п/п | Наименование | Толщина, м | Плотность | Коэффициент | |||||||||
теплопроводности | паропроницаемости | 0,28 | 2,54 | 2,37 | 2,78 | ||||||||
0,38 | 3,31 | 3,08 | 3,38 | ||||||||||
А | Б | 0,47 | 4,01 | 3,72 | 3,93 | ||||||||
0,57 | 4,77 | 4,44 | 4,53 | ||||||||||
1 | Цементно-песчаный раствор | 0,02 | 1800 | 0,76 | 0,93 | 0,09 | |||||||
0,66 | 5,47 | 5,08 | 5,08 | ||||||||||
2 | Кладка из беспесчаного керамзитобетонного блока | 500 | 0,13 | 0,14 | 0,165 | ||||||||
0,76 | 6,24 | 5,79 | 5,68 | ||||||||||
3 | Кладка из кирпича керамического пустотного | 0,12 | 1600 | 0,58 | 0,64 | 0,14 | |||||||
Наружная стена - тип 2 (вариант 5) | |||||||||||||
![]() | 0,19 | 1,75 | 1,63 | 2,30 | |||||||||
N слоя п/п | Наименование | Толщина, м | Плотность | Коэффициент | |||||||||
теплопроводности | паропроницаемости | 0,28 | 2,39 | 2,23 | 2,88 | ||||||||
0,38 | 3,10 | 2,90 | 3,53 | ||||||||||
А | Б | ||||||||||||
0,47 | 3,75 | 3,50 | 4,11 | ||||||||||
1 | Цементно-песчаный раствор | 0,02 | 1800 | 0,76 | 0,93 | 0,09 | |||||||
0,57 | 4,46 | 4,17 | 4,76 | ||||||||||
2 | Кладка из беспесчаного керамзитобетонного блока | 600 | 0,14 | 0,15 | 0,155 | ||||||||
0,66 | 5,10 | 4,77 | 5,34 | ||||||||||
3 | Кладка из кирпича керамического пустотного | 0,12 | 1600 | 0,58 | 0,64 | 0,14 | 0,76 | 5,82 | 5,43 | 5,98 | |||
Наружная стена - тип 3 (вариант 1) | |||||||||||||
![]() | 0,19 | 1,81 | 1,68 | 5,50 | |||||||||
N слоя п/п | Наименование | Толщина, м | Плотность | Коэффициент | |||||||||
теплопроводности | паропроницаемости | 0,28 | 2,50 | 2,33 | 6,05 | ||||||||
0,38 | 3,27 | 3,04 | 6,65 | ||||||||||
А | Б | ||||||||||||
0,47 | 3,96 | 3,68 | 7,20 | ||||||||||
1 | Цементно-песчаный раствор | 0,02 | 1800 | 0,76 | 0,93 | 0,09 | |||||||
0,57 | 4,73 | 4,40 | 7,80 | ||||||||||
0,66 | 5,42 | 5,04 | 8,35 | ||||||||||
2 | Кладка из беспесчаного керамзитобетонного блока | 500 | 0,13 | 0,14 | 0,165 | ||||||||
0,76 | 6,19 | 5,75 | 8,96 | ||||||||||
3 | Фасадный бессер-блок | 0,19 | 2300 | 1,17 | 1,29 | 0,046 | |||||||
Наружная стена - тип 3 (вариант 2) | |||||||||||||
![]() | 0,19 | 1,70 | 1,59 | 5,58 | |||||||||
N слоя п/п | Наименование | Толщина, м | Плотность | Коэффициент | |||||||||
теплопроводности | паропроницаемости | 0,28 | 2,35 | 2,19 | 6,16 | ||||||||
0,38 | 3,06 | 2,86 | 6,80 | ||||||||||
А | Б | ||||||||||||
0,47 | 3,70 | 3,46 | 7,38 | ||||||||||
1 | Цементно-песчаный раствор | 0,02 | 1800 | 0,76 | 0,93 | 0,09 | 0,57 | 4,42 | 4,13 | 8,03 | |||
0,66 | 5,06 | 4,73 | 8,61 | ||||||||||
2 | Кладка из беспесчаного керамзитобетонного блока | 600 | 0,14 | 0,15 | 0,155 | ||||||||
0,76 | 5,77 | 5,39 | 9,25 | ||||||||||
3 | Фасадный бессер-блок | 0,19 | 2300 | 1,17 | 1,29 | 0,046 | |||||||
Наружная стена - тип 4 (вариант 1) | |||||||||||||
![]() | 0,19 | 2,24 | 2,14 | 3,31 | |||||||||
N слоя п/п | Наименование | Толщина, м | Плотность | Коэффициент | |||||||||
теплопроводности | паропроницаемости | 0,28 | 3,19 | 3,04 | 3,77 | ||||||||
0,38 | 4,24 | 4,04 | 4,29 | ||||||||||
А | Б | ||||||||||||
0,47 | 5,19 | 4,94 | 4,75 | ||||||||||
1 | Цементно-песчаный раствор | 0,02 | 1800 | 0,76 | 0,93 | 0,09 | |||||||
0,57 | 6,24 | 5,94 | 5,26 | ||||||||||
0,66 | 7,19 | 6,84 | 5,72 | ||||||||||
2 | Кладка из беспесчаного керамзитобетонного блока | 200 | 0,095 | 0,1 | 0,195 | ||||||||
0,76 | 8,24 | 7,84 | 6,23 | ||||||||||
3 | Бессер-кирпич | 0,09 | 2300 | 1,508 | 1,629 | 0,046 | |||||||
Наружная стена - тип 4 (вариант 2) | |||||||||||||
![]() | 0,19 | 2,05 | 1,96 | 3,31 | |||||||||
N слоя п/п | Наименование | Толщина, м | Плотность | Коэффициент | |||||||||
теплопроводности | паропроницаемости | 0,28 | 2,91 | 2,78 | 3,77 | ||||||||
0,38 | 3,86 | 3,69 | 4,29 | ||||||||||
А | Б | ||||||||||||
0,47 | 4,72 | 4,51 | 4,75 | ||||||||||
1 | Цементно-песчаный раствор | 0,02 | 1800 | 0,76 | 0,93 | 0,09 | |||||||
0,57 | 5,67 | 5,42 | 5,26 | ||||||||||
0,66 | 6,53 | 6,24 | 5,72 | ||||||||||
2 | Кладка из беспесчаного керамзитобетонного блока | 300 | 0,105 | 0,11 | 0,195 | ||||||||
0,76 | 7,48 | 7,14 | 6,23 | ||||||||||
3 | Бессер-кирпич | 0,09 | 2300 | 1,508 | 1,629 | 0,046 | |||||||
Наружная стена - тип 4 (вариант 3) | |||||||||||||
![]() | 0,19 | 1,90 | 1,76 | 3,42 | |||||||||
N слоя п/п | Наименование | Толщина, м | Плотность | Коэффициент | |||||||||
теплопроводности | паропроницаемости | 0,28 | 2,68 | 2,48 | 3,94 | ||||||||
0,38 | 3,55 | 3,28 | 4,51 | ||||||||||
А | Б | ||||||||||||
0,47 | 4,33 | 4,00 | 5,02 | ||||||||||
1 | Цементно-песчаный раствор | 0,02 | 1800 | 0,76 | 0,93 | 0,09 | |||||||
0,57 | 5,20 | 4,80 | 5,59 | ||||||||||
0,66 | 5,98 | 5,52 | 6,11 | ||||||||||
2 | Кладка из беспесчаного керамзитобетонного блока | 400 | 0,115 | 0,125 | 0,175 | ||||||||
0,76 | 6,85 | 6,32 | 6,68 | ||||||||||
3 | Бессер-кирпич | 0,09 | 2300 | 1,508 | 1,629 | 0,046 | |||||||
Наружная стена - тип 4 (вариант 4) | |||||||||||||
![]() | 0,19 | 1,70 | 1,59 | 5,58 | |||||||||
N слоя п/п | Наименование | Толщина, м | Плотность | Коэффициент | |||||||||
теплопроводности | паропроницаемости | 0,28 | 2,40 | 2,19 | 6,16 | ||||||||
0,38 | 3,17 | 2,86 | 6,80 | ||||||||||
А | Б | ||||||||||||
0,47 | 3,86 | 3,46 | 7,38 | ||||||||||
1 | Цементно-песчаный раствор | 0,02 | 1800 | 0,76 | 0,93 | 0,09 | |||||||
0,57 | 4,63 | 4,13 | 8,03 | ||||||||||
0,66 | 5,32 | 4,73 | 8,61 | ||||||||||
2 | Кладка из беспесчаного керамзитобетонного блока | 500 | 0,13 | 0,14 | 0,165 | ||||||||
0,76 | 6,09 | 5,39 | 9,25 | ||||||||||
3 | Бессер-кирпич | 0,09 | 2300 | 1,508 | 1,629 | 0,046 | |||||||
Наружная стена - тип 4 (вариант 5) | |||||||||||||
![]() | 0,19 | 1,60 | 1,50 | 3,40 | |||||||||
N слоя п/п | Наименование | Толщина, м | Плотность | Коэффициент | |||||||||
теплопроводности | паропроницаемости | 0,28 | 2,24 | 2,10 | 3,98 | ||||||||
0,38 | 2,96 | 2,77 | 4,63 | ||||||||||
А | Б | ||||||||||||
0,47 | 3,60 | 3,37 | 5,21 | ||||||||||
1 | Цементно-песчаный раствор | 0,02 | 1800 | 0,76 | 0,93 | 0,09 | |||||||
0,57 | 4,31 | 4,03 | 5,86 | ||||||||||
2 | Кладка из беспесчаного керамзитобетонного блока | 600 | 0,14 | 0,15 | 0,155 | 0,66 | 4,96 | 4,63 | 6,44 | ||||
0,76 | 5,67 | 5,30 | 7,08 | ||||||||||
3 | Бессер-кирпич | 0,09 | 2300 | 1,508 | 1,629 | 0,046 | |||||||
Схема конструкции | Наименование ограждения N и наименование слоя | Толщина слоя | Гладь стены - сопротивление | ||||||||||
теплопередаче, (м2·°C)/Вт, в условиях эксплуатации | паропроницанию, (м2·ч·Па)/мг | ||||||||||||
А | Б | ||||||||||||
Наружная стена - тип 1 (вариант 1) | |||||||||||||
![]() | 0,25 | 1,47 | 1,38 | 3,01 | |||||||||
N слоя п/п | Наименование | Толщина, м | Плотность | Коэффициент | |||||||||
теплопроводности | паропроницаемости | ||||||||||||
0,38 | 1,64 | 1,52 | 4,19 | ||||||||||
А | Б | ||||||||||||
0,51 | 1,81 | 1,67 | 5,37 | ||||||||||
1 | Цементно-песчаный раствор | 0,02 | 1800 | 0,76 | 0,93 | 0,09 | |||||||
2 | Кладка из кирпича силикатного на цементно-песчаном растворе | 1800 | 0,76 | 0,87 | 0,11 | 0,64 | 1,98 | 1,82 | 6,55 | ||||
0,77 | 2,15 | 1,97 | 7,73 | ||||||||||
3 | Керамзитобетонная навесная плита с декоративно-отделочным слоем | 0,1 | 300 | 0,105 | 0,11 | 0,195 | |||||||
Наружная стена - тип 1 (вариант 2) | |||||||||||||
![]() | 0,25 | 1,49 | 1,40 | 3,01 | |||||||||
N слоя п/п | Наименование | Толщина, м | Плотность | Коэффициент | |||||||||
теплопроводности | паропроницаемости | ||||||||||||
0,38 | 1,68 | 1,56 | 4,19 | ||||||||||
А | Б | ||||||||||||
1 | Цементно-песчаный раствор | 0,02 | 1800 | 0,76 | 0,93 | 0,09 | |||||||
0,51 | 1,86 | 1,72 | 5,37 | ||||||||||
2 | Кладка из кирпича глиняного обыкновенного на цементно-песчаном растворе | 1800 | 0,7 | 0,81 | 0,11 | ||||||||
0,64 | 2,05 | 1,88 | 6,55 | ||||||||||
3 | Керамзитобетонная навесная плита с декоративно-отделочным слоем | 0,1 | 300 | 0,105 | 0,11 | 0,195 | 0,77 | 2,23 | 2,04 | 7,73 | |||
Наружная стена - тип 1 (вариант 3) | |||||||||||||
![]() | 0,35 | 1,91 | 1,74 | 3,69 | |||||||||
N слоя п/п | Наименование | Толщина, м | Плотность | Коэффициент | |||||||||
теплопроводности | паропроницаемости | ||||||||||||
А | Б | ||||||||||||
1 | Керамзитобетонная стеновая панель | 1200 | 0,44 | 0,52 | 0,11 | 0,40 | 2,02 | 1,84 | 4,15 | ||||
2 | Керамзитобетонная навесная плита с декоративно-отделочным слоем | 0,1 | 300 | 0,105 | 0,11 | 0,195 | |||||||
Наружная стена - тип 2 (вариант 1) | |||||||||||||
![]() | 0,25 | 1,47 | 1,38 | 3,01 | |||||||||
N слоя п/п | Наименование | Толщина, м | Плотность | Коэффициент | |||||||||
теплопроводности | паропроницаемости | ||||||||||||
0,38 | 1,64 | 1,52 | 4,19 | ||||||||||
А | Б | ||||||||||||
1 | Керамзитобетонная навесная плита с декоративно-отделочным слоем | 0,1 | 300 | 0,105 | 0,11 | 0,195 | |||||||
0,51 | 1,81 | 1,67 | 5,37 | ||||||||||
0,64 | 1,98 | 1,82 | 6,55 | ||||||||||
2 | Кладка из кирпича силикатного на цементно-песчаном растворе | 1800 | 0,76 | 0,87 | 0,11 | ||||||||
0,77 | 2,15 | 1,97 | 7,73 | ||||||||||
3 | Цементно-песчаный раствор | 0,02 | 1800 | 0,76 | 0,93 | 0,09 | |||||||
Наружная стена - тип 2 (вариант 2) | |||||||||||||
![]() | 0,25 | 1,49 | 1,40 | 3,01 | |||||||||
N слоя п/п | Наименование | Толщина, м | Плотность | Коэффициент | |||||||||
теплопроводности | паропроницаемости | ||||||||||||
0,38 | 1,68 | 1,56 | 4,19 | ||||||||||
А | Б | ||||||||||||
1 | Керамзитобетонная навесная плита с декоративно-отделочным слоем | 0,1 | 300 | 0,105 | 0,11 | 0,195 | |||||||
0,51 | 1,86 | 1,72 | 5,37 | ||||||||||
2 | Кладка из кирпича глиняного обыкновенного на цементно-песчаном растворе | 1800 | 0,7 | 0,81 | 0,11 | 0,64 | 2,05 | 1,88 | 6,55 | ||||
0,77 | 2,23 | 2,04 | 7,73 | ||||||||||
3 | Цементно-песчаный раствор | 0,02 | 1800 | 0,76 | 0,93 | 0,09 | |||||||
Схема конструкции | Наименование ограждения N и наименование слоя | Толщина слоя | Гладь стены - сопротивление | ||||||||||
теплопередаче, (м2·°C)/Вт, в условиях эксплуатации | паропроницанию, (м2·ч·Па)/мг | ||||||||||||
А | Б | ||||||||||||
Стеновая панель - тип 1 | |||||||||||||
![]() | 0,21 | 2,41 | 2,28 | 2,50 | |||||||||
N слоя п/п | Наименование | Толщина, м | Плотность | Коэффициент | |||||||||
теплопроводности | паропроницаемости | ||||||||||||
А | Б | ||||||||||||
1 | Керамзитобетон на керамзитовом песке | 0,08 | 1400 | 0,56 | 0,65 | 0,098 | 0,26 | 2,88 | 2,74 | 2,76 | |||
2 | Керамзитобетон беспесчаный | 300 | 0,105 | 0,11 | 0,195 | ||||||||
3 | Керамзитобетон на керамзитовом песке | 0,06 | 1400 | 0,56 | 0,65 | 0,098 | |||||||
Стеновая панель - тип 2 | |||||||||||||
![]() | 0,23 | 2,76 | 2,60 | 3,53 | |||||||||
N слоя п/п | Наименование | Толщина, м | Плотность | Коэффициент | |||||||||
теплопроводности | паропроницаемости | ||||||||||||
А | Б | ||||||||||||
1 | Керамзитобетон на керамзитовом песке | 0,16 | 1400 | 0,56 | 0,65 | 0,098 | 0,28 | 3,23 | 3,06 | 3,78 | |||
2 | Керамзитобетон беспесчаный | 300 | 0,105 | 0,11 | 0,195 | ||||||||
3 | Керамзитобетон на керамзитовом песке | 0,07 | 1400 | 0,56 | 0,65 | 0,098 | |||||||
Стеновая панель - тип 3 | |||||||||||||
![]() | 0,12 | 1,51 | 1,43 | 1,84 | |||||||||
N слоя п/п | Наименование | Толщина, м | Плотность | Коэффициент | |||||||||
теплопроводности | паропроницаемости | ||||||||||||
А | Б | ||||||||||||
0,17 | 1,99 | 1,89 | 2,09 | ||||||||||
1 | Керамзитобетон на керамзитовом песке | 0,12 | 1400 | 0,56 | 0,65 | 0,098 | |||||||
2 | Керамзитобетон беспесчаный | 300 | 0,105 | 0,11 | 0,195 | ||||||||
Схема конструкции | Наименование ограждения N и наименование слоя | Толщина слоя | Гладь стены - сопротивление | ||||||||||
теплопередаче, (м2·°C)/Вт, в условиях эксплуатации | паропроницанию, (м2·ч·Па)/мг | ||||||||||||
А | Б | ||||||||||||
Наружная стена - тип 1 | |||||||||||||
![]() | 0,1 | 1,54 | 1,41 | 2,25 | |||||||||
N слоя п/п | Наименование | Толщина, м | Плотность | Коэффициент | |||||||||
теплопроводности | паропроницаемости | ||||||||||||
0,2 | 2,54 | 2,32 | 2,62 | ||||||||||
А | Б | ||||||||||||
1 | Керамзитобетон на керамзитовом песке | 0,1 | 1400 | 0,56 | 0,65 | 0,098 | |||||||
0,3 | 3,54 | 3,23 | 2,99 | ||||||||||
2 | Гравий керамзитовый | 200 | 0,1 | 0,11 | 0,27 | ||||||||
3 | Кладка из кирпича керамического облицовочного на цементно-песчаном растворе | 0,12 | 1600 | 0,58 | 0,64 | 0,14 | |||||||
0,4 | 4,54 | 4,14 | 3,36 | ||||||||||
Наружная стена - тип 2 | |||||||||||||
![]() | 0,1 | 1,49 | 1,36 | 2,48 | |||||||||
N слоя п/п | Наименование | Толщина, м | Плотность | Коэффициент | |||||||||
теплопроводности | паропроницаемости | ||||||||||||
0,2 | 2,49 | 2,27 | 2,85 | ||||||||||
А | Б | ||||||||||||
1 | Керамзитобетон на керамзитовом песке | 0,1 | 1400 | 0,56 | 0,65 | 0,098 | |||||||
0,3 | 3,49 | 3,18 | 3,22 | ||||||||||
2 | Гравий керамзитовый | 200 | 0,1 | 0,11 | 0,27 | ||||||||
3 | Кладка из кирпича силикатного на цементно-песчаном растворе | 0,12 | 1800 | 0,76 | 0,87 | 0,11 | 0,4 | 4,49 | 4,08 | 3,59 | |||
Наружная стена - тип 3 | |||||||||||||
![]() | 0,1 | 1,67 | 1,51 | 3,96 | |||||||||
N слоя п/п | Наименование | Толщина, м | Плотность | Коэффициент | |||||||||
теплопроводности | паропроницаемости | ||||||||||||
0,2 | 2,67 | 2,42 | 4,33 | ||||||||||
А | Б | ||||||||||||
1 | Цементно-песчаный раствор | 0,02 | 1800 | 0,76 | 0,93 | 0,09 | |||||||
2 | Кладка из кирпича силикатного на цементно-песчаном растворе | 0,25 | 1800 | 0,76 | 0,87 | 0,11 | 0,3 | 3,67 | 3,33 | 4,70 | |||
3 | Гравий керамзитовый | 200 | 0,1 | 0,11 | 0,27 | 0,4 | 4,67 | 4,24 | 5,07 | ||||
4 | Кладка из кирпича силикатного на цементно-песчаном растворе | 0,12 | 1800 | 0,76 | 0,87 | 0,11 | |||||||
Наружная стена - тип 4 | |||||||||||||
![]() | 0,1 | 1,72 | 1,56 | 3,72 | |||||||||
N слоя п/п | Наименование | Толщина, м | Плотность | Коэффициент | |||||||||
теплопроводности | паропроницаемости | ||||||||||||
А | Б | 0,2 | 2,72 | 2,47 | 4,09 | ||||||||
1 | Цементно-песчаный раствор | 0,02 | 1800 | 0,76 | 0,93 | 0,09 | |||||||
2 | Кладка из кирпича силикатного на цементно-песчаном растворе | 0,25 | 1800 | 0,76 | 0,87 | 0,11 | |||||||
0,3 | 3,72 | 3,38 | 4,46 | ||||||||||
3 | Гравий керамзитовый | 200 | 0,1 | 0,11 | 0,27 | 0,4 | 4,72 | 4,29 | 4,83 | ||||
4 | Кладка из кирпича керамического облицовочного на цементно-песчаном растворе | 0,12 | 1600 | 0,58 | 0,64 | 0,14 | |||||||
Наружная стена - тип 5 (вариант 1) | |||||||||||||
![]() | 0,1 | 0,67 | 0,56 | 0,95 | |||||||||
N слоя п/п | Наименование | Толщина, м | Плотность | Коэффициент | |||||||||
теплопроводности | паропроницаемости | 0,2 | 1,12 | 0,92 | 1,38 | ||||||||
0,3 | 1,58 | 1,28 | 1,82 | ||||||||||
А | Б | ||||||||||||
0,4 | 2,03 | 1,63 | 2,25 | ||||||||||
1 | Цементно-песчаный раствор | 0,02 | 1800 | 0,76 | 0,93 | 0,09 | |||||||
0,5 | 2,49 | 1,99 | 2,69 | ||||||||||
2 | Керамзитобетон | 700 | 0,22 | 0,28 | 0,23 | 0,6 | 2,94 | 2,35 | 3,12 | ||||
3 | Цементно-песчаный раствор | 0,02 | 1800 | 0,76 | 0,93 | 0,09 | |||||||
0,7 | 3,40 | 2,70 | 3,56 | ||||||||||
4 | Декоративная тонкослойная штукатурка | 0,0035 | 1800 | 0,76 | 0,9 | 0,05 | 0,8 | 3,85 | 3,06 | 3,99 | |||
0,9 | 4,31 | 3,42 | 4,43 | ||||||||||
1,0 | 4,76 | 3,78 | 4,86 | ||||||||||
Наружная стена - тип 5 (вариант 2) | |||||||||||||
![]() | 0,1 | 0,63 | 0,53 | 1,04 | |||||||||
N слоя п/п | Наименование | Толщина, м | Плотность | Коэффициент | |||||||||
теплопроводности | паропроницаемости | 0,2 | 1,05 | 0,85 | 1,57 | ||||||||
0,3 | 1,46 | 1,17 | 2,09 | ||||||||||
А | Б | 0,4 | 1,88 | 1,49 | 2,62 | ||||||||
1 | Цементно-песчаный раствор | 0,02 | 1800 | 0,76 | 0,93 | 0,09 | |||||||
0,5 | 2,30 | 1,82 | 3,15 | ||||||||||
0,6 | 2,71 | 2,14 | 3,67 | ||||||||||
2 | Керамзитобетон | 800 | 0,24 | 0,31 | 0,19 | ||||||||
3 | Цементно-песчаный раствор | 0,02 | 1800 | 0,76 | 0,93 | 0,09 | 0,7 | 3,13 | 2,46 | 4,20 | |||
0,8 | 3,55 | 2,78 | 4,72 | ||||||||||
4 | Декоративная тонкослойная штукатурка | 0,0035 | 1800 | 0,76 | 0,9 | 0,05 | |||||||
0,9 | 3,96 | 3,11 | 5,25 | ||||||||||
1,0 | 4,38 | 3,43 | 5,78 | ||||||||||
Наружная стена - тип 5 (вариант 3) | |||||||||||||
![]() | 0,1 | 0,57 | 0,48 | 1,10 | |||||||||
N слоя п/п | Наименование | Толщина, м | Плотность | Коэффициент | |||||||||
теплопроводности | паропроницаемости | 0,2 | 0,93 | 0,76 | 1,69 | ||||||||
0,3 | 1,29 | 1,04 | 2,28 | ||||||||||
А | Б | ||||||||||||
0,4 | 1,64 | 1,32 | 2,87 | ||||||||||
1 | Цементно-песчаный раствор | 0,02 | 1800 | 0,76 | 0,93 | 0,09 | |||||||
0,5 | 2,00 | 1,59 | 3,45 | ||||||||||
0,6 | 2,36 | 1,87 | 4,04 | ||||||||||
2 | Керамзитобетон | 900 | 0,28 | 0,36 | 0,17 | ||||||||
3 | Цементно-песчаный раствор | 0,02 | 1800 | 0,76 | 0,93 | 0,09 | 0,7 | 2,71 | 2,15 | 4,63 | |||
0,8 | 3,07 | 2,43 | 5,22 | ||||||||||
4 | Декоративная тонкослойная штукатурка | 0,0035 | 1800 | 0,76 | 0,9 | 0,05 | |||||||
0,9 | 3,43 | 2,70 | 5,81 | ||||||||||
1,0 | 3,79 | 2,98 | 6,40 | ||||||||||
Схема конструкции | Наименование ограждения N и наименование слоя | Толщина слоя | Гладь стены - сопротивление | ||||||||||
теплопередаче, (м2·°C)/Вт, в условиях эксплуатации | паропроницанию, (м2·ч·Па)/мг | ||||||||||||
А | Б | ||||||||||||
Перекрытие над подвалом (техподпольем) - тип 1 (вариант 1) | |||||||||||||
![]() | 0,05 | 1,18 | 1,08 | 4,06 | |||||||||
N слоя п/п | Наименование | Толщина, м | Плотность | Коэффициент | |||||||||
теплопроводности | паропроницаемости | 0,10 | 1,69 | 1,54 | 4,24 | ||||||||
0,15 | 2,19 | 1,99 | 4,43 | ||||||||||
А | Б | 0,20 | 2,69 | 2,45 | 4,62 | ||||||||
1 | Линолеум | 0,003 | 1800 | 0,38 | 0,38 | 0,002 | 0,25 | 3,19 | 2,9 | 4,8 | |||
2 | Цементно-песчаный раствор (или сухая стяжка) | 0,03 | 1800 | 0,76 | 0,93 | 0,09 | 0,30 | 3,69 | 3,36 | 4,99 | |||
3 | Гравий керамзитовый | 200 | 0,1 | 0,11 | 0,27 | 0,35 | 4,19 | 3,81 | 5,17 | ||||
4 | Керамзитобетонная плита перекрытия | 0,2 | 1400 | 0,56 | 0,65 | 0,098 | 0,40 | 4,69 | 4,27 | 5,36 | |||
Перекрытие над подвалом (техподпольем) - тип 1 (вариант 2) | |||||||||||||
![]() | 0,05 | 1,14 | 1,05 | 4,07 | |||||||||
N слоя п/п | Наименование | Толщина, м | Плотность | Коэффициент | |||||||||
теплопроводности | паропроницаемости | 0,10 | 1,60 | 1,46 | 4,26 | ||||||||
0,15 | 2,05 | 1,88 | 4,45 | ||||||||||
А | Б | 0,20 | 2,50 | 2,30 | 4,64 | ||||||||
1 | Линолеум | 0,003 | 1800 | 0,38 | 0,38 | 0,002 | 0,25 | 2,96 | 2,71 | 4,84 | |||
2 | Цементно-песчаный раствор (или сухая стяжка) | 0,03 | 1800 | 0,76 | 0,93 | 0,09 | 0,30 | 3,41 | 3,13 | 5,03 | |||
3 | Гравий керамзитовый | 250 | 0,11 | 0,12 | 0,26 | 0,35 | 3,87 | 3,55 | 5,22 | ||||
4 | Керамзитобетонная плита перекрытия | 0,2 | 1400 | 0,56 | 0,65 | 0,098 | 0,40 | 4,32 | 3,96 | 5,41 | |||
Перекрытие над подвалом (техподпольем) - тип 1 (вариант 3) | |||||||||||||
![]() | 0,05 | 1,10 | 1,01 | 4,07 | |||||||||
N слоя п/п | Наименование | Толщина, м | Плотность | Коэффициент | |||||||||
теплопроводности | паропроницаемости | 0,10 | 1,52 | 1,37 | 4,27 | ||||||||
0,15 | 1,94 | 1,78 | 4,47 | ||||||||||
А | Б | 0,20 | 2,35 | 2,15 | 4,67 | ||||||||
1 | Линолеум | 0,003 | 1800 | 0,38 | 0,38 | 0,002 | 0,25 | 2,77 | 2,55 | 4,87 | |||
2 | Цементно-песчаный раствор (или сухая стяжка) | 0,03 | 1800 | 0,76 | 0,93 | 0,09 | 0,30 | 3,19 | 2,94 | 5,07 | |||
3 | Гравий керамзитовый | 300 | 0,12 | 0,13 | 0,25 | 0,35 | 3,60 | 3,32 | 5,27 | ||||
4 | Керамзитобетонная плита перекрытия | 0,2 | 1400 | 0,56 | 0,65 | 0,098 | 0,40 | 4,02 | 3,71 | 5,47 | |||
Перекрытие над подвалом (техподпольем) - тип 1 (вариант 4) | |||||||||||||
![]() | 0,05 | 1,09 | 0,99 | 4,08 | |||||||||
N слоя п/п | Наименование | Толщина, м | Плотность | Коэффициент | |||||||||
теплопроводности | паропроницаемости | 0,10 | 1,49 | 1,34 | 4,28 | ||||||||
0,15 | 1,89 | 1,70 | 4,48 | ||||||||||
А | Б | 0,20 | 2,29 | 2,06 | 4,69 | ||||||||
1 | Линолеум | 0,003 | 1800 | 0,38 | 0,38 | 0,002 | 0,25 | 2,69 | 2,41 | 4,89 | |||
2 | Цементно-песчаный раствор (или сухая стяжка) | 0,03 | 1800 | 0,76 | 0,93 | 0,09 | 0,30 | 3,09 | 2,77 | 5,10 | |||
3 | Гравий керамзитовый | 350 | 0,125 | 0,14 | 0,245 | 0,35 | 3,49 | 3,13 | 5,30 | ||||
4 | Керамзитобетонная плита перекрытия | 0,2 | 1400 | 0,56 | 0,65 | 0,098 | 0,40 | 3,89 | 3,48 | 5,51 | |||
Перекрытие над подвалом (техподпольем) - тип 1 (вариант 5) | |||||||||||||
![]() | 0,05 | 1,07 | 0,97 | 4,08 | |||||||||
N слоя п/п | Наименование | Толщина, м | Плотность | Коэффициент | |||||||||
теплопроводности | паропроницаемости | 0,10 | 1,45 | 1,32 | 4,29 | ||||||||
0,15 | 1,84 | 1,66 | 4,50 | ||||||||||
А | Б | 0,20 | 2,22 | 2,01 | 4,71 | ||||||||
1 | Линолеум | 0,003 | 1800 | 0,38 | 0,38 | 0,002 | 0,25 | 2,61 | 2,35 | 4,92 | |||
2 | Цементно-песчаный раствор (или сухая стяжка) | 0,03 | 1800 | 0,76 | 0,93 | 0,09 | 0,30 | 2,99 | 2,70 | 5,12 | |||
3 | Гравий керамзитовый | 400 | 0,13 | 0,145 | 0,24 | 0,35 | 3,38 | 3,04 | 5,33 | ||||
4 | Керамзитобетонная плита перекрытия | 0,2 | 1400 | 0,56 | 0,65 | 0,098 | 0,40 | 3,76 | 3,39 | 5,54 | |||
Перекрытие над подвалом (техподпольем) - тип 2 (вариант 1) | |||||||||||||
![]() | 0,05 | 0,93 | 0,84 | 5,64 | |||||||||
N слоя п/п | Наименование | Толщина, м | Плотность | Коэффициент | |||||||||
теплопроводности | паропроницаемости | 0,10 | 1,37 | 1,20 | 5,77 | ||||||||
0,15 | 1,80 | 1,55 | 5,91 | ||||||||||
А | Б | 0,20 | 2,24 | 1,91 | 6,04 | ||||||||
1 | Линолеум | 0,003 | 1800 | 0,38 | 0,38 | 0,002 | 0,25 | 2,67 | 2,27 | 6,18 | |||
2 | Цементно-песчаный раствор (или сухая стяжка) | 0,03 | 1800 | 0,76 | 0,93 | 0,09 | 0,30 | 3,11 | 2,62 | 6,31 | |||
3 | Керамзитобетон | 300 | 0,115 | 0,14 | 0,37 | 0,35 | 3,54 | 2,98 | 6,45 | ||||
4 | Железобетонная плита перекрытия | 0,22 | 2500 | 1,294 | 1,374 | 0,06 | 0,40 | 3,98 | 3,34 | 6,58 | |||
Перекрытие над подвалом (техподпольем) - тип 2 (вариант 2) | |||||||||||||
![]() | 0,05 | 0,88 | 0,78 | 5,65 | |||||||||
N слоя п/п | Наименование | Толщина, м | Плотность | Коэффициент | |||||||||
теплопроводности | паропроницаемости | 0,10 | 1,27 | 1,07 | 5,80 | ||||||||
0,15 | 1,65 | 1,36 | 5,95 | ||||||||||
А | Б | 0,20 | 2,04 | 1,66 | 6,11 | ||||||||
1 | Линолеум | 0,003 | 1800 | 0,38 | 0,38 | 0,002 | 0,25 | 2,42 | 1,95 | 6,26 | |||
2 | Цементно-песчаный раствор (или сухая стяжка) | 0,03 | 1800 | 0,76 | 0,93 | 0,09 | 0,30 | 2,81 | 2,25 | 6,41 | |||
3 | Керамзитобетон | 400 | 0,13 | 0,17 | 0,33 | 0,35 | 3,19 | 2,54 | 6,56 | ||||
4 | Железобетонная плита перекрытия | 0,22 | 2500 | 1,294 | 1,374 | 0,06 | 0,40 | 3,58 | 2,83 | 6,71 | |||
Перекрытие над подвалом (техподпольем) - тип 2 (вариант 3) | |||||||||||||
![]() | 0,05 | 0,81 | 0,75 | 5,67 | |||||||||
N слоя п/п | Наименование | Толщина, м | Плотность | Коэффициент | |||||||||
теплопроводности | паропроницаемости | 0,10 | 1,12 | 0,98 | 5,83 | ||||||||
0,15 | 1,44 | 1,21 | 6,00 | ||||||||||
А | Б | 0,20 | 1,75 | 1,43 | 6,17 | ||||||||
1 | Линолеум | 0,003 | 1800 | 0,38 | 0,38 | 0,002 | 0,25 | 2,06 | 1,66 | 6,33 | |||
2 | Цементно-песчаный раствор (или сухая стяжка) | 0,03 | 1800 | 0,76 | 0,93 | 0,09 | 0,30 | 2,37 | 1,89 | 6,50 | |||
3 | Керамзитобетон | 500 | 0,16 | 0,22 | 0,3 | 0,35 | 2,69 | 2,11 | 6,67 | ||||
4 | Железобетонная плита перекрытия | 0,22 | 2500 | 1,294 | 1,374 | 0,06 | 0,40 | 3,00 | 2,34 | 6,83 | |||
Перекрытие над подвалом (техподпольем) - тип 2 (вариант 4) | |||||||||||||
![]() | 0,05 | 0,76 | 0,68 | 5,69 | |||||||||
N слоя п/п | Наименование | Толщина, м | Плотность | Коэффициент | |||||||||
теплопроводности | паропроницаемости | 0,10 | 1,03 | 0,88 | 5,88 | ||||||||
0,15 | 1,29 | 1,08 | 6,07 | ||||||||||
А | Б | 0,20 | 1,55 | 1,28 | 6,27 | ||||||||
1 | Линолеум | 0,003 | 1800 | 0,38 | 0,38 | 0,002 | 0,25 | 1,81 | 1,48 | 6,46 | |||
2 | Цементно-песчаный раствор (или сухая стяжка) | 0,03 | 1800 | 0,76 | 0,93 | 0,09 | 0,30 | 2,08 | 1,68 | 6,65 | |||
3 | Керамзитобетон | 600 | 0,19 | 0,25 | 0,26 | 0,35 | 2,34 | 1,88 | 6,84 | ||||
4 | Железобетонная плита перекрытия | 0,22 | 2500 | 1,294 | 1,374 | 0,06 | 0,40 | 2,60 | 2,08 | 7,04 | |||
Перекрытие над подвалом (техподпольем) - тип 2 (вариант 5) | |||||||||||||
![]() | 0,05 | 0,73 | 0,66 | 5,72 | |||||||||
N слоя п/п | Наименование | Толщина, м | Плотность | Коэффициент | |||||||||
теплопроводности | паропроницаемости | 0,10 | 0,95 | 0,84 | 5,93 | ||||||||
0,15 | 1,18 | 1,02 | 6,15 | ||||||||||
А | Б | 0,20 | 1,41 | 1,20 | 6,37 | ||||||||
1 | Линолеум | 0,003 | 1800 | 0,38 | 0,38 | 0,002 | 0,25 | 1,64 | 1,37 | 6,58 | |||
2 | Цементно-песчаный раствор (или сухая стяжка) | 0,03 | 1800 | 0,76 | 0,93 | 0,09 | 0,30 | 1,86 | 1,55 | 6,80 | |||
3 | Керамзитобетон | 700 | 0,22 | 0,28 | 0,23 | 0,35 | 2,09 | 1,73 | 7,02 | ||||
4 | Железобетонная плита перекрытия | 0,22 | 2500 | 1,294 | 1,374 | 0,06 | 0,40 | 2,32 | 1,91 | 7,24 | |||
Перекрытие над подвалом (техподпольем) - тип 2 (вариант 6) | |||||||||||||
![]() | 0,05 | 0,71 | 0,64 | 5,76 | |||||||||
N слоя п/п | Наименование | Толщина, м | Плотность | Коэффициент | |||||||||
теплопроводности | паропроницаемости | 0,10 | 0,92 | 0,80 | 6,03 | ||||||||
0,15 | 1,12 | 0,96 | 6,29 | ||||||||||
А | Б | 0,20 | 1,33 | 1,13 | 6,55 | ||||||||
1 | Линолеум | 0,003 | 1800 | 0,38 | 0,38 | 0,002 | 0,25 | 1,54 | 1,29 | 6,82 | |||
2 | Цементно-песчаный раствор (или сухая стяжка) | 0,03 | 1800 | 0,76 | 0,93 | 0,09 | 0,30 | 1,75 | 1,45 | 7,08 | |||
3 | Керамзитобетон | 800 | 0,24 | 0,31 | 0,19 | 0,35 | 1,96 | 1,61 | 7,34 | ||||
4 | Железобетонная плита перекрытия | 0,22 | 2500 | 1,294 | 1,374 | 0,06 | 0,40 | 2,16 | 1,77 | 7,60 | |||
Перекрытие чердачное - тип 1 (вариант 1) | |||||||||||||
![]() | 0,05 | 1,11 | 1,01 | 4,40 | |||||||||
N слоя п/п | Наименование | Толщина, м | Плотность | Коэффициент | |||||||||
теплопроводности | паропроницаемости | 0,10 | 1,61 | 1,46 | 4,58 | ||||||||
0,15 | 2,11 | 1,92 | 4,77 | ||||||||||
А | Б | 0,20 | 2,61 | 2,37 | 4,95 | ||||||||
0,25 | 3,11 | 2,83 | 5,14 | ||||||||||
1 | Керамзитобетонная плита перекрытия | 0,2 | 1400 | 0,56 | 0,65 | 0,098 | 0,30 | 3,61 | 3,28 | 5,32 | |||
2 | Гидроизол, 1 слой | 0,0025 | 600 | 0,17 | 0,17 | 0,00136 | 0,35 | 4,11 | 3,73 | 5,51 | |||
3 | Гравий керамзитовый | 200 | 0,1 | 0,11 | 0,27 | 0,40 | 4,61 | 4,19 | 5,69 | ||||
4 | Цементно-песчаный армированный раствор | 0,03 | 1800 | 0,76 | 0,93 | 0,09 | 0,45 | 5,11 | 4,64 | 5,88 | |||
0,50 | 5,61 | 5,10 | 6,06 | ||||||||||
Перекрытие чердачное - тип 1 (вариант 2) | |||||||||||||
![]() | 0,05 | 1,06 | 0,97 | 4,40 | |||||||||
N слоя п/п | Наименование | Толщина, м | Плотность | Коэффициент | |||||||||
теплопроводности | паропроницаемости | 0,10 | 1,52 | 1,39 | 4,60 | ||||||||
0,15 | 1,97 | 1,80 | 4,79 | ||||||||||
А | Б | 0,20 | 2,43 | 2,22 | 4,98 | ||||||||
0,25 | 2,88 | 2,64 | 5,17 | ||||||||||
1 | Керамзитобетонная плита перекрытия | 0,2 | 1400 | 0,56 | 0,65 | 0,098 | 0,30 | 3,34 | 3,05 | 5,37 | |||
2 | Гидроизол, 1 слой | 0,0025 | 600 | 0,17 | 0,17 | 0,00136 | 0,35 | 3,79 | 3,47 | 5,56 | |||
3 | Гравий керамзитовый | 250 | 0,11 | 0,12 | 0,26 | 0,40 | 4,25 | 3,89 | 5,75 | ||||
4 | Цементно-песчаный армированный раствор | 0,03 | 1800 | 0,76 | 0,93 | 0,09 | 0,45 | 4,70 | 4,30 | 5,94 | |||
0,50 | 5,16 | 4,72 | 6,14 | ||||||||||
Перекрытие чердачное - тип 1 (вариант 3) | |||||||||||||
![]() | 0,05 | 1,03 | 0,94 | 4,41 | |||||||||
N слоя п/п | Наименование | Толщина, м | Плотность | Коэффициент | |||||||||
теплопроводности | паропроницаемости | 0,10 | 1,44 | 1,32 | 4,61 | ||||||||
0,15 | 1,86 | 1,71 | 4,81 | ||||||||||
А | Б | 0,20 | 2,28 | 2,09 | 5,01 | ||||||||
0,25 | 2,69 | 2,48 | 5,21 | ||||||||||
1 | Керамзитобетонная плита перекрытия | 0,2 | 1400 | 0,56 | 0,65 | 0,098 | 0,30 | 3,11 | 2,86 | 5,41 | |||
2 | Гидроизол, 1 слой | 0,0025 | 600 | 0,17 | 0,17 | 0,00136 | 0,35 | 3,53 | 3,25 | 5,61 | |||
3 | Гравий керамзитовый | 300 | 0,12 | 0,13 | 0,25 | 0,40 | 3,94 | 3,63 | 5,81 | ||||
4 | Цементно-песчаный армированный раствор | 0,03 | 1800 | 0,76 | 0,93 | 0,09 | 0,45 | 4,36 | 4,01 | 6,01 | |||
0,50 | 4,78 | 4,40 | 6,21 | ||||||||||
Перекрытие чердачное - тип 1 (вариант 4) | |||||||||||||
![]() | 0,05 | 1,00 | 0,91 | 4,42 | |||||||||
N слоя п/п | Наименование | Толщина, м | Плотность | Коэффициент | |||||||||
теплопроводности | паропроницаемости | 0,10 | 1,41 | 1,27 | 4,62 | ||||||||
0,15 | 1,81 | 1,62 | 4,83 | ||||||||||
А | Б | 0,20 | 2,21 | 1,98 | 5,03 | ||||||||
0,25 | 2,61 | 2,34 | 5,24 | ||||||||||
1 | Керамзитобетонная плита перекрытия | 0,2 | 1400 | 0,56 | 0,65 | 0,098 | 0,30 | 3,01 | 2,69 | 5,44 | |||
2 | Гидроизол, 1 слой | 0,0025 | 600 | 0,17 | 0,17 | 0,00136 | 0,35 | 3,41 | 3,05 | 5,64 | |||
3 | Гравий керамзитовый | 350 | 0,125 | 0,14 | 0,245 | 0,40 | 3,81 | 3,41 | 5,84 | ||||
4 | Цементно-песчаный армированный раствор | 0,03 | 1800 | 0,76 | 0,93 | 0,09 | 0,45 | 4,21 | 3,76 | 6,04 | |||
0,50 | 4,61 | 4,12 | 6,25 | ||||||||||
Перекрытие чердачное - тип 1 (вариант 5) | |||||||||||||
![]() | 0,05 | 0,99 | 0,90 | 4,42 | |||||||||
N слоя п/п | Наименование | Толщина, м | Плотность | Коэффициент | |||||||||
теплопроводности | паропроницаемости | 0,10 | 1,38 | 1,24 | 4,63 | ||||||||
0,15 | 1,76 | 1,59 | 4,84 | ||||||||||
А | Б | 0,20 | 2,15 | 1,93 | 5,04 | ||||||||
0,25 | 2,53 | 2,28 | 5,25 | ||||||||||
1 | Керамзитобетонная плита перекрытия | 0,2 | 1400 | 0,56 | 0,65 | 0,098 | 0,30 | 2,92 | 2,62 | 5,46 | |||
2 | Гидроизол, 1 слой | 0,0025 | 600 | 0,17 | 0,17 | 0,00136 | 0,35 | 3,31 | 2,96 | 5,67 | |||
3 | Гравий керамзитовый | 400 | 0,13 | 0,145 | 0,24 | 0,40 | 3,69 | 3,31 | 5,88 | ||||
4 | Цементно-песчаный армированный раствор | 0,03 | 1800 | 0,76 | 0,93 | 0,09 | 0,45 | 4,07 | 3,66 | 6,09 | |||
0,50 | 4,45 | 4,00 | 6,29 | ||||||||||
Перекрытие чердачное - тип 1 (вариант 6) | |||||||||||||
![]() | 0,05 | 0,97 | 0,87 | 4,42 | |||||||||
N слоя п/п | Наименование | Толщина, м | Плотность | Коэффициент | |||||||||
теплопроводности | паропроницаемости | 0,10 | 1,32 | 1,20 | 4,64 | ||||||||
0,15 | 1,68 | 1,52 | 4,85 | ||||||||||
А | Б | 0,20 | 2,04 | 1,84 | 5,06 | ||||||||
0,25 | 2,40 | 2,17 | 5,28 | ||||||||||
1 | Керамзитобетонная плита перекрытия | 0,2 | 1400 | 0,56 | 0,65 | 0,098 | 0,30 | 2,75 | 2,49 | 5,49 | |||
2 | Гидроизол, 1 слой | 0,0025 | 600 | 0,17 | 0,17 | 0,00136 | 0,35 | 3,11 | 2,81 | 5,70 | |||
3 | Гравий керамзитовый | 450 | 0,14 | 0,155 | 0,235 | 0,40 | 3,47 | 3,13 | 5,91 | ||||
4 | Цементно-песчаный армированный раствор | 0,03 | 1800 | 0,76 | 0,93 | 0,09 | 0,45 | 3,83 | 3,46 | 6,13 | |||
0,50 | 4,18 | 3,78 | 6,34 | ||||||||||
Перекрытие чердачное - тип 1 (вариант 7) | |||||||||||||
![]() | 0,05 | 0,94 | 0,85 | 4,43 | |||||||||
N слоя п/п | Наименование | Толщина, м | Плотность | Коэффициент | |||||||||
теплопроводности | паропроницаемости | 0,10 | 1,28 | 1,16 | 4,65 | ||||||||
0,15 | 1,61 | 1,46 | 4,86 | ||||||||||
А | Б | 0,20 | 1,94 | 1,76 | 5,08 | ||||||||
0,25 | 2,28 | 2,07 | 5,30 | ||||||||||
1 | Керамзитобетонная плита перекрытия | 0,2 | 1400 | 0,56 | 0,65 | 0,098 | 0,30 | 2,61 | 2,37 | 5,52 | |||
2 | Гидроизол, 1 слой | 0,0025 | 600 | 0,17 | 0,17 | 0,00136 | 0,35 | 2,94 | 2,68 | 5,74 | |||
3 | Гравий керамзитовый | 500 | 0,15 | 0,165 | 0,23 | 0,40 | 3,28 | 2,98 | 5,95 | ||||
4 | Цементно-песчаный армированный раствор | 0,03 | 1800 | 0,76 | 0,93 | 0,09 | 0,45 | 3,61 | 3,28 | 6,17 | |||
0,50 | 3,94 | 3,58 | 6,39 | ||||||||||
Перекрытие чердачное - тип 1 (вариант 8) | |||||||||||||
![]() | 0,05 | 0,90 | 0,82 | 4,43 | |||||||||
N слоя п/п | Наименование | Толщина, м | Плотность | Коэффициент | |||||||||
теплопроводности | паропроницаемости | 0,10 | 1,20 | 1,08 | 4,65 | ||||||||
0,15 | 1,50 | 1,34 | 4,87 | ||||||||||
А | Б | 0,20 | 1,79 | 1,60 | 5,08 | ||||||||
0,25 | 2,08 | 1,87 | 5,30 | ||||||||||
1 | Керамзитобетонная плита перекрытия | 0,2 | 1400 | 0,56 | 0,65 | 0,098 | 0,30 | 2,37 | 2,13 | 5,52 | |||
2 | Гидроизол, 1 слой | 0,0025 | 600 | 0,17 | 0,17 | 0,00136 | 0,35 | 2,66 | 2,40 | 5,74 | |||
3 | Гравий керамзитовый | 600 | 0,17 | 0,19 | 0,23 | 0,40 | 2,96 | 2,66 | 5,95 | ||||
4 | Цементно-песчаный армированный раствор | 0,03 | 1800 | 0,76 | 0,93 | 0,09 | 0,45 | 3,26 | 2,92 | 6,17 | |||
0,50 | 3,55 | 3,18 | 6,39 | ||||||||||
Перекрытие чердачное - тип 2 (вариант 1) | |||||||||||||
![]() | 0,05 | 0,88 | 0,83 | 5,69 | |||||||||
N слоя п/п | Наименование | Толщина, м | Плотность | Коэффициент | |||||||||
теплопроводности | паропроницаемости | 0,10 | 1,38 | 1,28 | 5,87 | ||||||||
0,15 | 1,88 | 1,74 | 6,06 | ||||||||||
А | Б | 0,20 | 2,38 | 2,19 | 6,25 | ||||||||
0,25 | 2,88 | 2,65 | 6,43 | ||||||||||
1 | Железобетонная плита перекрытия | 0,22 | 2500 | 1,294 | 1,374 | 0,06 | 0,30 | 3,38 | 3,10 | 6,62 | |||
2 | Гидроизол, 1 слой | 0,0025 | 600 | 0,17 | 0,17 | 0,00136 | 0,35 | 3,88 | 3,55 | 6,80 | |||
3 | Гравий керамзитовый | 200 | 0,1 | 0,11 | 0,27 | 0,40 | 4,38 | 4,01 | 6,99 | ||||
Перекрытие чердачное - тип 2 (вариант 2) | |||||||||||||
![]() | 0,05 | 0,84 | 0,79 | 5,70 | |||||||||
N слоя п/п | Наименование | Толщина, м | Плотность | Коэффициент | |||||||||
теплопроводности | паропроницаемости | 0,10 | 1,29 | 1,21 | 5,89 | ||||||||
0,15 | 1,74 | 1,63 | 6,08 | ||||||||||
А | Б | 0,20 | 2,20 | 2,04 | 6,27 | ||||||||
0,25 | 2,66 | 2,46 | 6,46 | ||||||||||
1 | Железобетонная плита перекрытия | 0,22 | 2500 | 1,294 | 1,374 | 0,06 | 0,30 | 3,11 | 2,87 | 6,66 | |||
2 | Гидроизол, 1 слой | 0,0025 | 600 | 0,17 | 0,17 | 0,00136 | 0,35 | 3,57 | 3,29 | 6,84 | |||
3 | Гравий керамзитовый | 250 | 0,11 | 0,12 | 0,26 | 0,40 | 4,02 | 3,71 | 7,04 | ||||
Перекрытие чердачное - тип 2 (вариант 3) | |||||||||||||
![]() | 0,05 | 0,80 | 0,76 | 5,70 | |||||||||
N слоя п/п | Наименование | Толщина, м | Плотность | Коэффициент | |||||||||
теплопроводности | паропроницаемости | 0,10 | 1,22 | 1,14 | 5,90 | ||||||||
0,15 | 1,64 | 1,52 | 6,10 | ||||||||||
А | Б | 0,20 | 2,05 | 1,91 | 6,30 | ||||||||
0,25 | 2,47 | 2,28 | 6,50 | ||||||||||
1 | Железобетонная плита | 0,22 | 2500 | 1,294 | 1,374 | 0,06 | 0,30 | 2,88 | 2,66 | 6,70 | |||
2 | Гидроизол, 1 слой | 0,0025 | 600 | 0,17 | 0,17 | 0,00136 | 0,35 | 3,30 | 3,04 | 6,90 | |||
3 | Гравий керамзитовый | 300 | 0,12 | 0,13 | 0,25 | 0,40 | 3,72 | 3,45 | 7,10 | ||||
Перекрытие чердачное - тип 2 (вариант 4) | |||||||||||||
![]() | 0,05 | 0,78 | 0,73 | 5,71 | |||||||||
N слоя п/п | Наименование | Толщина, м | Плотность | Коэффициент | |||||||||
теплопроводности | паропроницаемости | 0,10 | 1,18 | 1,09 | 5,91 | ||||||||
0,15 | 1,58 | 1,45 | 6,12 | ||||||||||
А | Б | 0,20 | 1,98 | 1,81 | 6,31 | ||||||||
0,25 | 2,38 | 2,17 | 6,52 | ||||||||||
1 | Железобетонная плита перекрытия | 0,22 | 2500 | 1,294 | 1,374 | 0,06 | 0,30 | 2,78 | 2,53 | 6,71 | |||
2 | Гидроизол, 1 слой | 0,0025 | 600 | 0,17 | 0,17 | 0,00136 | 0,35 | 3,18 | 2,89 | 6,92 | |||
3 | Гравий керамзитовый | 350 | 0,125 | 0,14 | 0,245 | 0,40 | 3,58 | 3,23 | 7,14 | ||||
Перекрытие чердачное - тип 2 (вариант 5) | |||||||||||||
![]() | 0,05 | 0,77 | 0,72 | 5,71 | |||||||||
N слоя п/п | Наименование | Толщина, м | Плотность | Коэффициент | |||||||||
теплопроводности | паропроницаемости | 0,10 | 1,15 | 1,06 | 5,92 | ||||||||
0,15 | 1,53 | 1,40 | 6,13 | ||||||||||
А | Б | 0,20 | 1,92 | 1,74 | 6,33 | ||||||||
0,25 | 2,29 | 2,09 | 6,55 | ||||||||||
1 | Железобетонная плита перекрытия | 0,22 | 2500 | 1,294 | 1,374 | 0,06 | 0,30 | 2,68 | 2,43 | 6,76 | |||
2 | Гидроизол, 1 слой | 0,0025 | 600 | 0,17 | 0,17 | 0,00136 | 0,35 | 3,06 | 2,78 | 6,96 | |||
3 | Гравий керамзитовый | 400 | 0,13 | 0,145 | 0,24 | 0,40 | 3,46 | 3,13 | 7,17 | ||||
Перекрытие чердачное - тип 2 (вариант 6) | |||||||||||||
![]() | 0,05 | 0,74 | 0,70 | 5,72 | |||||||||
N слоя п/п | Наименование | Толщина, м | Плотность | Коэффициент | |||||||||
теплопроводности | паропроницаемости | 0,10 | 1,10 | 1,02 | 5,93 | ||||||||
0,15 | 1,45 | 1,34 | 6,14 | ||||||||||
А | Б | 0,20 | 1,81 | 1,66 | 6,36 | ||||||||
0,25 | 2,17 | 1,98 | 6,57 | ||||||||||
1 | Железобетонная плита перекрытия | 0,22 | 2500 | 1,294 | 1,374 | 0,06 | 0,30 | 2,53 | 2,31 | 6,78 | |||
2 | Гидроизол, 1 слой | 0,0025 | 600 | 0,17 | 0,17 | 0,00136 | 0,35 | 2,88 | 2,63 | 6,99 | |||
3 | Гравий керамзитовый | 450 | 0,14 | 0,155 | 0,235 | 0,40 | 3,24 | 2,95 | 7,21 | ||||
Перекрытие чердачное - тип 2 (вариант 7) | |||||||||||||
![]() | 0,05 | 0,72 | 0,68 | 5,72 | |||||||||
N слоя п/п | Наименование | Толщина, м | Плотность | Коэффициент | |||||||||
теплопроводности | паропроницаемости | 0,10 | 1,05 | 0,98 | 5,94 | ||||||||
0,15 | 1,38 | 1,28 | 6,16 | ||||||||||
А | Б | 0,20 | 1,71 | 1,58 | 6,37 | ||||||||
0,25 | 2,05 | 1,89 | 6,60 | ||||||||||
1 | Железобетонная плита перекрытия | 0,22 | 2500 | 1,294 | 1,374 | 0,06 | 0,30 | 2,38 | 2,19 | 6,82 | |||
2 | Гидроизол, 1 слой | 0,0025 | 600 | 0,17 | 0,17 | 0,00136 | 0,35 | 2,72 | 2,50 | 7,03 | |||
3 | Гравий керамзитовый | 500 | 0,15 | 0,165 | 0,23 | 0,40 | 3,05 | 2,80 | 7,24 | ||||
Перекрытие чердачное - тип 2 (вариант 8) | |||||||||||||
![]() | 0,05 | 0,68 | 0,64 | 5,72 | |||||||||
N слоя п/п | Наименование | Толщина, м | Плотность | Коэффициент | |||||||||
теплопроводности | паропроницаемости | 0,10 | 0,97 | 0,90 | 5,94 | ||||||||
0,15 | 1,26 | 1,16 | 6,15 | ||||||||||
А | Б | 0,20 | 1,56 | 1,42 | 6,37 | ||||||||
1 | Железобетонная плита перекрытия | 0,22 | 2500 | 1,294 | 1,374 | 0,06 | 0,25 | 1,84 | 1,68 | 6,59 | |||
2 | Гидроизол, 1 слой | 0,0025 | 600 | 0,17 | 0,17 | 0,00136 | 0,30 | 2,13 | 1,95 | 6,81 | |||
3 | Гравий керамзитовый | 600 | 0,17 | 0,19 | 0,23 | 0,35 | 2,43 | 2,22 | 7,04 | ||||
Перекрытие чердачное - тип 3 (вариант 1) | |||||||||||||
![]() | 0,05 | 0,82 | 0,73 | 5,64 | |||||||||
N слоя п/п | Наименование | Толщина, м | Плотность | Коэффициент | |||||||||
теплопроводности | паропроницаемости | 0,10 | 1,25 | 1,09 | 5,77 | ||||||||
А | Б | 0,15 | 1,69 | 1,44 | 5,91 | ||||||||
1 | Железобетонная плита перекрытия | 0,22 | 2500 | 1,294 | 1,374 | 0,06 | 0,20 | 2,12 | 1,80 | 6,04 | |||
2 | Гидроизол, 1 слой | 0,0025 | 600 | 0,17 | 0,17 | 0,00136 | 0,25 | 2,56 | 2,16 | 6,18 | |||
3 | Керамзитобетон | 300 | 0,115 | 0,14 | 0,37 | 0,30 | 2,99 | 2,52 | 6,32 | ||||
Перекрытие чердачное - тип 3 (вариант 2) | |||||||||||||
![]() | 0,05 | 0,77 | 0,67 | 5,67 | |||||||||
N слоя п/п | Наименование | Толщина, м | Плотность | Коэффициент | |||||||||
теплопроводности | паропроницаемости | 0,10 | 1,15 | 0,96 | 5,84 | ||||||||
А | Б | 0,15 | 1,54 | 1,26 | 6,00 | ||||||||
1 | Железобетонная плита перекрытия | 0,22 | 2500 | 1,294 | 1,374 | 0,06 | 0,20 | 1,92 | 1,55 | 6,17 | |||
2 | Гидроизол, 1 слой | 0,0025 | 600 | 0,17 | 0,17 | 0,00136 | 0,25 | 2,31 | 1,84 | 6,34 | |||
3 | Керамзитобетон | 400 | 0,13 | 0,27 | 0,3 | 0,30 | 2,69 | 2,14 | 6,50 | ||||
Перекрытие чердачное - тип 3 (вариант 3) | |||||||||||||
![]() | 0,05 | 0,70 | 0,60 | 5,66 | |||||||||
N слоя п/п | Наименование | Толщина, м | Плотность | Коэффициент | |||||||||
теплопроводности | паропроницаемости | 0,10 | 1,01 | 0,83 | 5,81 | ||||||||
А | Б | 0,15 | 1,32 | 1,05 | 5,96 | ||||||||
1 | Железобетонная плита перекрытия | 0,22 | 2500 | 1,294 | 1,374 | 0,06 | 0,20 | 1,63 | 1,28 | 6,11 | |||
2 | Гидроизол, 1 слой | 0,0025 | 600 | 0,17 | 0,17 | 0,00136 | 0,25 | 1,95 | 1,51 | 6,26 | |||
3 | Керамзитобетон | 500 | 0,16 | 0,22 | 0,33 | 0,30 | 2,26 | 1,74 | 6,41 | ||||
Перекрытие чердачное - тип 3 (вариант 4) | |||||||||||||
![]() | 0,05 | 0,65 | 0,60 | 5,70 | |||||||||
N слоя п/п | Наименование | Толщина, м | Плотность | Коэффициент | |||||||||
теплопроводности | паропроницаемости | 0,10 | 0,91 | 0,83 | 5,89 | ||||||||
А | Б | 0,15 | 1,17 | 1,05 | 6,08 | ||||||||
1 | Железобетонная плита перекрытия | 0,22 | 2500 | 1,294 | 1,374 | 0,06 | 0,20 | 1,44 | 1,28 | 6,27 | |||
2 | Гидроизол, 1 слой | 0,0025 | 600 | 0,17 | 0,17 | 0,00136 | 0,25 | 1,70 | 1,51 | 6,47 | |||
3 | Керамзитобетон | 600 | 0,19 | 0,25 | 0,26 | 0,30 | 1,96 | 1,74 | 6,66 | ||||
Перекрытие чердачное - тип 3 (вариант 5) | |||||||||||||
![]() | 0,05 | 0,61 | 0,55 | 5,72 | |||||||||
N слоя п/п | Наименование | Толщина, м | Плотность | Коэффициент | |||||||||
теплопроводности | паропроницаемости | 0,10 | 0,84 | 0,73 | 5,94 | ||||||||
А | Б | 0,15 | 1,06 | 0,91 | 6,16 | ||||||||
1 | Железобетонная плита перекрытия | 0,22 | 2500 | 1,294 | 1,374 | 0,06 | 0,20 | 1,29 | 1,09 | 6,37 | |||
2 | Гидроизол, 1 слой | 0,0025 | 600 | 0,17 | 0,17 | 0,00136 | 0,25 | 1,52 | 1,27 | 6,59 | |||
3 | Керамзитобетон | 700 | 0,22 | 0,28 | 0,23 | 0,30 | 1,75 | 1,45 | 6,81 | ||||
Перекрытие чердачное - тип 3 (вариант 6) | |||||||||||||
![]() | 0,05 | 0,59 | 0,53 | 5,77 | |||||||||
N слоя п/п | Наименование | Толщина, м | Плотность | Коэффициент | |||||||||
теплопроводности | паропроницаемости | 0,10 | 0,80 | 0,70 | 6,03 | ||||||||
А | Б | 0,15 | 1,01 | 0,86 | 6,29 | ||||||||
1 | Железобетонная плита перекрытия | 0,22 | 2500 | 1,294 | 1,374 | 0,06 | 0,20 | 1,22 | 1,02 | 6,56 | |||
2 | Гидроизол, 1 слой | 0,0025 | 600 | 0,17 | 0,17 | 0,00136 | 0,25 | 1,43 | 1,18 | 6,82 | |||
3 | Керамзитобетон | 800 | 0,24 | 0,31 | 0,19 | 0,30 | 1,63 | 1,34 | 7,08 | ||||
Покрытие плоской кровли - тип 1 (вариант 1) | |||||||||||||
![]() | 0,05 | 1,00 | 0,86 | 3,73 | |||||||||
N слоя п/п | Наименование | Толщина, м | Плотность | Коэффициент | |||||||||
теплопроводности | паропроницаемости | 0,10 | 1,40 | 1,17 | 3,89 | ||||||||
0,15 | 1,80 | 1,48 | 4,06 | ||||||||||
А | Б | 0,20 | 2,20 | 1,79 | 4,23 | ||||||||
1 | Керамзитобетонная плита перекрытия | 0,2 | 1400 | 0,56 | 0,65 | 0,098 | 0,25 | 2,60 | 2,11 | 4,39 | |||
2 | Гравий керамзитовый по уклону | 200 | 0,1 | 0,11 | 0,27 | 0,30 | 3,00 | 2,42 | 4,56 | ||||
3 | Цементно-песчаный раствор | 0,03 | 1800 | 0,76 | 0,93 | 0,09 | 0,35 | 3,40 | 2,73 | 4,73 | |||
4 | Битумный праймер | 0,001 | 1200 | 0,22 | 0,22 | 0,008 | 0,40 | 3,80 | 3,04 | 4,89 | |||
5 | Нижний слой гидроизоляции - "П" | 0,004 | 1000 | 0,17 | 0,17 | 0,008 | 0,45 | 4,20 | 3,36 | 5,06 | |||
6 | Верхний слой гидроизоляции - "К" с посыпкой гравием | 0,0045 | 1400 | 0,27 | 0,27 | 0,008 | 0,50 | 4,60 | 3,67 | 5,23 | |||
Покрытие плоской кровли - тип 1 (вариант 2) | |||||||||||||
![]() | 0,05 | 1,05 | 0,96 | 3,75 | |||||||||
N слоя п/п | Наименование | Толщина, м | Плотность | Коэффициент | |||||||||
теплопроводности | паропроницаемости | 0,10 | 1,51 | 1,38 | 3,95 | ||||||||
0,15 | 1,96 | 1,79 | 4,14 | ||||||||||
А | Б | 0,20 | 2,42 | 2,21 | 4,33 | ||||||||
1 | Керамзитобетонная плита перекрытия | 0,2 | 1400 | 0,56 | 0,65 | 0,098 | 0,25 | 2,87 | 2,63 | 4,52 | |||
2 | Гравий керамзитовый по уклону | 250 | 0,11 | 0,12 | 0,26 | 0,30 | 3,33 | 3,04 | 4,72 | ||||
3 | Цементно-песчаный раствор | 0,03 | 1800 | 0,76 | 0,93 | 0,09 | 0,35 | 3,78 | 3,46 | 4,91 | |||
4 | Битумный праймер | 0,001 | 1200 | 0,22 | 0,22 | 0,008 | 0,40 | 4,24 | 3,88 | 5,10 | |||
5 | Нижний слой гидроизоляции - "П" | 0,004 | 1000 | 0,17 | 0,17 | 0,008 | 0,45 | 4,69 | 4,29 | 5,29 | |||
6 | Верхний слой гидроизоляции - "К" с посыпкой гравием | 0,0045 | 1400 | 0,27 | 0,27 | 0,008 | 0,50 | 5,14 | 4,71 | 5,48 | |||
Покрытие плоской кровли - тип 1 (вариант 3) | |||||||||||||
![]() | 0,05 | 1,02 | 0,93 | 3,76 | |||||||||
N слоя п/п | Наименование | Толщина, м | Плотность | Коэффициент | |||||||||
теплопроводности | паропроницаемости | 0,10 | 1,43 | 1,31 | 3,96 | ||||||||
0,15 | 1,85 | 1,70 | 4,16 | ||||||||||
А | Б | 0,20 | 2,27 | 2,08 | 4,36 | ||||||||
1 | Керамзитобетонная плита перекрытия | 0,2 | 1400 | 0,56 | 0,65 | 0,098 | 0,25 | 2,68 | 2,47 | 4,56 | |||
2 | Гравий керамзитовый по уклону | 300 | 0,12 | 0,13 | 0,25 | 0,30 | 3,10 | 2,85 | 4,76 | ||||
3 | Цементно-песчаный раствор | 0,03 | 1800 | 0,76 | 0,93 | 0,09 | 0,35 | 3,52 | 3,23 | 4,96 | |||
4 | Битумный праймер | 0,001 | 1200 | 0,22 | 0,22 | 0,008 | 0,40 | 3,93 | 3,62 | 5,16 | |||
5 | Нижний слой гидроизоляции - "П" | 0,004 | 1000 | 0,17 | 0,17 | 0,008 | 0,45 | 4,35 | 4,00 | 5,36 | |||
6 | Верхний слой гидроизоляции - "К" с посыпкой гравием | 0,0045 | 1400 | 0,27 | 0,27 | 0,008 | 0,50 | 4,77 | 4,39 | 5,56 | |||
Покрытие плоской кровли - тип 1 (вариант 4) | |||||||||||||
![]() | 0,05 | 1,0 | 0,9 | 3,77 | |||||||||
N слоя п/п | Наименование | Толщина, м | Плотность | Коэффициент | |||||||||
теплопроводности | паропроницаемости | 0,10 | 1,40 | 1,26 | 3,97 | ||||||||
0,15 | 1,80 | 1,62 | 4,17 | ||||||||||
А | Б | 0,20 | 2,20 | 1,97 | 4,38 | ||||||||
1 | Керамзитобетонная плита перекрытия | 0,2 | 1400 | 0,56 | 0,65 | 0,098 | 0,25 | 2,60 | 2,33 | 4,58 | |||
2 | Гравий керамзитовый по уклону | 350 | 0,125 | 0,14 | 0,245 | 0,30 | 3,00 | 2,69 | 4,79 | ||||
3 | Цементно-песчаный раствор | 0,03 | 1800 | 0,76 | 0,93 | 0,09 | 0,35 | 3,40 | 3,04 | 4,99 | |||
4 | Битумный праймер | 0,001 | 1200 | 0,22 | 0,22 | 0,008 | 0,40 | 3,80 | 3,40 | 5,19 | |||
5 | Нижний слой гидроизоляции - "П" | 0,004 | 1000 | 0,17 | 0,17 | 0,008 | 0,45 | 4,20 | 3,76 | 5,40 | |||
6 | Верхний слой гидроизоляции - "К" с посыпкой гравием | 0,0045 | 1400 | 0,27 | 0,27 | 0,008 | 0,50 | 4,60 | 4,12 | 5,60 | |||
Покрытие плоской кровли - тип 1 (вариант 5) | |||||||||||||
![]() | 0,05 | 0,98 | 0,89 | 3,77 | |||||||||
N слоя п/п | Наименование | Толщина, м | Плотность | Коэффициент | |||||||||
теплопроводности | паропроницаемости | 0,10 | 1,37 | 1,23 | 3,98 | ||||||||
0,15 | 1,75 | 1,58 | 4,19 | ||||||||||
А | Б | 0,20 | 2,14 | 1,92 | 4,40 | ||||||||
1 | Керамзитобетонная плита перекрытия | 0,2 | 1400 | 0,56 | 0,65 | 0,098 | 0,25 | 2,52 | 2,27 | 4,60 | |||
2 | Гравий керамзитовый по уклону | 400 | 0,13 | 0,145 | 0,24 | 0,30 | 2,91 | 2,61 | 4,81 | ||||
3 | Цементно-песчаный раствор | 0,03 | 1800 | 0,76 | 0,93 | 0,09 | 0,35 | 3,29 | 2,96 | 5,02 | |||
4 | Битумный праймер | 0,001 | 1200 | 0,22 | 0,22 | 0,008 | 0,40 | 3,68 | 3,30 | 5,23 | |||
5 | Нижний слой гидроизоляции - "П" | 0,004 | 1000 | 0,17 | 0,17 | 0,008 | 0,45 | 4,06 | 3,65 | 5,44 | |||
6 | Верхний слой гидроизоляции - "К" с посыпкой гравием | 0,0045 | 1400 | 0,27 | 0,27 | 0,008 | 0,50 | 4,45 | 3,99 | 5,64 | |||
Покрытие плоской кровли - тип 1 (вариант 6) | |||||||||||||
![]() | 0,05 | 0,93 | 0,85 | 3,78 | |||||||||
N слоя п/п | Наименование | Толщина, м | Плотность | Коэффициент | |||||||||
теплопроводности | паропроницаемости | 0,10 | 1,27 | 1,15 | 4,00 | ||||||||
0,15 | 1,60 | 1,45 | 4,21 | ||||||||||
А | Б | 0,20 | 1,93 | 1,75 | 4,43 | ||||||||
1 | Керамзитобетонная плита перекрытия | 0,2 | 1400 | 0,56 | 0,65 | 0,098 | 0,25 | 2,27 | 2,06 | 4,65 | |||
2 | Гравий керамзитовый по уклону | 500 | 0,15 | 0,165 | 0,23 | 0,30 | 2,60 | 2,36 | 4,87 | ||||
3 | Цементно-песчаный раствор | 0,03 | 1800 | 0,76 | 0,93 | 0,09 | 0,35 | 2,93 | 2,66 | 5,08 | |||
4 | Битумный праймер | 0,001 | 1200 | 0,22 | 0,22 | 0,008 | 0,40 | 3,27 | 2,97 | 5,30 | |||
5 | Нижний слой гидроизоляции - "П" | 0,004 | 1000 | 0,17 | 0,17 | 0,008 | 0,45 | 3,60 | 3,27 | 5,52 | |||
6 | Верхний слой гидроизоляции - "К" с посыпкой гравием | 0,0045 | 1400 | 0,27 | 0,27 | 0,008 | 0,50 | 3,93 | 3,57 | 5,74 | |||
Покрытие плоской кровли - тип 1 (вариант 7) | |||||||||||||
![]() | 0,05 | 0,89 | 0,81 | 3,78 | |||||||||
N слоя п/п | Наименование | Толщина, м | Плотность | Коэффициент | |||||||||
теплопроводности | паропроницаемости | 0,10 | 1,19 | 1,07 | 4,00 | ||||||||
0,15 | 1,48 | 1,33 | 4,21 | ||||||||||
0,20 | 1,78 | 1,60 | 4,43 | ||||||||||
А | Б | ||||||||||||
1 | Керамзитобетонная плита перекрытия | 0,2 | 1400 | 0,56 | 0,65 | 0,098 | 0,25 | 2,07 | 1,86 | 4,65 | |||
2 | Гравий керамзитовый по уклону | 600 | 0,17 | 0,19 | 0,23 | 0,30 | 2,36 | 2,12 | 4,87 | ||||
3 | Цементно-песчаный раствор | 0,03 | 1800 | 0,76 | 0,93 | 0,09 | 0,35 | 2,66 | 2,39 | 5,08 | |||
4 | Битумный праймер | 0,001 | 1200 | 0,22 | 0,22 | 0,008 | 0,40 | 2,95 | 2,65 | 5,30 | |||
5 | Нижний слой битумно-наплавляемой гидроизоляции - "П" | 0,004 | 1000 | 0,17 | 0,17 | 0,008 | 0,45 | 3,25 | 2,91 | 5,52 | |||
6 | Верхний слой гидроизоляции - "К" с посыпкой гравием | 0,0045 | 1400 | 0,27 | 0,27 | 0,008 | 0,50 | 3,54 | 3,18 | 5,74 | |||
Покрытие плоской кровли - тип 2 (вариант 1) | |||||||||||||
![]() | 0,05 | 1,03 | 0,90 | 3,70 | |||||||||
N слоя п/п | Наименование | Толщина, м | Плотность | Коэффициент | |||||||||
теплопроводности | паропроницаемости | 0,10 | 1,47 | 1,26 | 3,83 | ||||||||
0,15 | 1,90 | 1,61 | 3,97 | ||||||||||
А | Б | 0,20 | 2,34 | 1,97 | 4,10 | ||||||||
1 | Керамзитобетонная плита перекрытия | 0,2 | 1400 | 0,56 | 0,65 | 0,098 | 0,25 | 2,77 | 2,33 | 4,24 | |||
2 | Керамзитобетон по уклону | 300 | 0,115 | 0,14 | 0,37 | 0,30 | 3,21 | 2,69 | 4,37 | ||||
3 | Цементно-песчаный раствор | 0,03 | 1800 | 0,76 | 0,93 | 0,09 | 0,35 | 3,64 | 3,04 | 4,51 | |||
4 | Битумный праймер | 0,001 | 1200 | 0,22 | 0,22 | 0,008 | 0,40 | 4,08 | 3,40 | 4,64 | |||
5 | Нижний слой гидроизоляции - "П" | 0,004 | 1000 | 0,17 | 0,17 | 0,008 | 0,45 | 4,51 | 3,76 | 4,78 | |||
6 | Верхний слой гидроизоляции - "К" с посыпкой гравием | 0,0045 | 1400 | 0,27 | 0,27 | 0,008 | 0,50 | 4,95 | 4,11 | 4,91 | |||
Покрытие плоской кровли - тип 2 (вариант 2) | |||||||||||||
![]() | 0,05 | 0,98 | 0,84 | 3,71 | |||||||||
N слоя п/п | Наименование | Толщина, м | Плотность | Коэффициент | |||||||||
теплопроводности | паропроницаемости | 0,10 | 1,37 | 1,13 | 3,86 | ||||||||
0,15 | 1,75 | 1,43 | 4,02 | ||||||||||
А | Б | 0,20 | 2,14 | 1,72 | 4,17 | ||||||||
1 | Керамзитобетонная плита перекрытия | 0,2 | 1400 | 0,56 | 0,65 | 0,098 | 0,25 | 2,52 | 2,01 | 4,32 | |||
2 | Керамзитобетон по уклону | 400 | 0,13 | 0,17 | 0,33 | 0,30 | 2,91 | 2,31 | 4,47 | ||||
3 | Цементно-песчаный раствор | 0,03 | 1800 | 0,76 | 0,93 | 0,09 | 0,35 | 3,29 | 2,60 | 4,62 | |||
4 | Битумный праймер | 0,001 | 1200 | 0,22 | 0,22 | 0,008 | 0,40 | 3,68 | 2,90 | 4,77 | |||
5 | Нижний слой гидроизоляции - "П" | 0,004 | 1000 | 0,17 | 0,17 | 0,008 | 0,45 | 4,06 | 3,19 | 4,93 | |||
6 | Верхний слой гидроизоляции - "К" с посыпкой гравием | 0,0045 | 1400 | 0,27 | 0,27 | 0,008 | 0,50 | 4,45 | 3,48 | 5,08 | |||
Покрытие плоской кровли - тип 2 (вариант 3) | |||||||||||||
![]() | 0,05 | 0,91 | 0,77 | 3,73 | |||||||||
N слоя п/п | Наименование | Толщина, м | Плотность | Коэффициент | |||||||||
теплопроводности | паропроницаемости | 0,10 | 1,22 | 1,00 | 3,89 | ||||||||
0,15 | 1,54 | 1,22 | 4,06 | ||||||||||
А | Б | 0,20 | 1,85 | 1,45 | 4,23 | ||||||||
1 | Керамзитобетонная плита перекрытия | 0,2 | 1400 | 0,56 | 0,65 | 0,098 | 0,25 | 2,16 | 1,68 | 4,39 | |||
2 | Керамзитобетон по уклону | 500 | 0,16 | 0,22 | 0,3 | 0,30 | 2,47 | 1,91 | 4,56 | ||||
3 | Цементно-песчаный раствор | 0,03 | 1800 | 0,76 | 0,93 | 0,09 | 0,35 | 2,79 | 2,13 | 4,73 | |||
4 | Битумный праймер | 0,001 | 1200 | 0,22 | 0,22 | 0,008 | 0,40 | 3,10 | 2,36 | 4,89 | |||
5 | Нижний слой гидроизоляции - "П" | 0,004 | 1000 | 0,17 | 0,17 | 0,008 | 0,45 | 3,41 | 2,59 | 5,06 | |||
6 | Верхний слой гидроизоляции - "К" с посыпкой гравием | 0,0045 | 1400 | 0,27 | 0,27 | 0,008 | 0,50 | 3,72 | 2,82 | 5,23 | |||
Покрытие плоской кровли - тип 2 (вариант 4) | |||||||||||||
![]() | 0,05 | 0,86 | 0,74 | 3,75 | |||||||||
N слоя п/п | Наименование | Толщина, м | Плотность | Коэффициент | |||||||||
теплопроводности | паропроницаемости | 0,10 | 1,13 | 0,94 | 3,95 | ||||||||
0,15 | 1,39 | 1,14 | 4,14 | ||||||||||
А | Б | 0,20 | 1,65 | 1,34 | 4,33 | ||||||||
1 | Керамзитобетонная плита перекрытия | 0,2 | 1400 | 0,56 | 0,65 | 0,098 | 0,25 | 1,92 | 1,54 | 4,52 | |||
2 | Керамзитобетон по уклону | 600 | 0,19 | 0,25 | 0,26 | 0,30 | 2,18 | 1,74 | 4,72 | ||||
3 | Цементно-песчаный раствор | 0,03 | 1800 | 0,76 | 0,93 | 0,09 | 0,35 | 2,44 | 1,94 | 4,91 | |||
4 | Битумный праймер | 0,001 | 1200 | 0,22 | 0,22 | 0,008 | 0,40 | 2,71 | 2,14 | 5,10 | |||
5 | Нижний слой гидроизоляции - "П" | 0,004 | 1000 | 0,17 | 0,17 | 0,008 | |||||||
0,45 | 2,97 | 2,34 | 5,29 | ||||||||||
6 | Верхний слой гидроизоляции - "К" с посыпкой гравием | 0,0045 | 1400 | 0,27 | 0,27 | 0,008 | |||||||
Покрытие плоской кровли - тип 2 (вариант 5) | |||||||||||||
![]() | 0,05 | 0,83 | 0,72 | 3,78 | |||||||||
N слоя п/п | Наименование | Толщина, м | Плотность | Коэффициент | |||||||||
теплопроводности | паропроницаемости | 0,10 | 1,05 | 0,90 | 4,00 | ||||||||
0,15 | 1,28 | 1,08 | 4,21 | ||||||||||
А | Б | 0,20 | 1,51 | 1,26 | 4,43 | ||||||||
1 | Керамзитобетонная плита перекрытия | 0,2 | 1400 | 0,56 | 0,65 | 0,098 | 0,25 | 1,74 | 1,44 | 4,65 | |||
2 | Керамзитобетон по уклону | 700 | 0,22 | 0,28 | 0,23 | 0,30 | 1,96 | 1,62 | 4,87 | ||||
3 | Цементно-песчаный раствор | 0,03 | 1800 | 0,76 | 0,93 | 0,09 | 0,35 | 2,19 | 1,79 | 5,08 | |||
4 | Битумный праймер | 0,001 | 1200 | 0,22 | 0,22 | 0,008 | 0,40 | 2,42 | 1,97 | 5,30 | |||
5 | Нижний слой гидроизоляции - "П" | 0,004 | 1000 | 0,17 | 0,17 | 0,008 | 0,45 | 2,64 | 2,15 | 5,52 | |||
6 | Верхний слой гидроизоляции - "К" с посыпкой гравием | 0,0045 | 1400 | 0,27 | 0,27 | 0,008 | 0,50 | 2,87 | 2,33 | 5,74 | |||
Покрытие плоской кровли - тип 2 (вариант 6) | |||||||||||||
![]() | 0,05 | 0,81 | 0,70 | 3,82 | |||||||||
N слоя п/п | Наименование | Толщина, м | Плотность | Коэффициент | |||||||||
теплопроводности | паропроницаемости | 0,10 | 1,02 | 0,87 | 4,09 | ||||||||
0,15 | 1,22 | 1,03 | 4,35 | ||||||||||
А | Б | 0,20 | 1,43 | 1,19 | 4,61 | ||||||||
1 | Керамзитобетонная плита перекрытия | 0,2 | 1400 | 0,56 | 0,65 | 0,098 | 0,25 | 1,64 | 1,35 | 4,88 | |||
2 | Керамзитобетон по уклону | 800 | 0,24 | 0,31 | 0,19 | 0,30 | 1,85 | 1,51 | 5,14 | ||||
3 | Цементно-песчаный раствор | 0,03 | 1800 | 0,76 | 0,93 | 0,09 | 0,35 | 2,06 | 1,67 | 5,40 | |||
4 | Битумный праймер | 0,001 | 1200 | 0,22 | 0,22 | 0,008 | 0,40 | 2,27 | 1,83 | 5,67 | |||
5 | Нижний слой гидроизоляции - "П" | 0,004 | 1000 | 0,17 | 0,17 | 0,008 | 0,45 | 2,47 | 1,99 | 5,93 | |||
6 | Верхний слой гидроизоляции - "К" с посыпкой гравием | 0,0045 | 1400 | 0,27 | 0,27 | 0,008 | 0,50 | 2,68 | 2,16 | 6,19 | |||
Покрытие плоской кровли - тип 3 (вариант 1) | |||||||||||||
![]() | 0,05 | 0,91 | 0,85 | 5,37 | |||||||||
N слоя п/п | Наименование | Толщина, м | Плотность | Коэффициент | |||||||||
теплопроводности | паропроницаемости | 0,10 | 1,41 | 1,30 | 5,56 | ||||||||
0,15 | 1,91 | 1,76 | 5,74 | ||||||||||
А | Б | 0,20 | 2,41 | 2,21 | 5,93 | ||||||||
1 | Железобетонная плита перекрытия | 0,22 | 2500 | 1,294 | 1,374 | 0,06 | 0,25 | 2,91 | 2,67 | 6,11 | |||
2 | Гравий керамзитовый по уклону | 200 | 0,10 | 0,11 | 0,27 | 0,30 | 3,41 | 3,12 | 6,30 | ||||
3 | Цементно-песчаный раствор | 0,03 | 1800 | 0,76 | 0,93 | 0,09 | 0,35 | 3,91 | 3,58 | 6,48 | |||
4 | Битумный праймер | 0,001 | 1200 | 0,22 | 0,22 | 0,008 | 0,40 | 4,41 | 4,03 | 6,67 | |||
5 | Нижний слой битумно-наплавляемой гидроизоляции - "П" | 0,004 | 1000 | 0,17 | 0,17 | 0,008 | 0,45 | 4,91 | 4,49 | 6,85 | |||
6 | Верхний слой гидроизоляции - "К" с посыпкой гравием | 0,0045 | 1400 | 0,27 | 0,27 | 0,008 | 0,50 | 5,41 | 4,94 | 7,04 | |||
Покрытие плоской кровли - тип 3 (вариант 2) | |||||||||||||
![]() | 0,05 | 0,83 | 0,78 | 5,38 | |||||||||
N слоя п/п | Наименование | Толщина, м | Плотность | Коэффициент | |||||||||
теплопроводности | паропроницаемости | 0,10 | 1,25 | 1,16 | 5,59 | ||||||||
0,15 | 1,66 | 1,55 | 5,79 | ||||||||||
А | Б | 0,20 | 2,08 | 1,93 | 5,99 | ||||||||
1 | Железобетонная плита перекрытия | 0,22 | 2500 | 1,294 | 1,374 | 0,06 | 0,25 | 2,50 | 2,32 | 6,19 | |||
2 | Гравий керамзитовый по уклону | 300 | 0,12 | 0,13 | 0,25 | 0,30 | 2,91 | 2,70 | 6,39 | ||||
3 | Цементно-песчаный раствор | 0,03 | 1800 | 0,76 | 0,93 | 0,09 | 0,35 | 3,33 | 3,09 | 6,59 | |||
4 | Битумный праймер | 0,001 | 1200 | 0,22 | 0,22 | 0,008 | 0,40 | 3,75 | 3,47 | 6,79 | |||
5 | Нижний слой гидроизоляции - "П" | 0,004 | 1000 | 0,17 | 0,17 | 0,008 | 0,45 | 4,16 | 3,86 | 6,99 | |||
6 | Верхний слой гидроизоляции - "К" с посыпкой гравием | 0,0045 | 1400 | 0,27 | 0,27 | 0,008 | 0,50 | 4,58 | 4,24 | 7,19 | |||
Покрытие плоской кровли - тип 3 (вариант 3) | |||||||||||||
![]() | 0,05 | 0,81 | 0,75 | 5,39 | |||||||||
N слоя п/п | Наименование | Толщина, м | Плотность | Коэффициент | |||||||||
теплопроводности | паропроницаемости | 0,10 | 1,21 | 1,11 | 5,60 | ||||||||
0,15 | 1,61 | 1,47 | 5,80 | ||||||||||
А | Б | 0,20 | 2,01 | 1,82 | 6,00 | ||||||||
1 | Железобетонная плита перекрытия | 0,22 | 2500 | 1,294 | 1,374 | 0,06 | 0,25 | 2,41 | 2,18 | 6,21 | |||
2 | Гравий керамзитовый по уклону | 350 | 0,125 | 0,14 | 0,245 | 0,30 | 2,81 | 2,54 | 6,41 | ||||
3 | Цементно-песчаный раствор | 0,03 | 1800 | 0,76 | 0,93 | 0,09 | 0,35 | 3,21 | 2,90 | 6,62 | |||
4 | Битумный праймер | 0,001 | 1200 | 0,22 | 0,22 | 0,008 | 0,40 | 3,61 | 3,25 | 6,82 | |||
5 | Нижний слой гидроизоляции - "П" | 0,004 | 1000 | 0,17 | 0,17 | 0,008 | 0,45 | 4,01 | 3,61 | 7,02 | |||
6 | Верхний слой гидроизоляции - "К" с посыпкой гравием | 0,0045 | 1400 | 0,27 | 0,27 | 0,008 | 0,50 | 4,41 | 3,97 | 7,23 | |||
Покрытие плоской кровли - тип 3 (вариант 4) | |||||||||||||
![]() | 0,05 | 0,80 | 0,74 | 5,40 | |||||||||
N слоя п/п | Наименование | Толщина, м | Плотность | Коэффициент | |||||||||
теплопроводности | паропроницаемости | 0,10 | 1,18 | 1,08 | 5,60 | ||||||||
0,15 | 1,57 | 1,43 | 5,81 | ||||||||||
А | Б | 0,20 | 1,95 | 1,78 | 6,02 | ||||||||
1 | Железобетонная плита перекрытия | 0,22 | 2500 | 1,294 | 1,374 | 0,06 | 0,25 | 2,34 | 2,12 | 6,23 | |||
2 | Гравий керамзитовый по уклону | 400 | 0,13 | 0,145 | 0,24 | 0,30 | 2,72 | 2,46 | 6,44 | ||||
3 | Цементно-песчаный раствор | 0,03 | 1800 | 0,76 | 0,93 | 0,09 | 0,35 | 3,10 | 2,81 | 6,65 | |||
4 | Битумный праймер | 0,001 | 1200 | 0,22 | 0,22 | 0,008 | 0,40 | 3,49 | 3,15 | 6,85 | |||
5 | Нижний слой гидроизоляции - "П" | 0,004 | 1000 | 0,17 | 0,17 | 0,008 | 0,45 | 3,87 | 3,50 | 7,06 | |||
6 | Верхний слой гидроизоляции - "К" с посыпкой гравием | 0,0045 | 1400 | 0,27 | 0,27 | 0,008 | 0,50 | 4,26 | 3,84 | 7,27 | |||
Покрытие плоской кровли - тип 3 (вариант 5) | |||||||||||||
![]() | 0,05 | 0,75 | 0,70 | 5,41 | |||||||||
N слоя п/п | Наименование | Толщина, м | Плотность | Коэффициент | |||||||||
теплопроводности | паропроницаемости | 0,10 | 1,08 | 1,00 | 5,62 | ||||||||
0,15 | 1,41 | 1,30 | 5,84 | ||||||||||
А | Б | 0,20 | 1,75 | 1,61 | 6,06 | ||||||||
1 | Железобетонная плита перекрытия | 0,22 | 2500 | 1,294 | 1,374 | 0,06 | 0,25 | 2,08 | 1,91 | 6,27 | |||
2 | Гравий керамзитовый по уклону | 500 | 0,15 | 0,165 | 0,23 | 0,30 | 2,41 | 2,21 | 6,49 | ||||
3 | Цементно-песчаный раствор | 0,03 | 1800 | 0,76 | 0,93 | 0,09 | 0,35 | 2,75 | 2,52 | 6,71 | |||
4 | Битумный праймер | 0,001 | 1200 | 0,22 | 0,22 | 0,008 | 0,40 | 3,08 | 2,82 | 6,93 | |||
5 | Нижний слой гидроизоляции - "П" | 0,004 | 1000 | 0,17 | 0,17 | 0,008 | 0,45 | 3,41 | 3,12 | 7,14 | |||
6 | Верхний слой гидроизоляции - "К" с посыпкой гравием | 0,0045 | 1400 | 0,27 | 0,27 | 0,008 | 0,50 | 3,75 | 3,43 | 7,36 | |||
Покрытие плоской кровли - тип 3 (вариант 6) | |||||||||||||
![]() | 0,05 | 0,71 | 0,66 | 5,40 | |||||||||
N слоя п/п | Наименование | Толщина, м | Плотность | Коэффициент | |||||||||
теплопроводности | паропроницаемости | 0,10 | 1,00 | 0,92 | 5,62 | ||||||||
0,15 | 1,29 | 1,18 | 5,84 | ||||||||||
А | Б | 0,20 | 1,59 | 1,45 | 6,06 | ||||||||
1 | Железобетонная плита перекрытия | 0,22 | 2500 | 1,294 | 1,374 | 0,06 | 0,25 | 1,88 | 1,71 | 6,27 | |||
2 | Гравий керамзитовый по уклону | 600 | 0,17 | 0,19 | 0,23 | 0,30 | 2,18 | 1,97 | 6,49 | ||||
3 | Цементно-песчаный раствор | 0,03 | 1800 | 0,76 | 0,93 | 0,09 | 0,35 | 2,47 | 2,24 | 6,71 | |||
4 | Битумный праймер | 0,001 | 1200 | 0,22 | 0,22 | 0,008 | 0,40 | 2,77 | 2,50 | 6,93 | |||
5 | Нижний слой гидроизоляции - "П" | 0,004 | 1000 | 0,17 | 0,17 | 0,008 | 0,45 | 3,06 | 2,76 | 7,14 | |||
6 | Верхний слой гидроизоляции - "К" с посыпкой гравием | 0,0045 | 1400 | 0,27 | 0,27 | 0,008 | 0,50 | 3,35 | 3,03 | 7,36 | |||
Покрытие плоской кровли - тип 4 (вариант 1) | |||||||||||||
![]() | 0,05 | 0,85 | 0,75 | 5,32 | |||||||||
N слоя п/п | Наименование | Толщина, м | Плотность | Коэффициент | |||||||||
теплопроводности | паропроницаемости | 0,10 | 1,28 | 1,11 | 5,46 | ||||||||
0,15 | 1,72 | 1,47 | 5,59 | ||||||||||
А | Б | 0,20 | 2,15 | 1,82 | 5,73 | ||||||||
1 | Железобетонная плита перекрытия | 0,22 | 2500 | 1,294 | 1,374 | 0,06 | 0,25 | 2,59 | 2,18 | 5,86 | |||
2 | Керамзитобетон по уклону | 300 | 0,115 | 0,14 | 0,37 | 0,30 | 3,02 | 2,54 | 6,00 | ||||
3 | Цементно-песчаный раствор | 0,03 | 1800 | 0,76 | 0,93 | 0,09 | 0,35 | 3,46 | 2,90 | 6,13 | |||
4 | Битумный праймер | 0,001 | 1200 | 0,22 | 0,22 | 0,008 | 0,40 | 3,89 | 3,25 | 6,27 | |||
5 | Нижний слой гидроизоляции - "П" | 0,004 | 1000 | 0,17 | 0,17 | 0,008 | 0,45 | 4,33 | 3,61 | 6,40 | |||
6 | Верхний слой гидроизоляции - "К" с посыпкой гравием | 0,0045 | 1400 | 0,27 | 0,27 | 0,008 | 0,50 | 4,76 | 3,97 | 6,54 | |||
Покрытие плоской кровли - тип 4 (вариант 2) | |||||||||||||
![]() | 0,05 | 0,80 | 0,69 | 5,34 | |||||||||
N слоя п/п | Наименование | Толщина, м | Плотность | Коэффициент | |||||||||
теплопроводности | паропроницаемости | 0,10 | 1,18 | 0,98 | 5,49 | ||||||||
0,15 | 1,57 | 1,28 | 5,64 | ||||||||||
А | Б | 0,20 | 1,95 | 1,57 | 5,79 | ||||||||
1 | Железобетонная плита перекрытия | 0,22 | 2500 | 1,294 | 1,374 | 0,06 | 0,25 | 2,34 | 1,87 | 5,95 | |||
2 | Керамзитобетон по уклону | 400 | 0,13 | 0,17 | 0,33 | 0,30 | 2,72 | 2,16 | 6,10 | ||||
3 | Цементно-песчаный раствор | 0,03 | 1800 | 0,76 | 0,93 | 0,09 | 0,35 | 3,10 | 2,45 | 6,25 | |||
4 | Битумный праймер | 0,001 | 1200 | 0,22 | 0,22 | 0,008 | 0,40 | 3,49 | 2,75 | 6,40 | |||
5 | Нижний слой гидроизоляции - "П" | 0,004 | 1000 | 0,17 | 0,17 | 0,008 | 0,45 | 3,87 | 3,04 | 6,55 | |||
6 | Верхний слой гидроизоляции - "К" с посыпкой гравием | 0,0045 | 1400 | 0,27 | 0,27 | 0,008 | 0,50 | 4,26 | 3,34 | 6,70 | |||
Покрытие плоской кровли - тип 4 (вариант 3) | |||||||||||||
![]() | 0,05 | 0,73 | 0,62 | 5,35 | |||||||||
N слоя п/п | Наименование | Толщина, м | Плотность | Коэффициент | |||||||||
теплопроводности | паропроницаемости | 0,10 | 1,04 | 0,85 | 5,52 | ||||||||
0,15 | 1,35 | 1,08 | 5,69 | ||||||||||
А | Б | 0,20 | 1,66 | 1,30 | 5,85 | ||||||||
1 | Железобетонная плита перекрытия | 0,22 | 2500 | 1,294 | 1,374 | 0,06 | 0,25 | 1,98 | 1,53 | 6,02 | |||
2 | Керамзитобетон по уклону | 500 | 0,16 | 0,22 | 0,30 | 0,30 | 2,29 | 1,76 | 6,19 | ||||
3 | Цементно-песчаный раствор | 0,03 | 1800 | 0,76 | 0,93 | 0,09 | 0,35 | 2,60 | 1,99 | 6,35 | |||
4 | Битумный праймер | 0,001 | 1200 | 0,22 | 0,22 | 0,008 | 0,40 | 2,91 | 2,21 | 6,52 | |||
5 | Нижний слой гидроизоляции - "П" | 0,004 | 1000 | 0,17 | 0,17 | 0,008 | 0,45 | 3,23 | 2,44 | 6,69 | |||
6 | Верхний слой гидроизоляции - "К" с посыпкой гравием | 0,0045 | 1400 | 0,27 | 0,27 | 0,008 | 0,50 | 3,54 | 2,67 | 6,85 | |||
Покрытие плоской кровли - тип 4 (вариант 4) | |||||||||||||
![]() | 0,05 | 0,73 | 0,62 | 5,38 | |||||||||
N слоя п/п | Наименование | Толщина, м | Плотность | Коэффициент | |||||||||
теплопроводности | паропроницаемости | 0,10 | 1,04 | 0,85 | 5,57 | ||||||||
0,15 | 1,35 | 1,08 | 5,76 | ||||||||||
А | Б | 0,20 | 1,66 | 1,30 | 5,96 | ||||||||
1 | Железобетонная плита перекрытия | 0,22 | 2500 | 1,294 | 1,374 | 0,06 | 0,25 | 1,98 | 1,53 | 6,15 | |||
2 | Керамзитобетон по уклону | 600 | 0,19 | 0,25 | 0,26 | 0,30 | 2,29 | 1,76 | 6,34 | ||||
3 | Цементно-песчаный раствор | 0,03 | 1800 | 0,76 | 0,93 | 0,09 | 0,35 | 2,60 | 1,99 | 6,53 | |||
4 | Битумный праймер | 0,001 | 1200 | 0,22 | 0,22 | 0,008 | 0,40 | 2,91 | 2,21 | 6,73 | |||
5 | Нижний слой гидроизоляции - "П" | 0,004 | 1000 | 0,17 | 0,17 | 0,008 | 0,45 | 3,23 | 2,44 | 6,92 | |||
6 | Верхний слой гидроизоляции - "К" с посыпкой гравием | 0,0045 | 1400 | 0,27 | 0,27 | 0,008 | 0,50 | 3,54 | 2,67 | 7,11 | |||
Покрытие плоской кровли - тип 4 (вариант 5) | |||||||||||||
![]() | 0,05 | 0,68 | 0,60 | 5,40 | |||||||||
N слоя п/п | Наименование | Толщина, м | Плотность | Коэффициент | |||||||||
теплопроводности | паропроницаемости | 0,10 | 0,94 | 0,80 | 5,62 | ||||||||
0,15 | 1,20 | 1,00 | 5,84 | ||||||||||
А | Б | 0,20 | 1,47 | 1,20 | 6,06 | ||||||||
1 | Железобетонная плита перекрытия | 0,22 | 2500 | 1,294 | 1,374 | 0,06 | 0,25 | 1,73 | 1,40 | 6,27 | |||
2 | Керамзитобетон по уклону | 700 | 0,22 | 0,28 | 0,23 | 0,30 | 1,99 | 1,60 | 6,49 | ||||
3 | Цементно-песчаный раствор | 0,03 | 1800 | 0,76 | 0,93 | 0,09 | 0,35 | 2,25 | 1,80 | 6,71 | |||
4 | Битумный праймер | 0,001 | 1200 | 0,22 | 0,22 | 0,008 | 0,40 | 2,52 | 2,00 | 6,93 | |||
5 | Нижний слой гидроизоляции - "П" | 0,004 | 1000 | 0,17 | 0,17 | 0,008 | 0,45 | 2,78 | 2,20 | 7,14 | |||
6 | Верхний слой гидроизоляции - "К" с посыпкой гравием | 0,0045 | 1400 | 0,27 | 0,27 | 0,008 | 0,50 | 3,04 | 2,40 | 7,36 | |||
Покрытие плоской кровли - тип 4 (вариант 6) | |||||||||||||
![]() | 0,05 | 0,62 | 0,56 | 5,45 | |||||||||
N слоя п/п | Наименование | Толщина, м | Плотность | Коэффициент | |||||||||
теплопроводности | паропроницаемости | 0,10 | 0,83 | 0,72 | 5,71 | ||||||||
0,15 | 1,04 | 0,88 | 5,98 | ||||||||||
А | Б | 0,20 | 1,25 | 1,04 | 6,24 | ||||||||
1 | Железобетонная плита перекрытия | 0,22 | 2500 | 1,294 | 1,374 | 0,06 | 0,25 | 1,45 | 1,20 | 6,50 | |||
2 | Керамзитобетон по уклону | 800 | 0,24 | 0,3 | 0,19 | 0,30 | 1,66 | 1,36 | 6,77 | ||||
3 | Цементно-песчаный раствор | 0,03 | 1800 | 0,76 | 0,93 | 0,09 | 0,35 | 1,87 | 1,53 | 7,03 | |||
4 | Битумный праймер | 0,001 | 1200 | 0,22 | 0,22 | 0,008 | 0,40 | 2,08 | 1,69 | 7,29 | |||
5 | Нижний слой гидроизоляции - "П" | 0,004 | 1000 | 0,17 | 0,17 | 0,008 | 0,45 | 2,29 | 1,85 | 7,56 | |||
6 | Верхний слой гидроизоляции - "К" с посыпкой гравием | 0,0045 | 1400 | 0,27 | 0,27 | 0,008 | 0,50 | 2,50 | 2,01 | 7,82 | |||
N п/п | Наименование материала | Толщина | Плотность | Коэффициент теплопроводности | Коэффициент паропроницаемости |
1 | Керамзитобетон (мелкозернистый) | 0,02 | 700 | 0,16 | 0,14 |
2 | Керамзитобетон | 0,385 | 400 | 0,12 | 0,16 |
3 | Цементно-песчаный раствор | 0,01 | 1800 | 0,76 | 0,05 |
4 | Декоративный слой | 0,005 | 1800 | 0,76 | 0,05 |






























N п/п | Наименование материала | Толщина | Плотность | Коэффициент теплопроводности | Коэффициент паропроницаемости |
1 | Керамзитобетон (мелкозернистый) | 0,02 | 700 | 0,16 | 0,14 |
2 | Керамзитобетон | 0,385 | 700 | 0,16 | 0,14 |
3 | Цементно-песчаный раствор | 0,01 | 1800 | 0,76 | 0,05 |
4 | Декоративный слой | 0,005 | 1800 | 0,76 | 0,05 |





ИС МЕГАНОРМ: примечание. Формула дана в соответствии с официальным текстом документа. |







































































































N п/п | Эскизы конструктивных решений и наименование слоев конструкции стенового ограждения | Сопротивление теплопередаче ограждающей конструкции | |
Регион: Населенный пункт: Помещение: | Москва Московская область Жилое | ||
1 | ![]() | 1 - [20 мм] - Цементно-песчаный раствор 2 - [40 мм] - Керамзитобетон D500 ![]() 3 - [120 мм] - Железобетон 4 - [100 мм] - ![]() 5 - [40 мм] - Керамзитобетон D500 ![]() 6 - [20 мм] - Цементно-песчаный раствор | 3,64 |
2 | ![]() | 1 - [40 мм] - Керамзитобетон D500 ![]() 2 - [120 мм] - Железобетон 3 - [100 мм] - Пенополиизоцианурат (PIR) ![]() 4 - [40 мм] - Керамзитобетон D500 ![]() | 4,91 |
3 | ![]() | 1 - [20 мм] - Цементно-песчаный раствор 2 - [40 мм] - Керамзитобетон D500 ![]() 3 - [150 мм] - Железобетон 4 - [70 мм] - ![]() 5 - [40 мм] - Керамзитобетон D500 ![]() 6 - [20 мм] - Цементно-песчаный раствор | 2,74 |
4 | ![]() | 1 - [40 мм] - Керамзитобетон D500 ![]() 2 - [150 мм] - Железобетон 3 - [70 мм] - Пенополиизоцианурат (PIR) ![]() 4 - [40 мм] - Керамзитобетон D500 ![]() | 3,62 |
5 | ![]() | 1 - [20 мм] - Цементно-песчаный раствор 2 - [40 мм] - Керамзитобетон D500 ![]() 3 - [120 мм] - Железобетон 4 - [180 мм] - ![]() 5 - [40 мм] - Керамзитобетон D500 ![]() 6 - [20 мм] - Цементно-песчаный раствор | 6,06 |
6 | ![]() | 1 - [40 мм] - Керамзитобетон D500 ![]() 2 - [120 мм] - Железобетон 3 - [180 мм] - Пенополиизоцианурат (PIR) ![]() 4 - [40 мм] - Керамзитобетон D500 ![]() | 8,39 |
7 | ![]() | 1 - [20 мм] - Цементно-песчаный раствор 2 - [40 мм] - Керамзитобетон D500 ![]() 3 - [150 мм] - Железобетон 4 - [150 мм] - ![]() 5 - [40 мм] - Керамзитобетон D500 ![]() 6 - [20 мм] - Цементно-песчаный раствор | 5,17 |
8 | ![]() | 1 - [40 мм] - Керамзитобетон D500 ![]() 2 - [150 мм] - Железобетон 3 - [150 мм] - Пенополиизоцианурат (PIR) ![]() 4 - [40 мм] - Керамзитобетон D500 ![]() | 7,10 |
9 | ![]() | 1 - [40 мм] - Керамзитобетон ![]() 2 - [120 мм] - Бетон на гравии или щебне из природного камня ![]() 3 - [100 мм] - Пенополистирол ППС-14 ![]() 4 - [40 мм] - Керамзитобетон ![]() | 3,09 |
10 | ![]() | 1 - [40 мм] - Керамзитобетон ![]() 2 - [150 мм] - Бетон на гравии или щебне из природного камня ![]() 3 - [70 мм] - Пенополистирол ППС-14 ![]() 4 - [40 мм] - Керамзитобетон ![]() | 2,35 |
11 | ![]() | 1 - [40 мм] - Керамзитобетон ![]() 2 - [120 мм] - Бетон на гравии или щебне из природного камня ![]() 3 - [180 мм] - Пенополистирол ППС-14 ![]() 4 - [40 мм] - Керамзитобетон ![]() | 5,09 |
12 | ![]() | 1 - [40 мм] - Керамзитобетон ![]() 2 - [150 мм] - Бетон на гравии или щебне из природного камня ![]() 3 - [150 мм] - Минеральная (каменная) вата 75 - 120 кг/м3 ![]() 4 - [40 мм] - Керамзитобетон ![]() | 4,17 |
13 | ![]() | 1 - [40 мм] - Керамзитобетон ![]() 2 - [150 мм] - Бетон на гравии или щебне из природного камня ![]() 3 - [150 мм] - Пенополистирол ППС-14 ![]() 4 - [40 мм] - Керамзитобетон ![]() | 4,35 |
14 | ![]() | 1 - [35 мм] - Керамзитобетон ![]() 2 - [120 мм] - Бетон на гравии или щебне из природного камня ![]() 3 - [30 мм] - Пенополистирол ППС-14 ![]() 4 - [35 мм] - Керамзитобетон ![]() | 1,29 |
15 | ![]() | 1 - [40 мм] - Керамзитобетон ![]() 2 - [150 мм] - Бетон на гравии или щебне из природного камня ![]() 3 - [40 мм] - Керамзитобетон ![]() | 0,56 |
Регион: Населенный пункт: Помещение: | Ленинградская область Санкт-Петербург Жилое | ||
16 | ![]() | 1 - [20 мм] - Цементно-песчаный раствор 2 - [40 мм] - Керамзитобетон D500 ![]() 3 - [250 мм] - Железобетон 4 - [50 мм] - Пенополиизоцианурат (PIR) ![]() 5 - [40 мм] - Керамзитобетон D500 ![]() 6 - [10 мм] - Цементно-песчаный раствор 7 - [0,1 мм] - Окраска горячим битумом за два раза | 2,66 |
17 | ![]() | 1 - [20 мм] - Цементно-песчаный раствор 2 - [40 мм] - Керамзитобетон D500 ![]() 3 - [250 мм] - Железобетон 4 - [50 мм] - Пенополистирол ППС-14 ![]() 5 - [40 мм] - Керамзитобетон D500 ![]() 6 - [10 мм] - Цементно-песчаный раствор 7 - [0,1 мм] - Окраска горячим битумом за два раза | 1,82 |
Эскиз поперечного сечения конструкции | Наименование конструкции | Приведенное сопротивление теплопередаче |
![]() | Трехслойная керамзитобетонная панель (3 x 2,86 м) (по альбому рабочих чертежей [11] для жилых домов серий П30 и П46) толщиной (толщиной керамзитобетонных слоев 110 и 90 мм), с оконным проемом высотой 1435 мм (F1/F2 <*> = 0,3) со средним слоем из утеплителя (полистирольный пенопласт ) толщиной ![]() ![]() | 1,65 |
![]() | Трехслойная керамзитобетонная панель толщиной плотностью 1600 кг/м3 по рабочим чертежам [6] со средним слоем из утеплителя (плиты полужесткие минераловатные на синтетическом связующем по ГОСТ 9573 плотностью в сухом состоянии 100 кг/м3 ) с наружным и внутренними отделочными слоями по 15 мм из цементно-песчаного раствора плотностью 1800 кг/м3 ![]() | 2,96 <**> |
![]() | Трехслойная керамзитобетонная панель толщиной плотностью 1600 кг/м3 по рабочим чертежам серии [6] со средним слоем из утеплителя (плиты жесткие минераловатные на синтетическом связующем по ГОСТ 9573 плотностью в сухом состоянии 175 кг/м3 ) с наружным и внутренними отделочными слоями по 15 мм из цементно-песчаного раствора плотностью 1800 кг/м3 ![]() | 2,61 <**> |
![]() | Трехслойная керамзитобетонная панель толщиной плотностью 1600 кг/м3 по рабочим чертежам серии [6] со средним слоем из утеплителя (плиты из вермикулитобетона по ГОСТ 12730.0 - ГОСТ 12730.2 плотностью в сухом состоянии 300 кг/м3 ) с наружным и внутренними отделочными слоями по 15 мм из цементно-песчаного раствора плотностью 1800 кг/м3 ![]() | 1,625 <**> |

; 2 - керамзитобетон;
;
; 5 - железобетон,
,
; 6 - линолеум на тканевой основе,
; a - длина теплопроводного включения
; коэффициента теплопроводности теплопроводного включения (утепляющего вкладыша)
; сопротивления теплопередаче Rо.о.к = 0,92 м2·°C/Вт.
, коэффициентом теплопроводности
;
;
;
,
.
и
понижающие коэффициенты
и
. С учетом утепления зоны перехода теплоизоляционными вкладышами понижающие коэффициенты
и
.

плотностью 1600 кг/м3 с различным утеплителем в среднем слое согласно рабочим чертежам [6], в том числе в зоне теплопроводных включений (в зоне горизонтального шва рядовых панелей, в зоне вертикального ребра и горизонтального шва панелей и т.д.).
,Эскиз конструкции стенового ограждения | Наименование конструкции | Температура на внутренней поверхности стены tвн, °C, при температуре внутреннего воздуха в помещении tв = 25 °C | Температура на внутренней поверхности стены tвн, °C, в зоне теплопроводных включений при tв = 25 °C | Значение температуры точки росы tр, °C, при влажности воздуха 60% |
![]() | Панель со средним слоем из утеплителя (плиты полужесткие минераловатные на синтетическом связующем по ГОСТ 9573 плотностью в сухом состоянии 100 кг/м3, ) с наружным и внутренним отделочными слоями по 15 мм из цементно-песчаного раствора плотностью 1800 кг/м3, ![]() | 22,4 - 23,1 (точка 1 на эскизе конструкции стены) ![]() | 16,8 - 19,10 (в зоне вертикального ребра панелей - точка 4 на эскизе конструкции стены) | 15,8 |
![]() | 14,1 - 17,15 (в зоне горизонтального шва рядовых панелей, выполненного из цементного раствора, - точка 4 на эскизе конструкции стены) | |||
![]() | Панель со средним слоем из утеплителя (плиты полужесткие минераловатные на синтетическом связующем по ГОСТ 9573 плотностью в сухом состоянии 100 кг/м3, ) с наружным и внутренним отделочными слоями по 15 мм из цементно-песчаного раствора плотностью 1800 кг/м3, ![]() | 13,79 - 16,92 (в зоне вертикального ребра и горизонтального шва рядовых панелей - точка 4 на эскизе конструкции стены) | 15,8 | |
![]() | 17,89 - 19,88 (в месте сопряжения панелей во внешнем углу здания - точка 3 на эскизе конструкции стены) | |||
![]() | Панель со средним слоем из утеплителя (плиты жесткие минераловатные на синтетическом связующем по ГОСТ 9573 плотностью в сухом состоянии 175 кг/м3, ) с наружным и внутренним отделочными слоями по 15 мм из цементно-песчаного раствора плотностью 1800 кг/м3, ![]() | 22,0 - 22,9 (точка 1 на эскизе конструкции стены) ![]() | 16,61 - 18,95 (в зоне вертикального ребра панелей - точка 4 на эскизе конструкции стены) | 15,8 |
![]() | 13,67 - 16,84 (в зоне вертикального ребра и горизонтального шва рядовых панелей - точка 4 на эскизе конструкции стены) | |||
![]() | Панель со средним слоем из утеплителя (плиты жесткие минераловатные на синтетическом связующем по ГОСТ 9573 плотностью в сухом состоянии 175 кг/м3, ) с наружным и внутренним отделочными слоями по 15 мм из цементно-песчаного раствора плотностью 1800 кг/м3, ![]() | 13,97 - 17,05 (в зоне горизонтального шва рядовых панелей, выполненного из цементного раствора, - точка 4 на эскизе конструкции стены) | 15,8 | |
![]() | 17,59 - 19,66 (в месте сопряжения панелей во внешнем углу здания - точка 3 на эскизе конструкции стены) | |||
![]() | Панель со средним слоем из утеплителя (плиты из вермикулитобетона по ГОСТ 25820 плотностью в сухом состоянии 300 кг/м3, ) с наружным и внутренним отделочными слоями по 15 мм из цементно-песчаного раствора плотностью 1800 кг/м3, ![]() | 20,2 - 21,6 (точка 1 на эскизе конструкции стены) | - | 15,8 |
![]() | Панель со средним слоем из утеплителя (плиты полужесткие минераловатные на синтетическом связующем по ГОСТ 9573 плотностью в сухом состоянии 100 кг/м3, ) с наружным и внутренними отделочными слоями по 15 мм из цементно-песчаного раствора плотностью 1800 кг/м3, , или из перлитобетона марки М50, плотностью 800 кг/м3, ![]() | 22,4 - 23,1 (точка 1 на эскизе конструкции стены) ![]() | 16,8 - 19,10 (в зоне вертикального ребра панелей - точка 4 на эскизе конструкции стены) | 15,8 |
14,1 - 17,15 (в зоне горизонтального шва рядовых панелей, выполненного из цементного раствора, - точка 4 на эскизе конструкции стены) | ||||
![]() | Панель со средним слоем из утеплителя (плиты полужесткие минераловатные на синтетическом связующем по ГОСТ 9573 плотностью в сухом состоянии 100 кг/м3, ) с наружным и внутренними отделочными слоями по 15 мм из цементно-песчаного раствора плотностью 1800 кг/м3, , или из перлитобетона марки М50, плотностью 800 кг/м3, ![]() | 15,8 | ||
![]() | 15,2 - 17,94 (в зоне горизонтального шва рядовых панелей, выполненного из перлитобетона, - точка 4 на эскизе конструкции стены) | |||
![]() | 13,79 - 16,92 (в зоне вертикального ребра и горизонтального шва рядовых панелей - точка 4 на эскизе конструкции стены) | 15,8 | ||
![]() | 14,9 - 17,72 (в зоне вертикального ребра и горизонтального шва рядовых панелей, выполненного из перлитобетона, - точка 4 на эскизе конструкции стены) | |||
![]() | 17,89 - 19,88 (в месте сопряжения панелей во внешнем углу здания - точка 3 на эскизе конструкции стены) | |||
Примечание - Температура на внутренней поверхности стен определялась в зависимости от температуры наружного воздуха наиболее холодных суток в интервале от минус 24 °C до минус 43 °C. При этом меньшие значения температуры в зоне теплопроводных включений даны при температурах наружного воздуха минус 34 °C и ниже (до минус 43 °C). | ||||
N п/п | Наименование материала | Толщина | Плотность | Коэффициент теплопроводности | Коэффициент паропроницаемости |
1 | Цементно-песчаный раствор | 0,02 | 1800 | 0,76 | 0,09 |
2 | Керамзитобетон | 0,38 | 500 | 0,17 | 0,3 |
3 | Цементно-песчаный раствор | 0,02 | 1800 | 0,76 | 0,09 |
4 | Декоративная тонкослойная штукатурка | 0,0035 | 1800 | 0,76 | 0,05 |




N п/п | , м2·°C/Вт | , м2·ч·Па/мг | ![]() | ![]() |
1 | 0,02 | 0,22 | 0,057 | 0,124 |
2 | 2,23 | 1,26 | 0,969 | 0,835 |
3 | 0,02 | 0,22 | 0,98 | 0,96 |
4 | 0 | 0,07 | 0,982 | 1 |
и наружного воздуха tн = -13,5 °C;
и характеризует значения безразмерного сопротивления паропроницанию для состояния полного насыщения влажного воздуха водяным паром:

ИС МЕГАНОРМ: примечание. Рисунок дан в соответствии с официальным текстом документа. |

;
;
.
:
, где Z1, Z2, Z3 - продолжительность, мес, зимнего, весенне-осеннего и летнего периодов соответственно.

;


1,3 м2·ч·Па/мг > 0,11 м2·ч·Па/мг;
1,3 м2·ч·Па/мг > 0,2 м2·ч·Па/мг.Ключевые слова: керамзит, керамзитобетон, крупнопористый керамзитобетон, керамзитобетонные блоки, панельное домостроение, сборное домостроение, сборно-панельное домостроение, самонесущие стены, ненесущие стены, опалубка, конструктивные решения, теплотехнические расчеты, влажностный режим |