Главная // Актуальные документы // ГОСТ Р (Государственный стандарт)
СПРАВКА
Источник публикации
М.: ФГБУ "Институт стандартизации", 2023
Примечание к документу
Документ введен в действие с 01.09.2023.
Название документа
"ГОСТ Р 21.622-2023. Национальный стандарт Российской Федерации. Система проектной документации для строительства. Правила выполнения проектной документации по системам внутренних электроустановок, сетям электроснабжения и наружного электроосвещения"
(утв. и введен в действие Приказом Росстандарта от 30.08.2023 N 770-ст)

"ГОСТ Р 21.622-2023. Национальный стандарт Российской Федерации. Система проектной документации для строительства. Правила выполнения проектной документации по системам внутренних электроустановок, сетям электроснабжения и наружного электроосвещения"
(утв. и введен в действие Приказом Росстандарта от 30.08.2023 N 770-ст)


Содержание


Утвержден и введен в действие
Приказом Федерального
агентства по техническому
регулированию и метрологии
от 30 августа 2023 г. N 770-ст
НАЦИОНАЛЬНЫЙ СТАНДАРТ РОССИЙСКОЙ ФЕДЕРАЦИИ
СИСТЕМА ПРОЕКТНОЙ ДОКУМЕНТАЦИИ ДЛЯ СТРОИТЕЛЬСТВА
ПРАВИЛА ВЫПОЛНЕНИЯ ПРОЕКТНОЙ ДОКУМЕНТАЦИИ
ПО СИСТЕМАМ ВНУТРЕННИХ ЭЛЕКТРОУСТАНОВОК,
СЕТЯМ ЭЛЕКТРОСНАБЖЕНИЯ И НАРУЖНОГО ЭЛЕКТРООСВЕЩЕНИЯ
System of design documents for construction.
Rules for execution of design documents for systems
of internal electrical installations, power supply networks
and outdoor electrical lighting
ГОСТ Р 21.622-2023
ОКС 91.040
91.160.01
Дата введения
1 сентября 2023 года
Предисловие
1 РАЗРАБОТАН федеральным государственным бюджетным учреждением "Научно-исследовательский институт строительной физики Российской академии архитектуры и строительных наук" (НИИСФ РААСН) и Обществом с ограниченной ответственностью "ЦЕРЕРА-ЭКСПЕРТ" (ООО "ЦЕРЕРА-ЭКСПЕРТ")
2 ВНЕСЕН Техническим комитетом по стандартизации ТК 465 "Строительство"
3 УТВЕРЖДЕН И ВВЕДЕН В ДЕЙСТВИЕ Приказом Федерального агентства по техническому регулированию и метрологии от 30 августа 2023 г. N 770-ст
4 ВВЕДЕН ВПЕРВЫЕ
Правила применения настоящего стандарта установлены в статье 26 Федерального закона от 29 июня 2015 г. N 162-ФЗ "О стандартизации в Российской Федерации". Информация об изменениях к настоящему стандарту публикуется в ежегодном (по состоянию на 1 января текущего года) информационном указателе "Национальные стандарты", а официальный текст изменений и поправок - в ежемесячном информационном указателе "Национальные стандарты". В случае пересмотра (замены) или отмены настоящего стандарта соответствующее уведомление будет опубликовано в ближайшем выпуске ежемесячного информационного указателя "Национальные стандарты". Соответствующая информация, уведомление и тексты размещаются также в информационной системе общего пользования - на официальном сайте Федерального агентства по техническому регулированию и метрологии по стандартизации в сети Интернет (www.rst.gov.ru)
1 Область применения
Настоящий стандарт устанавливает требования к оформлению проектной документации по системам внутренних электроустановок, сетям электроснабжения и наружного электроосвещения подраздела "Системы электроснабжения" [1], пункт 16.
2 Нормативные ссылки
В настоящем стандарте использованы нормативные ссылки на следующие стандарты:
ГОСТ 2.301 Единая система конструкторской документации. Форматы
ГОСТ 2.302 Единая система конструкторской документации. Масштабы
ГОСТ 2.303 Единая система конструкторской документации. Линии
ГОСТ 2.305 Единая система конструкторской документации. Изображения - виды, разрезы, сечения
ГОСТ 2.316 Единая система конструкторской документации. Правила нанесения надписей, технических требований и таблиц на графических документах. Общие положения
ГОСТ 2.701 Единая система конструкторской документации. Схемы. Виды и типы. Общие требования к выполнению
ГОСТ 2.702 Единая система конструкторской документации. Правила выполнения электрических схем
ГОСТ 2.709 Единая система конструкторской документации. Обозначения условные проводов и контактных соединений электрических элементов, оборудования и участков цепей в электрических схемах
ГОСТ 2.710 Единая система конструкторской документации. Обозначения буквенно-цифровые в электрических схемах
ГОСТ 2.721 Единая система конструкторской документации. Обозначения условные графические в схемах. Обозначения общего применения
ГОСТ 2.727 Единая система конструкторской документации. Обозначения условные графические в схемах. Разрядники, предохранители
ГОСТ 2.728 Единая система конструкторской документации. Обозначения условные графические в схемах. Резисторы, конденсаторы
ГОСТ 2.730 Единая система конструкторской документации. Обозначения условные графические в схемах. Приборы полупроводниковые
ГОСТ 2.732 Единая система конструкторской документации. Обозначения условные графические в схемах. Источники света
ГОСТ 2.747 Единая система конструкторской документации. Обозначения условные графические в схемах. Размеры условных графических обозначений
ГОСТ 2.755 Единая система конструкторской документации. Обозначения условные графические в электрических схемах. Устройства коммутационные и контактные соединения
ГОСТ 21.002 Система проектной документации для строительства. Нормоконтроль проектной и рабочей документации
ГОСТ 21.110 Система проектной документации для строительства. Спецификация оборудования, изделий и материалов
ГОСТ 21.114 Система проектной документации для строительства. Правила выполнения эскизных чертежей общих видов нетиповых изделий
ГОСТ 21.204 Система проектной документации для строительства. Условные графические обозначения и изображения элементов генеральных планов и сооружений транспорта
ГОСТ 21.210 Система проектной документации для строительства. Условные графические изображения электрооборудования и проводок на планах
ГОСТ 21.607 Система проектной документации для строительства. Правила выполнения рабочей документации наружного электрического освещения
ГОСТ 21.608 Система проектной документации для строительства. Правила выполнения рабочей документации внутреннего электрического освещения
ГОСТ 21.613-2014 Система проектной документации для строительства. Правила выполнения рабочей документации силового электрооборудования
ГОСТ 17703 Аппараты электрические коммутационные. Основные понятия. Термины и определения
ГОСТ 24291 Электрическая часть электростанции и электрической сети. Термины и определения
ГОСТ Р 21.001 Система проектной документации для строительства. Общие положения
ГОСТ Р 21.101-2020 Система проектной документации для строительства. Основные требования к проектной и рабочей документации
Примечание - При пользовании настоящим стандартом целесообразно проверить действие ссылочных стандартов в информационной системе общего пользования - на официальном сайте Федерального агентства по техническому регулированию и метрологии в сети Интернет или по ежегодному информационному указателю "Национальные стандарты", который опубликован по состоянию на 1 января текущего года, и по выпускам ежемесячного информационного указателя "Национальные стандарты" за текущий год. Если заменен ссылочный стандарт, на который дана недатированная ссылка, то рекомендуется использовать действующую версию этого стандарта с учетом всех внесенных в данную версию изменений. Если заменен ссылочный стандарт, на который дана датированная ссылка, то рекомендуется использовать версию этого стандарта с указанным выше годом утверждения (принятия). Если после утверждения настоящего стандарта в ссылочный стандарт, на который дана датированная ссылка, внесено изменение, затрагивающее положение, на которое дана ссылка, то это положение рекомендуется применять без учета данного изменения. Если ссылочный стандарт отменен без замены, то положение, в котором дана ссылка на него, рекомендуется применять в части, не затрагивающей эту ссылку.
3 Термины и определения
В настоящем стандарте применены термины по ГОСТ 17703 и ГОСТ 24291.
4 Сокращения
В настоящем стандарте применены следующие сокращения:
АВР - автоматическое включение резерва;
ВРУ - вводно-распределительное устройство;
ГПП - главная понизительная подстанция;
ГРЩ - главный распределительный щит;
ЕСКД - Единая система конструкторской документации;
КРУ - комплектное распределительное устройство;
КТП - комплектная трансформаторная подстанция;
ЛЭП - линия электропередачи;
НКУ - низковольтное комплектное устройство;
ОРУ - открытое распределительное устройство;
РЗА - релейная защита и автоматика;
РТП - распределительная трансформаторная подстанция;
РУ - распределительное устройство;
СПДС - Система проектной документации для строительства;
ТП - трансформаторная подстанция;
ШВВ - шкаф ввода-вывода;
ШКС - шкаф кабельных сборок;
ШТЗ - шкаф токовых защит;
ШЩ - шкафный щит;
ЩАО - щит аварийного освещения;
ЩГП - щит гарантированного питания;
ЩНО - щит наружного освещения;
ЩР - щит распределительный;
ЩРО - щит рабочего освещения;
ЩС - щит силовой;
ЩСН - щит собственных нужд;
ЯТП - ящик с понижающим трансформатором.
5 Общие положения
5.1 Проектная документация в части состава, содержания и обозначения должна соответствовать [1] и ГОСТ Р 21.101.
5.2 Проектная документация должна соответствовать требованиям ГОСТ Р 21.101 в части выполнения основных надписей, нанесения размеров и отметок, изображения разрезов, сечений и видов, правил внесения изменений в документацию, комплектования бумажной и электронной документации и прочих требований, носящих общий характер и не являющихся специфическими для электротехнической документации.
5.3 Разработку графических и текстовых материалов электротехнических разделов проектной документации в части оформления электрических схем, планов расположения электрооборудования и кабельных трасс, условных графических и буквенно-цифровых обозначений в схемах и на планах, изображений, таблиц и надписей следует выполнять с учетом требований комплексов взаимосвязанных межгосударственных и национальных стандартов СПДС и ЕСКД, содержащих общие требования и правила по разработке и оформлению проектной документации.
5.4 Нормоконтроль проектной документации выполняют по ГОСТ 21.002.
5.5 Текстовые и графические материалы проектной документации, выполняемой в электронном или бумажном виде, оформляют на листах форматов по ГОСТ 2.301.
6 Состав и структура подраздела "Система электроснабжения" проектной документации
6.1 В состав проектной документации, касающейся электротехнической части, включают текстовые и графические материалы в соответствии с требованиями [1], пункт 16.
6.2 К текстовым материалам в соответствии с требованиями ГОСТ Р 21.001 относят пояснительную записку, спецификацию оборудования изделий и материалов, ведомость объемов работ, трубозаготовительную ведомость (при необходимости), ведомость заполнения труб кабелями и проводами (при необходимости), сметную документацию и прочие текстовые документы.
В текстовой части указывают следующую информацию:
- характеристику источников электроснабжения с указанием мощности, выраженной в киловаттах;
- обоснование принятой схемы электроснабжения;
- обоснование выбора конструктивных и инженерно-технических решений, используемых в системе электроснабжения, в части обеспечения энергетической эффективности и оснащенности приборами учета используемых энергетических ресурсов;
- сведения о количестве, установленной, расчетной и максимальной мощности энергопринимающих устройств;
- требования к надежности электроснабжения и качеству электроэнергии;
- описание решений по обеспечению электроэнергией электроприемников в рабочем и аварийном режимах в соответствии с установленной классификацией;
- описание проектных решений по компенсации реактивной мощности, РЗА, управлению, автоматизации и диспетчеризации системы электроснабжения;
- перечень мероприятий по обеспечению соблюдения установленных требований энергетической эффективности к устройствам, технологиям и материалам, используемым в системе электроснабжения, позволяющих исключить нерациональный расход электрической энергии, и по учету расхода электрической энергии, если такие требования предусмотрены в задании на проектирование;
- описание мест расположения приборов учета используемой электрической энергии и устройств сбора и передачи данных от таких приборов, а также технических решений включения приборов учета электрической энергии в интеллектуальную систему учета электрической энергии (мощности);
- для многоквартирных домов - описание и перечень приборов учета электрической энергии, измерительных трансформаторов (при необходимости их установки одновременно с приборами учета), иного оборудования, которое указано в [2], используемых для коммерческого учета электрической энергии (мощности) и обеспечивающих возможность присоединения приборов учета электрической энергии к интеллектуальной системе учета электрической энергии (мощности) гарантирующего поставщика и способ присоединения приборов учета электрической энергии к интеллектуальной системе учета электрической энергии (мощности) гарантирующего поставщика;
- сведения о мощности сетевых и трансформаторных объектов;
- решения по организации масляного и ремонтного хозяйства - для объектов производственного назначения;
- перечень мероприятий по заземлению (занулению) и молниезащите;
- сведения о типе, классе проводов и осветительной арматуры, которые подлежат применению при строительстве, реконструкции, капитальном ремонте объекта капитального строительства;
- описание системы рабочего и аварийного освещения;
- описание дополнительных и резервных источников электроэнергии, устройств АВР;
- перечень мероприятий по резервированию электроэнергии;
- перечень энергопринимающих устройств аварийной и/или технологической брони и его обоснование;
- описание устройств РЗА в сети 6 (10) и 0,4 кВ.
6.3 К графическим материалам в соответствии с требованиями ГОСТ Р 21.001 относят принципиальные и структурные схемы ТП, питающей, распределительной и групповой сетей, принципиальные схемы магистральных и групповых щитков, планы расположения электрического оборудования и прокладки электрических сетей, принципиальные схемы управления электрооборудованием и освещением, чертежи нетиповых узлов установки осветительных приборов и электрооборудования, эскизные чертежи общих видов нетиповых изделий, конструкций, устройств, монтажных блоков (при необходимости), габаритные чертежи (при необходимости), а также прочие проектные документы, отображаемые преимущественно в виде изображений и условных графических обозначений.
В графической части рекомендуется указывать следующую информацию:
- принципиальные схемы электроснабжения электроприемников от основного, дополнительного и резервного источников электроснабжения;
- принципиальные (полные) схемы вторичной коммутации НКУ;
- принципиальную схему сети освещения, в том числе промышленной площадки и транспортных коммуникаций, - для объектов производственного назначения;
- принципиальную схему сети освещения - для объектов непроизводственного назначения, включая освещение территории, архитектурное освещение;
- принципиальную схему сети аварийного освещения;
- схемы заземлений (занулений) и молниезащиты;
- планы сетей электроснабжения;
- схемы размещения электрооборудования.
6.4 Проектную документацию повторного использования привязывают к условиям строительства объекта и включают в проектную документацию с обозначением, указанным в штампе привязки.
Допускается применять чертежи конструкций и деталей, выполненные проектной организацией и утвержденные ее руководством для повторного использования, без штампа привязки, если в указанные чертежи не вносят изменений.
6.5 Эскизные чертежи общего вида НКУ составляют на нетиповые комплектные устройства. Для типовых комплектных устройств в состав проектной документации включают чертежи общего вида НКУ, разработанные предприятием-изготовителем, и опросные листы.
6.6 Проектную документацию в связи со значительным объемом графических материалов в соответствии с требованиями ГОСТ Р 21.101 допускается разделять на части в зависимости от вида проектных работ. К основным частям проектной документации относят:
- "Электроснабжение. Подстанции";
- "Электроснабжение";
- "ЛЭП воздушные";
- "ЛЭП кабельные";
- "Молниезащита и заземление";
- "Силовое электрооборудование";
- "Внутреннее электрическое освещение";
- "Наружное электрическое освещение".
6.7 Каждая часть проектной документации, в свою очередь, может быть разделена на несколько книг по различным признакам (например, по очередям строительства, участкам здания, технологическим узлам и т.д.) с присвоением им такой же марки и с добавлением порядкового номера.
Пример - 1111-22-ИОС1.1.1, 1111-22-ИОС1.1.2
6.8 В обозначения эскизных чертежей общего вида НКУ включают обозначение книги проектной документации с добавлением через точку буквенно-цифровых индексов, состоящих из заглавной буквы "Н" и порядковых номеров чертежей.
Пример - 1111-22-ИОС1.1.1.Н1, 1111-22-ИОС1.1.1.Н2
6.9 В обозначения чертежей нетиповых конструкций, разработанных для проектируемого объекта, включают обозначение книги проектной документации с добавлением через точку буквенно-цифровых индексов, состоящих из заглавной буквы "И" и порядковых номеров чертежей.
Пример - 1111-22-ИОС1.1.1.И1, 1111-22-ИОС1.1.1.И2
В обозначении сборочного чертежа конструкции дополнительно в конце обозначения за порядковым номером чертежа конструкции добавляют буквенный индекс из заглавных букв "СБ".
Пример - 1111-22-ИОС1.1.1.И1.ИСБ
6.10 В обозначения текстовых документов, входящих в книгу проектной документации, включают обозначение книги проектной документации с добавлением через точку буквенного индекса из заглавных букв.
Применяют следующие буквенные индексы:
ПЗ - для пояснительной записки;
ЛС - для локальной сметы;
СО - для спецификации оборудования, изделий и материалов;
ОЛ - для опросного листа;
ВР - для ведомости объемов монтажных и строительных работ.
При наличии в составе книги проектной документации нескольких текстовых документов одного вида к буквенному индексу добавляется порядковый номер документа.
6.11 Чертежам, разработанным как чертежи повторного использования, присваивают безобъектное обозначение.
7 Требования к выполнению частей подраздела "Система электроснабжения" проектной документации
7.1 Подстанции
7.1.1 В состав данной части проектной документации рекомендуется включать:
- пояснительную записку;
- принципиальную схему главных цепей;
- принципиальные схемы РЗА, управления, измерения, сигнализации и т.д.;
- планы расположения электрооборудования, ошиновки и прокладки сетей заземления;
- планы прокладки электрических сетей;
- эскизные чертежи общего вида высоковольтных ячеек;
- расчеты токов короткого замыкания в сети 6 (10) и 0,4 кВ;
- расчет токов однофазного замыкания на землю в сети 6 (10) кВ;
- расчет уставок защит и электроавтоматики в сети 6 (10) и 0,4 кВ с выполнением карт селективности;
- задание на конфигурацию (наладку) цифровых терминалов РЗА;
- схемы распределения защит и противоаварийной автоматики в сети 6 (10) кВ.
7.1.2 Схему главных цепей выполняют в однолинейном изображении.
На схеме указывают:
- номинальное напряжение и ток сборных шин;
- номинальные токи и сопротивление резисторов, типы конденсаторов (при наличии их в схеме);
- схемы соединений обмоток, тип, номинальные мощности и напряжение силовых трансформаторов;
- схемы соединений обмоток, тип и номинальное напряжение трансформаторов напряжения;
- коммутационные аппараты (выключатели, разъединители, рубильники, выключатели нагрузки, предохранители, пробивные предохранители);
- номинальные токи коммутационных аппаратов;
- виды РЗА, измерительные приборы и приборы учета.
7.1.3 Электронные элементы, микропроцессорные устройства и т.п., имеющие электрические схемы, изображаются на принципиальных схемах в виде прямоугольников или других условных графических изображений.
7.2 Электроснабжение
7.2.1 В состав данной части проектной документации рекомендуется включать:
- пояснительную записку;
- структурную схему силовой сети;
- принципиальные схемы ЩС и силовых шкафов;
- планы расположения электрооборудования и прокладки сетей заземления;
- планы прокладки электрических сетей;
- эскизные чертежи общего вида высоковольтных ячеек.
7.2.2 Структурную схему силовых цепей выполняют в однолинейном изображении.
На схеме указывают в упрощенном виде:
- источники питания сети;
- схемы ЩС и силовых шкафов с основной коммутирующей и защитной аппаратурой.
7.2.3 Схему главных цепей выполняют в однолинейном изображении.
На схеме указывают:
- номинальное напряжение и ток сборных шин;
- номинальные токи автоматических выключателей, предохранителей, разъединителей, выключателей нагрузки, трансформаторов тока;
- номинальные токи и сопротивление резисторов, типы конденсаторов (при наличии их в схеме);
- виды автоматики, измерительные приборы, приборы учета.
7.2.4 Планы расположения силового электрооборудования выполняют на здание или его часть с учетом технологических узлов. Масштабы чертежей должны обеспечивать четкое графическое отображение силового электрооборудования и электрических сетей в виде условных графических изображений с указанием буквенно-цифровых обозначений по принципиальным схемам.
7.2.5 Планы прокладки электрических сетей и устройства заземления рекомендуется совмещать с планами расположения силового электрооборудования.
7.3 Воздушные линии электропередачи
В состав данной части проектной документации рекомендуется включать:
- пояснительную записку;
- паспорт ЛЭП;
- схему ЛЭП;
- обзорный план трасс;
- профиль трассы с расстановкой опор;
- таблицу монтажных стрел провеса проводов и троса;
- детали переходов ЛЭП.
7.4 Кабельные линии электропередачи
7.4.1 В состав данной части проектной документации рекомендуется включать:
- пояснительную записку;
- планы расположения кабельных трасс на действующих геоподосновах в масштабе 1:500;
- продольные профили линий (участков линий);
- чертежи установки кабельных конструкций и прокладки кабелей.
7.4.2 На планах расположения кабельных трасс указывают привязки трасс, тип кабельной канализации с помощью условных графических изображений, обозначение кабелей, способ защиты кабелей от механических повреждений и т.п.
7.4.3 Чертежи продольного профиля линий (участков линий) выполняют при пересечении кабельных линий с магистральными дорогами, при сложных геологических условиях, сложном рельефе и т.п.
7.4.4 На планах прокладки электрических сетей (или расположения кабельных трасс) изображают установку конструкций в кабельных сооружениях с необходимыми разрезами и указаниями по раскладке кабелей на полках и лотках.
7.5 Молниезащита и заземление
7.5.1 В состав данной части проектной документации рекомендуется включать:
- пояснительную записку;
- схемы размещения молниезащитных устройств (планы и разрезы);
- схемы размещения наружных заземляющих устройств.
7.5.2 В пояснительную записку рекомендуется дополнительно включать:
- результаты проверочных расчетов молниезащиты и заземления, если получены экспериментальные данные о сопротивлении растеканию электрического тока в земле;
- сведения о заземлении специальных установок (лабораторных, электронных устройств и т.п.);
- возможность использования железобетонных и металлических конструкций строительной части зданий и сооружений в качестве заземляющих проводников и естественных заземлителей.
7.6 Силовое электрооборудование
В состав данной части проектной документации рекомендуется включать:
- пояснительную записку;
- принципиальные электрические схемы ТП, питающих, распределительных и групповых сетей;
- планы расположения электрооборудования и прокладки электрических сетей.
Примечание - Оформление чертежей проектной документации силового электрооборудования рекомендуется выполнять с учетом требований ГОСТ 21.613.
7.7 Внутреннее электрическое освещение
В состав данной части проектной документации рекомендуется включать:
- пояснительную записку;
- принципиальные электрические схемы магистральных и групповых щитков освещения;
- принципиальные электрические схемы питающей и распределительной сетей (при необходимости);
- планы расположения электрооборудования;
- планы расположения осветительных приборов или светотехническую ведомость;
- планы прокладки электрических сетей (при необходимости);
- принципиальные схемы дистанционного управления освещением (при необходимости).
Примечание - Оформление чертежей проектной документации внутреннего электрического освещения рекомендуется выполнять с учетом требований ГОСТ 21.608.
7.8 Наружное электрическое освещение
В состав данной части проектной документации рекомендуется включать:
- пояснительную записку;
- принципиальные электрические схемы магистральных и групповых щитков наружного освещения;
- планы расположения опор освещения, прожекторных мачт, электрооборудования и прокладки электрических сетей на действующих геоподосновах в масштабе М 1:500;
- ведомости опор и прожекторных мачт с установленными на них осветительными приборами и электрооборудованием;
- принципиальные схемы управления наружным освещением.
Примечание - Оформление чертежей проектной документации наружного электрического освещения рекомендуется выполнять с учетом требований ГОСТ 21.607.
8 Требования к оформлению текстовых и графических материалов проектной документации
8.1 Текстовые документы в составе проектной документации оформляют в соответствии с требованиями ГОСТ Р 21.101-2020 (раздел 4).
Текстовые документы, содержащие текст, разбитый на графы (ведомость графической части раздела, таблица регистрации изменений), оформляют по формам 1 и 10 ГОСТ Р 21.101-2020 (приложения В и Н соответственно).
8.2 Спецификацию оборудования, изделий и материалов выполняют по ГОСТ 21.110.
8.3 Принципиальные схемы, схемы подключения выполняют в соответствии с требованиями ГОСТ 2.701, ГОСТ 2.702. Обозначения элементов, входящих в состав принципиальных схем и схем подключения, выполняют по ГОСТ 2.709, ГОСТ 2.721, ГОСТ 2.727, ГОСТ 2.728, ГОСТ 2.730, ГОСТ 2.732, ГОСТ 2.747, ГОСТ 2.755. Каждый элемент и/или устройство, изображенные на принципиальной схеме и на схеме подключения, должны иметь буквенно-цифровое обозначение в соответствии с требованиями ГОСТ 2.710. Взамен схем подключения допускается выполнять таблицы подключения.
Надписи и таблицы на графических документах следует выполнять с учетом требований ГОСТ 2.316.
В перечне элементов к принципиальной схеме допускается не записывать обозначения национальных, межгосударственных стандартов, технических условий и т.п. для электрооборудования, поставляемого комплектно с механическим оборудованием.
8.4 Планы расположения электрооборудования, прокладки электрических сетей и сетей заземления (далее - планы расположения) в зданиях и сооружениях выполняют на подосновах, которыми служат планы зданий и сооружений. Планы расположения вне зданий и сооружений выполняют на подосновах, которыми служат разбивочные планы или геоподосновы. Планы расположения следует выполнять в масштабах по ГОСТ 2.302. Рекомендуемые масштабы изображений на планах указаны в таблице 1.
Таблица 1
Масштабы изображений на планах
Наименование изображения
Масштаб
Расположение электроустановок и ЛЭП напряжением выше 1 кВ
1:1000; 1:5000; 1:10000; 1:20000
ТП 6 (10)/0,4 кВ
1:50; 1:100
Трассы наружных кабельных сетей
1:500; 1:1000
Трассы высоковольтных ЛЭП
1:2000; 1:5000
Расположение электрооборудования и прокладка кабелей
1:100; 1:200
Прокладка труб, шин
1:20; 1:25; 1:50
Электромонтажные конструкции
1:5; 1:10; 1:20
8.5 На планы расположения в зданиях и сооружениях наносят:
- координационные оси здания или сооружения и расстояния между ними;
- отметки чистых полов этажей и основных площадок;
- строительные и технологические конструкции - в виде контурных очертаний;
- технологическое и инженерное оборудование - в виде упрощенных контурных очертаний;
- границы и классы взрыво- и пожароопасных зон, категории и группы взрывоопасных смесей по классификации [3];
- наименование отделений, участков цехов, помещений и т.п.;
- наименования или обозначения электротехнических помещений, кабельных тоннелей и других электротехнических сооружений;
- электрооборудование, электрические сети и сети заземления (зануления);
- привязку электрооборудования, электрических сетей и сетей заземления (зануления);
- места расположения фитингов и других разделительных уплотнений;
- разрезы кабельных трасс с указанием расположения кабелей на полках при однослойной прокладке кабелей (при необходимости).
8.6 Контуры зданий, сооружений, элементов строительных и технологических конструкций выполняют на планах расположения сплошными тонкими линиями по ГОСТ 2.303. Виды, разрезы и сечения выполняют по ГОСТ 2.305.
8.7 Электрооборудование и электропроводки в зданиях и сооружениях наносят на планы расположения условными графическими изображениями по ГОСТ 21.210. Размеры изображения шкафов, щитов, пультов, ящиков, электротехнических устройств и электрооборудования открытых РУ следует принимать по их фактическим размерам в масштабе чертежа.
Электропроводки вне зданий и сооружений наносят на планы расположения условными графическими изображениями и обозначают в соответствии с ГОСТ 21.204.
8.8 Планы расположения электрооборудования рекомендуется совмещать с планами прокладки электрических сетей и сетей заземления (зануления). При необходимости приводят разрезы, нетиповые узлы установки электрооборудования и прокладки электрических сетей, схемы расположения шинопроводов, а также монтажные проемы, въезды, автомобильные дороги для транспортирования крупногабаритного электрооборудования.
8.9 Электрооборудование (за исключением электроприемников, комплектных устройств, аппаратов и приборов, установленных непосредственно на технологическом оборудовании) и трассы электрических сетей должны иметь привязки и отметки на плане. Допускается не указывать привязку одиночных устройств (например, выключателей, кнопок и т.п.) и открыто проложенных кабелей, если места их установки или прокладки однозначно различимы без привязки.
8.10 Привязку электрооборудования и электрических сетей рекомендуется проводить к координационным осям зданий и сооружений или к осям технологического оборудования при условии, что это оборудование монтируется до прокладки труб электропроводки, а его оси увязаны со строительными осями.
При скрытой прокладке электрических сетей в трубах (в полах, в земле, в фундаментах) привязывают концы труб и указывают отметки заложения и выхода. В фундаментах сложного оборудования дают дополнительные привязки концов труб к ближайшим фундаментным болтам.
При открытой прокладке электрических сетей по технологическим установкам, сооружениям и строительным конструкциям (галереи, фермы, колонны) привязку электрических сетей выполняют к указанным установкам, сооружениям и конструкциям.
8.11 На планах расположения около электрооборудования (за исключением электрооборудования, устанавливаемого на технологическом оборудовании механомонтажными организациями и/или поступающего в сборе с механизмами), конструкций и изделий проставляют номера позиций в соответствии со спецификацией и наносят их на полке линии-выноски. Для электрооборудования под полкой линии-выноски проставляют буквенно-цифровые обозначения по принципиальным схемам управления (таблицам электроприводов).
8.12 На планах расположения при необходимости приводят спецификации электрооборудования, изделий, конструкций, деталей и материалов, необходимых для производства монтажных работ по данным чертежам, по форме 7 ГОСТ Р 21.101-2020 (приложение К). При выполнении чертежей групповым методом (например, на группу технологических линий) составляют групповые спецификации по форме 8 ГОСТ Р 21.101-2020 (приложение К).
8.13 Спецификацию на чертеже рекомендуется помещать над основной надписью в верхнем углу. Если чертеж выполнен на листе формата А4, спецификацию располагают ниже графического изображения.
Допускается спецификацию располагать на отдельных листах. При этом в основной надписи приводят наименование данной спецификации.
8.14 Спецификацию составляют по разделам в такой последовательности:
- электрооборудование (КТП, НКУ, распределительные пункты и шкафы, силовые ящики, автоматические выключатели, осветительные приборы и т.п., за исключением электрооборудования, устанавливаемого на технологическом оборудовании механомонтажными организациями и/или поступающего в сборе с механизмами);
- изделия индивидуального изготовления;
- кабельные изделия (кабель, провод и т.п.) и шинопроводы (магистральные, распределительные, троллейные);
- конструкции;
- детали (по чертежу, без чертежа);
- стандартные изделия (изделия для прокладки шин, кабелей, монтажные профили и полосы, фитинги и т.п.);
- материалы.
Состав и количество разделов спецификации допускается изменять по усмотрению разработчика.
При общем количестве позиций не более 20 наименований разделов допускается не указывать.
Между разделами оставляют резервные строчки.
8.15 Запись электрооборудования в пределах первого раздела спецификации рекомендуется проводить по группам одноименных элементов (в порядке возрастания типов, параметров, цифр, входящих в их обозначение) в такой последовательности:
- электрооборудование, на изготовление которого выдают опросные листы и задания предприятиям-изготовителям;
- серийное электрооборудование.
8.16 Материалы в спецификации записывают в такой последовательности:
- черные металлы (в том числе трубы);
- цветные металлы;
- изоляционные материалы.
8.17 В графах спецификации указывают:
- в графе "Поз." - порядковый номер позиций, указанных на изображениях;
- в графе "Обозначение" - обозначение соответствующих чертежей конструкций, деталей.
Примечание - Допускаются, при необходимости, ссылки на заводские чертежи и технические условия. Для деталей, не требующих чертежей ввиду простоты их изображения, в графе записывают: "без чертежа"; для материалов и стандартных изделий графу "Обозначение" не заполняют;
- в графе "Наименование" - краткое наименование по каталогу (для электрооборудования), наименование конструкций и деталей, указанное в основной надписи соответствующего чертежа.
Примечание - Для деталей, изготовляемых без чертежа, стандартных изделий и материалов записывают наименование и условное обозначение, указанные в соответствующих стандартах. После наименования в графе указывают тип, приводят краткие характеристики и обозначения стандартов;
- в графе "Кол." - количество (шт.) на чертеже.
Примечание - Для материалов, специфицируемых в метрах, в графе "Примечание" проставляется строчная русская буква "м";
- в графе "Масса ед., кг" - массу единицы, детали (без чертежа), материала;
- в графе "Примечание" - дополнительные сведения, относящиеся к записанным в спецификации элементам.
8.18 Расход материалов в спецификациях рекомендуется записывать с точностью, указанной в таблице 2.
Таблица 2
Наименование
Степень точности
1 Прокат черных и цветных металлов в спецификации на чертеже:
- при массе детали не более 1 кг
0,01 кг
- при массе детали более 1 кг
0,1 кг
2 Стальные трубы:
- в спецификации на чертеже
0,1 м; 0,1 кг
- в трубозаготовительной ведомости
0,1 м; 0,1 кг
- в таблице потребности труб
1,0 м; 1,0 кг
3 Кабели и провода:
- в таблице потребности кабелей и проводов
1,0 м
8.19 Эскизные чертежи общего вида нетиповых НКУ должны содержать следующее изображение конструкции: вид спереди, вид сверху, количество и порядок расположения панелей, габаритные размеры, текстовые указания и надписи, необходимые для общего представления об устройстве.
Эскизные чертежи общего вида нетиповых изделий следует выполнять с учетом требований ГОСТ 21.114.
8.20 Чертежи электромонтажных конструкций, предназначенных для изготовления, выполняют при необходимости в случаях отсутствия соответствующих изделий заводского изготовления, типовых чертежей электромонтажных конструкций и чертежей электромонтажных конструкций повторного использования.
Чертежи электромонтажных конструкций рекомендуется выполнять в масштабе 1:5, 1:10 или 1:20.
На чертежах электромонтажных конструкций помещают спецификацию на одну конструкцию или групповую спецификацию на несколько исполнений конструкции по формам 7 и 8 ГОСТ Р 21.101-2020 (приложение К).
8.21 При необходимости все электромонтажные конструкции, подлежащие изготовлению по типовым чертежам, чертежам повторного использования и вновь разработанным чертежам, включают в ведомость электромонтажных конструкций, выполняемую по форме 10 ГОСТ 21.613-2014 (пункт 8.4).
8.22 Опросные листы на электрооборудование составляют:
- на РУ, включая типовые комплектные устройства (КТП, КРУ);
- силовые трансформаторы мощностью 10 000 кВА и выше;
- тиристорные преобразовательные устройства;
- распределительные панели, блоки резисторов, регуляторы возбуждения и другое электрооборудование, если это предусмотрено порядком оформления заказа.
Формы опросных листов применяют по согласованию с изготовителем оборудования.
8.23 В приложении А приведены примеры оформления характерных графических материалов проектной документации.
Приложение А
(справочное)
ПРИМЕРЫ ОФОРМЛЕНИЯ ХАРАКТЕРНЫХ ГРАФИЧЕСКИХ МАТЕРИАЛОВ
ПРОЕКТНОЙ ДОКУМЕНТАЦИИ
Рисунок А.1 - Пример оформления принципиальной схемы
электроснабжения от основного, дополнительного
и резервного источников электроснабжения
Рисунок А.2 - Пример оформления принципиальной схемы
сети освещения для объектов производственного назначения
Рисунок А.3 - Пример оформления принципиальной схемы
сети освещения для объектов непроизводственного назначения
Рисунок А.4 - Пример оформления принципиальной схемы
сети аварийного освещения
Примечание - Сечения проводников основной и дополнительной систем уравнивания потенциалов показаны условно и определены согласно [3], пункты 1.7.117, 1.7.137.
Рисунок А.5 - Пример оформления схемы
заземления и молниезащиты
Рисунок А.6 - Пример оформления плана
внутренних сетей электроснабжения
Рисунок А.7 - Пример оформления плана
размещения электрооборудования
Рисунок А.8 - Пример оформления плана
наружных сетей электроснабжения
Условные обозначения
Обозначение
Наименование
Светодиодный светильник, ~ 220 В, 25 Вт
Световой указатель с пиктограммой "Выход"
ЯТП-0,25-220/36
Выключатель однополюсный для открытой установки
Сеть рабочего освещения
Сеть аварийного освещения
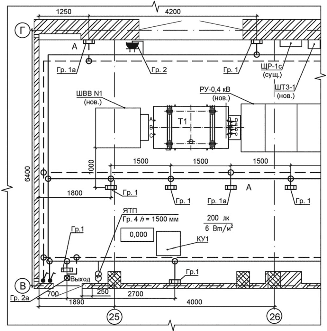
Нормируемая освещенность в помещениях РУ с периодическим пребыванием людей (пульт управления либо шкала приборов на высоте 1,5 м от уровня пола, а также горизонтальная поверхность на уровне пола)
Рисунок А.9 - Пример оформления плана
внутренних сетей электроосвещения
Примечание - Нормируемые уровни освещенности: газовое реле, разъемные части разъединителей, выводы трансформаторов и выключателей, места управления разъединителями и выключателями - 10 лк; главные проходы и проезды, автомобильные дороги - 5 лк.
Рисунок А.10 - Пример оформления плана
наружных сетей электроосвещения
Рисунок А.11 - Пример оформления плана
внутриплощадочных сетей электроснабжения
БИБЛИОГРАФИЯ
[1]
Постановление Правительства Российской Федерации от 16 февраля 2008 г. N 87 "О составе разделов проектной документации и требованиях к их содержанию"
[2]
Постановление Правительства Российской Федерации от 4 мая 2012 г. N 442 "О функционировании розничных рынков электрической энергии, полном и (или) частичном ограничении режима потребления электрической энергии"
[3]
Правила устройства электроустановок (6-е, 7-е изд.)
УДК 658.516:621.316.17:628.971:006.354
ОКС 91.040
Ключевые слова: правила выполнения, проектная документация, внутренние электроустановки, сети электроснабжения, наружное электроосвещение