Главная // Актуальные документы // Актуальные документы (обновление 29.11.2025 по 01.01.2026) // ГОСТ (Государственный стандарт)
СПРАВКА
Источник публикации
М.: ФГБУ "Институт стандартизации", 2025
Примечание к документу
Документ вводится в действие с 01.03.2026.

Взамен ГОСТ 28379-89.
Название документа
"ГОСТ 28379-2025. Межгосударственный стандарт. Шпатлевки ЭП-0010 и ЭП-0020. Технические условия"
(введен в действие Приказом Росстандарта от 12.11.2025 N 1363-ст)

"ГОСТ 28379-2025. Межгосударственный стандарт. Шпатлевки ЭП-0010 и ЭП-0020. Технические условия"
(введен в действие Приказом Росстандарта от 12.11.2025 N 1363-ст)


Содержание


Введен в действие
Приказом Федерального
агентства по техническому
регулированию и метрологии
от 12 ноября 2025 г. N 1363-ст
МЕЖГОСУДАРСТВЕННЫЙ СТАНДАРТ
ШПАТЛЕВКИ ЭП-0010 И ЭП-0020
ТЕХНИЧЕСКИЕ УСЛОВИЯ
Putties ЭП-0010 and ЭП-0020. Specifications
ГОСТ 28379-2025
МКС 87.040
Дата введения
1 марта 2026 года
Предисловие
Цели, основные принципы и общие правила проведения работ по межгосударственной стандартизации установлены ГОСТ 1.0 "Межгосударственная система стандартизации. Основные положения" и ГОСТ 1.2 "Межгосударственная система стандартизации. Стандарты межгосударственные, правила и рекомендации по межгосударственной стандартизации. Правила разработки, принятия, обновления и отмены"
Сведения о стандарте
1 РАЗРАБОТАН Обществом с ограниченной ответственностью "Холдинговая компания "Пигмент" (ООО "ХК" Пигмент")
2 ВНЕСЕН Межгосударственным комитетом по стандартизации МТК 195 "Материалы и покрытия лакокрасочные"
3 ПРИНЯТ Межгосударственным советом по стандартизации, метрологии и сертификации (протокол от 31 октября 2025 г. N 190-П)
За принятие проголосовали:
Краткое наименование страны по МК (ИСО 3166) 004-97
Код страны по МК (ИСО 3166) 004-97
Сокращенное наименование национального органа по стандартизации
Азербайджан
AZ
Азстандарт
Армения
AM
ЗАО "Национальный орган по стандартизации и метрологии" Республики Армения
Беларусь
BY
Госстандарт Республики Беларусь
Казахстан
KZ
Госстандарт Республики Казахстан
Россия
RU
Росстандарт
Узбекистан
UZ
Узбекское агентство по техническому регулированию
4 Приказом Федерального агентства по техническому регулированию и метрологии от 12 ноября 2025 г. N 1363-ст межгосударственный стандарт ГОСТ 28379-2025 введен в действие в качестве национального стандарта Российской Федерации с 1 марта 2026 г.
5 ВЗАМЕН ГОСТ 28379-89
Информация о введении в действие (прекращении действия) настоящего стандарта и изменений к нему на территории указанных выше государств публикуется в указателях национальных стандартов, издаваемых в этих государствах, а также в сети Интернет на сайтах соответствующих национальных органов по стандартизации.
В случае пересмотра, изменения или отмены настоящего стандарта соответствующая информация будет опубликована на официальном интернет-сайте Межгосударственного совета по стандартизации, метрологии и сертификации в каталоге "Межгосударственные стандарты"
1 Область применения
Настоящий стандарт распространяется на эпоксидные шпатлевки ЭП-0010 и ЭП-0020 (далее - шпатлевки).
Эпоксидные шпатлевки предназначены для выравнивания загрунтованных и незагрунтованных металлических и неметаллических поверхностей, а также применяются в качестве грунтовок под эпоксидные материалы. Шпатлевку ЭП-0020 используют для выравнивания и защиты от влаги поверхностей специальных керамических обмазок с влажностью не более 6,5%. Шпатлевки применяют для систем покрытий, эксплуатируемых в атмосферных условиях и внутри помещений.
Шпатлевки представляют собой двухкомпонентную систему, состоящую из полуфабриката шпатлевки (шпатлевочной пасты) (далее - полуфабрикат) и отвердителя, смешиваемых перед применением.
Полуфабрикаты шпатлевок представляют собой смесь пигментов, наполнителей, пластификатора в растворе эпоксидной смолы в смеси органических растворителей.
2 Нормативные ссылки
В настоящем стандарте использованы нормативные ссылки на следующие межгосударственные стандарты:
ГОСТ 8.579 Государственная система обеспечения единства измерений. Требования к количеству фасованных товаров при их производстве, фасовании, продаже и импорте
ГОСТ 9.402 Единая система защиты от коррозии и старения. Покрытия лакокрасочные. Подготовка металлических поверхностей к окрашиванию
ГОСТ 12.1.004 Система стандартов безопасности труда. Пожарная безопасность. Общие требования
ГОСТ 12.1.005 Система стандартов безопасности труда. Общие санитарно-гигиенические требования к воздуху рабочей зоны
ГОСТ 12.1.044 Система стандартов безопасности труда. Пожаровзрывоопасность веществ и материалов. Номенклатура показателей и методы их определения
ГОСТ 12.3.002 Система стандартов безопасности труда. Процессы производственные. Общие требования безопасности
ГОСТ 12.3.005 Система стандартов безопасности труда. Работы окрасочные. Общие требования безопасности
ГОСТ 12.4.011 Система стандартов безопасности труда. Средства защиты работающих. Общие требования и классификация
ГОСТ 12.4.021 Система стандартов безопасности труда. Системы вентиляционные. Общие требования
ГОСТ 12.4.028 Система стандартов безопасности труда. Респираторы ШБ-1 "Лепесток". Технические условия
ГОСТ 12.4.103 Система стандартов безопасности труда. Одежда специальная защитная, средства индивидуальной защиты ног и рук. Классификация
ГОСТ 12.4.121 Система стандартов безопасности труда. Средства индивидуальной защиты органов дыхания. Противогазы фильтрующие. Общие технические условия
ГОСТ 12.4.253 (EN 166:2002) Система стандартов безопасности труда. Средства индивидуальной защиты глаз и лица. Общие технические требования
ГОСТ 12.4.296 Система стандартов безопасности труда. Средства индивидуальной защиты органов дыхания. Респираторы фильтрующие. Общие технические условия
ГОСТ 15.309 Система разработки и постановки продукции на производство. Испытания и приемка выпускаемой продукции. Основные положения
ГОСТ 4765 Материалы лакокрасочные. Метод определения прочности покрытия при ударе
ГОСТ 5009 Шкурка шлифовальная тканевая. Технические условия
ГОСТ 6456 Шкурка шлифовальная бумажная. Технические условия
ГОСТ 7827 Растворители марок Р-4, Р-4А, Р-5, Р-5А, Р-12 для лакокрасочных материалов. Технические условия
ГОСТ 8420 Материалы лакокрасочные. Методы определения условной вязкости
ГОСТ 8832-2024 Материалы лакокрасочные. Методы получения лакокрасочного покрытия для испытания
ГОСТ 9880 Толуол каменноугольный и сланцевый. Технические условия
ГОСТ 9980.1 Материалы лакокрасочные. Правила приемки
ГОСТ 9980.2 (ISO 1513:2010, ISO 15528:2013) Материалы лакокрасочные и сырье для них. Отбор проб, контроль и подготовка образцов для испытаний
ГОСТ 9980.3 Материалы лакокрасочные и вспомогательные, сырье для лакокрасочных материалов. Упаковка
ГОСТ 9980.4 Материалы лакокрасочные. Маркировка
ГОСТ 9980.5 Материалы лакокрасочные. Транспортирование и хранение
ГОСТ 10054 Шкурка шлифовальная бумажная водостойкая. Технические условия
ГОСТ 13345 Жесть. Технические условия
ГОСТ 13726 Ленты из алюминия и алюминиевых сплавов. Технические условия
ГОСТ 14192 Маркировка грузов
ГОСТ 14710 Толуол нефтяной. Технические условия
ГОСТ 16523 Прокат тонколистовой из углеродистой стали качественной и обыкновенного качества общего назначения. Технические условия
ГОСТ 19007 Материалы лакокрасочные. Метод определения времени и степени высыхания
ГОСТ 19433.1 <*> Грузы опасные. Классификация
--------------------------------
<*> В Российской Федерации действует ГОСТ Р 57478-2017.
ГОСТ 19433.3 <**> Грузы опасные. Маркировка
--------------------------------
<**> В Российской Федерации действует ГОСТ Р 57479-2017.
ГОСТ 20010 Перчатки резиновые технические. Технические условия
ГОСТ 21513-76 Материалы лакокрасочные. Методы определения водо- и влагопоглощения лакокрасочной пленкой
ГОСТ 21631 Листы из алюминия и алюминиевых сплавов. Технические условия
ГОСТ 24297 Верификация закупаемой продукции. Организация проведения и методы контроля
ГОСТ 27271 Материалы лакокрасочные. Метод определения жизнеспособности многокомпонентных систем
ГОСТ 31340 Предупредительная маркировка химической продукции. Общие требования
ГОСТ 31939 Материалы лакокрасочные. Определение массовой доли нелетучих веществ
ГОСТ 31993 (ISO 2808:2019) Материалы лакокрасочные. Определение толщины покрытия
ГОСТ 32419 Классификация опасности химической продукции. Общие требования
Примечание - При пользовании настоящим стандартом целесообразно проверить действие ссылочных стандартов (и классификаторов) на официальном интернет-сайте Межгосударственного совета по стандартизации, метрологии и сертификации (www.easc.by) или по указателям национальных стандартов, издаваемым в государствах, указанных в предисловии, или на официальных сайтах соответствующих национальных органов по стандартизации. Если на документ дана недатированная ссылка, то следует использовать документ, действующий на текущий момент, с учетом всех внесенных в него изменений. Если заменен ссылочный документ, на который дана датированная ссылка, то следует использовать указанную версию этого документа. Если после принятия настоящего стандарта в ссылочный документ, на который дана датированная ссылка, внесено изменение, затрагивающее положение, на которое дана ссылка, то это положение применяется без учета данного изменения. Если ссылочный документ отменен без замены, то положение, в котором дана ссылка на него, применяется в части, не затрагивающей эту ссылку.
3 Технические требования
3.1 Шпатлевки должны соответствовать требованиям настоящего стандарта и быть изготовлены по рецептуре и технологическому регламенту, утвержденным в установленном порядке.
Сырье, применяемое для изготовления шпатлевки, должно соответствовать требованиям действующих нормативных документов или технической документации, указанных в рецептуре и технологическом регламенте, и должно быть разрешено к применению. Рекомендуется для сырья проводить входной контроль с учетом требований ГОСТ 24297.
В соответствии с требованиями настоящего стандарта изготавливают шпатлевку ЭП-0010 красно-коричневую и шпатлевку ЭП-0020 красно-коричневую, требования по цвету не устанавливают.
3.2 Шпатлевки и полуфабрикаты шпатлевок должны соответствовать требованиям и значениям, приведенным в таблице 1.
Таблица 1
Наименование показателя
Значение показателя для шпатлевки
Метод испытания
ЭП-0010
ЭП-0020
1 Внешний вид покрытия
После высыхания поверхность шпатлевки должна быть ровной, однородной, без пузырей, трещин, крупинок нерастертого пигмента и механических включений
По 7.2.1
2 Условная вязкость полуфабриката шпатлевки, разбавленной растворителем при температуре (20,0 +/- 0,5) °C по вискозиметру типа ВЗ-246 с диаметром сопла 4 мм, с
30 - 45
35 - 50
3 Массовая доля нелетучих веществ полуфабриката шпатлевки, %, не менее
90,0
92,0
4 Время высыхания до степени 4, ч не более
- при температуре (20 +/- 2) °C
24
24
- температуре 65 °C - 70 °C
7
7
5 Эластичность покрытия при изгибе, мм, не более
50
50
По 7.2.4
6 Прочность покрытия при ударе (по прибору типа У-1), см, не менее
40
7 Способность шлифоваться
Шпатлевка должна шлифоваться водостойкой шлифовальной шкуркой зернистостью 4 - 6 с водой
По 7.2.6
8 Жизнеспособность шпатлевки при температуре (20 +/- 2) °C, ч, не менее
при нанесении методом пневматического распыления
6
при нанесении шпателем
1,5
9 Влагопоглощение покрытия на окрашиваемой поверхности, %, не более
-
0,8
По 7.2.8 и ГОСТ 21513-76 (раздел 1)
3.3 Комплектность
Шпатлевки поставляют комплектно в виде двух компонентов: полуфабриката шпатлевки соответствующей марки и отвердителя.
Допускается по согласованию с потребителем поставка шпатлевочной пасты без отвердителя.
Для отверждения шпатлевки ЭП-0020 применяют отвердитель N 1 по нормативной технической документации, а для шпатлевки марки ЭП-0010 - отвердитель N 1 или диэтилентриамин (ДЭТА). Отвердитель N 1 и ДЭТА изготавливают в соответствии с требованиями, установленными в документах по стандартизации государства-изготовителя.
Марка отвердителя для шпатлевки ЭП-0010 указывается при заказе. Шпатлевка ЭП-0010, предназначенная для судостроения, изготавливается на этилцеллозольве и поставляется с отвердителем N 1, изготовленным на этиловом спирте.
Компоненты шпатлевок смешивают непосредственно перед применением в соотношениях по массе:
- на (100,0 +/- 0,2) г полуфабриката шпатлевки ЭП-0010 добавляют (8,5 +/- 0,2) г отвердителя N 1 или (3,0 +/- 0,2) г ДЭТА;
- на (100,0 +/- 0,2) г полуфабриката шпатлевки.
ЭП-0020 добавляют (8,5 +/- 0,2) г отвердителя N 1.
3.4 Упаковка
Упаковка полуфабриката шпатлевки и поставляемых в комплекте с ним отвердителей - по ГОСТ 9980.3 (группа 14 для полуфабриката шпатлевки) и ГОСТ 8.579.
3.5 Маркировка
3.5.1 Маркировка полуфабриката шпатлевок - по ГОСТ 9980.4.
На транспортную упаковку наносят данные, характеризующие опасность груза, в соответствии с классом опасного груза, установленным по ГОСТ 19433.1 (для шпатлевки класс опасного груза - 3):
- знак опасности для опасных грузов класса 3 по ГОСТ 19433.3;
- транспортное наименование груза: "РАСТВОР ДЛЯ НАНЕСЕНИЯ ПОКРЫТИЯ";
- номер ООН: 1139;
- классификационный шифр: для шпатлевки ЭП-0010 - 3012, для шпатлевки ЭП-0020 - 3013 по ГОСТ 19433.3;
- манипуляционный знак по ГОСТ 14192: "Беречь от солнечных лучей".
Маркировка шпатлевок должна содержать данные, характеризующие опасность груза, в соответствии с требованиями, установленными Правилами перевозки опасных грузов, действующими для конкретного вида транспорта на территории государства - участника Соглашения, принявшего настоящий стандарт.
3.5.2 Предупредительная маркировка - по ГОСТ 31340.
На предупредительную маркировку должны быть нанесены описание опасности и меры по предупреждению опасности в зависимости от классификации опасности шпатлевки по ГОСТ 32419.
Примечание - Предупредительная маркировка является частью общей маркировки и может быть совмещена с транспортной и/или потребительской маркировкой.
4 Требования безопасности
4.1 Требования безопасности, предъявляемые к шпатлевкам
4.1.1 Шпатлевки должны соответствовать требованиям технических регламентов, нормативных правовых актов, гигиенических требований и санитарных правил, действующих на территории государства, принявшего стандарт.
Примечание - Информация о технических регламентах и нормативных правовых актах приведена в приложении А.
4.1.2 Шпатлевки являются токсичными, пожаровзрывоопасными материалами, что обусловлено свойствами компонентов, входящих в их состав.
4.1.3 Шпатлевки относят к легковоспламеняющимся жидкостям. Основные показатели пожарной опасности полуфабриката шпатлевок по ГОСТ 12.1.044 приведены в таблице 2.
Таблица 2
Марка шпатлевки
Температура, °C, не менее
Вспышки в закрытом тигле
Вспышки в открытом тигле
Воспламенения
Самовоспламенения
ЭП-0010
22
47
280
350
ЭП-0020
57
-
139
455
Показатели пожарной опасности шпатлевок должны быть не ниже значений, указанных в таблице 2 для полуфабрикатов шпатлевок.
Температуру вспышки полуфабриката шпатлевки в закрытом тигле изготовитель контролирует периодически (не реже одного раза в год) в аккредитованных центрах (лабораториях).
4.1.4 При применении в воздушную среду выделяются пары растворителей, содержащихся в шпатлевках. Растворители могут образовывать в зоне рабочего помещения взрывоопасные концентрации.
Перечень показателей, необходимых для оценки пожаровзрывоопасности растворителей, входящих в состав полуфабриката шпатлевок, представлен в таблице 3.
Таблица 3
Наименование компонента
Температура, °C
Пределы распространения пламени (воспламенения)
Вспышки в закрытом тигле
Воспламенения
Самовоспламенения
Температурные, °C
Концентрационные, % об.
Толуол
4
7
535
6 - 37
1,3 - 6,7
Бутилацетат
29
35
330
22 - 61
1,5 - 9,0
Ацетон
Минус 18
Минус 5
535
Минус 20 - 6
2,7 - 13,0
Этилцеллозольв
40
52
235
39 - 81
1,8 - 15,7
4.1.5 Шпатлевки обладают раздражающим действием на кожные покровы, слизистые оболочки глаз и дыхательных путей, кожно-резорбтивным действием допустимого уровня и сенсибилизирующим действием.
4.1.6 Токсикологическое воздействие шпатлевок на организм человека определяется свойствами входящих в их состав компонентов. Токсикологические характеристики компонентов шпатлевок представлены в таблице 4.
Таблица 4
Наименование компонента
Агрегатное состояние
Класс опасности
ПДК <*>, мг/м3
Характер действия на организм при превышении ПДК
Толуол
Пары
3
150/50
Вещество умеренно опасное. Обладает слабым наркотическим действием. Является токсичным. При продолжительном вдыхании паров накапливается в организме, может всасываться через неповрежденную кожу, вызывает поражение нервной системы
Бутилацетат
Пары
4
200
Вещество умеренно опасное. Наркотик. Пары раздражают слизистые оболочки глаз и дыхательных путей
Ацетон
Пары
4
200
Вещество умеренно опасное. Наркотик. При продолжительном вдыхании паров накапливается в организме
Этилцеллозольв
Пары
3
30/10
Вещество умеренно опасное. Обладает слабым наркотическим действием, пары незначительно раздражают слизистые оболочки. При приеме внутрь вызывает отравление организма
<*> ПДК - предельно допустимая концентрация.
4.2 Требования безопасности при применении шпатлевок
4.2.1 Применение и хранение шпатлевок должно соответствовать нормам и правилам в области промышленной безопасности государства-изготовителя.
4.2.2 Для обеспечения безопасности при испытаниях и применении шпатлевок должны соблюдаться требования, предъявляемые к производственным процессам по ГОСТ 12.3.002, общие требования безопасности при проведении окрасочных работ по ГОСТ 12.3.005 и правила пожарной безопасности государства-изготовителя.
4.2.3 Все работы, связанные с испытанием и применением шпатлевок, должны проводиться в помещении при постоянно включенной вентиляции по ГОСТ 12.4.021, обеспечивающей чистоту воздуха рабочей зоны производственных помещений, в котором концентрация вредных веществ не должна превышать значений ПДК. Контроль содержания вредных веществ в воздухе рабочей зоны должен осуществляться в соответствии с ГОСТ 12.1.005 по нормам, указанным в гигиенических нормативах государства-изготовителя.
4.2.4 При применении шпатлевок персонал должен быть обеспечен средствами индивидуальной защиты: специальной одеждой, специальной обувью и средствами защиты рук по ГОСТ 12.4.011 и ГОСТ 12.4.103, защитными мазями и пастами, резиновыми перчатками - по ГОСТ 20010.
Для защиты органов дыхания применяют респираторы по ГОСТ 12.4.028, ГОСТ 12.4.296 или другие средства защиты органов дыхания, обеспечивающие уровень защиты не ниже, чем у указанных респираторов. Для защиты глаз должны применяться защитные очки по ГОСТ 12.4.253.
Производственные помещения должны быть обеспечены аварийным комплектом противогазов по ГОСТ 12.4.121.
4.2.5 При применении шпатлевок необходимо соблюдать организационно-технические мероприятия по обеспечению пожарной безопасности в соответствии с требованиями ГОСТ 12.1.004.
Допускается применять следующие средства пожаротушения: песок, противопожарное полотнище, углекислотные огнетушители ОУ-2 и ОУ-5 <*>, пенные установки, тонкораспыленную воду.
--------------------------------
<*> В Российской Федерации действует ГОСТ Р 51017-2009 "Техника пожарная. Огнетушители передвижные. Общие технические требования. Методы испытаний".
4.2.6 Для безопасного применения шпатлевок необходимо обеспечить надлежащую герметизацию оборудования и коммуникаций, а также исправность электропусковой и контрольно-измерительной аппаратуры.
4.2.7 Более полная информация по безопасному обращению шпатлевок должна содержаться в паспорте безопасности.
5 Требования охраны окружающей среды
5.1 При применении шпатлевок образуются твердые, газообразные и жидкие отходы, которые могут вызвать загрязнение атмосферного воздуха, почвы и воды.
5.2 С целью охраны атмосферного воздуха от загрязнения выбросами паров растворителей должен быть организован контроль за соблюдением предельно допустимых выбросов (ПДВ).
5.3 С целью охраны окружающей среды от загрязнений сточными водами должен быть организован контроль за соблюдением ПДК и ориентировочно безопасных уровней воздействия вредных веществ для воды.
5.4 Отходы, образующиеся при испытаниях и применении шпатлевок, утилизируют в соответствии с действующим законодательством страны-изготовителя.
5.5 Высушенное покрытие не оказывает вредного воздействия на организм человека и окружающую среду.
6 Правила приемки
6.1 Правила приемки - по ГОСТ 9980.1 и ГОСТ 15.309.
6.2 Приемо-сдаточные испытания проводят в каждой партии по показателям 1 - 7 таблицы 1.
6.3 Показатели 8 и 9 таблицы 1 изготовитель контролирует периодически в каждой десятой партии.
При получении неудовлетворительных результатов периодических испытаний проверяют каждую партию до получения удовлетворительных результатов испытаний подряд не менее чем в трех партиях.
7 Методы испытаний
7.1 Подготовка образцов к испытанию
7.1.1 Отбор проб
Отбор проб осуществляется по ГОСТ 9980.2.
В зимнее время допускается перед отбором разогреть полуфабрикат в плотно закрытой таре при температуре не выше 60 °C.
7.1.2 Подготовка шпатлевок
Перед испытанием полуфабрикат шпатлевки выдерживают в помещении до достижения температуры (20 +/- 2) °C и затем тщательно перемешивают.
Условную вязкость и массовую долю нелетучих веществ определяют в полуфабрикате шпатлевки. Перед определением условной вязкости полуфабрикат разбавляют толуолом по ГОСТ 9880 или ГОСТ 14710 в соотношении по массе: одна часть растворителя и четыре части полуфабриката.
Для определения внешнего вида покрытия, времени высыхания, эластичности покрытия, прочности покрытия при ударе, способности шлифоваться, жизнеспособности шпатлевки при нанесении шпателем, влагопоглощения покрытия в тщательно перемешанный полуфабрикат шпатлевки вводят отвердитель в количестве, указанном в 3.3, вновь тщательно перемешивают, а затем выдерживают в закрытой таре в течение 15 - 20 мин.
Для определения жизнеспособности шпатлевки при нанесении методом пневматического распыления в тщательно перемешанный полуфабрикат шпатлевки вводят отвердитель в количестве, указанном в 3.3, вновь тщательно перемешивают и разбавляют растворителем марки Р-5А или Р-5, или Р-4 (см. ГОСТ 7827) до рабочей вязкости от 18 до 20 с по вискозиметру типа ВЗ-246 с диаметром сопла 4 мм при температуре (20,0 +/- 0,5) °C.
7.1.3 Подготовка пластинок
Подготовка пластинок для нанесения шпатлевок - по ГОСТ 8832-2024 (раздел 5). Для испытаний применяют незагрунтованные пластинки.
Эластичность покрытия шпатлевки при изгибе определяют на пластинках из черной жести по ГОСТ 13345 толщиной от 0,25 до 0,32 мм и размером 70 x 170 мм. Допускается использовать пластинки из белой жести по ГОСТ 13345 толщиной от 0,25 до 0,32 мм указанных размеров, при этом перед применением пластинки обрабатывают шлифовальной шкуркой зернистостью 4 - 6 по ГОСТ 6456 или ГОСТ 10054.
Влагопоглощение определяют на алюминиевых пластинках по ГОСТ 21631 или ГОСТ 13726 размером 50 x 50 мм и толщиной от 0,2 до 0,3 мм.
Остальные показатели определяют на пластинках из стали марок 08кп или 08пс по ГОСТ 16523 размером 70 x 150 мм и толщиной от 0,8 до 0,9 мм.
7.1.4 Нанесение шпатлевок
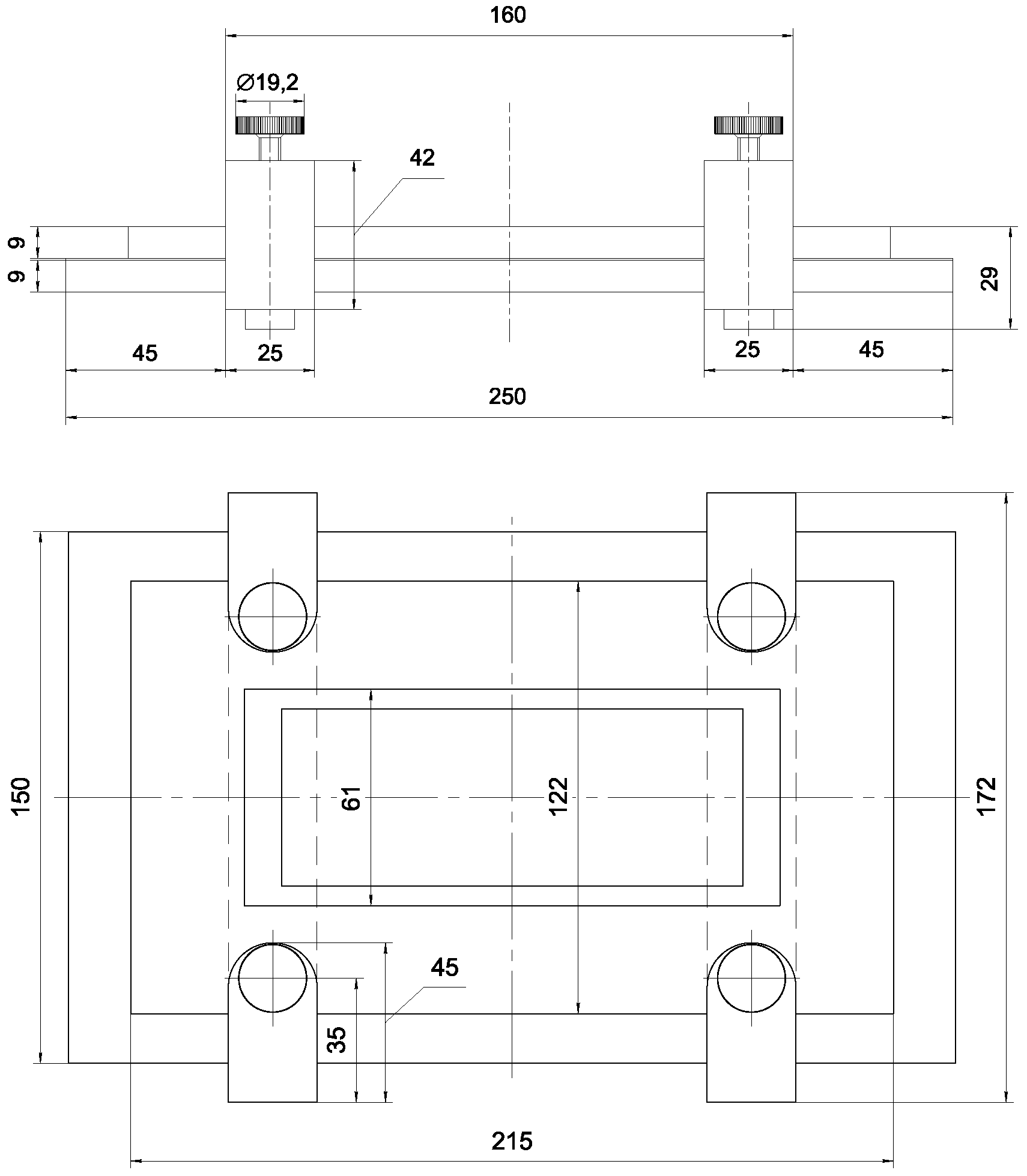
На подготовленные пластинки шпатлевку наносят шпателем при помощи специального устройства толщиной не более 350 мкм.
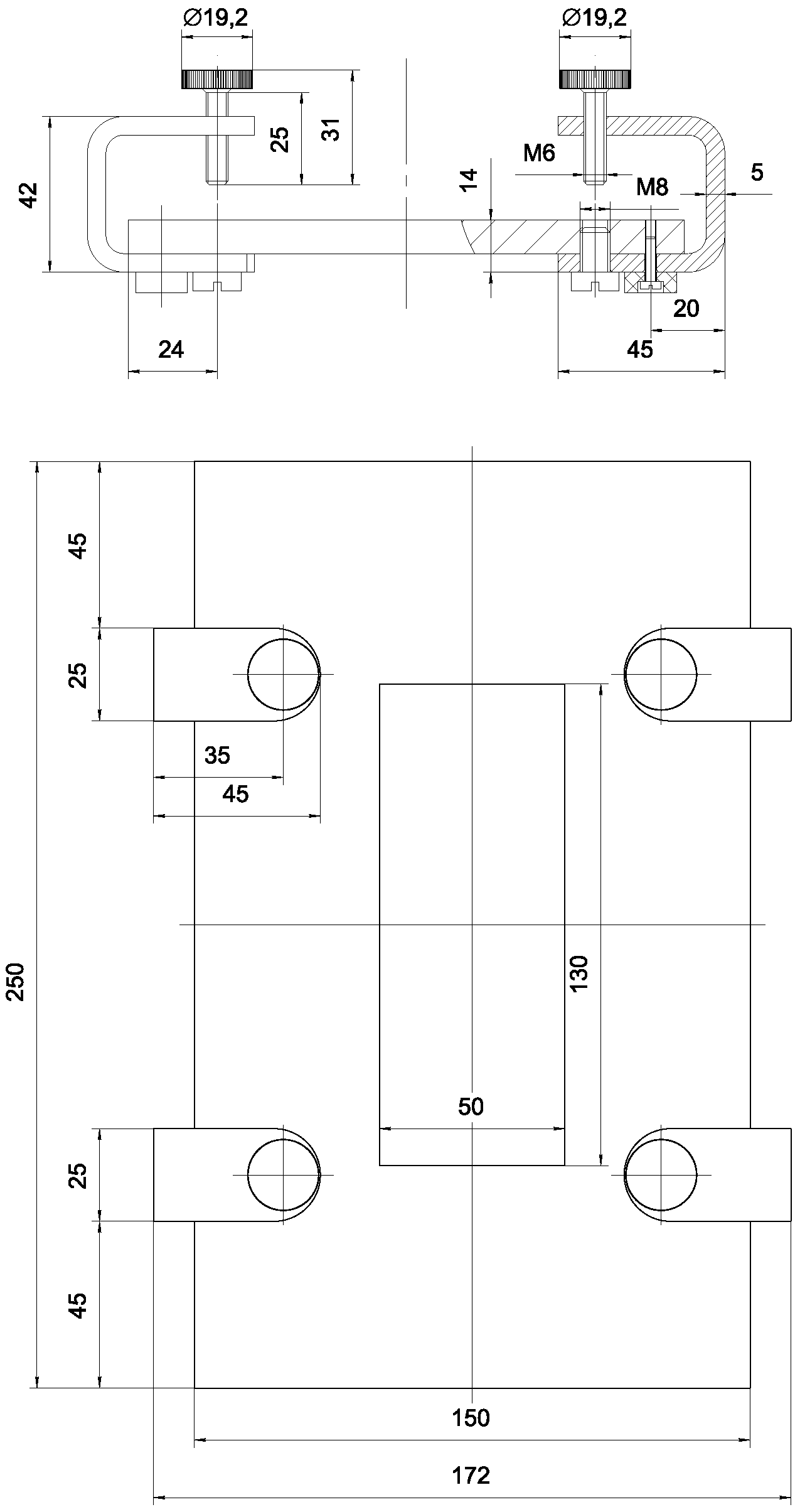
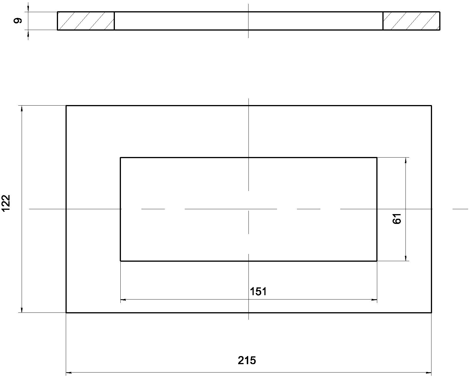
Устройство для нанесения шпатлевок состоит из стальной плиты, к которой прикреплены четыре скобы с упорными барашками, из прижимной стальной рамки и из металлических трафаретов различной толщины. Поверхности плиты и рамки должны быть пришлифованы.
На рисунках 1 - 4 схематично проиллюстрированы устройства для нанесения шпатлевок.
Допускается использовать устройства для нанесения шпатлевок, имеющие отклонения в размерах от указанных на схемах, обеспечивающие необходимые условия нанесения.
Рисунок 1 - Схема устройства для зажима трафарета
для шпатлевки (вариант 1)
Рисунок 2 - Схема устройства для зажима трафарета
для шпатлевки (вариант 2)
Примечание - Глубина отверстия S - от 0,5 до 1,1 мм.
Рисунок 3 - Схема трафарета для шпатлевки
с глубиной отверстия 0,5 мм
Рисунок 4 - Схема трафарета для шпатлевки
с глубиной отверстия 9 мм
Подготовленную пластинку плотно зажимают между плитой и трафаретом при помощи рамки и упорных барашков и наносят на нее шпатлевку металлическим шпателем до краев трафарета, снимая избыток. Размер выреза в трафарете 50 x 130 мм.
Для нанесения шпатлевок ЭП-0010 и ЭП-0020 применяется трафарет толщиной 0,5 мм.
7.1.5 Режим сушки
Шпатлевки сушат при температуре и в течение времени, указанных в таблице 1.
Перед горячей сушкой пластинки с нанесенной шпатлевкой выдерживают при температуре (20 +/- 2) °C в течение 1 ч.
Для определения времени высыхания окрашенные пластинки сушат в течение времени и при температуре, которые указаны для показателя 4 таблицы 1.
Для определения внешнего вида покрытия, эластичности покрытия, прочности покрытия при ударе, способности шлифоваться шпатлевки сушат при температуре (20 +/- 2) °C в течение 24 ч или при температуре 65 °C - 70 °C в течение 7 ч.
Для определения влагопоглощения покрытия шпатлевку сушат при температуре 65 °C - 70 °C в течение 7 ч.
При разногласиях в оценке качества шпатлевок ЭП-0010 и ЭП-0020 по показателям 1, 5 - 7 таблицы 1, пластины сушат при температуре (20 +/- 2) °C в течение 24 ч.
Для сушки пластинок при температуре 65 °C - 70 °C используют сушильный шкаф с принудительной вентиляцией, обеспечивающий заданную температуру нагрева с допустимым предельным отклонением температуры по объему камеры не более +/- 2 °C от номинальной.
7.1.6 Толщина высушенного покрытия шпатлевок
Толщина покрытия после высыхания должна быть не более 350 мкм. Толщину определяют по ГОСТ 31993 <*> микрометром или другим прибором для измерения толщины покрытия с погрешностью измерения не более +/- 2 мкм.
--------------------------------
<*> Допускается толщину покрытия определять по другим нормативным документам, действующим на территории государства, принявшего стандарт.
7.1.7 Выдержка высушенного покрытия
После горячей сушки пластинки с нанесенной шпатлевкой выдерживают при температуре (20 +/- 2) °C в течение 3 ч.
7.2 Проведение испытаний
7.2.1 Внешний вид покрытия шпатлевки определяют после его высыхания визуально, путем осмотра поверхности покрытия до и после шлифования при естественном дневном рассеянном свете. Испытуемые образцы должны находиться на расстоянии 300 - 500 мм от глаз наблюдателя.
Шлифование (при смачивании пластинок водой) проводят шлифовальной шкуркой зернистостью 4 - 6 по ГОСТ 6456 или ГОСТ 10054.
7.2.2 Для определения массовой доли нелетучих веществ пробу полуфабриката шпатлевки массой (2,0 +/- 0,2) г взвешивают на весах с классом точности I и ценой деления 0,1 мг, помещают в сушильный шкаф и выдерживают при температуре (120 +/- 2) °C в течение 1 ч.
Используют сушильный шкаф с принудительной вентиляцией, обеспечивающий заданную температуру нагрева с допустимым предельным отклонением температуры по объему камеры не более +/- 2 °C от номинальной.
7.2.3 Время высыхания до степени 4 определяют по ГОСТ 19007.
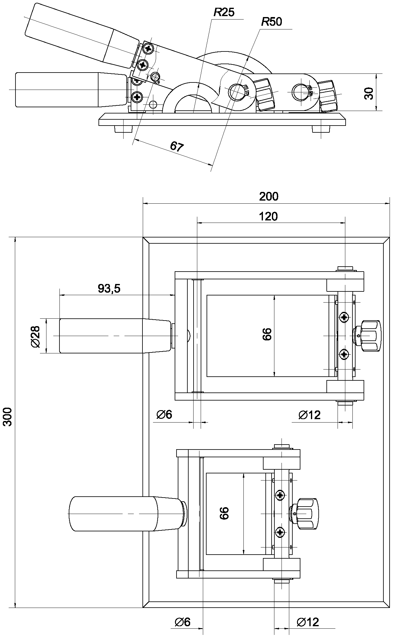
7.2.4 Эластичность покрытия шпатлевки при изгибе определяют на приборе для определения эластичности шпатлевок, показанном на рисунке 5.
Рисунок 5 - Прибор для определения эластичности
покрытия шпатлевки
Прибор состоит из металлической плиты, к которой прикреплены полуцилиндры диаметром 100 и 50 мм, подвижной рамки с прижимным валиком для прижимания пластинки к цилиндрической поверхности, винта крепления и деревянной подставки.
Пластинку укрепляют одним концом на приборе при помощи винта крепления и при опускании рамки в горизонтальное положение прижимают валиком к цилиндрической поверхности. Испытание проводят на трех образцах.
Шпатлевку считают соответствующей настоящему стандарту, если на ее поверхности при изгибе по полуцилиндру диаметром 50 мм не образуется трещин, видимых без увеличительных приборов.
Трещины на расстоянии до 15 мм от краев покрытия шпатлевки в расчет не принимают.
7.2.5 При определении прочности покрытия при ударе пластинку помещают на приборе типа У-1 на наковальню под боек покрытием вверх (прямой удар).
Допускается наличие на покрытии поверхностной волосяной сетки, видимой без увеличительных приборов.
7.2.6 После высыхания поверхность шпатлевки шлифуют водостойкой шлифовальной шкуркой зернистостью 4 - 6 по ГОСТ 10054, ГОСТ 6456 или ГОСТ 5009. Шлифование проводят равномерно по всей поверхности, смачивая ее водой. После шлифования поверхность шпатлевки промывают водой и насухо протирают мягкой тканью.
Шпатлевка соответствует настоящему стандарту, если при шлифовании в течение 15 мин она не размокает и образует ровную матовую поверхность.
7.2.7 Определение жизнеспособности шпатлевок
7.2.7.1 Жизнеспособность шпатлевок при нанесении их методом пневматического распыления определяют по ГОСТ 27271.
При определении жизнеспособности приготовленную по 7.1.2 пробу шпатлевки объемом не менее 150 см3 помещают в сосуд с широким горлом (банку) с герметично закрывающейся крышкой, заполняя его до верха с учетом необходимости последующего перемешивания и выдерживают при температуре (20 +/- 2) °C в течение времени, указанного для показателя 8 таблицы 1.
По истечении указанного времени испытуемую пробу шпатлевки тщательно перемешивают и определяют вязкость по вискозиметру типа ВЗ-246 с диаметром сопла 4 мм при температуре (20,0 +/- 0,5) °C.
Шпатлевку считают соответствующей настоящему стандарту, если по истечении указанного времени вязкость не будет превышать 40 с.
7.2.7.2 При определении жизнеспособности при нанесении шпателем приготовленную по 7.1.2 шпатлевку помещают в сосуд с широким горлом (банку) с герметично закрывающейся крышкой и выдерживают при температуре (20 +/- 2) °C в течение времени, указанного для показателя 8 таблицы 1.
Шпатлевку считают соответствующей настоящему стандарту, если по истечении указанного времени она легко наносится шпателем, не сворачиваясь под ним.
7.2.8 Влагопоглощение покрытия на окрашиваемой поверхности определяют по ГОСТ 21513-76 (раздел 1).
8 Транспортирование и хранение
Транспортирование и хранение шпатлевок - по ГОСТ 9980.5.
9 Указания по применению
После хранения при отрицательных температурах рекомендуется выдержать компоненты шпатлевок при температуре не ниже 18 °C.
Компоненты шпатлевок смешивают непосредственно перед применением в соотношении, указанном в 3.3, и тщательно перемешивают. Перед нанесением шпатлевки выдерживают в плотно закрытой таре в течение 15 - 20 мин при температуре не выше 25 °C.
Выравниваемая или окрашиваемая поверхность должна быть сухой, чистой и обеспыленной. При необходимости поверхности обезжиривают от жировых и масляных загрязнений.
Подготовка металлических поверхностей - по ГОСТ 9.402.
Требования по подготовке неметаллических поверхностей устанавливают в нормативных документах и технической документации на изделие или в рекомендациях изготовителя шпатлевок.
При нанесении шпатлевок по загрунтованной поверхности подготовку и грунтование поверхности проводят в соответствии с выбранной системой покрытия по технологии, принятой на предприятии, использующем шпатлевки.
Нанесение осуществляют при помощи шпателя или методом пневматического распыления при температуре от 5 °C до 30 °C.
При нанесении шпатлевок методом пневматического распыления их разбавляют до рабочей вязкости от 18 до 20 с по вискозиметру типа ВЗ-246 с диаметром сопла 4 мм растворителем Р-5А, Р-5, Р-4 по ГОСТ 7827.
Время высыхания каждого слоя шпатлевок при температуре (20 +/- 2) °C - 24 ч, при температуре 65 °C - 70 °C - 7 ч. При применении шпатлевок допускается сушка при других температурных режимах, согласованных с изготовителем и установленных в документации на окраску изделия, принятой у заказчика.
Теоретический расход составляет:
- при нанесении шпателем шпатлевок (после смешения компонентов полуфабриката и отвердителя без разбавления) для получения покрытия толщиной от 200 до 350 мкм от 300 до 600 г/м2;
- при нанесении методом пневматического распыления шпатлевок (после смешения компонентов полуфабриката и отвердителя и разбавления) для получения покрытия толщиной от 20 до 40 мкм составляет от 50 до 100 г/м2.
Практический расход зависит от толщины покрытия, метода нанесения, подготовки поверхности и конфигурации окрашиваемого изделия.
10 Гарантии изготовителя
10.1 Изготовитель гарантирует соответствие шпатлевок требованиям настоящего стандарта при соблюдении условий применения, транспортирования и хранения, установленных настоящим стандартом.
10.2 Гарантийный срок полуфабриката шпатлевок - 12 мес с даты изготовления.
Приложение А
(справочное)
ИНФОРМАЦИЯ О ПРИМЕНЯЕМЫХ ТЕХНИЧЕСКИХ РЕГЛАМЕНТАХ
И НОРМАТИВНЫХ ПРАВОВЫХ АКТАХ В ГОСУДАРСТВАХ - УЧАСТНИКАХ СНГ
Наименование технического регламента или нормативного правового акта
Государство - участник СНГ
Единые санитарно-эпидемиологические и гигиенические требования к продукции (товарам), подлежащей санитарно-эпидемиологическому надзору (контролю) (утверждены Решением Комиссии таможенного союза от 28 мая 2010 г. N 299)
AM, BY, KZ, KG, RU
УДК 667.633.263.3:678.686:006.354
МКС 87.040
Ключевые слова: шпатлевки ЭП-0010 и ЭП-0020, выравнивание металлических и неметаллических поверхностей