Главная // Актуальные документы // ПравилаСПРАВКА
Источник публикации
В данном виде документ опубликован не был.
Первоначальный текст документа опубликован в издании
М.: Минстрой России, ФАУ "ФЦС", 2014.
Информацию о публикации документов, создающих данную редакцию, см. в справке к этим документам.
Примечание к документу
Документ включен в
Перечень документов в области стандартизации, в результате применения которых на добровольной основе обеспечивается соблюдение требований Федерального
закона от 30.12.2009 N 384-ФЗ "Технический регламент о безопасности зданий и сооружений" (
Приказ Росстандарта от 02.04.2020 N 687).
Документ включен в
Перечень документов в области стандартизации, в результате применения которых на добровольной основе обеспечивается соблюдение требований Федерального
закона от 30.12.2009 N 384-ФЗ "Технический регламент о безопасности зданий и сооружений" (
Приказ Росстандарта от 17.04.2019 N 831).
Документ включен в
Перечень документов в области стандартизации, в результате применения которых на добровольной основе обеспечивается соблюдение требований Федерального
закона "Технический регламент о безопасности зданий и сооружений" (
Приказ Росстандарта от 30.03.2015 N 365).
Название документа
"СП 163.1325800.2014. Свод правил. Конструкции с применением гипсокартонных и гипсоволокнистых листов. Правила проектирования и монтажа"
(утв. Приказом Минстроя России от 07.08.2014 N 439/пр)
(ред. от 27.12.2021)
"СП 163.1325800.2014. Свод правил. Конструкции с применением гипсокартонных и гипсоволокнистых листов. Правила проектирования и монтажа"
(утв. Приказом Минстроя России от 07.08.2014 N 439/пр)
(ред. от 27.12.2021)
и жилищно-коммунального хозяйства
Российской Федерации
от 7 августа 2014 г. N 439/пр
СВОД ПРАВИЛ
КОНСТРУКЦИИ С ПРИМЕНЕНИЕМ ГИПСОКАРТОННЫХ
И ГИПСОВОЛОКНИСТЫХ ЛИСТОВ
ПРАВИЛА ПРОЕКТИРОВАНИЯ И МОНТАЖА
The designs with application of gypsum plasterboards and
gypsum fiber sheets. Terms of design and installation
СП 163.1325800.2014
| | Список изменяющих документов Минстроя России от 27.12.2021 N 1009/пр) | |
Дата введения
1 октября 2014 года
1 ИСПОЛНИТЕЛИ - Центральный научно-исследовательский и проектно-экспериментальный институт промышленных зданий и сооружений (ОАО "ЦНИИПромзданий"), ООО "КНАУФ ГИПС", ООО "Сен-Гобен Строительная Продукция Рус"
2 ВНЕСЕНЫ Техническим комитетом по стандартизации ТК 465 "Строительство", Федеральным автономным учреждением "Федеральный центр нормирования, стандартизации и технической оценки соответствия в строительстве" (ФАУ "ФЦС")
3 ПОДГОТОВЛЕН к утверждению Департаментом градостроительной деятельности и архитектуры
4 Использованы требования EN 15283-2:2008+A1:2009 Gypsum boards with fibrous reinforcement - Definitions, requirements and test methods. Part 2: gypsum fibre boards. (ЕН 15283-2:2008 с изменением N 1 от 2009 г. Листы гипсовые, армированные волокном. Определения, технические требования и методы испытаний. Часть 2. Листы гипсоволокнистые) в части терминов и определений к листам, а также технические требования к ним
5 УТВЕРЖДЕН
Приказом Министерства строительства и жилищно-коммунального хозяйства Российской Федерации (Минстрой России) от 7 августа 2014 г. N 439/пр и введен в действие с 1 октября 2014 г.
6 ЗАРЕГИСТРИРОВАН Федеральным агентством по техническому регулированию и метрологии (Росстандарт)
7 Введен впервые
Информация об изменениях к настоящему своду правил, а также тексты изменений и поправок размещаются в информационной системе общего пользования - на официальном сайте Министерства по строительству и жилищно-коммунальному хозяйству Российской Федерации в сети Интернет
Настоящий свод правил разработан в целях соблюдения требований Федерального закона от 30 декабря 2009 г.
N 384-ФЗ "Технический регламент о безопасности зданий и сооружений" с учетом требований федеральных законов от 27 декабря 2002 г.
N 184-ФЗ "О техническом регулировании", от 22 июля 2008 г.
N 123-ФЗ "Технический регламент о требованиях пожарной безопасности", а также требований
[15].
(в ред.
Изменения N 1, утв. Приказом Минстроя России от 27.12.2021 N 1009/пр)
Работа выполнена ОАО "ЦНИИПромзданий": д-р техн. наук, проф. В.В. Гранев, канд. техн. наук, проф. С.М. Гликин, кандидаты техн. наук А.М. Воронин, А.В. Пешкова; ООО "КНАУФ ГИПС": Т.Н. Скворцов, В.Г. Бортников, Д.А. Цюрупа, О.Ю. Матренина, ООО "Сен-Гобен Строительная Продукция Рус": И.Н. Смирнов
Изменение N 1 к своду правил СП 163.1325800.2014 разработано авторским коллективом АО "ЦНИИПромзданий" (канд. техн. наук А.М. Воронин, канд. техн. наук А.В. Пешкова).
(абзац введен
Изменением N 1, утв. Приказом Минстроя России от 27.12.2021 N 1009/пр)
Настоящий свод правил устанавливает правила проектирования и устройства строительных конструкций поэлементной сборки с применением гипсокартонных и гипсоволокнистых листов (каркасно-обшивных перегородок, внутренних облицовок стен каркасного и бескаркасного типов, ограждающих конструкций помещений мансард, коммуникационных шахт, подвесных потолков, сборных оснований под покрытия полов, огнезащитных облицовок стальных и деревянных конструкций).
Конструкции с применением гипсокартонных и гипсоволокнистых листов могут быть использованы в зданиях различного функционального назначения, различных степеней огнестойкости и классов функциональной пожарной опасности, возводимых во всех климатических районах страны, включая сейсмические районы и районы с другими особыми условиями, при выполнении нормативных требований к конструкциям.
Настоящий свод правил распространяется на новое строительство, реконструкцию и капитальный ремонт.
(раздел 2 в ред.
Изменения N 1, утв. Приказом Минстроя России от 27.12.2021 N 1009/пр)
В настоящем своде правил использованы нормативные ссылки на следующие документы:
ГОСТ 12.1.004-91 Система стандартов безопасности труда. Пожарная безопасность. Общие требования
ГОСТ 12.1.044-89 (ИСО 4589-84) Система стандартов безопасности труда. Пожаровзрывоопасность веществ и материалов. Номенклатура показателей и методы их определения
ГОСТ 7076-99 Материалы и изделия строительные. Метод определения теплопроводности и термического сопротивления при стационарном тепловом режиме
ГОСТ 8486-86 Пиломатериалы хвойных пород. Технические условия
ГОСТ 9573-2012 Плиты из минеральной ваты на синтетическом связующем теплоизоляционные. Технические условия
ГОСТ 10619-80 Винты самонарезающие с потайной головкой для металла и пластмассы. Конструкция и размеры
ГОСТ 10621-80 Винты самонарезающие с полукруглой головкой для металла и пластмассы. Конструкция и размеры
ГОСТ 10702-2016 Прокат сортовой из конструкционной нелегированной и легированной стали для холодной объемной штамповки. Общие технические условия
ГОСТ 11650-80 Винты самонарезающие с полукруглой головкой и заостренным концом для металла и пластмассы. Конструкция и размеры
ГОСТ 11652-80 Винты самонарезающие с потайной головкой и заостренным концом для металла и пластмассы. Конструкция и размеры
ГОСТ 14791-79 Мастика герметизирующая нетвердеющая строительная. Технические условия
ГОСТ 15588-2014 Плиты пенополистирольные теплоизоляционные. Технические условия
ГОСТ 18992-80 Дисперсия поливинилацетатная гомополимерная грубодисперсная. Технические условия
ГОСТ 25898-2020 Материалы и изделия строительные. Методы определения паропроницаемости и сопротивления паропроницанию
ГОСТ 27296-2012 Здания и сооружения. Методы измерения звукоизоляции ограждающих конструкций
ГОСТ 30244-94 Материалы строительные. Методы испытаний на горючесть
ГОСТ 30247.1-94 Конструкции строительные. Методы испытаний на огнестойкость. Несущие и ограждающие конструкции
ГОСТ 30402-96 Материалы строительные. Метод испытания на воспламеняемость
ГОСТ 30403-2012 Конструкции строительные. Метод испытаний на пожарную опасность
ГОСТ 30444-97 Материалы строительные. Метод испытания на распространение пламени
ГОСТ 31309-2005 Материалы строительные теплоизоляционные на основе минеральных волокон. Общие технические условия
ГОСТ 31704-2011 (EN ISO 354:2003) Материалы звукопоглощающие. Метод измерения звукопоглощения в реверберационной камере
ГОСТ 32310-2020 (EN 13164+A.1:2015) Изделия из экструзионного пенополистирола, применяемые в строительстве. Технические условия
ГОСТ 32614-2012 (EN 520:2009) Плиты гипсовые строительные. Технические условия
ГОСТ Р 53295-2009 Средства огнезащиты для стальных конструкций. Общие требования. Метод определения огнезащитной эффективности
| | ИС МЕГАНОРМ: примечание. В официальном тексте документа, видимо, допущена опечатка: имеется в виду ГОСТ Р 53338-2009, а не ГОСТ 53338-2009. | |
ГОСТ 53338-2009 Ленты паропроницаемые саморасширяющиеся самоклеящиеся строительного назначения. Технические условия
| | ИС МЕГАНОРМ: примечание. В официальном тексте документа, видимо, допущена опечатка: имеется в виду ГОСТ Р 56590-2016, а не ГОСТ 56590-2016. | |
ГОСТ 56590-2016 (EN 13165:2012) Плиты на основе пенополиизоцианурата теплозвукоизоляционные. Технические условия
СП 20.13330.2016 "СНиП 2.01.07-85* Нагрузки и воздействия" (с изменениями N 1, N 2, N 3)
СП 28.13330.2017 "СНиП 2.03.11-85 Защита строительных конструкций от коррозии" (с изменениями N 1, N 2)
СП 44.13330.2011 "СНиП 2.09.04-87* Административные и бытовые здания" (с изменениями N 1, N 2, N 3)
СП 54.13330.2016 "СНиП 31-01-2003 Здания жилые многоквартирные" (с изменениями N 1, N 2, N 3)
СП 56.13330.2011 "СНиП 31-03-2001 Производственные здания" (с изменениями N 1, N 2, N 3)
СП 60.13330.2020 "СНиП 41-01-2003 Отопление, вентиляция и кондиционирование воздуха"
СП 64.13330.2017 "СНиП II-25-80 Деревянные конструкции" (с изменениями N 1, N 2)
СП 70.13330.2012 "СНиП 3.03.01-87 Несущие и ограждающие конструкции" (с изменениями N 1, N 3, N 4)
СП 71.13330.2017 "СНиП 3.04.01-87 Изоляционные и отделочные покрытия" (с изменением N 1)
СП 118.13330.2012 "СНиП 31-06-2009 Общественные здания и сооружения" (с изменениями N 1, N 2, N 3, N 4)
Примечание - При пользовании настоящим сводом правил целесообразно проверить действие ссылочных документов в информационной системе общего пользования - на официальном сайте федерального органа исполнительной власти в сфере стандартизации в сети Интернет или по ежегодному информационному указателю "Национальные стандарты", который опубликован по состоянию на 1 января текущего года, и по выпускам ежемесячного информационного указателя "Национальные стандарты" за текущий год. Если заменен ссылочный документ, на который дана недатированная ссылка, то рекомендуется использовать действующую версию этого документа с учетом всех внесенных в данную версию изменений. Если заменен ссылочный документ, на который дана датированная ссылка, то рекомендуется использовать версию этого документа с указанным выше годом утверждения (принятия). Если после утверждения настоящего свода правил в ссылочный документ, на который дана датированная ссылка, внесено изменение, затрагивающее положение, на которое дана ссылка, то это положение рекомендуется применять без учета данного изменения. Если ссылочный документ отменен без замены, то положение, в котором дана ссылка на него, рекомендуется применять в части, не затрагивающей эту ссылку. Сведения о действии сводов правил целесообразно проверить в Федеральном информационном фонде стандартов.
В настоящем своде правил применены следующие термины с соответствующими определениями:
3.1 каркас: Конструкция, состоящая из основных и несущих профилей (брусков), соединенных между собой соединительными элементами, и прикрепленная к несущему основанию с помощью подвесов.
(в ред.
Изменения N 1, утв. Приказом Минстроя России от 27.12.2021 N 1009/пр)
3.2 комбинированные панели (ГКП) на основе гипсовых строительных плит или гипсокартонных или гипсоволокнистых листов: Двухслойное (или с большим количеством слоев) листовое изделие полной заводской готовности, состоящее из гипсовых строительных плит или гипсокартонных или гипсоволокнистых листов с наклеенным слоем изоляционного материала, выполняющего функцию дополнительной теплоизоляции, шумоизоляции, огнезащиты, пароизоляции или др.
(в ред.
Изменения N 1, утв. Приказом Минстроя России от 27.12.2021 N 1009/пр)
3.3 малозначительный дефект: Дефект, который существенно не влияет на использование продукции по назначению и ее долговечность.
3.4 несущие профили (бруски): Элементы каркаса подвесного потолка, соединенные с основными профилями с помощью различных соединительных деталей, к которым крепятся гипсокартонный или гипсоволокнистый лист или гипсовая плита.
(в ред.
Изменения N 1, утв. Приказом Минстроя России от 27.12.2021 N 1009/пр)
3.5 нониус-подвес: Подвес, состоящий из трех частей (верхней, нижней части и фиксатора) и позволяющий регулировать каркас подвесного потолка по высоте.
3.6 основные профили (бруски): Элементы каркаса подвесного потолка, которые непосредственно или через подвесы крепят к несущему основанию потолка.
3.7 способность несущая: Максимальная эксплуатационная нагрузка, которую может выдерживать конструкция без разрушения или достижения предельного состояния по деформациям.
(в ред.
Изменения N 1, утв. Приказом Минстроя России от 27.12.2021 N 1009/пр)
3.8 теневой шов: Шов подвижного соединения перегородки с вышележащим перекрытием, в котором предусмотрено скрытие направляющего профиля с помощью дополнительной полосы из гипсокартонных или гипсоволокнистых листов или гипсовой плиты.
(в ред.
Изменения N 1, утв. Приказом Минстроя России от 27.12.2021 N 1009/пр)
3.9 элемент пола; ЭП: Два гипсоволокнистых листа одного типа, склеенных друг с другом и смещенных относительно друг друга.
(п. 3.9 введен
Изменением N 1, утв. Приказом Минстроя России от 27.12.2021 N 1009/пр)
4 Обозначения и сокращения
(раздел 4 в ред.
Изменения N 1, утв. Приказом Минстроя России от 27.12.2021 N 1009/пр)
В настоящем своде правил применены следующие обозначения и сокращения:
ПБ - профиль торцевой (буртик);
ПЛК - полукруглая с лицевой стороны кромка гипсокартонного листа или гипсовой плиты;
ПЛУК - полукруглая и утоненная с лицевой стороны кромка гипсокартонного листа или гипсовой плиты;
ПН - профиль направляющий;
ПП - профиль потолочный;
ПС - профиль стоечный;
ПУ - профиль углозащитный;
СМ - винты самосверлящие-самонарезающие;
УК - утоненная с лицевой стороны кромка гипсокартонного листа или гипсовой плиты;
EPS - пенополистирол;
MW - профиль стоечный акустический специального сечения;
PIR - пенополиизоцианурат;
UA - профиль усиленный;
XPS - экструзионный пенополистирол.
5.1 Материалы и изделия для ограждающих и огнезащитных конструкций с применением гипсокартонных и гипсоволокнистых листов или гипсовых плит должны соответствовать требованиям действующих документов в области нормирования и стандартизации.
(в ред.
Изменения N 1, утв. Приказом Минстроя России от 27.12.2021 N 1009/пр)
5.2 Каркасно-обшивные конструкции следует выполнять путем обшивки металлического или деревянного каркаса гипсокартонными или гипсоволокнистыми листами или гипсовыми плитами. Полость между обшивками может быть заполнена изоляционными материалами.
(в ред.
Изменения N 1, утв. Приказом Минстроя России от 27.12.2021 N 1009/пр)
Как правило, конструкции с деревянным каркасом целесообразно применять при небольших объемах строительных или ремонтных работ.
5.3 В настоящем своде правил приведены конструктивные решения ограждающих конструкций, включая ограждения инженерных коммуникаций, огнестойких кабельных коробов, воздуховодов систем вентиляции и дымоудаления, с применением каркасов, комплектующих изделий и материалов, указанных в
разделе 6. При применении этих технических решений, включая сейсмические районы с 1 по 6 по шкале MSK-64 согласно
СП 14.13330, параметры конструкций в части размеров сечения и максимального шага элементов каркаса, максимально допустимой высоты конструкций, а также устройства соединений допускается применять без проведения обосновывающих расчетов. Если применяют элементы каркаса, комплектующие изделия и материалы, отличающиеся от указанных в
разделе 6, перечисленные выше параметры конструкций должны быть определены по расчету или по результатам испытаний.
(в ред.
Изменения N 1, утв. Приказом Минстроя России от 27.12.2021 N 1009/пр)
5.4 К ограждающим конструкциям здания с применением гипсокартонных и гипсоволокнистых листов или гипсовых плит предъявляют общие требования в части:
(в ред.
Изменения N 1, утв. Приказом Минстроя России от 27.12.2021 N 1009/пр)
- качества поверхностей;
- пожарно-технических характеристик материала обшивок (особенно для конструкций, располагаемых в зданиях на путях эвакуации);
- гигиенических характеристик материала обшивок;
- характеристик сопротивления воздействиям окружающей среды, в том числе воздействию повышенной влажности воздуха и агрессивности среды;
(в ред.
Изменения N 1, утв. Приказом Минстроя России от 27.12.2021 N 1009/пр)
- звукоизоляции.
(перечисление введено
Изменением N 1, утв. Приказом Минстроя России от 27.12.2021 N 1009/пр)
5.5 Сопротивление конструкций воздействиям окружающей среды обеспечивается при следующих условиях:
- для ограждающих конструкций помещений с влажным температурно-влажностным режимом по
СП 50.13330 применяют обшивки из влагостойких гипсокартонных (вида ГКЛВ или ГКЛВО по
ГОСТ 6266) и гипсоволокнистых листов (вид ГВЛ типа B по
ГОСТ Р 51829) или гипсовых плит (типа H по
ГОСТ 32614) по металлическому каркасу;
(в ред.
Изменения N 1, утв. Приказом Минстроя России от 27.12.2021 N 1009/пр)
- для конструкций, используемых в условиях агрессивных воздействий среды, элементы металлического и деревянного каркаса конструкций должны быть защищены в соответствии с требованиями
СП 28.13330.
6 Материалы, используемые для конструкций с применением гипсокартонных и гипсоволокнистых листов или гипсовых строительных плит
(в ред.
Изменения N 1, утв. Приказом Минстроя России от 27.12.2021 N 1009/пр)
(в ред.
Изменения N 1, утв. Приказом Минстроя России от 27.12.2021 N 1009/пр)
6.1.1 Номенклатура гипсокартонных листов приведена в
ГОСТ 6266.
В зависимости от назначения гипсокартонные листы подразделяют на четыре вида изделий: ГКЛ - обычные; ГКЛВ - влагостойкие; ГКЛО - с повышенной сопротивляемостью воздействию открытого пламени и ГКЛВО - влагостойкие с повышенной сопротивляемостью воздействию открытого пламени. Они относятся к группе горючести Г1 по
ГОСТ 30244, к группе воспламеняемости В2 по
ГОСТ 30402, к группе дымообразующей способности Д1 и группе токсичности Т1 по
ГОСТ 12.1.044.
6.1.2 Разрушающая нагрузка при испытании листов на прочность при изгибе при переменном пролете (
l = 40
s, где
s - номинальная толщина листа в миллиметрах) и прогиб должны соответствовать значениям, указанным в
ГОСТ 6266.
6.1.3 По форме продольные кромки гипсокартонных листов подразделяют на типы по
ГОСТ 6266.
6.1.4 Водопоглощение листов ГКЛВ и ГКЛВО не должно превышать значений, приведенных в
ГОСТ 6266.
6.1.5 Сопротивляемость листов ГКЛО и ГКЛВО воздействию открытого пламени должна быть не менее 20 мин.
6.1.6 Удельная эффективная активность естественных радионуклидов в гипсокартонных листах не должна превышать значений, приведенных в
ГОСТ 6266.
6.1.7 Листы ГКЛ следует применять для устройства перегородок, подвесных потолков и облицовки внутренних поверхностей стен в помещениях с сухим и нормальным температурно-влажностными режимами в соответствии с требованиями
СП 50.13330.
6.1.8 Листы ГКЛВ в соответствии с
ГОСТ 6266 следует применять для устройства перегородок, подвесных потолков и облицовки внутренних поверхностей стен в помещениях с влажным режимом эксплуатации.
(п. 6.1.8 в ред.
Изменения N 1, утв. Приказом Минстроя России от 27.12.2021 N 1009/пр)
6.1.9 Листы ГКЛО следует применять для устройства перегородок, подвесных потолков и облицовки внутренних поверхностей стен и огнезащиты конструкций, к которым предъявляют требования по огнестойкости.
6.1.10 Листы ГКЛВО следует применять для выполнения противопожарных перегородок, подвесных потолков и облицовки внутренних поверхностей стен и огнезащиты конструкций в помещениях зданий с влажным режимом эксплуатации при относительной влажности воздуха до 70% и температуре до 30 °C.
6.1.11 Исключен с 28.01.2022. -
Изменение N 1, утв. Приказом Минстроя России от 27.12.2021 N 1009/пр.
6.1.12 При применении листов ГКЛВ и ГКЛВО в зданиях и помещениях с влажным режимом эксплуатации их лицевые поверхности следует защищать гидроизоляционными материалами (обмазочными или оклеечными), водостойкими грунтовками, водостойкой шпаклевкой, водостойкими красками, керамической плиткой или мозаикой. В этих помещениях следует предусматривать вытяжную вентиляцию, обеспечивающую нормативный воздухообмен в соответствии с действующими нормами
СП 44.13330,
СП 54.13330,
СП 55.13330,
СП 56.13330,
СП 60.13330,
СП 118.13330.
(п. 6.1.12 в ред.
Изменения N 1, утв. Приказом Минстроя России от 27.12.2021 N 1009/пр)
| | ИС МЕГАНОРМ: примечание. В официальном тексте документа, видимо, допущена опечатка: имеется в виду ГОСТ Р 56590, а не ГОСТ 56590. | |
6.1.13 Для повышения теплоизолирующей способности стен в эксплуатируемых и реконструируемых зданиях при их бескаркасной облицовке рекомендуется применять гипсокартонные комбинированные панели ГКП, представляющие собой двухслойное изделие полной заводской готовности, состоящее из гипсокартонного листа с наклеенным слоем теплоизоляции из пенополистирольной плиты ПСБ-С марок 15, 25 или 35 по
ГОСТ 15588 или из минераловатной плиты на синтетическом связующем марок 175, 225 по
ГОСТ 9573 или из пенополиизоцианурата (PIR) по
ГОСТ 56590 или из экструзионного пенополистирола (XPS) по
ГОСТ 32310 с учетом требований
[1].
В качестве облицовочного слоя таких панелей могут быть использованы листы ГКЛ или ГКЛВ.
Номинальные размеры панелей составляют по длине 2500, 2700 и 3000 мм; по ширине 600 и 1200 мм. Толщина гипсокартонной комбинированной панели складывается из толщины применяемого гипсокартонного листа (9,5; 12,5; 14,0; 16,0; 18,0; 20,0 и 24,0) и толщины плит теплоизоляции (20; 30; 40; 50 и 60 мм).
(п. 6.1.13 в ред.
Изменения N 1, утв. Приказом Минстроя России от 27.12.2021 N 1009/пр)
(подраздел 6.1а введен
Изменением N 1, утв. Приказом Минстроя России от 27.12.2021 N 1009/пр)
6.1а.1 Гипсовые строительные плиты (ГСП) бывают следующих типов: гипсовые плиты типа A, гипсовые плиты типа H (влагостойкие плиты) в зависимости от их водопоглощения обозначают: "Тип H1", "Тип H2" и "Тип H3", гипсовые плиты типа E, гипсовые плиты типа F (плиты с повышенной стойкостью гипсового сердечника при воздействии открытого пламени), гипсовые плиты типа P, гипсовые плиты типа D (плиты заданной плотности), гипсовые плиты типа R, гипсовые плиты типа I (плиты с повышенной твердостью сердечника). Допускается комбинация различных типов гипсовых строительных плит.
Гипсовые плиты относятся к группе горючести Г1 по
ГОСТ 30244, к группе воспламеняемости В2 по
ГОСТ 30402, к группе дымообразующей способности Д1 и группе токсичности Т1 по
ГОСТ 12.1.044.
6.1а.2 Разрушающая нагрузка при испытании гипсовых плит на прочность при изгибе и прогиб должна соответствовать значениям, указанным в
ГОСТ 32614.
6.1а.3 Форму продольных и поперечных кромок, размеры и предельные отклонения гипсовых плит принимают по
ГОСТ 32614.
6.1а.4 Водопоглощение гипсовых плит ГСП типа H и ГСП типа E не должно превышать значений, приведенных в
ГОСТ 32614. Объемное водопоглощение по массе для ГСП типа H1 <= 5%, для ГСП типа H2 <= 10%, для ГСП типа H3 <= 25%. Поверхностное водопоглощение для ГСП типа H1 <= 180 г/м
2, для ГСП типа H2 <= 220 г/м
2, для ГСП типа H3 <= 300 г/м
2.
6.1а.5 Дополнительные требования к гипсовым плитам ГСП типов H; E; F; D; I принимают по
ГОСТ 32614.
6.1а.6 Паропроницаемость определяют по
ГОСТ 25898 по просьбе потребителя.
6.1а.7 Звукопоглощение определяют по
ГОСТ 31704 по просьбе потребителя.
6.1а.8 Теплопроводность гипсовых плит для применения в теплоизоляционных конструкциях определяют по
ГОСТ 7076 по просьбе потребителя.
6.1а.9 Сопротивляемость гипсовых плит ГСП типов F, DF и DFH2 воздействию открытого пламени должна быть не менее 15 мин.
6.1а.10 Удельная эффективная активность естественных радионуклидов в гипсовых плитах не должна превышать значений, приведенных в
ГОСТ 32614.
6.1а.11 Гипсовые плиты ГСП типов A, P, D, F следует применять для устройства перегородок, подвесных потолков и облицовки внутренних поверхностей стен в помещениях с сухим и нормальным температурно-влажностными режимами в соответствии с требованиями
СП 50.13330.
6.1а.12 Гипсовые плиты ГСП типа H (и/или в комбинации с другими свойствами, например, DH2, DFH3 и т.д.) следует применять для устройства перегородок, подвесных потолков и облицовки внутренних поверхностей стен в помещениях с влажным режимом эксплуатации в соответствии с
ГОСТ 32614. Для внутреннего применения с влажным влажностным режимом плиты типа H3 допускается применять только в сочетании с обмазочной либо оклеечной гидроизоляцией, плиты типа H2 необходимо защищать дополнительной гидроизоляций в местах периодического контакта с водой (душевые, раковины и т.п.), плиты типа H1 допускается использовать без дополнительной гидроизоляции.
6.1а.13 Гипсовые плиты ГСП типа F или ГСП типа DF заданной плотности с повышенной стойкостью гипсового сердечника при воздействии открытого пламени следует применять для устройства перегородок, подвесных потолков и облицовки внутренних поверхностей стен и огнезащиты конструкций, к которым предъявляют требования по огнестойкости в помещениях зданий и сооружений с сухим и нормальным режимами эксплуатации.
6.1а.14 Гипсовые плиты ГСП типа DFH2 или типа DFH3IR влагостойкие заданной плотности с повышенной стойкостью гипсового сердечника при воздействии открытого пламени следует применять для выполнения противопожарных перегородок, подвесных потолков и облицовки внутренних поверхностей стен и огнезащиты конструкций в помещениях зданий с сухим, нормальным и влажным режимами эксплуатации.
6.1а.15 Гипсовые плиты ГСП типа R или ГСП типа I или в комбинации с другими типами следует применять для выполнения перегородок, подвесных потолков и облицовки внутренних поверхностей стен в помещениях с сухим и нормальным температурно-влажностными режимами, к которым предъявляют повышенные требования прочности и твердости поверхности.
6.1а.16 При применении гипсовых плит ГСП типа H и ГСП типа DFH2 в зданиях и помещениях с влажным режимом эксплуатации их лицевые поверхности следует защищать водостойкими грунтовками, водостойкой шпаклевкой, водостойкими красками, керамической плиткой или мозаикой. В этих помещениях следует предусматривать вытяжную вентиляцию, обеспечивающую нормативный воздухообмен в соответствии с действующими нормами
СП 44.13330,
СП 54.13330,
СП 55.13330,
СП 56.13330,
СП 60.13330,
СП 118.13330.
(подраздел 6.2 в ред.
Изменения N 1, утв. Приказом Минстроя России от 27.12.2021 N 1009/пр)
6.2.1 Номенклатура гипсоволокнистых листов приведена в
ГОСТ Р 51829.
В зависимости от дополнительных свойств гипсоволокнистые листы подразделяют на следующие типы:
- гипсоволокнистые листы с пониженным объемным водопоглощением. Для идентификации эти листы имеют дополнительное обозначение "ОВ";
Пример - ГВЛ типа ОВ
- гипсоволокнистые листы с пониженным поверхностным водопоглощением. Для идентификации эти листы имеют дополнительное обозначение "В1" или "В2" в зависимости от показателя поверхностного водопоглощения;
Пример - ГВЛ типа В1
- гипсоволокнистые листы с повышенной плотностью. Для идентификации эти листы имеют дополнительное обозначение "М";
Пример - ГВЛ типа М
- гипсоволокнистые листы с повышенной твердостью поверхности. Для идентификации эти листы имеют дополнительное обозначение "Т";
Пример - ГВЛ типа Т
- гипсоволокнистые листы повышенной прочности. Для идентификации эти листы имеют дополнительное обозначение "П1" или "П2" в зависимости от показателя прочности;
Пример - ГВЛ типа П1
- гипсоволокнистые листы негорючие. Для идентификации эти листы имеют дополнительное обозначение "НГ".
Пример - ГВЛ типа НГ
Гипсоволокнистые листы могут обладать одним или несколькими дополнительными свойствами.
Гипсоволокнистые листы, за исключением гипсоволокнистых листов негорючих (НГ), относятся к группе горючести Г1 по
ГОСТ 30244, группе воспламеняемости В1 по
ГОСТ 30402, группе дымообразующей способности Д1 и группе токсичности Т1 по
ГОСТ 12.1.044.
Гипсоволокнистые листы негорючие (НГ) относятся к негорючим материалам по
ГОСТ 30244.
6.2.2 По форме продольные кромки гипсоволокнистых листов подразделяют на типы по
ГОСТ Р 51829.
6.2.3 Физико-технические показатели гипсоволокнистых листов приведены в
ГОСТ Р 51829.
6.2.4 Гипсоволокнистые листы с пониженным поверхностным водопоглощением могут использоваться при устройстве конструкций пола в качестве основания под покрытие пола и монтируемых:
- из элементов пола по
ГОСТ Р 51829, выполненных из двух гипсоволокнистых листов влагостойких (ГВЛ типа В) размерами 1200 x 600 x 10 мм, склеенных между собой в заводских условиях со смещением относительно друг друга на 50 мм
([2]) (рисунок 1а);
- двух отдельных малоформатных листов с пониженным поверхностным водопоглощением размерами 1200 x 1200 x 10 мм
([3]) общей толщиной 20 мм
(рисунок 1б).
6.2.5 В помещениях зданий и сооружений с сухим и нормальным влажностными режимами в соответствии с
СП 50.13330 применяют гипсоволокнистые листы всех типов.
6.2.6 В помещениях зданий и сооружений с влажным влажностным режимом в соответствии с
СП 50.13330 применяют гипсоволокнистые листы/элементы пола с дополнительными свойствами по поверхностному (тип В1, В2) и объемному (ОВ) водопоглощению. При этом следует предусматривать вытяжную вентиляцию, обеспечивающую нормативный воздухообмен в соответствии с
СП 60.13330,
СП 54.13330,
СП 118.13330,
СП 44.13330.
6.2.7 Гипсоволокнистые листы (элементы пола) типов В1, ОВ могут быть использованы в следующих неотапливаемых помещениях: помещения временного проживания, загородные дома сезонного проживания, холодные складские и производственные помещения, мансарды и чердаки, подвалы, сараи, остекленные лоджии, гаражи, неотапливаемые боксы, подземные парковки, тамбуры и неотапливаемые места общего пользования коммерческих и жилых зданий. Требуемые условия применения гипсоволокнистых листов (элементов пола) типов В1, ОВ в неотапливаемых помещениях: исключение прямого попадания воды (как в виде атмосферных осадков, так и в виде конденсата); относительная влажность воздуха не более 75%; нормируемый воздухообмен. Климатические районы использования гипсоволокнистых листов (элементов пола) типов В1, ОВ в неотапливаемых помещениях: I, II, III и IV, за исключением климатических подрайонов IА и IБ по
СП 131.13330.
а - элемент пола; б - влагостойкий
гипсоволокнистый лист ГВЛВ
Рисунок 1
Элементы металлического каркаса
6.3.1 Для выполнения металлического каркаса перегородок, облицовок стен и подвесных потолков применяют гнутые профили из углеродистой холоднокатаной стальной оцинкованной ленты. Требования к элементам металлического каркаса приведены в
[4],
[5]. Типы и основные размеры элементов металлического каркаса приведены в
приложении А.
6.3.2 Стальные профили должны удовлетворять следующим требованиям:
- качество поверхности цинкового покрытия профилей должно соответствовать
ГОСТ 14918;
- на профилях допускаются незначительные повреждения цинкового покрытия в местах изгибов в виде микротрещин (не видимых невооруженным глазом) и потертости, не нарушающие сплошности покрытия;
- отклонения высоты и ширины сечения профилей от номинальных размеров не должны превышать +/- 0,5; длины профилей - +/- 3,0 мм;
(в ред.
Изменения N 1, утв. Приказом Минстроя России от 27.12.2021 N 1009/пр)
- скручивание профилей вокруг продольной оси не должно превышать 1° на 1 м длины профиля; допускается незначительное скручивание профилей, устраняющееся при их укладке на горизонтальную плоскость и при установке в конструкцию;
- кривизна (серповидность) профиля не должна превышать 2 мм на 1 м длины профиля;
(в ред.
Изменения N 1, утв. Приказом Минстроя России от 27.12.2021 N 1009/пр)
- волнистость на поверхности профиля не должна превышать 2,5 мм, длина волны - не более 150 мм;
- на поверхности профилей не допускаются задиры, трещины по основному металлу, глубокие царапины;
- в стенках стоечных профилей есть технологические отверстия, которые позволяют провести монтаж элементов инженерных коммуникаций внутри каркаса конструкции;
(в ред.
Изменения N 1, утв. Приказом Минстроя России от 27.12.2021 N 1009/пр)
- номинальная толщина профиля типов: ПН, ПС, ПП, MW должна составлять (0,6 +/- 0,03) мм; номинальная толщина профиля типов: UA составляет (2,0 +/- 0,14) мм.
(перечисление введено
Изменением N 1, утв. Приказом Минстроя России от 27.12.2021 N 1009/пр)
6.3.3 Для выполнения металлического каркаса конструкций с криволинейными поверхностями должны применять профили, изогнутые в заводских условиях в соответствии с конкретным проектом.
6.3.4 Выбор необходимого по размеру профиля или бруска осуществляют исходя из требуемой высоты перегородки или облицовки стен, их конструкции и требований к звукоизоляции (
таблицы 6 и
7).
Элементы деревянного каркаса
6.3.5 Для выполнения деревянного каркаса применяют пиломатериалы из хвойных пород не ниже 2-го сорта по
ГОСТ 8486. Бруски каркаса должны быть обработаны антипиренами и антисептиками в соответствии с требованиями
СП 70.13330 и
СП 28.13330.
Влажность древесины при применении пиломатериалов в конструкциях должна быть в пределах 12%.
6.3.6 Для каркаса перегородок рекомендуется применять стоечный брусок сечением 50 x 60 мм и направляющий брусок - 40 x 60 мм, для каркаса подвесного потолка - основной и несущий бруски сечением 30 x 50 мм, для каркаса облицовки стен - бруски сечением 25 x 40 мм.
6.4 Крепежные изделия и комплектующие материалы
Для выполнения ограждающих конструкций из гипсокартонных и гипсоволокнистых листов или гипсовых плит применяют крепежные изделия, самонарезающие шурупы, клеевые и шпаклевочные составы, уплотнители, герметизирующие составы, тепло- и звукоизоляционные материалы.
(в ред.
Изменения N 1, утв. Приказом Минстроя России от 27.12.2021 N 1009/пр)
6.4.1 Крепежные изделия
6.4.1.1 К крепежным изделиям относятся: подвесы
(приложение Б) для каркасов подвесных потолков и облицовок стен, дюбели и анкерные элементы
(приложение В) для крепления каркаса к несущим конструкциям, соединительные элементы для стыкования профилей каркаса, а также дюбели и крючки для крепления различных предметов к перегородкам, облицовкам и подвесным потолкам.
6.4.1.2 Для соединения элементов каркасов и крепления их к несущим конструкциям зданий применяют соединительные детали и подвесы. Требования к соединительным деталям и подвесам приведены в
[6],
[7],
[8],
[9]. Характеристики и назначение соединительных деталей и подвесов приведены в
приложении Б.
6.4.1.3 Для крепления гипсокартонных или гипсоволокнистых листов или гипсовых плит к металлическому каркасу с толщиной стенки профиля менее 0,7 мм и к деревянному каркасу применяют самонарезающие винты типов TN, XTN и MN
(таблица 1). Длину винтов определяют в зависимости от толщины каркаса и обшивки
(таблица 1а).
(п. 6.4.1.3 в ред.
Изменения N 1, утв. Приказом Минстроя России от 27.12.2021 N 1009/пр)
Минстроя России от 27.12.2021 N 1009/пр)
Тип винта | Общий вид винта | Назначение и размеры винта |
Винт TN (винт самонарезающий с потайной головкой и заостренным концом по ГОСТ 11652) | | Для гипсокартонных листов и гипсовых плит (применяют для деревянного каркаса и металлического каркаса с толщиной профиля до 0,7 мм). Стандартная длина шурупа TN: 25, 35, 45, 55, 65 и 75 мм |
Винт MN (винт самонарезающий с потайной головкой и заостренным концом ГОСТ 11652) | | Для гипсоволокнистых листов (применяют для деревянного каркаса и металлического каркаса с толщиной профиля до 0,7 мм). Стандартная длина шурупа MN: 22, 25, 30, 35 и 45 мм |
Винт TB (винт самонарезающий с потайной головкой и высверливающим концом по ГОСТ 10619) | | Для гипсокартонных и гипсоволокнистых листов и гипсовых плит (применяется для металлического каркаса с толщиной профиля от 0,7 до 2,2 мм). Стандартная длина шурупа ТВ: 25, 35, 45, 55, 65 и 75 мм |
Винт XTN (винт самонарезающий с заостренным концом) | | Для гипсовых строительных плит повышенной прочности и твердости поверхности. Применяется для металлического каркаса с толщиной профиля до 0,7 мм. Стандартная длина шурупа XTN: 23, 33, 38, 55 и 65 мм |
Винт LN (винт самонарезающий с заостренным концом ГОСТ 11650) | | Для соединения металлических деталей между собой. Длина не менее 9 мм |
Винт LB (винт самонарезающий с высверливающим концом ГОСТ 10621) | | Для соединения металлических деталей между собой. Длина не менее 9 мм |
Минстроя России от 27.12.2021 N 1009/пр)
Минимальная длина винта Lmin, мм |
Число слоев обшивки | При деревянном каркасе | При металлическом каркасе для винтов с двухзаходной резьбой |
Один | Lmin = tГКЛ (ГВЛ или ГСП) + 20 мм | Lmin = tГКЛ (ГВЛ или ГСП) + tпрофиля + 10 мм |
Два | Lmin = 2tГКЛ (ГВЛ или ГСП) + 20 мм | Lmin = 2tГКЛ (ГВЛ или ГСП) + tпрофиля + 10 мм |
Три | Lmin = 3tГКЛ (ГВЛ или ГСП) + 20 мм | Lmin = 3tГКЛ (ГВЛ или ГСП) + tпрофиля + 10 мм |
Примечание - В настоящей таблице применены следующие условные обозначения: tГКЛ (ГВЛ или ГСП) - толщина гипсокартонного (гипсоволокнистого) листа или гипсовой плиты, мм; tпрофиля - толщина профиля металлического каркаса, мм. |
6.4.1.4 Для крепления гипсокартонных или гипсоволокнистых листов или гипсовых плит к металлическому каркасу с толщиной металла профиля 0,7 - 2,2 мм применяют самонарезающие винты типа ТВ с высверливающим концом, потайной головкой и крестообразным шлицем
(таблица 1). Длину винтов определяют в зависимости от вида каркаса и толщины обшивки
(таблица 1а).
(п. 6.4.1.4 в ред.
Изменения N 1, утв. Приказом Минстроя России от 27.12.2021 N 1009/пр)
6.4.1.5 Для соединения металлических деталей между собой рекомендуется применять самонарезающие винты с заостренным концом и крестообразным шлицем
(таблица 1).
(п. 6.4.1.5 в ред.
Изменения N 1, утв. Приказом Минстроя России от 27.12.2021 N 1009/пр)
6.4.1.6 Для крепления профилей каркаса и подвесов к несущим конструкциям рекомендуется применять дюбели и анкерные дюбели, а для крепления навесного оборудования непосредственно к обшивке из гипсокартонных и гипсоволокнистых листов или гипсовых плит - анкеры с металлическим или пластиковым дюбелем, номенклатура которых приведена в приложении В.
(п. 6.4.1.6 в ред.
Изменения N 1, утв. Приказом Минстроя России от 27.12.2021 N 1009/пр)
6.4.1.7 Крепление элементов деревянного каркаса между собой следует выполнять на гвоздях по
ГОСТ 4028 или шурупами по
ГОСТ 1147 с применением накладок из углеродистой холоднокатаной листовой оцинкованной стали толщиной не менее 0,6 мм.
(в ред.
Изменения N 1, утв. Приказом Минстроя России от 27.12.2021 N 1009/пр)
6.4.2 Комплектующие материалы
6.4.2.1 Для заделки стыков между гипсокартонными или гипсоволокнистыми листами или гипсовыми плитами следует применять сухую шпаклевочную смесь на основе гипсового вяжущего по
ГОСТ 125 со специальными добавками, обеспечивающими увеличение сроков схватывания и повышение водоудерживающей способности, либо шпаклевочную смесь на основе полимерного вяжущего. Предел прочности при изгибе - не менее 1,0 МПа, при сжатии - 2 МПа.
(в ред.
Изменения N 1, утв. Приказом Минстроя России от 27.12.2021 N 1009/пр)
6.4.2.2 Для склеивания фальцев "Элементов пола" из гипсоволокнистых листов или спаренных гипсоволокнистых листов при устройстве сборных оснований под покрытия полов рекомендуется применять специально предназначенные для этой цели клеи по
ГОСТ 18992.
Не допускается применять клеи на силикатной и акриловой основах.
6.4.2.3 Перед шпаклеванием и при подготовке поверхности обшивки из гипсокартонных или гипсоволокнистых листов или гипсовых плит для дальнейшей отделки швы между ними рекомендуется обрабатывать грунтовкой.
(в ред.
Изменения N 1, утв. Приказом Минстроя России от 27.12.2021 N 1009/пр)
6.4.2.4 Для заделки стыков, образованных всеми типами кромок гипсокартонных листов или гипсовых плит (кроме ПЛУК и ПЛК) и фальцевых кромок гипсоволокнистых листов, применяют сплошную или перфорированную бумажную армирующую ленту
[10].
(в ред.
Изменения N 1, утв. Приказом Минстроя России от 27.12.2021 N 1009/пр)
При выполнении конструкций с многослойной обшивкой из гипсокартонных или гипсоволокнистых листов или гипсовых плит армирование стыков внутренних слоев обшивки не обязательно.
(в ред.
Изменения N 1, утв. Приказом Минстроя России от 27.12.2021 N 1009/пр)
6.4.2.5 Для заделки зазоров между направляющими профилями или деревянными брусками каркаса и несущими конструкциями (балками, плитами покрытия), между стоечными профилями двойного каркаса, а также между стоечными профилями или брусками, примыкающими к стенам и колоннам, и обеспечения требуемой звукоизоляции в соответствии с
СП 51.13330 следует применять самоклеящуюся мелкопористую полимерную уплотнительную ленту по
ГОСТ Р 53338 или нетвердеющие герметики по
ГОСТ 14791.
6.4.2.6 Поверхности из гипсокартонных или гипсоволокнистых листов или гипсовых плит пригодны под окраску, оклейку обоями, декоративную штукатурку, поверхности из гипсокартонных листов также возможно облицовывать керамической плиткой или мозаикой. Перед нанесением отделочных покрытий поверхности из гипсокартонных листов необходимо обрабатывать грунтовкой.
(в ред.
Изменения N 1, утв. Приказом Минстроя России от 27.12.2021 N 1009/пр)
6.4.2.7 Исключен с 28.01.2022. -
Изменение N 1, утв. Приказом Минстроя России от 27.12.2021 N 1009/пр.
6.4.2.8 В помещениях (ванные, душевые, кухни и т.п.) поверхности гипсокартонных листов ГКЛВ или гипсовых плит ГСП типов H2 и H3 (и (или) в комбинации с другими свойствами, например, DH2, DFH3 и т.д.), находящихся под непосредственным воздействием влаги, должны быть покрыты гидроизолирующим составом, а в местах сопряжения стен между собой и стен с полом должна быть предусмотрена прокладка самоклеящейся гидроизоляционной лентой или специальная лента для армирования гидроизоляционного мастичного слоя
[10].
(п. 6.4.2.8 в ред.
Изменения N 1, утв. Приказом Минстроя России от 27.12.2021 N 1009/пр)
6.4.3 Тепло- и звукоизоляционные материалы
6.4.3.1 В качестве тепло- и звукоизоляционного слоя в конструкциях с гипсокартонными или гипсоволокнистыми листами или гипсовыми строительными плитами следует использовать плиты и маты минераловатные из каменного (базальтового) или стеклянного волокна на синтетическом или полимерорганическом связующем по
ГОСТ 32314, плиты из пенополиизоцианурата (PIR) по
ГОСТ Р 56590, плиты из вспененного пенополистирола (EPS) по
ГОСТ 15588, плиты из экструзионного пенополистирола (XPS) по
ГОСТ 32310.
(п. 6.4.3.1 в ред.
Изменения N 1, утв. Приказом Минстроя России от 27.12.2021 N 1009/пр)
7 Конструктивные решения ограждающих конструкций с применением гипсокартонных и гипсоволокнистых листов или гипсовых плит
(в ред.
Изменения N 1, утв. Приказом Минстроя России от 27.12.2021 N 1009/пр)
7.1 Каркасно-обшивные перегородки
Перегородки рекомендуется проектировать с одинарным или двойным металлическим каркасом, звукоизоляционным слоем из минераловатных плит на основе стекловолокна или базальтового волокна и одно-, двух- или трехслойной обшивкой из гипсокартонных или гипсоволокнистых листов или гипсовых плит (таблица 2). При необходимости прокладки трубопроводов и т.п. коммуникаций в толще перегородки применяют двойной разнесенный металлический каркас, а в качестве заполнителя - преимущественно негорючие теплоизоляционные материалы.
(в ред.
Изменения N 1, утв. Приказом Минстроя России от 27.12.2021 N 1009/пр)
Минстроя России от 27.12.2021 N 1009/пр)
Конструкции | Характеристика конструкции | Особенности применения |
1 | | Одинарный металлический каркас, обшитый одним слоем гипсокартонных или гипсоволокнистых листов или гипсовых плит с обеих сторон. Высота перегородки до 6,6 м | Рекомендуется применять в помещениях, к которым не предъявляются требования по звукоизоляции и огнестойкости, прочности, например кладовые, временные сооружения и пр. |
2 | | Одинарный металлический каркас, обшитый двумя слоями гипсокартонных или гипсоволокнистых листов или гипсовых плит с обеих сторон. Высота перегородки до 8,55 м | Подходит для применения в большинстве помещений с разным функциональным назначением |
3 | | Одинарный металлический каркас, обшитый тремя слоями гипсокартонных или гипсоволокнистых листов или гипсовых плит с обеих сторон. Высота перегородки до 10,4 м | Для применения в помещениях с высокими требования по звукоизоляции, огнестойкости и прочности |
4 | | Двойной металлический каркас, обшитый двумя слоями гипсокартонных или гипсоволокнистых листов или гипсовых плит с обеих сторон <*>. Высота перегородки до 6,15 м | В помещениях с повышенными требованиями по звукоизоляции огнестойкости |
5 | | Двойной металлический каркас, установленный с зазором для пропуска коммуникаций, обшитый двумя слоями гипсокартонных или гипсоволокнистых листов или гипсовых плит с обеих сторон. Высота перегородки до 8 м | Для прокладки коммуникаций |
6 | | Одинарный металлический каркас, обшитый тремя слоями гипсокартонных или гипсоволокнистых листов или гипсовых плит с обеих сторон с листами оцинкованной стали толщиной 0,5 мм между ними. Высота перегородки до 9,0 м | Применяют в качестве взломостойкой конструкции классов 1, 2, 3 [16] |
7 | | Одинарный деревянный каркас, обшитый одним слоем гипсокартонных или гипсоволокнистых листов или гипсовых плит с обеих сторон. Высота перегородки до 4,1 м | - |
8 | | Одинарный деревянный каркас, обшитый двумя слоями гипсокартонных или гипсоволокнистых листов или гипсовых плит с обеих сторон. Высота перегородки до 4,1 м | - |
<*> Допускаются вариации обшивки (по два слоя с каждой из сторон и один лист между каркасами, два слоя с одной стороны и три с другой). Примечание - Максимальная высота перегородки приведена для конструкций с обшивками из гипсокартонных или гипсоволокнистых листов или гипсовых плит толщиной 12,5 мм. Допускается применять усиленные конструкции с  высотами при подтверждении специальными расчетами. |
В помещениях с сухим и нормальным температурно-влажностными режимами рекомендуется проектировать перегородки с металлическим или деревянным каркасом и обшивкой из ГКЛ или ГВЛ листов или гипсовых плит ГСП типа A или P или других типов, обусловленных требованиями конструкции.
(в ред.
Изменения N 1, утв. Приказом Минстроя России от 27.12.2021 N 1009/пр)
В помещениях с влажным и мокрым режимами эксплуатации перегородки следует проектировать с металлическим каркасом и обшивкой из ГСП типа H2 или H1 или ГКЛВ, ГСП типа DFH2 или ГКЛВО или ГВЛ типа B, лицевую поверхность которых необходимо защищать гидроизоляционными материалами, водостойкими грунтовками, шпаклевками, водостойкими красками, керамической плиткой или мозаикой.
(в ред.
Изменения N 1, утв. Приказом Минстроя России от 27.12.2021 N 1009/пр)
В помещениях с ненормируемым индексом изоляции воздушного шума перегородки, кроме противопожарных, допускается проектировать без заполнения воздушной полости между обшивками звукоизоляционным материалом.
Область применения перегородок с металлическим и деревянным каркасами в условиях агрессивных воздействий среды должны определять с учетом
СП 28.13330.
7.1.1 Обеспечение устойчивости
7.1.1.1 Высоту перегородок с обшивками из гипсокартонных или гипсоволокнистых листов или гипсовых плит допускается принимать по
таблице 3 или
3а. При применении обшивок другой толщины максимальную высоту перегородок для обеспечения их прочности от воздействия собственного веса следует определять расчетом.
(в ред.
Изменения N 1, утв. Приказом Минстроя России от 27.12.2021 N 1009/пр)
Стойка каркаса | Расстояние между стойками, мм | Максимальная высота, м, перегородок с обшивками из гипсокартонных листов толщиной 12,5 мм или гипсоволокнистых листов толщиной 10,0 (12,5 мм) при применении конструкций по таблице 2 |
1 | 2 | 3 | 4 | 5 | 6 | 7 | 8 |
ПС 50/50 | 600 | 3,0 | 4,0 | 4,5 | 4,5 | 4,5 | - | - | - |
400 | 4,0 | 5,0 | 5,5 | - | - |
300 | 5,0 | 6,0 | 6,5 | - | - |
ПС 75/50 | 600 | 4,5 | 5,5 | 6,0 | 6,0 | 6,0 | - | - | - |
400 | 6,0 | 6,5 | 7,0 | - | - |
300 | 7,0 | 7,5 | 8,0 | - | - |
ПС 100/50 | 600 | 5,0 | 6,5 | 7,0 | 6,5 | 6,5 | - | - | - |
400 | 6,5 | 7,5 | 8,0 | - | - | - |
300 | 8,0 | 9,0 | 9,5 | - | - | 9,0 |
Деревянный брусок 50 x 60 мм | 600 | - | - | - | - | - | - | 3,1 | 3,1 |
Деревянный брусок 50 x 80 мм | 600 | - | - | - | - | - | - | 4,1 | 4,1 |
Минстроя России от 27.12.2021 N 1009/пр)
Стойка каркаса | Расстояние между стойками, мм | Максимальная высота, м, перегородок с обшивками из гипсовых плит усиленной прочности толщиной 12,5 мм при применении конструкций по таблице 2 |
1 | 2 | 3 | 4 | 5 | 6 | 7 | 8 |
ПС 50/50 | 600 | 3,20 (4,00) | 4,00 (4,75) | 5,20 (7,65) | 2,95 (3,35) | 5,05 (7,20) | - | - | - |
400 | 3,85 (4,00) | 4,00 (5,40) | 6,05 (8,15) | 3,60 (4,00) | - |
300 | 4,00 (4,00) | 4,35 (5,80) | 6,50 (8,45) | 4,00 (4,00) | - |
ПС 75/50 | 600 | 4,00 (4,75) | 5,05 (7,20) | 7,65 (9,85) | 4,00 (4,00) | 7,15 (8,00) | - | - | - |
400 | 4,35 (5,40) | 5,95 (7,85) | 8,35 (10,20) | 4,00 (4,40) | - |
300 | 4,85 (5,80) | 6,50 (8,20) | 8,75 (10,40) | 4,55 (4,95) | - |
ПС 100/50 | 600 | 5,10 (6,55) | 7,15 (9,30) | 9,60 (11,50) | 4,50 (4,95) | 8,00 (8,00) | - | - | - |
400 | 5,95 (7,20) | 8,05 (9,75) | 10,05 (11,85) | 5,40 (5,90) | - | - |
300 | 6,60 (7,70) | 8,55 (10,00) | 10,40 (12,00) | 6,15 (6,65) | - | 9,00 (12,00) |
Деревянный брусок 60 x 60 мм | 600 | - | - | - | - | - | - | 3,1 | 3,1 |
Деревянный брусок 60 x 80 мм | 600 | - | - | - | - | - | - | 4,1 | 4,1 |
Примечание - В скобках указаны значения для плит ГСП типа DFH3IR. |
7.1.1.2 Для обеспечения прочности перегородок при воздействии навесного оборудования необходимо учитывать указания
приложения Е настоящего свода правил.
7.1.1.3 Для обеспечения прочности перегородок при воздействии навесного оборудования необходимо учитывать указания
приложения Ж настоящего свода правил.
Перегородки должны рассчитывать на сочетание вертикальных (собственная масса и навесное оборудование) и горизонтальных (эксплуатационные) нагрузок.
Прочность перегородок и их креплений в сейсмических районах строительства должна быть рассчитана на действие расчетных сейсмических нагрузок из плоскости в соответствии с
СП 14.13330.
Для обеспечения независимости деформации каркаса при расчетном значении прогиба вышележащего перекрытия от 10 до 20 мм в условиях сейсмики и при строительстве с неустоявшимися деформациями рекомендуется использовать подвижное соединение в местах примыкания перегородки к потолку согласно
рисунку 3. Обшивка крепится только к стойкам и нижней направляющей.
(п. 7.1.1.3 в ред.
Изменения N 1, утв. Приказом Минстроя России от 27.12.2021 N 1009/пр)
7.1.2 Обеспечение требуемой звукоизоляции
7.1.2.1 Перегородки с нормируемым по
СП 51.13330 индексом изоляции воздушного шума следует проектировать с заполнением воздушной полости каркаса между обшивками звукоизоляционным материалом.
7.1.2.2 Перегородки с индексом звукоизоляции менее 43 дБ не допускается применять в помещениях с нормируемым уровнем шума.
7.1.2.3 Фактические значения индексов изоляции воздушного шума при принятых конструктивных схемах перегородок и характеристиках применяемых материалов должны определяться путем испытаний в соответствии с
ГОСТ 27296.
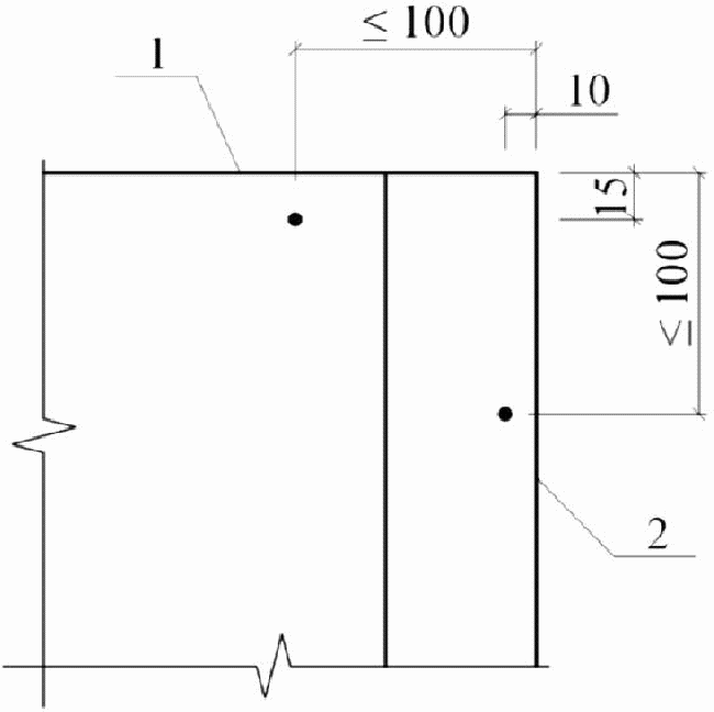
7.1.2.4 В целях повышения звукоизоляции перегородок от воздушного шума следует предусматривать применение уплотнительной ленты между направляющими профилями каркаса, полом и потолком, а также герметизацию этих мест с одной стороны перегородки.
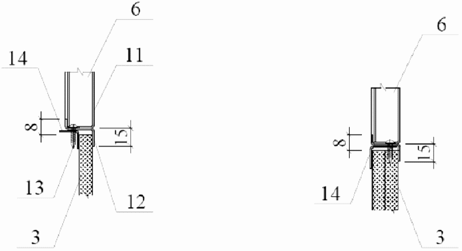
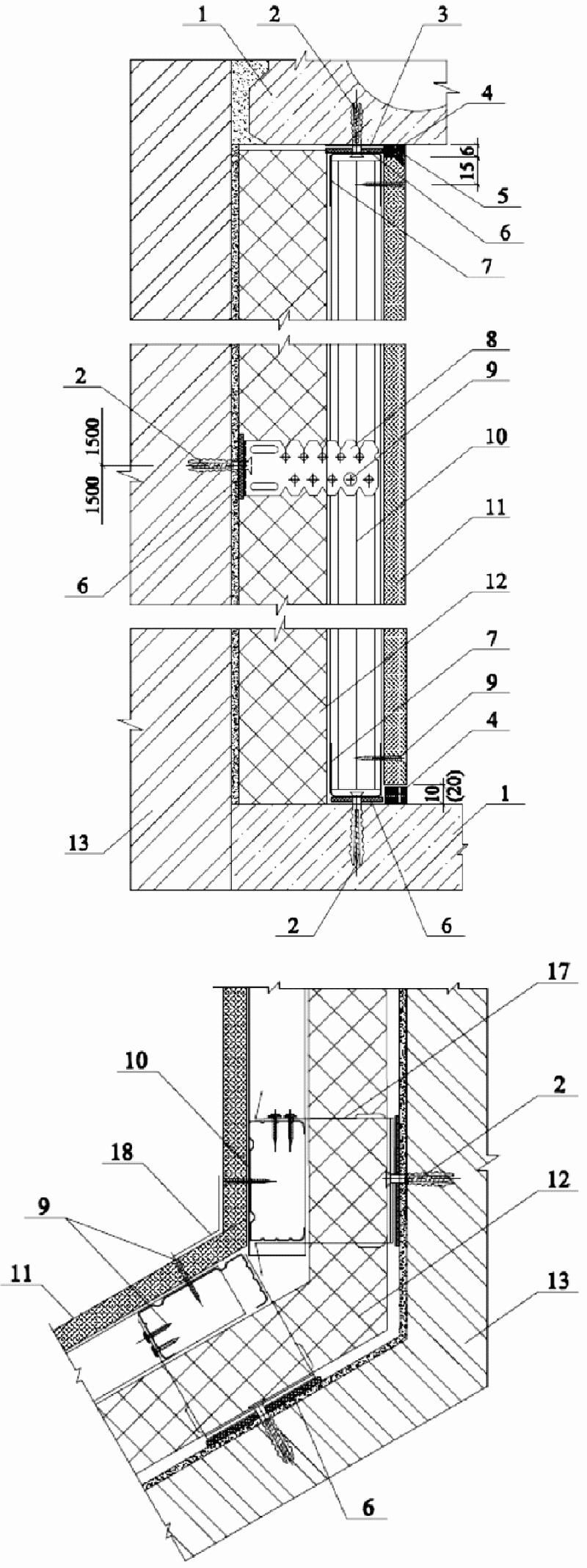
7.1.2.5 Применение уплотнительной ленты следует предусматривать между спаренными стойками металлического каркаса, а также в местах сопряжения каркаса со стенами и металлической дверной коробкой (рисунок 2).
1 - дюбель-гвоздь; 2 - шпаклевка; 3 - ПН-профиль;
4 - самонарезающий винт; 5 - тепло-, звукоизоляционный
материал (например, минераловатный утеплитель); 6 - лист ГКЛ
или ГВЛ или плита ГСП; 7 - ПС-профиль; 8 - уплотнительная лента;
9 - шовный герметик; 10 - армирующая лента с заполнением шва
шпаклевкой; 11 - в местах горизонтального стыка листов
дополнительные ПН или ПС-профили или оцинкованную полосу
0,5 x 80; 12 - междуэтажное перекрытие; 13 - кирпичная
или железобетонная стена; 14 - штукатурка;
15 - разжимной анкер
Минстроя России от 27.12.2021 N 1009/пр)
Рисунок 2 - Места установки уплотнительной ленты
в конструкции перегородок из гипсокартонных
или гипсоволокнистых листов или гипсовых плит
(на примере гипсоволокнистого листа)
Минстроя России от 27.12.2021 N 1009/пр)
7.1.3 Обеспечение требуемого сопротивления теплопередаче и пароизоляции
7.1.3.1 В перегородках, разделяющих отапливаемые и неотапливаемые помещения, должны применять утеплитель, толщину которого определяют расчетом в соответствии с требованиями
СП 50.13330.
7.1.3.2 При необходимости устройства пароизоляционного слоя из пароизоляционной пленки ее размещают под обшивкой перегородки с нахлестом смежных полотен не менее 100 мм.
7.1.4 Обеспечение требуемых пожарно-технических характеристик
7.1.4.1 Предел огнестойкости и класс пожарной опасности перегородок должны соответствовать нормируемым значениям, указанным в
[1] и в сводах правил и иных нормативных документах в области пожарной безопасности, распространяющихся на здания конкретного назначения.
(в ред.
Изменения N 1, утв. Приказом Минстроя России от 27.12.2021 N 1009/пр)
7.1.4.2 Для конструктивных решений перегородок, указанных в
таблице 2, значения пределов огнестойкости представлены в таблицах 4 и
5. Пределы огнестойкости и классы пожарной опасности конструкций согласно
[1] для перегородок всех типов и типоразмеров должны подтверждаться протоколами огневых испытаний или экспертными заключениями испытательных центров, допущенных к данной деятельности в порядке, предусмотренном действующим законодательством, выданными по результатам анализа ранее проведенных испытаний аналогичных конструкций.
(в ред.
Изменения N 1, утв. Приказом Минстроя России от 27.12.2021 N 1009/пр)
Таблица 4
Пределы огнестойкости перегородок из гипсокартонных
листов или гипсовых плит
Минстроя России от 27.12.2021 N 1009/пр)
Конструкция | Характеристика конструкции | Предел огнестойкости, мин |
ГКЛ, ГСП типа A | ГКЛО, ГСП типа DF |
1 | | Одинарный металлический каркас из стальных профилей ПС 75/50 и ПН 75/40 с заполнением негорючими минераловатными плитами на основе базальтового волокна плотностью 37 кг/м3, толщиной 50 мм, обшитый с обеих сторон одним слоем гипсокартонных листов или гипсовых плит толщиной 12,5 мм | EI45 | EI60 |
С заполнением негорючими минераловатными плитами на основе стекловолокна | EI30 | EI30 |
(в ред. Изменения N 1, утв. Приказом Минстроя России от 27.12.2021 N 1009/пр) |
2 | | Одинарный металлический каркас из стальных профилей ПС 75/50 и ПН 75/40 с заполнением негорючими минераловатными плитами на основе базальтового волокна плотностью 37 кг/м3, толщиной 50 мм, обшитый с обеих сторон двумя слоями гипсокартонных листов или гипсовых плит толщиной 12,5 мм | EI60 | EI90 |
С заполнением негорючими минераловатными плитами на основе стекловолокна | EI60 | EI90 |
(в ред. Изменения N 1, утв. Приказом Минстроя России от 27.12.2021 N 1009/пр) |
3 | | Одинарный металлический каркас из стальных профилей ПС 100/50 и ПН 100/40 с заполнением негорючими минераловатными плитами на основе базальтового волокна плотностью 75 кг/м3, толщиной 80 мм, обшитый с обеих сторон тремя слоями гипсокартонных листов или гипсовых плит огнестойких толщиной 12,5 мм | - | EI240 |
(в ред. Изменения N 1, утв. Приказом Минстроя России от 27.12.2021 N 1009/пр) |
4 | | Двойной металлический каркас из стальных профилей ПС 75/50 и ПН 75/40 с заполнением негорючими минераловатными плитами на основе базальтового волокна плотностью 37 кг/м3, толщиной 50 мм, обшитый с обеих сторон двумя слоями гипсокартонных листов или гипсовых плит толщиной 12,5 мм | EI60 | EI90 |
С заполнением негорючими минераловатными плитами на основе стекловолокна | EI60 | EI90 |
(в ред. Изменения N 1, утв. Приказом Минстроя России от 27.12.2021 N 1009/пр) |
5 | | Двойной разнесенный металлический каркас из стальных профилей ПС 75/50 и ПН 75/40 с заполнением негорючими минераловатными плитами на основе базальтового волокна плотностью 37 кг/м3, толщиной 50 мм, обшитый с обеих сторон двумя слоями гипсокартонных листов или гипсовых плит толщиной 12,5 мм | EI60 | EI90 |
С заполнением негорючими минераловатными плитами на основе стекловолокна | EI60 | EI90 |
(в ред. Изменения N 1, утв. Приказом Минстроя России от 27.12.2021 N 1009/пр) |
6 | | Одинарный деревянный каркас из деревянных брусков 60 x 60 с заполнением негорючими минераловатными плитами на основе базальтового волокна плотностью 37 кг/м3, толщиной 50 мм, обшитый с обеих сторон одним слоем гипсокартонных листов или гипсовых плит толщиной 12,5 мм | EI60 | EI60 |
(в ред. Изменения N 1, утв. Приказом Минстроя России от 27.12.2021 N 1009/пр) |
(в ред.
Изменения N 1, утв. Приказом Минстроя России от 27.12.2021 N 1009/пр)
Таблица 5
Пределы огнестойкости перегородок из гипсоволокнистых листов
Конструкция | Характеристика конструкции | Предел огнестойкости, мин |
1 | | Одинарный металлический каркас из стальных профилей ПС 75/50 и ПН 75/40 с заполнением негорючими минераловатными плитами на основе базальтового волокна плотностью 37 кг/м3, толщиной 50 мм, обшитый с обеих сторон одним слоем гипсоволокнистых листов толщиной 12,5 мм | EI60 |
С заполнением негорючими минераловатными плитами на основе стекловолокна | EI30 |
2 | | Одинарный металлический каркас из стальных профилей ПС 75/50 и ПН 75/40 с заполнением негорючими минераловатными плитами на основе базальтового волокна плотностью 37 кг/м3, толщиной 50 мм, обшитый с обеих сторон двумя слоями гипсоволокнистых листов толщиной 12,5 мм | EI90 |
С заполнением негорючими минераловатными плитами на основе стекловолокна | EI90 |
3 | | Одинарный металлический каркас из стальных профилей ПС 75/50 и ПН 75/40 с заполнением негорючими минераловатными плитами на основе базальтового волокна плотностью 125 кг/м3, толщиной 70 мм, обшитый с обеих сторон двумя слоями гипсоволокнистых листов толщиной 12,5 мм | EI150 |
4 | | Двойной металлический каркас из стальных профилей ПС 75/50 и ПН 75/40 с заполнением негорючими минераловатными плитами на основе базальтового волокна плотностью 37 кг/м3, толщиной 50 мм, обшитый с обеих сторон двумя слоями гипсоволокнистых листов толщиной 12,5 мм | EI90 |
С заполнением негорючими минераловатными плитами на основе стекловолокна | EI90 |
5 | | Двойной разнесенный металлический каркас из стальных профилей ПС 75/50 и ПН 75/40 с заполнением негорючими минераловатными плитами на основе базальтового волокна плотностью 37 кг/м3, толщиной 50 мм, обшитый с обеих сторон двумя слоями гипсоволокнистых листов толщиной 12,5 мм | EI90 |
С заполнением негорючими минераловатными плитами на основе стекловолокна | EI90 |
6 | | Одинарный деревянный каркас из деревянных брусков 50 x 60 с заполнением негорючими минераловатными плитами на основе базальтового волокна плотностью 25 кг/м3, толщиной 50 мм, обшитый с обеих сторон одним слоем гипсоволокнистых листов толщиной 10,0 мм | EI60 |
7 | | Одинарный деревянный каркас из деревянных брусков 50 x 60 с заполнением негорючими минераловатными плитами на основе базальтового волокна плотностью 25 кг/м3, толщиной 50 мм, обшитый с обеих сторон двумя слоями гипсоволокнистых листов толщиной 10,0 мм | EI90 |
7.1.4.3 Класс пожарной опасности перегородок следует определять по результатам испытаний в соответствии с
ГОСТ 30403, проведенных аналогично испытаниям, указанным в
7.1.4.2. Без проведения испытаний могут быть приняты классы пожарной опасности перегородок, выполненных в полном соответствии с требованиями настоящего свода правил, с обшивками из гипсокартонных или гипсоволокнистых листов, прошедших процедуру оценки соответствия требованиям
ГОСТ 6266,
ГОСТ 32614 или
ГОСТ Р 51829.
(п. 7.1.4.3 в ред.
Изменения N 1, утв. Приказом Минстроя России от 27.12.2021 N 1009/пр)
7.1.4.4 Перегородки с металлическим каркасом с пределом огнестойкости не ниже EI15 и EI45 и классом пожарной опасности К0 могут применяться в качестве противопожарных перегородок соответственно 2-го и 1-го типов по
[1].
(в ред.
Изменения N 1, утв. Приказом Минстроя России от 27.12.2021 N 1009/пр)
7.1.4.5 При ожидаемом (расчетном) значении прогиба перекрытий, между которыми расположена перегородка с нормируемым пределом огнестойкости, подвижное соединение ее с вышележащим перекрытием должны выполнять теневыми швами или с замкнутой системой подвесного потолка (рисунок 3).
Скользящее присоединение к потолку
1 - дюбель-гвоздь; 2 - приклейка; 3 - торцевой L-профиль;
4 - полоса из листа ГКЛ или ГВЛ или плиты ГСП;
5 - лента уплотнительная; 6 - ПН-профиль;
7 - самонарезающий винт; 8 - лист ГКЛ
или ГВЛ или плита ГСП; 9 - шовный герметик;
10 - тепло-, звукоизоляционный материал;
11 - дюбель-гвоздь или быстрофиксирующий гвоздь;
12 - конструкция подвесного потолка
Минстроя России от 27.12.2021 N 1009/пр)
Рисунок 3 - Присоединение перегородки с обшивками
из гипсокартонных или гипсоволокнистых листов
или гипсовых плит к потолку
Минстроя России от 27.12.2021 N 1009/пр)
Примечание - При ожидаемом (расчетном) значении прогиба вышележащего перекрытия более 10 мм следует предусматривать скользящее соединение перегородок с потолком.
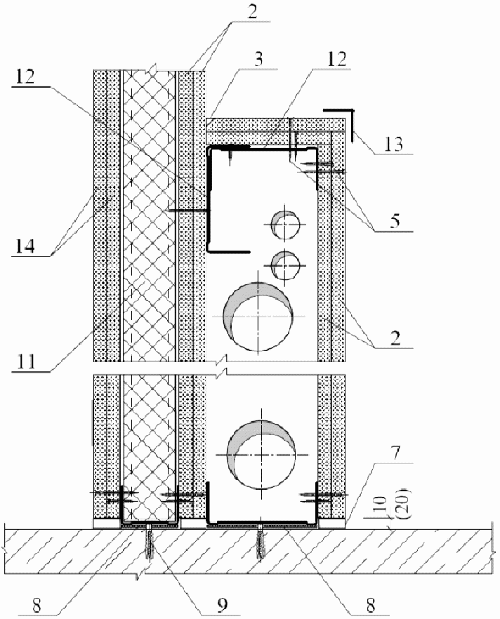
7.1.4.6 При пересечении противопожарной перегородки, нормируемый предел огнестойкости которой более 30 мин, трубопроводами диаметром более 60 мм следует предусматривать изоляцию трубопроводов от плоскости перегородки кожухом с пределом огнестойкости не менее 30 мин (рисунок 4).
а
б
а - при устройстве гильзы; б - при устройстве кожуха
1 - тепло-, звукоизоляционный материал; 2 - трубопровод;
3 - шовный герметик; 4 - ПС-профиль; 5 - ПН-профиль;
6 - лист ГКЛ или ГВЛ или плита ГСП;
7 - самонарезающий винт; 8 - зазор, заполненный негорючим
материалом; 9 - гильза по проекту;
10 - кожух по проекту
Минстроя России от 27.12.2021 N 1009/пр)
Рисунок 4 - Пересечение трубопроводом перегородки
из гипсокартонных или гипсоволокнистых листов
или гипсовых плит
Минстроя России от 27.12.2021 N 1009/пр)
При пересечении перегородок трубопроводом диаметром менее 60 мм установка дополнительного каркаса и устройство кожуха не требуется.
7.1.4.7 При пересечении противопожарных перегородок воздуховодами стенки воздуховодов должны иметь огнезащиту, обеспечивающую предел огнестойкости не менее 30 мин для зданий I и II степеней огнестойкости в соответствии с
СП 60.13330, при этом предел огнестойкости конструктивного решения гильз и кожуха должен, как правило, быть не ниже предела огнестойкости перегородки.
7.1.4.8 Двери и другие заполнения проемов в противопожарных перегородках должны быть сертифицированы на соответствие требованиям
[1].
7.1.5 Конструктивные требования
7.1.5.1 Стойку профиля металлического каркаса допускается при необходимости стыковать по длине методом насадки или встык с применением дополнительного профиля (рисунок 5). При наращивании гофрированных стоечных профилей методом насадки допускается в месте нахлеста не скреплять профили самонарезающими винтами, а применять метод "просечки с отгибом".
(в ред.
Изменения N 1, утв. Приказом Минстроя России от 27.12.2021 N 1009/пр)
а
б
в
а - 2 ПС-профиля соединены в виде коробки; б - 2 ПС-профиля
соединены встык и объединены в виде коробки дополнительным
ПС-профилем; в - 2 ПС-профиля соединены встык и объединены
дополнительным ПН-профилем
1 - ПС-профиль; 2 - самонарезающий винт; 3 - добавочный
ПС-профиль; 4 - просечка; 5 - добавочный ПН-профиль
Рисунок 5 - Стык стоечных профилей металлического каркаса
по длине, выполненный методом насадки и встык
с дополнительным профилем
При стыковании методом насадки длину нахлестки должны принимать не менее 10-кратной ширины стенки высоты сечения стыкуемых профилей, а при применении дополнительного профиля его длина должна быть не менее 20-кратной ширины стенки высоты сечения стыкуемых профилей.
Стыки профилей в стойках каркаса должны быть расположены со взаимным смещением (вразбежку). При этом в одной горизонтальной плоскости не должно быть стыков профилей более чем в 20% стоек.
7.1.5.2 Стыки брусков деревянного каркаса в стойках перегородок следует выполнять с применением стальных накладок.
7.1.5.3 В верхнем и нижнем горизонтальных поясах металлического или деревянного каркаса направляющие профили или бруски допускается соединять встык без нахлестки.
7.1.5.4 Стыки брусков деревянного каркаса перегородок в верхней обвязке должны располагать над стойками, в нижней обвязке - между стойками.
Длина и минимальное количество гвоздей в стыках брусков деревянного каркаса перегородок в верхней обвязке и в стойках, а также в стыках между обвязками и стойками должны быть определены расчетом по
СП 64.13330.
7.1.5.5 Крепление направляющих металлических профилей и деревянных брусков каркасов к полу и потолку, а также стоек, примыкающих к стенам или колоннам, следует предусматривать с помощью дюбелей, располагаемых с шагом не более 1000 мм, из расчета не менее трех креплений на один профиль или брусок. В перегородке с трехслойной обшивкой и слоями оцинкованной стали между слоями обшивки (
схема 6 по таблице 2) шаг крепления направляющих профилей к полу и потолку должен быть не более 500 мм.
7.1.5.6 Стойки металлического каркаса закрепляют к направляющим с помощью просекателя методом "просечки с отгибом" или самонарезающими винтами, а деревянных стоек - гвоздями или шурупами. Соединение гофрированных стоечных и направляющих металлических профилей допускается выполнять без механической фиксации (это относится только к свободностоящим стоечным профилям, а стоечные профили, примыкающие к ограждающим конструкциям или ограждающие дверной проем, должны быть жестко прикреплены к направляющим).
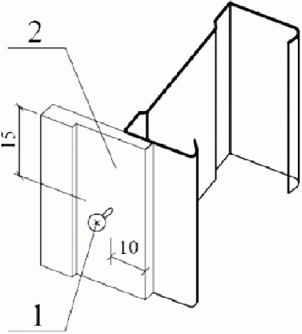
7.1.5.7 В местах пересечения перегородок из гипсокартонных или гипсоволокнистых листов следует предусматривать вставки из металлического профиля ПН или ПС, или деревянных брусков, закрепленных к стойкам каркаса (рисунок 6).
а
б
а - перегородки с металлическим каркасом и вставкой
из металлического профиля; б - перегородки с деревянным
каркасом и вставкой из деревянного профиля
1 - тепло-, звукоизоляционный материал; 2 - самонарезающий
винт; 3 - шовный герметик; 4 - ПС-профиль; 5 - ПН-профиль;
6 - уплотнительная лента; 7 - лист ГКЛ или ГВЛ или плита ГСП;
8 - армирующая лента с последующим шпаклеванием;
9 - деревянный брус
Минстроя России от 27.12.2021 N 1009/пр)
Рисунок 6 - Пересечение перегородок из гипсокартонных
или гипсоволокнистых листов или гипсовых плит
Минстроя России от 27.12.2021 N 1009/пр)
7.1.5.8 При прогибах перекрытия от временных нагрузок более 10 мм для обеспечения независимости деформации каркаса перегородок от перекрытия рекомендуется предусматривать крепление стоек к верхним направляющим методом просечки с отгибом или со скользящей верхней направляющей.
(в ред.
Изменения N 1, утв. Приказом Минстроя России от 27.12.2021 N 1009/пр)
7.1.5.9 В местах деформационных швов зданий и перегородках длиной более 15 м необходимо предусматривать устройство температурных (деформационных) швов (рисунок 7), располагаемых на расстояниях не более 15 м друг от друга и от края перегородки.
(в ред.
Изменения N 1, утв. Приказом Минстроя России от 27.12.2021 N 1009/пр)
Вариант 1
Вариант 2
1 - тепло-, звукоизоляционный материал; 2 - самонарезающий винт;
3 - лист ГКЛ или ГВЛ или плита ГСП; 4 - торцевой L-профиль;
5 - армирующая лента с заполнением шва шпаклевкой;
6 - ПС-профиль; 7 - ПН-профиль; 8 - сжимаемый утеплитель
Минстроя России от 27.12.2021 N 1009/пр)
Рисунок 7 - Варианты температурно-деформационных швов
в перегородках из гипсокартонных
или гипсоволокнистых листов или гипсовых плит
Минстроя России от 27.12.2021 N 1009/пр)
7.1.5.10 В местах сопряжения перегородок с коммуникационными трассами следует предусматривать установку между стойками каркаса обрамляющих элементов из профилей ПН и ПС с закреплением их к стойкам (рисунок 8).
1 - технологические трубопроводы, воздуховоды d > 60 мм
(кроме трубопроводов водоснабжения, парового и водяного
отопления); 2 - технологические трубопроводы, включая
электротехническую трубную разводку d < 60 мм;
3 - воздуховоды; 4 - трубопроводы водоснабжения, парового
и водяного отопления; 5 - ревизионный люк; 6 - стык ГКЛ
или ГВЛ или плит ГСП; 7 - ПС-профиль; 8 - ПН-профиль;
9 - дополнительный ПС-профиль
Минстроя России от 27.12.2021 N 1009/пр)
Рисунок 8 - Схема размещения трубопроводов
7.1.5.11 В местах пропуска трубопроводов через обшивку из гипсокартонных или гипсоволокнистых листов или гипсовых плит следует предусматривать закрепление их через шайбы с упругими прокладками и обязательную герметизацию мест сопряжения трубопровода с обшивкой из гипсокартонных или гипсоволокнистых листов или гипсовых плит.
(в ред.
Изменения N 1, утв. Приказом Минстроя России от 27.12.2021 N 1009/пр)
7.1.5.12 Листы ГКЛ или ГВЛ или плиту ГСП следует крепить к каркасу самонарезающими винтами, располагаемыми с шагом не более 250 мм вразбежку на смежных листах. Винты должны отстоять от края оклеенного картоном листа или гипсоволокнистого листа или плиты ГСП на расстоянии не менее 10 мм и не менее 15 мм от обрезанного листа. При этом винты в двух смежных вертикальных рядах (при креплении двух листов на одной стойке) должны быть смещены по вертикали не менее чем на 10 мм. В двухслойной обшивке при креплении листов или плит первого (внутреннего) слоя шаг винтов допускается увеличивать в два раза. В конструкциях перегородок с трехслойной обшивкой шаг винтов составляет не более: 750 мм - для первого слоя, 500 мм - для второго слоя, 250 мм - для третьего слоя. В трехслойных обшивках листы третьего слоя крепят самонарезающими винтами к листам второго слоя.
(в ред.
Изменения N 1, утв. Приказом Минстроя России от 27.12.2021 N 1009/пр)
Самонарезающие винты должны входить в гипсокартонный или гипсоволокнистый лист или гипсовую плиту под прямым углом и проникать через полку профиля стального каркаса на глубину не менее 10 мм, а в деревянный брусок каркаса - не менее 20 мм.
(в ред.
Изменения N 1, утв. Приказом Минстроя России от 27.12.2021 N 1009/пр)
7.1.5.13 Стыки гипсокартонных или гипсоволокнистых листов или гипсовых плит с утоненной, полукруглой, круглой или фальцевой кромками выполняют без зазоров, а с прямой кромкой с зазором 5 - 7 мм.
(в ред.
Изменения N 1, утв. Приказом Минстроя России от 27.12.2021 N 1009/пр)
Торцевые (горизонтальные) стыки листов или гипсовых плит должны быть смещены по вертикали не менее чем на 400 мм. При двухслойной обшивке торцевые стыки листов или гипсовых плит первого слоя должны быть также смещены относительно стыков листов или гипсовых плит второго слоя не менее чем на 400 мм.
(в ред.
Изменения N 1, утв. Приказом Минстроя России от 27.12.2021 N 1009/пр)
7.1.5.14 Между обшивкой и потолком следует оставлять зазор не менее 5 мм, а между обшивкой и полом - не менее 10 мм.
7.1.5.15 При облицовке перегородок с обшивками из гипсокартонных или гипсоволокнистых листов или гипсовых плит керамической плиткой шаг стоек каркаса должен быть не более 400 мм, а обшивку следует предусматривать двухслойной.
(в ред.
Изменения N 1, утв. Приказом Минстроя России от 27.12.2021 N 1009/пр)
7.1.5.16 При устройстве каркасно-обшивных перегородок в помещениях, где по условиям эксплуатации регулярно производят мокрую уборку покрытия пола, для предохранения нижней части обшивок перегородки из гипсокартонных или гипсоволокнистых листов или гипсовых плит рекомендуется под нижней направляющей предусматривать полосу из рулонного гидроизоляционного материала, которая должна быть заведена на гипсокартонные или гипсоволокнистые листы или гипсовые плиты на 100 мм.
(в ред.
Изменения N 1, утв. Приказом Минстроя России от 27.12.2021 N 1009/пр)
7.1.5.17 Для защиты наружных углов, образованных ГКЛ или ГВЛ или плитами ГСП, от механических повреждений следует применять стальные угловые профили (рисунок 9). При этом предел огнестойкости узлов сопряжения перегородок должен быть не ниже предела огнестойкости самих конструкции.
(в ред.
Изменения N 1, утв. Приказом Минстроя России от 27.12.2021 N 1009/пр)
а
б
а - угол перегородки из гипсокартонных или гипсоволокнистых
листов или гипсовых плит; б - схема установки ПУ-профиля
на наружный угол перегородки
1 - ПУ-профиль; 2 - самонарезающий винт; 3 - ПС-профиль;
4 - лист ГКЛ или ГВЛ или плита ГСП; 5 - лента уплотнительная;
6 - тепло-, звукоизоляционный материал; 7 - армирующая
лента с заполнением шва; 8 - ПН-профиль
Минстроя России от 27.12.2021 N 1009/пр)
Рисунок 9 - Схема установки угловых профилей
Минстроя России от 27.12.2021 N 1009/пр)
7.1.5.18 В местах сопряжения торцов гипсокартонных или гипсоволокнистых листов или гипсовых плит с поверхностью потолка и стен следует предусматривать применение разделительной ленты
(рисунок 2). Предел огнестойкости узлов сопряжения должен быть не ниже предела огнестойкости сопрягаемой конструкции.
(в ред.
Изменения N 1, утв. Приказом Минстроя России от 27.12.2021 N 1009/пр)
7.1.5.19 В местах установки дверной коробки стойки металлического каркаса перегородки рекомендуется усиливать деревянными брусками для двери массой до 30 кг или дополнительным металлическим профилем толщиной не менее 2 мм при массе двери более 30 кг (рисунок 10).
Вариант 1 - с помощью ПС-профиля; Вариант 2 - с помощью
UA-профиля; Вариант 3 - с помощью деревянных брусков
1 - самонарезающий винт; 2 - лист ГКЛ или ГВЛ или плита ГСП;
3 - тепло-, звукоизоляционный материал; 4 - UA-профиль;
5 - ПС-профиль; 6 - ПН-профиль; 7 - брус
Минстроя России от 27.12.2021 N 1009/пр)
Рисунок 10 - Варианты дверных проемов в перегородках
7.1.5.20 В помещениях складов пищевых продуктов для защиты от грызунов рекомендуется в нижнем уровне перегородки на высоту 500 - 600 мм от уровня пола предусматривать установку стального листа толщиной 0,5 - 0,7 мм, закрепляемого к стойкам каркаса, а также - заполнение пазух минераловатными или стекловатными материалами.
7.1.5.21 Навешивание предметов интерьера (картин, полок и т.п.) на обшивку перегородок из гипсокартонных или гипсоволокнистых листов или гипсовых плит следует предусматривать с помощью крючков, приведенных в таблице 6. При закреплении предмета в нескольких точках минимальное расстояние, мм, между точками крепления не должно превышать значения, кг, соответствующего усилию, приходящемуся на один крепежный элемент.
(в ред.
Изменения N 1, утв. Приказом Минстроя России от 27.12.2021 N 1009/пр)
Схема | Максимальная нагрузка на крючок, кг, при навешивании на обшивку из |
ГКЛ, плита ГСП | ГВЛ |
| 5 | 15 |
| 10 | 25 |
| 15 | 35 |
(в ред.
Изменения N 1, утв. Приказом Минстроя России от 27.12.2021 N 1009/пр)
7.1.5.22 Навесное оборудование (стенные шкафы, полки и т.п.), масса которого составляет от 15 до 40 кг на метр длины перегородки с центром тяжести, удаленным на расстояние не более 30 см от поверхности обшивки, должно закрепляться к обшивке не менее чем в двух точках с помощью пластмассовых или металлических дюбелей, предназначенных для конструкций с воздушной полостью. При этом максимальная нагрузка на дюбель не должна превышать значений, указанных в таблицах 7 и
8.
Таблица 7
Максимальная нагрузка на дюбель при обшивке
из гипсокартонных листов или гипсовых плит
Минстроя России от 27.12.2021 N 1009/пр)
Толщина обшивки, мм | Максимальная нагрузка, кг, при обшивке гипсокартонными листами или гипсовыми плитами на дюбель диаметром, мм |
пластмассовые | металлические |
6 | 8 | 6 | 8 |
12,5 | 20 | 25 | 30 | 30 |
15 | 20 | 25 | 30 | 30 |
18 | 30 | 35 | 40 | 40 |
12,5 x 2 или 24 | 35 | 40 | 50 | 50 |
(в ред.
Изменения N 1, утв. Приказом Минстроя России от 27.12.2021 N 1009/пр)
Таблица 8
Максимальная нагрузка на дюбель при обшивке
из гипсоволокнистых листов
Толщина обшивки, мм | Максимальная нагрузка, кг, при обшивке гипсоволокнистыми листами на дюбель диаметром, мм |
пластмассовые | металлические |
6 | 8 | 6 | 8 |
10,0 | 15 | 20 | 30 | 40 |
12,5 | 20 | 25 | 30 | 50 |
10,0 x 2 | 30 | 35 | 40 | 55 |
12,5 x 2 | 35 | 40 | 50 | 60 |
(в ред.
Изменения N 1, утв. Приказом Минстроя России от 27.12.2021 N 1009/пр)
7.1.5.23 Навесное оборудование массой от 40 до 70 кг на метр длины перегородки с удалением центра тяжести от поверхности обшивки не более 30 см может закрепляться к перегородке при общей толщине слоев обшивки не менее 18 мм.
7.1.5.24 Допустимая масса навесного оборудования высотой более 30 см, закрепляемого в двух и более точках на перегородке дюбелями при консольной нагрузке до 0,4 кН/пог. м (40 кг/пог. м) и до 0,7 кН/пог. м (70 кг/пог. м), в зависимости от глубины и ширины оборудования рекомендуется определять по графикам рисунка 11.
а
б
а - до 0,4 кН/пог. м; б - до 0,7 кН/пог. м
Рисунок 11 - Графики для определения допустимой массы
навесного оборудования высотой более 30 см при консольной
нагрузке на перегородку
7.1.5.25 Крепление тяжелого стационарного навесного оборудования (раковины, электрические щиты, навесные пожарные шкафы) рекомендуется предусматривать через закладные детали в виде полос или профиля ПС с закреплением их к стойкам каркаса.
7.1.5.26 При необходимости выполнения криволинейных (циркульных) форм ограждающих конструкций рекомендуется применять гипсокартонные гнутые из гипсовых плит элементы, предпочтительно двойные. Для изготовления криволинейных форм следует применять гипсокартонные листы или гипсовые плиты шириной 600 мм, при этом минимальный радиус сгибания листа, приведенный в таблице 9, зависит от его толщины и способа сгибания.
(в ред.
Изменения N 1, утв. Приказом Минстроя России от 27.12.2021 N 1009/пр)
Таблица 9
Толщина листа, мм | Радиус сгибания, мм, при изгибе |
сухом | мокром |
8,0 | >= 1250 | >= 350 |
9,5 | >= 2000 | >= 500 |
12,5 | >= 2750 | >= 1000 |
7.1.5.27 Для образования криволинейных поверхностей с радиусом кривизны от 100 до 400 мм на тыльной стороне гипсокартонного листа или гипсовой плиты толщиной 12,5 мм с помощью специального оборудования фрезеруют без повреждения картона лицевой части листа параллельные пазы T- или V-образной формы. Расстояние между пазами зависит от требований предъявляемых к форме листа и толщины фрезы. Уменьшение расстояния между пазами и увеличение толщины фрезы ведет к формированию более плавной линии изгиба (рисунок 12).
(в ред.
Изменения N 1, утв. Приказом Минстроя России от 27.12.2021 N 1009/пр)
1 - шлицы (заполнить шпаклевочной смесью);
2 - ГКЛ или плита ГСП с параллельными пазами;
3 - опора для ГКЛ или плиты ГСП (уголок);
4 - лицевая сторона; 5 - шаблон
Минстроя России от 27.12.2021 N 1009/пр)
Рисунок 12 - Образование криволинейной поверхности радиусом
кривизны от 100 до 400 мм
Облицовка стен гипсокартонными или гипсоволокнистыми листами или гипсовыми плитами предназначена для выравнивания поверхности стен под последующую отделку (окраску, облицовку керамической плиткой и др.), а также для повышения звукоизоляционной, теплоизоляционной или огнезащитной способности стены.
(в ред.
Изменения N 1, утв. Приказом Минстроя России от 27.12.2021 N 1009/пр)
Облицовка стен может быть выполнена в виде каркасной или бескаркасной конструкции (таблица 10). Каркас следует выполнять из металлических профилей или деревянных брусков с последующей обшивкой одним или двумя слоями гипсокартонных или гипсоволокнистых листов или гипсовых плит с одной стороны. Пространство между обшивкой и облицовываемой поверхностью стены может быть заполнено тепло-, звукоизоляционным материалом. В утепленных стенах под обшивкой может располагаться пароизоляционный слой по
7.1.3.2.
(в ред.
Изменения N 1, утв. Приказом Минстроя России от 27.12.2021 N 1009/пр)
Конструкция | Характеристика конструкции | Особенности конструкции |
Бескаркасные облицовки |
| | Один слой гипсокартонных листов или гипсовых плит на клеевом слое. Высота облицовки определяется длиной гипсокартонного листа или гипсовой плиты | Облицовка стены в качестве выравнивающего слоя с последующей отделкой |
(в ред. Изменения N 1, утв. Приказом Минстроя России от 27.12.2021 N 1009/пр) |
| | Один слой гипсокартонных комбинированных панелей на клее. Высота облицовки определяется длиной гипсокартонной комбинированной панели | Облицовка стены в качестве выравнивающего слоя с последующей отделкой для повышения звукоизоляционных и теплоизоляционных свойств облицовываемой стены |
Каркасные облицовки |
| | Металлический каркас, усиленный креплением к облицовываемой стене прямыми подвесами, и обшитый одним слоем гипсокартонных или гипсоволокнистых листов или гипсовых плит с одной стороны. Высота облицовки до 10,0 м | Облицовка стены в качестве выравнивающего слоя с последующей отделкой для повышения звукоизоляционных и теплоизоляционных свойств облицовываемой стены. Пространство стены заполняется теплозвукоизоляционным материалом |
(в ред. Изменения N 1, утв. Приказом Минстроя России от 27.12.2021 N 1009/пр) |
| | Металлический каркас, усиленный креплением к облицовываемой стене прямыми подвесами и обшитый двумя слоями гипсокартонных или гипсоволокнистых листов или гипсовых плит с одной стороны. Высота облицовки до 10,0 м | Облицовка стены в качестве выравнивающего слоя с последующей отделкой для повышения звукоизоляционных и теплоизоляционных свойств облицовываемой стены. Пространство стены заполняется теплозвукоизоляционным материалом |
(в ред. Изменения N 1, утв. Приказом Минстроя России от 27.12.2021 N 1009/пр) |
Каркасные облицовки |
| | Металлический каркас, обшитый одним слоем гипсокартонных или гипсоволокнистых листов или гипсовых плит. Высота облицовки гипсокартонными листами или гипсовыми плитами до 6,9 м; гипсоволокнистыми - до 5,0 м | Облицовка стены в качестве выравнивающего слоя с последующей отделкой для повышения звукоизоляционных и теплоизоляционных свойств облицовываемой стены и возможности прокладки коммуникационных систем. Пространство стены заполняется теплозвукоизоляционным материалом |
| | Металлический каркас, обшитый двумя слоями гипсокартонных или гипсоволокнистых листов или гипсовых плит. Высота облицовки, обшитой гипсокартонными листами или гипсовыми плитами, до 7,2 м; гипсоволокнистыми листами - до 5,5 м |
(в ред. Изменения N 1, утв. Приказом Минстроя России от 27.12.2021 N 1009/пр) |
Каркасные облицовки |
| | Деревянный каркас, обшитый одним слоем гипсокартонных или гипсоволокнистых листов или гипсовых плит. Высота облицовки до 4,1 м | Облицовка стены в качестве выравнивающего слоя с последующей отделкой для повышения звукоизоляционных и теплоизоляционных свойств облицовываемой стены |
| | Деревянный каркас, обшитый двумя слоями гипсокартонных или гипсоволокнистых листов или гипсовых плит. Высота облицовки до 4,1 м |
(в ред. Изменения N 1, утв. Приказом Минстроя России от 27.12.2021 N 1009/пр) |
Бескаркасную облицовку стены на клеевом слое без теплоизоляционного слоя следует выполнять из гипсокартонных листов обычных (ГКЛ), влагостойких (ГКЛВ), огнестойких (ГКЛО) или влагоогнестойких (ГКЛВО), а также гипсокартонных комбинированных панелей (ГКП) или гипсовых плит обычных (ГСП типов A и P), влагостойких (ГСП типа H), огнестойких (ГСП типов F и DF), влагоогнестойких (ГСП типа DFH) и специальных (ГСП типа DFH3IR).
(в ред.
Изменения N 1, утв. Приказом Минстроя России от 27.12.2021 N 1009/пр)
Металлический каркас для облицовки стен рекомендуется выполнять из:
направляющих профилей ПН 50/40 (ПН 75/40, ПН 100/40) и стоечных профилей ПС 50/50 (ПС 75/50, ПС 100/50) - для
конструкции 6 (таблица 10).
Для деревянного каркаса рекомендуется применять деревянный стоечный брус сечением 60(80) x 50 мм и направляющий брус сечением 60 x 40 мм.
В помещениях с влажным режимом эксплуатации (ванные комнаты, санузлы и т.п.) следует предусматривать облицовку стен с каркасом из металлических профилей.
7.2.1 Обеспечение устойчивости
7.2.1.1 Устойчивость облицовок стен при использовании конструкций по
таблице 10 обеспечивается, если сечения элементов каркаса, шаг стоек, толщина листов обшивки и высота облицовок соответствуют значениям, указанным в таблицах 11 и
12. При использовании облицовок с характеристиками, отличающимися от приведенных в таблицах 11 и
12, максимальная высота облицовок стен должна быть определена расчетом.
Таблица 11
Максимальная высота облицовки стены с обшивкой
из гипсокартонных листов или гипсовых плит
Минстроя России от 27.12.2021 N 1009/пр)
| Тип стойки каркаса | Шаг стоек каркаса, мм | Максимальная высота облицовки, м |
1 и 2 | - | - | Определяется длиной гипсокартонного листа, но не более 3 |
(в ред. Изменения N 1, утв. Приказом Минстроя России от 27.12.2021 N 1009/пр) |
3 | ПП 60/27 | 600 | 10 |
400 |
300 |
4 | ПП 60/27 | 600 | 10 |
400 |
300 |
5 | ПС 75/50 | 600 | 4,8 |
400 | 5,7 |
300 | 6,0 |
ПС 100/50 | 600 | 6,0 |
400 | 6,3 |
300 | 6,9 |
6 | ПС 50/50 | 600 | 3,3 |
400 | 3,9 |
300 | 4,5 |
ПС 75/50 | 600 | 4,8 |
400 | 5,7 |
300 | 6,3 |
ПС 100/50 | 600 | 6,0 |
400 | 6,6 |
300 | 7,2 |
7 | 60 x 50 мм | 600 | 3,1 |
80 x 50 мм | 4,1 |
8 | 60 x 50 мм | 600 | 3,1 |
80 x 50 мм | 4,1 |
Таблица 12
Максимальная высота облицовки стены с обшивкой
из гипсоволокнистых листов
| Тип стойки каркаса | Шаг стоек каркаса, мм | Максимальная высота облицовки, м |
3 | ПП 60/27 | 600 | 10 |
400 |
300 |
4 | ПП 60/27 | 600 | 10 |
400 |
300 |
5 | ПС 75/50 | 600 | 3,0 |
400 | 3,5 |
300 | 4,0 |
ПС 100/50 | 600 | 4,0 |
400 | 4,5 |
300 | 5,0 |
6 | ПС 50/50 | 600 | 2,6 |
400 | 3,0 |
300 | 3,3 |
ПС 75/50 | 600 | 3,5 |
400 | 4,0 |
300 | 4,5 |
ПС 100/50 | 600 | 4,25 |
400 | 5,0 |
300 | 5,5 |
7 | 60 x 50 мм | 600 | 3,1 |
80 x 50 мм | 4,1 |
8 | 60 x 50 мм | 600 | 3,1 |
80 x 50 мм | 4,1 |
7.2.2 Обеспечение требуемого сопротивления теплопередаче и пароизоляции
7.2.2.1 При облицовке наружных стен, утепляемых со стороны помещения, а также внутренних стен, разделяющих отапливаемые и неотапливаемые помещения, толщина слоя теплоизоляции должна быть определена расчетом по
СП 50.13330, исходя из сопротивления теплопередаче, требуемого по условиям энергосбережения.
7.2.3 Обеспечение требуемой звукоизоляции облицовываемой стены
7.2.3.1 При облицовке поверхностей внутренних стен с нормируемым значением индекса изоляции воздушного шума расчетное значение индекса должны определять расчетом по
СП 51.13330.
7.2.3.2 При необходимости определения фактических значений индекса изоляции воздушного шума облицованной стены, принятого конструктивного варианта облицовки должны быть проведены испытания по
ГОСТ 27296.
7.2.4 Обеспечение требуемых пожарно-технических характеристик
7.2.4.1 При использовании облицовок в качестве огнезащитного элемента фактический предел огнестойкости таких стен следует определять испытаниями по
ГОСТ 30247.1, а класс пожарной опасности - по
ГОСТ 30403.
7.2.4.2 При выборе конструктивных схем облицовок рекомендуется учитывать, что применение облицовки из гипсоволокнистых листов толщиной 12,5 мм может обеспечивать увеличение предела огнестойкости стены на 15 мин и соответствующее увеличение временной характеристики пожарной опасности.
7.2.5 Конструктивные требования
7.2.5.1 Металлический каркас рекомендуется выполнять из профилей ПН 28/27 в комплекте с профилем ПП 60/27, который рекомендуется прикреплять непосредственно к существующей стене на прямых подвесах, или из комплекта профилей ПН и ПС, который рекомендуется устанавливать с относом от облицовываемой стены (рисунок 13).
(п. 7.2.5.1 в ред.
Изменения N 1, утв. Приказом Минстроя России от 27.12.2021 N 1009/пр)
а
б
а - на прямых подвесах; б - на относе
1 - перекрытие; 2 - дюбель-гвоздь; 3 - лента разделительная;
4 - герметик; 5 - шпаклевка; 6 - уплотнительная лента;
7 - ППН-27x28 - профиль; 8 - прямой подвес;
9 - самонарезающий винт; 10 - ППН-60x27 - профиль;
11 - лист ГКЛ или ГВЛ или гипсовая плита ГСП;
12 - тепло-, звукоизоляционный
материал; 13 - наружная стена; 14 - ПН-профиль;
15 - ПС-профиль; 16 - армирующая лента с последующим
шпаклеванием; 17 - прямой подвес ПЗ-1 (оставшиеся концы
отрезать или отогнуть); 18 - армирующая лента
с заполнением шва
Минстроя России от 27.12.2021 N 1009/пр)
Рисунок 13 - Конструктивное решение
узлов облицовки стен по каркасу
7.2.5.2 Крепление направляющих профилей каркаса к несущим конструкциям осуществляют через уплотнительную ленту или герметик дюбелями с шагом не более 1000 мм, из расчета не менее трех креплений на один профиль.
Высота стоечных профилей должна быть меньше высоты помещения минимум на 10 мм, а в условиях сейсмики - не менее чем на 20 мм.
7.2.5.3 Крепление потолочных профилей к облицовываемой поверхности стены осуществляют прямыми подвесами, которые крепят через уплотнительную ленту дюбелями. Шаг установки подвесов должен быть не более 1500 мм. В целях облегчения выставления в плоскости потолочных профилей рекомендуется устанавливать подвесы с шагом около 900 - 1000 мм. Крайний верхний и крайний нижний подвесы устанавливают на расстоянии не более 150 мм от пола или потолка. На один потолочный профиль должно приходиться не менее трех подвесов.
7.2.5.4 Обшивку каркаса гипсокартонными или гипсоволокнистыми листами или гипсовыми плитами осуществляют аналогично обшивке перегородок. Под обшивкой утепленных стен должен быть расположен пароизоляционный слой, если это предусмотрено проектом или расчетом.
(в ред.
Изменения N 1, утв. Приказом Минстроя России от 27.12.2021 N 1009/пр)
7.2.5.5 В стенках стоечных профилей ПС при необходимости следует предусматривать отверстия для пропуска инженерных коммуникаций.
7.2.5.6 При необходимости повышения тепло- и звукоизоляционных свойств облицовываемой стены с обшивкой из гипсокартонных или гипсоволокнистых листов или гипсовых плит следует размещать тепло-, звукоизоляционные плитные материалы.
(в ред.
Изменения N 1, утв. Приказом Минстроя России от 27.12.2021 N 1009/пр)
7.2.5.7 Вертикальные стыки гипсокартонных или гипсоволокнистых листов или гипсовых плит необходимо располагать на стоечных профилях. При двухслойной обшивке все стыки гипсокартонных или гипсоволокнистых листов или гипсовых плит первого слоя должны быть перекрыты вторым слоем листов обшивки.
(в ред.
Изменения N 1, утв. Приказом Минстроя России от 27.12.2021 N 1009/пр)
7.2.5.8 Узлы сопряжения облицовки стен с оконными и дверными проемами представлены на рисунке 14.
1 - наружная стена; 2 - упругая прокладка; 3 - клей;
4 - дюбель-гвоздь; 5 - лист ГКЛ или ГВЛ или плита ГСП;
6 - самонарезающий винт; 7 - прямой подвес ПЗ-1
(оставшиеся концы отрезать
или отогнуть); 8 - ПП-60x27 - профиль; 9 - тепло-,
звукоизоляционный материал; 10 - ПУ-профиль; 11 - герметик;
12 - шпаклевка; 13 - деревянный брус; 14 - дверная коробка
Минстроя России от 27.12.2021 N 1009/пр)
Рисунок 14 - Примыкания облицовки стен по каркасу на прямых
подвесах к оконным и дверным проемам
7.2.5.9 При облицовке стен керамической плиткой шаг стоек каркаса должен быть не более 400 мм, а обшивку из гипсокартонных или гипсоволокнистых листов или гипсовых плит следует предусматривать двухслойной.
(в ред.
Изменения N 1, утв. Приказом Минстроя России от 27.12.2021 N 1009/пр)
7.2.5.10 При выполнении бескаркасной облицовки закрепляют гипсокартонные листы, или гипсовые плиты или гипсокартонные комбинированные панели к поверхности стены с помощью гипсового клея или шпаклевки.
(в ред.
Изменения N 1, утв. Приказом Минстроя России от 27.12.2021 N 1009/пр)
7.2.5.11 При ровной поверхности стены основания приклейку гипсокартонных листов или гипсовых строительных плит осуществляют с помощью шпаклевочной растворной смеси на гипсовом вяжущем (гипсовой шпаклевки), которую наносят сплошными тонкими полосами по периметру гипсокартонного листа и дополнительно вдоль середины листа
(рисунок 15а).
(п. 7.2.5.11 в ред.
Изменения N 1, утв. Приказом Минстроя России от 27.12.2021 N 1009/пр)
7.2.5.12 При неровности основания до 20 мм листы наклеивают с помощью клеевой растворной смеси на гипсовом вяжущем (гипсового клея), которую мастерком наносят по периметру и по центру гипсокартонных листов или гипсовых строительных плит кучками с интервалом 300 - 350 мм
(рисунок 15б).
(п. 7.2.5.12 в ред.
Изменения N 1, утв. Приказом Минстроя России от 27.12.2021 N 1009/пр)
7.2.5.13 При неровности основания свыше 20 мм для формирования ровной плоскости следует предварительно наклеивать полосы из гипсокартонных листов или гипсовых плит шириной 100 мм с помощью гипсового клея. На приклеенные полосы из гипсокартонных листов или гипсовых плит с помощью тонкого слоя гипсовой шпаклевки крепят основные листы
(рисунок 15в).
(в ред.
Изменения N 1, утв. Приказом Минстроя России от 27.12.2021 N 1009/пр)
а - крепление гипсокартонных листов или гипсовых плит
на ровное основание; б - крепление гипсокартонных листов
или гипсовых плит на основание с неровностью до 20 мм;
в - крепление гипсокартонных листов или гипсовых плит
на основание с неровностью свыше 20 мм
1 - разделительная лента; 2 - шпаклевка; 3 - лист ГКЛ
или ГВЛ или плита ГСП; 4 - герметик; 5 - клей;
6 - полоса ГКЛ или ГВЛ или плита ГСП
Рисунок 15 - Бескаркасная облицовка стен
Минстроя России от 27.12.2021 N 1009/пр)
7.2.5.14 Если наклеивают гипсокартонный лист или гипсовую плиту толщиной 12,5 мм, то по его центру наносится один продольный ряд (полоса) шпаклевки или клея. При толщине листа 9,5 мм - два продольных ряда (полосы), равноудаленных между собой и краями листа.
(в ред.
Изменения N 1, утв. Приказом Минстроя России от 27.12.2021 N 1009/пр)
7.2.5.15 В местах примыкания к оконным и дверным проемам, подоконникам клей должен быть нанесен на всю поверхность гипсокартонного листа или гипсовой плиты.
(в ред.
Изменения N 1, утв. Приказом Минстроя России от 27.12.2021 N 1009/пр)
7.2.5.16 При устройстве каркасной облицовки стены в местах расположения температурных швов в здании, а также при длине облицовки более 15 м следует предусматривать температурные (деформационные) швы (рисунок 16).
1 - наружная стена; 2 - уплотнительная лента; 3 - тепло-,
звукоизоляционный материал; 4 - упругая теплоизоляция;
5 - дюбель-гвоздь; 6 - прямой подвес ПЗ-1 (оставшиеся концы
отрезать или отогнуть); 7 - армирующая лента с заполнением
шва; 8 - полоса ГКЛ или ГВЛ или плиты ГСП; 9 - ПБ1-профиль;
10 - лист ГКЛ или ГВЛ или плита ГСП;
11 - дополнительная стойка ПП-60x27 - профиль;
12 - самонарезающий винт
Минстроя России от 27.12.2021 N 1009/пр)
Рисунок 16 - Устройство температурно-деформационных швов
в облицовке стен
7.2.5.17 При устройстве бескаркасной облицовки стены температурные (деформационные) швы следует устраивать в местах температурных швов зданий.
7.2.5.18 Места сопряжения облицовки стен с инженерно-техническими, санитарно-техническими и электротехническими коммуникациями диаметром более 60 мм следует выполнять в соответствии с требованиями
7.1.4.6.
7.2.5.19 В каркасных облицовках стен крепление навесного оборудования следует выполнять в соответствии с требованиями, приведенными в
7.1.5.21 -
7.1.5.25.
7.2.5.20 В бескаркасных облицовках стен грузы массой более 15 кг крепят к базовой стене с помощью дюбелей и анкеров, выбираемых в зависимости от их несущей способности, массы груза и материала базовой стены
(раздел 6).
7.3 Коммуникационные шахты
7.3.1 Конструктивное решение ограждения коммуникационных шахт, а также мест пропуска трубопроводов аналогично облицовке стен с обшивкой из гипсокартонных или гипсоволокнистых листов или гипсовых плит по металлическому каркасу. Рекомендуемое конструктивное решение обрамления трубопроводов, размещаемых вдоль капитальной стены или перегородки, показано на рисунке 17, а конструктивное решение вертикальных коммуникационных шахт - на
рисунке 18.
(в ред.
Изменения N 1, утв. Приказом Минстроя России от 27.12.2021 N 1009/пр)
а
б
а - размещенных вдоль капитальной стены;
б - вдоль перегородки
1 - стоечный брус; 2 - лист ГКЛ или ГВЛ
влагостойкий или плита ГСП типа A или H;
3 - шпаклевка; 4 - PL-профиль; 5 - самонарезающий винт;
6 - брус; 7 - герметик; 8 - уплотнительная лента;
9 - дюбель-гвоздь; 10 - брус; 11 - тепло-,
звукоизоляционный материал
Минстроя России от 27.12.2021 N 1009/пр)
Рисунок 17 - Конструктивное решение обрамления трубопроводов
а
б
а - у несущей стены; б - у перегородки
1 - трубопровод в теплоизоляционном кожухе; 2 - наружная
стена; 3 - самонарезающий винт; 4 - PL-профиль; 5 - тепло-,
звукоизоляционный материал; 6 - ПС-профиль; 7 - лист ГКЛ
или ГВЛ влагостойкий или плита ГСП типа A или H;
8 - армирующая лента с заполнением
шва; 9 - монтажная плита; 10 - герметик; 11 - элемент
крепления сантехнического оборудования; 12 - разжимной
анкер; 13 - уплотнительная лента
Минстроя России от 27.12.2021 N 1009/пр)
Рисунок 18 - Конструктивные решения ограждения
коммуникационных шахт
7.3.2 В зависимости от требований тепло- и огнезащиты может быть предусмотрена обшивка гипсокартонными или гипсоволокнистыми листами или гипсовыми плитами в один или два слоя при толщине листа 12,5 мм или в один слой при толщине листа 24 мм с применением минераловатной теплоизоляции толщиной от 30 до 80 мм.
(в ред.
Изменения N 1, утв. Приказом Минстроя России от 27.12.2021 N 1009/пр)
7.3.3 Для обеспечения доступа к коммуникациям в ограждении шахты предусматривают ревизионные люки (рисунок 19), конструктивные решения которых должны обеспечивать тепло- и огнезащитные качества не ниже, чем у ограждения в целом.
а)
б)
а - вертикальный разрез; б - горизонтальный разрез
1 - ПС-профиль; 2 - тепло-, звукоизоляционный материал;
3 - лист ГКЛ или ГВЛ или плита ГСП типа A или H;
4 - самонарезающий винт;
5 - армирующая лента с заполнением шва; 6 - смотровой люк;
7 - стойка из ПН-профиля; 8 - уплотнительная лента;
9 - дюбель-гвоздь; 10 - наружная стена; 11 - дверца люка;
12 - рамка люка; 13 - шуруп; 14 - монтажный уголок
Минстроя России от 27.12.2021 N 1009/пр)
Рисунок 19 - Конструктивное решение устройства
ревизионного люка
7.3.4 Не допускается установка электрических коробок в перегородках друг напротив друга. Минимальное допустимое смещение должно составлять не менее 150 мм от края до края блока розеток, выключателей и т.п.
(в ред.
Изменения N 1, утв. Приказом Минстроя России от 27.12.2021 N 1009/пр)
7.3.5 Огнестойкость ограждений коммуникационных шахт, включая места пропуска трубопроводов, должна быть равна по
СП 60.13330 и
[1].
Огнестойкость конструкций ограждений определяют по
ГОСТ 30247.1.
Подвесные потолки включают в себя металлический или деревянный каркас, подвешенный к конструкциям перекрытия или покрытия (базовому потолку) или закрепленный к конструкциям стен (для узких помещений), и обшивку одним или двумя слоями из гипсокартонных или гипсоволокнистых листов или гипсовых плит.
(в ред.
Изменения N 1, утв. Приказом Минстроя России от 27.12.2021 N 1009/пр)
Подвесные потолки предназначены для повышения предела огнестойкости перекрытий и покрытий, улучшения тепло- и звукоизоляции, скрытия электропроводки и других инженерных коммуникаций, а также для декоративной и акустической отделки помещений. Область применения подвесных потолков ограничена областью применения гипсокартонных и гипсоволокнистых листов или гипсовых плит в зданиях.
(в ред.
Изменения N 1, утв. Приказом Минстроя России от 27.12.2021 N 1009/пр)
Деревянный каркас выполняют из антисептированных и антипирированных брусков влажностью не более 12%.
(в ред.
Изменения N 1, утв. Приказом Минстроя России от 27.12.2021 N 1009/пр)
Рекомендуемые для применения конструкции подвесных потолков приведены в таблице 13.
Конструкция | Описание конструкции |
| | Деревянный каркас (одноуровневый) из брусков прямоугольного сечения с закрепленными на нем гипсокартонными или гипсоволокнистыми листами или гипсовыми плитами. Несущие бруски каркаса прикреплены к несущим конструкциям перекрытия с помощью прямых подвесов. Гипсокартонный или гипсоволокнистый лист или гипсовую плиту крепят к несущим брускам при однослойной обшивке и около 24 кг при двухслойной обшивке. Масса 1 м2 составляет около 16 кг |
(в ред. Изменения N 1, утв. Приказом Минстроя России от 27.12.2021 N 1009/пр) |
| | Деревянный каркас (двухуровневый) из брусков прямоугольного сечения с закрепленными на нем гипсокартонными или гипсоволокнистыми листами или гипсовыми плитами. Основные бруски каркаса прикреплены непосредственно к несущим конструкциям перекрытия с помощью прямых подвесов. Несущие бруски, к которым крепят гипсокартонный или гипсоволокнистый лист или гипсовую плиту, и основные расположены в разных уровнях при однослойной обшивке и около 24 кг при двухслойной обшивке. Масса 1 м2 составляет около 16 кг |
(в ред. Изменения N 1, утв. Приказом Минстроя России от 27.12.2021 N 1009/пр) |
| | Металлический каркас (одноуровневый) из потолочного профиля (ПП 60x27) с закрепленными на нем гипсокартонными или гипсоволокнистыми листами или гипсовыми плитами. Несущие профили прикреплены к несущим конструкциям перекрытия с помощью прямых подвесов. Гипсокартонный или гипсоволокнистый лист или гипсовую плиту крепят непосредственно к ним. Масса 1 м2 составляет около 13 кг при однослойной обшивке и около 23 кг при двухслойной обшивке |
(в ред. Изменения N 1, утв. Приказом Минстроя России от 27.12.2021 N 1009/пр) |
| | Металлический каркас (одноуровневый) из потолочного профиля (ПП 60x27) с закрепленными на нем гипсокартонными или гипсоволокнистыми листами или гипсовыми плитами. Основные профили подвешены к несущим конструкциям перекрытия с помощью подвесов. Несущие профили, на которые крепят гипсокартонный или гипсоволокнистый лист или гипсовую плиту, и основные профили расположены в одном уровне. Масса 1 м2 составляет около 13 кг при однослойной обшивке и около 23 кг при двухслойной обшивке |
(в ред. Изменения N 1, утв. Приказом Минстроя России от 27.12.2021 N 1009/пр) |
| | Металлический каркас (двухуровневый) из потолочного профиля (ПП 60x27) с закрепленными на нем гипсокартонными или гипсоволокнистыми листами или гипсовыми плитами. Основные профили подвешены к несущим конструкциям перекрытия с помощью регулируемых подвесов. Несущие профили, на которые крепят гипсокартонный или гипсоволокнистый лист или гипсовую плиту, и основные расположены в разных уровнях. Масса 1 м2 составляет около 13 кг при однослойной обшивке и около 23 кг при двухслойной обшивке |
(в ред. Изменения N 1, утв. Приказом Минстроя России от 27.12.2021 N 1009/пр) |
| | Металлический каркас из стоечных профилей перегородочных систем без крепления к потолочному несущему основанию с закрепленными на нем гипсовыми строительными плитами (гипсоволокнистыми листами) в один или два слоя. Несущие профили, на которые крепят гипсокартонный или гипсоволокнистый лист или гипсовую плиту, крепятся к стенам помещения |
(позиция введена Изменением N 1, утв. Приказом Минстроя России от 27.12.2021 N 1009/пр) |
Примечание - Масса 1 м2 подвесного потолка рассчитана для случая применения гипсокартонных листов или гипсовых плит толщиной 12,5 мм; гипсоволокнистых листов - толщиной 10,0 мм. |
(в ред. Изменения N 1, утв. Приказом Минстроя России от 27.12.2021 N 1009/пр) |
Каркас подвесного потолка следует проектировать преимущественно двухосным с размещением профилей (брусков) в одном (
конструкция 4 по таблице 13) или двух (
конструкции 2 и
5 по таблице 13) уровнях. Одноосный каркас (
конструкции 1 и
3 по таблице 13) рекомендуется применять при небольших площадях потолка. Каркас подвесного потолка на стоечных профилях без крепления к перекрытию (
конструкция 6 по таблице 13) рекомендуется применять в узких помещениях.
(в ред.
Изменения N 1, утв. Приказом Минстроя России от 27.12.2021 N 1009/пр)
В помещениях с влажным режимом эксплуатации (ванные комнаты, санузлы и т.п.) следует предусматривать подвесные потолки с каркасом из металлических профилей.
Длину основного профиля (бруска) в подвесных потолках по
конструкциям 1 и
3 (таблица 13) следует принимать на 10 мм меньше соответствующего размера помещения.
7.4.1 Обеспечение устойчивости
7.4.1.1 Шаг подвесов и основных профилей или брусков для различных конструкций потолков рекомендуется подбирать по таблице 14. При этом нагрузку от собственного веса потолка в зависимости от толщины обшивки допускается определять по графику
рисунка 20.
Таблица 14
Номер конструкции подвесного потолка по таблице 13 | Вид и толщина листов обшивки | Межосевое расстояние основных профилей (брусков), мм | Расстояние между подвесами (дюбелями), мм, для нагрузки, кН/м2 | Максимальное межосевое расстояние несущих профилей (брусков), мм |
P <= 0,15 | 0,15 < P <= 0,30 | 0,30 < P <= 0,50 |
1 | ГКЛ или плита ГСП - 12,5 мм или ГВЛ - 10,0 мм | - | 850 | 750 | 600 | - |
(в ред. Изменения N 1, утв. Приказом Минстроя России от 27.12.2021 N 1009/пр) |
2 | ГКЛ или плита ГСП - 12,5 мм или ГВЛ - 10,0 мм | 500 | 1200 | 950 | 800 | 500 (при поперечном монтаже ГКЛ или плиты ГСП и ГВЛ) |
600 | 1150 | 900 | 750 |
700 | 1050 | 850 | 700 |
800 | 1050 | 800 | - |
900 | 1000 | 800 | - |
1000 | 950 | - | - |
1100 | 900 | - | - |
1200 | 900 | - | - |
(в ред. Изменения N 1, утв. Приказом Минстроя России от 27.12.2021 N 1009/пр) |
3 | ГКЛ или плита ГСП - 12,5 мм или ГВЛ - 10,0 мм | - | 1000 | 1000 | 750 | - |
(в ред. Изменения N 1, утв. Приказом Минстроя России от 27.12.2021 N 1009/пр) |
4 | ГКЛ или плита ГСП - 12,5 мм или ГВЛ - 10,0 мм | 500 | 1200 | 950 | 800 | 500 (при поперечном монтаже ГКЛ или плиты ГСП и ГВЛ) |
600 | 1150 | 900 | 750 |
700 | 1100 | 850 | 700 |
800 | 1050 | 800 | 700 |
900 | 1000 | 800 | - |
1000 | 950 | 750 | - |
1100 | 900 | 750 | - |
1200 | 900 | - | - |
(в ред. Изменения N 1, утв. Приказом Минстроя России от 27.12.2021 N 1009/пр) |
5 | ГКЛ или плита ГСП - 12,5 мм или ГВЛ - 10,0 мм | 1200 | 1100 | 650 | - | |
1200 | - | - | 650 | 400 (при продольном монтаже ГКЛ или плиты ГСП и ГВЛ) |
(в ред. Изменения N 1, утв. Приказом Минстроя России от 27.12.2021 N 1009/пр) |
а
б
а - конструкция двухуровневого потолка; б - конструкция
одноуровневого потолка;
a - расстояние между подвесами, b - расстояние между
несущими профилями, c - расстояние между основными профилями
1 - тепло-, звукоизоляционный материал; 2 - ППН-1
или ППН-27x28 - профиль; 3 - соединитель профилей
двухуровневый; 4 - лист ГКЛ или ГВЛ или плита ГСП;
5 - ПП-60x27 или ПП-1-2 - профиль; 6 - самонарезающий винт;
7 - ППН-27x27 - профиль; 8 - анкерный подвес АП-2 или АП-1;
9 - ППН-27x28 - профиль (при жестком присоединении потолка);
10 - подвес профилей ПЗ-1 или анкерный подвес АП
Минстроя России от 27.12.2021 N 1009/пр)
Рисунок 20 - Конструкции подвесных потолков
7.4.1.1а Тип стоечных несущих профилей конструкции потолков и максимальную ширину помещения, для системы потолков без крепления к перекрытию рекомендуется подбирать по таблице 14а. При этом нагрузку от собственного веса потолка в зависимости от толщины обшивки допускается определять по графику
рисунка 20.
(п. 7.4.1.1а введен
Изменением N 1, утв. Приказом Минстроя России от 27.12.2021 N 1009/пр)
Таблица 14а
Минстроя России от 27.12.2021 N 1009/пр)
Номер конструкции подвесного потолка по таблице 13 | Вид и толщина листов обшивки | Тип стоечного профиля ПС | Максимальная ширина помещения | Расстояние между точками крепления основных профилей к ограждающим конструкциям a, мм | Межосевое расстояние несущих профилей b, мм |
Варианты использования профиля | из ГСП, ГКЛ или ГВЛ в стоечные профили | из кирпича, бетона и т.п. |
Одинарный | Спаренный |
1 | ГСП или ГКЛ - 12,5 мм или ГВЛ - 10,0 мм | ПС50 | 2,5 | 3,0 | 600 (400) (300) | 300 | 500 (поперечный монтаж ГСП, ГКЛ и ГВЛ) |
ПС75 | 3,25 | 3,75 |
ПС100 | 3,75 | 4,25 |
2 | ГСП или ГКЛ - 12,5 мм или ГВЛ - 10,0 мм | ПС50 | 2,25 | 2,5 |
ПС75 | 2,75 | 3,25 |
ПС100 | 3,25 | 3,75 |
7.4.1.2 Шаг несущих профилей или брусков каркаса рекомендуется принимать равным 500 мм при поперечном размещении гипсокартонных или гипсоволокнистых листов или гипсовых плит и 400 мм при продольном размещении их относительно несущих профилей или брусков каркаса.
(в ред.
Изменения N 1, утв. Приказом Минстроя России от 27.12.2021 N 1009/пр)
7.4.1.3 В подвесных потолках расстояние между крайним основным бруском деревянного каркаса или крайним основным профилем металлического каркаса и стеной должно быть не более 150 мм в потолках с двухуровневым каркасом, а при одноуровневом металлическом каркасе - не более 1170 мм, что соответствует ширине гипсокартонного или гипсоволокнистого листа или гипсовой плиты с прямыми кромками
(рисунок 20). Расстояние между крайним несущим бруском деревянного каркаса или крайним несущим профилем металлического каркаса и стеной должно быть не более 100 мм.
Расстояние между крайним подвесом основного бруска или профиля металлического каркаса и стеной должно быть не более 250 мм в потолках с двухуровневым каркасом, а при одноуровневом металлическом каркасе - не более 900 мм.
(п. 7.4.1.3 в ред.
Изменения N 1, утв. Приказом Минстроя России от 27.12.2021 N 1009/пр)
7.4.2 Обеспечение требуемого сопротивления теплопередаче и звукоизоляционной способности
7.4.2.1 Требуемые значения теплотехнических характеристик и показателей звукоизоляции конструкций перекрытий и покрытий с подвесными потолками обеспечивают аналогично приведенным в
7.2.2 для облицовок стен. При этом изоляционный материал следует выбирать с учетом ограничений, установленных в
7.4.3.7 и
7.4.4.1.
7.4.3 Обеспечение требуемых пожарно-технических характеристик
7.4.3.1 Предел огнестойкости подвесного потолка не нормируют, но при необходимости определяют по
ГОСТ Р 53298.
Класс пожарной опасности подвесного потолка по
ГОСТ 30403 должен быть не ниже требуемого для конструкции, к которой его крепят. При этом время теплового воздействия на образец подвесного потолка определяется временем его обрушения.
7.4.3.2 Класс пожарной опасности подвесного потолка с металлическим каркасом и негорючим теплоизоляционным материалом можно без испытаний принимать К0, с деревянным каркасом - К3.
7.4.3.3 Для повышения предела огнестойкости или снижения пожарной опасности перекрытий и покрытий следует применять подвесные потолки с пределом огнестойкости не менее EI15 при классе пожарной опасности К0.
7.4.3.4 Предел огнестойкости и класс пожарной опасности перекрытий и покрытий с подвесными потолками следует определять как для единой конструкции по
ГОСТ 30247.1 и
ГОСТ 30403 соответственно.
7.4.3.5 В зданиях, кроме зданий класса конструктивной пожарной опасности С3, на путях эвакуации, а также в помещениях класса функциональной пожарной опасности Ф1.1 и в помещениях других классов, предназначенных для одновременного пребывания более 50 чел., класс пожарной опасности подвесных потолков должен быть К0. При этом применяемые в них гипсокартонные или гипсоволокнистые листы или гипсовые плиты должны пройти процедуру оценки соответствия требованиям
ГОСТ 6266 или
ГОСТ 32614 и
ГОСТ Р 51829.
(в ред.
Изменения N 1, утв. Приказом Минстроя России от 27.12.2021 N 1009/пр)
7.4.3.6 В потолках для повышения огнестойкости перекрытий и покрытий рекомендуется применять каркас из металлических профилей.
(п. 7.4.3.6 в ред.
Изменения N 1, утв. Приказом Минстроя России от 27.12.2021 N 1009/пр)
7.4.3.7 В качестве тепло-, звукоизолирующего материала в подвесных потолках рекомендуется использовать негорючие минераловатные или стекловатные плиты толщиной не менее 40 мм, размещаемые в один или два слоя.
7.4.3.8 В надпотолочном пространстве не допускается прокладывать коммуникации из сгораемых материалов.
7.4.4 Конструктивные решения
7.4.4.1 Для обеспечения возможности профилактического осмотра надпотолочного пространства в период эксплуатации в конструкции подвесного потолка следует предусматривать смотровые ревизионные люки огнестойкостью не ниже огнестойкости подвесного потолка (рисунок 21).
а - общий вид подвесного потолка со смотровым ревизионным
люком; б - разрез подвесного потолка со смотровым
ревизионным люком (на примере подвесного потолка
1 - одноуровневый соединитель профилей "КРАБ"; 2 - ПП -
основной профиль; 3 - лист ГКЛ или ГВЛ или плита ГСП;
4 - самонарезающий винт; 5 - рамка люка;
6 - шпаклевка; 7 - поворотный шарнир;
8 - ПП-профиль дополнительный; 9 - рукоятка; 10 - затвор
Минстроя России от 27.12.2021 N 1009/пр)
Рисунок 21 - Конструкции смотрового ревизионного люка
подвесного потолка
7.4.4.2 Стыковать торцевые кромки гипсокартонных или гипсоволокнистых листов или гипсовых плит следует только на несущих профилях каркаса. Стыки гипсоволокнистых листов с фальцевой кромкой выполняют без зазоров, а с прямой кромкой - с зазором 5 - 7 мм.
(в ред.
Изменения N 1, утв. Приказом Минстроя России от 27.12.2021 N 1009/пр)
Торцевые стыки должны быть смещены относительно друг друга не менее чем на 400 мм. При двухслойной обшивке торцевые стыки листов первого слоя должны быть смещены относительно стыков листов второго слоя не менее чем на 400 мм.
7.4.4.3 Гипсокартонные и гипсоволокнистые листы или гипсовые плиты в подвесных потолках рекомендуется располагать поперек несущих профилей каркаса.
(в ред.
Изменения N 1, утв. Приказом Минстроя России от 27.12.2021 N 1009/пр)
Продольное размещение гипсокартонных и гипсоволокнистых листов или гипсовых плит относительно несущих профилей требует уменьшение шага последних и, следовательно, большего числа профилей.
(в ред.
Изменения N 1, утв. Приказом Минстроя России от 27.12.2021 N 1009/пр)
7.4.4.4 Гипсокартонные и гипсоволокнистые листы или гипсовые плиты следует крепить к каркасу с помощью самонарезающих винтов. Шаг винтов рекомендуется принимать по таблице 15.
(в ред.
Изменения N 1, утв. Приказом Минстроя России от 27.12.2021 N 1009/пр)
Таблица 15
Обшивка | Шаг установки самонарезающих винтов, мм, в зависимости от толщины гипсокартонных и гипсоволокнистых листов или гипсовых плит, мм |
10 | 12,5 |
Одинарная | 150 | 170 |
Двойная: | | |
первый слой | 450 | 500 |
второй слой | 150 | 200 |
(в ред.
Изменения N 1, утв. Приказом Минстроя России от 27.12.2021 N 1009/пр)
7.4.4.5 Все швы лицевого слоя рекомендуется выполнять с применением армирующей ленты
[10]. В двухслойной обшивке швы первого слоя допускается шпаклевать без армирующей ленты.
7.4.4.6 В процессе эксплуатации помещений с подвесными потолками возникает необходимость крепления различного навесного оборудования или предметов интерьера.
Масса грузов, подвешиваемых непосредственно на гипсокартонные или гипсоволокнистые листы или гипсовые плиты с помощью крючков или специальных дюбелей (рисунок 22), не должна быть более 6 кг на ширину листа и метр его длины. Расстояние между точками крепления должно быть не менее 75 мм. При этом толщина гипсокартонных листов или гипсовых плит должна быть не менее 12,5 мм, а гипсоволокнистых листов - 10,0 мм.
(в ред.
Изменения N 1, утв. Приказом Минстроя России от 27.12.2021 N 1009/пр)
а
б
в
г
а - дюбель мультифункциональный; б - дюбель для пустотелых
конструкций; в и г - анкер проходной
Рисунок 22 - Схемы крючков и специальных дюбелей
для крепления навесного оборудования на подвесной потолок
7.4.4.7 Для закрепления к обшивке подвесного потолка осветительных приборов, масса которых не превышает 6 кг на метр длины листа, рекомендуется применять металлические или пластмассовые разжимные дюбели и проходные анкеры. В условиях возможного повышения влажности указанные грузы рекомендуется крепить к каркасу подвесного потолка.
7.4.4.8 При передаче нагрузки от навесного оборудования на каркас подвесного потолка необходимо предусматривать дополнительные основные профили с креплением к несущей конструкции потолка.
Массивное (более 25 кг) оборудование (потолочные кондиционеры, предметы интерьера, акустические системы и т.д.) необходимо крепить к несущим конструкциям потолка с помощью самостоятельных конструкций.
7.4.4.9 Криволинейные поверхности подвесных потолков, места оформления ступенчатого примыкания потолка к стенам и образование ниш для размещения светильников рекомендуется выполнять с применением специальных гипсокартонных или из гипсовых плит элементов заводского изготовления или изготовленных в построечных условиях (рисунок 23).
(в ред.
Изменения N 1, утв. Приказом Минстроя России от 27.12.2021 N 1009/пр)
а
б
в
а - пример вогнутого цилиндрического свода, выполненного
гнутыми профилями; б - пример облицовки потолочной балки
(радиус кривизны от 100 до 400 мм); в - пример выполнения
разноуровневого потолка
1 - спица; 2 - анкерный подвес; 3 - ПП - несущий профиль;
4 - двухуровневый соединитель профилей;
5 - лист ГКЛ или ГВЛ или плита ГСП
2x90° V-выреза; 6 - изогнутые листы ГКЛД; 7 - стыки,
проклеенные клеем; 8 - самонарезающий винт; 9 - ПП -
основной профиль; 10 - тепло-, звукоизоляционный материал;
11 - основание потолка; 12 - прямой подвес (оставшиеся концы
отрезают или отгибают); 13 - быстрофиксирующий гвоздь;
14 - уплотнительная лента; 15 - ПП-профиль;
16 - ППН-профиль; 17 - шпаклевка; 18 - армирующая лента
с заполнением шва; 19 - лист ГКЛ или ГВЛ
или плита ГСП 1x90° V-вырез;
20 - лист ГКЛ или ГВЛ или плита ГСП;
21 - балка; 22 - одноуровневый
соединитель профилей "КРАБ"; 23 - оцинкованная стальная
полоса по дуге изгиба по стыку листов
Минстроя России от 27.12.2021 N 1009/пр)
Рисунок 23 - Конструкции подвесного потолка с криволинейным
или ломаным очертанием
7.5 Огнезащитные облицовки строительных конструкций гипсоволокнистыми листами
7.5.1 Огнезащитные облицовки строительных конструкций из гипсоволокнистых листов применяют при необходимости повышения предела огнестойкости и уменьшения пожарной опасности металлических и деревянных балок, прогонов, колонн.
7.5.2 Огнезащиту несущих конструкций гипсоволокнистыми листами применяют в жилых, общественных и производственных зданиях всех степеней огнестойкости, классов конструктивной и функциональной пожарной опасности, возводимых в любых регионах страны, вне зависимости от инженерно-геологических условий строительства, в том числе в сейсмических районах при соблюдении нормативных требований.
(в ред.
Изменения N 1, утв. Приказом Минстроя России от 27.12.2021 N 1009/пр)
7.5.4 Облицовка из гипсоволокнистых листов не является антикоррозионной защитой металлоконструкций. Антикоррозионную защиту металлоконструкций выполняют перед устройством облицовки в соответствии с
СП 28.13330.
7.5.5 Для огнезащитной обшивки металлических и деревянных несущих конструкций (колонн и балок) рекомендуется применять листы ГВЛ или ГВЛ типа В.
(в ред.
Изменения N 1, утв. Приказом Минстроя России от 27.12.2021 N 1009/пр)
7.5.6 Огнезащитную облицовку деревянных стоек и балок следует осуществлять гипсоволокнистыми листами в один, два или три слоя в зависимости от требуемого предела огнестойкости и класса пожарной опасности защищаемой строительной конструкции.
(в ред.
Изменения N 1, утв. Приказом Минстроя России от 27.12.2021 N 1009/пр)
7.5.7 Каркасную огнезащитную облицовку металлических колонн и балок следует монтировать на стальных оцинкованных профилях с толщиной металла не менее 0,6 мм: огнезащитную облицовку стальных элементов с открытым сечением профиля (двутавр, швеллер и т.д.) следует выполнять на каркасе из профилей ПП 60/27 с креплением к защищаемому стальному элементу с помощью специальных зажимов (клипс); каркасную огнезащитную облицовку стальных элементов с закрытым сечением профиля (квадратная или круглая труба и т.д.) следует выполнять на каркасе из профилей ПС и ПН без крепления каркаса к защищаемой конструкции. Бескаркасную огнезащитную облицовку следует закрепить к несущим горизонтальным ограждающим конструкциям (перекрытие, покрытие) посредством стального оцинкованного углового профиля с размерами сечения не менее 50 x 30 x 0,6 мм.
(п. 7.5.7 в ред.
Изменения N 1, утв. Приказом Минстроя России от 27.12.2021 N 1009/пр)
7.5.8 При применении металлических профилей их рекомендуется закреплять анкерными элементами к перекрытию и с помощью зажимов к нижней полке балки, а гипсоволокнистые листы - к металлическим профилям самонарезающими винтами. При этом шаг зажимов не должен превышать 750 мм, а шаг саморезов не должен превышать 150 мм.
(в ред.
Изменения N 1, утв. Приказом Минстроя России от 27.12.2021 N 1009/пр)
7.5.9 При облицовке металлических балок вкладыши из гипсоволокнистых листов шириной 150 мм следует размещать с шагом до 600 мм вдоль стенки и до 750 мм вдоль полки балки. Для крепления гипсоволокнистых листов обшивки к вкладышам и между собой рекомендуется применять скобы, устанавливаемые с шагом 50 мм.
7.5.10 При применении металлических профилей их рекомендуется закреплять к полкам колонн с помощью зажимов, располагаемых с шагом не более 1000 мм, а обшивку из гипсоволокнистых листов - к профилям самонарезающими винтами с шагом не более 150 мм.
(в ред.
Изменения N 1, утв. Приказом Минстроя России от 27.12.2021 N 1009/пр)
7.5.11 При обшивке колонн двутаврового, прямоугольного или круглого сечения без применения металлических профилей гипсоволокнистые листы между собой закрепляют стальными скобами, устанавливаемыми с шагом до 100 мм.
7.5.12 Для достижения требуемого предела огнестойкости металлических колонн и балок при проектировании общую толщину обшивки из гипсоволокнистых листов ориентировочно принимают по таблице 16, в зависимости от соотношения P/F или

.
(в ред.
Изменения N 1, утв. Приказом Минстроя России от 27.12.2021 N 1009/пр)
Таблица 16
Функция P/F или
для различных схем огнезащиты
Схема огнезащиты | Число сторон защиты | ( P/ F)·10 2 или  , см -1 |
| 4 | |
| 3 | |
| 4 | |
| 4 | |
Фактические значения предела огнестойкости и класса пожарной опасности конструкций с огнезащитными облицовками из гипсоволокнистых листов должны быть определены по
ГОСТ 30247.1 и
ГОСТ 30403.
7.5.13 Толщину стенок замкнутого сечения колонны определяют по следующей формуле

,
где F - площадь сечения колонны или балки, мм2;
P - периметр огнезащитной облицовки, мм;

- толщина стенок замкнутого сечения колонны, мм.
7.5.14 Огнезащитную эффективность стальных конструкций в соответствии с
ГОСТ Р 53295 подразделяют на семь групп: 1 - не менее 150 мин; 2 - не менее 120 мин; 3 - не менее 90 мин; 4 - не менее 60 мин; 5 - не менее 45 мин; 6 - не менее 30 мин; 7 - не менее 15 мин.
7.5.15 Огнезащитную эффективность обшивки из гипсоволокнистых листов толщиной 12,5 или 15 мм, применяемой для огнезащиты стальных колонн двутаврового сечения профиля N 20, определяют по
ГОСТ Р 53295. Число слоев облицовки выбирают в зависимости от требуемой группы огнезащитной эффективности по таблице 17.
(в ред.
Изменения N 1, утв. Приказом Минстроя России от 27.12.2021 N 1009/пр)
Таблица 17
Минстроя России от 27.12.2021 N 1009/пр)
Строительная конструкция | Вид облицовки | Толщина обшивки огнезащитной облицовки, мм | Группа огнезащитной эффективности |
7 | 6 | 5 | 3 - 4 | 2 | 1 |
Время огневого воздействия, мин |
15 | 30 | 45 | 90 | 120 | 150 |
Колонна двутаврового сечения профиля N 20 | Бескаркасная | 3 x 15 (45) | + | + | + | + | + | + |
Каркасная | 4 x 12,5 (50) | + | + | + | + | + | + |
3 x 12,5 (37,5) | + | + | + | + | + | |
2 x 12,5 (25) | + | + | + | + | | |
1 x 12,5 (12,5) | + | + | + | | | |
7.5.16 Бескаркасная облицовка колонн представляет собой одно- или многослойную, не примыкающую к металлической конструкции, обшивку с опорой по несущим основаниям пола и потолка (рисунок 24).
Горизонтальный разрез
Вертикальные разрезы
1 - металлическая колонна, двутавр; 2 - самонарезающий винт;
3 - ПУ-профиль; 4 - листы обшивки; 5 - дюбель-гвоздь
Рисунок 24 - Схема бескаркасной огнезащитной облицовки
стальной колонны с трехслойной обшивкой
Преимущество бескаркасного способа - возможность выровнять с помощью обшивки неровные и невертикальные колонны за счет технологического зазора между обшивкой и конструкцией.
7.5.17 Каркасная облицовка колонн представляет собой одно- или многослойную обшивку на каркасе, выполненном из профилей ПП 60/27. Крепление профилей каркаса к металлической конструкции осуществляют с помощью специальных зажимов (клипс) для профилей ПП 60/27 с шагом не более 1000 мм.
Преимущество каркасного способа - возможность монтажа обшивки из листов толщиной менее 15 мм (10 или 12,5 мм) (рисунок 25).
Горизонтальный разрез
Вертикальный разрез
1 - металлическая колонна, двутавр; 2 - самонарезающий винт;
3 - ПУ-профиль; 4 - листы обшивки
Рисунок 25 - Схема каркасной огнезащитной облицовки стальной
колонны с двухслойной обшивкой
7.5.18 Огнезащитную облицовку деревянных стоек и балок следует осуществлять ГВЛ в один, два или три слоя в зависимости от требуемой степени огнестойкости и класса пожарной опасности защищаемой строительной конструкции (рисунок 26).
а и в - деревянные балки; б - колонна
1 - балка; 2 - лист ГВЛ; 3 - колонна;
4 - разделительная лента; 5 - скобы
Минстроя России от 27.12.2021 N 1009/пр)
Рисунок 26 - Общий вид конструктивного решения огнезащиты
7.6 Облицовка мансардных помещений гипсоволокнистыми листами
7.6.1 Облицовка гипсоволокнистыми листами обеспечивает высокую степень пожаробезопасности, простоту и надежность конструкции, легкость монтажа, многовариантность архитектурных и технических решений, идеально ровную поверхность помещений, готовую для любого декоративного покрытия, при небольших трудозатратах.
(в ред.
Изменения N 1, утв. Приказом Минстроя России от 27.12.2021 N 1009/пр)
7.6.2 Основной элемент облицовки мансардных помещений - гипсоволокнистый лист, который крепят к деревянному или металлическому каркасу, прикрепленному к несущим конструкциям перекрытия или покрытия (таблица 18).
Таблица 18
Эскиз конструкции | Описание конструкции |
1 | | Облицовка мансардных помещений выполнена с помощью каркаса (обрешетки) из деревянных брусков, закрепленных на стропилах непосредственно ( вариант а на рисунке 21) или с помощью прямых подвесов ( вариант б на рисунке 21) и обшитых одним слоем гипсоволокнистых листов. Шаг стропильных балок в зависимости от сечения брусков каркаса и толщины листа обшивки определяют по таблице 19, а расстояние между деревянными брусками каркаса - по таблице 20 |
2 | | Облицовка мансардных помещений выполнена с помощью каркаса (обрешетки) из деревянных брусков, закрепленных на стропилах непосредственно ( вариант а на рисунке 21) или с помощью прямых подвесов ( вариант б на рисунке 21) и обшитых двумя слоями гипсоволокнистых листов. Шаг стропильных балок в зависимости от сечения брусков каркаса и толщины листа обшивки определяют по таблице 19, а расстояние между деревянными брусками каркаса - по таблице 20 |
3 | | Облицовка мансардных помещений выполнена с помощью каркаса из ПП - профилей, закрепленных к стропилам с помощью прямых подвесов и обшитых одним слоем гипсоволокнистых листов. Вертикальная (стеновая) часть каркаса может быть выполнена из стоечных профилей ПС 50/50 и направляющих профилей ПН 50/40. Шаг стропильных балок в зависимости от толщины листа обшивки определяют по таблице 19, а расстояние между профилями каркаса - по таблице 20 |
4 | | Облицовка мансардных помещений выполнена с помощью каркаса из ПП - профилей, закрепленных к стропилам с помощью прямых подвесов и обшитых двумя слоями гипсоволокнистых листов. Вертикальная (стеновая) часть каркаса может быть выполнена из стоечных профилей ПС 50/50 и направляющих профилей ПН 50/40. Шаг стропильных балок в зависимости от толщины листа обшивки определяют по таблице 19, а расстояние между профилями каркаса - по таблице 20 |
7.6.3 Элементы каркаса облицовки скатов рекомендуется располагать горизонтально и крепить их к стропильным конструкциям. Элементы каркаса облицовки потолка рекомендуется располагать параллельно элементам каркаса облицовки ската и крепить их к горизонтальным опорным элементам (балкам потолка), которые могут быть выполнены из пиломатериалов или из потолочного профиля и должны быть прикреплены к стропильным конструкциям.
7.6.4 Крепление каркаса облицовки потолка и скатов к балкам потолка и стропильным конструкциям рекомендуется осуществлять с применением прямых подвесов (рисунок 27).
Вариант А - непосредственное закрепление деревянных брусков
каркаса (обрешетки) к несущим стропильным балкам; вариант
Б - закрепление деревянных брусков каркаса (обрешетки)
к несущим стропильным балкам с помощью прямых подвесов;
вариант В - закрепление ПП-профилей каркаса к несущим
стропильным балкам с помощью прямых подвесов
Рисунок 27 - Варианты закрепления брусков (профилей)
каркаса к несущим стропильным балкам
7.6.5 Рекомендуемые сечения элементов каркаса облицовок потолка в зависимости от собственной массы обшивок, расположенного на них утеплителя (при отапливаемых мансардах) и от шага стропил (расстояний между точками крепления подвесов) указаны в таблице 19. Эти значения допускается применять только при условии, что полностью исключен доступ в пространство над потолком или предусмотрен настил по верху балок потолка. Стропильные конструкции в последнем случае должны быть рассчитаны с учетом временной нормативной равномерно распределенной нагрузки на настил, которую в соответствии с
СП 20.13330 принимают не менее 0,7 кН/м
2.
Таблица 19
Максимальный шаг несущих стропильных балок
Элемент каркаса | Максимальный шаг стропил (максимальное расстояние между точками крепления подвесов), мм, при нагрузке P, кН/м2, от собственной массы обшивки и утеплителя |
P <= 0,15 | 0,15 < P <= 0,3 | P <= 0,5 |
Деревянный брусок 48 x 24 мм | 700 | 600 | 500 |
Деревянный брусок 50 x 30 мм | 850 | 750 | 600 |
Деревянный брусок 60 x 40 мм | 1000 | 850 | 700 |
Профиль ПП 60/27 | 1000 | 1000 | 750 |
В случаях, когда указанные выше условия не соблюдены, конструкцию и размещение каркаса облицовок должны определять расчетом.
7.6.6 При обшивке каркаса гипсоволокнистые листы могут располагаться как в продольном, так и в поперечном направлениях по отношению к брускам (профилям) каркаса. Максимальное расстояние между брусками (профилями) каркаса в зависимости от направления расположения листов обшивки по отношению к элементам каркаса приведено в таблице 20.
Таблица 20
Максимальное расстояние между брусками (профилями) каркаса
Толщина обшивки, мм | Расстояние между брусками (профилями) каркаса, b, мм, при расположении листов |
поперечном | продольном |
10,0 | 375 | |
12,5; 2 x 10,0; 2 x 12,5 | 500 |
<*> Для гипсоволокнистых листов размерами 1200 x 1200 x 10,0 (12,5) мм. |
7.6.7 При креплении гипсоволокнистых листов к потолку и скатам мансарды шаг винтов принимают не более 150 мм, а на вертикальной части облицовки - не более 250 мм. При двухслойной обшивке второй слой гипсоволокнистых листов следует располагать со смещением относительно стыков первого слоя.
7.6.8 В целях обеспечения нормируемой звукоизоляции и огнестойкости рекомендуется выполнять двухслойную обшивку каркаса гипсоволокнистыми листами толщиной 12,5 мм.
7.6.9 Для повышения огнестойкости покрытия и перекрытия, а также повышения звуко- и теплоизоляции в полости каркаса следует размещать изоляционный материал. В таблице 21 приведены значения огнестойкости облицовок мансардных помещений из гипсоволокнистых листов.
Таблица 21
Предел огнестойкости конструкции облицовок мансард
Область применения | Эскиз | Предел огнестойкости, мин |
Покрытие | | RE 75 Класс пожарной опасности К0(45) при толщине двух листов по 12,5 мм каждый |
Перекрытие | | REI 75 Класс пожарной опасности К0(45) при толщине двух листов по 12,5 мм каждый |
7.7 Сборные основания под покрытия полов из гипсоволокнистых листов
7.7.1 Сборные основания под покрытия полов из гипсоволокнистых листов устраивают в жилых, общественных, административно-бытовых и производственных зданиях с сухим, нормальным и влажным режимами эксплуатации по
СП 50.13330 при умеренной и слабой интенсивности механических воздействий на полы по
СП 29.13330. Рекомендуемые области применения сборных оснований под покрытия пола из гипсоволокнистых листов в зданиях различного назначения приведены в
приложении Д.
7.7.2 В качестве основания под покрытия пола используют сборную стяжку, изготовленную из листов ГВЛ типа В по
ГОСТ Р 51829 общей толщиной 20 мм или повышенной прочности ГВЛ типа П общей толщиной 18 мм, монтируемую:
- из двух отдельных гипсоволокнистых листов размерами 1200 x 1200 x 10 (12,5) мм;
- готовых элементов стяжки (производственная марка "элемент пола"), выполненных из двух влагостойких гипсоволокнистых листов размерами 1200 x 600 x 10 мм, склеенных между собой в заводских условиях со смещением относительно друг друга на 50 мм, из цельнофрезерованного листа ГВЛ тип ВП толщиной 18 мм. Требования к готовым элементам пола приведены в
[2],
[3].
(п. 7.7.2 в ред.
Изменения N 1, утв. Приказом Минстроя России от 27.12.2021 N 1009/пр)
7.7.3 Сборные основания под покрытие пола из гипсоволокнистых листов устраивают для создания ровной поверхности под покрытие. Применение гипсоволокнистых листов способствует созданию водонепроницаемой прокладки между покрытием пола и теплоизолирующим слоем в конструкции перекрытия, улучшению его звукоизоляционных характеристик и предела огнестойкости.
7.7.4 Сборные стяжки из гипсоволокнистых листов под покрытие пола выполняют по перекрытию из монолитного железобетона, сплошных железобетонных плит толщиной 140, 160, 180 и 200 мм и многопустотных железобетонных плит толщиной 220 мм, а также на грунте по черновым деревянным полам на лагах.
7.7.5 В перекрытиях, несущая часть которых выполнена из железобетонных плит, сборные основания под покрытие пола рекомендуется применять при наличии выравнивающего теплоизоляционного слоя из керамзитовой засыпки специально подобранного гранулометрического состава, кварцевого или дробленого
(ГОСТ 8736) песка из природного камня (гранит, сиенит) крупно- или среднезернистого с частицами размером 0,15 - 10 мм и влажностью не более 1%, обеспечивающего его безусадочность. Если толщина выравнивающего слоя не превышает 60 мм, следует предусматривать сборное основание из элементов пола заводской готовности
(6.2.10) или из двух слоев листов, склеиваемых в построечных условиях.
7.7.6 Сборное основание пола рекомендуется устраивать не менее чем из двух слоев ГВЛВ под покрытие из штучного или щитового паркета, паркетной доски, ламината, линолеума, керамической плитки, а также под синтетические ковровые покрытия.
7.7.7 В местах примыкания пола к стенам следует предусматривать зазор, равный 8 - 10 мм, заполняемый демпфирующей и звукоизоляционной прокладкой, в качестве которой рекомендуется использовать кромочную ленту из вспененного полиэтилена, отвечающую следующим пожарно-техническим требованиям: группа горючести Г2 - по
ГОСТ 30244, группа воспламеняемости В2 - по
ГОСТ 30402, группа дымообразующей способности Д3 - по
ГОСТ 12.1.044. Возможно также использование в качестве прокладки мягких древесно-волокнистых или минераловатных плит.
7.7.8 При необходимости по железобетонной плите перекрытия может быть предусмотрена пароизоляция, в качестве которой рекомендуется использовать полиэтиленовую пленку толщиной 0,1 - 0,2 мм по
ГОСТ 10354, а также пароизоляционные мембраны, битумно-полимерные рулонные материалы или мастики.
7.7.9 В помещениях со средней и большой интенсивностью воздействия жидкостей на покрытие пола перед укладкой плитки стыки стяжки со стенами следует герметизировать самоклеющейся гидроизоляционной лентой, и поверхность покрывать гидроизоляционной мастикой или укладывать слой рулонного гидроизоляционного материала.
7.7.10 При устройстве по сборным стяжкам из ГВЛ типа В покрытий из штучного паркета, учитывая склонность паркетных планок к набуханию или усыханию при изменении температурно-влажностного режима (прежде всего в осенний и весенний периоды), приводящих к возникновению напряжений как в покрытии, так и в нижележащих слоях пола и, как следствие, к короблению паркета, рекомендуется увеличивать толщину стяжки до 30 - 32 мм за счет укладки по ней дополнительного слоя из гипсоволокнистых листов по клеевому слою и крепления их со стяжкой винтами длиной 30 мм с шагом не менее 300 мм. Целесообразно также дополнительно применять эластичные клеевые мастики под паркетные покрытия или устраивать между паркетным покрытием и сборной стяжкой разделительный слой из эластичных материалов (в частности, из рулонного материала на основе полиэстерного волокна).
(в ред.
Изменения N 1, утв. Приказом Минстроя России от 27.12.2021 N 1009/пр)
7.7.11 При устройстве по сборным стяжкам из ГВЛ типа В покрытий из линолеума, поливинилхлоридных плиток, ковров из синтетических волокон и ламината, учитывая, что указанные типы покрытий полов предъявляют повышенные требования к ровности подстилающих слоев, стыки элементов сборной стяжки и места установки шурупов должны быть заделаны шпаклевкой, а на поверхности сборной стяжки под поливинилхлоридный многослойный и однослойный линолеум без подосновы следует выполнять выравнивающий слой толщиной не менее 2 мм из высокопрочной (предел прочности на сжатие не менее 22 МПа) гипсовой самовыравнивающейся смеси.
(в ред.
Изменения N 1, утв. Приказом Минстроя России от 27.12.2021 N 1009/пр)
(справочное)
ГНУТЫЕ ПРОФИЛИ МЕТАЛЛИЧЕСКОГО КАРКАСА
Таблица А.1
Профили металлические тонкостенные
оцинкованные негофрированные [4]
Минстроя России от 27.12.2021 N 1009/пр)
Тип профиля | Марка профиля | Сечение | Ширина, мм | Толщина стенок профиля, мм | Масса 1 м длины, кг | Область применения |
Стоечный | ПС 50/50 | | 50 | 0,57 - 0,8 | 0,64 | Стойки каркаса перегородок и облицовки стен, потолки |
ПС 75/50 | 75 | 0,75 |
ПС 100/50 | 100 | 0,86 |
Направляющий | ПН 50/40 | | 50 | 0,54 | Направляющие профили каркаса перегородок и облицовки стен и потолков |
ПН 75/40 | 75 | 0,64 |
ПН 100/40 | 100 | 0,75 |
Потолочный | ПП 60/27 | | 60 | 0,52 | Каркас подвесных потолков и облицовки стен |
Потолочный направляющий | ПН 28/27 | | 28 | 0,34 | Направляющий профиль каркаса подвесных потолков и облицовки стен |
Потолочный арочный | ПА 60/27 с радиусом гибки не менее 500 мм | | 60 | 0,52 | Каркас криволинейных потолков, конструкций арок и сводов |
Усиленный потолочный профиль | UA 50/40/2,0 | | 50 | 1,94 - 2,06 | 1,74 | Для формирования усиленного каркаса подвесных потолков, облицовок, перегородок |
75 | 2,01 |
100 | 2,39 |
Угловой | ПУ 31/31 | | | 0,4 | 0,129 | Защита наружных углов перегородок и облицовок стен |
MW-профиль | MW 75/50 MW 100/50 | | 75 | 0,6 | 1,1 | Стойки каркаса звукоизоляционных перегородок |
100 | 1,2 |
Примечания 1 В марках профилей первое число обозначает ширину профиля, второе - высоту. 2 Профили могут иметь дополнительное полимерное покрытие, наносимое поверх металлического цинкового. |
Таблица А.2
Профили металлические тонкостенные оцинкованные
Тип профиля | Марка профиля | Сечение | Ширина, мм | Толщина стенок профиля, мм | Длина, мм | Масса 1 м длины, кг | Область применения |
Стоечный | ПС 42/40 | | 42 | 0,50 - 0,80 | 3000; | 0,55 | Стойки каркаса перегородок и облицовки стен |
ПС 50/50 | 50 | 0,58 |
ПС 66/40 | 66 | 0,64 |
ПС 75/40 | 75 | 0,68 |
ПС 100/50 | 100 | 0,78 |
Направляющий | ПН 42/37 | | 42 | 0,50 - 0,80 | | 0,46 | Направляющие профили каркаса перегородок и облицовки стен |
ПН 50/37 | 50 | 0,49 |
ПН 66/37 | 66 | 0,55 |
ПН 75/37 | 75 | 0,58 |
ПН 100/37 | 100 | 0,68 |
Потолочный | ПП 60/27 | | 60 | 0,50 - 0,80 | 3000; | 0,49 | Каркас подвесных потолков и облицовки стен |
Потолочный направляющий | ПН 28/27 | | 28 | 0,50 - 0,80 | | 0,32 | Направляющий профиль каркаса подвесных потолков и облицовки стен |
<*> По согласованию с потребителем допускается изготовление профилей другой длины, но не более 6000 мм и не менее 500 мм. |
(справочное)
СОЕДИНИТЕЛЬНЫЕ ДЕТАЛИ И ПОДВЕСЫ
Таблица Б.1
Минстроя России от 27.12.2021 N 1009/пр)
Общий вид | Наименование, основные характеристики | Назначение |
| Прямой подвес [6] из оцинкованной стали толщиной 0,9 мм. Несущая способность - 40 кгс. Для деревянных брусков - габаритные размеры: 50 x 30 x 125 мм. Для профиля ПП 60/27 - габаритные размеры: 60 x 30 x 120 (200) мм | Крепление деревянных брусков (потолочного профиля ПП 60/27) каркаса при облицовке стен, мансард и при устройстве подвесных потолков |
| Подвес прямой со звукоизоляционной вставкой для крепления профилей ПП 60 x 27 к несущему основанию. Габаритные размеры: 60 x 30 x 120 (200) мм | Применяется в звукоизоляционных системах для амортизации и снятия вибрации в конструкциях |
| Анкерный подвес с зажимом [7] из оцинкованной стали толщиной 0,8 мм. Зажим подвеса изготавливается из пружинистой стали. Несущая способность - 25 кгс. Габаритные размеры: 80 x 58 мм | Крепление потолочного профиля ПП 60/27. Применяют в паре с тягой подвеса |
| Комбинированный подвес [7] из оцинкованной стали толщиной 1,0 мм. Габаритные размеры: 95 x 58 мм. Несущая способность с тягой - 25 кгс. Несущая способность с верхней частью нониус-подвеса - 40 кгс | Крепление профилей ПП 60/27. Крепление подвеса выполняют двумя способами: тягами или верхней частью нониус-подвеса с двумя фиксаторами |
| Диаметр прутка - 4 мм. Длина - 125; 250; 375; 500; 750; 1000; 1250; 1500 мм | Применяют для соединения анкерного подвеса с зажимом или комбинированного подвеса с несущим перекрытием. Закрепляют с помощью петли на базовом перекрытии |
| Удлинитель для нониус-подвесов [7] из оцинкованной стали толщиной 1,0 мм. Габаритные размеры: 1500 - 3000 x 12 x 8 мм | Для удлинения нониус-подвесов |
| Нониус-подвес (нижняя часть) [7] из оцинкованной стали толщиной 1,0 мм. Длина 128 мм. Несущая способность с верхней частью - 40 кгс | Крепление профилей ПП 60/27 к нижней части проводится шурупами LN. Крепление нижней части подвеса к верхней части или удлинителю проводится двумя скобами или одним шплинтом |
| Нониус-хомут (нижняя часть) [7] из оцинкованной стали толщиной 1,0 мм. Габаритные размеры: 140 x 60 мм. Несущая способность с верхней частью - 40 кгс | Крепление профилей ПП 60/27 и профилей UA 50/40 проводится преимущественно без использования LN. Крепление нижней части подвеса к верхней части или удлинителю проводится двумя скобами или одним шплинтом |
| Нониус-хомут (нижняя часть) [7] из оцинкованной стали толщиной 1,0 мм. Габаритные размеры: 140 x 50 мм | Для крепления профилей UA 50/40 в системе П116 |
| Верхняя часть нониус-подвеса [7] с фиксатором из оцинкованной стали толщиной 1,0 мм. Длина от 200 до 1000 мм | Применяют в паре с нониус-подвесом (нониус-подвесом или комбинированным подвесом). Закрепление к несущему основанию соответствующим крепежом, закрепление к нижней части или соединителю нониус шплинтом или двумя скобами |
| Скоба для нониуса [7] из оцинкованной стали толщиной 2,8 мм. Габаритные размеры: 65 x 26 мм | Применяют с нониус-подвесами по две скобы на крепление |
| Односторонний соединитель [8] из оцинкованной стали толщиной 0,9 мм. Габаритные размеры: 78 x 58 мм | Для двухуровневого крепления профилей ПП 60/27 |
| Поворотный соединитель [8] из оцинкованной стали толщиной 0,9 мм. Габаритные размеры: 79 x 58 мм | Для двухуровневого крепления профилей ПП 60/27 с возможностью поворота профилей относительно друг друга |
| Соединитель двухуровневый для соединения профиля UA 50 и ПП 60/27 из оцинкованной стали толщиной 0,9 мм | Соединитель для крепления потолочного профиля ПП 60/27, используемого в качестве несущего, под усиленным профилем UA 50, используемым в качестве основного, в системе потолка П116 |
| Соединитель двухуровневый [8] из оцинкованной стали толщиной 0,9 мм. Габаритные размеры: 58 x 45 мм | Для крепления потолочных профилей ПП 60/27, расположенных в разных уровнях и во взаимно перпендикулярных направлениях |
| Соединитель одноуровневый [9] из оцинкованной стали толщиной 0,9 мм, обладающей пружинистыми свойствами. Габаритные размеры: 148 x 56 x 20 мм | Для крепления потолочных профилей ПП 60/27, расположенных в одном уровне и во взаимно перпендикулярных направлениях |
| Универсальный соединитель [9] из оцинкованной стали толщиной 0,9 мм. Габаритные размеры: 215 x 9 x 53 мм | Применяют с профилем ПП 60/27 для широкого спектра задач, таких как применение в качестве подвеса, удлинителя и одноуровневого соединения потолочных профилей под разными углами |
| Соединитель Мульти [9] для ПП 60/27 из оцинкованной стали толщиной 0,9 мм. Длина 100 мм | Соединитель профилей ПП 60/27 с возможностью соединения профилей под углом друг к другу при использовании адаптеров |
| Адаптер 30-280 для соединителя Мульти для ПП 60/27 из оцинкованной стали толщиной 0,9 мм. Длина 95 мм | Специальный элемент для закрепления двух соединителей мульти для удлинения потолочных профилей под углом друг к другу |
| Соединитель для профилей ПП 60/27 [9] из оцинкованной стали толщиной 0,6 мм, обладающей пружинистыми свойствами. Габаритные размеры: 110 x 58 x 25 мм | Для соединения (наращивания) потолочных профилей ПП 60/27 |
| Соединительный уголок для UA-профилей [9] из оцинкованной стали толщиной 2,0 мм. Габаритные размеры: 100 x 100 x 67 мм и 100 x 100 x 93 мм | Для соединения (наращивания) потолочных профилей UA-профилей |
(справочное)
ДЮБЕЛИ И АНКЕРНЫЕ ДЮБЕЛИ
[9]
Таблица В.1
Минстроя России от 27.12.2021 N 1009/пр)
Наименование | Общий вид | Назначение и размеры |
Раскрывающийся анкер для пустотелых конструкций | | Для крепления профилей и навесного оборудования к пустотелым конструкциям. Диаметр: 8 - 14 мм, длина: 23 - 80 мм |
Анкер с пластиковым дюбелем | | Для крепления профилей и навесного оборудования к пустотелым конструкциям. Диаметр: 6 - 14 мм, длина: 35 - 75 мм |
| Крепление направляющих профилей и подвесов к несущим конструкциям. Диаметр: 6 - 8 мм; длина: 35 - 120 мм |
Анкер с металлическим дюбелем | | Крепление направляющих профилей и подвесов к несущим конструкциям. Диаметр: 6 мм, длина: 39 - 80 мм |
| Для крепления деревянных брусков к несущему основанию. Диаметр: от 6 мм; длина: от 90 мм |
Анкерный дюбель пластиковый | | Для крепления профилей и навесного оборудования к конструкциям стен сплошного сечения. Диаметр: 6 - 14 мм; длина: 35 - 80 мм |
| Для крепления навесного оборудования к гипсокартонным и гипсоволокнистым листам или гипсовым плитам |
Анкер для пустотелых конструкций | | Для навешивания различных предметов на пустотелые конструкции с обшивками из ГКЛ, ГСП или ГВЛ. Изготовлен из металла и пластикового элемента с винтом (М 5 x 60). Нагрузка: для стен на металлическом или деревянном каркасе - до 65 кг на дюбель; для подвесных потолков - до 6 кг на дюбель и до 6 кг на 1 пог. м пролета |
Раскрывающийся анкер с пластиковым дюбелем для пустотелых конструкций | | Предназначен для крепления в пустотелых конструкциях, например с обшивками из гипсовых строительных плит (гипсовых строительных плит (гипсокартонных листов)) и навешивания предметов |
Дюбель | | Для крепления профилей к строительному основанию с помощью строительного монтажного пистолета. Примечание - При строительстве в сейсмических районах крепление перегородок к несущим элементам пристрелкой дюбелями не допускается. |
(справочное)
ЛИСТЫ ГКЛА И ГВЛП
Приложение Г исключено с 28.01.2022. -
Изменение N 1, утв. Приказом Минстроя России от 27.12.2021 N 1009/пр.
(рекомендуемое)
ОБЛАСТЬ ПРИМЕНЕНИЯ СБОРНЫХ ОСНОВАНИЙ ПОД ПОКРЫТИЯ ПОЛОВ
ИЗ ГИПСОВОЛОКНИСТЫХ ЛИСТОВ В ЗДАНИЯХ РАЗЛИЧНОГО НАЗНАЧЕНИЯ
Конструкции полов со сборными основаниями из гипсоволокнистых листов под покрытие полов применяют:
в жилых зданиях: перекрытия между помещениями разных квартир и помещениями внутри одной квартиры; перекрытия между помещениями квартир, чердачными и подвальными помещениями, а также холлами; перекрытия между жилыми комнатами общежитий, а также перекрытия, отделяющие помещения культурно-бытового обслуживания общежитий друг от друга и от помещений общего пользования (холлы, вестибюли, коридоры);
в гостиницах: перекрытия между номерами; перекрытия, отделяющие номера от помещений общего пользования (вестибюли, холлы, буфеты);
в зданиях управлений общественных организаций: перекрытия между рабочими комнатами, кабинетами, секретариатами и отделяющие эти помещения от помещений общего пользования (вестибюли, холлы); перекрытия, отделяющие рабочие комнаты, кабинеты от рабочих, не защищаемых от шума помещений (машбюро, телетайпные залы и т.п.);
в больницах и санаториях: перекрытия между палатами, кабинетами врачей; перекрытия, отделяющие палаты, кабинеты врачей от помещений общего пользования (вестибюли, холлы);
в школах и других учебных заведениях: перекрытия между классными помещениями, учебными кабинетами и аудиториями и отделяющие эти помещения от помещений общего пользования (коридоры, вестибюли, холлы);
в детских яслях-садах: перекрытия между групповыми комнатами, спальнями и другими детскими комнатами; перекрытия, отделяющие групповые комнаты, спальни от кухонь;
во вспомогательных зданиях и помещениях промышленных предприятий: перекрытия между помещениями для отдыха, учебных занятий, здравпунктами, рабочими комнатами управлений и конструкторских бюро, кабинетами, помещениями общественных организаций и отделяющие эти помещения от помещений общего пользования (вестибюли, гардеробные); перекрытия между помещениями лабораторий, красных уголков, залами для собраний, столовыми;
в торговых залах и предприятиях общественного питания;
в зданиях культурно-просветительных и зрелищных учреждений.
(рекомендуемое)
МОНТАЖ КОНСТРУКЦИЙ ИЗ ГИПСОКАРТОННЫХ
И ГИПСОВОЛОКНИСТЫХ ЛИСТОВ ИЛИ ГИПСОВЫХ ПЛИТ
Минстроя России от 27.12.2021 N 1009/пр)
Е.1 Монтаж каркасно-обшивных перегородок
Е.1.1 Монтаж перегородок следует выполнять в период отделочных работ (в зимнее время при подключенном отоплении) до устройства чистых полов, когда все "мокрые" процессы закончены и выполнены разводки электротехнических и сантехнических систем, в условиях сухого и нормального влажностного режима согласно
СП 50.13330. При этом температура в помещении не должна быть ниже 10 °C.
Е.1.2 Разметку проектного положения перегородки на полу выполняют с помощью шнуроотбойного устройства (разметку проводят согласно проекту). Для быстрой и безошибочной установки перегородок рекомендуется отмечать на полу места расположения стоечных профилей, дверных проемов, толщину и тип гипсокартонных листов. Разметку больших помещений осуществляют с помощью лазерной установки (рисунок Е.1.1).
1
2
1 - разметка положения перегородки на полу; 2 - наклейка
уплотнительной ленты на профиль каркаса
Рисунок Е.1.1
Е.1.3 На направляющие профили ПН и стоечные профили ПС, примыкающие к стенам или друг к другу (при двойном каркасе), наклеивают уплотнительную ленту
[11] (рисунок Е.1.2).
Е.1.4 В соответствии с разметкой устанавливают направляющие профили с закреплением их к полу и потолку с требуемым шагом дюбелями длиной не менее 35 мм, а затем крайние примыкающие к стенам стоечные профили, также закрепляя их дюбелями. После чего по отвесу устанавливают стоечные профили с требуемым шагом и закрепляют их (если это необходимо) в направляющих профилях просекателями или самонарезающими винтами. При этом высота стойки должна быть меньше высоты помещения не менее чем на 10 мм в обычных условиях и не менее чем на 20 мм в условиях сейсмики. Профили стоек, стыкуемые по высоте, должны быть соединены самонарезающими шурупами, число которых с каждой стороны нахлестки должно быть не менее трех (за исключением наращивания гофрированных стоечных профилей методом насадки по
7.1.5.1).
Деревянные стойки устанавливают непосредственно на деревянные горизонтальные направляющие с соответствующим шагом и крепят шурупами или гвоздями.
Стойки каркаса, примыкающие к стенам или колоннам, должны быть закреплены на одну стойку разжимными дюбелями или дюбель-гвоздями с шагом не более 1 м креплений не менее трех.
Е.1.5 Дверные коробки следует устанавливать одновременно с монтажом каркаса перегородок, для чего по обе стороны дверной коробки монтируют опорные стоечные профили или UA-профили (в зависимости от массы дверного полотна), перемычки над проемом и промежуточные стойки. Опорные стоечные профили под дверь массой до 35 кг допускается укреплять вставкой деревянных брусков или дополнительным профилем, соединенным с основным вкладышем из того же профиля. После установки дополнительных профилей устанавливают дверные коробки.
Е.1.6 Для монтажа электротехнической и слаботочной проводки, а также санитарно-технических трубопроводов через отверстия в стенках стоек пропускают слаботочную электрическую разводку. Кабели следует размещать перпендикулярно к стойкам, пропуская их через подготовленные отверстия таким образом, чтобы избежать повреждения острыми краями обрезанной стали каркаса или шурупами во время крепления гипсокартонных или гипсоволокнистых листов или гипсовых плит. Не допускается продольная проводка кабелей внутри стоечных профилей каркаса.
(в ред.
Изменения N 1, утв. Приказом Минстроя России от 27.12.2021 N 1009/пр)
В местах размещения электрических и слаботочных коробок в полости перегородки между обшивками устанавливают экран из гипсокартонных или гипсоволокнистых листов или гипсовых плит размером 600 x 600 мм, закрепляя его к поперечному элементу каркаса самонарезающими винтами (шурупами).
(в ред.
Изменения N 1, утв. Приказом Минстроя России от 27.12.2021 N 1009/пр)
Е.1.7 В местах пересечения перегородок коммуникационными трассами между стойками каркаса следует устанавливать обрамляющие элементы из профилей ПН и ПС с закреплением их к стойкам каркаса.
При необходимости пропуска через перегородку инженерных коммуникаций больших размеров допускается выполнять срезку вертикальных стоек, с установкой по краям отверстия дополнительных стоечных профилей на всю высоту перегородки. В местах пересечения перегородок трубопроводами водоснабжения или парового и водяного отоплений следует устанавливать гильзы.
Е.1.8 Для навешивания стационарного оборудования массой до 150 кг при необходимости устанавливают закладные детали, металлические траверсы и рамы, закрепляя их самонарезающими винтами к стойкам каркаса.
Е.1.9 Перед монтажом гипсокартонных или гипсоволокнистых листов или гипсовых плит, в местах примыкания их к поверхности потолка и стены, выполненных из другого материала, должна быть наклеена разделительная лента (рисунок Е.1.2).
(в ред.
Изменения N 1, утв. Приказом Минстроя России от 27.12.2021 N 1009/пр)
1 - первый слой ГКЛ или ГВЛ; 2 - второй слой ГКЛ
или ГВЛ или плиты ГСП или плиты ГСП
Минстроя России от 27.12.2021 N 1009/пр)
Рисунок Е.1.2 - Расположение гипсокартонных
или гипсоволокнистых листов или гипсовых
плит при двухслойной обшивке
Минстроя России от 27.12.2021 N 1009/пр)
Е.1.10 В перегородке
конструкции 6 таблицы 2 между слоями гипсокартонных или гипсоволокнистых листов или гипсовых плит следует закреплять листы оцинкованной стали с нахлестом друг на друга не менее 100 мм. Гипсокартонные или гипсоволокнистых листы или гипсовые плиты располагают вертикально и крепят к каркасу самонарезающими винтами. В перегородке
конструкции 5 таблицы 2 предпочтительней горизонтальное расположение гипсокартонных листов или гипсовых плит. Горизонтальные стыки должны быть смещены по вертикали не менее чем на 400 мм.
(в ред.
Изменения N 1, утв. Приказом Минстроя России от 27.12.2021 N 1009/пр)
Е.1.11 Гипсоволокнистые листы, как правило, следует располагать вертикально. В местах поперечных стыков крепление ГВЛ осуществляют на горизонтальных вставках из металлических профилей ПН или ПС, деревянных брусках или полосах из гипсоволокнистого листа шириной 100 мм со смещением по вертикали не менее 400 мм относительно друг друга.
При многослойной обшивке все стыки листов последующего слоя должны быть смещены относительно стыков предыдущего слоя, то есть горизонтальные стыки смещают вертикально не менее чем на 400 мм, а вертикальные стыки - горизонтально на шаг стоек
(рисунок Е.1.2). Стык гипсокартонных или гипсоволокнистых листов или гипсовых плит не должен быть расположен на стойках, к которым возможно крепление дверной коробки.
(в ред.
Изменения N 1, утв. Приказом Минстроя России от 27.12.2021 N 1009/пр)
Е.1.12 При монтаже однослойной обшивки гипсокартонные или гипсоволокнистые листы или гипсовые плиты закрепляют к каркасу самонарезающими винтами с шагом не более 250 мм. Зазор между листом и потолком следует принимать около 5 мм, а между листом и полом 10 - 20 мм с последующей заделкой его герметиком.
(в ред.
Изменения N 1, утв. Приказом Минстроя России от 27.12.2021 N 1009/пр)
Самонарезающие винты следует устанавливать с отступлением от края торцевой кромки листа на расстоянии не менее 15 мм и продольной кромки не менее 10 мм (рисунок Е.1.3).
а
б
а - общий вид; б - крепление листов к стойке каркаса
1 - самонарезающий винт; 2 - лист ГКЛ или ГВЛ или плиты ГСП
Минстроя России от 27.12.2021 N 1009/пр)
Рисунок Е.1.3 - Крепление листов ГКЛ и ГВЛ
или плит ГСП к стойке каркаса
Минстроя России от 27.12.2021 N 1009/пр)
Стыки гипсоволокнистых листов следует выполнять в соответствии с
7.1.5.13 и рисунком Е.1.4.
1
2
1 - с прямой кромкой; 2 - фальцевой кромкой
Рисунок Е.1.4 - Стык гипсоволокнистых листов
Е.1.13 Смещение самонарезающих винтов по вертикали на двух смежных листах должно быть не менее 10 мм. В двухслойной обшивке при креплении листов первого слоя шаг винтов допускается увеличивать в три раза (750 мм). В конструкциях перегородок с трехслойной обшивкой шаг винтов должен составлять 750 мм - для первого слоя, 500 мм - для второго слоя, 250 мм - для третьего слоя.
Е.1.14 Самонарезающие винты должны входить в гипсокартонный или гипсоволокнистый лист или гипсовой плиты под прямым углом и проникать в полку профиля на глубину не менее 10 мм, а в деревянный каркас на глубину не менее 20 мм
(рисунок Е.1.5в). Головки винтов должны быть утоплены в поверхность гипсокартонного или гипсоволокнистого листа или гипсовой плиты на глубину около 1 мм, после чего эти места зашпаклевывают
(рисунок Е.1.5а). Деформированные (изогнутые) или ошибочно установленные винты должны быть удалены и заменены новыми с размещением их на расстоянии 50 мм от предыдущих. Картон в местах закручивания винтов (шурупов) в гипсокартонный лист не должен быть растрепан.
(в ред.
Изменения N 1, утв. Приказом Минстроя России от 27.12.2021 N 1009/пр)
Е.1.15 Стыковать гипсокартонные или гипсоволокнистые листы или гипсовые плиты следует только на стойках каркаса. Монтаж листов необходимо проводить в направлении открытой части профиля, что обеспечивает установку винтов ближе к стенке профиля и при креплении соседнего листа ввинчиваемый шуруп не будет отгибать внутрь полку профиля
(рисунок Е.1.5г).
(в ред.
Изменения N 1, утв. Приказом Минстроя России от 27.12.2021 N 1009/пр)
б
а - правильная установка винта; б - неправильная установка
винта; в - правильное крепление к стойке каркаса;
г - неправильное крепление к стойке каркаса
Рисунок Е.1.5 - Крепление листов ГКЛ и ГВЛ
или плит ГСП к стойке каркаса
Минстроя России от 27.12.2021 N 1009/пр)
Е.1.16 Тепло-, звукоизоляционный материал следует устанавливать между стойками каркаса и фиксировать с помощью вкладышей, после чего осуществлять монтаж и закрепление обшивки из гипсокартонных или гипсоволокнистых листов или гипсовых плит с другой стороны перегородки в соответствии с
Е.1.11 -
Е.1.15.
(в ред.
Изменения N 1, утв. Приказом Минстроя России от 27.12.2021 N 1009/пр)
Е.1.17 Внешние углы перегородок защищают от механических повреждений с помощью металлического перфорированного профиля из оцинкованной стали (ПУ 31 x 31 x 0,4), алюминизированной ленты или алюминиевых защитных профилей размерами 25 x 15 x 0,5 и 23 x 15 x 0,5 мм. Профиль ПУ 31 x 31 x 0,4, алюминизированные ленты и алюминиевые профили 25 x 15 x 0,5 и 23 x 15 x 0,5 мм вдавливают в предварительно нанесенную на угол шпаклевочную смесь, выравнивают по вертикали и наносят выравнивающий слой шпаклевки.
Внутренние углы следует шпаклевать с применением армирующей ленты, согнутой под заданный угол, в соответствии с Е.1.18.
Е.1.18 Стыки перегородок с другими строительными конструкциями (например, с несущими стенами, потолками, колоннами) должны отделять друг от друга на участке примыкания самоклеющейся разделительной лентой. Разделительные ленты прикрепляют к примыкающим строительным элементам перед обшивкой перегородок и после шпаклевания зазоров между обшивкой и разделительной лентой излишки ленты срезают.
Монтаж перегородок с обшивками из ГКЛ или плит ГСП криволинейного очертания
(в ред.
Изменения N 1, утв. Приказом Минстроя России от 27.12.2021 N 1009/пр)
Е.1.19 При криволинейном очертании перегородки с обшивками из гипсокартонных листов или гипсовых плит перед установкой направляющих профилей ножницами по металлу выполняют параллельные разрезы наружной полки и спинки ПН-профиля до внутренней полки. После надрезки ПН-профилей их сгибают в соответствии с необходимым радиусом и устанавливают по разметке, закрепляя с помощью дюбелей с шагом не более 300 мм.
(в ред.
Изменения N 1, утв. Приказом Минстроя России от 27.12.2021 N 1009/пр)
Е.1.20 Стоечные профили устанавливают с шагом не более 300 мм и закрепляют их в направляющих профилях.
Е.1.21 Для придания гипсокартонным листам или гипсовым плитам криволинейного очертания выполняют их изгибание по шаблону (рисунок Е.1.6).
(в ред.
Изменения N 1, утв. Приказом Минстроя России от 27.12.2021 N 1009/пр)
а - шаблон для придания гипсокартонному листу
или гипсовой плите криволинейного
очертания; б - пример изготовления гипсокартонного листа
или гипсовой плиты криволинейного очертания по шаблону
1 - шаблон формы изгибаемого листа;
2 - связь из полос ГКЛ или плиты ГСП;
3 - шаблон; 4 - бруски для фиксации изогнутой плиты
струбцинами; 5 - лист установлен в шаблон; 6 - брусок
для начальной фиксации струбцинами; 7 - брусок для конечной
фиксации струбцинами; 8 - лист зафиксирован в шаблоне;
9 - смачиваемая сторона листа; 10 - лист изогнут по шаблону
Минстроя России от 27.12.2021 N 1009/пр)
Рисунок Е.1.6
Гипсокартонные листы или гипсовые плиты изгибают только в продольном направлении листа.
(в ред.
Изменения N 1, утв. Приказом Минстроя России от 27.12.2021 N 1009/пр)
Е.1.22 Гипсокартонные листы или гипсовые плиты с радиусом закругления от 100 до 400 мм изготавливают в следующей последовательности:
(в ред.
Изменения N 1, утв. Приказом Минстроя России от 27.12.2021 N 1009/пр)
- отфрезерованные гипсокартонные листы или гипсовые плиты в соответствии с
7.1.5.27 укладывают на предварительно изготовленный шаблон пазами вверх и тщательно очищают от пыли
(рисунок 12);
(в ред.
Изменения N 1, утв. Приказом Минстроя России от 27.12.2021 N 1009/пр)
- зашпаклевывают пазы с помощью шпаклевочной смеси и дают ей высохнуть;
- закрепляют готовый фрагмент на каркасе;
- на стыки соседних элементов с тыльной стороны устанавливают изогнутые по шаблону стальные полосы толщиной 0,5 - 0,6 мм, шириной 100 мм, закрепив их самонарезающими винтами;
- зашпаклевывают швы, а затем и всю поверхность.
Е.1.23 Гипсокартонные листы или гипсовые плиты с радиусом закругления более 400 мм изготавливают в следующей последовательности:
(в ред.
Изменения N 1, утв. Приказом Минстроя России от 27.12.2021 N 1009/пр)
- изготавливают шаблон для изгибания гипсокартонного листа или гипсовой плиты
(рисунок Е.1.6а);
(в ред.
Изменения N 1, утв. Приказом Минстроя России от 27.12.2021 N 1009/пр)
- прокатывают сжимаемую сторону гипсокартонного листа или гипсовую плиту игольчатым валиком (у выпуклых форм это тыльная сторона, у вогнутых - лицевая);
(в ред.
Изменения N 1, утв. Приказом Минстроя России от 27.12.2021 N 1009/пр)
- гипсокартонный лист, наколотой стороной вверх, укладывают на прокладки, чтобы избежать попадания воды на обратную сторону листа (в противном случае при изгибании возможны разрывы картона);
- заготовку смачивают водой с помощью губки или кисти до полного насыщения гипсового сердечника (вода перестает впитываться);
- заготовку устанавливают на шаблон, чтобы ее центр совпал с осью шаблона
(рисунок Е.1.6б). Края согнутого листа прижимают к шаблону струбцинами и оставляют в таком положении до полного высыхания.
Обработка швов
Е.1.24 После завершения монтажа перегородок в соответствии с
Е.1.11 -
Е.1.23 следует заделать швы между гипсокартонными или гипсоволокнистыми листами или гипсовыми плитами под декоративную отделку.
(в ред.
Изменения N 1, утв. Приказом Минстроя России от 27.12.2021 N 1009/пр)
Е.1.25 Обработку швов между гипсокартонными или гипсоволокнистыми листами или гипсовыми плитами следует выполнять при температурно-влажностном режиме, соответствующем режиму эксплуатации. При этом температура воздуха в помещении должна быть не ниже 10 °C, не допустимы сквозняки и резкие колебания температуры.
(в ред.
Изменения N 1, утв. Приказом Минстроя России от 27.12.2021 N 1009/пр)
До обработки швов необходимо проверять надежность крепления гипсокартонных или гипсоволокнистых листов или гипсовых плит. Выступающие головки винтов следует доворачивать. Производство работ, ведущих к повышению влажности в помещении (штукатурные, выполнение цементно-песчаных стяжек и т.п.), должно быть завершено.
(в ред.
Изменения N 1, утв. Приказом Минстроя России от 27.12.2021 N 1009/пр)
Е.1.26 Без применения армирующей ленты шпаклюют стыки листов первого слоя при двухслойной обшивке каркаса и стыки первого и второго слоев при трехслойной обшивке каркаса.
Поперечные стыки гипсокартонных или гипсоволокнистых листов или гипсовых плит заделывают без применения армирующей ленты.
(в ред.
Изменения N 1, утв. Приказом Минстроя России от 27.12.2021 N 1009/пр)
Е.1.27 Швы между гипсокартонными или гипсоволокнистыми листами или гипсовыми плитами заделывают шпаклевочными смесями на основе гипса. Для заделки стыков между листами ГКЛВ и ГКЛВО или плитами ГСП типа H или типа DFH2 применяют влагостойкие шпаклевочные смеси.
(в ред.
Изменения N 1, утв. Приказом Минстроя России от 27.12.2021 N 1009/пр)
Е.1.28 Перед шпаклеванием всех стыков гипсоволокнистых листов их следует обработать грунтовкой глубокого проникания.
Е.1.29 Стыки верхнего слоя гипсокартонных листов или гипсовых плит, с обрезанными продольными или торцевыми кромками (не оклеенных картоном), следует подготовить к последующему шпаклеванию. Для этого, перед монтажом гипсокартонных листов или гипсовых плит необходимо с обрезанной кромки с помощью кромочного рубанка снять фаску под углом 22,5° на 2/3 толщины листа.
(в ред.
Изменения N 1, утв. Приказом Минстроя России от 27.12.2021 N 1009/пр)
Е.1.30 Шпаклевание стыков между гипсокартонными или гипсоволокнистыми листами или гипсовыми плитами включает в себя:
(в ред.
Изменения N 1, утв. Приказом Минстроя России от 27.12.2021 N 1009/пр)
- обеспыливание всех стыков листов;
- нанесение шпателем первого слоя шпаклевки на стык между гипсокартонными листами или гипсовыми плитами шириной не менее 100 мм, а между гипсоволокнистыми листами - на ширину фальцев;
(в ред.
Изменения N 1, утв. Приказом Минстроя России от 27.12.2021 N 1009/пр)
- вдавливание шпателем армирующей ленты (бумажной перфорированной) в нанесенную шпаклевку по центру стыка;
- после высыхания первого слоя шпаклевки нанесение широким шпателем (200 - 300 мм) накрывочного слоя шпаклевки на всю ширину шва.
Е.1.31 При обработке стыка гипсокартонных листов или гипсовых плит с обрезанными кромками и со снятой фаской под 22,5° на 2/3 толщины листа после обеспыливания поверхности наносят первый слой шпаклевки, вдавливая материал в стык шпателем с удалением излишков, затем на затвердевший и сухой первый слой наносят накрывочный слой шпаклевки, в который вдавливают армирующую ленту по центру стыка. После схватывания шпаклевки с утопленной в нее армирующей лентой с поверхностью шва завершают обработку стыка выравнивающим слоем шпаклевки (рисунок Е.1.7).
(в ред.
Изменения N 1, утв. Приказом Минстроя России от 27.12.2021 N 1009/пр)
1 - гипсокартонный лист или гипсовая плита;
2 - выравнивающий слой шпаклевки;
3 - армирующая лента; 4 - накрывочный слой шпаклевки;
5 - основной слой шпаклевки
Минстроя России от 27.12.2021 N 1009/пр)
Рисунок Е.1.7 - Обработка стыка гипсокартонного листа
или гипсовой плиты с обрезанной кромкой и снятой
фаской под 22,5° на 2/3 толщины листа
Минстроя России от 27.12.2021 N 1009/пр)
Е.1.32 Обработку стыка гипсоволокнистых листов с прямой кромкой выполняют в соответствии с рисунком Е.1.8.
1 - гипсоволокнистый лист; 2 - выравнивающий слой шпаклевки;
3 - основной слой шпаклевки; 4 - грунтовка
Рисунок Е.1.8 - Обработка стыка гипсоволокнистого листа
с прямой кромкой
Е.1.33 После выполнения операций по
Е.1.1 -
Е.1.32 можно приступать к устройству чистого пола и декоративной отделке стен.
Е.2 Выполнение облицовки стен
Е.2.1 Монтаж облицовки стен следует выполнять в период отделочных работ (в зимнее время при подключенном отоплении) до устройства чистых полов, когда все "мокрые" процессы закончены и выполнены разводки электротехнических и сантехнических систем, в условиях сухого и нормального влажностного режима согласно
СП 50.13330. При этом температура в помещении должна быть не ниже плюс 10 °C.
Е.2.2 Выполнение облицовки стен с обшивкой из гипсокартонных или гипсоволокнистых листов или гипсовых плит по металлическому или деревянному каркасу аналогично монтажу перегородок
(раздел Е.1).
(в ред.
Изменения N 1, утв. Приказом Минстроя России от 27.12.2021 N 1009/пр)
Е.2.3 При креплении облицовки стен из гипсокартонных листов или гипсоволокнистых листов или гипсовых плит или гипсокартонных комбинированных панелей (ГКП) на клее поверхность стен должна быть очищена от пыли и грязи и проведена разбивка стены на захватки с разметкой мест установки листов. Общая площадь, занимаемая клеем, должна составлять не менее 30% площади гипсокартонного или гипсоволокнистого листа или гипсовой плиты.
(в ред.
Изменения N 1, утв. Приказом Минстроя России от 27.12.2021 N 1009/пр)
Е.2.4 При ровной поверхности стен на гипсокартонные листы или гипсоволокнистые листы или гипсовые плиты и панели клей (шпаклевку) наносят зубчатым шпателем сплошными продольными полосами шириной около 130 мм посередине и по периметру (
рисунки Е.2.1а,
Е.2.1г).
(в ред.
Изменения N 1, утв. Приказом Минстроя России от 27.12.2021 N 1009/пр)
Е.2.5 При неровностях стены до 20 мм гипсокартонные листы или гипсоволокнистые листы или гипсовые плиты устанавливают по маякам на клее, который наносят лепками вдоль листов или панелей посередине с интервалом 350 мм и с минимальным интервалом (не более 250 мм) по периметру. При этом опорные маяки следует располагать по поверхности стены вертикальными рядами с расстоянием между рядами 600 мм по 3 - 4 марки в ряду, из расчета 4 - 6 шт. на одну панель (
рисунки Е.2.1б,
Е.2.1д).
(в ред.
Изменения N 1, утв. Приказом Минстроя России от 27.12.2021 N 1009/пр)
Е.2.6 При неровности стены более 20 мм на ее поверхность с помощью клея закрепляют полосы шириной 100 мм из гипсокартонных листов или гипсоволокнистых листов, или гипсовых плит, формирующие ровную плоскость. Полосы из гипсокартонных листов или гипсоволокнистых листов, или гипсовых плит должны быть ориентированы по периметру листов облицовки (
рисунки Е.2.1в,
Е.2.1е).
(в ред.
Изменения N 1, утв. Приказом Минстроя России от 27.12.2021 N 1009/пр)
На листы облицовки клей (шпаклевка) наносят в соответствии с
Е.2.4.
Е.2.7 При наклейке гипсокартонных листов или гипсоволокнистых листов, или гипсовых плит толщиной 12,5 мм по центру наносят один продольный ряд (полосу) клея, а при толщине листа 9,5 мм - два продольных ряда (полосы) (рисунок Е.2.1).
(в ред.
Изменения N 1, утв. Приказом Минстроя России от 27.12.2021 N 1009/пр)
а, г - ровная стена; б, д - неровности стены до 20 мм;
в, е - неровности стены более 20 мм
а, б, в - для листов ГКЛ или ГВЛ или плит ГСП;
г, д, е - для листов ГКЛ или ГВЛ или плит ГСП толщиной 9,5 мм
1 - клей-шпаклевка; 2 - полосы ГКЛ или ГВЛ
или плит ГСП шириной 100 мм; 3 - клей
Минстроя России от 27.12.2021 N 1009/пр)
Рисунок Е.2.1 - Варианты приклеивания гипсокартонных
или гипсоволокнистых листов или гипсовых плит
и панелей ГКЛ к стене в зависимости от толщины листа
и качества поверхности
Минстроя России от 27.12.2021 N 1009/пр)
Е.2.8 Установку гипсокартонных листов или гипсоволокнистых листов, или гипсовых плит и панелей начинают от угла помещения, прижимая их по всей плоскости к стене и контролируя вертикальность швов с помощью отвеса и двухметровой рейки.
(в ред.
Изменения N 1, утв. Приказом Минстроя России от 27.12.2021 N 1009/пр)
Е.2.9 Зазоры между облицовкой, полом и потолком заделывают полосами эластичного материала (например, из минеральной ваты) с последующей их герметизацией.
Е.2.10 Заделку стыков между листами облицовки или панелей во всех случаях выполняют по аналогии с конструкциями перегородок из гипсокартонных листов или гипсоволокнистых листов, или гипсовых плит с применением шпаклевочных составов.
(в ред.
Изменения N 1, утв. Приказом Минстроя России от 27.12.2021 N 1009/пр)
Е.2.11 Облицовку стен из отделочных гипсокартонных панелей выполняют по аналогии с облицовкой гипсокартонными листами на клее в соответствии с
Е.2.3 -
Е.2.10.
Е.3 Особенности выполнения облицовки стен, потолков и скатов помещений мансард
Е.3.1 При облицовке потолка и скатов мансардного помещения предварительно необходимо выполнять разметку мест установки подвесов.
Е.3.2 Подвесы крепят к стропильным конструкциям на самонарезающих винтах. Винты должны быть завинчены в тело стропил на глубину пяти диаметров винта, но не менее 24 мм.
Е.3.3 Металлические профили или бруски каркаса выравнивают на подвесах в одном уровне и закрепляют с помощью винтов.
Е.3.4 Гипсоволокнистые листы с прямой кромкой крепят к выровненному каркасу самонарезающими винтами с соблюдением зазора между торцевыми кромками 5 - 7 мм
(рисунок Е.2.1а) на вставке из металлического профиля или деревянного бруска. При креплении листов на горизонтальной и наклонной частях мансарды шаг винтов должен быть равным 150 мм, на вертикальной части - 250 мм.
Продольные стыки с фальцевой кромкой (ФК) выполняют без зазора
(рисунок Е.2.1б).
Е.3.5 Шпаклевание стыков осуществляют в соответствии с
Е.1.25 -
Е.1.33.
Е.4 Способы выполнения ограждений коммуникационных шахт
Е.4.1 В связи с тем, что конструктивное решение ограждений коммуникационных шахт базируется на устройстве каркаса с последующей обшивкой его гипсокартонными или гипсоволокнистыми листами или гипсовыми плитами, способы их выполнения включают в себя те же операции, что и при монтаже облицовок и их осуществляют в следующей последовательности:
(в ред.
Изменения N 1, утв. Приказом Минстроя России от 27.12.2021 N 1009/пр)
- разметка положения ограждения шахты на полу, стене и потолке;
- установка и закрепление элементов каркаса к полу, стенам и потолку;
- обшивка каркаса гипсокартонными или гипсоволокнистыми листами или гипсовыми плитами и закрепление их винтами;
(в ред.
Изменения N 1, утв. Приказом Минстроя России от 27.12.2021 N 1009/пр)
- заделка стыков между листами обшивки;
- монтаж ревизионного люка (при необходимости);
- отделка поверхности обшивки.
Е.5 Выполнение сборных оснований из гипсоволокнистых листов под покрытия полов
Е.5.1 Выполнение сборного основания под покрытие пола должны проводить после окончания всех строительно-монтажных, электротехнических, санитарно-технических и отделочных работ при температуре в помещении не ниже 10 °C и относительной влажности не более 60%.
Е.5.2 Влажность гипсоволокнистых листов и готовых элементов пола (ЭП) при устройстве сборного основания пола должна быть равномерной, для чего их нужно выдерживать в течение 1 - 2 дней в помещении.
Е.5.3 До начала работ по монтажу сборного основания необходимо очищать перекрытия от строительного мусора. Зазоры между плитами перекрытия, а также места примыкания перекрытия к стенам и перегородкам необходимо тщательно заделывать бетоном или цементным раствором марки не ниже М100 и затем выполнять разметку уровня сборного пола по всему периметру помещения.
Е.5.4 По несущей части перекрытия в случаях, предусмотренных проектной документацией на здание, должен быть уложен слой пароизоляции. Полиэтиленовую пленку пароизоляционного слоя следует укладывать с нахлесткой соседних полотен не менее чем на 200 мм с выводом краев ее выше уровня стяжки.
Е.5.5 По периметру помещения в местах примыкания сборной стяжки к ограждающим конструкциям необходимо на пароизоляционный слой укладывать кромочную ленту.
Е.5.6 При необходимости основание выравнивают с помощью керамзитовой засыпки с применением выравнивающих реек, начиная от стены, противоположной входу.
Сухую засыпку укладывают по всей поверхности перекрытия слоем проектной толщины. Минимальный допустимый слой засыпки - 20 мм. При толщине засыпки более 50 мм при нивелировании она уплотняется.
Е.5.7 При толщине засыпки 60 - 100 мм на сборное основание из готовых ЭП или листов ГВЛВ укладывают третий слой из крупноформатных гипсоволокнистых листов, которые крепят самонарезающими винтами с шагом не более 300 мм. Верхние (наружные) листы должны перекрывать стыки листов или элементов пола нижележащего ряда.
Е.5.8 Пористо-волокнистые и пористо-губчатые тепло- и звукоизоляционные материалы следует укладывать в направлении от стены, противоположной дверному проему. При этом не допускается совпадение стыков жестких теплозвукоизоляционных материалов и листов выравнивающего слоя.
Е.5.9 Укладку листов ГВЛ типа В ведут справа налево рядами от стены с дверным проемом с зазором в стыках не более 1 мм и с разбежкой в рядах не менее 250 мм (рисунок Е.5.1а). В случаях, диктуемых особенностями конфигурации помещений, укладка листов с противоположной стороны - слева направо
(рисунок Е.5.1б).
(в ред.
Изменения N 1, утв. Приказом Минстроя России от 27.12.2021 N 1009/пр)
а
а - при укладке в направлении от стены с дверным проемом;
б - при укладке от стены, противоположной дверному проему
Рисунок Е.5.1 - Схемы раскладки элементов пола
Е.5.10 В местах примыкания к ограждающим конструкциям ЭП должны быть удалены фальцы (рисунок Е.5.2).
Рисунок Е.5.2 - Удаление фальцев в местах примыкания
к ограждающей конструкции
Е.5.11 Каждый новый ряд рекомендуется начинать с укладки остатка элемента предыдущего ряда, что обеспечивает смещение торцевых стыков в соседних рядах не менее чем на 250 мм.
Е.5.12 Для передвижения по уложенному слою сухой засыпки по ней следует выполнять островки из фрагментов гипсоволокнистых листов размером не менее 500 x 500 мм.
Е.5.13 ЭП крепят между собой путем последовательного нанесения двух полос клеящей мастики на фальцы и крепления с помощью винтов для ГВЛ длиной 19 мм, располагаемых с шагом не более 300 мм (рисунки Е.5.3а и
Е.5.4а). Крепление малоформатных ГВЛ типа В показано на
рисунках Е.5.3б и
Е.5.4а.
(в ред.
Изменения N 1, утв. Приказом Минстроя России от 27.12.2021 N 1009/пр)
а
а - соединение ЭП; б - соединение малоформатных ГВЛ типа В
1 - элемент пола; 2 - тепло-, звукоизоляционный материал;
3 - клеящая мастика; 4 - винт для ГВЛ типа В; 5 - сухая засыпка;
6 - ГВЛ типа В первого слоя; 7 - ГВЛ типа В второго слоя
Минстроя России от 27.12.2021 N 1009/пр)
Рисунок Е.5.3 - Изготовление сборных стяжек
а - крепление ЭП; б - крепление малоформатных ГВЛВ
Рисунок Е.5.4 - Схема закрепления пола винтами
Е.5.14 Крепежные винты должны входить в детали стяжки под прямым углом. Головки винтов необходимо утапливать на глубину около 1 мм. Изогнутые, неправильно завернутые винты должны быть удалены и заменены новыми в местах, на расстоянии около 50 мм от прежних
(рисунок Е.1.5а).
Е.5.15 В местах расположения дверных проемов соединение элементов пола с удаленными фальцами осуществляют по месту с помощью вставок из ГВЛ типа В и формированием фальцевых соединений (рисунок Е.5.5). Их крепление описано выше.
(в ред.
Изменения N 1, утв. Приказом Минстроя России от 27.12.2021 N 1009/пр)
1 - верхняя вставка; 2 - нижняя вставка; 3 - кромочная
лента; 4 - элемент пола; 5 - клей; 6 - винты для ГВЛВ
Рисунок Е.5.5 - Выполнение вставки в месте дверного проема
Е.5.16 При монтаже стяжки из ГВЛ типа В укладку листов нижнего слоя ведут от стены с дверным проемом встык и с разбежкой относительно друг друга не менее чем на 250 мм (рисунок Е.5.6). Листы второго слоя укладывают таким же порядком с предварительным нанесением клеевого состава и разравниванием его с помощью гребешкового шпателя последовательно под каждый лист верхнего слоя
(рисунок Е.5.3б). Плоскости листов верхнего слоя должны накрывать стыки листов нижнего слоя. При этом смещения их стыков также должны составлять не менее 250 мм
(рисунок Е.5.6б).
(в ред.
Изменения N 1, утв. Приказом Минстроя России от 27.12.2021 N 1009/пр)
а
а - нижний слой; б - верхний слой
1 - верхний слой; 2 - нижний слой
Рисунок Е.5.6 - Схемы раскладки листов ГВЛ типа В
размерами 1200 x 1200 x 10 мм
Минстроя России от 27.12.2021 N 1009/пр)
Е.5.17 Крепление листов верхнего и нижнего слоев стяжки из ГВЛВ выполняют специальными винтами для ГВЛ типа В также, как и фальцев элементов пола
(рисунок Е.5.4б).
(в ред.
Изменения N 1, утв. Приказом Минстроя России от 27.12.2021 N 1009/пр)
Е.5.18 Дополнительный слой ГВЛ типа В, требуемый для упрочения стяжки под покрытие пола из штучного или наборного паркета, закрепляют на поверхности сборной стяжки с помощью клеевого соединения и винтов для ГВЛ.
(в ред.
Изменения N 1, утв. Приказом Минстроя России от 27.12.2021 N 1009/пр)
Е.5.19 При подготовке поверхности стяжки под покрытие пола выступающие части полиэтиленовой пленки пароизоляционного слоя и кромочной ленты срезают в один уровень с поверхностью стяжки.
Е.5.20 Стыки элементов стяжки и места установки винтов заделывают по необходимости в зависимости от характера покрытия пола. Под покрытия из линолеума с подосновой, ковролина, поливинилхлоридных плиток и т.п. заделку осуществляют шпаклевочными составами с предварительной обработкой грунтовкой и последующим шлифованием зашпаклеванной поверхности.
Е.5.21 Дополнительное выравнивание поверхности сборной стяжки под покрытие из поливинилхлоридного многослойного или однослойного линолеума без подосновы, требующее бесшовных оснований с повышенной ровностью и прочностью, осуществляют гипсовыми саморазравнивающимися композициями с пределом прочности на сжатие не менее 22 МПа, наносимыми зубчатым шпателем толщиной не менее 2 мм.
Е.5.22 Выполнение покрытий полов по сборным стяжкам возможно через сутки после их монтажа.
Е.6 Монтаж подвесных потолков
Е.6.1 Монтаж подвесных потолков должны начинать в период отделочных работ (в зимнее время при подключенном отоплении), когда все "мокрые" процессы закончены и выполнены разводки электротехнических, вентиляционных и сантехнических систем, в условиях сухого и нормального влажностного режима
СП 50.13330. При этом температура в помещении не должна быть ниже плюс 10 °C.
Е.6.2 Перед монтажом элементов каркаса выполняют разметку уровня подвесного потолка, мест крепления профилей или брусков каркаса и мест крепления подвесов.
Е.6.3 Разметку проектного положения подвесного потолка по периметру помещения на стенах выполняют с помощью уровня, длина которого должна быть не менее 1,2 - 1,5 м, гидроуровня, шнуроотбойного устройства. Уровень и гидроуровень допускается заменять нивелиром. При больших объемах работ для ускорения выполнения разбивки целесообразно применять лазерную установку.
С установленным шагом для потолка данного вида и типа нагрузки выполняют также разметку мест крепления подвесов.
Е.6.4 Подвесы к несущему основанию крепят с помощью металлического анкерного дюбеля:
- непосредственно (прямой подвес);
- через тягу или верхнюю часть нониус-подвеса.
Е.6.5 Для установки подвесов необходимо в несущем основании потолка с помощью перфоратора выполнить отверстия диаметром 6 мм и глубиной 40 мм. В проушину тяги (в пластину прямого подвеса или в отверстие верхней части нониус-подвеса) вставляют анкерный дюбель, а затем забивают его молотком в несущее основание до фиксации. После отгиба тяги (боковые полосы прямого подвеса или верхней части нониус-подвеса) под углом 90° надевают на нее подвес, удерживая пружинный зажим в сжатом состоянии, а затем его отпускают.
Е.6.6 Крепление верхней части нониус-подвеса к нижней осуществляют с помощью совмещения отверстий на боковых сторонах частей подвеса и фиксации двумя нониус-фиксаторами.
Е.6.7 Крепление гипсокартонных и гипсоволокнистых листов или гипсовых плит к профилям (брускам) осуществляют, как правило, поперек несущих профилей. Для удобства последующего шпаклевания рекомендуется с листов, примыкающих длиной стороной к стене, предварительно срезать продольную кромку.
(в ред.
Изменения N 1, утв. Приказом Минстроя России от 27.12.2021 N 1009/пр)
Е.6.8 С помощью подпорок или телескопического подъемника гипсокартонные или гипсоволокнистые листы или гипсовые плиты устанавливают в проектное положение и закрепляют к каркасу. Гипсокартонные или гипсоволокнистые листы подгоняют друг к другу и закрепляют к каркасу шурупами, при этом не должно быть их деформации. Укладку тепло-, звукоизоляционного материала (при необходимости) проводят параллельно с монтажом каждого листа обшивки. Толщина и плотность тепло-, звукоизоляционного материала должна быть рассчитана и учтена в нагрузках при выборе типа и конструкции подвесного потолка.
(в ред.
Изменения N 1, утв. Приказом Минстроя России от 27.12.2021 N 1009/пр)
Е.6.9 Смежные листы при монтаже подвесного потолка должны монтировать вразбежку со смещением друг относительно друга не менее чем на шаг несущего профиля.
Е.6.10 С торцевых кромок гипсокартонных листов или гипсовых плит, не оклеенных картоном, с помощью кромочного рубанка необходимо снимать фаску под углом 22,5° на глубину 2/3 толщины листа.
(в ред.
Изменения N 1, утв. Приказом Минстроя России от 27.12.2021 N 1009/пр)
Е.6.11 Гипсокартонные или гипсоволокнистые листы или гипсовые плиты следует закреплять к каркасу самонарезающими винтами (шурупами), располагаемыми с шагом 150 мм вразбежку на смежных листах на расстоянии не менее:
(в ред.
Изменения N 1, утв. Приказом Минстроя России от 27.12.2021 N 1009/пр)
- 10 мм от оклеенного картоном края листа и 15 мм от обрезанного - для гипсокартонных листов или гипсовых плит не менее
(рисунок Е.6.1);
(в ред.
Изменения N 1, утв. Приказом Минстроя России от 27.12.2021 N 1009/пр)
- 10 мм от края листа - для гипсоволокнистых листов.
а
б
а - схема расположения самонарезающих винтов на краях
гипсокартонных или гипсоволокнистых листов или гипсовых плит;
б - схема закрепления гипсокартонных
или гипсоволокнистых листов или гипсовых плит
к каркасу с помощью самонарезающих винтов
1 - не оклеенная картоном кромка; 2 - оклеенная картоном
кромка; C - ширина листа
Минстроя России от 27.12.2021 N 1009/пр)
При применении гипсоволокнистых листов толщиной 12,5 мм шаг шурупов увеличивают до 200 мм.
Е.6.12 Крепежные шурупы должны входить в гипсокартонный или гипсоволокнистый лист или гипсовую плиту под прямым углом и проникать в металлический профиль каркаса на глубину не менее 10 мм, а в деревянный брус - не менее 20 мм. Головки шурупов должны быть утоплены в гипсокартонный или гипсоволокнистый лист или гипсовую плиту на глубину около 1 мм с целью их последующей шпаклевки.
(в ред.
Изменения N 1, утв. Приказом Минстроя России от 27.12.2021 N 1009/пр)
Е.6.13 Торцевые кромки гипсокартонных или гипсоволокнистых листов или гипсовых плит следует стыковать только на несущих профилях каркаса.
(в ред.
Изменения N 1, утв. Приказом Минстроя России от 27.12.2021 N 1009/пр)
Стыки гипсоволокнистых листов с фальцевой кромкой следует выполнять без зазоров, а с прямой кромкой - с зазором 5 - 7 мм.
Картон в местах закручивания шурупов не должен быть растрепан.
Е.6.14 Деформированные или ошибочно размещенные шурупы должны быть удалены, заменены новыми, которые необходимо расположить на расстоянии не менее 50 мм от предыдущего места крепления.
Е.6.15 Швы между гипсокартонными или гипсоволокнистыми листами или гипсовыми плитами шпаклюют в соответствии с
Е.1.25 -
Е.1.32, а затем грунтуют под последующую декоративную отделку.
(в ред.
Изменения N 1, утв. Приказом Минстроя России от 27.12.2021 N 1009/пр)
Е.6.16 В условиях повышенной влажности (санузлы, кухни и т.д.) рекомендуется применять влагостойкие гипсокартонные или гипсоволокнистые листы или влагостойкие гипсовые плиты.
(в ред.
Изменения N 1, утв. Приказом Минстроя России от 27.12.2021 N 1009/пр)
Е.6.17 Деформационные швы следует предусматривать:
- через каждые 15 м по длине подвесного потолка;
- если несущее основание подвесного потолка имеет деформационные швы, то непосредственно под ними в обшивке и каркасе подвесного потолка также следует предусматривать устройство деформационных швов.
Е.6.18 Изготовление гипсокартонных листов или гипсовых плит криволинейного очертания для подвесного потолка выполняют в соответствии с
Е.1.20 -
Е.1.24.
(в ред.
Изменения N 1, утв. Приказом Минстроя России от 27.12.2021 N 1009/пр)
Е.6.19 Наряду с обычными видами подвесных потолков можно выполнять неограниченное число вариантов подвесных потолков в зависимости от функциональных и эстетических требований.
Е.6.20 Основные способы создания архитектурно-декоративных потолков заключаются в следующем:
- закреплении монтажных профилей в разных уровнях по горизонтали;
- наклонном креплении монтажных профилей;
- вертикальном креплении монтажных профилей;
- креплении изогнутых монтажных профилей;
- соединение основного и монтажного профилей не под прямым углом;
- V-образных вырезов в гипсокартонных листах или гипсовых плитах с формированием угловых, U-образных, ступенчатых элементов, а также устройстве выступов, пластин, карнизов;
(в ред.
Изменения N 1, утв. Приказом Минстроя России от 27.12.2021 N 1009/пр)
- изогнутых ГКЛ или плит ГСП (вогнутые и выпуклые).
(в ред.
Изменения N 1, утв. Приказом Минстроя России от 27.12.2021 N 1009/пр)
Е.6.21 Для создания потолков с различным рельефом, оформления карнизов, перепадов высот и других элементов архитектурно-декоративного решения применяют гипсокартонные элементы или элементы из гипсовых плит ломаной формы, получаемые из листов с V-образными пазами с применением специальных фрез для их изготовления (рисунок Е.6.2). Длина заготовки не должна превышать 2500 мм, а ширина - 500 мм.
(в ред.
Изменения N 1, утв. Приказом Минстроя России от 27.12.2021 N 1009/пр)
Угловые элементы конструкций
(а + б <= 500 мм)
П-образные элементы конструкций
(а + б + в <= 500 мм)
П-образные элементы конструкций
(а + б + в + г <= 500 мм)
Ступенчатые элементы конструкций
(сумма длин участков элемента <= 500 мм)
--------------------------------
<*> Все стыки проклеивают клеем на основе гипса.
Рисунок Е.6.2 - Угловые, П-образные и ступенчатые элементы
гипсокартонного листа ломаной формы с V-образными пазами
Е.7 Способы выполнения огнезащиты несущих конструкций
Е.7.1 Выполнение огнезащитной облицовки несущих конструкций следует осуществлять в период отделочных работ при температуре воздуха не менее плюс 10 °C и относительной влажности не более 60%.
(в ред.
Изменения N 1, утв. Приказом Минстроя России от 27.12.2021 N 1009/пр)
Е.7.2 Предварительно все защищаемые металлоконструкции должны быть очищены от ржавчины, грязи, пыли, масел, жировых пятен и покрыты антикоррозийными составами в соответствии с
СП 28.13330.
Е.7.3 Устройство огнезащитной облицовки целесообразно осуществлять заранее заготовленными элементами, включающими в себя панели из ГВЛ, металлические профили, к которым закреплены ГВЛ на винтах, полосы из ГВЛ и зажимы. Ширину элементов раскроя определяют расчетным путем в зависимости от внутренних размеров сторон облицовки, согласовываемых с заказчиком. Ширина элементов облицовки должна быть на 40 мм больше размеров сторон облицовываемой металлической конструкции.
(в ред.
Изменения N 1, утв. Приказом Минстроя России от 27.12.2021 N 1009/пр)
Е.7.4 Для многослойной бескаркасной огнезащитной облицовки колонн следует применять двухслойные (толщиной 30 (2 x 15) мм) и однослойные (толщиной 15 мм) панели длиной 1200 мм, заранее изготовленные из раскроя гипсоволокнистых листов толщиной 15 мм. Крепление обшивки к несущему основанию выполняют с помощью стального оцинкованного углового профиля 50 x 30 x 0,7 мм. Полка 50 мм служит для крепления обшивки, а полка 30 мм - для крепления профиля к несущим основаниям
(рисунок 24).
Е.7.5 Крепление профилей каркаса к металлической конструкции осуществляют с помощью специальных зажимов (клипс) для профилей ПП 60/27 с шагом не более 1000 мм.
Е.7.6 Крепление обшивки осуществляют в направлении от пола к потолку. Элементы огнезащитной облицовки соединяют между собой самонарезающими шурупами или металлическими скобами, а на углах, при необходимости, устанавливают металлические ПУ-профили, которые закрывают шпаклевкой по аналогии с устройством перегородок
(рисунок 25).
(в ред.
Изменения N 1, утв. Приказом Минстроя России от 27.12.2021 N 1009/пр)
Е.7.7 При огнезащите деревянных стоек и балок огнезащитную облицовку из ГВЛ винтами крепят непосредственно к деревянной конструкции или металлическими скобами, которые устанавливают с шагом 50 мм в местах стыкования листов облицовки
(рисунок 26).
(в ред.
Изменения N 1, утв. Приказом Минстроя России от 27.12.2021 N 1009/пр)
Е.7.8 Огнезащитную облицовку балок из ГВЛ закрепляют самонарезающими шурупами для ГВЛ к стальному каркасу. Крепление профилей ПП 60/27 к балке следует выполнять специальными зажимами, а крепление профилей ПН 28/27 к железобетонному перекрытию - металлическими анкер-клиньями. Шаг крепления зажима и анкер-клиньев к балке должен быть не более 750 мм. Если длина облицовки менее 750 мм, то устанавливают не менее трех зажимов на каждый профиль ПП 60/27 и не менее трех анкер-клиньев на каждый профиль ПН 28/27. Отступ при креплении профилей от края балки не должен превышать 150 мм. Стыки листов второго слоя обшивки должны быть смещены относительно стыков первого слоя не менее чем на 200 мм.
(в ред.
Изменения N 1, утв. Приказом Минстроя России от 27.12.2021 N 1009/пр)
Е.7.9 Для защиты от возможных механических повреждений в процессе эксплуатации и придания конструкции дополнительной жесткости на углы колонны устанавливают защитный уголок (ПУ-профиль) 31 x 31 x 0,4 мм. Уголок крепят к кромкам углов колонн винтами для ГВЛ с шагом не более 1000 мм. Винты устанавливают на расстоянии не менее 10 мм от углов обшивки. После крепления защитных уголков поверхность огнезащитной облицовки колонны из ГВЛ шпаклюют.
(в ред.
Изменения N 1, утв. Приказом Минстроя России от 27.12.2021 N 1009/пр)
Е.8 Отделка поверхностей конструкций с применением гипсокартонных и гипсоволокнистых листов или гипсовых плит
(в ред.
Изменения N 1, утв. Приказом Минстроя России от 27.12.2021 N 1009/пр)
Е.8.1 До начала отделки поверхностей ограждающих конструкций из гипсокартонных или гипсоволокнистых листов или гипсовых плит должны быть закончены строительно-монтажные работы, в том числе отделочные, связанные с "мокрыми" процессами (штукатурные, устройство цементных стяжек и т.п.).
(в ред.
Изменения N 1, утв. Приказом Минстроя России от 27.12.2021 N 1009/пр)
Е.8.2 Отделочные работы должны осуществляться при температуре не ниже плюс 10 °C и относительной влажности воздуха не более 60% в соответствии с требованиями 3.1
СП 71.13330.
Е.8.3 После шпаклевания стыков и мест крепления винтов поверхность необходимо обработать с помощью ручного шлифовального приспособления и удалить пыль.
Е.8.4 В целях нормализации адсорбции влаги поверхность обшивки из гипсокартонных или гипсоволокнистых листов или гипсовых плит следует обрабатывать грунтовкой, которую следует наносить только кистью или специальной щеткой. Не допускается наносить ее валиком или краскопультом.
(в ред.
Изменения N 1, утв. Приказом Минстроя России от 27.12.2021 N 1009/пр)
Е.8.5 Поверхности конструкций, эксплуатирующихся в помещениях с влажным режимом, обрабатывают гидроизоляционным составом.
Е.8.6 Поверхность обшивок из гипсокартонных или гипсоволокнистых листов или гипсовых плит пригодна под любую отделку: окраску, оклейку обоями, облицовку керамической плиткой, декоративное оштукатуривание.
(в ред.
Изменения N 1, утв. Приказом Минстроя России от 27.12.2021 N 1009/пр)
Е.8.7 Рекомендуется окрашивать масляными, водоэмульсионными, смоляными, полиуретановыми, эпоксидными окрасочными составами с содержанием пластификаторов-полимеров и др. Не рекомендуется применять для окрашивания краски на известковой основе и на жидком стекле. Перед высококачественной окраской необходимо выполнять финишное шпаклевание и шлифование всей поверхности обшивки.
Е.8.8 После промежуточной окраски, выявляющей различные оттенки поверхности из-за наличия на ней пятен и т.п., проводят окончательную окраску поверхности обшивки.
Е.8.9 Оклейка обоями поверхности гипсокартонного или гипсоволокнистого листа или гипсовой плиты должна быть по хорошо высохшему огрунтованному основанию.
(в ред.
Изменения N 1, утв. Приказом Минстроя России от 27.12.2021 N 1009/пр)
Е.8.10 При облицовке обшивки из гипсокартонных или гипсоволокнистых листов или гипсовых плит керамической плиткой или мозаикой предъявляют повышенные требования к ровности поверхности и прочности обшивки.
(в ред.
Изменения N 1, утв. Приказом Минстроя России от 27.12.2021 N 1009/пр)
Шпаклевание и окончательная отделка должны быть ограничены только областью швов, а всю облицовываемую плиткой поверхность обшивки из гипсокартонных или гипсоволокнистых листов или гипсовых плит предварительно обрабатывают грунтовкой, которую следует наносить только щеткой или кистью. Нанесение ее распылением или валиком не допускается. Особое внимание должно быть уделено тщательности огрунтования обрезанных краев гипсокартонных лисов гипсокартонных листов или гипсовых плит и мест пропуска труб, отверстия под которые должны быть выполнены с припуском в 10 мм и загерметизированы силиконовыми составами. В помещениях с влажным температурно-влажностным режимом необходимо выполнить гидроизоляцию пола и стен с помощью обмазочных гидроизоляционных мастик и армирующих угловых лент.
(в ред.
Изменения N 1, утв. Приказом Минстроя России от 27.12.2021 N 1009/пр)
Облицовку плиткой рекомендуется выполнять с помощью предназначенного для этой цели клея. В помещениях с влажным температурно-влажностным режимом для приклейки плитки по гидроизоляционному мастичному слою следует применять специальный клей. Клей наносят зубчатым шпателем.
Заделку швов между плитками рекомендуется выполнять специальными заполнителями для швов, а места сопряжения стен между собой и стен с полом должны быть заделаны герметиками.
(рекомендуемое)
ОСНОВНЫЕ ПРАВИЛА ТЕХНИКИ БЕЗОПАСНОСТИ ПРИ ПРОИЗВОДСТВЕ РАБОТ
Ж.1 Устройство конструкций с применением гипсокартонных или гипсоволокнистых листов или гипсовых плит следует выполнять с соблюдением действующих норм.
(в ред.
Изменения N 1, утв. Приказом Минстроя России от 27.12.2021 N 1009/пр)
Ж.2 К устройству ограждающих конструкций с применением гипсокартонных или гипсоволокнистых листов или гипсовых плит допускаются лица не моложе 18 лет, прошедшие инструктаж на рабочем месте по технике безопасности, производственной санитарии, обученные приемам работ и имеющие удостоверение на право производства работ.
(в ред.
Изменения N 1, утв. Приказом Минстроя России от 27.12.2021 N 1009/пр)
Ж.3 Рабочие должны быть обеспечены спецодеждой и средствами индивидуальной защиты.
Ж.4 Работы по устройству конструкций из гипсокартонных или гипсоволокнистых листов или гипсовых плит должны выполнять специализированные бригады, обладающие опытом по монтажу, при наличии специального инструмента, обеспечивающего механизацию процесса сборки конструкций и их высокое качество.
(в ред.
Изменения N 1, утв. Приказом Минстроя России от 27.12.2021 N 1009/пр)
Ж.5 Применяемые при производстве работ инструменты, оборудование, оснастка и приспособления для монтажа конструкций должны соответствовать условиям безопасности выполнения работ.
Ж.6 Зона, где проводят монтаж перегородок, должна быть обозначена хорошо видимыми предупредительными надписями "Вход запрещен, идет монтаж".
Ж.7 При работе с монтажно-поршневым пистолетом обязательно выполнение требований "Инструкции по технике безопасности для оператора, работающего с монтажно-поршневым пистолетом ПЦ-52-1 на строительных объектах Главмосстроя".
| | ИС МЕГАНОРМ: примечание. Нумерация пунктов дана в соответствии с официальным текстом документа. | |
Ж.9 При монтаже конструкций с обшивкой из гипсокартонных или гипсоволокнистых листов или гипсовых плит следует применять инвентарные сборно-разборные передвижные подмости. При высоте рабочего настила 1,3 м и более необходимо устраивать защитные ограждения. Высота защитных ограждений должна быть не менее 1,2 м.
(в ред.
Изменения N 1, утв. Приказом Минстроя России от 27.12.2021 N 1009/пр)
Ж.9 В гипсокартонные или гипсоволокнистые листы или гипсовые плиты не допускается забивать дюбель-гвозди.
(в ред.
Изменения N 1, утв. Приказом Минстроя России от 27.12.2021 N 1009/пр)
Не допускается забивать дюбель-гвозди также в хрупкие материалы, дающие большое количество осколков (чугун, керамика и другие), в легко пробиваемые строительные материалы, в материалы, вызывающие разрушение дюбель-гвоздя (гранит, базальт).
Ж.10 К работе с электроинструментом допускаются рабочие, имеющие первую квалификационную группу по технике безопасности при эксплуатации электроустановок.
Ж.11 Электроинструмент должен удовлетворять следующим требованиям:
- быстро включаться и отключаться от электросети (но не самопроизвольно);
- быть безопасным в работе, все токоведущие части должны быть хорошо изолированы.
Перед выдачей электроинструмента рабочему необходимо проверить исправность заземляющего провода и отсутствие замыкания на корпус.
Ж.12 Перед началом работы с электроинструментом рабочий должен:
- получить инструктаж о безопасных способах производства работ с электроинструментом;
- проверить исправность средств индивидуальной защиты;
- осмотреть и проверить электроинструмент на холостом ходу.
Ж.13 При монтаже ограждающих конструкций из гипсокартонных или гипсоволокнистых листов или гипсовых плит запрещается:
(в ред.
Изменения N 1, утв. Приказом Минстроя России от 27.12.2021 N 1009/пр)
- работать электроинструментом с приставных лестниц;
- передавать электроинструмент другим лицам;
- разбирать и проводить самим ремонт электроинструмента;
- держаться при работе за питающий электропровод;
- оставлять без надзора электроинструмент, присоединенный к электросети.
(рекомендуемое)
ТРАНСПОРТИРОВАНИЕ И ХРАНЕНИЕ МАТЕРИАЛОВ И ИЗДЕЛИЙ
И.1 Металлические тонкостенные профили должны поставлять на объекты строительства пакетами, стянутыми лентами, транспортом любого вида при условии защиты от механических повреждений.
И.2 Пакеты с профилем должны хранить под навесом.
И.3 Поставщик профилей должен гарантировать соответствие их нормативным документам при соблюдении потребителем условий транспортировании и хранения. Срок хранения - 12 мес. с даты изготовления.
И.4 Транспортирование гипсокартонных или гипсоволокнистых листов или гипсовых плит должно выполняться централизованно, в пакетированном виде в условиях, исключающих увлажнение, загрязнение и механическое повреждение листов. Габариты пакетов с гипсокартонными листами или гипсовыми плитами не должны превышать по длине 4100 мм, по ширине 1300 мм, по высоте 800 мм; масса пакета не должна быть более 3000 кг. Габариты пакетов с гипсоволокнистыми листами не должны превышать по длине 4100 мм, по ширине 1300 мм, по высоте 1000 мм; масса пакета должна быть не более 5000 кг.
(в ред.
Изменения N 1, утв. Приказом Минстроя России от 27.12.2021 N 1009/пр)
И.5 При транспортировании гипсокартонные или гипсоволокнистые листы или гипсовые плиты должны быть складированы в горизонтальном положении, а пакеты должны быть уложены на поддоны или прокладки, размещенные через 0,5 м.
(в ред.
Изменения N 1, утв. Приказом Минстроя России от 27.12.2021 N 1009/пр)
И.6 Для предотвращения увлажнения и загрязнения гипсокартонных или гипсоволокнистых листов или гипсовых плит рекомендуется пачки (50 - 80 листов в пачке) упаковывать в водостойкие материалы (полиэтиленовая пленка).
(в ред.
Изменения N 1, утв. Приказом Минстроя России от 27.12.2021 N 1009/пр)
И.7 Хранить гипсокартонные или гипсоволокнистые листы или гипсовые плиты следует в сухом закрытом помещении при температуре окружающего воздуха не ниже 5 °C, на расстоянии не менее 1,6 м от отопительных приборов. Пакеты могут быть установлены друг на друга в штабели общей высотой не более 3,5 м.
(в ред.
Изменения N 1, утв. Приказом Минстроя России от 27.12.2021 N 1009/пр)
И.8 На строительной площадке допускается непродолжительное время (не более 6 ч) хранить гипсокартонные или гипсоволокнистые листы или гипсовые плиты упакованными в водонепроницаемую бумагу или пленку (при температуре не ниже 0 °C).
(в ред.
Изменения N 1, утв. Приказом Минстроя России от 27.12.2021 N 1009/пр)
И.9 Перевозить тепло- и звукоизоляционные материалы можно транспортом любого вида при условии их защиты от увлажнения.
И.10 Хранение тепло- и звукоизоляционных материалов должно быть в закрытых складах или под навесом в упакованном виде при условии защиты их от увлажнения.
И.11 Самонарезающие винты (шурупы) можно перевозить транспортом любого вида, упакованными в ящики или коробки, снабженные ярлыками и хранить под навесом.
(рекомендуемое)
ПРИЕМКА КОНСТРУКЦИЙ, СМОНТИРОВАННЫХ С ПРИМЕНЕНИЕМ
ГИПСОКАРТОННЫХ И ГИПСОВОЛОКНИСТЫХ ЛИСТОВ ИЛИ ГИПСОВЫХ ПЛИТ
Минстроя России от 27.12.2021 N 1009/пр)
К.1 Приемка смонтированных конструкций должна быть поэтапной с оформлением соответствующих актов на скрытые работы (на установку металлического каркаса конструкции, на прокладку силовой и слаботочной проводки, на установку звукоизолирующего слоя, на обшивку металлического каркаса гипсокартонными или гипсоволокнистыми листами или гипсовыми плитами, на обработку поверхности под чистовую отделку).
(в ред.
Изменения N 1, утв. Приказом Минстроя России от 27.12.2021 N 1009/пр)
К.2 При приемке работ по монтажу перегородок, облицовок и потолков следует проверять отсутствие трещин, отбитых углов, вздутий, надрывов картона (для конструкций с обшивкой из гипсокартонных листов или гипсоволокнистых листов, или гипсовых плит), устойчивость конструкций, а также надежность крепления гипсокартонных или гипсоволокнистых листов к каркасу самонарезающими винтами (головки винтов должны быть утоплены в листы на глубину около 1 мм). Перепады между смежными листами не должны превышать 0,5 мм.
(в ред.
Изменения N 1, утв. Приказом Минстроя России от 27.12.2021 N 1009/пр)
К.3 Поверхность смонтированной перегородки из гипсокартонных или гипсоволокнистых листов или гипсовых плит должна быть ровной, гладкой, без загрязнений и масляных пятен.
(в ред.
Изменения N 1, утв. Приказом Минстроя России от 27.12.2021 N 1009/пр)
К.4 Проверке подлежат установка и закрепление накладных защитных элементов на всех внешних углах и открытых торцах.
К.5 В местах сопряжений шпатлевка должна быть выполнена без разрывов по всему контуру сопряжения на всю глубину стыка.
К.6 Обшивки гипсоволокнистых листов не должны быть зыбкими; при легком простукивании деревянным молотком в зашпатлеванных стыках между листами не должны появляться трещины.
К.7 Требования к готовым обшивкам перегородок, облицовок и потолков из гипсокартонных или гипсоволокнистых листов или гипсовых плит приведены в таблице К.1.
(в ред.
Изменения N 1, утв. Приказом Минстроя России от 27.12.2021 N 1009/пр)
Таблица К.1
Контролируемый параметр | Предельное значение | Измерение |
Отклонение от вертикальности: | | |
- поверхности перегородок и облицовок | 1 мм на 1 м высоты | Не более чем через 3 м длины поверхности |
- поверхности облицовок пилястр, откосов дверных и оконных проемов | 5 мм на всю высоту | Каждое ребро пилястры, каждый откос |
Отклонение от совпадения поверхностей двух смежных листов обшивки в стыке | 1 мм | Измерения видимых несовпадений |
| | ИС МЕГАНОРМ: примечание. Нумерация пунктов дана в соответствии с официальным текстом документа. | |
К.9 Отклонение поверхности подстилающего слоя пола от горизонтальной плоскости на длине 2 м не должно превышать 10 мм, поверхности сборной стяжки не должно превышать 2 мм, поверхности покрытия пола - 2 мм у покрытий полов из паркета, линолеума, рулонных на основе синтетических волокон и 4 мм у покрытий из керамических плит.
К.10 Отклонение от горизонтальности поверхности сборной стяжки из ГВЛВ, ГВЛП и покрытий полов не должно превышать 30 - 50 мм.
Минстроя России от 27.12.2021 N 1009/пр)
[1] Федеральный
закон РФ от 22 июля 2008 г. N 123-ФЗ "Технический регламент о требованиях пожарной безопасности"
[2] ТУ 5742-007-03515377-97 "Элементы пола. Технические условия. Изменения N 6"
[3] ТУ 5742-004-05800969-04 "Элементы пола. Технические условия. Изменения N 1"
[4] ТУ 24.33.11-012-04001508-2020 "КНАУФ - профили стальные, оцинкованные, тонкостенные"
[5] ТУ 1121-001-56846022-2011 "Профили стальные оцинкованные тонкостенные Gyproc-Ультра"
[6] ТУ 25.11.23-003-29095323-2019 "Профиль металлический тонкостенный для конструкций из гипсокартонных листов и гипсоволокнистых листов"
[7] ТУ 25.11.23-002-29095323-2019 "Профиль металлический тонкостенный для подвесных потолков"
[8] ТУ 24.33.11-003-51729857-2019 "Профили стальные оцинкованные тонкостенные, произведенные по заказу предприятий группы КНАУФ"
[9] ТУ 24.33.11-002-51729857-2019 "Детали соединительные и крепежные стальные оцинкованные для профилей, произведенные по заказу предприятий группы КНАУФ"
[10]
СП 31-111-2004 "Применение стеклянных сеток и армирующих лент при строительстве зданий", - М., 2005 г.
[11] ТУ 2244-045-04696843-2011 "Материал Линотерм"
[12] "
Полы. Технические требования и правила проектирования, устройства, приемки, эксплуатации и ремонта", - М., 2004 г.
[13] ТУ 16.40-013-55798700-2006 "Винты самонарезающие с пресс-шайбой для крепления листов металла"
[14] ТУ 5742-001-56846022-2013 "Листы гипсокартонные Gyproc. Изменения N 1 - 2"
[15]
ТР ЕАЭС 043/2017 Технический регламент Евразийского экономического союза "О требованиях к средствам обеспечения пожарной безопасности и пожаротушения"
| | ИС МЕГАНОРМ: примечание. В официальном тексте документа, видимо, допущена опечатка: Методические рекомендации имеют номер Р 78.36.032-2013, а не Р 78.26.032-2013. | |
[16]
Р 78.26.032-2013 Инженерно-техническая укрепленность и оснащение техническими средствами охраны объектов, квартир и МХИГ, принимаемых под централизованную охрану подразделениями вневедомственной охраны. Часть 1. Методические рекомендации
УДК 69.024.001.21:006.354 | |
Ключевые слова: конструкции из гипсокартонных или гипсоволокнистых листов или гипсовых плит, комплектующие материалы и изделия, перегородки, облицовка стен, облицовка мансардных помещений, подвесные потолки, огнезащита несущих конструкций, коммуникационные шахты, основания под покрытия полов |
(в ред. Изменения N 1, утв. Приказом Минстроя России от 27.12.2021 N 1009/пр) |