Главная // Актуальные документы // Методическое пособиеСПРАВКА
Источник публикации
М., 2019
Примечание к документу
Название документа
"Методическое пособие по проектированию архитектурно-планировочных решений многофункциональных зданий и комплексов"
"Методическое пособие по проектированию архитектурно-планировочных решений многофункциональных зданий и комплексов"
МИНИСТЕРСТВО СТРОИТЕЛЬСТВА И ЖИЛИЩНО-КОММУНАЛЬНОГО
ХОЗЯЙСТВА РОССИЙСКОЙ ФЕДЕРАЦИИ
ФЕДЕРАЛЬНОЕ АВТОНОМНОЕ УЧРЕЖДЕНИЕ
"ФЕДЕРАЛЬНЫЙ ЦЕНТР НОРМИРОВАНИЯ, СТАНДАРТИЗАЦИИ
И ТЕХНИЧЕСКОЙ ОЦЕНКИ СООТВЕТСТВИЯ В СТРОИТЕЛЬСТВЕ"
МЕТОДИЧЕСКОЕ ПОСОБИЕ
ПО ПРОЕКТИРОВАНИЮ АРХИТЕКТУРНО-ПЛАНИРОВОЧНЫХ РЕШЕНИЙ
МНОГОФУНКЦИОНАЛЬНЫХ ЗДАНИЙ И КОМПЛЕКСОВ
Настоящее методическое пособие разработано в развитие положений
СП 160.1325800.2014 "Здания и комплексы многофункциональные. Правила проектирования".
Применение методического пособия позволяет повысить качество выполняемых проектных работ за счет использования единых практических подходов к выполнению работ на основе унифицированных методик и технологий, а также является основой для проведения независимых экспертных оценок выполненных работ, что приведет к снижению рисков возникновения аварийных ситуаций и повышению безопасной эксплуатации строительных объектов.
Задачи пособия заключаются в разъяснении особенностей применения нормативных требований в части:
- терминов и определений;
- общих положений;
- требований к участкам, включая функционально-планировочную организацию застройки;
- объемно-планировочных решений, включая взаимное расположение функционально-планировочных компонентов многофункциональных зданий и комплексов, объединяющих их коммуникаций;
- типологических особенностей рассматриваемых объектов, определяющих функциональный состав помещений и влияющих на нормативные требования к их проектированию.
Работа выполнена авторским коллективом АО "ЦНИИПромзданий" (руководитель разработки - д-р техн. наук, проф. В.В. Гранев, руководитель темы - канд. архитектуры Д.К. Лейкина, ответственный исполнитель - канд. архитектуры, доцент Н.В. Дубынин, исполнители - архитекторы А.И. Хорунжая, С.В. Захарова, канд. архитектуры Е.И. Кочешкова), ФГАОУ ВО СФУ Институт архитектуры и дизайна (канд. архитектуры, доцент Л.В. Гайкова).
Методическое пособие предназначено для специалистов и руководителей проектно-изыскательских и строительных организаций, учреждений и служб заказчика (инвестора) и других заинтересованных организаций, с целью обеспечения их организационно-техническими материалами, которые позволяют разрабатывать и применять высокоэффективные проектные решения зданий, обеспечивающие качество и конкурентоспособность этих объектов.
Настоящее методическое пособие рекомендуется применять при разработке архитектурно-планировочных решений и конструкций многофункциональных зданий и комплексов.
В настоящем методическом пособии использованы ссылки на следующие нормативно-технические документы:
ГОСТ 27751-2014 Надежность строительных конструкций и оснований. Основные положения
ГОСТ 30494-2011 Здания жилые и общественные. Параметры микроклимата в помещениях
ГОСТ 32670-2014 Услуги бытовые. Услуги бань и душевых. Общие технические условия
ГОСТ 33079-2014 Конструкции фасадные светопрозрачные навесные. Классификация. Термины и определения
ГОСТ 33966.1-2016 (EN 115-1:2008+A1:2010) Эскалаторы и пассажирские конвейеры. Требования безопасности к устройству и установке
ГОСТ Р 42.4.03-2015 Гражданская оборона. Защитные сооружения гражданской обороны. Классификация. Общие технические требования
ГОСТ Р 52169-2012 Оборудование и покрытия детских игровых площадок. Безопасность конструкции и методы испытаний. Общие требования
ГОСТ Р 53195.1-2008 Безопасность функциональная связанных с безопасностью зданий и сооружений систем. Часть 1. Основные положения
ГОСТ Р 53195.2-2008 Безопасность функциональная связанных с безопасностью зданий и сооружений систем. Часть 2. Общие требования
ГОСТ Р 55677-2013 Оборудование детских спортивных площадок. Безопасность конструкции и методы испытаний. Общие требования
ГОСТ Р 58154-2018 Материалы подконструкций навесных вентилируемых фасадных систем. Общие технические требования
СП 1.13130.2009 Системы противопожарной защиты. Эвакуационные пути и выходы (с изменением N 1)
СП 4.13130.2013 Системы противопожарной защиты. Ограничение распространения пожара на объектах защиты. Требования к объемно-планировочным и конструктивным решениям (с изменением N 1)
СП 7.13130.2013 Отопление, вентиляция и кондиционирование. Требования пожарной безопасности
СП 11.13130.2009 Места дислокации подразделений пожарной охраны. Порядок и методика определения (с изменением N 1)
СП 20.13330.2016 "СНиП 2.01.07-85* Нагрузки и воздействия" (с изменениями N 1, N 2)
СП 22.13330.2016 "СНиП 2.02.01-83* Основания зданий и сооружений" (с изменениями N 1, N 2, N 3)
СП 24.13330.2011 "СНиП 2.02.03-85 Свайные фундаменты" (с изменениями N 1, N 2, N 3)
СП 32.13330.2018 "СНиП 2.04.03-85 Канализация. Наружные сети и сооружения" (с изменением N 1)
СП 42.13330.2016 "СНиП 2.07.01-89* Градостроительство. Планировка и застройка городских и сельских поселений" (с изменениями N 1, N 2)
СП 45.13330.2017 "СНиП 3.02.01-87 Земляные сооружения, основания и фундаменты" (с изменениями N 1, N 2)
СП 52.13330.2016 "СНиП 23-05-95* Естественное и искусственное освещение" (с изменением N 1)
СП 59.13330.2016 "СНиП 35-01-2001 Доступность зданий и сооружений для маломобильных групп населения"
СП 60.13330.2016 "СНиП 41-01-2003 Отопление, вентиляция и кондиционирование воздуха" (с изменением N 1)
СП 82.13330.2016 "СНиП III-10-75 Благоустройство территорий" (с изменениями N 1, N 2)
СП 88.13330.2014 "СНиП II-11-77* Защитные сооружения гражданской обороны" (с изменениями N 1, N 2)
СП 118.13330.2012 "СНиП 31-06-2009 Общественные здания и сооружения" (с изменениями N 1, N 2, N 3, N 4)
СП 132.13330.2011 Обеспечение антитеррористической защищенности зданий и сооружений. Общие требования проектирования
СП 134.13330.2012 Системы электросвязи зданий и сооружений. Основные положения проектирования (с изменениями N 1, N 2)
СП 136.13330.2012 Здания и сооружения. Общие положения проектирования с учетом доступности для маломобильных групп населения (с изменением N 1)
СП 137.13330.2012 Жилая среда с планировочными элементами, доступными инвалидам. Правила проектирования (с изменением N 1)
СП 138.13330.2012 Общественные здания и сооружения, доступные маломобильным группам населения. Правила проектирования (с изменением N 1)
СП 139.13330.2012 Здания и помещения с местами труда для инвалидов. Правила проектирования (с изменением N 1)
СП 140.13330.2012 Городская среда. Правила проектирования для маломобильных групп населения (с изменением N 1)
СП 141.13330.2012 Учреждения социального обслуживания маломобильных групп населения. Правила расчета и размещения (с изменением N 1)
СП 142.13330.2012 Здания центров ресоциализации. Правила проектирования (с изменением N 1)
СП 143.13330.2012 Помещения для досуговой и физкультурно-оздоровительной деятельности маломобильных групп населения. Правила проектирования (с изменением N 1)
СП 144.13330.2012 Центры и отделения гериатрического обслуживания. Правила проектирования (с изменением N 1)
СП 146.13330.2012 Геронтологические центры, дома сестринского ухода, хосписы. Правила проектирования (с изменением N 1)
СП 147.13330.2012 Здания для учреждений социального обслуживания. Правила реконструкции (с изменением N 1)
СП 148.13330.2012 Помещения в учреждениях социального и медицинского обслуживания. Правила проектирования (с изменением N 1)
СП 160.1325800.2014 Здания и комплексы многофункциональные. Правила проектирования (с изменением N 1)
СП 165.1325800.2014 "СНиП 2.01.51-90 Инженерно-технические мероприятия по гражданской обороне" (с изменением N 1)
СП 255.1325800.2016 Здания и сооружения. Правила эксплуатации. Основные положения (с изменениями N 1, N 2)
СП 293.1325800.2017 Системы фасадные теплоизоляционные композиционные с наружными штукатурными слоями. Правила проектирования и производства работ
СП 385.1325800.2018 Защита зданий и сооружений от прогрессирующего обрушения. Правила проектирования. Основные положения (с изменением N 1)
СанПиН 2.1.2.1188-03 Плавательные бассейны. Гигиенические требования к устройству, эксплуатации и качеству воды. Контроль качества
СанПиН 2.1.2.2645-10 Санитарно-эпидемиологические требования к условиям проживания в жилых зданиях и помещениях
СанПиН 2.1.2.3150-13 Санитарно-эпидемиологические требования к размещению, устройству, оборудованию, содержанию и режиму работы бань и саун
СанПиН 2.2.1/2.1.1.1278-03 Гигиенические требования к естественному, искусственному и совмещенному освещению жилых и общественных зданий
Примечание - При пользовании настоящим методическим пособием целесообразно проверить действие ссылочных документов в информационной системе общего пользования - на официальном сайте федерального органа исполнительной власти в сфере стандартизации в сети Интернет или по ежегодному информационному указателю "Национальные стандарты", который опубликован по состоянию на 1 января текущего года, и по выпускам ежемесячного информационного указателя "Национальные стандарты" за текущий год. Если заменен ссылочный документ, на который дана недатированная ссылка, то рекомендуется использовать действующую версию этого документа с учетом всех внесенных в данную версию изменений. Если заменен ссылочный документ, на который дана датированная ссылка, то рекомендуется использовать версию этого документа с указанным выше годом утверждения (принятия). Если после утверждения настоящего методического пособия в ссылочный документ, на который дана датированная ссылка, внесено изменение, затрагивающее положение, на которое дана ссылка, то это положение рекомендуется применять без учета данного изменения. Если ссылочный документ отменен без замены, то положение, в котором дана ссылка на него, рекомендуется применять в части, не затрагивающей эту ссылку. Сведения о действии сводов правил целесообразно проверить в Федеральном информационном фонде стандартов.
3 Термины, определения и сокращения
3.1.1 вариантная планировка: Архитектурное и конструктивное решения здания, обеспечивающие возможность реализации при строительстве нескольких вариантов планировки помещений в пределах квартиры или этажа без изменения несущих конструкций.
3.1.2 гибкая планировка: Архитектурно-планировочное решение здания, обеспечивающее возможность выполнения перепланировки помещений, не затрагивая несущие конструкции.
3.1.3
дебаркадер: Сооружение для погрузки и разгрузки транспорта, обеспечивающее выравнивание уровней своей грузовой площадки и погрузочной площадки транспортного средства. |
3.1.4 стилобат: Встроенно-пристроенная малоэтажная часть многофункциональных зданий, может быть общей (объединяющей) для нескольких зданий многофункциональных комплексов.
3.1.5 трансформативная архитектура: Архитектурные решения, предусматривающие возможность динамичного изменения объемно-планировочных характеристик помещений и здания в целом, с учетом погодных условий и функциональных потребностей, с использованием технических средств.
3.2 Сокращения
КЕО - коэффициент естественной освещенности
ЛЛУ - лестнично-лифтовой узел
МФЗ - многофункциональное здание
МФК - многофункциональный комплекс
НФС - навесная фасадная система
ФПК - функционально-планировочный компонент
4 Разъяснение терминов, используемых в своде правил
4.1 Внутренний двор (
пункт 3.2 СП 160.1325800.2014) - элемент системы коммуникаций здания или комплекса. Может формироваться внутри одного здания или как пространство между несколькими примыкающими зданиями.
Внутренние дворы могут быть:
- по назначению: публичные (для отдыха, контактов, проведения массовых мероприятий и т.п.), служебные (погрузка-разгрузка, стоянка и маневрирование служебных автомобилей, временное складирование и т.п.);
- по месту в структуре МФЗ или МФК: центричные, боковые, угловые, на уровне земли, на промежуточном этаже;
- по объемно-пространственным характеристикам: открытые, крытые навесами от осадков;
- по конфигурации: простые, сложные.
Схемы возможных вариантов внутренних дворов приведены на
рисунке 4.1.
а - центричный с одним выходом/выездом, сложный;
б - центричный с несколькими выходами/выездами,
простой; в - смежные, сложные; г - боковой, простой;
д - несколько боковых, простых; е - крытый;
ж - на промежуточном этаже, открытый
Рисунок 4.1 -
Схемы возможных вариантов размещения,
конфигурации и объемно-пространственных характеристик
внутренних дворов
Рисунок 4.2 - Внутренний двор Культурного центра
в Рио-де-Жанейро
Рисунок 4.3 - Внутренний (служебный) двор здания
Гранд оперы в Осло
Рисунок 4.4 - Внутренний двор театрального здания
культурного комплекса в Тяньцзине
Рисунок 4.5 - Внутренний двор офисного комплекса
компании Bestseller в гавани Орхуса
4.2 Размещение и взаимосвязь ФПК в составе МФЗ (
пункт 3.3 СП 160.1325800.2014) может осуществляться с применением вертикальной и/или горизонтальной схем функционально-планировочной организации. Примеры схем МФЗ с размещением ФПК и устройством их коммуникационных связей приведены на
рисунке 4.6.
 - ФПК 1 |  - ФПК 3 |
 - ФПК 2 |  - коммуникации |
Рисунок 4.6 - Примеры схем МФЗ
4.3 Здания, включаемые в МФК (
пункт 3.4 СП 160.1325800.2014), следует размещать с учетом организации их рациональных взаимосвязей через коммуникационные пространства, которые могут быть устроены в различных уровнях. Примеры схем МФК с взаиморасположением зданий и устройством их коммуникационных связей приведены на
рисунке 4.7.

- ФПК 1

- ФПК 2

- коммуникации
Рисунок 4.7 - Примеры схем МФК
5.1 Специфика расчета площади МФЗ (
пункт 4.1 и
приложение А СП 160.1325800.2014) возникает в случае наличия жилой и общественной части, для которых он осуществляется по разным правилам. Схема, иллюстрирующая условное деление общих помещений здания на жилую и общественную части для расчета площади, приведена на
рисунке 5.1.
1 - общий вестибюль; 2 - вестибюль жилой части; 3 - квартиры; | 4 - ЛЛУ; 5 - вестибюль общественной части; 6 - общественные помещения |
Рисунок 5.1 - Схема деления МФЗ на жилую и общественную
части по первому этажу для подсчета площади
Специфика определения высоты и этажности здания на рельефе заключается в затруднении выбора планировочной отметки земли как точки отсчета и определении первого, цокольного, подземного, подвального этажа. Схема, иллюстрирующая выбор указанных параметров в соответствии с
приложением А СП 160.1325800.2014, приведена на
рисунке 5.2.

- заглубленные помещения;

- подземные этажи;

- надземные этажи
Рисунок 5.2 - Схема определения высоты и этажности МФЗ
5.2 При проектировании МФЗ (МФК) (
пункт 4.3 СП 160.1325800.2014) с доступностью ФПК для МГН устройство безопасных зон для них рекомендуется предусматривать в соответствии с
СП 59.13330 и
[9].
Организацию участка следует проектировать в соответствии с
СП 140.13330.
Организацию помещений общественного назначения МФК и МФЦ следует проектировать в соответствии с
СП 136.13330.
Организацию жилой части следует проектировать в соответствии с
СП 137.13330.
При организации общественных помещений функционально-планировочных компонентов МФЗ и МФК следует учитывать требования, приведенные в:
СП 138.13330 - для помещений, доступных маломобильным группам населения;
СП 141.13330 - для помещений учреждений социального обслуживания населения;
СП 143.13330 - для помещений досуговой и физкультурно-оздоровительной деятельности МГН;
СП 144.13330 - для помещений центров и отделений гериатрического обслуживания;
СП 146.13330 - для помещений геронтологических центров, домов сестринского ухода, хосписов;
СП 147.13330 - для помещений учреждений социального обслуживания при реконструкции зданий;
СП 148.13330 - для помещений учреждений социального и медицинского обслуживания при проектировании зданий.
5.3 К криминальным действиям (здесь) (
пункт 4.4 СП 160.1325800.2014) могут быть отнесены правонарушения с причинением вреда здоровью проживающих, посетителей или сотрудников МФЗ (МФК); хищением чужого имущества; грабежом, что является частью антропогенных угроз.
Следует предусматривать мероприятия по комплексной безопасности и антитеррористической защищенности МФЗ (МФК) для каждого ФПК, учитывая антропогенные и природные угрозы.
Оснащение МФЗ (МФК) системами безопасности и обеспечение антитеррористической защищенности объектов следует выполнять, применяя 1 - мероприятия организационного характера
[3],
[6],
[7], 2 - инженерно-технические и объемно-планировочные решения по
ГОСТ Р 53195.1,
ГОСТ Р 53195.2,
СП 132.13330,
[10].
5.4 Инструкция по эксплуатации МФЗ (МФК)
[10] (
пункт 4.5 СП 160.1325800.2014) должна включать в себя сведения о каждом из них. Инструкция может быть выполнена в виде технической эксплуатационной документации с учетом требований
СП 255.1325800.
5.5 Обеспечение безопасности при пользовании МФЗ (МФК) (
пункт 4.6 СП 160.1325800.2014) выполняют согласно
[1].
Безопасность при пользовании МФЗ (МФК) включает в себя: механическую безопасность, пожарную безопасность, безопасности при опасных природных процессах и явлениях и (или) техногенных воздействиях. Цель - обеспечение безопасных для здоровья человека условий проживания и пребывания в зданиях и сооружениях; доступность зданий и сооружений для инвалидов и других групп МГН; энергетическая эффективность зданий и сооружений; безопасный уровень воздействия зданий и сооружений на окружающую среду.
Основные положения по эксплуатации МФЗ (МФК) и эксплуатационному контролю должны соответствовать требованиям
ГОСТ 27751 и
СП 255.1325800.
При разработке соответствующих разделов проекта рекомендуется учитывать
[9],
[12],
[13],
[14].
6 Архитектурно-типологические особенности
6.1 Многофункциональные здания (многофункциональные комплексы) в зависимости от включаемых в их состав ФПК (
пункт 4.7 и
приложение В СП 160.1325800.2014) разделяют на типы, приведенные в
таблице В.1 СП 160.1325800.2014.
Пример условной функционально-планировочной схемы указанных типов МФЗ (МФК) приведен на
рисунке 6.1. Она предусматривает наличие не менее двух ФПК и стоянки автомобилей, объединенных помещениями общего пользования - коммуникационными пространствами, связывающими ФПК и включающими сопутствующие помещения бытового обслуживания.
1 - помещения общего пользования - коммуникационные пространства;
2 - ФПК 1;
3 - ФПК 2;
4 - стоянки автомобилей
Рисунок 6.1 - Функционально-планировочная схема МФЗ
Жилые МФЗ (МФК) следует проектировать, включая ФПК (не менее двух), представляющие собой жилые помещения - квартиры, пентхаусы, гостиницы (с номерами различного уровня комфорта и апартаментами), общежития.
В жилые МФЗ (МФК) рекомендуется включать как доступные через помещения общего пользования, так и выделенные встроенные, встроенно-пристроенные, пристроенные помещения общественного назначения для организации обслуживания проживающих. При этом в составе жилых МФЗ (МФК) не допускается размещение общественных помещений согласно
пункту 4.10 СП 54.13330.2016.
Примеры архитектурно-планировочных решений жилых МФЗ (МФК) приведены в
приложении А.
Общественные МФЗ (МФК) следует проектировать, включая ФПК (не менее двух), представляющие общественные помещения для организации мест приложения труда и обслуживания населения согласно перечню
СП 118.13330.
Примеры архитектурно-планировочных решений общественных МФЗ (МФК) приведены в
приложении Б.
Общественно-жилые МФЗ (МФК) - наиболее распространенный тип городской застройки. Их следует проектировать, включая ФПК (не менее двух), представляющие жилые и общественные помещения, указанные выше.
Примеры архитектурно-планировочных решений общественно-жилых МФЗ (МФК) приведены в
приложении В.
Производственные МФЗ (МФК) следует проектировать, включая ФПК (не менее двух), представляющие производственные помещения согласно
СП 56.13330. Достоинство такого типа МФЗ (МФК) - возможность организации сложных производственных процессов, требующих широкого набора помещений с функциями хранения, исследования, испытания и непосредственного производства в составе единого здания или зданий, взаимосвязанных между собой в МФК. Организация производственных МФЗ (МФК) снижает временные и трудовые затраты за счет оптимизации связи ФПК и производственных процессов.
При этом в производственных МФЗ (МФК) не допускается размещение ФПК, относящихся к опасным производственным объектам согласно [
4,
приложение 1]. Рекомендуется включать производственные объекты не ниже V класса с санитарно-защитной зоной 50 м в соответствии с
СанПиН 2.2.1/2.1.1.1200.
Общественно-производственные МФЗ (МФК) следует проектировать, включая ФПК (не менее двух), представляющие общественные и производственные помещения, рассмотренные выше. В том числе это могут быть административные, торговые предприятия, а также научно-исследовательские и проектные организации, позволяющие расширять функциональные процессы производства научными разработками инноваций, а также возможностью продажи изготавливаемого товара или услуги, административным управлением полного цикла.
Примеры архитектурно-планировочных решений производственных и общественно-производственных МФЗ (МФК) приведены в
приложении Г.
7.1 К объектам сервисного обслуживания (
пункт 5.1 СП 160.1325800.2014) для проживающих и работающих, рекомендуемым к размещению на участках МФЗ (МФК), в их составе или пешеходной доступности согласно
приложению В СП 118.13330.2012 следует относить:
- предприятия розничной и мелкооптовой торговли, торгово-развлекательные комплексы;
- предприятия питания (открытая и закрытая сеть);
- непроизводственные объекты бытового и коммунального обслуживания населения: предприятия бытового обслуживания населения; учреждения коммунального хозяйства; учреждения гражданских обрядов;
- объекты связи, предназначенные для непосредственного обслуживания населения;
- учреждения транспорта, предназначенные для непосредственного обслуживания населения: транспортные агентства, туристические агентства.
К предприятиям розничной и мелкооптовой торговли можно отнести магазины продовольственных и непродовольственных товаров.
Предприятия торговли с широким или универсальным ассортиментом, в случае размещения непосредственно в объеме МФЗ, рекомендуется устраивать в первых надземных этажах, во встроенно-пристроенной части, стилобате, чтобы рационально организовывать их загрузку и обеспечивать удобную доступность как для жителей, посетителей и работающих в МФЗ (МФК), так и для покупателей с прилегающей городской территории.
При размещении предприятий торговли смежно с ФПК жилой части МФЗ (МФК) следует учитывать
[15].
Пример размещения объектов сервисного обслуживания в первом этаже МФЗ приведен на
рисунке 7.1.
| - арендуемые помещения; | | - загрузочные помещения супермаркета; |
| - технические помещения | | - ЛЛУ жилой части; |
| - торговый центр; | | - ЛЛУ стоянки; |
| - офисы; | | - ЛЛУ ТЦ; |
| - загрузочные помещения ТЦ; | | - ЛЛУ офисов |
Рисунок 7.1 - План первого этажа МФК с подземной стоянкой
автомобилей на ул. Киевская, г. Москва
Предприятия питания с полным технологическим процессом целесообразно размещать аналогично рассмотренным выше предприятиям торговли с широким и универсальным ассортиментом.
Предприятия питания быстрого обслуживания, магазины кулинарии (без технологических процессов), закусочные и кафетерии рекомендуется размещать преимущественно в зонах с длительным пребыванием посетителей (спортивные залы, фитнес-центры, торговые центры, крупные магазины и др.) и организацией свободного доступа для работающих и проживающих.
Для ФПК административного назначения допускается организовывать столовые, закусочные, кафетерии непосредственно в составе офисной части в целях равномерного распределения посетителей во время рабочих перерывов. Пример организации закусочной в составе ФПК административного назначения приведен на
рисунке 7.2.
1 - технологическое помещение; 2 - технологическое помещение; 3 - кухня; 4 - зона обслуживания; | 5 - обеденный зал; 6 - уборная; 7 - уборная; 8 - ЛЛУ |
Рисунок 7.2 - Пример схемы организации закусочных
и кафетериев в составе ФПК административного назначения
Рестораны, бары и кафе для посещения в досуговое время рекомендуется размещать в наиболее обособленных частях МФЗ (МФК) с исключением сквозных потоков движения, например, на эксплуатируемых кровлях, отдельно отведенных этажах или их частях, террасах и т.п. Пример организации ресторана на эксплуатируемой кровле приведен на
рисунке 7.3.
Рисунок 7.3 - Пример организации ресторана
на эксплуатируемой крыше в Москве
Предприятия бытового обслуживания населения, размещаемые в МФЗ (МФК), могут включать в себя: ателье по пошиву и ремонту одежды, мастерские по ремонту, парикмахерские и салоны красоты, прачечные, химчистки, фотоателье и салоны печати, мультисервисы и др. Их рекомендуется размещать в первых этажах в составе общественных помещений. При устройстве предприятий бытового обслуживания смежно с ФПК жилой части рекомендуется предусматривать ограниченный режим работы в соответствии с требованиями
пунктов 4.1,
4.10 СП 54.13330.2016. Пример размещения и планировочной организации предприятия бытового обслуживания (салона красоты) в МФЗ приведен на
рисунке 7.4.
1 - зона обслуживания; 2 - процедурный кабинет; 3 - офис; | 4 - уборная МГН; 5 - уборная; 6 - массажный кабинет |
Рисунок 7.4 - Пример планировочной организации
салона красоты в составе МФЗ
К объектам связи можно отнести отделения связи, размещение которых допускается при условии обеспечения требований безопасности хранения почтовых отправлений и денежных средств и обеспечения тайны связи, а также, если такое размещение не нарушает условий оказания услуг почтовой связи.
Размещение стоянок и остановок автомобилей на участках МФЗ (МФК) осуществляется согласно требованиям
СП 113.13330. Они могут быть выполнены наземными открытыми, подземными, отдельно стоящими, встроенными, пристроенными, встроенно-пристроенными. При этом противопожарные расстояния следует соблюдать в соответствии с
СП 4.13130, а санитарные разрывы должны быть в соответствии с
СанПиН 2.2.1/2.1.1.1200. Также особенности проектирования стоянок автомобилей и обеспечение их пожарной безопасности рассмотрены в
[16].
Стоянки автомобилей на участках МФЗ (МФК) рекомендуется размещать обособлено для проживающих, работающих и посетителей.
Стоянки автомобилей для проживающих и посетителей жилой части МФЗ (МФК), работающих и посетителей общественной и производственной частей целесообразно предусматривать, исключая пересечение потоков движения автомобилей. Возможная условная схема организации стоянок в составе МФЗ с разделением въездов приведена на
рисунке 7.5.
1 | - зона стоянки проживающих; |
2 | - зона стоянки посетителей жилой части; |
3 | - зона стоянки работающих; |
4 | - зона стоянки посетителей общественной части; |
| - обязательное разделение зон стоянки ограждающими вертикальными конструкциями; |
| - возможность объединения зон стоянки |
Рисунок 7.5 - Схема организации стоянок в МФЗ (МФК)
При организации стоянок и остановок легковых автомобилей рекомендуется делать выбор в пользу встроенных и встроенно-пристроенных, в том числе с размещением в стилобатной части МФЗ (МФК). В планировочной организации внутренних пространств участка размещения МФЗ (МФК) целесообразно применение концепции "двор без машин", при которой подъезды ко входам в здания и парковочные места устраивают с внешней стороны (при горизонтальной планировочной схеме) или ниже уровня двора (при вертикальной схеме планировки).
Схемы размещения автостоянок автомобилей и гаражей в составе МФЗ (МФК) приведены на
рисунке 7.6.
а - наземная; б - встроенно-пристроенная; в - на крыше
стилобата; г - подземная одноуровневая; д - на крыше здания;
е - подземная многоуровневая; ж - встроенно-пристроенная
наземно-подземная; и - пристроенная наземная;
к - пристроенная наземно-подземная; л - комбинированная;
м - отдельно стоящая
Рисунок 7.6 - Схемы размещения автостоянок
автомобилей и гаражей
Доступ к парковочным местам посетителей МФЗ (МФК) должен быть свободным. Парковочные места посетителей общественной и производственной частей не рекомендуется размещать в подземной части МФЗ (МФК).
Пример схемы организации мест парковки и остановки легковых автомобилей на участке МФЗ приведен на
рисунке 7.7.

- административные помещения;

- гостиничные номера 1 типа:

- гостиничные номера 2 типа;

- гостиничные номера 3 типа;

- вестибюльная группа;

- технические помещения
Рисунок 7.7 - Схема размещения наземной стоянки автомобилей
в составе многофункционального комплекса
на Софийской набережной, г. Москва
Схема организации транспортных и пешеходных потоков на территории МФЗ (МФК), избегающая их пересечения, приведена на
рисунке 7.8.
1 | - ФПК жилой части; | | - пешеходный поток посетителей жилого ФПК; |
2 | - ФПК общественной части; | | - пешеходный поток посетителей общественного ФПК; |
3 | - стоянка ФПК жилой части; | | - пешеходный поток работающих общественного ФПК; |
4 | - стоянка ФПК общественной части; | | - транспортный поток посетителей общественного ФПК; |
| - транспортный поток проживающих; | | - транспортный поток работающих общественного ФПК; |
| - транспортный поток посетителей жилого ФПК; | | - обслуживание МФЗ (МФК), загрузка |
| - пешеходный поток проживающих; | |
Рисунок 7.8 - Схема организации транспортных
и пешеходных потоков на территории МФЗ (МФК)
Пример организации транспортных и пешеходных потоков на территории МФЗ приведен на
рисунке 7.9.

- транспортный поток работающих;

- пешеходный поток посетителей;

- транспортный поток технического обслуживания МФЦ, включая загрузку;

- транспортный поток посетителей
Рисунок 7.9 - МФЗ в ММДЦ "Москва Сити",
Сергей Скуратов ARCHITECTS
а, б, в - через внутренние дворы;
г, д, е - со стороны магистралей, улиц, проездов
Рисунок 7.10 - Примеры размещения зон загрузки
в составе МФЗ (МФК)
Пример схемы размещения зон загрузки на территории многофункционального здания и комплекса приведен на
рисунке 7.11.

- въезд на стоянку;

- въезд в загрузочное помещение
Рисунок 7.11 - Схема организации зон загрузки
на территории МФК
7.2 Параметры стоянок автомобилей (
пункт 5.2 СП 160.1325800.2014) определяют в соответствии с габаритами машино-мест и размерами проездов, приведенными в
приложении А СП 113.13330.2016.
При организации и проектировании объектов парковочного пространства целесообразно учитывать
[18].
Для автомобилей МГН следует предусматривать машино-места согласно
СП 59.13330.
7.3 Требуемое число машино-мест (
пункт 5.3 СП 160.1325800.2014) отдельно для каждого из объектов, входящих в состав многофункциональных зданий, определяется в соответствии с
приложением Ж СП 42.13330.2016, путем расчета одного машино-места в зависимости от числа расчетных единиц - м
2 расчетной площади, количества единовременно находящихся работающих, пассажиров в час пик, единовременных посетителей и др.
При организации стоянок автомобилей на территории МФЗ (МФК) рекомендуется учитывать возможность увеличения или сокращения их отдельных зон, исходя из возможности изменения функционального назначения компонентов многофункционального здания или комплекса в процессе эксплуатации.
С учетом плотной городской застройки и насыщенного размещения учреждений, организаций и зон в МФЗ (МФК) рекомендуется минимизировать зоны открытых стоянок для рационального использования территории участка размещения. Целесообразна их интеграция в окружающий здание ландшафт, озеленение вертикальных и горизонтальных поверхностей наземной стоянки.
7.4 Примеры схем организации, обеспечивающие автономность ФПК МФЗ (МФК) (
пункт 5.4 СП 160.1325800.2014), приведены на
рисунке 7.12. Каждая часть здания с отдельным входом может функционировать самостоятельно.
а - МФЗ; б - МФК

- вход в ФПК;

- ФПК;

- помещения общего пользования - коммуникационные пространства, связывающие ФПК, включающие сопутствующие помещения бытового обслуживания
Рисунок 7.12 - Примеры схем организации,
обеспечивающие автономность ФПК
7.5 Требования к параметрам и необходимым сочетаниям элементов благоустройства (
пункт 5.5 СП 160.1325800.2014) при их планировке приведены в
СП 82.13330.
В перечень элементов комплексного благоустройства на участках МФЗ (МФК) входят: твердые виды покрытия, элементы сопряжения поверхностей, озеленение, урны или контейнеры для мусора, осветительное оборудование, информационное оформление учреждений. В рекреационных зонах рекомендуется размещение скамей.
При организации озеленения следует учитывать особенности ландшафта и соблюдать расстояния от зеленых насаждений до зданий, линий прокладки инженерных сетей и теплотрасс, как для стационарной посадки в грунт, так и для мобильной посадки в перемещаемых емкостях. Пример организации мобильной посадки приведен на
рисунке 7.13.
Рисунок 7.13 - Организация озеленения
в виде мобильной клумбы
На территории МФЗ (МФК) следует предусматривать функциональное, архитектурное и информационное освещения.
Рекомендуется предусматривать установку дополнительных осветительных приборов на озелененных территориях или на фоне освещенных фасадов зданий, сооружений, склонов рельефа.
При благоустройстве территорий возможно использование различных видов покрытий: твердые (бетонные, каменные), мягкие (песчаные, щебневые, керамзитные, резиновые), газонные (травяной слой) и комбинированные - смешанный тип, сочетает разные варианты (например, бетонная решетка для зеленой парковки). Основные требования, предъявляемые к покрытиям - прочность, ремонтопригодность, отсутствие скольжения, экологическая безопасность.
Пример устройства покрытия на участке МФК приведен на
рисунке 7.14.
1 - плитное (твердое) покрытие в пешеходной зоне,
2 - резиновое (мягкое) покрытие в зоне активных игр
и занятий спортом, 3 - деревянный настил (террасная доска)
в прогулочной зоне
Рисунок 7.14 - Пример устройства разных видов
покрытия на участке
При организации открытых стоянок на территории МФЗ (МФК) в целях благоустройства при дефиците площадей для озеленения целесообразно оформление зеленой парковки из газонной решетки. Пример и схема устройства зеленой парковки приведены на
рисунках 7.15 и
7.16.
Рисунок 7.15 - Пример организации зеленой парковки
Рисунок 7.16 - Схема устройства зеленой парковки
Целесообразно объединять элементы благоустройства одной группы (рекреации, территории зеленых насаждений и др.), примыкающие к различным учреждения МФЗ (МФК), в целях сокращения дублирования мелких пространственных ячеек и создания единого пространства.
Комплекс мероприятий, обеспечивающий доступность МГН и включающий в себя: создание искусственного ландшафта (озеленение), устройство дорожек для пешеходов и проезжей части, устройство наружного освещения, создание зон отдыха, спорта и развлечений на участке, а также информационное обеспечение, приведен в
СП 59.13330,
СП 140.13330.
Проектировать открытые спортивные площадки следует в соответствии с
СП 332.1325800.
В соответствии с
[5] допускается устройство мест для курения с соблюдением требований к размещению и оборудованию.
Специальные места на открытом воздухе для курения табака оснащаются:
- знаком "Место для курения";
- пепельницами;
- искусственным освещением (в темное время суток);
- информационными материалами о вреде потребления табака и вредном воздействии окружающего табачного дыма.
Площадка может быть открытой, с навесом, с павильоном, при этом располагаться не ближе 15 м от детских площадок.
7.6 Рекомендуется организация комплексного озеленения (
пункт 5.6 СП 160.1325800.2014), которое включает в себя озеленение вертикальных и горизонтальных ограждающих конструкций зданий, а также контейнерное озеленение открытых общественных пространств (балконов, лоджий, террас, эксплуатируемых крыш).
Вертикальное озеленение ограждающих конструкций зданий рекомендуется организовывать со стороны магистралей, зоны загрузки предприятий торговли и питания, а также стоянок автомобилей.
При организации вертикального озеленения рекомендуется включение вьющихся растений для снижения в помещении уровня уличного шума до 15 дБ и организации дополнительной защиты от пыли и газов.
Вертикальное озеленение фасадов целесообразно для повышения уровня энергетической эффективности МФЗ в теплый период года
(рисунок 7.17). Организация вертикального озеленения может выполняться внутри здания для улучшения микроклимата помещений
(рисунок 7.18).
Рисунок 7.17 - Вертикальное озеленение здания паркинга.
Проектное предложение
Рисунок 7.18 - Вертикальное озеленение атриума
Для компенсации дефицита озелененных территорий в уровне земли рекомендуется озеленение покрытий, в том числе эксплуатируемых крыш -
рисунки 7.19 -
7.22.
Рисунок 7.19 - Многоуровневая система озеленения на кровле
Рисунок 7.20 - Озелененная кровля, полное озеленение
с подготовкой дренажной системы и усилением покрытия
Рисунок 7.21 - Сад на крыше здания с зоной рекреации.
Комбинированное озеленение
Рисунок 7.22 - Кафе на эксплуатируемой крыше.
Контейнерное озеленение
При отсутствии возможности горизонтального или вертикального озеленения или в целях учета возможности перемещения зеленых насаждений рекомендуется организация контейнерного озеленения.
При организации озеленения эксплуатируемых крыш и вертикального озеленения следует предусматривать устройство газонов, автоматических систем полива и орошения.
Проектировать озеленение МФЗ (МФК) следует с учетом
[20],
[21], в соответствии с региональными и местными нормативными документами.
Примеры озеленения эксплуатируемых крыш МФЗ (МФК) в европейских странах приведены в
приложении Д.
При устройстве зимнего сада в МФЗ (МФК) формирование фитосреды осуществляется с применением средств ландшафтного дизайна: растительности, геопластики, водных устройств, малых архитектурных форм, декоративной скульптуры, декоративного покрытия. Целесообразно размещение растительности в несколько уровней. Схемы возможных вариантов размещения зимнего сада в составе МФЗ приведены на
рисунке 7.23. Пример размещения зимнего сада в МФЗ приведен на
рисунке 7.24.
а - помещение в пристроенной части, б - помещение или зона
на этаже, в - зона в атриуме, г - помещение на крыше
Рисунок 7.23 - Схемы вариантов размещения зимнего сада
в составе МФЗ
1 - офисное пространство; 2 - зона рекреации; 3 - зимний сад: а - дорожка; б - клумбы; в - пруд; г - кустарник декоративный; д - терраса; | 4 - кухня; 5 - ЛЛУ; 6, 7 - санузлы |
Рисунок 7.24 - Пример зимнего сада в составе МФЗ
Художественная выразительность сада достигается эффективным применением водных устройств: источника, ручья, водопада, каскада, декоративного бассейна и др., в сочетании с рокариями, альпинариями, каменистыми подпорными стенками.
7.7 Учитывая перечень функциональных зон территориального планирования (
пункт 5.7 СП 160.1325800.2014) согласно
СП 42.13330, типы МФЗ (МФК) рекомендуется выбирать следующим образом:
- зона жилой застройки - жилой тип МФЗ (МФК);
- зона общественно-деловой и смешанной застройки - общественный, общественно-жилой, общественно-производственный тип МФЗ (МФК), при условии использования экологически чистых видов производств;
- зона производственной застройки - производственный, общественно-производственный тип МФЗ (МФК).
8 Объемно-планировочные и функционально-планировочные решения
8.1.1 В архитектурно-планировочном решении МФЗ (МФК) (
пункт 6.1.1 СП 160.1325800.2014) необходимо обеспечивать состав площади и взаимное расположение ФПК таким образом, чтобы исключить их взаимное отрицательное влияние и пересечение разнонаправленных потоков проживающих, работающих и посетителей, для чего необходимо разработать функционально-планировочную схему, обеспечивающую зонирование при размещении ФПК по горизонтали или вертикали.
При горизонтальном зонировании ФПК, с учетом
4.2,
4.3, их взаимосвязь обеспечивается горизонтальными коммуникациями (коридорами, галереями, холлами).
При вертикальном зонировании ФПК, с учетом
4.2,
4.3, их взаимосвязь обеспечивается вертикальными коммуникациями (ЛЛУ, эскалаторы).
Выбор вида зонирования МФЗ (МФК) зависит от набора функционально-планировочных компонентов, геометрической конфигурации здания или комплекса, а также расположения участка территории МФЗ (МФК) по отношению к прилегающим объектам.
В условиях плотной городской застройки для повышения интенсивности использования территории и увеличения полезной площади МФЗ (МФК) рекомендуется выбор вертикального зонирования.
Горизонтальное зонирование целесообразно применять, например, в случае размещения здания или комплекса вблизи магистралей. В сторону магистрали обращают общественные помещения, а жилые ориентируют во двор.
Пример применения вертикального зонирования МФЗ (МФК) приведен на
рисунке 8.1, горизонтального зонирования - на
рисунке 8.2, комбинированного -
8.3.
1 - стоянка автомобилей; 2 - стоянка автомобилей; 3 - технические помещения; 4 - торговый центр; 5 - супермаркет; 6 - складская зона; 7 - технические помещения; 8 - торговый центр; 9 - фудкорт; 10 - автомойка; | 11 - складская зона; 12 - вход в торговый центр; 13 - арендуемые помещения; 14 - вход в офис; 15 - загрузка супермаркета; 16 - загрузка фудкорта; 17 - технические помещения; 18 - гостиничные номера; 19 - офисы; 20 - технические помещения |
Рисунок 8.1 - Пример применения вертикального зонирования
МФК с подземной автостоянкой на ул. Киевская, г. Москва
1 - гостиница; 2 - квартиры; | 3 - фитнес-центр; 4 - внутренний двор |
Рисунок 8.2 - Пример применения горизонтального зонирования
МФК "Юность", г. Москва
При необходимости может производиться совмещение вертикального и горизонтального зонирования, пример которого приведен на
рисунке 8.3.
1 - танцевальные залы; 2 - фитнес клуб 1; | 3 - фитнес клуб 2; 4 - зал персональных тренировок |
Рисунок 8.3 - Пример применения
комбинированного зонирования МФК
Примеры использования вида зонирования для учета градостроительных факторов и социально-экономической эффективности и МФЗ (МФК) приведены в
таблице 8.1.
Таблица 8.1
Эффективность зонирования
Вид зонирования | Схема размещения ФПК в структуре МФЗ (МФК) | Назначение | Эффективность |
Вертикальное | | Учет градостроительной ситуации | Компенсация влияния отрицательных факторов окружающей застройки и видов из окон, конфигурации участка и плотности застройки |
Горизонтальное | |
Комбинированное | |
Горизонтальное | | Учет экологических факторов | Шумозащита жилища за счет ориентации |
Вертикальное | | Учет природно-климатических факторов | Обеспечение нормируемой инсоляции и естественного освещения |
Горизонтальное | |
Горизонтальное | | Учет эксплуатационных факторов | Увеличение глубины корпуса и повышение энергоэффективности |
Условные обозначения: | | - ФПК 1; |
| - ФПК 2; |
Ш | - воздействие шума; |
| - воздействие солнца; |
А | - атриум |
8.1.2 К основным помещениям, формирующим ФПК МФЗ (МФК) (
пункт 6.1.2 СП 160.1325800.2014), относят жилые, общественные и производственные.
Жилые помещения могут быть представлены квартирами (для постоянного проживания и сдаваемыми внаем), номерами гостиниц, хостелов, блоками и ячейками общежитий, классификация которых установлена
СП 54.13330,
СП 257.1325800,
СП 379.1325800.
Общественные помещения, используемые для организации мест приложения труда и обслуживания населения, выбирают согласно "Перечню основных функционально-типологических групп зданий и сооружений и помещений общественного назначения", приведенному в
приложении В СП 118.13330.2012.
Производственные помещения следует предусматривать для объектов, санитарно-защитная зона которых может быть реализована в рамках МФЗ (МФК), обеспечивая безопасность других (смежных) ФПК при эксплуатации объекта в штатном режиме согласно
СанПиН 2.2.1/2.1.1.1200. Рекомендуемый перечень производственных помещений с минимальными санитарно-защитными зонами, которые целесообразно включать в МФЗ (МФК), приведен в
приложении Е.
8.1.3 Сооружения двойного назначения (
пункт 6.1.3 СП 160.1325800.2014) обеспечивают защиту населения от чрезвычайных ситуаций (далее - ЧС) природного и техногенного характера, а также от опасностей, возникающих при ведении военных действий или вследствие этих действий. При этом в штатном режиме эксплуатации существует возможность использовать помещения данных сооружений для общественных функций, что обеспечивает экономическую эффективность.
8.1.4 Примеры организации горизонтальных и вертикальных коммуникаций, применяемых в проектах МФЗ (МФК) (
пункт 6.1.4 СП 160.1325800.2014), приведены в
таблице 8.2.
Таблица 8.2
Коммуникационные пространства МФЗ (МФК)
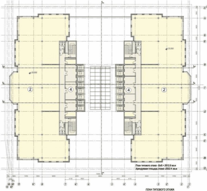
Тип коммуникации | Схема функционально-планировочного решения | Пример проектного решения | Применение |
Стилобат | | | Обеспечивает коммуникационную связь двух и более отдельно стоящих или блокируемых зданий |
Коридор, галерея | | | Обеспечивает коммуникационную связь двух и более ФПК внутри одного здания или нескольких блокируемых зданий. С учетом пункта 7.9 СП 160.1325800.2014, раздела 7 СП 7.13130.2013, [23], [24] |
Переход между зданиями | | | Обеспечивает коммуникационную связь двух и более отдельно стоящих зданий МФК, допускается располагать в уровне любого надземного или подземного этажа, быть теплым или холодным. |
| | Рекомендуется с использованием наружных ограждающих конструкций |
Эксплуатируемая крыша | | | Обеспечивает коммуникационную связь двух и более блокируемых или отдельно стоящих зданий. С учетом пункта 6.1.15 СП 160.1325800.2014 |
Атриум | | | Обеспечивает коммуникационную связь двух и более ФПК в объеме одного здания или нескольких блокируемых и отдельно стоящих зданий. С учетом раздела 7 СП 7.13130.2013 и [23] |
ЛЛУ | | | Обеспечивает коммуникационную связь двух и более ФПК в объеме одного здания. С учетом пункта 7.9 СП 160.1325800.2014, [24] |
Требования безопасности к устройству и установке эскалаторов приведены в
ГОСТ 33966.1.
Требования к устройству подъемных платформ для доступа МГН приведены в
СП 59.13330.
8.1.5 При проектировании МФЗ (МФК) площадью застройки более 1000 м
2 или шириной более 100 м (
пункт 6.1.5 СП 160.1325800.2014) подъезд пожарных автомобилей должен быть обеспечен со всех сторон в соответствии с [
2,
статья 67].
При периметральной застройке следует организовывать сквозные пожарные проезды через каждые 300 м по фронту.
Ширина проездов для пожарной техники и расстояние от них до фасадов устанавливается в зависимости от высоты МФЗ (МФК) в соответствии с
СП 4.13130. Примеры организации сквозных пожарных проездов приведены на
рисунках 8.4,
8.5.
Рисунок 8.4 - Пример организации сквозного проезда
Рисунок 8.5 - Пример организации сквозного проезда
8.1.6 Высота помещений (
пункт 6.1.6 СП 160.1325800.2014) регламентируется
СП 118.13330 и
СП 54.13330. Ее следует назначать с учетом возможности обеспечения вариантной планировки и гибкости архитектурно-планировочных решений со сменой функционального назначения помещений в процессе эксплуатации. Кроме требований к высоте различных функциональных групп помещений, следует принимать во внимание их инженерно-техническое оснащение (системы вентиляции и кондиционирования), для которого рекомендуется зарезервировать пространство над подшивным или подвесным потолком или в конструкции пола (поэтажные разводки систем отопления, водоснабжения, в некоторых случаях водоотведения, электроснабжения).
Гибкость архитектурно-планировочных решений первых этажей МФЗ (МФК) следует обеспечивать, в том числе, с помощью высоты помещений (от уровня чистого пола до выступающих конструкций, подшивного или подвесного потолка) не менее 3,5 метров. Примеры проектирования МФЗ с различной высотой этажей в зависимости от функционального назначения помещений приведены на
рисунках 8.6,
8.7.
Высота первого этажа с коммерческими помещениями - 3,9 м;
высота второго этажа с бизнес-центром - 3,9 м,
высота типового этажа - 3,0 м
Рисунок 8.6 - Продольный разрез МФК "Пять звезд"
вдоль "Спортивного" сквера
Высота первого этажа с помещениями для предприятий
торговли - 5,1 м; высота типового этажа - 3,45 м
Рисунок 8.7 - МФК в Раменках, г. Москва.
Разрезы. Проект, 2013
Высоту технических этажей МФЗ (МФК) следует устанавливать не менее 2,1 м до низа выступающих конструкций по
СП 118.13330.
Высота технического этажа зависит от устраиваемого инженерного оборудования, его оснащения амортизирующими системами, материалами для поглощения вибрации, звукоизолирующих мероприятий.
8.1.7 В соответствии с требованиями
СП 118.13330 (
пункт 6.1.7 СП 160.1325800.2014) отметка площадки перед входом в здание должна быть выше отметки тротуара перед входом не менее чем на 0,15 м. При этом допускается принимать отметку площадки ниже при условии защиты помещений от попадания воды с тротуара, в результате выпадения осадков или таяния снега, с учетом их максимальной нормы. Варианты организации входов рассмотрены в
таблице 8.3.
Таблица 8.3
Варианты организации входа в МФЗ (МФК)
в зависимости от отметки площадки
Принцип организации | Схема организации | Пример организации | Достоинства | Недостатки |
Отметка площадки на уровне тротуара | | | Беспрепятственный доступ для МГН, в т.ч. на креслах-колясках без устройства пандусов и подъемников | Возможность попадания воды в помещения в случае обильных осадков, сочетания неблагоприятных погодных условий или ЧС |
Отметка площадки выше уровня тротуара | | | Защита от попадания воды в помещения в случае обильных осадков, сочетания неблагоприятных погодных условий или ЧС | Необходимость дополнительных мероприятий для обеспечения доступа МГН (устройство пандусов и/или подъемных механизмов) |
Устройство входа и помещений на уровне тротуара или выше определяют необходимостью их визуальной связи с пешеходным пространством улицы или, наоборот, требованием ограничить ее и исключить полную просматриваемость помещений.
8.1.8 При проектировании тамбура (
пункт 6.1.8 СП 160.1325800.2014) следует учитывать возможность беспрепятственного перемещения МГН, в том числе инвалидов на креслах-колясках. Параметры тамбура следует принимать с учетом
СП 59.13330.
Устройство двойного тамбура обеспечивает повышение энергоэффективности здания за счет снижения затрат на отопление вестибюля.
8.1.9 При организации внутреннего водостока (
пункт 6.1.9 СП 160.1325800.2014) рекомендуется ограничивать размещение его систем над жилыми помещениями, стояки водостока необходимо устраивать в объеме внеквартирных коридоров. Такое размещение позволяет сократить масштабы последствий при аварийной ситуации, а также обеспечивает беспрепятственный доступ для технического обслуживания в течение всего периода эксплуатации. В нише или шахте, где установлен стояк, необходимо предусматривать сантехнические дверцы и люки размерами не менее 30 x 40 см.
Рекомендации по размещению систем водостока в гостиничной части МФЗ приведены в
[25].
Кровельные воронки следует выбирать в зависимости от конструкции и материалов крыши в соответствии с
СП 30.13330 и
СП 32.13330.
Схемы организации системы водостока в зависимости от высоты МФЗ (МФК) приведены в
таблице 8.4.
Таблица 8.4
Схемы организации водостока
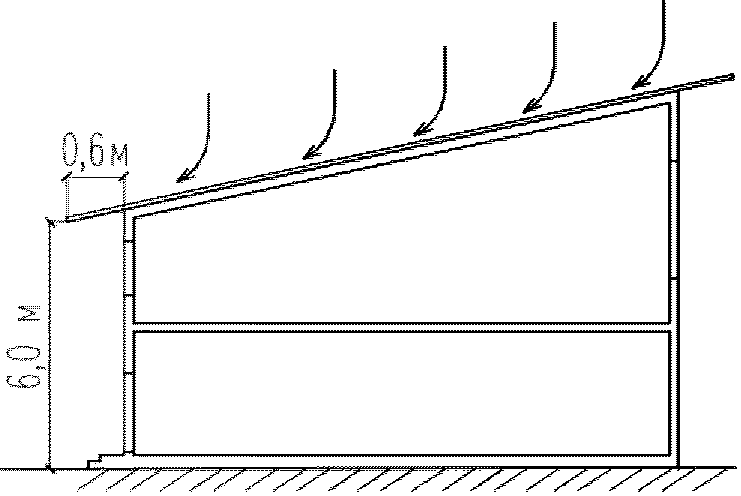
Схема устройства системы водостока | Требования к организации системы водостока |
| От одного до двух этажей включительно (но не выше 6 м) - допускается любой тип водостока, в том числе неорганизованный, при обязательном устройстве козырьков над входами и балконами второго этажа, вынос карниза при этом должен быть не менее 0,6 м |
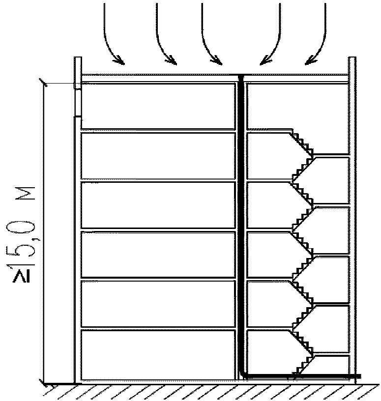
| От трех до пяти этажей включительно (но не выше 15 м) - следует предусматривать наружный организованный водосток или, при необходимости, внутренний |
| Шесть и более этажей (или выше 15 м) - должен устраиваться только внутренний водосток |
8.1.10 Проектировать эксплуатируемые кровли МФЗ (МФК) (
пункт 6.1.10 СП 160.1325800.2014) в целях обеспечения требований безопасности зданий и сооружений следует в соответствии с
СП 17.13330.
При устройстве общественных площадок на эксплуатируемой кровле над жилой частью МФЗ (МФК) следует соблюдать расстояния от окон жилых помещений, выходящих на кровлю, до указанных площадок в соответствии с требованиями
СП 42.13330.
Конструктивное решение эксплуатируемых крыш принимается в зависимости от вида нагрузки (пешеходная и транспортная) в соответствии с
СП 20.13330. При этом следует уделять внимание ветровым нагрузкам, воздействующим на озеленение и малые архитектурные формы, обеспечению устойчивости деревьев и кустарников, которые предусматриваются выше сплошного ограждения или стационарных ветрозащитных экранов.
К размещению на эксплуатируемых кровлях МФЗ (МФК) допускаются: зоны для отдыха, спортивные площадки, стоянки автомобилей, автомобильные проезды транспорта над подземными паркингами, на стилобатах и др. (
рисунки 8.8 -
8.12).
Рисунок 8.8 - Размещение кинотеатра
на эксплуатируемой кровле, г. Санкт-Петербург
Рисунок 8.9 - Зона отдыха
на эксплуатируемой кровле, г. Санкт-Петербург
Рисунок 8.10 - Организация спортивной площадки
на эксплуатируемой кровле, Китай
Рисунок 8.11 - Организация спортивной площадки
на эксплуатируемой кровле, Россия
При размещении на эксплуатируемой кровле зон отдыха для посетителей, проживающих и работающих рекомендуется устраивать навесы, экраны и другие конструкции для защиты от атмосферных осадков.
Рисунок 8.12 - Организация стоянки для автомобилей
на эксплуатируемой кровле, США
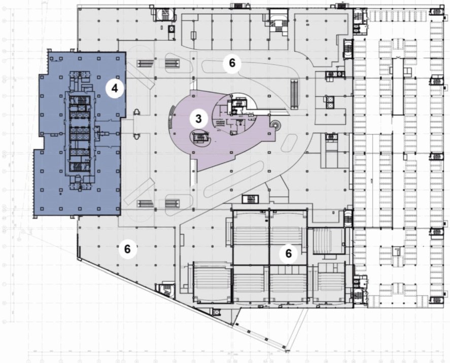
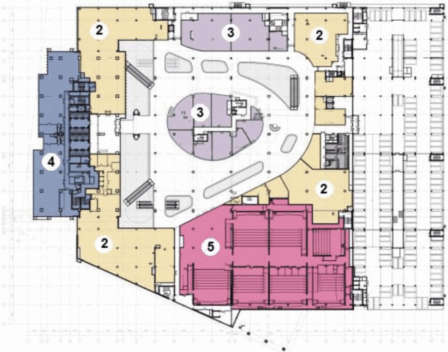
8.1.11 Основные требования к архитектурному решению вестибюля (
пункт 6.1.11 СП 160.1325800.2014) обусловлены необходимостью визуальной ориентации при поиске и проходе к лестницам, лифтам и другим необходимым помещениям и коммуникациям.
При условии высокой пропускной способности вестибюльной группы рекомендуется предусматривать холл, в котором бы потоки посетителей не мешали друг другу, а их временное скопление не затрудняло проход остальных. В вестибюле следует предусматривать зону, отделенную от остальной части пунктом контроля. Варианты планировки вестибюлей приведены на
рисунке 8.13.
а, б - фронтальная симметричная; в - глубинная симметричная;
г - асимметричная с вынесением лифтов в сторону от оси;
1 - вестибюль; 2 - тамбур; 3 - гардероб
Рисунок 8.13 - Варианты планировки вестибюлей
В составе вестибюльной группы дополнительно рекомендуется предусматривать место для администратора, холлы для ожидающих посетителей, места для информационного табло, интерактивных карт, площадки для стендов открытого распространения печатных информационных и рекламных материалов и др. Пример организации помещения диспетчерской приведен на
рисунке 8.14.
Рисунок 8.14 - Пример организации диспетчерской
Если в МФЗ (МФК) размещаются помещения для проведения выставок, семинаров, презентаций, следует предусматривать помещение для верхней одежды и уборные для посетителей этих мероприятий.
Вестибюльные группы гостиниц рекомендуется проектировать с учетом
[25].
Рисунок 8.15 - Пример организации вестибюльной группы ФПК
с офисными и служебно-бытовыми помещениями
Рисунок 8.16 - Пример организации вестибюльной группы
жилой части МФЗ (МФК)
1 - центральный вестибюль; 2 - вестибюль фитнес-центра; | 3 - вестибюль фитнес-центра; 4 - вестибюль зала индивидуальных занятий |
Рисунок 8.17 - План первого этажа МФЗ
с организацией нескольких вестибюльных групп
8.1.12 Следует учитывать (
пункт 6.1.12 СП 160.1325800.2014), что шум от технологического оборудования и общественных мероприятий в общественных помещениях может нарушать комфорт жилых помещений. Чтобы исключить данный фактор снижения комфорта и нарушения санитарных норм, необходимо предусматривать не только конструктивные решения по шумоизоляции ограждающих конструкций, согласно
СП 51.13330, но и планировочные мероприятия, предусматривающие отделение помещений с источниками шума от жилых буферной зоной: техническим пространством, помещениями, эксплуатация которых не связана с шумом (подсобных помещений, кладовых, коридоров, кухонь, санузлов и т.п.).
8.1.13 Лестничные клетки и лифты (
пункт 6.1.13 СП 160.1325800.2014), как правило, объединяют в лестнично-лифтовой узел, который может включать несколько лестничных клеток и лифтовой холл с несколькими лифтовыми шахтами, шахты инженерных коммуникаций (вентиляции, водоснабжения и др. инженерных сетей), технические, служебные и хозяйственные помещения (санузлы, венткамеры, шкафы с инженерным оборудованием).
Пассажирские лифты рекомендуется сосредоточивать в группы, обслуживающие, в зависимости от функционально-планировочного решения, все здание, определенные этажи или конкретный ФПК.
В каждой группе должно быть не более восьми лифтов. При применении четырех или шести лифтов они также могут быть установлены в один или два ряда, чтобы обеспечивать наиболее короткое расстояние от кнопки вызова до лифта. Размещение лифтов с трех сторон лифтового холла не рекомендуется. Рекомендуемые схемы группирования и размещения лифтов приведены на
рисунке 8.18.
Рисунок 8.18 - Рекомендуемые схемы группирования
пассажирских лифтов
Общие требования к лифтам, выбору схемы организации их работы (высотного зонирования или высотного разделения с пересадкой), схеме управления лифтами (последовательная, собирательная, двусторонняя собирательная, избирательная), их расчету изложены в
подразделе 10.5 СП 267.1325800.2016.
Лифты для транспортирования пожарных подразделений следует предусматривать в соответствии с
СП 4.13130.
Минимальную ширину лестничных маршей следует определять в соответствии с
СП 1.13130, а также на основании расчета по эвакуации. Методика расчета эвакуации людей при пожаре приведена в
СП 11.13130.
8.1.14 Помещение для временного пребывания и досуга детей (
пункт 6.1.14 СП 160.1325800.2014) рекомендуется разделять на игровые зоны в зависимости от возраста детей, а также выполняемых функциональных процессов (мероприятий) с учетом оборудования, инвентаря и т.п. Примеры организации помещения для временного пребывания и досуга детей приведены на
рисунках 8.19,
8.20.
Рисунок 8.19 - Пример организации помещения
для временного пребывания и досуга детей
1 - учебный класс; 2 - игровая (А - зона прикладного рукоделия; Б - зона просмотра видеоматериалов; В - зона подвижных игр) |
Рисунок 8.20 - Пример организации помещения
для временного пребывания и досуга детей
Отделку следует выбирать исходя из требований экологичности и легкой очистки. Стены в помещении должны быть ровные и гладкие.
8.2.1 Архитектурно-планировочные решения жилых помещений
[26] (
пункт 6.2.1 СП 160.1325800.2014) следует принимать на основании
СП 54.13330.
Площади жилых помещений должны соответствовать условиям размещения минимально-оптимального набора мебели и выполнения основных функциональных процессов, эргономики
ГОСТ Р 56274, при этом быть не менее значений, установленных в
пункте 5.2 СП 54.13330.2016.
Параметры жилых помещений для МГН, включая инвалидов на креслах-колясках, следует устанавливать в соответствии с требованиями
СП 59.13330 и
СП 137.13330.
При определении пропорций жилых комнат рекомендуется делать выбор в пользу следующих отношений ширины и глубины: 1:1; 1:1,25; 1:1,5.
При оборудовании жилых комнат мебелью рекомендуется занимать не более 45% их площади.
При проектировании пентхаусов в составе МФЗ (МФК) рекомендуется предусматривать панорамное остекление для организации вида на окружающую городскую среду, устройство открытых и/или крытых террас на эксплуатируемой крыше, возможность устройства отдельного лифта.
Примеры архитектурно-планировочных решений пентхаусов в составе МФЗ (МФК) приведены на
рисунках 8.21 -
8.23.
Рисунок 8.21 - Архитектурно-планировочные решения пентхауса
в ЖК Кутузовская Ривьера, г. Москва
Рисунок 8.22 - Архитектурно-планировочные решения пентхауса
в ЖК Найтбридж Парк (Knightsbridge Park), г. Москва
Рисунок 8.23 - Архитектурно-планировочные решения пентхауса
в ЖК Найтбридж Парк (Knightsbridge Park), г. Москва
В составе входной группы жилой части МФЗ (МФК) рекомендуется предусматривать помещения для хранения детских колясок и спортивного инвентаря (велосипедов, лыж и др.) из расчета 0,06 м
2 на одного проживающего и исходя из процентного соотношения жителей дома. Примеры организации помещений колясочных приведены на
рисунке 8.24.
I - зоны для размещения детских колясок (а)
и велосипедов (б) в составе колясочных;
II - примерные схемы колясочных (в, г, е, ж)
и помещений для хранения велосипедов (д, и)
Рисунок 8.24 - Примеры организации помещений колясочных
8.2.2 Согласно
приложению Л СП 52.13330.2016 жилые комнаты (
пункт 6.2.2 СП 160.1325800.2014) должны иметь естественное освещение при боковом освещении 0,5, а при верхнем - 2,0 КЕО ен, %.
Естественное освещение помещений рассчитывается в соответствии с
пунктом 5.14 СП 52.13330.2016. На основании выполненного расчета назначаются размеры световых проемов или их можно назначать по упрощенной методике согласно
пункту 9.13 СП 54.13330.2016, где приведены соотношения их площади к площади пола жилых комнат.
При разработке функционального зонирования МФЗ (МФК) жилые помещения квартир необходимо, а жилые комнаты гостиничных номеров и общежитий, в том числе квартирного типа, желательно размещать так, чтобы обеспечивать инсоляцию (например, в верхней части объема здания, не затеняемой соседними корпусами и примыкающей застройкой, исключая ориентацию на север). Кроме того, в целях возможности контроля микроклимата помещений и защиты от перегрева помещений через светопрозрачные конструкции, рекомендуется предусматривать установку дополнительных автоматических механизмов, включая элементы трансформативной архитектуры.
Примеры применяемых элементов трансформативной архитектуры фасадных систем приведены в
таблице 8.5.
Таблица 8.5
Элементы трансформативной архитектуры фасадных систем
Наименование | Применение | Пример |
Ставни, щитовые элементы | С помощью ставен может быть отрегулирована степень солнечного воздействия, соответствующая комфортному микроклимату помещений | |
Панели | Благодаря легким перфорированным панелям, соединенным между собой шарнирно, стоянка имеет регулируемое проветривание и защищена от попадания солнечных лучей | |
Перфорируемые жалюзи | Треугольные жалюзи из перфорированной стали регулируют освещенность с учетом меняющегося дневного света в зависимости от его интенсивности | |
Без естественного освещения допускается проектировать вспомогательные помещения (коридоры, вестибюли, холлы, подсобные помещения).
Помещения предпринимательской деятельности в составе квартир согласно
пункту 4.14 СП 54.13330.2016 могут быть представлены кабинетами врачебного приема, массажа, дошкольных образовательных организаций (до 10 детей). Пример организации такого помещения в составе квартиры приведен на
рисунке 8.25.
1 - холл; 2 - санузел; 3 - кухня; | 4 - жилая комната; 5 - кабинет стоматолога; 6 - гардероб |
Рисунок 8.25 - Пример организации кабинета врачебного приема
в составе квартиры
8.2.3 Типологию номеров, возможность объединения номеров для более гибкого использования номерного фонда, архитектурно-планировочные решения номеров по размещению оборудования (
пункт 6.2.5 СП 160.1325800.2014) рассмотрены в
[25].
8.3 Общественные помещения
8.3.1 К общественным помещениям, включаемым в МФЗ (МФК) (
пункт 6.3.1 СП 160.1325800.2014), следует применять требования
СП 118.13330. Кроме того, устраивая офисы, следует учитывать частое изменение конъюнктуры рынка и спроса на разные типы данных помещений, отличающихся по планировочной структуре (модульные, комбинированные, открытые и бизнес-клубы). Для этого целесообразно предусматривать гибкость и вариантность архитектурно-планировочных решений, позволяющих варьировать параметры основных, подсобных и коммуникационных помещений, повышая их приспособляемость к текущим условиям.
Рекомендации по организации каждого из видов офисов и примеры их архитектурно-планировочных решений приведены в
[24].
Из помещений спортивно-физкультурного назначения в составе МФЗ (МФК) целесообразно размещать следующие:
- крытые спортивные сооружения (залы, манежи, бассейны);
- физкультурно-досуговые комплексы, аквапарки.
Согласно
СанПиН 2.1.2.1188 и
СП 310.1325800 плавательные бассейны со вспомогательными помещениями для их обслуживания могут размещаться в составе МФК в отдельно стоящих зданиях или в виде открытых сооружений, что обеспечивает их особую привлекательность, а в МФЗ устраиваться пристроенными, встроенными или встроенно-пристроенными. При этом допускается их размещение на верхних этажах и эксплуатируемой крыше (могут быть открытыми).
При устройстве открытых бассейнов следует учитывать влияние влажного воздуха на рядом стоящие здания и прилегающую застройку в части защищенности фасадов и микроклимата на улице и в помещениях. Примеры размещения открытых бассейнов в составе МФЗ (МФК) приведены на
рисунках 8.26,
8.27.
Рисунок 8.26 - Пример размещения бассейна
на эксплуатируемой крыше МФЗ, г. Новосибирск
Рисунок 8.27 - Пример размещения отдельно стоящего бассейна
в составе МФК, г. Москва, ул. Мироновская, вл. 25
Архитектурно-планировочные решения театрально-зрелищных помещений рассмотрены в
[27].
8.3.2 Загрузку общественных помещений, примыкающих к жилому ФПК МФЗ (МФК) (
пункт 6.3.2 СП 160.1325800.2014), следует устраивать в соответствии с
пунктом 4.12 СП 54.13330.2016.
В МФЗ загрузка может быть организована в пристроенных или встроенных помещениях. При этом рекомендуется предусматривать возможность перемещения грузов от них до помещений назначения с помощью грузовых лифтов, подъемников и по специальным служебным коридорам без пересечения коммуникационных пространств для служащих и посетителей. Примеры размещения загрузки МФЗ приведены на
рисунке 8.28.
а - в уровне земли, б - в уровне наземного этажа,
в - в уровне цокольного этажа;
1 - место загрузки; 2 - грузовой лифт, подъемник;
3 - служебный коридор
Рисунок 8.28 - Размещение загрузки
8.3.3 Бани и сауны (
пункт 6.3.4 СП 160.1325800.2014) целесообразно проектировать в составе физкультурно-оздоровительных центров или по соседству с ними и располагать в первых этажах МФЗ (МФК), бани сухого жара возможно располагать в цокольных этажах. Сауны в составе квартир рекомендуется располагать смежно с санузлами и уборными. Помещения бани, как правило, разделяются на две основные функциональные зоны: ванно-душевое отделение (10% общей площади), банное отделение (90% общей площади).
Планировка бани должна соответствовать гигиеническому принципу последовательности функционального процесса в соответствии с требованиями
СанПиН 2.1.2.3150. Схема движения посетителей: гардероб, раздевальная с санузлом, мыльная, парильная. Кроме основных помещений допускается размещать помещения для маникюра и педикюра, массажа, парикмахерских и косметических услуг; прачечные; объекты общественного питания, розничной торговли, бассейны.
Общественная сауна состоит из парной (одной или нескольких), раздевалки, моечной и рекреационной зон. Кроме этого, должны быть предусмотрены помещения для персонала, которые располагают у входа и удобно связаны с кладовыми для простынь и полотенец. Помещения для дополнительных услуг предусматривают согласно
ГОСТ 32670.
Комнаты для массажа и ультрафиолетового облучения целесообразно включать в состав обслуживающих помещений. Их следует располагать как можно ближе к помещениям для персонала. Пример возможной планировки сауны в составе МФЗ (МФК) приведен на
рисунке 8.29.
а - продольная система; б - центрическая система
Рисунок 8.29 - Пример возможной планировки комплексов сауны
9.1 При проектировании МФЗ и зданий, входящих в состав (МФК) (
пункт 6.1.16 СП 160.1325800.2014), допускается сочетание различных конструктивных схем для различных групп этажей. Для общественных помещений целесообразно применение каркасной схемы, что обеспечивает гибкость архитектурно-планировочных решений. При этом наличие ригелей и колонн в интерьере не мешает или может быть скрыто за счет подвесного потолка и дизайна. Для жилых помещений, где наличие колонн, пилонов и ригелей в интерьере комнат нежелательно, наиболее эффективно использование систем с широким шагом несущих конструкций
[28].
Проектировать крупные торговые центры, театрально-зрелищные и/или спортивные учреждения и другие зальные помещения с большими пролетами в составе МФЗ (МФК) следует в соответствии с
СП 304.1325800.
В целях обеспечения защиты от прогрессирующего обрушения конструктивных систем с учетом уровня их ответственности следует соблюдать требования
ГОСТ 27751 и
СП 385.1325800.
Рекомендации в части проектирования мероприятий по защите от прогрессирующего обрушения приведены в
[29].
При применении НФС их крепление к несущим конструкциям следует проектировать согласно
ГОСТ 33079,
СП 293.1325800. Жесткость и прочность конструктивных элементов НФС при расчете на ветровую нагрузку должна соответствовать требованиям
ГОСТ 23166 и
СП 20.13330. Толщина стекол должна приниматься по
ГОСТ 23166 в зависимости от площади, соотношения сторон поля остекления и ветровой нагрузки с учетом всех ее составляющих, но не менее 6 мм для наружных стекол.
Методика и пример прочностного расчета НФС приведены в [
24, приложение К].
Требования к материалам конструкций навесных вентилируемых фасадных систем приведены в
ГОСТ Р 58154.
10 Инженерное оборудование
10.1 При проектировании пентхаусов в составе МФЗ (МФК) (
пункт 6.2.1 СП 160.1325800.2014) рекомендуется предусматривать возможность организации индивидуальных систем отопления, кондиционирования и вентиляции и необходимую высоту потолков - для обеспечения прокладки инженерных коммуникаций над подвесным или подшивным потолком.
10.2 Дождевую канализацию (
пункт 10.2 СП 160.1325800.2014), включая отвод, очистку дождевых и талых вод, конструктивные решения, проектируют в соответствии с
СП 32.13330,
[30].
10.3 Параметры микроклимата в помещениях, в том числе тепловлажностный режим, класс качества воздуха (
пункт 10.3 СП 160.1325800.2014) следует принимать согласно
ГОСТ 30494. При этом качество воздуха в жилых и общественных помещениях МФЗ рекомендуется устанавливать высокое или среднее - обеспечивающее соответствие современной концепции "здоровое здание" - здание, в котором приоритетность имеют технические решения, одновременно способствующие улучшению микроклимата помещений и защите окружающей среды, не оказывающие отрицательное влияние на здоровье и самочувствие человека.
10.4 В помещениях МФЗ (
пункт 10.5 СП 160.1325800.2014) целесообразно применять автономное адресное регулирование вентиляции и кондиционирования, что повышает их эффективность, экономичность, а также комфорт в помещениях.
10.5 Напорные участки воздуховодов систем вентиляции (
пункт 10.7 СП 160.1325800.2014), в воздухе которых могут быть вредные вещества, рекомендуется устраивать за пределом объема здания со стороны глухих (без окон) фасадов согласно
СП 60.13330.
10.6 По заданию на проектирование (
пункт 10.10 СП 160.1325800.2014) в качестве внутреннего (резервного) источника электроснабжения может предусматриваться встроенная в здание или отдельно стоящая дизельная электростанция (далее - ДЭС) при условии исключения негативного влияния на жилые и общественные помещения МФЗ (МФК), а также окружающую застройку, в частности по уровню шума, вибрации, экологической безопасности. Устройство ДЭС следует выполнять в соответствии с требованиями
СП 4.13130,
СП 88.13330,
[31].
10.8 Основные особенности систем пылеуборки и мусороудаления (
пункт 10.14 СП 160.1325800.2014) рассмотрены в
[25]. Следует отметить, что вакуумная система мусороудаления может быть целесообразна при ее применении в МФК, имеющих объекты, требующие организации мусороудаления, рассредоточенные по территории.
ПРИМЕРЫ ПРОЕКТИРОВАНИЯ ЖИЛЫХ МНОГОФУНКЦИОНАЛЬНЫХ ЗДАНИЙ
(МНОГОФУНКЦИОНАЛЬНЫХ КОМПЛЕКСОВ)
А.1 Жилой комплекс "Привилегия". Россия, Санкт-Петербург, ул. Вязовая, д. 8. Архитектурная студия "INTERCOLUMNIUM" [32], [33]
9 - 10-этажный жилой комплекс (
рисунки А.1 -
А.5) состоит из шести корпусов на 337 квартир. Корпуса комплекса с офисными помещениями располагаются на кровле надземной стоянки автомобилей. На территории комплекса располагаются фитнес-центр, детский сад на 60 мест, благоустроенная зеленая зона с фонтанами, детские площадки и ресторан.
Общая площадь участка - 23 487 м2; площадь застройки - 22 345 м2; общая площадь жилых помещений - 48 408,36 м2; площадь стоянки автомобилей - 13 979 м2; общая площадь офисных помещений - 2890,04 м2.
Рисунок А.1 - Генеральный план жилого комплекса
Рисунок А.2 - Объемная модель жилого комплекса (вид сверху)
Рисунок А.3 - Объемная модель жилого комплекса
(вид на внутренний двор)
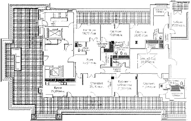
Рисунок А.4 - План типового этажа жилого комплекса
 - однокомнатные квартиры; |  - четырехкомнатные квартиры; |
 - двухкомнатные квартиры; |  - ЛЛУ |
 - трехкомнатные квартиры; | |
Рисунок А.5 - План типового этажа секции жилого комплекса
А.2 Многофункциональный жилой комплекс. Россия, г. Екатеринбург, ул. Стрелочников - ул. Героев России. Архитектурная студия "Архстройдизайн АСД" [34]
25-этажный комплекс (
рисунки А.6 -
А.11) состоит из трех башен, объединенных стилобатом. В башнях расположена жилая часть комплекса, включающая в себя 784 квартиры. В стилобате расположены стоянки автомобилей для посетителей, работающих и проживающих в МФК, торговые и офисные помещения, тренажерные залы.
Общая площадь участка - 1,725 га, общая площадь жилой части - 49 100 м2, площадь офисов - 3 536,3 м2, площадь торговых помещений - 2 736,3 м2, площадь тренажерных залов - 1 496,7 м2, площадь стоянок автомобилей - 25 317,6 м2.
Рисунок А.6 - Генеральный план жилого МФК
Рисунок А.7 - Фасад жилого МФК
Рисунок А.8 - Объемная модель жилого МФК
Рисунок А.9 - Продольный разрез жилого МФК
Рисунок А.10 - План второго этажа стилобата
Рисунок А.11 - План этажа на уровне кровли стилобата
А.3 Многофункциональный жилой комплекс. Россия, г. Москва, Причальный проезд, вл. 8. Проектное бюро "UNK project", Юлий Борисов [35]
29-этажный комплекс (
рисунки А.12 -
А.15) состоит из шести жилых блоков, размещаемых на стилобате. В блоках расположена жилая часть комплекса, первые этажи имеют различное функциональное значение. В стилобате расположены торговые, офисные помещения и др. На крыше стилобата обустроены дворы и предусмотрено комплексное озеленение. В подземной части устроены стоянки для проживающих, работающих и посетителей. Общая площадь - 136 000 м
2, площадь подземной стоянки - 47 712 м
2.
Рисунок А.12 - Объемная модель жилого МФК
Рисунок А.13 - Объемная модель жилого МФК
Рисунок А.14 - Продольный разрез жилого МФК
Рисунок А.15 - Поперечный разрез жилого МФК
ПРИМЕРЫ ПРОЕКТИРОВАНИЯ ОБЩЕСТВЕННЫХ МНОГОФУНКЦИОНАЛЬНЫХ
ЗДАНИЙ (МНОГОФУНКЦИОНАЛЬНЫХ КОМПЛЕКСОВ)
Б.1 Многофункциональный торгово-деловой комплекс. Россия, г. Москва, Головинское шоссе, 5. Архитектурная мастерская "Атриум" [36]
МФК этажностью 3 - 6 - 28, с максимальной высотой 104,3 м (
рисунки Б.1 -
Б.6). Вертикальная часть МФК включает в себя офисные помещения, горизонтальная - включает супермаркет, кинотеатр, торговые помещения, предприятия питания, стоянку автомобилей для посетителей и работающих, перехватывающую стоянку.
Общая площадь участка - 2,67 га, общая площадь МФК - 166 300 м2.
Рисунок Б.1 - Ситуационный план торгово-делового МФК
Рисунок Б.2 - Объемная модель торгово-делового МФК
Рисунок Б.3 - Продольный разрез торгово-делового МФК
Рисунок Б.4 - План первого этажа МФК
Рисунок Б.5 - План третьего этажа МФК

- гипермаркет;

- предприятия торговли;

- предприятия питания;

- помещения общего пользования (коммуникационные пространства, ЛЛУ);

- кинотеатр;

- офисные помещения
Рисунок Б.6 - План четвертого этажа
Б.2 Многофункциональный гостинично-деловой комплекс. Россия, г. Москва, Поклонная улица, вл. 9. Архитектурная мастерская Павла Андреева [37]
МФК (
рисунки Б.7 -
Б.12) включает в себя офисные помещения с третьего по 21-й этаж, гостиничные помещения с 23 по 32 этаж, фитнес-центр, предприятия общественного питания, помещения общего пользования (коммуникационные пространства, связывающие ФПК, включающие сопутствующие помещения бытового обслуживания) в стилобате, подземную стоянку на 364 машино-мест.
Общая площадь участка - 1,35 га, общая площадь МФК - 98 777,8 м2, подземная площадь - 22 099,5 м2.
Рисунок Б.7 - Объемная модель МФК
Рисунок Б.8 - Продольный разрез МФК
Рисунок Б.9 - План первого этажа МФК
Рисунок Б.10 - План второго этажа МФК
Рисунок Б.11 - План типового этажа

- конференц-зал;

- офисные и вспомогательные помещения;

- общественная зона;

- вестибюли, холлы, коридоры, ЛЛУ;

- санузлы, технические помещения, шахты;

- зона общепита, торговая зона
Рисунок Б.12 -
План типового этажа
Б.3 Многофункциональное здание спортивно-досугового центра в районе береговой застройки в бухте Патрокл, Россия, г. Владивосток. Творческое Производственное Объединение "РЕЗЕРВ" [38]
Трехэтажный МФЗ (
рисунки Б.13 -
Б.18) включает в себя аквапарк, спортивные залы, спа-центр, предприятия торговли и питания, кинотеатры и игровые. Площадь застройки - 9 096 м
2, общая площадь - 20 020 м
2.
Рисунок Б.13 - Ситуационный план МФЗ
Рисунок Б.14 - Фасады МФЗ
Рисунок Б.15 - Общий вид МФЗ
Рисунок Б.16 - План первого этажа МФЗ
Рисунок Б.17 - План второго этажа МФЗ
| - раздевалки, сауны; | | - холл спортивного центра; |
| - аквапарк; | | - спортивный зал; |
| - кафе; | | - кухня; |
| - вестибюль; | | - помещения для аренды; |
| - боулинг, игровые зоны; | | - технические помещения; |
| - администраторская, тренерская; | | - кинозал |
Рисунок Б.18 - План третьего этажа МФЗ
ПРИМЕРЫ ПРОЕКТИРОВАНИЯ ОБЩЕСТВЕННО-ЖИЛЫХ МНОГОФУНКЦИОНАЛЬНЫХ
ЗДАНИЙ (МНОГОФУНКЦИОНАЛЬНЫХ КОМПЛЕКСОВ)
В.1 Многофункциональный комплекс в составе спортивно-развлекательного квартала "Парк Легенд" на территории завода ЗИЛ. Россия, г. Москва, Автозаводская, д. 20, корп. 120. ГК "ОЛИМПРОЕКТ" [39]
МФК (
рисунки В.1 -
В.7) включает в себя офисные помещения, апартаменты и наземную стоянку на 2700 машино-мест, размещенную в стилобатной части МФК.
Общая площадь МФК - 210 000 м2, площадь наземной стоянки - 110 000 м2, квартиры (апартаменты) - 67 500 м2, офисы - 22 500 м2; предприятия торговли и питания - 10 000 м2.
Рисунок В.1 - Ситуационный план МФК
| - офисные помещения; |
| - квартиры (апартаменты); |
| - технические помещения; |
| - ЛЛУ; |
| - вестибюли и коридоры |
Рисунок В.2 - Функциональное зонирование МФК
Рисунок В.3 - Фасады МФК
Рисунок В.4 - План первого этажа
Рисунок В.5 - План второго этажа
Рисунок В.6 - План шестого (технического) этажа
| - апартаменты - 5487,7 м2; | | - офисные помещения - 2683,6 м2; |
| - технические помещения - 38,2 м2; | | - апартаменты-студии; |
| - ЛЛУ - 599,2 м2; | | - апартаменты однокомнатные; |
| - вестибюли и коридоры - 1376,3 м2; | | - апартаменты двухкомнатные; |
| - санузлы - 57,7 м2; | | - апартаменты трехкомнатные |
Рисунок В.7 - План седьмого этажа
В.2 Многофункциональный общественно-жилой комплекс на территории приборостроительного завода (с преобладанием жилья). Россия, г. Екатеринбург, ул. Горького, д. 17. "T+T Architects" [40]
МФК (
рисунки В.8 -
В.12) включает в себя жилую часть, состоящую из 132 квартир, подземную стоянку на 170 машино-мест, фитнес-центр с бассейном и общественные помещения на первых этажах.
Общая наземная площадь МФК - 27 756,64 м2, площадь фитнес-центра - 1 921,24 м2, площадь нежилых помещений - 1 158,14 м2.
Рисунок В.8 - Ситуационный план
Рисунок В.9 - Фасады МФЗ
Рисунок В.10 - Фасады МФЗ
Рисунок В.11 - План первого этажа МФЗ
| - однокомнатные квартиры; | | - технические помещения; |
| - двухкомнатные квартиры; | | - ЛЛУ, коридоры; |
| - трехкомнатные квартиры; | | - нежилые помещения |
| - четырехкомнатные квартиры; | | |
Рисунок В.12 - План типового (2 - 6) этажа МФЗ
В.3 Многофункциональное здание Zuidblok. Нидерланды, г. Амстердам [41]
На нижних этажах МФЗ (
рисунки В.13 -
В.16) располагаются предприятия торговли и питания, помещения для проведения общественных мероприятий.
В верхних этажах размещен апарт-отель Twenty Eight на 60 номеров, скомпонованных вокруг внутреннего двора. Гараж и супермаркет размещены под землей.
Общая площадь МФЗ - 12 500 м2, 4 этажа.
Рисунок В.13 - Общий вид МФЗ
Рисунок В.14 - Фасад МФЗ
Рисунок В.15 - Продольный разрез МФЗ
Рисунок В.16 - План третьего этажа МФЗ
ПРИМЕРЫ ПРОЕКТИРОВАНИЯ ПРОИЗВОДСТВЕННЫХ
И ОБЩЕСТВЕННО-ПРОИЗВОДСТВЕННЫХ МНОГОФУНКЦИОНАЛЬНЫХ ЗДАНИЙ
(МНОГОФУНКЦИОНАЛЬНЫХ КОМПЛЕКСОВ)
Г.1 Многофункциональный центр проектирования Huawei Technological Factory, Китай, г. Пекин [42], [43]
В составе МФК (
рисунки Г.1 -
Г.4) предусмотрен центр проектирования, инженерно-промышленные помещения, лаборатории, фабрика, лекторий. Общая площадь 85 355 м
2, 2 - 4 этажа.
Рисунок Г.1 - Ситуационный план МФК
Рисунок Г.2 - Общий вид МФК
Рисунок Г.3 - План первого этажа.
Офисные помещения и лектории
Рисунок Г.4 - План второго этажа. Производственные помещения
Г.2 Инженерно-промышленный комплекс "Экориум" Национального экологического института. Южная Корея. Samoo Architects & Engineers [44]
В составе МФК (
рисунки Г.5 -
Г.9) размещены ботанические сады, теплицы и парники для выращивания растений разного вида, выставочные залы, лектории и др.
Общая площадь 33 090 м2, 1 - 2 этажа.
Рисунок Г.5 - План территории
Рисунок Г.6 - Общий вид МФК
Рисунок Г.7 - Общий вид МФК
Рисунок Г.8 - Ботанический сад в составе МФК
Г.3 Мусороперерабатывающий завод Amager Bakke с горнолыжным склоном (МФЗ). Дания, г. Копенгаген. Архитектурная компания BIG (Bjarke Ingels Group) [45]
Промышленное здание (
рисунки Г.10 -
Г.13) совмещает функции мусороперерабатывающего завода и электростанции. На крыше здания размещен парк и горнолыжный склон. Общая площадь горнолыжного склона - 16 000 м
2, высота здания - 85 м.
Рисунок Г.10 - Общий вид территории МФЗ
Рисунок Г.11 - Общий вид МФЗ
Рисунок Г.12 - Горнолыжный склон МФЗ
ПРИМЕРЫ ОЗЕЛЕНЕНИЯ ЭКСПЛУАТИРУЕМЫХ КРЫШ МНОГОФУНКЦИОНАЛЬНЫХ
ЗДАНИЙ (МНОГОФУНКЦИОНАЛЬНЫХ КОМПЛЕКСОВ)
Д.1 Офисное МФЗ в Сингапуре [46]
Зеленая кровля - 2 987 м
2; атриум - 304 м
2; зеленый скат - 4 115 м
2; озеленение на первом уровне - 487 м
2; зеленые стены - 164 м
2; общая зеленая зона - 8 363 м
2 (рисунок Д.1).
Рисунок Д.1 - Общий вид МФЗ
Д.2 Торговый МФК MOM Park Shopping Centre [46]
Сад на крыше паркинга торгового МФК
(рисунок Д.2) объединяет пространство между офисным центром Fotex Plaza и ТЦ.
Д.3 Озеленение крыш двух многоэтажных паркингов в Сингапуре (
рисунок Д.3,
Д.4)
. Ландшафтное бюро Nature Landscapes Pte Ltd [46]
Рисунок Д.3 - Фасад. Общий вид
Рисунок Д.4 - Кровля. Общий вид
ПЕРЕЧЕНЬ ПРОИЗВОДСТВЕННЫХ ПОМЕЩЕНИЙ
Таблица Е.1
Химические объекты и производства | Производство готовых лекарственных форм (без изготовления составляющих) |
Производство бумаги из макулатуры |
Производство изделий из пластмасс и синтетических смол (механическая обработка) |
Производство углекислоты и "сухого льда" |
Производство искусственного жемчуга |
Производство спичек |
Установки сжижения природного газа, расположенные на автомобильных газонаполнительных компрессорных станциях, газопроводах, месторождениях и газораспределительных станциях магистральных газопроводов, с объемом хранения сжиженного природного газа до 50 м3 |
Машиностроительные и металлообрабатывающие объекты и производства | Производство котлов |
Производство пневмоавтоматики |
Производство металлоштампов |
Производство сельхоздеталей |
Типографии без применения свинца (офсетный, компьютерный набор) |
Строительная промышленность | Производство глиняных изделий |
Стеклодувное, зеркальное производство, шлифовка и травка стекол |
Механическая обработка мрамора |
Карьеры, предприятия по добыче гравия, песка, глины |
Установка по производству бетона |
Обработка древесины | Производство обозное |
Производство бондарных изделий из готовой клепки |
Производство рогожно-ткацкое |
Производство по консервированию древесины солевыми и водными растворами (без солей мышьяка) с суперобмазкой |
Сборка мебели из готовых изделий без лакирования и окраски |
Текстильные промышленные объекты и производства легкой промышленности | Производство котонинное |
Производства коконо-разварочные и шелкоразмоточные |
Производства меланжевые |
Производства пенько-джутокрутильные, канатные, шпагатные, веревочные и по обработке концов |
Производство искусственного каракуля |
Производство пряжи и тканей из хлопка, льна, шерсти при отсутствии красильных и отбельных цехов |
Производства трикотажные и кружевные |
Шелкоткацкое производство |
Производство ковров |
Производство обувных картонов на кожевенном и кожевенно-целлюлозном волокне без применения растворителей |
Шпульно-катушечное производство |
Производство обоев |
Производства по мелкосерийному выпуску обуви из готовых материалов с использованием водорастворимых клеев |
Обработка животных продуктов | Производство изделий из выделанной кожи |
Производство щеток из щетины и волоса |
Валяльные мастерские |
Промышленные объекты и производства по обработке пищевых продуктов и вкусовых веществ | Чаеразвесочные фабрики |
Овоще-, фруктохранилища |
Производство коньячного спирта |
Производство макарон |
Производство колбасных изделий, без копчения |
Малые предприятия и цеха малой мощности: по переработке мяса до 5 т/сут без копчения, молока - до 10 т/сут, производство хлеба и хлебобулочных изделий - до 2,5 т/сут, рыбы - до 10 т/сут, предприятия по производству кондитерских изделий до 0,5 т/сут |
Производства пищевые заготовочные, включая фабрики-кухни, школьно-базовые столовые |
Промышленные установки для низкотемпературного хранения пищевых продуктов емкостью до 600 т |
Производство виноградного сока |
Производство фруктовых и овощных соков |
Производства по переработке и хранению фруктов и овощей (сушке, засолке, маринованию и квашению) |
Производства по доготовке и розливу вин |
Производство безалкогольных напитков на основе концентратов и эссенций |
Производство майонезов |
Производство пива (без солодовен) |
Объекты и производства агропромышленного комплекса и малого предпринимательства | Хранилища фруктов, овощей, картофеля, зерна |
Материальные склады |
Хозяйства с содержанием животных (свинарники, коровники, питомники, конюшни, зверофермы) до 50 голов |
Сооружения санитарно-технические, транспортной инфраструктуры, объекты коммунального назначения, спорта, торговли и оказания услуг | Склады хранения пищевых продуктов (мясных, молочных, кондитерских, овощей, фруктов, напитков и др.), лекарственных, промышленных и хозяйственных товаров |
Станции технического обслуживания легковых автомобилей до 5 постов (без малярно-жестяных работ) |
Автозаправочные станции, предназначенные только для заправки легковых транспортных средств жидким моторным топливом, с наличием не более трех топливораздаточных колонок, в том числе с объектами обслуживания водителей и пассажиров (магазин сопутствующих товаров, кафе и санитарные узлы) |
Мойка автомобилей (до двух постов) |
Химчистки производительностью не более 160 кг/смену |
Автомобильные газонаполнительные компрессорные станции с компрессорами внутри помещения или внутри контейнеров с количеством заправок не более 500 автомобилей в сутки, в том числе с объектами обслуживания водителей и пассажиров (магазин сопутствующих товаров, кафе и санитарные узлы) |
Криогенные автозаправочные станции, предназначенные только для заправки транспортных средств сжиженным природным газом и/или сжатым природным газом, получаемым путем регазификации на территории станции сжиженного природного газа, с объемом хранения сжиженного природного газа не более 50 м3, в том числе с объектами обслуживания водителей и пассажиров (магазин сопутствующих товаров, кафе и санитарные узлы) |
Автомобильные газозаправочные станции, предназначенные только для заправки транспортных средств сжиженным углеводородным газом, в том числе с объектами обслуживания водителей и пассажиров (магазин сопутствующих товаров, кафе и санитарные узлы) |
[1] Федеральный
закон от 30 декабря 2009 г. N 384-ФЗ "Технический регламент о безопасности зданий и сооружений"
[2] Федеральный
закон от 22 июля 2008 г. N 123-ФЗ "Технический регламент о требованиях пожарной безопасности"
[3] Федеральный
закон от 06 марта 2006 г. N 35-ФЗ "О противодействии терроризму"
[4] Федеральный
закон от 21 июля 1997 г. N 116-ФЗ "О промышленной безопасности опасных производственных объектов"
[5] Федеральный
закон от 23 февраля 2013 г. N 15-ФЗ "Об охране здоровья граждан от воздействия табачного дыма и последствий потребления табака"
[6]
Указ Президента Российской Федерации от 14 июня 2012 г. N 851 "О порядке установления уровней террористической опасности, предусматривающих принятие дополнительных мер по обеспечению безопасности личности, общества и государства"
[7]
Постановление Правительства Российской Федерации от 15 февраля 2011 г. N 73 "О некоторых мерах по совершенствованию подготовки проектной документации в части противодействия террористическим актам"
[8] Методическое пособие. Термины и определения в нормативных технических документах по проектированию жилых, общественных и производственных зданий. Москва, 2017
[9] Методическое пособие. Рекомендации по проектированию в общественных зданиях безопасных зон для маломобильных групп населения. Москва, 2016
[10] Методическое пособие. Здания жилые многоквартирные. Комплексная безопасность и антитеррористическая защищенность. Рекомендации по проектированию. Москва, 2020
[11]
Приказ Министерства регионального развития Российской Федерации от 1 июня 2007 г. N 45 "Об утверждении Положения о разработке, передаче, пользовании и хранении инструкции по эксплуатации многоквартирного дома"
[12] Методическое пособие. Особенности проектирования противопожарной защиты многофункциональных зданий и комплексов. Москва, 2017
[13] Методическое пособие. Проектирование мероприятий по обеспечению пожарной безопасности многофункциональных зданий. Москва, 2016
[14] Методическое пособие. Проектирование мероприятий по обеспечению пожарной безопасности жилых многоквартирных зданий. Москва, 2016
[15]
СП 2.3.6.1066-01 Санитарно-эпидемиологические требования к организациям торговли и обороту в них продовольственного сырья и пищевых продуктов
[16] Методическое пособие. Проектирование мероприятий по обеспечению пожарной безопасности стоянок автомобилей. Москва, 2017
[17]
СП 2.3.6.1079-01 Санитарно-эпидемиологические требования к организациям общественного питания, изготовлению и оборотоспособности в них пищевых продуктов и продовольственного сырья
[18] Методическое
пособие. Методические рекомендации по совместному использованию парковочных мест для объектов капитального строительства различного функционального назначения. Москва, 2017
[19]
СП 31-115-2006 Открытые плоскостные физкультурно-спортивные сооружения
[20] Нормы и правила проектирования объектов нетрадиционных видов озеленения на территории города Москвы. Москва, 2013
[21] Рекомендации по проектированию озеленения и благоустройства крыш жилых и общественных зданий и других искусственных оснований. Москва, 2000
[22] Методическое пособие. Руководство по проектированию и расчету защитных сооружений гражданской обороны. Москва, ОАО "ЦНИИПромзданий", 2003
[23] Методические
рекомендации к СП 7.13130.2013. Расчетное определение основных параметров противодымной вентиляции зданий
[24] Методическое пособие. Архитектурно-планировочные решения высотных зданий. Москва, 2017
[25] Методическое пособие. Проектирование зданий гостиниц. Москва, 2018
[26]
СП 31-107-2004 Архитектурно-планировочные решения многоквартирных жилых зданий
[27] Методическое
пособие по проектированию театрально-зрелищных зданий. Москва, 2020
[28] Методическое пособие. Проектирование жилых многоквартирных зданий с широким шагом несущих конструкций, обеспечивающих свободную планировку. Москва, 2017
[29] Методическое
пособие. Проектирование мероприятий по защите зданий и сооружений от прогрессирующего обрушения. Москва, 2018
[30] Технические
указания по проектированию и строительству дождевой канализации. Москва, 1980
[31] Правила устройства электроустановок (ПУЭ), 7-е изд.
[32] Жилой комплекс "Привилегия": [Электронный ресурс]//URL: https://archi.ru/projects/russia/14830/zhiloi-kompleks-privilegiya. (Дата обращения: 23.07.2019)
[33] Жилой комплекс "Привилегия". Жилые комплексы. Реализация:
[Электронный ресурс]//URL: https://intercolumnium.ru/projects/zhiloy-kompleks-privilegiya. (Дата обращения: 25.07.2019)
[34] Многофункциональный жилой комплекс в Екатеринбурге: [Электронный ресурс]// URL: https://archi.ru/projects/russia/9488/mnogofunkcionalnyi-zhiloi-kompleks-v-ekaterinburge (Дата обращения: 23.07.2019)
[35] ЖК "Кандинский Баухаус": [Электронный ресурс]//URL: https://archi.ru/projects/russia/11727/zhk-kandinskii-baukhaus. (Дата обращения: 11.07.2019)
[36] Торгово-деловой комплекс "Водный": [Электронный ресурс]//URL: http://atrium.ru/project/tdk-vodnyj. (Дата обращения: 11.07.2019)
[37] Гостинично-деловой комплекс на Поклонной улице: [Электронный ресурс]//URL: https://archi.ru/projects/russia/6431/gostinichno-delovoi-kompleks-na-poklonnoi-ulice. (Дата обращения: 23.07.2019)
[38] Спортивно-досуговый центр в районе береговой застройки в бухте Патрокл, г. Владивосток: [Электронный ресурс]//URL: https://archi.ru/projects/russia/7598/sportivno-dosugovyi-centr-v-raione-beregovoi-zastroiki-v-bukhte-patrokl-g-vladivostok. (Дата обращения: 23.07.2019)
[39] МФК в составе спортивно-развлекательного квартала "Парк Легенд" на территории завода ЗИЛ: [Электронный ресурс]//URL: https://archi.ru/projects/russia/10707/mfk-v-sostave-sportivno-razvlekatelnogo-kvartala-park-legend-na-territorii-zavoda-zil. (Дата обращения: 23.07.2019)
[40] Многофункциональный жилой комплекс на территории приборостроительного завода в Екатеринбурге. Второй проект: [Электронный ресурс]//URL: https://archi.ru/projects/russia/9463/mnogofunkcionalnyi-zhiloi-kompleks-na-territorii-priborostroitelnogo-zavoda-v-ekaterinburge-vtoroi-proekt. (Дата обращения: 10.07.2019)
[41] Фролова Н. От Колхаса до Колльхоффа: [Электронный ресурс]//URL: https://archi.ru/world/80517/ot-kolkhasa-do-kollkhoffa. (Дата обращения: 16.07.2019)
[42] Центр проектирования Huawei Technological Factory: [Электронный ресурс]. URL: https://archi.ru/projects/world/11911/centr-proektirovaniya-huawei-technological-factory (Дата обращения: 23.07.2019)
[43] Huawei Technological Factory Buildings/gmp Architects: [Электронный ресурс]//URL: https://www.archdaily.com/873700/huawei-technological-factory-buildings-gmp. (Дата обращения: 23.07.2019)
[44] "Проект Экориум" Национального экологического института:
[Электронный ресурс]//URL: https://archi.ru/projects/world/6469/proekt-ekorium-nacionalnogo-ekologicheskogo-instituta. (Дата обращения: 23.07.2019)
[45] Amager Bakke: The Latest Architecture and News: [Электронный ресурс]//URL: https://www.archdaily.com/tag/amager-bakke. (Дата обращения: 23.07.2019)
[46] Лучшие "зеленые" крыши мира: [Электронный ресурс]//URL: https://www.ecosoil.ru/useful/luchshie-sady-na-kryshah/. (Дата обращения: 23.07.2019)