Главная // Актуальные документы // ГОСТ Р (Государственный стандарт)СПРАВКА
Источник публикации
М.: Стандартинформ, 2015
Примечание к документу
Документ
введен в действие с 1 января 2014 года.
Название документа
"ГОСТ Р 55072-2012. Национальный стандарт Российской Федерации. Емкости из реактопластов, армированных стекловолокном. Технические условия"
(утв. и введен в действие Приказом Росстандарта от 14.11.2012 N 770-ст)
"ГОСТ Р 55072-2012. Национальный стандарт Российской Федерации. Емкости из реактопластов, армированных стекловолокном. Технические условия"
(утв. и введен в действие Приказом Росстандарта от 14.11.2012 N 770-ст)
Утвержден и введен в действие
агентства по техническому
регулированию и метрологии
от 14 ноября 2012 г. N 770-ст
НАЦИОНАЛЬНЫЙ СТАНДАРТ РОССИЙСКОЙ ФЕДЕРАЦИИ
ЕМКОСТИ ИЗ РЕАКТОПЛАСТОВ, АРМИРОВАННЫХ СТЕКЛОВОЛОКНОМ
ТЕХНИЧЕСКИЕ УСЛОВИЯ
Fiberglass reinforced thermosetting plastic vessels.
Specifications
ГОСТ Р 55072-2012
Дата введения
1 января 2014 года
1. Разработан Объединением юридических лиц "Союз производителей композитов" и ООО "Био-Пласт".
2. Внесен Техническим комитетом по стандартизации ТК 63 "Стеклопластики, стекловолокно и изделия из них".
3. Утвержден и введен в действие
Приказом Федерального агентства по техническому регулированию и метрологии от 14 ноября 2012 г. N 770-ст.
4. Введен впервые.
Правила применения настоящего стандарта установлены в ГОСТ Р 1.0-2012
(раздел 8). Информация об изменениях к настоящему стандарту публикуется в ежегодном (по состоянию на 1 января текущего года) информационном указателе "Национальные стандарты", а официальный текст изменений и поправок - в ежемесячном информационном указателе "Национальные стандарты". В случае пересмотра (замены) или отмены настоящего стандарта соответствующее уведомление будет опубликовано в ближайшем выпуске ежемесячного информационного указателя "Национальные стандарты". Соответствующая информация, уведомление и тексты размещаются также в информационной системе общего пользования - на официальном сайте Федерального агентства по техническому регулированию и метрологии в сети Интернет (gost.ru).
Настоящий стандарт распространяется на напорные и безнапорные емкости из реактопластов, армированных стекловолокном (далее - емкости), футерованные и не футерованные термопластичным слоем, эксплуатируемые при температуре от минус 30 °C до плюс 110 °C, предназначенные для применения в технологических установках нефтехимической, нефтеперерабатывающей, нефтяной, газовой и других смежных отраслях промышленности, транспортном строительстве, системах водоотведения.
В настоящем стандарте использованы нормативные ссылки на следующие стандарты:
ГОСТ Р 12.1.019-2009 Система стандартов безопасности труда. Электробезопасность. Общие требования и номенклатура видов защиты
| | ИС МЕГАНОРМ: примечание. ГОСТ Р 50303-92 утратил силу с 1 января 2017 года в связи с введением в действие ГОСТ 33497-2015 (Приказ Росстандарта от 06.11.2015 N 1715-ст). | |
ГОСТ Р 50303-92 Упрочненные пластики на основе ненасыщенных полиэфирных смол. Определение содержания остаточного мономера стирола
ГОСТ Р 53228-2008 Весы неавтоматического действия. Часть 1. Метрологические и технические требования. Испытания
ГОСТ Р 54559-2011 Трубы и детали трубопроводов из реактопластов, армированных волокном. Термины и определения
ГОСТ 12.1.004-91 Система стандартов безопасности труда. Пожарная безопасность. Общие требования
ГОСТ 12.1.005-88 Система стандартов безопасности труда. Общие санитарно-гигиенические требования к воздуху рабочей зоны
ГОСТ 12.1.018-93 Система стандартов безопасности труда. Пожаровзрывобезопасность статического электричества. Общие требования
ГОСТ 12.1.044-89 Система стандартов безопасности труда. Пожаровзрывоопасность веществ и материалов. Номенклатура показателей и методы их определения
ГОСТ 12.2.003-91 Система стандартов безопасности труда. Оборудование производственное. Общие требования безопасности
ГОСТ 12.3.030-83 Система стандартов безопасности труда. Переработка пластических масс. Требования безопасности
ГОСТ 12.4.004-74 Респираторы фильтрующие противогазовые РПГ-67. Технические условия
ГОСТ 12.4.011-89 Система стандартов безопасности труда. Средства защиты работающих. Общие требования и классификация
ГОСТ 12.4.021-75 Система стандартов безопасности труда. Системы вентиляционные. Общие требования
ГОСТ 12.4.028-76 Система стандартов безопасности труда. Респираторы ШБ-1 "Лепесток". Технические условия
ГОСТ 12.4.068-79 Система стандартов безопасности труда. Средства индивидуальной защиты дерматологические. Классификация и общие требования
ГОСТ 12.4.121-83 Система стандартов безопасности труда. Противогазы промышленные фильтрующие. Технические условия
ГОСТ 17.1.3.13-86 Охрана природы. Гидросфера. Общие требования к охране поверхностных вод от загрязнения
ГОСТ 17.2.3.01-86 Охрана природы. Атмосфера. Правила контроля качества воздуха населенных пунктов
ГОСТ 17.2.3.02-78 Охрана природы. Атмосфера. Правила установления допустимых выбросов вредных веществ промышленными предприятиями
ГОСТ 17.4.3.04-85 Охрана природы. Почвы. Общие требования к контролю и охране от загрязнения
ГОСТ 427-75 Линейки измерительные металлические. Технические условия
| | ИС МЕГАНОРМ: примечание. ГОСТ 4651-82 утратил силу с 1 марта 2015 года в связи с введением в действие ГОСТ 4651-2014 (Приказ Росстандарта от 29.05.2014 N 467-ст). | |
ГОСТ 4651-82 Пластмассы. Метод испытания на сжатие
ГОСТ 6433.3-71 Материалы электроизоляционные твердые. Методы определения электрической прочности при переменном (частоты 50 Гц) и постоянном напряжении
ГОСТ 12015-66 Пластмассы. Изготовление образцов для испытания из реактопластов. Общие требования
ГОСТ 12019-66 Пластмассы. Изготовление образцов для испытания из термопластов. Общие требования
ГОСТ 12020-72 Пластмассы. Методы определения стойкости к действию химических сред
| | ИС МЕГАНОРМ: примечание. ГОСТ 12423-66 утратил силу с 1 января 2015 года в связи с введением в действие ГОСТ 12423-2013 (Приказ Росстандарта от 22.11.2013 N 1069-ст). | |
ГОСТ 12423-66 Пластмассы. Условия кондиционирования и испытания образцов (проб)
ГОСТ 12820-80 Фланцы стальные плоские приварные на Pу от 0,1 до 2,5 МПа (от 1 до 25 кгс/см
2). Конструкция и размеры
ГОСТ 12971-67 Таблички прямоугольные для машин и приборов. Размеры
ГОСТ 16971-71 Швы сварных соединений из винипласта, поливинилхлоридного пластиката и полиэтилена. Методы контроля качества. Общие требования
ГОСТ 20010-93 Перчатки резиновые технические. Технические условия
ГОСТ 25336-82 Посуда и оборудование лабораторные стеклянные. Типы, основные параметры и размеры
ГОСТ 26277-84 Пластмассы. Общие требования к изготовлению образцов способом механической обработки
ГОСТ 28840-90 Машины для испытания материалов на растяжение, сжатие и изгиб. Общие технические требования.
Примечание. При пользовании настоящим стандартом целесообразно проверить действие ссылочных стандартов в информационной системе общего пользования - на официальном сайте Федерального агентства по техническому регулированию и метрологии в сети Интернет или по ежегодному информационному указателю "Национальные стандарты", который опубликован по состоянию на 1 января текущего года, и по выпускам ежемесячного информационного указателя "Национальные стандарты" за текущий год. Если заменен ссылочный стандарт, на который дана недатированная ссылка, то рекомендуется использовать действующую версию этого стандарта с учетом всех внесенных в данную версию изменений. Если заменен ссылочный стандарт, на который дана датированная ссылка, то рекомендуется использовать версию этого стандарта с указанным выше годом утверждения (принятия). Если после утверждения настоящего стандарта в ссылочный стандарт, на который дана датированная ссылка, внесено изменение, затрагивающее положение, на которое дана ссылка, то это положение рекомендуется применять без учета данного изменения. Если ссылочный стандарт отменен без замены, то положение, в котором дана ссылка на него, рекомендуется применять в части, не затрагивающей эту ссылку.
В настоящем стандарте применены термины по
ГОСТ Р 54559, а также следующие термины с соответствующими определениями:
3.1. Ламель: монослой реактопласта, армированного одним видом армирующего наполнителя - стеклянной ровинговой тканью (далее - WR), матом из рубленого стекловолокна (далее - CSM), стеклянным ровингом.
3.2. Ламинат (корпуса емкости, днища, патрубка, фланца): многослойный полимерный композит, состоящий из нескольких ламелей различной толщины.
3.3. Трехслойная конструкция: конструкция, состоящая из верхнего и нижнего профилей (плоского или криволинейного) из ламината и системы поперечных и продольных дискретных стенок, соединяющих профили в единую конструкцию.
Примечание. Поперечные стенки также изготавливают из ламината. Пространство между стенками не заполняют или заполняют вспененной пластмассой и/или иными материалами и называют ядром.
3.4. Гелькоут: тонкий слой смолы на поверхности ламината, который может быть армирован тканью, сеткой или холстом.
3.5. Выкладка: процесс производства ламинатов с приданием им формы до отверждения.
3.6. Напорная емкость: закрытая емкость, эксплуатируемая под давлением или вакуумом, с гидростатическим напором или без него.
Примечание. Понятие "емкость" включает весь объем емкости до первого фланцевого соединения.
3.7. Безнапорная емкость: емкость, эксплуатируемая при гидростатическом напоре и имеющая свободное выпускное отверстие.
Примечание. Понятие "емкость" включает весь объем емкости до первого фланцевого соединения.
3.8. Температура тепловой деформации HDT, °C: температура, при которой деформация образца достигает заданного значения.
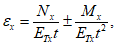
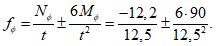
3.9. Удельный предел прочности при растяжении u, Н·м2/мм·кг: прочность, соответствующая типу армирования, выражаемая как отношение приложенной нагрузки на единицу ширины к массе армирующего материала.
Примечание. Удельный предел прочности при растяжении определяют при приложении разрушающей нагрузки к ламинату с известной структурой при проведении испытания на растяжение.
3.10. Предельно допустимая удельная нагрузка uL, Н·м2/мм·кг: максимальная нагрузка, прикладываемая к ламели, без учета деформации.
3.11. Предельно допустимая удельная нагрузка при растяжении uS, Н·м2/мм·кг: максимальная нагрузка, прикладываемая к ламели, с учетом только растяжения.
3.12. Расчетная удельная нагрузка (расчетная удельная нагрузка ламели) uz, Н·м2/мм·кг: максимальная нагрузка, прикладываемая к ламели, для рассматриваемой напорной или безнапорной емкости.
3.13. Удельный модуль упругости при растяжении X, Н·м2/мм·кг: отношение нагрузки к соответствующей относительной деформации ламели, подвергающейся испытанию на растяжение.
3.14. Суммарный единичный модуль при растяжении XLAM, Н/мм: отношение нагрузки на единицу ширины к соответствующей относительной деформации ламината, армированного одним или несколькими видами армирующего наполнителя.
3.15. Расчетная прочность (расчетная единичная нагрузка ламината) ULAM, UOVL, Н/мм: несущая способность ламината, равная отношению приложенной нагрузки на единицу ширины.
Примечание. Нижние индексы "LAM" и "OVL", добавленные к обозначению расчетной прочности, соответствуют типу ламината: ламинат стенки емкости и ее элементов и перекрывающий ламинат соответственно.
3.16. Единичная нагрузка Q, Н/мм: отношение нагрузки, возникающей при воздействии внутреннего или внешнего давления, а также других нагрузок к единице ширины ламината.
4. Классификация, основные параметры и размеры
Настоящий стандарт устанавливает классификацию емкостей и подразделяет их на следующие категории:
I - емкости первой категории;
II - емкости второй категории;
III - емкости третьей категории.
4.2. Основные параметры и размеры
4.2.1. Номинальные размеры и форму емкостей с учетом предельных отклонений по
4.2.5 -
4.2.13, приведенных в настоящем стандарте, устанавливают в конструкторской и технологической документации, утвержденной в установленном порядке.
4.2.2. Емкости изготавливают напылением, намоткой или выкладкой армирующего наполнителя, пропитанного связующим.
4.2.3. Температура рабочих сред емкостей в зависимости от категории должна соответствовать таблице 4.1.
Таблица 4.1
Категория емкости | Температура рабочих сред T, °C |
Категория I | (HDT - 40) < T < (HDT - 20) |
Категория II | 60 <= T <= (HDT - 40) |
Категория III <1> | T < 60; T <= (HDT - 40) |
<1> За значение рабочей температуры среды принимают наименьшее значение. |
4.2.4. Перечни рабочих сред указаны в таблицах 4.2 -
4.4.
Таблица 4.2
Перечень рабочих сред при температуре рабочей среды
не более 100 °C
Среда | Среда | Среда | Среда |
Водный раствор бромата аммония | Водный раствор нитрата бария | Водный раствор хлорида меди (II) | Водный раствор нитрата магния |
Водный раствор бромида аммония | Водный раствор хлорида кальция | Водный раствор нитрата меди (II) | Водный раствор сульфата магния |
Водный раствор хлорида аммония | Водный раствор нитрата кальция | Водный раствор сульфата меди (I) | Водный раствор хлорида марганца (II) |
Водный раствор нитрата аммония | Водный раствор сульфата кальция | Водный раствор сульфата меди (II) | Водный раствор нитрата марганца (II) |
Водный раствор фосфата аммония | Водный раствор хлорида кобальта | Дизельное топливо, мазут (без ароматических добавок, без метанола) | Водный раствор сульфата марганца (II) |
Водный раствор сульфата аммония | Водный раствор нитрата кобальта | Жирные кислоты: олеиновая кислота, пальметиновая кислота, стеариновая кислота | Ртуть |
Водный раствор хлорида бария | Водный раствор хлорида меди (I) | Водный раствор хлорида магния | Хлорид ртути (I) |
Окончание таблицы 4.2
Среда | Среда | Среда | Среда |
Хлорид ртути (II) | Водный раствор бромида калия | Водный раствор нитрита калия | Водный раствор хлорида натрия |
Нитрат ртути (II) | Водный раствор хлората калия | Водный раствор фосфата калия | Водный раствор нитрата натрия |
Водный раствор хлорида никеля | Водный раствор хлорида калия | Водный раствор сульфата калия | Водный раствор фосфата натрия |
Водный раствор нитрата никеля | Водный раствор хромата калия | Морская вода (3 <= pH <= 8) | Водный раствор сульфата натрия |
Водный раствор сульфата никеля | Водный раствор железистосинеродистого калия | Силиконовая смазка | Водный раствор сульфита натрия |
Твердый парафин | Водный раствор ферроцианида калия | Водный раствор бромата натрия | - |
Водный раствор алюмокалиевых квасцов | Водный раствор иодида калия | Водный раствор бромида натрия | - |
Водный раствор бромата калия | Водный раствор нитрата калия | Водный раствор хлората натрия | - |
Таблица 4.3
Перечень рабочих сред в зависимости от температуры
и типа футеровочного слоя
Среда | Термореактивный футеровочный слой | Термопластичный футеровочный слой |
ПВХ | ПП | ПВДФ, Э-ТФХЭ | ФЭП |
Температура рабочей среды T, °C |
Водный раствор адипиновой кислоты | 80 | 45 | 80 | 25 | 80 |
Водный раствор спиртов (2 - 10 атомов C) объемной концентрацией не более 20%: | | | | | |
- Этанол | 60 | 40 | 60 | 60 | 60 |
- Изобутанол | 40 | - | - | - | 80 |
- Изодеканол | 60 | - | - | - | 80 |
- Изопропанол | 50 | 25 | 60 | 60 | 80 |
- Пропанол | 60 | 25 | 60 | 60 | 80 |
Водный раствор бензойной кислоты | 80 | 40 | 80 | 80 | 80 |
Водный раствор борной кислоты | 80 | 40 | 80 | 80 | 80 |
Гликоли: | | | | | |
- Бутандиол-1,2 | 80 | 25 | 25 | 60 | 80 |
- Бутандиол-1,3 | 80 | - | - | - | 80 |
- Бутандиол-1,4 | 80 | 25 | 60 | 60 | 80 |
- Диэтиленгликоль | 80 | - | - | - | 80 |
- Дипропиленгликоль | 80 | - | - | - | 80 |
- Этиленгликоль | 80 | 60 | 80 | 80 | 80 |
- Глицерин | 80 | 60 | 80 | 80 | 80 |
- Неопентилгликоль | 65 | - | - | - | 80 |
- 1,2-Пропиленгликоль | 80 | - | - | - | 80 |
- Триэтиленгликоль | 80 | - | - | - | 80 |
- Трипропиленгликоль | 65 | - | - | - | 80 |
Углеводороды (2 - 10 атомов C): | | | | | |
- Пентаны/Пентены | 70 | 25 | 25 | 80 | 80 |
- Гексаны/Гексены | 70 | 25 | - | 80 | 80 |
- Гептаны/Гептены | 80 | - | - | 80 | 80 |
- Октаны/Октены | 80 | - | - | 80 | 80 |
- Нонаны/Нонены | 80 | - | - | 80 | 80 |
- Деканы/Декэны | 80 | - | - | 80 | 80 |
Водный раствор фосфорной кислоты (объемной концентрации не более 80%) | 80 | 60 | 80 | 80 | 80 |
Фталевая кислота | 80 | 25 | 60 | 80 | 80 |
Эфир фталевой кислоты | 65 | 30 | 30 | 30 | 80 |
Водный раствор ацетата натрия | 80 | 60 | 80 | 80 | 80 |
Водный раствор бикарбоната натрия | 80 | 60 | 80 | 80 | 80 |
Водный раствор буры | 80 | 40 | 80 | 80 | 80 |
Водный раствор янтарной кислоты | 80 | 60 | 60 | 60 | 80 |
Водный раствор винной кислоты | 80 | 25 | 60 | 60 | 80 |
Водный раствор карбамида (5 <= pH <= 8) | 60 | 60 | 60 | 60 | 80 |
Недеионизированная и недистиллированная вода | 80 | 60 | 80 | 80 | 80 |
Таблица 4.4
Перечень рабочих сред в зависимости от температуры,
типа футеровочного слоя и концентрации рабочей среды
Среда | Объемная концентрация, % | Температура рабочей среды T, °C |
ПВХ | ПП | ПВДФ | Э-ТФХЭ | ФЭП |
Водный раствор гидроксида аммония | <= 5 | 60 | 60 | - | 60 | 60 |
<= 25 | 40 | 60 | - | 60 | 60 |
Водный раствор гидроксида кальция | <= 10 | 60 | 60 | - | 60 | 60 |
> 10 | 60 | 60 | - | 60 | 60 |
Водный раствор гидразингидрата | <= 16 | - | 40 | 25 | - | - |
Водный раствор гидроксида калия | < 1 | 60 | 60 | - | 60 | 60 |
<= 20 | 60 | 60 | - | 60 | 60 |
> 20 | 40 | 60 | - | 60 | 60 |
Водный раствор гидроксида натрия | <= 1 | 60 | 60 | - | 60 | 60 |
<= 20 | 60 | 60 | - | 60 | 60 |
> 20 | 40 | 60 | - | 60 | 60 |
Водный раствор гипохлорита кальция | любая | 60 | 40 | 25 | 60 | 60 |
Водный раствор хлорной извести | - | 60 | 25 | 25 | 60 | 60 |
Водный раствор гипохлорита натрия | < 16 (активный хлор) | 60 | - | 25 | 60 | 60 |
Сульфат алюминия | любая | 60 | 60 | 60 | 60 | 60 |
Соляная кислота | <= 18 | 60 | 40 | 60 | 60 | 60 |
<= 37 | 40 | 25 | 60 | 60 | 60 |
Дихлорид железа | любая | 60 | 25 | 60 | 60 | 60 |
Хлорид железа | любая | 60 | 25 | 60 | 60 | 60 |
Железный купорос | любая | 60 | 25 | 60 | 60 | 60 |
Сульфат железа | любая | 60 | 25 | 60 | 60 | 60 |
Хлорид/сульфат железа | любая | 60 | 25 | 60 | 60 | 60 |
Серная кислота | < 50 | 60 | 25 | 60 | 60 | 60 |
Хромовая кислота | <= 10 | 40 | - | 60 | 60 | 60 |
<= 30 | 40 | - | 60 | 60 | 60 |
Азотная кислота | <= 5 | 60 | 30 | 60 | 60 | 60 |
<= 30 | 60 | - | 60 | 60 | 60 |
Хлорная кислота | <= 20 | 40 | 40 | 60 | 60 | 60 |
N,N-Диметиланилин | - | - | - | 50 | - | 60 |
N,N-Диэтиланилин | - | - | - | 50 | - | 60 |
Уксусная кислота | <= 10 | 40 | 60 | 60 | 60 | 60 |
<= 50 | 40 | 60 | 60 | 60 | 60 |
Муравьиная кислота | <= 10 | 40 | 40 | 60 | 60 | 60 |
Щавелевая кислота | <= 10 | 40 | 40 | 60 | 60 | 60 |
Толуолсульфокислота | <= 50 | - | - | 40 | 50 | 60 |
Поверхностно-активное вещество (3 < pH < 8) | - | 60 | - | 60 | 60 | 60 |
Поверхностно-активное вещество (8 < pH < 9) | - | 60 | - | - | 60 | 60 |
Поверхностно-активное вещество (pH > 9) | - | 60 | - | - | 60 | 60 |
Циклогексанол | - | 40 | 40 | 40 | 60 | 60 |
Циклогексанон | - | - | 20 | 25 | 25 | 60 |
Водный раствор этанола | от 20 до 96 | 40 | 60 | 25 | 60 | 60 |
Перекись водорода | <= 30 | 60 | - | - | 60 | 60 |
Перманганат калия | <= 50 | 60 | - | 60 | 60 | 60 |
Примечание. К поверхностно-активным веществам относятся: алкиламинополигликолевые эфиры; алкилариламмониевые соли (Na, K); алкилариловые сульфонаты; алкилнаптолполигликолевые эфиры; алкилолэфиросульфаты; алкилолэфирофосфаты; алкилфенолполигликолевые эфиры; алкилфенолполигликолевые эфиры (сульфаты); алкил-/арилфосфаты; амиды жирных кислот; этилендиаминполигликолевый эфир; натриевые, калиевые соли этилендиаминтетрауксусной кислоты; натриевые, калиевые соли нитрилотриуксусной кислоты. |
4.2.5. Отклонение длины внешней окружности корпуса емкости цилиндрической или сферической формы и/или сферического днища от номинального значения должно быть не более 5 мм для емкостей с внешним диаметром до 600 мм и 0,25% для емкостей с внешним диаметром более 600 мм.
4.2.6. Разница между максимальным и минимальным значением внутреннего диаметра, измеренного в поперечном сечении корпуса емкости цилиндрической или сферической формы и/или сферического днища, должна соответствовать таблице 4.5.
Примечание. Измерение внутреннего диаметра проводят в вертикальном положении корпуса емкости и/или сферического днища.
Номинальный внутренний диаметр корпуса, мм | Разница между максимальным и минимальным диаметрами | Отклонение профиля корпуса |
До 250 включительно | 1,0% от диаметра корпуса | 1 мм |
Св. 250 до 500 включ. | 2 мм |
" 500 " 900 " | 3 мм |
" 900 " 1400 " | 4 мм |
" 1400 " 1800 " | 5 мм |
" 1800 " 2200 " | 18 мм | 6 мм |
" 2200 " 2500 " | 7 мм |
Свыше 2500 | 18 мм или 0,4% от диаметра корпуса, в зависимости от того, какое значение больше | 8 мм или 0,2% от диаметра корпуса, в зависимости от того, какое значение больше |
4.2.7. Отклонение профиля корпуса емкости цилиндрической или сферической формы и/или сферического днища не должно превышать значений, приведенных в
таблице 4.5.
4.2.8. Отклонение образующей корпуса емкости цилиндрической или сферической формы от прямой линии должно быть не более 0,3% от длины внешней окружности.
4.2.9. Глубина днищ должна быть не менее номинального значения и не более 1,25% внутреннего диаметра или 38 мм, в зависимости от того, какое значение меньше.
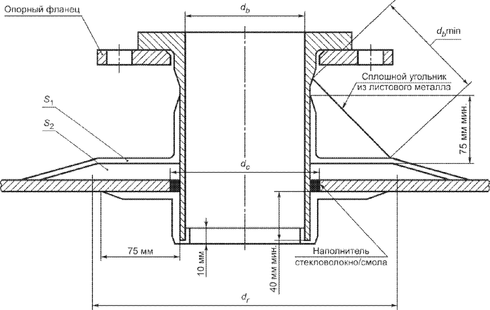
4.2.10. В торосферических днищах внутренний радиус изгиба между боковой стенкой и сферой должен быть не менее 0,1 внутреннего диаметра корпуса емкости.
4.2.11. Отклонения опорных поверхностей фланцев, в зависимости от номинального диаметра емкости DN, от плоскостности должны быть:
DN <= 450 ...................................................... 1,0 мм
450 < DN <= 1000 ............................................... 1,5 мм
DN > 1000 ..................................................... 3,0 мм.
4.2.12. Фланцы должны быть перпендикулярны оси патрубков; отклонение фланцев от перпендикулярности должно быть не более 1° для фланцев номинальным диаметром не более 100 мм и 0,5° для фланцев номинальным диаметром не менее 100 мм.
4.2.13. Отклонение толщины ламината от среднего значения должно быть не более 10% или не более 3 мм.
4.3. Условное обозначение
Условное обозначение емкости должно включать: наименование вида продукции - "Емкость", обозначение категории емкости в соответствии с
4.1, значение давления, значение объема, обозначение настоящего стандарта.
Пример условного обозначения емкости первой категории, работающей под давлением 2 кПа, объемом 51 м3:
Емкость I-2-51 ГОСТ Р 55072-2012.
5. Технические требования
5.1. Емкости должны соответствовать требованиям настоящего стандарта и изготавливаться по конструкторской и технологической документации в соответствии с техническим заданием, утвержденными в установленном порядке.
5.2. Характеристики
5.2.1. Расчетное давление и/или вакуум емкостей в зависимости от категории должны соответствовать таблице 5.1.
Категория емкости | Давление и/или вакуум, Па |
Категория I <1> | >= +/- 500 |
Категория II <1> | < +/- 500 |
Категория III | Гидростатический напор |
<1> Выше гидростатического напора. |
5.2.2. Рекомендуемые объемы емкостей в зависимости от категории:
категория I .............................................. более 50 м3
категория II ........................................ от 10 до 50 м3
категория III ...................................... не более 10 м3.
5.2.3. По показателям внешнего вида емкости должны соответствовать требованиям, приведенным в таблице 5.2.
Таблица 5.2
Дефект | Внутренняя поверхность | Внешняя поверхность |
Пузыри | Не допускается | Диаметром не более 6 мм, высотой не более 1,5 мм |
Сколы | Не допускается | Глубиной не более 6 мм, при условии, что они не проникают в армирующий слой ламината |
Трещины | Не допускается | Не допускается |
Волосяные трещины | Не допускается | Не допускается |
Сухие пятна | Не допускается | Не более 10 шт. на квадратный метр и не более 100 мм2 на всю площадь поверхности |
Пузырьки воздуха | Не допускается | Диаметром не более 3 мм и не более 3% от всей площади поверхности |
Открытые участки стекла | Не допускается | Не допускается |
Открытые обрезанные края | Не допускается | Не допускается |
Примесь | Не допускается | Не допускается |
Раковины | Диаметром не более 3 мм и глубиной не более 0,5 мм, количество не должно превышать 1 на 104 мм2 | Диаметром не более 3 мм и глубиной не более 1,5 мм, количество не должно превышать 1 на 104 мм2 |
Задиры | Глубиной не более 0,2 мм | Глубиной не более 0,5 мм |
Пористость поверхности | Не допускается | Не допускается |
Складки | Толщиной не более 20% от толщины стенки, но не более 3 мм | Толщиной не более 20% от толщины стенки, но не более 4,5 мм |
Резкая неоднородность | Длиной не более 0,5 мм | Длиной не более 1 мм |
5.3. Требования к ламинату
5.3.1. Деформация ламината не должна превышать 0,26% или быть больше наименьшего значения деформации более чем в 1,3 раза, в зависимости от того, какое из значений меньше.
5.3.2. Толщина ламината без учета термопластичного футеровочного слоя должна быть не менее 3 мм для безнапорных емкостей и не менее 5 мм для напорных емкостей.
Не допускается резкое изменение толщины ламината. Соотношение между разными толщинами ламината не должно быть больше чем 1:6 (см. рисунки 5.1 -
5.6).
T - длина плавного перехода; t - толщина ламината;
Di - внутренний диаметр корпуса
Рисунок 5.1. Единичный плавный переход при изменении
толщины цилиндрического корпуса (применяют в напорных
емкостях с термопластичным футеровочным слоем или без него)
T - длина плавного перехода; t - толщина ламината;
Di - внутренний диаметр корпуса
Рисунок 5.2. Единичный плавный переход при изменении
толщины в районе патрубков и конических секций (применяют
в напорных емкостях с термопластичным футеровочным
слоем или без него)
T - длина плавного перехода; t - толщина ламината;
Di - внутренний диаметр корпуса
Рисунок 5.3. Единичный плавный переход при изменении
толщины в районе элемента жесткости (применяют в напорных
емкостях с термопластичным футеровочным слоем или без него)
T - длина плавного перехода; t - толщина ламината;
Di - внутренний диаметр корпуса
Рисунок 5.4. Единичный плавный переход при изменении
толщины в районе элемента жесткости (включая металлический
уголок или Т-образное кольцо) (применяют в напорных
емкостях с термопластичным футеровочным слоем или без него)
T - длина плавного перехода; t - толщина ламината;
Di - внутренний диаметр корпуса
Рисунок 5.5. Двойной плавный переход при изменении толщины
цилиндрического корпуса (применяют в напорных емкостях
без термопластичного футеровочного слоя)
T - длина плавного перехода; t - толщина ламината;
Di - внутренний диаметр корпуса
Рисунок 5.6. Двойной плавный переход при изменении толщины
в районе патрубков и конических секций (применяют
в напорных емкостях без термопластичного
футеровочного слоя)
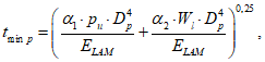
Длину плавного перехода T, мм, вычисляют по формуле

(5.1)
где Di - внутренний диаметр емкости, мм;
t - толщина ламината, мм.
5.3.3. В местах соединения отдельных секций корпуса емкости применяют перекрывающий ламинат. Перекрывающий ламинат должен плавно сходить на нет, чтобы избежать резких перепадов толщины. Соотношение между разными толщинами ламината не должно быть больше чем 1:6.
В местах соединения отдельных секций корпуса емкости необходимо дополнительно применять уплотнительную ленту шириной не менее 100 мм, представляющую собой конструкцию из слоя CSM массой на единицу площади 1200 кг/м2, поверх которого укладывают стеклоткань, пропитанную термореактивной смолой.
При соединении отдельных секций корпуса емкости не допускается несовпадение размеров отдельных секций корпуса емкости более чем 0,2% от внутреннего диаметра емкости.
5.3.4. При выкладке армирующий наполнитель в ламели укладывают внахлест не менее чем на 50 мм. Места соединения армирующего наполнителя в соседних ламелях должны быть смещены относительно друг друга.
| | ИС МЕГАНОРМ: примечание. Нумерация пунктов дана в соответствии с официальным текстом документа. | |
5.3.4. Твердость ламината должна быть не менее 80% от твердости смолы, установленной в нормативном или техническом документах.
5.3.5. Содержание остаточного мономера стирола в ламинате должно быть не более 2% от массы смолы.
Примечание. Остаточный мономер стирола определяют для полиэфирных смол.
5.3.6. Ламинат должен быть стоек к воздействию ацетона в течение 3 мин.
5.3.7. При использовании трехслойной конструкции предел прочности на межслойный сдвиг между профилем и ядром должен быть не менее 0,2 Н/мм
2.
5.3.8. Механические свойства ламелей
По механическим свойствам ламели должны соответствовать требованиям, приведенным в таблице 5.3.
Таблица 5.3
Характеристика | Тип армирующего наполнителя | Метод испытания |
| | WR с полотняным переплетением (основа и уток) <*> | WR с полотняным переплетением (основа и уток) <**> | Однонаправленное волокно (в направлении волокна) |
1. Удельный предел прочности при растяжении, Н·м 2/мм·кг, не менее | 200 | 140 | 250 | 160 | 500 | |
2. Удельный модуль упругости при растяжении, Н·м 2/мм·кг, не менее | 14000 | 14000 | 16000 | 16000 | 28000 | |
3. Прочность соединения внахлестку при сдвиге, Н/мм 2, не менее | 7,0 | 5,0 | 6,0 | 4,0 | 6,0 | |
<*> Значения указаны для всех типов термореактивных смол, кроме фурановой. <**> Значения для фурановой смолы. |
5.3.9. Массовая доля армирующего наполнителя для CSM - от 28% до 45%, для WR - от 45% до 55%, для однонаправленного волокна - от 65% до 75%.
5.4. Требования к термопластичному футеровочному слою
5.4.1. Футеровочный слой должен соответствовать требованиям настоящего стандарта, его тип устанавливают в конструкторской или технологической документации в соответствии с техническим заданием, утвержденными в установленном порядке.
5.4.2. Предел прочности на сдвиг между термопластичным футеровочным слоем и ламинатом должен быть не менее 7 Н/мм
2, прочность на раздир - 5 Н/мм.
Примечание. Заданную прочность сцепления достигают путем укладки рубленого стекловолокна или CSM с массой на единицу площади не менее 0,45 кг/м2 между термопластичным футеровочным слоем и ламинатом емкости и/или ее элементов.
5.4.3. Предел прочности при растяжении сварного шва термопластичного футеровочного слоя должен быть не менее 85% от предела прочности исходного материала, определяемого по
ГОСТ 11262, при двусторонней сварке и не менее 70% при односторонней сварке.
5.4.4. Электрическую прочность сварных швов проверяют при напряжении от 20 до 25 кВ.
5.4.5. Толщина термопластичного футеровочного слоя должна быть не менее 2,0 мм. При применении термопластичного футеровочного слоя на патрубках и трубах внутренним диаметром не более 100 мм его толщина должна быть не более 1,5 мм.
Толщина термопластичного футеровочного слоя из поливинилхлорида должна быть не менее 2,5 мм.
Не допускается применение термопластичного футеровочного слоя из поливинилхлорида толщиной более 4,5 мм при температуре рабочей среды выше 40 °C.
5.4.6. Снижение значения предела прочности при растяжении термопластичного футеровочного слоя после воздействия рабочих сред по
4.2.4 относительно предела прочности при растяжении до воздействия рабочих сред по
4.2.4 не должно превышать значения коэффициента снижения прочности, равного 10%.
5.5. Требования к термореактивному футеровочному слою
5.5.1. Термореактивный футеровочный слой должен состоять из поверхностного слоя и подкладочного слоя. Поверхностный слой изготавливают из мата из C-стекла, пропитанного термореактивной смолой. Толщина поверхностного слоя должна быть от 0,25 до 0,50 мм. Подкладочный слой изготавливают из рубленого стекловолокна массой на единицу площади не менее 1,2 кг/м2 или CSM, массовая доля которого должна быть от 25% до 33%. Для емкостей II-й и III-й категорий допускается использование рубленого стекловолокна или CSM массой на единицу площади до 0,62 кг/м2.
5.5.2. Армирующий наполнитель в ламели укладывают внахлест не менее чем на 25 мм.
5.5.3. Снижение значения предела прочности при растяжении термореактивного футеровочного слоя после воздействия рабочих сред по
4.2.4 относительно предела прочности при растяжении до воздействия рабочих сред по
4.2.4 не должно превышать значения коэффициента снижения прочности, равного 10%.
5.6. Требования к сырью и материалам
5.6.1. Материалы, применяемые для изготовления емкостей, должны соответствовать требованиям действующих нормативных или технических документов, иметь сопроводительную документацию, включая протоколы испытаний, или должны быть подвергнуты входному контролю.
5.6.2. Для изготовления емкостей используют следующее сырье и материалы: термореактивные смолы, армирующие наполнители, термопластичные футеровочные материалы.
5.6.3. В качестве термореактивных смол применяют:
- полиэфирные (ПЭ);
- эпоксидные (Э);
- фурановые (Фр).
Температура тепловой деформации в отвержденном виде термореактивных смол должна быть не менее чем на 20 °C выше, чем расчетная температура рабочей среды емкости. Определение температуры тепловой деформации приведено в
Приложении Ц.
5.6.4. В качестве армирующих наполнителей применяют:
- CSM массой на единицу площади 300; 450; 600; 750; 900 г/м2. Длина стекловолокна от 25 до 50 мм;
- рубленые ровинги длиной не менее 32 мм;
- непрерывные ровинги;
- тканый материал из ровингов или стеклопряжи.
В качестве сырья для производства армирующих наполнителей применяют:
- E-стекло;
- C-стекло;
- A-стекло;
- ECR-стекло.
| | ИС МЕГАНОРМ: примечание. Нумерация пунктов дана в соответствии с официальным текстом документа. | |
5.6.3. В качестве термопластичных футеровочных слоев применяют:
- поливинилхлорид (ПВХ/PVC);
- полипропилен (ПП/PP);
- поливинилиденфторид (ПВДФ/PVDF);
- этилен-трифторхлорэтилен (Э-ТФХЭ/ECTFE);
- хлорированный поливинилхлорид (ХПВХ/CPVC);
- фторированный этилен-пропилен (ФЭП/FEP).
5.7. Маркировка
5.7.1. Каждая емкость должна иметь четкую, легко читаемую маркировку. Маркировку осуществляют с помощью информационных табличек по
ГОСТ 12971. Маркировку наносят на информационную табличку термопечатным способом.
Информационную табличку крепят на наружную поверхность способом, не нарушающим целостность поверхности и обеспечивающим сохранность маркировки при хранении, транспортировании, погрузочно-разгрузочных работах, монтаже и эксплуатации.
| | ИС МЕГАНОРМ: примечание. Нумерация пунктов дана в соответствии с официальным текстом документа. | |
5.7.3. Маркировка должна содержать:
- наименование предприятия-изготовителя и его товарный знак;
- юридический адрес предприятия-изготовителя;
- условное обозначение емкости в соответствии с настоящим стандартом;
- заводской номер;
- дату изготовления;
- расчетное давление (МПа) и/или максимальный напор и относительную плотность рабочей среды;
- испытательное давление;
- рабочую температуру, соответствующую рабочему давлению;
- тип термопластичного футеровочного слоя, при его наличии.
5.7.4. Транспортную маркировку наносят по
ГОСТ 14192 с нанесением манипуляционных знаков "Штабелировать запрещается", "Не катить".
5.8. Упаковка
Упаковку емкостей производят в соответствии с договором на изготовление и/или поставку емкости.
6. Требования безопасности и охрана окружающей среды
6.1. Требования безопасности
6.1.1. Емкости при контакте с ними не представляют опасности для человека, и работа с ними не требует специальных мер безопасности.
6.1.2. При подготовке производства и механической обработке емкостей в воздушную среду рабочей зоны выделяются пары стирола и ацетона, фрагменты стекловолокна, стеклянная пыль, пыль стеклокомпозитного материала, вызывающие раздражение слизистых оболочек глаз, раздражение кожи, зуд и оказывающие фиброгенное воздействие на верхние дыхательные пути. При подготовке смолы в рабочей зоне и при контроле процесса напыления, намотки или выкладки возможно попадание ее на кожу рук, что вызывает раздражение и дерматиты.
Предельно допустимые концентрации (ПДК) и классы опасности указанных веществ в воздухе рабочей зоны по
ГОСТ 12.1.005 и
[1] приведены в таблице 6.1.
Таблица 6.1
Предельно допустимые концентрации и классы
опасности веществ
Вещество | ПДКврз, мг/м3, не более | Класс опасности |
Пыль стеклокомпозита | 5 | 3 |
Стирол | 30/10 | 3 |
Пероксид циклогексанона | 1 | 3 |
Стекловолокно | 2 | 3 |
Стеклянная пыль | 2 | 3 |
Ацетон | 200 | 4 |
6.1.3. При производстве, в том числе при механической обработке емкостей, должны выполняться требования безопасности в соответствии с
ГОСТ 12.3.030.
6.1.4. Для защиты от вредного воздействия, указанного в
6.2, применяют средства коллективной и индивидуальной защиты работающих по
ГОСТ 12.4.011.
6.1.5. Для защиты органов дыхания от паро- и газообразных вредных веществ необходимо использовать фильтрующие противогазовые респираторы РПГ-67 (патрон А) по
ГОСТ 12.4.004. Для защиты органов дыхания от пыли и аэрозолей необходимо использовать респираторы ШБ-1 "Лепесток" по
ГОСТ 12.4.028.
Для защиты кожи рук применяют пасту на основе ланолина, силиконовый крем для рук, технические резиновые перчатки по
ГОСТ 20010, а также индивидуальные защитные дерматологические средства с маркировкой Пн, Пт, Ск и О по
ГОСТ 12.4.068.
6.1.6. К работе с изделиями из стеклокомпозита могут допускаться лица не моложе 18 лет, прошедшие предварительный медицинский осмотр в соответствии с требованиями Минздрава России, специальное обучение, вводный инструктаж по технике безопасности, пожарной безопасности, а также сдавшие экзамены специальной комиссии.
6.1.8. Производственные помещения, в которых изготавливают емкости, а также проводят их механическую обработку, должны быть оборудованы приточно-вытяжной вентиляцией по
ГОСТ 12.4.021, а рабочие места - местными отсосами, обеспечивающими выполнение требований 6.1.7.
6.1.9. Ламинат неэлектропроводен, невзрывоопасен, относится к трудносгораемым материалам по
ГОСТ 12.1.044.
6.1.10. Пожарную безопасность на предприятии и рабочих местах следует обеспечивать в соответствии с требования
ГОСТ 12.1.004.
6.1.11. В местах производства работ с емкостью, а также вблизи мест складирования сырья и материалов запрещается разводить огонь, хранить легковоспламеняющиеся вещества.
6.1.12. Рабочие места и места складирования сырья и материалов должны быть оборудованы средствами пожаротушения (водой, пеной, песком, кошмой). При тушении изделий в закрытых помещениях следует использовать промышленные фильтрующие противогазы по
ГОСТ 12.4.121, тип I.
6.1.13. В соответствии с правилами защиты от статического электричества по
ГОСТ 12.1.018 оборудование должно быть заземлено. Относительная влажность в рабочем помещении должна соответствовать требованиям
ГОСТ 12.1.005. Рабочие места должны быть снабжены резиновыми ковриками. Общая электробезопасность должна соответствовать требованиям
ГОСТ Р 12.1.019.
6.1.14. Все оборудование, используемое в производственном процессе изготовления емкостей, должно отвечать требованиям
ГОСТ 12.2.003.
6.2. Охрана окружающей среды
6.2.1. Применительно к использованию, транспортированию, хранению емкостей специальные требования к охране окружающей среды не предъявляют.
6.2.2. Выделяющиеся в атмосферу при производстве и механической обработке паро-, газообразные вещества и пыль не должны превышать норм ПДК, установленных
гигиеническими нормативами [2].
6.2.3. Правила контроля качества воздуха населенных пунктов - по
ГОСТ 17.2.3.01. Правила установления допустимых выбросов вредных веществ промышленными предприятиями - по
ГОСТ 17.2.3.02.
6.2.4. При аварийной ситуации на предприятии требования к контролю и охране от загрязнения почв - по
ГОСТ 17.4.3.04, требования к охране поверхностных вод от загрязнения - по
ГОСТ 17.1.3.13.
6.2.5. Обращение с отходами - по
ГОСТ Р 52108. Неиспользуемые отходы производства подлежат утилизации, в случае невозможности утилизации отходы производства должны собираться и вывозиться в места захоронения с соблюдением требований
[3] и по согласованию с органами Роспотребнадзора.
7.1. Емкости принимают партиями. Партией считают любое количество емкостей, изготовленных по одному технологическому документу, технологическому процессу и одной конструкции и сопровождаемых одним документом о качестве.
Размер партии определяют условиями заказа. Допускается поштучная приемка.
7.2. Документ о качестве (паспорт) должен содержать:
- наименование предприятия-изготовителя и его товарный знак;
- юридический адрес;
- условное обозначение в соответствии с настоящим стандартом;
- номер партии;
- дату изготовления;
- результаты проведенных испытаний или подтверждение о соответствии качества изделия требованиям настоящего стандарта;
- обозначение настоящего стандарта.
7.3. Для проверки соответствия изделий требованиям настоящего стандарта проводят квалификационные, приемо-сдаточные, периодические испытания.
7.4. Квалификационные испытания проводятся при освоении производства емкостей, а также в следующих случаях:
- при изменении технологического процесса изготовления;
- при изменении марок используемого сырья и материалов;
- при изменении поставщика и/или изготовителя используемого сырья и материалов.
7.5. Приемо-сдаточные испытания проводят с целью контроля соответствия характеристик емкостей требованиям настоящего стандарта с применением сплошного контроля.
7.6. Периодические испытания проводят для периодического подтверждения качества емкостей и стабильности технологического процесса с целью подтверждения возможности продолжения изготовления емкостей по действующей технологической документации и продолжения ее приемки.
Периодические испытания проводятся не реже 1 раза в год на образцах, прошедших приемо-сдаточные испытания.
Изменение периодичности испытаний по любому из контролируемых показателей проводится по совместному согласованию изготовителя и потребителя и оговаривается в договоре на поставку.
7.7. Состав квалификационных, приемо-сдаточных и периодических испытаний, а также периодичность контроля и объем выборки приведены в таблице 7.1.
Таблица 7.1
Наименование показателя | Номер структурного элемента настоящего стандарта | Вид испытания | Количество образцов |
Технические требования | Методы контроля | Квалификационные | Приемо-сдаточные | Периодические |
Емкость |
Размеры и их предельные отклонения | | | + | + | + | 100% |
Давление и деформация | | | + | + | + | 100% |
Внешний вид | | | + | + | + | 100% |
Ламинат |
Твердость по Барколу | | | + | + | + | |
Содержание остаточного мономера стирола | | | + | + | + | |
Ацетоновая проба | | | + | + | + | |
Предел прочности на межслойный сдвиг между профилем и ядром | | | + | + | + | |
Ламель |
Удельный предел прочности при растяжении | | | + | + | + | |
Удельный модуль упругости при растяжении | | | + | + | + | |
Прочность соединения внахлестку при сдвиге | | | + | + | + | |
Содержание армирующего наполнителя | | | + | + | + | |
Термопластичный футеровочный слой |
Предел прочности на сдвиг между термопластичным футеровочным слоем и ламинатом | | | + | + | + | |
Прочность на раздир между термопластичным футеровочным слоем и ламинатом | | | + | + | + | |
Предел прочности при растяжении сварного шва | | | + | + | + | |
Электрическая прочность сварных швов | | | + | + | + | |
Стойкость к действию рабочих сред <*> | | | + | + | + | |
<*> Данный метод также применяют для термореактивного футеровочного слоя, требования к которому приведены в 5.5.3. |
7.8. Результаты квалификационных испытаний оформляют протоколом.
Протокол квалификационных испытаний предъявляют потребителю по его требованию.
7.9. При получении неудовлетворительных результатов приемо-сдаточных испытаний определяют причины неудовлетворительных результатов, при необходимости проводят ремонт. После определения причин и ремонта проводят повторные испытания.
7.10. При получении неудовлетворительных результатов повторных приемо-сдаточных испытаний производство емкости не допускается вплоть до выявления и устранения причин несоответствия материала требованиям настоящего стандарта и получения удовлетворительных результатов новых испытаний.
7.11. Результаты приемо-сдаточных испытаний оформляют протоколом.
Протокол приемо-сдаточных испытаний должен быть включен в комплект сопроводительной документации.
7.12. При получении неудовлетворительных результатов периодических испытаний хотя бы по одному из показателей их переводят в категорию приемо-сдаточных до получения положительных результатов по данному показателю на трех произвольно взятых изделиях подряд.
7.13. Результаты периодических испытаний оформляют протоколом.
Протокол периодических испытаний предъявляют потребителю по его требованию.
8.1. Определение размеров и их предельных отклонений
Размеры емкостей и их отклонения следует измерять с помощью средств, обеспечивающих погрешность не более 30% установленного допуска на изготовление.
Профиль корпуса емкости цилиндрической или сферической формы и/или сферического днища измеряют по внутренней или по внешней поверхности корпуса с помощью шаблона
(рисунок 8.1), имеющего длину, равную 1/4 внутреннего диаметра корпуса емкости и/или сферического днища.
Di - внутренний диаметр; t - толщина; X - отклонение;
1 - шаблон для измерения внешнего диаметра; 2 - шаблон
для измерения внутреннего диаметра
Рисунок 8.1. Отклонение от круглой формы для цилиндрических
корпусов емкостей
Глубину днищ измеряют от плоскости, проходящей через точку на высоте отбортовки.
8.2. Определение давления и деформации
8.2.1. Гидравлическому испытанию или испытанию вакуумом подлежат все напорные емкости после их изготовления.
Гидравлические испытания или испытания вакуумом емкостей проводит предприятие-изготовитель.
Гидравлические испытания или испытания вакуумом емкостей, транспортируемых частями и собираемых на месте монтажа, допускается проводить после их изготовления на месте установки.
8.2.2. Испытательное давление при гидравлическом испытании должно быть больше расчетного давления не менее чем в 1,3 раза.
При испытании вакуумом внутреннее испытательное давление должно быть таким, чтобы внешнее давление, воздействующее на емкость, было больше расчетного внешнего давления не менее чем в 1,3 раза.
Если напорная емкость проектировалась для полного вакуума, абсолютное значение внутреннего испытательного давления должно быть от 0 до 4 кПа.
При невозможности испытать емкость вакуумом допускается создавать испытательное внутреннее давление, которое больше расчетного внешнего давления не менее чем в 1,5 раза.
8.2.3. Для гидравлического испытания емкости следует использовать воду. Температура воды должна быть не менее 7 °C.
При заполнении емкости водой должен быть удален воздух из внутренних полостей.
8.2.4. При гидравлическом испытании давление равномерно поднимают с помощью нагнетательного насоса до значения, составляющего 50% от испытательного давления. После этого давление увеличивают с шагом 10% от испытательного давления до достижения испытательного давления.
Время выдержки под испытательным давлением должно быть не менее 60 мин.
После выдержки под испытательным давлением давление снижают до давления, равного 90% от испытательного давления, и выдерживают в течение 15 мин, после чего проводят визуальный осмотр наружной поверхности емкости.
При испытании вакуумом давление равномерно понижают с помощью пневматического насоса до значения, составляющего 50% от испытательного давления. После этого давление уменьшают с шагом 10% от испытательного давления до достижения испытательного давления.
Время выдержки под испытательным давлением должно быть не менее 60 мин.
После выдержки под испытательным давлением давление повышают до давления, равного 90% от испытательного давления, и выдерживают в течение 15 мин, после чего проводят визуальный осмотр наружной поверхности емкости.
8.2.5. Испытательное давление при гидравлическом испытании или испытании вакуумом контролируют двумя манометрами. Манометры выбирают одного типа, предела измерения, класса точности, одинаковой цены деления. Манометры должны иметь класс точности не ниже 2,5.
8.2.6. Деформацию при гидравлическом испытании или испытании вакуумом измеряют тензометрами.
8.2.7. После проведения гидравлического испытания вода должна быть полностью удалена.
8.2.8. Гидравлическое испытание допускается заменять пневматическим испытанием.
8.2.9. Испытание безнапорных емкостей проводят наливом воды до верхней кромки емкости.
8.2.10. Результаты испытаний считают удовлетворительными, если во время их проведения отсутствуют:
- падение давления по манометру;
- превышение значения деформации (см.
5.3.1);
- признаки разрушения, растрескивания, появления волосяных трещин на поверхности ламината;
- признаки дефектов в швах термопластичного футеровочного слоя.
8.3. Внешний вид поверхности емкости на соответствие требованиям
таблицы 5.2 проводят путем визуального осмотра.
8.4. Определение твердости по Барколу
8.4.1. Сущность метода
Твердость образца определяют твердомером Баркола.
8.4.2. Оборудование
Твердомер Баркола (см. рисунок 8.2) состоит из индентора и индикаторного устройства.
1 - кожух; 2 - индикаторное устройство; 3 - корпус;
4 - опора; 5 - плунжер; 6 - верхняя гайка с направлением
плунжера; 7 - пружина; 8 - нижняя гайка с направлением
плунжера; 9 - стопорная гайка; 10 - рычаг; 11 - неподвижная
втулка; 12 - подвижная направляющая втулка; 13 - пружина
подвижной направляющей втулки; 14 - направляющее кольцо;
15 - наконечник индентора; 16 - регулировочное кольцо
Рисунок 8.2. Типовая конструкция твердомера Баркола
Индентор должен быть изготовлен из закаленной стали в виде усеченного конуса. Угол наклона образующей индентора должен составлять 26 градусов, диаметр вершины индентора должен быть 0,157 мм.
Индикаторное устройство должно иметь шкалу со 100 делениями. Каждое деление должно соответствовать глубине проникновения в материал, равной 0,0076 мм.
8.4.3. Подготовка к испытанию
8.4.3.1. Подготовка образцов
Образцы для проведения всех видов испытаний изготавливают из исходных материалов, соответствующих требованиям настоящего стандарта, прошедших входной контроль и предназначенных для производства емкостей.
Технологические режимы и операции изготовления образцов должны соответствовать технологическим режимам и операциям производства емкостей.
8.4.3.2. Толщина образца должна быть не менее 1,5 мм, длина и ширина образцов - не менее 7 мм.
Поверхность образца должна быть чистой. На поверхности образца не допускается механических повреждений: царапин или отверстий.
| | ИС МЕГАНОРМ: примечание. ГОСТ 12423-66 утратил силу с 1 января 2015 года в связи с введением в действие ГОСТ 12423-2013 (Приказ Росстандарта от 22.11.2013 N 1069-ст). | |
8.4.3.3. Образец кондиционируют при стандартной атмосфере 23/50 по ГОСТ 12423 в течение 16 ч.
8.4.3.4. Количество образцов должно быть не менее 30.
8.4.3.5. Твердомер калибруют в соответствии с инструкцией изготовителя таким образом, чтобы индикаторное устройство показывало максимальное значение (100 делений) при измерении твердости на стеклянной поверхности и значение твердости, соответствующее значению изготовителя, на алюминиевом калибровочном диске, поставляемом вместе с твердомером.
8.4.4. Проведение испытания
8.4.4.1. Испытание проводят при 23 °C и 50%-ной относительной влажности.
8.4.4.2. Образец помещают на твердую поверхность, чтобы избежать прогиба или деформации образца под давлением индентора. Индентор должен быть перпендикулярен плоскости образца. Твердомер держат между опорами и направляющей втулкой. Устанавливают твердомер на образец. Быстро прикладывают руками нагрузку и фиксируют максимальное показание индикаторного устройства, которое является значением твердости по Барколу. При проведении испытания следует избегать скольжения индентора по образцу.
8.4.5. Обработка результатов
За результат испытания принимают среднеарифметическое значение результатов испытания всех образцов.
| | ИС МЕГАНОРМ: примечание. ГОСТ Р 50303-92 утратил силу с 1 января 2017 года в связи с введением в действие ГОСТ 33497-2015 (Приказ Росстандарта от 06.11.2015 N 1715-ст). | |
8.5. Содержание остаточного мономера стирола определяют по ГОСТ Р 50303.
Хлопчатобумажную ткань размером 5 x 5 см смачивают в техническом ацетоне
(ГОСТ 2768) и накладывают на поверхность образца на 3 мин. По истечении 3 мин ламинат не должен иметь признаков липкости. Размеры образца должны быть не менее размеров хлопчатобумажной ткани. Количество образцов должно быть не менее пяти.
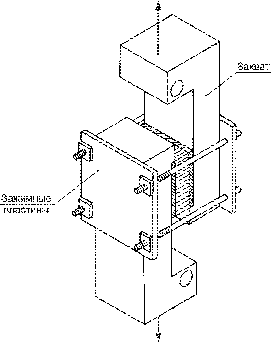
8.7. Определение предела прочности на межслойный сдвиг между профилем и ядром
8.7.1. Сущность метода
К профилям трехслойной конструкции прикладывают разнонаправленную нагрузку, действующую параллельно плоскости профилей, до разрушения образца.
Машина испытательная универсальная, обеспечивающая растяжение образца с заданной постоянной скоростью перемещения зажимов и измерения нагрузки с заданной погрешностью по
ГОСТ 28840.
Захваты (см. рисунок 8.3). Конструкция захватов должна обеспечивать приложение нагрузки только к профилям трехслойной конструкции. Расстояние от края контактной площадки захвата до границы раздела профиля и ядра должно быть не менее 0,5 мм.
Рисунок 8.3. Установка образца в захватах
Пластины зажимные (см. рисунок 8.3), обеспечивающие крепление захватов на образце. Зажимные пластины должны быть стянуты таким образом, чтобы предотвратить их соскальзывания с захватов. Внутреннюю поверхность зажимных пластин покрывают смазочным материалом, обеспечивающим скольжение.
8.7.3. Подготовка к испытанию
8.7.3.1. Подготовка образцов - по
8.4.3.1.
8.7.3.2. Форма и размеры образцов указаны на рисунке 8.4.
Рисунок 8.4. Образец для испытаний на предел прочности
на межслойный сдвиг
Ядро должно быть такой толщины, чтобы его центр находился на линии приложения нагрузки.
8.7.3.3. Для определения предела прочности на межслойный сдвиг используют не менее пяти образцов.
Если свойства ядра зависят от направления, испытание должно проходить на 10 образцах, по пять образцов в каждом направлении оси анизотропии.
8.7.3.4. Образцы кондиционируют при температуре (20 +/- 5) °C не менее 3 ч до начала проведения испытания. Температура проведения испытания - (20 +/- 5) °C.
8.7.4. Проведение испытания
Закрепляют образец в захватах и прикладывают разнонаправленную нагрузку к профилям трехслойной конструкции (см.
рисунок 8.3) до тех пор, пока не произойдет разрушение. Скорость нагружения должна быть постоянной и должна находиться в пределах от 1,0 до 1,5 мм/мин.
8.7.5. Обработка результатов
Предел прочности на межслойный сдвиг s, Н/мм2, вычисляют по формуле

(8.1)
где W - максимальная нагрузка, Н;
a - ширина образца, мм;
b - длина образца, мм.
За результат испытания принимают среднеарифметическое значение результатов испытания всех образцов.
8.8. Определение удельного предела прочности при растяжении
К образцу прикладывают растягивающую нагрузку, вектор которой совпадает с основной осью образца, с постоянной скоростью до разрушения образца или до тех пор, пока напряжение (нагрузка) или деформация (растяжение) не достигнут заданного значения. Во время проведения испытания измеряют нагрузку и удлинение, выдерживаемое образцом.
Машина испытательная универсальная по
8.7.2.
Экстензометр или тензометр с точностью измерения не менее +/- 1% во всем диапазоне измерения деформации.
Микрометр с точностью измерения не менее 0,01 мм.
8.8.3. Подготовка к испытанию
8.8.3.1. Подготовка образцов по
8.4.3.1.
8.8.3.2. Форма и размеры образцов указаны на рисунке 8.5.
L3 - общая длина; L1 - длина узкой параллельной части;
R - радиус закругления; b2 - ширина на концах; b1 - ширина
узкой части; h - толщина; L - исходное расстояние между
захватами; L0 - измерительная база
Рисунок 8.5. Форма и размеры образцов
Размеры образцов должны соответствовать требованиям таблицы 8.1.
Таблица 8.1
Размер | Значение, мм |
Исходное расстояние между захватами | (115 +/- 1) |
Измерительная база | (50 +/- 0,5) |
Длина узкой параллельной части | (60 +/- 0,5) |
Общая длина | |
Радиус закругления | >= 60 |
Ширина узкой части | (10 +/- 0,2) |
Ширина на концах | (20 +/- 0,2) |
Толщина | 2 - 10 |
<1> Для некоторых материалов длина выступов может быть увеличена (например, так, чтобы L 3 = 200 мм) для предотвращения разрушения или скольжения образца в зажимах. |
8.8.3.3. Количество образцов, необходимое для определения удельного предела прочности при растяжении в каждом направлении армирования, должно быть не менее пяти.
В случае разрушения образца при испытании в области зажимов данные в расчет не принимают и образец заменяют.
8.8.4. Проведение испытания
8.8.4.1. Образцы устанавливают в зажимы испытательной машины. Образцы, армированные однонаправленными волокнами, устанавливают в зажимы таким образом, чтобы концевые выступы входили в зажим не менее чем на 7 мм.
8.8.4.2. Устанавливают предварительное напряжение. Значение предварительного напряжения

, МПа, должно соответствовать неравенству

(8.2)
где E - модуль упругости при растяжении, МПа.
Модуль упругости при растяжении E, МПа, вычисляют по формуле

(8.3)
где

- напряжение при растяжении, измеренное при деформации растяжения

, МПа;

- напряжение при растяжении, измеренное при деформации растяжения

, МПа.
Если после установки образца в зажимы значение напряжения выше значения предварительного напряжения, удовлетворяющего
формуле (8.2), то уменьшают напряжение путем перемещения траверсы испытательной машины со скоростью 1 мм/мин, пока значение предварительного напряжения не достигнет установленного значения, удовлетворяющего
формуле (8.2).
8.8.4.3. Устанавливают экстензометры или тензометры. Определяют измерительную базу с точностью не менее 1%.
При применении оптических экстензометров на образец наносят контрольные метки для определения измерительной базы.
Экстензометры или тензометры устанавливают на одинаковом расстоянии от середины образца и на центральной линии образца.
8.8.4.4. Скорость проведения испытания должна быть 2 мм/мин.
8.8.5. Обработка результатов
8.8.5.1. Удельный предел прочности при растяжении u, Н·м2/мм·кг, вычисляют по формуле

(8.4)
где F - максимальная растягивающая сила, Н;
b1 - ширина узкой части образца, мм;
m - масса на единицу площади однородного армирующего наполнителя, кг/м2.
8.8.5.2. Если в наличии имеются только комбинированные образцы (например, испытание образцов, изготовленных из обрезков), в этом случае образцы могут не достигнуть полного предела прочности при растяжении.
Удельный предел прочности при растяжении допускается определять по минимальной растягивающей нагрузке, которую образец выдерживает без разрушения.
Примечание. Различная способность к растяжению разных ламелей может привести к разрушению ламели с одним типом армирования до достижения полной нагрузки в ламели с другим видом армирования. Результирующая передача нагрузки приведет к преждевременному разрушению образца.
Удельный предел прочности при растяжении u, Н·м2/мм·кг, вычисляют по формуле

(8.5)
где

- наименьшее значение из всех

.
Для каждого типа ламели максимальную допустимую деформацию

при минимальном значении удельного предела прочности при растяжении вычисляют по формуле

(8.6)
где Xz - удельный модуль упругости при растяжении ламели, Н·м2/мм·кг.
За результат испытания принимают среднеарифметическое значение результатов испытания всех образцов.
8.9. Определение удельного модуля упругости при растяжении
8.9.1. Сущность метода по
8.8.1.
8.9.2. Оборудование по
8.8.2.
8.9.3. Подготовка к испытанию по
8.8.3.
8.9.4. Проведение испытания
8.9.4.1. Образцы устанавливают в зажимы испытательной машины. Образцы, армированные однонаправленными волокнами, устанавливают в зажимы таким образом, чтобы концевые выступы входили в зажим не менее чем на 7 мм.
8.9.4.2. Прикладывают начальное растягивающее усилие (не более 10% от ожидаемого усилия при 0,2%-ной деформации растяжения), чтобы выпрямить образец; на экстензометре устанавливают 0.
8.9.4.3. Постоянно увеличивают усилие, пока удлинение Zx образца с измерительной базой 50 мм не достигнет значения 0,1 мм (0,2% деформации растяжения), и фиксируют значение усилия Fx в этой точке (см. рисунок 8.6).
Рисунок 8.6. График видимого удлинения Z в зависимости
от усилия F
Если существует вероятность, что деформация растяжения, равная 0,2%, может повысить опасность растрескивания образца, допускается устанавливать деформацию растяжения, равную 0,1% (соответствующую видимому удлинению 0,05 мм при длине измерительной базы 50 мм).
Уменьшают начальное усилие, чтобы выпрямить образец.
8.9.5. Обработка результатов
Удельный модуль упругости при растяжении Xz, Н·м2/мм·кг, вычисляют по формуле

(8.7)
где m - масса на единицу площади однородного армирующего наполнителя образца, кг/м2;
XLAM - суммарный единичный модуль упругости при растяжении, Н/мм.
Суммарный единичный модуль упругости при растяжении XLAM, Н/мм, вычисляют по формуле

(8.8)
где (Z
2 - Z
1) - изменение видимого удлинения, мм (см.
рисунок 8.6);
(F
2 - F
1) - изменение прикладываемого усилия, Н (см.
рисунок 8.6);
L0 - измерительная база образца, мм;
b1 - ширина узкой части образца, мм.
За результат испытания принимают среднеарифметическое значение результатов испытания всех образцов.
8.10. Определение прочности соединения внахлестку при сдвиге
8.10.1. Сущность метода
К образцу прикладывают растягивающую нагрузку, вектор которой совпадает с основной осью образца, с постоянной скоростью до разрушения образца: отслаивание в межслойном соединении.
Машина испытательная универсальная по
8.7.2.
8.10.3. Подготовка к испытанию
8.10.3.1. Подготовка образцов по
8.4.3.1.
8.10.3.2. Форма и размеры образцов указаны на рисунке 8.7.
Рисунок 8.7. Образец для испытания на прочность соединения
внахлестку при сдвиге
Толщина образцов должна быть не менее 3 мм, длина - не менее 200 мм. Края образца должны быть ровными, но незакругленными или скошенными. Два параллельных надреза на противоположных сторонах образца на удалении друг от друга на 12,5 мм должны быть пропилены на всю ширину образца. Надрезы должны быть как можно более узкими и иметь параллельность в пределах 0,8 мм. Глубина надреза должна составлять половину толщины ламината плюс толщина одного слоя или половину толщины ламината +0,1/-0 мм, если количество слоев или толщина слоя неизвестны.
8.10.3.3. Испытание проводят на пяти образцах, если ламинат армирован матом из рубленого стекловолокна или изготовлен напылением.
Если ламинат армирован ровинговой тканью или другим направленным армирующим наполнителем, испытание проводят на 10 образцах, по пять образцов в каждом направлении оси анизотропии.
Образцы, которые разрушились преждевременно или имеют явные трещины, должны быть забракованы и испытания должны быть повторены.
8.10.3.4. Перед проведением испытания образцы кондиционируют при температуре (20 +/- 5) °C не менее 3 ч.
8.10.4. Проведение испытания
Образец помещают в зажимы испытательной машины и нагружают его до разрушения.
Скорость испытания должна быть в пределах от 5,0 до 6,5 мм/мин.
| | ИС МЕГАНОРМ: примечание. Нумерация пунктов дана в соответствии с официальным текстом документа. | |
8.10.6. Обработка результатов
Прочность соединения внахлестку при сдвиге S, Н/мм2, вычисляют по формуле

(8.9)
где W - максимальная нагрузка, Н;
a - расстояние между надрезами, мм;
b - ширина образца, мм.
За результат испытания принимают среднеарифметическое значение результатов испытания всех образцов.
8.11. Определение содержания армирующего наполнителя методом сжигания
8.11.1. Сущность метода
Сущность метода заключается в определении содержания армирующего наполнителя нахождением разницы между массами образца до и после сжигания.
8.11.2. Оборудование
Тигель фарфоровый.
Печь муфельная, расположенная под вентиляционной вытяжкой и способная поддерживать заданную температуру в пределах +/- 20 °C.
Шкаф сушильный вентилируемый, поддерживающий температуру сушки (105 +/- 3) °C.
Линейка металлическая с пределом измерения 1000 мм по
ГОСТ 427.
Инструмент режущий - нож или скальпель.
8.11.3. Подготовка к испытанию
Образец вырезают из ламината массой от 2 до 10 г.
8.11.4. Проведение испытания
Определение содержания стекловолокна осуществляется одновременно на двух идентичных образцах.
Результатом испытания является среднеарифметическое значение измерений, проведенных на двух образцах, при условии, что разница между двумя измерениями не более 5%. Если разница превышает указанную величину, проводят испытания на третьем образце, который должен быть максимально идентичным первым двум. Результатом испытания является среднеарифметическое значение измерений, проведенных на трех образцах.
8.11.4.2. Взвешивают чистый сухой тигель, результат взвешивания в граммах записывают с точностью до первого десятичного знака. Помещают в муфельную печь и устанавливают выбранную температуру и оставляют на 10 мин.
После охлаждения до температуры окружающей среды в эксикаторе взвешивают тигель повторно; если масса тигля изменилась, повторяют процедуру с начала.
Взвешивают чистый сухой тигель. Записывают массу m1 в граммах.
Помещают образец в тигель и высушивают в вентилируемом сушильном шкафу при температуре 105 °C до постоянной массы.
Охлаждают тигель с образцом до температуры окружающей среды в эксикаторе и взвешивают еще раз. Записывают массу m2 в граммах.
Помещают тигель с образцом в муфельную печь, предварительно нагретую до температуры 625 °C, и сжигают до постоянной массы.
Для образцов, армирующий наполнитель которых разрушается при температуре 625 °C, допускается использовать температуру в диапазоне от 500 °C до 600 °C в соответствии с требованием нормативного или технического документа на армирующий наполнитель. Значение заданной температуры поддерживают в пределах +/-20 °C.
Охлаждают тигель с образцом после сжигания в эксикаторе до температуры окружающей среды, взвешивают и записывают массу m3 в граммах.
8.11.5. Обработка результатов
Массовую долю армирующего наполнителя Mglass, %, для каждого образца вычисляют по формуле

(8.10)
где m3 - масса тигля и остатка образца после сжигания, г;
m1 - масса сухого тигля, г;
m2 - масса сухого тигля и высушенного образца, г.
За результат испытания принимают среднеарифметическое значение результатов испытания всех образцов.
8.12. Определение предела прочности на сдвиг между термопластичным футеровочным слоем и ламинатом
8.12.1. Сущность метода
К образцу прикладывают растягивающую нагрузку, вектор которой совпадает с основной осью образца, с постоянной скоростью до тех пор, пока не произойдет разрушение образца.
8.12.2. Оборудование
Машина испытательная универсальная по
8.7.2.
8.12.3. Подготовка к испытанию
8.12.3.1. Подготовка образцов - по
8.4.3.1. Образец вырезают из ламината, футерованного термопластичным материалом.
8.12.3.2. Форма и размеры образцов указаны на рисунке 8.8.
1 - надпил; 2 - термопластичный футеровочный слой
Рисунок 8.8. Образец для определения предела прочности
на сдвиг связи между термопластичным футеровочным
слоем и ламинатом
Термопластичный футеровочный слой и ламинат надпиливают на всю толщину, как показано на рисунке 8.8. Надпилы должны располагаться симметрично относительно центра образца и быть на расстоянии 20 мм друг от друга.
8.12.3.3. Для определения предела прочности на сдвиг связи между термопластичным футеровочным слоем и ламинатом используют не менее трех образцов.
8.12.3.4. Перед проведением испытания образцы кондиционируют при температуре (20 +/- 5) °C не менее 3 ч. Температура проведения испытания (20 +/- 5) °C.
8.12.4. Проведение испытания
Образец устанавливают в зажимы испытательной машины таким образом, чтобы продольная ось образца совпадала с осью растяжения. Образец растягивают с постоянной скоростью (25 +/- 6) мм/мин до разрушения.
8.12.5. Обработка результатов
Предел прочности на сдвиг связи между термопластичным футеровочным слоем и ламинатом вычисляют по
формуле (8.9).
За результат испытания принимают среднеарифметическое значение результатов испытания всех образцов.
Если образец разрушается за пределами надреза или предел прочности на сдвиг связи меньше значения, указанного в
5.4.2, испытание повторяют.
8.13. Определение прочности на раздир между термопластичным футеровочным слоем и ламинатом
8.13.1. Сущность метода
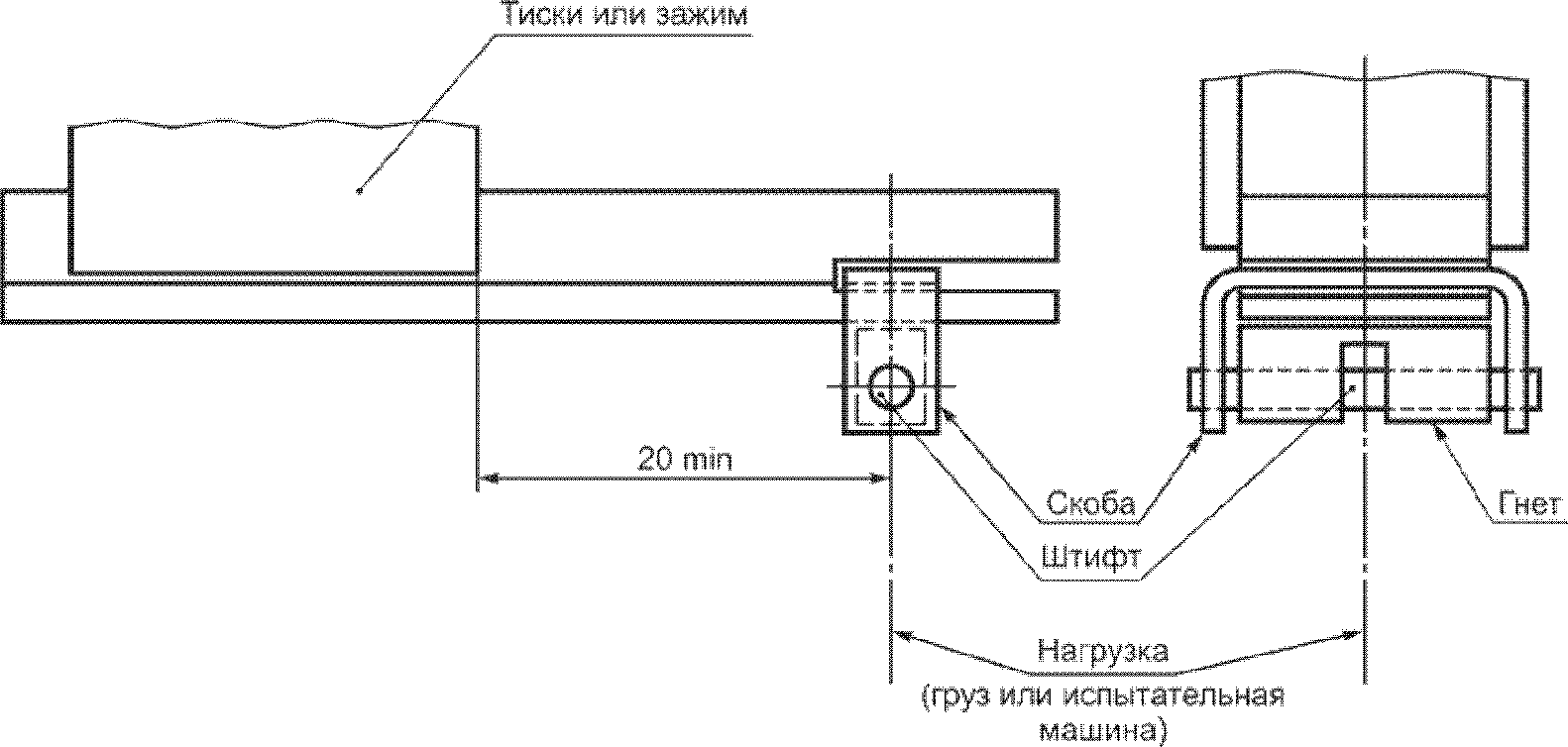
К термопластичному футеровочному слою прикладывают растягивающую нагрузку, действующую перпендикулярно плоскости образца, до разрушения образца.
Тиски или зажим.
Устройство для передачи нагрузки (скоба).
Набор грузов.
8.13.3. Подготовка к испытанию
8.13.3.1. Подготовка образцов - по
8.4.3.1. Образец вырезают из ламината, футерованного термопластичным материалом.
8.13.3.2. Форма и размеры образцов указаны на рисунке 8.9.
1 - надпил
Рисунок 8.9. Образец для определения предела прочности
на раздир связи между термопластичным футеровочным
слоем и ламинатом
По границе соединения термопластичного футеровочного слоя и ламината делают надпил глубиной 20 мм, как показано на рисунке 8.9.
8.13.3.3. Для определения предела прочности на раздир между термопластичным футеровочным слоем и ламинатом используют не менее пяти образцов.
8.13.3.4. Перед проведением испытания образцы кондиционируют при температуре (20 +/- 5) °C не менее 3 ч. Температура проведения испытания - (20 +/- 5) °C.
8.13.4. Проведение испытания
Образец закрепляют в тисках или в зажиме в горизонтальном положении и прикладывают нагрузку к термопластичному футеровочному слою при помощи подвешивания груза до отслаивания термопластичного футеровочного слоя от ламината. Нагрузка должна действовать в плоскости, перпендикулярной плоскости ламината во время испытания (см. рисунок 8.10).
Рисунок 8.10. Схема нагружения образца
8.13.5. Обработка результатов
Предел прочности на раздир связи между термопластичным футеровочным слоем и ламинатом R, Н/мм, вычисляют по формуле

(8.11)
где W - максимальная нагрузка, Н;
b - ширина образца, мм.
За результат испытания принимают среднеарифметическое значение результатов испытания всех образцов.
8.14. Предел прочности при растяжении сварного шва термопластичного футеровочного слоя определяют по ГОСТ 16971
(подраздел 3.2).
8.15. Электрическую прочность термопластичного футеровочного слоя определяют по
ГОСТ 6433.3. Испытывают квадратные образцы размером 150 x 150 мм. Для определения электрической прочности используют такое количество образцов, чтобы в результате испытания получить не менее пяти пробоев.
8.16. Стойкость к действию химических сред термопластичного футеровочного слоя определяют по ГОСТ 12020
(раздел 2). Форма, размеры и количество образцов - по
8.8.
9. Транспортирование и хранение
9.1. Транспортирование
9.1.1. Транспортирование емкостей производят любым видом транспорта в соответствии с правилами перевозки грузов, действующими на данном виде транспорта, и требованиями, установленными в договоре на поставку данной продукции.
9.1.2. При транспортировании необходимо использовать технологические опоры или ложементы с резиновой или войлочной прокладкой для предупреждения перенапряжений емкостей.
9.1.3. При транспортировании емкости должны надежно крепиться стропами или ремнями. Необходимое число опор и мест крепления при транспортировании определяют расчетом.
9.1.4. При погрузочно-разгрузочных работах необходимо применять грузоподъемные средства, исключающие повреждения емкости.
Подъем емкости осуществляют в соответствии со схемами, указанными на рисунках 9.1 -
9.3.
Запрещено производить подъем заполненной емкости.
Рисунок 9.1. Подъем емкости с использованием цапф
в горизонтальном положении
Рисунок 9.2. Подъем емкости с использованием ременных чалок
в горизонтальном положении
Рисунок 9.3. Подъем емкости вертикального исполнения
за цапфы
9.2.1. Емкости следует хранить в складских помещениях, под навесом или на открытых площадках при температуре окружающей среды и относительной влажности не ниже, чем условия эксплуатации.
9.2.2. Емкости хранят в горизонтальном положении на технологических опорах или ложементах с резиновой или войлочной прокладкой. Емкости объемом до 50 м
3 хранят на двух опорах объемом более 50 м
3 или на трех опорах, в соответствии с рисунками 9.4 -
9.5.
Рисунок 9.4. Хранение емкости на двух опорах
Рисунок 9.5. Хранение емкости на трех опорах
Емкости вертикального исполнения допускается хранить в вертикальном положении с опорой на всю поверхность днища, в соответствии с рисунком 9.6.
Рисунок 9.6. Хранение емкости вертикального исполнения
в вертикальном положении
10. Указания по эксплуатации
10.1. На каждую емкость, в зависимости от цели применения, должна быть разработана и утверждена предприятием-изготовителем "Инструкция по эксплуатации, содержанию и ремонту".
10.2. Расчет конструкции ламината в зависимости от формы емкостей или днищ, а также в зависимости от области применения приведен в
Приложениях А -
Х.
| | ИС МЕГАНОРМ: примечание. Нумерация пунктов дана в соответствии с официальным текстом документа. | |
10.2. Выкладка
10.2.1. Требуемое количество смолы, катализатора или отвердителя и любого другого ингредиента, такого как наполнитель, должно быть точно измерено и тщательно перемешано.
10.2.2. Следует избегать избыточного давления при прикатке валиком, чтобы не нарушить распределение армирующего наполнителя или не разрушить волокна.
10.2.3. Если укладку армирующего наполнителя производят под углом, необходимо убедиться, что волокна повышенной прочности направлены соответствующим образом, чтобы обеспечить требуемую прочность.
10.3. Термопластичные футеровочные слои
| | ИС МЕГАНОРМ: примечание. В официальном тексте документа, видимо, допущена опечатка: пункт 5.1.2.7 отсутствует. | |
10.3.1. Адгезия между термопластичным слоем и ламинатом (см. 5.1.2.7) должна быть обеспечена:
- химическим травлением и грунтованием;
- смолой;
- использованием стекловолокна и подкладочного слоя.
10.3.2. Для емкостей с узкими горловинами (менее 75 мм), в которых невозможно применить подкладочный слой, рекомендуется использовать полипропиленовый футеровочный чулок.
10.3.3. Если в качестве футеровочного материала применяется поливинилхлорид, во всех листах необходимо снять напряжение в печи при температуре от 120 °C до 140 °C в течение заданного времени.
10.3.4. Все операции с листами, вызывающие деформации: сгибание под прямым углом или сгибание на малые радиусы - должны выполняться в горячем состоянии.
Футеровочные листы должны располагаться таким образом, чтобы места их соединений не находились в углах. Продольные стыки должны быть смещены относительно друг друга насколько возможно. Все места соединения должны располагаться таким образом, чтобы избежать областей высокой местной деформации, например, в таких местах, как горловины и у опор. Не допускаются стыки внахлест: исключение может быть сделано, если в качестве футеровочного материала используют фторированный этилен-пропилен, например, в месте соединения горловин.
10.3.5. Перед сваркой листов свариваемые края должны быть очищены. Если в качестве подкладочного слоя используют стеклоткань, она должна быть убрана на расстояние от 3 до 6 мм с каждой стороны места соединения, чтобы волокна не попали в сварной шов.
10.3.6. Сварку листов осуществляют с помощью газовой сварки или нагревательной плитой.
10.3.7. Все швы должны проникать на всю толщину между листами, быть без зазубрин и микроканалов.
Со стороны ламинирования шов не должен выступать более чем на 1 мм.
Первый слой ламината, укладывающийся в области шва, может быть электропроводящим с целью улучшения контроля.
11. Гарантии изготовителя
11.1. Изготовитель гарантирует соответствие емкостей требованиям настоящего стандарта при соблюдении условий транспортирования и хранения.
11.2. Гарантийный срок хранения емкостей - 2 года.
(справочное)
ДОПУСТИМЫЕ И РАСЧЕТНЫЕ НАГРУЗКИ
Примечание. При расчете конструкции ламинатов предпочтительнее оперировать линейно распределенной нагрузкой, Н/мм, а не механическим напряжением, Н/мм2.
А.1. Предельно допустимая удельная нагрузка u
L для каждого типа ламели должна определяться по свойствам материала, приведенным в
таблице 5.1, в соответствии с
А.2 -
А.6 (см. пример с решением и сокращенный метод расчета в
Приложении Р).
При расчетах на прочность термопластичный футеровочный слой не учитывается.
Примечания
1. Если при расчете конструкции требуется использовать допустимые сжимающие удельные нагрузки, то эти нагрузки необходимо определять в соответствии с А.2 -
А.6, подставляя удельный предел прочности при сжатии u
c вместо удельного предела прочности при растяжении u в
формуле (А.2).
2. Удельный предел прочности при сжатии u
c вычисляют для каждой рассматриваемой ламели в соответствии с
Приложением Ч.
А.2. Общий расчетный коэффициент K вычисляют по формуле
K = 3·k
1·k
2·k
3·k
4·k
5, (А.1)
где 3 - константа, которая отражает уменьшение прочности материала, вызванное долгосрочной нагрузкой (требуется также при расчете нагрузок в воздушной среде);
k1 - коэффициент, соответствующий методу производства;
k2 - коэффициент, соответствующий длительному режиму работы;
k3 - коэффициент, соответствующий температуре;
k4 - коэффициент, соответствующий циклическим нагрузкам;
k5 - коэффициент, соответствующий процедуре отверждения.
Общий расчетный коэффициент K для всех емкостей должен быть не менее 8.
Примечание. В редких случаях при краткосрочных критических/аварийных условиях (не более 10 раз за время эксплуатации напорной емкости и длительностью не более 30 мин) может использоваться общий расчетный коэффициент, меньший, чем вычисленное значение общего расчетного коэффициента, но не меньший 8.
А.2.1. Коэффициент, соответствующий методу производства
Коэффициент k1, соответствующий методу производства, принимается по таблице А.1.
Таблица А.1
Метод производства | k1 |
Ручной | 1,5 |
Машинная намотка | 1,5 |
Машинное распыление | 1,5 |
Ручное распыление | 3,0 |
А.2.2. Коэффициент, соответствующий длительному режиму работы
Для напорных емкостей, имеющих термопластичный футеровочный слой, коэффициент k2, соответствующий длительному режиму работы, принимает значение 1,2.
Примечание. Коэффициент k2, соответствующий длительному режиму работы, может иметь большее значение, если отсутствует информация по ранее эксплуатируемым емкостям или получены соответствующие экспериментальные данные в результате испытаний.
Для напорных емкостей, не имеющих термопластичного футеровочного слоя, коэффициент k2, соответствующий длительному режиму работы, принимает значение, находящееся в интервале от 1,2 до 2,0.
Примечание. Инструкция по выбору значения коэффициента, соответствующего длительному режиму работы, приведена в
Приложении С.
А.2.3. Коэффициент, соответствующий температуре
Коэффициент k3, соответствующий температуре, принимает значение, находящееся в интервале от 1,00 до 1,25. Значение коэффициента k3, соответствующего температуре, зависит от температуры тепловой деформации и вычисляют по рисунку А.1.
Рисунок А.1. Коэффициент, соответствующий температуре
Примечание. В связи с тем, что опыт эксплуатации емкостей в диапазоне температур выше 100 °C ограничен, рекомендуется глубокая проработка вопроса между потребителем и производителем, если существует необходимость использовать напорную емкость в этом диапазоне температур.
А.2.4. Коэффициент, соответствующий циклическим нагрузкам
Коэффициент k4, соответствующий циклическим нагрузкам, учитывает вероятные рабочие условия эксплуатации напорных емкостей и вычисляется по рисунку А.2.
Рисунок А.2. Коэффициент, соответствующий
циклическим нагрузкам
А.2.5. Коэффициент, соответствующий процедуре отверждения
Если напорная емкость на производстве подвергается полному постотверждению при повышенной температуре, соответствующей типу смолы, коэффициент k5, соответствующий процедуре отверждения, принимает значение 1,1.
Для напорных емкостей, не подвергающихся полному постотверждению, расчетная температура рабочей среды которых не превышает 45 °C, коэффициент k5, соответствующий процедуре отверждения, принимает значение 1,3.
Для напорных емкостей, не подвергающихся полному постотверждению, расчетная температура рабочей среды которых выше 45 °C, коэффициент k5, соответствующий процедуре отверждения, принимает значение 1,5.
Примечание. Температура постотверждения должна выбираться так, чтобы ламинат соответствовал заданным механическим, температурным и химическим расчетным характеристикам. Для смол с высокими эксплуатационными характеристиками температура постотверждения обычно должна быть не менее 80 °C, чтобы достичь максимальных свойств. Если возможно, емкость должна быть постотверждена при расчетной температуре.
А.3. Предельно допустимую удельную нагрузку u
L, Н·м
2/мм·кг, вычисляют по формуле

(А.2)
А.4. Максимальную допустимую деформацию определяют по А.4.1 или
А.4.2.
А.4.1. Максимальная допустимая деформация принимает значение, вычисляемое по формуле (А.3) или
(А.4), в зависимости от того, какое из значений меньше.
Максимальную допустимую деформацию

, %, вычисляют по формуле

(А.3)
где

- удлинение при разрушении неармированной смолы, %.
Или по формуле

(А.4)
А.4.2. В случае применения термореактивного футеровочного слоя максимальную допустимую деформацию вычисляют исходя из наименьшего значения удлинения при разрушении смол, входящих в состав ламината.
Примечания
| | ИС МЕГАНОРМ: примечание. В официальном тексте документа, видимо, допущена опечатка: пункт 7.1.2 отсутствует. | |
1. Относительное удлинение при разрушении неармированной смолы вычисляют по 7.1.2.
2. В связи с тем, что термопластичный футеровочный слой не влияет на ограничение по деформации напорных емкостей, максимальная допустимая деформация принимает значения 0,2%.
А.5. Предельно допустимую удельную нагрузку при растяжении u
S, Н·м
2/мм·кг, вычисляют по формуле

(А.5)
где Xz - удельный модуль слоя типа z, Н·м2/мм·кг стекловолокна.
А.6. Расчетную удельную нагрузку u
z вычисляют по А.6.1 или А.6.2.
А.6.1. Расчетная удельная нагрузка uz для каждого слоя принимает значение предельно допустимой удельной нагрузки при растяжении uS, если предельно допустимая удельная нагрузка при растяжении uS меньше, чем предельно допустимая удельная нагрузка uL для всех слоев.
Примечание. Если предельно допустимая удельная нагрузка при растяжении uS меньше, чем предельно допустимая удельная нагрузка uL для всех слоев, конструкция ламината считается ограниченной по деформации.
А.6.2. Если предельно допустимая удельная нагрузка uL меньше, чем предельно допустимая удельная нагрузка при растяжении uS, расчетную удельную нагрузку uz, Н·м2/мм кг, вычисляют по формуле

(А.6)
где

- минимальная деформация, определяемая при допустимых нагрузках и по свойствам смолы.
Минимальная деформация, определяемая при допустимых нагрузках и по свойствам смолы, равна наименьшему из значений деформации при воздействии предельно допустимой удельной нагрузки uL.
Деформацию при воздействии предельно допустимой удельной нагрузки

вычисляют по формуле

(А.7)
А.7. Если армирование осуществляется непрерывными ровингами, которые наматывают под углом к оси напорной или безнапорной емкости, процедура, приведенная в
А.6, не применяется и расчетную удельную нагрузку u
z вычисляют по формулам (А.8) или
(А.9).
Расчетную удельную нагрузку в окружном направлении

, Н·м
2/мм·кг, вычисляют по формуле

(А.8)
где

- окружной удельный модуль, Н·м
2/мм·кг;

- окружной коэффициент.
Расчетную удельную нагрузку в продольном направлении uzx, Н·м2/мм·кг, вычисляют по формуле

(А.9)
где Xx - продольный удельный модуль, Н·м2/мм·кг;
Fx - продольный коэффициент.
Окружной удельный модуль и продольный удельный модуль для каждого слоя определяют по рисунку А.3.
Рисунок А.3. Зависимость удельного модуля от угла намотки
Окружной коэффициент

и продольный коэффициент F
x определяются по таблице А.2.
Таблица А.2
Коэффициенты, применяемые при определении расчетной
единичной нагрузки и учитывающие намотку непрерывных
ровингов под разными углами
Угол намотки по отношению к продольной оси, град | | Fx |
| 0,0 | 1,0 |
| 0,5 | 0,5 |
| 1,0 | 0,0 |
Примечание. Допускается использовать более высокие значения продольного коэффициента и окружного коэффициента, если был проведен анализ анизотропной упругости. Этот анализ учитывает вклад каждого слоя в ламинате и взаимное влияние относительной линейной деформации и деформации сдвига. |
Необходимо убедиться, что направление деформации не отклоняется от направления армирования более чем на 0,1%. Если анализ анизотропной упругости не проводился, осевая деформация должна быть ограничена до 0,1% для угла намотки больше чем 75°.
Если конструкция ламината, армированного волокном, нанесенным намоткой, одновременно подвергается нагрузкам в окружном и продольном направлениях, тогда, в зависимости от сочетания направления и типа нагрузки (т.е. растягивающей или сжимающей), значения максимально допустимых нагрузок могут быть меньше значений отдельных удельных нагрузок, рассчитанных в соответствии с настоящим разделом, однако допустимость объединенных нагрузок должна определяться по методике, приведенной в
Р.4 (Приложение Р).
РАСЧЕТ КОНСТРУКЦИИ И ТОЛЩИНЫ
Б.1. Расчет конструкции
Для каждой части конструкции напорной или безнапорной емкости конструкцию ламината определяют с учетом расчетной удельной нагрузки для каждого слоя ламината (см.
Приложение А). Расчетные удельные нагрузки должны зависеть от единичных нагрузок, воздействующих на соответствующую область.
Приложения В -
У (включительно) посвящены вычислениям единичных нагрузок, определяемых по геометрии напорной емкости, и самые большие значения из этих единичных нагрузок должны быть использованы в формуле (Б.1).
Соответствие предполагаемой конструкции ламината должно в каждом случае проверяться по формуле (Б.1)
u
1m
1n
1 + u
2m
2n
2 + ... + u
zm
zn
z >= Q, (Б.1)
где uz - расчетная удельная нагрузка для слоя типа z, Н·м2/мм·кг;
mz - масса на единицу площади армирующего наполнителя в одном слое типа z, кг/м2;
n
z - количество слоев типа z в рассматриваемой конструкции (для непрерывной намотки слой должен состоять из двух спиральных намоток под углом

).
Примечания
1. Если неизвестно больше, чем одно из значений количества слоев, то проверка в этом случае должна проводиться методом подбора. Может быть найдено более одного решения.
2. Допускается фиксировать значения количества слоев, кроме одного и/или двух независимых значений, и определять остальные значения.
Если сумма членов меньше, чем единичная нагрузка, одно или больше значений количества слоев должны быть увеличены или должна быть предложена другая конструкция ламината. Данные действия должны повторяться до тех пор, пока не будет выполнено условие. Если сумма членов значительно превышает единичную нагрузку, то в этом случае считается, что ламинат обладает избыточным запасом прочности для рассматриваемой области емкости.
Примеры этого расчетного метода приведены в
Приложении Р. Примеры конструкции изображены на рисунках Б.1 -
Б.4.
Примечание. Отдельного рассмотрения требует случай, когда напорная или безнапорная емкость армируется путем намотки непрерывной нити и подвергается двуосному нагружению. Важно отметить, что реакция напорной или безнапорной емкости, армированной намоткой непрерывной нити, на комбинацию одновременно прилагаемых нагрузок отличается от реакции на эти нагрузки, прилагаемые по отдельности.
1 - химический барьер; 2 - CSM массой на единицу площади
0,3 кг/м2; 3 - CSM массой на единицу площади 0,6 кг/м2;
6 - слой вязаной ткани, пропитанный смолой
Рисунок Б.1. Конструкция ламината толщиной 24 мм
(без термопластичного футеровочного слоя)
4 - CSM массой на единицу площади 0,45 кг/м2
Рисунок Б.2. Конструкция ламината толщиной 24 мм
(без термопластичного футеровочного слоя)
5 - WR массой на единицу площади 0,8 кг/м2
Рисунок Б.3. Конструкция ламината толщиной 16,7 мм
(без термопластичного футеровочного слоя)
Рисунок Б.4. Конструкция ламината толщиной 15,8 мм
(без термопластичного футеровочного слоя)
Примечания
2. Крайние слои ламината напорной или безнапорной емкости должны быть армированы CSM (массой на единицу площади не менее 300 г/м2) и тканью, пропитанной смолой.
Поведение напорной или безнапорной емкости, армированной при помощи намотки непрерывной нити, при воздействии комбинированных нагрузок оценивается при следующих условиях:
- должен быть проведен полный анализ анизотропного напряжения/деформации, должна быть проверена реакция материала на эти комбинированные нагрузки; сдвиг или относительное удлинение в каждом слое должны быть меньше, чем вычисленное значение в
А.6; или
- должна быть построена кривая двуосного разрушения, как показано в примере, приведенном в
Приложении Р.
Примечание. Если для армирования напорных емкостей, предназначенных для эксплуатации в условиях вакуума, используется WR, то они должны иметь отношение 1:1 в направлении утка и основы.
Если для вычислений требуются значения толщины, то за значение толщины ламината рассматриваемой области принимают сумму толщин ламелей, из которых состоит ламинат.
Толщину каждой ламели для расчета определяют по содержанию стекла в этой ламели, используя график (см. рисунок Б.5). Содержание стекла определяют по
8.12.
Рисунок Б.5. Взаимосвязь между толщиной слоя
и содержанием стекла
Толщину ламели tg, мм·м2/кг, вычисляют по формуле

(Б.2)
где mg - массовое содержание армирующего наполнителя, %;
d - относительная плотность смолы.
(справочное)
РАСЧЕТ КОРПУСА ЦИЛИНДРИЧЕСКОЙ И СФЕРИЧЕСКОЙ ФОРМЫ
Примечание. Формулы, приведенные в настоящем приложении, применяются для расчета напорных емкостей, общая толщина ламината корпуса которых больше, чем 10% от внутреннего диаметра корпуса.
В.1. Расчет корпуса цилиндрической и сферической формы, на который воздействует внутреннее давление
Максимальную окружную единичную нагрузку вычисляют по формулам (В.1) или
(В.2).
Максимальную окружную единичную нагрузку

, Н/мм, для корпусов цилиндрической формы вычисляют по формуле

(В.1)
где p - общее эффективное давление, Н/мм2;
Di - внутренний диаметр корпуса, мм.
Максимальную окружную единичную нагрузку для корпусов сферической формы вычисляют по формуле

(В.2)
В.2. Расчет корпуса цилиндрической формы, на который воздействуют комбинированные нагрузки
В.2.1. Вертикальные напорные и безнапорные емкости
Максимальная продольная единичная нагрузка является результатом комбинированного эффекта от:
- общего эффективного давления;
- изгибающего момента, вызванного ветровыми нагрузками;
- общего веса напорной или безнапорной емкости, фитингов, присоединений и содержимого емкости.
Примечания
1. Отрицательное значение максимальной продольной единичной нагрузки обозначает сжимающую нагрузку.
2. Общее эффективное давление исключает статический напор. Общее эффективное давление обозначает внешнее давление.
Максимальную продольную единичную нагрузку Qx, Н/мм, в точках, находящихся выше плоскости опоры, вычисляют по формуле

(В.3)
где M - изгибающий момент, возникающий из-за веса напорной или безнапорной емкости и содержимого емкости в рассматриваемой точке и под воздействием ветровой или другой нагрузки, Н·мм;
W1 - вес частей напорной или безнапорной емкости, фитингов, присоединений и жидкости, находящихся выше рассматриваемой точки, Н.
Максимальную продольную единичную нагрузку в точках, находящихся ниже плоскости опоры, вычисляют по формуле

(В.4)
где W2 - вес частей напорной или безнапорной емкости, фитингов, присоединений и жидкости, находящихся ниже рассматриваемой точки, Н.
Примечание 3. В
формуле (В.3) W
1 обычно включает в себя общий вес жидкости.
В.2.2. Горизонтальные напорные и безнапорные емкости
Максимальная продольная единичная нагрузка является результатом комбинированного эффекта от:
- общего эффективного давления;
- изгибающего момента, возникающего из-за веса напорной или безнапорной емкости и содержимого, зависящего от конфигурации опоры.
Максимальную продольную единичную нагрузку вычисляют по формуле

(В.5)
В.2.3. Допустимая сжимающая нагрузка
При наличии сжимающей осевой нагрузки необходимо проводить проверочные расчеты, подтверждающие способность области корпуса выдерживать наибольшую воздействующую сжимающую нагрузку и не разрушаться из-за изгиба.
Максимальную допустимую сжимающую единичную нагрузку Qp, Н/мм, вычисляют по формуле

(В.6)
где tsh - толщина ламината корпуса, мм;
F - коэффициент безопасности против разрушения из-за изгиба;
Do - внешний диаметр корпуса, мм.
Коэффициент безопасности против разрушения из-за изгиба равен 4.
Суммарный единичный модуль вычисляют по формуле
X
LAM = X
1m
1n
1 + X
2m
2n
2 + ... X
zm
zn
z. (В.7)
Максимальная сжимающая единичная нагрузка не должна превышать полученное значение Qp.
Примечание. Может потребоваться изменение конструкции ламината, и в этом случае необходимо повторить соответствующие вычисления, пока не будут получены удовлетворяющие значения.
Отдельного рассмотрения требуют ламинаты с разными модулями упругости при растяжении в продольном направлении и в окружном направлении, например, напорные или безнапорные емкости, произведенные методом намотки непрерывной нити. В этом случае должен быть проведен точный анализ анизотропии, чтобы определить допустимую максимальную сжимающую единичную нагрузку. В противном случае необходимо использовать в
формуле (В.6) наименьшее значение из двух модулей.
В.3. Корпуса цилиндрической и сферической формы, на которые воздействует внешнее давление
В.3.1. Корпуса цилиндрической формы
Максимальную окружную единичную нагрузку вычисляют по
формуле (В.1). Максимальную продольную единичную нагрузку вычисляют по
формулам (В.3),
(В.4) и
(В.5). Наибольшее из полученных значений должно подставляться в
формулу (Б.1) (Приложение Б). При конструкции ламината, удовлетворяющей этому требованию, толщина ламината корпуса должна определяться в соответствии с
Б.2 (Приложение Б). Модуль Юнга E
LAM, Н/мм
2, вычисляют по формуле

(В.8)
Минимальную допустимую толщину ламината tm, мм, вычисляют по формуле

(В.9)
при условии выполнения неравенства

(В.10)
где L - эффективная длина корпуса (см. рисунки В.1 -
В.3), мм.
hi - внутренняя высота днища
Рисунок В.1. Цилиндр без ребер жесткости
Ds - диаметр нейтральной оси кольца жесткости
Рисунок В.2. Цилиндр с ребрами жесткости
Рисунок В.3. Конические секции
Минимальную допустимую толщину ламината вычисляют по формуле

(В.11)
при условии выполнения неравенства

(В.12)
Коэффициент безопасности против разрушения из-за изгиба F равен 4.
Необходимо убедиться, что толщина ламината корпуса не меньше минимальной допустимой толщины ламината.
Примечание. tm/Do растет вместе с L/Do до ограничивающего значения. После этого значения tm/D0 не зависит от L/Do.
Если предложенная конструкция не соответствует этому требованию, необходимо либо изменить конструкцию ламината, либо добавить дополнительные кольца жесткости. Вычисления должны быть повторены, пока не будет определена допустимая конструкция.
В.3.2. Корпуса цилиндрической формы с кольцами жесткости
Если вычисления в
В.3.1 выявили недопустимую толщину ламината, рекомендуется изменить конструкцию путем добавления колец жесткости, и первым шагом является определение новой эффективной длины корпуса.
Эффективная длина корпуса определяется:
- непосредственным делением эффективной длины корпуса, не имеющего ребер жесткости;
- исходя из требований по поддержке внутренних фитингов, таких как лотки и т.д.;
- в случае горизонтального размещения напорных или безнапорных емкостей, исходя из конструкции опор.
Для предполагаемого профиля кольца жесткости необходимо определить диаметр нейтральной оси кольца жесткости.
Осевой момент инерции сечения кольца жесткости Is2, мм4, должен соответствовать неравенству

(В.13)
Если элемент жесткости (металлическое кольцо) находится внутри материала корпуса (см.
рисунок 5.4), модуль Юнга заменяется на модуль упругости стали. В этом случае металлическая секция должна рассматриваться как элемент жесткости.
Допустимую длину корпуса Ls, мм, которая вносит вклад в осевой момент инерции сечения кольца жесткости, вычисляют по формуле

(В.14)
Значение допустимой длины корпуса не должно быть больше, чем значение эффективной длины корпуса.
Кольца жесткости должны полностью опоясывать окружность корпуса и любые присоединения должны быть спроектированы таким образом, чтобы не ухудшать жесткость кольца. Промежутков между корпусом и кольцом не допускается.
Конструкция должна быть проверена на напряжения в стеклокомпозите, вызванные ограниченностью температурного расширения/сужения колец жесткости при расчетной температуре выше 60 °C или ниже 0 °C.
В.3.3. Корпуса сферической формы
Максимальную окружную единичную нагрузку вычисляют по
формуле (В.2), и это значение должно быть подставлено в
формулу (Б.1) (Приложение Б). При конструкции ламината, удовлетворяющей этому требованию, толщина ламината корпуса должна определяться в соответствии с
Б.2 (Приложение Б).
Минимальную допустимую толщину ламината, при которой не происходит изгиба, вычисляют по формуле

(В.15)
где Ro - внешний радиус корпуса сферической формы в мм.
Коэффициент безопасности против разрушения из-за изгиба F равен 4.
Необходимо убедиться, что толщина ламината корпуса не меньше минимальной допустимой толщины ламината.
Если предложенная конструкция не соответствует этому требованию, необходимо изменить конструкцию ламината. Вычисления должны быть повторены, пока не будет определена допустимая конструкция.
(справочное)
ВОЗДЕЙСТВИЕ ВЕТРОВЫХ НАГРУЗОК НА КОРПУС
Напорные и безнапорные емкости, используемые на открытом воздухе, должны проектироваться с учетом воздействия ветровых нагрузок.
Значение общего эффективного давления складывается из суммы ветровой нагрузки и давления вакуума. Толщина ламината напорных и безнапорных емкостей должна проверяться на соответствие эффективному давлению.
Звенья корпуса безнапорных емкостей, рассчитанных только на статический напор жидкости, обычно проектируются с разной конструкцией и толщиной ламината. В этих случаях эффективную длину корпуса между соседними ребрами жесткости или опорами, используемую в
формулах (В.9),
(В.11) и
(В.12), вычисляют по формуле

(Г.1)
где he - эквивалентная высота звена корпуса в мм.
Эквивалентную высоту звена корпуса вычисляют по формуле

(Г.2)
где h - истинная высота звена корпуса или части рассматриваемого звена корпуса, мм;
XLAM min - суммарный единичный модуль верхнего звена корпуса, Н/мм;
XLAM h - суммарный единичный модуль рассматриваемого звена, Н/мм;
tmin - толщина верхнего звена корпуса, мм;
th - толщина рассматриваемого звена корпуса, мм.
Расположение по высоте добавочных колец жесткости должно быть вычислено путем определения высоты корпуса целой безнапорной емкости эквивалентной устойчивости, такого же диаметра и такой же толщины, как верхнее звено корпуса. Анализ такого эквивалентного корпуса безнапорной емкости во взаимосвязи с требуемыми расчетными критериями по ветровой нагрузке и давлению вакуума должен использоваться, чтобы определить количество дополнительных колец жесткости.
В большинстве случаев кольца жесткости должны находиться в верхней части звена корпуса или на звене такой же толщины, но если положение отличается, действительное положение должно определяться через высоту эквивалентного звена корпуса.
Добавочное кольцо жесткости не должно находиться ближе, чем 150 мм от основного кольцевого сварного шва безнапорной емкости или места смены секций.
Эквивалентную высоту безнапорной емкости He, мм, между основанием безнапорной емкости и эквивалентным верхом вычисляют по формуле

(Г.3)
Значения эквивалентной высоты звена корпуса вычисляют по
формуле (Г.2).
Максимальную эквивалентную высоту Hp, мм, выше которой дополнительное ребро жесткости не требуется, вычисляют по формуле

(Г.4)
Коэффициент безопасности F против разрушения из-за изгиба должен принимать значение 4.
Если отношение He/Hp > 1, необходимы дополнительные кольца жесткости, которые обеспечивают добавочную жесткость при ветровых нагрузках.
Чтобы определить количество дополнительных колец жесткости, необходимо взять целую часть от He/Hp.
Пример - Если He/Hp = 2,5, тогда требуются два кольца жесткости. Эквивалентное расстояние от предполагаемого местоположения первого кольца жесткости до верха безнапорной емкости эквивалентной высоты H1, мм, вычисляют по формуле
Эквивалентное расстояние от предполагаемого местоположения второго кольца жесткости до верха безнапорной емкости эквивалентной высоты H2, мм, вычисляют по формуле
Чтобы найти актуальное положение колец жесткости, необходимо использовать следующий алгоритм расчета:
- формируется таблица (см.
Р.7), в которую вносятся значения истинной высоты звена корпуса или рассматриваемого звена корпуса и соответствующие значения эквивалентной высоты звена корпуса;
- по таблице определяют положение звена(-ьев), в котором(-ых) будут расположены ребра жесткости;
- положение(-я) ребер жесткости со звеном/звеньями должно определяться следующим образом:
а) эквивалентную высоту от упрочненного звена до эквивалентного верха безнапорной емкости hle, мм, вычисляют по формуле

(Г.5)
где H (H1, H2 и т.д.) - эквивалентная(-ые) высота(-ы) от предполагаемого(-ых) местоположения(-ий) ребра(-ер) жесткости до верха безнапорной емкости эквивалентной высоты,
б) истинное расстояние до ребра жесткости от верхней части упрочненного звена hl, мм, вычисляют по формуле

(Г.6)
в) истинное расстояние до ребра жесткости от действительной верхней части безнапорной емкости HA, мм, вычисляют по формуле

(Г.7)
В случае открытой безнапорной емкости или безнапорной емкости с закрепленной крышкой должно быть соответствующее основное укрепление в верхней части верхнего звена в виде внешних или встроенных ребер жесткости в месте соединения корпуса/крышки. Осевой момент инерции сечения такого укрепления и добавочные кольца жесткости должны соответствовать
В.3.
(справочное)
БЕЗНАПОРНЫЕ ЕМКОСТИ ПРЯМОУГОЛЬНОГО СЕЧЕНИЯ
Д.1. Безнапорные емкости малого размера и прямоугольного сечения без ребер жесткости
Безнапорные емкости малого размера и прямоугольного сечения без ребер жесткости представляют набор отдельных панелей, соединенных между собой в углах. Каждая такая панель должна проектироваться в соответствии с
Приложением Е, с учетом констант для второго типа краевых условий, соответствующих пропорциям, краевым условиям и типу нагрузки.
Д.2. Безнапорные емкости прямоугольного сечения с ребрами жесткости
Ребра жесткости должны быть расположены в двух направлениях, но в целях экономии допускается, чтобы ребра жесткости располагались в вертикальном или горизонтальном направлении, но ребра жесткости могут быть выполнены в виде каркаса. Такая конструкция должна состоять из отдельных прямоугольных панелей и должна быть спроектирована в соответствии с
Приложением Е. Ребро жесткости должно быть рассчитано на нагрузку, которая воздействует на половину каждой смежной панели, при этом учитываются снеговые или ветровые нагрузки.
Д.3. Расчет ребер жесткости
Д.3.1. Общие положения
Ребра жесткости должны быть металлическими или состоять из армированных пластмасс. В каждом случае пропорции этих ребер жесткости, которые изготавливаются из цельного материала, должны вычисляться с помощью традиционной теории изгиба.
Конструкция должна быть проверена на напряжения в стеклокомпозите, вызванные ограниченностью температурного расширения/сужения ребер жесткости при расчетной температуре выше 60 °C или ниже 0 °C.
Д.3.2. Металлические ребра жесткости
Ребра жесткости должны быть спроектированы таким образом, чтобы они обеспечивали необходимую прочность в сварных швах, и сваренные встык соединения краев должны быть выполнены таким образом, чтобы было полное проплавление сварных швов, обеспечивающих общую прочность секций.
Вычисленное напряжение в металлической секции не должно превышать 0,25 x предел прочности при растяжении. Вычисленное напряжение в угловом сварном шве не должно превышать 0,1 x предел прочности при растяжении металлической секции. Площадь углового сварного шва, несущего нагрузку, должна состоять из длины и толщины сварного шва, где толщина должна быть не более чем 0,7 x длину сварного шва.
Вычисленное напряжение сварного соединения встык не должно превышать 0,16 x предел прочности при растяжении.
Д.3.3. Ребра жесткости из стеклокомпозита
Ребра жесткости должны быть армированы только CSM. Ламинат верхнего слоя должен перекрывать все стороны ребра жесткости на значительном расстоянии, чтобы выдерживать усилие сдвига, и должен быть не меньше чем 75 мм.
Допускается рассматривать панель, на которую накладывается ребро жесткости, как содействующую жесткости ребра на расстоянии, не превышающем 16 x толщину панели по обе стороны от ребра жесткости, при условии, что такое расстояние доступно. Никакая часть панели не может рассматриваться в таком качестве больше, чем для одного ребра жесткости. Материал, поверх которого размещается ребро жесткости, не вносит вклад в прочность ребра жесткости.
(справочное)
Е.1. Общие положения
Плоские панели, проектируемые в соответствии с настоящим стандартом, должны быть армированы только CSM.
Уравнения в данном разделе основаны на рассмотрении как максимальной допустимой единичной нагрузки поверхности ламината, растяжения или сжатия, так и преобладающего предельного отклонения толщины панели. Толщина панели должна быть равна или быть больше, чем требуемая минимальная толщина панели.
Примечания
1. Считается, что мембранный компонент нагрузки, растущий, когда максимальное отклонение равно толщине панели, значительно не влияет на достоверность анализа изгиба, из которого выводятся формулы.
2. При расчете таким образом, краевые условия могут иметь большое значение. Считается, что во многих случаях эффект от изменения в таких условиях незначителен, и краевые условия должны быть 1 и 2 типа. Это показано на
рисунке Е.1 -
Е.7.
Краевые условия для определенной панели должны быть первого или второго типа или комбинацией обоих, в зависимости от условий.
Е.2. Формы панелей и нагрузки
| | ИС МЕГАНОРМ: примечание. В официальном тексте документа, видимо, допущена опечатка: пункт Е.10 отсутствует. | |
Проектирование плоских панелей должно проводиться в соответствии с
Е.4 - Е.10, в которых описываются панели круглой, прямоугольной, треугольной и сегментированной формы, подвергающиеся воздействию равномерно распределенных нагрузок и равномерно изменяющихся нагрузок как в случае статического напора жидкости, так и в случае сосредоточенных нагрузок, воздействующих на центр круглых и треугольных панелей.
Примечание. Влияние внешних моментов на плоские панели не может быть оценено, и, по возможности, такие нагрузки должны быть исключены.
Е.3. Метод расчета для панелей всех форм
Расчетный момент - момент, возникающий в панели в результате наихудшей комбинации распределенных нагрузок, например, давление, вакуум, гидростатический напор, ветровые и снеговые нагрузки, плюс момент, вызванный любой местной нагрузкой.
Расчетный момент Md, Н·мм, вычисляют по формуле
Md = Mvacuum + Msnow + Mwind + Мlocal load, (Е.1)
где Mvacuum - момент, вызванный воздействием вакуума, Н·мм;
Msnow - момент, вызванный воздействием снеговой нагрузки, Н·мм;
Mwind - момент, вызванный воздействием ветровой нагрузки, Н·мм;
Mlocal load - момент, вызванный воздействием местной нагрузки, Н·мм.
Необходимо проводить проверочные вычисления, чтобы убедиться, что толщина конечного ламината такова, что деформация панели не превышает толщину панели.
Е.4. Прямоугольные панели
Е.4.1. Общие положения
Должно быть принято одно из четырех краевых условий. Константы должны соответствовать таблице Е.1.
Таблица Е.1
Деформация и константы изгибающего момента
для плоских панелей
Граничные условия | Константа | Отношение длина/ширина a/b |
1,000 | 1,250 | 1,500 | 1,750 | 2,000 | 2,500 | 3,000 | 4,000 | 5,000 | > 5,000 | Вариант |
| ?1 | 0,048 | 0,067 | 0,081 | 0,093 | 0,102 | 0,113 | 0,119 | 0,125 | 0,125 | 0,125 | D |
?1 | 0,044 | 0,060 | 0,084 | 0,099 | 0,111 | 0,126 | 0,134 | 0,140 | 0,142 | 0,142 | D |
| ?1 | 0,051 | 0,067 | 0,075 | 0,080 | 0,083 | 0,083 | 0,083 | 0,083 | 0,083 | 0,083 | A |
?1 | 0,014 | 0,020 | 0,024 | 0,026 | 0,028 | 0,028 | 0,028 | 0,028 | 0,028 | 0,028 | A |
| ?1 | 0,060 | 0,077 | 0,094 | 0,107 | 0,114 | 0,121 | 0,124 | 0,124 | 0,124 | 0,124 | B |
?1 | 0,017 | 0,028 | 0,037 | 0,044 | 0,049 | 0,055 | 0,057 | 0,058 | 0,058 | 0,058 | B |
| ?1 | 0,060 | 0,073 | 0,079 | 0,082 | 0,083 | 0,083 | 0,083 | 0,083 | 0,083 | 0,083 | C |
?1 | 0,017 | 0,022 | 0,025 | 0,027 | 0,028 | 0,028 | 0,028 | 0,028 | 0,028 | 0,028 | C |
| Крепление в соответствии с типом 2, свободно лежащий |
| Крепление в соответствии с типом 1, заделанный край |
Вариант А. Краевые условия 1-го типа со всех четырех сторон. Например, крышка с креплением на болтах, когда область контакта широкая и выходит за границы отверстий под болты, или соединение панелей с симметричным креплением на ребрах жесткости или углах.
Вариант Б. Краевые условия 1-го типа с двух коротких сторон и с одной длинной стороны, с краевыми условиями 2-го типа с другой длинной стороны. Например, соединение панелей формирует сторону открытой безнапорной емкости с одним длинным краем, к которому присоединен верхний фланец безнапорной емкости или (силовой) каркас.
Вариант В. Альтернатива варианту Б - панели с краевыми условиями 1-го типа с двух длинных краев и одного короткого края и с краевыми условиями 2-го типа с другого короткого края.
Вариант Г. Краевые условия 2-го типа со всех четырех сторон, например крышка, не закрепленная болтами.
Е.4.2. Воздействие распределенной нагрузки на прямоугольные панели
Момент, вызванный равномерной распределенной нагрузкой Mp1, Н·мм, на прямоугольную панель, вычисляют по формуле

(Е.2)
где

- константа, соответствующая комбинации краевых условий и типу нагрузки (см.
таблицу Е.1);
p1 - равномерное внутреннее или внешнее давление, равномерная нагрузка, такая как снеговая или ветровая нагрузка, или такая комбинация этих нагрузок, которая дает наибольший перепад давления на панели с учетом принимаемого знака или направления действия каждой формы нагрузки, Н/мм2;
b - ширина панели (см. рисунки Е.1 -
Е.7), мм.
Момент, вызванный статическим напором жидкости, убывающий от максимального давления в основании панели до нуля в верхней части, Mp2, Н·мм, вычисляют по формуле

(Е.3)
где p2 - давление в основании панели, т.е. максимальное давление, воздействующее на панель, Н/мм2.
Рисунок Е.1. Крепления в соответствии с типом 1:
фланцевая заглушка с плоской опорной поверхностью
Рисунок Е.2. Крепления в соответствии с типом 1:
фланцевая заглушка с плоской опорной поверхностью
и подкладными кольцами
Рисунок Е.3. Крепления в соответствии с типом 1:
металлический элемент жесткости
Рисунок Е.4. Крепления в соответствии с типом 1:
элемент жесткости из стеклокомпозита
Рисунок Е.5. Крепления в соответствии с типом 1:
стандартное соединение панель/панель
Рисунок Е.6. Крепления в соответствии с типом 2:
фланцевая заглушка с патрубком и подкладными кольцами
Рисунок Е.7. Крепления в соответствии с типом 2:
съемная крышка
Момент, вызванный статическим напором жидкости, убывающий от максимального давления в основании панели, но не равный нулю в верхней части, M
p3, Н·мм, вычисляют по
формуле (Е.2), используя максимальное значение давления для рассматриваемой панели.
Е.4.3. Воздействие центральной местной нагрузки на прямоугольные панели
Когда на панели воздействуют местные нагрузки, должны рассматриваться только варианты А и Г.
Примечание. Панели, соответствующие варианту Б, могут рассматриваться как панели, соответствующие варианту Г, и панели, соответствующие варианту В, могут рассматриваться как панели, соответствующие варианту А, только для местных нагрузок.
Момент, вызванный местной нагрузкой M
l, Н·мм, на прямоугольную панель для варианта А, должен быть равен наибольшему значению, вычисленному по формулам (Е.4) и
(Е.5)

(Е.4)
где Wl - воздействующая местная нагрузка, Н;
rl - радиус локальной нагрузки, мм;

- константа, соответствующая комбинации краевых условий и типу нагрузки (см. таблицу Е.2);

(Е.5)
где

- константа, соответствующая комбинации краевых условий и типу нагрузки (см. таблицу Е.2).
Таблица Е.2
Деформация и константы изгибающего момента для центральных
местных нагрузок на прямоугольные плоские панели
Граничные условия | Константа | Отношение длина/ширина a/b |
1,000 | 1,250 | 1,500 | 1,750 | 2,000 | 2,500 | 3,000 | 4,000 | 5,000 | > 5,000 | Вариант |
| | 0,127 | 0,152 | 0,167 | 0,176 | 0,181 | 0,182 | 0,183 | 0,184 | 0,185 | 0,1851 | D |
| 0,435 | 0,691 | 0,838 | 0,917 | 0,958 | 0,976 | 0,986 | 0,997 | 1,000 | 1,0000 | D |
| | 0,061 | 0,072 | 0,077 | 0,079 | 0,079 | 0,079 | 0,079 | 0,079 | 0,079 | 0,0791 | A |
| -0,238 | -0,052 | 0,036 | 0,067 | 0,067 | 0,067 | 0,067 | 0,067 | 0,067 | 0,0670 | A |
| 0,126 | 0,153 | 0,163 | 0,167 | 0,167 | 0,168 | 0,168 | 0,168 | 0,168 | 0,1680 | A |
| Крепление в соответствии с типом 2, свободно лежащий |
| Крепление в соответствии с типом 1, заделанный край |
Е.4.4. Масса на единицу площади армирующего наполнителя
Общую массу на единицу площади CSM mCSM, кг/м2, вычисляют по формуле

(Е.6)
где uCSM - расчетная единичная нагрузка для слоев CSM, Н·м2/мм·кг;
t
g - толщина ламели, определяемая по
рисунку Б.5 (Приложение Б), мм·кг/м
2.
Должна проводиться проверка толщины ламината, чтобы убедиться, что значение деформации панели не превышает значение толщины панели. Требуемую минимальную толщину панели tmin p, мм, вычисляют по формуле

(Е.7)
где

- константа, соответствующая комбинации краевых условий и типу нагрузки (см.
таблицу Е.1);

- константа, соответствующая комбинации краевых условий и типу нагрузки (см.
таблицу Е.2);
pu - расчетное единичное давление (наихудшее сочетание давления, вакуума, снеговой, ветровой нагрузки и т.д.).
Е.5. Круглые панели
Е.5.1. Воздействие равномерно распределенной нагрузки на круглые панели
Момент, вызванный равномерно распределенной нагрузкой, вычисляют по формуле

(Е.8)
где

- константа, равная:
0,03125 для краевых условий типа 1;
0,0516 для краевых условий типа 2;
Е.5.2. Воздействие центральной местной нагрузки на круглые панели
Момент, вызванный местной нагрузкой, должен быть равен наибольшему значению, определяемому по формулам (Е.9) и (Е.10) для краевых условий типа 1

(Е.9)

(Е.10)
Момент, вызванный местной нагрузкой, для краевых условий типа 2 вычисляют по формуле

(Е.11)
Е.5.3. Масса на единицу площади армирующего наполнителя
Общую массу на единицу площади CSM вычисляют по формуле

(Е.12)
Должна проводиться проверка толщины ламината, чтобы убедиться, что значение деформации панели не превышает значение толщины панели.
Требуемую минимальную толщину панели вычисляют по формуле

(Е.13)
где

- константа, равная:
0,01066 для краевых условий типа 1;
0,04347 для краевых условий типа 2;

- константа, равная:
0,05431 для краевых условий типа 1;
0,13787 для краевых условий типа 2.
Е.6. Пластины в форме части круга и треугольной пластины
Пластины в форме части круга и треугольной пластины должны проектироваться, используя значения

и

, принимаемые в соответствии с таблицей Е.3.
Таблица Е.3
Константы

и

для пластин треугольной
и сегментированной формы
Угол | | | | |
Тип 1. Крепление по краям |
| 0,0368 | 0,0144 | 0,0062 | 0,0031 |
| 0,0756 | 0,0488 | 0,034 | 0,025 |
Тип 2. Крепление со всех сторон |
| 0,0886 | 0,0246 | 0,01 | 0,0054 |
| 0,0868 | 0,0381 | 0,0255 | 0,0183 |
Момент, вызванный равномерной распределенной нагрузкой, вычисляют по формуле

(Е.14)
где rp - радиус панели или, в случае равнобедренной треугольной панели, длина одной из одинаковых сторон, мм.
Общую массу на единицу площади CSM вычисляют по формуле

(Е.15)
Должна проводиться проверка деформации панели с помощью формулы (Е.16), чтобы убедиться, что значение деформации панели не превышает значение толщины панели. Требуемую минимальную толщину панели вычисляют по формуле

(Е.16)
Е.7. Многослойные панели
Е.7.1. Общие положения
Многослойная панель должна состоять из двух армированных верхних слоев, разделенных между собой и соединенных ядром, которое имеет слабую несущую способность для улучшения прочности и жесткости плоской панели и экономии армирующего наполнителя.
При вычислениях считается, что материал ядра не вносит вклад в прочность панели. Однако в соответствии с
5.3.7, максимальный предел прочности при сдвиге в любом направлении не должен быть меньше чем 0,2 Н/мм
2.
Если многослойные панели используются как альтернатива сплошным панелям, должны соблюдаться следующие условия:
- толщина каждого верхнего слоя в любом варианте не должна быть меньше значения, указанного в
Б.2;
- максимальный предел прочности на сдвиг ядра должен быть не меньше чем 0,2 Н/мм2;
- расчетная температура не должна превышать 60 °C;
- жесткость при изгибе ядра не должна приниматься в расчет и верхние слои должны армироваться CSM, если не проведен более глубокий анализ панелей.
Примечание. Следует рассмотреть вопрос о возможности материала ядра сопротивляться местным сжимающим нагрузкам в местах пересечений панелей и прилегания ребер жесткости.
Е.7.3. Расчет конструкции
Чтобы определить начальную конструкцию, должна быть определена толщина сплошной панели (необходимо ограничить деформацию панели в соответствии с толщиной) в соответствии с
Е.4.
Общую толщину панели из трехслойной конструкции tt, мм, вычисляют по формуле

(Е.17)
где tf - толщина целой панели, мм;
c - толщина ядра, мм.
Толщину профиля ts, мм, вычисляют по формуле

(Е.18)
В любом варианте толщина профиля не должна быть меньше величины, указанной в
Б.2.
Единичную нагрузку на поверхности ламината Qs, Н/мм, вычисляют по формуле

(Е.19)
где dt - толщина трехслойной конструкции между нейтральными осями лицевых слоев, мм.
Единичная нагрузка на профиль не должна превышать единичную нагрузку, вычисляемую по
формуле (Б.1) (Приложение Б).
Максимальное напряжение сдвига в ядре и по границе раздела профиль-ядро

, Н/мм
2, вычисляют по формуле

(Е.20)
где S - максимальное усилие сдвига на единицу ширины, воздействующее на панель, Н/мм.
S вычисляют для представленной нагрузки;

не должна превышать значения отношения максимального предела прочности на сдвиг ядра к F или значения отношения максимального предела прочности на сдвиг между ядром и профилем к F.
F должно принимать значение 4.
(справочное)
Применяются днища следующих форм:
- полусферической (см. рисунок Ж.1);
- плоской, полностью поддерживаемой или усиленной ребрами жесткости;
Примечание. Днища, в которых выпуклая поверхность формирует часть внутренней поверхности напорной или безнапорной емкости, не рассматриваются в настоящем стандарте.
Ri - внутренний радиус; t - толщина ламината днища
Рисунок Ж.1. Полусферическое днище
hi - высота эллиптической части
Рисунок Ж.2. Полуэллиптическое днище
Примечания
1. Высоту эллиптической части hi, мм, вычисляют по формуле

(Ж.1)
где ri - радиус отбортовки.
2. Отношение высоты эллиптической части к внутреннему диаметру корпуса должно быть не меньше чем 0,2.
Рисунок Ж.3. Торосферическое днище
Примечания
1. Внутренний радиус должен быть не больше внутреннего диаметра корпуса.
2. Радиус отбортовки должен быть не меньше чем 0,1Di.
Lc - расстояние от места пересечения конической
и цилиндрической частей, на котором должна быть увеличена
толщина до значения tc; tc - расчетная толщина в месте
пересечения конической и цилиндрической частей;
Dk - внутренний диаметр большего основания конического
днища;

- угол наклона конического днища к оси
напорной емкости
Рисунок Ж.4. Коническое днище с изгибом
Примечание. Расстояние от места пересечения конической и цилиндрической частей, на котором должна быть увеличена толщина, мм, вычисляют по формуле

(Ж.2)
Рисунок Ж.5. Коническое днище без изгиба
Примечание. Коническое днище без изгиба используется только с термопластичным футеровочным слоем на тканевой основе.
Рисунок Ж.6. Коническое днище с изгибами
Примечание. Рекомендуемое значение радиуса отбортовки должно быть не меньше чем 0,1·Di. Значение радиуса отбортовки меньше чем 0,06·Di не допускается.
Рисунок Ж.7. Обратно изогнутое коническое днище
для больших отверстий
Примечание. Рекомендуемое значение радиуса отбортовки должно быть не меньше чем 0,1·Di. Значение радиуса отбортовки меньше чем 0,06·Di не допускается.
Dm - средний диаметр уплотняющей прокладки
Рисунок Ж.8. Общий вид глухого фланца: уплотняющая
прокладка внутри окружности центров отверстий под болты
Db - диаметр окружности центров отверстий зажимных болтов
Рисунок Ж.9. Общий вид глухого фланца: полнопрофильная
уплотняющая прокладка
G - диаметр области реакции уплотняющей прокладки
на нагрузку; hg - расстояние по радиусу от области реакции
уплотняющей прокладки на нагрузку до болтового отверстия;
B - внутренний диаметр фланца
Рисунок Ж.10. Глухие фланцы: плоское, полностью
поддерживаемое днище
Примечания
1. Не применяется в напорных емкостях.
2. Диаметр области реакции уплотняющей прокладки на нагрузку G, мм, вычисляют по формуле
G = D - 2bg, (Ж.3)
где D - внешний диаметр контактной поверхности уплотняющей прокладки, мм;
bg - эффективная ширина уплотняющей прокладки, мм.
Эффективную ширину уплотняющей прокладки вычисляют по формуле

(Ж.4)
где N - ширина уплотняющей прокладки, контактирующей с опорной поверхностью фланца, мм.
Рисунок Ж.11. Глухие фланцы: плоское, полностью
поддерживаемое днище
Примечание. Не применяется в напорных емкостях.
Ж.2. Выпуклые днища
Ж.2.1. Общие положения
| | ИС МЕГАНОРМ: примечание. В официальном тексте документа, видимо, допущена опечатка: подпункты а) - в) в пункте Ж.1 отсутствуют. | |
Выпуклые днища должны включать в себя формы, перечисленные в подпунктах а) - в),
Ж.1.
Ж.2.2. Выпуклые днища, на которые воздействует внутреннее давление
Единичную нагрузку вычисляют по формуле
где Ks - коэффициент формы для выпуклых днищ.
Коэффициент формы для выпуклых днищ вычисляют по таблице Ж.1.
Таблица Ж.1
Коэффициент формы для выпуклых днищ
hi/Di | t/Di | Ks |
Торосферическая | Полуэллиптическая |
0,1 <= ri/Di <= 0,15 | ri/Di > 0,15 |
0,20 | 0,005 | 2,95 | Не допускается, т.к. Ri > Di | 2,00 |
0,010 | 2,85 | 2,10 |
0,020 | 2,65 | 2,20 |
0,040 | 2,35 | 2,25 |
0,050 | 2,25 | 2,35 |
0,25 | 0,005 | 2,35 | 1,90 | 1,30 |
0,010 | 2,25 | 1,80 | 1,35 |
0,020 | 2,10 | 1,75 | 1,45 |
0,040 | 1,85 | 1,70 | 1,45 |
0,050 | 1,75 | 1,70 | 1,45 |
0,32 | | | 0,15 < ri/Di <= 0,25 |
0,005 | 1,95 | 1,45 | 0,85 |
0,010 | 1,85 | 1,45 | 0,95 |
0,020 | 1,60 | 1,40 | 1,00 |
0,040 | 1,40 | 1,35 | 1,05 |
0,050 | 1,30 | 1,30 | 1,10 |
0,50 (полусферическая) | Все значения | 0,6 | 0,6 | 0,6 |
Т.к. значение коэффициента формы для выпуклых днищ зависит от толщины выпуклого днища и эта толщина не может быть точно определена, пока не будет рассчитан ламинат, устанавливают значение для отношения t/Di, чтобы выбрать подходящее значение коэффициента формы для выпуклых днищ.
Значение коэффициента формы для выпуклых днищ, определенное таким образом, подставляют в
формулу (Ж.5), чтобы определить предполагаемую единичную нагрузку, и это значение единичной нагрузки используют в
формуле (Б.1) (Приложение Б), чтобы определить подходящий ламинат.
Толщина ламината, вычисленная таким образом, затем должна быть определена в соответствии с
Б.2 (Приложение Б), и значение t/D
i, приведенное для этой толщины, должно сравниваться с предполагаемым отношением. Если разница значительна, вычисления должны быть повторены с использованием нового значения коэффициента формы для выпуклых днищ, подходящего к желаемой толщине конечного ламината.
Примечание. Альтернативой повторным вычислениям может быть изменение конструкции днища путем увеличения высоты эллиптической части и радиуса отбортовки. Таким образом уменьшается значение коэффициента формы для выпуклых днищ, используемого в расчетных вычислениях.
Ж.2.3. Полусферические и торосферические днища, на которые воздействует внешнее давление
Единичную нагрузку вычисляют по формуле
Q = 0,66·p·Di·Ks. (Ж.6)
Минимально допустимая толщина ламината, обеспечивающая отсутствие изгиба, должна определяться по
формуле (В.14) (Приложение В).
Необходимо убедиться, что толщина ламината днища не меньше, чем минимально допустимая толщина ламината.
Если в предложенной конструкции это условие не выполнено, конструкция ламината должна быть изменена и вычисления повторены, пока не будет определена допустимая конструкция ламината.
Ж.2.4. Полуэллиптические днища, на которые воздействует внешнее давление
Единичную нагрузку вычисляют по формуле
Q = 0,66·p·Di·Ks. (Ж.7)
Минимально допустимая толщина ламината, обеспечивающая отсутствие изгиба, должна определяться по
формуле (В.14) (Приложение В).
Значение внешнего радиуса корпуса сферической формы, используемое в
формуле (В.14) (Приложение В), вычисляют по формуле
где Ke - коэффициент формы для полуэллиптических днищ, на которые воздействует внешнее давление.
Коэффициент формы для полуэллиптических днищ вычисляют по рисунку Ж.12.
Рисунок Ж.12. Коэффициент формы для полуэллиптических днищ
в зависимости от давления
Необходимо убедиться, что толщина ламината днища не меньше, чем минимально допустимая толщина ламината.
Ж.3. Конические днища и сужающиеся секции
Ж.3.1. Общие положения
Конические днища и конические сужающиеся секции должны соответствовать формам, приведенным на
рисунках Ж.4 -
Ж.7. Для напорных и безнапорных емкостей, отличающихся от приведенных, имеющих термопластичную футеровку на тканевой основе, форма пересечения конической и цилиндрической частей должна соответствовать
рисунку Ж.4. В любом варианте радиус отбортовки не должен быть меньше 6% от внутреннего диаметра цилиндрического корпуса.
В случае, если напорная или безнапорная емкость имеет термопластичную футеровку на тканевой основе, за исключением uPVC и CPVC, допускается использовать форму пересечения конической и цилиндрической частей, как изображено на
рисунке Ж.5, для углов наклона к оси напорной емкости до 60° включительно, но конструкция, изображенная на
рисунке Ж.4, предпочтительна во всех случаях и должна использоваться при футеровке на тканевой основе из uPVC и CPVC.
Дополнительное армирование в месте пересечения конической и цилиндрической частей проводится в соответствии с
формулами (Ж.9) и
(Ж.10) или
(Ж.9) и
(Ж.11) и должно распределяться в ламинате равномерным образом.
Для конструкций, соответствующих
рисунку Ж.5, пересечение не должно быть ближе к другому месту соединения или неоднородности, чем 2L
c, определяемому по
формуле (Ж.2). Производитель должен изготовить дополнительные образцы, чтобы доказать потребителю и/или контролирующему органу, что выбранный метод производства дает удовлетворяющий условиям настоящего раздела ламинат.
На конические верхние части статически расположенных безнапорных емкостей, на которые не воздействует внутреннее или внешнее давление и которые изготовлены без области закругления, не распространяются ограничения, показанные на
рисунке Ж.5.
Ж.3.2. Пологие конические днища
Конические днища, имеющие угол наклона к оси напорной или безнапорной емкости больше чем 75°, должны проектироваться как плоские днища, в соответствии с
Ж.5.
Ж.3.3. Другие конические днища, на которые воздействует внутреннее давление
Для днищ, имеющих угол наклона к оси напорной или безнапорной емкости 75° или меньше, единичную нагрузку вычисляют по формуле

(Ж.9)
Для конструкций, соответствующих форме, приведенной на
рисунке Ж.4, продольную единичную нагрузку в месте пересечения конической и цилиндрической частей днища с изгибом конического днища Q
x1, Н/мм, подставляемую в
формулу (Б.1) (Приложение Б), вычисляют по формуле
Q
x1 = 0,5p·D
i·K
c1, (Ж.10)
где Kc1 - коэффициент формы, применяемый в случае пересечения конической и цилиндрической частей с радиусом изгиба.
Коэффициент формы, применяемый в случае пересечения конической и цилиндрической частей днища с радиусом изгиба, принимается по таблице Ж.2.
Таблица Ж.2
Коэффициент формы для конических днищ, соответствующих
ri/Di | Kc1 |
Угол  |
15° | 30° | 45° | 60° | 75° |
0,06 | | 1,3 | 2,00 | 3,85 |
0,08 | 1,2 | 1,75 | 3,50 |
0,10 | 1,1 | 1,60 | 3,15 |
0,15 | 1,0 | | 1,40 | 2,70 |
0,20 | | 1,25 | 2,40 |
0,30 | | 1,55 |
0,40 | |
0,50 | | | |
Продольная единичная нагрузка в месте пересечения конической и цилиндрической частей днища с изгибом должна быть больше значения единичной нагрузки, определяемой по
формуле (Ж.9).
Для конструкций, соответствующих форме, приведенной на
рисунке Ж.5, единичную продольную нагрузку для пересечения конической и цилиндрической частей конического днища без изгиба Q
x2, Н/мм, подставляемую в
формулу (Б.1) (Приложение Б), вычисляют по формуле
Q
x2 = 0,5p·D
1·K
c2, (Ж.11)
где Kc2 - коэффициент формы, применяемый в случае пересечения конической и цилиндрической частей без радиуса изгиба.
Коэффициент формы, применяемый в случае пересечения конической и цилиндрической частей днища без радиуса изгиба, принимается по таблице Ж.3.
Таблица Ж.3
Коэффициент формы для конических днищ, соответствующих
tc/Di | Kc2 |
Угол  (не более 60 °) |
15° | 30° | 45° | 60° |
0,002 | 2,94 | 5,62 | 8,90 | 13,60 |
0,005 | 2,05 | 3,70 | 5,80 | 8,70 |
0,010 | 1,60 | 2,75 | 4,12 | 6,30 |
0,020 | 1,24 | 2,00 | 3,00 | 4,40 |
0,040 | 1,00 | 1,55 | 2,20 | 3,20 |
0,050 | 1,00 | 1,45 | 2,00 | 2,75 |
Продольная единичная нагрузка для пересечения конической и цилиндрической частей конического днища без изгиба должна быть больше значения единичной нагрузки, определенной по
формуле (Ж.9).
Т.к. значение коэффициента формы, применяемого в случае пересечения конической и цилиндрической частей без радиуса изгиба, зависит от расчетной толщины в месте пересечения конической и цилиндрической частей, эта толщина не может быть точно определена, пока не будет определена конструкция ламината. Значение для отношения tc/Di должно выбираться произвольно, чтобы выбрать значение для коэффициента формы, применяемого в случае пересечения конической и цилиндрической частей без радиуса изгиба.
Значение коэффициента формы, применяемого в случае пересечения конической и цилиндрической частей днища без радиуса изгиба, определенное таким образом, должно подставляться в
формулу (Ж.11), чтобы определить единичную нагрузку, которая используется в
формуле (Б.1) (Приложение Б) для вычисления подходящего ламината.
Толщина ламината, вычисленная таким образом, должна определяться в соответствии с
Б.2 (Приложение Б), и значение t
c/D
i, приведенное для данной толщины, сравнивается с предположенным отношением. Если разница существенна, вычисления должны быть повторены, используя новое значение для коэффициента формы, применяемого в случае пересечения конической и цилиндрической частей днища без радиуса изгиба, подходящего для желаемой толщины конечного ламината.
Толщина конической и цилиндрической частей днища должна быть увеличена и должна быть равна вычисленной толщине для изгиба или пересечения конической и цилиндрической частей днища. Ширина утолщения должна быть равна Lc.
В случае конических днищ для безнапорных или напорных емкостей, произведенных намоткой непрерывной нити, должен быть выполнен анализ анизотропии упругих свойств. Это позволяет определить вклад каждого слоя в ламинате и взаимодействие между относительной линейной деформацией и деформацией сдвига. Если такой анализ отсутствует, все дополнительные расчетные нагрузки, растущие из-за изменения геометрии, должны принимать только слои CSM и WR. Необходимо позаботиться о том, чтобы продольная единичная нагрузка, используемая для расчета ламината, была не меньше, чем единичная нагрузка, продольная единичная нагрузка в месте пересечения конической и цилиндрической частей с изгибом конического днища или продольная единичная нагрузка для пересечения конической и цилиндрической частей конического днища без изгиба.
Ж.3.4. Другие конические днища, на которые воздействует внешнее давление
Конструкция ламината для конических днищ и секций, на которую воздействует внешнее давление, должна определяться в соответствии с
В.3.1 (Приложение В). Если предполагается использование включенных в состав ламината колец жесткости, вычисления должны проводиться в соответствии с
В.3.2 (Приложение В). При применении этих вычислений должны быть проведены следующие модификации:
а)

должно использоваться во всех местах, где есть главный внешний диаметр рассматриваемого конического днища;
б) эффективная длина корпуса должна быть равна высоте боковой грани конической секции или высоте боковой грани между кольцами жесткости (см.
рисунок В.3, Приложение В), в зависимости от того, что меньше.
Ж.4. Плоские днища для вертикальных цилиндрических безнапорных емкостей и другие плоские днища
Плоские днища для вертикальных цилиндрических безнапорных емкостей должны быть полностью поддерживаемые или спроектированы в соответствии с
Приложением Е. Плоские торцевые стенки для других напорных и безнапорных емкостей должны быть спроектированы в соответствии с
Приложением Е.
Ж.4.2. Полностью поддерживаемые плоские днища
В углах полностью поддерживаемых днищ несущая способность ламината в продольном направлении должна зависеть от формы конструкции. В случае закругленных углов (см.
рисунок Ж.13) должен применяться коэффициент не менее 1,5, и в случае квадратных углов (см.
рисунок Ж.14) должен применяться коэффициент не менее 2, чтобы получить требуемую несущую способность при внутреннем давлении в окружном направлении.
R - радиус угла
Рисунок Ж.13. Безнапорные емкости с футеровочным слоем
и без футеровочного слоя, с радиусом изгиба от 30 до 150 мм
(рекомендуемая конструкция)
Примечание. При значении радиуса угла от 75 до 150 мм концентрация напряжения в изгибе очень большая, и в связи с этим необходимо учитывать дополнительную опору под изгиб.
Рисунок Ж.14. Футерованные безнапорные емкости,
футеровочный слой на тканевой основе без изгиба
Примечание. Толщина днища на удалении от места соединения между днищем и цилиндрическим корпусом некритична.
Если в качестве футеровки используются термопласты на тканевой основе (за исключением uPVC и CPVC), допускается применять методы, приведенные на рисунке Ж.14.
Небольшие неподдерживаемые области в местах выпускных отверстий должны соответствовать
Приложению Е в части проектирования плоских панелей.
В случае примыкания днищ к безнапорным или напорным емкостям, произведенных намоткой непрерывной нити, должен быть выполнен анализ анизотропии упругих свойств или все дополнительные расчетные нагрузки, растущие из-за изменения геометрии, должны рассматриваться как равные расчетным нагрузкам в корпусе и должны приниматься только на слои CSM и WR. Анализ анизотропии упругих свойств позволяет определить вклад каждого слоя в ламинате и взаимодействие между относительной линейной деформацией и деформацией сдвига.
Примечание. В зависимости от основания для напорной или безнапорной емкости может появиться необходимость в обеспечении плоской опоры.
Ж.5. Круглые глухие фланцы, привинченные болтами
Ж.5.1. Общие положения
Глухие фланцы, привинченные болтами, должны соответствовать одной из конструкций, изображенных на
рисунках Ж.8 или
Ж.9.
Ж.5.2. Фланцевое соединение с корпусом
Фланец в днище корпуса должен быть спроектирован таким же образом, что и соединение большого патрубка с фланцами (см.
Приложение Л).
Ж.5.3. Круглый глухой фланец с кольцевой опорой
При производстве круглых глухих фланцев с кольцевой опорой (см.
рисунок Ж.8 -
Ж.9) в качестве армирующего наполнителя должны использоваться только CSM.
Общую массу на единицу площади CSM для глухого фланца по
рисунку Ж.8 вычисляют по формуле

(Ж.12)
Общую массу на единицу площади CSM для глухого фланца по
рисунку Ж.9 вычисляют по формуле

(Ж.13)
Примечания
| | ИС МЕГАНОРМ: примечание. В официальном тексте документа, видимо, допущена опечатка: таблица Ж.4 отсутствует. | |
1. Для
рисунка Ж.8 металлические опорные фланцы должны выбираться по таблице Ж.4 или проектироваться как "незакрепленные" фланцы.
2. Для
рисунка Ж.9 толщина металлического кольца для распределения нагрузки должна быть не меньше 6 мм. С учетом этого ограничения они могут быть только номинальной толщины.
Конструкция ламината должна включать любые слои CSM, которые соответствуют требованию по общей массе.
Ж.5.4. Круглые глухие фланцы с краевым моментом
Не допускается использование круглых глухих фланцев с краевым моментом, уплотняющая прокладка которых полностью находится внутри окружности центров отверстий под болты.
Ж.5.5. Полностью поддерживаемые глухие фланцы
Полностью поддерживаемые глухие фланцы (см.
рисунок Ж.10 и
Ж.11) должны быть изготовлены только с применением стальной стенки. Такие фланцы не должны применяться для напорных емкостей.
Толщина стальной стенки t
B для соединения, показанного на
рисунке Ж.10, должна быть больше значения, вычисленного по формуле

(Ж.14)
где f - допустимое расчетное напряжение металла стальной стенки, Н/мм2.
Kl вычисляют по формуле

(Ж.15)
где W - фланцевая расчетная болтовая нагрузка, Н;
Hed - общая гидростатическая сила днища, Н.
Общую гидростатическую силу днища вычисляют по формуле
Hed = 0,785·B2·p. (Ж.16)
Допустимое расчетное напряжение металла стальной стенки принимает значение, полученное по формуле Ж.17 или Ж.18 в зависимости от того, какое из значений меньше.

(Ж.17)
где uf - предел прочности при растяжении металла стальной стенки при комнатной температуре, Н/мм2.

(Ж.18)
где

- условный предел текучести металла стальной стенки, Н/мм
2.
Допускается вычислять толщину металлической стенки по формуле

(Ж.19)
Для соединения, показанного на
рисунке Ж.11, где уплотняющая прокладка находится снаружи окружности центров отверстий под болты, толщина стальной стенки должна быть не меньше чем

(Ж.20)
Для соединений, изображенных на
рисунках Ж.10 и
Ж.11, приведенные требования не исключают использования в качестве стальной пластины глухих фланцев для соответствующего давления и температуры, предусмотренных расчетом.
Примечание. Для полностью поддерживаемых глухих фланцев толщина поддерживаемого ламината необходима только для того, чтобы эффективно работать в качестве коррозионного барьера и иметь соответствующую жесткость при манипуляции (минимальная толщина 3 мм). Если напорная или безнапорная емкость футерована термопластичным слоем, лист неармированного термопласта сходной толщины с футеровочным слоем будет достаточен для этих целей, кроме очень больших отверстий.
(справочное)
КОЛЬЦЕВЫЕ СВАРНЫЕ ШВЫ
И.1. Общие положения
Перекрывающий ламинат должен быть спроектирован таким образом, чтобы его расчетная единичная нагрузка в окружном и в продольном направлениях была не меньше, чем для ламината корпуса в окружном и продольном направлениях соответственно, за исключением мест, где заканчивается плавный переход.
Перекрывающий слой должен заканчиваться плавным переходом; соотношение между разными толщинами ламината не должно быть больше чем 1:6, он должен гладко переходить в главный ламинат (см. рисунки И.1 -
И.8).
Рисунок И.1. Основные типы сварных соединений для напорных
емкостей без термопластичной футеровки: соединение встык
с одиночным слоем перекрывающего ламината и с ограничением
по ширине основного ламината в 6 мм или меньше
Рисунок И.2. Основные типы сварных соединений для напорных
емкостей без термопластичной футеровки: замковое стыковое
соединение с ограничением по ширине основного ламината
в 6 мм или меньше
Рисунок И.3. Основные типы сварных соединений для напорных
емкостей без термопластичной футеровки:
клинообразный стык-соединение
Рисунок И.4. Основные типы сварных соединений для напорных
емкостей без термопластичной футеровки:
форма поверхностного слоя
Рисунок И.5. Основные типы сварных соединений для напорных
емкостей без термопластичной футеровки:
соединение внахлест основного ламината
Рисунок И.6. Основные типы сварных соединений для напорных
емкостей с термопластичной футеровкой:
клинообразный стык
Рисунок И.7. Основные типы сварных соединений для напорных
емкостей с термопластичной футеровкой: форма поверхностного
слоя в месте основного сварного соединения
Рисунок И.8. Основные типы сварных соединений для напорных
емкостей с термопластичной футеровкой:
соединение основного ламината внахлест
В местах соединений не должно быть областей высоких местных нагрузок, например, изгибов, патрубков или сопряжений.
Минимальную эффективную длину перекрывающего слоя Lj, мм, для каждого типа соединения вычисляют по формуле

(И.1)
где Q
a - максимальная окружная или продольная единичная нагрузка, определяемая по
формулам (В.2) -
(В.5) (Приложение В);
S - прочность соединения внахлестку при сдвиге, Н/мм2.
Прочность соединения внахлестку - минимальное значение, приведенное в
таблице 5.1, для типа армирования и смолы, применяемых в конструкции перекрывающего слоя и основного ламината в области основного сварного шва.
И.2. Расчетные нагрузки на ламинат
Расчетную единичную нагрузку на основной ламинат корпуса ULAM, Н/мм, и расчетную единичную нагрузку на перекрывающий ламинат UOVL, Н/мм, вычисляют по формуле
U
LAM и/или U
OVL = u
1m
1n
1 + u
2m
2n
2 + ... + u
zm
zn
z. (И.2)
(справочное)
ОТВЕРСТИЯ, ПАТРУБКИ И КОМПЕНСАЦИЯ
К.1. Общие положения
Отверстия в напорных или безнапорных емкостях должны быть круглой или овальной формы. Отношение длин большой и малой оси не должно превышать 1/2.
Примечание. Предпочтительно размещать отверстия вне пределов различных соединений в конструкции ламината, например, точек соединения торцевой стенки и сварных швов в термопластичной футеровке.
Компенсирующие отверстия и патрубки в куполообразных днищах должны располагаться таким образом, чтобы присоединение и дополнительное армирование полностью находилось внутри круга радиусом 0,4Di. Круг должен быть соосен оси корпуса.
Отверстия и патрубки в напорных емкостях, на которые воздействует внешнее давление, должны быть спроектированы в соответствии с требованиями для напорных емкостей, на которые воздействует внутреннее давление (см.
К.2.2 -
К.3.2).
К.2. Компенсация отверстий
К.2.1. Общие положения
Для всех отверстий должна использоваться компенсация с помощью дополнительного ламината, рассчитанная в соответствии с
К.2.3 для всех плоскостей, проходящих через оси отверстий, перпендикулярных к поверхности напорной емкости.
Максимальные размеры компенсирующих отверстий в куполообразных торцевых стенках не должны превышать 0,5D
i, и наибольшие отверстия должны быть спроектированы в виде конусов или обратно изогнутой секции (см.
рисунки Ж.4 -
Ж.7 (Приложение Ж)).
Максимальный размер отверстий в цилиндрическом корпусе, рассматриваемых в настоящем разделе, должен быть 0,3Di.
Примечание. Требуется отдельное рассмотрение отверстий в цилиндрическом корпусе, размер которых превышает 0,3Di, и всех отверстий, форма которых не круглая.
К.2.2. Расчет компенсации
Дополнительный ламинат, укладываемый возле отверстия, должен рассчитываться с учетом каждого фактора, приведенного ниже:
а) Размещение дополнительного ламината или компенсации должно соответствовать схематичному изображению, приведенному на рисунках К.1 -
К.6. Дополнительные слои для компенсации должны быть S
1 + S
2. Если осуществимо, слои ламината S
2 должны перемежаться со слоями смежного ламината.
db - внутренний диаметр патрубка; dr - диаметр армирования
компенсации в начале сглаживания; S1 - внешний перекрывающий
слой ламината; S2 - компенсационные слои ламината
Рисунок К.1. Схематическое изображение типовых патрубков:
установленный заподлицо патрубок без термопластичной
футеровки (отверстие больше чем 100 мм)
Рисунок К.2. Схематическое изображение типовых патрубков:
установленный с выступом патрубок без термопластичной
футеровки (отверстие от 50 до 100 мм)
Рисунок К.3. Схематическое изображение типовых патрубков:
установленный с выступом патрубок без термопластичной
футеровки (отверстие более 100 мм)
tt - общая толщина патрубка
Рисунок К.4. Схематическое изображение типовых патрубков:
установленный заподлицо патрубок без термопластичной
футеровки или с термопластичной футеровкой (не изображено)
Примечание. Необходимо отметить, что внутренний и внешний слои tt/2, которые формируют патрубки и его перекрывающий слой, являются частью основного ламината корпуса и не могут рассматриваться как компенсация патрубка, т.е. при такой форме конструкции внешний перекрывающий слой S1 на основном ламинате отсутствует.
Рисунок К.5. Схематическое изображение типовых патрубков:
установленный заподлицо патрубок
с термопластичной футеровкой
Рисунок К.6. Схематическое изображение типовых патрубков:
установленный с выступом патрубок
с термопластичной футеровкой
Для напорных и безнапорных емкостей, у которых отсутствует термопластичная футеровка, необходимо наличие ламината, выполняющего функции герметизации, армированного CSM массой на единицу площади не менее 1,2 кг/м
2 плюс поверхностный слой, как показано на
рисунках К.1 -
К.3.
Ламинат, выполняющий функции герметизации, не должен учитываться при расчете характеристик прочности.
б) Вдобавок к специальным требованиям, в соответствии с перечислениями в) -
е) К.2.2, общая толщина конструкции, состоящая из толщины дополнительного ламината и ламината корпуса, должна выдерживать все дополнительные нагрузки.
в) Несущая способность дополнительного ламината AL, Н, определяется по формуле
AL = dc·Uc, (К.1)
где dc - эффективный диаметр отверстия, вырезанного в стенке напорной емкости, мм;
Uc является одним из следующих параметров:
1) максимальная требуемая расчетная нагрузка в пределах эффективного диаметра отверстия, Н/мм, если отверстие находится в цилиндрическом или коническом корпусе;
2) расчетная нагрузка, требуемая для сферы с радиусом, равным радиусу сферической части днища, Н/мм, если отверстие и его компенсация находятся внутри сферической части чашеобразного днища;
3) расчетная нагрузка, требуемая для сферы, радиус которой вычисляют по
формуле Ж.8 (Приложение Ж), Н/мм, если отверстие и его компенсация находятся в полуэллипсоидальном днище и находятся внутри круга с радиусом 0,40 диаметра корпуса, измеренным от центра днища;
4) окружная расчетная нагрузка, требуемая для главного цилиндрического корпуса в нижней точке, Н/мм, в случае безнапорной емкости с полностью поддерживаемым плоским дном, с отверстиями в корпусе, находящимися на расстоянии от основания:
Такой компенсирующий ламинат должен применяться в дополнение к дополнительному ламинату, требуемому в месте пересечения корпуса/основания в соответствии с
Ж.5.2 (Приложение Ж) и изображенному на
рисунках Ж.13 и
Ж.14 (Приложение Ж).
Примечание. Из-за составных нагрузок в этой области рекомендуется, где это возможно, чтобы отверстия не находились в месте пересечения корпуса/основания и находились, вместе с компенсацией, выше утолщенных областей, изображенных на
рисунках Ж.13 и
Ж.14 (Приложение Ж).
Несущую способность эффективного компенсационного слоя Ac, Н, вычисляют по формуле
Ac = (dr - dc)·UOVL. (К.2)
г) Связи между дополнительным перекрывающим слоем и основным корпусом должны выдерживать нагрузки в направлении сдвига, передающиеся через корпус.
Если все или часть компенсационных слоев S
2 (см.
рисунки К.1 -
К.6) перемежаются с ламинатом основного корпуса и обеспечивается их правильное чередование, а также при условии, что компенсационные слои расположены концентрически и их диаметр не меньше, чем диаметр армирования компенсации в начале сглаживания, допускается для требуемой площади сдвига, между поверхностными перекрывающими слоями компенсации S
2 + S
1, в расчете на прочность учитывать только те слои компенсации, которые не перемежаются с основным ламинатом корпуса.
Общую несущую способность эффективных компенсационных слоев Aco, Н, вычисляют по формуле
Aco = Aci + Ace, (К.3)
где Aci - несущая способность той части от общей компенсации, которая подкладывается под основной ламинат корпуса, Н;
Ace - несущая способность той части от общей компенсации, которая накладывается на основной ламинат корпуса, Н.
Aco >= AL.
Эффективный предел прочности при сдвиге между внешним перекрывающим слоем и основным ламинатом As, Н, вычисляют по формуле

(К.4)
Все слои компенсации применяются снаружи, AS >= AL.
Если часть компенсационных слоев перемежается в основном ламинате на расстоянии не меньше, чем диаметр армирования компенсации в начале сглаживания, тогда эффективный предел прочности при сдвиге между внешним перекрывающим слоем и основным ламинатом должен быть не меньше несущей способности той части от общей компенсации, которая накладывается на основной ламинат корпуса. Коэффициент безопасности против разрушения из-за изгиба должен быть не меньше, чем общий расчетный коэффициент или расчетный коэффициент перекрывающего слоя (см.
формулу (А.1) Приложение А).
д) Перекрывающий слой ламината на патрубке должен выдерживать выдергивающую нагрузку, вызванную давлением, определяемым в соответствии с
К.2.6 и
формулой (И.2) (Приложение И).
е) Связь между перекрывающим ламинатом и патрубком должна выдерживать выдергивающую нагрузку в направлении сдвига связи, определяемую в соответствии с
К.2.6 и
формулой (И.1) (Приложение И).
К.2.3. Перекрывающий ламинат
Единичная нагрузка, воздействующая на перекрывающий ламинат, должна быть максимальной единичной нагрузкой для корпуса в месте расположения отверстия, и это значение должно подставляться в
формулу (Б.1) (Приложение Б) для определения необходимой конструкции ламината.
Вычисленный таким образом ламинат должен применяться в области вокруг отверстия (размер d
b на
рисунках К.1 -
К.6) на расстоянии, равном диаметру (d
r на
рисунке К.1), который соответствует значению между двукратным и трехкратным диаметром отверстия в той же плоскости (2d
b <= d
r <= 3d
b).
В тех случаях, когда расчетная прочность ламината превышает максимальную требуемую расчетную нагрузку, допускается, чтобы такое превышение прочности принималось как вклад в несущую способность дополнительного ламината.
Несущую способность при повышенной прочности в ламинате AE, Н, определяют по формуле
AE = {(dr - dc)·(ULAM - Uc)}. (К.5)
Должно выполняться условие:
AE + AC >= AL. (К.6)
При необходимости местные нагрузки должны рассматриваться в дополнение к требованиям для компенсации.
К.2.4. Отверстия в плоских панелях и плоских торцевых стенках
В случае если отверстия делают в сплошных плоских панелях и плоских торцевых стенках, компенсация должна соответствовать следующим требованиям:
а) Компенсация должна быть такого же типа, что и ламинат, в котором сделано отверстие.
б) Несущая способность эффективного компенсационного слоя должна быть не меньше 0,5A
L (см.
К.2).
в) Толщина компенсации должна быть не меньше 0,5tp; в границах диаметра армирования компенсации в начале сглаживания не меньше 2dc.
Примечание. Компенсация отверстий в многослойных конструкциях требует отдельного рассмотрения.
Необходимо выполнить проверочные вычисления, чтобы убедиться, что расчетная нагрузка перекрывающего ламината равна или больше, чем единичная нагрузка, вызванная усилием вырыва.
Единичную нагрузку, вызванную усилием вырыва Qb, Н/мм, вычисляют по формуле

(К.7)
Если условие не выполняется, перекрывающий слой ламината должен быть пересмотрен.
Длина перекрывающего слоя ламината в области патрубка должна быть не меньше чем 75 мм для всех размеров патрубков.
К.2.6. Предотвращение разрушения в области тонкого поверхностного слоя
Если весь перекрывающий слой ламината уложен снаружи основного корпуса, то при испытаниях прототипа или на основе опыта необходимо доказать прочность связи патрубка на границе между ламинатом основного корпуса и перекрывающим слоем воздействию общей нагрузки, вызванной усилием вырыва, а также прочность отдельных частей конструкции.
Если при испытании единичная нагрузка, вызванная усилием вырыва, вычисленная в соответствии с
К.2.5, превышает прочность на раздир между слоями ламината (см.
Приложение Ш), патрубок должен быть переконструирован.
Примечание. В случае отсутствия у напорной или безнапорной емкости термопластичной футеровки улучшение сопротивления нагрузки, вызванной усилием вырыва, может быть достигнуто путем применения внутреннего ламината, выполняющего функции герметизации, описанного в
К.2.3 (см.
рисунки К.1 -
К.3).
Типовое испытание должно проводиться, чтобы доказать, что с используемой при производстве напорной или безнапорной емкости и подготовке перекрывающего слоя ламината смолой, прочность на раздир по границе как минимум составляет 5 Н/мм.
Прочность на раздир должна использоваться при расчете перекрывающего слоя с целью предотвратить разрушение в области поверхностного слоя. Должен применяться фактор безопасности, равный, как минимум, четырем.
К.3. Патрубки
К.3.1. Конструкция патрубка
Примечание. Внутренний диаметр патрубка определяется технологическими требованиями, но не рекомендуется использовать патрубки диаметром меньше чем 50 мм.
Конструкция патрубка должна соответствовать одному из типов, приведенных на
рисунках К.1 -
К.6 и рисунке К.7.
Рисунок К.7. Устройство перекрывающего слоя
для длинных патрубков
Конструкция ламината, используемая для каждого патрубка, должна определяться в соответствии с
Приложениями Б и
В, при этом трубу рассматривают как цилиндрический корпус.
Патрубки должны быть по возможности короткими, но достаточной длины, чтобы можно было выкрутить болты из фланцев и т.д., уложить перекрывающий слой ламината достаточной длины.
К.3.2. Патрубки с угольниками из листового металла
Все патрубки с внутренним диаметром менее 100 мм и патрубки любого размера, имеющие длину, превышающую внутренний диаметр, должны иметь поддерживающий угольник из листового металла, который должен устанавливаться после завершения изготовления основного ламината и компенсации (см.
рисунки К.2 и К.8).
Рисунок К.8. Угольники из листового металла для патрубков
Как минимум три, но предпочтительнее четыре угольника из листового металла должны устанавливаться вокруг патрубка на одинаковом расстоянии друг от друга. Длина стороны угольника из листового металла должна быть не меньше, чем внутренний диаметр ответвления, и толщина должна быть не меньше, чем толщина патрубка (исключая компенсацию) или 6 мм, в зависимости от того, что больше. Ламинат угольников должен быть либо выложен непосредственно на корпусе и патрубке и плавно сопрягаться со всеми изгибами, или, если был заранее изготовлен отдельно, должен устанавливаться и покрываться перекрывающим слоем, толщина которого равна половине толщины угольника с каждой стороны.
К.4. Винтовые соединения
Винтовые соединения, включая штуцерное соединение и патрубки с резьбой, не должны использоваться.
К.5. Отверстия для осмотра
Все напорные емкости должны иметь отверстия для осмотра, расположенные таким образом, чтобы можно было визуально обследовать внутренности напорной или безнапорной емкости.
К.6. Контактные площадки
К.6.1. Общие положения
Контактная площадка со штифтами должна соответствовать минимальным требованиям, приведенным в
К.6.2 -
К.6.4, и минимальным размерам, указанным на рисунках К.9 -
К.11.
Рисунок К.9. Контактная площадка для емкостей
без термопластичной футеровки
Рисунок К.10. Контактная площадка для емкостей
с термопластичной футеровкой
1 - резьбовое соединение в глухом отверстии; 2 - резьбовое
соединение с приваренной пластиной; 3 - резьбовое
соединение и сварка
Рисунок К.11. Контактная площадка для емкостей:
допустимые крепления штифтов в подкрепляющем кольце
Примечание. Если ожидаются высокие нагрузки и моменты от трубопровода или непосредственное подключение вентиля к напорной или безнапорной емкости, необходимо рассмотреть специальные требования к конструкции контактной площадки.
Штифты должны быть изготовлены из материала, не коррозирующего при контакте с содержимым напорной или безнапорной емкости.
Виды креплений штифтов в подкрепляющем кольце (см. рисунок К.11):
а) резьбовое;
б) резьбовое и сварное.
Резьбовое соединение должно использоваться, когда высока вероятность повреждения штифтов или когда требуется обработка поверхности соединения.
К.6.3. Металлическое кольцо
Материал металлического кольца должен быть сочетаем со штифтами.
Размеры кольца должны быть не меньше, чем пропорции, показанные на
рисунках К.9 -
К.10, и штифты не должны выступать из отверстий с внутренней стороны. Штифты, крепящиеся только с помощью резьбы, должны закручиваться в глухое отверстие либо должна использоваться металлическая пластина, приваренная с внутренней стороны кольца, чтобы предотвратить закручивание штифта слишком далеко.
Металлическое кольцо должно быть очищено от окалины или наплавлений на поверхности и обезжирено до фиксации в контактной площадке.
К.6.4. Конструкция контактных площадок
Контактные площадки должны быть спроектированы таким образом, чтобы полностью совпадать с фланцами, уменьшая отверстие при необходимости.
Дополнительный перекрывающий ламинат должен быть спроектирован таким образом, чтобы выдерживать следующие нагрузки:
(справочное)
КРУТЫЕ БОЛТОВЫЕ ФЛАНЦЕВЫЕ СОЕДИНЕНИЯ
Л.1. Общие положения
Фланцевые соединения должны соответствовать рисунку Л.1 и
ГОСТ 12820.
Полнопрофильный фланец: Тип 2
a - переход CSM и WR стенки трубы в опорную поверхность
фланца; b - дополнительное армирование стекловолокном,
плавно переходящее на воротник фланца для придания
ему толщины; c - заключительный перекрывающий слой,
армированный CSM массой на единицу площади 1,2 кг/м2
от края фланца до воротника фланца; d - толщина воротника
фланца должна быть не менее N/2; e - металлический опорный
фланец толщиной не менее 6 мм и плоской площадью опоры
используется при наличии давления; N - толщина
фланца с патрубком
Рисунок Л.1. Конструкция фланца
Если такое соответствие фланцев невозможно (например, болтовые основные фланцы), фланцевые соединения должны быть спроектированы при помощи подходящего метода расчета фланцев, подкрепленного испытанием опытного образца и опытом эксплуатации, при возможности.
Если используется металлический свободный опорный фланец разъемной конструкции, то должно быть сделано допущение для эффекта потери непрерывности во фланце. Толщина фланца должна быть не менее 1,4 толщины, вычисленной для идентичного опорного фланца цельной конструкции.
Л.2. Полнопрофильный фланец с или без прокладки и с кольцевой уплотняющей прокладкой, толщиной не менее 1,5 мм и выходящей за пределы болтовых отверстий
| | ИС МЕГАНОРМ: примечание. В официальном тексте документа, видимо, допущена опечатка: пункт Л.7 отсутствует. | |
Полнопрофильные фланцы должны быть спроектированы в соответствии с Л.2 - Л.7, в которых указаны соответствующие размеры фланца, при которых он выдерживает гидростатические концевые нагрузки и нагрузки от болтов, обеспечивающих герметичность соединения. Соединяемые фланцы должны быть полнопрофильными и плоскими. Уплотняющая прокладка должна полностью повторять размеры поверхности фланца (см.
рисунок Л.2). Необходимо учитывать два условия:
а) Условие затяжки болта. Это условие применяют, когда уплотняющая прокладка или контактная поверхность соединения закрепляются при температуре и давлении окружающей среды. Минимальная нагрузка от затяжки болта при этих условиях является функцией, зависящей от материала уплотняющей прокладки и эффективной контактной площади уплотняющей прокладки.
б) Рабочие условия. Это условие применяют, когда гидростатическая концевая нагрузка, вызванная расчетным давлением, воздействует на часть соединения, и нагрузка от затяжки болта должна обеспечивать существенное сжатие уплотняющей прокладки и поверхности соединения, чтобы обеспечить герметичность соединения при расчетной температуре. Минимальная нагрузка от затяжки болта при этих условиях является функцией, зависящей от расчетного давления, материала уплотняющей прокладки и эффективной площади уплотняющей прокладки или контакта, и должна быть постоянной под давлением.
Рисунок Л.2. Полнопрофильный фланец с мягкой
уплотняющей прокладкой
Во всех случаях необходимо убедиться, что материал фланца имеет необходимую прочность к нагрузкам от болтов.
Если установка уплотняющей прокладки проводится при температуре окружающей среды и температура фланца и болтов при рабочих условиях может быть значительно выше или ниже этой температуры, допустимое напряжение для каждого температурного режима должно учитываться при определении необходимой конструкции фланца. При расчете фланцев большого диаметра особое внимание должно быть уделено выбору уплотняющей прокладки, размеру и шагу болтов и последовательности затяжки болтов. Отдельное внимание должно быть уделено также воздействию значительных дополнительных нагрузок на фланцы.
Примечания
1. Использование отверстия более 40 мм - только по согласованию между потребителем и производителем.
2. Дополнительное армирование стекловолокном может быть включено также в месте перехода CSM и WR стенки трубы в опорную поверхность фланца или в заключительный перекрывающий слой, армированный CSM массой на единицу площади 1,2 кг/м2 от края фланца до воротника фланца.
3. Это требование может быть выполнено армированием только стенки трубы.
4. Зазор между отверстием опорного фланца и внешним диаметром воротника должен быть по возможности меньше.
| | ИС МЕГАНОРМ: примечание. В официальном тексте документа, видимо, допущена опечатка: таблица Ж.4 отсутствует. | |
Л.3. Общие требования к болтовым соединениям
Номинальный диаметр болтов и штифтов должен быть не менее 12 мм.
В таблице Л.1 приведены рекомендуемые напряжения для болтов, чтобы определить необходимое количества болтов с помощью расчета, приведенного в настоящем приложении. Эти уровни напряжения являются номинальными, поскольку на практике они могут быть превышены, чтобы обеспечить герметичность соединения. Однако существует достаточный запас, чтобы обеспечить удовлетворительную затяжку без перегрузки или постоянной подтяжки болтов. Чтобы не допустить перегрузки на болты или фланец, может понадобиться динамометрический ключ.
Таблица Л.1
Рекомендуемые расчетные значения напряжения для материалов
болтов, используемых во фланцевом соединении
Материал | Диаметр, мм | Рекомендуемое расчетное напряжение для расчетной температуры (°C), не превышающей, Н/мм2 |
50 | 100 | 200 |
Углеродистая сталь | <= 152 | 93 | 89 | 85 |
1% хромомолибденовая сталь | <= 63 | 193 | 181 | 167 |
Рисунок Л.3. Информация по фланцам для напорных емкостей
с термопластичной футеровкой
Л.4. Болтовые нагрузки и площади
Л.4.1. Рабочие условия
Минимальную болтовую нагрузку для рабочих условий Wm1 вычисляют по формуле

(Л.1)
где H' - общая торцевая гидростатическая сила;

- сжимающая нагрузка на уплотняющую прокладку, обеспечивающая плотное соединение;
HR - уравновешивающая противодействующая сила, воздействующая снаружи окружности центров отверстий под болты.
Общую торцевую гидростатическую силу вычисляют по формуле
H' = 0,785(C - d)2p, (Л.2)
где C - диаметр окружности центров отверстий под болты, мм;
d - диаметр отверстий под болты, мм;
p - расчетное давление.
Сжимающую нагрузку на уплотняющую прокладку, обеспечивающую плотное соединение, вычисляют по формуле

(Л.3)
где 2b" - эффективная контактная ширина уплотняющей прокладки под давлением, мм;
G' - диаметр в месте реакции уплотняющей прокладки на сжимающую нагрузку, мм;
m - коэффициент уплотняющей прокладки.
Эффективная контактная ширина уплотняющей прокладки под давлением должна быть равной 5 мм.
Диаметр в месте реакции уплотняющей прокладки на сжимающую нагрузку вычисляют по формуле
G' = C - (d + 2b"). (Л.4)
Коэффициент уплотняющей прокладки для мягкой резины, не армированной тканью или асбестом, равен 1.
Уравновешивающую противодействующую силу, воздействующую снаружи окружности центров отверстий под болты, вычисляют по формуле

(Л.5)
где HD - торцевая гидростатическая сила, воздействующая на внутреннюю поверхность фланца, т.е. сила, передающаяся через соединение на фланец;
hD - расстояние по радиусу от окружности центров отверстий под болты до окружности, на которое воздействует торцевая гидростатическая сила, воздействующая на внутреннюю поверхность фланца;

- торцевая гидростатическая сила, вызванная давлением на опорную поверхность фланца;

- расстояние по радиусу от окружности центров отверстий под болты до окружности, на которое воздействует торцевая гидростатическая сила, вызванная давлением на опорную поверхность фланца;

- расстояние по радиусу от окружности центров отверстий под болты до окружности, на которое воздействует сжимающая нагрузка на уплотняющую прокладку;
hR - расстояние по радиусу от окружности центров отверстий под болты до окружности, на которое воздействует уравновешивающая противодействующая сила, воздействующая снаружи окружности центров отверстий под болты.
Торцевую гидростатическую силу, воздействующую на внутреннюю поверхность фланца, вычисляют по формуле
HD = 0,785B2p, (Л.6)
где B - внутренний диаметр фланца, мм.
| | ИС МЕГАНОРМ: примечание. Текст дан в соответствии с официальным текстом документа. | |
Расстояние по радиусу от окружности центров отверстий под болты до окружности, на которое воздействует торцевая гидростатическая сила, воздействующая на внутреннюю поверхность фланца, вычисляют по формуле
hD = R + 0,5g1, (Л.7)
где R - ;
g1 - толщина воротника фланца с задней стороны фланца, мм.
R вычисляют по формуле

(Л.8)
Торцевую гидростатическую силу, вызванную давлением на опорную поверхность фланца, вычисляют по формуле

(Л.9)
Расстояние по радиусу от окружности центров отверстий под болты до окружности, на которое воздействует торцевая гидростатическая сила, вызванная давлением на опорную поверхность фланца, вычисляют по формуле

(Л.10)
Расстояние по радиусу от окружности центров отверстий под болты до окружности, на которое воздействует сжимающая нагрузка на уплотняющую прокладку, вычисляют по формуле

(Л.11)
Расстояние по радиусу от окружности центров отверстий под болты до окружности, на которое воздействует уравновешивающая противодействующая сила, воздействующая снаружи окружности центров отверстий под болты, вычисляют по формуле

(Л.12)
где Go - внешний диаметр уплотняющей прокладки или внешний диаметр фланца, в зависимости от того, что меньше, мм.
Л.4.2. Условия затяжки болтов
Минимальную болтовую нагрузку на гнездо уплотняющей прокладки Wm2 вычисляют по формуле

(Л.13)
где b' - относительная ширина гнезда уплотняющей прокладки для вычисления минимальных сдавливающих нагрузок при посадке, используя коэффициент y.
Коэффициент y вычисляют по формуле

(Л.14)
где

- основная ширина гнезда уплотняющей прокладки при начальной затяжке (симметрично распределенной относительно окружности центров отверстий под болты), мм.
Примечание.
Формула (Л.13) действительна только в отношении размеров, указанных в миллиметрах.
Основную ширину гнезда уплотняющей прокладки при начальной затяжке вычисляют по формуле

(Л.15)
Минимальная площадь болта Am должна определяться для Wm1 или Wm2, используя номинальное болтовое напряжение, при температуре, соответствующей обоим условиям, т.е. Am равно Am1 или Am2 в зависимости от того, какое из значений больше.
Минимальную площадь болта для рабочих условий Am1 вычисляют по формуле

(Л.16)
где S
b - номинальное расчетное напряжение болта при расчетной температуре (см.
таблицу Л.1).
Минимальную площадь болта для гнезда уплотняющей прокладки Am2 вычисляют по формуле

(Л.17)
где S
a - номинальное расчетное напряжение болта при температуре окружающей среды (см.
таблицу Л.1).
Действительная площадь болта Ab должна быть не меньше Am.
Л.5. Расчет фланца
Толщину фланца t, мм, вычисляют по формуле

(Л.18)
где M вычисляют по формуле
M = HR·hR. (Л.19)
SCSM вычисляют по формуле:

(Л.20)
Л.6. Болтовое соединение
Шаг болтов Ste, мм, вычисляют по формуле

(Л.21)
где db - диаметр болта, мм.
(справочное)
ОПОРЫ
М.1. Общие положения
Особенное внимание должно быть уделено проектированию опор для напорных и безнапорных емкостей из армированных пластмасс, так, чтобы исключались нагрузки в месте соприкосновения емкости и опоры. Опоры должны быть спроектированы с учетом изменения температуры и не должны мешать свободному расширению и сужению. Должно учитываться относительно большое тепловое расширение неметаллических материалов.
Если в опорах применяется сталь, то конструкция должна проверяться на напряжения в стеклокомпозите, вызванные из-за ограничений в тепловом расширении/сужении, если расчетная температура выше 60 °C или ниже 0 °C.
Напорные или безнапорные емкости, снабженные мешалками, должны иметь опоры, рассчитанные с коэффициентом усиления нагрузки, равным 1,25.
Примечание. Отдельного рассмотрения требуют напорные и безнапорные емкости подземного расположения.
М.2. Вертикальные напорные и безнапорные емкости
М.2.1. Конструкция с плоским дном
Поверхность плоского дна емкости должна полностью находиться на опоре, за исключением мест, где должны быть размещены грязевики или заканчивается корень шва.
Пропуски в опоре должны быть такими, чтобы было достаточно места для ответвлений и угольников и чтобы высокие местные нагрузки не воздействовали на дополнительное армирование, которое используется для компенсации отверстий под патрубки.
| | ИС МЕГАНОРМ: примечание. В официальном тексте документа, видимо, допущена опечатка: Приложение F отсутствует. Возможно, имеется в виду Приложение Ф. | |
Должны быть предусмотрены крепления, если при наихудших условиях существует вероятность соскальзывания корпуса с основания; процедура проектирования подъемных креплений приведена в
Приложении F, а стандартные анкерные крепления показаны на рисунках М.1 -
М.2.
Рисунок М.1. Стандартное болтовое
анкерное крепление для безнапорных емкостей
с плоским дном (выступа или кольца)
Рисунок М.2. Стандартное заделанное
анкерное крепление для безнапорных емкостей
с плоским дном (выступа или кольца)
М.2.2. Конструкция с чашеобразным дном
М.2.2.1. Боковые опоры. Напорные или безнапорные емкости, опирающиеся на пол строения, должны иметь кольцевую балку или опираться на необходимое количество опорных башмаков.
В любом случае необходимо обеспечить дополнительное армирование, см. рисунок М.3. Чтобы избежать чрезмерных изгибных нагрузок, опорные башмаки должны располагаться как можно ближе к корпусу.
Поперечное сечение (вид А-А) кольцевой балки или выступа
Рисунок М.3. Боковые опоры для напорных
и безнапорных емкостей
М.2.2.2. Опоры под основание. Опоры должны соответствовать одному из способов.
а) На кольцо углового сечения, опирающееся на кольцевую балку или опорные стойки (см.
рисунок М.4). Кольцевая балка или опорные стойки должны иметь горизонтальную верхнюю опорную поверхность достаточной площади, чтобы избежать сжимающей избыточной нагрузки на ламинат между кольцом углового сечения и опорой.
--------------------------------
<*> Этот размер должен быть максимально небольшим, чтобы избежать передачи на корпус высоких изгибающих моментов.
Рисунок М.4. Боковые опоры для напорных
и безнапорных емкостей: кольцо с угловым профилем
Необходимо рассчитывать опрокидывающий момент и обеспечивать возможность крепления анкерными болтами.
б) На бордюр (см.
рисунок М.5). Бордюр должен быть прикреплен снаружи. Ламинат бордюра должен быть рассчитан и сконструирован в соответствии с
Приложением В. Если необходимо сделать отверстия в бордюре, то эти отверстия должны быть соответствующе армированы и соответствовать требованиям по компенсации (см.
К.2, Приложение К), чтобы была обеспечена стабильность напорной или безнапорной емкости. Соединение между корпусом и бордюром должно определяться в соответствии с
формулами (И.1) и
(И.2) (Приложение И), и конструкция бордюра должна использоваться как основа для этого расчета.
Рисунок М.5. Боковые опоры для напорных
и безнапорных емкостей: бордюр по внешней стороне емкости
М.3. Горизонтальные напорные и безнапорные емкости
М.3.1. Общие положения
Горизонтальные напорные или безнапорные емкости должны опираться на лотковые опоры или на желоб, длиной равный длине емкости, или подвешиваться на стропах. Должны быть приняты меры по обеспечению движения напорных или безнапорных емкостей относительно площади опоры.
Примечание. Необходимо убедиться, что корпус при воздействии нагрузки остается круглой формы в области опор.
М.3.2. Продольные опоры
Продольные несущие поверхности (см. рисунок М.6) должны иметь длину, равную параллельной длине напорной или безнапорной емкости, и ширину, которая вычисляется так, чтобы допустимая сжимающая нагрузка на ламинат не превышала допустимое значение.
Lp - параллельная длина
Рисунок М.6. Продольные опоры
Расстояние между наиболее удаленными краями опор должно быть не меньше, чем три четверти от диаметра корпуса.
М.3.3. Лотковые опоры
По возможности напорные и безнапорные емкости, опирающиеся на лотковые опоры (см. рисунок М.7), должны проектироваться с учетом того, что опор такого типа должно быть не более двух; допускается использование большего количества опор, однако такое применение должно подтверждаться опытом эксплуатации. Лотковые опоры должны быть выровнены относительно друг друга. Корпус должен армироваться кольцами жесткости в области лотковых опор при вероятности возникновения деформации корпуса в месте соприкосновения с опорами.
Примечание. Для корпусов с внутренним диаметром меньше чем 1500 мм, жесткость может быть обеспечена кривизной копруса.
Рисунок М.7. Лотковые опоры
Угол, включающий сектор емкости, которая лежит на опоре, должен быть не меньше чем 120°, и ширина лотковой опоры должна вычисляться так, чтобы опорное давление не превышало сжимающую нагрузку для ламината. Края лотковой поры должны быть закруглены как в продольном направлении, так и в направлении вдоль окружности.
Высокие местные нагрузки, смежные с точкой опоры, тепловые нагружения и возможность изгиба должны учитываться при проектировании.
М.3.4. Стропы
Все напорные и безнапорные емкости, подвешенные на стропах (см. рисунок М.8), должны быть армированы кольцами жесткости в местах прилегания строп. Ширина строп должна вычисляться и должна быть такой, чтобы опорное давление строп не превышало сжимающую нагрузку для ламината. При проектировании должны учитываться высокие местные нагрузки, возникающие в смежных точках с местами упора и возможностью прогиба. Метод подвешивания должен учитывать свободное движение под воздействием тепловой нагрузки или переменной нагрузки.
Примечание. Желательно, чтобы стропы прилегали не более чем к половине окружности корпуса.
Рисунок М.8. Стропы
(справочное)
Н.1. Общие положения
Узлы и фитинги должны соединяться таким образом, чтобы не допустить влияния местных сосредоточенных нагрузок на стенки напорных или безнапорных емкостей. Конструкция должна быть такой, чтобы местная деформация не превышала допустимую деформацию.
Н.2. Внутренние узлы и фитинги
Материал, используемый для внутренних фитингов, должен соответствовать рабочим условиям.
Примечание. В общем случае для футерованных емкостей материал должен быть таким же, что и материал термопластичной футеровки.
Фитинги, на которые воздействует нагрузка, и все фитинги со смесителями должны иметь соответствующую прочность. Должно быть обеспечено значительное армирование.
Примечание. В определенных случаях необходимо предусматривать металлическое армирование. Особое внимание требуется при проектировании для температур свыше 60 °C.
Локальные нагрузки от внутренних узлов или содержимого должны передаваться, где возможно, прямо на опоры и не перегружать стены и торцевые стенки напорных или безнапорных емкостей.
Н.3. Внешние узлы и фитинги
Если присоединены смесители, они должны иметь опоры:
а) либо независимые от напорной или безнапорной емкости
б) или встроенные опоры.
В случае встроенных опор, которые являются также ребрами жесткости для торцевых стенок, они должны быть спроектированы таким образом, чтобы иметь соответствующую прочность и жесткость, чтобы выполнять обе функции.
Примечание. Предпочтительно использовать опоры по а).
При необходимости напорные и безнапорные емкости должны иметь проушины для подъема или другие подходящие присоединения для подъема.
Н.4. Защитные экраны
Необходимо согласовывать наличие защитных экранов в тех областях напорных или безнапорных емкостей, которые могут подвергаться случайному механическому повреждению, наличие нижних люков или вокруг отверстий под патрубки. Если такие экраны установлены, они должны быть изготовлены из материала, стойкого к воздействию рабочей среды.
(справочное)
АНАЛИЗ МЕСТНЫХ НАГРУЗОК
П.1. Общие положения
В настоящем приложении приведены способы оценки последствий локальных нагрузок и моментов, воздействующих на корпус напорной емкости, которые могут возникнуть, например, из-за опор или из-за подъемных механизмов, или из-за подсоединенного трубопровода к патрубку. Везде, где это возможно, эти нагрузки должны быть сведены к минимуму путем тщательного расчета присоединений или трубопроводов.
П.2. Вычисление силы и результирующих моментов
| | ИС МЕГАНОРМ: примечание. В официальном тексте документа, видимо, допущена опечатка: Приложение G отсутствует. Возможно, имеется в виду Приложение Г. | |
В стенке корпуса должны вычисляться сила и результирующие моменты. Подходящий метод приведен в
Приложении G, а также должны быть учтены ограничения по геометрии, описанные в
У.2.2,
У.2.3 и
У.2.4.
Если для цилиндрического корпуса максимальная прикладываемая сила или момент не лежат в продольном направлении или в направлении вдоль окружности, то эти моменты или силы должны сводиться к этим направлениям и эффект от каждого отдельного компонента суммируется.
Примечание. Опубликованные экспериментальные работы по подтверждению настоящего анализа были проведены с металлическими емкостями, поэтому необходимо быть осторожным при применении стеклокомпозита.
П.3. Вычисление деформации ламината
Для корпуса, армированного полностью CSM или другим изотропичным материалом:
- деформацию в окружном направлении

вычисляют по формуле

(П.1)
где

- сила на единицу длины в окружном направлении, Н/мм;

- модуль растяжения ламината в окружном направлении, Н/мм
2;
t - толщина ламината, мм;

- результирующий момент на единицу длины в окружном направлении, Н·мм/мм;
- деформацию в продольном направлении

вычисляют по формуле

(П.2)
| | ИС МЕГАНОРМ: примечание. В официальном тексте документа, видимо, допущена опечатка: Приложение G отсутствует. Возможно, имеется в виду Приложение Г. | |
где N
x - сила на единицу окружности в продольном направлении (вычисляется в соответствии с
Приложением G), Н/мм;
ETx - модуль растяжения ламината в продольном направлении, Н/мм2;
t - толщина ламината, мм;
Mx - результирующий момент на единицу окружности в продольном направлении, Н·мм/мм.
Для ламината корпуса, состоящего из слоев с разными характеристиками, например, армированными CSM и WR, необходимо учитывать расположение разных слоев в разрезе ламината (см. рисунок П.1).
Рисунок П.1. n слой балки из ламината
Деформацию в окружном направлении вычисляют по формуле

(П.3)

- жесткость на изгиб ламината в окружном направлении, Н/мм
2;

- модуль сцепления ламината в окружном направлении, Н/мм
2.
Деформацию в продольном направлении

вычисляют по формуле

(П.4)
где EFx - жесткость на изгиб ламината в продольном направлении, Н/мм2;
ECx - модуль сцепления ламината в продольном направлении, Н/мм2.
Примечание. В
формулах (П.1) - (П.4) эффект Пуассона должен игнорироваться.
Модуль растяжения ламината ET, Н/мм2, вычисляют по формуле

(П.5)
где n - количество слоев ламината;
Ei - модуль Юнга в i-м слое, Н/мм2;
hi - толщина i-го слоя, мм.
Модуль сцепления ламината EC, Н/мм2, вычисляют по формуле

(П.6)
где Zi - толщина до i-го слоя от средней плоскости ламината, мм.
Модуль сцепления ламината EF, Н/мм2, вычисляют по формуле

(П.7)
| | ИС МЕГАНОРМ: примечание. В официальном тексте документа, видимо, допущена опечатка: таблица 5 отсутствует. | |
Значения для модулей Юнга отдельных слоев должны быть выведены из значений, приведенных в таблице 5.
Для оценки приемлемости деформаций корпуса, полученных из
формул (П.1) -
(П.4), они должны быть добавлены к деформациям, вызванным другими нагрузками, например, от давления и собственного веса (см.
У.2.2.2.4). Эти полные деформации должны сравниваться с допустимой деформацией, полученной в
9.2.
В случае намотки непрерывных ровингов под углом

к оси напорной или безнапорной емкости, значения модуля в направлении вдоль окружности и продольного модуля для отдельных слоев должны получаться по
рисунку А.3.
П.4. Дополнительное армирование
Если в результате вычислений в
Л.3 и
Л.4 деформация превышает допустимую, должно быть применено дополнительное армирование в области, где эта деформация превышает допустимую. Это дополнительное армирование должно перемежаться с основным ламинатом корпуса.
Дальнейшие вычисления должны выполняться, чтобы убедиться, что деформация находится в допустимых пределах, в месте приложения местной нагрузки и в точке, где заканчивается дополнительное армирование.
Если дополнительное армирование требуется в связи с внешней нагрузкой на патрубок, площадь армирования должна быть не менее указанной в
К.2.4.
(справочное)
ПРИМЕРЫ РЕШЕНИЯ РАСЧЕТНЫХ ХАРАКТЕРИСТИК
Р.1. Общие положения
Расчетный метод в настоящем стандарте, основанный на нагрузках, подходит для листовых конструкций. Правильно примененный метод подтверждает, что каждый слой композита несет часть общей нагрузки пропорционально своей прочности, и повышенные деформации, которые могут привести к местному расслоению и последующему выходу из строя, не могут произойти в ламинате.
Результаты большого количества испытаний, проведенных на композитах, армированных стекловолокном, показали, что полученные значения удельного предела прочности при растяжении и удельного модуля упругости при растяжении пропорциональны массе армирующего стекла, содержащегося в слое ламината. Для каждого из этих свойств может быть использовано единственное значение для всего диапазона содержания стекла, обычно используемого для каждого типа армирования (см.
таблицу 5.1), и проектные расчеты значительно упрощаются.
Толщина слоя ламината также контролируется по заданной массе стекла и содержанию стекла и изменяется незначительно, причиной чего является технология производства. Толщины слоев, исходя из содержимого и массы, могут быть получены по
рисунку Б.5.
Ни в одном примере не включен в расчет конструкции/толщины химический барьер.
Р.2. Расчет корпуса и боковых стенок (внутреннее давление)
Р.2.1. Критерии расчета
Предположим, что внутренний диаметр напорной емкости составляет 1750 мм и общее рабочее давление 0,2 МПа (0,2 Н/мм2).
По
формуле (В.1) (Приложение В) максимальная окружная единичная нагрузка составит
Предположим, что максимальная продольная единичная нагрузка Qx не превышает 175 Н/мм, поэтому расчет ламината, чтобы выдержать эту нагрузку, будет удовлетворительным.
Используя
формулу (Б.1) (Приложение Б), ламинат рассчитан таким образом, чтобы расчетная прочность его была не меньше, чем это вычисленное значение

.
Если напорная емкость полностью изготовлена из смолы и CSM, расчетная нагрузка на слой должна определяться в соответствии с
А.2 (Приложение А). Таким образом:
а) Определить общий расчетный коэффициент K (см.
А.2, Приложение А) при условии, что k
1 = 1,5 (метод производства - ручная выкладка), k
2 = 2,0, k
3 = 1,0 (предполагается температура 40 °C при температуре тепловой деформации смолы 80 °C или выше), k
4 = 1,1 (предполагается периодическое заполнение и опустошение), k
5 = 1,1 (предполагаемое горячее постотверждение).
Отсюда
K = 3,0·1,5·2,0·1,0·1,1·1,1 = 10,89;
б) Определить предельно допустимую удельную нагрузку u
L (см.
А.3, Приложение А), при условии, что используется не фурановая смола
в) Определить максимальную допустимую деформацию

для слоев ламината (см.
А.4, Приложение А).
Предположим, что растяжение до разрушения смолы составляет 3%. Тогда
Т.к. 0,3% > 0,2%, максимальная допустимая деформация принимает значение

;
г) Определить предельно допустимую единичную нагрузку при растяжении u
S (см.
А.5, Приложение А)
uS = 14000·0,2·10-2 = 28,0 Н·м2/мм·кг;
д) Определить расчетную единичную нагрузку u
Z (см.
А.6, Приложение А).
Если uL меньше uS, значение uL принимается для расчета, то есть расчет ограничен по нагрузке.
Примечание. Расчет, ограниченный по деформации, происходит, когда:
1) выбрана сравнительно хрупкая смола или
2) метод производства и рабочие условия ведут к низкому значению общего расчетного коэффициента K.
По
формуле (А.7) (Приложение А), деформация при воздействии предельно допустимой единичной нагрузки

для каждого слоя CSM будет составлять
и расчетная единичная нагрузка uZ при этой деформации будет
uZ = uL = 18,36 Н·м2/мм·кг;
е) Общая доля армирования в ламинате, содержащего только CSM, есть произведение m
z·n
z, может быть определена через
формулу (Б.1) (Приложение Б)
Q = uZ mz·nz,
отсюда
Необходимая общая масса стекла 9,53 кг/м2 и распределение его выбирается в соответствии с опытом производителя.
Таким образом, конструкция ламината будет следующая (см.
рисунок Б.1, Приложение Б):
2 слоя 0,3 кг/м2 (один на каждой поверхности) = 0,6 кг/м2
15 слоев 0,6 кг/м2 = 9,0 кг/м2
Итого = 9,6 кг/м2.
Также допустима конструкция (см.
рисунок Б.2, Приложение Б):
2 слоя 0,3 кг/м2 (один на каждой поверхности) = 0,6 кг/м2
9 слоев 0,6 кг/м2 = 5,4 кг/м2
8 слоев 0,45 кг/м2 = 3,6 кг/м2
Итого = 9,6 кг/м2.
Р.2.3. Конструкция с CSM и WR
Р.2.3.1. Полная процедура
На практике конструкции с CSM с таким большим числом слоев не применяется, и конструкция напорных емкостей упрощается путем включения слоев из WR. Типичная конструкция такого типа изображена на
рисунке Б.3 (Приложение Б), где чередуются слои WR, с волокнами, выровненными по направлению максимальной нагрузки, и CSM с массой на единицу площади 0,45 кг/м
2, с внешним слоем, армированным CSM массой на единицу площади 0,3 кг/м
2, и внутренним слоем, армированным CSM массой на единицу площади 1,2 кг/м
2. Необходимо вычислить требуемое количество слоев.
а) Определить общий расчетный коэффициент K (см.
А.2, Приложение А).
б) Определить предельно допустимую единичную нагрузку u
L (см.
А.3, Приложение А).
Для слоев из WR при условии, что используется не фурановая смола
в) Определить максимальную допустимую деформацию

для слоев ламината (см.
А.4, Приложение А).
Предположим, что растяжение до разрушения смолы составляет 3%, тогда

ограничивается 0,2% (см.
перечисление в) Р.2.2).
г) Определить предельно допустимую единичную нагрузку при растяжении u
S (см.
А.5, Приложение А).
Для слоев из WR
uS = 16000·0,2·10-2 = 32,0 Н·м2/мм·кг.
д) Определить расчетную единичную нагрузку u
Z (см.
А.6, Приложение А).
Для WR
Чтобы избежать избыточной нагрузки, для слоев из CSM в ламинате минимальная деформация

должна быть ограничена 0,13%. Таким образом, расчетные единичные нагрузки, соответствующие степени деформации, должны быть:
для CSM
uZ = uL = 18,36 Н·м2/мм·кг;
для WR
е) Теперь может быть определена конструкция ламината по
формуле (Б.1) (Приложение Б).
Если необходимо количество слоев ровингов n, тогда количество слоев CSM массой на единицу площади 0,45 кг/м2 будет (n - 1). В дополнение применяется CSM массой на единицу площади 1,5 кг/м2, разделенный на две части, одна из которой массой на единицу площади 0,3 кг/м2 находится в наружном слое ламината, а вторая, массой на единицу площади 1,2 кг/м2 - во внутреннем слое ламината.
20,8·0,8n + 18,36·0,45(n - 1) + 18,36·15 >= 175
n слоев WR | | (n - 1) слоев CSM массой на единицу площади 0,45 кг/м2 | | поверхностные слои CSM массой на единицу площади 1,5 кг/м2. |
При решении находим минимальное значение n, удовлетворяющее условию, - 6,26.
Т.к. число, обозначающее количество слоев, должно быть натуральным, принимаем n, равное 7. Таким образом, ламинат будет включать в себя (см.
рисунок Б.3, Приложение Б):
химический барьер внутренняя поверхность
CSM массой на единицу площади 1,2 кг/м2
CSM массой на единицу площади 0,8 кг/м2 \
CSM массой на единицу площади 0,45 кг/м2 / повторяется шесть раз
WR массой на единицу площади 1,2 кг/м2
CSM массой на единицу площади 0,3 кг/м2
слой смолы с тканью наружняя поверхность.
ж) Несмотря на то, что значение n очень близко к 6, возможно добавить еще слой массой на единицу площади 0,45 кг/м
2 под гелькоут, чтобы уменьшить вычисленное значение n ниже 6. Это повлияет на сохранение одного слоя WR массой на единицу площади 0,8 кг/м
2. Тогда по
формуле (Б.1) (Приложение Б)
20,8·0,8n + 18,36·0,45(n - 1) + 18,36·1,95 >= 175
n слоев WR | | (n - 1) слоев CSM массой на единицу площади 0,45 кг/м2 | | поверхностные слои CSM массой на единицу площади 1,95 кг/м2. |
При решении находим минимальное значение n, удовлетворяющее условию - 5,92, и соответствующая конструкция ламината будет иметь следующий вид:
химический барьер внутренняя поверхность
CSM массой на единицу площади 1,65 кг/м2
CSM массой на единицу площади 0,8 кг/м2 \
CSM массой на единицу площади 0,45 кг/м2 / повторяется шесть раз
WR массой на единицу площади 0,8 кг/м2
CSM массой на единицу площади 0,3 кг/м2
слой смолы с тканью наружняя поверхность.
Р.2.3.2. Сокращенная процедура
Можно сократить процедуру, приведенную в
Р.2.3.1, если сначала выбирается минимальная деформация.
Максимальная допустимая деформация для смолы

.
Допустимая деформация для ламината, армированного CSM, равна

.
--------------------------------
| | ИС МЕГАНОРМ: примечание. В официальном тексте документа, видимо, допущена опечатка: таблица 5 отсутствует. Возможно, имеется в виду таблица 5.3. | |
<a> Максимальный предел прочности при растяжении (см.
таблицу 5).
Допустимая деформация для ламината, армированного WR, равна

.
Максимальная допустимая деформация

.
Минимальная деформация, определяемая при допустимых нагрузках,

= наименьшая из вышеприведенных деформаций.
Расчетная нагрузка будет
Пример
Коэффициент K = 10,89.
Определить допустимые деформации:
а) Допустимая деформация смолы = 0,1·3% = 0,3%.
б) Допустимая деформация для CSM = 200/(14000·10,89·10-2) = 0,13%.
в) Допустимая деформация для WR = 250/(1600·10,89·10-2) = 0,14%.
Наименьшая деформация - 0,13%; максимальная допустимая деформация - 0,2%.
Слои из CSM ограничивают и

.
Определить допустимые нагрузки:
1) Для слоев из CSM = 0,13·14000/100 = 18,2 Н/мм.
2) Для слоев из WR = 0,13·16000/100 = 20,8 Н/мм.
Р.2.4. Расчет толщины
Допустим, что содержание стекла составляет: 30% CSM и 55% WR со смолой с относительной плотностью 1,1. По
рисунку Б.5 (Приложение Б) ожидаемая толщина таких конструкций будет:
CSM - 2,5 мм·кг/м2 стекла.
WR - 1,1 мм·кг/м2 стекла.
Конструкции, армированной только CSM, которая приведена в примере
Р.2.2, требуется стекло массой на единицу площади в общей сложности 9,6 кг/м
2. Общая толщина этого ламината, независимо от описанной конструкции, будет
Смешанная конструкция, приведенная в примере
Р.2.3, может быть описана следующим образом:
Случай 1 (см.
перечисление е) Р.2.3): CSM массой на единицу площади 1,5 кг/м
2, шесть слоев CSM массой 0,45 кг/м
2, семь слоев WR массой на единицу площади 0,8 кг/м
2.
Суммарно: 1,5 + 6·0,45 = 4,2 кг/м2.
CSM имеет толщину 2,5·4,2 = 10,5 мм.
| | ИС МЕГАНОРМ: примечание. Текст дан в соответствии с официальным текстом документа. | |
Семь слоев WR имеют толщину 1,1·0,8·7 = 6,2.
Общая расчетная толщина ламината (см.
рисунок Б.3, Приложение Б) будет 16,7 мм.
Случай 2 (см.
перечисление ж) Р.2.3). Смешанная конструкция, в которой используют шесть слоев WR: CSM массой на единицу площади 1,95 кг/м
2, пять слоев CSM массой 0,45 кг/м
2, шесть слоев WR массой на единицу площади 0,8 кг/м
2.
Суммарно: 1,95 + 5·0,45 = 4,2 кг/м2.
CSM имеет толщину 2,5·4,2 = 10,5 мм.
Шесть слоев WR имеют толщину 1,1·0,8·6 = 5,3.
Общая расчетная толщина ламината (см.
рисунок Б.3, Приложение Б) будет 15,8 мм.
Р.2.5. Расчет днищ
Если применяются неглубокие днища торосферической формы, типичные значения могут составлять 0,20 для hi/Di, и 0,10 для ri/Di.
Для днищ такой формы значение коэффициента формы для выпуклых днищ K
s, используемое при расчете, вычисляют по
таблице Ж.1 (Приложение Ж), и имеет диапазон от 2,25 (для толстого днища) до 2,95 (для тонкого днища).
| | ИС МЕГАНОРМ: примечание. В официальном тексте документа, видимо, допущена опечатка: формула (Ж.5) приведена в пункте Ж.2.2, а не в пункте Ж.3.2. | |
Предположим, что начальное значение для коэффициента формы для выпуклых днищ K
s, например, равно 2,5. По
формуле (Ж.5) (Приложение Ж), приведенной в Ж.3.2 (Приложение Ж), определим единичную нагрузку, подставляемую в
формулу (Б.1)
Q = 0,5·0,2·1750·2,5 = 437,5 Н/мм.
Если в конструкции ламината днища используется CSM и WR, то расчет совпадает с расчетом для корпуса напорной емкости по
формуле (Б.1) (Приложение Б)
20,8·0,8n + 18,36·0,45(n - 1) + 18,36·1,5 >= 437,5
WR | | CSM массой на единицу площади 0,45 кг/м2 | | CSM массой на единицу площади 1,5 кг/м2. |
Минимальное значение n, удовлетворяющее этим условиям, равно 16,8. Таким образом, потребуется 17 слоев ровинга.
Ламинат такой конструкции будет иметь общую толщину
1,5·2,5 + 17·1,1·0,8 + 16·0,45·2,5 = 36,71
поверхностный CSM WR основной CSM.
Для действительной толщины ламината 36,71 мм отношение
t/Di = 36,71/1750 = 0,021.
По
таблице Ж.1 значение коэффициента формы для выпуклых днищ K
s, соответствующее этому отношению толщина/диаметр, должно быть 2,63.
Повторяя процедуру, используя это значение коэффициента формы для выпуклых днищ K
s, получаем единичную нагрузку Q = 460,3 Н/мм, и конструкция ламината (получаемая решением
формулы (Б.1) (Приложение Б) с этим значением единичной нагрузки Q) будет содержать 18 слоев ровинга.
Этот ламинат имеет общую толщину
1,5·2,5 + 18·1,1·0,8 + 17·0,45·2,5 = 38,72 мм.
Это новое значение толщины дает новое значение
t/Di = 38,72/1750 = 0,022.
Таким образом, немного отличное значение коэффициента формы для выпуклых днищ Ks = 2,62 и пересмотренное значение единичной нагрузки Q = 458,5 Н/мм, так что конструкция теперь правильно определена, а ламинат состоит из:
армированный гелькоут внутренняя поверхность
CSM массой на единицу площади 1,2 кг/м2
CSM массой на единицу площади 0,45 кг/м2 \
WR массой на единицу площади 0,8 кг/м2 / повторяется 17 раз
CSM массой на единицу площади 0,3 кг/м2
слой смолы с тканью наружная поверхность
с общей толщиной 38,72 мм.
Если рассчитываются куполообразные днища, армированные WR (или другим пространственно ориентированным армирующим наполнителем), необходимо правильно задать направление волокон в процессе выкладки днищ, что обеспечивает расчетную прочность.
Этого легче добиться путем выкладки ровинга секторами по окружности так, чтобы радиальные или окружные направления основы или утка в области изгиба пересекались в смежных слоях под таким углом, чтобы достичь одинаковой прочности во всех направлениях через вершину днища.
Есть альтернатива, чтобы избежать проблем, обусловленных свойствами, зависящими от направления, днища могут быть армированы только CSM. Из-за низкой допустимой нагрузки для CSM днища должны быть толще, чем их аналог, армированный CSM/WR, и расчет должен быть следующим.
Предположим, что начальное значение коэффициента формы для выпуклых днищ Ks составляет 2,4.
Q = 0,5·0,2·1750·2,4 = 420 Н/мм.
По упрощенной
формуле (Б.1) для ламината, армированного только CSM
Предположим, что содержание стекла для слоев CSM составляет 30% от этой массы стекла. Это дает толщину ламината 22,88·2,5 = 57,2 мм.
Для ламината этой толщины
t/Di = 57,2/1750 = 0,0327.
Для ламината толщиной 57,2 мм отношение t/Di равно 0,0327, а значение коэффициента формы для выпуклых днищ Ks равно 2,45, отсюда для изготовления днища с толщиной ламината, равной 58,5 мм (которая в 1,5 раза больше толщины ламината, армированного ровингом), потребуется 23,4 кг/м2 стекла.
Однако более экономный вариант ламината может быть рассчитан, если будут применяться более глубокие днища. Если, например, hi/Di принимает значение 0,25 и ri/Di принимает значение 0,15, соответствующее значение коэффициента формы для выпуклых днищ Ks будет около 1,78. При этом значении Ks значение нагрузки будет
Q = 0,5·0,2·1750·1,78 = 311,5 Н/мм.
Используя тот же тип конструкции ламината и подставляя новое значение единичной нагрузки Q в
формулу (Б.1) (Приложение Б), соответствующее значение n принимает значение 11,7, так что количество слоев ровинга будет 12.
Днище, содержащее это количество слоев, будет иметь общую толщину
1,5·2,5 + 12·1,1·0,80 + 11·0,45·2,5 = 26,68 мм.
Исходя из этой толщины, отношение t/Di будет очень близко к 0,015, так что коэффициент формы для выпуклых днищ Ks был выбран правильно, и дальнейшие вычисления в этом направлении не обязательны.
Р.3. Расчет корпуса (внешнее давление)
Р.3.1. Общие положения
Предположим, что цилиндрическая напорная емкость имеет внутренний диаметр 1500 мм и полезную длину (как показано на
рисунках В.1 -
В.3) 1200 мм, емкость должна выдерживать давление, равное 5·10
-2 МПа (Н/мм
2) в масштабе внешнего давления).
Корпус покрыт футеровочным слоем из химически стойкой полиэфирной смолы и предназначен для работы при номинальном постоянном давлении при температуре окружающего воздуха. Напорная емкость изготовлена ручной выкладкой, из смолы, имеющей температуру тепловой деформации свыше 80 °C, при условии постотверждения при повышенной температуре.
Изначально методика расчета аналогична методике расчета в
Р.2.
Р.3.2. Конструкция, армированная только CSM
Необходимо вычислить требуемое количество слоев.
а) Определить общий расчетный коэффициент K (см.
А.2, Приложение А) при условии, что k
1 = 1,5 (метод производства - ручная выкладка), k
2 = 1,2, k
3 = 1,0, k
4 = 1,1, k
5 = 1,1.
Отсюда
K = 3,0·1,5·1,2·1,0·1,1·1,1 = 6,54.
Несмотря на это, минимальное значение общего расчетного коэффициента K = 8 (см.
А.2, Приложение А).
б) Определить предельно допустимую единичную нагрузку u
L (см.
А.3, Приложение А)
в) Определить максимальную допустимую деформацию

для слоев ламината (см.
А.4, Приложение А).
Предположим, что растяжение до разрушения смолы составляет 2%, тогда

будет 0,2% для футеровочного слоя и для слоев армирующего наполнителя.
г) Определить предельно допустимую единичную нагрузку при растяжении u
S (см.
А.5, Приложение А)
uS = 14000·0,2·10-2 = 28,0 Н·м2/мм·кг.
д) Определить расчетную единичную нагрузку u
Z (см.
А.6, Приложение А).
В этом примере uL меньше uS, значение uL принимается как расчетная нагрузка uZ. Расчет, таким образом, ограничен по нагрузке.
е) Расчет цилиндрического корпуса (см.
В.3, Приложение В)
Максимальную окружную единичную нагрузку вычисляют по
формуле (В.1) (Приложение В):
Максимальная продольная единичная нагрузка
Qx = 40 Н/мм.
Примечание. Значение, приведенное в примере, принято условно. На практике, при вычислении этого значения должны учитываться нагрузки от опор для напорной емкости, ветровая и другие внешние нагрузки и вес содержимого при различных уровнях наполнения.
Т.к. Q
x больше

, значение Q
x используется в
формуле (Б.1) (Приложение Б), чтобы определить конструкцию ламината. Общую массу армирования вычисляют по
перечислению е) Р.2.2
Таким образом, общая масса стекла 1,6 кг/м
2 способна выдержать окружную и продольную нагрузки. Однако конечная толщина 1,6·2,5 = 4,0 мм меньше, чем допустимый минимум, который составляет 5,0 мм (см.
Приложение Б) и для которого требуется масса стекла 2 кг/м
2.
Два слоя CSM 0,3 кг/м2 (один на каждой поверхности) = 0,6 кг/м2
дополнительный слой CSM 1,4 кг/м2 = 1,4 кг/м2
Итого = 2,0 кг/м2.
Расчет, однако, не будет полным без проверочных расчетов на возможность прогиба под воздействием внешнего давления и осевой нагрузки.
ж) Определить толщину и общий модуль для предполагаемой конструкции ламината.
Сделаем такое же предположение, как в
Р.2.2, где содержимое стекла (30% для CSM), толщина на массу на единицу площади стекла будет 2,5 мм, как прежде. Так что общая толщина ламината составит 2,0·2,5 = 5,0 мм.
Общий модуль (см.
В.2.3, Приложение В)
XLAM = X1(m1·n1) = 14000·2 = 28000 Н/мм.
Модуль Юнга (см.
В.3.1, Приложение В):
з) Определить минимальную допустимую толщину ламината t
m, требуемую для того, чтобы избежать прогиба по
формулам (В.9) и
(В.11) (Приложение В). Также необходимо задать значение t.
Предположим, что значение t - самое большое вычисленное, например, для внутреннего давления или осевой нагрузки или требуемой минимальной толщины.
В этом случае предположим t = 5,0 мм (для минимально требуемой толщины).
Тогда
Do = Di + 2t = 1500 + 2·5 = 1510 мм.
Определить: какую формулу использовать, чтобы вычислить

и

.
который больше чем 5,0 мм.
Для обеспечения стабильности при воздействии внешнего давления, необходим, следовательно, более толстый ламинат, и процедура должна повторяться, пока расчетная толщина не сравняется или не будет меньше, чем предполагаемая толщина.
Путем проб была определена толщина, которая составляет 16,1 мм при D0 = 1532,2 мм.
Так как это меньше предполагаемой толщины, 16,1 мм должно обеспечить соответствующее сопротивление прогибам по окружности. Теперь необходимо проверить ламинат такой толщины на стабильность под воздействием предполагаемой продольной нагрузки в 40 Н/мм, используя
формулу (В.6) (Приложение В).
Для ламината толщиной 16,1 мм требуемая масса стекла будет составлять:

для 30% CSM к массе.
Для этого ламината XLAM = 6,44·14000 = 90160 Н/мм.
Из
формулы (В.6) (Приложение В) максимальная допустимая сжимающая единичная нагрузка составляет
Это больше, чем предполагаемая продольная нагрузка, которая составляет 40 Н/мм. Следовательно, толщина 16,1 мм с 30%-ным содержанием CSM имеет соответствующую стабильность при воздействии внешнего давления и осевой нагрузки.
Чтобы получить толщину 16,1 мм при массе стекла 6,44 кг/м2, ламинат должен быть:
два слоя CSM массой на единицу площади 0,3 кг/м2
(один на каждой поверхности) = 0,6 кг/м2
девять слоев CSM массой на единицу площади 0,6 кг/м2 = 5,4 кг/м2
один слой CSM массой на единицу площади 0,45 кг/м2 = 0,45 кг/м2
Итого = 6,45 кг/м2.
Примечание. Для ламината толщиной 5 мм, которая была определена при начальных вычислениях, максимальная допустимая продольная нагрузка будет составлять:
Это значение значительно меньше предполагаемой продольной нагрузки в 40 Н/мм.
Все другие конструкции, имеющие общую массу стекла 6,44 кг/м2 и толщину 16,1 мм, также будут допустимы.
Напорные емкости могут быть пересчитаны при использовании одинакового соотношения стекло/смола.
Расстояние между ребрами жесткости уменьшим до 500 мм, произведем расчет по
формуле (В.11) (Приложение В). Предположим, что толщина 12 мм, когда D
o = 1500 + 2·12 = 1524 мм,
Это значение меньше, чем предполагаемое значение 12 мм, что удовлетворительно при дальнейшем испытании на разрушение при воздействии внешнего давления. По-прежнему необходимо проверить соответствие предполагаемой продольной нагрузки 40 Н/мм по
формуле (В.6) (Приложение В).
Требуемая масса стекла для ламината толщиной 12 мм, армированного CSM содержанием 30% к массе, составляет

,
XLAM = 4,8·14000 = 67200 Н/мм,
Это значение больше, чем требуемое значение 40 Н/мм.
Уменьшенное расстояние между опорами до 500 мм и толщиной ламината 12 мм будет достаточно для обеспечения устойчивости к прогибу в направлении вдоль окружности и продольному прогибу. Масса стекла для ламината уменьшена до 25%.
Соответствующая конструкция ламината будет следующей:
два слоя CSM массой на единицу площади 0,3 кг/м2
(один на каждой поверхности) = 0,6 кг/м2
семь слоев CSM массой на единицу площади 0,6 кг/м2 = 4,2 кг/м2
Итого = 4,8 кг/м2.
Р.3.3. Конструкция, армированная CSM и WR
Как и в
Р.2, для напорных емкостей может быть использована конструкция, армированная CSM и WR. Предположим, что общая конструкция емкости соответствует типу конструкции, приведенной на
рисунке Б.3 (Приложение Б) (где применяются альтернативные слои WR, волокна которого совпадают с направлением максимальной нагрузки, а также используется CSM массой на единицу площади 0,45 км/м
2, CSM массой на единицу площади 0,3 кг/м
2 - для армирования внешней поверхности и CSM массой на единицу площади 1,2 кг/м
2 - для армирования внутренней поверхности). Необходимо вычислить требуемое количество слоев.
а) Определить общий расчетный коэффициент K (см.
А.2, Приложение А).
Принять значения коэффициентов такими же, как для конструкции, армированной только CSM, т.е. K = 8,0 (см.
перечисление а) в Р.3.2).
б) Определить предельно допустимую единичную нагрузку u
L (см.
А.3, Приложение А).
Для слоев из WR
в) Определить максимальную допустимую деформацию

для слоев ламината (см.
А.4, Приложение А).
Предположим, что относительное удлинение до разрушения смолы составляет 2%, тогда

ограничивается 0,2%.
г) Определить предельно допустимую единичную нагрузку при растяжении u
S (см.
А.5, Приложение А).
Для слоев из WR
uS = 16000·0,2·10-2 = 32,0 Н·м2/мм·кг.
д) Определить расчетную единичную нагрузку u
Z (см.
А.6, Приложение А).
Так как оба типа слоя ограничены по нагрузке, определить растяжение для каждого слоя.
Для CSM
Для WR
Чтобы избежать избыточной нагрузки для слоев из CSM, принять значение растяжения для слоя из WR равным 0,178%.
Для WR

(на кг/м
2 стекла).
е) Максимальная окружная единичная нагрузка и максимальная продольная единичная нагрузка будут такими же, как в примере с конструкцией, армированной только CSM. Таким образом, такое же значение Q (= 40 Н/мм) используется в
формуле (Б.1) (Приложение Б), чтобы определить конструкцию ламината.
Если требуется n слоев ровингов, тогда количество слоев CSM массой на единицу площади 0,45 кг/м2 будет (n - 1). В дополнение применяется CSM массой на единицу площади 1,5 кг/м2, разделенный на две части, одна из которой массой на единицу площади 0,3 кг/м2 находится в наружном слое ламината, а вторая массой на единицу площади 1,2 кг/м2 - во внутреннем слое ламината.
Формула:
u1m1n1 28,48·0,8n n слоев WR | | + u2m2n2 + 25,0·0,45 (n - 1) (n - 1) слоев CSM массой на единицу площади 0,45 кг/м2 | | + u3m3n3 >= Q + 25,0·1,5 >= 40 поверхностные слои CSM массой на единицу площади 1,5 кг/м2. |
При решении находим минимальное значение n, удовлетворяющее условию - 1,06. Таким образом, принимаем n равным 2. Однако расчет не закончен без проверки возможности прогиба.
ж) Определить толщину и общий модуль предполагаемой конструкции ламината.
Делаем такое же предположение, как в
Р.2, относительно содержимого стекла (30% для CSM и 55% для WR). Толщина ламината будет
CSM (1,5 + 1·0,45)·2,5 = 4,88 мм
WR 2·0,8·1,1 = 1,76 мм
Итого = 6,64 мм.
XLAM
= X1m1n1 = 16000·0,8·2 WR | | + X2m2n2 + 14000·0,45·1 CSM массой на единицу площади 0,45 кг/м2 | | + X3m3n3 + 14000·1,5 поверхностные слои CSM. |
Модуль композита (см.
В.2.1)
Предположим, что значение толщины равно самому большому из расчетных (см.
перечисление з) Р.3.2). В этом случае t = 6,64 мм,
Do = Di + 2t = 1500 + 2·6,64 = 1513,3 мм,
Так как это значение больше предполагаемого, необходимо принять новое значение. Поскольку изменение значения толщины повлияет на значение ELAM, конструкция должна быть выбрана исходя из ранее рассчитанного значения.
Предположим, что конструкция соответствует типу, приведенному на
рисунке Б.3 (Приложение Б). Пропорция WR и, следовательно, значение E
LAM увеличится, при этом уменьшится требуемая толщина. Занижение толщины может иметь противоположный эффект.
Предположим, что значение толщины равно 13,5 мм.
Количество слоев WR определяется повторно, при этом значение содержания стекла не меняется.
1,1·0,8·n + 2,5·0,45(n - 1) + 2,5·1,5 = 13,5.
Отсюда значение n = 5,42.
Т.к. это значение близко к пяти, в конструкцию может быть включен дополнительный слой CSM массой на единицу площади 0,45 кг/м2, и конструкция будет выглядеть:
армированный гелькоут
CSM массой на единицу площади 1,2 кг/м2
WR массой на единицу площади 0,8 кг/м2
CSM массой на единицу площади 0,45 кг/м2 \ повторяется 4 раза
WR массой на единицу площади 0,8 кг/м2 /
CSM массой на единицу площади 0,45 кг/м2
CSM массой на единицу площади 0,3 кг/м2,
t = 1,1·0,8·5,0 + 2,5·0,45·4 + 2,5·1,95 = 13,77.
XLAM = X1m1n1 + X2m2n2 + X3m3n3 = 16000·0,8·5 +
+ 14000·0,45·4 + 14000·1,95 = 116500 Н/мм.
Композитный модуль (см.
В.3.1)
Пересчитать tmin (Do = 1527,6 мм)
Это значение меньше, но близко к предполагаемой толщине, которая является минимально требуемой, чтобы выдерживать внешнее давление.
Теперь необходимо проверить на соответствие продольной сжимающей нагрузке 40 Н/мм по
формуле (В.6) (Приложение В)
которая больше, чем 40 Н/мм. Следовательно, предполагаемая толщина ламината толщиной 13,77 мм удовлетворительна.
Напорная емкость может быть спроектирована по-другому.
Если расстояние между ребрами жесткости уменьшить до 500 мм, то из
формулы (В.11) и принимая значение t = 6,64 мм как начальное значение будет получена толщина 9,74 мм.
Это значение толщины используется для того, чтобы предположить новую конструкцию:
CSM массой на единицу площади 1,5 кг/м2
CSM массой на единицу площади 0,45 кг/м2 \ повторяется 3 раза
WR массой на единицу площади 0,8 кг/м2 /
CSM массой на единицу площади 0,45 кг/м2
CSM массой на единицу площади 0,3 кг/м2,
которая имеет следующие свойства: t = 9,76 мм, XLAM = 78300 Н/мм, ELAM = 8023 Н/мм2.
Дальнейшие вычисления по
формуле (В.11) (Приложение В), используя новые значения, дают толщину 9,72 мм, которая меньше, но близка к предполагаемой толщине.
Предполагаемая конструкция достаточна, чтобы выдержать внешнее давление, но ее необходимо проверить на соответствие максимальной допустимой сжимающей единичной нагрузке, используя
формулу (В.6) (Приложение В):
Это значение больше, чем требуемое значение 40 Н/мм, поэтому ламинат должен также выдерживать продольную сжимающую нагрузку.
По проекту требуется, чтобы были включены два ребра жесткости, симметрично расположенные вдоль напорной емкости и отстоящие друг от друга на расстоянии 500 мм. Площадь ребер жесткости должна определяться в соответствии с
формулой (В.12) (Приложение В).
На практике, если напорная емкость устанавливается в горизонтальном положении, то ребра жесткости могут понадобиться в районе, где емкость будет опираться на подставки, и это может определить эффективную длину между ребрами жесткости, используемую при расчетах.
Р.4. Конструкция, изготовленная непрерывной намоткой и армированная матом из рубленого стекловолокна
Р.4.1. Рассмотрим случаи двух альтернативных форм конструкции емкости, изготовленных непрерывной намоткой, чтобы армировать внутренний подкладочный слой химического барьера из CSM (считается, что химический барьер не вносит вклад в прочность ламината).
Для упрощения расчетов в примере делаются следующие предположения:
Максимальная окружная единичная нагрузка QФ = 80 Н/мм.
Максимальная продольная единичная нагрузка Qx = 40 Н/мм плюс 10 Н/мм - сжимающая нагрузка.
Общий расчетный коэффициент K = 10.
Произвести следующие вычисления.
а) Деформация. Максимально допустимые деформации:
Значение деформации

.
Значение деформации непрерывной элементарной нити

.
Расчетная деформация

.
б) Тип конструкции. Слои CSM массой на единицу площади 0,6 кг/м2, применяемые для химического барьера, дополнительно усиливают однонаправленной непрерывной нитью, нанесенной намоткой под углом +/- 55° (случай i) или под углом +/- 80° (случай ii).
в) Допустимые нагрузки:
1) Слой CSM массой на единицу площади 0,6 кг/м2:
U = 14000·0,00143·0,6 = 12,01 Н/мм;
2) Однонаправленная элементарная нить на кг/м
2 (см.
А.7, Приложение А).
Расчетная единичная нагрузка в окружном направлении по
формуле (А.8) (Приложение А)
Расчетная единичная нагрузка в продольном направлении по
формуле (А.9) (Приложение А)
uzx = 4500·0,00143·0,5 = 3,22 Н/мм.
В случае ii) (угол намотки +/- 80°):
Расчетная единичная нагрузка в окружном направлении по
формуле (А.8) (Приложение А)
Расчетная единичная нагрузка в продольном направлении по
формуле (А.9) (Приложение А)
uzx = 4400·0,00143·0 = 0.
г) Предполагаемая конструкция (за химическим барьером)
1) Два слоя CSM массой на единицу площади 0,6 кг/м2; 11 кг/м2 однонаправленной элементарной нити и намотанной под углом +/- 55°.
Допустимые нагрузки:
Расчетная окружная нагрузка
ULAMФ = 2·12,01 + 11·6,79 = 98,71 Н/мм (> 80).
Расчетная продольная нагрузка
ULAMx = 2·12,01 + 11·3,22 = 59,44 Н/мм
(> 40, (40 - 10) - 10).
Следовательно, предполагаемая конструкция удовлетворяет условию.
2) Два слоя CSM массой на единицу площади 0,6 кг/м2; 3 кг/м2 однонаправленной элементарной нити и намотанной под углом +/- 80°.
Допустимые нагрузки:
Расчетная окружная нагрузка
ULAMФ = 2·12,01 + 3·37,18 = 135,56 Н/мм (> 80).
Расчетная продольная нагрузка
ULAMx = 2·12,01 + 3·0 = 24,02 Н/мм (< 40, (40 - 10) - 10),
поэтому требуется большая осевая прочность.
Пересмотрим конструкцию:
четыре слоя CSM массой на единицу площади 0,6 кг/м2
3 кг/м2 однонаправленной элементарной нити и намотанной под углом +/- 80°.
Допустимые нагрузки:
Расчетная окружная нагрузка
ULAMФ = 4·12,01 + 3·37,18 = 159,58 Н/мм (> 80).
Расчетная продольная нагрузка
ULAMx = 4·12,01 + 3·0 = 48,04 Н/мм (> 40, (40 - 10) - 10).
Это удовлетворяет требованиям, но угол намотки больше 75°, и необходимо проверить, не превышает ли продольная деформация 0,1% (см.
А.4, Приложение А).
XLAMx = 4·0,6·14000 + 3,0·1,0·4400 =
= 33600 + 13200 = 46800 Н/мм.
Продольная деформация

,
что удовлетворяет условию.
Если окружная и продольная нагрузки воздействуют одновременно, тогда из
А.4 (Приложение А): максимально допустимые нагрузки могут быть меньше, чем предшествующие значения, вычисленные для отдельных нагрузок.
Это необходимо проверить с помощью двухосной расчетной огибающей четырех четвертей, которая может быть построена по значениям ULAMФ и ULAMx (положительное для растяжения и отрицательное для сжатия).
Если QФ > 0 и Qx > 0 (т.е. оба работают на растяжение),
тогда UФ = ULAMФ и Ux = ULAMx.
Если QФ < 0 и Qx < 0 (т.е. оба работают на сжатие),
тогда UФ = ULAMФ и Ux = ULAMx.
Если QФ > 0 и Qx < 0
или
QФ < 0 и Qx > 0
(т.е. QФ и Qx противоположных знаков),
тогда для приведенного требуемого значения Ux <= ULAMx максимальное допустимое значение для UФ равно
и для приведенного требуемого значения UФ <= ULAMФ максимальное допустимое значение для Ux равно
где UФ и Ux - максимально допустимые, одновременно действующие окружная и продольная нагрузки при двухосных нагружениях.
Если эти значения меньше требуемых расчетных значений, необходимо пересчитать ламинат.
Двуосные расчетные огибающие для примера, приведенного выше, показанные на
рисунке Р.1, обозначают требуемые совпадающие нагрузки
QФ = 80 Н/мм и Qx = 40 Н/мм, точка A,
QФ = 80 Н/мм и Qx = (40 - 10) = 30 Н/мм, точка B,
QФ = 80 Н/мм и Qx = -10 Н/мм, точка C,
каждая из которых относится к границам огибающих.
Рисунок Р.1. Двухосные расчетные огибающие
Р.4.2. Предположим, что конструкция такая же, как в
Р.4.1, и на нее воздействует гидростатическое давление, где
QФ = 80 Н/мм (тангенциальная нагрузка, вызванная гидростатическим давлением содержимого),
Qx1 = +/- 18 Н/мм (продольная нагрузка, вызванная сгибанием под давлением ветра),
Qx2 = -2 Н/мм (продольная нагрузка, вызванная собственным весом безнапорной емкости).
Таким образом, эффективная сжимающая продольная нагрузка Qx является алгебраической суммой Qx1 и Qx2
Qx = (-18 - 2) = -20 Н/мм.
При применении расчетных огибающих по
Р.4.1 (см.
рисунок Р.1), в случае i), значение Q
x, равное 11 Н/мм, не соответствует значению Q
Ф, равному 80 Н/мм, тогда как в случае ii) значение Q
x равно 24 Н/мм и удовлетворяет значениям Q
Ф = 80 Н/мм и Q
x = (- 18 - 2) = -20 Н/мм (см.
рисунок Р.1, точка D).
Затем рассчитываются максимально допустимые значения для сжимающей нагрузки и сравниваются с эффективной сжимающей продольной нагрузкой
используя значения, соответствующие конструкциям i) и ii) соответственно (из
Р.4.1):
а) Конструкция i) (намотка под углом +/- 55°).
Результат неудовлетворительный.
б) Конструкция ii) (намотка под углом +/- 80°).
Результат удовлетворительный.
Р.5. Расчет патрубков
Р.5.1. Общие положения
Условия расчета берутся из
Р.2. Предполагается, что осуществляется примыкание патрубка внутренним диаметром 150 мм в цилиндрической части напорной емкости. Предполагается, что на патрубок будет воздействовать расчетное давление 0,2 Н/мм
2.
Расчет патрубка состоит из двух отдельных частей. В первой части расчета вычисляют размер ламината патрубка, во второй части расчета вычисляют размер присоединяемого слоя ламината или перекрывающего слоя ламината.
Р.5.2. Вычисление для ламината патрубка
Т.к. трубопроводы и фитинги устанавливают на опорах таким образом, что они не создают большие нагрузки на патрубки напорных емкостей. В этом примере предполагается, что Qx не будет превышать QФ.
Как в
Р.2.2, значение K = 10,89 и u
z = 18,36 Н·м
2/мм·кг.
Предположим, что конструкция армирована только CSM. Применим упрощенную
формулу (Б.1) (как в
Р.2.2)
Q = uz·(mz·nz).
Общая масса
(mz·nz) = 15/18,36 = 0,82 кг/м2.
Общая масса стекла, чтобы удовлетворить требованиям по давлению, должна быть 0,9 кг/м
2. На практике, однако, предпочтительно делать патрубки с массой стекла как минимум 1,2 кг/м
2, а конечная толщина, включая перекрывающие слои ламинатов и т.д., должна быть не меньше, чем минимальная толщина, требуемая по
Приложению Б.
Р.5.3. Вычисление толщины
Предположим, что содержание стекла CSM составляет 30%. По
рисунку Б.5 (Приложение Б) толщина будет
2,5·1,2 = 3,0 мм,
которую может потребоваться увеличить, как описано в
Р.5.2.
Р.5.4. Вычисление компенсации (по
К.2.3)
Компенсирующий ламинат должен иметь нагрузочную способность AL.
AL = dc·Uc.
В соответствии с примером имеем 150-ти мм патрубок в цилиндрической части напорной емкости по
Р.2.
dc = 160 мм приблизительно (для встроенного патрубка),
U
c = Q
Ф·(по
Р.2) = 175 Н/мм,
AL = 160·175 = 28000 Н.
Это должно иметь устойчивость к Ac, эффективной нагрузочной способности
Ac = (dr - dc)·UOVL.
d
r выбирается по конструкции патрубка, как показано на
рисунках К.1 -
К.6 (Приложение К).
Для этого примера предположим, что значение d
c составляет 160 мм, и выбираем значение d
r, как требуется в
К.2.4 (Приложение К).
Предположим, что dr = 2,5db = 375 мм,
Предположим, что конструкция армирована только CSM, как для корпуса в
Р.2
UOVL = Uz·(mz·nz).
Таким образом, общая масса (mz·nz) равна
Подходящая конструкция будет содержать 12 слоев CSM массой на единицу площади 0,6 кг/м2 и поверхностный слой, армированный переплетенной нитью, пропитанный смолой.
Проверить область соединения внахлестку на прочность при сдвиге на соответствие передаваемой нагрузки от корпуса при сдвиге
По
таблице 5.1 прочность соединения внахлестку при сдвиге для слоев, армированных CSM, пропитанного смолами, отличными от фурановой, = 7 Н/мм
2:
F = расчетный коэффициент K = 10,89,
Это значение больше, чем требуемое AL 28000 Н.
Альтернативный вариант заключается в нахождении влияния компенсации пяти чередующихся слоев CSM массой на единицу площади 0,6 кг/м2 на главный слой ламината корпуса.
Из этих вычислений
Ac = (375 - 160)·12·0,6·18,36 = 28421 Н,
Aci = (375 - 160)·5·0,6·18,36 = 11842 Н,
Ace = (375 - 160)·7·0,6·18,36 = 16579 Н,
As = 29575 > Ace.
| | ИС МЕГАНОРМ: примечание. В официальном тексте документа, видимо, допущена опечатка: подпункт г) в пункте К.2.3 отсутствует. | |
В перечислении г)
К.2.3, где компенсирующие слои чередуются со слоями ламината главного корпуса, требуется, чтобы A
s было не меньше, чем A
ce. Это условие выполняется.
Требуемый CSM массой на единицу площади 1,2 кг/м
2 и армированный гелькоут (см.
К.2.3) применяются внутри патрубка и напорной емкости, снаружи применяется компенсационный CSM массой на единицу площади 1,5 кг/м
2 (S
l), который укладывают поверх стенки патрубка.
Q для наружного накладываемого слоя = uz·(mz·nz) = 18,36·1,5 = 27,5 Н/мм.
Так как перекрывающий слой ламината рассчитан на нагрузку 27,5 Н/мм, данное значение будет удовлетворять требованиям.
Из-за того, что внутренний накладываемый слой противостоит вытягивающей нагрузке, наружный накладываемый слой необязательно подвергается воздействию полной сдираемой нагрузки.
Максимальная нагрузка, которая может воздействовать на наружный накладываемый слой, будет
m·uz = нагрузочная способность наружного накладываемого слоя
1,5·18,36 = 27,54 Н/мм,
где m - общая масса внешнего накладываемого слоя;
uz - расчетная нагрузка для CSM.
Минимальная длина, на которую должен применяться накладываемый слой, чтобы выдержать межслоевую нагрузку сдвига, должна быть Lo или 75 мм, в зависимости от того, что больше, где
и где F принимает значение K или KOVL
(прочность соединения внахлестку при сдвиге имеет значение 7 Н/мм
2, по
таблице 5.1 для настоящего примера)
Следовательно, требуемая длина нахлеста будет 75 мм.
Р.6. Прямоугольная панель под нагрузкой
Проектируют прямоугольную панель шириной 1000 мм и длиной 4000 мм, выдерживающую распределенную нагрузку величиной 0,00075 Н/мм или динамическую нагрузку величиной 900 Н на область радиусом 150 мм. Края панели имеют тип 1.
Вычислить толщину сплошной панели, используя только критерий деформации.
Для распределенной нагрузки
Для местной нагрузки:
Наибольшее значение толщины будет использовано для определения конструкции "сэндвича". Предположим, что ядро имеет толщину 12 мм.
tt = (t3 + c3)0,33 = (10,543 + 123)0,33 = 13,88 мм.
| | ИС МЕГАНОРМ: примечание. В официальном тексте документа, видимо, допущена опечатка: подпункт а) в пункте Е.7.2 отсутствует. | |
Чтобы удовлетворить требованиям перечисления а)
Е.7.2 (Приложение Е), минимальная толщина должна быть 3 мм.
Количество слоев в рассматриваемой оболочке nCSM приводится
= 3 слоя CSM массой на единицу площади 0,45 кг/м2.
Чтобы проверить, что расчетная нагрузка не превышает момент изгиба, необходимо проводить расчет для каждого случая.
Для распределенной нагрузки
Для местной нагрузки
Использовать самый большой момент для вычисления Qs.
Для трех слоев CSM массой на единицу площади 0,45 кг/м2 (принимая номинальные значения)
Q = uCSMmCSMnCSM = 18,03·0,45·3 = 24,3 Н/мм.
Проверить напряжение сдвига в ядре для распределенной нагрузки
Для местной нагрузки
Использовать ядро, имеющее минимальное предельное напряжение сдвига 0,255 Н/мм
2, чтобы обеспечить минимальный коэффициент 4 (см.
Е.7.3, Приложение Е).
Р.7. Требования по жесткости для вертикальных безнапорных емкостей, имеющих секции
Вертикальная цилиндрическая безнапорная емкость с плоским дном, полностью стоящая на опоре и с неглубокой конической крышей, должна выдерживать вакуум величиной в 6 x 10
-4 МПа и внешнее ветровое давление. Безнапорная емкость имеет внутренний диаметр 4 м и высоту 10 м. Найти требуемое количество и определить местоположение ребер жесткости, чтобы обеспечить стойкость к разрушению, используя вычисления
Приложения Г.
Примем динамическую ветровую нагрузку q = 1000 Н/мм2.
Расчетный низкий вакуум = 600 Н/м2.
Расчетное внешнее давление = динамическая ветровая нагрузка + расчетный низкий вакуум = 1000 + 6000 = 1600 Н/м2.
Емкость имеет восемь секций различной высоты, толщины и конструкции ламината. Используя эти характеристики, сначала вычислим эквивалентную высоту h
e как зависимость от толщины верхнего пояса для семи поясов, используя
формулу (Г.2).
Параметры секций, рассматриваемых в настоящем примере, приведены в таблице Р.1.
Таблица Р.1
Параметры секций вертикальной цилиндрической
безнапорной емкости
Порядковый номер секции емкости | Высота секции емкости h, мм | Общий модуль XLAM, Н/мм | Толщина секции емкости th, мм | Эквивалентная высота h e, мм |
1 (верхний) | 850 | 51546 | 7,81 (tmin) | 850,0 |
2 | 1700 | 72612 | 10,11 | 819,4 |
3 | 1700 | 93678 | 12,40 | 467,6 |
4 | 1700 | 114744 | 14,69 | 296,0 |
5 | 1700 | 135810 | 16,99 | 201,1 |
6 | 850 | 156876 | 19,28 | 72,0 |
7 | 850 | 164496 | 20,66 | 61,9 |
8 (нижний) | 650 | 177942 | 21,57 | 41,0 |
Т.е.
и т.д. для остальных поясов емкости.
He - сумма всех значений he, равна 2809 мм.
Максимальную разрешенную высоту между ребрами жесткости Hp при толщине tmin вычисляют по формуле
He/Hp = 2809/1727 = 1,627,
т.е. He > Hp и требуется одно ребро жесткости, например,
H = He/2 = 1405 мм
от верха безнапорной емкости.
Из
пятой колонки таблицы Р.1 видно, что эта точка 1405 мм находится на втором поясе емкости сверху. Чтобы найти эквивалентное расстояние от верха второго звена, h
ie,

для верхнего звена составляет 850 мм и
hie = 1405 - 850 = 555 мм.
Истинное расстояние от верха жесткого пояса:
Истинное расстояние ребра жесткости до верха безнапорной емкости по
формуле (Г.7) (Приложение Г)
Относительные размеры промежуточного ребра жесткости теперь должны быть определены в
В.3.2 (Приложение В), т.е. минимально требуемый осевой момент инерции сечения для ребра жесткости должен вычисляться по
формуле (В.12) (Приложение В), в этом случае
и
Проверка основного ребра жесткости должна быть проведена на верхнем крае верхнего звена так же, как внешнего ребра жесткости или свойственной жесткости, опять используя
формулу (В.12) (Приложение В). Но в этом случае L будет равна H/2 = 702,5 мм и значение E
LAM не изменится. Если безнапорная емкость подвергается осевой сжимающей нагрузке вследствие изгиба под воздействием ветровой нагрузки плюс собственный вес и возможна снеговая нагрузка, то дальнейшие проверки, используя
формулу (В.6) (Приложение В), необходимы, чтобы убедиться, что ламинат каждого пояса емкости способен принимать осевую нагрузку, воздействующую на этом уровне.
Р.8. Расчет конических боковых стенок с термопластичной футеровкой на тканевой основе
Предположим, что напорные емкости, описанные в
Р.2, армированы только CSM, но с футеровочным термопластичным слоем на тканевой основе, комплектуются коническими боковыми стенками.
Внутренний диаметр корпуса 1750 мм.
Расчетное давление 0,2 МПа.
Таким образом, желательно конструировать конус в месте пересечения корпуса/конуса такой конфигурации, чтобы параметры соответствовали
Ж.4.1 (Приложение Ж).
Предположим, что содержание стекла составляет 30% от массы и относительная плотность смолы составляет 1,1. По
рисунку Б.5 (Приложение Б) определяем прогнозируемую толщину ламели, которая составляет 2,5 мм·кг/м
2 стекла.
По
Р.2 определяем расчетную нагрузку u
z, которая составляет 18,36 Н·м
2/мм·кг.
Нагрузка в окружном направлении для корпуса Q составляет 175 Н/мм, для предполагаемой конструкции ламината, армированного CSM массой на единицу площади 9,6 кг/м2 и толщиной t, 24 мм.
Расчет конуса и места пересечения корпуса/конуса требуется проводить в соответствии с
формулами (Ж.9) и
(Ж.11) (Приложение Ж).
По
формуле (Ж.9) (Приложение Ж) единичная нагрузка в окружном направлении должна быть не меньше, чем
Проверяют по
формуле (Ж.11) (Приложение Ж), удовлетворяет ли это значение минимальной требуемой единичной нагрузке в осевом направлении.
Для единичной нагрузки 247,49 Н/мм требуемая масса CSM:
Толщина, соответствующая этой массе стекла
tc = 13,48·2,5 = 33,7 мм.
Отношение толщины к внутреннему диаметру
Kc2 = 3,05.
Qx2 = 0,5·0,2·1750·3,05 = 533,75 Н/мм.
Т.к. это значение больше, чем Q, полученное по
формуле (Ж.9) (Приложение Ж), то необходимо увеличить значение толщины и единичной нагрузки в месте пересечения корпуса/конуса и повторить вычисления.
Первая итерация
Предположим, что K
c2 = 2,75 и пересчитаем по
формуле (Ж.11) (Приложение Ж)
Qx2 = 0,5·0,2·1750·2,75 = 481,25 Н/мм.
Для этого значения единичной нагрузки масса стекла должна быть
Толщина, соответствующая массе стекла
tc = 26,21·2,5 = 65,53 мм.
Отношение толщины к внутреннему диаметру
Kc2 = 2,5 (предполагаемое значение 2,75).
Предполагаемое значение 2,75 было слишком высоким и поэтому необходима вторая итерация.
Вторая итерация
Предположим, что K
c2 = 2,5 и пересчитаем по
формуле (Ж.11) (Приложение Ж)
Qx2 = 0,5·0,2·1750·2,5 = 437,5 Н/мм.
Для этого значения единичной нагрузки масса стекла должна быть
Толщина, соответствующая массе стекла
tc = 23,83·2,5 = 59,58 мм.
Отношение толщины к внутреннему диаметру
Kc2 = 2,4 (предполагаемое значение 2,5).
Можно еще немного уменьшить значение, чтобы получить оптимальное значение для Kc2, поэтому в следующей итерации используем значение 2,45.
Третья итерация
Предположим, что K
c2 = 2,45 и пересчитаем по
формуле (Ж.11) (Приложение Ж)
Qx2 = 0,5·0,2·1750·2,45 = 428,75 Н/мм.
Требуемая масса стекла
Толщина, соответствующая этой массе стекла
tc = 23,35·2,5 = 58,38 мм,
Kc2 = 2,45.
Предполагаемое и вычисленное значения для Kc2 совпадают и может быть принято значение 2,45.
Qx2 = 428,75 Н/мм.
Требуемая масса CSM 23,35 кг/м
2 с толщиной 58,38 мм. Корпус и конус должны иметь такую массу и толщину, как минимум, на расстоянии L
c, определяемого по
формуле (Ж.12) (Приложение Ж)
За пределами этого расстояния и соответствующих переходов толщина ламината должна быть не меньше значения, вычисленного для цилиндрического корпуса и конуса соответственно.
(справочное)
ПРОЦЕДУРА ВЫБОРА ДЛЯ КОЭФФИЦИЕНТА, СООТВЕТСТВУЮЩЕГО
ДЛИТЕЛЬНОМУ РЕЖИМУ РАБОТЫ
С.1. Общие положения
Коэффициент, соответствующий длительному режиму работы, имеет отношение к потере прочности ненагруженного ламината, армированного стекловолокном, на который воздействуют рабочие условия на протяжении расчетного рабочего цикла напорной емкости. В случаях, когда эти данные доступны, может быть применен метод А (см. С.2). При отсутствии таких данных необходимо ссылаться на данные производителей смолы о химической стойкости выбранной смолы, как показано в примере Б (см. С.3).
С.2. Метод А
Если потеря прочности составляет до 20% включительно от максимального предела прочности при растяжении, тогда использовать k2 = 1,2.
Если потеря прочности составляет от 20% до 50% включительно, тогда необходимо рассчитать интерполяционное значение между k2 = 1,2 (для 20% потери прочности) и k2 = 2,0 (для 50% потери прочности).
Если потеря прочности более 50%, тогда материал непригоден.
С.3. Примеры
Пример А. Выбрать k2 для 100%-ного четыреххлористого углерода при 20 °C.
Т.к. это наиболее тяжелый режим работы из возможных, то k2 = 2,0.
Пример Б. Выбрать k2 для водного раствора бисульфита кальция при 60 °C.
Для раствора при 80 °C, k2 = 2,0.
Для раствора при 20 °C, k2 = 1,2.
Для раствора при 60 °C,

.
Пример В. Выбрать k2 для 10%-ной серной кислоты при 80 °C.
Для 10%-ной кислоты при 100 °C, k2 = 2,0.
Для 10%-ной кислоты при 20 °C, k2 = 1,2.
Для 10%-ной кислоты при 80 °C,

.
Пример Г. Выбрать k2 для 70% серной кислоты при 60 °C.
Для 70%-ной кислоты при 70 °C, k2 = 2,0.
Необходимо принять решение: 70%-ная кислота при 20 °C будет ассоциироваться с k2 = 1,2 или должно быть выбрано более высокое значение. При отсутствии данных производителя предположим, что более высокое значение должно быть задано, опять используем интерполяцию.
Для 70% кислоты при 20 °C:
k2 = 1,5.
Следовательно, для 70%-ной кислоты при 60 °C интерполяция между 1,5 и 2,0 составит:
k2 = 1,9.
Эта процедура проиллюстрирована на
рисунке С.2. Предпочтительней оценивать значение k
2 графически, чем прямыми вычислениями.
Пример Д. Выбрать k2 для 50%-ной серной кислоты при 50 °C.
Необходимо принять решение: допустимо ли применять интерполяцию для вычисления значений для 50%-ной кислоты, если известны значения для 10%-ной и 70%-ной кислоты. В этом примере допускается так поступить. Однако следует отметить, что это не всегда возможно, например, если изменится механизм химического воздействия с кислотного гидролиза на кислотное окисление.
Интерполяция изображена на
рисунке С.3 и значение k
2 = 1,7.
Рисунок С.1. Приблизительные значения Kc2
1 - 70% серная кислота; 2 - 10% серная кислота
Рисунок С.2. Определение k
2 по графику: пример Г
1 - 70% серная кислота; 2 - 50% серная кислота;
3 - 10% серная кислота
Рисунок С.3. Определение k
2 по графику: пример Д
(справочное)
РАСЧЕТ КРЕПЛЕНИЯ ЕМКОСТЕЙ
Примечание. Настоящее приложение распространяется только на вертикальные цилиндрические емкости, основания которых могут оторваться от опор.
Т.1. Расчет подъемных креплений должен учитывать следующие условия:
а) гидростатическое давление и/или внутреннее давление;
б) ветровое опрокидывающее давление;
в) сейсмическую силу, без учета положений, приведенных в перечислении б) настоящего приложения, при необходимости;
г) вес цилиндрического корпуса, крыши и связанной структуры;
д) вес корпуса и тепловой изоляции крыши;
е) испытательное давление.
Т.2. Крепление должно рассчитываться с учетом его стойкости к максимальному опрокидывающему моменту, вызванному ветровыми нагрузками и другими случаями. Количество и размер крепящих болтов должны быть вычислены с учетом общего момента сопротивления, который равен максимальному опрокидывающему моменту.
Примечание. Рекомендуется количество точек крепления увеличить в четыре раза, чтобы они были равномерно распределены вдоль диаметра и расстояние между ними не должно превышать 1500 мм.
Если требование к моменту сопротивления не учитывает вес емкости и если предполагается работа в основании только тех болтов, которые находятся с наветренной стороны цилиндра, тогда нагрузку на крепящий болт F, Н, вычисляют по формуле

(Т.1)
где M - общий опрокидывающий момент, Н/мм;
Di - внутренний диаметр напорной емкости, мм;
Dpc - диаметр окружности центров отверстий, мм;
W - минимальный вес корпуса напорной емкости, Н;
Nb - количество крепящих болтов;
| | ИС МЕГАНОРМ: примечание. В официальном тексте документа, видимо, допущена опечатка: пункт 8.19.2 отсутствует. | |
p - в зависимости от того, имеет ли напорная или безнапорная емкость плоское дно, полностью стоящее на опоре: p = внутреннее давление в верхней части цилиндра корпуса (в Н/мм2) (см. также 8.19.2);
для других типов напорных емкостей: p = 0.
Примечание. Если Nb < 8, то использовать в вышеприведенной формуле значение W, равное 0.
| | ИС МЕГАНОРМ: примечание. Нумерация пунктов дана в соответствии с официальным текстом документа. | |
Т.4. Расчетная температура эксплуатации для крепления должна соответствовать расчетной температуре эксплуатации безнапорной емкости. Передача тепла от горячих частей должна быть такой, чтобы не появлялись недопустимые условия, которые могли бы привести к разрушению крепления или границы между креплением и корпусом безнапорной емкости.
(справочное)
НАПРЯЖЕНИЯ, ВЫЗВАННЫЕ МЕСТНЫМИ НАГРУЗКАМИ.
РЕКОМЕНДУЕМЫЕ МЕТОДЫ РАСЧЕТА
У.1. Общие положения
Метод должен использоваться для точек, где возникают изгибающие моменты

и M
x и мембранные силы

и N
x, чтобы оценить деформацию ламината. Критерием принятия для системы нагрузки пластмасс, армированных стекловолокном, является ее способность создавать максимальную деформацию.
Настоящее приложение имеет отношение к методам расчета напряжений, возникающих из-за местных соединений к напорным емкостям в некоторых общих случаях.
У.2. Местные нагрузки на корпуса емкостей высокого давления
У.2.1. Общие положения
Рассматривается воздействие на корпус емкостей высокого давления локальных сил и моментов, которые возникают в местах присоединения опор или от боковых давлений присоединенных трубопроводов. Ограничения по геометрии напорных емкостей/присоединений, без которых приведенные методы расчета могут быть ненадежными, также приведены.
Напряжения, вызванные местными нагрузками и моментами, воздействующие на цилиндрические корпуса через присоединения, включая патрубки, рассматриваются в
У.2.2 и
У.2.3.
Методы, приведенные в
У.2.2, применяют для определения напряжений на краю нагруженных областей
(У.2.2.2), напряжений, возникающих на расстоянии от края нагруженной области
(У.2.2.3) и отклонения корпусов от цилиндричности из-за воздействия радиальной нагрузки
(У.2.2.4).
В
У.2.3 приведен расчет круговых моментов
(У.2.3.2) и продольных моментов
(У.2.3.3), воздействующих на цилиндрический корпус и используемых для определения максимальных напряжений, возникающих на внешней границе области действующей нагрузки
(У.2.3.4), и углового смещения, возникающего из-за воздействия этих моментов
(У.2.3.5).
Напряжения, вызванные местными нагрузками, и моменты, воздействующие на сферические корпуса через присоединения, включая патрубки, рассмотрены в
У.2.4 и
У.2.5.
Метод, приведенный в
У.2.4, предназначен для расчета напряжений и отклонений, вызванных радиальными нагрузками
(У.2.4.3), напряжений, отклонений и углов наклона, вызванных моментом внешних сил
(У.2.4.4), прикладываемых к сферическому корпусу. В
У.2.5 описан метод расчета напряжений, увеличивающихся в местах соединения патрубка с корпусом из-за воздействия давления, внешней нагрузки и моментов внешних сил, воздействующих на сферический корпус.
У.2.2. Радиальные нагрузки в цилиндрических корпусах
У.2.2.1. Общие положения
Методы, приведенные в данном разделе, не применимы в случае, если длина цилиндрической части корпуса меньше, чем его радиус. Это относится к открытым или закрытым цилиндрам, где жесткость заметно изменяется в зависимости от рассматриваемого случая. Для смещенных относительно центра присоединений расстояние от конца цилиндра до края присоединения должно быть не меньше, чем половина среднего значения радиуса цилиндрической или сферической части корпуса.
Для корпусов с тонким ламинатом отношение

не должно превышать приведенного на
рисунке У.1, зависящего от значения r/t для напорных емкостей. Применимость методов к корпусам с толстым ламинатом также ограничена в некоторых случаях диапазоном значений отношения радиуса цилиндрической или сферической части корпуса к толщине стенки корпуса.
CФ - половина длины прямоугольной области,
подвергающейся нагрузке, в направлении вдоль окружности;
r - среднее значение радиуса цилиндра или сферы;
t - толщина стенки корпуса
Рисунок У.1. Ограничения по геометрии напорной
Для значений Cx/r > 0,25 данные должны использоваться с осторожностью.
Эти ограничения применяются только в отношении к методу анализа, приведенного в этом приложении. Они не распространяются на практические случаи, когда экспериментальные или другие данные могут подтвердить правильность расчета, который не соответствует настоящим ограничениям.
У.2.2.2. Напряжение на краю области, подвергающейся нагружению
У.2.2.2.1. Максимальные напряжения находятся на краю области, подвергающейся нагружению. Рисунок У.2 показывает воздействие на напорную емкость радиальной нагрузки, распределенной по центральной прямоугольной площади 2Cx·2CФ.
Cx - половина длины прямоугольной области,
подвергающейся нагрузке, в продольном направлении;
L - длина цилиндрической части корпуса; W - внешняя
нагрузка, распределенная по области, подвергающейся
нагрузке;

- цилиндрические координаты точки
в стенке напорной емкости
Рисунок У.2. Напорная емкость с центральной
радиальной нагрузкой
Стенку цилиндрического корпуса напорной емкости допускается просто поставить на опоры по концам емкости, которые подразумевают, что радиальное отклонение, изгибающие моменты и мембранные силы в стенке корпуса предполагаются равными нулю. Т.к. напряжения и отклонения из-за нагрузки носят местный характер и резко исчезают при удалении от нагруженной области, это эквивалентно предположению, что нагруженная область удалена от концов корпуса.
У.2.2.2.2. Нагрузки, прикладываемые не в центре. Если нагрузочная область находится на расстоянии, равном расстоянию от центра прикладываемой нагрузки до середины напорной емкости, то отклонения, изгибающие моменты и мембранные силы могут быть приняты равными параметрам в напорной емкости эквивалентной длины, нагруженной посередине.
Эквивалентную длину Le, мм, вычисляют по формуле

(У.1)
где d - расстояние от центра прикладываемой нагрузки до середины напорной емкости, мм.
На рисунке У.3 изображена цилиндрическая оболочка, нагрузки к которой прикладывают не в центре, а на
рисунке У.4 приведен график L
e/L относительно d/L, который используют для нахождения L
e.
Рисунок У.3. Периферийная радиальная нагрузка,
воздействующая на напорную емкость
Рисунок У.4. График для нахождения эквивалентной длины L
e
У.2.2.2.3. Определение напряжений
Результирующее продольное напряжение fx, Н/мм2, в корпусе вычисляют по формуле

(У.2)
где Nx - продольная мембранная сила на единицу длины окружности, Н/мм;

- момент изгиба в окружном направлении на единицу длины, Н·мм/мм.
Продольная мембранная сила на единицу длины окружности и окружная мембранная сила на единицу длины положительны для предела прочности при мембранных напряжениях.
Продольный момент изгиба на единицу длины окружности и окружной момент изгиба на единицу длины положительны, когда они являются причиной сжатия на внешней поверхности корпуса.
Их количественные параметры зависят от отношения:
и
Для радиальных патрубков или круговых областей половину длины прямоугольной области, подвергающейся нагрузке, в продольном направлении Cx, мм, вычисляют по формуле
Cx = 0,85·ro, (У.3)
где ro - среднее значение радиуса патрубка, мм.
Для радиальных патрубков или круговых областей половину длины прямоугольной области, подвергающейся нагрузке, в направлении вдоль окружности CФ, мм, вычисляют по формуле

(У.4)
Для наклонного патрубка или эллиптической области C
x и C
Ф должны принимать значение 0,42·(пересечение большой и малой оси корпуса или области). Безразмерные функции каждой могут быть выражены через безразмерную совокупность

. Числовой коэффициент 64 является масштабным коэффициентом, не имеющим теоретического значения. Значение выражения может быть найдено по рисунку У.5, при известных r, t и C
x. Моменты и мембранные силы находятся через интерполяцию по графикам, приведенным на
рисунках У.6 -
У.9.
Рисунок У.5. График для нахождения

Каждый из четырех графиков приведен для значения отношения 2C
x/L и имеет кривые для четырех значений отношения

.
Момент изгиба в направлении вдоль окружности

находится по
рисунку У.6.
Рисунок У.6. Цилиндрические корпуса, на которые
воздействует радиальная нагрузка: момент изгиба
в направлении вдоль окружности на миллиметр ширины
Рисунок У.7. Цилиндрические корпуса, на которые
воздействует радиальная нагрузка: продольный момент изгиба
на миллиметр ширины (см.
У.2.2)
Мембранная сила в направлении вдоль окружности

находится по
рисунку У.8. Продольная мембранная сила N
x находится по
рисунку У.9.
Рисунок У.8. Цилиндрические корпуса, на которые
воздействует радиальная нагрузка: мембранная сила
в направлении вдоль окружности на миллиметр ширины
Рисунок У.9. Цилиндрические корпуса, на которые
воздействует радиальная нагрузка: продольная мембранная
сила на миллиметр ширины (см.
У.2.2)
Значение момента принимается положительным, если момент вызывает сжатие, которое воздействует с внешней стороны напорной емкости.
Значение мембранной силы принимается положительным, если мембранная сила вызывает растяжение стенки напорной емкости.
У.2.2.2.4. Воздействие внутреннего и внешнего давления. Если напряжения, вызванные давлением, складываются с уже рассчитанными напряжениями, вызванными локальными радиальными нагрузками, получаем стабильный результат для напряжений.
| | ИС МЕГАНОРМ: примечание. В официальном тексте документа, видимо, допущена опечатка: пункт У.2.24 отсутствует. Возможно, имеется в виду пункт У.2.2.4. | |
Метод не может применяться для напорных емкостей, на которые воздействует внешнее давление, потому что отклонение, вызванное радиальной нагрузкой, всегда увеличивает овальность окружности корпуса. По тем же причинам этот метод не следует применять для цилиндрического корпуса, подвергающегося как продольной, так и радиальной нагрузке. В этих случаях отклонение, вызванное радиальной нагрузкой, должно быть найдено по
У.2.24, и эффект поэтому оценивается во взаимосвязи с требованиями к форме, приведенными в
таблице 4.3 для таких емкостей.
У.2.2.3. Напряжения, возникающие на удалении от края нагруженной области
У.2.2.3.1. Общие положения. Несмотря на то, что максимальные напряжения возникают на краю нагруженной области, необходимо найти напряжения, возникающие в других местах, когда требуется выяснить влияние одной нагрузки на другую.
Это происходит:
а) когда продольные моменты или моменты в направлении вдоль окружности находят по
У.2.3;
б) когда воздействующие нагрузки находятся близко друг к другу, например, когда кронштейн прикреплен рядом с патрубком.
В общем случае влиянием одной нагрузки на другую можно пренебречь, когда расстояние между центрами нагруженных областей больше, чем

для нагрузок, разделенных в направлении вдоль окружности, или K
2C
x для нагрузок, разделенных в продольном направлении, где K
1 и K
2 находятся по таблице У.1, а

и C
x принимаются по самой большой нагрузке.
Таблица У.1
| | K1 | K2 |
0,4 | 0,01 | 8,0 | 8 |
0,05 | 6,0 | 8 |
0,20 | 3,0 | 4 |
0,40 | 1,5 | 2 |
10 | 0,01 | 3,0 | 8 |
0,05 | 2,5 | 8 |
0,20 | 1,5 | 3 |
0,40 | 1,5 | 2 |
200 | 0,01 | Пренебрежимо малое | 5,00 |
0,05 | 4,00 |
0,20 | 2,50 |
0,40 | 1,75 |
3200 | Все значения | Пренебрежимо малое | 2,5 |
Примечание. Значение безразмерного коэффициента  может быть найдено по рисунку У.5. |
У.2.2.3.2. Изменение напряжения по окружности. Не существует точных аналитических способов обработки изменения напряжения вокруг окружности на удалении от края нагруженной области. Следующий способ обработки является достаточно точным для определенных целей.
Рассмотрим радиальную линейную нагрузку длиной 2C
x, прикладываемую в середине тонкого цилиндра, как показано на
рисунке У.10 (а). Максимальные напряжения, возникшие под воздействием этой нагрузки, в точках, расположенных на окружности, на удалении от нее, проходящих через ее середину, как A на рисунке У.10. Радиус, проходящий через A, образует угол

с линией нагрузки.
Примечание. Эти графики применяются в любой совместимой системе единиц.
Рисунок У.10. Окружной изгибающий момент,
вызванный изменением радиальной линейной нагрузки
Примечание. Эти графики применяются в любой совместимой системе единиц.
Рисунок У.11. Продольный момент, вызванный изменением
радиальной линейной нагрузки по окружности (см.
У.2.2.3.2)
Примечание. Эти графики применяются в любой совместимой системе единиц.
Рисунок У.12. Окружное мембранное напряжение, вызванное
изменением радиальной линейной нагрузки по окружности
Примечание. Эти графики применяются в любой совместимой системе единиц.
Рисунок У.13. Продольные мембранные силы, вызванные
изменением радиальной линейной нагрузки по окружности
Моменты и мембранные силы в A,

, M
x,

, N
x находятся по графикам, приведенным на
рисунках У.10 - У.13, на которых функции

, M
x/W,

, N
xt/W показаны в зависимости от безразмерной группы

.
На каждом рисунке для сравнения приводится схема, на которой изображена нагрузка и ее форма, как на
рисунке У.10 (а).
Линейные нагрузки на практике не используются, а используются нагрузки, распределенные по окружности,

обрабатываются следующим образом:
а) находят значение функции

, M
x/W,

или N
xt/W на краю нагрузки для известных значений

и 2C
x/L по графикам, приведенным на
рисунках У.6 -
У.9;
Точка пересечения на кривой для 2C
x/L дает значение

. Например, если 64(r/t)(C
x/r)
2 = 10, 2C
x/L = 0,01 и

. По
рисунку У.6 
. По
рисунку У.10 при

получаем Z = 0,55 для 2C
x/L = 0,01, как показано пунктирной линией на левом графике на
рисунке У.10.
Значение M
Ф/W в A находится подстановкой

для действительного значения

в тот же график.
Другие величины M
x/W,

, N
xt/W могут быть найдены таким же способом. Этот метод применяется с целью избежать использования отдельного набора из четырех графиков для каждого рассматриваемого значения

.
Диаграммы для окружных изгибающих моментов и сил приведены отдельно от диаграмм для продольных изгибающих моментов и сил.
Если центр нагрузки находится не в середине цилиндра, эквивалентная длина L
e, которая находится по
У.2.2.2, во всех случаях должна заменяться на L.
В У.2.2.3.3 приведен метод определения изменения напряжения вдоль цилиндра, вызванного радиальной нагрузкой.
У.2.2.3.3. Изменения напряжения вдоль цилиндра. Рассмотрим радиальную линейную нагрузку W, распределенную по длине 2C
x, как показано на рисунке У.14 (а).
Примечание. Эти графики применяются в любой совместимой системе единиц.
Рисунок У.14. Окружной изгибающий момент, вызванный
изменением радиальной линейной нагрузки вдоль цилиндра
Значения

, M
x,

и N
x в A могут быть найдены по рисункам У.14 -
У.17 соответственно.
Примечание. Эти графики применяются в любой совместимой системе единиц.
Рисунок У.15. Продольный изгибающий момент, вызванный
изменением радиальной линейной нагрузки вдоль цилиндра
Примечание. Эти графики применяются в любой совместимой системе единиц.
Рисунок У.16. Окружные мембранные силы, вызванные
изменением радиальной линейной нагрузки вдоль цилиндра
Примечание. Эти графики применяются в любой совместимой системе единиц.
Рисунок У.17. Продольные мембранные силы, вызванные
изменением радиальной линейной нагрузки вдоль цилиндра
На этих графиках значения

,

,

и

показаны в зависимости от

для заданных значений

и

.
Результирующие напряжения в корпусе A вычисляют по:
окружному напряжению
продольному напряжению
Значения

меньше 1,0, для которых кривые не построены, подпадают под нагруженные длины, и кривые не должны распространяться в этой области. Значения для

соответствуют максимальным напряжениям, найденным по
рисункам У.6 -
У.9 для

.
Для удобства на каждом графике повторяется диаграмма нагрузки, изображенная на
рисунке У.14 (а).
Диаграммы для окружных изгибающих моментов и сил приведены отдельно от диаграмм для продольных изгибающих моментов и сил.
Для нагрузки, распределенной по площади

, моменты и мембранные силы при любом значении

уменьшаются в одинаковом отношении, как и соответствующие значения на краю нагрузки, найденной по
рисункам У.6 -
У.9, например, в отношении:
Пример. Напорная емкость диаметром 2,5 м, длиной 6 м, толщиной 12 мм. Радиальная нагрузка W приложена к площади 300 мм2 посередине корпуса. Найти окружной момент в точке, удаленной на 600 мм от центра нагруженной области, измеренной вдоль оси напорной емкости.

; r = 1250 мм;

;

при

.

и

,
и при

,

,

если нагрузка распределена по площади больше чем 300 мм
2:

при


окружной момент при x = 0,025W.
У.2.2.4. Деформация цилиндрических корпусов под воздействием радиальных нагрузок. Деформация цилиндрических корпусов под воздействием местной нагрузки требуется для:
а) нахождения перемещения корпуса напорной емкости под воздействием осевого давления присоединенного трубопровода;
б) нахождения вращения патрубка под воздействием момента от присоединенного трубопровода (см.
У.2.3).
Деформация корпуса под воздействием радиальной нагрузки является функцией безразмерных параметров

,

и

, которые изображены сплошными линиями на графиках следующим образом:
Рисунок У.18. Максимальная радиальная деформация
цилиндрического корпуса, на который воздействует радиальная
нагрузка W, равномерно распределенная по квадрату 2C·2C
Пример. Найти

для L/r = 10, r/t = 70, C/r = 0 = сосредоточенная нагрузка. Находим L/r = 10 в правом верхнем углу графика, двигаемся горизонтально до C/r = 0 или до сосредоточенной нагрузки, продолжаем двигаться по наклонной линии до пересечения с вертикальной линией r/t = 70, затем двигаемся горизонтально и определяем значение

.
Рисунок У.19. Максимальная радиальная деформация
цилиндрического корпуса, на который воздействует радиальная
нагрузка W, равномерно распределенная по квадрату 2C·2C
Примечание 1. Для значений

больше, чем 100, см.
рисунок У.20.
Примечание 2. Значения

не учитывают деформацию всего корпуса как балки.
Пример. Найти

для L/r = 5, C/r = 1/4, r/t = 180. Находим L/r = 5 с обеих сторон графика, двигаемся горизонтально до C/r = 1/4. Соединяем точки пересечения. Находим r/t = 180, двигаемся вертикально до линии пересечения, затем двигаемся горизонтально и определяем значение

.
Рисунок У.20. Максимальная радиальная деформация
цилиндрического корпуса, на который воздействует радиальная
нагрузка W, равномерно распределенная по квадрату 2C·2C
Примечание 1. Для значений

меньше, чем 100, см.
рисунок У.19.
Примечание 2. Значения

не учитывают деформацию всего корпуса как балки.
Для центральной нагрузки L - действительная длина напорной емкости.
Для нагрузки, приложенной не по центру, L - эквивалентная длина L
e, которая находится по
У.2.2.2.
Для сосредоточенной нагрузки значение

указано сплошной линией от соответствующей горизонтальной линии

в верхнем правом углу каждой диаграммы, как на
рисунках У.18 и
У.19.
Для нагрузки, распределенной по площади, равной площади квадрата со стороной 2C, значение

указано линией, соединяющей пересечения линий

и

в верхнем правом углу и нижнем левом углу каждой диаграммы, как показано пунктирной линией на
рисунке У.20.
Деформация под воздействием нагрузки, распределенной по площади, равной кругу с радиусом ro, равна деформации, вызванной нагрузкой, распределенной по площади, равной площади квадрата со стороной 1,7ro.
Деформация под воздействием нагрузки, распределенной по прямоугольной площади

, равна деформации, вызванной нагрузкой, распределенной по площади, равной площади квадрата со стороной 2C
l, где C
l получают по формуле

, при

(У.5)
а) Когда

меньше C
x
б) Когда

больше C
x
Рисунок У.21. Графики для нахождения квадрата 2C
1·2C
1,
равного прямоугольной площади нагрузки

Формула (У.5) применяется к прямоугольной площади, в которой длинная ось является продольной по отношению к емкости.
Формула (У.6) применяется к прямоугольной площади, в которой длинная ось является окружной по отношению к емкости.
У.2.3. Внешние моменты, воздействующие на цилиндрические корпуса
У.2.3.1. Общие положения
Внешние моменты могут воздействовать на корпус напорной емкости вследствие нагрузки на опорные башмаки или реакции опорных башмаков.
Расчет внешних моментов проводится в соответствии с
У.2.3.2 -
У.2.3.5.
Результаты будут неприемлемыми, если длина цилиндра L меньше, чем его радиус. Для соединений, которые осуществляются не по центру, расстояние от торцевой стенки цилиндра до края соединения должно быть не меньше r/2.
В дополнение, отношения

(У.2.3.2) и
(У.2.3.3) не должны превышать значений, приведенных на
рисунке У.1, зависящих от значения r/t для напорной емкости.
Для соответствующих значений Cx/r и Cz/2r > 0,25 данные следует использовать с осторожностью. Эти ограничения применяются только в отношении метода анализа, приведенного в настоящем приложении. В случае наличия экспериментальных данных, подтверждающих жизнеспособность расчета, данные ограничения не применяются.
У.2.3.2. Окружные моменты. Окружной момент, приложенный к прямоугольной площади

(см. рисунок У.22), распадается на две противоположные нагрузки:

, воздействующая на прямоугольники со стороной

,
где

- расстояние между центрами, которое составляет

. Для круглого патрубка

.
Рисунок У.22. Окружной момент
У.2.3.3. Продольные моменты. Аналогичным образом, продольный момент, приложенный к площади

(см. рисунок У.23), распадается на две противоположные нагрузки:

- воздействующая на прямоугольники со стороной

,
где

- расстояние между центрами, которое составляет

. Для круглого патрубка

.
Рисунок У.23. Продольный момент
У.2.3.4. Максимальные напряжения. Максимальные напряжения возникают на внешних краях действительной области нагружения вследствие воздействия внешних моментов. Окружной и продольный моменты и мембранные силы вычисляют
Mx = Mx1 - Mx2,
Nx = Nx1 - Nx2.
Величины с индексом 1 равны величинам при нагрузке W, распределенной по площади

, и находятся по
рисункам У.6 -
У.9.
Величины с индексом 2 равны величинам при одинаковой нагрузке на расстоянии x = 5C
x от центра нагруженной области для продольного момента или под углом

от радиуса через центр нагруженной области для окружного момента. Ими можно пренебречь, если значение K
2, по
таблице У.1, соответствующее значению

для продольного момента, или K
1, соответствующее значению

для окружного момента, меньше 5,0. В противном случае они находятся следующим образом.
а) Для продольного момента
1) Примем, что

, и получим значения для радиальной линии по
рисункам У.14 -
У.17. Может понадобиться использовать разные значения L
e (см.
У.2.2.2) для двух определяемых нагрузок, если момент распределен по площади, которая значительно больше по сравнению с расстоянием от ближайшего днища напорной емкости.
2) Скорректировать эти значения для общей окружной ширины, равной

, как показано в
У.2.2.3.3.
б) Для окружного момента
В месте пересечения с кривой

определяем значение

.
3) Значения для величин с индексом 2 определяются по оси ординат для

по тому же графику.
У.2.3.5. Угловое смещение под воздействием внешних моментов. В некоторых случаях необходимо найти угловое смещение патрубка или опорного башмака под воздействием приложенного к нему момента. Это определяется по формуле

для окружного момента или

для продольного момента,
Пример. Емкость диаметром 2,5 м, длиной 4 м, толщиной 12 мм; E = 1,86·105 Н/мм2 (т.е. сталь). Найти максимальное напряжение, возникающее из-за продольного момента 1,13·106 Н·мм, воздействующего на патрубок диаметром 350 мм посередине, и отклонение патрубка.
W работает на площади

, где

.
Для этой площади:
Непосредственный эффект каждой нагрузки W находится по интерполяции для

в графике на
рисунках У.6 -
У.9 для

, по которым
Влияние одной нагрузки на краю нагруженной области другой нагрузки находится интерполированием для

,

и

на графиках на
рисунках У.14 -
У.17 для радиальной линейной нагрузки и умножением результатов на корректирующий коэффициент для окружной ширины нагрузки, как в
У.2.2.3.3.
Значения, интерполированные по
рисункам У.14 -
У.17, обозначаются индексом 3 и имеют значения
Величина | Значения для  | Рисунок | Коэффициент коррекции = значению для  /значение для  |
| 0,255 | | |
| 0,16 | | |
| -0,18 | | |
| -0,17 | | |
Следовательно,
Максимальное окружное напряжение

,
Максимальное окружное сжимающее напряжение = -22,72 Н/мм2.
Максимальное окружное растягивающее напряжение = +8,88 Н/мм2.
Максимальное продольное напряжение

,
Максимальное продольное сжимающее напряжение = -19,25 Н/мм2.
Максимальное продольное растягивающее напряжение = +13,75 Н/мм2.
Отклонение от горизонтали под действием момента. Для этой площади

и по
рисунку У.21 (б) половина стороны эквивалентного квадрата C
l = 2,8C
x = 140 мм.
откуда

,
и по
У.2.3.5 отклонение от горизонтали

.
У.2.4. Местные нагрузки в корпусах сферической формы, жесткие крепления
У.2.4.1. Общие положения. Методы, рассматриваемые в настоящем разделе, не применимы в случаях, если отношение

больше, чем

.
У.2.4.2. Начальная разработка. В этом разделе рассматриваются напряжения и деформации под воздействием местных радиальных нагрузок или моментов на корпуса сферических форм. Из-за того, что напряжения и деформации имеют локальный характер и резко убывают с увеличением расстояния от центра приложения нагрузки, данные могут быть применены для локальных нагрузок в сферических частях торцевых стенок напорных емкостей.
Для удобства принимают, что нагрузки воздействуют на трубу радиусом ro, которая жестко прикреплена к сфере. Это наиболее распространенный случай.
Нагрузки, передающиеся через квадратные фитинги со стороной 2Cx, можно рассматривать как нагрузки, которые распределены по кругу радиусом ro = Cx.
Нагрузки, передающиеся через прямоугольные опорные башмаки со стороной 2C
x и

, можно рассматривать как нагрузки, которые распределены по кругу радиусом

.
При воздействии местной нагрузки или момента в стенке напорной емкости возникают следующие силы и моменты.
а) Меридиональный момент Mx, действующий на единицу ширины нормального сечения, образованного пересечением корпуса с половинным углом раствора конуса:
б) Окружной момент

, действующий на единицу ширины меридионального сечения, проходящего через ось корпуса и ось патрубка.
в) Меридиональная мембранная сила, действующая на единицу ширины нормального сечения, как и для меридионального момента Mx.
г) Окружная мембранная сила, действующая на единицу ширины меридионального сечения, как и для окружного момента

.
Момент считается положительным, если является причиной сжатия с внешней стороны емкости.
Мембранная сила считается положительной, если является причиной растяжения стенки напорной емкости.
Деформация считается положительной, если возникает в удалении от центра сферы.
Эти силы, моменты и деформации корпуса, возникающие вследствие воздействия нагрузки, могут быть найдены как безразмерные параметры
и
Параметр s определяет местонахождение в корпусе искомой силы, момента или деформации.
Параметр u определяет площадь, по которой распределена нагрузка.
Эти два коэффициента могут быть быстро найдены по графику на рисунке У.24, по x, r
o и отношению

.
Рисунок У.24. График для нахождения s и u
На рисунках в
У.2.4.3 и
У.2.4.4 (
рисунки У.26 -
У.30) приведены графики безразмерных функций деформации, сил и моментов, перечисленных в а) - г), нанесенных напротив параметра s для заданных значений u.
Сплошные кривые в каждом наборе графиков приводят условия на краю нагруженной области, где u = s. Здесь обычно возникают наиболее неблагоприятные сочетания изгиба и нормального напряжения.
Прерывистые кривые для определенных значений u приводят условия в точках корпуса, которые находятся в удалении от края нагруженной области, где x больше, чем ro и u, следовательно, меньше, чем s.
Так как на графиках приведены безразмерные величины, они могут быть использованы в любой непротиворечивой системе единиц.
Напряжения и деформации, найденные по этим графикам, уменьшаются из-за влияния внутреннего давления, но это уменьшение мало, и им обычно можно пренебречь на практике.
У.2.4.3. Напряжения и деформации, вызванные влиянием радиальных нагрузок. На рисунке У.25 изображен корпус сферической формы, на который через патрубок радиусом r
o воздействует радиальная нагрузка.
Рисунок У.25. Воздействие радиальной нагрузки
на корпус сферической формы
Деформации, моменты и мембранные силы, вызванные влиянием нагрузки W, могут быть найдены по рисункам У.26 и
У.27. Описание кривых приведено в
У.2.4.4. Пример использования кривых приведен в
У.2.4.5.
Рисунок У.26. Деформация корпуса сферической формы
при воздействии радиальной нагрузки W
Рисунок У.27. Моменты и мембранные силы в корпусе
сферической формы при воздействии на него
радиальной нагрузки W
б) Меридиональный момент Mx на единицу ширины по рисунку У.27 и отношение
Mx = ордината кривой Mx x W.
в) Окружной момент

на единицу ширины по рисунку У.27 и отношение
г) Меридиональная мембранная сила N
x на единицу ширины по
рисунку У.27 и отношение
д) Окружная мембранная сила

на единицу ширины по
рисунку У.27 и отношение
У.2.4.4. Напряжения, деформации и отклонение от горизонтали под воздействием внешнего момента. На рисунке У.28 изображено воздействие внешнего момента на корпус сферической формы через патрубок радиусом r
o.
Рисунок У.28. Корпус сферической формы,
на который воздействует внешний момент
В этом случае деформации, моменты и мембранные силы зависят от угла

, а также от расстояния x от оси патрубка. Они могут быть найдены по рисункам У.29 и
У.30. Пояснения по кривым, указанным на графике, см. в
У.2.4.2.
Рисунок У.29. Деформации корпуса сферической формы
при воздействии на него внешнего момента M
Рисунок У.30. Моменты и мембранные силы в корпусе
сферической формы при воздействии на него
внешнего момента M
б) Меридиональный момент Mx на единицу ширины по рисунку У.30 и отношение
в) Окружной момент

на единицу ширины по
рисунку У.27 и отношение
г) Меридиональная мембранная сила N
x на единицу ширины по
рисунку У.30 и отношение
д) Окружная мембранная сила

на единицу ширины по
рисунку У.30 и отношение
Равные и противоположные максимальные значения всех величин, приведенных выше, возникают в плоскости момента, т.е. если

(см.
рисунок У.28) = 0° и

.
Отклонение от горизонтальной оси патрубка под воздействием внешнего момента находится по
где

- максимальная деформация на краю патрубка для

и u = s, т.е.:
У.2.4.5.1. Нагрузка величиной 4500 Н прикладывается к сфере диаметром 2,5 мм и 12,5 мм толщиной через патрубок диаметром 150 мм (E = 1,86·105 Н/мм
2, то есть сталь).
Найти деформацию и напряжения:
а) рядом с патрубком;
б) на расстоянии 225 мм от центра патрубка.
а) Рядом с патрубком

Деформация


Меридиональный момент M
x = +0,067W = 301 Н·мм/мм.

Окружной момент

.

Меридиональная мембранная сила

Результирующие меридиональные напряжения вычисляют по формуле

Снаружи f
x = -3,17 - 11,5 = -14,67 Н/мм
2 (сжатие).
Изнутри fx = -3,17 + 11,5 = +8,33 Н/мм2 (растяжение).
Результирующие окружные напряжения вычисляют по формуле

Снаружи

(сжатие).
Изнутри

(растяжение).
б) На расстоянии 225 мм от центра патрубка
u = 1,09 как прежде;

;
Интерполяция между прерывистыми кривыми на
рисунке У.26 при u = 1,09 и s = 3,25 дает
Тогда деформация

Откуда:
меридиональный момент Mx = -45 Н·мм/мм;
окружной момент

;
меридиональная мембранная сила Nx = -14,4 Н/мм;
окружная мембранная сила No = +6,25 Н/мм.
Результирующие меридиональные напряжения:
Снаружи

;
Изнутри fx = -1,15 - 1,73 = -2,88 Н/мм2.
Результирующие окружные напряжения:
Снаружи

;
Изнутри

.
Следовательно, деформация и напряжения, возникающие из-за нагрузки, незначительны на расстоянии 225 мм от центра патрубка, что говорит о том, что напряжения носят локальный характер.
У.2.4.5.2. Момент 1,13·10
5 Н·мм воздействует на патрубок, как в примере
У.2.4.5.1. Найти максимальную деформацию, максимальное напряжение рядом с патрубком и угловое смещение патрубка, возникающее из-за момента, если E = 1,86·10
5 Н/мм
2 (т.е. сталь).
Как прежде,

;

, и рядом с патрубком s = u = 1,09 (по
рисунку У.24).
Максимальные напряжения и деформация при

:

Максимальная деформация = -0,0066 мм.
Деформация при

с противоположной стороны патрубка будет +0,0066 мм.
Меридиональный момент

;
окружной момент

;
меридиональная мембранная сила

;
окружная мембранная сила

.
Максимальные напряжения равны результирующим меридиональным напряжениям, которые вычисляют по формуле:

Снаружи f
x = -0,74 - 6,04 = -6,78 Н/мм
2 (сжатие);
Изнутри fx = -0,74 + 6,04 = +5,3 Н/мм2 (растяжение);
Отклонение от горизонтали патрубка из-за влияния момента будет
У.2.5. Локальные нагрузки, возникающие из-за присоединения горловины
У.2.5.1. Метод относится к горловинам, находящимся на одном уровне с корпусом, так и к выступающим горловинам. Длина горловины не ограничивается и рассматривается как полубесконечная. Однако необходимо ограничивать нижний предел внутреннего выступа, равного

. Горловины с внутренним выступом меньше, чем

, должны рассматриваться как горловины, находящиеся на одном уровне с корпусом. Если внутренний выступ не удовлетворяет этому ограничению, необходимо подходить с осторожностью.
Все коэффициенты концентрации напряжений приведены на
рисунках У.31 -
У.38 включительно и основаны на теории максимального главного напряжения.
Коэффициенты концентрации напряжений, приведенные в
У.2.5.2 -
У.2.5.7, относятся к данным, полученным для сферы постоянной толщины T', в то время как на практике T' рассматривается как локальная толщина корпуса в месте присоединения к горловине, тогда как толщина остального корпуса имеет меньшее значение T. Толщина корпуса не должна уменьшаться до T на расстоянии H, где H измеряется от внешней поверхности патрубка или от края отверстия, если патрубок отсутствует, H равно наименьшему значению из

и

.
Дальнейшая эксплуатация подтверждает, что если толщина напорной емкости уменьшается с T' до T на расстоянии H от горловины, могут возникнуть более высокие напряжения, чем те, что приведены на
рисунках У.31 -
У.38 включительно, для маленьких значений

и больших значений

. Дополнительные указания не могут быть приведены на данном этапе.
В этой процедуре описывается метод вычисления максимальных напряжений, которые могут возникнуть в корпусе, а не в горловине. В некоторых случаях вычисленные напряжения могут быть выше в стенке горловины, чем в корпусе напорной емкости, особенно это касается очень тонких горловин. Эти случаи не рассматриваются.
В
У.2.5 -
У.2.6, в которых рассматриваются только радиальные горловины, применяются дополнительные сокращения:
M - внешний момент, воздействующий на горловину (в Н·мм)
P - внутреннее давление (в Н/мм2)
Q - радиальное осевое давление, воздействующее на горловину
R - средний радиус корпуса сферической формы (в мм)
r - средний радиус горловины (в мм)
S - усилие сдвига, воздействующее на горловину (в Н)
T' - локальная толщина стенки корпуса в месте соединения с горловиной (в мм)
t - локальная толщина стенки горловины (в мм)

- безразмерный параметр


- максимальное напряжение, возникающее из-за местной нагрузки.
У.2.5.2. Максимальное напряжение в месте соединения сферы/горловины, возникающее из-за воздействия внутреннего давления. На
рисунке У.31 даны графики коэффициентов концентрации напряжения (SCF) в зависимости от безразмерного параметра

, для разных значений отношений

для горловин, установленных на одном уровне со стенкой корпуса. Максимальное напряжение

вычисляют
Рисунок У.31. Максимальное напряжение в сфере
для внутреннего давления (горловины, установленные
на одном уровне со стенкой корпуса)
На рисунке У.32 приведены аналогичные графики для горловин с выступом.
Рисунок У.32. Максимальное напряжение в сфере
для внутреннего давления (горловины,
установленные с выступом)
Прежде чем пользоваться рисунком У.32, необходимо убедиться, что выступ горловины равен или больше, чем

; если условие не выполнено, необходимо использовать график на
рисунке У.31 для горловин, установленных на одном уровне со стенкой корпуса.
У.2.5.3. Максимальное напряжение в месте соединения сферы/горловины, вызванное воздействием радиальной нагрузки или осевого давления. На рисунке У.33 приведены графики коэффициентов концентрации напряжения в зависимости от безразмерного параметра

для горловин, установленных на одном уровне со стенкой корпуса. Максимальное напряжение вычисляется путем перемножения SCF, полученного по рисунку У.33, на

т.е.
Рисунок У.33. Максимальное напряжение
в сфере для осевого давления (горловины,
установленные на одном уровне со стенкой корпуса)
На рисунке У.34 приведены аналогичные графики для горловин с выступом.
Рисунок У.34. Максимальное напряжение в сфере
для осевого давления (горловины,
установленные с выступом)
| | ИС МЕГАНОРМ: примечание. В официальном тексте документа, видимо, допущена опечатка: имеется в виду рисунок У.34, а не рисунок 34. | |
Прежде чем пользоваться рисунком 34, необходимо убедиться, что выступ горловины равен или больше, чем

; если условие не выполнено, необходимо использовать график на
рисунке У.33, чтобы определить значения SCF.
У.2.5.4. Максимальное напряжение в месте соединения сферы/горловины, вызванное воздействием внешнего момента. Для горловин, установленных на одном уровне со стенкой корпуса, максимальное напряжение в месте соединения сферы/горловины может быть определено с помощью рисунка У.35. На первом шаге необходимо определить SCF для соответствующей геометрии горловины напорной емкости. Максимальное напряжение получается умножением SCF, полученного таким образом, на коэффициент

т.е.
Рисунок У.35. Максимальное напряжение
в сфере для нагрузки от момента (горловины,
установленные на одном уровне со стенкой корпуса)
Для горловин, установленных с выступом, эквивалентное максимальное напряжение определяется таким же образом, как показано на рисунке У.36, для определения SCF.
Рисунок У.36. Максимальное напряжение
в сфере для нагрузки от момента (горловины,
установленные с выступом)
Необходимо убедиться, что выступ горловины равен или больше, чем

; если условие не выполнено, необходимо использовать ту же процедуру, что и для горловин, установленных на одном уровне со стенкой корпуса.
У.2.5.5. Максимальное напряжение в месте соединения сферы/горловины, вызванное воздействием усилия сдвига. Для определения SCF для горловин, установленных на одном уровне со стенкой корпуса, необходимо использовать рисунок У.37. Максимальное напряжение

вычисляется путем перемножения полученного SCF и коэффициента

,
Рисунок У.37. Максимальное напряжение в сфере
для сдвиговой нагрузки (горловины, установленные
на одном уровне со стенкой корпуса)
Для горловин, установленных с выступом, должна использоваться вышеизложенная процедура (см. рисунок У.38).
Рисунок У.38. Максимальное напряжение в сфере
для сдвиговой нагрузки (горловины,
установленные с выступом)
Необходимо провести проверку, чтобы убедиться, что длина внутреннего выступа горловины равна или больше

.
Если условие не выполняется, необходимо использовать процедуру, соответствующую процедуре для горловин, установленных на одном уровне со стенкой корпуса.
У.2.5.6. Максимальное напряжение в месте соединения сферы/горловины, вызванное воздействием комбинированной нагрузки. Чтобы осторожно оценить напряжение, возникающее под воздействием комбинированных нагрузок, необходимо сложить максимальные напряжения для каждой нагрузки, взятой по отдельности. Эта оценка всегда будет приблизительной, т.к. напряжения для каждой отдельной нагрузки могут возникать в разных местах и иметь разное направление (

и/или

).
У.2.5.7. Напряжения, возникающие на отдалении от нагруженной области. Метод, приведенный в
У.2.5 для вычисления местных напряжений в месте соединения сферы/горловины, учитывает только максимальные уровни напряжений. Информация о напряжениях, возникающих на отдалении от нагруженной области, отсутствует.
Распределения напряжения вблизи от места соединения сферы/горловины необходимы в тех случаях, когда рядом от рассматриваемой нагруженной области находятся другие нагруженные области. Следует использовать данные, доступные в
У.2.4, чтобы определить эти напряжения. Предполагается, что хотя величины локальных нагрузок могут различаться, график уровня напряжения в зависимости от расстояния от нагруженной области остается в основном одинаковым. Распределение напряжения на отдалении от нагруженной области может быть вычислено по процедуре, приведенной в
У.2.4, и значения, полученные таким образом, перемножаются на коэффициент K, где K - отношение

, определенное в
У.2.5, к напряжению на краю присоединения, вычисленного в соответствии с
У.2.4.
У.2.6. Влияние внешних сил и моментов на патрубки
Значительные внешние силы и моменты, вызванные температурными колебаниями трубопроводов, могут воздействовать на патрубки напорных емкостей.
Напряжения, вызванные воздействием этих сил и моментов, будут значительно завышены, если при определении сил в трубопроводе делается предположение, что присоединение трубопровода к напорной емкости соответствует присоединению к якорной трубе.
Более точные значения окончательных величин сил и моментов могут быть найдены, если отклонение, вызванное единичной радиальной нагрузкой, и уклоны, вызванные единичным продольным и окружным моментами, распределены по площади патрубка и известен тип армирования.
| | ИС МЕГАНОРМ: примечание. В официальном тексте документа, видимо, допущена опечатка: пункт У.3 отсутствует. | |
Эти значения могут быть найдены для заданных напорных емкостей и патрубков при помощи методов, приведенных в
У.2.2.4 и У.3 для цилиндрических напорных емкостей, и при помощи методов, приведенных в
У.2.4.3 и
У.2.4.4 для сферических напорных емкостей.
Если нагрузки, создаваемые трубопроводом, известны, напряжения в напорной емкости должны находиться по методу, приведенному в
У.2, за исключением случаев, если в патрубке с внешним компенсирующим кольцом толщиной t
1, на которое воздействует окружной момент, существует дополнительный окружной момент в корпусе на краю армирующего кольца до

, это значение должно быть добавлено к значению

, вычисленному по
У.2.3.
Поправка и отклонение патрубка, приведенные выше, применяются только для окружных моментов и из-за эффекта жесткости присоединения патрубка, который имеет небольшое влияние на эффект продольных моментов.
Напряжение внутри корпуса, вызванное окружным сгибающим моментом

, суммируется с окружным мембранным напряжением, вызванным внутренним давлением, но этого напряжения не будет, если напорная емкость будет проходить гидравлическое испытание.
(справочное)
РЕКОМЕНДУЕМЫЕ ОПОРЫ ДЛЯ ВЕРТИКАЛЬНЫХ НАПОРНЫХ
И БЕЗНАПОРНЫХ ЕМКОСТЕЙ
Рекомендуемыми опорами для напорных и безнапорных емкостей являются:
а) бетонный фундамент; или
б) металлическая пластина на ростверке значительной толщины, чтобы местная деформация плоского дна емкости не превышала допустимых расчетных значений.
В качестве основания не допускается использовать выровненную землю независимо от того, есть ли подсыпка из песка или из другого гранулированного материала.
Если используется бетонное основание, отклонение от номинального уровня не должно превышать +/- 1 мм/м. Перед установкой безнапорной или напорной емкости бетон должен быть обработан слоем битумного песка толщиной 25 мм. Битумный песок производится путем горячего смешивания в следующих пропорциях по массе:
(9,0 +/- 0,5)% нетоксичный разжиженный битум (т.е. разжиженный
керосином, а не креозотом);
(10 +/- 1)% наполнитель, в качестве которого используется
известняковая пыль, просеянная через сито (размер
ячейки сита 75 мкм), или портландцемент;
(81 +/- 1,5)% чистый сухой промытый песок.
В качестве альтернативы песку могут быть использованы щебень (фракции от 1 до 7), шлак или известь.
В качестве подсыпки для бетонных оснований не рекомендуется использовать рыхлый песчаный грунт.
(справочное)
КОНСТРУКЦИЯ МЕТАЛЛИЧЕСКИХ ПРОУШИН И ЦАПФ
Х.1. Необходимо согласовывать, как манипулировать напорной емкостью во время погрузки, разгрузки, при транспортировке, хранении, установке и демонтаже. Цепи и стальные канаты не должны непосредственно контактировать со стеклокомпозитом.
Х.2. Необходимо определить количество, положение, ориентацию и тип проушин для цапф подъема.
Ниже приведены типичные случаи.
а) Башня: пара цапф с верхнего края, проушина для подъема (под 90° к цапфам) с нижнего края (см. рисунок Х.1).
Рисунок Х.1. Цапфы и проушина
б) Высокая вертикальная цилиндрическая безнапорная емкость: пара параллельных проушин для подъема, расположенных на плоской торцевой стенке (подъем осуществляется через распределительную балку), и проушина для подъема рядом с основанием (под 90° к диаметру, соединяющему верхние проушины) (см. рисунок Х.2).
Рисунок Х.2. Параллельные проушины
в) Короткая вертикальная цилиндрическая емкость: пара проушин в плоскости диаметра на плоской торцевой стенке (см. рисунок Х.3) или три равноудаленных радиальных проушины для подъема по краю торцевой стенки (см.
рисунок Х.4).
Рисунок Х.3. Проушины в плоскости диаметра
Рисунок Х.4. Равноудаленные радиальные проушины
г) Горизонтальная безнапорная емкость: пара проушин в плоскости верхней центральной линии (см. рисунок Х.5) или без проушин, если используются тканевые стропы.
Рисунок Х.5. Проушины в плоскости горизонтальной
напорной емкости
Х.3. Должна рассчитываться наибольшая жесткая нагрузка на каждую проушину или цапфу, при этом необходимо учитывать направление нагрузки.
Х.4. Несущая способность проушины должна равняться несущей способности металлической скобы.
Конструкция цапф должна обеспечивать совместимость со стропами из металлических канатов или с тканевыми стропами.
Х.5. Проушина или цапфа должны крепиться к напорной емкости через основание. В качестве основания обычно используют металлическое кольцо, контактную площадку или рамную конструкцию, предназначенные для распределения нагрузки по очень большой площади.
Х.6. Место соединения основания для проушин и цапф должно проверяться на прочность на отрыв и прочность на сдвиг.
Х.7. При необходимости деформации, вызванные местной нагрузкой в стенке напорной емкости, должны проверяться в соответствии с
Приложением У.
(справочное)
ОПРЕДЕЛЕНИЕ ТЕМПЕРАТУРЫ ТЕПЛОВОЙ ДЕФОРМАЦИИ
Температура деформации при нагрузке 1,81 Н/мм2 должна быть записана как температура тепловой деформации смолы.
Ц.1. Сущность метода
Образец подвергают трехточечному изгибу под действием постоянной нагрузки со стороны главной плоскости образца (предпочтительно) для получения напряжения при изгибе. Температуру повышают с равномерной скоростью и фиксируют значение температуры, при которой возникает стандартный прогиб, соответствующий установленному увеличению напряжения при изгибе.
Ц.2. Оборудование
Ц.2.1. Устройство для создания напряжения при изгибе
Устройство для создания напряжения при изгибе (далее - устройство) должно быть сконструировано в соответствии с
рисунком Ц.1. Устройство состоит из жесткой металлической рамы, в которой может свободно перемещаться стержень в вертикальном направлении, в основании которой устанавливаются в горизонтальном положении металлические опоры полуцилиндрической формы.
1 - прибор с круговой шкалой; 2 - термометр; 3 - мешалка;
4 - нагрузка; b - ширина испытуемого образца
Рисунок Ц.1. Прибор для определения температуры изгиба
под нагрузкой (показано для испытания со стороны
главной плоскости образца)
Материал опор и вертикальных элементов рамы должен иметь такой же коэффициент теплового линейного расширения, что и стержень.
Примечание. Если вертикальные элементы прибора не имеют одинакового коэффициента теплового линейного расширения, то разность в изменении длины этих элементов приводит к погрешности измерения кажущегося прогиба образца. В этом случае необходимо провести контрольное испытание в качестве образца, используя контрольный образец, изготовленный из инвара или боросиликатного стекла. Толщина контрольного образца должна быть равна толщине образца. Диапазон температур испытания контрольного образца должен соответствовать диапазону температур испытания образца. Должен быть определен поправочный коэффициент, размерность которого выражают в миллиметрах. Если поправочный коэффициент превышает 0,01 мм, его значение необходимо учитывать в результатах испытания, прибавляя к значению кажущегося прогиба образца.
Стержень должен быть оснащен подставкой для помещения грузов и нагружающим наконечником.
Радиус закругления нагружающего наконечника и опор должен составлять (3,0 +/- 0,2) мм. Ширина контактной поверхности нагружающего наконечника и опор должна быть не менее ширины образца.
Пролет (расстояние между точками контакта образца с опорами) должен быть (64 +/- 1) мм.
Вертикальное усилие, приложенное к образцу посредством наконечника, должно приходиться на середину расстояния между опорами. Линии соприкосновения опор с образцом должны быть параллельны плоскости наконечника и находиться под прямым углом к длине образца, размещенного симметрично поперек этих линий.
Ц.2.2. Нагревательное оборудование
В комплект нагревательного оборудования должны входить нагревательная ванна, наполненная теплопередающей жидкостью, мешалка, блок управления.
Уровень теплопередающей жидкости в нагревательной ванне должен быть выше верхней плоскости образца не менее, чем на 50 мм.
Теплопередающая жидкость должна быть стабильна в диапазоне изменения температуры испытания и не должна вызывать набухание или растрескивание образца.
В качестве теплопередающей жидкости рекомендуется использовать парафин, трансформаторное масло, глицерин или силиконовое масло. Допускается применение других жидкостей.
Блок управления должен обеспечивать увеличение температуры с равномерной скоростью (120 +/- 10) °C/ч.
Скорость нагревания периодически проверяют:
- либо путем проверки автоматического показания температуры;
- либо проверкой показания температуры каждые 6 мин вручную.
Требования к скорости нагревания считают удовлетворительными, если через каждые 6 мин в процессе испытания изменение температуры составляет (12 +/- 1) °C.
Разность температур жидкости в нагревательной ванне между температурой у середины и у концов образца не должна превышать +/- 1 °C.
Примечание. В конструкции нагревательного оборудования следует предусмотреть автоматическое прекращение нагревания по достижении значения стандартного прогиба.
Ц.2.3. Грузы
Для нагружения образца до требуемого напряжения при изгибе, рассчитанного в соответствии с
Ц.4.1, необходимо иметь набор разновесов.
Примечание. Может потребоваться набор разновесов, отличающихся по массе на 1 г.
Ц.2.4. Средство измерения температуры
Средство измерения температуры должно иметь точность не менее 0,5 °C.
Средство измерения температуры должно быть откалибровано на глубине погружения для конкретного используемого прибора. Датчик температуры средства измерения температуры должен располагаться на расстоянии (2,0 +/- 0,5) мм от середины образца.
Примечание. Рекомендуется оснастить нагревательную ванну отдельным средством измерения температуры в каждом испытательном отсеке, если их несколько.
Ц.2.5. Прибор для измерения прогиба
Для измерения прогиба рекомендуется использовать микрометр с круговой шкалой, который должен иметь точность измерения 0,01 мм. Измерение прогиба проводить в середине образца между опорами.
Для измерения прогиба допускается использовать другие средства измерения, отвечающие требованиям точности.
Примечание. В приборах определенного типа усилие F
s, прилагаемое пружиной прибора с круговой шкалой, действует вверх и поэтому уменьшает усилие, направленное вниз, оказываемое нагруженным стержнем, тогда как в приборах других типов усилие F
s действует вниз и увеличивает приложенное усилие, оказываемое нагруженным стержнем. В таких случаях необходимо определить величину и направление F
s, чтобы иметь возможность компенсировать его (см.
Ц.4.1). Поскольку в определенных приборах с круговой шкалой F
s значительно изменяется в диапазоне измерения прибора, его необходимо измерять в той части диапазона, в которой будет использоваться прибор.
Ц.3. Подготовка к проведению испытания
Ц.3.1. Общие требования
Поверхности образцов должны быть ровными и гладкими, смежные поверхности образца должны быть взаимно перпендикулярны. На поверхностях образцов не допускается наличие царапин, вмятин, следов травления и заусенцев.
Все плоскости резания должны быть гладкими, следы механической обработки направлены вдоль образца.
Требования внешнего вида должны проверяться путем визуального контроля, требования к прямизне, прямоугольности и плоскостности - при помощи микрометрического штангенциркуля.
Образцы, не отвечающие требованиям, описанным выше, должны браковаться или подвергаться механической обработке до получения соответствующего размера и формы перед испытанием.
При использовании образцов, полученных литьем, допускается наличие вмятин, угла литейного уклона от 1° до 2° для облегчения распалубки, а также перепад в толщине не более 0,1 мм, который образуется при охлаждении образца из-за разности температур в центре образца и по краям, поэтому образцы могут перекашиваться при нагревании и изгибаться без нагрузки. В связи с этим необходимо использовать удвоенное количество образцов, полученных литьем, и прикладывать нагрузку к двум образцам с противоположных сторон.
Ц.3.2. Форма и размеры образцов
Образец изготавливают в форме прямоугольного параллелепипеда, размеры которого должны соответствовать таблице Ц.1.
Таблица Ц.1
Размеры образца
Наименование параметра | Значение параметра |
Длина l, мм | 80,0 +/- 2,0 |
Ширина b, мм | 10,0 +/- 0,2 |
Толщина h, мм | 4,0 +/- 0,2 |
Ц.3.3. Количество образцов
Испытывают не менее пяти образцов. Чтобы компенсировать влияние искривления, образцы необходимо испытывать, располагая их взаимно противоположными плоскостями по отношению к нагружающему наконечнику. Если необходимо провести повторные испытания, то для каждого повторного испытания потребуется два дополнительных образца.
Ц.3.4. Подготовка образцов
Образцы изготавливают в соответствии с нормативно-технической документацией на материал. При отсутствии таких указаний образцы должны изготавливаться прессованием в соответствии с ГОСТ 12015, литьем под давлением -
ГОСТ 12019, механической обработкой - ГОСТ 26277.
При использовании образцов, полученных литьем под давлением, ширина образца должна быть перпендикулярна направлению формующего усилия.
В случае изготовления образцов из листового материала толщиной более 7 мм, механической обработке подвергают одну из сторон образца, пока толщина образца не будет уменьшена до заданного размера. Если стороны образца неодинаковы, в протоколе испытания необходимо отметить сторону, которая подвергалась механической обработке.
Ц.3.5. Отжиг
Чтобы свести к минимуму расхождения в результатах испытания, вызванные различными условиями формования, образцы должны подвергаться отжигу перед испытанием. Процедура отжига должна устанавливаться в нормативно-технической документации на материал.
Ц.3.6. Кондиционирование
| | ИС МЕГАНОРМ: примечание. ГОСТ 12423-66 утратил силу с 1 января 2015 года в связи с введением в действие ГОСТ 12423-2013 (Приказ Росстандарта от 22.11.2013 N 1069-ст). | |
Кондиционирование образцов должно проводиться в соответствии с требованиями нормативно-технической документации на материал. В случае отсутствия указаний образцы кондиционируются при одной из стандартных атмосфер по ГОСТ 12423.
Ц.4. Проведение испытания
Ц.4.1. Установление нагрузки
Измеряют толщину и ширину образца с точностью до 0,1 мм. Устанавливают пролет между опорами (64 +/- 1) мм.
Прикладывают нагрузку 1,81 Н/мм2.
Прикладываемая нагрузка должна создавать напряжение при изгибе, равное:
- 1,80 МПа (предпочтительное значение), в этом случае применяется метод A;
- 0,45 МПа, в этом случае применяется метод B;
- 8,00 МПа, в этом случае применяется метод C.
При установлении нагрузки необходимо учитывать массу стержня, а также усилие, возникающее из-за воздействия пружины прибора с круговой шкалой (см.
Ц.2.5).
Массу груза mw, кг, которая необходима для нагружения образца до требуемого напряжения при изгибе, вычисляют по формуле

(Ц.1)
где F - прикладываемая нагрузка, Н;
Fs - усилие, возникающее из-за воздействия пружины прибора с круговой шкалой, Н;
mr - масса стержня, кг.
Значение усилия Fs имеет положительный знак, если противодействие пружины направлено в сторону образца (т.е. вниз), и отрицательный, если противодействие пружины направлено в противоположном направлении (т.е. против опускания стержня), или нулю, если пружинный инструмент вообще не используется.
Значение фактической прикладываемой к образцу нагрузки должно быть равно (F +/- 2,5%).
Ц.4.2. Начальная температура оборудования для нагрева
Перед началом каждого испытания температура нагревательного оборудования
(Ц.2.2) должна быть не более 27 °C.
Ц.4.3. Измерение
Образец устанавливают на опоры главной плоскостью. Устройство для создания напряжения при изгибе помещают в нагревательную ванну, как показано на
рисунке Ц.1. Прикладывают нагрузку, чтобы получить напряжение при изгибе образца. Через 5 мин после первоначального приложения нагрузки записывают показание микрометра
(Ц.2.5) или устанавливают его на 0.
Примечание. Пятиминутный интервал необходим для того, чтобы частично компенсировать ползучесть, проявляемую некоторыми материалами при комнатной температуре под воздействием напряжения при изгибе. Ползучесть, которая возникает в этом интервале, составляет значительную долю ползучести, возникающей в первые 30 мин. Допускается не выдерживать образец в течение 5 мин под нагрузкой при испытании материалов, не проявляющих заметной ползучести в течение первых 5 мин при исходной температуре испытания.
Увеличивают температуру в ванне с равномерной скоростью (120 +/- 10) °C/ч. Записывают температуру, при которой начальный прогиб образца увеличился на значение стандартного прогиба [см. формулу (Ц.2)]. Эта температура является температурой изгиба под нагрузкой.
Стандартный прогиб

, мм, со стороны главной плоскости образца вычисляют по формуле

(Ц.2)
где L - расстояние между опорами, мм;

- увеличение деформации изгиба, %;
h - толщина образца, мм.
Значение увеличения деформации изгиба принимают равным 0,2%.
Примечание. При интерпретации результатов испытания допускается пользоваться зависимостью, если она известна, величины прогиба образца от его температуры. Таким образом, рекомендуется, чтобы там, где возможно, прогиб образца измерялся непрерывно во время ожидания и во время нагревания. Испытание следует выполнять не менее, чем на двух образцах. Каждый образец должен использоваться только один раз. Чтобы компенсировать эффекты асимметрии, например, искривление образца, образцы необходимо измерять попарно и располагать противоположными сторонами к нагружающему наконечнику.
Ц.5. Обработка результатов
За результат испытания принимают среднеарифметическое значение всех результатов испытания всех образцов.
(справочное)
ОПРЕДЕЛЕНИЕ УДЕЛЬНОГО ПРЕДЕЛА ПРОЧНОСТИ ПРИ СЖАТИИ
| | ИС МЕГАНОРМ: примечание. ГОСТ 4651-82 утратил силу с 1 марта 2015 года в связи с введением в действие ГОСТ 4651-2014 (Приказ Росстандарта от 29.05.2014 N 467-ст). | |
Ч.1. Удельный предел прочности при сжатии определяют по ГОСТ 4651 с изменением по Ч.2.
Ч.2. Удельный предел прочности при сжатии uc, Н·м2/мм·кг, вычисляют по формуле

(Ч.1)
где F - сжимающая сила, Н;
b - минимальная ширина образца для испытаний, мм;
m - масса на единицу площади однородного армирующего наполнителя образца, кг/м2.
(справочное)
ОПРЕДЕЛЕНИЕ ПРОЧНОСТИ НА РАЗДИР МЕЖДУ СЛОЯМИ ЛАМИНАТА
Ш.1. Сущность метода
К образцу прикладывают растягивающую нагрузку, действующую перпендикулярно плоскости образца, до тех пор, пока не произойдет разрушение образца.
Ш.2. Оборудование по
8.13.2, а также универсальная испытательная машина по
8.7.2.
Ш.3. Подготовка к проведению испытаний
Ш.3.1. Подготовка образцов по
8.4.3.1 настоящего стандарта.
Ш.3.2. Форма и размеры образцов должны соответствовать рисунку Ш.1.
Рисунок Ш.1. Образец для определения предела прочности
на раздир связи между слоями ламината
Между слоями ламината делают надпил глубиной 20 мм, как показано на рисунке Ш.1.
Ш.3.3. Для определения предела прочности на раздир связи между слоями ламината используют не менее пяти образцов.
Ш.3.4. Образцы кондиционируют при температуре (20 +/- 5) °C не менее 3 ч до начала проведения испытания. Температура проведения испытания - (20 +/- 5) °C.
Ш.4. Проведение испытаний
Образец закрепляют в тисках или в зажиме в горизонтальном положении и прикладывают нагрузку к ламинату в области надпила при помощи подвешивания груза или испытательной машины до тех пор, пока не произойдет расслоение ламината. Необходимо, чтобы нагрузка действовала в плоскости, перпендикулярной плоскости ламината во время испытания (см.
рисунок 8.10).
Ш.5. Обработка результатов
Предел прочности на раздир связи между слоями ламината вычисляют по
формуле (8.8).
За результат испытания принимают среднеарифметическое значение результатов испытания всех образцов.
| | Предельно допустимые концентрации (ПДК) вредных веществ в воздухе рабочей зоны |
| | Предельно допустимые концентрации (ПДК) загрязняющих веществ в атмосферном воздухе населенных мест |
| | Гигиенические требования к размещению и обезвреживанию отходов производства и потребления. |