Главная // Пожарная безопасность СПРАВКА
Источник публикации
В данном виде документ опубликован не был.
Первоначальный текст документа опубликован в издании
М., 2017.
Информацию о публикации документов, создающих данную редакцию, см. в справке к этим документам.
Примечание к документу
Документ включен в
Перечень документов в области стандартизации, в результате применения которых на добровольной основе обеспечивается соблюдение требований Федерального
закона от 30.12.2009 N 384-ФЗ "Технический регламент о безопасности зданий и сооружений" (
Приказ Росстандарта от 02.04.2020 N 687).
Название документа
"СП 310.1325800.2017. Свод правил. Бассейны для плавания. Правила проектирования"
(утв. и введен в действие Приказом Минстроя России от 26.12.2017 N 1716/пр)
(ред. от 28.12.2023)
"СП 310.1325800.2017. Свод правил. Бассейны для плавания. Правила проектирования"
(утв. и введен в действие Приказом Минстроя России от 26.12.2017 N 1716/пр)
(ред. от 28.12.2023)
Утвержден и введен в действие
и жилищно-коммунального хозяйства
Российской Федерации
от 26 декабря 2017 г. N 1716/пр
СВОД ПРАВИЛ
БАССЕЙНЫ ДЛЯ ПЛАВАНИЯ
ПРАВИЛА ПРОЕКТИРОВАНИЯ
Swimming pools. Design rules
СП 310.1325800.2017
| | Список изменяющих документов Минстроя России от 14.12.2021 N 930/пр, Минстроя России от 28.12.2023 N 1004/пр) | |
Дата введения
27 июня 2018 года
Сведения о своде правил
1 ИСПОЛНИТЕЛИ - Общество с ограниченной ответственностью "Научно-исследовательский и проектный институт учебных, общественных и жилых зданий" (ООО "Институт общественных зданий"); Акционерное общество "Центральный научно-исследовательский и проектно-экспериментальный институт промышленных зданий и сооружений - ЦНИИПромзданий" (АО "ЦНИИПромзданий")
2 ВНЕСЕН Техническим комитетом по стандартизации ТК 465 "Строительство"
3 ПОДГОТОВЛЕН к утверждению Департаментом градостроительной деятельности и архитектуры Министерства строительства и жилищно-коммунального хозяйства Российской Федерации (Минстрой России)
4 УТВЕРЖДЕН И ВВЕДЕН В ДЕЙСТВИЕ
приказом Министерства строительства и жилищно-коммунального хозяйства Российской Федерации от 26 декабря 2017 г. N 1716/пр и введен в действие с 27 июня 2018 г.
5 ЗАРЕГИСТРИРОВАН Федеральным агентством по техническому регулированию и метрологии (Росстандарт)
6 ВВЕДЕН ВПЕРВЫЕ
В случае пересмотра (замены) или отмены настоящего свода правил соответствующее уведомление будет опубликовано в установленном порядке. Соответствующая информация, уведомление и тексты размещаются также в информационной системе общего пользования - на официальном сайте разработчика (Минстрой России) в сети Интернет
Абзац исключен с 15.01.2022. -
Изменение N 1, утв. Приказом Минстроя России от 14.12.2021 N 930/пр.
Свод правил разработан в целях обеспечения соблюдения требований Федерального
закона от 30 декабря 2009 г. N 384-ФЗ "Технический регламент о безопасности зданий и сооружений". Свод правил обеспечивает соблюдение требований федеральных законов от 22 июля 2008 г.
N 123-ФЗ "Технический регламент о требованиях пожарной безопасности", от 23 ноября 2009 г.
N 261-ФЗ "Об энергосбережении, повышении энергетической эффективности и о внесении изменений в отдельные законодательные акты Российской Федерации".
(в ред.
Изменения N 1, утв. Приказом Минстроя России от 14.12.2021 N 930/пр)
Свод правил разработан авторским коллективом: ООО "Институт общественных зданий" (руководитель работы - канд. архитектуры Д.А. Рождественский, ответственные исполнители - канд. архитектуры А.М. Гарнец, ст. науч. сотр. Л.В. Сигачева); ОФСОО "Российская ассоциация спортивных сооружений" (д-р психол. наук, В.Б. Мяконьков); ООО "Институт спортивных сооружений" (А.В. Трухан).
Изменение N 1 к настоящему своду правил выполнено авторским коллективом АО "ЦНИИПромзданий" (канд. техн. наук Н.Г. Келасьев, канд. архитектуры Д.К. Лейкина); ОФСОО "Российская ассоциация спортивных сооружений" (руководитель работы - д-р психол. наук В.Б. Мяконьков, Ю.В. Шелякова).
(абзац введен
Изменением N 1, утв. Приказом Минстроя России от 14.12.2021 N 930/пр)
1.1 Настоящий свод правил устанавливает требования к проектированию плавательных бассейнов, предназначенных для приучения к воде детей дошкольного возраста, обучения плаванию, учебных занятий школьников, физкультурно-оздоровительных занятий граждан, для проведения спортивных мероприятий.
1.2 Настоящий свод правил распространяется на проектирование вновь строящихся и реконструируемых зданий, сооружений и помещений бассейнов независимо от их формы собственности.
(раздел 2 в ред.
Изменения N 1, утв. Приказом Минстроя России от 14.12.2021 N 930/пр)
В настоящем своде правил использованы нормативные ссылки на следующие документы:
ГОСТ 27751-2014 Надежность строительных конструкций и оснований. Основные положения
ГОСТ Р 55529-2013 Объекты спорта. Требования безопасности при проведении спортивных и физкультурных мероприятий. Методы испытаний
ГОСТ Р 59219-2020 Бассейны для плавания. Системы оповещения опасности утопления. Общие технические условия
СП 1.13130.2020 Системы противопожарной защиты. Эвакуационные пути и выходы
СП 2.13130.2020 Системы противопожарной защиты. Обеспечение огнестойкости объектов защиты
СП 3.13130.2009 Системы противопожарной защиты. Система оповещения и управления эвакуацией людей при пожаре. Требования пожарной безопасности
СП 4.13130.2013 Системы противопожарной защиты. Ограничение распространения пожара на объектах защиты. Требования к объемно-планировочным и конструктивным решениям (с изменением N 1)
СП 20.13330.2016 "СНиП 2.01.07-85* Нагрузки и воздействия" (с изменениями N 1, N 2, N 3)
СП 22.13330.2016 "СНиП 2.02.01-83* Основания зданий и сооружений" (с изменениями N 1, N 2, N 3)
СП 24.13330.2011 "СНиП 2.02.03-85 Свайные фундаменты" (с изменениями N 1, N 2, N 3)
СП 28.13330.2017 "СНиП 2.03.11-85 Защита строительных конструкций от коррозии" (с изменениями N 1, N 2)
СП 42.13330.2016 "СНиП 2.07.01-89* Градостроительство. Планировка и застройка городских и сельских поселений" (с изменениями N 1, N 2)
СП 52.13330.2016 "СНиП 23-05-95* Естественное и искусственное освещение" (с изменением N 1)
СП 59.13330.2020 "СНиП 35-01-2001 Доступность зданий и сооружений для маломобильных групп населения"
СП 60.13330.2020 "СНиП 41-01-2003 Отопление, вентиляция и кондиционирование воздуха"
СП 63.13330.2018 "СНиП 52-01-2003 Бетонные и железобетонные конструкции. Основные положения" (с изменением N 1)
СП 64.13330.2017 "СНиП II-25-80 Деревянные конструкции" (с изменениями N 1, N 2)
СП 118.13330.2012 "СНиП 31-06-2009* Общественные здания и сооружения" (с изменениями N 1, N 2, N 3, N 4)
СП 132.13330.2011 Обеспечение антитеррористической защищенности зданий и сооружений. Общие требования проектирования
| | ИС МЕГАНОРМ: примечание. В официальном тексте документа, видимо, допущена опечатка: СП 133.13330.2012 имеет название "Сети проводного радиовещания и оповещения в зданиях и сооружениях. Нормы проектирования". | |
СП 133.13330.2012 Сети проводного радиовещания и оповещения в зданиях и сооружениях (с изменением N 1)
СП 136.13330.2012 Здания и сооружения. Общие положения проектирования с учетом доступности для маломобильных групп населения (с изменением N 1)
СП 140.13330.2012 Городская среда. Правила проектирования для маломобильных групп населения (с изменением N 1)
СП 256.1325800.2016 Электроустановки жилых и общественных зданий. Правила проектирования и монтажа (с изменениями N 1, N 2, N 3, N 4)
СП 484.1311500.2020 Системы противопожарной защиты. Системы пожарной сигнализации и автоматизация систем противопожарной защиты. Нормы и правила проектирования
СП 485.1311500.2020 Системы противопожарной защиты. Установки пожаротушения автоматические. Нормы и правила проектирования
СП 486.1311500.2020 Системы противопожарной защиты. Перечень зданий, сооружений, помещений и оборудования, подлежащих защите автоматическими установками пожаротушения и системами пожарной сигнализации. Требования пожарной безопасности
СП 2.1.3678-20 Санитарно-эпидемиологические требования к эксплуатации помещений, зданий, сооружений, оборудования и транспорта, а также условиям деятельности хозяйствующих субъектов, осуществляющих продажу товаров, выполнение работ или оказание услуг
СанПиН 2.1.3684-21 Санитарно-эпидемиологические требования к содержанию территорий городских и сельских поселений, к водным объектам, питьевой воде и питьевому водоснабжению населения, атмосферному воздуху, почвам, жилым помещениям, эксплуатации производственных, общественных помещений, организации и проведению санитарно-противоэпидемических (профилактических) мероприятий
СанПиН 1.2.3685-21 Гигиенические нормативы и требования к обеспечению безопасности и (или) безвредности для человека факторов среды обитания
Примечание - При пользовании настоящим сводом правил целесообразно проверить действие ссылочных документов в информационной системе общего пользования - на официальном сайте федерального органа исполнительной власти в сфере стандартизации в сети Интернет или по ежегодному информационному указателю "Национальные стандарты", который опубликован по состоянию на 1 января текущего года, и по выпускам ежемесячного информационного указателя "Национальные стандарты" за текущий год. Если заменен ссылочный документ, на который дана недатированная ссылка, то рекомендуется использовать действующую версию этого документа с учетом всех внесенных в данную версию изменений. Если заменен ссылочный документ, на который дана датированная ссылка, то рекомендуется использовать версию этого документа с указанным выше годом утверждения (принятия). Если после утверждения настоящего свода правил в ссылочный документ, на который дана датированная ссылка, внесено изменение, затрагивающее положение на которое дана ссылка, то это положение рекомендуется применять без учета данного изменения. Если ссылочный документ отменен без замены, то положение, в котором дана ссылка на него, рекомендуется применять в части, не затрагивающей эту ссылку. Сведения о действии сводов правил целесообразно проверить в Федеральном информационном фонде стандартов.
(раздел 3 в ред.
Изменения N 1, утв. Приказом Минстроя России от 14.12.2021 N 930/пр)
В настоящем своде правил использованы следующие термины с соответствующими определениями:
3.1 бассейн для плавания: Сооружение крытого или открытого типа, содержащее в своем составе ванны для приучения к воде, обучения плаванию, оказания физкультурно-оздоровительных услуг, проведения учебных занятий, спортивной подготовки, проведения физкультурных и спортивных мероприятий различного уровня.
3.2 ванна бассейна: Резервуар с водой в составе основной функциональной зоны бассейна для плавания.
3.3 всероссийский реестр объектов спорта: Реестр, формируемый в целях систематизации данных о количестве, назначении и состоянии объектов спорта, находящихся на территории Российской Федерации и используемых для проведения физкультурных мероприятий и спортивных мероприятий, включенных в Единый календарный план (ЕКП) межрегиональных, всероссийских и международных физкультурных мероприятий и спортивных мероприятий, календарные планы физкультурных мероприятий и спортивных мероприятий субъектов Российской Федерации.
3.4 вспомогательная зона: Набор помещений и/или выделенных пространств, обеспечивающих бассейну для плавания сопутствующие функции технического обслуживания и сервисов для различных клиентских групп.
3.5 зал ванны: Помещение бассейна для плавания, включающее ванну бассейна и обходные дорожки.
3.6 зал общей физической подготовки; ОФП: Спортивный зал для общей физической подготовки занимающихся.
3.7 зал специальной физической подготовки; СФП: Спортивный зал для специальной физической подготовки занимающихся с применением специализированного спортивно-технологического оборудования (тренажеров).
3.8 зона зрителей: Пространство в непосредственной близости от соревновательной зоны, предназначенное для зрителей спортивных мероприятий, проводимых на спортивном сооружении.
3.9 зона организаторов: Набор помещений, предназначенных для размещения и работы организаторов спортивного мероприятия.
3.10 грязевой лоток: Канал для отведения с обходной дорожки и сбора воды, не предназначенной для повторного использования.
3.11 категория спортивного сооружения: Соответствие спортивного сооружения требованиям уровня проводимых спортивных мероприятий: A - международные и всероссийские спортивные мероприятия; B - межрегиональные спортивные мероприятия, физкультурные мероприятия и спортивные мероприятия субъекта Российской Федерации; C - иные физкультурные и спортивные мероприятия.
3.12 клиентские группы: Разделенные на категории (сегменты) гости, организаторы, участники, зрители, судьи, обслуживающий и технический персонал, а также другие группы, находящиеся на спортивном сооружении в период проведения спортивного мероприятия.
3.13 модульное здание или сооружение: Здание или сооружение комплектной заводской поставки из одного или нескольких блоков (изделий), компоновка которых обеспечивает его функциональное назначение.
3.14 обходная дорожка: Свободное пространство по периметру ванны бассейна, обеспечивающее беспрепятственный проход для занимающихся и сотрудников.
3.15 объект спорта: Здание, сооружение или единый недвижимый комплекс, предназначенный для проведения физкультурных и/или спортивных мероприятий.
3.16
официальные физкультурные мероприятия и спортивные мероприятия: Физкультурные мероприятия и спортивные мероприятия, включенные в Единый календарный план межрегиональных, всероссийских и международных физкультурных мероприятий и спортивных мероприятий, календарные планы физкультурных мероприятий и спортивных мероприятий субъектов Российской Федерации, муниципальных образований. |
3.17 передвижная перегородка: Специализированная конструкция, предназначенная для разделения ванны бассейна на функциональные зоны.
3.18 переливной бассейн: Тип ванны бассейна, в котором поверхности зеркала воды и пола обходной дорожки находятся в одной плоскости, а вода, переливаясь через кромку ванны попадает в переливной желоб и через систему рециркуляции и водоочистки возвращается в резервуар.
3.19 переливной желоб: Канал (круглого или прямоугольного сечения) ниже уровня воды, предназначенный для сбора выплескиваемой воды по периметру ванны бассейна и направления ее для очистки и повторного использования.
3.20 поворотный щит: Специализированная конструкция, устанавливаемая на каждой дорожке спортивного бассейна, предназначенная для безопасного выполнения пловцом скоростного поворота в ванне переливного типа.
3.21 погружное устройство: Специальный механизм (стационарного или мобильного типа), предназначенный для перемещения посетителя бассейна из числа маломобильных групп населения с обходной дорожки в ванну бассейна для занятий и обратно.
3.22 подъемный пол: Специализированная конструкция, позволяющая изменять глубину ванны бассейна (или его отдельной части) для создания условий безопасного проведения занятий с различными клиентскими группами.
3.23 разделительная дорожка: Специальное оборудование бассейна, необходимое для обеспечения упорядоченного движения пловцов и снижения взаимного влияния волнообразования на соседних дорожках.
3.24 система видеоизображения: Табло, куб, другие устройства, отображающие видеоинформацию на спортивном мероприятии.
3.25 система хронометража: Комплект автоматической системы регистрации результатов соревнований.
3.26 спортивная зона: Основное пространство спортивного сооружения, на котором непосредственно проводится спортивное мероприятие (включая зону безопасности, отделяющую соревновательную зону от зрителей или конструктивных элементов, техническую зону с местами размещения участников и судей).
3.27 спортивное оборудование: Устройства, приспособления, снаряды, размещение которых на спортивном сооружении предусмотрено правилами соревнований по видам спорта.
3.28 спортивное сооружение: Инженерно-строительный объект, созданный для проведения физкультурных мероприятий и (или) спортивных мероприятий и имеющий пространственно-территориальные границы.
3.29
спортивное соревнование: Состязание (матч) среди спортсменов или команд спортсменов по различным видам спорта (спортивным дисциплинам) для выявления лучшего участника состязания (матча), проводимое по утвержденному его организатором положению (регламенту). |
3.30
спортивные мероприятия: Спортивные соревнования, а также тренировочные мероприятия, включающие в себя теоретическую и организационную части, и другие мероприятия по подготовке к спортивным соревнованиям с участием спортсменов. |
3.31 станина: Неподвижная конструкция, закрепляемая на бетонной платформе или на обходной дорожке ванны бассейна, позволяющая крепить трамплинную доску и регулировать ее упругость.
3.32 стартовая тумба: Специализированное оборудование, предназначенное для выполнения старта в плавании.
3.33 стартовый помост: Специализированная конструкция с закрепленными на ней стартовыми тумбами, устанавливаемая на всю ширину спортивного бассейна переливного типа, обеспечивающая безопасность и равные условия для старта.
3.34
физкультурные мероприятия: Организованные занятия граждан физической культурой. |
3.35 функциональная зона (здесь): Помещение (пространство), в границах спортивного сооружения, с установленным функциональным назначением и режимом использования.
3.36 VIP-зона: Выделенная зона мест для зрителей и дополнительных помещений повышенной комфортности и безопасности с дополнительным набором услуг.
3.37 VVIP-зона: Полностью автономная территория (пространство), имеющая ограниченный доступ, отдельное обслуживание и эксклюзивный набор услуг, выделенную зону мест для зрителей в наиболее комфортной части трибуны, обеспечивающую наилучший обзор спортивного мероприятия, предназначенная для специальных гостей, с местами и дополнительными помещениями повышенной комфортности и безопасности.
(раздел 4 в ред.
Изменения N 1, утв. Приказом Минстроя России от 14.12.2021 N 930/пр)
4.1 Бассейны для плавания как в виде отдельно стоящих зданий, так и в составе многофункциональных комплексов, должны включать одну или несколько ванн различного функционального назначения, соответствующих требованиям
ГОСТ Р 58458.
4.2 Бассейны для плавания по функциональному назначению относят к физкультурно-оздоровительным или спортивным бассейнам. Классификация бассейнов для плавания приведена на
рисунке 4.1.
Рисунок 4.1 - Классификация бассейнов для плавания
4.3 Бассейны для детей дошкольного возраста проектируют для оздоровительных целей и обучения навыкам плавания детей не старше 7 лет.
4.4 Учебные бассейны проектируют для оздоровительных целей, обучения детей и взрослых плаванию, для проведения учебных занятий образовательными учреждениями и физкультурно-спортивных мероприятий.
4.5 Оздоровительные бассейны проектируют для улучшения состояния здоровья детей и взрослых, реабилитации, отдыха и развлечений.
4.6 Спортивные бассейны проектируют для проведения спортивных и физкультурных мероприятий различного уровня.
4.7 Спортивные бассейны должны соответствовать действующим требованиям спортивных федераций,
[1],
[3], а также определенной категории спортивного сооружения - A, B, C, на основании классификатора, приведенного в
таблице 1.
Таблица 1
Категории объектов спорта
в соответствии с уровнем мероприятий
Категория спортивного сооружения | Уровень спортивно-массовых мероприятий, проводимых на спортивном сооружении |
A | Международные и всероссийские физкультурные мероприятия и спортивные мероприятия |
B | Межрегиональные физкультурные мероприятия и спортивные мероприятия, а также физкультурные мероприятия и спортивные мероприятия субъекта Российской Федерации |
C | Иные физкультурные мероприятия и спортивные мероприятия |
4.8 Спортивные бассейны подразделяют на:
- специализированные, соответствующие требованиям определенного вида спорта (спортивное плавание, прыжки в воду, водное поло, синхронное плавание);
- универсальные, объединяющие требования к нескольким видам спорта.
4.9 Бассейны для плавания как объекты спорта, используемые для проведения физкультурных мероприятий и спортивных мероприятий, включенных в ЕКП, календарные планы физкультурных мероприятий и спортивных мероприятий субъектов Российской Федерации, должны быть включены во Всероссийский реестр объектов спорта
[1].
4.10 Площадь земельного участка отдельно стоящего здания спортивного бассейна для плавания определяется по
СП 42.13330 или региональным (местным) нормативам градостроительного проектирования.
Расчет количества машино-мест принимается по
СП 42.13330 или региональным (местным) нормативам градостроительного проектирования; площадь для их размещения - с учетом габаритов машино-мест по
СП 113.13330.
При размещении парковочных мест на стоянках автомобилей следует предусматривать места для хранения (стоянки) электромобилей, оборудованные зарядными устройствами, в соответствии с требованиями
СП 113.13330. Расчетную потребность парковочных мест, оборудованных зарядными устройствами, следует устанавливать в соответствии с заданием на проектирование, но не менее установленных
СП 118.13330.
(абзац введен
Изменением N 2, утв. Приказом Минстроя России от 28.12.2023 N 1004/пр)
4.11 На земельных участках бассейнов для плавания рекомендуется выделять хозяйственную зону с отдельным въездом.
4.12 По периметру земельных участков открытых бассейнов на полосах шириной не менее 5 м рекомендуется высаживать кустарник, деревья хвойных пород.
4.13 Общую (полезную и расчетную) площадь, строительный объем, площадь застройки и этажность зданий бассейнов для плавания следует определять по
СП 118.13330.
4.14 Размещение зданий и сооружений бассейнов для плавания на земельном участке с учетом путей эвакуации, огнестойкости объектов защиты, систем оповещения и ограничения распространения пожара следует осуществлять в соответствии с
СП 1.13130,
СП 2.13130,
СП 3.13130,
СП 4.13130.
4.15 Территорию земельного участка зданий, сооружений и помещений бассейнов для плавания следует проектировать с учетом доступности для маломобильных групп населения (МГН) в соответствии с
СП 59.13330,
СП 136.13330,
СП 140.13330.
4.16 Требования комплексной безопасности и антитеррористической защищенности зданий бассейнов для плавания должны соответствовать
СП 132.13330.
5 Требования к объемно-планировочным решениям
(раздел 5 в ред.
Изменения N 1, утв. Приказом Минстроя России от 14.12.2021 N 930/пр)
Здания бассейнов для плавания следует проектировать в соответствии с их функциональным назначением, в том числе состав и площади основной и вспомогательных зон. Состав помещений основной зоны - зал ванны бассейна (включая обходные дорожки), вспомогательной зоны - раздевальные, зона зрителей, зона медицинского контроля и обслуживания, зона водоподготовки, зона подготовительных занятий, прочие помещения (включая административные и технические).
5.1 Общие требования к основным зонам бассейнов для плавания
5.1.1 Высота помещений с ваннами бассейнов для плавания длиной более 10 м должна составлять не менее 6 м от поверхности обходной дорожки до низа выступающих конструкций, залов ванн бассейнов для прыжков воду - не менее 5 м от платформы верхнего прыжкового устройства до низа выступающих конструкций.
5.1.2 Расстояние между ваннами бассейнов для плавания, расположенными в одном помещении, должно быть не менее 5 м.
5.1.3 Значения глубин ванн бассейнов для плавания приведены в
приложениях А и
Б.
5.1.4 В ваннах бассейнов для плавания следует предусматривать технологический уклон дна для слива воды, направленный к местам ее выпуска в сливное водозаборное устройство. Значение уклона следует принимать в пределах от 1% до 4%, направление - перпендикулярно к общему уклону дна.
5.1.5 Сливное водозаборное устройство должно быть закрыто защитной решеткой с ячейками размерами не более 0,01 x 0,01 м. Расчетную скорость движения воды в непосредственной близости от сливного водозаборного устройства следует принимать по
ГОСТ Р 53491.1 - не более 0,5 м/с.
5.1.6 Вдоль стенок по периметру ванн бассейнов для плавания, глубина которых превышает 1,2 м, должен быть предусмотрен уступ для отдыха шириной 0,10 м - 0,15 м. Возможно применение как выступающих, так и заглубленных уступов.
5.1.7 На площади пола, по периметру ванн бассейнов для плавания, следует предусматривать обходные дорожки. Ширина обходных дорожек должна соответствовать функциональному назначению ванн бассейнов.
5.1.8 Поверхность обходной дорожки должна быть нескользкой
(ГОСТ Р 55908).
5.1.9 По периметру ванны бассейна для плавания следует размещать две параллельных системы для сбора воды: переливной желоб, соединенный с системой водоочистки для ее повторного использования; грязевой лоток для сбора воды с обходной дорожки, соединенный с системой канализации. Уклон поверхности в сторону грязевого лотка - от 1% до 2%.
5.1.10 Переливной желоб по периметру ванны бассейна для плавания следует закрывать защитной решеткой, заподлицо с поверхностью обходной дорожки.
5.1.11 При устройстве грязевого лотка, его предпочтительно размещать параллельно с переливным желобом, но допускается оставлять на обходной дорожке только люки, соединенные с системой канализации. При проектировании грязевого лотка вне зависимости от выбора решения (канал или люк) следует предусматривать:
- для открытого типа - защитную решетку заподлицо с поверхностью обходной дорожки;
- для закрытого типа - установку люков с защитной решеткой (заподлицо с поверхностью обходной дорожки), обеспечивающих беспрепятственное водоотведение с обходной дорожки.
5.1.12 Облицовочные материалы ванны бассейна для плавания и помещений с влажным и мокрым режимами должны обеспечивать целостность покрытия (отсутствие сколов, незакрепленных элементов, механических повреждений, задиров на металлических элементах).
5.1.13 Материалы полов в зданиях и сооружениях бассейнов для плавания следует применять согласно функциональному назначению помещений, по требованиям
СП 29.13330. В помещениях с влажным и мокрым режимами следует применять облицовочные материалы с шероховатой, нескользкой, рифленой поверхностью с коэффициентом скользкости по
ГОСТ Р 55908: в помещениях раздевальных - не менее 0,2 ед.; в помещениях ванн бассейнов и душевых - не менее 0,3 ед.
5.1.14 Кромка борта ванны бассейна должна быть закругленной.
5.1.15 В ванных бассейнов для плавания следует предусматривать лестницы для входа/выхода из воды. Количество, расположение и выбор конструктивного решения лестниц должны соответствовать функциональному назначению ванн бассейнов.
Примечание - Ступени из труб круглого сечения для лестниц не допускаются.
5.1.16 В бассейнах для плавания открытого типа вместо выхода из душевых следует проектировать выплывы в ванну бассейна. Ширина выплыва должна быть от 1,8 до 2,2 м, глубина воды - от 0,6 до 0,7 м (в бассейнах для детей дошкольного возраста и учебных бассейнах), от 0,9 до 1,0 м (во всех прочих бассейнах). Над выплывом следует предусматривать затвор, предохраняющий помещение от поступления холодного воздуха. Нижний край затвора должен быть погружен в воду на глубину от 0,10 до 0,15 м. Конструкцией выплыва должно быть исключено поступление воды из душевой в ванну бассейна.
5.1.17 Конструкция подъемного пола в ванных бассейнов для плавания должна полностью перекрывать ширину ванны, исключая зазоры между стенками ванны бассейна и подвижными элементами конструкции.
5.1.18 В бассейнах для плавания с разделительными дорожками под закладные детали для крепления дорожек в жесткой растяжке следует предусматривать ниши на торцевых стенках ванн бассейнов на уровне поверхности воды, а по заданию на проектирование - закладные детали по длинным сторонам ванны бассейна для растяжки разделительных дорожек поперек ванны бассейна.
5.1.20 На обходной дорожке ванны бассейна для плавания следует предусматривать место для дежурного инструктора (спасателя), площадью не менее 2 м
2, которое должно соответствовать требованиям
ГОСТ Р 55529 и
ГОСТ Р 59219 (включая подводку для подключения системы оповещения опасности утопления).
5.1.21 Учебные, физкультурно-оздоровительные и спортивные бассейны для плавания следует проектировать с учетом требований доступности для МГН по
СП 59.13330.
5.1.22 В залах ванн бассейнов для плавания следует предусматривать погружное устройство спуска и выхода из воды для посетителей из числа МГН.
Физкультурно-оздоровительные бассейны
5.1.23 Размеры ванн физкультурно-оздоровительных бассейнов приведены в
приложении А.
Бассейны для детей дошкольного возраста
5.1.24 Длину и ширину ванны бассейна для детей дошкольного возраста определяют по заданию на проектирование, площадь зеркала воды должна быть не более 60 м2.
5.1.25 Глубина ванны бассейна для детей дошкольного возраста - не более 0,6 м.
5.1.26 Ширина обходной дорожки по периметру ванны в бассейнах для детей дошкольного возраста - 2,5 м, допускается уменьшать до 1,5 м.
5.1.27 Расположение лестниц в ваннах бассейнов для детей дошкольного возраста определяется заданием на проектирование.
5.1.28 При проектировании зала с несколькими ваннами, ванну бассейна для детей дошкольного возраста следует располагать в отдельном помещении.
Бассейны учебные
5.1.29 Размеры ванн учебных бассейнов приведены в
приложении А.
5.1.30 Ширина обходной дорожки по периметру ванны учебных бассейнов - не менее 2,5 м.
5.1.31 Лестницы в ваннах учебных бассейнов следует проектировать не далее 5,0 м от торцевых стен.
5.1.32 В ваннах учебных бассейнов следует предусматривать разделение водной поверхности на дорожки. Ширина дорожки учебного бассейна - 2 м.
5.1.33 В ваннах учебных бассейнов (при глубине не менее 1,8 м) следует проектировать стартовые тумбы по одной или обеим торцевым сторонам.
5.1.34 Стартовые тумбы следует устанавливать в закладные детали на стартовый помост высотой над уровнем воды - 0,3 м, шириной от торцевой стенки ванны - не менее 0,5 м.
5.1.35 При отсутствии стартового помоста с тумбами на одной из торцевых стенок ванны переливного типа, предусматривают закладные детали для крепления поворотных щитов на ширину дорожки, высотой 0,3 м.
5.1.36 В ваннах учебных бассейнов следует предусматривать закладные детали на обходных дорожках для установки указателей поворота в плавании на спине и устройства фальстарта.
Бассейны оздоровительные
5.1.37 Размеры ванн оздоровительных бассейнов приведены в
приложении А.
5.1.38 Ширина обходной дорожки по периметру ванны в оздоровительных бассейнах - не менее 2,5 м.
5.1.39 Количество, расположение и выбор конструктивного решения лестниц ванн оздоровительных бассейнов определяются заданием на проектирование.
Спортивные бассейны
5.1.40 Для спортивных бассейнов следует проектировать ванны с размерами и пропускной способностью, приведенными в
приложении А.
Отклонение длин ванны бассейна категорий A и B - по
ГОСТ Р 58877.
5.1.41 Ширина обходной дорожки по периметру ванн спортивных бассейнов должна быть не менее 3,5 м, ванн бассейнов категорий A и B по торцевым сторонам - не менее 5 м.
5.1.42 Параметры основных и вспомогательных зон в зданиях бассейнов категорий A и B установлены правилами (регламентами) спортивных федераций по водным видам спорта.
5.1.43 Для зданий спортивных бассейнов необходимо предусматривать залы ОФП и СФП согласно требованиям вида спорта,
СП 332.1325800,
ГОСТ Р 58458.
5.1.44 Расстояние между ванной бассейна для спортивного плавания и ванной бассейна для прыжков в воду, расположенными в одном помещении, должно быть не менее 8 м, предпочтительно 10 м.
5.1.45 Уступы для отдыха по периметру ванн спортивных бассейнов должны быть заглубленными.
5.1.46 Лестницы ванн спортивных бассейнов для входа/выхода из воды должны быть расположены в нишах. Размеры ниши должны соответствовать размерам лестницы в пределах

. Поручни лестницы должны быть разновысокими. Ширина лестницы - 0,6 м, расстояние между плоскими ступенями - 0,3 м. В ванне бассейна длиной 25 м лестницы располагают не ближе 3,0 м и не далее 5,0 м от торцевых стен. В случае устройства смотровых окон или выплывов их размещают дальше от торцевых стен, чем смотровое окно или выплыв.
5.1.47 В ванне бассейна длиной 50 м и более, посередине каждой из длинных сторон следует предусматривать дополнительную лестницу с закладными деталями на обходной дорожке для установки съемного поручня, обеспечивающего беспрепятственное перемещение передвижной перегородки.
5.1.48 В залах ванн бассейнов для плавания категорий A и B следует предусматривать помещение для хранения спортивного и спортивно-технологического оборудования и инвентаря площадью не менее 50 м2 с выходом на обходную дорожку.
Бассейны универсальные
5.1.49 В составе бассейнов, предназначенных для нескольких видов спорта, следует проектировать универсальные ванны размерами и пропускной способностью, приведенными в
приложении А.
5.2 Требования к бассейнам для спортивного плавания
5.2.1 Бассейн для спортивного плавания категории A должен иметь две ванны с аналогичными параметрами, одна из которых разминочная, другая - для проведения соревнований. При размещении в одном зале разминочной и соревновательной ванн бассейна необходимо предусматривать разделительную перегородку между ними, обеспечивающую полную звукоизоляцию.
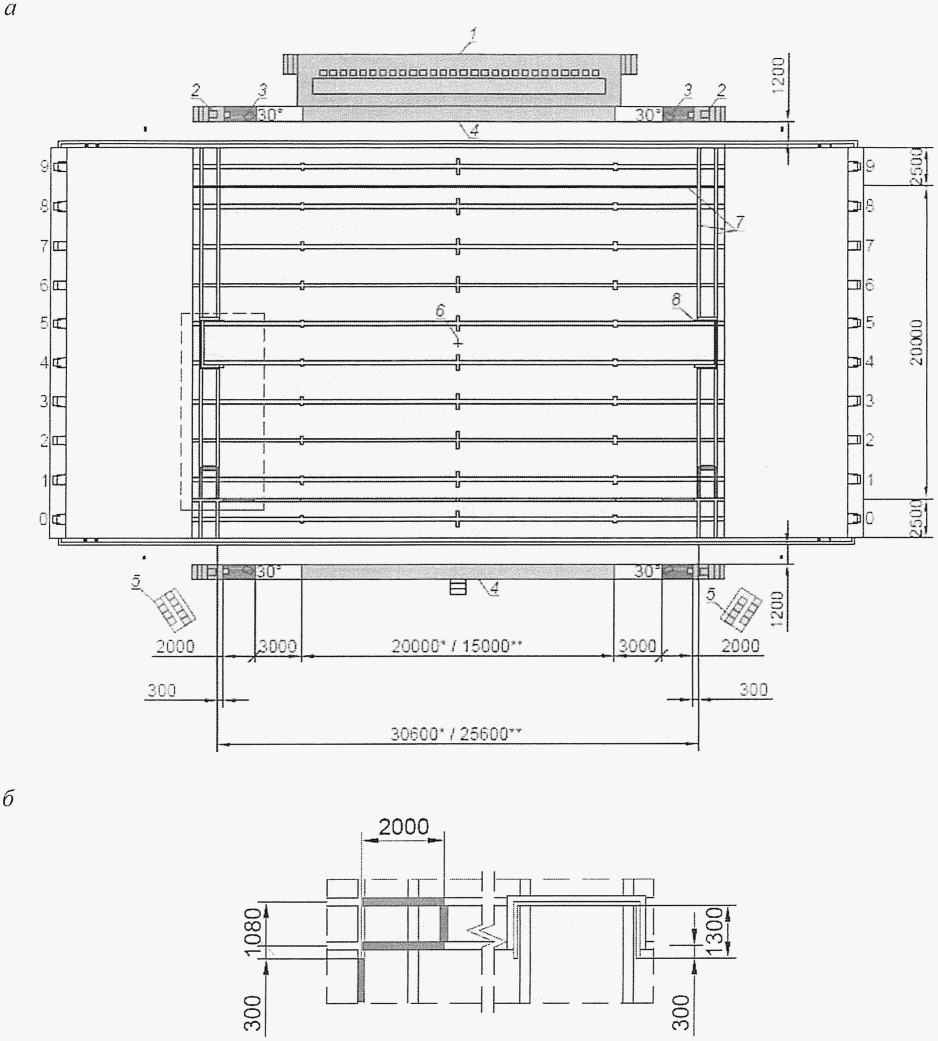
5.2.2 Длина ванны бассейна для спортивного плавания категорий A, B, C - 50 и 25 м (рисунок 5.1).
Параметры разметки дорожек, мм |
Ширина линии разметки | А | 250 |
Длина поперечной линии цели | Б | 500 |
Глубина от центра линии цели | В | 300 |
Длина поперечной линии окончания | Г | 1000 |
Расстояние между осевыми линиями разметки | Д | 2500 |
Расстояние между разметкой и стеной | Е | 2000 |
Контактная панель | Ж | 2400 x 900 x 10 |
Расстояние между осевой линией поперечной отметки и стеной | И | 15000 |
1 - места установки стоек сигнала поворота (закладные);
2 - места установки стоек для шнура фальстарта (закладные);
3 - уровень воды
Рисунок 5.1, лист 1 - Схема и разметка ванны 50 м бассейна
для спортивного плавания
1 - места установки стоек сигнала поворота (закладные);
2 - 15-метровые отметки на дорожках
Рисунок 5.1, лист 2 - Схема и разметка ванны 25 м бассейна
для спортивного плавания
5.2.3 Отклонение длины ванны бассейна для спортивного плавания категорий A и B с установленными контактными панелями автоматического фиксирования результатов допускается в сторону увеличения в пределах до 0,01 м согласно
ГОСТ Р 58877. Панели устанавливают в закладные детали в плоскости торцевых стен ванны на уровне относительно поверхности воды:
- нижний край - не менее чем на 0,8 м ниже уровня поверхности воды;
- верхний край - не менее чем на 0,3 м выше уровня поверхности воды.
5.2.4 Ширина ванны бассейна для спортивного плавания составляет:
- бассейн категорий A, B на 10 дорожек - 25 м;
- бассейн категории C при длине ванны бассейна 50 м - не менее 21 м;
- бассейн категории C при длине ванны бассейна 25 м - не менее 16 м.
5.2.5 Ширина дорожки бассейна для спортивного плавания категорий A и B - 2,5 м.
5.2.6 Ширина дорожки бассейна для спортивного плавания категории C для тренировок может быть уменьшена до 2,2 м (при наличии закладных деталей крепления разделительных дорожек).
5.2.7 Глубина ванны бассейна для спортивного плавания категории A - не менее 2,0 м, категорий B, C - не менее 1,8 м.
5.2.8 Передвижная перегородка бассейна для спортивного плавания должна перекрывать ванну бассейна по ширине, иметь закладные детали крепления для разделительных дорожек, стартовых тумб и контактных панелей автоматического фиксирования результата. Конструкция перегородки должна быть устойчивой, с нескользкой поверхностью, обеспечивающей свободное передвижение по ней спортсменов, судей и обслуживающего персонала. В бассейнах для спортивного плавания с применением перегородки длину ванны бассейна следует определять с учетом ширины ее конструкции.
5.2.9 Ванны бассейнов для спортивного плавания категорий A, B и C по обеим торцевым сторонам должны иметь стартовые тумбы. Стартовые тумбы следует устанавливать на стартовый помост. Высота помоста над зеркалом воды должна быть 0,3 м, ширина от отвеса стенки ванны - 0,5 - 1,0 м, длина - по ширине ванны бассейна.
5.2.10 Высота поверхности для отталкивания стартовых тумб над зеркалом воды должна быть от 0,50 до 0,75 м. Материал стартовых тумб должен исключать пружинящий эффект. Размеры поверхности для отталкивания стартовой тумбы - не менее 0,5 x 0,5 м, уклон поверхности тумб должен быть не более 10°. Для старта при плавании на спине тумбы должны иметь вертикальные и горизонтальные поручни на высоте от 0,3 до 0,6 м над поверхностью воды, в бассейне категории A - регулируемый упор для ног при старте в плавании на спине.
5.2.11 Зал ванны бассейна для спортивного плавания категорий A и B должен иметь закладные детали, на обходной дорожке за переливным желобом, для стоек указателей поворота для плавания на спине. Закладные детали для стоек следует размещать на длинных сторонах ванны в 5,0 м от торцевых стенок.
5.2.12 Ванна бассейна для спортивного плавания категорий A, B и C должна быть оборудована системой фиксации фальстарта и иметь закладные детали, на обходной дорожке за переливным желобом, для стоек устройства плавающего фальстарта. Закладные детали для стоек следует размещать на длинных сторонах ванны в 15,0 м от торцевой стенки ванны бассейна со стартовыми тумбами.
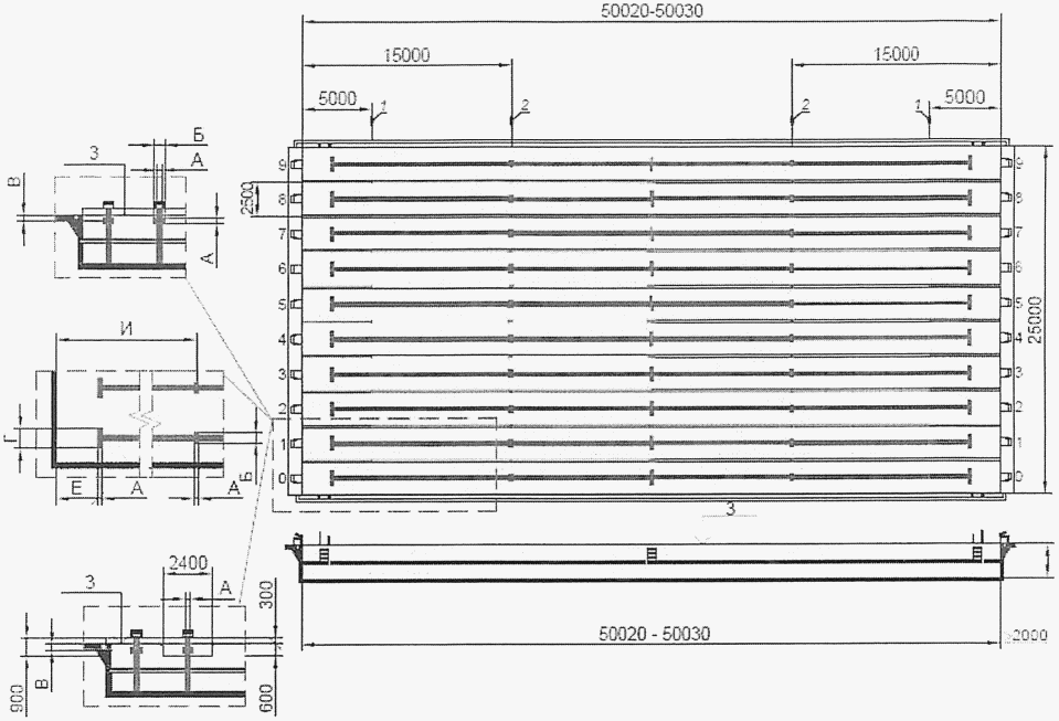
5.2.13 Зал ванны бассейна категории A для соревнований по плаванию должен иметь зонирование и оснащение соревновательной зоны, приведенные на рисунке 5.2.
1 - трибуна фотографов; 2 - трибуна спортсменов; 3 - места
технических делегатов; 4 - место главного судьи на повороте;
5 - подвижная камера; 6 - места судей на дистанции;
7 - место медицинской службы; 8 - пьедестал; 9 - места судей
при участниках для заплыва на 50 м; 10 - места судей
на повороте; 11 - зона награждения; 12 - линия старта
для заплыва на 50 м; 13 - трибуна для тренеров; 14 - места
рефери/стартер; 15 - места делегатов, официальных лиц;
16 - место ответственного за правильность
результатов/секретариат; 17 - линия старта/финиша;
18 - места судей при участниках; 19 - финишная камера;
20 - граница зала ванны
Рисунок 5.2 - Спортивная зона для проведения соревнований
по плаванию бассейна категории A
5.3 Требования к бассейнам для синхронного плавания
5.3.1 Размеры ванны бассейна для синхронного плавания приведены в
приложении А.
5.3.2 Параметры спортивной зоны для синхронного плавания: категорий A, B длина составляет не менее 30 м, категории C - 25 м; категорий A, B ширина составляет не менее 20 м, категории C - не менее 12 м.
5.3.3 Глубина ванны бассейна для синхронного плавания категорий A и B составляет не менее 3 м в выделенной зоне размерами 12 x 12 м, глубина остальной части - не менее 2,5 м, категории C - не менее 2 м.
5.3.4 Стартовый помост для синхронного плавания шириной не менее 4 м, высотой - 0,5 - 0,7 м над уровнем воды.
5.3.5 Конструкцию помоста для синхронного плавания следует крепить в закладные детали на обходной дорожке ванны бассейна у торцевой стенки ванны. Конструкция должна быть неподвижной, жесткой, нескользкой (включая ступени для подъема).
5.3.6 Для судей на длинных сторонах ванны бассейна предусматриваются платформы, которые крепят к закладным деталям. Высота конструкции платформы для судей - 0,6 м выше уровня воды. Конструкция должна быть неподвижной, жесткой.
5.3.7 Пропускную способность ванны для синхронного плавания следует принимать по максимальному числу участников - 10. Схема размещения соревновательной зоны для синхронного плавания в 50-метровом плавательном бассейне приведена на
рисунке 5.3.
1 - трибуна фотографов; 2 - платформа для судей (высота
не менее 0,60 м); 3 - трибуна спортсменов; 4 - место
медицинской службы; 5 - зона награждения, пьедестал;
6 - места официальных представителей/судьи (высота не менее
0,60 м); 7 - места хронометристов/секретариат; 8 - стартовый
помост (высота не менее 0,50 м/рекомендуемая 0,7 м);
9 - граница зала ванны; 10 - граница соревновательной зоны
Рисунок 5.3 - Спортивная зона для проведения соревнований
по синхронному плаванию бассейна категории A
5.3.8 При отсутствии линий разметки для спортивного плавания, на дно ванны, продольно, должны быть нанесены контрастные линии.
5.4 Требования к бассейнам для водного поло
5.4.1 Параметры спортивной зоны бассейна для водного поло приведены в
приложении А. Схема размещения соревновательной зоны для водного поло в 50-метровом плавательном бассейне приведена на
рисунке 5.4.
5.4.2 Размеры и разметка игрового поля должны соответствовать требованиям федерации по виду спорта и
ГОСТ Р 58458.
5.4.3 В центре поля, на дне ванны бассейна, необходимо размещать закладную деталь для устройства высвобождения мяча.
5.4.4 По длинным сторонам игрового поля, на обходных дорожках, должны быть предусмотрены закладные детали для установки судейских помостов шириной 1 м и высотой 0,7 м над уровнем воды.
5.4.5 Конструкция судейских помостов должна быть неподвижной, жесткой, нескользкой, с покрытием, дублирующим разметку игрового поля, согласно требованиям правил по водному поло. Параметры помоста приведены на
рисунке 5.4.
--------------------------------
<*> Для мужчин.
<**> Для женщин.
а - спортивная зона бассейна категории A для соревнований
по водному поло; б - зона замены игроков;
1 - судейский стол (высота 0,70 м); 2 - корзина для мячей;
3 - судьи на линии поворота; 4 - помост судейский;
5 - скамейка запасных; 6 - устройство для высвобождения
мяча; 7 - граница игровой площадки (плавающая разметка);
8 - ворота
Рисунок 5.4 - Спортивная зона с разметкой для соревнований
по водному поло в бассейне категории A
5.5 Требования к бассейнам для прыжков в воду
5.5.1 Размеры ванн бассейнов для прыжков в воду приведены в
приложении А.
5.5.2 Параметры залов ванн для прыжков в воду и расстановка устройств для прыжков (трамплинов и платформ) согласно требованиям регламента спортивной федерации приведены на
рисунке 5.5 и в
таблице 2.
а - вид спереди; б - вид сбоку;
1 - платформа; 2 - отвес; 3 - перекрытие;
4 - ванна для прыжков в воду
Рисунок 5.5 - Схема расположения трамплинов и платформ
в бассейне для прыжков в воду
Таблица 2
Параметры и размеры платформ и трамплинов
Параметры | Трамплин | Платформа |
1 метр | 3 метра | 1 метр | 3 метра | 5 метров | 7,5 метров | 10 метров |
Обозначение и размещение | Длина | 4,80 | 4,80 | 5,00 | 5,00 | 6,00 | 6,00 | 6,00 |
Ширина | 0,50 | 0,50 | 1,00 - мин | 1,00 - мин | 2,90 | 2,00 | 3,00 |
2,90 | 2,00 |
Высота | | | 1,00 | 3,00 | 5,00 | 7,50 | 10,00 |
Размеры в проекции | Гориз. | Верт | Гориз | Верт | Гориз | Верт | Гориз | Верт | Гориз | Верт | Гориз | Верт | Гориз | Верт |
А | От отвеса до стены бассейна (для бетонной платформы), м | Обозначение | А-1 | | А-3 | | А-1пл | | А-3пл | | А-5 | | А-7,5 | | А-10 | |
Минимум | 2,22 | 2,22 | 0,75 | 1,25 | 1,25 | 1,25 | 1,50 |
Рекомендуемое |
От отвеса до стены бассейна (для металлической конструкции), м | Минимум | 1,50 | 1,50 | | | | | |
Рекомендуемое |
А/А | От отвеса до края платформы, расположенной непосредственно ниже, м | Обозначение | | А/А5/1 | А/А7,5/3,1 | А/А10/5,3,1 |
Минимум | 0,75 | | 0,75 | | 0,75 | |
Рекомендуемое | 1,25 | 1,25 | 1,25 |
Б | От отвеса до стены бассейна на каждой стороне, м | Обозначение | Б-1 | | Б-3 | | Б-1пл | | Б-3пл | | Б-5 | | Б-7,5 | | Б-10 | |
Минимум | 2,50 | 3,50 | 2,50 | 3,00 | 4,00 | 4,50 | 5,75 |
Рекомендуемое | 3,50 | 3,60 | 4,50 | 4,75 |
В | От центра до соседнего центра, м | Обозначение | В-1-1 | В3-3,3-1 | В-1-1пл | В3-3,5-1 | В5-3,Тр1 | В7,5-Тр3,1 | В10-7,5,5,3,1 |
Минимум | 2,00 | | 2,20 | | 1,85 | | | | | | | | | |
Рекомендуемое | 2,60 | 2,15 | |
Г | От отвеса до передней стенки бассейна, м | Обозначение | Г-1 | | Г-3 | | Г-1пл | | Г-3пл | | Г-5 | | Г-7,5 | | Г-10 | |
Минимум | 9,00 | 10,25 | 8,00 | 9,50 | 10,25 | 11,00 | 13,50 |
Рекомендуемое |
Д | По отвесу от доски до потолка, м | Обозначение | | Д-1 | | Д-3 | | Д-1пл | | Д-3пл | | Д-5 | | Д-7,5 | | Д-10 |
Минимум | 5,00 | 5,00 | 3,25 | 3,25 | 3,25 | 3,25 | 4,00 |
Рекомендуемое | 5,00 | 5,00 | 3,50 | 3,50 | 3,50 | 3,50 | 5,00 |
Е | Свободный зазор позади и с каждой стороны отвеса, м | Обозначение | Е-1 | Д-1 | Е-3 | Д-3 | Е-1пл | Д-1пл | Е-3пл | Д-3пл | Е-5 | Д-5 | Е-7,5 | Д-7,5 | Е-10 | Д-10 |
Минимум | 2,50 | 5,00 | 2,50 | 5,00 | 2,75 | 3,25 | 2,75 | 3,25 | 2,75 | 3,25 | 2,75 | 3,25 | 2,75 | 4,00 |
Рекомендуемое | 3,50 | 3,50 | 3,50 | 3,50 | 5,00 |
Ж | Свободный зазор впереди отвеса, м | Обозначение | Ж-1 | Д-1 | Ж-3 | Д-3 | Ж-1пл | Д-1пл | Ж-3пл | Д-3пл | Ж-5 | Д-5 | Ж-7,5 | Д-7,5 | Ж-10 | Д-10 |
Минимум | 5,00 | 5,00 | 5,00 | 5,00 | 5,00 | 3,25 | 5,00 | 3,25 | 5,00 | 3,25 | 5,00 | 3,25 | 6,00 | 4,00 |
Рекомендуемое | 3,50 | 3,50 | 3,50 | 3,50 | 5,00 |
И | Глубина воды по отвесу, м | Обозначение | | И-1 | | И-3 | | И-1пл | | И-3пл | | И-5 | | И-7,5 | | И-10 |
Минимум | 3,40 | 3,70 | 3,20 | 3,50 | 3,70 | 4,10 | 4,50 |
Рекомендуемое | 3,50 | 3,80 | 3,60 | 3,80 | 4,50 | 5,00 |
К Л | Расстояние и глубина впереди отвеса для всех стоек, м | Обозначение | К-1 | Л-1 | К-3 | Л-3 | К-1пл | Л-1пл | К-3пл | Л-3пл | К-5 | Л-5 | К-7,5 | Л-7,5 | К-10 | Л-10 |
Минимум | 5,00 | 3,30 | 6,00 | 3,60 | 4,50 | 3,10 | 5,50 | 3,40 | 6,00 | 3,60 | 8,00 | 4,00 | 11,00 | 4,25 |
Рекомендуемое | 3,40 | 3,70 | 3,20 | 3,50 | 3,70 | 4,40 | 4,75 |
М Н | Расстояние и глубина каждой стороны отвеса, м | Обозначение | М-1 | Н-1 | М-3 | Н-3 | М-1пл | Н-1пл | М-3пл | Н-3пл | М-5 | Н-5 | М-7,5 | Н-7,5 | М-10 | Н-10 |
Минимум | 1,50 | 3,30 | 2,00 | 3,60 | 1,40 | 3,10 | 1,80 | 3,40 | 3,00 | 3,60 | 3,75 | 4,00 | 4,50 | 4,25 |
Рекомендуемое | 2,00 | 3,40 | 2,50 | 3,70 | 1,90 | 3,20 | 2,30 | 3,50 | 3,50 | 3,70 | 4,50 | 4,40 | 5,25 | 4,75 |
Максимальный уклон для дна ванны прыжкового бассейна и потолка | 30° |
<*> При проектировании прыжковых устройств с использованием бетонных платформ их минимальная высота от уровня воды 0,6 м и 2,6 м (соответственно). <**> Указанное значение соответствует горизонтальному расстоянию между продольными осевыми платформ, при этом расстояние между краями соседних платформ должно быть не менее 0,25 м. Примечания 1 Размеры B (отвес с каждой стороны бассейна) и C (отвес к соседнему подвесу) применяются к платформам установленной ширины. Если ширина платформы увеличивается, то Б и В должны увеличиться соответственно. 2 Расстояние между платформой 10 м и соседними, расположенными на другой высоте, в проекции должно быть не менее 0,25 м. 3 При размещении двух платформ на одной вертикальной оси - передняя кромка верхней платформы должна выступать на 0,75 м за переднюю кромку нижней. 4 Передняя кромка платформы для трамплина (трамплинов) не должна выступать за проекцию стенки ванны бассейна. |
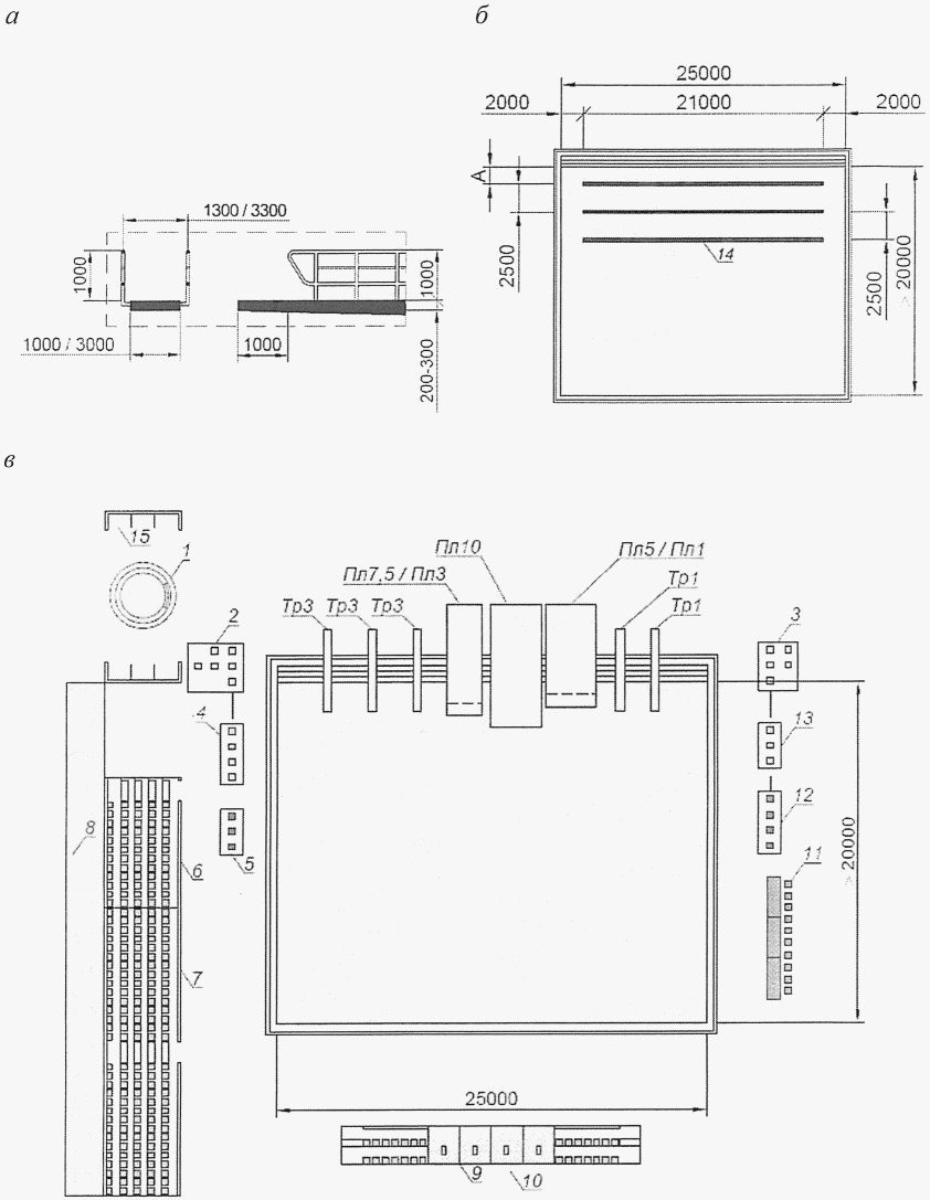
5.5.3 Размер спортивной зоны бассейнов категорий A и B для прыжков в воду: длина - не менее 20 м, ширина - не менее 25 м
(рисунок 5.6).
5.5.4 Ванна бассейна для прыжков в воду должна иметь разметку на дне. Ширина полос разметки должна быть не менее 0,2 м, но не более 0,3 м. Длина полос разметки для 25-метровой ванны бассейна - 21 м
(рисунок 5.6,б).
5.5.5 Пример зонирования зала ванны бассейна категорий A и B для прыжков в воду приведен на
рисунке 5.6,в. Для выхода из воды допускается предусматривать одну лестницу или ступеньки, расположенные под прыжковыми устройствами по ширине ванны. В местах установки трамплинов следует предусматривать закладные детали для крепления станин.
а - параметры перил ограждения платформ; б - ванна
для прыжков в воду с разметкой (вид сверху); в - спортивная
зона бассейна категории A для соревнований
по прыжкам в воду;
1 - гидромассажная ванна; 2 - места для шести судей
(синхро 3 м/10 м); 3 - места для пяти судей (синхро
3 м/10 м); 4 - места для четырех судей (3 м/10 м); 5 - места
для трех судей (1 м); 6 - трибуна для тренеров; 7 - трибуна
для спортсменов; 8 - позиции для телевидения; 9 - трибуна
для фотографов; 10 - позиции для телевещания;
11 - секретариат/табло; 12 - четыре судьи (1 м); 13 - три
судьи (3 м/10 м); 14 - разметка на дне ванны контрастным
цветом (ширина полос: минимум 0,20 м, максимум 0,30 м);
15 - душ
Рисунок 5.6 - Спортивная зона для соревнований по прыжкам
в воду в бассейне категории A
5.5.6 Для трамплинов на бетонной платформе должны соблюдаться следующие требования:
- высота от верха платформы, поддерживающей станину, до верха трамплинной доски - 0,35 м;
- расстояние от переднего края станины до переднего края платформы - не более 0,44 м (длина станины 0,741 м).
5.5.7 Все трамплины одной высоты (1,0 или 3,0 м) должны быть на одной высоте над зеркалом воды, передний край всех трамплинных досок должен быть на одной линии. В местах установки трамплинов следует предусматривать закладные детали для закрепления станин.
5.5.8 Для соревнований по синхронным прыжкам необходимо предусматривать не менее двух трамплинов одинаковой высоты на соседних платформах или на одной платформе увеличенной ширины.
5.5.9 Платформа для прыжков в воду должна быть жесткой и горизонтальной, с антискользящим покрытием.
5.5.10 На 10-метровой платформе шириной менее 3,0 м обязательны закладные детали для закрепления боковых ограждений. Ограждения должны заканчиваться за 3,0 м до переднего края платформы. На платформах для соревнований по синхронным прыжкам в воду допускаются съемные секции ограждения (ближние к переднему краю платформы).
5.5.11 Толщина переднего края платформы должна быть 0,2 - 0,3 м.
5.5.12 Проекция переднего края платформ должна выступать вперед за проекцию стенки ванны, не менее:
- платформы 10 м - на 1,5 м;
- платформы 7,5 м, 5 м, 2,6 - 3,0 м - на 1,25 м;
- платформ 0,6 - 1,0 м - на 0,75 м.
При расположении двух платформ непосредственно друг под другом, верхняя платформа должна выступать за край нижней платформы не менее чем на 0,75 м (предпочтительно 1,25 м).
5.5.13 Платформы выше 1,0 м должны иметь ограждение по боковым сторонам и заднему краю. Минимальная высота ограждения должна быть 1,0 м с вертикальными опорами через каждые 1,8 м и двумя горизонтальными перемычками между ними. Ограждения
(рисунок 5.6,а) должны заканчиваться за 1,0 м до переднего края платформы.
5.5.14 Каждая платформа должна иметь подъемное устройство или лестницу.
5.5.15 Нагрузка от платформ и опорных устройств трамплинов на опорную часть вышки составляет 350 кгс/м2.
5.5.16 Платформы прыжковых устройств должны соответствовать следующим ограничениям:
- собственная частота колебаний платформ - не более 10 Гц;
- собственная частота колебаний вышки - не более 3,5 Гц;
- колебание всей конструкции - не более 3,5 Гц.
5.5.17 Деформация переднего края платформы, возникающая под воздействием нагрузки в 100 кг, не должна превышать 1 мм.
5.5.18 Края платформ 5 м, 3 м и 1 м не должны выступать за пределы края трамплинов 3 м и 1 м, при размещении их рядом.
5.5.19 Ванны бассейнов для прыжков в воду должны быть оборудованы устройством для создания волновой ряби на поверхности воды: пузырьковым (воздушная подушка) или струйным (горизонтальное разбрызгивание).
5.5.20 Вблизи выхода из ванны прыжкового бассейна следует предусматривать душевые установки из расчета одна сетка на 10 прыгунов и не менее одной гидромассажной ванны с водой температурой 35 °C - 38 °C.
5.6 Требования к вспомогательным зонам и помещениям
Состав вспомогательных зон в зданиях и сооружениях бассейнов для плавания следует проектировать в соответствии с их функциональным назначением и зонированием по
СП 332.1325800.
В составе вспомогательной зоны зданий и сооружений бассейнов для плавания, с учетом их специфики, необходимо предусматривать:
- помещения раздевальных и душевых для занимающихся;
- зону зрителей;
- помещения медицинского назначения;
- помещения водоподготовки;
- помещения для подготовительных занятий физкультурно-оздоровительных бассейнов (спортивные залы);
- помещения для подготовительных занятий спортивных бассейнов (спортивные залы);
- зоны организаторов соревнований.
Помещения раздевальных и душевых
5.6.1 Раздевальные следует размещать на одной отметке с обходными дорожками ванн бассейнов. Сообщение раздевальных с ваннами бассейнов - через душевые, а с залом или площадкой для подготовительных занятий - минуя душевые.
5.6.2 В бассейнах с несколькими ваннами для каждой из них рекомендуется проектировать отдельные раздевальные.
5.6.3 Число мест в раздевальных следует принимать с учетом количества единовременно занимающихся во всех ваннах бассейна и спортивных залах, находящихся в сооружении:
- для физкультурно-оздоровительных бассейнов - 130%;
- для спортивных бассейнов - 200%.
5.6.4 Соотношение мест в мужской и женской раздевальных принимается 1:1, если иное не предусмотрено заданием на проектирование.
5.6.5 Для переодевания в раздевальных устраиваются скамьи из расчета - 0,6 м длины скамьи на одно сидячее место. Площадь одного места для переодевания (с учетом подхода к нему) составляет: при числе мест в раздевальной менее 40 - 1,5 м
2, при числе мест в раздевальной 40 и более - 1,2 м
2.
5.6.6 В зданиях спортивных бассейнов необходимо предусматривать дополнительные раздевальные для судей, обслуживающих официальные физкультурные и спортивные мероприятия. Расчет вместимости судейских раздевальных для бассейнов категории A - не менее 100 человек, для бассейнов категории B - не менее 50 человек, категории C - не менее 30 человек.
5.6.7 В бассейнах для детей дошкольного возраста в раздевальных предусматриваются одноярусные шкафы.
5.6.8 Общие значения площади раздевальных, приходящейся на одного занимающегося, составляют:
а) для раздевальных с числом мест менее 40:
2,1 м2 - в бассейнах без залов для подготовительных занятий;
2,5 м2 - в бассейнах с залами для подготовительных занятий;
б) для раздевальных с числом мест 40 и более:
1,7 м2 - в бассейнах без залов для подготовительных занятий;
2,1 м2 - в бассейнах с залами для подготовительных занятий;
в) для раздевальных, предназначенных для детей до 10 лет - 2,9 м2.
5.6.9 Ширина проходов между элементами оборудования в раздевальных приведена в
приложении Б.
5.6.10 Душевые при раздевальных бассейна проектируют из расчета - одна душевая сетка на трех человек одновременно занимающихся.
5.6.11 При душевых с числом сеток более шести предусматривается преддушевая для временного хранения принадлежностей для мытья и полотенец. Площадь преддушевой определяется из расчета 0,3 - 0,5 м2 на одну душевую сетку.
5.6.12 Места выхода из душевой на обходную дорожку следует проектировать по
СП 2.1.3678.
5.6.13 В раздевальных или смежных с ними помещениях устанавливают сушилки для волос из расчета: одно устройство на 10 мест - в женских раздевальных; одно устройство на 20 мест - в мужских раздевальных. Для размещения сушилок предусматривается дополнительная площадь из расчета 1,3 м2 на одно устройство.
5.6.14 Расчетное число санитарных приборов приведено в
приложении В. Санитарные узлы для занимающихся следует проектировать при раздевальных, исключая возможность прохода через них к ванне бассейна, минуя душевые.
5.6.15 Не допускается располагать санитарные узлы и душевые над помещениями для приготовления и хранения коагулирующих и дезинфицирующих растворов.
5.6.16 В конструкции пола раздевальных с душевыми и санитарными узлами для занимающихся следует предусматривать сливные устройства, подключенные к системе канализации.
5.6.17 В бассейнах, размещаемых в отдельно стоящих зданиях, площадь гардеробной верхней одежды занимающихся определяется из расчета - 0,1 м2 на одно место, но не менее 10 м2.
5.6.18 Расчет мест хранения верхней одежды (гардеробных) по
СП 332.1325800.
Зона зрителей
5.6.19 Количество мест для зрителей в бассейне для плавания следует проектировать по
ГОСТ Р 58458: для бассейнов категории A - не менее 500 мест, для категории B - не менее 200 мест.
5.6.20 Места для зрителей (трибуны) в бассейне для плавания следует проектировать по
СП 332.1325800.
5.6.22 Наличие и количество мест для зрителей в VIP- и VVIP-зонах определяются по заданию на проектирование.
5.6.23 При проектировании бассейнов с местами для зрителей расчет площади вспомогательной зоны осуществляют:
- для вестибюля - дополнительно 0,25 м2 на одно место для зрителя;
- гардероба - дополнительно 0,1 м2 на одно место для зрителя, но не менее 10 м2;
- фойе - дополнительно 0,35 м2 на одно место для зрителя;
- обеденного зала, буфета - дополнительно 1,4 м2 на одно место для зрителя;
- дополнительных санитарных узлов - согласно
СП 118.13330 из расчета числа зрителей.
Помещения медицинского назначения
5.6.24 В бассейнах для плавания следует предусматривать комнату дежурной медсестры площадью 12 м2 с непосредственным выходом на обходную дорожку ванны бассейна. При наличии нескольких ванн бассейнов в составе одного сооружения (здания) следует проектировать одну комнату медицинской сестры.
5.6.25 В бассейнах категории A и B следует предусматривать медицинские помещения для обслуживания спортсменов при проведении соревнований (включая зону допинг-контроля по
СП 332.1325800).
5.6.26 Необходимость проектирования медико-восстановительного комплекса в составе бассейна для плавания определяется заданием на проектирование.
Помещения водоподготовки
5.6.27 Помещения хлораторной и склада хлора допускается размещать у наружной стены здания бассейна, выше уровня земли, с отделением от других помещений ограждающими конструкциями из несгораемых материалов с пределом огнестойкости не менее 0,75 ч.
5.6.28 Площади помещений водоподготовки следует принимать: хлораторной 8 м2 - 10 м2, склада хлора - 6 м2.
5.6.29 Помещения хлораторной и склада хлора должны иметь непосредственный выход на улицу или через тамбур. Допускается устройство общего тамбура для выхода из обоих помещений наружу.
Не допускается располагать санитарные узлы и душевые над помещениями для приготовления дезинфицирующих и коагулирующих растворов.
5.6.30 В зданиях бассейнов в составе вспомогательных помещений следует предусматривать помещение химической лаборатории площадью 18 м
2, оснащенное подводками горячей и холодной воды, вытяжным шкафом согласно
ГОСТ Р 53491.1.
Помещения подготовительных занятий физкультурно-оздоровительных бассейнов
5.6.31 Проектировать залы для подготовительных занятий следует поблизости от ванн бассейнов.
5.6.32 Количество залов для подготовительных занятий должно соответствовать количеству ванн бассейнов. Площадь зала принимается из расчета 5 м2 на одного занимающегося в бассейне.
5.6.33 При залах подготовительных занятий в зданиях физкультурно-оздоровительных бассейнов следует предусматривать инвентарные. Площадь инвентарной принимается с учетом назначения зала и габаритов оборудования по заданию на проектирование.
5.6.34 По заданию на проектирование в зданиях физкультурно-оздоровительных бассейнов залы другого функционального назначения проектируются по
СП 332.1325800.
Помещения подготовительных занятий спортивных бассейнов
5.6.35 Состав помещений подготовительных занятий для спортивного плавания и водного поло в зданиях бассейнов категорий A и B:
- зал ОФП - площадью не менее 5 м2 на каждого занимающегося в бассейне;
- зал СФП - площадью не менее 6 м2 на каждую единицу спортивно-технологического оборудования (тренажер).
5.6.36 Для подготовительных занятий при ваннах синхронного плавания и прыжков в воду (дополнительно к указанному в
5.6.35) - зал хореографии площадью не менее 120 м
2.
5.6.37 Для подготовительных занятий при ванных прыжков в воду (дополнительно к указанному в
5.6.35 и
5.6.36) - зал акробатической подготовки площадью не менее 220 м
2 и с высотой потолка не менее 5 м.
5.6.38 Залы подготовительных занятий следует проектировать по
СП 332.1325800, с учетом их назначения и параметров оборудования. Зал для акробатической подготовки (с учетом размещения ямы глубиной не менее 1,3 м) следует размещать не выше первого этажа, не допускается размещение зала над подвальными помещениями.
5.6.39 По заданию на проектирование в зданиях спортивных бассейнов залы другого функционального назначения проектируют по
СП 332.1325800.
Зоны и помещения организаторов соревнований
5.6.40 В зданиях спортивных бассейнов категории A и B следует предусмотреть функциональные зоны и помещения для организаторов соревнований:
- помещение оператора электронной системы фиксации результатов с обзором зоны старта/финиша, площадью не менее 12 м2 на три рабочих места;
- помещение секретариата (изолированное, располагаемое вблизи спортивной зоны) на 4 - 6 рабочих мест;
- рабочее место судьи-информатора на обходной дорожке в непосредственной близости от помещения секретариата (с обзором зоны старта/финиша);
- помещение для представителя федерации и рефери соревнований на 3 - 4 человека, площадью не менее 12 м2;
- помещения для хранения спортивно-технологического оборудования и инвентаря (судейских помостов, монтируемых помостов для плавания и синхронного плавания, комплекта разделительных дорожек тренировочных/соревновательных, финишных панелей, разметки для поля для водного поло, ворот соревновательных/тренировочных, пьедестала, и пр.) с технологическими воротами на уровне обходной дорожки для крупногабаритного оборудования;
- зону награждения с местами для размещения флагштоков и переносного пьедестала;
- зону комплектования заплывов и зону подготовки церемонии награждения;
- зону для интервью спортсменов после награждения;
- помещение для переодевания судей согласно
5.6.6 и волонтеров до 20 человек при проведении соревнований (расчет площадей по
5.6.5 -
5.6.8).
5.6.41 Рабочие места в помещениях организаторов соревнований (по
5.6.40) должны иметь подключение к электросети и доступ к информационно-телекоммуникационной сети "Интернет" (проводной/беспроводной), а место судьи-информатора и к слаботочным системам.
Раздел 6 исключен с 15.01.2022. -
Изменение N 1, утв. Приказом Минстроя России от 14.12.2021 N 930/пр.
7 Вспомогательные помещения
Раздел 7 исключен с 15.01.2022. -
Изменение N 1, утв. Приказом Минстроя России от 14.12.2021 N 930/пр.
8 Требования к конструктивным решениям и отделке помещений
(раздел 8 в ред.
Изменения N 1, утв. Приказом Минстроя России от 14.12.2021 N 930/пр)
8.1 Класс и уровень ответственности зданий бассейна для плавания следует принимать в соответствии с
[2] и
ГОСТ 27751.
Нагрузки и воздействия на конструкции и их расчетные сочетания с коэффициентами надежности по нагрузкам, коэффициентами сочетаний нагрузок и коэффициентами надежности по ответственности следует принимать в соответствии с
ГОСТ 27751,
СП 20.13330.
8.2 Фундаменты следует проектировать в соответствии с
СП 22.13330 и
СП 24.13330 на основе результатов инженерно-геологических исследований и расчетов конструкций здания.
Стальные конструкции следует проектировать в соответствии с
СП 16.13330, железобетонные конструкции -
СП 63.13330.
8.3 При проектировании зданий бассейнов для плавания допускается применение модульных зданий и изделий, а также отдельных модульных конструкций.
8.4 При проектировании бассейнов для плавания с применением железобетонных и стальных конструкций следует предусматривать их защиту от коррозии в соответствии с
СП 28.13330, с применением деревянных конструкций - предусматривать меры, обеспечивающие их долговечность в соответствии с
СП 64.13330.
8.5 Отделка внутренних поверхностей должна быть без выступов и мест возможного скопления влаги и пыли. Сопряжения стен и колонн с полами помещений с влажным и мокрым режимами должны быть закругленными.
8.6 На внутренних сторонах ограждающих конструкций помещений с влажным и мокрым режимами следует предусматривать пароизоляцию или гидроизоляцию из биостойких материалов.
8.7 При проектировании ванн бассейнов следует применять:
- железобетонные конструкции, покрытые кафельной плиткой, ПВХ-пленкой или эластичным материалом;
- металлические сварные конструкции из нержавеющей стали;
- металлические сборные конструкции, ламинированные ПВХ-пленкой;
- металлические сборные конструкции, покрытые ПВХ-пленкой.
8.8 В междуэтажных перекрытиях и полах первого этажа помещений с мокрым и влажным режимами следует предусматривать гидроизоляцию. Гидроизоляция должна быть заведена на стену, перегородки и колонны выше поверхности пола на 300 мм.
8.9 Стыки между сборными элементами перекрытий должны быть с дополнительным слоем гидроизоляции на 100 мм в каждую сторону.
8.10 Стены и перегородки в помещениях с влажным и мокрым режимами следует облицовывать керамическими, полимерными или стеклянными плитками на всю высоту. Допускается облицовка стен на высоту 1,8 м от уровня пола, выше - окраска водостойкими красками. Для отделки помещений следует предусматривать материалы светлых тонов.
8.11 Полы в помещениях с влажным и мокрым режимами, покрытия обходной дорожки и дна ванн должны быть стойкими к воздействию влаги и дезинфицирующих растворов для очистки воды, залов ванн и ванн бассейнов по
СП 29.13330.
8.12 В помещениях с влажным и мокрым режимами уровень чистого пола должен быть на 30 мм ниже уровня пола других смежных помещений.
8.13 В отделке полов обходных дорожек следует применять керамические, бетонные или мозаичные плиты с шероховатой, нескользкой, рифленой поверхностью.
8.14 Материал покрытия обходных дорожек, скамей, стенок и дна ванн должен быть устойчивым к применяемым для очистки воды и ванны химическим реагентам и легко поддаваться очистке и дезинфекции. Внутренняя поверхность стенок и дна ванн выполняется из материалов светлых тонов. Швы между облицовочными плитками затираются.
8.15 Заполнения оконных и дверных проемов в помещениях с влажным и мокрым режимами следует выполнять из водо- и биостойких материалов. Допускается предусматривать оконные переплеты из антисептированной древесины хвойных пород, защищенные от увлажнения влагостойкими покрытиями.
8.16 Для проветривания помещений в оконных переплетах необходимо предусматривать открывающиеся фрамуги или форточки, расположенные в верхней части проемов. Фрамуги и форточки должны быть изолированы от межоконного пространства специальными коробами.
9 Естественное и искусственное освещение
(раздел 9 в ред.
Изменения N 1, утв. Приказом Минстроя России от 14.12.2021 N 930/пр)
9.2 Освещенность ванн физкультурно-оздоровительных бассейнов принимается не менее 150 люкс на поверхности воды для ванн крытого типа и не менее 100 люкс - для ванн открытого типа.
9.3 Освещенность спортивных бассейнов на уровне 1 м над поверхностью воды должна быть не менее 600 люкс.
9.4 Освещенность спортивных бассейнов на уровне 1 м над поверхностью воды при проведении соревнований в бассейнах категории A - не менее 1500 люкс.
9.5 При верхнебоковом освещении залов светильниками прямого света, концентрированного светораспределения наклон оптической оси светильника должен быть не более 40° к вертикали, не менее 10% суммарного светового потока осветительных приборов направляется вверх для освещения потолка.
9.6 Потолочные светильники над зеркалом воды располагают параллельно продольной оси ванны. Расположение осветительных приборов обеспечивает равномерное освещение зеркала воды при отклонении оптической оси прожектора от вертикали не более 45°.
9.7 Для ограничения слепящего действия светильников при освещении зальных помещений показатель ослепленности должен быть не более 60.
9.8 Осветительные приборы верхнебокового освещения устанавливают на высоте не менее 10 м, обеспечивая условие, по которому перпендикуляр, опущенный из оптического центра прибора на продольную ось ванны, составит с ее поверхностью угол не менее 27°.
9.9 В зданиях бассейнов следует предусматривать эвакуационное освещение в соответствии с
СП 52.13330.
9.10 Площадь световых проемов для залов подготовительных занятий (% от площади зала), не более:
17% - при одностороннем боковом освещении;
14% - при двух- и многостороннем боковом освещении.
9.11 При проектировании бассейнов для плавания крытого типа следует ограничивать попадание солнечного света на зеркало воды, во избежание активизации фотосинтеза. Площадь световых проемов залов ванн (% от площади зала, включая площадь зеркала воды), не более:
14% - 16% - при одностороннем боковом освещении;
12% - 13% - при двух- и многостороннем боковом освещении.
9.12 Световые проемы стен и потолка для обеспечения равномерности освещения рекомендуется проектировать ленточными и размещать не ниже 2 м от уровня обходной дорожки.
9.13 Ориентация световых проемов помещений ванн бассейнов и залов для подготовительных занятий не регламентируется.
10 Требования к инженерным системам
(раздел 10 в ред.
Изменения N 1, утв. Приказом Минстроя России от 14.12.2021 N 930/пр)
10.1 Водоснабжение и канализация
10.1.2 Внутренний хозяйственно-питьевой водопровод, водоотведение и канализацию (в том числе с учетом норм расхода воды в сутки, часов максимального водопотребления) следует устраивать согласно
СП 30.13330.
10.1.3 Потребление воды на обработку обходных дорожек, а также расход на бытовые нужды персонала (включая буфет) учитывают отдельно.
10.1.4 При проектировании системы водоснабжения в расчетах следует предусматривать: ножные ванны с расходом воды 720 л/ч (при непрерывном потоке воды), температурой 30 °C - 35 °C, продолжительностью работы 30 мин в смену; уборку (мытье) обходных дорожек и душевых с расходом 6 л/м и температурой 30 °C.
10.1.5 Для обеспечения хозяйственно-бытовых и технологических нужд следует предусматривать горячее водоснабжение.
10.1.6 Расходы горячей воды следует определять согласно
СП 30.13330.
10.1.7 Подводку холодной и горячей воды следует предусматривать к обходным дорожкам, душевым, помещениям медицинского назначения, раздевальным для занимающихся и судей, комнатам инструкторов, буфетам, лаборатории анализа воды, помещениям для уборочного инвентаря, а также к другим помещениям в соответствии с технологическим заданием.
10.1.8 Расчетную температуру воды в ваннах бассейнов принимают в соответствии с
СП 2.1.3678 и функциональным назначением ванн бассейнов и требованиями видов спорта:
30 °C - 32 °C - для детей дошкольного возраста;
29 °C - 30 °C - учебных;
26 °C - 29 °C - оздоровительных;
25 °C - 28 °C - для спортивного плавания;
26 °C - 28 °C - для синхронного плавания;
25 °C - 27 °C - для водного поло;
не менее 26 °C - для прыжков в воду.
10.1.9 Бассейны для плавания должны быть оборудованы системами водообмена. По принципу водообмена бассейны подразделяются на:
- рециркуляционного типа;
- проточного типа;
- с периодической сменой воды.
10.1.10 При проектировании ванн бассейнов для детей дошкольного возраста (от 70 м3), ванн учебных, оздоровительных и спортивных бассейнов следует применять рециркуляционный водообмен.
При проектировании ванн бассейнов с объемом воды не более 70 м
3, согласно
ГОСТ Р 53491.1, следует применять проточный водообмен.
10.1.11 Рециркуляция в ваннах бассейнов предусматривает многократное применение воды с очисткой, дезинфекцией и одновременным пополнением убыли свежей водопроводной водой согласно
СП 2.1.3678.
10.1.12 Рекомендуемый период полной смены воды (водообмена) в ваннах бассейнов (кроме бассейнов проточного типа) определяется
ГОСТ Р 53491.1 и составляет:
- не более 0,5 ч - для бассейнов детей дошкольного возраста;
- не более 4,0 ч - для учебных бассейнов;
- не более 6,0 ч - для оздоровительных бассейнов;
- не более 8,0 ч - для спортивных бассейнов.
10.1.13 Подачу воды в ванны бассейнов следует осуществлять через отверстия в стенках (форсунки) и дне (донные каналы). Выбор технологического решения, количество точек подачи воды и их расположение должны обеспечивать равномерность распределения воды по объему ванны (перемешивание), поддержание постоянства ее температуры, а также равномерное распределение дезинфектанта.
Скорость выхода воды из подающих отверстий следует принимать не более 2 - 3 м/с.
10.1.14 Для бассейнов проточного типа или со сменой воды допускается применение воды, поступающей из централизованной системы питьевого водоснабжения при соблюдении требований
СП 2.1.3678. Необходимость обеззараживания такой воды определяется
ГОСТ Р 53491.1.
10.1.15 Очистку технологической воды ванн бассейнов следует осуществлять в соответствии с
СП 2.1.3678.
10.1.16 Водосток следует предусматривать раздельно для каждой ванны бассейна или для группы ванн бассейна одинакового назначения.
10.1.17 Последовательное подключение двух и более ванн бассейна к единой системе водоподготовки не допускается.
10.1.20 Проектирование наружных систем водоотведения зданий бассейнов - по
СП 32.13330.
10.2 Отопление и вентиляция
10.2.1 Системы отопления и вентиляции бассейнов должны обеспечивать параметры микроклимата и воздухообмена помещений бассейнов для плавания, приведенные в
приложении Г.
10.2.2 Подвижность воздуха не должна превышать:
- в залах ванн бассейнов - 0,2 м/с;
- в залах для подготовительных занятий - 0,5 м/с.
10.2.3 Относительную влажность воздуха принимают:
- в залах ванн бассейнов - 50% - 65%, при этом показатель абсолютного влагосодержания не должен превышать 17 г/кг;
- в залах для подготовительных занятий - 30% - 60%.
10.2.4 При теплотехническом расчете ограждающих конструкций залов ванн бассейнов параметры микроклимата следует принимать: относительную влажность воздуха - 67%, температуру - на 1 °C - 2 °C выше температуры воды в бассейне.
10.2.5 Приборы отопления и трубопроводы в залах ванн бассейнов и залах для подготовительных занятий следует размещать на высоте до 2 м от пола. Приборы и подводки к ним не должны выступать из плоскости стен.
10.2.6 Системы приточной и вытяжной вентиляции следует предусматривать отдельно для:
- залов ванн бассейнов;
- залов для подготовительных занятий;
- помещений административного и инженерно-технического персонала, бытовых помещений рабочих;
- помещений хлораторных и складов хлора;
- технических помещений (насосно-фильтровальных, бойлерных, озонаторных и др.).
Пульт управления системами вентиляции, обслуживающими помещения хлораторной и озонаторную, следует размещать вне этих помещений.
10.2.7 Для залов ванн бассейнов рекомендуется применять приточно-вытяжные вентиляционные установки с рекуператорами и клапанами для регулирования подмеса воздуха, а также с возможностью работы в двух режимах: рабочий период бассейнов (активный режим) и нерабочий период бассейнов (пассивный режим).
10.2.8 Обеспечение воздухообмена во всех помещениях необходимо предусматривать приточно-вытяжными системами с механическим побуждением.
10.2.9 Системы вытяжной вентиляции из санитарных узлов и из душевых допускается объединять.
10.2.10 Приборы отопления рекомендуется располагать под окнами и у наружных стен. Для залов ванн бассейнов рекомендуется использовать воздушное отопление и теплый пол в качестве резервного отопления.
10.2.11 При температуре наружного воздуха ниже минус 20 °C в тамбурах основных входов плавательных бассейнов рекомендуется устраивать воздушно-тепловые завесы. Воздушно-тепловую завесу допускается заменять тамбуром с тремя, последовательно расположенными, дверями.
10.2.12 Вентиляцию помещений хлораторных и складов хлора следует предусматривать периодического действия. Вентиляционные каналы следует подводить к двум зонам раздельно, для удаления воздуха пропорционально общему объему вытяжки: верхней - 1/3, нижней - 2/3. Вентиляционные агрегаты необходимо размещать вне этих помещений. Управление агрегатами осуществляют от пусковых устройств, устанавливаемых около входа в помещения.
10.2.13 Помещения вентиляционных систем рекомендуется размещать в подвальных или цокольных этажах (на грунте) так, чтобы протяженность трасс воздуховодов была минимальной. При невозможности разместить эти помещения в нижних этажах, допускается их размещение вне основного здания (в отдельном или пристроенном блоке).
10.2.14 Системы отопления, вентиляции, горячего водоснабжения и кондиционирования воздуха в зданиях бассейнов следует проектировать в соответствии с
СП 60.13330.
10.2.15 Обходные дорожки ванн бассейнов следует проектировать с использованием водяного подогрева.
10.3 Электроснабжение
10.3.1 Электроснабжение зданий бассейнов следует проектировать в соответствии с
[4] и
[5].
10.3.2 Подключение к электросети следует предусматривать в отдельных функциональных зонах и помещениях согласно заданию на проектирование, включая помещения методических, тренерских, судейских, медицинских и административных помещений.
10.3.3 Общий расчет нагрузок электроснабжения зданий бассейнов следует осуществлять согласно
СП 256.1325800, при расчете нагрузок в отдельных зонах и помещениях бассейнов для плавания - по заданию на проектирование.
10.3.5 Электропитание компонентов системы оповещения опасности утопления должно соответствовать требованиям
ГОСТ Р 59219.
10.4 Слаботочные системы
10.4.1 В бассейнах для плавания следует предусматривать:
- телефонизацию;
- электрочасофикацию;
- видеонаблюдение и систему контроля удаленного доступа;
- доступ к информационно-телекоммуникационной сети "Интернет" (проводной/беспроводной).
10.4.2 Спортивные зоны бассейнов категорий A и B следует обеспечивать системами хронометража, фиксирования и трансляции спортивных результатов (информационные и/или видеотабло, звуковое сопровождение, соответствующие виду спорта).
10.4.3 Помещения для судей следует обеспечивать радиофикацией, телефонизацией, электрочасофикацией, доступом к информационно-телекоммуникационной сети "Интернет".
10.4.4 Залы подготовительных занятий и раздевальные в спортивных бассейнах (включая раздевальные для судей и волонтеров) следует оснащать устройствами для аудиотрансляции из зала ванны.
10.4.5 Здания бассейнов для плавания следует обеспечивать мероприятиями по молниезащите
[7].
10.5 Система оповещения опасности утопления
10.5.1 В бассейнах для плавания (кроме бассейнов для детей дошкольного возраста) следует предусматривать систему оповещения об опасности утопления (СООУ).
10.5.2 Система оповещения опасности утопления бассейна для плавания должна соответствовать требованиям
ГОСТ Р 59219.
10.5.3 Выбор технологического решения для СООУ, как комплексной системы безопасности бассейна для плавания, позволяющей распознавать, фиксировать, отслеживать и оповещать об уровнях опасности утопления, следует осуществлять по заданию на проектирование. Состав компонентов СООУ по
ГОСТ Р 59219 приведен в таблице 3.
Таблица 3
Компоненты систем оповещения опасности утопления
Компоненты систем оповещения опасности утопления |
На базе ультразвука: - устройство сигнальное индивидуальное; - сенсор ультразвукового сигнала; - канал преобразования и передачи; - блок программного обеспечения; - блок питания системы; - зарядная станция; - устройство звуковой сигнализации; - блок хранения | На базе видеосигнала: - входное устройство видеопотока; - канал преобразования и передачи видео- и аудиопотоков; - устройство отображения видеопотока; - блок программного обеспечения; - блок питания системы; - устройство звуковой сигнализации; - блок хранения |
11 Отопление и вентиляция
Раздел 11 исключен с 15.01.2022. -
Изменение N 1, утв. Приказом Минстроя России от 14.12.2021 N 930/пр.
12 Электроснабжение и электрические устройства
Раздел 12 исключен с 15.01.2022. -
Изменение N 1, утв. Приказом Минстроя России от 14.12.2021 N 930/пр.
(раздел 13 в ред.
Изменения N 1, утв. Приказом Минстроя России от 14.12.2021 N 930/пр)
13.1 При проектировании бассейнов для плавания следует предусматривать систему озвучивания спортивной зоны с учетом функционального назначения ванны. Бассейны для спортивного плавания, водного поло и прыжков в воду требуют звукового оборудования для голосовых сообщений, а бассейны для синхронного плавания (дополнительно к речи) - музыкального сопровождения, транслируемого в воздушной и водной среде.
13.2 При проектировании залов ванн бассейнов для плавания следует обеспечивать значение параметра времени реверберации на частотах 500 - 1000 Гц в пределах значений, показанных на графике
рисунка 13.1. На частотах ниже 500 Гц время реверберации допускается увеличивать на 15% - 20%.
1 - при проведении соревнований по синхронному плаванию
(с музыкальным сопровождением); 2 - при проведении
соревнований по водным видам спорта
без музыкального сопровождения
Рисунок 13.1 - График времени реверберации в помещении
13.3 Расчет акустического благоустройства залов бассейнов и подготовительных занятий, уровней звукового давления и эквивалентных уровней звука, дБA, должны проводиться по
СП 51.13330.
13.4 Для предотвращения влияния внешних источников шума помещения для отдыха занимающихся, учебно-методические классы, помещения для медицинского обслуживания рекомендуется располагать на удалении от вентиляционных камер, насосных и других источников шума.
13.5 В залах ванн бассейнов рекомендуется устройство звукопоглощающих потолков.
13.6 При проектировании залов с выпуклыми (купольными, сводчатыми, арочными) покрытиями для исключения концентрации отраженной звуковой энергии и фокусирования звука рекомендуется принимать радиус кривизны покрытия минимум в два раза больше высоты зала бассейна.
14 Автоматическое и звуковое оборудование ванн бассейнов
Раздел 14 исключен с 15.01.2022. -
Изменение N 1, утв. Приказом Минстроя России от 14.12.2021 N 930/пр.
НАЗНАЧЕНИЕ, РАЗМЕРЫ И РАСЧЕТНЫЕ ПОКАЗАТЕЛИ
ОЗДОРОВИТЕЛЬНЫХ ПЛАВАТЕЛЬНЫХ БАССЕЙНОВ
Минстроя России от 14.12.2021 N 930/пр)
Таблица А.1
Параметры ванн бассейнов | Физкультурно-оздоровительные бассейны | Спортивные бассейны |
Для детей дошкольного возраста | Учебные | Оздоровительные | Спортивное плавание | Синхронное плавание | Водное поло | Прыжки в воду |
Размер ванны, м | Размер спортивной зоны, м | Размер ванны, м | Размер спортивной зоны, м | Размер ванны, м | Размер спортивной зоны, м | Размер ванны, м | Размер спортивной зоны, м |
Размеры ванн, м | Произвольно, но не более 60 м2 | 25 x 10 - 16 | Произвольно | 50 x 25 25 x 25 25 x 16 | 50 x 25 25 x 25 25 x 16 | 50 x 25 30 x 25 | 30 x 25 | 50 x 25 | 36 x 25 | 25 x 25 | 25 x 20 |
Глубина ванн, м | Не более 0,6 | 1,2 - 1,8 | Произвольно | - |
Глубина ванн бассейнов категории A, м | - | Не менее 2,0 | Не менее 3,0 | Не менее 2,0 | 3,3 - 5,0 |
Глубина ванн бассейнов категории B, м | Не менее 2,0 | Не менее 3,0 | Не менее 2,0 | 3,3 - 5,0 |
Глубина ванн бассейнов категории C, м | Не менее 1,8 | Не менее 2,0 | Не менее 1,8 | 3.2 - 4,5 |
Расчетная площадь зеркала воды, м2, на одного человека | 3 | 4 | 5 | - |
Единовременная пропускная способность (ЕПС) ванны | - | 120 80 48 | 15 | 25 | 30 |
Примечание - При использовании спортивных ванн бассейнов для оздоровительного плавания значения ЕПС принимаются по нормативу спортивного плавания для ванн соответствующего размера. |
ШИРИНА ПРОХОДОВ МЕЖДУ ЭЛЕМЕНТАМИ ОБОРУДОВАНИЯ
В РАЗДЕВАЛЬНЫХ И ДУШЕВЫХ
Минстроя России от 14.12.2021 N 930/пр)
Таблица Б.1
Назначение ванны | Размер ванны, м | Глубина воды в глубокой части ванны, м | Пропускная способность ванны в смену, чел. |
| ширина |
Плавание | 50 | 25 (21) | Исходя из уклона дна, принимаемого не менее 0,01. | 120 (96) |
25 | 25 (21) | 80 (64) |
25 | 16 | 48 |
Синхронное плавание | | 16 | 2,0 - 3,0 | 12 |
Водное поло | Не менее 33,3 | Не менее 21 | 1,8 (минимум) | 25 (80 для других целей) |
Прыжки в воду | 25 | 20 | 3,8 - 5,0 | 30 (максимум) |
<*> Отклонение длины ванн (в том числе универсальных) допускается только в сторону увеличения в пределах до 0,03 м. <**> Рекомендуемая минимальная глубина для спортивного плавания. Для соревнований категории А глубина 2,0 м (минимум). Уклон дна к местам выпуска воды в плавательных бассейнах следует принимать не менее 0,01, но не более 0,045; допускаются уклоны в поперечном направлении. <***> Для соревнований категории А произвольной программы требуется зона минимальными размерами 30 x 12 м (глубина выделенной части 12 x 12 м - 3 м, глубина остальной части - 2,5 м). Примечание - В скобках приведено значение меньшей ширины ванны и соответствующей ей пропускной способности. |
РАСЧЕТНОЕ ЧИСЛО САНИТАРНЫХ ПРИБОРОВ ВО ВСПОМОГАТЕЛЬНЫХ ПОМЕЩЕНИЯХ
Минстроя России от 14.12.2021 N 930/пр)
Таблица В.1
Высота над уровнем воды, м | Ширина, м | Длина, м |
0,6 - 1,0 | 1,0 - 2,9 | 5 |
2,6 - 3,0 | 1,0 - 2,0 | 5 |
5,0 | 2,9 | 6,0 |
7,5 | 2,0 | 6,0 |
10,0 | 3,0 | 6,0 |
ТЕМПЕРАТУРА ВОЗДУХА И КРАТНОСТЬ ВОЗДУХООБМЕНА
В ПОМЕЩЕНИЯХ БАССЕЙНОВ
Минстроя России от 14.12.2021 N 930/пр)
Таблица Г.1
Наименование помещения | | Расчетная температура воздуха, °C | Кратность обмена воздуха в 1 ч |
приток | вытяжка |
Залы ванн физкультурно-оздоровительных бассейнов | 6 | На 1 °C - 2 °C выше температуры воды в ванне | Не менее 80 м3/ч наружного воздуха на одного занимающегося и не менее 20 м3/ч на одного зрителя |
Залы ванн спортивных бассейнов | 8 |
Залы для подготовительных занятий | 8 | 18 | Не менее 80 м3/ч на одного занимающегося |
Вестибюли для занимающихся | - | 20 | 2 | - |
Гардеробная верхней одежды для занимающихся и зрителей (обособленная от вестибюля) | - | 16 | - | 2 |
Раздевальные | - | 24 - 26 | 2 - 3 | 2 - 3 |
Душевые | - | 24 - 26 | 5 | 10 |
РАСЧЕТНОЕ ЧИСЛО САНИТАРНЫХ ПРИБОРОВ
ВО ВСПОМОГАТЕЛЬНЫХ ПОМЕЩЕНИЯХ
Приложение Д исключено с 15.01.2022. -
Изменение N 1, утв. Приказом Минстроя России от 14.12.2021 N 930/пр.
НАБОР ПОМЕЩЕНИЙ БАССЕЙНОВ ПО КРИТЕРИЯМ НЕОБХОДИМОСТИ
Приложение Е исключено с 15.01.2022. -
Изменение N 1, утв. Приказом Минстроя России от 14.12.2021 N 930/пр.
СОСТАВ И ПЛОЩАДИ МЕДИКО-ВОССТАНОВИТЕЛЬНОГО ЦЕНТРА
Приложение Ж исключено с 15.01.2022. -
Изменение N 1, утв. Приказом Минстроя России от 14.12.2021 N 930/пр.
ТЕМПЕРАТУРА ВОЗДУХА И КРАТНОСТЬ ВОЗДУХООБМЕНА
В ПОМЕЩЕНИЯХ БАССЕЙНОВ
Приложение Ж исключено с 15.01.2022. -
Изменение N 1, утв. Приказом Минстроя России от 14.12.2021 N 930/пр.
Минстроя России от 14.12.2021 N 930/пр)
[1] Федеральный
закон от 4 декабря 2007 г. N 329-ФЗ "О физической культуре и спорте в Российской Федерации"
[2] Федеральный
закон от 30 декабря 2009 г. N 384-ФЗ "Технический регламент о безопасности зданий и сооружений"
[3]
Приказ Министерства спорта Российской Федерации от 25 февраля 2016 г. N 172 "Об утверждении классификатора объектов спорта"
[4]
СП 31-110-2003 Проектирование и монтаж электроустановок жилых и общественных зданий
[5] ПУЭ Правила устройства электроустановок (7 изд.)
[6]
Р 078-2019 Методические рекомендации "Инженерно-техническая укрепленность и оснащение техническими средствами охраны объектов и мест проживания и хранения имущества граждан, принимаемых под централизованную охрану подразделениями вневедомственной охраны войск национальной гвардии Российской Федерации" (утверждено Росгвардией 04 апреля 2019)
[7]
СО 153-34.21.122-2003 Инструкция по устройству молниезащиты зданий, сооружений и промышленных коммуникаций