Скачать Серия 1.832.1-13 Выпуск 3. Панели повышенной заводской готовности. Технические условия. Опалубочные чертежи и армирование. Рабочие чертежи

Дата актуализации: 01.01.2021

Серия 1.832.1-13

Выпуск 3. Панели повышенной заводской готовности. Технические условия. Опалубочные чертежи и армирование. Рабочие чертежи

Обозначение: Серия 1.832.1-13
Обозначение англ: Series 1.832.1-13
Статус:не определен законодательством
Название рус.:Выпуск 3. Панели повышенной заводской готовности. Технические условия. Опалубочные чертежи и армирование. Рабочие чертежи
Дата добавления в базу:01.09.2013
Дата актуализации:01.01.2021
Дата введения:15.02.1989
Дата окончания срока действия:30.06.2003
Область применения:Настоящие технические условия распространяются на трехслойные железобетонные панели повышенной заводской готовности (с оконными и дверными блоками) на гибких связях с плитным утеплителем, предназначенные для наружных стен сельскохозяйственных производственных зданий
Оглавление:1.832.1-13.3-ТУ Технические условия
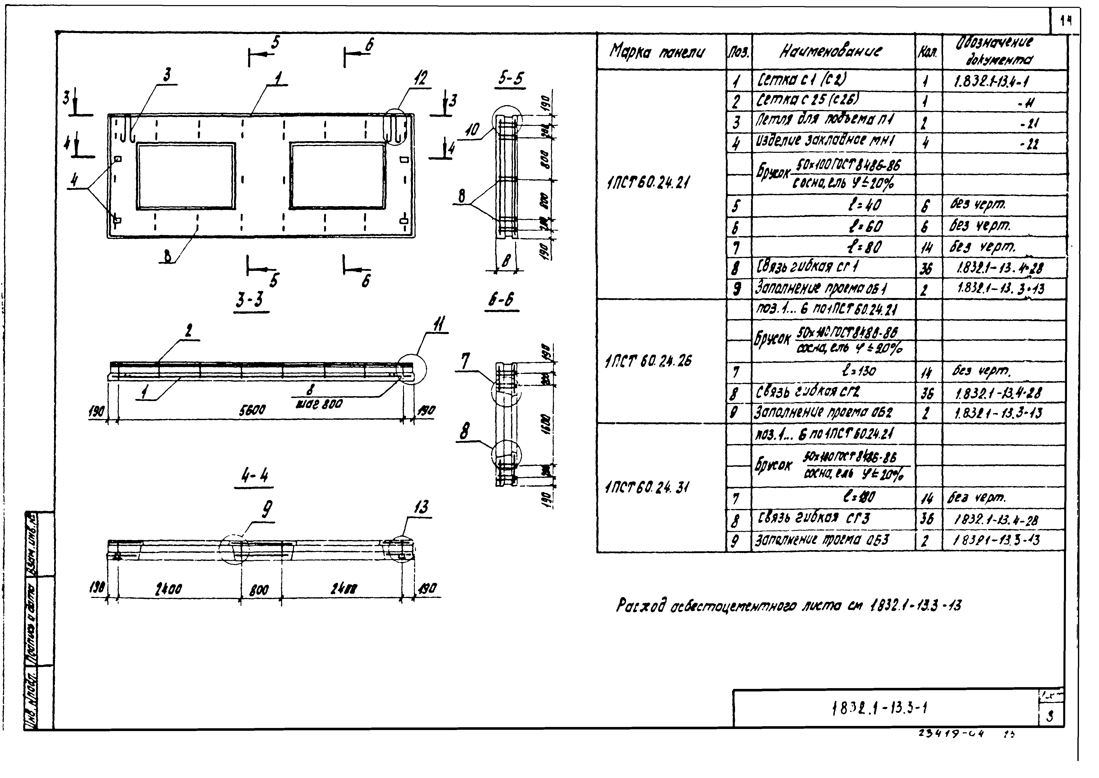
1.832.1-13.3-1 Панель 1ПСТ 60.24…
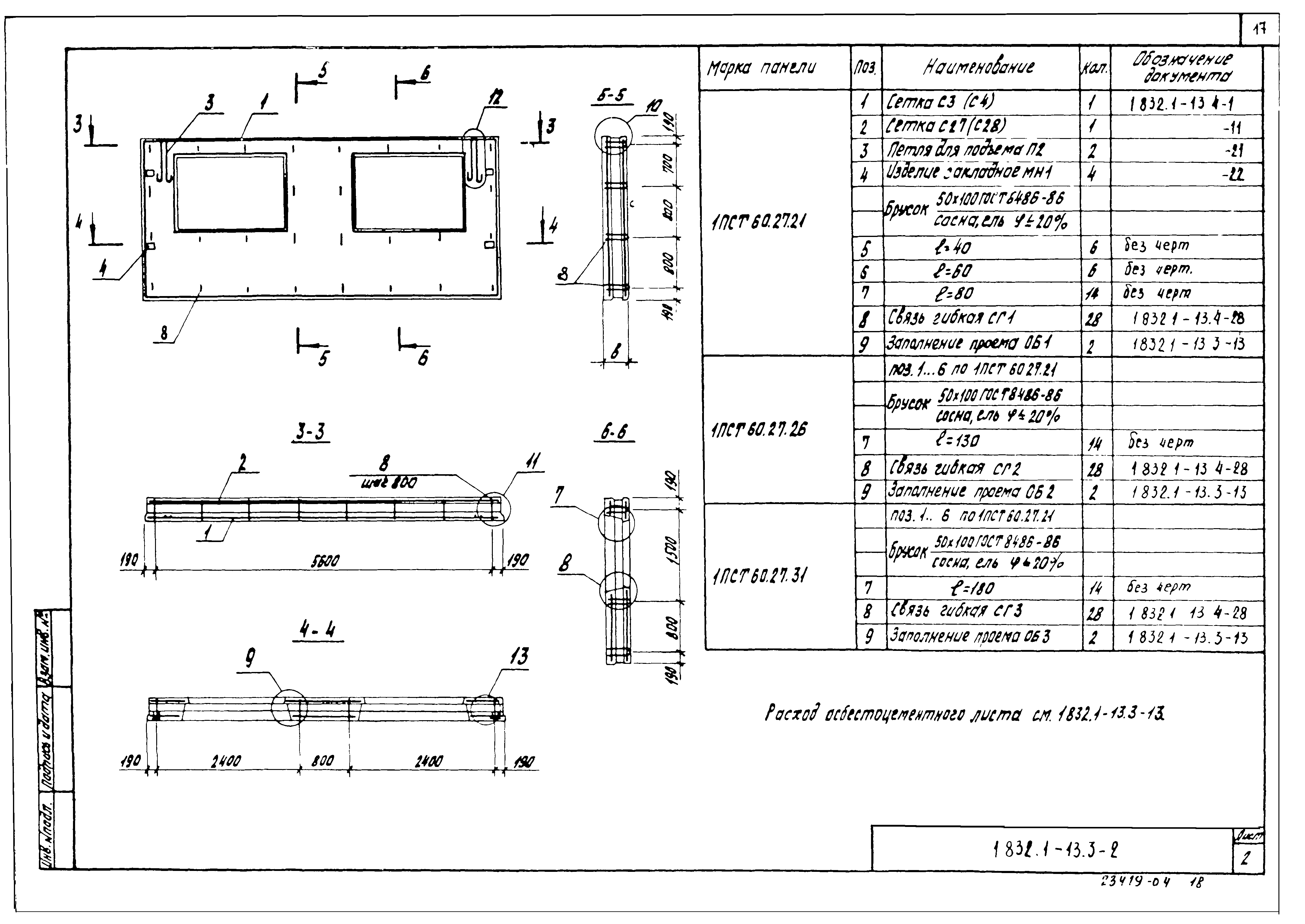
1.832.1-13.3-2 Панель 1ПСТ 60.27…
1.832.1-13.3-3 Панель 1ПСТ 60.30…
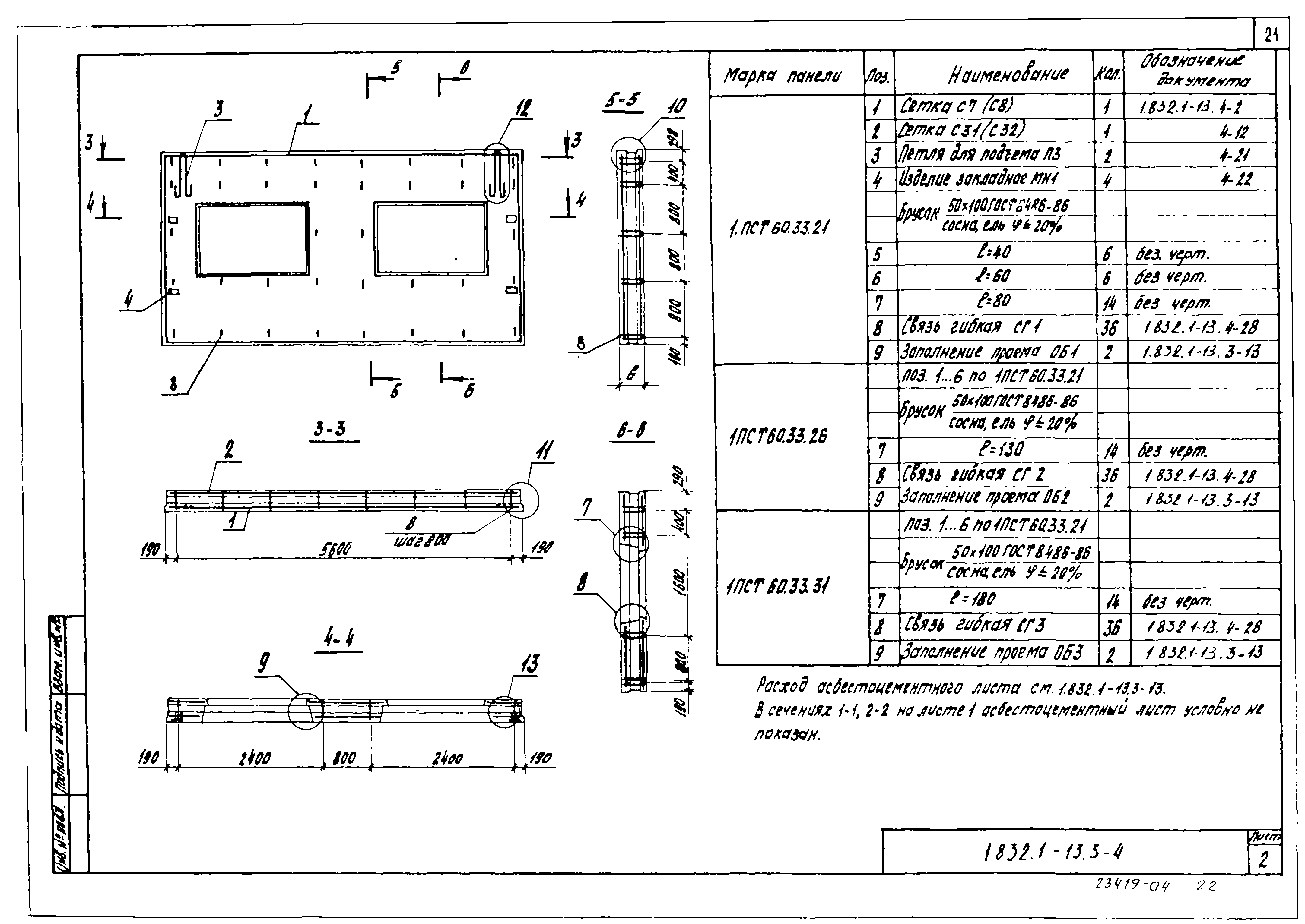
1.832.1-13.3-4 Панель 1ПСТ 60.33…
1.832.1-13.3-5 Панель 1ПСТ 60.24… угловая
1.832.1-13.3-6 Панель 1ПСТ 60.27… угловая
1.832.1-13.3-7 Панель 1ПСТ 60.30… угловая
1.832.1-13.3-8 Панель 1ПСТ 60.33… угловая
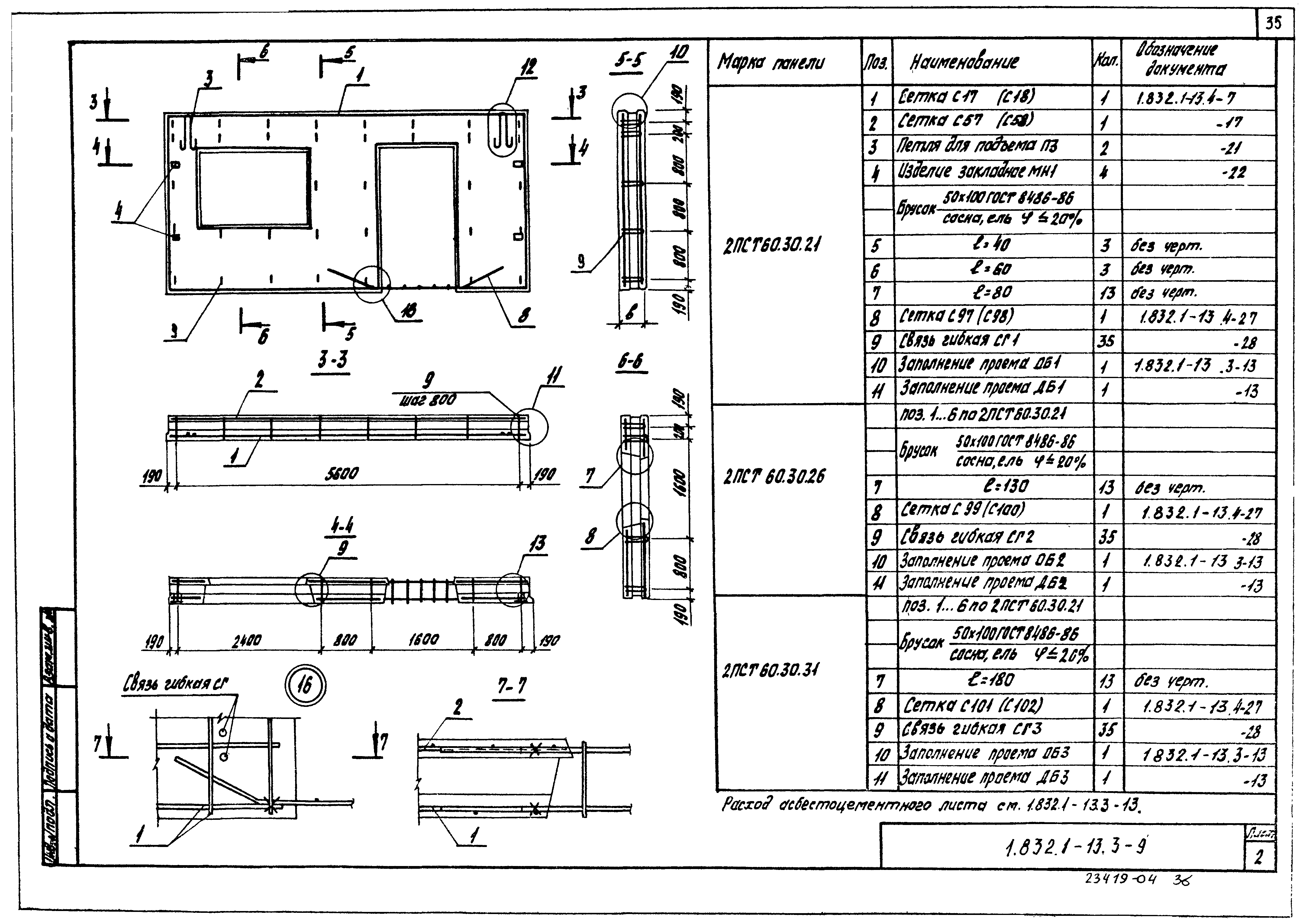
1.832.1-13.3-9 Панель 2ПСТ 60.30…
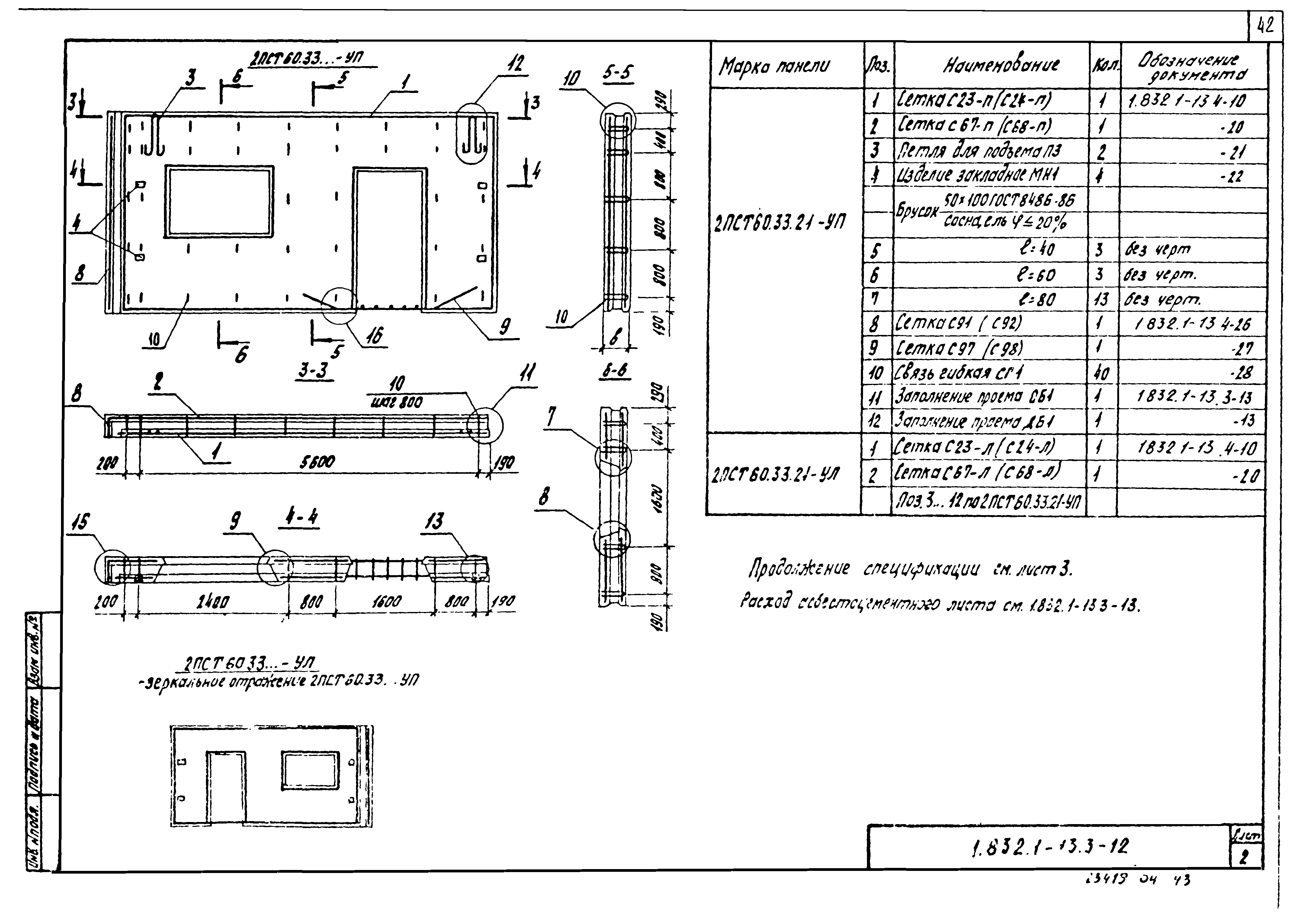
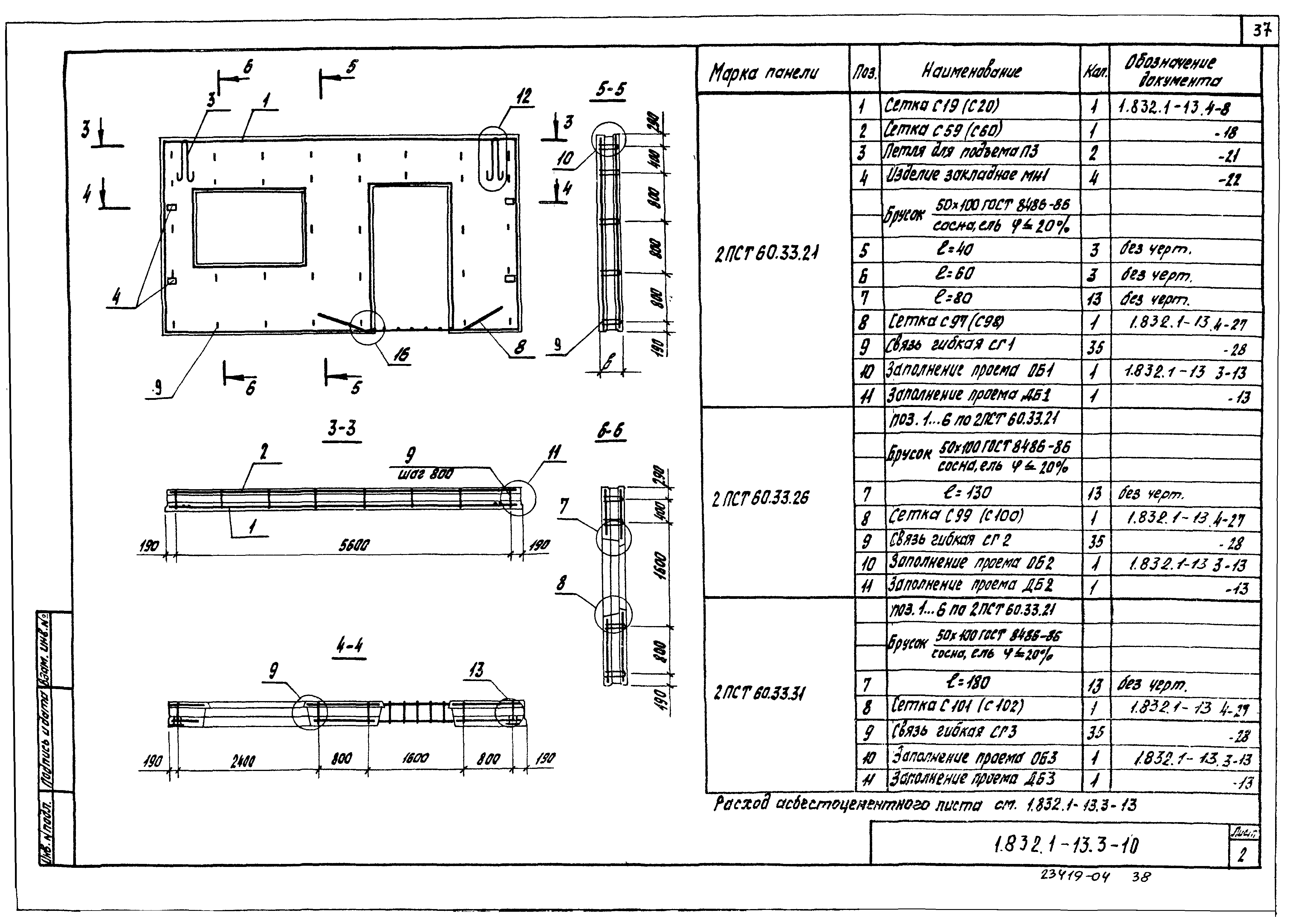
1.832.1-13.3-10 Панель 2ПСТ 60.33…
1.832.1-13.3-11 Панель 2ПСТ 60.30… угловая
1.832.1-13.3-12 Панель 2ПСТ 60.33… угловая
1.832.1-13.3-13 Заполнение проемов СБ1… СБ3, ДБ1… ДБ3
1.832.1-13.3-РС1 Ведомость расхода стали
1.832.1-13.3-РС2 Ведомость расхода стали (при варианте армирования арматурой класса Врп-1)
Разработан: ЦНИИЭПсельстрой
ГипроНИсельхоз (Институт Гипронисельхоз )
Утверждён:12.08.1988 Госагропром СССР (USSR Gosagroprom 804-48/853)
Издан: ЦИТП Госстроя СССР (CITP, Gosstroy (USSR) 1988 г. )
Заменяет собой:
Нормативные ссылки:
Серия 1.832.1-13Серия 1.832.1-13Серия 1.832.1-13Серия 1.832.1-13Серия 1.832.1-13Серия 1.832.1-13Серия 1.832.1-13Серия 1.832.1-13Серия 1.832.1-13Серия 1.832.1-13Серия 1.832.1-13Серия 1.832.1-13Серия 1.832.1-13Серия 1.832.1-13Серия 1.832.1-13Серия 1.832.1-13Серия 1.832.1-13Серия 1.832.1-13Серия 1.832.1-13Серия 1.832.1-13Серия 1.832.1-13Серия 1.832.1-13Серия 1.832.1-13Серия 1.832.1-13Серия 1.832.1-13Серия 1.832.1-13Серия 1.832.1-13Серия 1.832.1-13Серия 1.832.1-13Серия 1.832.1-13Серия 1.832.1-13Серия 1.832.1-13Серия 1.832.1-13Серия 1.832.1-13Серия 1.832.1-13Серия 1.832.1-13Серия 1.832.1-13Серия 1.832.1-13Серия 1.832.1-13Серия 1.832.1-13Серия 1.832.1-13Серия 1.832.1-13Серия 1.832.1-13Серия 1.832.1-13Серия 1.832.1-13Серия 1.832.1-13Серия 1.832.1-13Серия 1.832.1-13Серия 1.832.1-13Серия 1.832.1-13Серия 1.832.1-13Серия 1.832.1-13