Скачать РМГ 116-2011 Государственная система обеспечения единства измерений. Резервуары магистральных нефтепроводов и нефтебаз. Техническое обслуживание и метрологическое обеспечение в условиях эксплуатацииДата актуализации: 01.01.2021
|
| Обозначение: | РМГ 116-2011 |
| Обозначение англ: | RMG 116-2011 |
| Статус: | введен впервые |
| Название рус.: | Государственная система обеспечения единства измерений. Резервуары магистральных нефтепроводов и нефтебаз. Техническое обслуживание и метрологическое обеспечение в условиях эксплуатации |
| Название англ.: | State system for ensuring the uniformity of measurements. Tanks of main oil lines and oil storage depots. Maintenance operations and metrological assurance under operating conditions |
| Дата добавления в базу: | 01.10.2014 |
| Дата актуализации: | 01.01.2021 |
| Дата введения: | 01.01.2013 |
| Область применения: | Рекомендации распространяются на следующие типы резервуаров перекачивающих станций, наливных пунктов морских и речных терминалов и нефтебаз в системе магистральных нефтепроводов: - вертикальные стальные цилиндрические со стационарной крышей; - вертикальные стальные цилиндрические с понтом со стационарной крышей; - вертикальные стальные цилиндрические с плавающей крышей; - железобетонные цилиндрические, прямоугольные со стационарной крышей; - железобетонные цилиндрические с понтоном со стационарной крышей; - железобетонные цилиндрические с плавающей крышей перекачивающих станций, наливных пунктов морских и речных терминалов и нефтебаз в системе магистральных нефтепроводов; - горизонтальные стальные цилиндрические резервуары. Настоящие рекомендации устанавливают: - общие требования к использованию по назначению, техническому обслуживанию; - требования к метрологическому обеспечению эксплуатации резервуаров; - меры по обеспечению безопасного функционирования резервуаров, охраны труда при эксплуатации резервуаров; - требования к организации и проведению работ персоналом в процессе эксплуатации резервуаров; - порядок оформления эксплуатационной документации на резервуары. |
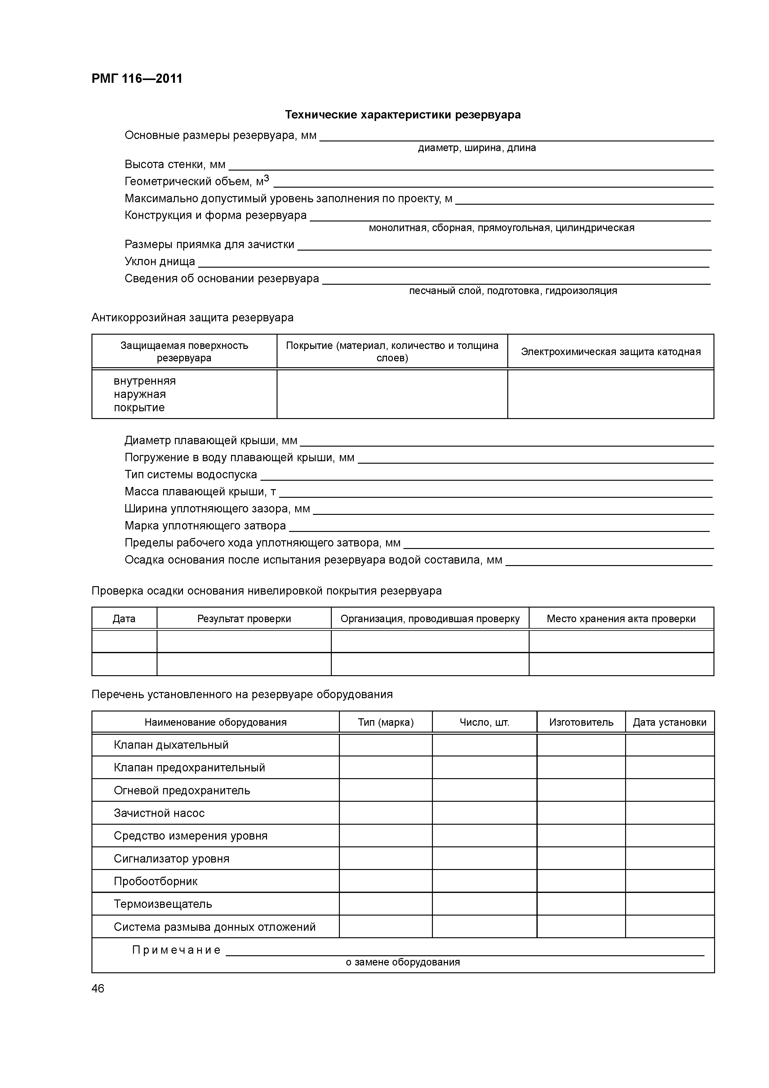
| Оглавление: | 1 Область применения 2 Нормативные ссылки 3 Термины и определения 4 Обозначения и сокращения 5 Общие положения 5.1 Общие положения по организации эксплуатации резервуаров 5.2 Организация эксплуатации резервуаров и резервуарных парков 5.3 Конструктивные особенности и технические характеристики резервуаров для нефти и нефтепродуктов 5.4 Оборудование резервуаров 5.5 Резервуарные парки нефтеперекачивающих станций, морских и речных терминалов и нефтебаз 6 Техническое использование резервуаров 6.1 Эксплуатационная документация 6.2 Технологическая карта эксплуатации резервуаров товарных парков 6.3 Режим эксплуатации резервуаров 6.4 Измерения массы нефти и нефтепродуктов в резервуарах 7 Техническое обслуживание и текущий ремонт резервуаров и резервуарных парков 7.1 Организация технического обслуживания и текущего ремонта резервуаров и резервуарных парков 7.2 Метрологическое обеспечение эксплуатации резервуаров 7.3 Техническое обслуживание 7.4 Особенности обслуживания резервуаров с высокосернистой нефтью 7.5 Техническое обслуживание средств измерений и устройств отбора проб продукта 7.6 Предотвращение накопления донных отложений и их размыв 7.7 Дренирование подтоварной воды 7.8 Обслуживание задвижек, трубопроводов обвязки резервуаров, газоуравнительной системы 7.9 Подготовка резервуаров, оборудования, объектов резервуарного парка к эксплуатации в зимний и летний периоды года 8 Системы защиты резервуаров и их обслуживание 8.1 Молниезащита 8.2 Система пожаротушения 8.3 Система защиты резервуаров от статического электричества 8.4 Система защиты резервуаров от коррозии 8.5 Система предупреждений аварий и повреждений 8.6 Автоматизированная система управления технологическим процессом резервуарных парков Приложение А (обязательное) Типы и основные характеристики стальных вертикальных резервуаров Приложение Б (обязательное) Параметры железобетонных резервуаров Приложение В (обязательное) Основные характеристики стальных горизонтальных резервуаров (по ГОСТ 17032) Приложение Г (обязательное) Технические характеристики дыхательных клапанов и огневых предохранителей Приложение Д (рекомендуемое) Форма паспорта стального вертикального цилиндрического резервуара Приложение Е (рекомендуемое) Форма паспорта железобетонного резервуара Приложение Ж (рекомендуемое) Форма паспорта стального горизонтального цилиндрического резервуара, работающего под давлением не выше 0,07 МПа (0,7 кгс/см2), без давления Приложение И (рекомендуемое) Форма технологической карты эксплуатации резервуаров товарных парков Библиография |
| Разработан: | ФГУП ВНИИР |
| Утверждён: | 29.11.2011 Межгосударственный Совет по стандартизации, метрологии и сертификации (Inter-Governmental Council on Standardization, Metrology, and Certification 40) 13.12.2011 Федеральное агентство по техническому регулированию и метрологии (1054-ст) |
| Издан: | Стандартинформ (2013 г. ) |
| Нормативные ссылки: |
|





























































