Главная // Актуальные документы // ГОСТ (Государственный стандарт)СПРАВКА
Источник публикации
М.: Стандартинформ, 2015
Примечание к документу
Документ включен в
Перечень документов в области стандартизации, в результате применения которых на добровольной основе обеспечивается соблюдение требований Федерального
закона от 30.12.2009 N 384-ФЗ "Технический регламент о безопасности зданий и сооружений" (
Приказ Росстандарта от 02.04.2020 N 687).
Документ включен в
Перечень документов в области стандартизации, в результате применения которых на добровольной основе обеспечивается соблюдение требований Федерального
закона от 30.12.2009 N 384-ФЗ "Технический регламент о безопасности зданий и сооружений" (
Приказ Росстандарта от 17.04.2019 N 831).
Документ включен в
Перечень документов в области стандартизации, в результате применения которых на добровольной основе обеспечивается соблюдение требований Федерального
закона от 30.12.2009 N 384-ФЗ "Технический регламент о безопасности зданий и сооружений" (
Приказ Росстандарта от 30.03.2015 N 365).
Текст данного документа приведен с учетом
поправки, опубликованной в "ИУС", N 1, 2021;
поправки, введенной в действие с 23.08.2021, опубликованной в "ИУС", N 1, 2022.
Документ
введен в действие с 01.07.2015.
Название документа
"ГОСТ 21.609-2014. Межгосударственный стандарт. Система проектной документации для строительства. Правила выполнения рабочей документации внутренних систем газоснабжения"
(введен в действие Приказом Росстандарта от 12.12.2014 N 2030-ст)
"ГОСТ 21.609-2014. Межгосударственный стандарт. Система проектной документации для строительства. Правила выполнения рабочей документации внутренних систем газоснабжения"
(введен в действие Приказом Росстандарта от 12.12.2014 N 2030-ст)
агентства по техническому
регулированию и метрологии
от 12 декабря 2014 г. N 2030-ст
МЕЖГОСУДАРСТВЕННЫЙ СТАНДАРТ
СИСТЕМА ПРОЕКТНОЙ ДОКУМЕНТАЦИИ ДЛЯ СТРОИТЕЛЬСТВА
ПРАВИЛА
ВЫПОЛНЕНИЯ РАБОЧЕЙ ДОКУМЕНТАЦИИ ВНУТРЕННИХ
СИСТЕМ ГАЗОСНАБЖЕНИЯ
System of design documents for construction.
Rules for execution of working documents
of internal gas systems
ГОСТ 21.609-2014
Дата введения
1 июля 2015 года
Цели, основные принципы и основной порядок проведения работ по межгосударственной стандартизации установлены
ГОСТ 1.0-92 "Межгосударственная система стандартизации. Основные положения" и
ГОСТ 1.2-2009 "Межгосударственная система стандартизации. Стандарты межгосударственные, правила и рекомендации по межгосударственной стандартизации. Правила разработки, принятия, применения, обновления и отмены".
1. Разработан Открытым акционерным обществом "Центр методологии нормирования и стандартизации в строительстве" (ОАО "ЦНС").
2. Внесен Техническим комитетом по стандартизации ТК 465 "Строительство".
3. Принят Межгосударственным советом по стандартизации, метрологии и сертификации (Протокол N 46-2014 от 5 декабря 2014 г.).
За принятие проголосовали:
Краткое наименование страны по МК (ИСО 3166) 004-97 | Код страны по МК (ИСО 3166) 004-97 | Сокращенное наименование органа государственного управления строительством |
Азербайджан | AZ | Азстандарт |
Армения | AM | Минэкономики Республики Армения |
Киргизия | KG | Кыргызстандарт |
Россия | RU | Росстандарт |
Туркмения | TM | Главгосслужба "Туркменстандартлары" |
Узбекистан | UZ | Узстандарт |
4.
Приказом Федерального агентства по техническому регулированию и метрологии от 12 декабря 2014 г. N 2030-ст межгосударственный стандарт ГОСТ 21.609-2014 введен в действие в качестве национального стандарта Российской Федерации с 1 июля 2015 г.
Информация об изменениях к настоящему стандарту публикуется в ежегодном информационном указателе "Национальные стандарты", а текст изменений и поправок - в ежемесячном информационном указателе "Национальные стандарты". В случае пересмотра (замены) или отмены настоящего стандарта соответствующее уведомление будет опубликовано в ежемесячном информационном указателе "Национальные стандарты". Соответствующая информация, уведомление и тексты размещаются также в информационной системе общего пользования - на официальном сайте Федерального агентства по техническому регулированию и метрологии в сети Интернет.
Настоящий стандарт устанавливает состав и правила выполнения рабочей документации внутренних систем газоснабжения зданий и сооружений различного назначения.
В настоящем стандарте использованы нормативные ссылки на следующие межгосударственные стандарты:
ГОСТ 2.303-68. Единая система конструкторской документации. Линии
ГОСТ 2.317-2011. Единая система конструкторской документации. Аксонометрические проекции
ГОСТ 21.101-97 <*>. Система проектной документации для строительства. Основные требования к проектной и рабочей документации
--------------------------------
ГОСТ 21.110-2013. Система проектной документации для строительства. Спецификация оборудования, изделий и материалов
ГОСТ 21.114-2013. Система проектной документации для строительства. Правила выполнения эскизных чертежей общих видов нетиповых изделий
ГОСТ 21.205-93. Система проектной документации для строительства. Условные обозначения элементов санитарно-технических систем
ГОСТ 21.206-2012. Система проектной документации для строительства. Условные обозначения трубопроводов
ГОСТ 21.208-2013. Система проектной документации для строительства. Автоматизация технологических процессов. Обозначения условные приборов и средств автоматизации в схемах
ГОСТ 21.501-2011. Система проектной документации для строительства. Правила выполнения рабочей документации архитектурных и конструктивных решений.
Примечание. При пользовании настоящим стандартом целесообразно проверить действие ссылочных стандартов в информационной системе общего пользования - на официальном сайте Федерального агентства по техническому регулированию и метрологии в сети Интернет или по ежегодному информационному указателю "Национальные стандарты", который опубликован по состоянию на 1 января текущего года, и по выпускам ежемесячного информационного указателя "Национальные стандарты" за текущий год. Если ссылочный стандарт заменен (изменен), то при пользовании настоящим стандартом следует руководствоваться заменяющим (измененным) стандартом. Если ссылочный стандарт отменен без замены, то положение, в котором дана ссылка на него, применяется в части, не затрагивающей эту ссылку.
В настоящем стандарте применены следующие термины с соответствующими определениями:
3.1. Система газоснабжения: технологический комплекс газовой сети потребителя, расположенный от места присоединения к газораспределительной сети до газоиспользующего оборудования и состоящий из наружных и внутренних газопроводов и технических устройств на них.
3.2. Газопровод: часть газораспределительной системы, состоящая из трубопровода для транспортировки природного или сжиженных углеводородных газов, за исключением сооружений и устройств, установленных на нем.
3.3. Внутренний газопровод: газопровод, проложенный внутри здания от вводного газопровода до места установки газоиспользующего оборудования.
3.4. Газоиспользующее оборудование (установка): оборудование, где в технологическом процессе используется газ в качестве топлива.
4.1. Рабочую документацию внутренних систем газоснабжения выполняют в соответствии с требованиями настоящего стандарта,
ГОСТ 21.101 и других взаимосвязанных стандартов Системы проектной документации для строительства (СПДС), а также нормативных документов по проектированию сетей и систем газопотребления.
4.2. В состав рабочей документации внутренних систем газоснабжения (далее - газоснабжение) включают:
- рабочие чертежи, предназначенные для производства строительно-монтажных работ (основной комплект рабочих чертежей марки ГСВ);
- эскизные чертежи общих видов нетиповых изделий, выполняемые в соответствии с
ГОСТ 21.114;
- спецификацию оборудования, изделий и материалов;
- опросные листы и габаритные чертежи (при необходимости);
- локальную смету (при необходимости).
4.3. В состав основного комплекта рабочих чертежей марки ГСВ включают:
- общие данные по рабочим чертежам;
- чертежи расположения (планы и разрезы, фрагменты планов и разрезов, местные виды и узлы) газопроводов и газоиспользующего оборудования (далее - оборудование);
- схемы газоснабжения (газопотребления);
- чертежи (планы, разрезы, узлы и схемы) газоиспользующих установок.
Допускается включать в состав основного комплекта рабочих чертежей прямоугольные изометрические проекции систем газоснабжения, полученные из электронной модели здания (сооружения).
4.4. Газопроводы и их элементы на чертежах указывают условными графическими обозначениями и (или) упрощенными изображениями по
ГОСТ 21.206. Газопроводы на схемах указывают условными графическими обозначениями.
4.5. Буквенно-цифровые обозначения газопроводов принимают по
таблице А.1 (Приложение А) и указывают на чертежах и схемах в соответствии с
ГОСТ 21.206. Пример нанесения буквенно-цифровых обозначений приведен на рисунке 1.
Рисунок 1
4.6. Установкам присваивают обозначение, состоящее из номера установки в пределах системы и обозначения газопровода в соответствии с
4.5.
Пример - 1Г1, 2Г3.
4.7. Стояки газопроводов обозначают маркой, состоящей из буквенного обозначения "Ст" и порядкового номера стояка в пределах здания (сооружения).
Пример - Ст1, Ст2.
4.8. При указании номинального диаметра арматуры на чертежах и схемах перед размерным числом приводят условное обозначение "DN".
При указании номинального диаметра (условного прохода) газопроводов и их элементов на чертежах и схемах перед размерным числом приводят знак

или условное обозначение "DN" в соответствии с рисунками 2а, 2в. При указании наружного диаметра и толщины стенки перед размерным числом наносят знак

(рисунки 2б, 2г).
Рисунок 2
4.9. Графические обозначения элементов систем газоснабжения (газоиспользующего оборудования и арматуры) принимают по
ГОСТ 21.205 с учетом дополнительных условных графических обозначений, приведенных в
таблице Б.1 (Приложение Б).
4.10. Примеры построения условных графических обозначений элементов систем приведены в
таблице Б.2 (Приложение Б) и ГОСТ 21.205
(приложение А).
Примеры построения условных обозначений и упрощенных графических изображений элементов систем в схемах, выполняемых в аксонометрических проекциях, приведены в ГОСТ 21.205
(приложение Б).
4.11. Условные обозначения приборов, средств автоматизации и линий связи принимают по
ГОСТ 21.208.
4.12. Отметки уровней элементов конструкций, оборудования, газопроводов и т.п. указывают в соответствии с
ГОСТ 21.101.
4.13. Обозначения уклонов на разрезах и схемах наносят в соответствии с
ГОСТ 21.101, при этом числовое значение уклона указывают в виде десятичной дроби с точностью до третьего знака после запятой.
4.14. Рекомендуемые масштабы изображений на чертежах приведены в таблице 1.
Таблица 1
Наименование изображения | Масштаб |
1. Планы и разрезы расположения оборудования и газопроводов | 1:100; 1:200 |
2. Схемы газоснабжения (газопотребления) | 1:100; 1:200 |
3. Планы и схемы небольших зданий | 1:20; 1:50 |
4. Планы, разрезы и схемы установок | 1:50; 1:100 |
5. Фрагменты планов | 1:50; 1:100 |
6. Узлы планов | 1:20; 1:50 |
7. Узлы планов и разрезов установок систем | 1:20 |
8. Узлы при детальном изображении | 1:2; 1:5; 1:10 |
9. Узлы схем систем | 1:10; 1:20; 1:50 |
10. Эскизные чертежи общих видов нетиповых изделий | 1:5; 1:10; 1:20; 1:50 |
5. Общие данные по рабочим чертежам
5.1. В состав общих данных по рабочим чертежам марки ГСВ в дополнение к сведениям, предусмотренным по
ГОСТ 21.101, включают основные показатели системы газоснабжения по форме 1 (кроме жилых зданий).
Основные показатели системы газоснабжения (газопотребления)
Примечание:
1. Характеристику применяемого газа указывают в графе "Примечание".
2. Размеры граф
формы 1 по усмотрению разработчика, при необходимости, могут быть изменены.
3. Линии, разграничивающие горизонтальные строки, допускается не проводить.
5.2. Ведомость спецификаций, предусмотренную
ГОСТ 21.101, в составе общих данных по рабочим чертежам марки ГСВ не выполняют.
5.3. В общих указаниях в дополнение к сведениям, предусмотренным в
ГОСТ 21.101, приводят:
- ссылки на нормативные документы, по которым произведен расчет систем газоснабжения;
- характеристики установок систем;
- требования к изготовлению, монтажу, испытанию, окраске и изоляции газопроводов, а также условия их прокладки;
- особые требования к газоснабжению, например взрывобезопасность и пожаробезопасность.
В общих указаниях не следует повторять технические требования, помещенные на других листах основного комплекта рабочих чертежей марки ГСВ, и давать описание технических решений, принятых в рабочих чертежах.
6.1. Чертежи расположения оборудования и газопроводов
6.1.1. Чертежи расположения оборудования и газопроводов в зданиях и сооружениях выполняют по
ГОСТ 21.101 с учетом требований настоящего стандарта.
| | ИС МЕГАНОРМ: примечание. В официальном тексте документа, видимо, допущена опечатка: пункт 4.15 отсутствует. Возможно, имеется в виду пункт 4.14. | |
6.1.2. Изображения на чертежах (планы и разрезы, фрагменты планов и разрезов, местные виды и узлы) выполняют в масштабах по
4.15.
6.1.3. На планах, их фрагментах и узлах (выносных элементах) оборудование, установки, газопроводы и другие элементы систем изображают толстой основной линией по
ГОСТ 2.303, строительные конструкции и технологическое оборудование - сплошной тонкой линией.
6.1.4. Оборудование и установки, на которые отсутствуют условные графические обозначения, на планах указывают в виде упрощенных графических изображений, а газопроводы и другие элементы систем - условными графическими обозначениями.
6.1.5. На фрагментах планов и узлах газопроводы, арматуру и другие устройства изображают упрощенно или условными графическими обозначениями в зависимости от масштаба чертежа и диаметра трубопровода. Газопроводы изображают упрощенно двумя линиями, если на чертеже их диаметры в соответствующем масштабе равны 2 мм и более, при этом арматуру и другие устройства изображают также упрощенно с учетом их габаритных размеров.
Газопроводы, выполненные условными графическими обозначениями в одну линию и расположенные друг над другом в одной плоскости, на планах условно изображают параллельными линиями.
6.1.6. На планах и разрезах наносят и указывают:
- координационные оси здания (сооружения) и расстояния между ними (для жилых зданий - расстояния между осями секций);
- строительные конструкции и оборудование, к которому подводят газ и воздух и от которого отводят продукты сгорания, а также влияющее на прокладку газопроводов;
- отметки уровней чистых полов этажей и основных площадок;
- размерные привязки газоиспользующих установок и оборудования, опор (креплений), вводов (выводов) и стояков газопроводов к координационным осям или элементам конструкций;
- размеры эксплуатационных проходов;
- буквенно-цифровые обозначения и диаметры газопроводов;
- позиционные обозначения (марки) оборудования, установок, опор (креплений) и стояков газопроводов на полках линий-выносок;
- отметки уровней или высотные размеры установки приборов (при необходимости).
На планах, кроме того, указывают наименования помещений, в которых установлено газоиспользующее оборудование, и в прямоугольнике - категории помещений по взрывопожарной и пожарной опасности (кроме жилых зданий). Допускается наименования помещений и категории помещений по взрывопожарной и пожарной опасности приводить в экспликации помещений по
форме 2 ГОСТ 21.501.
На разрезах указывают отметки уровней осей газопроводов и верха сбросного газопровода (свечи).
На планах и разрезах расположения бытового оборудования (например, газовых плит, водонагревателей) и газопроводов в жилых зданиях, коммунально-бытовых предприятиях и общественных зданиях приводят данные об объеме и высоте помещения, в котором устанавливают это оборудование, а также указывают расположение дымоходов (их сечение) и расположение вентиляционных решеток.
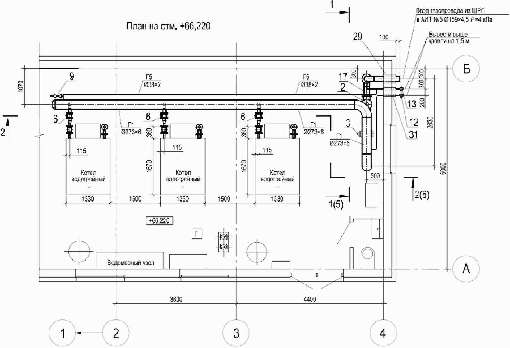
6.1.7. Примеры выполнения плана расположения оборудования и газопроводов котельной приведен на
рисунке В.1 (Приложение В), разреза - на
рисунке В.2 (Приложение В).
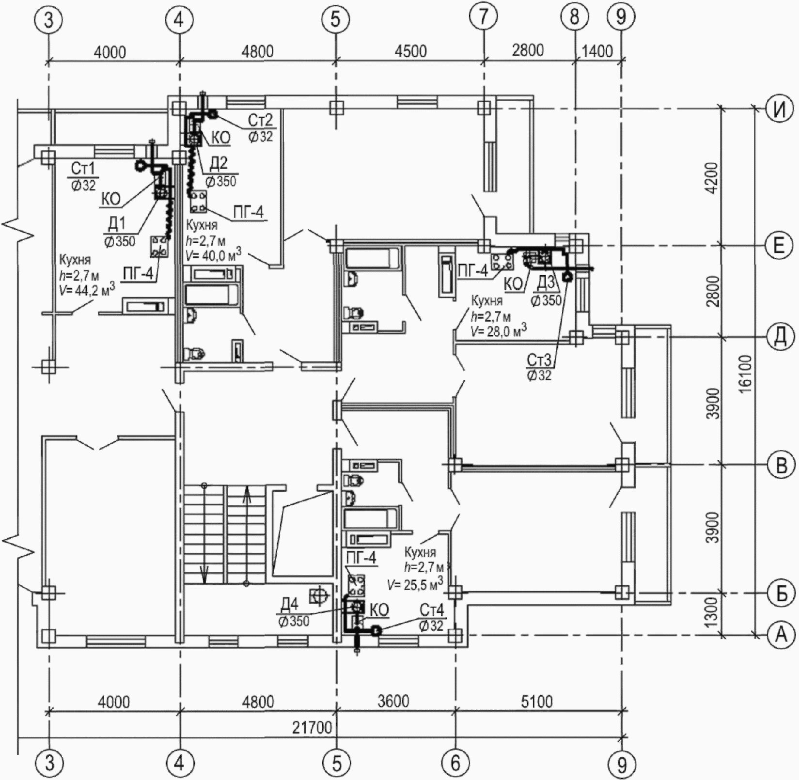
Пример выполнения плана расположения бытового оборудования и газопроводов в жилом здании приведен на
рисунке В.3 (Приложение В).
6.2. Схемы систем газоснабжения
6.2.1. Схемы систем выполняют в аксонометрической косоугольной фронтальной изометрической проекции или в прямоугольной изометрической проекции по
ГОСТ 2.317 без искажения по осям x, y, z.
6.2.2. Газопроводы и арматуру на схемах указывают условными графическими обозначениями, а оборудование, на которое отсутствует условное графическое обозначение, - упрощенным графическим изображением.
Для жилых и коммунально-бытовых зданий вместо графического изображения подключаемого оборудования допускается указывать его наименование.
6.2.3. Проектируемые газопроводы, арматуру и другие устройства на схемах изображают сплошной толстой основной линией. Оборудование, а также существующие трубопроводы, арматуру и другие устройства, изображают сплошной тонкой линией.
6.2.4. При большой протяженности и (или) сложном расположении газопроводов допускается изображать их с разрывом в виде пунктирной линии. Места разрывов газопроводов обозначают строчными буквами (рисунок 3).
Рисунок 3
| | ИС МЕГАНОРМ: примечание. Нумерация пунктов дана в соответствии с официальным текстом документа. | |
6.2.6. На схемах наносят и указывают:
- стояки газопроводов и их обозначения;
- вводы газопроводов с указанием диаметров и отметок уровней осей трубопроводов в местах пересечения их с осями наружных стен здания (сооружения);
- газопроводы и их диаметры;
- запорно-регулирующую арматуру;
- оборудование, контрольно-измерительные приборы и другие элементы систем. При этом буквенные обозначения измеряемых величин и функциональных признаков приборов принимают по
ГОСТ 21.208;
- закладные конструкции (отборные устройства для установки контрольно-измерительных приборов) с указанием обозначения конструкции и документа. Закладные конструкции на трубопроводах и других элементах систем указывают точками диаметром 2 мм;
- отметки уровней осей газопроводов;
- уклоны газопроводов (для влажного и сжиженного углеводородного газа);
- размеры горизонтальных участков газопроводов при наличии разрывов.
6.2.8. На листе, где изображена схема, приводят, при необходимости, узлы (выносные элементы) схемы и текстовые пояснения.
На узлах схем для запорно-регулирующей арматуры на полке линии-выноски указывают диаметр арматуры и под полкой - обозначение арматуры (по каталогу).
Допускается приводить аналогичным образом диаметры и обозначения запорно-регулирующей арматуры на схемах систем.
6.2.9. В основной надписи и над схемой наименование схемы указывают полностью: "Схема газоснабжения".
6.2.10. Пример выполнения схемы газоснабжения котельной приведен на
рисунке Г.1 (Приложение Г), схемы газоснабжения жилого дома - на
рисунке Г.2 (Приложение Г).
7. Чертежи газоиспользующих установок
7.1. Чертежи (планы, разрезы и схемы) газоиспользующих установок следует выполнять при наличии в установке двух и более составных частей (элементов установки), необходимости показа способов крепления составных частей установки между собой или к опорным конструкциям, отсутствии типовых монтажных чертежей или монтажных чертежей предприятия-изготовителя. В остальных случаях чертежи установок не выполняют.
7.2. На планах и разрезах установок элементы установок изображают упрощенно. При необходимости показа способов крепления составных частей установки или их соединения между собой соответствующие элементы изображают детально, как правило, на узлах планов и разрезов установок.
7.3. Правила изображения оборудования, трубопроводов, арматуры и других устройств на планах, разрезах и узлах установок принимают по
6.1.2 -
6.1.5, на схемах установок - по
6.2.1 -
6.2.3.
| | ИС МЕГАНОРМ: примечание. Текст дан в соответствии с официальным текстом документа. | |
7.3. Правила изображения оборудования, трубопроводов, арматуры и других устройств на планах, разрезах и узлах установок принимают по
6.1.2 -
6.1.5, на схемах установок - по
6.2.1 -
6.2.3.
7.4. Элементам установок присваивают позиционные обозначения, состоящие из обозначения установки по
4.6 и порядкового номера элемента в пределах установки.
Пример - 1Г1.1, 1Г1.2, 2Г3.1, 2Г3.2.
7.5. На планах и разрезах установок наносят и указывают:
- координационные оси здания (сооружения) и расстояния между ними;
- отметки чистых полов этажей (площадок);
- размерные привязки установок к координационным осям или к элементам конструкций здания (сооружения);
- основные размеры и отметки уровней элементов установок;
- буквенно-цифровые обозначения газопроводов (см.
4.5);
- диаметры газопроводов;
- позиционные обозначения оборудования, арматуры, закладных конструкций и других устройств.
На планах и разрезах установок кроме элементов установок указывают строительные конструкции.
7.6. Схему установки выполняют без соблюдения масштаба, действительное пространственное расположение оборудования и газопроводов учитывают приближенно.
На схеме наносят и указывают:
- оборудование, газопроводы, арматуру и другие устройства;
- контрольно-измерительные приборы (при необходимости);
- буквенно-цифровые обозначения газопроводов, как правило, в разрывах линий газопроводов;
- диаметры газопроводов;
- позиционные обозначения оборудования, арматуры, закладных конструкций и других устройств;
- направление потока транспортируемой среды.
7.7. На чертежах установок приводят, при необходимости, технические требования к монтажу установок.
7.8. К чертежам установок составляют спецификацию по
форме 7 ГОСТ 21.101, которую, как правило, помещают на листе, где изображены планы установок. Допускается выполнять спецификацию на отдельных листах в качестве последующих листов чертежей.
7.9. В спецификацию к чертежам установок включают оборудование, конструкции установок, арматуру, закладные конструкции и другие устройства, а также газопроводы по каждому диаметру.
В спецификацию не включают элементы газопроводов, номенклатуру и количество которых определяют по действующим технологическим и производственным нормам (отводы, переходы, тройники, крестовины, фланцы, прокладки, болты, гайки, шайбы).
7.10. В графе "Поз." указывают позиционные обозначения элементов установок в соответствии с
7.4 последовательно для каждой установки. Для газопроводов графу не заполняют.
В графе "Наименование" для каждой установки записывают буквенно-цифровое обозначение по
4.6 в виде заголовка и подчеркивают.
7.11. В спецификации элементы установок записывают по группам в следующей последовательности:
- оборудование;
- арматура;
- другие элементы установок;
- закладные конструкции;
- газопроводы по каждому диаметру.
7.12. В основной надписи наименование и буквенно-цифровые обозначения установок (см.
4.6) указывают полностью.
Пример - Установки 1Г1, 2Г3.
7.13. Примеры выполнения плана и разреза установки приведены на
рисунках Д.1 -
Д.3 (Приложение Д).
Пример выполнения схемы установки приведен на
рисунке Е.1 (Приложение Е).
8. Спецификация оборудования, изделий и материалов
8.1. Спецификацию оборудования, изделий и материалов (далее - спецификация) выполняют и обозначают по
ГОСТ 21.110 с учетом требований настоящего стандарта.
8.2. Если в производственном здании (сооружении) предусматриваются пристроенные или встроенные части, в которых размещаются вспомогательные помещения, то спецификацию составляют по частям:
- производственная часть;
- вспомогательная часть.
Если в жилом здании предусматриваются пристроенные или встроенные части для размещения предприятий и учреждений общественного назначения, то спецификацию также составляют по частям:
- жилая часть;
- вспомогательная часть.
Наименование каждой части записывают в виде заголовка в графе "Наименование и техническая характеристика" и подчеркивают.
8.3. Элементы систем (оборудование, изделия) и материалы в спецификации или ее части записывают по группам в следующей последовательности:
- оборудование;
- трубопроводная арматура;
- другие элементы систем (в том числе опоры и крепления газопроводов);
- закладные конструкции (отборные устройства для установки контрольно-измерительных приборов);
- газопроводы;
- материалы.
В пределах каждой группы элементы систем записывают в порядке возрастания их основных параметров (например: типа, марки, диаметра, сечения).
Газопроводы в разделах спецификации записывают по каждому диаметру.
Элементы установок, включенные в спецификации к чертежам установок, также записывают в соответствующие группы спецификации.
Элементы газопроводов, номенклатуру и количество которых определяют по действующим технологическим и производственным нормам, в спецификацию не включают. К таким элементам могут быть отнесены отводы, переходы, фланцы, прокладки, болты, гайки, шайбы и т.п.
8.4. В Спецификации принимают следующие единицы измерений:
- оборудование (установки), опоры (крепления) газопроводов, закладные конструкции (отборные устройства для установки контрольно-измерительных приборов) и другие элементы - шт.;
- газопроводы - м;
- материалы изоляционные - м3;
- материалы покрытий и защиты - м2;
- другие материалы - кг.
9. Опросные листы и габаритные чертежи
9.1. Опросные листы и габаритные чертежи выполняют в соответствии с данными поставщиков оборудования и комплектуют их в виде отдельного выпуска с наименованием "Опросные листы".
Выпуску "Опросные листы" присваивают самостоятельное обозначение, состоящее из обозначения основного комплекта рабочих чертежей марки ГСВ и через точку шифра "ОЛ". Обозначение указывают на титульном листе выпуска опросных листов.
Пример - 2345-11-ГСВ.ОЛ.
9.2. Если опросных листов (габаритных чертежей) два и более, то после титульного листа выпуска опросных листов помещают содержание, которое выполняют в соответствии с
ГОСТ 21.101. Содержанию присваивают обозначение, состоящее из обозначения выпуска опросных листов и через дефис шифра "С".
Пример - 2345-11-ГСВ.ОЛ-С.
9.3. В наименовании опросного листа (габаритного чертежа) указывают его обозначение или порядковый номер в пределах выпуска.
9.4. Изменения в опросные листы (габаритные чертежи) вносят в соответствии с
ГОСТ 21.101 с учетом дополнительных требований настоящего стандарта.
Изменения в опросные листы (габаритные чертежи) вносят самостоятельно в пределах каждого опросного листа (габаритного чертежа).
Сведения об изменениях, вносимых в опросные листы (габаритные чертежи), приводят в графе "Примечание" содержания выпуска опросных листов.
9.5. Выпуск опросных листов записывают в разделе "Прилагаемые документы" ведомости ссылочных и прилагаемых документов, входящей в общие данные по рабочим чертежам основного комплекта марки ГСВ.
(обязательное)
БУКВЕННО-ЦИФРОВЫЕ ОБОЗНАЧЕНИЯ ГАЗОПРОВОДОВ
Наименование | Буквенно-цифровое обозначение |
1. Газопровод: | |
а) общее обозначение | Г0 |
б) низкого давления до 0,005 МПа | Г1 |
в) среднего давления св. 0,005 до 0,3 МПа включ. | Г2 |
г) высокого давления св. 0,3 до 0,6 МПа включ. | Г3 |
д) высокого давления св. 0,6 до 1,2 МПа включ. | Г4 |
2. Газопровод продувочный | Г5 |
3. Трубопровод на разрежение | Г6 |
4. Газопровод (трубопровод) безопасности | Г7 |
Примечание. При необходимости в буквенно-цифровом обозначении газопроводов допускается применение латинской буквы "G". |
(рекомендуемое)
УСЛОВНЫЕ ГРАФИЧЕСКИЕ ОБОЗНАЧЕНИЯ
ГАЗОИСПОЛЬЗУЮЩЕГО ОБОРУДОВАНИЯ И АРМАТУРЫ
Таблица Б.1
Условные графические обозначения
газоиспользующего оборудования и арматуры
Наименование | Обозначение |
на плане | на схеме |
1. Плита газовая бытовая двухгорелочная | | - |
2. Плита газовая бытовая четырехгорелочная | | - |
3. Аппарат отопительный газовый бытовой | | - |
4. Печь отопительно-варочная | | - |
5. Камин газовый | | - |
6. Воздухонагреватель газовый | | - |
7. Счетчик газовый | - | |
8. Клапан термозапорный | - | |
9. Датчик (сигнализатор) загазованности | - | |
Таблица Б.2
Примеры построения условных графических обозначений
Наименование | Обозначение |
Регулятор давления | |
Электромагнитный клапан | |
(справочное)
ПРИМЕРЫ ВЫПОЛНЕНИЯ ЧЕРТЕЖЕЙ РАСПОЛОЖЕНИЯ ОБОРУДОВАНИЯ
И ГАЗОПРОВОДОВ
Рисунок В.1. Пример выполнения плана расположения
оборудования и газопроводов котельной
Рисунок В.2. Пример выполнения разреза для котельной
Рисунок В.3. Пример выполнения плана расположения
бытового оборудования и газопроводов в жилом доме
(справочное)
ПРИМЕРЫ ВЫПОЛНЕНИЯ СХЕМ ГАЗОСНАБЖЕНИЯ
Рисунок Г.1. Схема газоснабжения котельной
Рисунок Г.2. Схема газоснабжения жилого дома
(справочное)
ПРИМЕРЫ ВЫПОЛНЕНИЯ ПЛАНА И РАЗРЕЗА
ГАЗОРЕГУЛЯТОРНОЙ УСТАНОВКИ (ГРУ)
Рисунок Д.1. Пример выполнения плана
Рисунок Д.2. Пример выполнения разреза
Рисунок Д.3. Пример выполнения узла
(справочное)
ПРИМЕР ВЫПОЛНЕНИЯ СХЕМЫ УСТАНОВКИ
Рисунок Е.1. Пример выполнения схемы установки