Скачать СП 31-112-2004 Физкультурно-спортивные залы. Часть 1

Дата актуализации: 01.01.2021

СП 31-112-2004

Физкультурно-спортивные залы. Часть 1

Обозначение: СП 31-112-2004
Обозначение англ: SP 31-112-2004
Статус:введен впервые
Название рус.:Физкультурно-спортивные залы. Часть 1
Название англ.:Physical training and sport halls
Дата добавления в базу:01.09.2013
Дата актуализации:01.01.2021
Область применения:Часть 1 включает физкультурно-спортивные залы размером до 36х18 м, а также залы 42х24 м - для спортивной гимнастики.
Оглавление:Введение
1 Область применения
2 Нормативные ссылки
3 Основные положения по проектированию
4 Объемно-планировочные решения залов
5 Вспомогательные помещения
6 Конструктивные решения
7 Внутренняя среда
8 Инженерное оборудование зданий
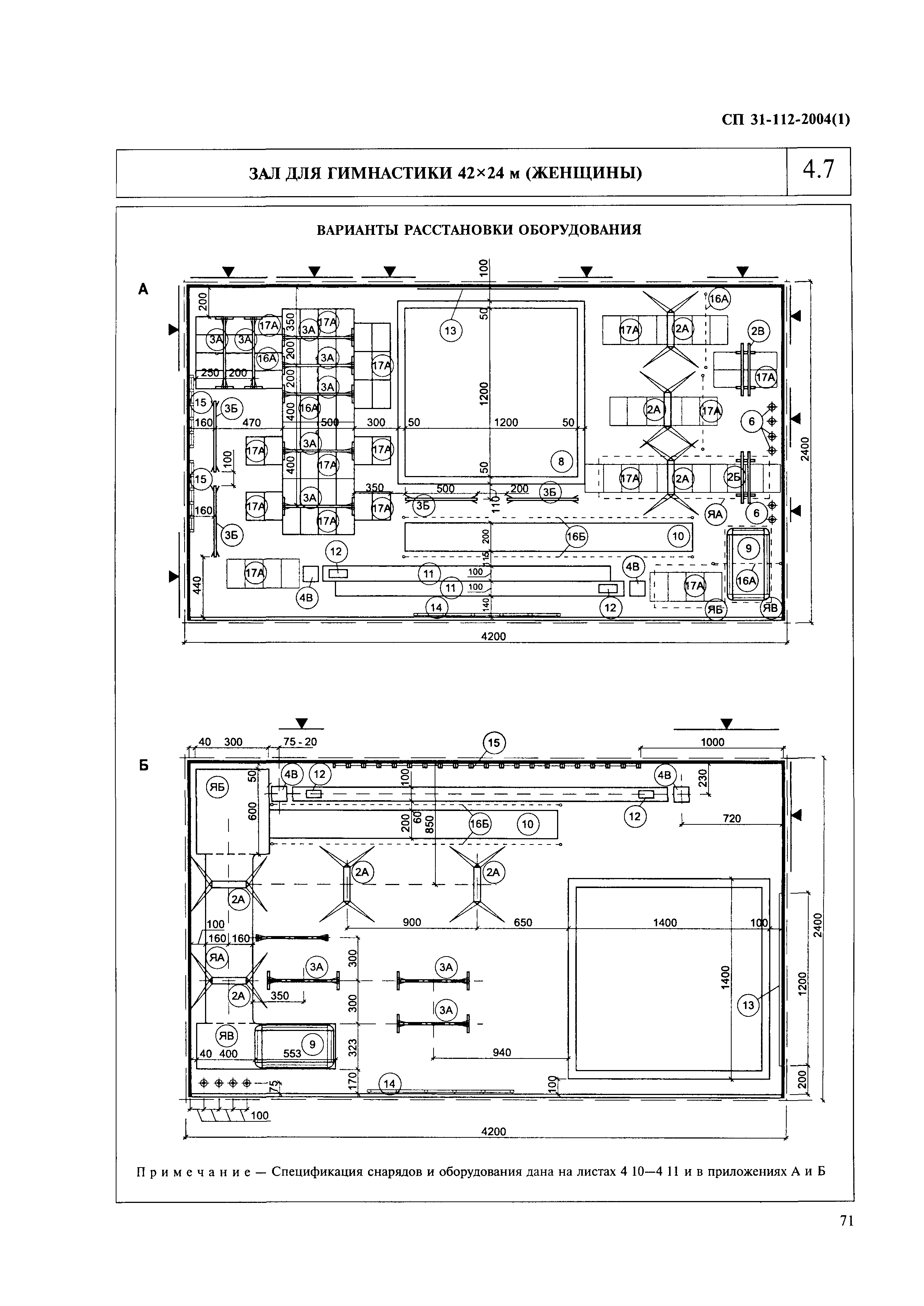
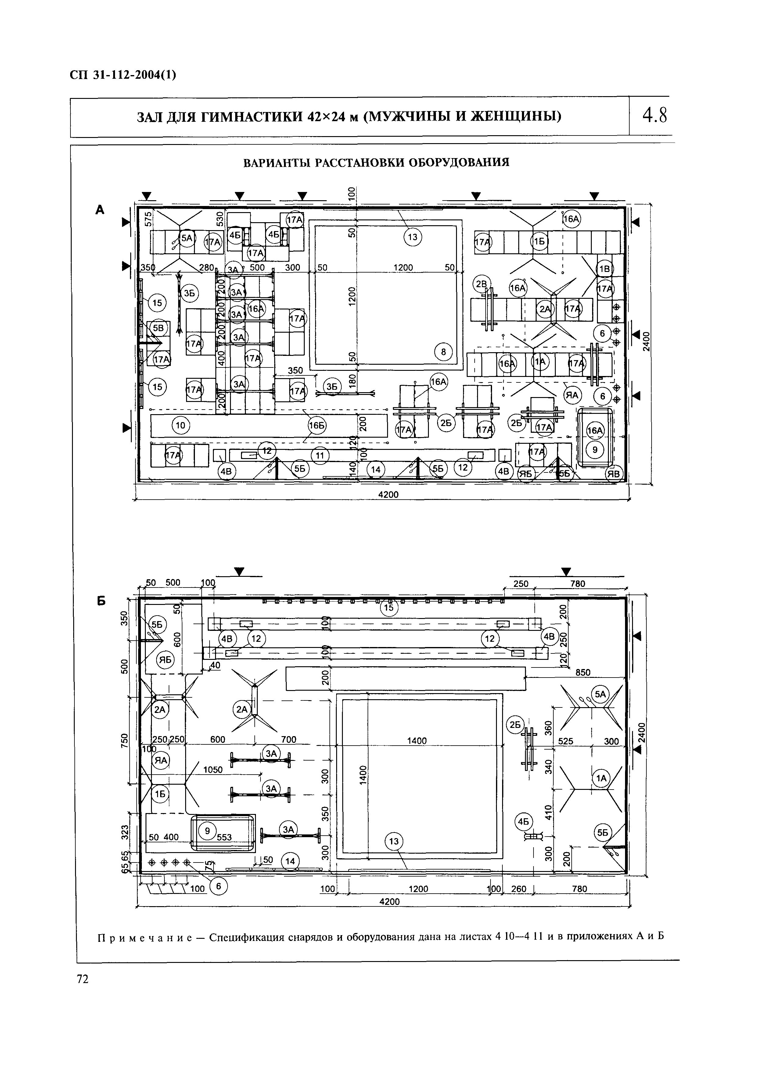
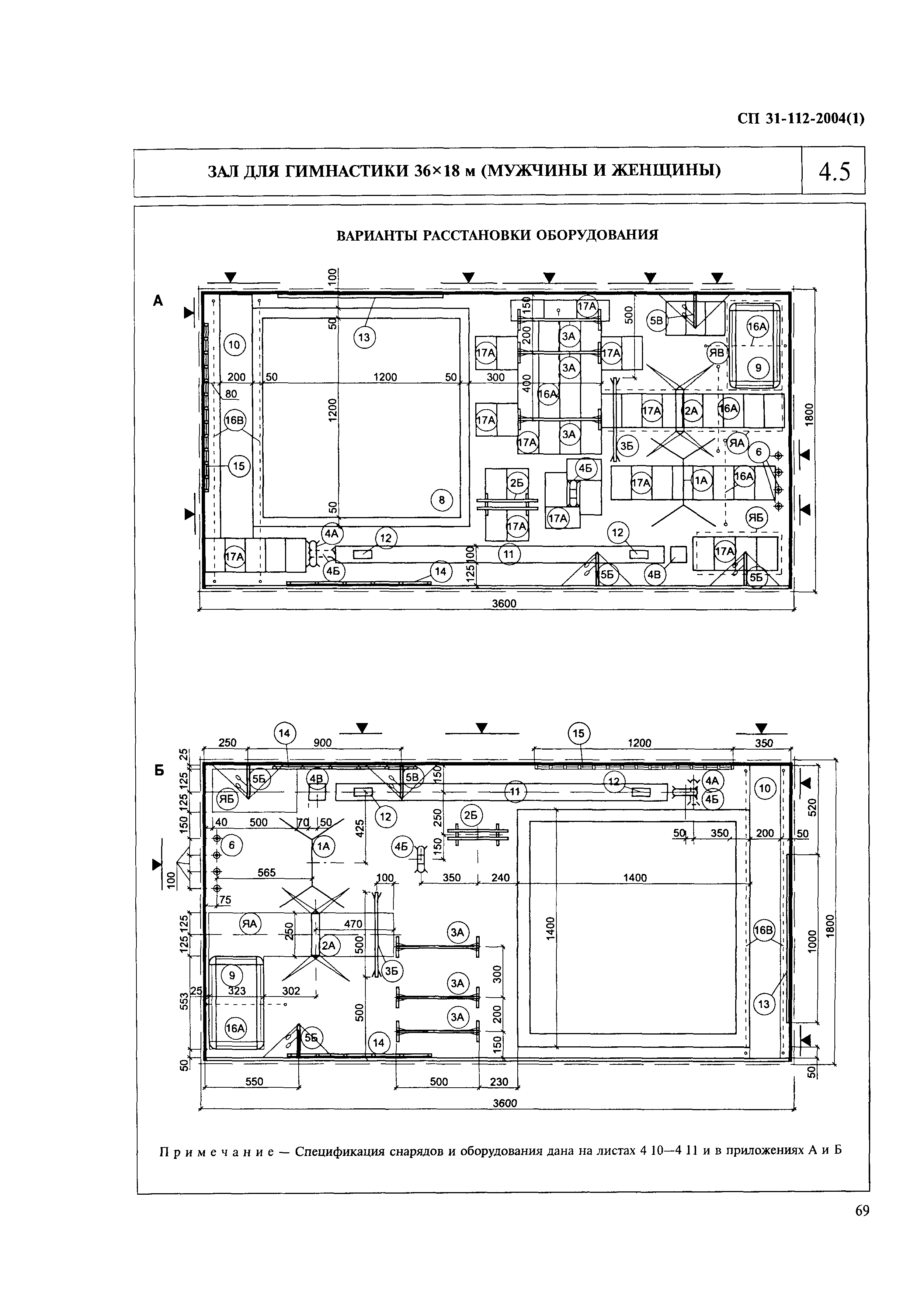
Приложение А Табель-экспликация оборудования и инвентаря для гимнастики
Приложение Б Основное оборудование для учебно-тренировочных занятий и соревнований в залах для спортивной гимнастики
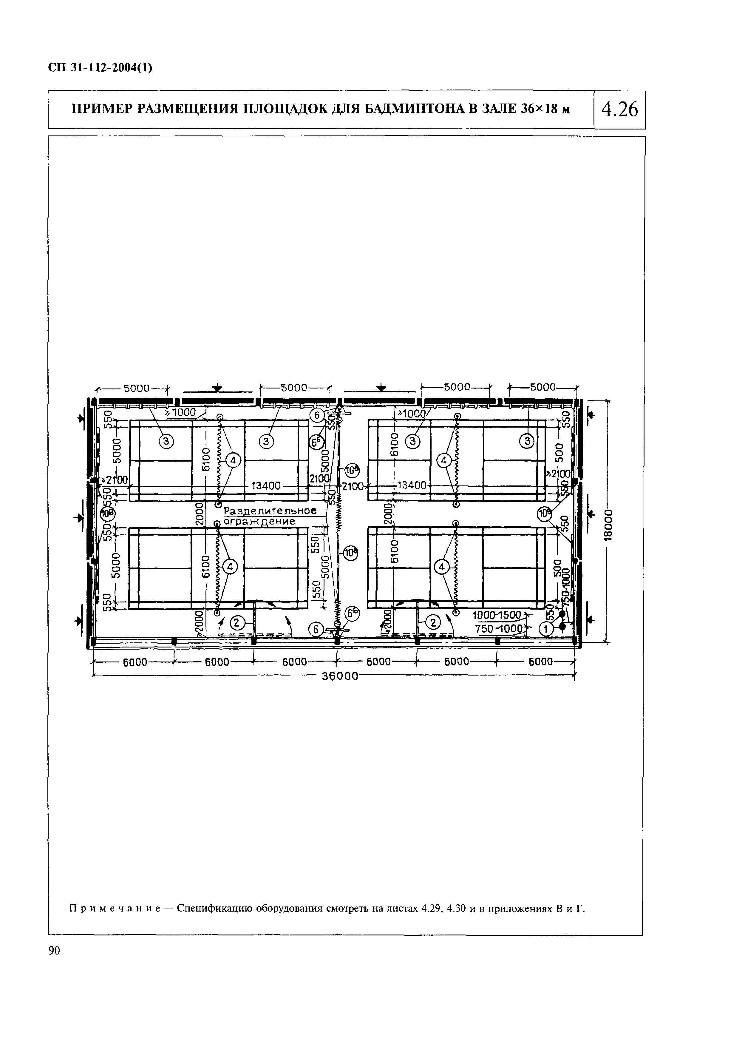
Приложение В Табель-экспликация оборудования и инвентаря на одну площадку для спортивных игр
Приложение Г Табель-экспликация оборудования и инвентаря в залах для спортивных игр
Приложение Д Табель-экспликация спортивного оборудования и инвентаря в залах для бокса, борьбы и тяжелой атлетики
Приложение Е Виды спортивных и развлекательных игр для инвалидов
Приложение Ж Состав и площади помещений медико-восстановительного центра
Приложение И Виды спорта, культивируемые среди инвалидов
Приложение К Иллюстрации
Разработан: Институт общественных зданий Росстроя
Санкт-Петербургская государственная академия физической культуры им. П.Ф. Лесгафта
Утверждён:30.04.2004 Госстрой России (Russian Federation Gosstroy ЛБ-322/9)
26.02.2005 Федеральное агентство по физической культуре, спорту и туризму (24)
Издан: ФГУП ЦПП (2005 г. )
Нормативные ссылки:
СП 31-112-2004СП 31-112-2004СП 31-112-2004СП 31-112-2004СП 31-112-2004СП 31-112-2004СП 31-112-2004СП 31-112-2004СП 31-112-2004СП 31-112-2004СП 31-112-2004СП 31-112-2004СП 31-112-2004СП 31-112-2004СП 31-112-2004СП 31-112-2004СП 31-112-2004СП 31-112-2004СП 31-112-2004СП 31-112-2004СП 31-112-2004СП 31-112-2004СП 31-112-2004СП 31-112-2004СП 31-112-2004СП 31-112-2004СП 31-112-2004СП 31-112-2004СП 31-112-2004СП 31-112-2004СП 31-112-2004СП 31-112-2004СП 31-112-2004СП 31-112-2004СП 31-112-2004СП 31-112-2004СП 31-112-2004СП 31-112-2004СП 31-112-2004СП 31-112-2004СП 31-112-2004СП 31-112-2004СП 31-112-2004СП 31-112-2004СП 31-112-2004СП 31-112-2004СП 31-112-2004СП 31-112-2004СП 31-112-2004СП 31-112-2004СП 31-112-2004СП 31-112-2004СП 31-112-2004СП 31-112-2004СП 31-112-2004СП 31-112-2004СП 31-112-2004СП 31-112-2004СП 31-112-2004СП 31-112-2004СП 31-112-2004СП 31-112-2004СП 31-112-2004СП 31-112-2004СП 31-112-2004СП 31-112-2004СП 31-112-2004СП 31-112-2004СП 31-112-2004СП 31-112-2004СП 31-112-2004СП 31-112-2004СП 31-112-2004СП 31-112-2004СП 31-112-2004СП 31-112-2004СП 31-112-2004СП 31-112-2004СП 31-112-2004СП 31-112-2004СП 31-112-2004СП 31-112-2004СП 31-112-2004СП 31-112-2004СП 31-112-2004СП 31-112-2004СП 31-112-2004СП 31-112-2004СП 31-112-2004СП 31-112-2004СП 31-112-2004СП 31-112-2004СП 31-112-2004СП 31-112-2004СП 31-112-2004СП 31-112-2004СП 31-112-2004СП 31-112-2004СП 31-112-2004СП 31-112-2004СП 31-112-2004СП 31-112-2004СП 31-112-2004СП 31-112-2004СП 31-112-2004СП 31-112-2004СП 31-112-2004СП 31-112-2004СП 31-112-2004СП 31-112-2004СП 31-112-2004СП 31-112-2004СП 31-112-2004СП 31-112-2004СП 31-112-2004СП 31-112-2004СП 31-112-2004СП 31-112-2004СП 31-112-2004СП 31-112-2004СП 31-112-2004СП 31-112-2004СП 31-112-2004СП 31-112-2004СП 31-112-2004СП 31-112-2004СП 31-112-2004СП 31-112-2004СП 31-112-2004СП 31-112-2004СП 31-112-2004СП 31-112-2004СП 31-112-2004СП 31-112-2004СП 31-112-2004СП 31-112-2004СП 31-112-2004СП 31-112-2004СП 31-112-2004