Скачать Серия 2.110-1 Выпуск 5. Материалы для проектирования малоэтажных сельских жилых зданий для обычных условий строительства (дополнение к выпуску 4)Дата актуализации: 01.01.2021
|
| Обозначение: | Серия 2.110-1 |
| Обозначение англ: | Series 2.110-1 |
| Статус: | действует |
| Название рус.: | Выпуск 5. Материалы для проектирования малоэтажных сельских жилых зданий для обычных условий строительства (дополнение к выпуску 4) |
| Дата добавления в базу: | 01.09.2013 |
| Дата актуализации: | 01.01.2021 |
| Дата введения: | 15.12.1986 |
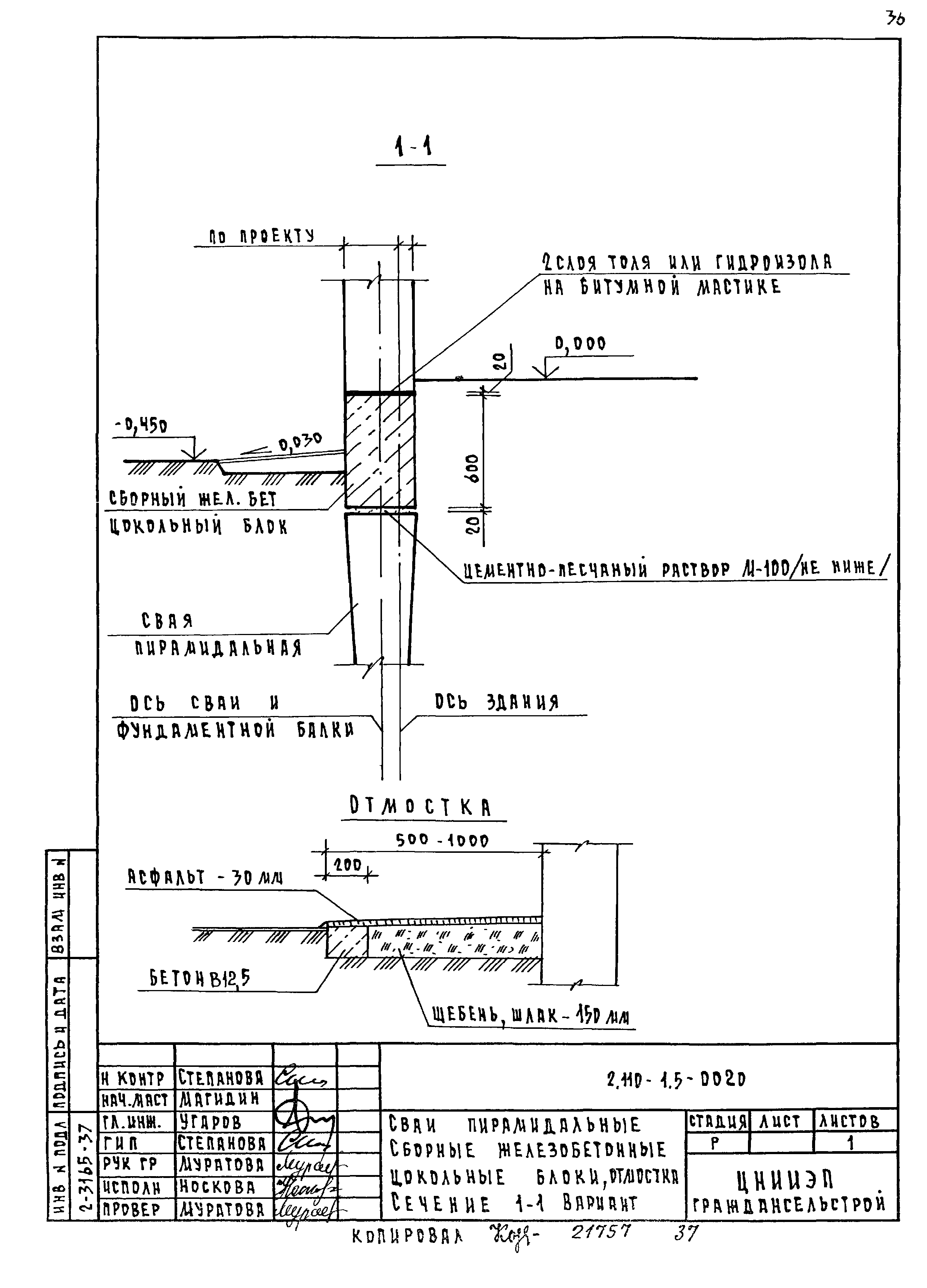
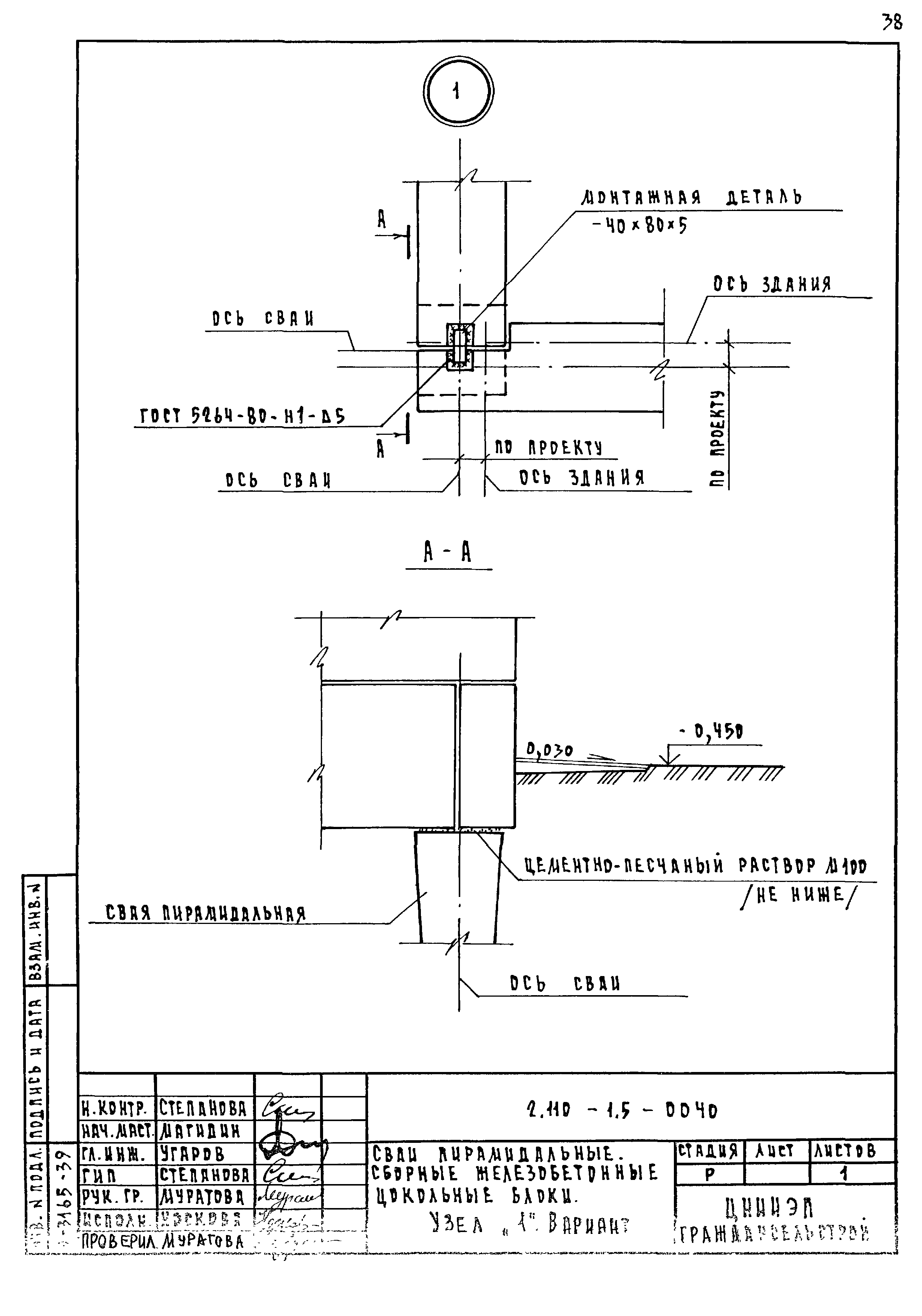
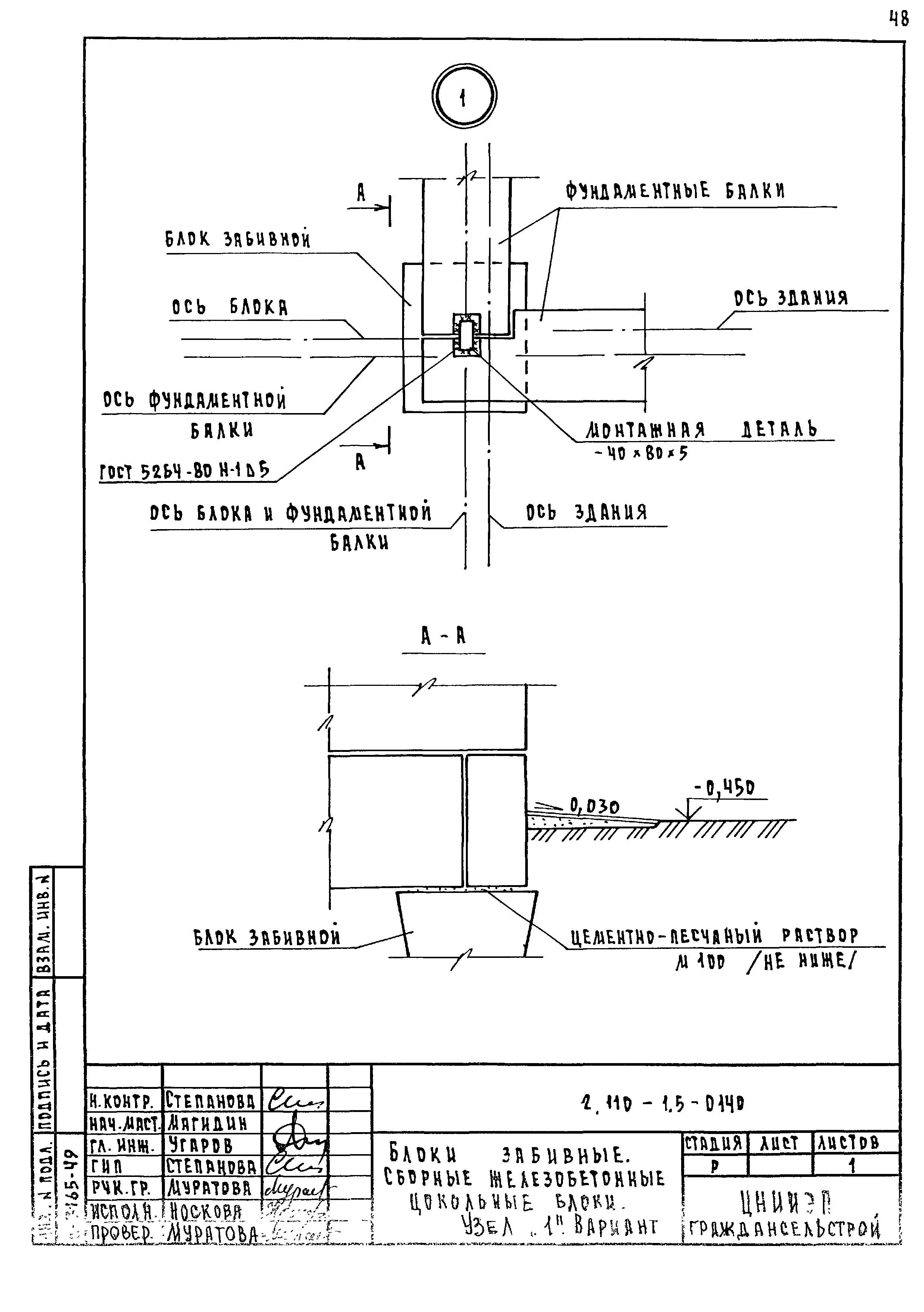
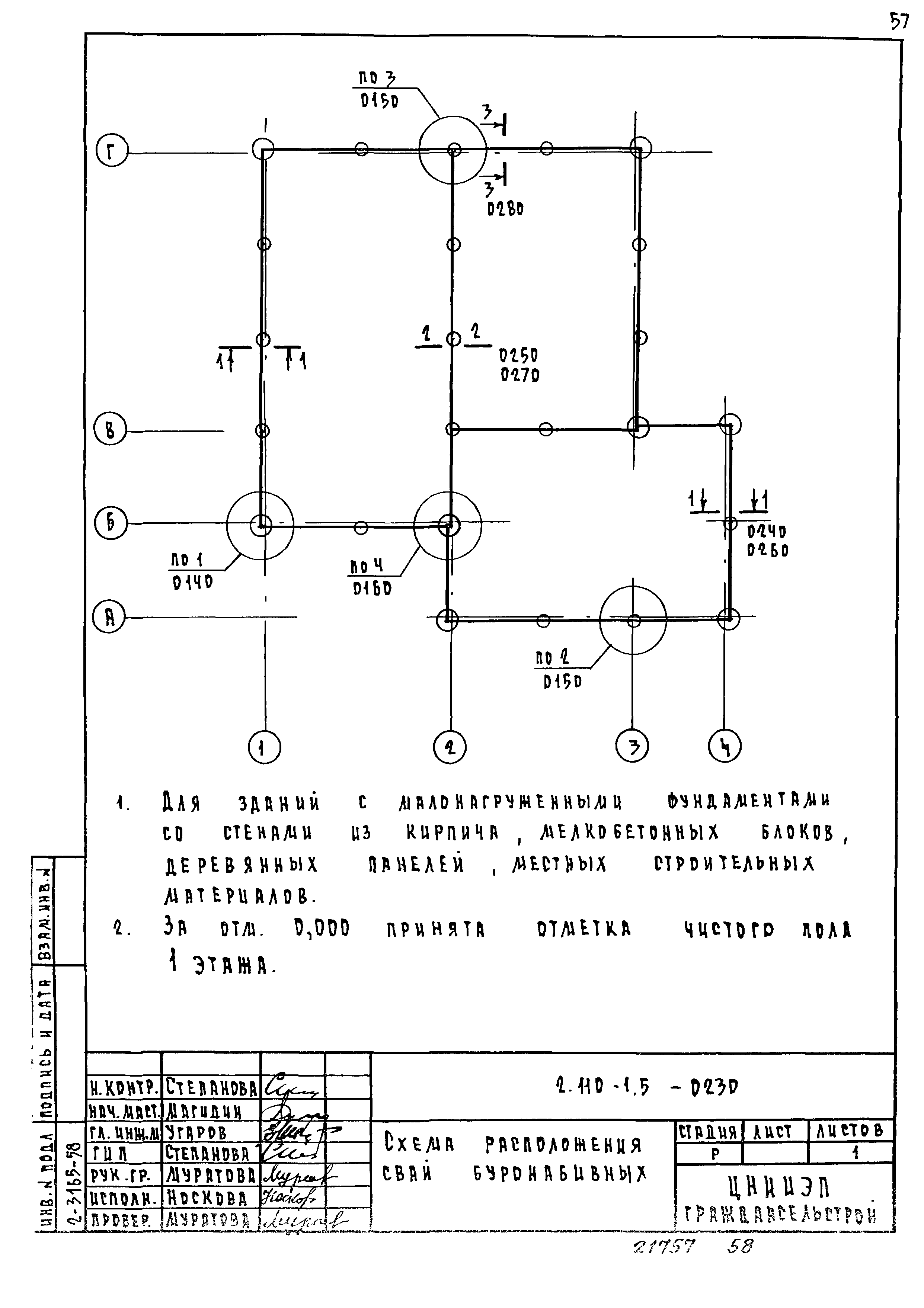
| Область применения: | Настоящий выпуск предназначен для проектирования фундаментов малоэтажных зданий в обычных условиях. В выпуске приведены основные узлы фундаментных конструкций, а также табличные данные для предварительного выбора фундаментов из свай пирамидальных и буронабивных и блоков забивных в зависимости от расчетной нагрузки на фундамент, грунтовых характеристик и глубины промерзания (для пучинистых грунтов) |
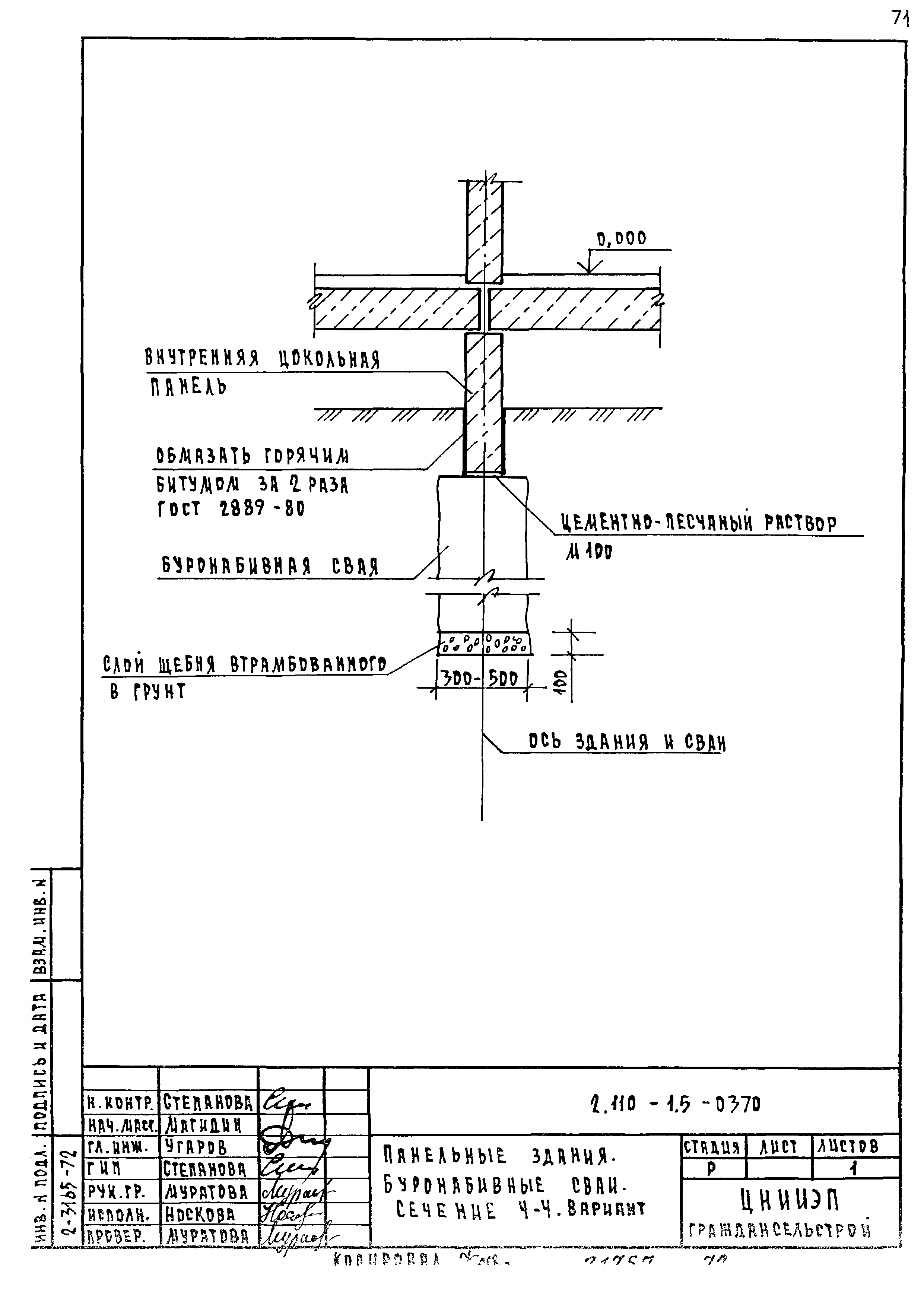
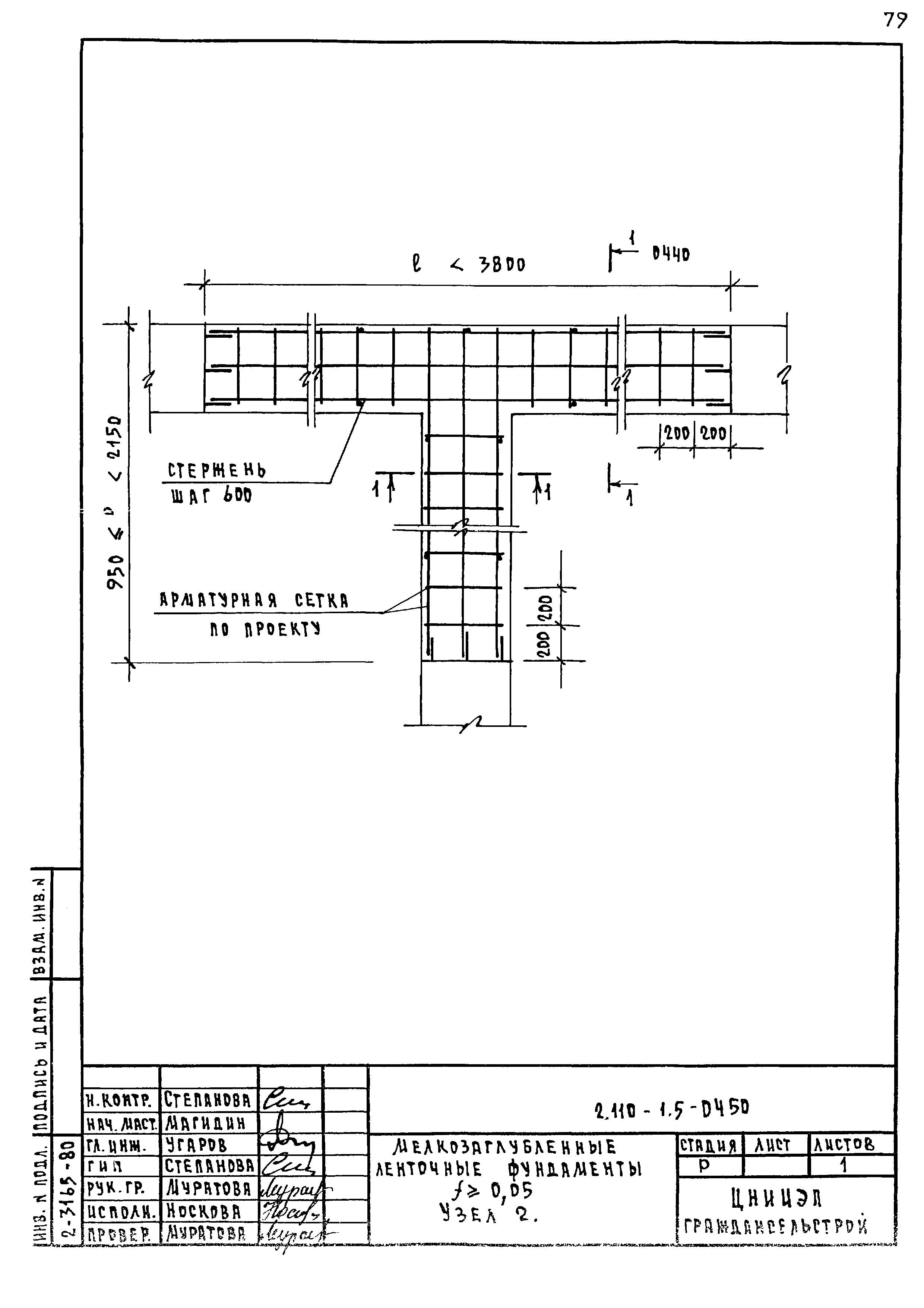
| Оглавление: | 2.110-1.5-0000 Содержание. 2.110-1.5-0000 ПЗ Пояснительная записка. 2.110-1.5-0010 Схема расположения свай пирамидальных и блоков забивным. 2.110-1.5-0020 Сваи пирамидальные. Сборные железобетонные цокольные блоки. Сечение 1-1. Вариант. 2.110-1.5-0030 Сваи пирамидальные. Сборные железобетонные цокольные блоки. Сечение 2-2. Вариант. 2.110-1.5-0040 Сваи пирамидальные. Сборные железобетонные цокольные блоки. Узел "1". Вариант. 2.110-1.5-0050 Сваи пирамидальные. Сборные железобетонные цокольные блоки. Узлы "2" и "3". 2.110-1.5-0060 Сваи пирамидальные. Сборные железобетонные цокольные блоки. Узел "4". Вариант. 2.110-1.5-0070 Сваи пирамидальные. Сборные железобетонные цокольные блоки. Узел "5". Вариант. 2.110-1.5-0080 Сваи пирамидальные. Монолитные балки ростверка. Сечение 1-1. Вариант. 2.110-1.5-0090 Сваи пирамидальные. Монолитные балки ростверка. Сечение 2-2. Вариант. 2.110-1.5-0100 Сваи пирамидальные. Монолитный цоколь. Сечение 1-1. Вариант. 2.110-1.5-0110 Сваи пирамидальные. Монолитный цоколь. Сечение 2-2. Вариант. 2.110-1.5-0120 Блоки забивные. Сборные железобетонные цокольные блоки. Сечение 1-1. Вариант. 2.110-1.5-0130 Блоки забивные. Сборные железобетонные цокольные блоки. Сечение 2-2. Вариант. 2.110-1.5-0140 Блоки забивные. Сборные железобетонные цокольные блоки. Узел "1". Вариант. 2.110-1.5-0150 Блоки забивные. Сборные железобетонные цокольные блоки. Узлы "2" и "3". Вариант. 2.110-1.5-0160 Блоки забивные. Сборные железобетонные цокольные блоки. Узел "4". Вариант. 2.110-1.5-0170 Блоки забивные. Монолитные балки ростверка. Сечение 1-1. Вариант. 2.110-1.5-0180 Блоки забивные. Монолитные балки ростверка. Сечение 2-2. Вариант. 2.110-1.5-0190 Блоки забивные. Монолитный цоколь. Сечение 1-1. Вариант. 2.110-1.5-0200 Блоки забивные. Монолитный цоколь. Сечение 2-2. Вариант. 2.110-1.5-0210 Сваи пирамидальные, блоки забивные. Арматурные пояса монолитных балок. Узлы "1", "2". Вариант. 2.110-1.5-0220 Сваи пирамидальные, блоки забивные. Арматурные пояса монолитных балок. Узлы "3", "4". Вариант. 2.110-1.5-0230 Схема расположения свай буронабивных. 2.110-1.5-0240 Буронабивные сваи. Сборные железобетонные цокольные блоки. Сечение 1-1. Вариант. 2.110-1.5-0250 Буронабивные сваи. Сборные железобетонные цокольные блоки. Сечение 2-2. Вариант. 2.110-1.5-0260 Буронабивные сваи. Монолитный цоколь. Сечение 1-1. Вариант. 2.110-1.5-0270 Буронабивные сваи. Монолитный цоколь. Сечение 2-2. Вариант. 2.110-1.5-0280 Буронабивные сваи. Монолитный цоколь. Сечение 3-3. Вариант. 2.110-1.5-0290 Панельные здания. Схема расположения фундаментов 2.110-1.5-0300 Панельные здания. Сваи пирамидальные. Блоки забивные. Сечение 1-1. Вариант. 2.110-1.5-0310 Панельные здания. Сваи пирамидальные. Блоки забивные. Сечение 2-2. Вариант. 2.110-1.5-0320 Панельные здания. Сваи пирамидальные. Блоки забивные. Сечение 3-3. Вариант. 2.110-1.5-0330 Панельные здания. Сваи пирамидальные. Блоки забивные. Сечение 4-4. Вариант. 2.110-1.5-0340 Панельные здания. Буронабивные сваи. Сечение 1-1. Вариант. 2.110-1.5-0350 Панельные здания. Буронабивные сваи. Сечение 2-2. Вариант. 2.110-1.5-0360 Панельные здания. Буронабивные сваи. Сечение 3-3. Вариант. 2.110-1.5-0370 Панельные здания. Буронабивные сваи. Сечение 4-4. Вариант. 2.110-1.5-0380 Варианты установки незаглубленных фундаментов /1, 2/ 2.110-1.5-0390 Варианты установки незаглубленных фундаментов /3, 4/ 2.110-1.5-0400 Мелкозаглубленные ленточные фундаменты. Схема расположения элементов фундаментов. Вариант. 2.110-1.5-0410 Мелкозаглубленные ленточные фундаменты. Схема расположения элементов фундаментов. Вариант. 2.110-1.5-0420 Мелкозаглубленные ленточные фундаменты. Сечение 1-1. Отмостка. 2.110-1.5-0430 Мелкозаглубленные ленточные фундаменты. Сечение 2-2. Отмостка. 2.110-1.5-0440 Мелкозаглубленные ленточные фундаменты. F>= 0,05. Узел "1". 2.110-1.5-0450 Мелкозаглубленные ленточные фундаменты. F>= 0,05. Узел "2". 2.110-1.5-0460 Мелкозаглубленные ленточные фундаменты. F>= 0,05. Узел "3", "4". 2.110-1.5-0470 Мелкозаглубленные ленточные фундаменты. 0,12=<F=< 0,05. План монолитных фундаментов. 2.110-1.5-0480 Мелкозаглубленные ленточные фундаменты. 0,035=<F=< 0,070. Сечение 1-1. Вариант. 2.110-1.5-0490 Мелкозаглубленные ленточные фундаменты. 0,035=<F=< 0,070. Сечение 2-2. Вариант. 2.110-1.5-0500 Мелкозаглубленные ленточные фундаменты. 0,07=<F=< 0,12. Сечение 1-1. Вариант. 2.110-1.5-0510 Мелкозаглубленные ленточные фундаменты. 0,07=<F=< 0,12. Сечение 2-2. Вариант. 2.110-1.5-0520 Панельные здания. Мелкозаглубленные фундаменты. Схемы расположения. 2.110-1.5-0530 Панельные здания. Мелкозаглубленные фундаменты. Сечение 1-1. 2.110-1.5-0540 Панельные здания. Мелкозаглубленные фундаменты. Сечение 2-2. 2.110-1.5-0550 Панельные здания. Мелкозаглубленные фундаменты. Сечение 3-3. 2.110-1.5-0560 Панельные здания. Мелкозаглубленные фундаменты. Сечение 4-4. 2.110-1.5-0570 Схема расположения приямка для ввода коммуникаций, веранд, погребов 2.110-1.5-0580 Веранда. Сечение 5-5. Вариант. 2.110-1.5-0590 Веранда. Сечение 5-5. Вариант для малозаглубленных фундаментов. 2.110-1.5-0600 Погреб для хранения овощей. Сечение 6-6. Вариант. 2.110-1.5-0610 Погреб для хранения овощей. Сечение 6-6. Вариант. 2.110-1.5-0620 Погреб для хозяйственных нужд. Сечение 7-7. Вариант. 2.110-1.5-0630 Приямок для ввода коммуникаций. Сечение 8-8. Вариант. |
| Разработан: | ЦНИИЭП граждансельстрой |
| Утверждён: | 23.10.1986 Госгражданстрой (Gosgrazhdanstroy 339) |
| Нормативные ссылки: |
|

































































































