Скачать Серия 1.431.3-26 Выпуск 2. Узлы. Рабочие чертежи

Дата актуализации: 01.01.2021

Серия 1.431.3-26

Выпуск 2. Узлы. Рабочие чертежи

Обозначение: Серия 1.431.3-26
Обозначение англ: Series 1.431.3-26
Статус:не определен законодательством
Название рус.:Выпуск 2. Узлы. Рабочие чертежи
Дата добавления в базу:01.09.2013
Дата актуализации:01.01.2021
Дата введения:07.06.1985
Дата окончания срока действия:30.06.2003
Область применения:В настоящем выпуске разработаны узлы крепления и примыкания перегородок к конструкциям здания
Оглавление:1.431.3-26.2-00 ТО Техническое описание
1.431.3-26.2-01 Узел 1
1.431.3-26.2-02 Узел 2
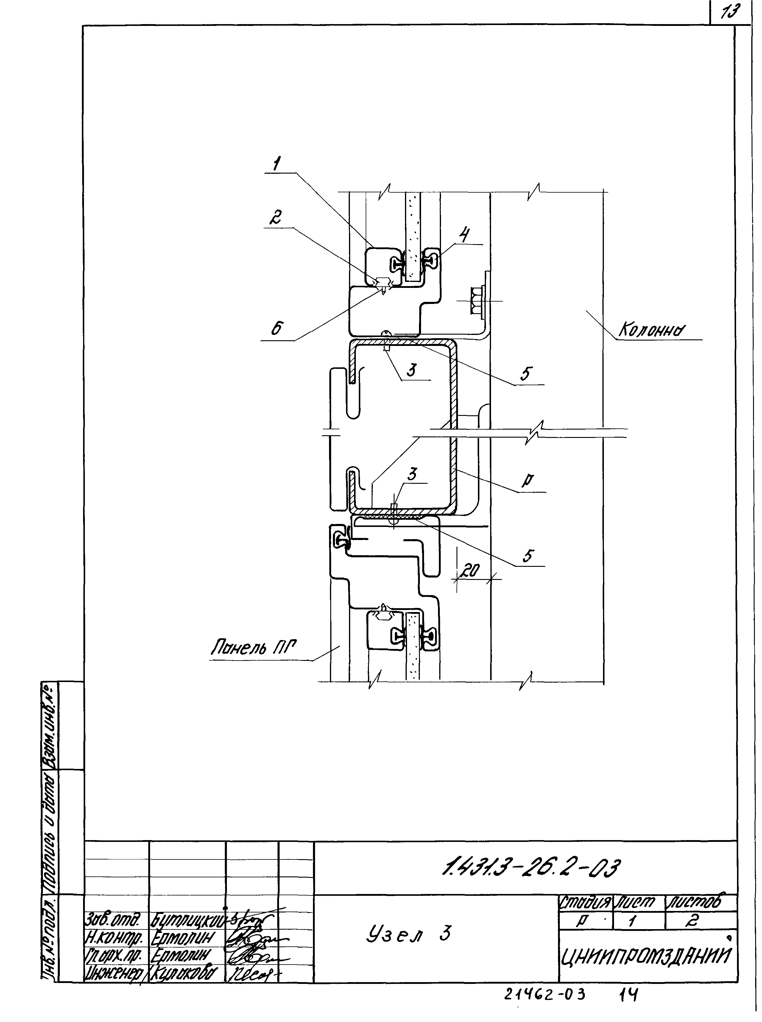
1.431.3-26.2-03 Узел 3
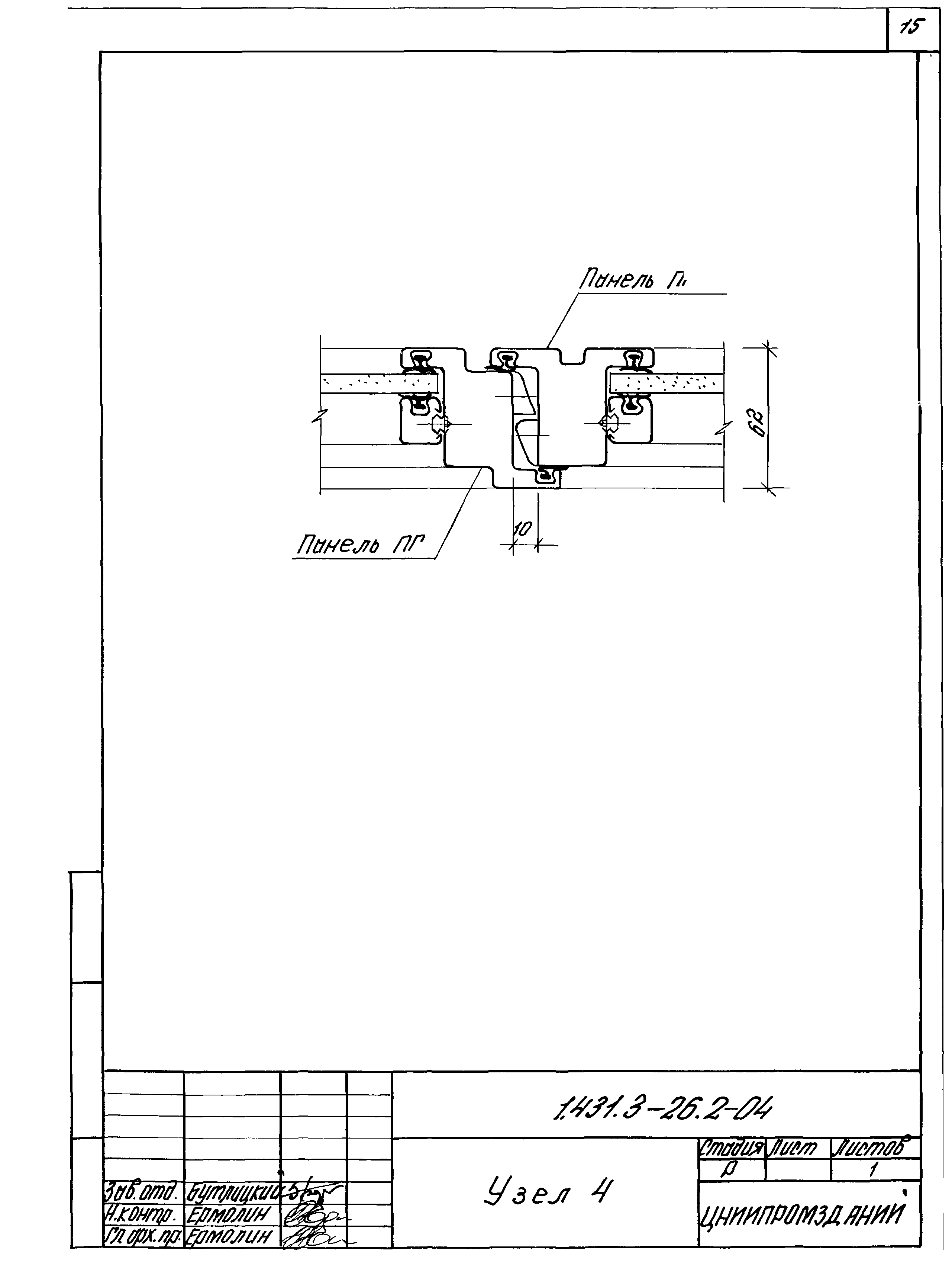
1.431.3-26.2-04 Узел 4
1.431.3-26.2-05 Узел 5
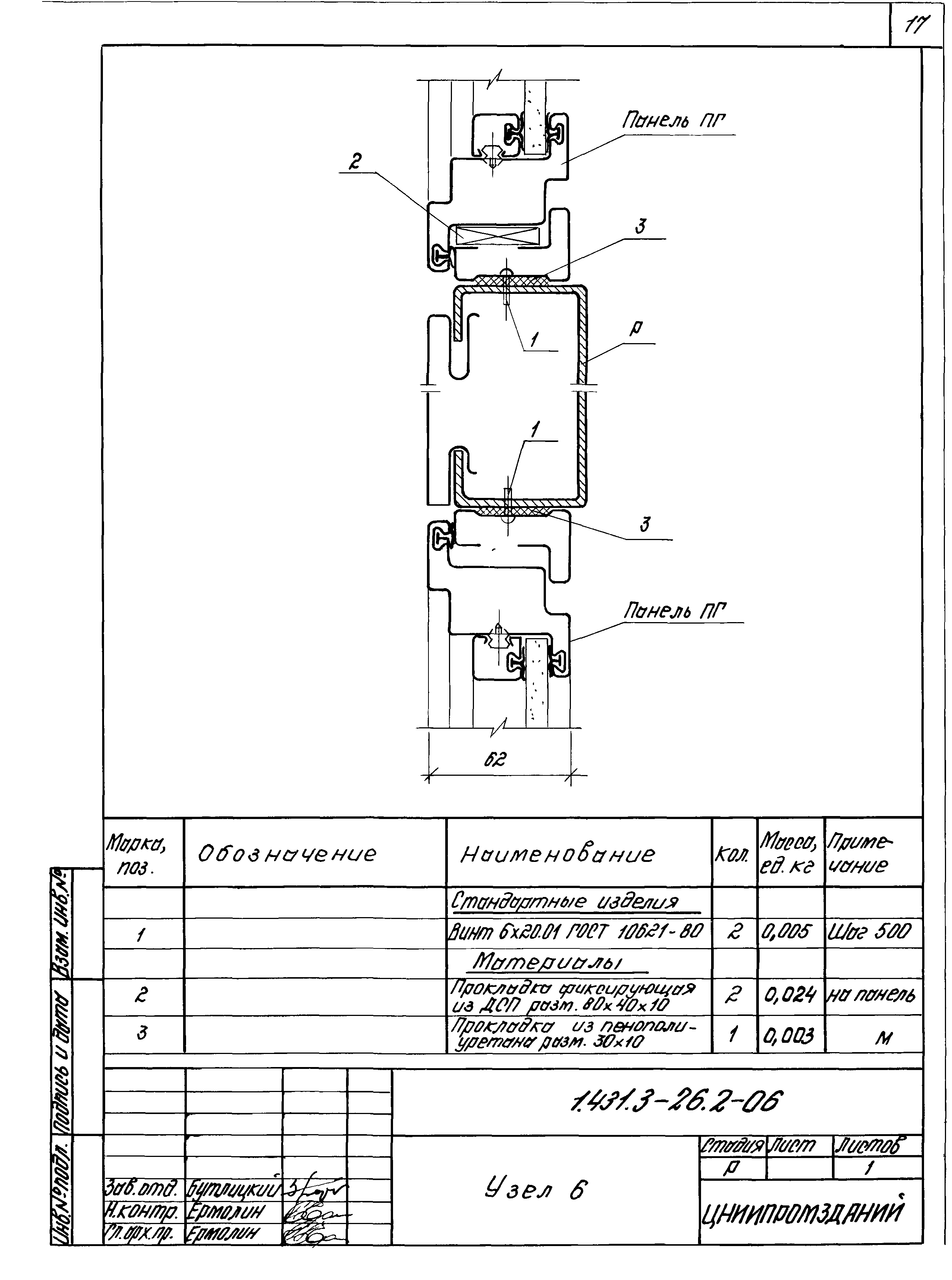
1.431.3-26.2-06 Узел 6
1.431.3-26.2-07 Узел 7
1.431.3-26.2-08 Узел 8
1.431.3-26.2-09 Узел 9
1.431.3-26.2-10 Узел 10
1.431.3-26.2-11 Узел 11
1.431.3-26.2-12 Узел 12
1.431.3-26.2-13 Узел 13
1.431.3-26.2-14 Узел 14
1.431.3-26.2-15 Узел 15
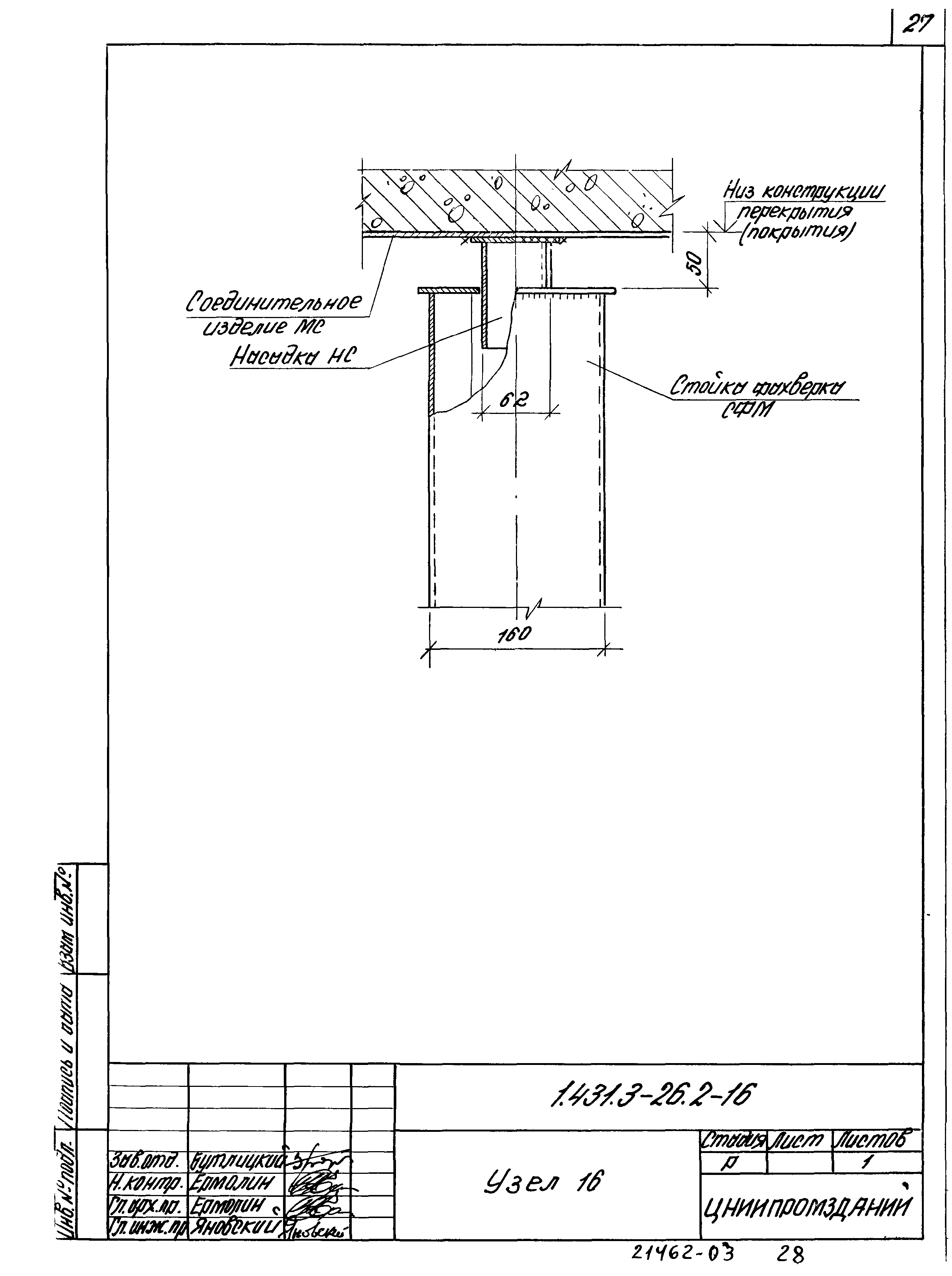
1.431.3-26.2-16 Узел 16
1.431.3-26.2-17 Узел 17
1.431.3-26.2-18 Узел 18
1.431.3-26.2-19 Узел 19
1.431.3-26.2-20 Узел 20
1.431.3-26.2-21 Узел 21
1.431.3-26.2-22 Узел 22
1.431.3-26.2-23 Узел 23
1.431.3-26.2-24 Узлы крепления соединительных изделий МС ригелям и плитам перекрытия
Разработан: ЦНИИпромзданий
Утверждён:07.06.1985 Госстрой СССР (Государственный комитет Совета Министров СССР по делам строительства) (USSR Gosstroy 49)
Издан: ЦИТП Госстроя СССР (CITP, Gosstroy (USSR) 1986 г. )
Нормативные ссылки:
Серия 1.431.3-26Серия 1.431.3-26Серия 1.431.3-26Серия 1.431.3-26Серия 1.431.3-26Серия 1.431.3-26Серия 1.431.3-26Серия 1.431.3-26Серия 1.431.3-26Серия 1.431.3-26Серия 1.431.3-26Серия 1.431.3-26Серия 1.431.3-26Серия 1.431.3-26Серия 1.431.3-26Серия 1.431.3-26Серия 1.431.3-26Серия 1.431.3-26Серия 1.431.3-26Серия 1.431.3-26Серия 1.431.3-26Серия 1.431.3-26Серия 1.431.3-26Серия 1.431.3-26Серия 1.431.3-26Серия 1.431.3-26Серия 1.431.3-26Серия 1.431.3-26Серия 1.431.3-26Серия 1.431.3-26Серия 1.431.3-26Серия 1.431.3-26Серия 1.431.3-26Серия 1.431.3-26Серия 1.431.3-26Серия 1.431.3-26Серия 1.431.3-26