Главная // Актуальные документы // Ведомость (форма)
СПРАВКА
Источник публикации
М.: Стандартинформ, 2017
Примечание к документу
Документ включен в Перечень документов в области стандартизации, в результате применения которых на добровольной основе обеспечивается соблюдение требований Федерального закона от 30.12.2009 N 384-ФЗ "Технический регламент о безопасности зданий и сооружений" (Приказ Росстандарта от 02.04.2020 N 687).

Документ включен в Перечень документов в области стандартизации, в результате применения которых на добровольной основе обеспечивается соблюдение требований Федерального закона от 30.12.2009 N 384-ФЗ "Технический регламент о безопасности зданий и сооружений" (Приказ Росстандарта от 17.04.2019 N 831).

Документ включен в Перечень стандартов, в результате применения которых на добровольной основе обеспечивается соблюдение требований Федерального закона от 30.12.2009 N 384-ФЗ "Технический регламент о безопасности зданий и сооружений" (Приказ Росстандарта от 30.03.2015 N 365).

Текст данного документа приведен с учетом поправки, введенной в действие с 23.08.2021, опубликованной в "ИУС", N 1, 2022.

Документ введен в действие с 01.07.2017.

Взамен ГОСТ 21.502-2007.
Название документа
"ГОСТ 21.502-2016. Межгосударственный стандарт. Система проектной документации для строительства. Правила выполнения рабочей документации металлических конструкций"
(введен в действие Приказом Росстандарта от 02.12.2016 N 1917-ст)

"ГОСТ 21.502-2016. Межгосударственный стандарт. Система проектной документации для строительства. Правила выполнения рабочей документации металлических конструкций"
(введен в действие Приказом Росстандарта от 02.12.2016 N 1917-ст)


Содержание


Введен в действие
Приказом Федерального
агентства по техническому
регулированию и метрологии
от 2 декабря 2016 г. N 1917-ст
МЕЖГОСУДАРСТВЕННЫЙ СТАНДАРТ
СИСТЕМА ПРОЕКТНОЙ ДОКУМЕНТАЦИИ ДЛЯ СТРОИТЕЛЬСТВА
ПРАВИЛА ВЫПОЛНЕНИЯ РАБОЧЕЙ ДОКУМЕНТАЦИИ
МЕТАЛЛИЧЕСКИХ КОНСТРУКЦИЙ
System of design documents for construction.
Execution rules of working documents for metal structures
ГОСТ 21.502-2016
МКС 01.100.30
Дата введения
1 июля 2017 года
Предисловие
Цели, основные принципы и основной порядок проведения работ по межгосударственной стандартизации установлены ГОСТ 1.0-2015 "Межгосударственная система стандартизации. Основные положения" и ГОСТ 1.2-2015 "Межгосударственная система стандартизации. Стандарты межгосударственные, правила и рекомендации по межгосударственной стандартизации. Правила разработки, принятия, обновления и отмены"
Сведения о стандарте
1 РАЗРАБОТАН Закрытым акционерным обществом "Центральный ордена Трудового Красного Знамени научно-исследовательский и проектный институт строительных металлоконструкций им. Н.П. Мельникова" (ЗАО "ЦНИИПСК им. Мельникова")
2 ВНЕСЕН Техническим комитетом по стандартизации ТК 465 "Строительство"
3 ПРИНЯТ Межгосударственным советом по стандартизации, метрологии и сертификации (протокол от 22 ноября 2016 г. N 93-П)
За принятие проголосовали:
Краткое наименование страны по МК (ИСО 3166) 004-97
Код страны по МК (ИСО 3166) 004-97
Сокращенное наименование национального органа по стандартизации
Азербайджан
AZ
Азстандарт
Армения
AM
Минэкономики Республики Армения
Киргизия
KG
Кыргызстандарт
Россия
RU
Росстандарт
4 Приказом Федерального агентства по техническому регулированию и метрологии от 2 декабря 2016 г. N 1917-ст межгосударственный стандарт ГОСТ 21.502-2016 введен в действие в качестве национального стандарта Российской Федерации с 1 июля 2017 г.
5 ВЗАМЕН ГОСТ 21.502-2007
Информация об изменениях к настоящему стандарту публикуется в ежегодном информационном указателе "Национальные стандарты", а текст изменений и поправок - в ежемесячном информационном указателе "Национальные стандарты". В случае пересмотра (замены) или отмены настоящего стандарта соответствующее уведомление будет опубликовано в ежемесячном информационном указателе "Национальные стандарты". Соответствующая информация, уведомление и тексты размещаются также в информационной системе общего пользования - на официальном сайте Федерального агентства по техническому регулированию и метрологии в сети Интернет (www.gost.ru)
1. Область применения
Настоящий стандарт устанавливает состав и правила выполнения рабочей документации строительных металлических конструкций чертежей марки КМ.
Требования настоящего стандарта не распространяются на выполнение деталировочных чертежей металлических конструкций марки КМД.
2. Нормативные ссылки
В настоящем стандарте использованы нормативные ссылки на следующие межгосударственные стандарты:
ГОСТ 2.306-68 Единая система конструкторской документации. Обозначения графические материалов и правила их нанесения на чертежах
ГОСТ 2.312-72 Единая система конструкторской документации. Условные изображения и обозначения швов сварных соединений
ГОСТ 2.315-68 Единая система конструкторской документации. Изображения упрощенные и условные крепежных деталей
ГОСТ 2.321-84 Единая система конструкторской документации. Обозначения буквенные
ГОСТ 2.410-68 Единая система конструкторской документации. Правила выполнения чертежей металлических конструкций
ГОСТ 21.001-2013 Система проектной документации для строительства. Общие положения
ГОСТ 21.101-97 <*> Система проектной документации для строительства. Основные требования к проектной и рабочей документации
--------------------------------
<*> На территории Российской Федерации действует ГОСТ Р 21.1101-2013.
ГОСТ 21.201-2011 Система проектной документации для строительства. Условные изображения элементов зданий, сооружений и конструкций
ГОСТ 21.501-2011 Система проектной документации для строительства. Правила выполнения рабочей документации архитектурных и конструктивных решений
ГОСТ 535-2005 Прокат сортовой и фасонный из стали углеродистой обыкновенного качества. Общие технические условия
ГОСТ 4121-96 Рельсы крановые. Технические условия
ГОСТ 8240-97 Швеллеры стальные горячекатаные. Сортамент
ГОСТ 8509-93 Уголки стальные горячекатаные равнополочные. Сортамент
ГОСТ 19903-74 Прокат листовой горячекатаный. Сортамент
ГОСТ 23118-2012 Конструкции стальные строительные. Общие технические условия
ГОСТ 26020-83 Двутавры стальные горячекатаные с параллельными гранями полок. Сортамент
ГОСТ 26047-2016 Конструкции строительные стальные. Условные обозначения (марки)
ГОСТ 27772-2015 Прокат для строительных стальных конструкций. Общие технические условия
Примечание - При пользовании настоящим стандартом целесообразно проверить действие ссылочных стандартов в информационной системе общего пользования - на официальном сайте Федерального агентства по техническому регулированию и метрологии в сети Интернет или по ежегодному информационному указателю "Национальные стандарты", который опубликован по состоянию на 1 января текущего года, и по выпускам ежемесячного информационного указателя "Национальные стандарты" за текущий год. Если ссылочный стандарт заменен (изменен), то при пользовании настоящим стандартом следует руководствоваться заменяющим (измененным) стандартом. Если ссылочный стандарт отменен без замены, то положение, в котором дана ссылка на него, применяется в части, не затрагивающей эту ссылку.
3. Термины и определения
В настоящем стандарте применены термины по ГОСТ 21.001, ГОСТ 21.501, а также следующий термин с соответствующим определением:
3.1 узел конструкции(й): Сопряжение, соединение между собой элементов строительных конструкций и их составных частей.
4. Общие положения
4.1 Рабочую документацию металлических конструкций выполняют в соответствии с требованиями ГОСТ 21.101 (кроме раздела 6) и настоящего стандарта.
4.2 Условные графические изображения элементов зданий, сооружений и строительных конструкций принимают по ГОСТ 21.201.
4.3 Условные обозначения профилей проката принимают по ГОСТ 2.410.
4.4 Графические изображения материалов в сечениях, разрезах, а также правила их нанесения принимают по ГОСТ 2.306.
4.5 Условные обозначения (марки) металлических конструкций принимают по ГОСТ 26047.
4.6 Основные буквенные обозначения принимают по ГОСТ 2.321.
4.7 Изображения крепежных деталей в соединениях должны соответствовать указанным в ГОСТ 2.315 и таблице А.1 (приложение А).
4.8 Условные изображения и обозначения швов сварных соединений должны соответствовать указанным в таблице А.2 (приложение А).
Обозначение швов в этом случае допускается указывать без выносных линий, помещая их непосредственно над или под изображением соответствующего сварного шва вне зависимости от того, является ли сварной шов видимым или невидимым.
Допускается выполнять условные изображения и обозначения швов сварных соединений по ГОСТ 2.312.
5. Состав рабочей документации
5.1 В состав рабочей документации металлических конструкций включают:
- рабочие чертежи (основной комплект рабочих чертежей марки КМ);
- спецификации металлопроката;
- расчеты.
Примечание - Расчеты в состав рабочей документации не включают, если иное не определено в договоре (контракте) и задании на проектирование.
5.2 В состав основного комплекта рабочих чертежей марки КМ включают:
- общие данные по рабочим чертежам;
- чертежи общего вида металлических конструкций здания или сооружений (планы, разрезы);
- схемы расположения элементов металлических конструкций;
- ведомости элементов к схемам расположения металлических конструкций;
- чертежи элементов металлических конструкций;
- чертежи узлов металлических конструкций.
5.3 Рабочие чертежи марки КМ должны содержать необходимые и достаточные данные для разработки деталировочных чертежей металлических конструкций марки КМД, проекта производства работ и заказа металлопроката и изделий из металла.
Отступления от рабочих чертежей марки КМ не допускаются. В случае необходимости эти отступления должны быть согласованы с организацией - разработчиком рабочих чертежей марки КМ.
6. Правила оформления чертежей марки КМ
6.1. Общие данные по рабочим чертежам
6.1.1 На первых листах основного комплекта рабочих чертежей марки КМ приводят общие данные в соответствии с ГОСТ 21.101.
6.1.2 В общих указаниях в дополнение к требованиям, предусмотренным ГОСТ 21.101, приводят:
- сведения об основных конструктивных особенностях здания или сооружения;
- сведения о нагрузках и воздействиях на металлические конструкции;
- расчетную схему конструкций с необходимыми пояснениями;
- сведения о нагрузках на фундаменты;
- ссылки на принятые нормы проектирования, нормативные документы на металлопрокат, сварные соединения и крепежные изделия;
- описание монтажных и заводских соединений;
- указания по защите металлических строительных конструкций от коррозии в соответствии с ГОСТ 23118 и другими нормативными документами;
- указания к изготовлению и монтажу, в том числе требования к контролю качества сварных соединений, а также геометрической точности размеров в соответствии с действующими нормативными документами.
6.1.3 Сведения о нагрузках и воздействиях на металлические конструкции приводят, как правило, в табличной форме, в которой указывают: нормативные и расчетные значения нагрузок, коэффициенты надежности по нагрузке и данные по возможным сочетаниям технологических и других нагрузок и воздействий в соответствии с требованиями действующих нормативных документов <*>, технологических и архитектурно-строительных заданий.
--------------------------------
<*> В Российской Федерации действует СП 20.13330.2011 "СНиП 2.01.07-85*. Нагрузки и воздействия".
Примеры выполнения нагрузок и воздействий на металлические конструкции приведены на рисунках Б.1 и Б.2 (приложение Б).
6.1.4 В нагрузки на фундаменты включают:
- значение нагрузок на фундаменты;
- принятое правило знаков нагрузок на фундаменты;
- схемы расположения фундаментных болтов для каждой марки фундамента;
- диаметры, высоты выступающих частей, длины нарезок, марки сталей фундаментных болтов, закладные детали;
- требования к деформативности фундаментов (при необходимости).
Пример выполнения нагрузок на фундаменты приведен на рисунке В.1 (приложение В).
6.2. Чертежи общего вида металлических конструкций
6.2.1 Чертежи общего вида выполняют в виде планов, видов или разрезов соответствующих конструкций с упрощенным или схематичным изображением элементов.
На чертежах общего вида металлических конструкций здания или сооружения приводят схемы конструкций со связями, с указанием взаимного расположения конструкций, их соединений и опирания на фундаменты.
6.2.2 На чертежах общего вида наносят:
- координационные оси здания или сооружения;
- размеры, определяющие расстояния между координационными осями, отметки участков, расположенных на разных уровнях, другие необходимые размеры;
- привязку к координационным осям здания (сооружения) или в необходимых случаях к другим конструкциям и основные параметры технологического оборудования (подъемно-транспортного и др.), влияющего на конструкции;
- габаритные и характерные размеры;
- высотные отметки;
- примыкающие строительные конструкции, не разрабатываемые в рабочих чертежах марки КМ, которые изображают схематично тонкими линиями;
- линии и обозначения разрезов;
- обозначение выносных элементов (узлов и фрагментов);
- марки элементов конструкций.
Габаритные размеры приводят как для всей конструкции в целом (пролеты, длина, ширина, высота, диаметр и т.п.), так и для наиболее крупных ее элементов (высота ферм и т.п.).
Характерными являются размеры, определяющие форму здания или сооружения и отдельных его частей: уклоны (кровли, днищ, полотна проезжей части и др.), радиусы кривых поверхностей, размеры, определяющие изменение ширины башен по высоте и т.п.
6.2.3 Примеры выполнения чертежей общего вида приведены на рисунках Г.1 - Г.4 (приложение Г).
6.3. Схемы расположения элементов металлических конструкций
6.3.1 Схемы расположения элементов металлических конструкций выполняют согласно подразделу 6.3 ГОСТ 21.501-2011 с учетом особенностей выполнения чертежей металлических конструкций.
6.3.2 Маркировку элементов металлических конструкций указывают, как правило, на схемах расположения элементов. Элементы конструкций, не включенные в схемы расположения элементов, маркируют на чертежах общего вида и узлов по ГОСТ 26047.
6.3.3 Ведомость элементов составляют к каждой схеме расположения элементов металлических конструкций по форме 1, приведенной в приложении Е.
Ведомость элементов размещают на листе, где приведена соответствующая схема.
Допускается выполнять ведомость элементов на отдельном листе.
Допускается составлять одну общую ведомость элементов для всех схем расположения, указывая в графе "Примечание" ссылку на листы, где расположены эти схемы.
6.3.4 В технических требованиях, помещаемых на схемах расположения элементов, приводят:
- значения усилий для расчета прикрепления элементов, не указанные на чертежах и в ведомости элементов;
- дополнительные сведения и технические требования по изготовлению и монтажу, отсутствующие в общих данных.
6.3.5 Примеры выполнения схем расположения элементов металлических конструкций приведены на рисунках Д.1 и Д.2 (приложение Д).
6.3.6 Пример заполнения ведомости элементов приведен на рисунке Ж.1 (приложение Ж).
6.4. Чертежи элементов металлических конструкций
6.4.1 Если на схемах расположения элементов металлических конструкций недостаточно выявлены конструктивные особенности элементов для разработки деталировочных чертежей марки КМД, то дополнительно выполняют чертежи элементов металлических конструкций.
6.4.2 На чертежах элементов металлических конструкций указывают:
- геометрические размеры;
- значения усилий;
- опорные реакции;
- отметки верха и низа элементов конструкции;
- размеры отдельных деталей;
- тип монтажных и заводских соединений;
- наименования или марки металла деталей, входящих в состав элемента;
- ссылки на узлы;
- технические требования.
6.4.3 В технических требованиях на чертежах элементов металлических конструкций приводят:
- значения усилий для расчета прикреплений, не указанные на чертеже;
- дополнительные требования к изготовлению и монтажу элементов;
- номера листов, на которых размещены схемы расположения элементов конструкций.
6.4.4 Размеры сварных швов и число крепежных изделий определяют при разработке деталировочных чертежей марки КМД.
6.4.5 Пример выполнения чертежа элемента металлической конструкции приведен на рисунке И.1 (приложение И).
6.5. Чертежи узлов металлических конструкций
6.5.1 На чертежах узлов металлических конструкций приводят принципиальные решения, обеспечивающие работу расчетной схемы здания или сооружения.
6.5.2 На чертежах узлов изображают элементы металлических конструкций, сходящиеся в узле, с указанием привязок к координационным осям, осям элементов, поверхностям деталей, отметок верха или низа элементов конструкции.
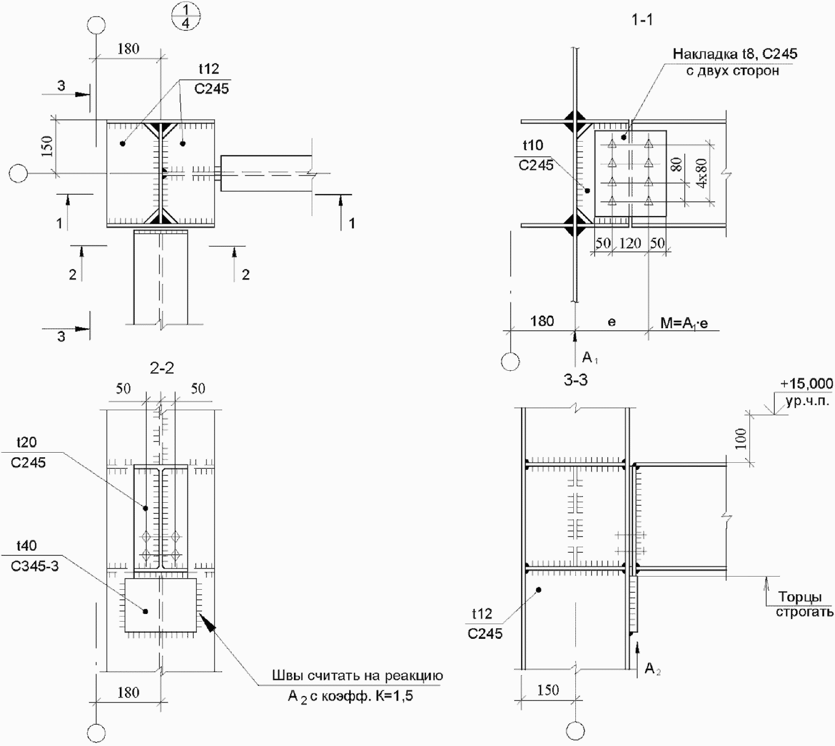
Пример выполнения чертежа узла металлических конструкций приведен на рисунке К.1 (приложение К).
6.5.3 На чертежах узлов изображают примыкающие элементы конструкций, не разрабатываемые в данных рабочих чертежах марки КМ, с указанием их размеров, привязок и других требований, необходимых для разработки деталировочных чертежей марки КМД.
Чертежи простейших узлов конструкций, не требующих пояснения, разрабатывают в деталировочных чертежах марки КМД.
6.5.4 На чертежах узлов указывают:
- значения усилий, действующих в элементах (если они не оговорены в ведомости элементов);
- привязки к координационным осям;
- толщины деталей;
- размеры сварных швов;
- типы, классы прочности, число, диаметры и шаги болтов или других крепежных изделий;
- требования к обрабатываемым поверхностям;
- сечения, наименования и марки металла деталей, не оговоренные в ведомости элементов;
- технические требования.
Примечание - Толщины деталей, размеры сварных швов, число, шаги и класс прочности болтов или других крепежных изделий не указывают, если они могут быть определены при разработке деталировочных чертежей марки КМД.
7. Спецификации металлопроката
7.1 Спецификацию металлопроката и изделий (СМ) составляют к схемам расположения элементов по форме 2, приведенной в приложении Л.
Формат листа, на котором выполняют СМ, принимают по ГОСТ 2.301 в зависимости от количества колонок в графе "Масса металла по элементам конструкций, т".
7.2 СМ составляют на каждый вид элементов конструкций без учета отходов на обработку и массы наплавленного металла.
7.3 Для объектов строительства с поэтапным выпуском комплектов рабочих чертежей марки КМ составляют СМ на каждый комплект чертежей.
7.4 На основе СМ составляют по форме 2 (см. приложение Л) сводную спецификацию металлопроката и изделий (СМС).
7.5 Первый лист спецификации СМ и СМС оформляют основной надписью по форме 3, последующие - по форме 6 ГОСТ 21.101-97.
7.6 СМ и СМС допускается объединять в отдельный сборник (ССМ).
Каждой СМ, СМС и ССМ присваивают обозначение, в состав которого включают базовое обозначение, установленное по действующей в организации системе, через дефис - марку основного комплекта чертежей и через точку - шифр и порядковый номер спецификации:
Пример - 2345-12-КМ.СМ16; 2345-12-КМ.СМС; 2345-12-КМ.ССМ,
где 2345-12 - базовое обозначение. В базовое обозначение включают, например, номер договора (контракта) и/или код объекта строительства, а также номер здания или сооружения по генеральному плану;
КМ - марка основного комплекта чертежей;
СМ16, СМС, ССМ - шифр и порядковый номер спецификаций.
7.7 Первым листом сборника спецификаций ССМ является титульный лист, выполняемый по форме 15 ГОСТ 21.101-97 на листе формата A4.
После титульного листа помещают содержание, которое выполняют в соответствии с ГОСТ 21.101.
Содержанию присваивают обозначение, состоящее из обозначения выпуска чертежей и через дефис шифра С.
Пример - 2345-12-КМ.ССМ-С
7.8 СМ и СМС записывают в разделе "Прилагаемые документы" ведомости ссылочных и прилагаемых документов, входящей в общие данные по рабочим чертежам. Если спецификации объединены в ССМ, то в разделе "Прилагаемые документы" записывают только сборник.
7.9 Примеры выполнения спецификации металлопроката приведены на рисунках М.1 и М.2 (приложение М).
7.10 Изменения в спецификации вносят в соответствии с ГОСТ 21.101 с учетом требований настоящего стандарта.
Сведения об изменениях, вносимых в спецификации, скомплектованные в виде сборника (ССМ), приводят в графе "Примечание" содержания сборника спецификаций.
В таблице изменений в основной надписи содержания сборника спецификаций не учитывают исправления, внесенные в содержание в связи с внесением изменений в СМ и СМС.
Таблицу регистрации изменений на титульном листе сборника не размещают.
Приложение А
(обязательное)
УСЛОВНЫЕ ИЗОБРАЖЕНИЯ И ОБОЗНАЧЕНИЯ КРЕПЕЖНЫХ ДЕТАЛЕЙ
И ШВОВ СВАРНЫХ СОЕДИНЕНИЙ
Таблица А.1
Условные изображения крепежных деталей и отверстий
Наименование
Условное изображение
1 Болт класса точности B (постоянный)
2 Болт временный
3 Болт высокопрочный
4 Болт (винт) самонарезающий
5 Заклепка комбинированная
6 Круглое отверстие
7 Овальное отверстие
a - расстояние между центрами
b - диаметр
Таблица А.2
Условные изображения и обозначения швов сварных соединений
Наименование
Изображение сварного шва
Размеры, мм
Заводского
Монтажного
1 Шов сварного соединения стыкового - сплошной
a) с видимой стороны
b) с невидимой стороны
2 Шов сварного соединения стыкового - прерывистый
a) с видимой стороны
b) с невидимой стороны
3 Шов сварного соединения углового, таврового или внахлестку - сплошной:
a) с видимой стороны
b) с невидимой стороны
4 Шов сварного соединения углового, таврового или внахлестку - прерывистый:
a) с видимой стороны
b) с невидимой стороны
5 Шов сварного соединения внахлестку, контактный, точечный
-
6 Шов сварного соединения электрозаклепочный внахлестку (с круглым отверстием)
-
kf - катет углового шва; l - длина свариваемого участка, a - расстояние между участками шва.
Приложение Б
(рекомендуемое)
ПРИМЕР ВЫПОЛНЕНИЯ НАГРУЗОК И ВОЗДЕЙСТВИЙ
НА МЕТАЛЛИЧЕСКИЕ КОНСТРУКЦИИ
Рисунок Б.1 - Пример выполнения нагрузок
на металлические конструкции
Рисунок Б.2 - Пример выполнения нагрузок
на металлические конструкции
Приложение В
(справочное)
ПРИМЕР ВЫПОЛНЕНИЯ НАГРУЗОК НА ФУНДАМЕНТЫ
Рисунок В.1 - Пример выполнения нагрузок на фундаменты
Приложение Г
(справочное)
ПРИМЕРЫ ВЫПОЛНЕНИЯ ЧЕРТЕЖЕЙ ОБЩЕГО ВИДА
Рисунок Г.1 - Пример выполнения чертежа
общего вида резервуара
Рисунок Г.2 - Пример выполнения чертежа общего вида мачты
Схема расположения колонн на отметке 0,000
Рисунок Г.3 - Пример выполнения схемы расположения колонн
производственного здания
Рисунок Г.4 - Пример выполнения разреза
производственного здания
Приложение Д
(справочное)
ПРИМЕРЫ ВЫПОЛНЕНИЯ СХЕМ ЭЛЕМЕНТОВ МЕТАЛЛИЧЕСКИХ КОНСТРУКЦИЙ
Схема расположения элементов покрытия по нижним поясам ферм
Рисунок Д.1 - Пример выполнения схемы
расположения элементов покрытия
Рисунок Д.2 - Пример выполнения разрезов
производственного здания
Приложение Е
(рекомендуемое)
ФОРМА 1 - ВЕДОМОСТЬ ЭЛЕМЕНТОВ
Форма 1
Ведомость элементов
Е.1 В ведомости элементов указывают:
- в графе "Марка элемента" указывают:
марку элемента по схеме расположения элементов или общему виду;
- в графе "Сечение" указывают:
"Эскиз" - расположение деталей сечения элемента, позиции деталей сечения, необходимые размеры,
"Поз." - порядковые номера позиций деталей,
"Состав" - сокращенное обозначение профилей, составляющих сечение, состоящее из условного обозначения профилей по ГОСТ 2.410 и номера или размеров профиля в соответствии со стандартами или техническими условиями на конкретный вид профилей;
- в графе "Усилие для прикрепления" указывают:
A - реакцию в опорном сечении элемента, кН,
N - продольное усилие в элементе, кН,
M - изгибающий момент в опорном сечении элемента, кН x м.
Допускается указывать дополнительные показатели (значения) усилий для прикрепления H, Mx, My, Mкр и пр. с обязательной их иллюстрацией на схемах или узлах;
- в графе "Наименование или марка металла" указывают наименование или марку металла для всего элемента, если все детали элемента выполнены из одного металла, и по позициям - если наименование или марки металла деталей различны;
- в графе "Примечание" указывают другие необходимые данные об элементе.
Е.2 Размеры граф таблицы, при необходимости, могут быть изменены по усмотрению разработчика.
Приложение Ж
(справочное)
ПРИМЕР ЗАПОЛНЕНИЯ ВЕДОМОСТИ ЭЛЕМЕНТОВ
Марка элемента
Сечение
Усилия для прикрепления
Наименование или марка металла
Примечание
Эскиз
Поз.
Состав
A, кН
N, кН
M, кН·м
ФС1
Сложный
Лист 12
Б1
1
I40Б1
200
-
-
С345-3
2
L100 x 8
-
-
-
С245
Б2
1
-900 x 8
300
-
800
С345-3
-200 x 16
К1
I40Ш1
140
-380
-410
С345-3
Рисунок Ж.1 - Пример заполнения ведомости элементов
Приложение И
(справочное)
ПРИМЕР ВЫПОЛНЕНИЯ ЧЕРТЕЖА ЭЛЕМЕНТА МЕТАЛЛИЧЕСКОЙ КОНСТРУКЦИИ
Подстропильная ферма ФП1
Фасонки t12, С255; кроме оговоренных
Рисунок И.1 - Пример выполнения чертежа
элемента металлической конструкции
Приложение К
(справочное)
ПРИМЕР ВЫПОЛНЕНИЯ ЧЕРТЕЖА УЗЛА МЕТАЛЛИЧЕСКИХ КОНСТРУКЦИЙ
Рисунок К.1 - Пример выполнения чертежа
узла металлической конструкции
Приложение Л
(рекомендуемое)
ФОРМА 2 - СПЕЦИФИКАЦИЯ МЕТАЛЛОПРОКАТА
Форма 2
Спецификация металлопроката
Л.1 В спецификациях СМ и СМС следует указывать:
- в графе "Наименование профиля, ГОСТ, ТУ" - наименование профиля в соответствии с примененными стандартами или техническими условиями;
- в графе "Наименование или марка металла, ГОСТ, ТУ" - наименование или марку металла и обозначения стандартов или технических условий, в соответствии с которыми производится поставка;
- в графе "Номер или размеры профиля, мм" - номер или размеры профиля в соответствии с условными обозначениями, приведенными в стандартах или технических условиях. Обозначение профилей записывают по возрастанию их номеров или размеров;
- в графе "Поз." - порядковые номера позиций, в которых указана масса металла по элементам конструкций;
- в графе "Масса металла по элементам конструкций, т" - массу по рабочим чертежам марки КМ, определяемую с точностью до одной десятой тонны;
- в графе "Общая масса, т" - массу по рабочим чертежам КМ, определяемую с точностью до одной десятой тонны.
По каждому наименованию профиля приводят строку "Итого", а для каждой марки металла - "Всего".
В конце каждой СМ и СМС приводят строки:
"Всего масса металла";
"В том числе по маркам или наименованиям".
Л.2 Размеры граф спецификации, при необходимости, могут быть изменены по усмотрению разработчика.
Приложение М
(справочное)
ПРИМЕР ЗАПОЛНЕНИЯ СПЕЦИФИКАЦИИ МЕТАЛЛОПРОКАТА
Рисунок М.1 - Пример заполнения спецификации металлопроката
Рисунок М.2 - Пример заполнения спецификации металлопроката