Скачать СП 35-112-2005 Дома-интернаты

Дата актуализации: 01.01.2021

СП 35-112-2005

Дома-интернаты

Обозначение: СП 35-112-2005
Обозначение англ: SP 35-112-2005
Статус:введен впервые
Название рус.:Дома-интернаты
Название англ.:Boarding houses
Дата добавления в базу:01.09.2013
Дата актуализации:01.01.2021
Дата введения:01.01.2006
Область применения:Свод правил распространяется на здания домов-интернатов для постоянного проживания ограничено трудоспособных и нетрудоспособных лиц старшего возраста и инвалидов, нуждающихся в периодической или постоянной посторонней помощи.
Оглавление:Введение
1 Область применения
2 Нормативные ссылки
3 Термины и определения
4 Основные положения
5 Участки домов-интернатов
6 Объемно-планировочные решения
7 Функциональные требования к проектированию основных групп помещений
8 Инженерно-техническое обеспечение и оборудование
Приложение А Перечень документов, на которые даны ссылки в СП
Приложение Б Термины и определения
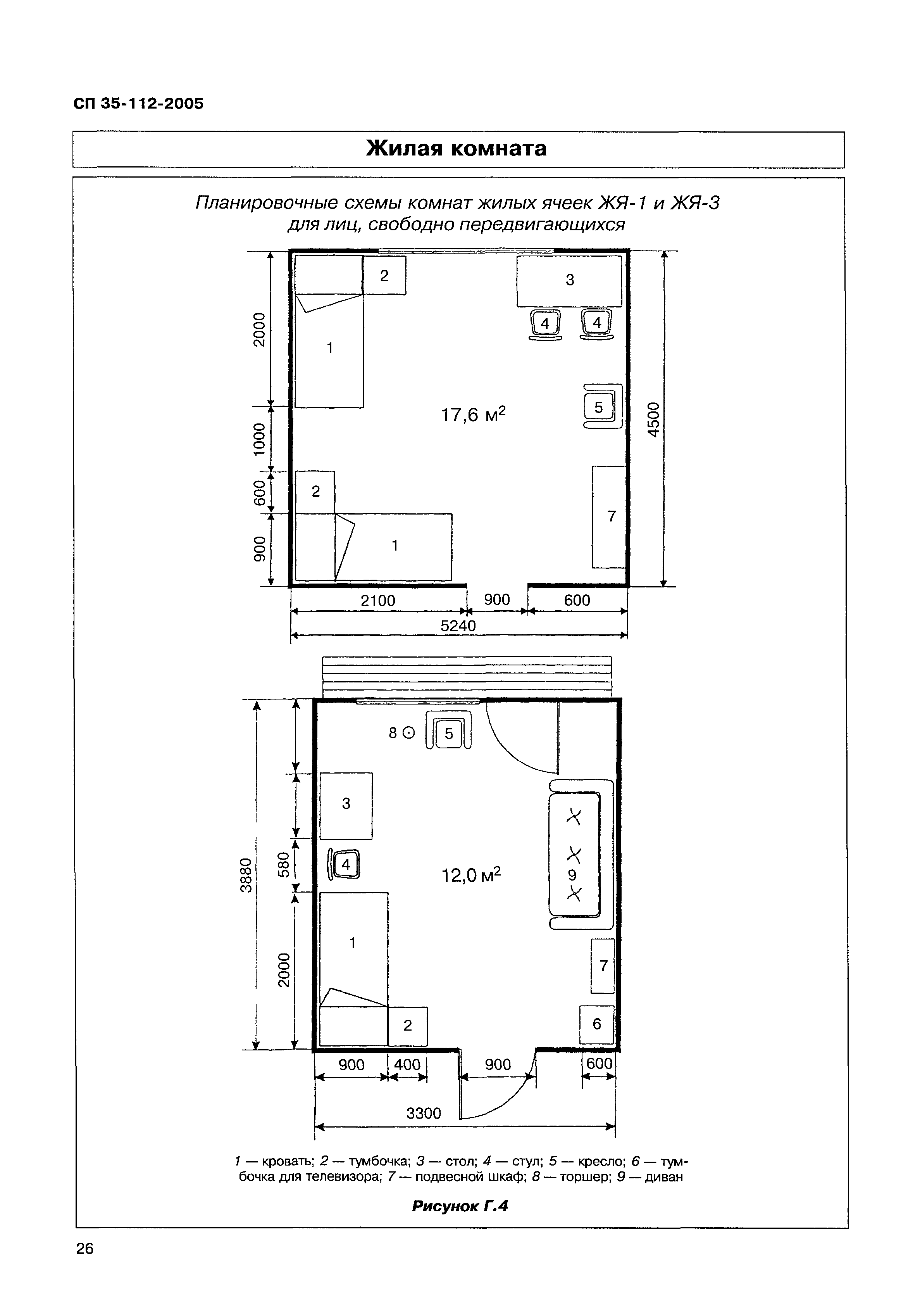
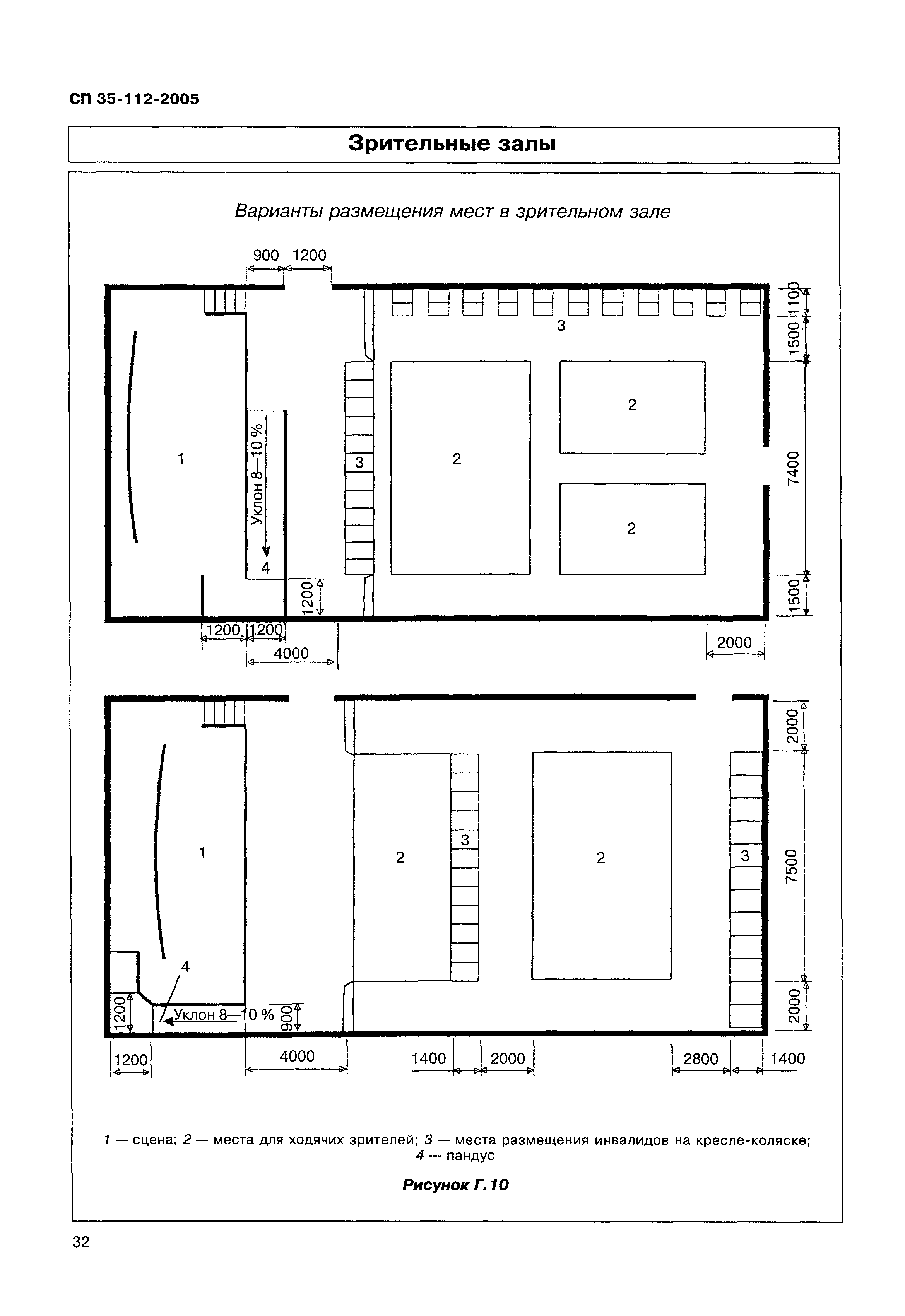
Приложение В Состав и площади основных групп помещений домов-интернатов
Приложение Г Иллюстрации
Разработан: ЗАО ЦНИИЭП им. Б.С. Мезенцева
ФГУП Институт общественных зданий
Утверждён:10.10.2003 ФГУП ИОЗ (12)
Принят:30.04.2004 Госстрой России (Russian Federation Gosstroy ЛБ-323/9)
Издан: ФГУП ЦПП (2006 г. )
Нормативные ссылки:
СП 35-112-2005СП 35-112-2005СП 35-112-2005СП 35-112-2005СП 35-112-2005СП 35-112-2005СП 35-112-2005СП 35-112-2005СП 35-112-2005СП 35-112-2005СП 35-112-2005СП 35-112-2005СП 35-112-2005СП 35-112-2005СП 35-112-2005СП 35-112-2005СП 35-112-2005СП 35-112-2005СП 35-112-2005СП 35-112-2005СП 35-112-2005СП 35-112-2005СП 35-112-2005СП 35-112-2005СП 35-112-2005СП 35-112-2005СП 35-112-2005СП 35-112-2005СП 35-112-2005СП 35-112-2005СП 35-112-2005СП 35-112-2005СП 35-112-2005СП 35-112-2005СП 35-112-2005СП 35-112-2005СП 35-112-2005СП 35-112-2005СП 35-112-2005СП 35-112-2005СП 35-112-2005СП 35-112-2005СП 35-112-2005СП 35-112-2005СП 35-112-2005