Скачать ГОСТ 5088-2005 Петли для оконных и дверных блоков. Технические условияДата актуализации: 01.01.2021
|
| Обозначение: | ГОСТ 5088-2005 |
| Обозначение англ: | GOST 5088-2005 |
| Статус: | действует |
| Название рус.: | Петли для оконных и дверных блоков. Технические условия |
| Название англ.: | Hingers for windows and doors. Specifications |
| Дата добавления в базу: | 01.09.2013 |
| Дата актуализации: | 01.01.2021 |
| Дата введения: | 01.01.2007 |
| Область применения: | Стандарт распространяется на металлические петли, применяемые в оконных и дверных блоках из различных материалов. Стандарт не распространяется на петли, устанавливаемые на оконные и дверные блоки специального назначения, в части дополнительных требований к пожаробезопасности и взломоустойчивости. |
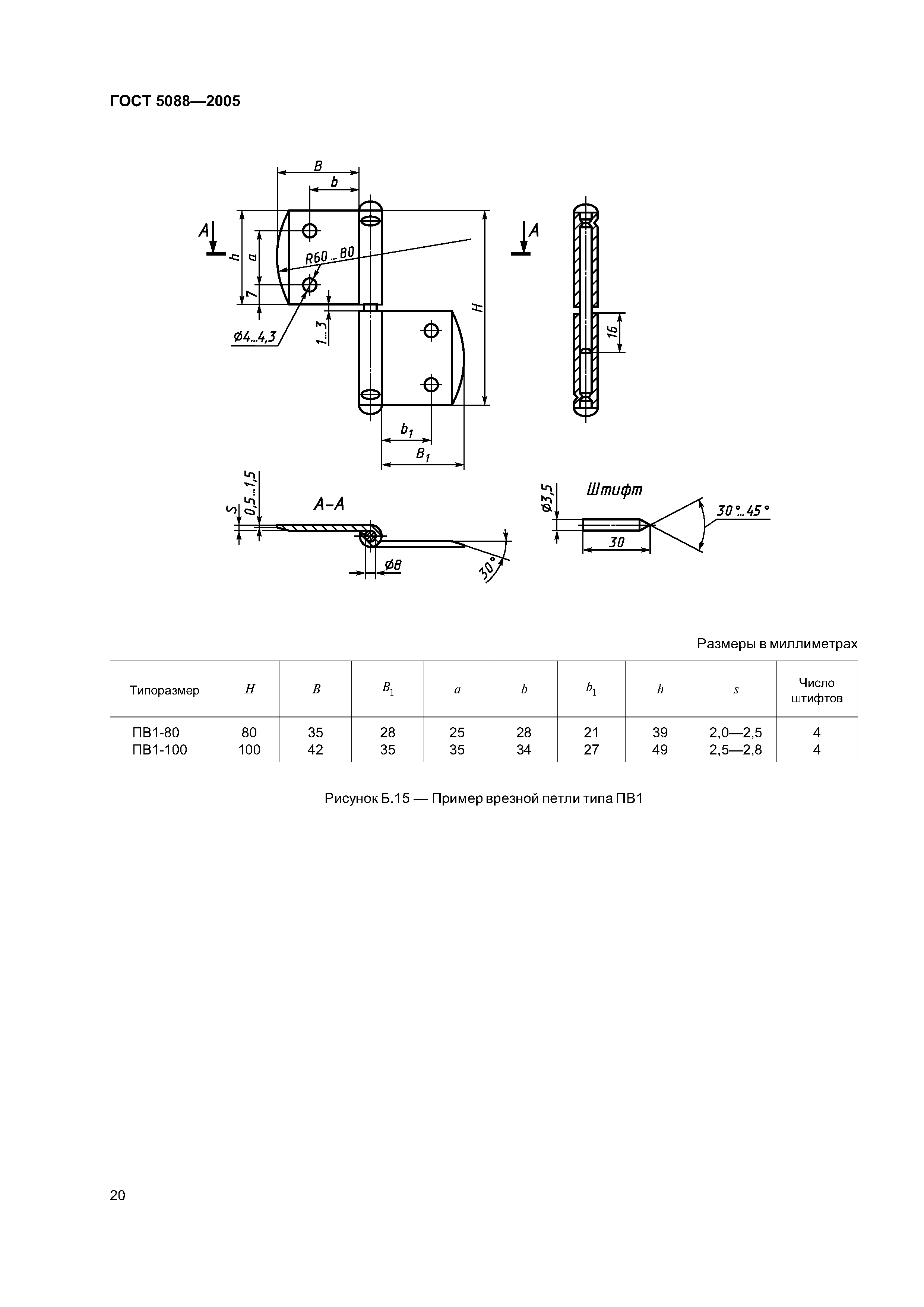
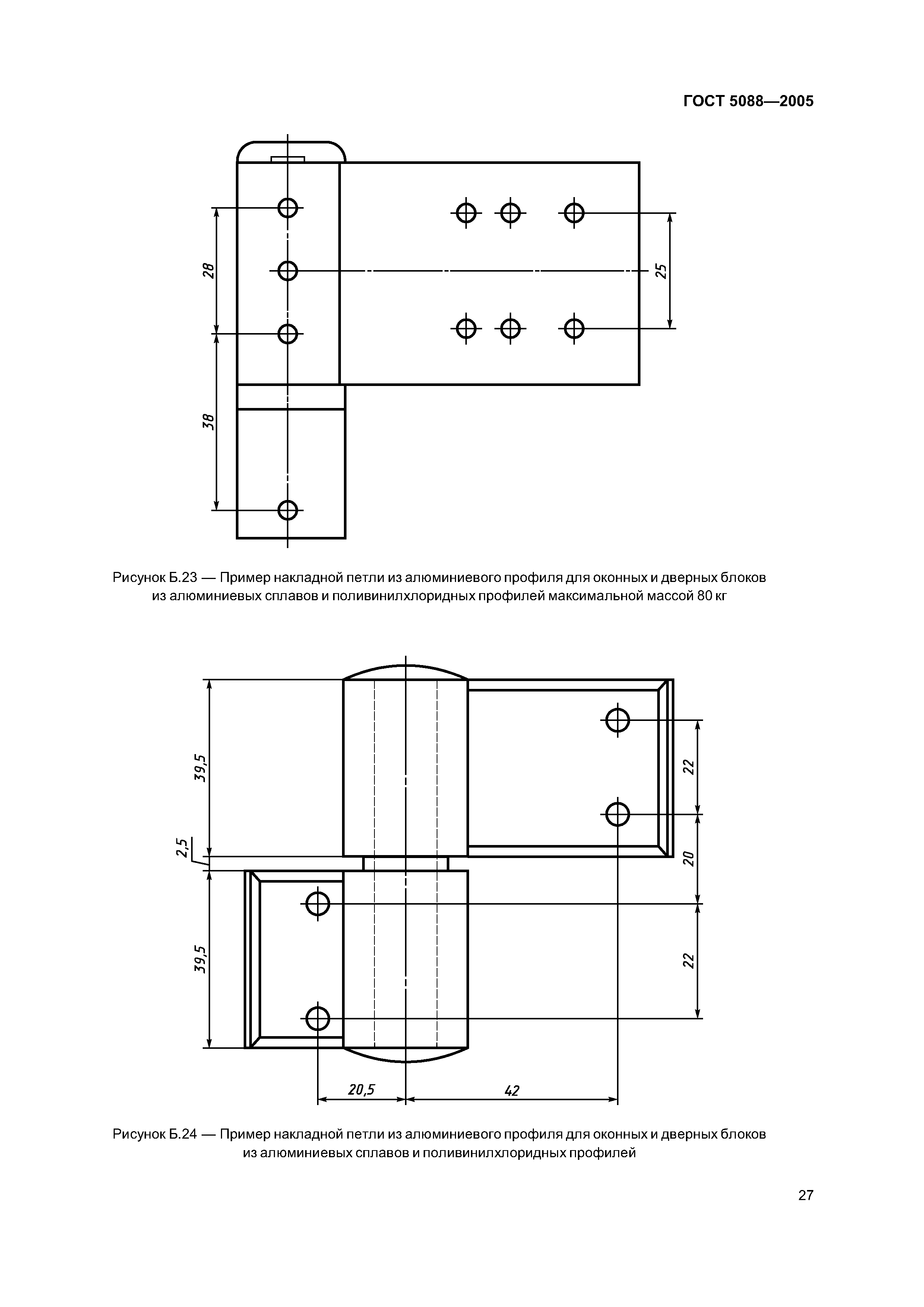
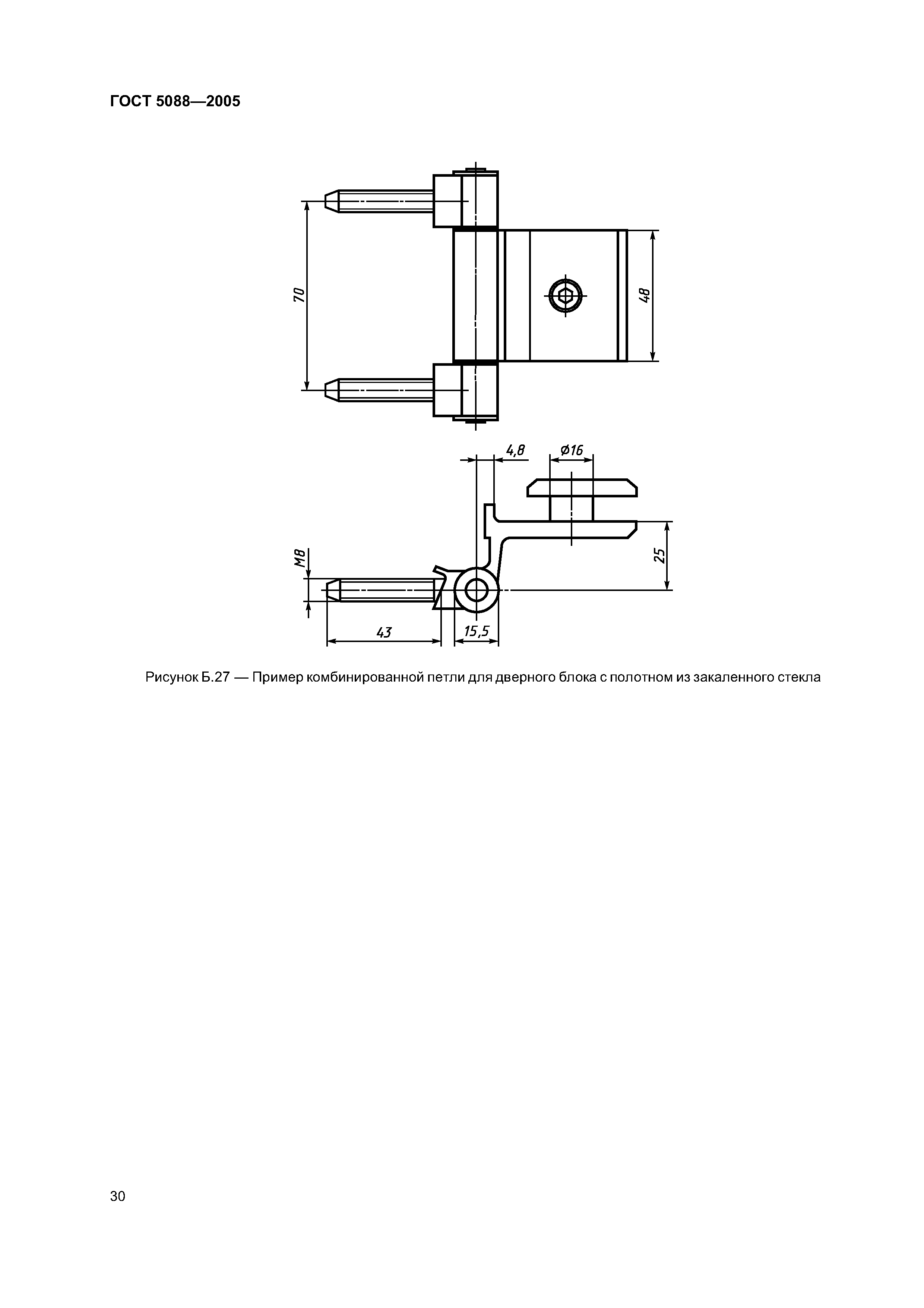
| Оглавление: | 1 Область применения 2 Нормативные ссылки 3 Термины и определения 4 Типы, размеры и условные обозначения 5 Технические требования 5.1 Общие положения 5.2 Размеры и предельные отклонения 5.3 Требования к конструкции 5.4 Требования к надежности и сопротивлению нагрузкам 5.5 Требования к материалам и комплектующим 5.6 Комплектность 5.7 Маркировка и упаковка 6 Правила приемки 7 Методы контроля 8 Транспортирование и хранение 9 Указания по монтажу и эксплуатации 10 Гарантии изготовителя Приложение А Основные детали петель Приложение Б Примеры петель и их комплектующие Приложение В Пример расчета и выбора типа ввертных петель для оконного блока из древесины |
| Разработан: | Центр по сертификации оконной и дверной техники ФГУП Центральное проектно-конструкторское и технологическое бюро Госстроя России Фирма Fiskars , Финляндия Фирма Dr. Hahn , Германия |
| Утверждён: | 13.10.2005 МНТКС (MNTKS 28) 24.04.2006 Федеральное агентство по техническому регулированию и метрологии (76-ст) |
| Издан: | Стандартинформ (2006 г. ) Стандартинформ (2007 г. ) |
| Заменяет собой: | |
| Нормативные ссылки: |
|


































