Скачать Серия 1.232.1-7 Выпуск 0-1. Материалы для проектирования стен многоэтажных зданий. Рабочие чертежиДата актуализации: 01.01.2021
|
| Обозначение: | Серия 1.232.1-7 |
| Обозначение англ: | Series 1.232.1-7 |
| Статус: | действует |
| Название рус.: | Выпуск 0-1. Материалы для проектирования стен многоэтажных зданий. Рабочие чертежи |
| Дата добавления в базу: | 01.09.2013 |
| Дата актуализации: | 01.01.2021 |
| Дата введения: | 01.09.1985 |
| Область применения: | В настоящем выпуске приведены материалы для проектирования самонесущих и навесных стен из легкобетонных трехслойных панелей на жестких связях для общественных многоэтажных каркасных зданий с высотами этажей 2.8; 3.3; 3.6 и 4.2 м |
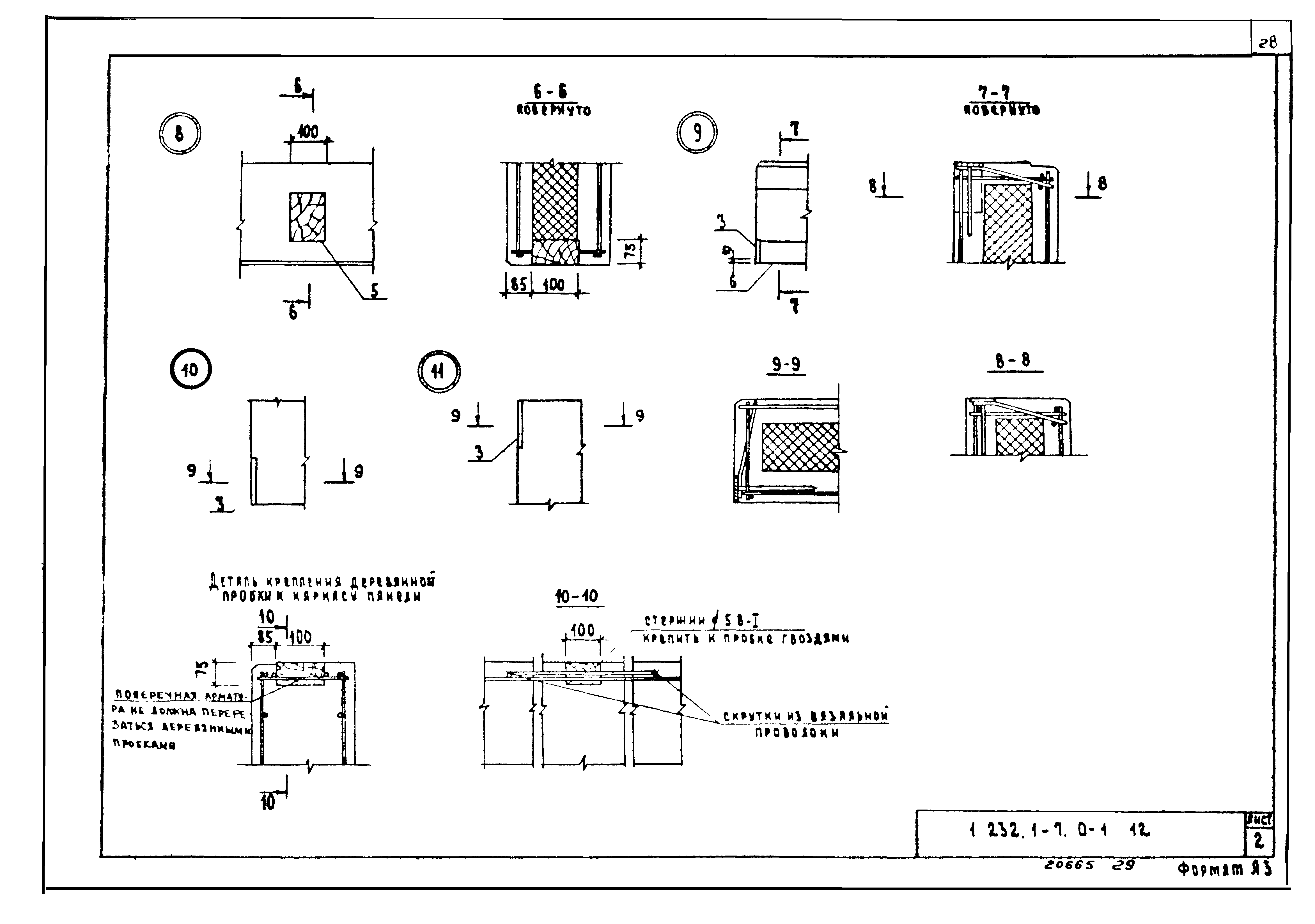
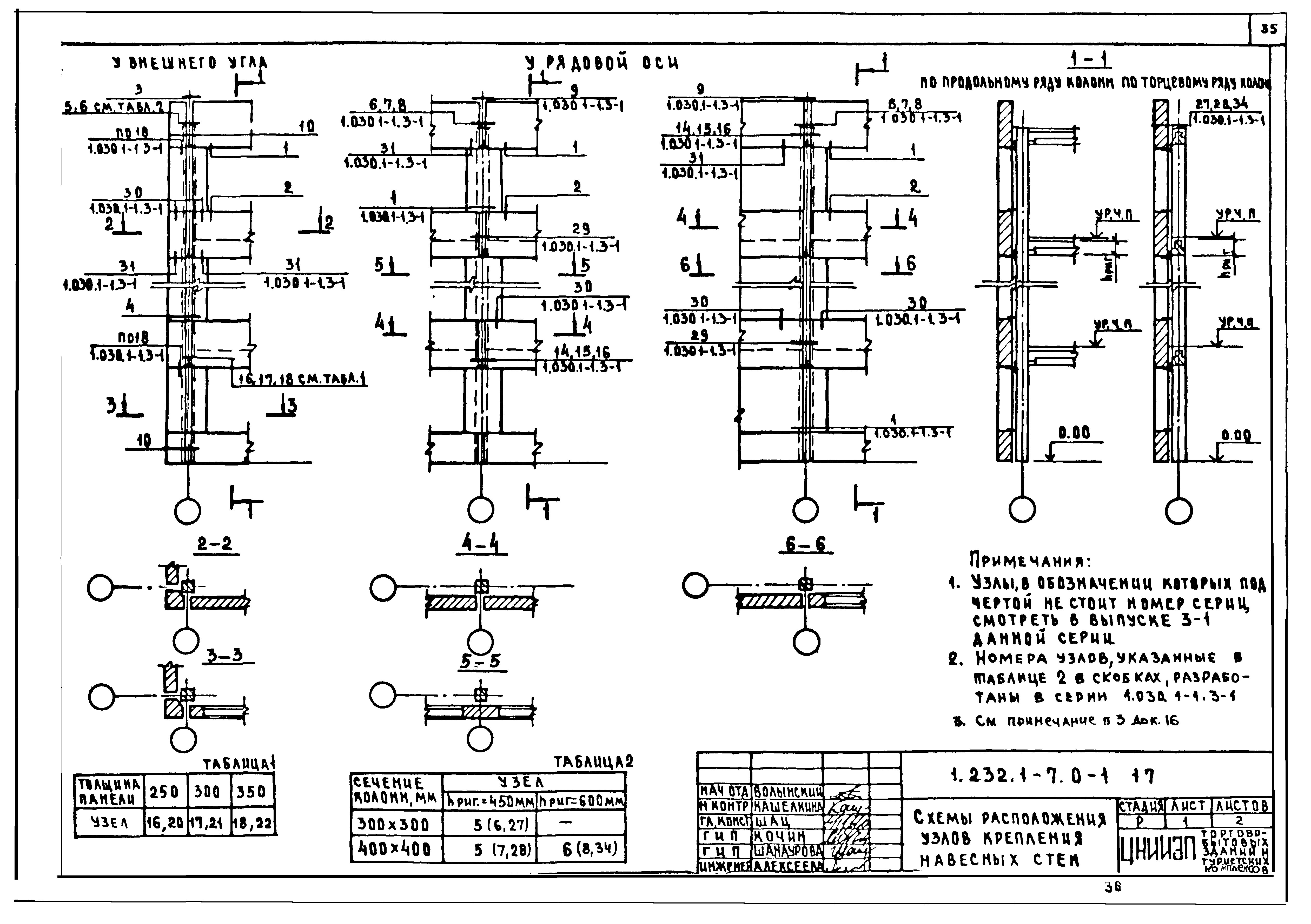
| Оглавление: | 1.232.1-7.0-1 01 ПЗ Указания по применению изделий 1.232.1-7.0-1 02 ПЗ Указания по расчету панелей 1.232.1-7.0-1 01 Примеры схем расположения закладных изделий в панелях марок ПСТ 30… 1.232.1-7.0-1 02 Примеры схем расположения закладных изделий в панелях марок ПСТ 60… 1.232.1-7.0-1 03 Примеры схем расположения закладных изделий в панелях марок ПСТ 30…; ПСТ 60… 1.232.1-7.0-1 04 Примеры схем расположения закладных изделий в панелях марок ПСТ 72… 1.232.1-7.0-1 05 Примеры схем расположения закладных изделий в панелях марок ПСТ 90… 1.232.1-7.0-1 06 Примеры схем расположения закладных изделий в панелях марок ПСТ 72…; ПСТ 90… 1.232.1-7.0-1 07 Примеры схем расположения закладных изделий в панелях марок 1 ПСТ 27…; 1 ПСТ 27,5… 1.232.1-7.0-1 08 Примеры схем расположения закладных изделий в панелях марок 1 ПСТ 57…; 1 ПСТ57,5… 1.232.1-7.0-1 09 Примеры схем расположения закладных изделий в панелях марок 1 ПСТ 27…; 1 ПСТ 27; 1 ПСТ 57…; 1 ПСТ57,5… 1.232.1-7.0-1 10 Примеры схем расположения закладных изделий в простеночных панелях марок 2 ПСТ…; 4 ПСТ… и в панелях для наружных углов зданий марок 3 ПСТ… 1.232.1-7.0-1 11 Спецификация закладных изделий на панели марок 2 ПСТ…; 3 ПСТ…; 4 ПСТ… 1.232.1-7.0-1 12 Узлы установки закладных изделий 1.232.1-7.0-1 13 Пример схемы расположения стеновых панелей для зданий с шагом колонн 6.0 м 1.232.1-7.0-1 14 Пример схемы расположения стеновых панелей для зданий с шагом колонн 9.0 м 1.232.1-7.0-1 15 Примеры схемы расположения карнизных и подкарнизных панелей самонесущих стен 1.232.1-7.0-1 16 Схемы расположения узлов крепления самонесущих стен 1.232.1-7.0-1 17 Схемы расположения узлов крепления навесных стен 1.232.1-7.0-1 18 Схемы расположения узлов крепления подкарнизных и карнизных панелей к колоннам 1.232.1-7.0-1 19 Пример доработки документации для выполнения изделия полной заводской готовности |
| Разработан: | НИИЖБ Госстроя СССР КиевЗНИИЭП ЦНИИЭП торгово-бытовых зданий и туристских комплексов |
| Утверждён: | 17.07.1985 Госгражданстрой (Gosgrazhdanstroy 209) |
| Нормативные ссылки: |
|






































