Скачать Серия 1.432.1-26 Выпуск 3. Узлы сопряжения окон, дверей и ворот с панелями. Рабочие чертежи

Дата актуализации: 01.01.2021

Серия 1.432.1-26

Выпуск 3. Узлы сопряжения окон, дверей и ворот с панелями. Рабочие чертежи

Обозначение: Серия 1.432.1-26
Обозначение англ: Series 1.432.1-26
Статус:не определен законодательством
Название рус.:Выпуск 3. Узлы сопряжения окон, дверей и ворот с панелями. Рабочие чертежи
Дата добавления в базу:01.09.2013
Дата актуализации:01.01.2021
Дата введения:01.03.1994
Дата окончания срока действия:30.06.2003
Область применения:Выпуск 3 включает рабочие чертежи узлов сопряжения окон, дверей и ворот с панелями данной серии (вып. 0; 1; 2) и серии 1.432.1-21 "Железобетонные трехслойные стеновые панели длиной 6 м для отапливаемых производственных зданий с высокой влажностью и агрессивной средой"
Оглавление:1.432.1-26.3-ТО Техническое описание
1.432.1-26.3-1 Фрагмент фасада 1… 6. Схемы расположения элементов крепления деревянных окон по ГОСТ 12506-81
1.432.1-26.3-2 Узел 1… 3. Устройство горизонтальных стыков деревянных окон с панелями
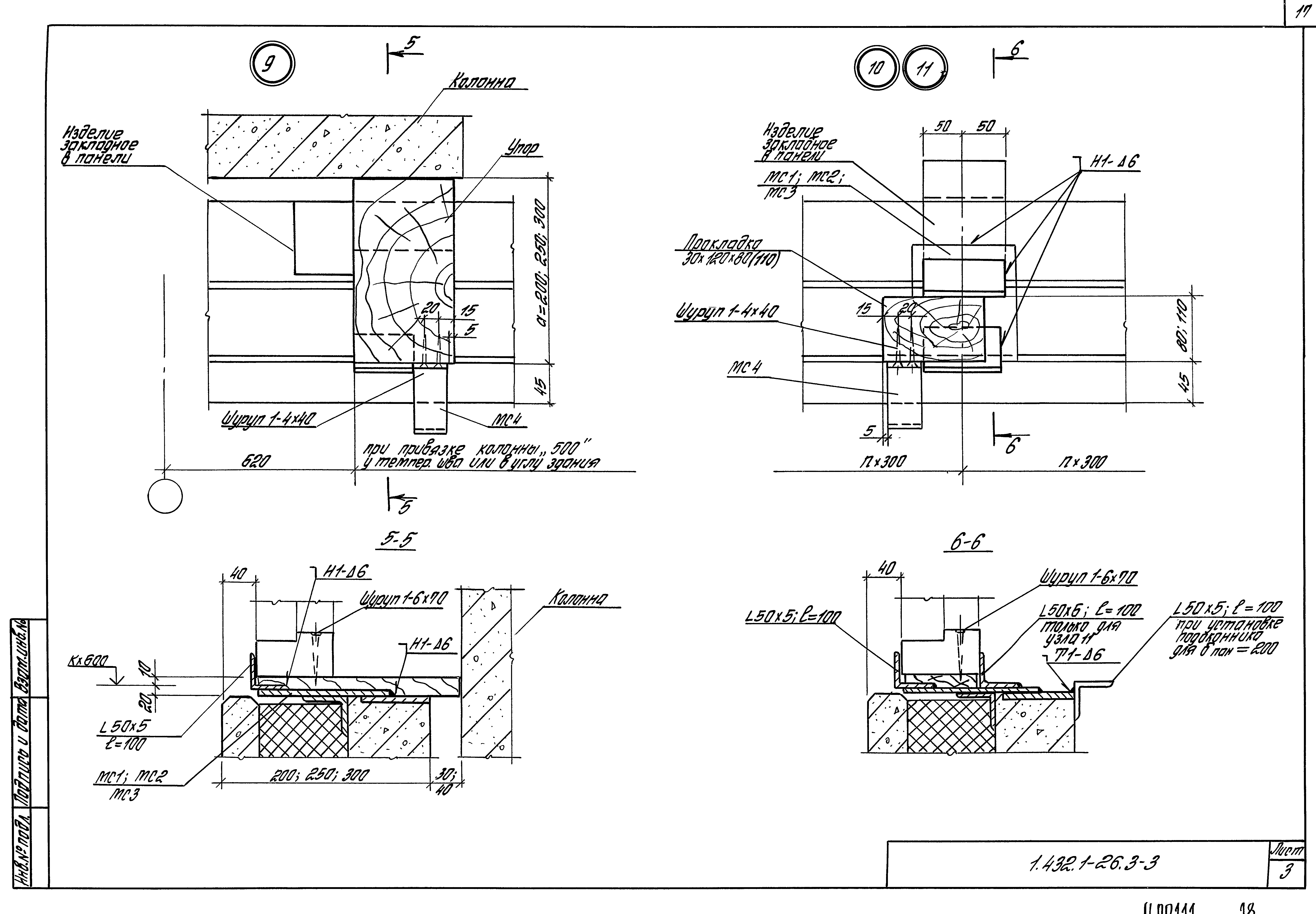
1.432.1-26.3-3 Узел 4… 18. Крепление деревянных окон к панелям
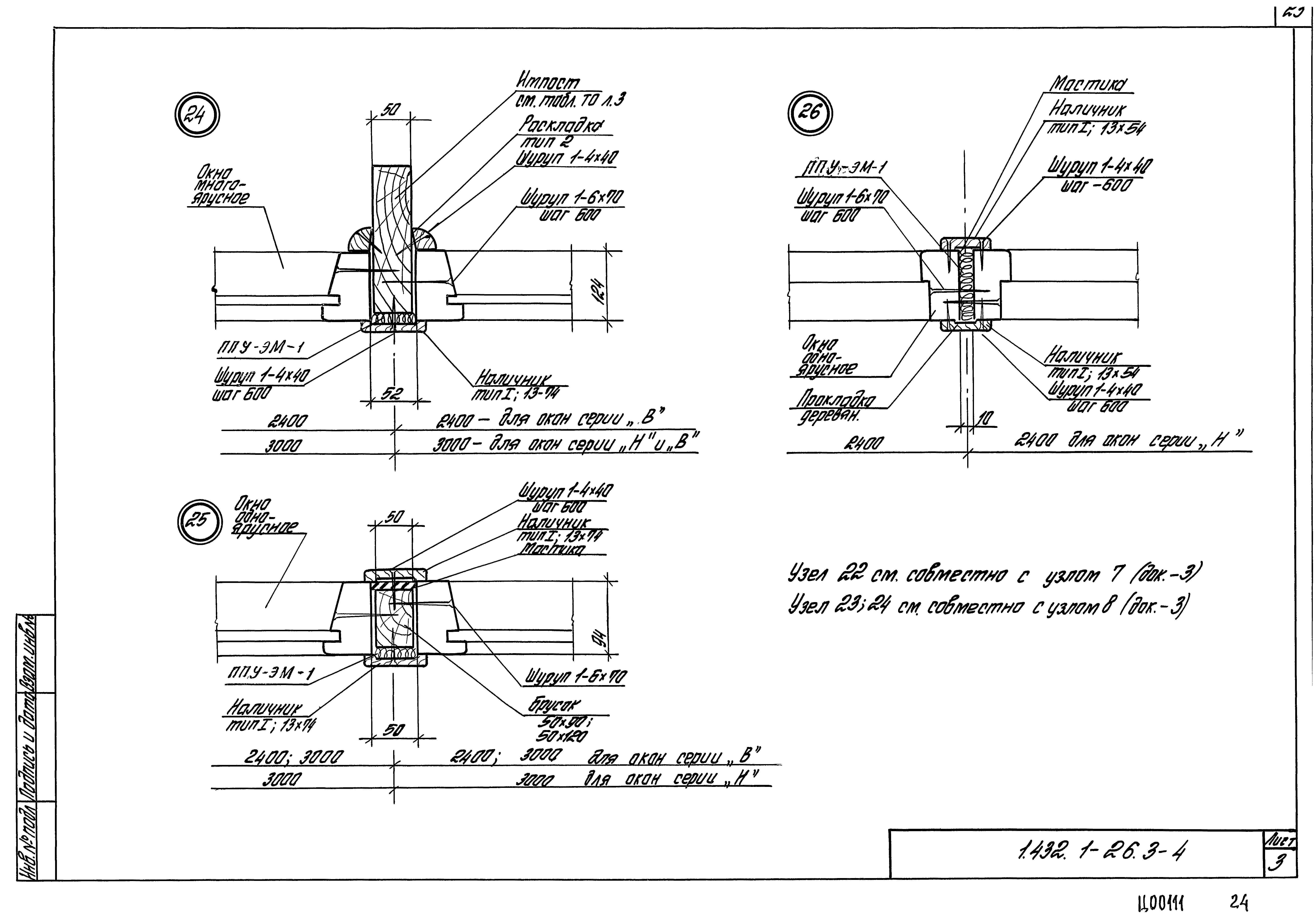
1.432.1-26.3-4 Узел 19… 26. Устройство вертикальных стыков деревянных окон с панелями
1.432.1-26.3-5 Фрагмент фасада 7…. 11. Схемы расположения элементов крепления стальных окон по серии 1.436.3-21
1.432.1-26.3-6 Узел 27…. 29. Устройство горизонтальных стыков по серии 1.436.3-21
1.432.1-26.3-7 Узел 30…. 40. Крепление окон с одинарными переплетами по серии 1.436.3-21
1.432.1-26.3-8 Узел 41; 42. Устройство вертикальных стыков окон с одинарными переплетами по серии 1.436.3-21
1.432.1-26.3-9 Узел 43… 45. Устройство горизонтальных стыков окон с одинарными переплетами по серии 1.436.3-21
1.432.1-26.3-10 Узел 46…. 53. Крепление окон с раздельными переплетами по серии 1.436.3-21
1.432.1-26.3-11 Узел 54. Устройство вертикальных стыков с раздельными переплетами по серии 1.436.3-21
1.432.1-26.3-12 Узел 55. Устройство вертикальных стыков окон с раздельными переплетами по серии 1.436.3-21
1.432.1-26.3-13 Фрагмент фасада 12; 13. Схемы расположения элементов крепления дверей по ГОСТ 24698-81
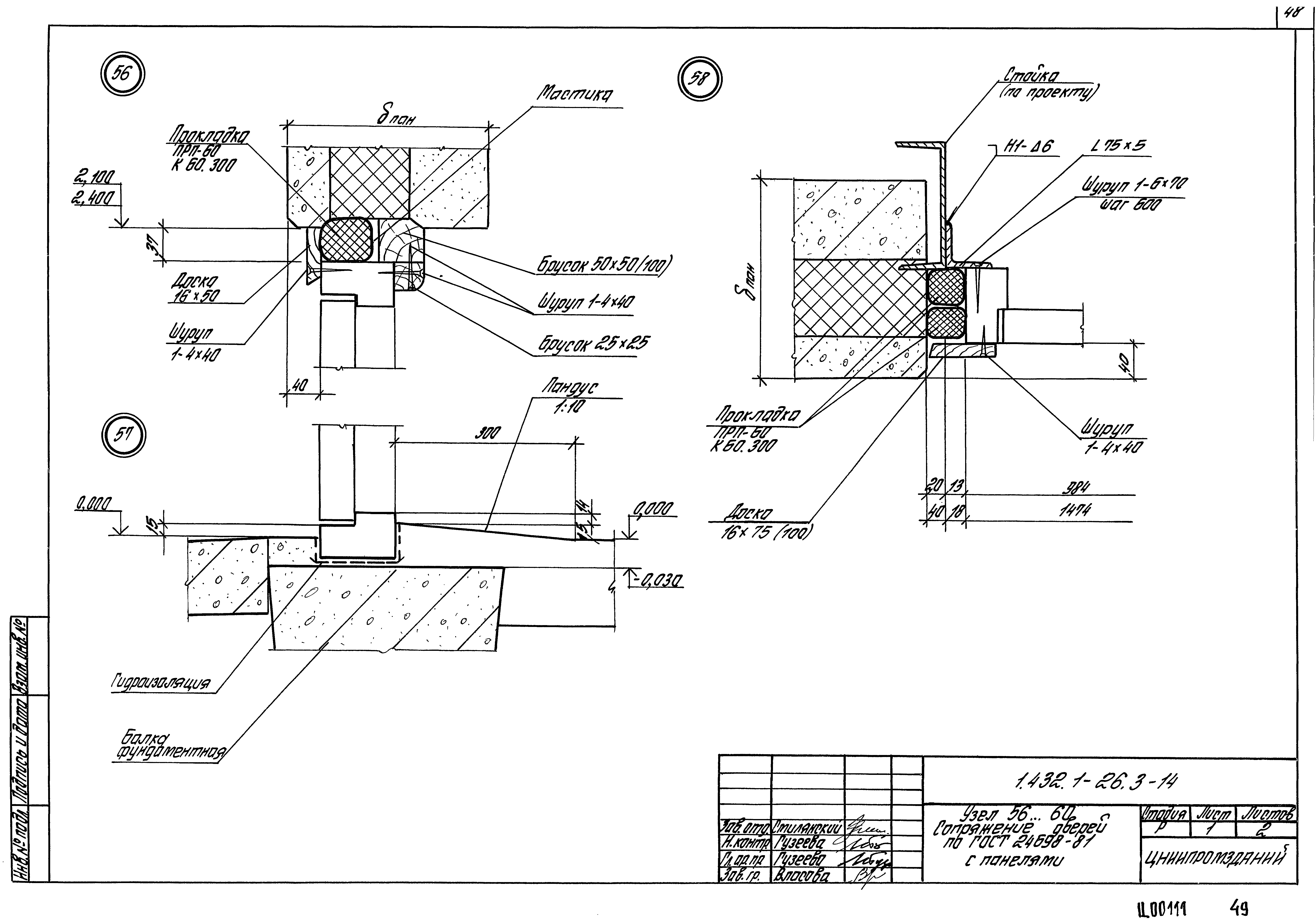
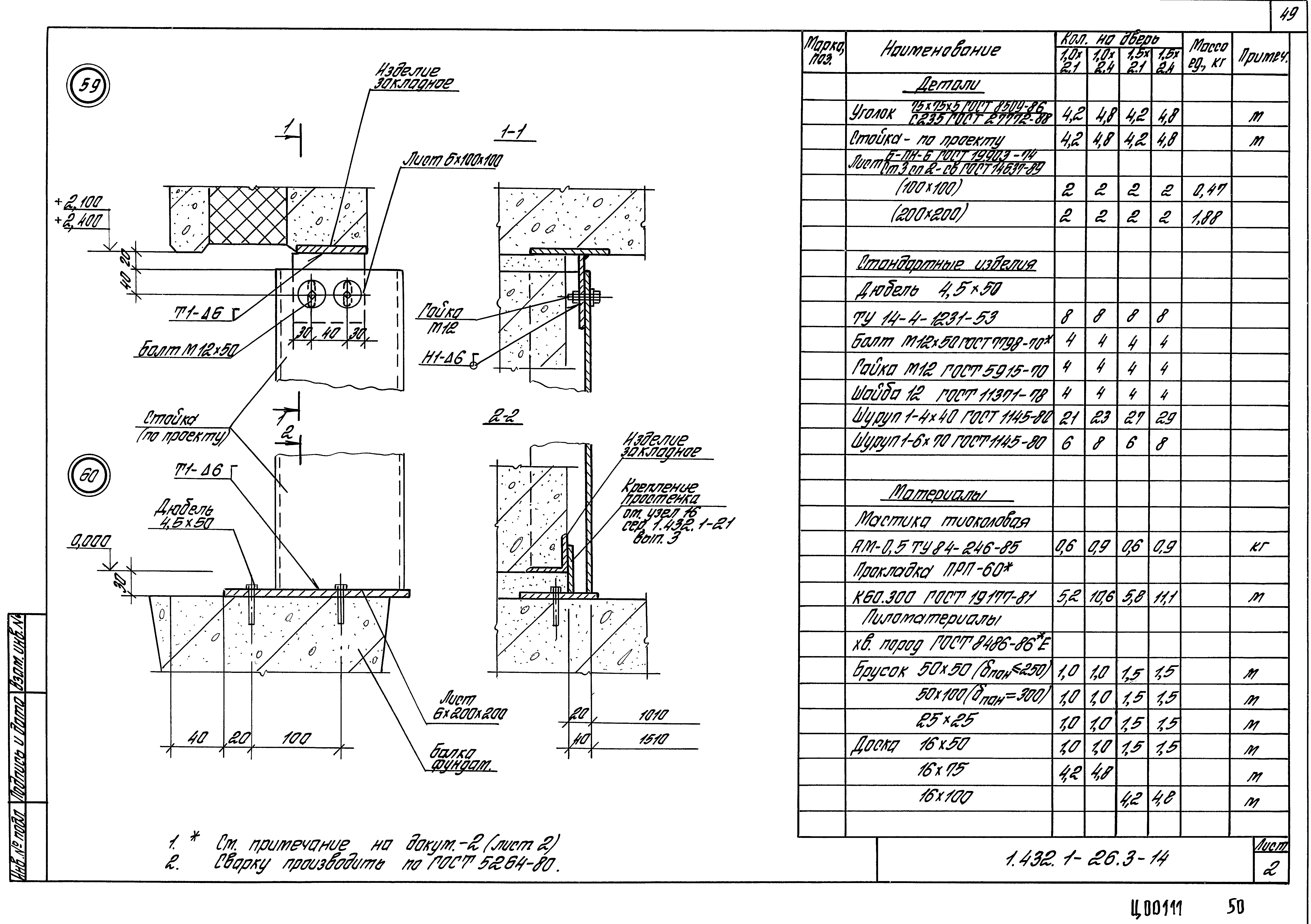
1.432.1-26.3-14 Узел 56… 60.
1.432.1-26.3-15 Фрагмент фасада 14… 17 с воротами по серии 1.435.2-28; 1.435.3-27; 1.435.9-26
1.432.1-26.3-16 Узел сопряжения ворот по серии 1.435.2-28; 1.435.3-27; 1.435.9-26
1.432.1-26.3-17 Кронштейн МС1… МС3; Костыль МС4
1.432.1-26.3-18 Слив С1; Нащельник Н1… Н3; Заглушка Г1
Разработан: АО ЦНИИпромзданий
Утверждён:30.08.1993 Главпроект Госстроя России (9-3-3/187)
Нормативные ссылки:
Серия 1.432.1-26Серия 1.432.1-26Серия 1.432.1-26Серия 1.432.1-26Серия 1.432.1-26Серия 1.432.1-26Серия 1.432.1-26Серия 1.432.1-26Серия 1.432.1-26Серия 1.432.1-26Серия 1.432.1-26Серия 1.432.1-26Серия 1.432.1-26Серия 1.432.1-26Серия 1.432.1-26Серия 1.432.1-26Серия 1.432.1-26Серия 1.432.1-26Серия 1.432.1-26Серия 1.432.1-26Серия 1.432.1-26Серия 1.432.1-26Серия 1.432.1-26Серия 1.432.1-26Серия 1.432.1-26Серия 1.432.1-26Серия 1.432.1-26Серия 1.432.1-26Серия 1.432.1-26Серия 1.432.1-26Серия 1.432.1-26Серия 1.432.1-26Серия 1.432.1-26Серия 1.432.1-26Серия 1.432.1-26Серия 1.432.1-26Серия 1.432.1-26Серия 1.432.1-26Серия 1.432.1-26Серия 1.432.1-26Серия 1.432.1-26Серия 1.432.1-26Серия 1.432.1-26Серия 1.432.1-26Серия 1.432.1-26Серия 1.432.1-26Серия 1.432.1-26Серия 1.432.1-26Серия 1.432.1-26Серия 1.432.1-26Серия 1.432.1-26Серия 1.432.1-26Серия 1.432.1-26Серия 1.432.1-26Серия 1.432.1-26Серия 1.432.1-26Серия 1.432.1-26Серия 1.432.1-26Серия 1.432.1-26Серия 1.432.1-26Серия 1.432.1-26Серия 1.432.1-26Серия 1.432.1-26