Скачать Серия 1.800.9-8 Выпуск 0. Указания по применению. Узлы. Рабочие чертежи
Дата актуализации: 01.01.2021
Серия 1.800.9-8
Выпуск 0. Указания по применению. Узлы. Рабочие чертежи
Обозначение:
Серия 1.800.9-8
Обозначение англ:
Series 1.800.9-8
Статус:
не определен законодательством
Название рус.:
Выпуск 0. Указания по применению. Узлы. Рабочие чертежи
Дата добавления в базу:
01.02.2020
Дата актуализации:
01.01.2021
Дата введения:
26.08.1985
Дата окончания срока действия:
30.06.2003
Разработан:
ЦНИИпромзданий
Утверждён:
26.08.1985 Госстрой СССР (Государственный комитет Совета Министров СССР по делам строительства)
(USSR Gosstroy 2/3-424)
Издан:
ГУП ЦПП
(CPP GUP 1999 г. )
Нормативные ссылки:
СНиП 2.01.01-82 «Строительная климатология и геофизика»
ГОСТ 24379.1-80 «Болты фундаментные. Конструкция и размеры»
ГОСТ 9573-82 «Плиты теплоизоляционные из минеральной ваты на синтетическом связующем. Технические условия»
ГОСТ 103-76 «Полоса стальная горячекатаная. Сортамент»
ГОСТ 4028-63 «Гвозди строительные. Конструкция и размеры»
ГОСТ 5915-70 «Гайки шестигранные класса точности В. Конструкция и размеры»
ГОСТ 7798-70 «Болты с шестигранной головкой класса точности В. Конструкция и размеры»
ГОСТ 11371-78 «Шайбы. Технические условия»
ГОСТ 1145-80 «Шурупы с потайной головкой. Конструкция и размеры»
ГОСТ 19771-74 «Уголки стальные гнутые равнополочные. Сортамент»
ГОСТ 19772-74 «Уголки стальные гнутые неравнополочные. Сортамент»
ГОСТ 24222-80 «Пленка и лента из фторопласта-4. Технические условия»
ГОСТ 8486-66 «Пиломатериалы хвойных пород»
СНиП II-6-74 «Нагрузки и воздействия»
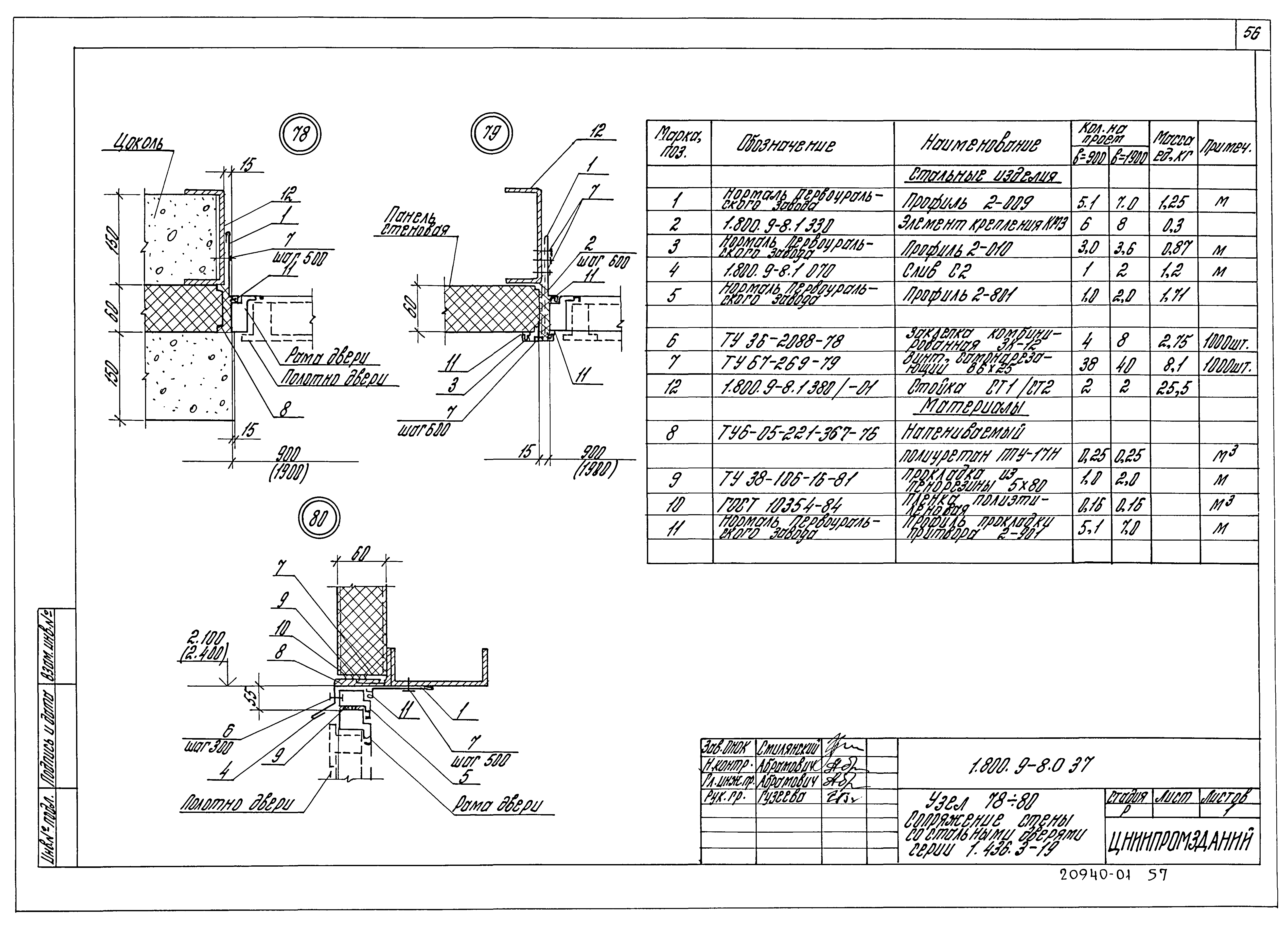
Серия 1.436.3-19 «Двери с применением гнутых профилей из тонколистовой стали»
Серия 2.435-6 «Противопожарные двери и ворота промышленных зданий»
ТУ 67-269-79 «Винт самонарезающий. Технические условия»
Серия 1.436.2-15 «Окна с переплетами из спаренных прямоугольных стальных труб и механизмы открывания»
ГОСТ 15588-70 «Плиты теплоизоляционные из пенопласта полистирольного»