Скачать Серия 1.432-13 Выпуск 3. Стальные конструкции фахверка стен. Рабочие чертежи КМДата актуализации: 01.01.2021
|
| Обозначение: | Серия 1.432-13 |
| Обозначение англ: | Series 1.432-13 |
| Статус: | не определен законодательством |
| Название рус.: | Выпуск 3. Стальные конструкции фахверка стен. Рабочие чертежи КМ |
| Дата добавления в базу: | 01.09.2013 |
| Дата актуализации: | 01.01.2021 |
| Дата введения: | 17.11.1977 |
| Дата окончания срока действия: | 30.06.2003 |
| Область применения: | Настоящий выпуск содержит рабочие чертежи КМ стальных ригелей, столиков для их крепления и насадок фахверка стен из асбестоцементных панелей одноэтажных унифицированных зданий с каркасами покрытий типа "Берлин" (шифр 9389 КМ), "Плауэн" (шифр 10107 КМ), с фермами из трубчатых профилей (серия 1.460-5), а также со структурами типа ЦНИИСК (серия 1.460-6) |
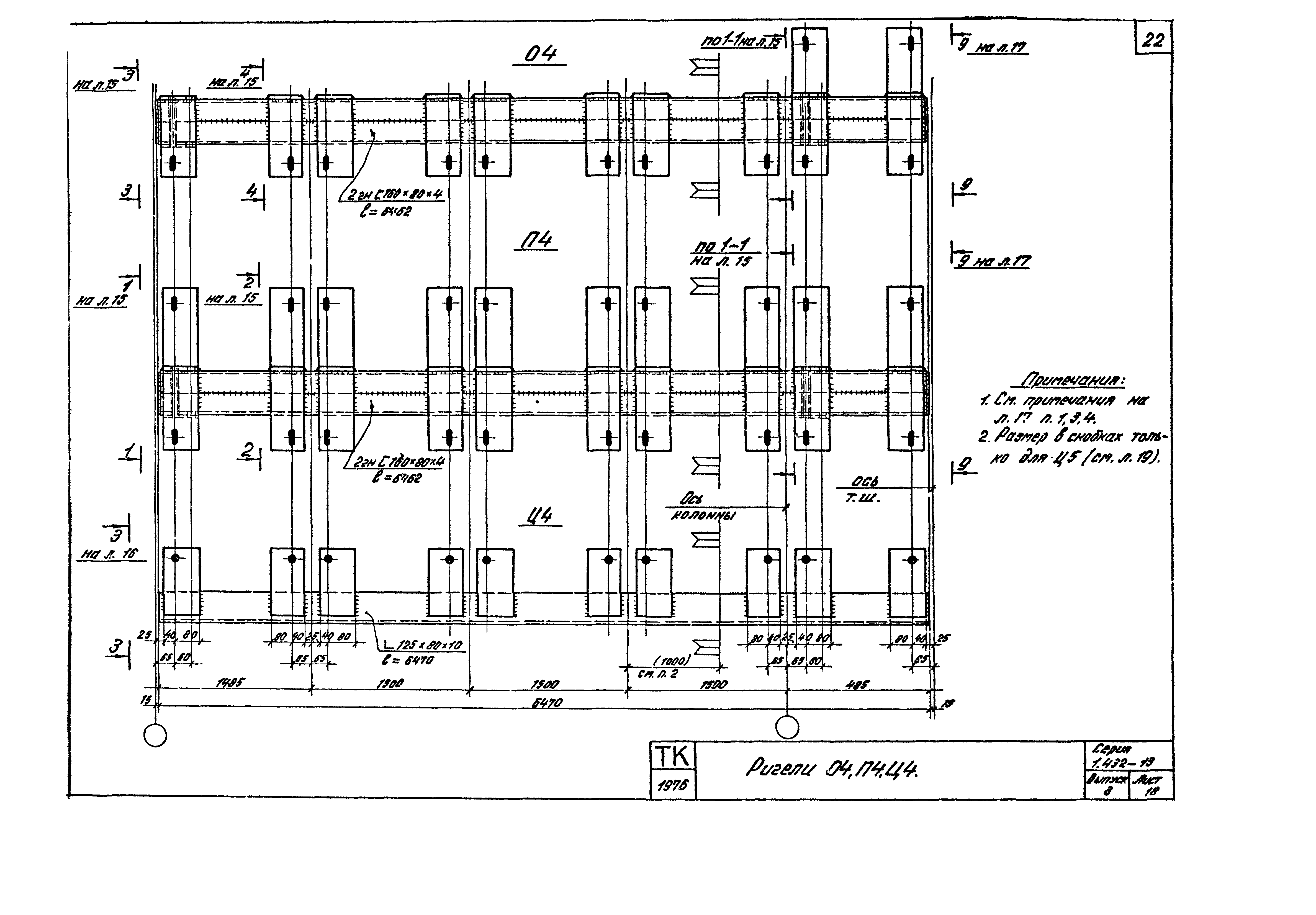
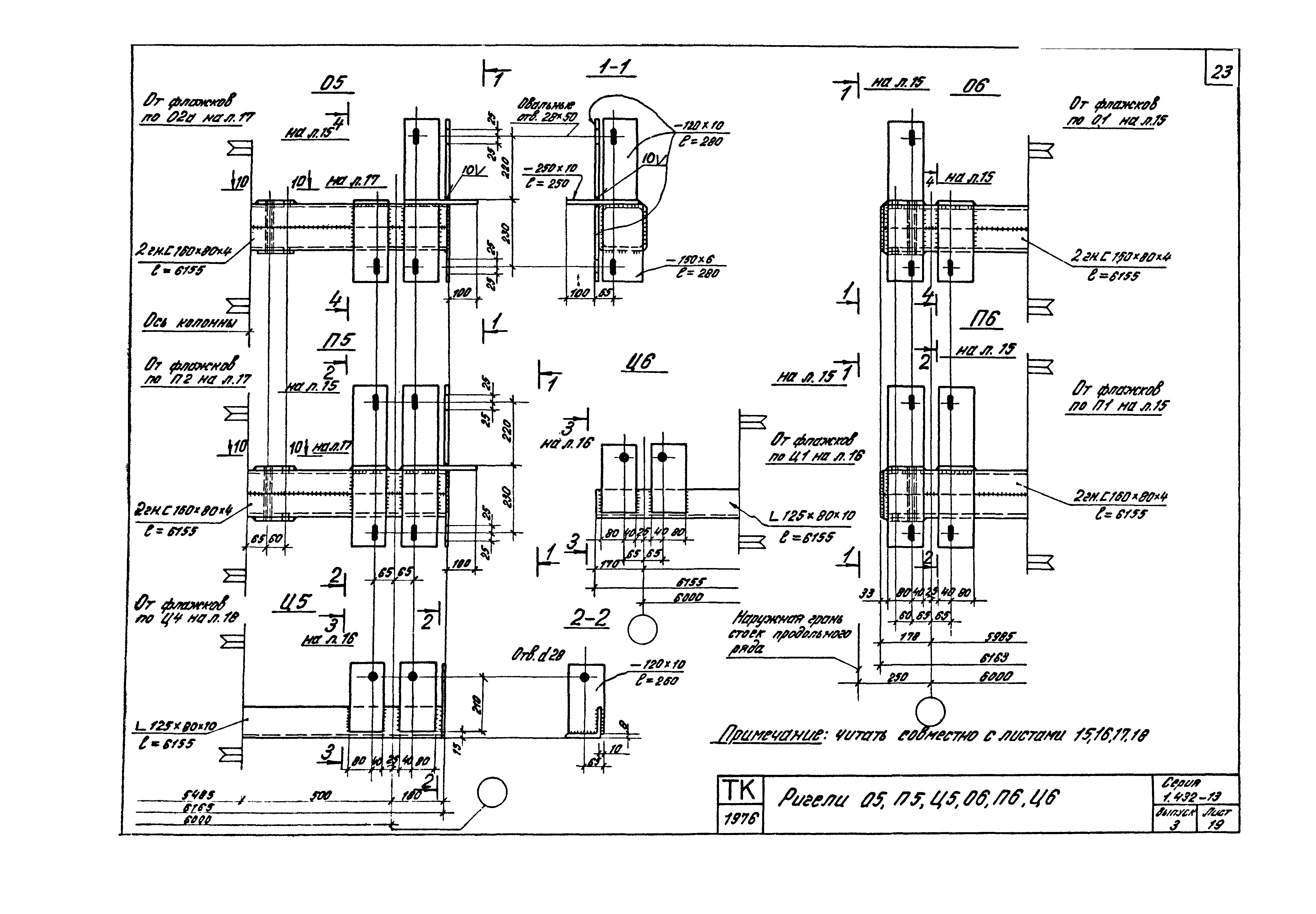
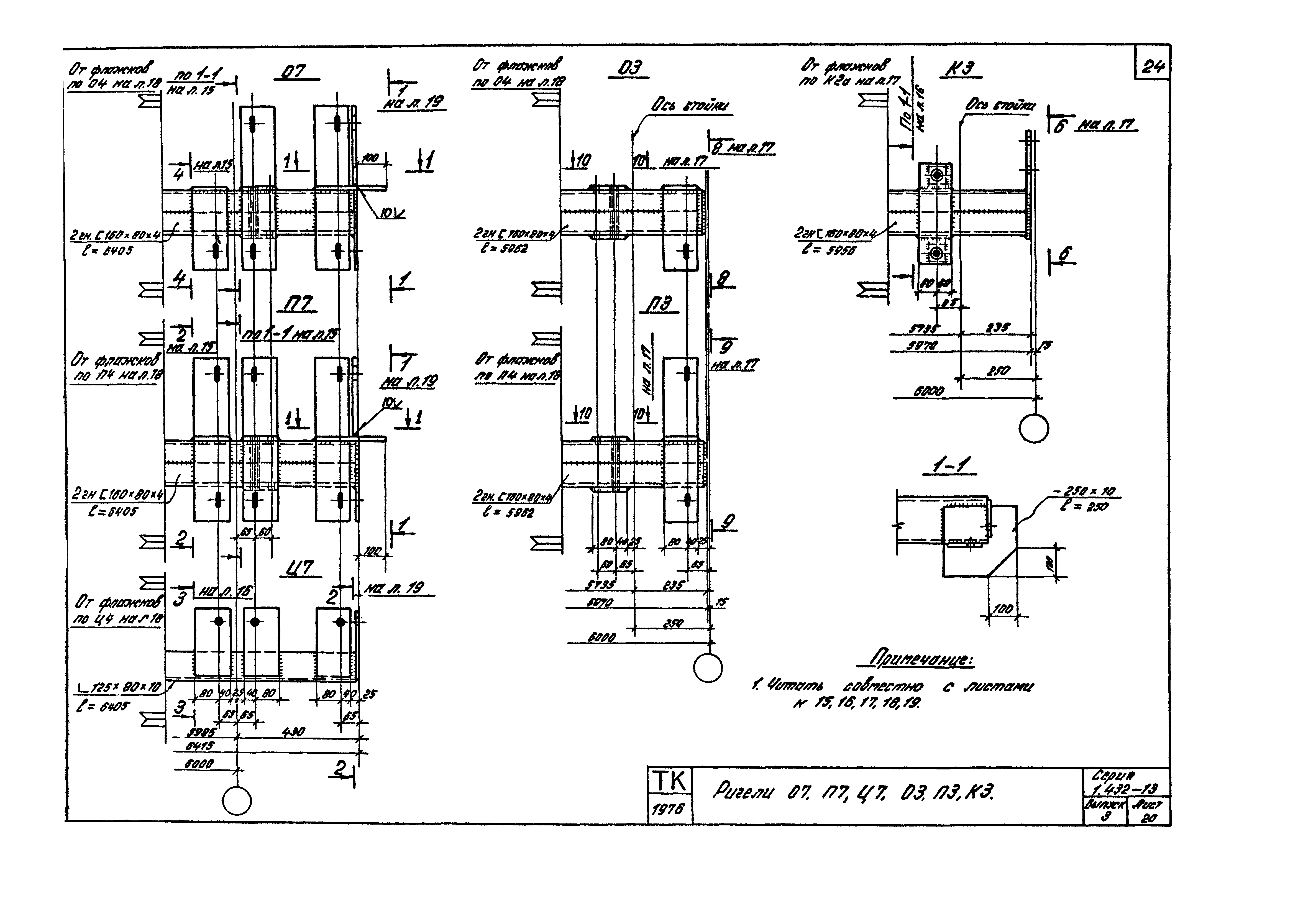
| Оглавление: | Заглавный лист Содержание альбома Пояснительная записка План температурного блока и отметки верха колонн, фахверковых стоек и стен для зданий с покрытием структурой типа ЦНИИСК Маркировка ригелей и насадок на фасадах для зданий с покрытием структурой типа ЦНИИСК План температурного блока и отметки верха колонн, фахверковых стоек и стен для зданий с покрытием структурой типа "Берлин" Маркировка ригелей и насадок на фасадах для зданий с покрытием структурой типа "Берлин" План температурного блока и отметки верха рам, фахверковых стоек и стен для зданий с рамами типа "Плауэн" Маркировка ригелей и насадок на фасадах для зданий с рамами типа "Плауэн" План температурного блока и отметки верха ферм, фахверковых стоек и стен для зданий с покрытием стропильными фермами из труб Маркировка ригелей и насадок на фасадах для зданий с покрытием стропильными фермами их труб Разбивка ригелей марок К, О, П, В, Ц и насадок марок Н по разрезу стен зданий Узлы опирания ригелей марок О, П, В на колонны, рамы, стойки фахверка. Столик С1 Узлы опирания ригелей марок О, П, В на колонны, рамы, стойки фахверка. Столик С2 Узлы опирания ригелей марок К на колонны, рамы, стойки фахверка. Столики С3, С3Та, С3Тб Узлы опирания ригелей марок О, П, В на колонны и рамы в температурных швах. Столики С1Та, С1Тб, С2Т, С4 Ключ для выбора марок ригелей, насадок и столиков Ригелей П1, 01 Ригели К1, Ц1, 01 Ригели К2а, К4, К02а, П2, 02а Ригели 04, П4, Ц4 Ригели 05, П5, Ц5, 06, П6, Ц6 Ригели 07, П7, Ц7, 03, П3, К3 Ригели К5, К7. Таблица расхода стали на ригели и столики. Узел крепления насадок Н3, Н6, Н7 Насадки Н1-Н7. Таблица расхода стали на насадки. |
| Разработан: | ЦНИИпромзданий |
| Утверждён: | 17.11.1977 Госстрой СССР (Государственный комитет Совета Министров СССР по делам строительства) (USSR Gosstroy 74) |
| Нормативные ссылки: |
|


























