Скачать Шифр 10107КМ Стальные конструкции типа Плауэн одноэтажных производственных зданий с применением легких ограждающих конструкций. Чертежи КМ. Материалы для проектированияДата актуализации: 01.01.2021
|
| Обозначение: | Шифр 10107КМ |
| Обозначение англ: | 10107КМ |
| Статус: | не действует |
| Название рус.: | Стальные конструкции типа "Плауэн" одноэтажных производственных зданий с применением легких ограждающих конструкций. Чертежи КМ. Материалы для проектирования |
| Дата добавления в базу: | 01.09.2013 |
| Дата актуализации: | 01.01.2021 |
| Дата окончания срока действия: | 01.05.1985 |
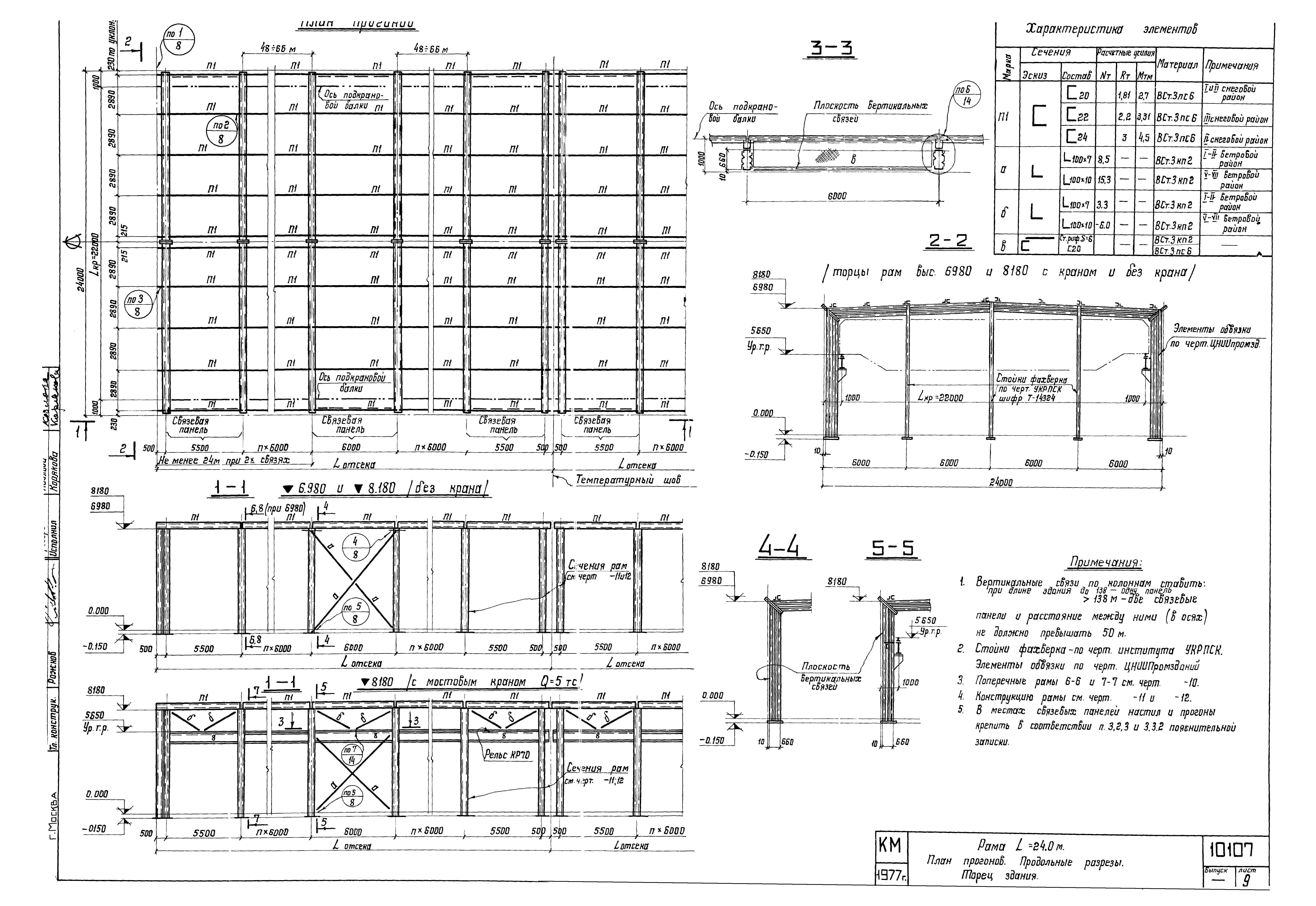
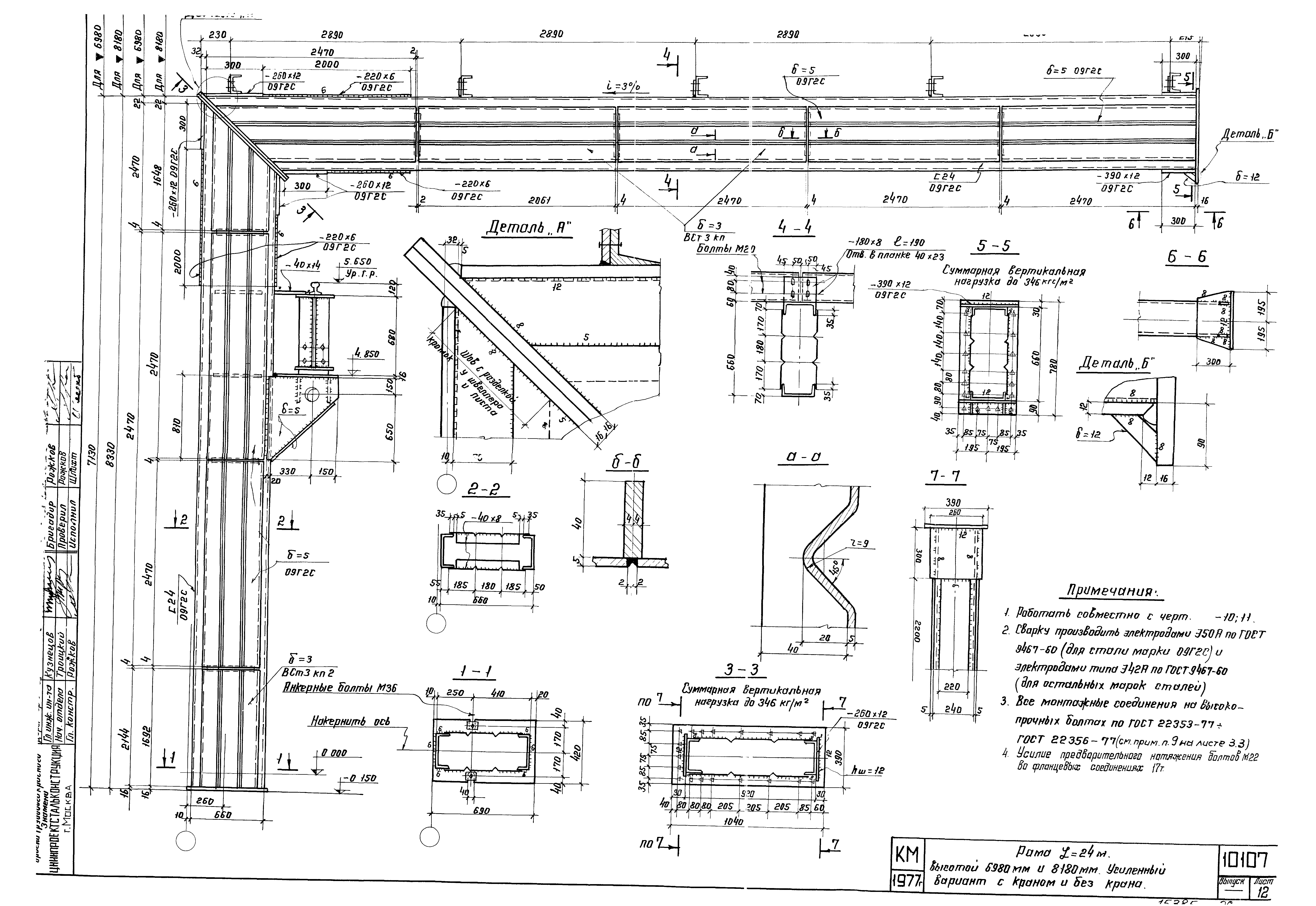
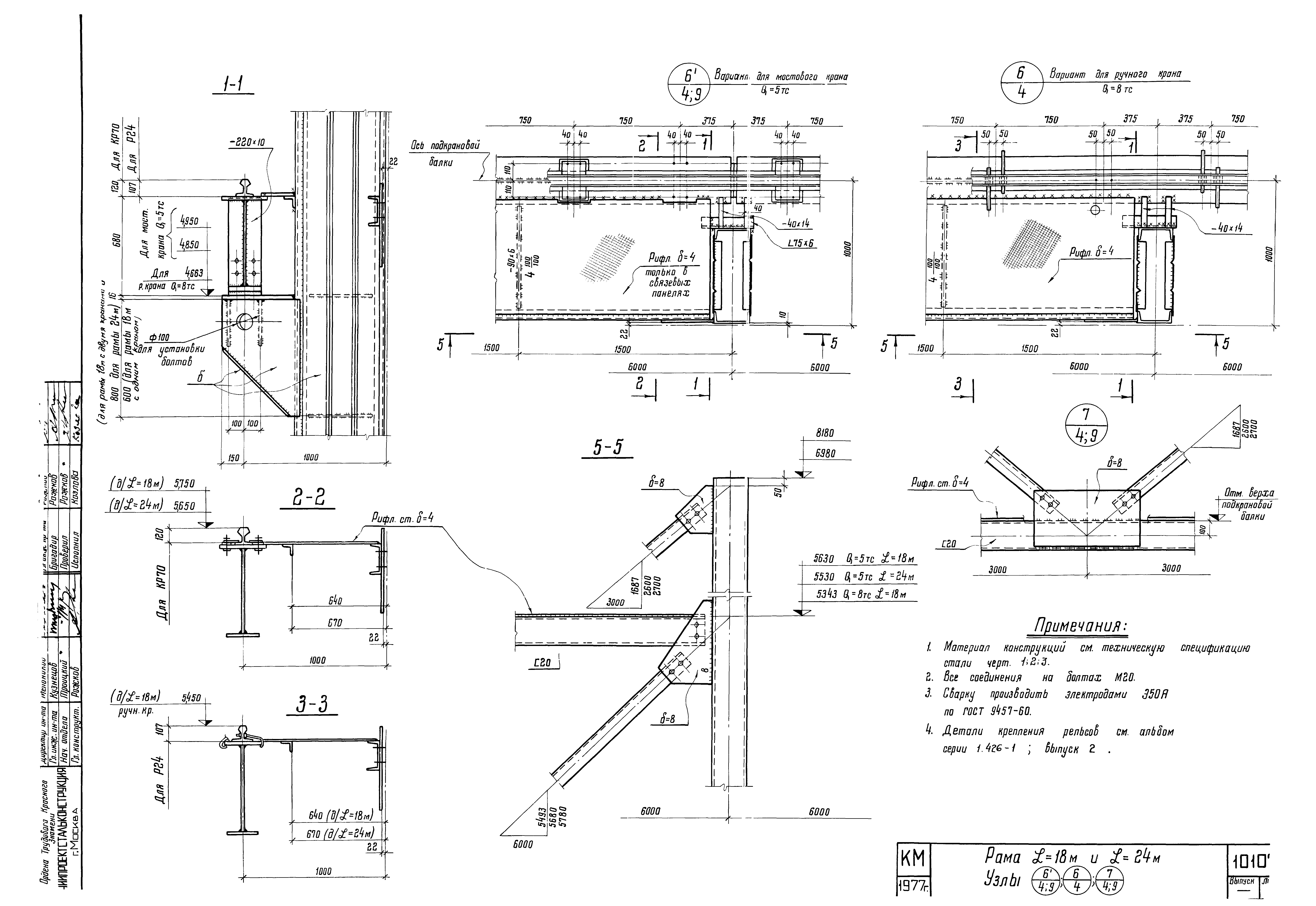
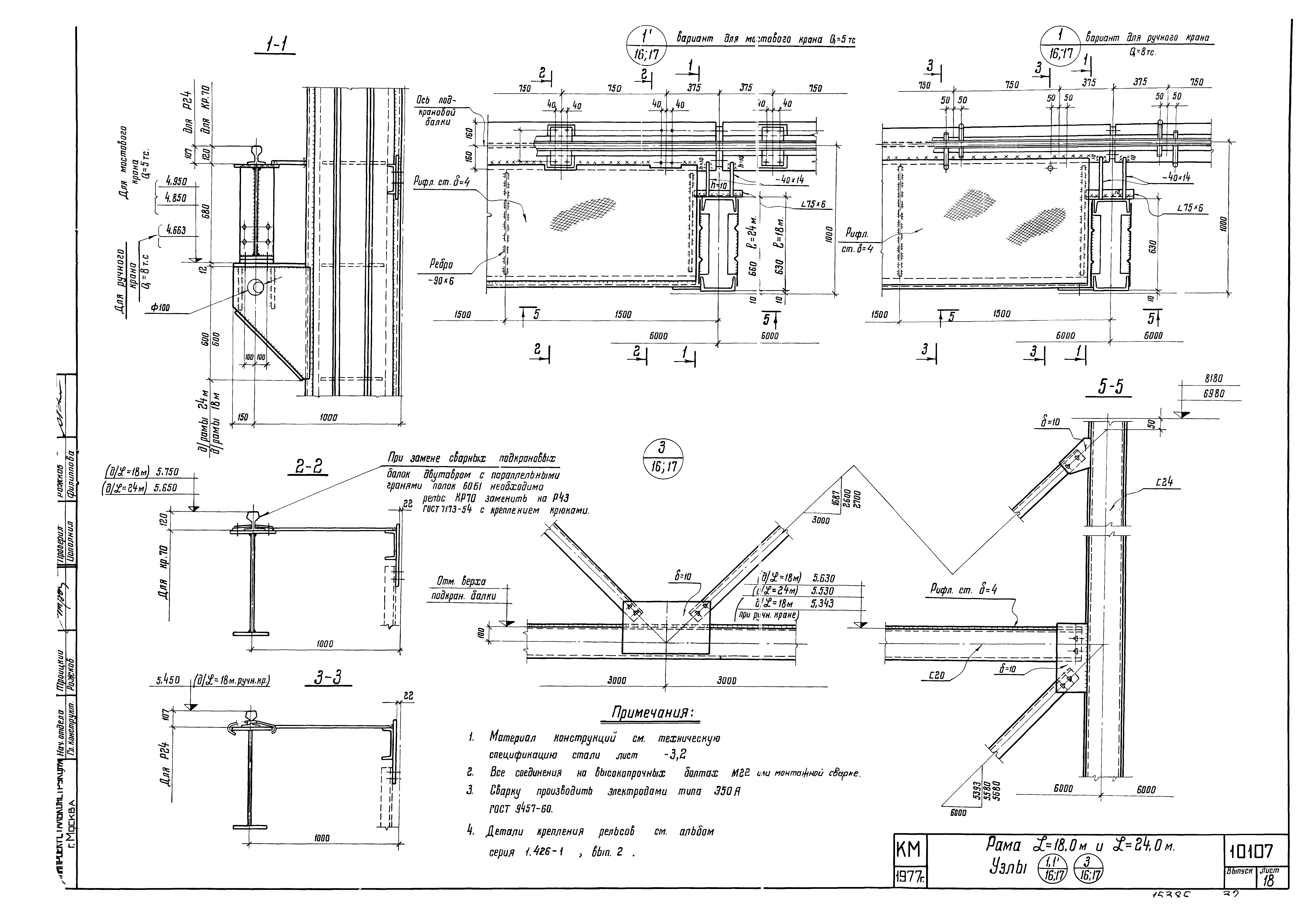
| Оглавление: | Содержание альбома Пояснительная записка Расчетные и полезные нагрузки в кгс/кв. м для рам Z = 18 м Расчетные и полезные нагрузки в кгс/кв. м для рам Z = 24 м Нормативные нагрузки на фундамент рамы Z = 18 м Нормативные нагрузки на фундамент рамы Z = 24 м Техническая спецификация стали для зданий, возводимых в несейсмических районах с расчетной температурой минус 40 градусов Цельсия и выше Техническая спецификация стали для зданий, расположенных в районах с расчетной сейсмичностью 7, 8 и 9 баллов Техническая спецификация стали для зданий, возводимых в несейсмических районах с расчетной температурой минус 40 градусов Цельсия Конструкции для несейсмических районов с расчетной температурой минус 40 градусов Цельсия и выше или ниже минус 40 градусов Цельсия Рама Z = 18 м. План прогонов. Продольные разрезы, торец здания Рама Z = 18 м. Схемы поперечных разрезов. Схема раскладки асбестоцементных плит покрытия Рама Z = 18 м высотой 6980 и 8180 мм без усиления, с краном и без крана Рама Z = 18 м высотой 6980 и 8180 мм. Усиленный вариант с краном и без крана Рама Z = 18 м и Z = 24 м. Узлы 1/4,9 - 5/4,9 Рама Z = 24 м. План прогонов. Продольные разрезы. Торец здания Рама Z = 24 м. Схемы поперечных разрезов. Схема раскладки асбестоцементных плит покрытия Рама Z = 24 м высотой 6980 и 8180 мм без усиления, с краном и без крана Рама Z = 24 м высотой 6980 и 8180 мм. Усиленный вариант с краном и без крана Рама Z = 18 м и Z = 24 м. Подкрановые балки Рама Z = 18 м и Z = 24 м. Узлы 6/4,9; 6`/4,9$ 7/4,9 Рама Z = 18 м и Z = 24 м. Схема посадочной площадки Конструкции для зданий с расчетной сейсмичностью 7; 8 и 9 баллов Рама Z = 18 м. План прогонов и связей по кровле Рама Z = 24 м. План прогонов и связей по кровле Рама Z = 18 м и Z = 24 м. Узлы 1,1`/16,17; 3/16,17 Рама Z = 18 м и Z = 24 м. Узлы 4/16,17 - 9/16,17 |
| Разработан: | ЦНИИпроектстальконструкция |
| Утверждён: | 14.12.1977 Госстрой СССР (Государственный комитет Совета Министров СССР по делам строительства) (USSR Gosstroy 76) |

































