Скачать Серия 1.430.9-7.94 Выпуск 0. Материалы для проектированияДата актуализации: 01.01.2021 Серия 1.430.9-7.94
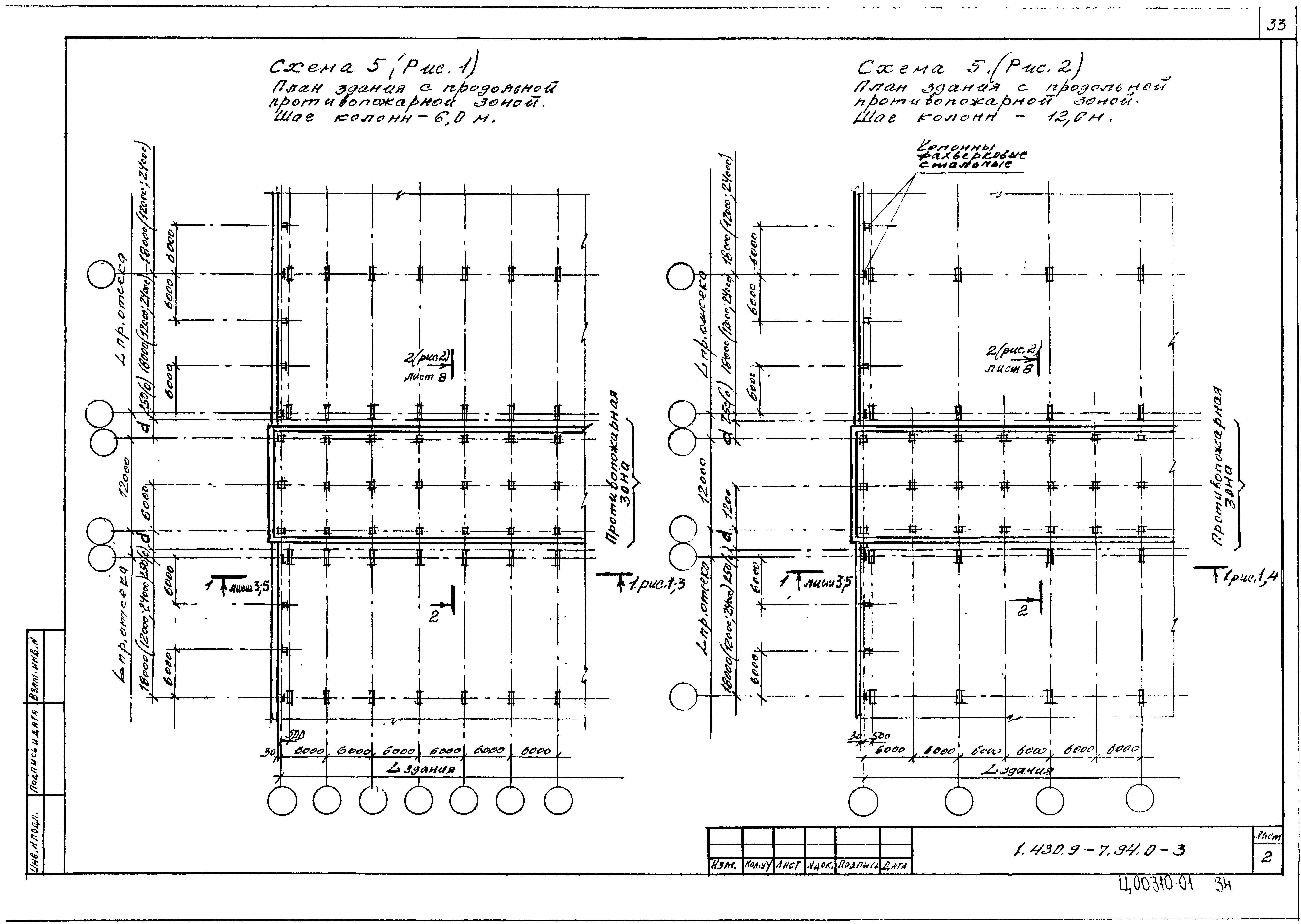
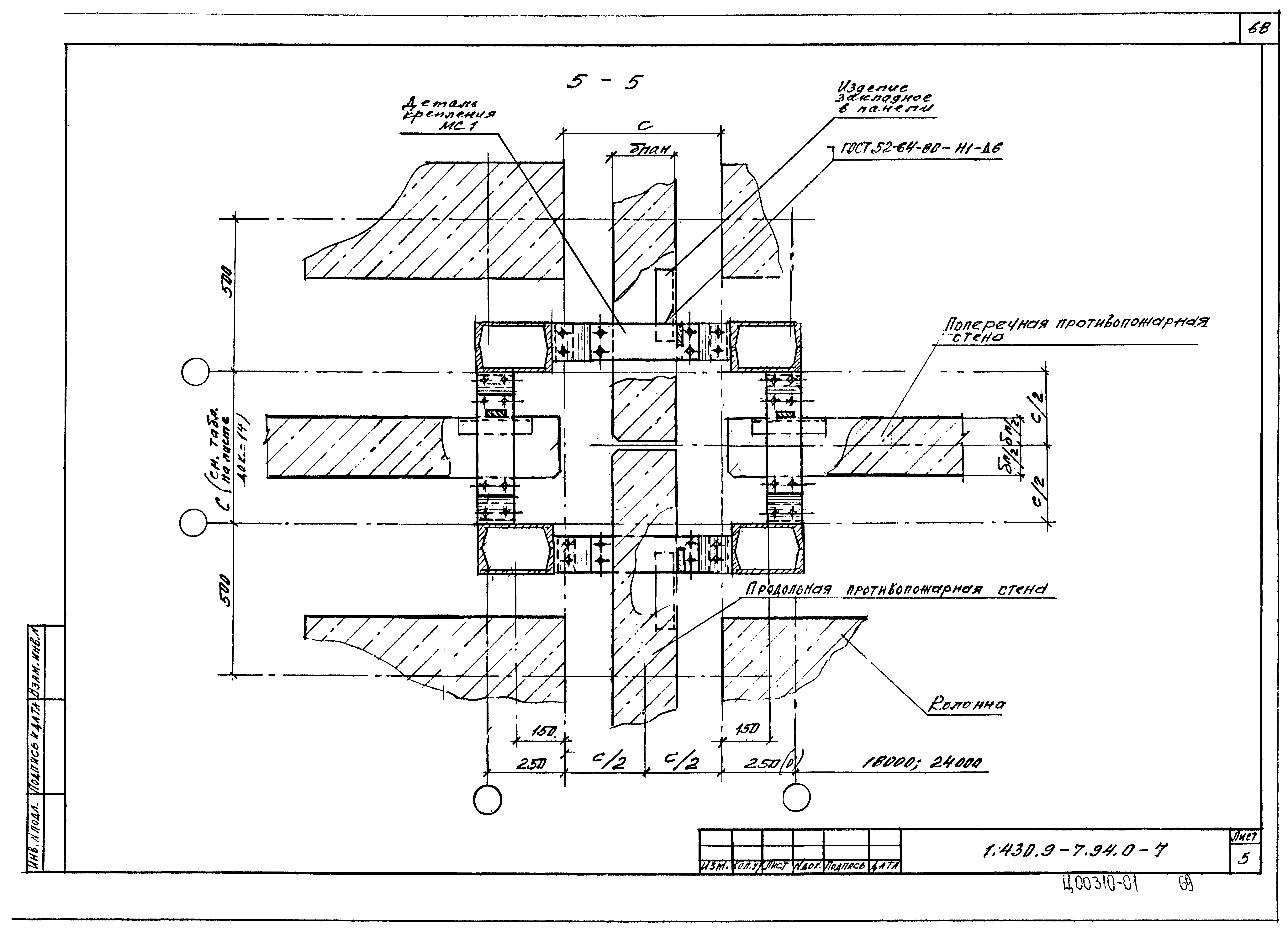
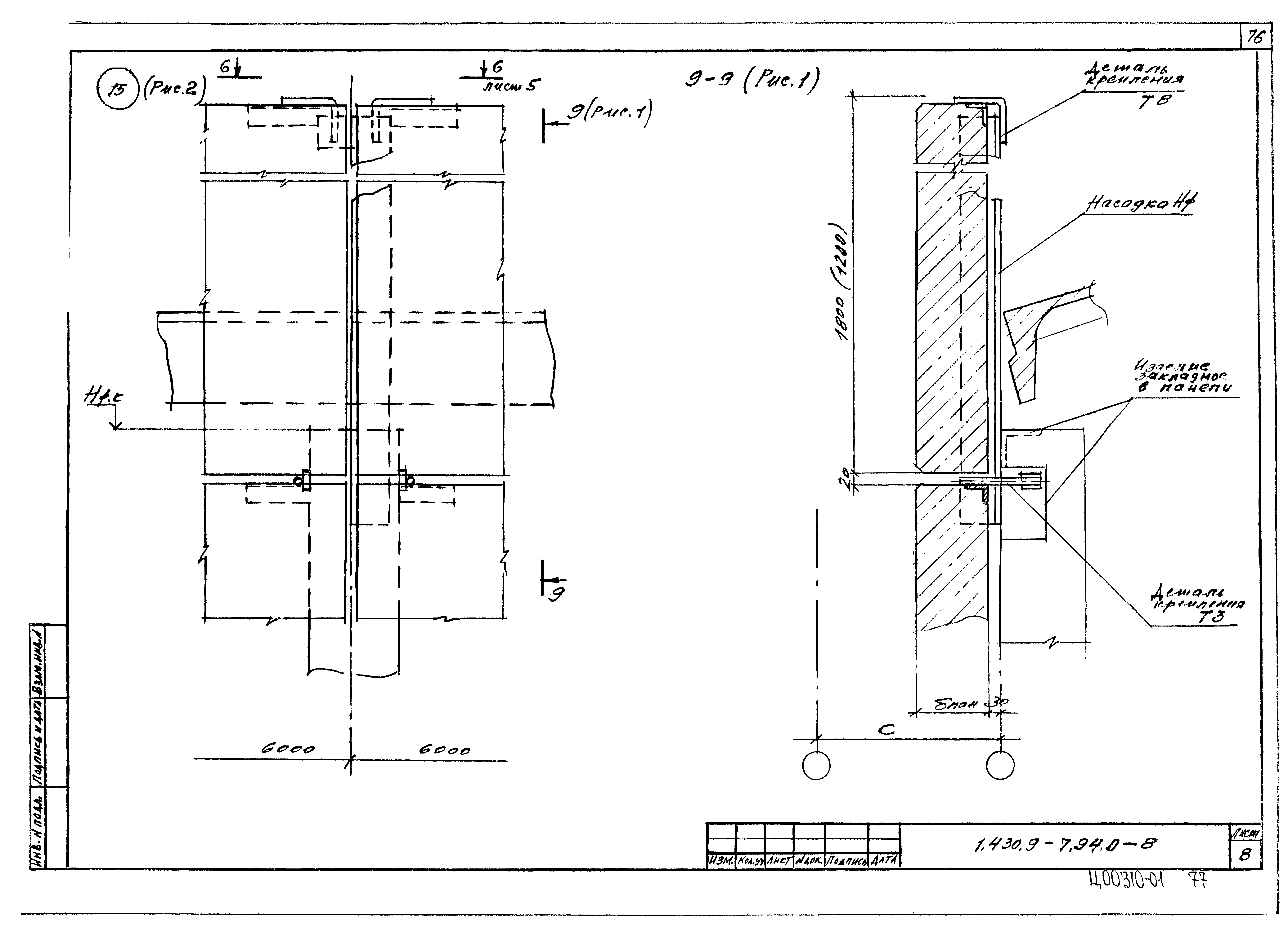
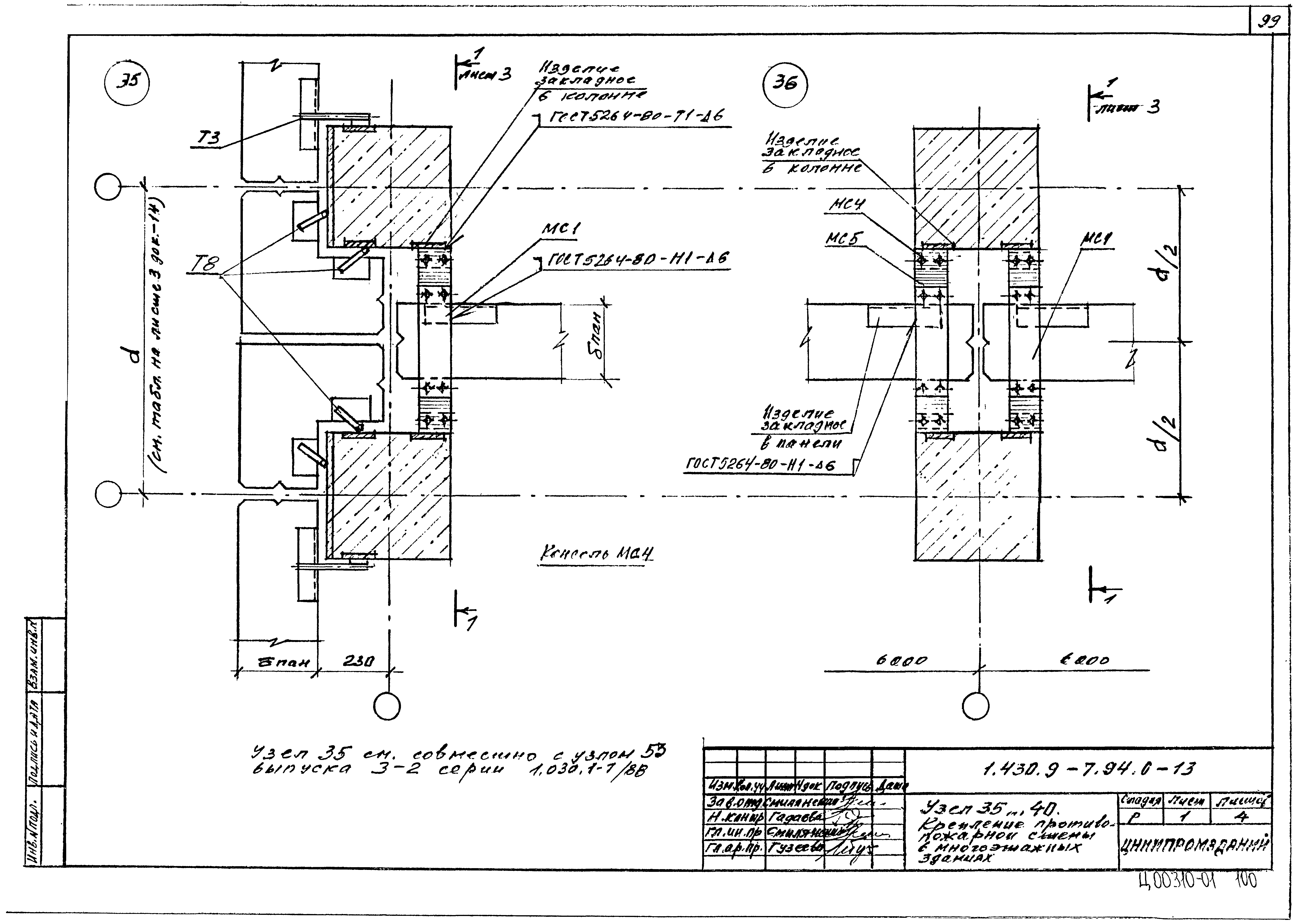
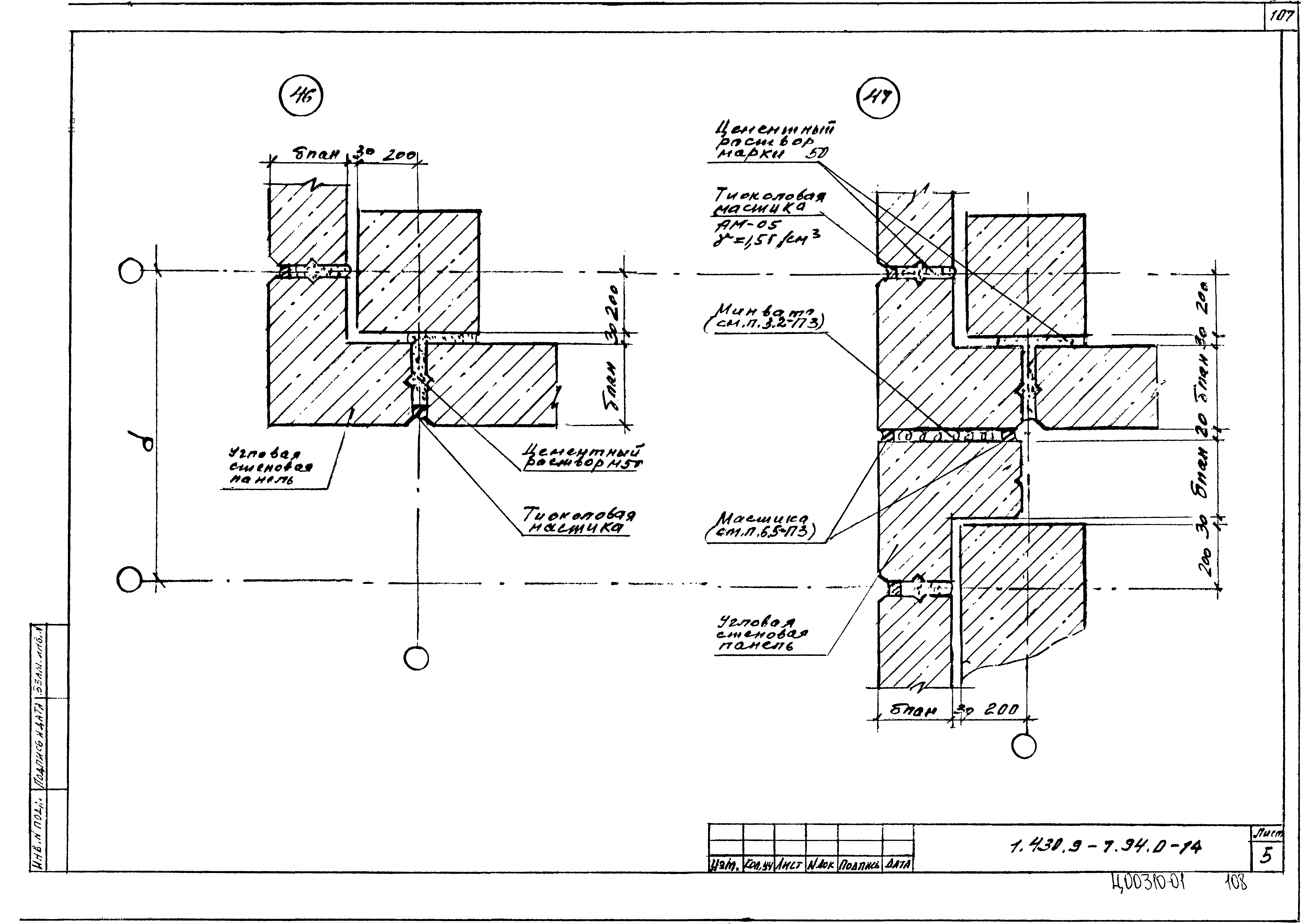
Выпуск 0. Материалы для проектирования| Обозначение: | Серия 1.430.9-7.94 | | Обозначение англ: | Series 1.430.9-7.94 | | Статус: | не определен законодательством | | Название рус.: | Выпуск 0. Материалы для проектирования | | Дата добавления в базу: | 01.09.2013 | | Дата актуализации: | 01.01.2021 | | Дата введения: | 01.02.1995 | | Дата окончания срока действия: | 30.06.2003 | | Область применения: | Выпуск 0 содержит материалы для проектирования наружных (в местах перепада высот здания) и внутренних противопожарных стен с пределом огнестойкости 2,5 и 0,75 ч. Выпуск включает пояснительную записку, схемы противопожарных стен и противопожарных зон с маркировкой узлов, чертежи узлов | | Оглавление: | 1.430.9-7.94.0-ПЗ Пояснительная записка 1.430.9-7.94.0-1 Схема 1. Продольные и поперечные противопожарные стены в одноэтажных зданиях без перепада высот с покрытиями из железобетонных конструкций 1.430.9-7.94.0-2 Схема 2; 3. Продольные и поперечные противопожарные стены в одноэтажных зданиях с перепадом высот с покрытиями из железобетонных конструкций 1.430.9-7.94.0-3 Схема 4; 5. Продольные и поперечные противопожарные зоны в одноэтажных зданиях с покрытиями из железобетонных конструкций 1.430.9-7.94.0-4 Схема 6; 7. Продольные и поперечные противопожарные стены в многоэтажных зданиях из однослойных легкобетонных панелей серии 1.030.1-1/88 1.430.9-7.94.0-5 Схема 8; 9. Продольные и поперечные противопожарные стены в многоэтажных зданиях из металлических конструкций 1.430.9-7.94.0-6 Узел 1… 6. Крепление железобетонных панелей противопожарных стен в зданиях без перепада высот 1.430.9-7.94.0-7 Узел 7… 10. Крепление железобетонных парапетных панелей противопожарных стен в зданиях без перепада высот 1.430.9-7.94.0-8 Узел 11… 15. Крепление железобетонных парапетных панелей противопожарных стен в зданиях с перепадом высот 1.430.9-7.94.0-9 Узел 16… 18. Крепление железобетонных панелей противопожарных стен в зданиях с перепадом высот 1.430.9-7.94.0-10 Узел 19… 27. Крепление железобетонных панелей противопожарных стен в зданиях с перепадом высот 1.430.9-7.94.0-11 Узел 28… 30. Крепление железобетонных панелей противопожарных стен в зданиях с перепадом высот 1.430.9-7.94.0-12 Узел 31… 34. Крепление стального бортика 1.430.9-7.94.0-13 Узел 35… 40. Крепление противопожарной стены в многоэтажных зданиях 1.430.9-7.94.0-14 Узел 41… 52. Сопряжения противопожарных стен в зданиях с железобетонными конструкциями 1.430.9-7.94.0-15 Узел 52… 55. Крепление каркасных панелей противопожарных стены 1.430.9-7.94.0-16 Узел 56… 62. Сопряжение противопожарных стен в зданиях с металлическими конструкциями 1.430.9-7.94.0-17 Спецификация на узел 1… 24 1.430.9-7.94.0-18 Спецификация на узел 25… 40; 53… 55 1.430.9-7.94.0-19 Спецификация на узел 41… 52; 56… 62 | | Разработан: | АО ЦНИИпромзданий
| | Утверждён: | 04.10.1994 Минстрой России (Russian Federation Minstroy 9-3-1/139)
| | Нормативные ссылки: |   СНиП 2.01.02-85* «Противопожарные нормы» СНиП 2.01.01-82 «Строительная климатология и геофизика»  СНиП 2.03.01-84* «Бетонные и железобетонные конструкции»  СНиП 3.03.01-87 «Несущие и ограждающие конструкции»  СНиП II-23-81* «Стальные конструкции»  СНиП III-18-75 «Металлические конструкции»  ГОСТ 13015.0-83 «Конструкции и изделия бетонные и железобетонные сборные. Общие технические требования» ГОСТ 13015.1-81 «Конструкции и изделия бетонные и железобетонные сборные. Приемка»  ГОСТ 14098-91 «Соединения сварные арматуры и закладных изделий железобетонных конструкций. Типы, конструкции и размеры»  ГОСТ 25131-82 «Покрытие по стали вспучивающееся огнезащитное ВПМ-2. Технические требования»  ГОСТ 4028-63 «Гвозди строительные. Конструкция и размеры»  ГОСТ 5264-80 «Ручная дуговая сварка. Соединения сварные. Основные типы, конструктивные элементы и размеры»  ГОСТ 8510-86 «Уголки стальные горячекатаные неравнополочные. Сортамент»  ГОСТ 14637-89 «Прокат толстолистовой из углеродистой стали обыкновенного качества. Технические условия»  ГОСТ 19903-74 «Прокат листовой горячекатаный. Сортамент»  ГОСТ 27772-88 «Прокат для строительных стальных конструкций. Общие технические условия»  ГОСТ 5915-70 «Гайки шестигранные класса точности В. Конструкция и размеры»  ГОСТ 7798-70 «Болты с шестигранной головкой класса точности В. Конструкция и размеры»  ГОСТ 11371-78 «Шайбы. Технические условия»  ГОСТ 10619-80 «Винты самонарезающие с потайной головкой для металла и пластмассы. Конструкция и размеры»  ГОСТ 6402-70 «Шайбы пружинные. Технические условия» ГОСТ 21880-86 «Маты минераловатные прошивные для тепловой изоляции промышленного оборудования. Технические условия» ГОСТ 6266-89 «Листы гипсокартонные. Технические условия» ГОСТ 8509-86 «Уголки стальные горячекатаные равнополочные. Сортамент» Серия 1.030.1-1/88 «Стены наружные из однослойных панелей для каркасных общественных зданий, производственных и вспомогательных зданий промышленных предприятий» Серия 1.030.1-1/88 «Выпуск 3-2. Монтажные узлы стен многоэтажных зданий с высотой этажей 3,6; 4,2; 4,8; 5,4; 6,0 и 7,2 м (с фахверком и без фахверка). Рабочие чертежи» Серия 1.432.1-26 «Железобетонные трехслойные стеновые панели длиной 6 м на гибких связях, изготавливаемые "лицом вниз", для производственных зданий промышленных предприятий» Серия 1.432.1-31.93 «Стены навесные из сборных железобетонных панелей для каркасных производственных зданий» Серия 1.432.1-31.93 «Выпуск 1. Консоли опорные. Материалы для проектирования и рабочие чертежи» Серия 1.432.2-32.93 «Стены из металлических панелей укрупнительной сборки с теплоизоляцией из минераловатных плит с внутренней неметаллической обшивкой» Серия 1.460.2-10/88 «Стальные конструкции покрытий одноэтажных производственных зданий с фермами из парных уголков» Серия 2.460-16 «Выпуск 2. Узлы покрытий с применением монтажных щитов из двухслойных панелей. Рабочие чертежи» Серия 1.427.1-3 «Колонны железобетонные прямоугольного сечения для продольного и торцового фахверка одноэтажных производственных зданий высотой 3,0-14,4 м» Серия 1.427.1-6 «Колонны железобетонные двухветвевого сечения для продольного и торцового фахверков одноэтажных производственных зданий высотой 15,6; 16,8 и 18,0 м» Серия 1.427.3-9 «Стальные конструкции фахверка одноэтажных производственных зданий» Серия 1.462.1-16/88 «Балки стропильные железобетонные двутавровые пролетом 18 м для покрытий одноэтажных зданий промышленных предприятий» Серия 1.462.1-3/89 «Железобетонные стропильные решетчатые балки для покрытий одноэтажных зданий» Серия 1.463.1-3/87 «Фермы стропильные железобетонные безраскосные пролетами 18 и 24 м для одноэтажных зданий с малоуклонной и скатной кровлей» Серия 1.463.1-1/87 «Фермы стропильные железобетонные безраскосные пролетом 18 и 24 м для одноэтажных зданий с малоуклонной и скатной кровлей для V снегового района» Серия 1.463.1-16 «Фермы стропильные железобетонные сегментные для покрытий одноэтажных производственных зданий пролетами 18 и 24 м (в опалубочных формах ферм серии ПК-01-129/78)» Серия 1.463.1-17 «Фермы стропильные железобетонные полигональные пролетами 18 и 24 м для покрытий зданий с малоуклонной кровлей» Серия 1.030.1-1/88 «Выпуск 0-2. Материалы для проектирования стен многоэтажных зданий с высотами этажей 3,6; 4,2; 4,8; 5,4; 6,0 и 7,2 м (с фахверком и без фахверка)» СНиП II-2-80 «Противопожарные нормы проектирования зданий и сооружений» Серия 1.427.3-4 «Стальные стойки фахверка одноэтажных производственных зданий»
|
                                                                                                                             
|