Скачать Серия 1.431.9-25 Выпуск 1. Панели, стойки, ригели. Рабочие чертежиДата актуализации: 01.01.2021
|
| Обозначение: | Серия 1.431.9-25 |
| Обозначение англ: | Series 1.431.9-25 |
| Статус: | не определен законодательством |
| Название рус.: | Выпуск 1. Панели, стойки, ригели. Рабочие чертежи |
| Дата добавления в базу: | 01.09.2013 |
| Дата актуализации: | 01.01.2021 |
| Дата введения: | 01.07.1984 |
| Дата окончания срока действия: | 30.06.2003 |
| Область применения: | Настоящие технические условия распространяются на комплект элементов консольных перегородок из асбестоцементных листов в стальной обвязке, предназначенных, для ограждения внутрицеховых производственных и подсобных помещений отапливаемых и неотапливаемых зданий с неагрессивной и слабоагрессивной степенями воздействия воздушной среды |
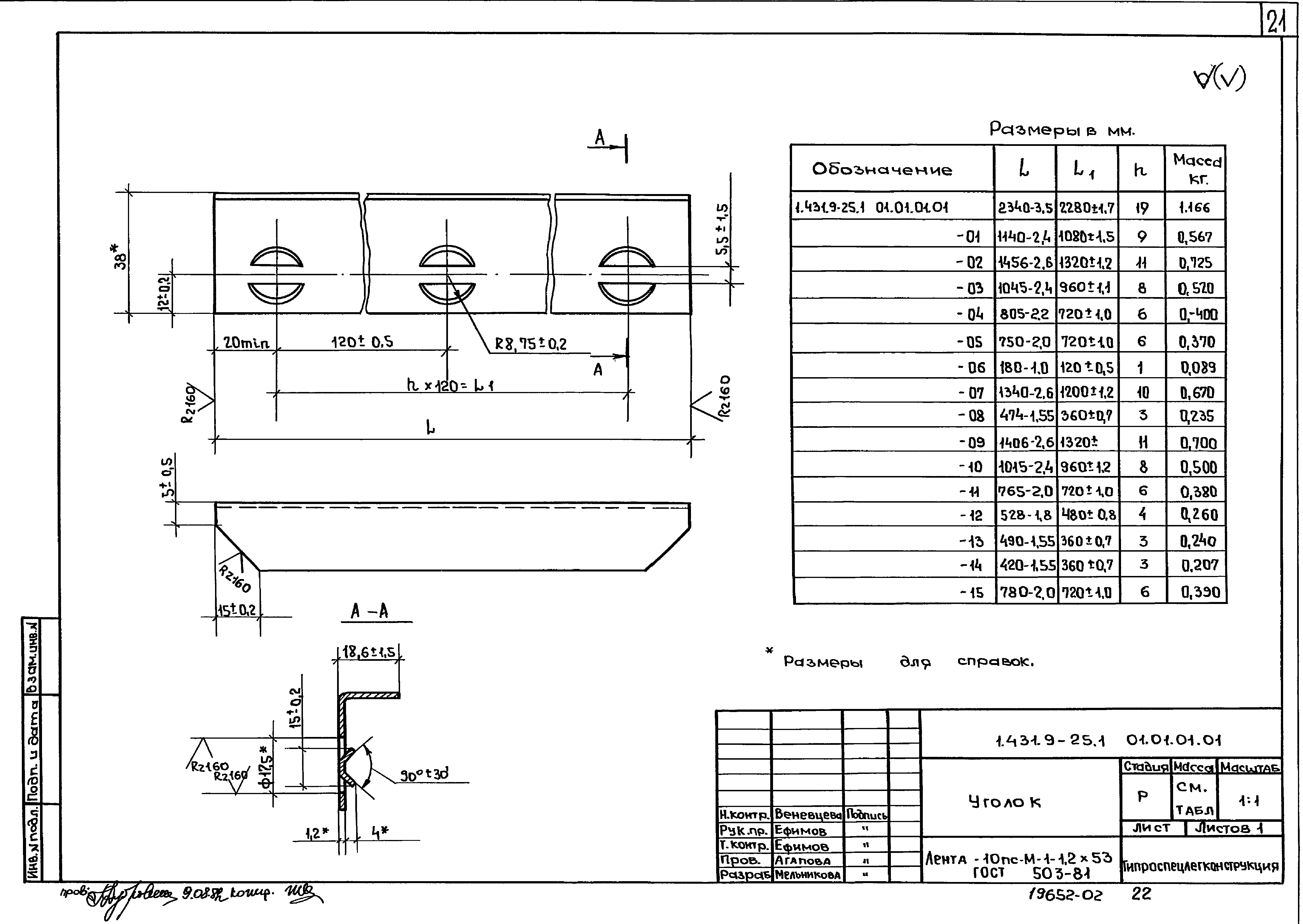
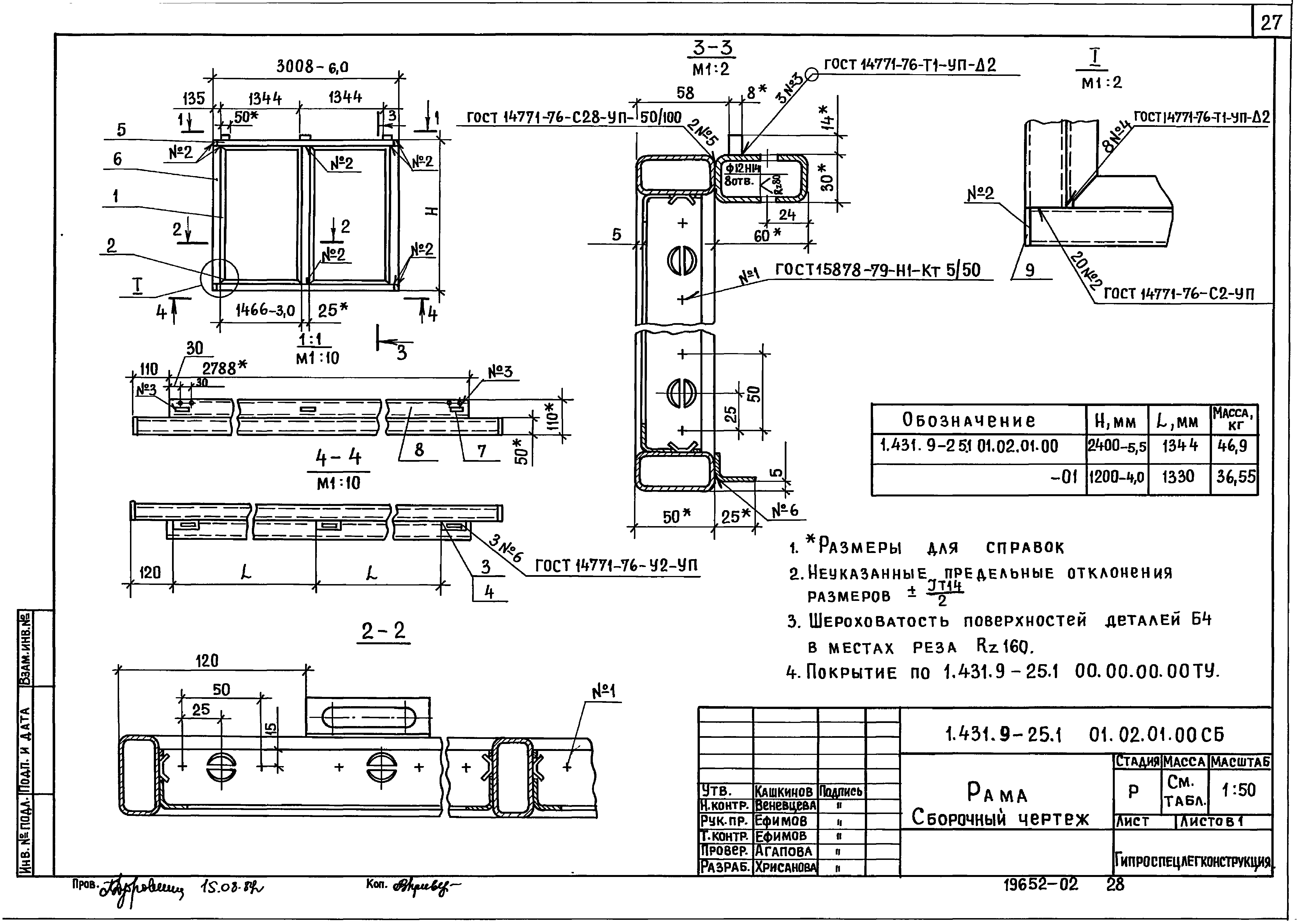
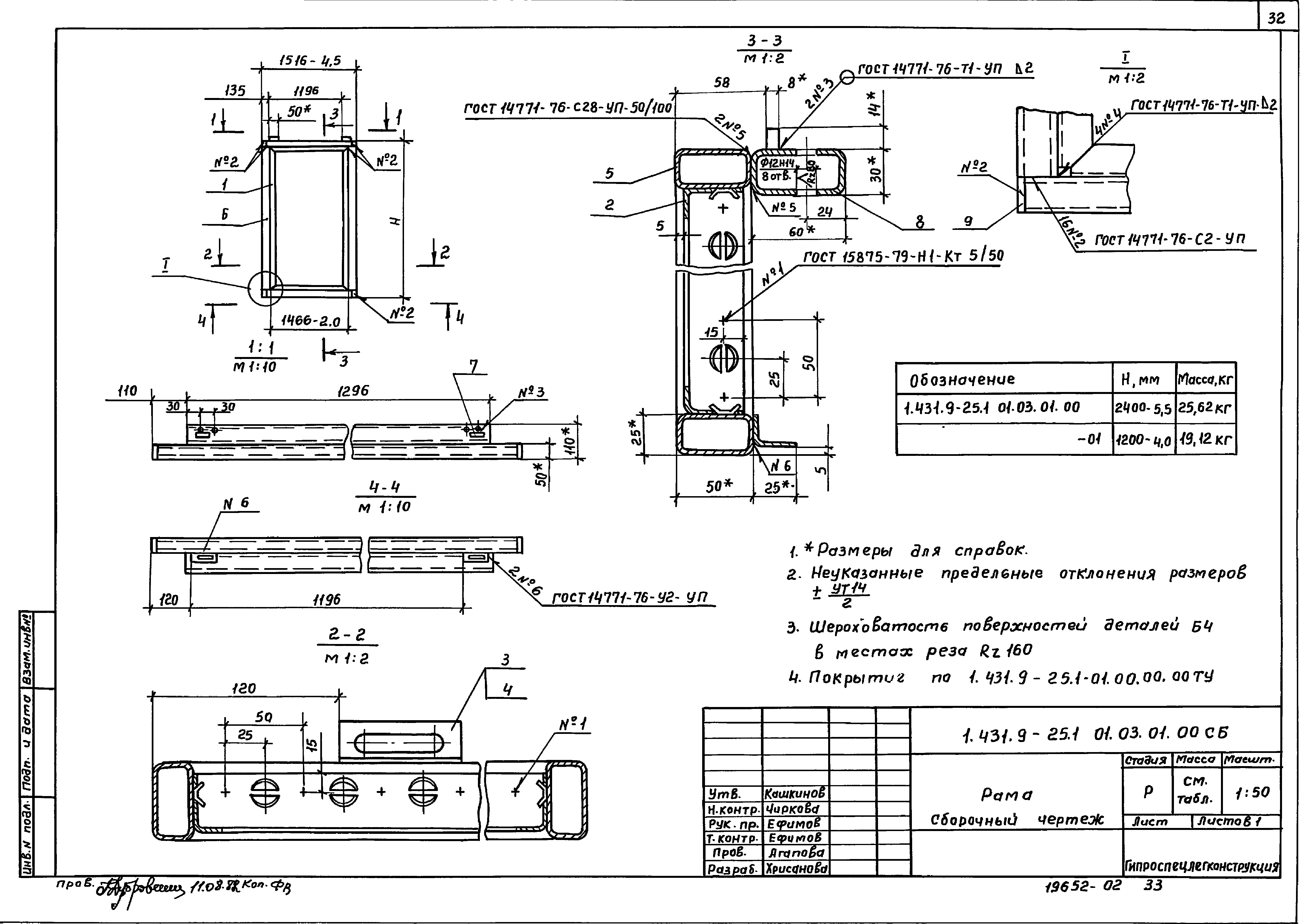
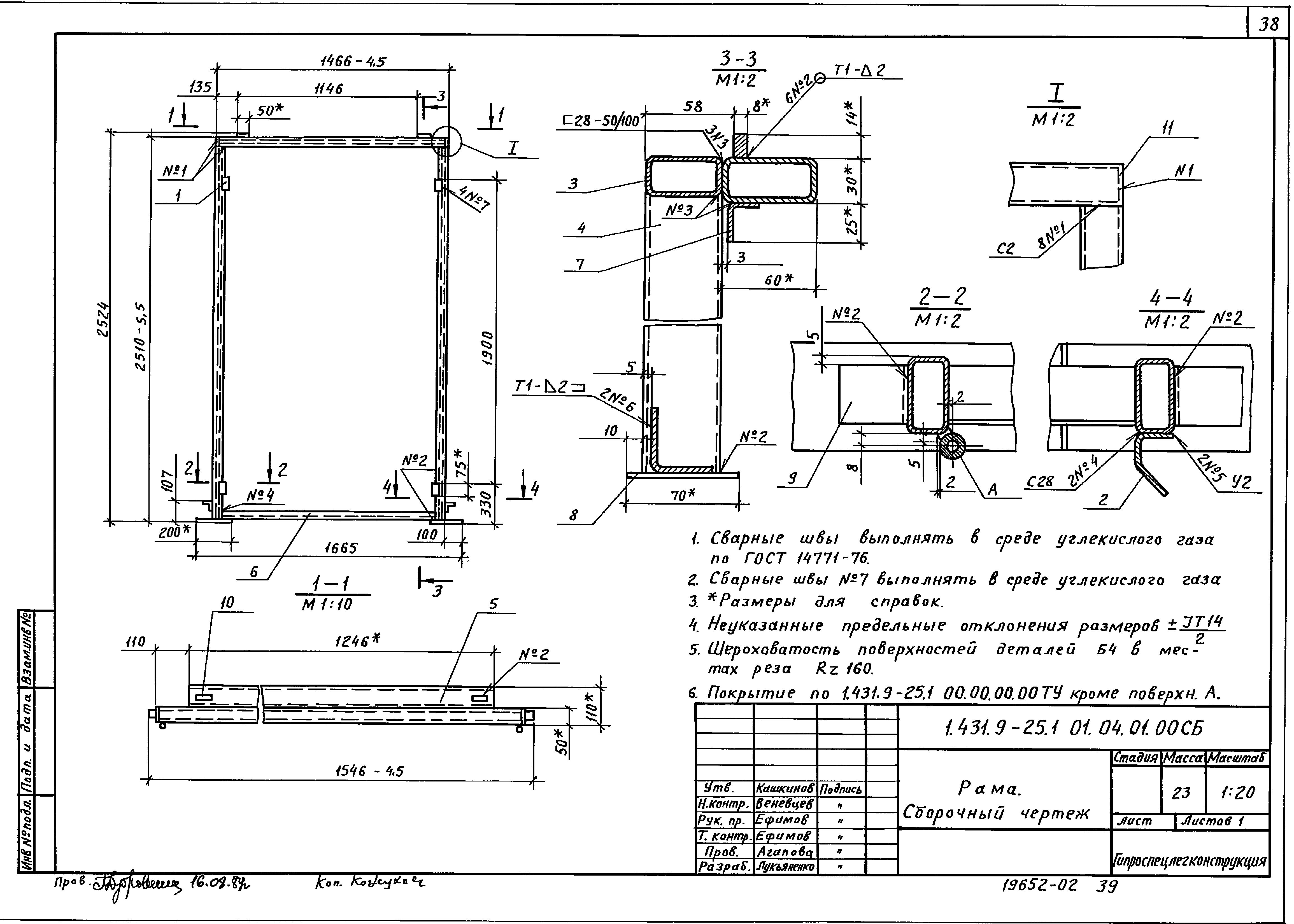
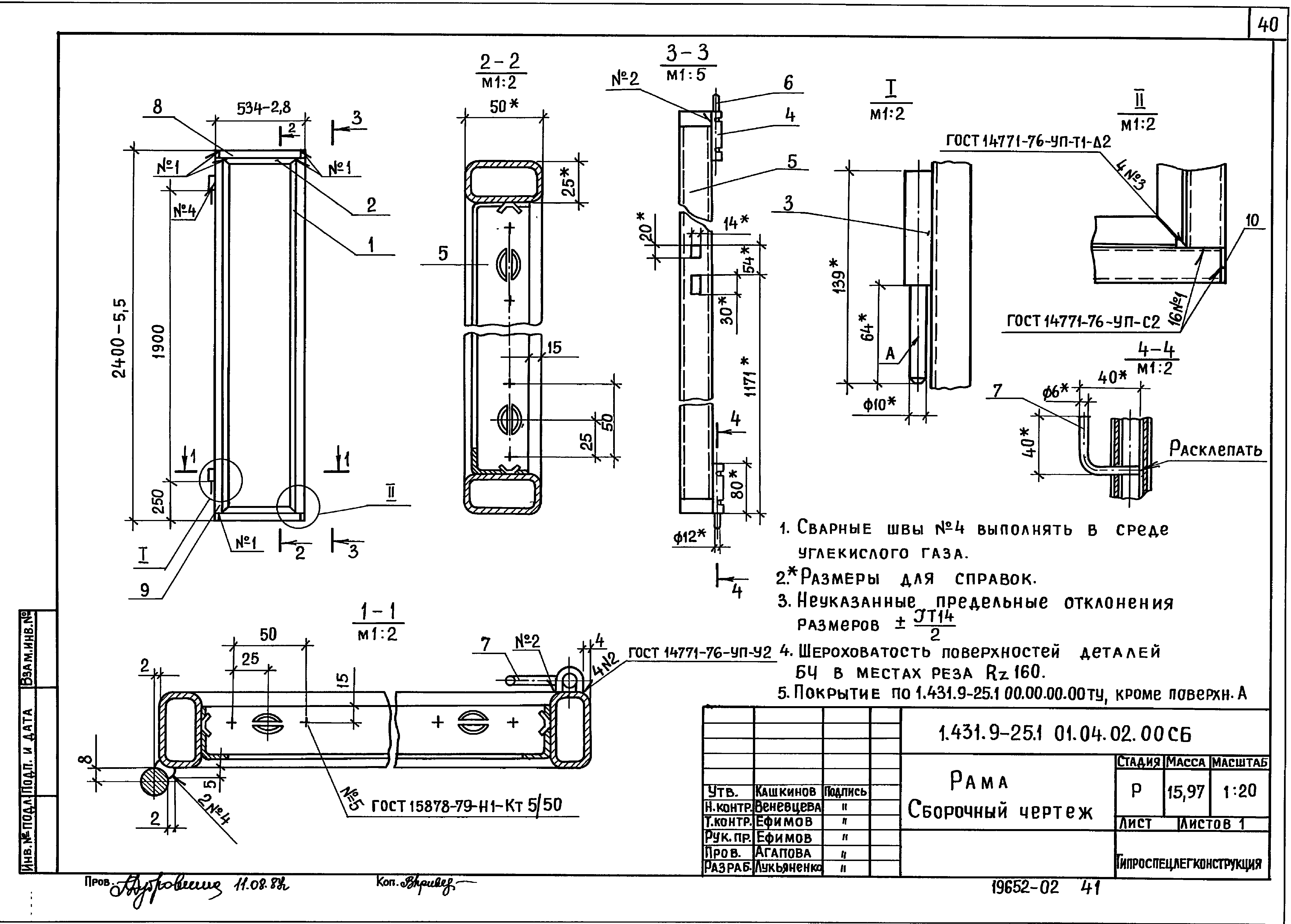
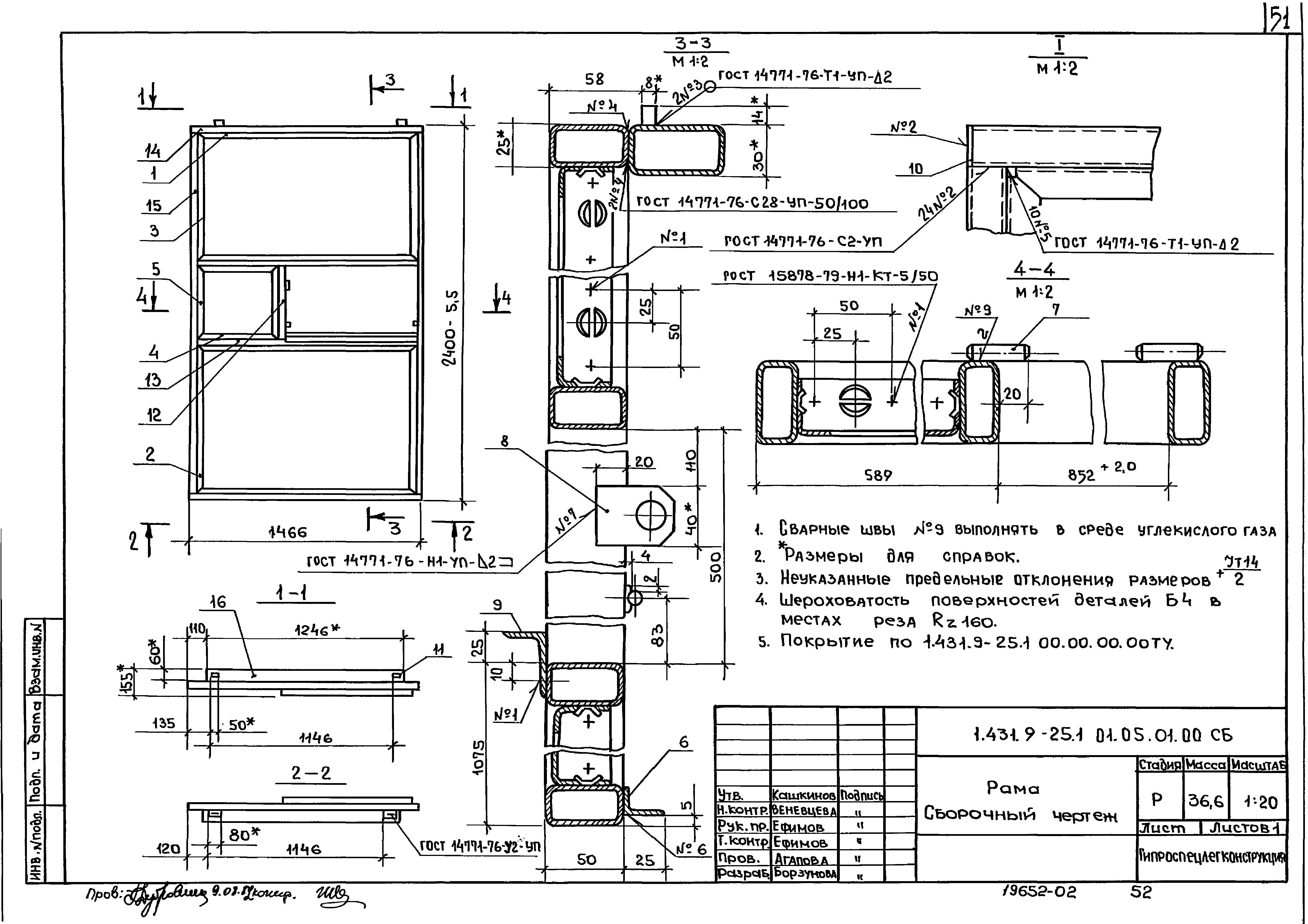
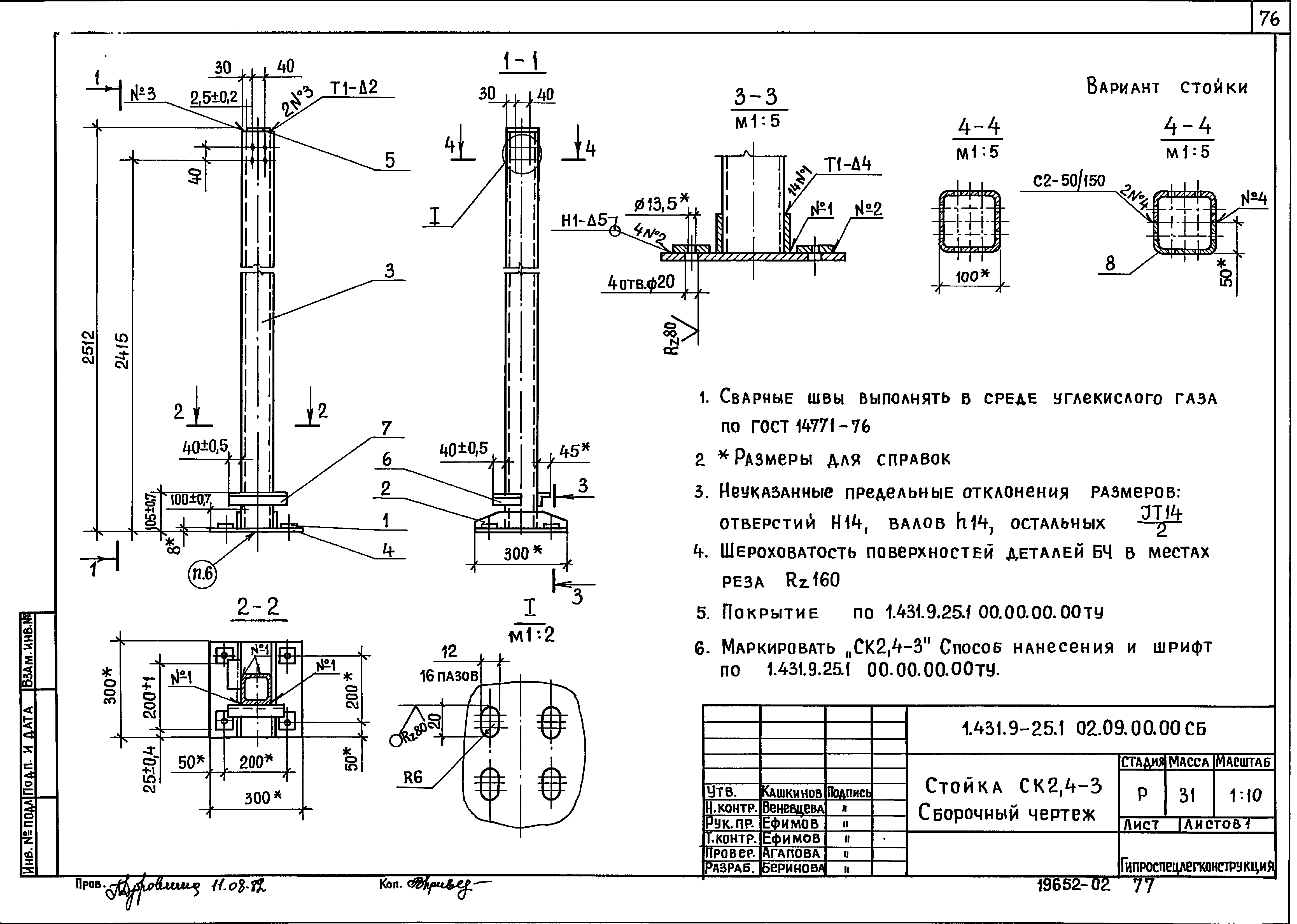
| Оглавление: | 1.431.9-25.1 00.00.00.00 Комплект элементов консольных перегородок 1.431.9-25.1 00.00.00.00 ВС Ведомость спецификаций 1.431.9-25.1 00.00.00.00 ТУ Технические условия 1.431.9-25.1 01.00.00.00 Комплект ограждающих элементов 1.431.9-25.1 01.01.00.00 Панель перегородки ПГ6 1.431.9-25.1 01.01.01.02 Уголок 1.431.9-25.1 01.01.00.00 СБ Панель перегородки ПГ6. Сборочный чертеж 1.431.9-25.1 01.01.01.00 Рама 1.431.9-25.1 01.01.01.00 СБ Рама. Сборочный чертеж 1.431.9-25.1 01.01.01.01 Уголок 1.431.9-25.1 01.01.00.01 Заполнитель 1.431.9-25.1 01.02.00.00 Панель перегородки ПГ3 1.431.9-25.1 01.04.01.01 Полупетля 1.431.9-25.1 01.02.00.00 СБ Панель перегородки ПГ3. Сборочный чертеж 1.431.9-25.1 01.02.01.00 Рама 1.431.9-25.1 01.02.01.00 СБ Рама. Сборочный чертеж 1.431.9-25.1 01.03.00.00 Панель перегородки ПГ1,5 1.431.9-25.1 01.04.01.02 Опор 1.431.9-25.1 01.03.00.00 СБ Панель перегородки ПГ1,5. Сборочный чертеж 1.431.9-25.1 01.03.01.00 Рама 1.431.9-25.1 01.03.01.00 СБ Рама. Сборочный чертеж 1.431.9-25.1 01.04.00.00 Панель перегородки ПД1,5х2,4 1.431.9-25.1 01.04.01.07 Пята 1.431.9-25.1 01.04.00.00 СБ Панель перегородки ПД1,5х2,4. Сборочный чертеж 1.431.9-25.1 01.04.00.06 Накладка 1.431.9-25.1 01.04.01.00 Рама 1.431.9-25.1 01.04.01.00 СБ Рама. Сборочный чертеж 1.431.9-25.1 01.04.02.00 Рама 1.431.9-25.1 01.04.02.05 Движок 1.431.9-25.1 01.04.02.00 СБ Рама. Сборочный чертеж 1.431.9-25.1 01.04.02.01 Полупетля 1.431.9-25.1 01.04.02.02 Скоба 1.431.9-25.1 01.04.02.03 Связь 1.431.9-25.1 01.04.02.04 Штырь 1.431.9-25.1 01.04.03.00 Рама 1.431.9-25.1 01.04.03.00 СБ Рама. Сборочный чертеж 1.431.9-25.1 01.04.03.01 Связь 1.431.9-25.1 01.04.03.02 Связь 1.431.9-25.1 01.04.00.07 Вкладыш 1.431.9-25.1 01.04.00.08 Пробка 1.431.9-25.1 01.04.00.09 Накладка 1.431.9-25.1 01.05.00.00 Панель перегородки ПР1,5х2,4 1.431.9-25.1 01.05.00.00 СБ Панель перегородки ПР1,5х2,4. Сборочный чертеж 1.431.9-25.1 01.05.01.00 Рама 1.431.9-25.1 01.05.01.00 СБ Рама. Сборочный чертеж 1.431.9-25.1 01.05.01.01 Упор 1.431.9-25.1 01.05.01.02 Ушко 1.431.9-25.1 01.05.01.03 Опора 1.431.9-25.1 01.05.02.00 Рама 1.431.9-25.1 01.05.02.01 Связь 1.431.9-25.1 01.05.02.00 СБ Рама. Сборочный чертеж 1.431.9-25.1 01.05.03.00 Кронштейн 1.431.9-25.1 01.05.03.00 СБ Кронштейн. Сборочный чертеж 1.431.9-25.1 01.05.03.01 Опора 1.431.9-25.1 01.05.03.02 Ос6 1.431.9-25.1 02.00.00.00 Комплект несущих элементов 1.431.9-25.1 02.01.00.00 Ригель РН 1.431.9-25.1 02.01.00.00 СБ Ригель РН. Сборочный чертеж 1.431.9-25.1 02.01.00.01 Балка 1.431.9-25.1 02.02.00.00 Стойка СК3,6-1 1.431.9-25.1 02.02.00.00 СБ Стойка СК3,6-1. Сборочный чертеж 1.431.9-25.1 02.02.00.04 Скоба 1.431.9-25.1 02.02.00.05 Платик 1.431.9-25.1 02.02.00.08 Ребро 1.431.9-25.1 02.03.00.00 Стойка СК3,6-2 1.431.9-25.1 02.03.00.00 СБ Стойка СК3,6-2. Сборочный чертеж 1.431.9-25.1 02.04.00.00 Стойка СК3,6-3 1.431.9-25.1 02.04.00.00 СБ Стойка СК3,6-3. Сборочный чертеж 1.431.9-25.1 02.05.00.00 Стойка СК3,6-4 1.431.9-25.1 02.05.00.00 СБ Стойка СК3,6-4. Сборочный чертеж 1.431.9-25.1 02.06.00.00 Стойка СК3,6-5 1.431.9-25.1 02.06.00.00 СБ Стойка СК3,6-5. Сборочный чертеж 1.431.9-25.1 02.07.00.00 Стойка СК2,4-1 1.431.9-25.1 02.07.00.00 СБ Стойка СК2,4-1. Сборочный чертеж 1.431.9-25.1 02.07.00.04 Платик 1.431.9-25.1 02.07.00.05 Ребро 1.431.9-25.1 02.08.00.00 Стойка СК2,4-2 1.431.9-25.1 02.08.00.00 СБ Стойка СК2,4-2. Сборочный чертеж 1.431.9-25.1 02.09.00.00 Стойка СК2,4-3 1.431.9-25.1 02.09.00.00 СБ Стойка СК2,4-3. Сборочный чертеж 1.431.9-25.1 02.10.00.00 Стойка СК2,4-4 1.431.9-25.1 02.10.00.00 СБ Стойка СК2,4-4. Сборочный чертеж 1.431.9-25.1 02.11.00.00 Стойка СК2,4-5 1.431.9-25.1 02.11.00.00 СБ Стойка СК2,4-5. Сборочный чертеж 1.431.9-25.1 02.12.00.00 Фланец Ф1 1.431.9-25.1 02.12.00.00 СБ Фланец Ф1. Сборочный чертеж 1.431.9-25.1 02.13.00.00 Фланец Ф2 1.431.9-25.1 02.13.00.00 СБ Фланец Ф2. Сборочный чертеж 1.431.9-25.1 02.14.00.00 Фланец Ф3 1.431.9-25.1 02.14.00.00 СБ Фланец Ф3. Сборочный чертеж |
| Разработан: | Гипроспецлегконструкция ГПИ Промстройпроект |
| Утверждён: | 30.03.1984 Госстрой СССР (Государственный комитет Совета Министров СССР по делам строительства) (USSR Gosstroy 37) |
| Нормативные ссылки: |
|



















































































