Скачать Серия 1.232.5-9 Выпуск 1. Панели толщиной 114 и 164 мм на деревянном каркасе с утеплителем из минераловатных плит. Рабочие чертежиДата актуализации: 01.01.2021
|
| Обозначение: | Серия 1.232.5-9 |
| Обозначение англ: | Series 1.232.5-9 |
| Статус: | не действует |
| Название рус.: | Выпуск 1. Панели толщиной 114 и 164 мм на деревянном каркасе с утеплителем из минераловатных плит. Рабочие чертежи |
| Дата добавления в базу: | 01.09.2013 |
| Дата актуализации: | 01.01.2021 |
| Дата введения: | 01.02.1987 |
| Дата окончания срока действия: | 01.05.1999 |
| Область применения: | Выпуск 1 содержит рабочие чертежи цементностружечных навесных стеновых панелей, предназначенных для применения при проектировании и строительстве общественных зданий |
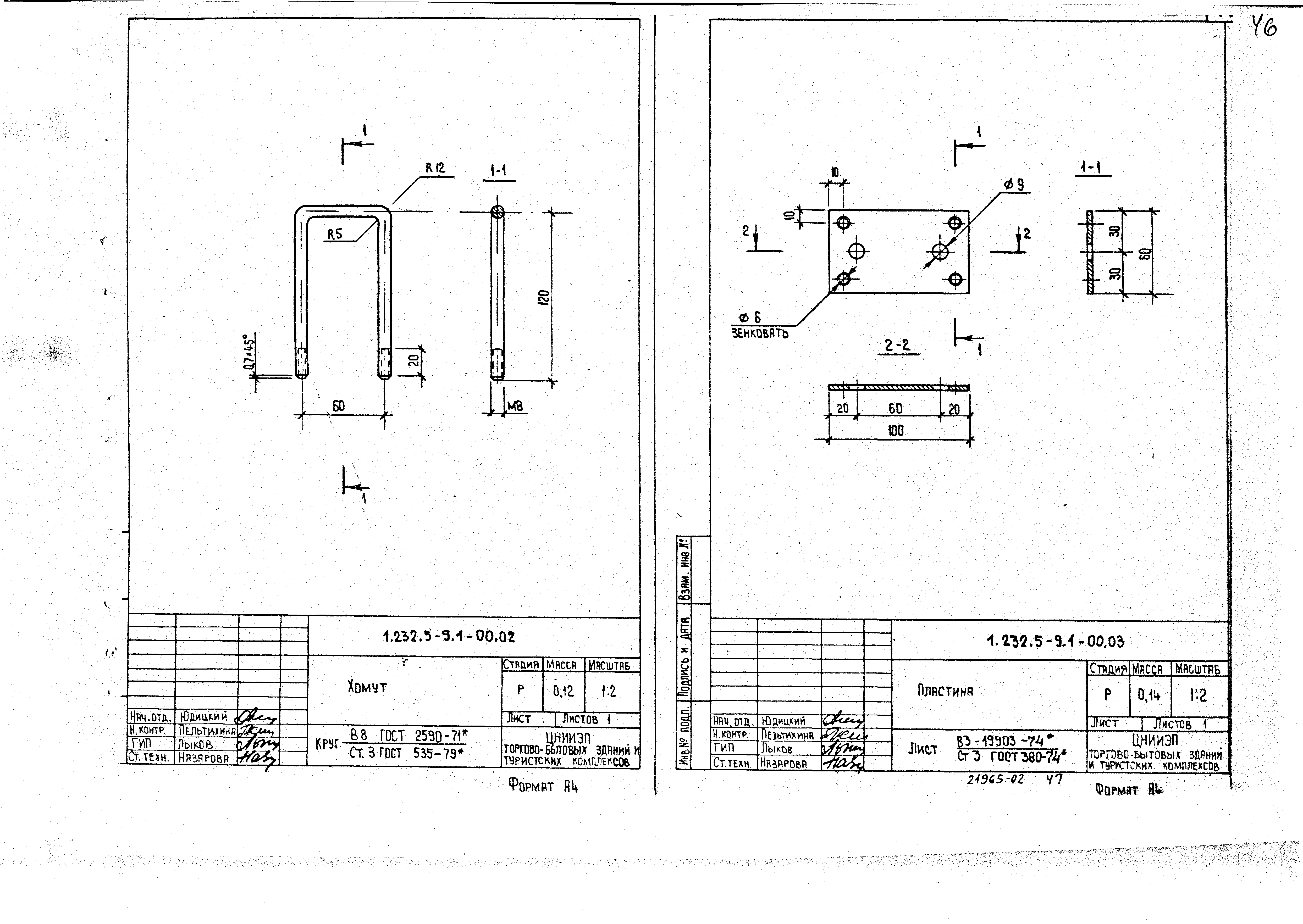
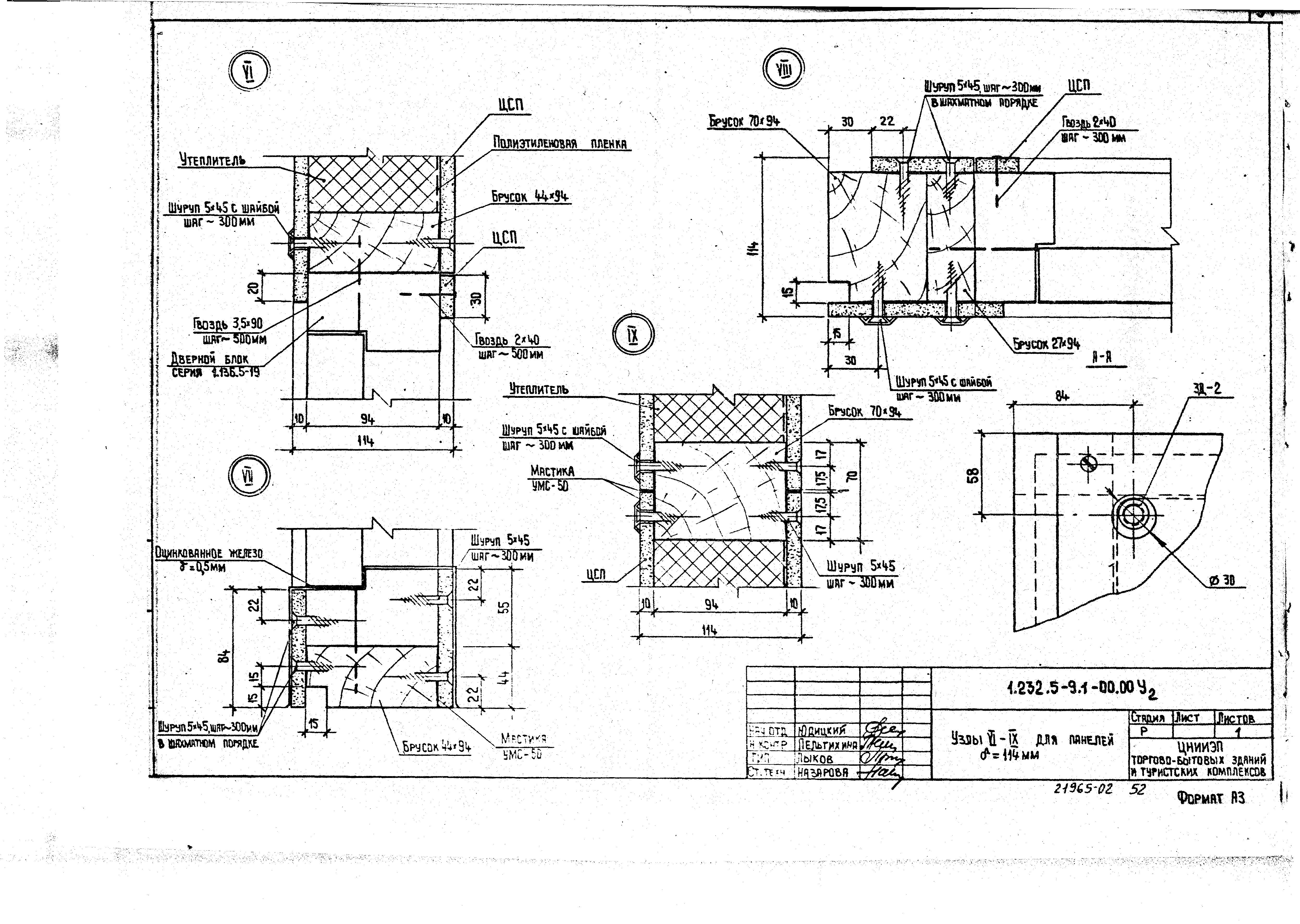
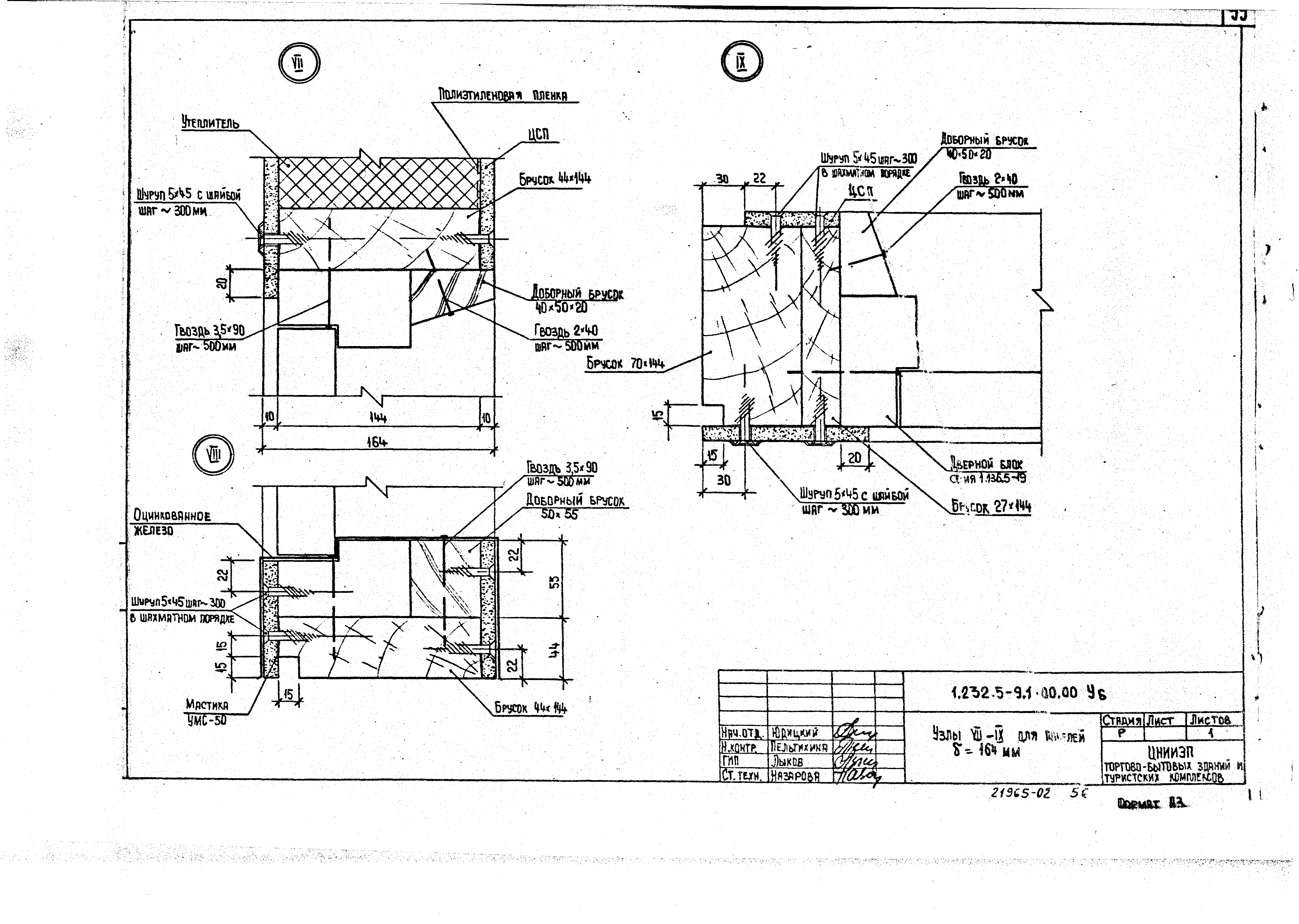
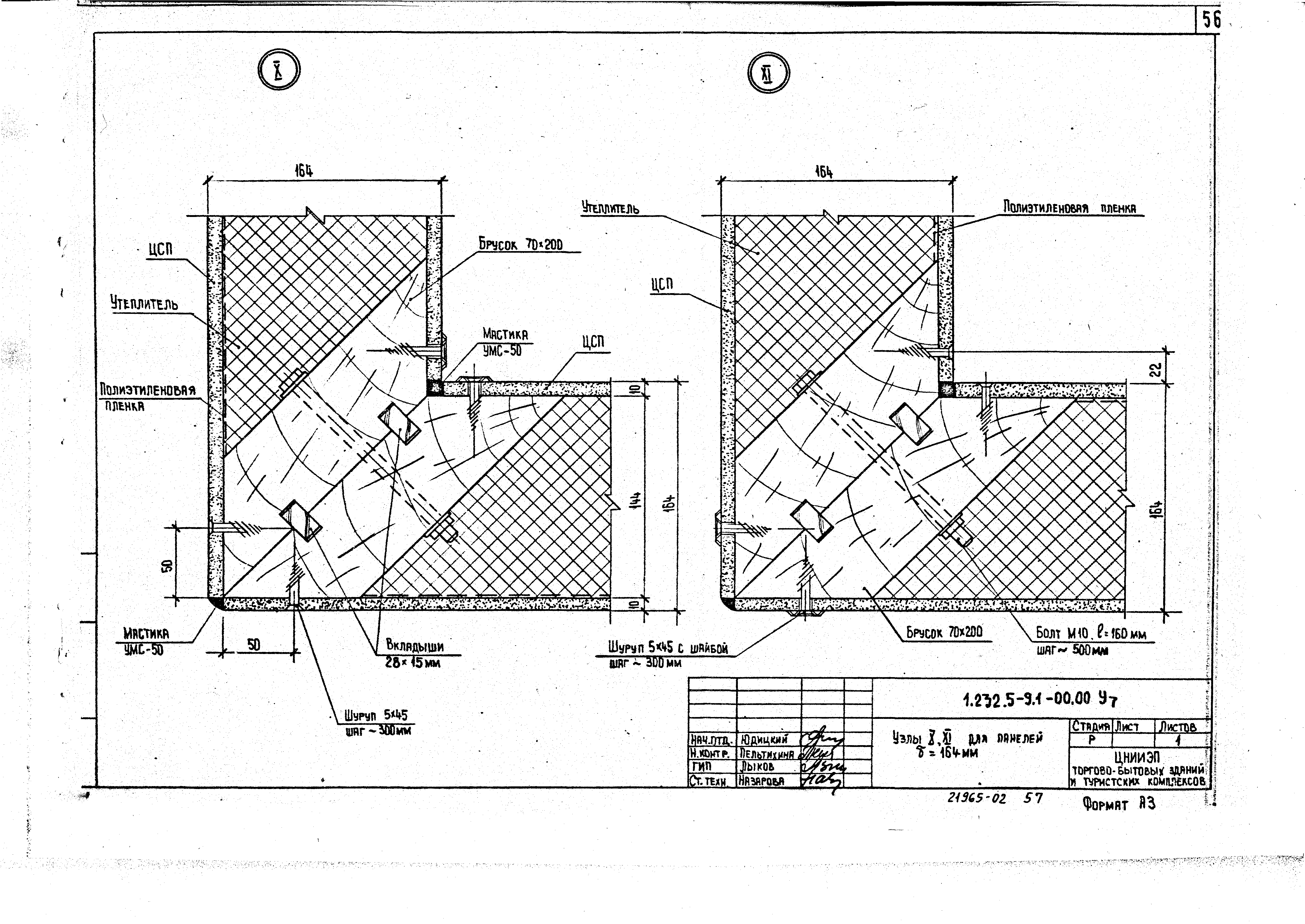
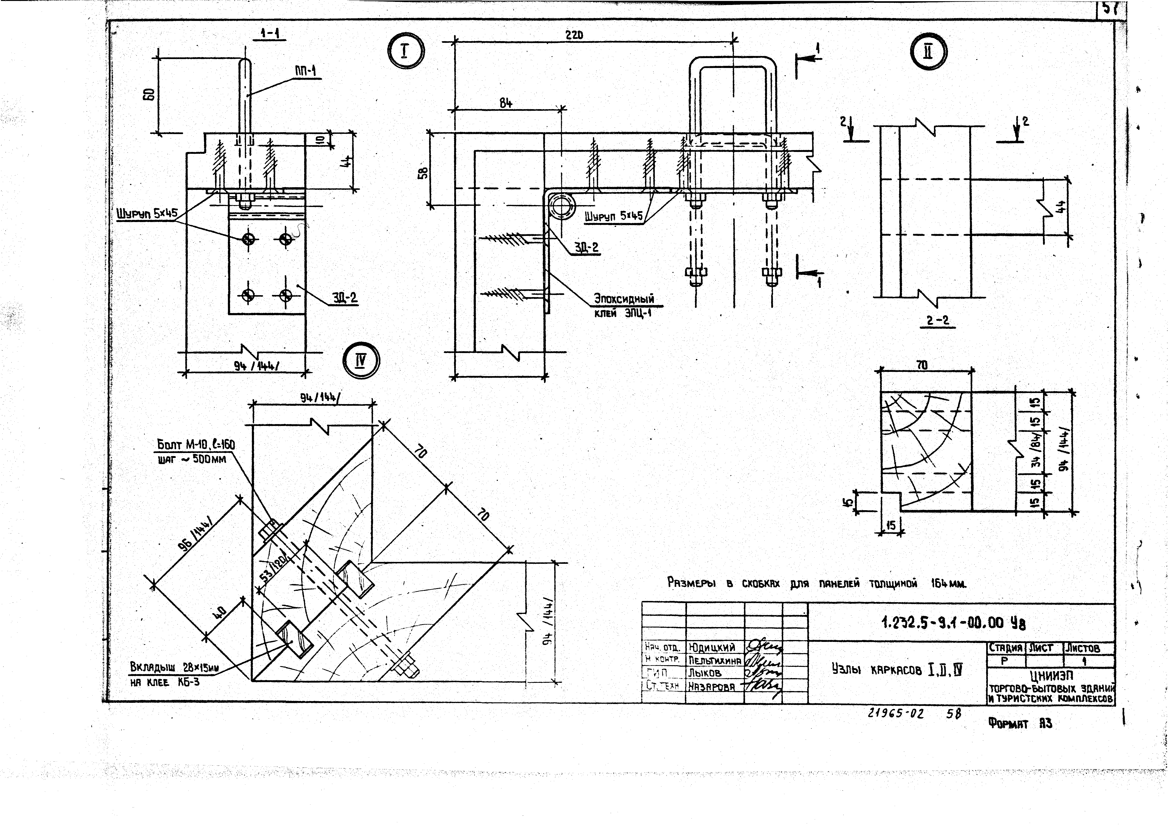
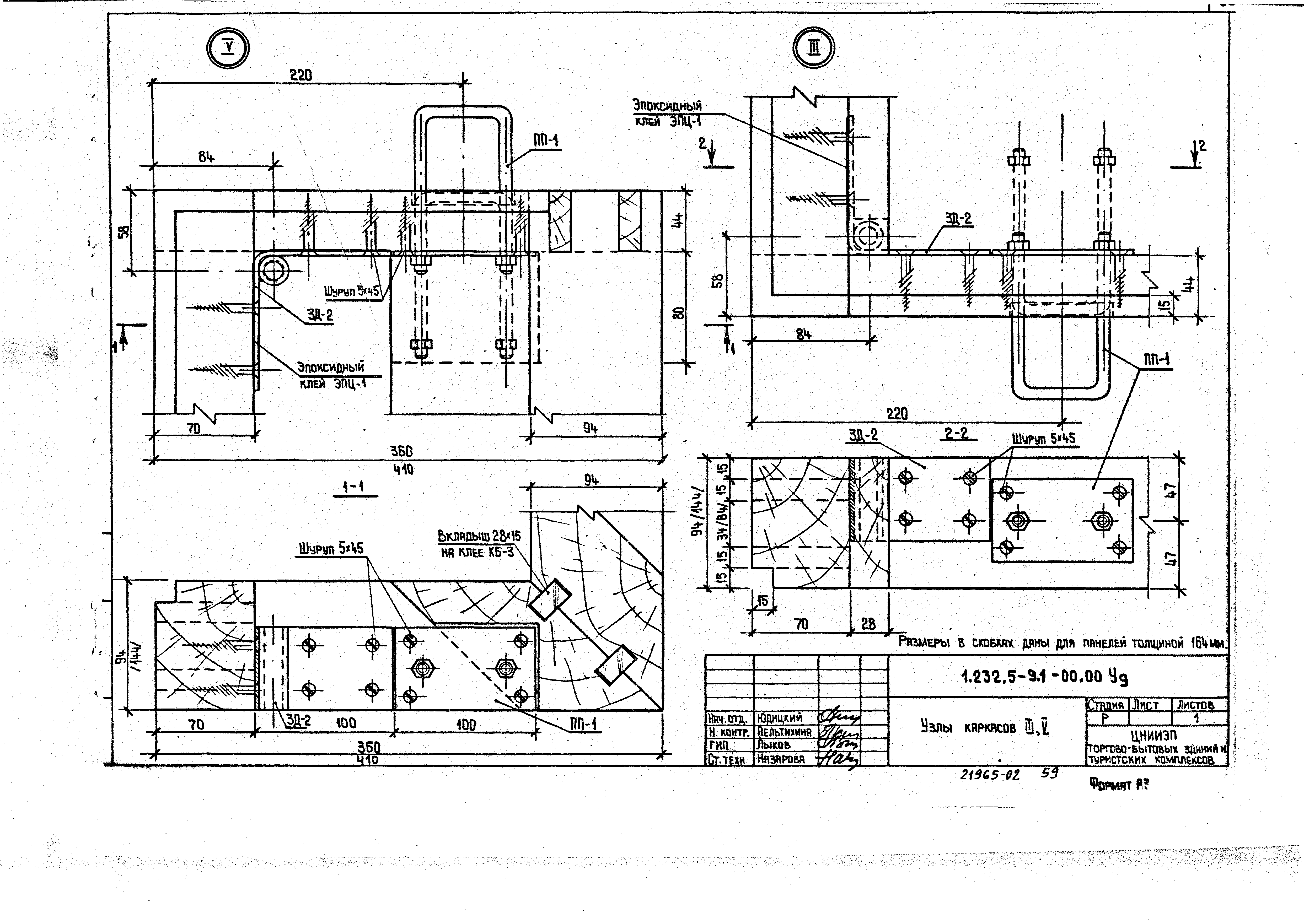
| Оглавление: | 1.232.5-9.1-00.00 ТО Техническое описание 1.232.5-9.1-01.00 Панель ПР1-12.28.12… ПП1-10.39.12 1.232.5-9.1-01.00 СБ Панель ПР1-12.28.12… ПП1-10.39.12. Сборочный чертеж 1.232.5-9.1-01.10 Каркас КД-1… КД-12 1.232.5-9.1-01.10 СБ Каркас КД-1… КД-12. Сборочный чертеж 1.232.5-9.1-02.00 Панель ПР2-12.28.12-1… ПП2-10.42.12-3 1.232.5-9.1-02.00 СБ Панель ПР2-12.28.12-1… ПП2-10.42.12-3. Сборочный чертеж 1.232.5-9.1-02.10 Каркас КД-13… КД-20 1.232.5-9.1-02.10 СБ Каркас КД-13… КД-20. Сборочный чертеж 1.232.5-9.1-03.00 Панель ПР3-12.28.12… ПП3-10.42.12 1.232.5-9.1-03.00 СБ Панель ПР3-12.28.12… ПП3-10.42.12. Сборочный чертеж 1.232.5-9.1-03.10 Каркас КД-21… КД-24 1.232.5-9.1-03.10 СБ Каркас КД-21… КД-24. Сборочный чертеж 1.232.5-9.1-04.00 Панель ПУ-9.28.12-Н… ПУ-10.6.12-Н 1.232.5-9.1-04.00 СБ Панель ПУ-9.28.12-Н… ПУ-10.6.12-Н. Сборочный чертеж 1.232.5-9.1-04.10 Каркас КД-25… КД-36 1.232.5-9.1-04.10 СБ Каркас КД-25… КД-36. Сборочный чертеж 1.232.5-9.1-05.00 Панель ПУ-3.28.12-В… ППУ-4.6.12-В 1.232.5-9.1-05.00 СБ Панель ПУ-3.28.12-В… ППУ-4.6.12-В. Сборочный чертеж 1.232.5-9.1-05.10 Каркас КД-37… КД-48 1.232.5-9.1-05.10 СБ Каркас КД-37… КД-48. Сборочный чертеж 1.232.5-9.1-06.00 Панель ПР1-12.28.17… ПП1-10.39.17 1.232.5-9.1-06.00 СБ Панель ПР1-12.28.17… ПП1-10.39.17. Сборочный чертеж 1.232.5-9.1-06.10 Каркас КД-49… КД-60 1.232.5-9.1-06.10 СБ Каркас КД-49… КД-60. Сборочный чертеж 1.232.5-9.1-07.00 Панель ПР2-12.28.17-1… ПР2-10.42.17-3 1.232.5-9.1-07.00 СБ Панель ПР2-12.28.17-1… ПР2-10.42.17-3. Сборочный чертеж 1.232.5-9.1-07.10 Каркас КД-61… КД-68 1.232.5-9.1-07.10 СБ Каркас КД-61… КД-68. Сборочный чертеж 1.232.5-9.1-08.00 Панель ПР3-12.28.17… ПР3-10.42.17 1.232.5-9.1-08.00 СБ Панель ПР3-12.28.17… ПР3-10.42.17. Сборочный чертеж 1.232.5-9.1-08.10 Каркас КД-69… КД-72 1.232.5-9.1-08.10 СБ Каркас КД-69… КД-72. Сборочный чертеж 1.232.5-9.1-09.00 Панель ПУ-9.28.17-Н… ПУ-10.6.17-Н 1.232.5-9.1-09.00 СБ Панель ПУ-9.28.17-Н… ПУ-10.6.17-Н. Сборочный чертеж 1.232.5-9.1-09.10 Каркас КД-73… КД-84 1.232.5-9.1-09.10 СБ Каркас КД-73… КД-84. Сборочный чертеж 1.232.5-9.1-10.00 Панель ПУ-3.28.17-В… ППУ-4.6.17-В 1.232.5-9.1-10.00 СБ Панель ПУ-3.28.17-В… ППУ-4.6.17-В. Сборочный чертеж 1.232.5-9.1-10.10 Каркас КД-85… КД-96 1.232.5-9.1-10.10 СБ Каркас КД-85… КД-96. Сборочный чертеж 1.232.5-9.1-00.01 Подъемная плита ПП-1 1.232.5-9.1-00.01 СБ Подъемная плита ПП-1. Сборочный чертеж 1.232.5-9.1-00.02 Хомут 1.232.5-9.1-00.03 Пластина 1.232.5-9.1-00.04 Закладная деталь ЗД-1 1.232.5-9.1-00.04 СБ Закладная деталь ЗД-1. Сборочный чертеж 1.232.5-9.1-00.05 Втулка 1.232.5-9.1-00.06 Пластина 1.232.5-9.1-00.07 Закладная деталь ЗД-2 1.232.5-9.1-00.08 Уголок 1.232.5-9.1-00.00 У1 Узлы I - V для панелей б = 114 м 1.232.5-9.1-00.00 У2 Узлы VI - IX для панелей б = 114 м 1.232.5-9.1-00.00 У3 Узлы X, XI для панелей б = 114 м 1.232.5-9.1-00.00 У4 Узлы I - III для панелей б = 114 м 1.232.5-9.1-00.00 У5 Узлы IV - VI для панелей б = 114 м 1.232.5-9.1-00.00 У6 Узлы VII - IX для панелей б = 114 м 1.232.5-9.1-00.00 У7 Узлы X, XI для панелей б = 114 м 1.232.5-9.1-00.00 У8 Узлы I, II, IV для панелей б = 114 м 1.232.5-9.1-00.00 У9 Узлы III, V для панелей б = 114 м 1.232.5-9.1-00.00 РН Ведомость расхода материалов |
| Разработан: | ЦНИИЭП торгово-бытовых зданий и туристских комплексов |
| Утверждён: | 29.12.1986 Государственный комитет по гражданскому строительству и архитектуре при Госстрое СССР (457) |
| Нормативные ссылки: |
|





























































