Скачать Серия 1.236.5-9 Окна и балконные двери деревянные с тройным остеклением для общественных зданий. Рабочие чертежиДата актуализации: 01.01.2021
|
| Обозначение: | Серия 1.236.5-9 |
| Обозначение англ: | Series 1.236.5-9 |
| Статус: | не действует |
| Название рус.: | Окна и балконные двери деревянные с тройным остеклением для общественных зданий. Рабочие чертежи |
| Дата добавления в базу: | 01.09.2013 |
| Дата актуализации: | 01.01.2021 |
| Дата введения: | 01.10.1981 |
| Дата окончания срока действия: | 01.06.1988 |
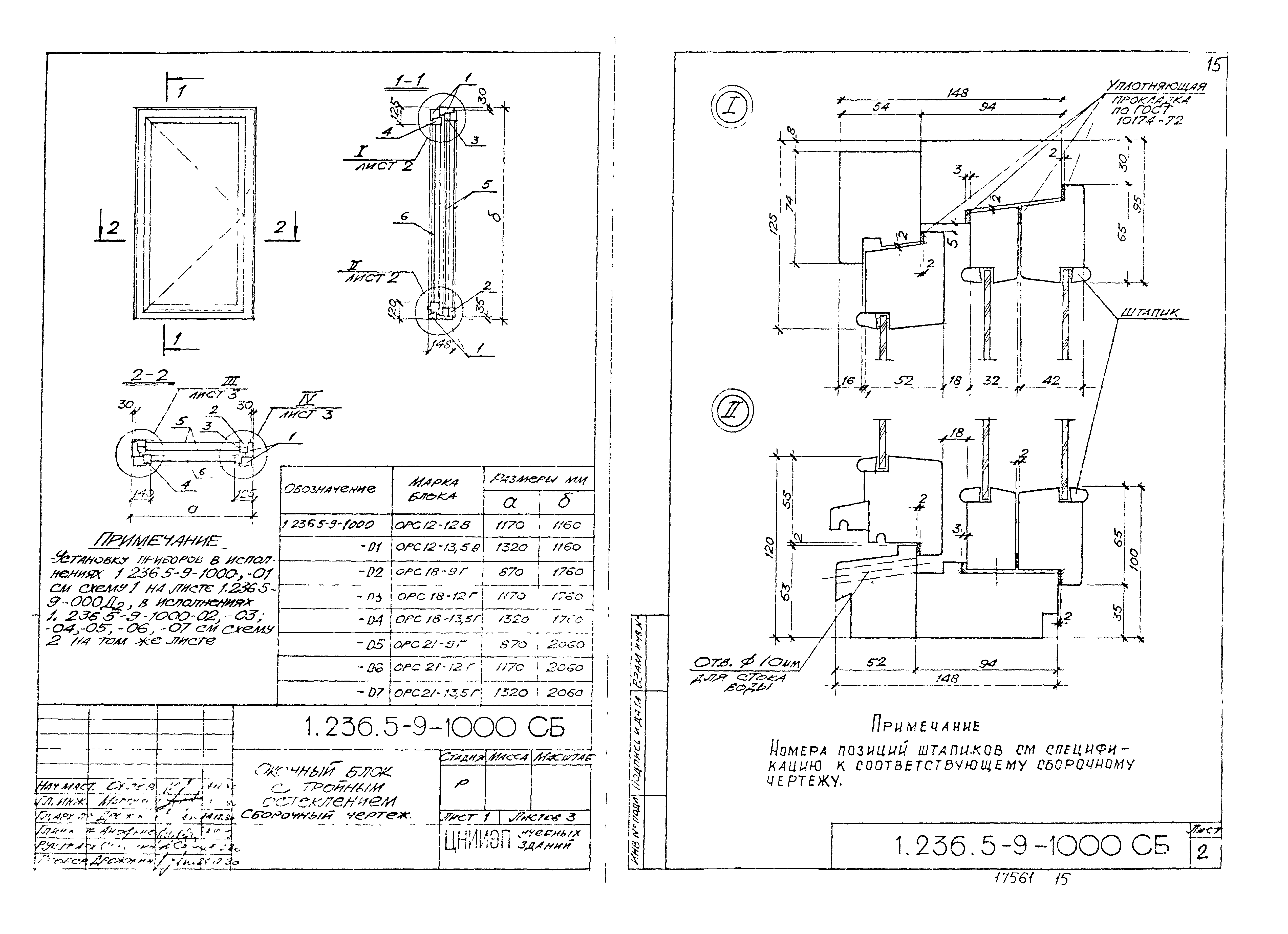
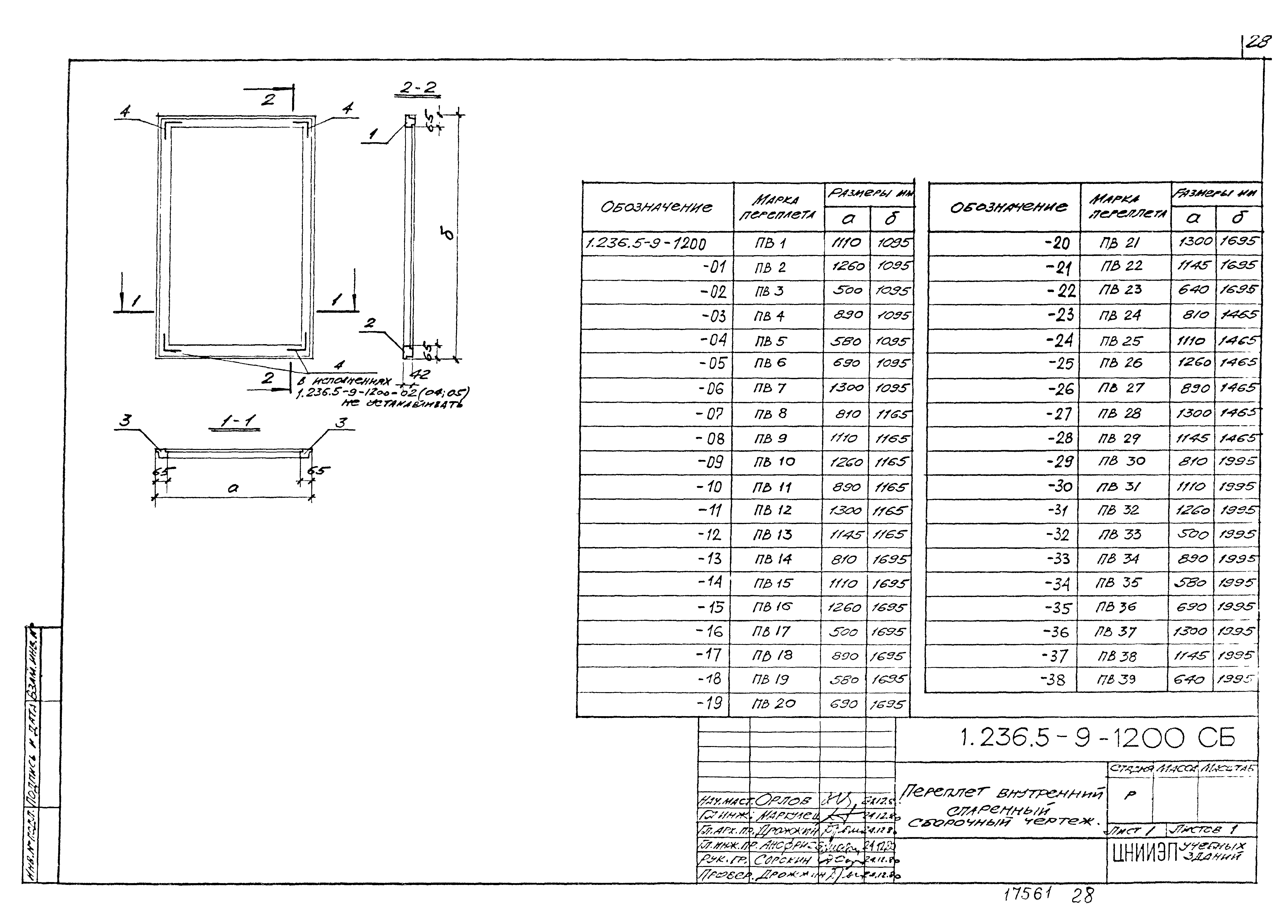
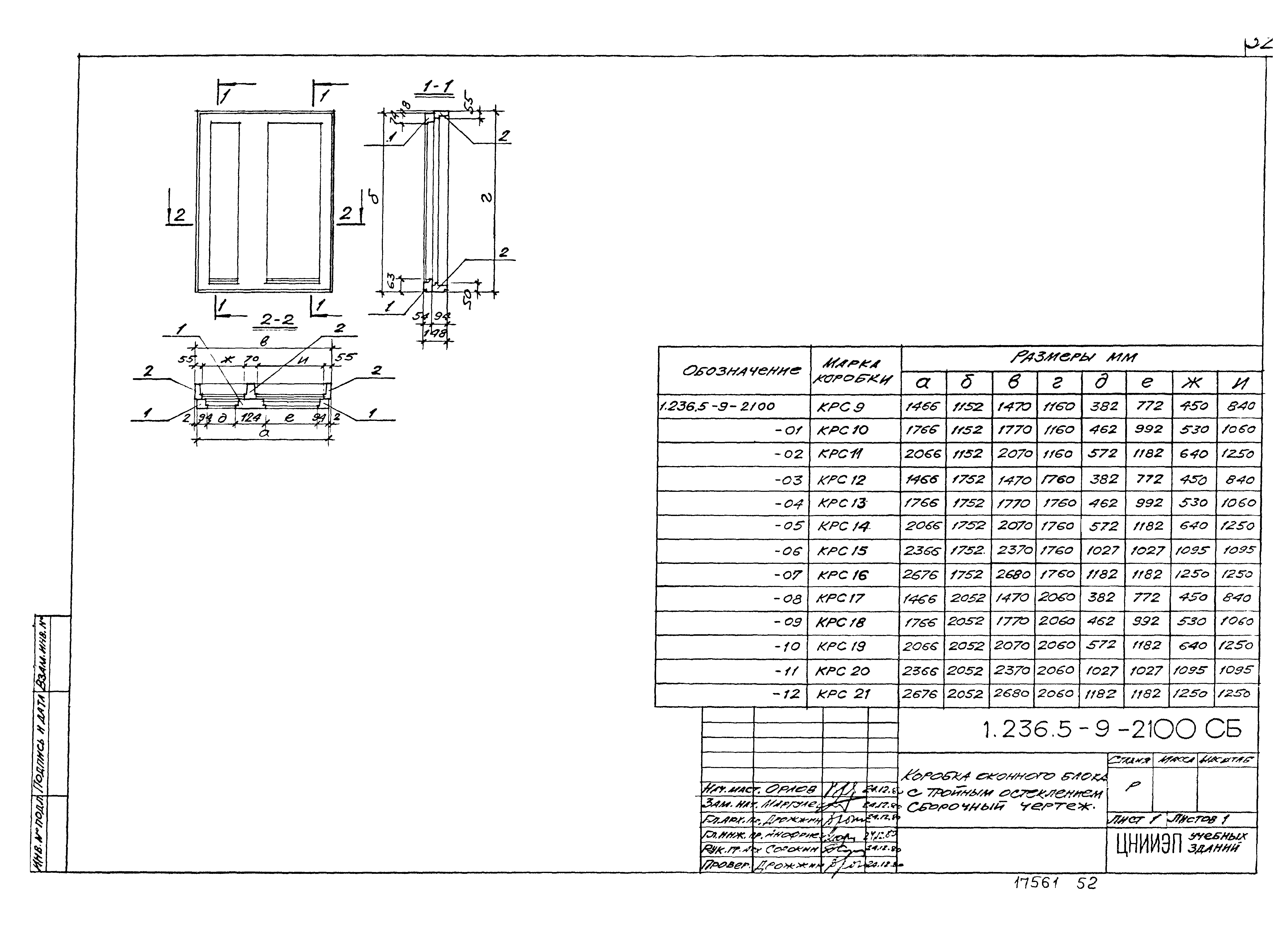
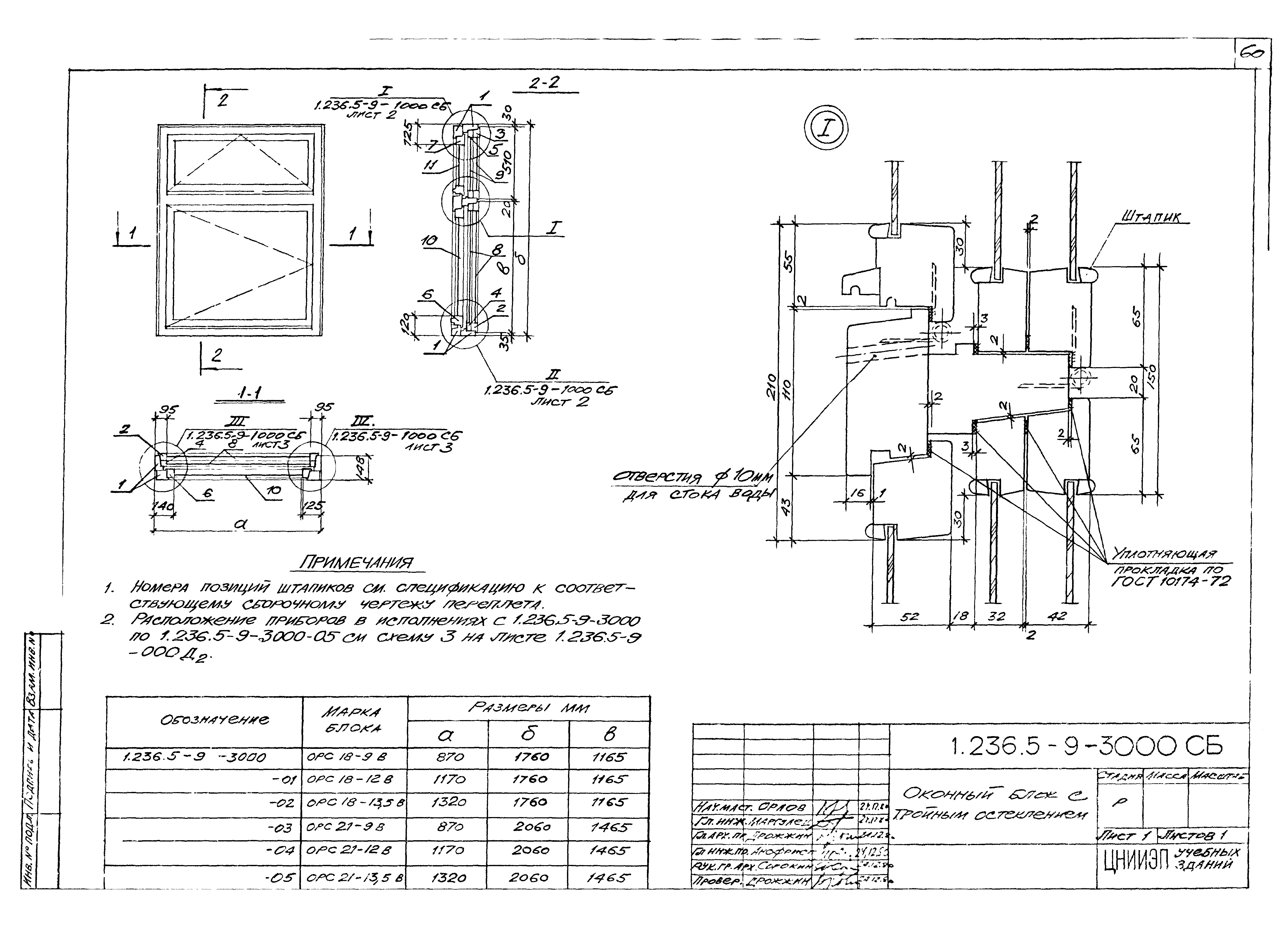
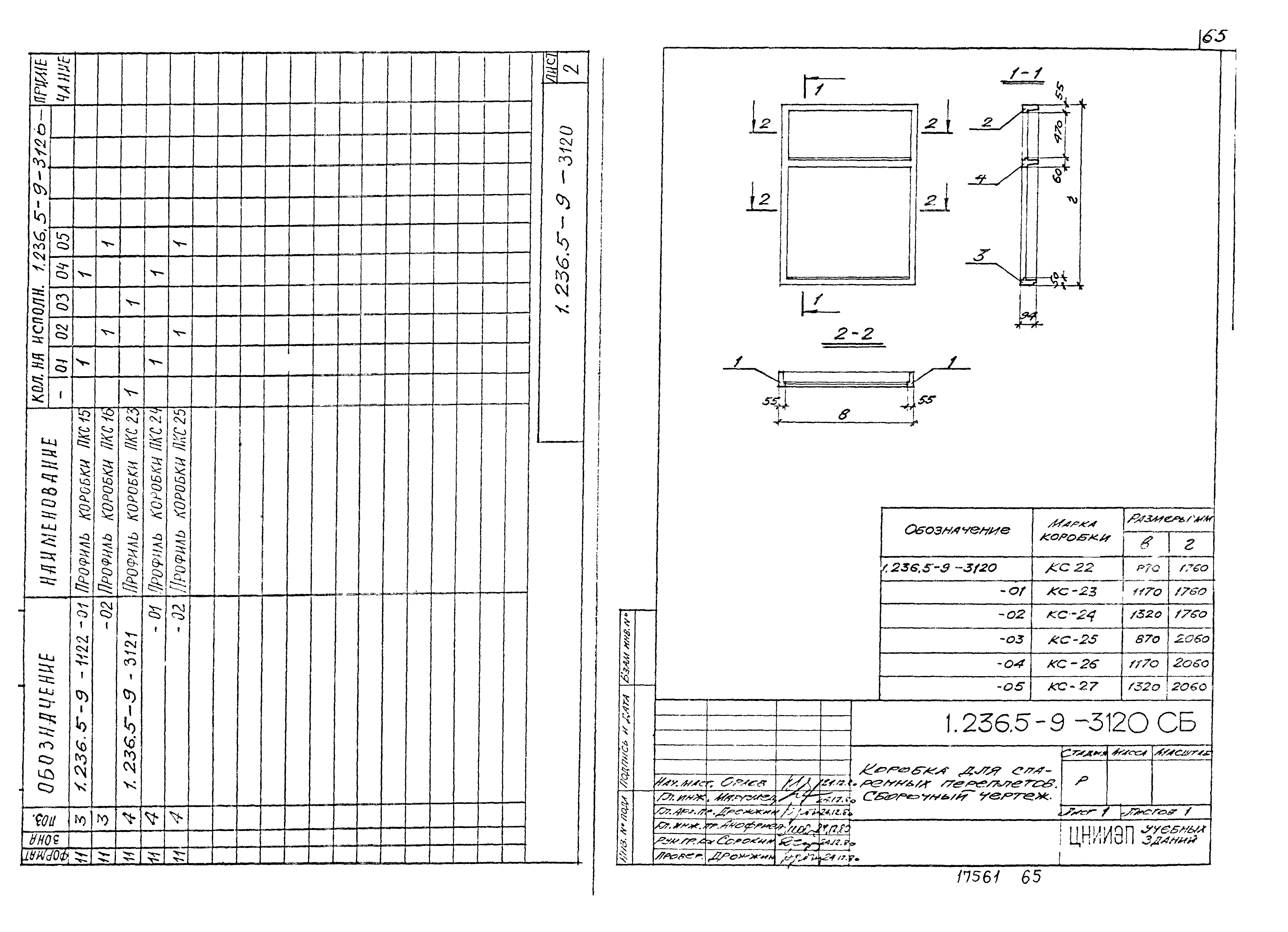
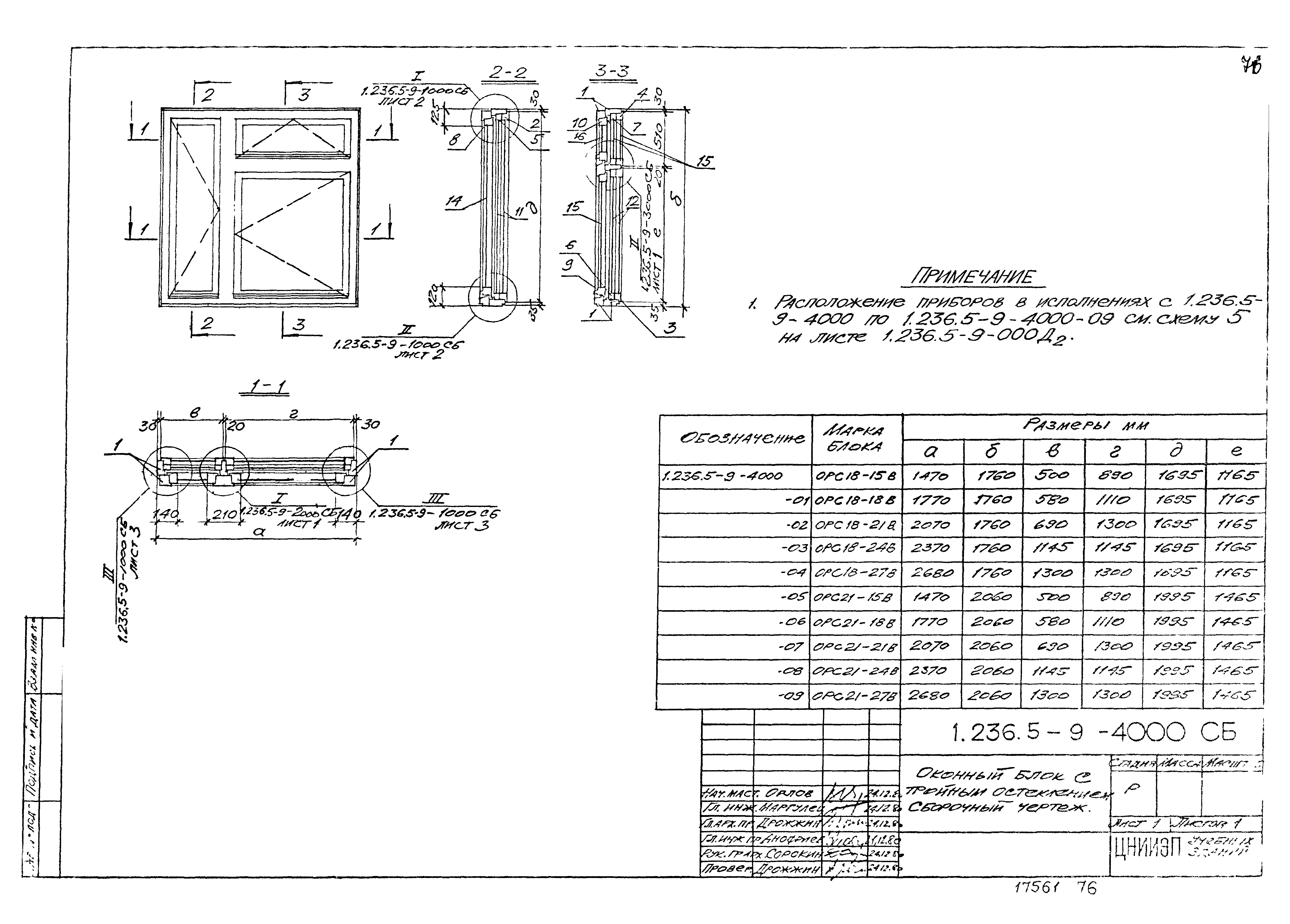
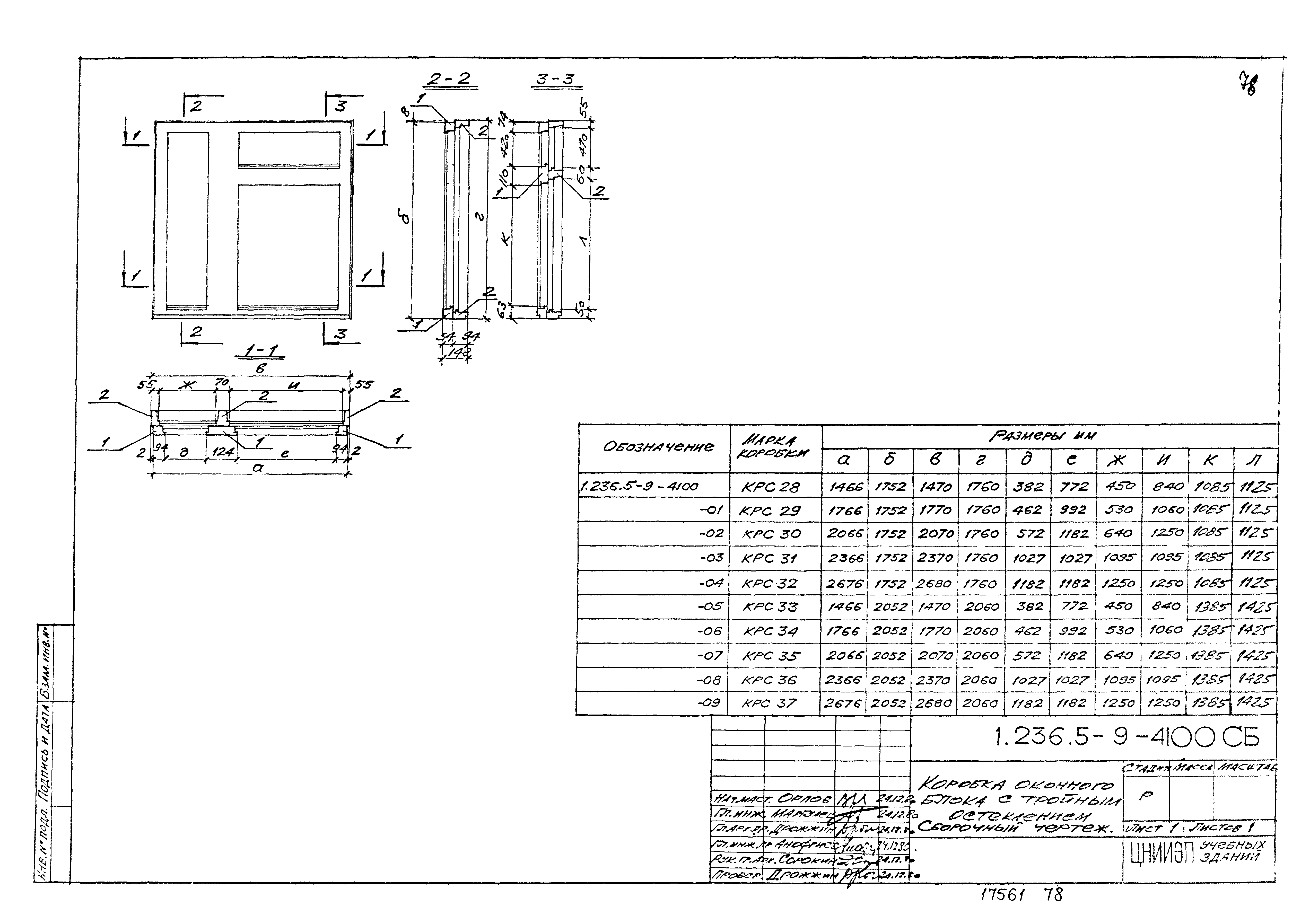
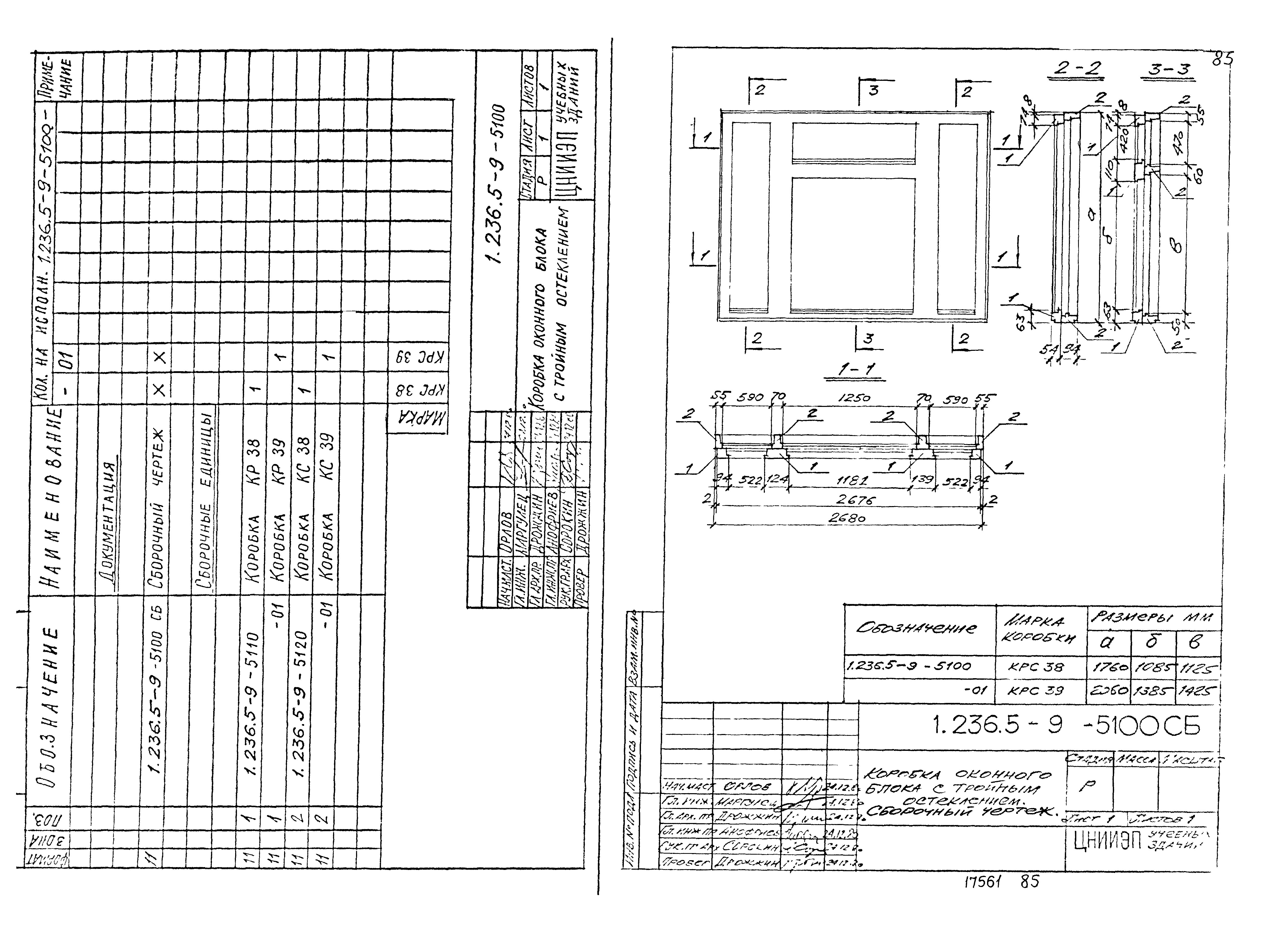
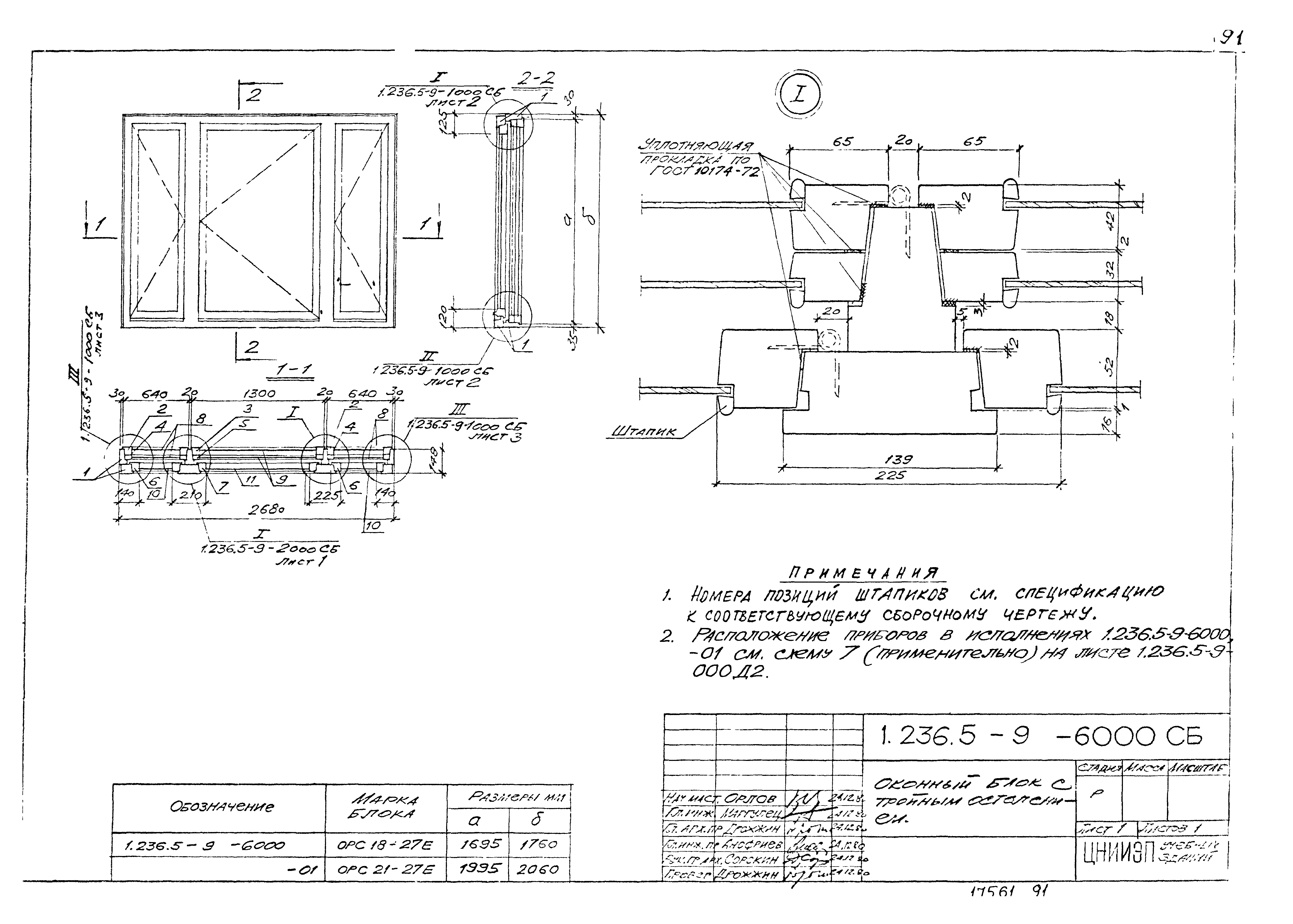
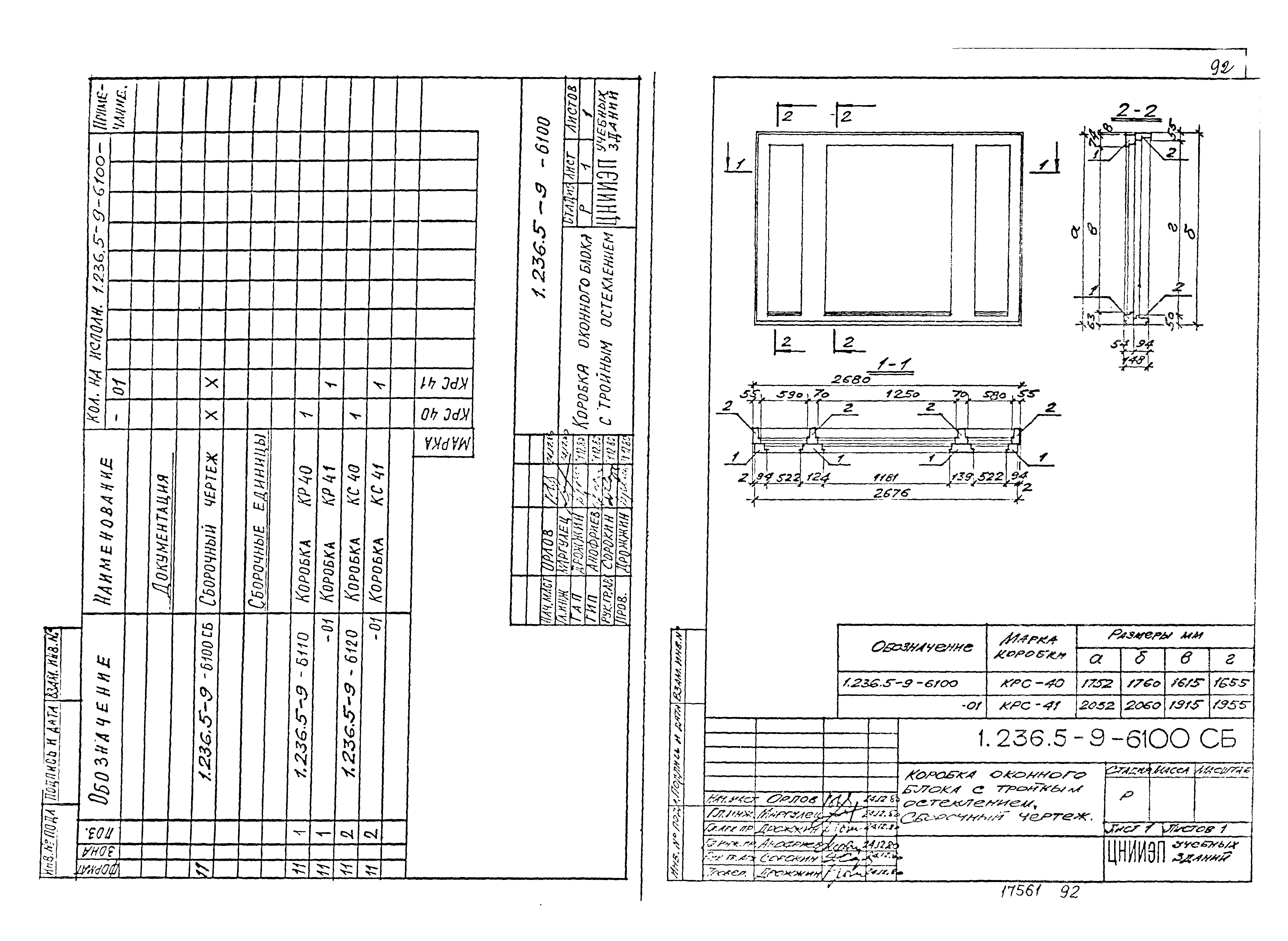
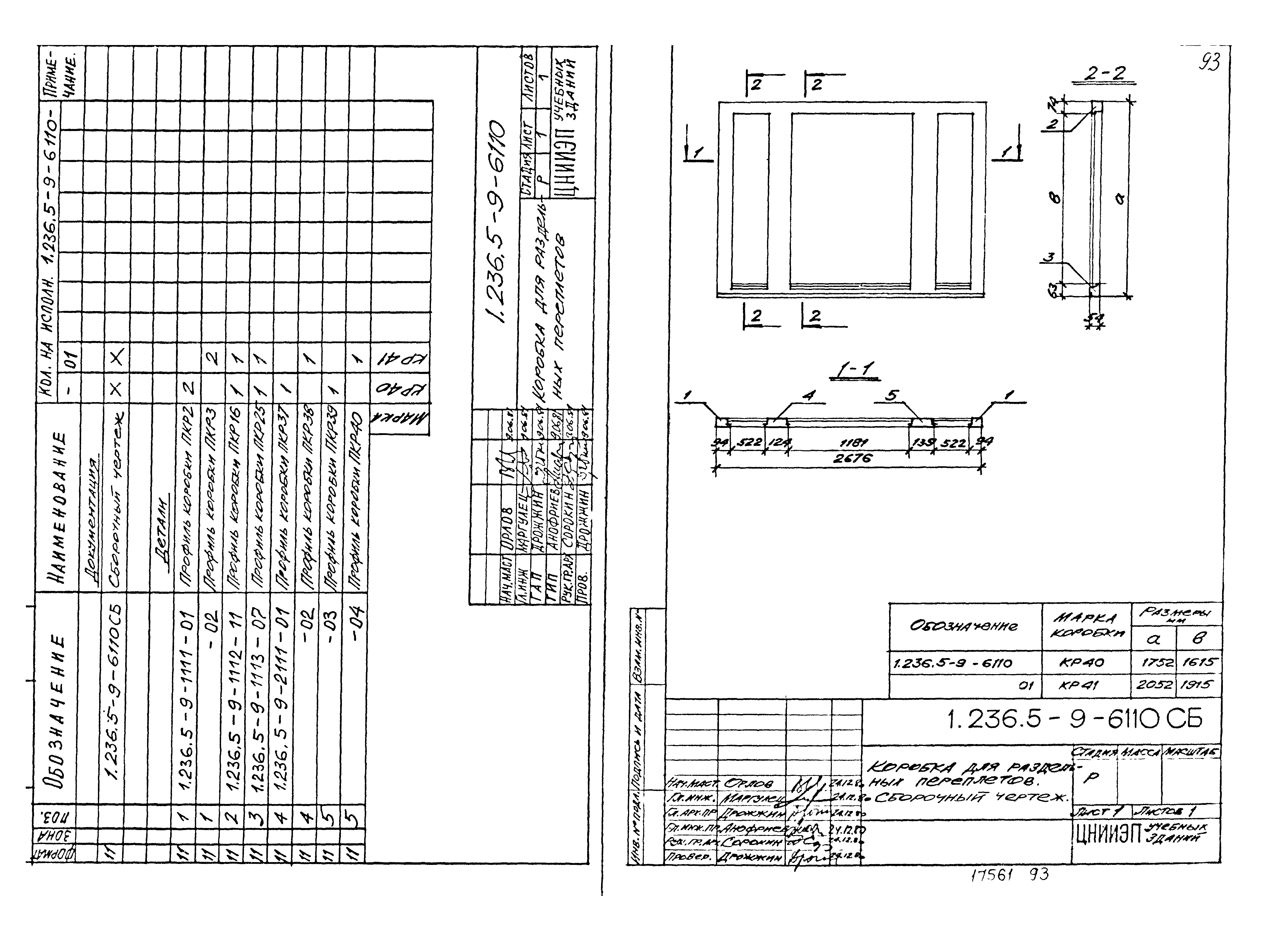
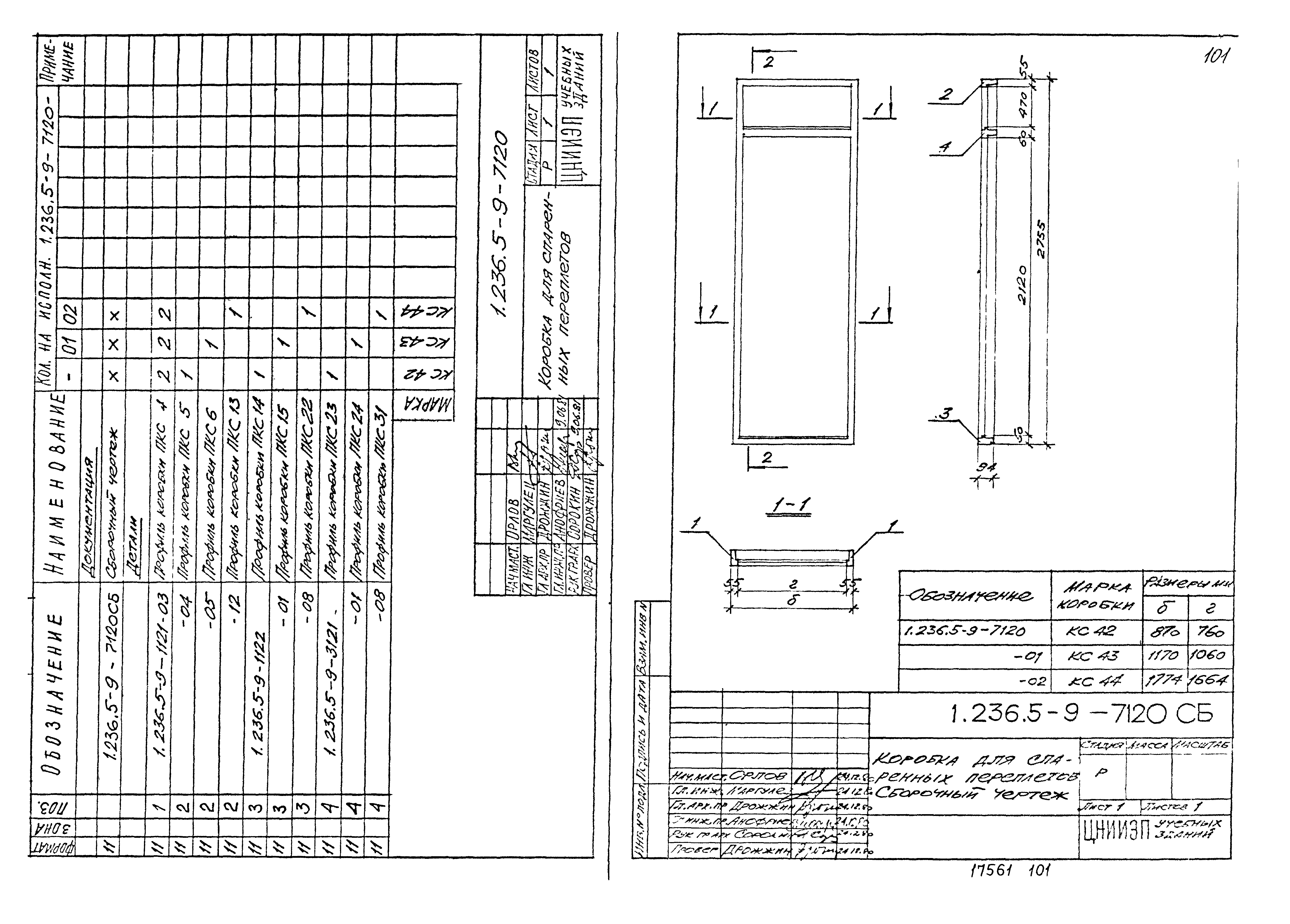
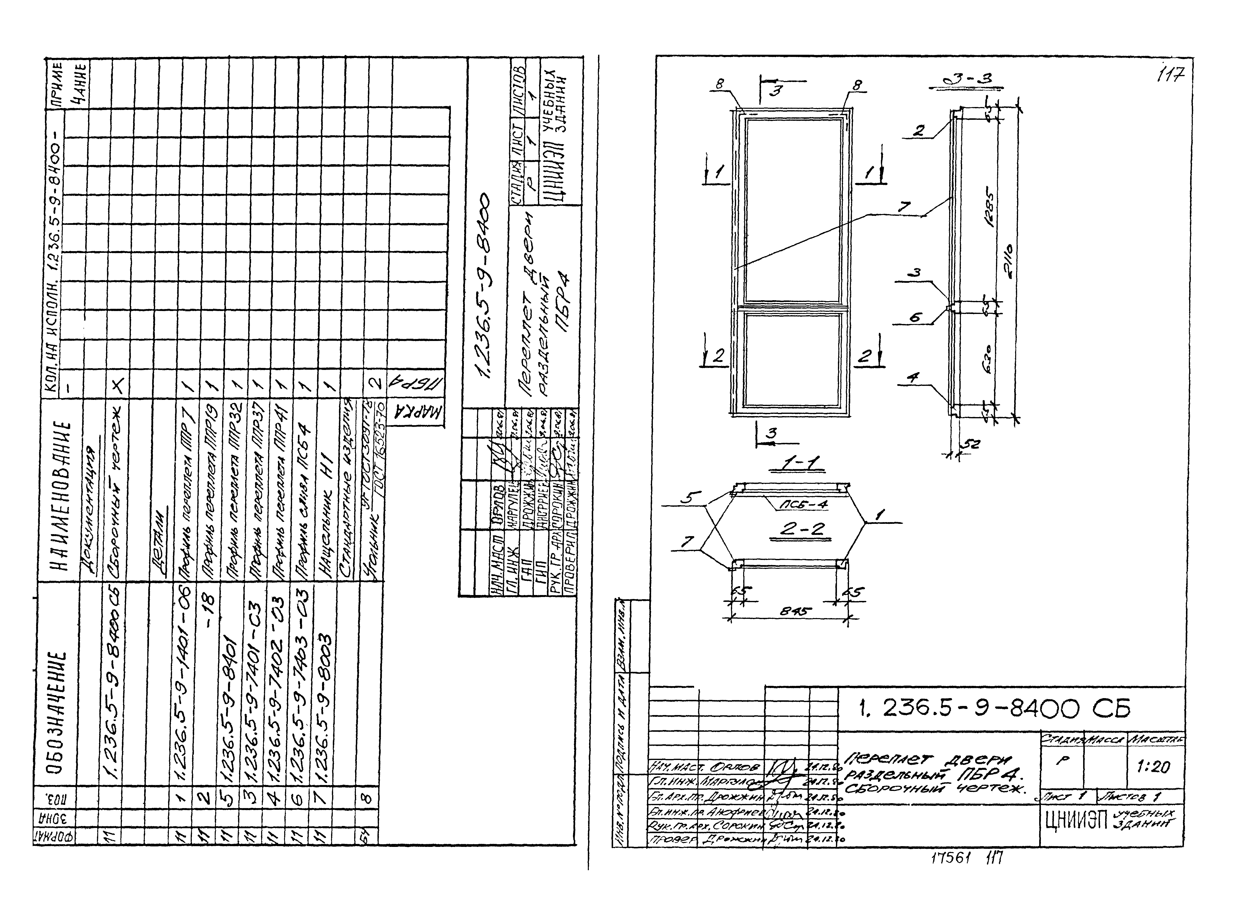
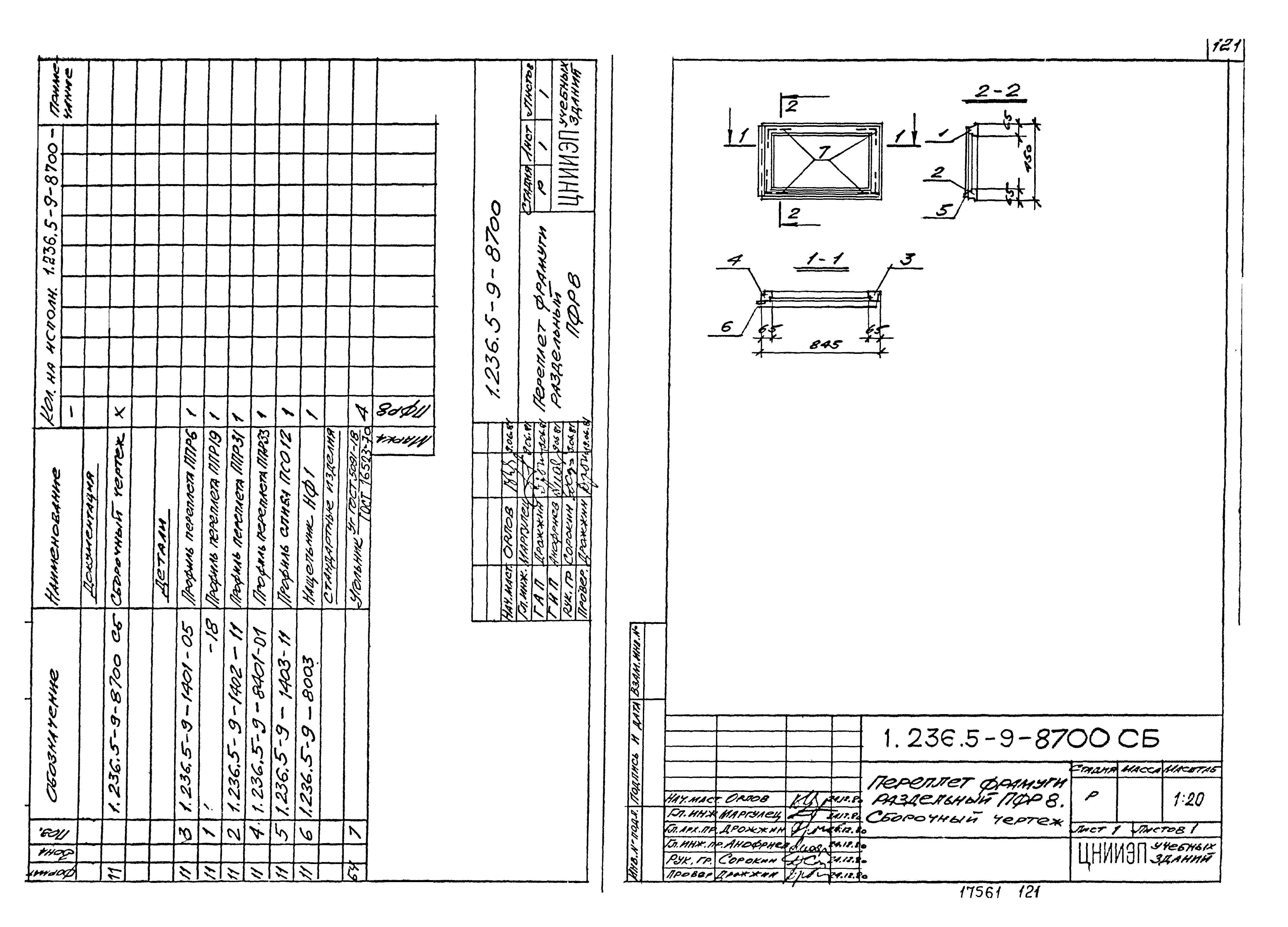
| Оглавление: | 1.236.5-9-000 ПЗ Пояснительная записка 1.236.5-9-000 Д1 Номенклатура изделий 1.236.5-9-000 Д2 Схемы расположения приборов в окнах и балконных дверях 1.236.5-9-1000 Оконный блок с тройным остеклением 1.236.5-9-1000 СБ Оконный блок с тройным остеклением 1.236.5-9-1003 Штапик 1.236.5-9-1100 Коробка оконного блока с тройным остеклением 1.236.5-9-1100 СБ Коробка оконного блока с тройным остеклением. Сборочный чертеж 1.236.5-9-1110 Коробка для раздельных переплетов 1.236.5-9-1110 СБ Коробка для раздельных переплетов. Сборочный чертеж 1.236.5-9-1111 Профиль коробки 1.236.5-9-1112 Профиль коробки 1.236.5-9-1113 Профиль коробки 1.236.5-9-1120 Коробка для спаренного переплета 1.236.5-9-1120 СБ Коробка для спаренного переплета. Сборочный чертеж 1.236.5-9-1121 Профиль коробки 1.236.5-9-1122 Профиль коробки 1.236.5-9-1200 Переплет внутренний спаренный 1.236.5-9-1200 СБ Переплет внутренний спаренный. Сборочный чертеж 1.236.5-9-1201 Профиль внутреннего переплета 1.236.5-9-1202 Профиль внутреннего переплета 1.236.5-9-1300 Переплет средний спаренный 1.236.5-9-1300 СБ Переплет средний спаренный. Сборочный чертеж 1.236.5-9-1301 Профиль переплета среднего спаренного 1.236.5-9-1302 Профиль переплета среднего спаренного 1.236.5-9-1400 Переплет раздельный 1.236.5-9-1400 СБ Переплет оконный раздельный. Сборочный чертеж 1.236.5-9-1401 Профиль раздельного переплета 1.236.5-9-1402 Профиль раздельного переплета 1.236.5-9-1403 Профиль слива оконных и фрамужных раздельных переплетов 1.236.5-9-2000 Оконный блок с тройным остеклением 1.236.5-9-2000 СБ Оконный блок с тройным остеклением. Сборочный чертеж 1.236.5-9-2100 Коробка оконного блока с тройным остеклением 1.236.5-9-2100 СБ Коробка оконного блока с тройным остеклением. Сборочный чертеж 1.236.5-9-2110 Коробка для раздельных переплетов 1.236.5-9-2110 СБ Коробка для раздельных переплетов. Сборочный чертеж 1.236.5-9-2111 Профиль коробки 1.236.5-9-2120 Коробка для спаренных переплетов 1.236.5-9-2120 СБ Коробка для спаренных переплетов. Сборочный чертеж 1.236.5-9-2121 Профиль коробки 1.236.5-9-3000 Оконный блок с тройным остеклением 1.236.5-9-3000 СБ Оконный блок с тройным остеклением. Сборочный чертеж 1.236.5-9-3100 Коробка оконного блока с тройным остеклением 1.236.5-9-3100 СБ Коробка оконного блока с тройным остеклением. Сборочный чертеж 1.236.5-9-3110 Коробка для раздельных переплетов 1.236.5-9-3110 СБ Коробка для раздельных переплетов. Сборочный чертеж 1.236.5-9-3111 Профиль коробки 1.236.5-9-3120 Коробка для спаренных переплетов 1.236.5-9-3120 СБ Коробка для спаренных переплетов. Сборочный чертеж 1.236.5-9-3121 Профиль коробки 1.236.5-9-3200 Переплет фрамуги внутренний спаренный 1.236.5-9-3200 СБ Переплет фрамуги внутренний спаренный. Сборочный чертеж 1.236.5-9-3300 Переплет фрамуги средний спаренный 1.236.5-9-3300 СБ Переплет фрамуги средний спаренный. Сборочный чертеж 1.236.5-9-3400 Переплет фрамуги раздельный 1.236.5-9-3400 СБ Переплет фрамуги раздельный. Сборочный чертеж 1.236.5-9-4000 Оконный блок с тройным остеклением 1.236.5-9-4000 СБ Оконный блок с тройным остеклением. Сборочный чертеж 1.236.5-9-4100 Коробка оконного блока с тройным остеклением 1.236.5-9-4100 СБ Коробка оконного блока с тройным остеклением. Сборочный чертеж 1.236.5-9-4110 Коробка для раздельных переплетов 1.236.5-9-4110 СБ Коробка для раздельных переплетов. Сборочный чертеж 1.236.5-9-4120 Коробка для спаренных переплетов 1.236.5-9-4120 СБ Коробка для спаренных переплетов. Сборочный чертеж 1.236.5-9-5000 Оконный блок с тройным остеклением 1.236.5-9-5000 СБ Оконный блок с тройным остеклением. Сборочный чертеж 1.236.5-9-5100 Коробка для раздельных переплетов 1.236.5-9-5100 СБ Коробка для раздельных переплетов. Сборочный чертеж 1.236.5-9-5110 Коробка для раздельных переплетов 1.236.5-9-5110 СБ Коробка для раздельных переплетов. Сборочный чертеж 1.236.5-9-5120 Коробка для спаренных переплетов 1.236.5-9-5120 СБ Коробка для спаренных переплетов. Сборочный чертеж 1.236.5-9-6000 Оконный блок с тройным остеклением 1.236.5-9-6000 СБ Оконный блок с тройным остеклением. Сборочный чертеж 1.236.5-9-6100 Коробка оконного блока с тройным остеклением 1.236.5-9-6100 СБ Коробка оконного блока с тройным остеклением. Сборочный чертеж 1.236.5-9-6110 Коробка для раздельных переплетов 1.236.5-9-6110 СБ Коробка для раздельных переплетов. Сборочный чертеж 1.236.5-9-6120 Коробка для спаренных переплетов 1.236.5-9-6120 СБ Коробка для спаренных переплетов. Сборочный чертеж 1.236.5-9-7000 Балконная дверь с тройным остеклением 1.236.5-9-7000 СБ Балконная дверь с тройным остеклением. Сборочный чертеж 1.236.5-9-7100 Коробка балконной двери с тройным остеклением 1.236.5-9-7100 СБ Коробка балконной двери с тройным остеклением. Сборочный чертеж 1.236.5-9-7110 Коробка для раздельных переплетов 1.236.5-9-7110 СБ Коробка для раздельных переплетов. Сборочный чертеж 1.236.5-9-7120 Коробка для спаренных переплетов 1.236.5-9-7120 СБ Коробка для спаренных переплетов 1.236.5-9-7200 Переплет двери внутренний спаренный 1.236.5-9-7200 СБ Переплет двери внутренний спаренный. Сборочный чертеж 1.236.5-9-7201 Профиль внутреннего переплета 1.236.5-9-7300 Переплет двери средний спаренный 1.236.5-9-7300 СБ Переплет двери средний спаренный. Сборочный чертеж 1.236.5-9-7301 Профиль переплета среднего спаренного 1.236.5-9-7400 Переплет двери раздельный 1.236.5-9-7400 СБ Переплет двери раздельный. Сборочный чертеж 1.236.5-9-7401 Профиль раздельного переплета 1.236.5-9-7402 Профиль раздельного переплета 1.236.5-9-7403 Профиль слива балконных дверей 1.236.5-9-8000 Балконная дверь с тройным остеклением БРС 28-18 1.236.5-9-8000 СБ Балконная дверь с тройным остеклением БРС 28-19. Сборочный чертеж 1.236.5-9-8100 Коробка балконной двери с тройным остеклением КРС 44 1.236.5-9-8100 СБ Коробка балконной двери с тройным остеклением КРС 44. Сборочный чертеж 1.236.5-9-8110 Коробка для раздельных переплетов КР 44 1.236.5-9-8110 СБ Коробка для раздельных переплетов КР 44. Сборочный чертеж 1.236.5-9-8200 Переплет двери внутренний спаренный ПБВ 4 1.236.5-9-8200 СБ Переплет двери внутренний спаренный ПБВ 4. Сборочный чертеж 1.236.5-9-8201 Профиль внутреннего переплета спаренного 1.236.5-9-8300 Переплет двери средний спаренный ПБС 4 1.236.5-9-8300 СБ Переплет двери средний спаренный ПБС 4. Сборочный чертеж 1.236.5-9-8301 Профиль среднего переплета спаренного 1.236.5-9-8400 Переплет двери раздельный ПБР 4 1.236.5-9-8400 СБ Переплет двери раздельный ПБР 4. Сборочный чертеж 1.236.5-9-8401 Профиль раздельного переплета 1.236.5-9-8003 Профиль нащельника 1.236.5-9-8500 Переплет фрамуги внутренний спаренный ПФВ 8 1.236.5-9-8500 СБ Переплет фрамуги внутренний спаренный ПФВ 8. Сборочный чертеж 1.236.5-9-8600 Переплет фрамуги средний спаренный ПФС 8 1.236.5-9-8600 СБ Переплет фрамуги средний спаренный ПФС 8. Сборочный чертеж 1.236.5-9-8700 Переплет фрамуги раздельный ПФР 8 1.236.5-9-8700 СБ Переплет фрамуги раздельный ПФР 8. Сборочный чертеж 1.236.5-9-000 ВМ Ведомость расхода материалов |
| Разработан: | ЦНИИЭП учебных зданий Госгражданстроя |
| Утверждён: | 15.09.1981 Государственный комитет по гражданскому строительству и архитектуре при Госстрое СССР (268) |

























































































































