Скачать Серия 1.464-11 Выпуск 1. Стальные конструкции фонарей с применением в покрытии стального профилированного настила. Чертежи КМДДата актуализации: 01.01.2021
|
| Обозначение: | Серия 1.464-11 |
| Обозначение англ: | Series 1.464-11 |
| Статус: | заменен |
| Название рус.: | Выпуск 1. Стальные конструкции фонарей с применением в покрытии стального профилированного настила. Чертежи КМД |
| Дата добавления в базу: | 01.09.2013 |
| Дата актуализации: | 01.01.2021 |
| Дата введения: | 01.01.1978 |
| Дата окончания срока действия: | 01.04.1983 |
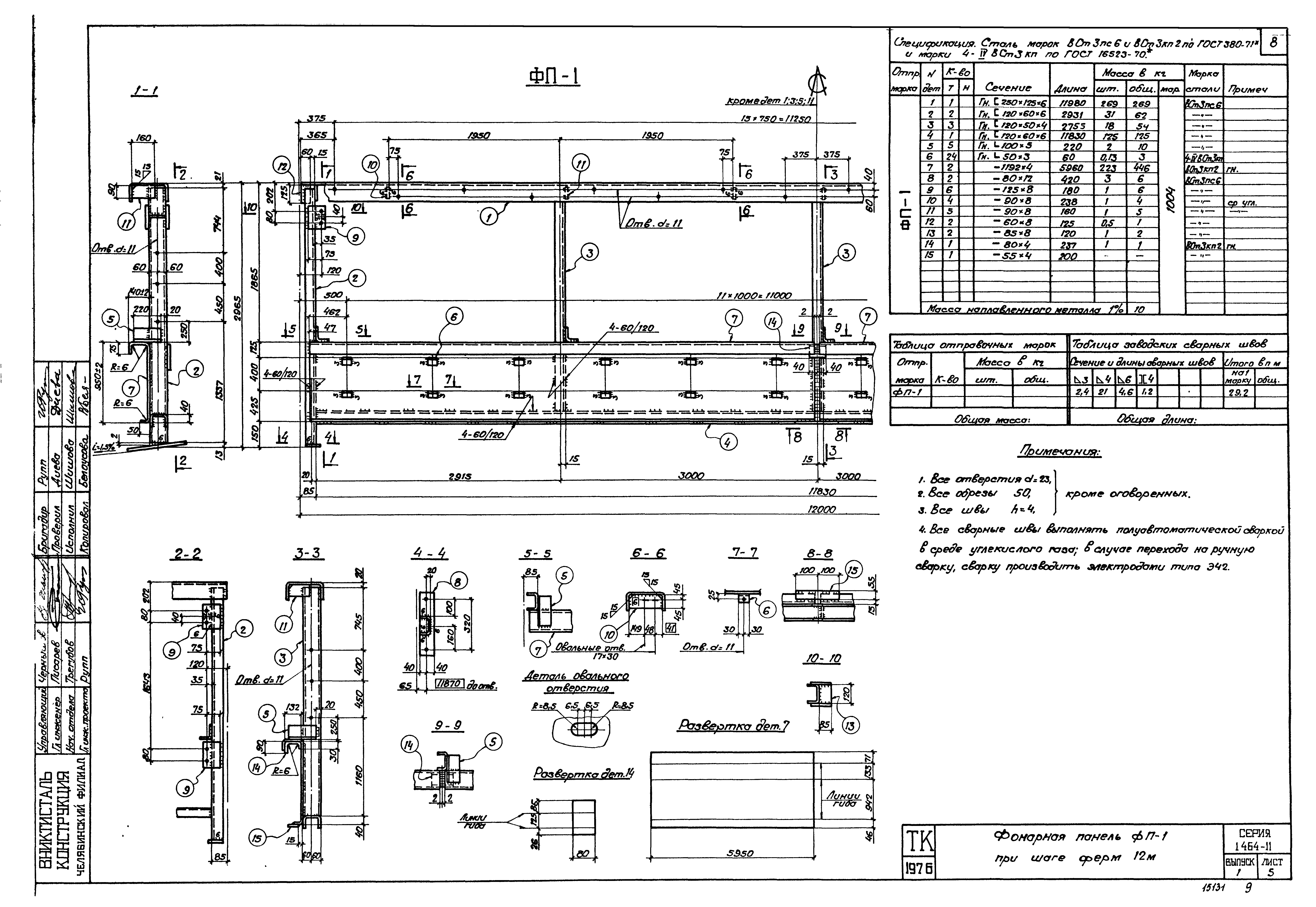
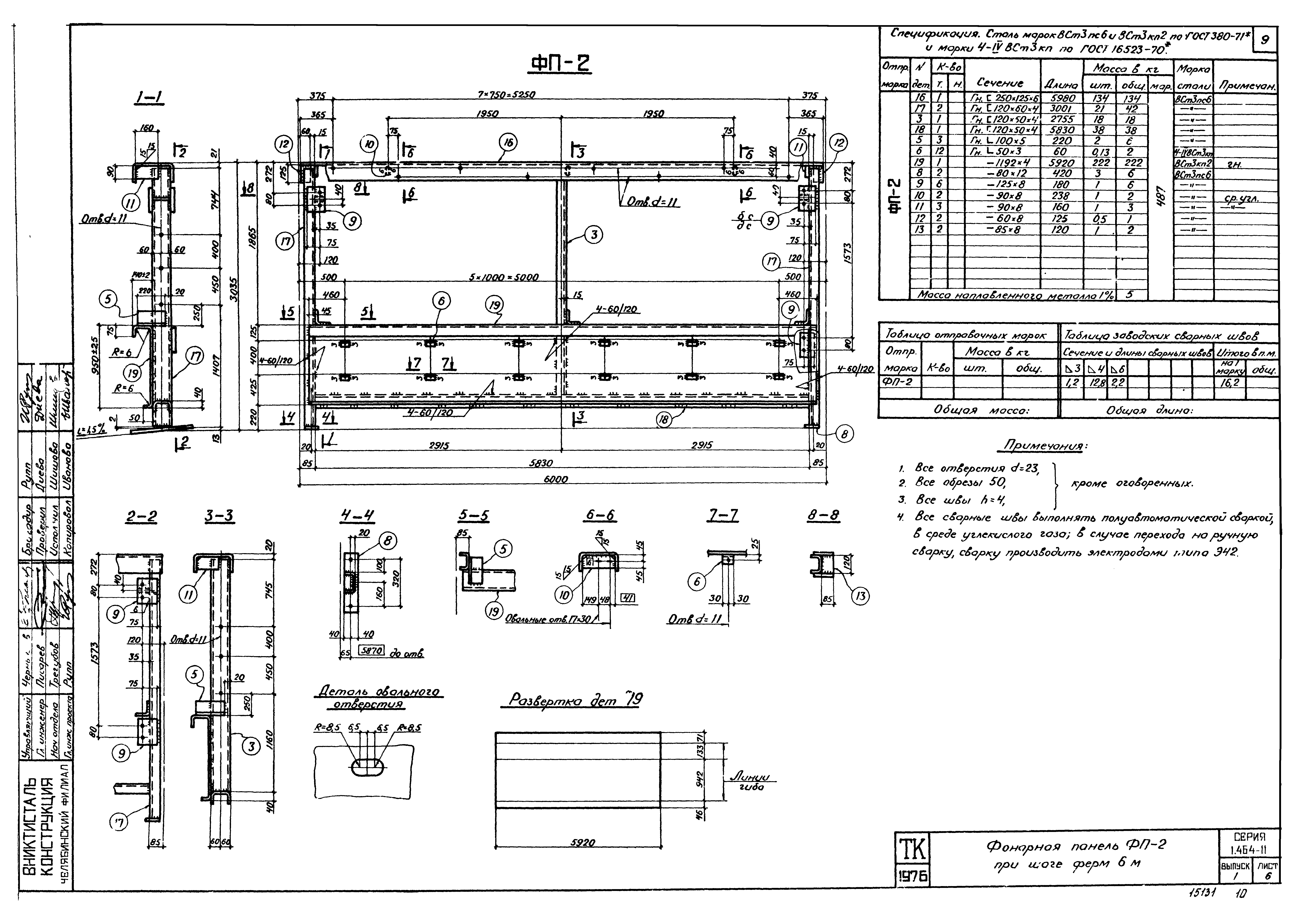
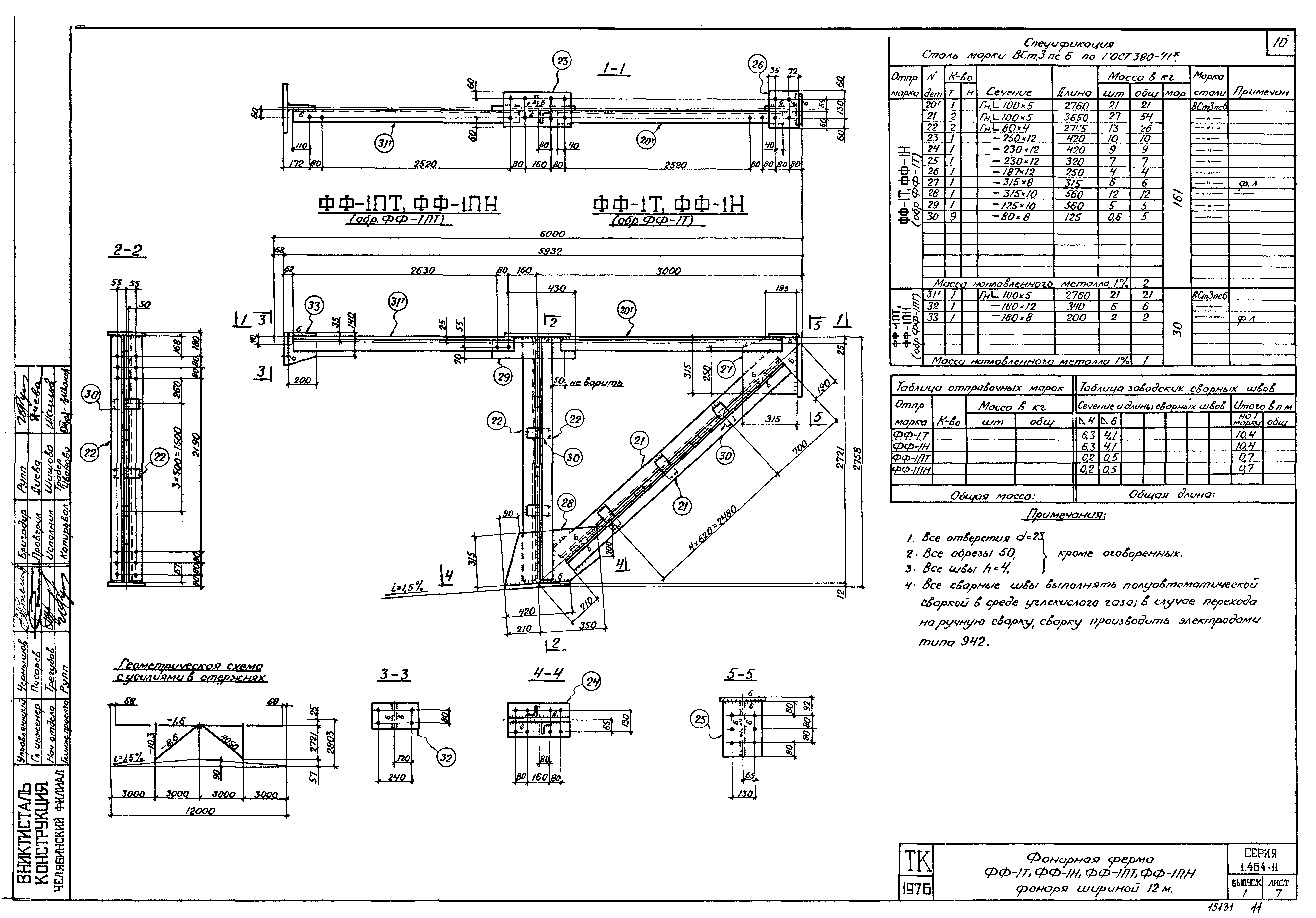
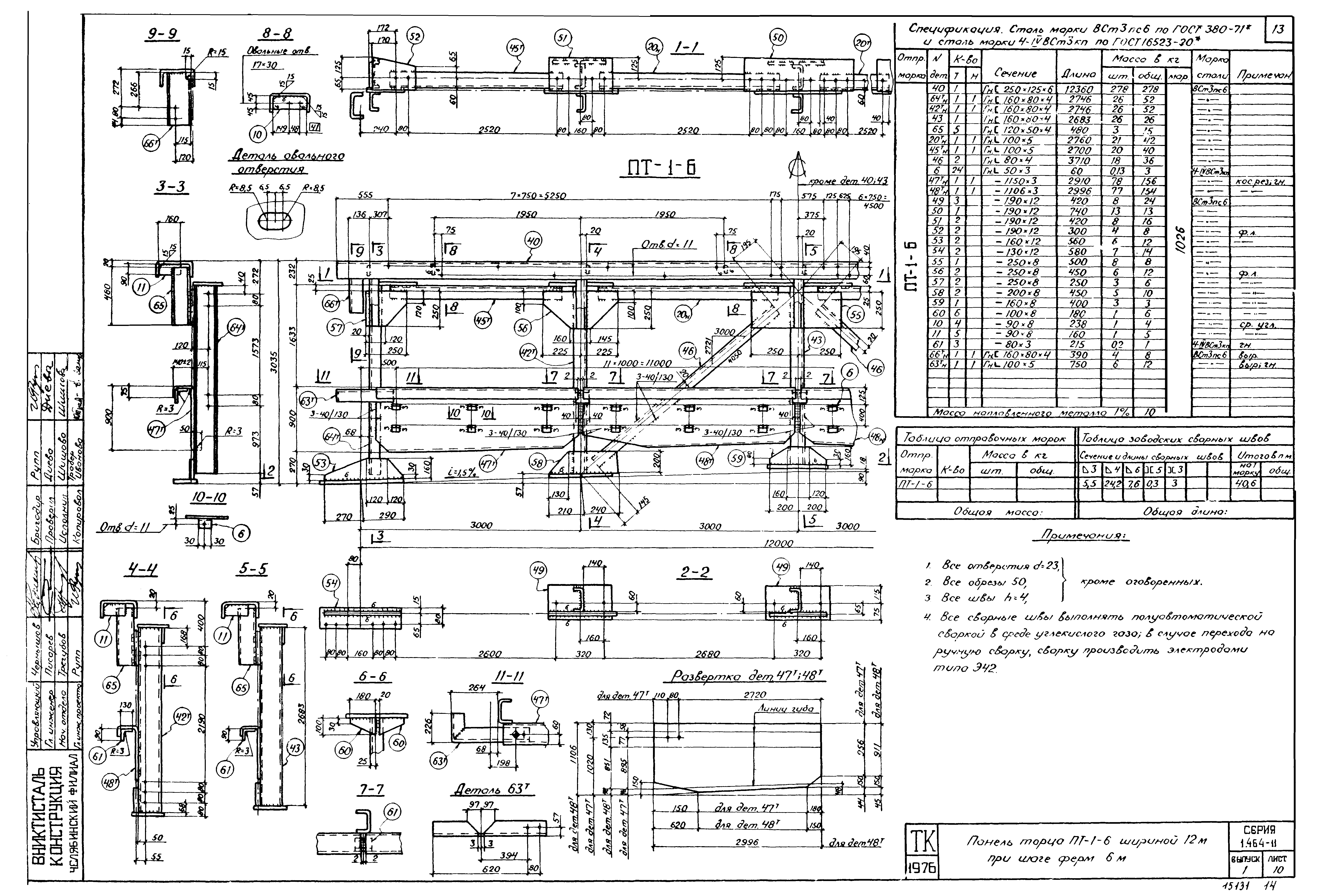
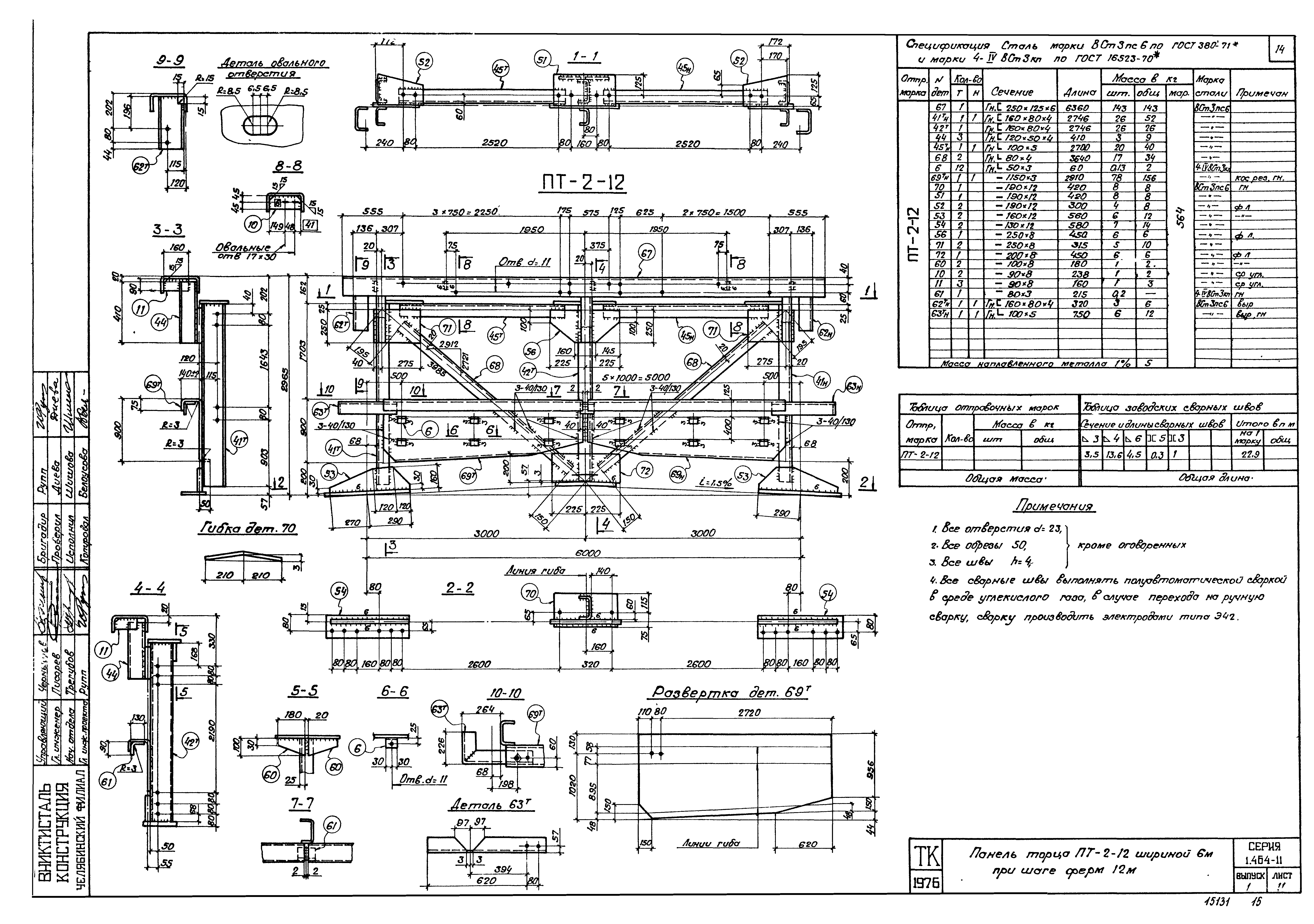
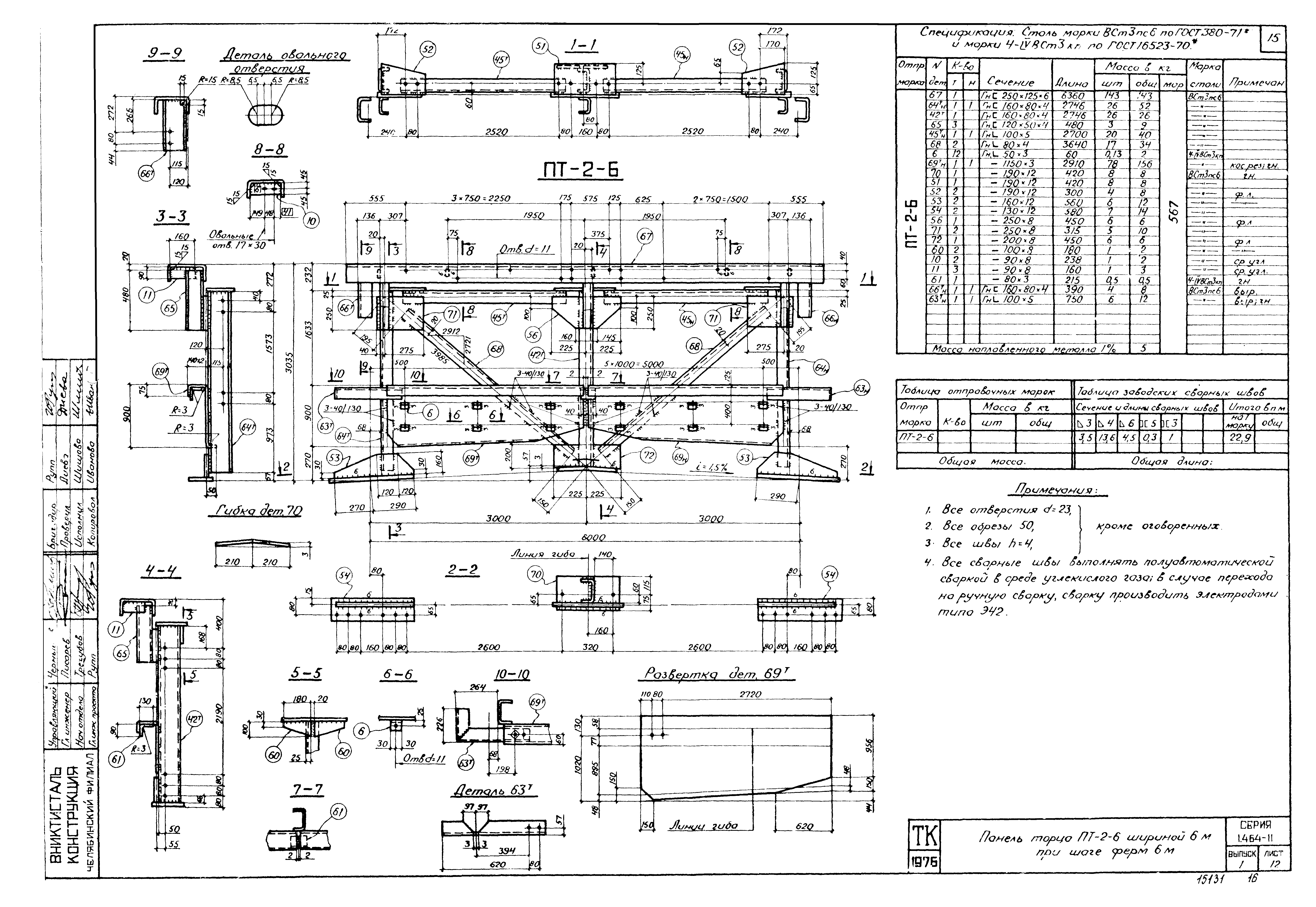
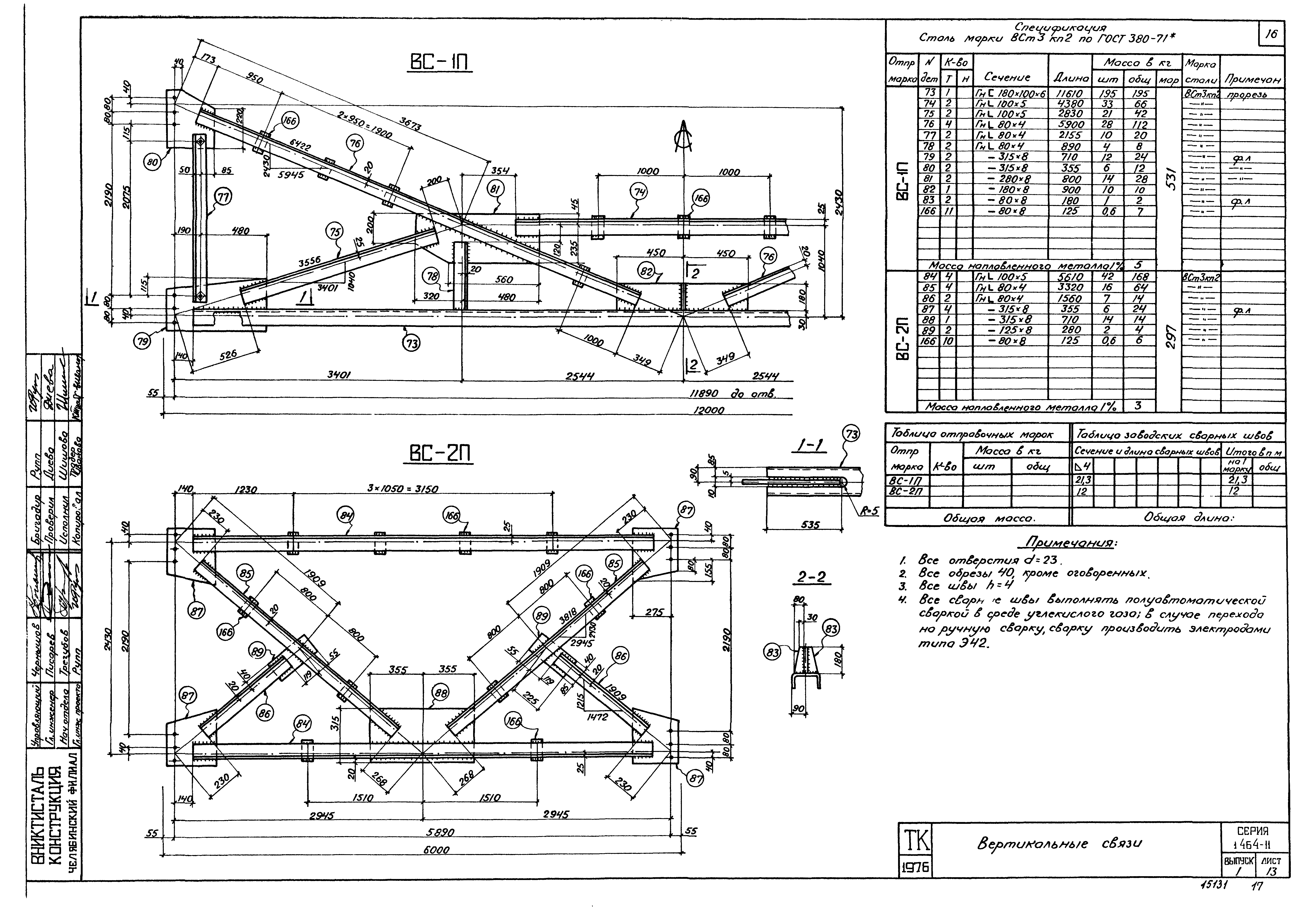
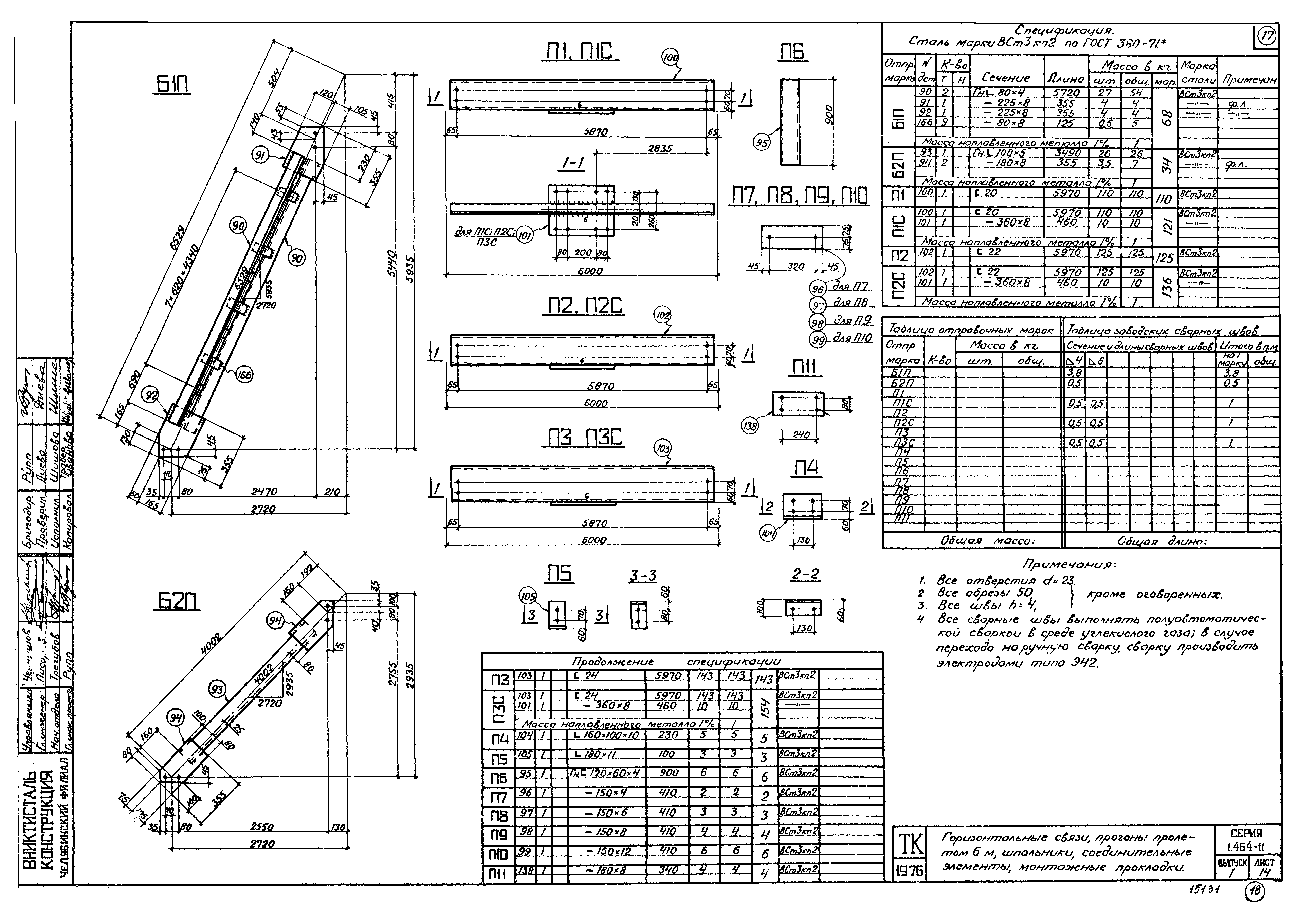
| Оглавление: | 1.464-11 Содержание 1.464-11 Пояснительная записка 1.464-11 Ключ для подбора монтажных элементов фонаря 1.464-11 Маркировочные схемы фонарей для зданий возводимых в несейсмических районах 1.464-11 Маркировочные схемы фонарей для зданий с расчетной сейсмичностью 7,8 и 9 баллов 1.464-11 Пример оформления монтажной схемы фонаря шириной 6м при шаге ферм 6м 1.464-11 Фонарная панель ФП-1 при шаге ферм 12м 1.464-11 Фонарная панель ФП-2 при шаге ферм 6м 1.464-11 Фонарная ферма ФФ-1Т, ФФ-1Н, ФФ-1ПТ, ФФ-1ПН фонаря шириной 12м 1.464-11 Фонарная ферма ФФ-2 фонаря шириной 6м 1.464-11 Панель торца ПТ-1-12 шириной 12м при шаге ферм 12м 1.464-11 Панель торца ПТ-1-6 шириной 12м при шаге ферм 6м 1.464-11 Панель торца ПТ-2-12 шириной 6м при шаге ферм 12м 1.464-11 Панель торца ПТ-2-6 шириной 6м при шаге ферм 6м 1.464-11 Вертикальные связи 1.464-11 Горизонтальные связи, прогоны пролетом 6м, шпольники, соединительные элементы, монтажные прокладки |
| Разработан: | ВНИКТИСтальконструкция |
| Утверждён: | 21.10.1977 Минмонтажспецстрой СССР (USSR Minmontazhspetsstroy ) Государственный производственный комитет по монтажным и специальным работам СССР |
| Чем заменён: |
|

















