Скачать Серия 1.464-11/82 Выпуск 1. Стальные конструкции фонарей с применением в покрытии стального профилированного настила. Чертежи КМДата актуализации: 01.01.2021
|
| Обозначение: | Серия 1.464-11/82 |
| Обозначение англ: | Series 1.464-11/82 |
| Статус: | заменен |
| Название рус.: | Выпуск 1. Стальные конструкции фонарей с применением в покрытии стального профилированного настила. Чертежи КМ |
| Дата добавления в базу: | 01.09.2013 |
| Дата актуализации: | 01.01.2021 |
| Дата введения: | 01.01.1983 |
| Дата окончания срока действия: | 01.12.1993 |
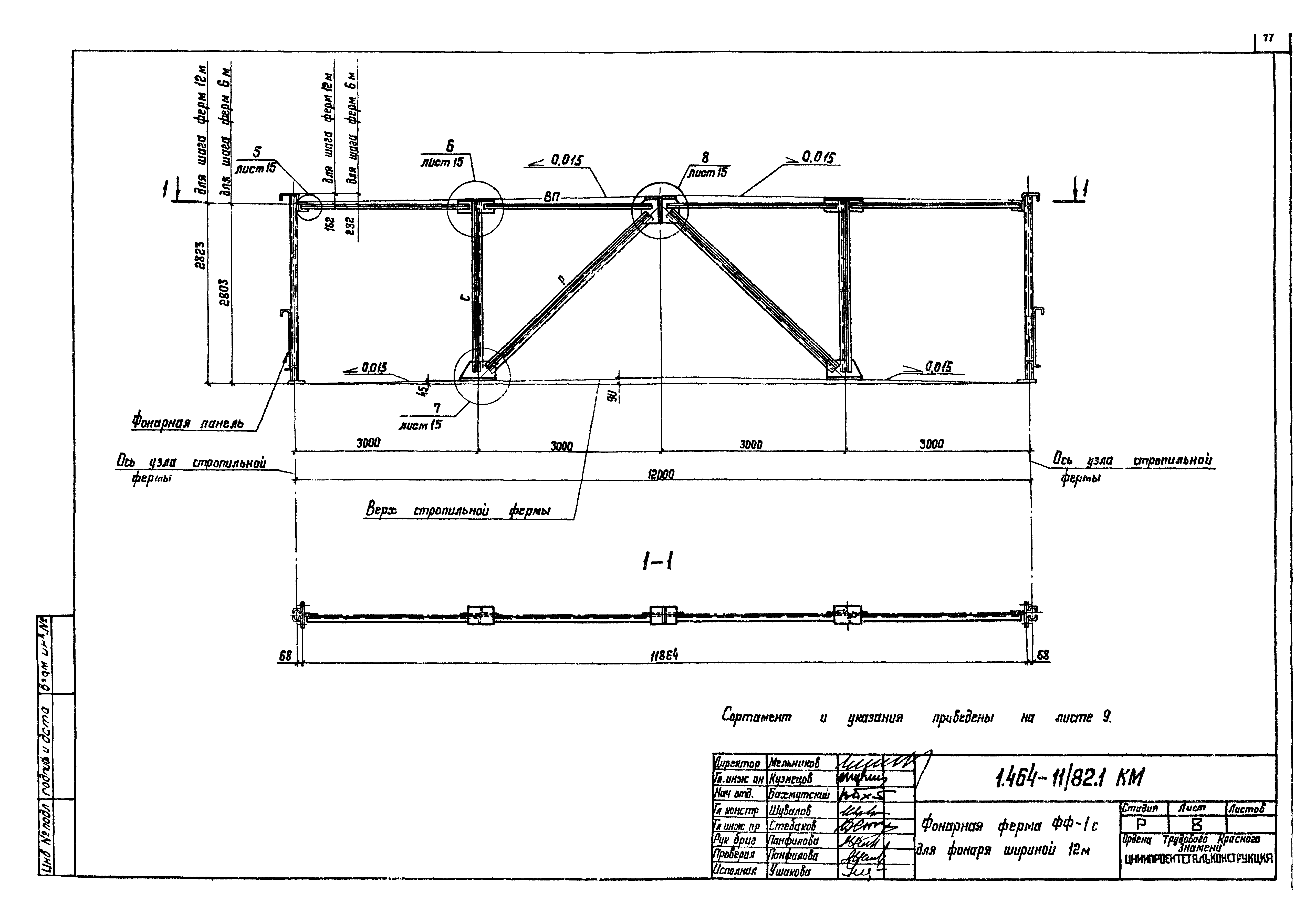
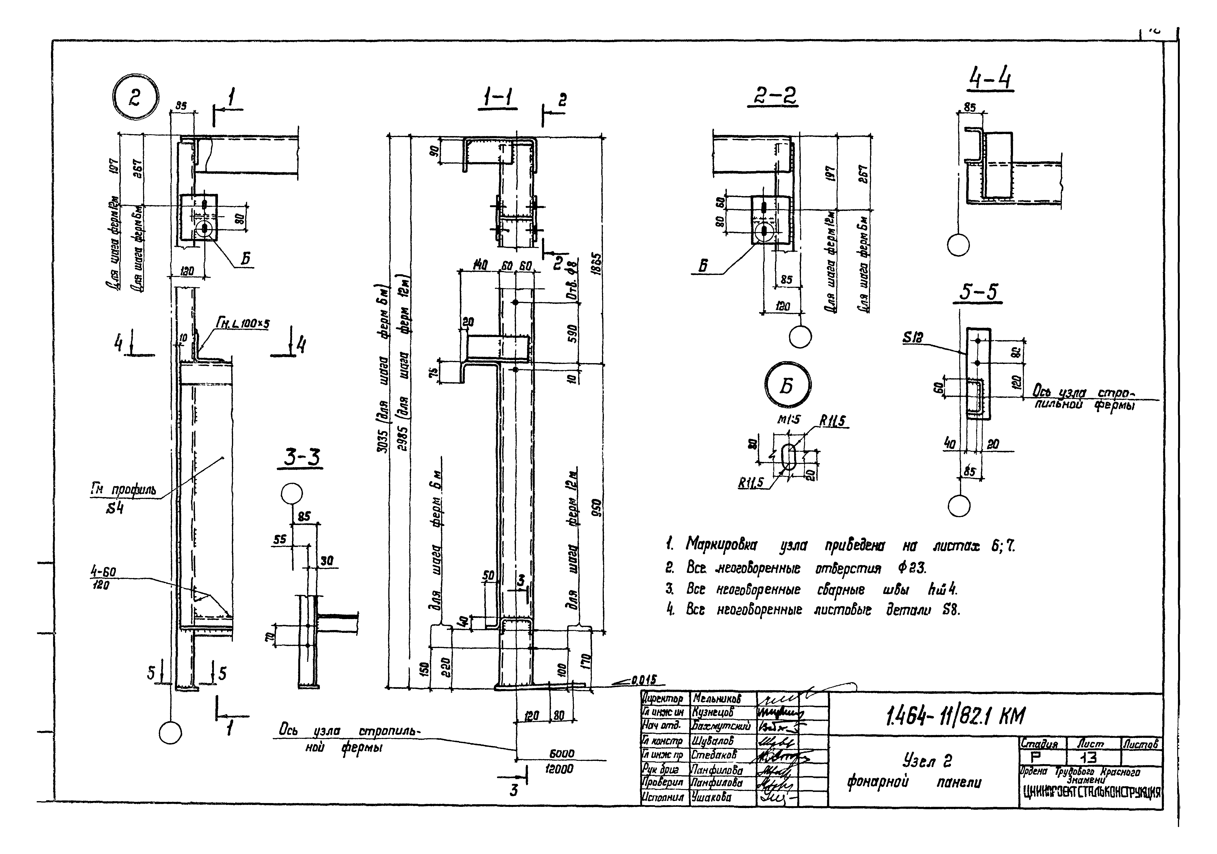
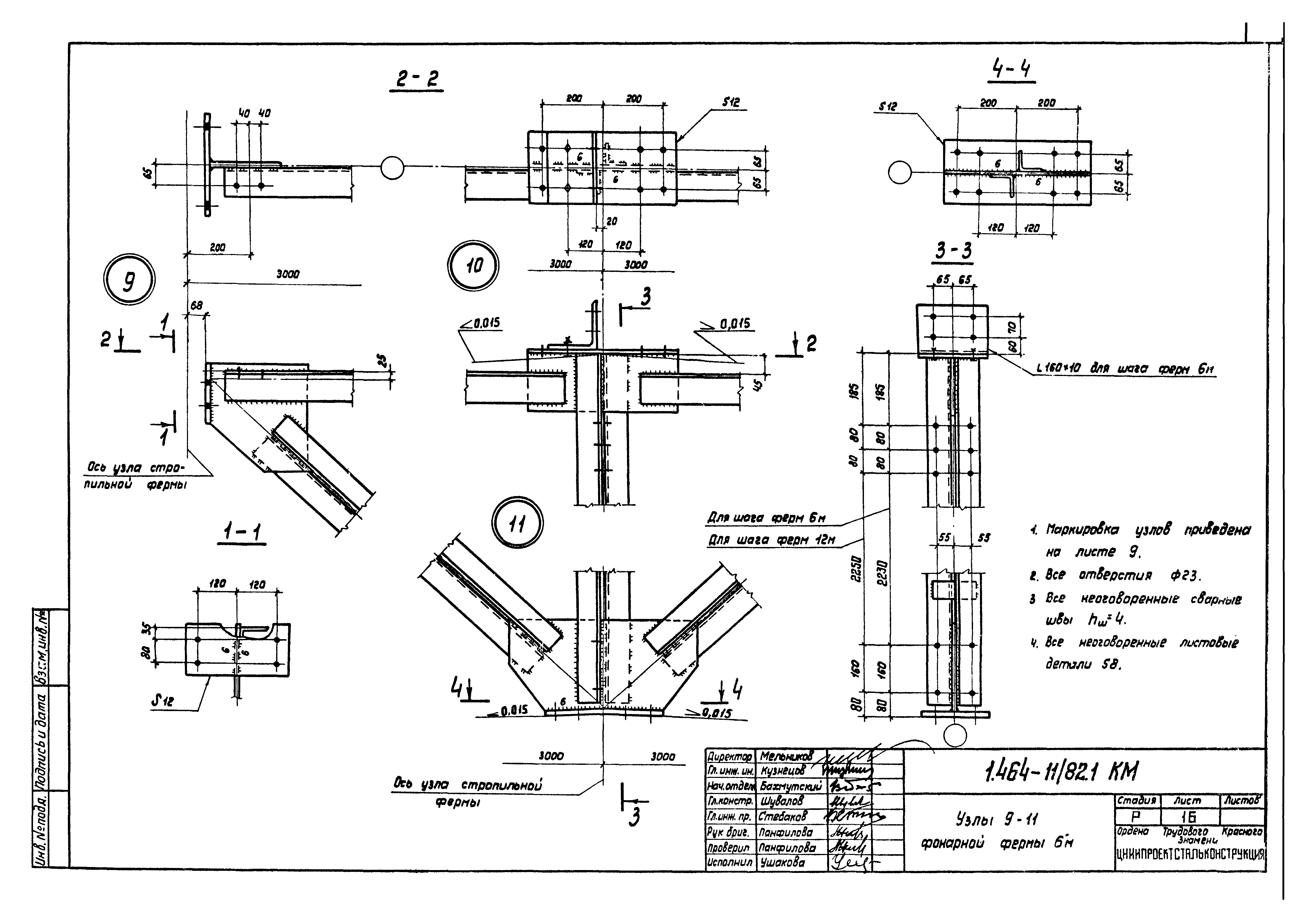
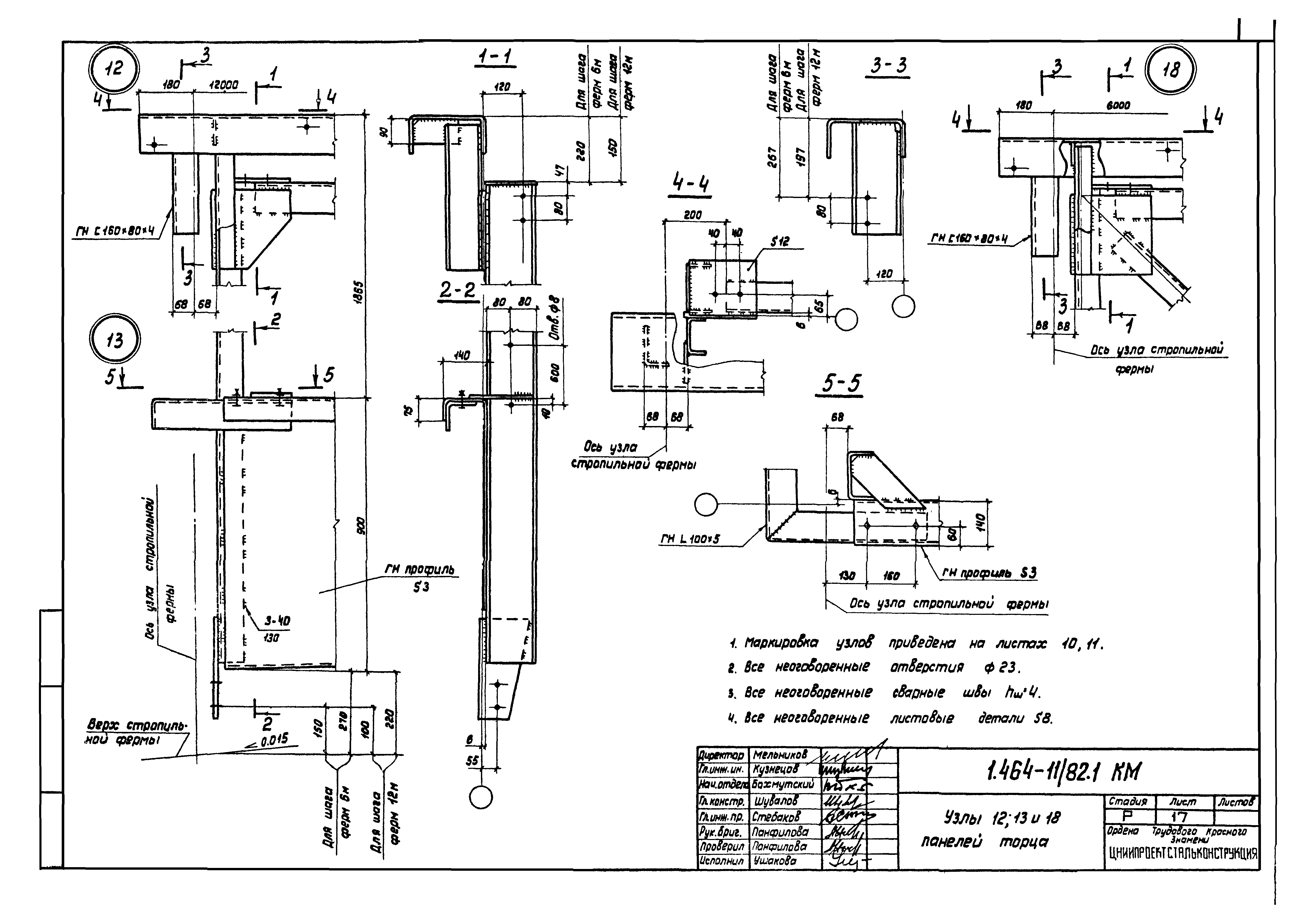
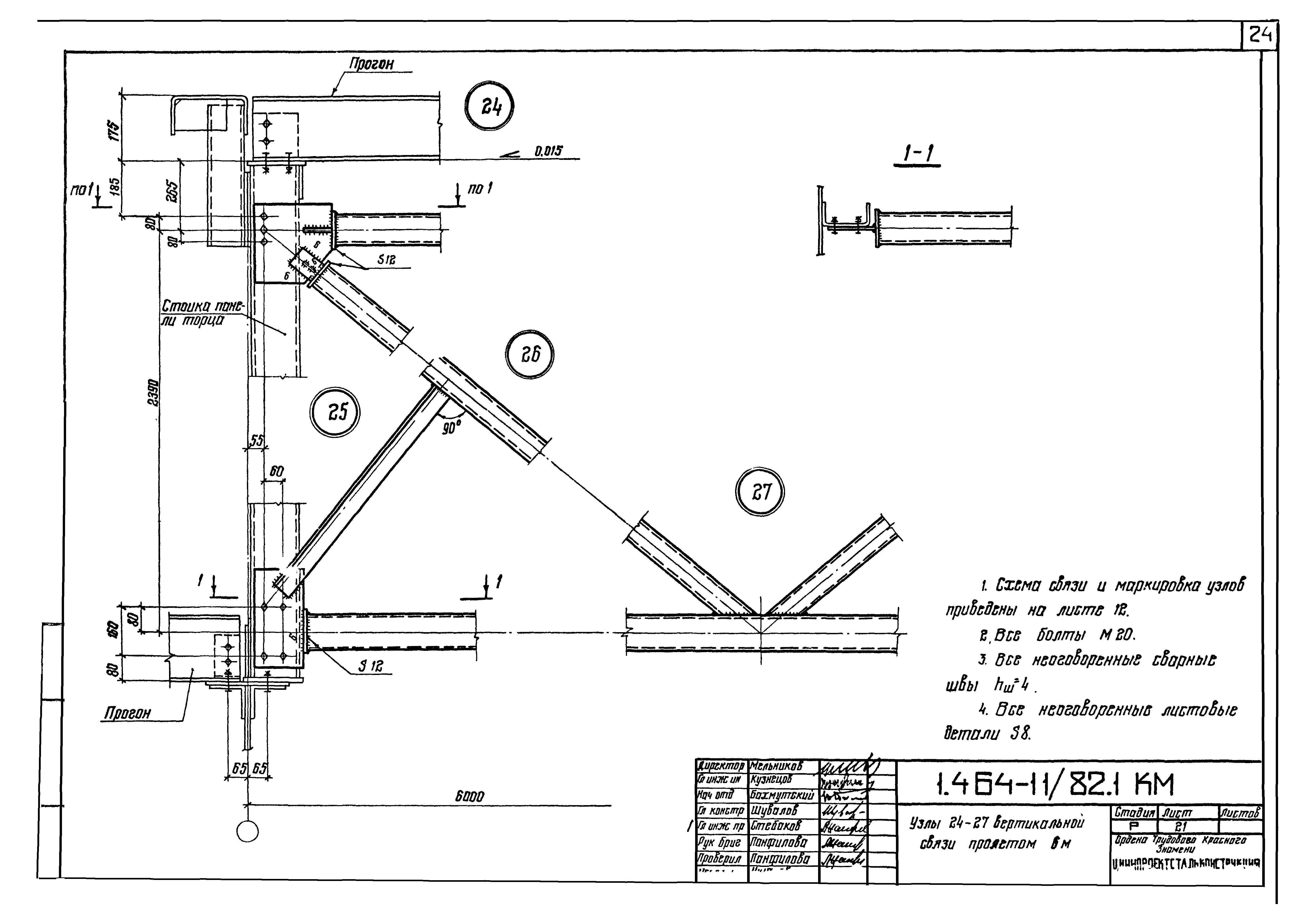
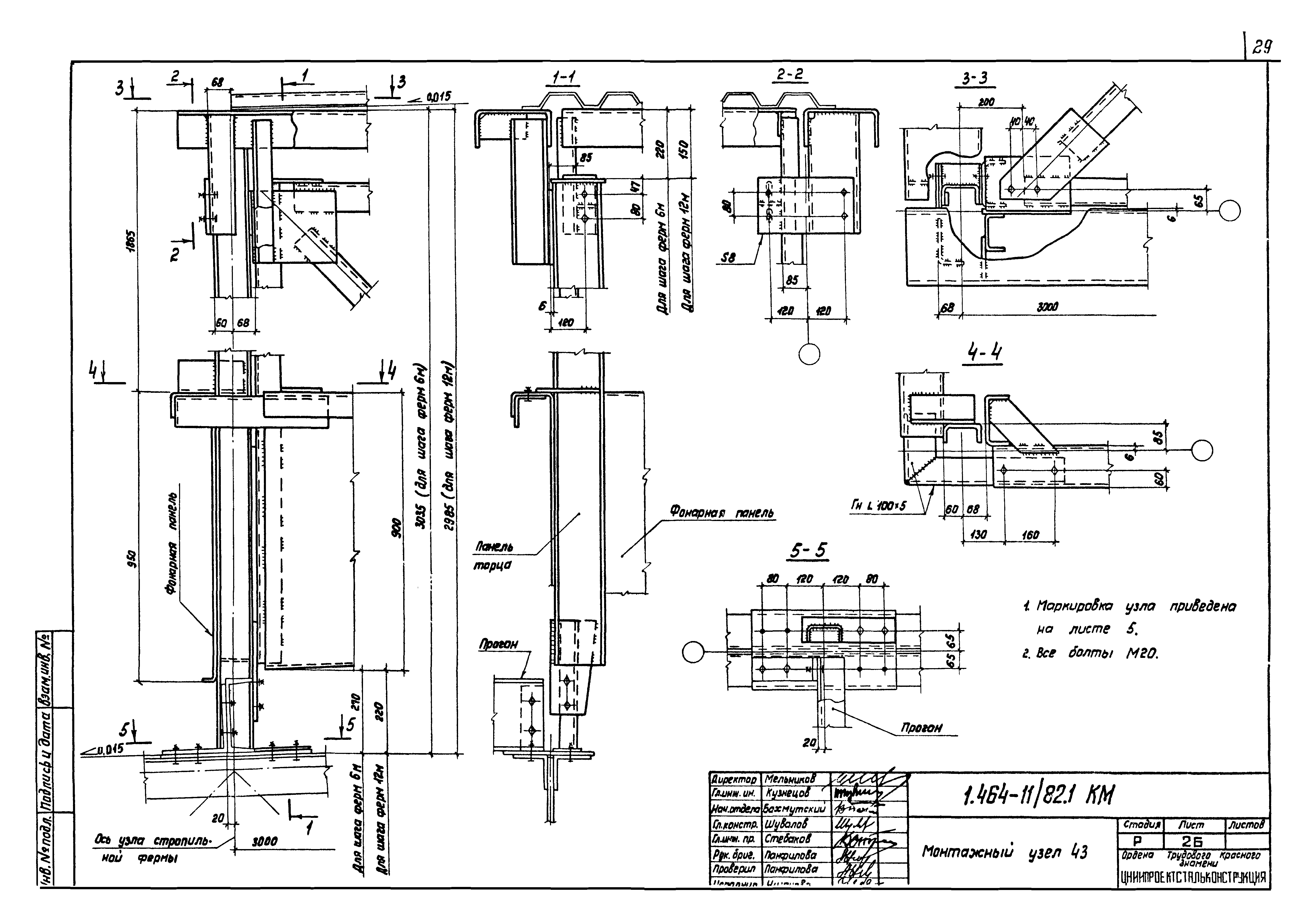
| Оглавление: | 1.464-11/82.1КМ л.1.1-1.2 Пояснительная записка 1.464-11/82.1КМ л.2 Нагрузки 1.464-11/82.1КМ л.3 Схемы распоряжения конструкций фонаря шириной 12м. Шаг ферм 12м,6м 1.464-11/82.1КМ л.4 Схемы распоряжения конструкций фонаря шириной 12м. Шаг ферм 12м,6м. Разрезы 1-1;2-2;3-3;4-4 1.464-11/82.1КМ л.5 Разрезы 5-5;6-6;8-8;9-9. Виды 7-7;10-10. Таблица элементов 1.464-11/82.1КМ л.6 Фонарные панели ФП-1с;ФП-3с. Шаг ферм 12м. Узел 1 1.464-11/82.1КМ л.7 Фонарная панель ФП-2с. Шаг ферм 6м. Сортамент фонарных панелей 1.464-11/82.1КМ л.8 Фонарная ферма ФФ-1с для фонаря шириной 12м 1.464-11/82.1КМ л.9 Фонарная ферма ФФ-2с для фонаря шириной 6м. Сортамент фонарных ферм 1.464-11/82.1КМ л.10 Панель торца ПТ-1с для фонаря шириной 12м 1.464-11/82.1КМ л.11 Панель торца ПТ-2с для фонаря шириной 6м. Сортамент панелей торца 1.464-11/82.1КМ л.12 Вертикальные связи: схемы и сортамент 1.464-11/82.1КМ л.13 Узел 2 фонарной панели 1.464-11/82.1КМ л.14 Узлы 3 и 4 фонарной панели 1.464-11/82.1КМ л.15 Узлы 5-8 фонарной фермы 12м 1.464-11/82.1КМ л.16 Узлы 9-11 фонарной фермы 6м 1.464-11/82.1КМ л.17 Узлы 12,13 и 18 панелей торца 1.464-11/82.1КМ л.18 Узлы 14,15 панелей торца 1.464-11/82.1КМ л.19 Узлы 16,17,19 панелей торца 1.464-11/82.1КМ л.20 Узлы 20-23 вертикальной связи пролетом 12м 1.464-11/82.1КМ л.21 Узлы 24-27 вертикальной связи пролетом 6м 1.464-11/82.1КМ л.22 Узлы 28-32 крепления прогонов и горизонтальной связи. Шаг ферм 12м 1.464-11/82.1КМ л.23 Узлы 33-37 крепления прогонов и горизонтальной связи. Шаг ферм 6м 1.464-11/82.1КМ л.24 Монтажные узлы 38,39 1.464-11/82.1КМ л.25 Монтажные узлы 40-42 1.464-11/82.1КМ л.26 Монтажный узел 43 1.464-11/82.1КМ л.27 Спецификация стали |
| Разработан: | ЦНИИпроектстальконструкция |
| Утверждён: | 08.09.1982 Госстрой СССР (Государственный комитет Совета Министров СССР по делам строительства) (USSR Gosstroy 211) |
| Заменяет собой: |






























