Скачать Шифр М27.20/2013 Наружные стены, стены подвала, покрытия, потолки, фундаменты и полы с теплоизоляцией из пеностекла НЕОПОРМ®, производства ЗАО Компания СТЭС-Владимир. Материалы для проектирования и чертежи узловДата актуализации: 01.01.2021
|
| Обозначение: | Шифр М27.20/2013 |
| Обозначение англ: | М27.20/2013 |
| Статус: | не определен законодательством |
| Название рус.: | Наружные стены, стены подвала, покрытия, потолки, фундаменты и полы с теплоизоляцией из пеностекла НЕОПОРМ®, производства ЗАО "Компания СТЭС-Владимир". Материалы для проектирования и чертежи узлов |
| Дата добавления в базу: | 01.02.2017 |
| Дата актуализации: | 01.01.2021 |
| Дата введения: | 30.04.2014 |
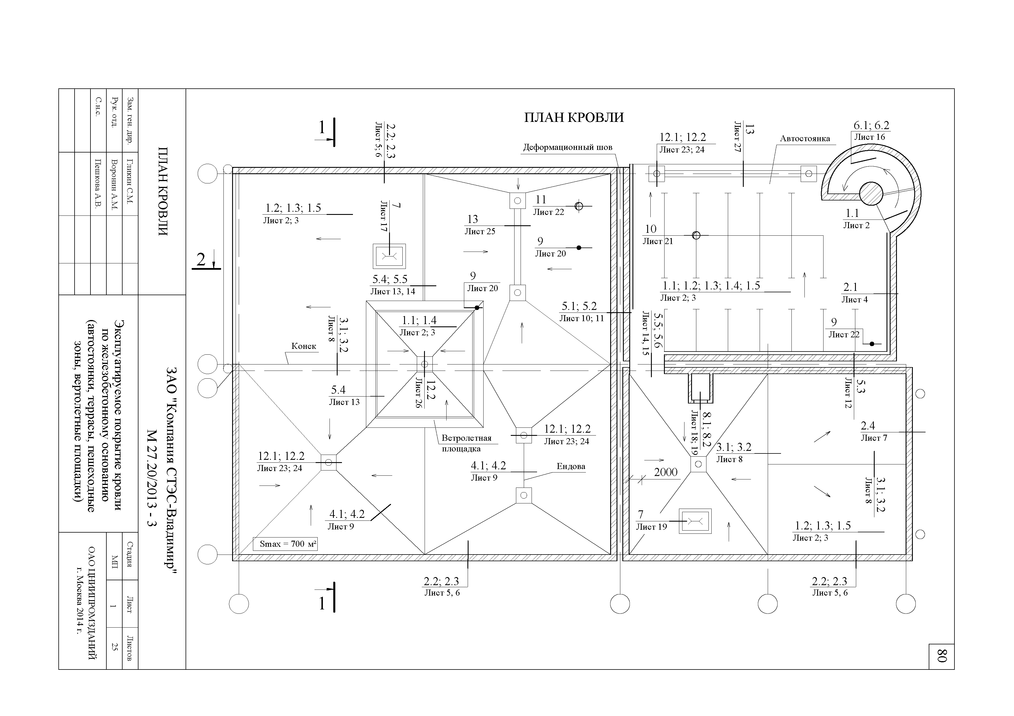
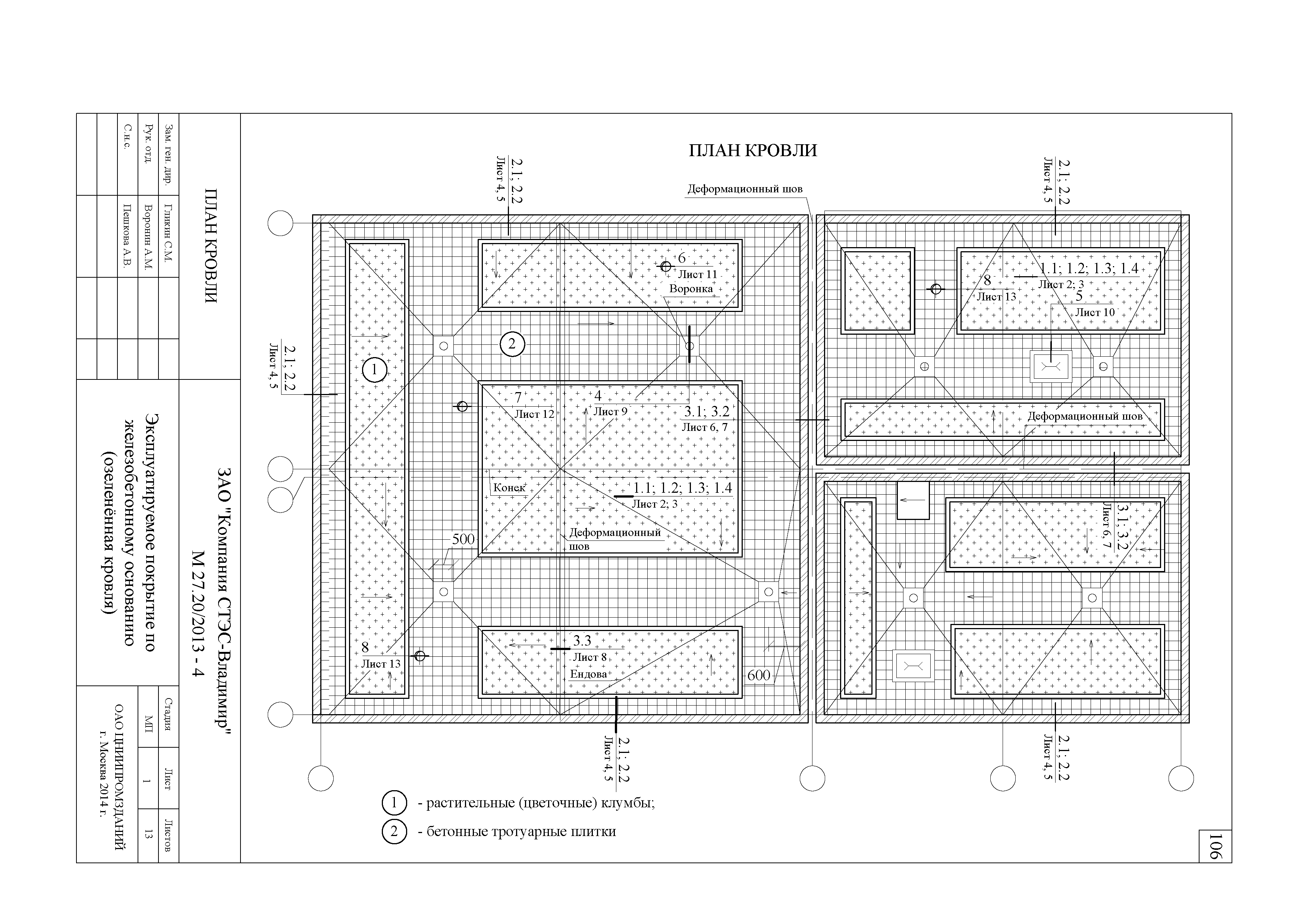
| Область применения: | Альбом содержит материалы для проектирования и чертежи узлов наружных стен, стен подвала, покрытий, потолков, фундаментов и полов зданий различного назначения с теплоизоляцией из плитного пеностекла НЕОПОРМ®. |
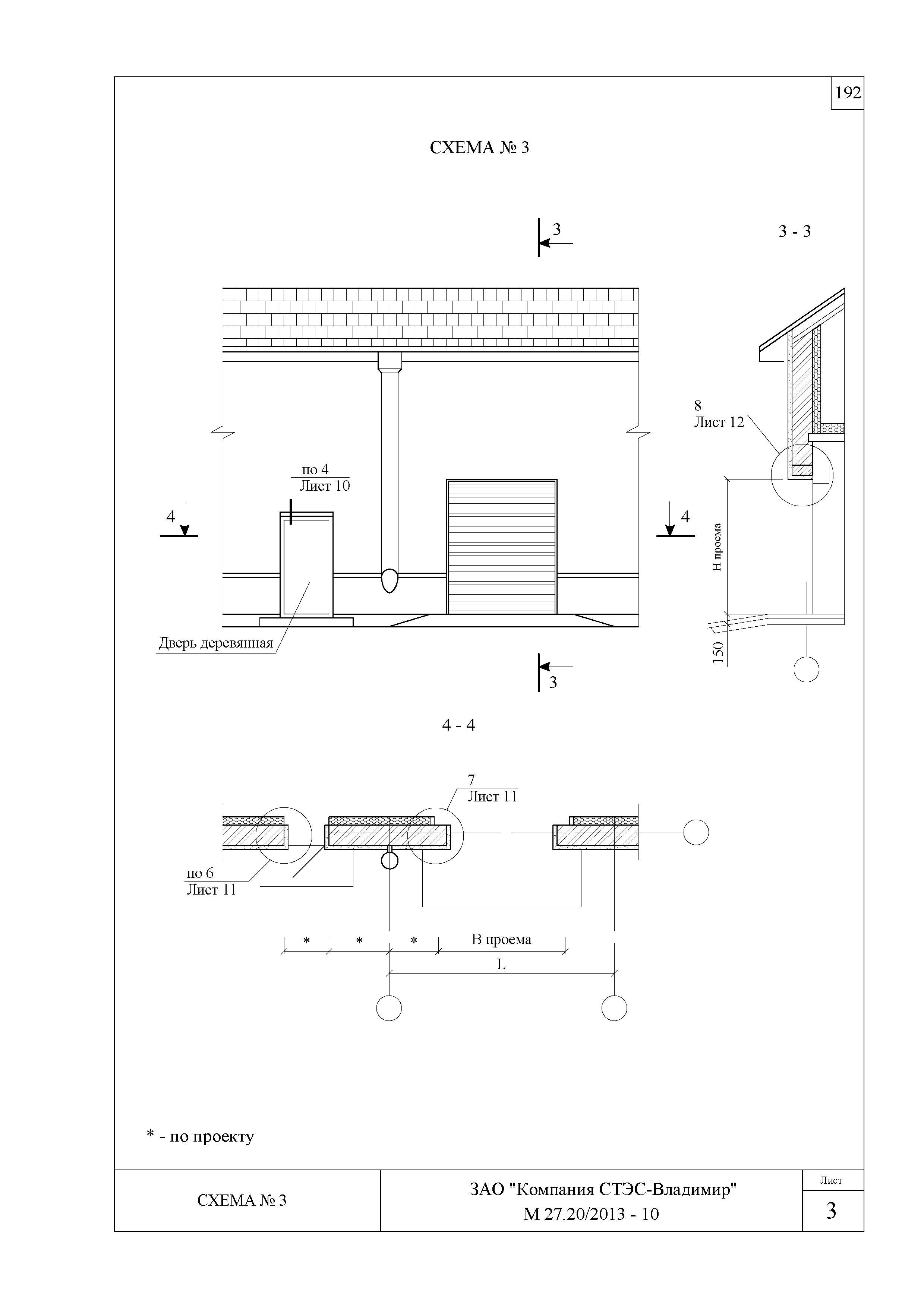
| Оглавление: | Сертификат Пояснительная записка 1 Общие положения 2 Применяемые материалы 2.1 Теплоизоляция из плит пеностекла "НЕОПОРМ®" 2.2 Комплектующие, сопутствующие материалы (мастики, клеи, шпатлевки, штукатурка, анкера, дюбели) 2.2.1 Клеевые составы 2.2.2 Праймер 2.2.3 Герметик 2.2.4 Штукатурные, отделочные и декоративные смеси 2.2.5 Крепежные элементы 2.2.6 Уклонообразующие изделия 3 Конструктивные решения покрытий 3.1 Общие данные 3.2 Неэксплуатируемые покрытия с кровлей из рулонных материалов 3.2.1 Покрытия с несущими конструкциями из железобетона 3.2.2 Покрытия с несущими конструкциями из стального профилированного настила 3.3 Эксплуатируемые покрытия с несущим железобетонным основанием и кровлей из рулонных материалов 3.3.1 Покрытия под автостоянки, оборудование, вертолетные площадки, террасы 3.3.2 Озелененные кровли 3.4 Кровли из металлических листовых материалов 4 Конструктивные решения стен 4.1 Общие данные 4.2 Стены с защитно-декоративным слоем из традиционной штукатурки 4.3 Стены с защитно-декоративным слоем из тонкослойной штукатурки 4.4 Стены с отделочным слоем из кирпича 4.5 Стены с облицовкой клинкерной плиткой 4.6 Стены с расположением плит пеностекла "НЕОПОРМ®" со стороны помещения 4.7 Стены подвала Утепление стен подвала с наружной стороны Утепление стен подвала со стороны помещения 5 Полы 5.1 Общие данные 5.2 Пол П1 по грунту 5.3 Пол П2 на перекрытии над неотапливаемым подвалом или проветриваемым подпольем 5.4 Пол на междуэтажных перекрытиях по железобетонному (П3) или деревянному (П4) основанию 5.5 Пол на грунте (П5) или на междуэтажных перекрытиях из железобетона (Пб) с устройством системы обогрева или охлаждения 5.6 Пол на грунте (П7) или на междуэтажных перекрытиях из железобетона (П8) для промышленных зданий Потолки Раздел 1 Неэксплуатируемое покрытие кровли по основанию из профилированного настила Раздел 2 Неэксплуатируемое покрытие по железобетонному основанию Раздел 3 Эксплуатируемое покрытие по железобетонному основанию (автостоянки, террасы, пешеходные зоны, вертолетные площадки) Раздел 4 Эксплуатируемое покрытие по железобетонному основанию (озелененная кровля) Раздел 5 Покрытие с кровлей из металлических листовых материалов Раздел 6 Стены с защитно-декоративной традиционной штукатуркой Раздел 7 Стены с защитно-декоративной тонкослойной штукатуркой Раздел 8 Стены с отделочным слоем из кирпича. Новое строительство Раздел 9 Стены с облицовкой клинкерной плиткой Раздел 10 Стены с теплоизоляционным слоем, размещенным со стороны помещения. Реконструкция Раздел 11 Стены подвала (утепление с наружной стороны) Раздел 12 Стены подвала (утепление с внутренней стороны) Раздел 13 Полы Раздел 14 Потолки Приложение 1. Пример теплотехнического расчета наружной стены (новое строительство) Приложение 2. Пример теплотехнического расчета покрытия (новое строительство) Приложение 3. Пример теплотехнического расчета подвала (техподполья) |
| Разработан: | ОАО ЦНИИпромзданий |
| Утверждён: | 30.04.2014 ОАО ЦНИИпромзданий (TsNIIpromzdaniy OAO ) |
| Издан: | ОАО ЦНИИпромзданий (2014 г. ) |
| Нормативные ссылки: |
|







































































































































































































































